Крупнейшая бесплатная информационно-справочная система онлайн доступа к полному собранию технических нормативно-правовых актов РФ. Огромная база технических нормативов (более 150 тысяч документов) и полное собрание национальных стандартов, аутентичное официальной базе Госстандарта. GOSTRF.com - это более 1 Терабайта бесплатной технической информации для всех пользователей интернета. Все электронные копии представленных здесь документов могут распространяться без каких-либо ограничений. Поощряется распространение информации с этого сайта на любых других ресурсах. Каждый человек имеет право на неограниченный доступ к этим документам! Каждый человек имеет право на знание требований, изложенных в данных нормативно-правовых актах!

  


 

ПРАВИТЕЛЬСТВО МОСКВЫ
МОСКОМАРХИТЕКТУРА

РЕКОМЕНДАЦИИ
по проектированию системы легких
эффективных конструкций
для реконструкции жилых домов
первого периода индустриального домостроения

1999

Предисловие

1. РАЗРАБОТАНЫ:

ОАО Центральным научно-исследовательским и проектным институтом жилых и общественных зданий (ОАО ЦНИИЭП жилища) (руководитель работы доктор техн. наук Николаев С.В., доктор техн. наук, проф. Зырянов B. C., доктор арх. Кавин Е. В., кандидаты техн. наук Баршак И. С., Беляев B. C., Гельфанд Л. И., Граник Ю. Г., Крейтан В. Г., Шалыгина Е. Ю., инженеры Завелев В. Г., Козырева Т. Г.) при участии Всероссийского научно-исследовательского института противопожарной обороны МВД России (ВНИИПО МВД России) (доктор техн наук Шевчук А. П., кандидаты техн. наук Голованов В. И., Харитонов B. C., инженер Ружинский А. В.).

2. СОГЛАСОВАНЫ (технические решения):

ВНИИПО МВД России;

Центром госсанэпиднадзора в г. Москве.

3. ПОДГОТОВЛЕНЫ к утверждению и изданию Управлением перспективного проектирования и нормативов Москомархитектуры (архитектор Ревкевич Л. П., инженер Шевяков И. Ю.).

4. ПРИНЯТЫ И ВВЕДЕНЫ в действие указанием Москомархитектуры от 22.12.99 г. № 49.

СОДЕРЖАНИЕ

Введение. 2

1. Основные положения. 3

2. Основные системы легких эффективных конструкций. 4

2.1. Система с применением монолитного железобетона и оставляемой опалубки из ЦСП.. 4

2.2. Система с применением монолитного легкого бетона и оставляемой опалубки из пенополистирола. 8

2.3. Система монолитных оболочек из торкретбетона по оставляемой опалубке. 14

2.4. Система с применением металлического каркаса из гнутого профиля. 22

3. Статические расчеты.. 30

3.1. Общие положения. 30

3.2. Расчет перекрытий и стен из монолитного железобетона с оставляемой опалубкой из ЦСП.. 31

3.3. Расчет перекрытий по армоцементным балкам и монолитных стен из керамзитобетона. 37

3.4. Расчет монолитного коробчатою перекрытия с оставляемой внутренней опалубкой. 40

3.5. Расчет монолитного перекрытия по профнастилу и металлическим ригелям.. 42

4. Теплотехнические расчеты.. 44

4.1. Общие положения. 44

4.2. Теплотехнические расчеты наружных ограждений. 47

4.3. Влажностный режим наружных ограждений. 47

5. Расчеты звукоизоляции. 50

5.1. Общие положения. 50

5.2. Методы расчета. 51

5.3. Звукоизоляция внутренних стен и перегородок. 54

5.4. Звукоизоляция междуэтажных перекрытий. 55

6. Оценка огнестойкости. 56

7. Гигиенические качества. 58

8. Технико-экономические показатели. 58

9. Перечень нормативных документов. 64

Введение

Рекомендации по проектированию системы легких эффективных конструкций для реконструкции жилых домов первого периода индустриального домостроения разработаны на основе технических решений этой системы, согласованных Управлением Государственной противопожарной службы 28.04.99 г. № 25/8/2713 и Центром государственного санитарно-эпидемиологического надзора 08.02.99 г. № 23-53/186 и утвержденных указанием Москомархитектуры от 07.05.99 г. № 19.

Рекомендации направлены на реализацию Государственной целевой программы в области жилищного строительства в части сохранения и обновления существующего жилищного фонда г. Москвы, значительную часть которого составляют 5-этажные панельные, блочные и кирпичные жилые дома, построенные по типовым проектам первого поколения.

Рекомендации предназначены для проектировщиков, инвесторов и застройщиков, осуществляющих реконструкцию с надстройкой 5-этажных жилых домов первого периода индустриального домостроения и могут также использоваться при реконструкции других типов жилых домов, а также зданий общественного назначения.

Рекомендации позволяют решать следующие задачи:

увеличение общей площади дома за счет надстройки 2 - 3 этажей без отселения жильцов, увеличения площади застройки, затрат на обустройство инфраструктуры и создания переселенческого фонда;

создание более привлекательного архитектурного облика домов и застройки в целом путем использования комплекса мероприятий обеспечивающих повышение пластики фасадов, качество наружной отделки и применения мансард;

уменьшение удельной массы здания благодаря использованию современных легких эффективных материалов и конструкций;

достижение суммарного экономического эффекта за счет сокращения затрат на стадиях реконструкции и эксплуатации дома.

Оценка эксплуатационных качеств жилых домов серий 1-510 1-511 и 1-515 показывает, что они обладают запасом несущей способности позволяющим осуществлять надстройку 2 - 3 этажей с мансардой по приведенным в Рекомендациях конструктивным системам без усиления фундаментов и несущих конструкций здания.

Вместе с тем реконструкции каждого конкретного здания должно предшествовать всестороннее обследование фактической несущей способности основания, всех несущих конструкций, теплозащитных характеристик наружных ограждающих конструкций, состояния инженерных сетей и коммуникаций и т.п.

Рекомендации включают 4 варианта конструктивных систем надстраиваемых этажей, основные характеристики и показатели которых приведены в таблице.

ТАБЛИЦА ХАРАКТЕРИСТИК И ПОКАЗАТЕЛЕЙ ПО СТРОИТЕЛЬНЫМ СИСТЕМАМ ДЛЯ НАДСТРАИВАЕМЫХ ЭТАЖЕЙ ЖИЛЫХ ДОМОВ

Вариант

Наименование системы

Конструктивные схемы

Конструктивные элементы

Показатели на кв.м общ. Пл.

В поперечном направлении

В продольном направлении

Наружные стены

Внутренние стены

Перекрытия и покрытие

Масса, кг

Стоимость, руб.

Вариант 1

Система с применением монолитного железобетона и оставляемой опалубки из ЦСП

Несущий бетонный слой, утепление - 2 слоя ЦСП и 1 слой ПСБ-С, оштукатурены снаружи

Несущий бетонный слой, облицованный двумя слоями ЦСП

Несущая ребристая ж.б. плита по ЦСП. Снизу - 2 слоя ГВЛ. Пол плавающий по слою ПСБС.

1050

3178

Вариант 2

Система с применением монолитного легкого бетона и оставляемой опалуб. из пенополистир.

Несущий бетонный каркас в полостях блоков из ПСБ-С, оштукатурены с двух сторон

Несущие армоцементные стойки, облицованные ГВЛ. Внутри - минераловатные плиты

 Несущие армоцементные балки, облицованные ГВЛ с засыпкой керамзитом

682

3659

Вариант 3

Система монолитных оболочек из торкретбетона по оставляемой опалубке

2 ж.б. скорлупы с расположенным между ними утеплителем из ПСБ-С или МВП

2 ж.б. скорлупы с расположенным между ними утеплителем из ПСБ-С или МВП

Несущая ж.б. ребристая плита по МВП, обетонированная снизу с полом из ДВП по лагам

708

3895

Вариант 4

Система с применением металлического каркаса из гнутого профиля

Несущий каркас из тонколистовых мет. профилей с утеплителем, облиц. ГВЛО и оштукатурены

Несущий каркас из тонколистовых мет. профилей с утеплителем, облиц. ГВЛО с двух сторон

Метал. балки с ж.б. ребристыми плитами по профнастилу с подшивкой ГВЛО и плав. полом

527

3373

1. Основные положения

1.1. Рекомендации разработаны в соответствии с договором № 2-8260 с Москомархитектурой и предназначены для проектирования легких эффективных конструкций надстроек 5-ти этажных домов серий 1-510, 1-511 и 1-515, а также для надстройки домов иной этажности.

1.2. В качестве легких в работе приняты конструкции, приведенная масса которых не превышает 1000 кг/кв.м общей площади. Аналогичный показатель для кирпичных зданий составляет 2000 кг/кв.м, а для панельных - 1500 кг/кв.м.

1.3. Рекомендации разработаны применительно к архитектурно-планировочным решениям надстраиваемых этажей домов серий 1-510, 1-511 и 1-515, которые, по заданию Москомархитектуры, выполнены ОАО ЦНИИЭП жилища в 1997 г., в работе по реконструкции домов указанных серий, но могут быть применены в других зданиях.

1.4. Принятые в работе планировочные решения и разработанные предложения по конструкциям надстройки соответствуют требованиям СНиП 2.08.01-89* "Жилые здания", МГСН 3.01-96 "Жилые здания" и дополнению № 1 к ним, СНиП II-3-79* "Строительная теплотехника" изд. 1998 г., МГСН 2.01-94 "Энергосбережение в зданиях", СНиП II-12-77 "Защита от шума", МГСН 2.04.97 "Допускаемые уровни шума, вибрации и требования к звукоизоляции в жилых и общественных зданиях", СНиП 2.01.02-85* "Противопожарные нормы", СНиП 21-01-97 "Пожарная безопасность зданий и сооружений".

1.5. На основе отечественного и зарубежного опыта применения в строительстве легких эффективных конструкций могут быть рекомендованы следующие системы, определяемые типом вертикальных несущих элементов надстроек:

- система с применением монолитного железобетона и оставляемой опалубки из цементно-стружечных плит (ЦСП);

- система с применением монолитного легкого бетона и оставляемой опалубки из пенополистирола;

- система монолитных оболочек из торкретбетона по оставляемой опалубке;

- система с применением металлического каркаса из гнутого профиля.

1.6. В системах легких конструкций могут быть приняты следующие варианты междуэтажных перекрытий:

- монолитные ребристые и сплошные с оставляемой опалубкой из ЦСП;

- монолитные из торкретбетона по оставляемой опалубке;

- монолитные коробчатого сечения со сплошными вкладышами и с засыпными пустотами;

- монолитные по металлическим ригелям, в т.ч. укладываемые по профнастилу;

- монолитные, укладываемые по армоцементным балкам.

1.7. Для легких наружных ограждений мансардных этажей могут быть использованы гнутый металлический профиль, древесина и монолитный железобетон по оставляемой опалубке. В качестве кровельного покрытия приняты металлочерепица и ондулин.

1.8. Для защиты металлического и деревянного каркаса, а также в обшивке каркасных стен применены гипсокартонные и гипсоволокнистые листы [37, 29].

Конструкции и монтажные узлы из этих листов выполнены в соответствии со сводом правил "Ограждающие конструкции с применением гипсокартонных листов. Проектирование, устройство, эксплуатация", М., 1998 г.

1.9. В слоистых конструкциях наружных ограждений рекомендуется применять минераловатные плиты по типу Роквул плотностью γ = 80 кг/куб.м и с коэффициентом теплопроводности λ = 0,04 Вт/(м.°С), а также плиты пенополистирола ПСБ-С плотностью γ = 40 кг/куб.м и с коэффициентом теплопроводности λ = 0,05 Вт/( м. °С).

1.10. В слоистых конструкциях перекрытий, а также межквартирных стен и перегородок в качестве звукоизоляционного материала рекомендуется применять полужесткую минераловатную плиту П100 [23] средней плотностью γ = 100 кг/куб.м.

1.11. Технические решения легких конструкций надстройки выполнены с учетом противопожарных требований к зданиям II степени огнестойкости, что соответствует СНиП 2.08.89 [1] для 5-ти этажных зданий после надстройки 1 - 3-х этажей.

Необходимый предел огнестойкости конструкций при нулевом пределе распространения огня достигается их облицовкой огнезащитными гипсокартонными листами ГКЛО и гипсоволокнистыми листами ГВЛ, а в необходимых случаях дополнительной обмазкой поверхностей огнезащитными покрытиями типа Эсма", "Файрекс" и др.

При использовании пенополистирола ПСБ-С в качестве утеплителя и элементов конструкции оставляемой опалубки учтены требования совместного письма Госстроя России и Главного управления Государственной противопожарной службы (ГУГПС) МВД России [43].

В соответствии с этими требованиями для нулевого предела распространения огня в зданиях II степени огнестойкости:

- пенополистирол со стороны фасада защищается слоем штукатурки толщиной 25 - 30 мм;

- на уровне перекрытий каждого этажа предусмотрено устройство горизонтальных рассечек полосой в 50 мм на всю толщину пенополистирола, выполняемых из негорючих минераловатных плит;

- в обрамлении оконных и дверных проемов устроены защитные слои толщиной 100 мм из минераловатных плит;

- фасадный слой утепляемых стен защищается от механических повреждений на высоту 2,5 м от уровня земли.

1.12. Соответствие надстройки домов из легких конструкций действующим санитарным нормам обеспечивается:

- использованием в конструкциях экологически чистых материалов, которые в процессе монтажа и эксплуатации зданий, а также при воздействии огня не имеют вредных выделений;

- защитой утеплителя и оставляемой опалубки из пенополистирола двумя слоями гипсоволокнистых плит ГВЛ или слоем торкретбетона со стороны помещений толщиной 30 - 50 мм.

2. Основные системы легких эффективных конструкций

2.1. Система с применением монолитного железобетона и оставляемой опалубки из ЦСП

2.1.1. Надстройка возводится с применением технологии монолитного домостроения с использованием оставляемой наружной опалубки "ВЕЛОКС". Опалубка состоит из цементно-стружечных плит. Цементно-стружечные плиты предлагаются в двух вариантах: вариант 1 - плотность - γ = 750 кг/куб.м плиты "ВЕЛОКС"; вариант 2 - плотность - γ = 1200 кг/куб.м (отечественные плиты).

2.1.2. В наружной стене (НС-1) (рис. 1, 2) между цементно-стружечными плитами располагают утеплитель и монолитный бетон. Толщина монолитного бетонного ядра составляет 100 мм из бетона класса В15. Бетонное ядро рекомендуется армировать вертикальными каркасами высотой на этаж. Диаметр и шаг рабочей арматуры определяют по расчету. Для наружных стен в качестве утеплителя целесообразно применять пенополистирол марки ПСБ-С (плотность - γ = 40 кг/куб.м) или минераловатные плиты на синтетических связующих (плотность ≈ 80 кг/куб.м). Утеплитель приклеивают на цементно-стружечные плиты минеральным клеем. Внешнюю грань наружной стены покрывают слоем известково-цементной штукатурки толщиной 8 - 10 мм по стеклопластиковой сетке.

2.1.3. Толщина бетонного монолитного ядра внутренней несущей стены (ВС-1) составляет 130 мм. Опалубка внутренних стен из цементно-стружечных плит - γ = 1200 кг/куб.м.

2.1.4. Участки монолитного бетона над дверными и оконными проемами следует армировать пространственными каркасами с рабочей арматурой класса A-III.

2.1.5. Межкомнатные перегородки (ВС-2) рекомендуется выполнять только из цементно-стружечных плит с плотностью - γ = 1200 кг/куб.м.

Количество слоев в перегородках (три) и прочность плит определяют расчетом на прочность и звукоизоляцию. Крепление слоев между собой следует выполнять гвоздями или дюбелями.

2.1.6. Плиты опалубки необходимо скреплять между собой и фиксировать в проектное положение при помощи фиксирующих каркасов (К-1; К-2) из коррозиестойкой арматурной стали Ø 4 мм или арматурной стали с защитным покрытием.

2.1.7. Бетонирование стен, изготавливаемых с применением оставляемой наружной опалубки из ЦСП, целесообразно осуществлять поэтажно. Готовую арматуру монтируют на месте.


Рис. 1. Схема устройства стен в системе с оставляемой опалубкой из ЦСП

Рис. 2. Соединение наружной и внутренней стен в системе с оставляемой опалубкой из ЦСП


2.1.8. С внутренней грани стен фиксирующие каркасы рекомендуется срезать "болгаркой". Во избежание образования горизонтальных щелей между цементно-стружечными плитами в местах установки фиксирующих каркасов делают вертикальные прорези.

2.1.9. Перекрытия (рис. 3) в виде ребристых плит целесообразно выполнять из монолитного бетона класса В15. Рабочая арматура в ребрах плит класса A-III. Пространства между ребрами в плитах образуют при помощи цементно-стружечных плит. Высота ребер составляет 200 мм в уровне 6 и 7 этажей и 150 мм в уровне 5 этажа.

2.1.10. Ребристую плиту перекрытия из бетона класса В15 рекомендуется применять и в покрытии (рис. 4). Пустоты плит в покрытии целесообразно образовывать жесткой минераловатной плитой с плотностью - γ = 200 кг/куб.м, которая является слоем теплоизоляции.

2.1.11. Плиты опалубки ЦСП (для стен) и ГВП (для плит перекрытий) являются хорошей противопожарной защитой. По степени возгораемости ЦСП (γ = 1200 кг/куб.м) и ГВП относятся к группе Г1. Материалы, применяемые при изготовлении ЦСП и ГВП, экологически чистые.

2.2. Система с применением монолитного легкого бетона и оставляемой опалубки из пенополистирола

2.2.1. Стены наружные (рис. 6)

Полые блоки (250´310´1000 мм) пенополистирола (ПСБ-С), сложенные в шип-паз друг на друга, используют в этих системах при монтаже в качестве оставляемой опалубки, а в конструкции стены в качестве утеплителя. Внутреннюю полость блока заполняют конструктивным легким бетоном γ = 1600 кг/м3. По мере заполнения в него вертикально следует устанавливать арматурные стержни Ø 14 мм, а через два ряда блоков класть горизонтальные два ряда таких же стержней. Наружный и внутренний слои блоков ПСБ рекомендуется связывать между собой стальными прутками Ø 6 мм.

Наружная и внутренняя отделка стены может быть выполнена в 2-х вариантах:

а) в виде штукатурного слоя толщиной 25 и 30 мм, армированного 2-мя рядами стеклопластиковой сетки;

б) 2-мя слоями гипсоволокнистых листов, склеенных через стеклопластиковую сетку.


Рис. 3. Схемы устройства плит перекрытий и покрытий в системе с оставляемой опалубкой из ЦСП

Рис. 4. Устройство скатной крыши в системе с оставляемой опалубкой из ЦСП


2.2.2. Крыша (рис. 5)

В качестве несущей основы могут быть использованы армоцементные двутавровые балки № 20, укладываемые вдоль дома на поперечно-несущие внутренние каркасные стены. Балки могут быть армированы стеклопластиковыми стержнями и сетками. Их составляют из двух предварительно изготовленных швеллеров № 20, сболчиваемых между собой болтами из стеклопластика (или пластмассовыми дюбелями). По низу балок устанавливают подвесной потолок из цементно-стружечной плиты, склеенной с рубероидом в 2 слоя через стеклопластиковую сетку. На рубероид рекомендуется укладывать деревянные бруски 50´40 через 600 мм, между которыми на клею устанавливают минераловатную плиту γ = 150 кг/м3. Подвесной потолок через деревянные бруски крепится к двутаврам посредством мастики и металлических пластин, загибаемых на полки двутавра. Между двутавровыми балками укладывают полужесткую минераловатную плиту до верха двутавра балки. Балки и МВП целесообразно укрывать слоем стеклопластиковой сетки или распыленного клея.

Сверху, вдоль ската крыши, рекомендуется укладывать деревянный брус 80´40 мм с прорезями (с шагом - 600 мм) под полки двутавра. Брус пристреливают дюбелями к швеллерам или крепят проволочной скруткой, затем настилают обрешетку и кровлю из металлочерепицы или ондулина.

2.2.3. Перекрытие междуэтажное (рис. 6)

Несущей его основой служат такие же, что и для крыши двутавровые армоцементные балки. К ним снизу рекомендуется пристреливать дюбелями цементно-стружечные плиты (ЦСП), склеенные с рубероидом через стеклопластиковую сетку. Двутавры следует устанавливать через 500 мм. Между двутаврами укладывают два слоя стеклопластиковой сетки и лист ГВЛ. В пространство между балками рекомендуется насыпать керамзит, шлак, пемзу или пеностекло. Затем укладывают слой самовыравнивающейся гипсовой стяжки с армированием стеклопластиковой сеткой. По центрам двутавров крепят на мастике полосы пенорезины или мягкой ДВП. По ним можно укладывать деревянные лаги, а сверх них щитовой паркет.

2.2.4. Внутренние стены (рис. 7)

Продольную стену рекомендуется выполнять из легкого бетона толщиной 20 см, поперечные - каркасными из двутавровых армоцементных ригелей и стоек с заполнением минераловатными плитами и обшивками из ЦСП.


Рис. 5. Устройство скатной крыши в системе с оставляемой опалубкой из пенополистирола

Рис. 6. Устройство наружных стен и перекрытий в системе с оставляемой опалубкой из пенополистирола

Рис. 7. Узлы соединения наружных стен в углах, с внутренними стенами и с балконными плитами в системе с оставляемой опалубкой из пенополистирола


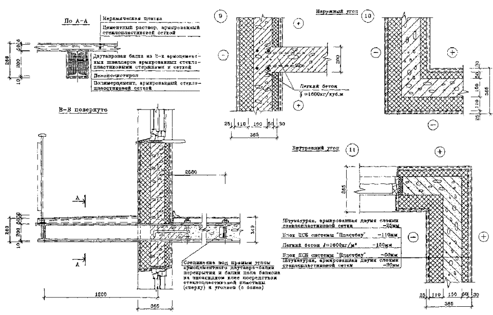
2.3. Система монолитных оболочек из торкретбетона по оставляемой опалубке

2.3.1. За основу предлагаемых вариантов технических решений облегченных конструкций стен и перекрытий в виде монолитных оболочек из торкретбетона по оставляемой опалубке для 3-этажной надстройки 5-этажных домов приняты строительные системы "НИДЬОН" (Италия) и "СПИД ВОЛ" (Англия). В этих системах в качестве оставляемой опалубки при бетонировании в построечных условиях используют изготавливаемые на заводе или полигоне унифицированные крупноразмерные блоки из панелей ("НИДЬОН") или брусков ("СПИД ВОЛ") пенополистирола (марки ПСБ-С с антипиреновыми добавками), заключенные в обойму из сварных проволочных сеток, скрепленных между собой привариваемыми к ним арматурными стержнями ("НИДЬОН") или каркасами ("СПИД ВОЛ"). Все сварные сетки и каркасы защищают от коррозии оцинковкой.

2.3.2. Особенности принятых ранее объемно-планировочных решений, специфические и нормативные требования по обеспечению эксплуатационных качеств и пожарной безопасности ограждающих конструкций надстройки, а также недостаточная прочность некоторых конструкций реконструируемых зданий для восприятия нагрузок от надстраиваемой части потребовали не только корректировки, адаптации и переработки практически всех технических решений систем "НИДЬОН" и "СПИД ВОЛ" применительно к условиям г. Москвы, но и разработки новых решений.

Наружные и внутренние стены (рис. 8, 9)

2.3.3. На основании анализа технических решений строительных систем "НИДЬОН" и "СПИД ВОЛ", проведения статических, теплофизических и акустических расчетов рекомендуются следующие конструкции наружных и внутренних стен:

2.3.4. Трехслойные стены из двух ж.б. скорлуп переменной толщины по 30 - 50 мм, получаемой за счет вертикального гофрирования внутренних поверхностей, между которыми располагают утепляющий слой из гофрированных жестких плит - минераловатных (на синтетическом связующем) или пенополистирольных (марки ПСБ-С). При использовании пенополистирола по требованиям обеспечения пожарной безопасности в местах пересечений продольных и поперечных стен, а также в уровнях перекрытий устраивают противопожарные разрывы путем установки минераловатных вкладышей или путем замоноличивания полостей бетоном. В качестве оставляемой опалубки используют унифицированные блоки шириной - 60 мм (доборные блоки меньшей ширины), высотой на этаж (2,6 м), толщиной - 240, 140 и 60 мм (вместе с гофрами). Для наружных (тип НС-1), внутренних межквартирных (тип ВС-1) и межкомнатных (тип ВС-2) стен блоки выполняют из минераловатных или пенополистирольных плит с гофрированной поверхностью, заключенных в сварную решетчатую клетку из оцинкованной проволоки. Блоки устанавливают и раскрепляют между вертикальными плоскими арматурными каркасами из двух продольных стержней Ø 10 A-III с поперечными хомутами через 300 мм из Ø 6 A-I, закрепляемыми с шагом 600 мм в разрывах между блоками опалубки и замоноличиваемыми с образованием вертикальных железобетонных ребер. Кроме того, в местах пересечения продольных и поперечных стен рекомендуется устанавливать пространственные каркасы из 4 продольных стержней Ø 10 A-III с поперечной решеткой из Ø 6 А-I через 300 мм. Каркасы смежных этажей по высоте соединяют путем сварки продольных стержней. Соединение на сварке вертикальных каркасов стен и горизонтальных каркасов перекрытий обеспечивает не только повышение надежности пространственного взаимодействия элементов несущей системы при эксплуатационных и аварийных воздействиях, но и устойчивость блоков опалубки при их торкретировании.


Рис. 8. Конструкции наружных и внутренних стен в системе монолитных оболочек из торкретбетона

Рис. 9. Узлы сопряжения стен в системе монолитных оболочек из торкретбетона


2.3.5. С целью улучшения условий эксплуатации балконов и повышения их надежности предложено опирать их на боковые стенки трехслойной конструкции, являющиеся продолжением внутренних поперечных стен, с устройством необходимых по условиям теплоизоляции разрывов в вертикальных бетонных оболочках.

2.3.6. В качестве оставляемой опалубки для образования оконных и дверных проемов предлагается использовать деревянные оконные и дверные коробки.

При использовании деревянных коробок требуемая огнезащита пенополистирола обеспечивается путем установки по контуру проемов минераловатных вкладышей. При этом по краям проемов устанавливают вертикальные арматурные каркасы с раскосной решеткой, а над и под проемами - арматурные стержни.

Перекрытия и покрытия (рис. 9, 10, 11)

2.3.7. Трехслойное перекрытие рекомендуется выполнять из несущей ребристой железобетонной плиты с продольными ребрами сечением 60´150 (h) cм через 600 мм и скорлупой толщиной 40 - 60 мм (за счет продольных гофров), жестких минераловатных плит толщиной 200 мм (включая рифления или гофры) или минераловатных вкладышей толщиной 30 мм (в местах устройства ребер) и подвесной железобетонной плиты с гофрированной верхней поверхностью толщиной 30 - 50 мм.

В качестве оставляемой опалубки для междуэтажных перекрытий и покрытия используют унифицированные блоки шириной 600 мм (доборные - меньшей ширины), длиной 2,4 - 3,3 м (в зависимости от пролета, определяемого расстоянием между поперечными несущими стенами), толщиной 200 мм из гофрированных минераловатных плит, заключенных в сварную клетку из оцинкованной проволоки. Соединительными стержнями по полю минераловатной панели протыкают ее и сваривают стержни с проволочными сетками. Блоки целесообразно устанавливать с разрывами, в которые закладывают сварные каркасы, соединяемые на опорах арматурными стержнями, располагаемыми по верху каркасов смежных пролетов. После торкретирования оставляемой опалубки снизу и замоноличивания сверху образуются трехслойные перекрытия и покрытия с раздельно работающими слоями, что повышает их звуко- и теплоизолирующую способность.

2.3.8. В выступающих частях перекрытий над 5-ым этажом и в покрытии мансарды (а также в ее наклонных стенах) при недостаточном их термическом сопротивлении устраивают дополнительный слой из минераловатных плит.


Рис. 10. Конструкция перекрытий в системе монолитных оболочек из торкретбетона

Рис. 11. Узлы соединения поперечных внутренних стен с перекрытиями в системе монолитных оболочек из торкретбетона


2.3.9. В покрытии мансарды (рис. 12) минераловатные плиты дополнительного утепления следует располагать между элементами деревянной обрешетки, крепящейся к заложенным в верхней ж.б. скорлупе деревянным пробкам. Устанавливаемые вдоль уклона (в поперечном направлении) деревянные лаги имеют высоту, превышающую толщину утепляющего слоя, за счет чего образуется вентилируемое пространство.

2.3.10. Рекомендуются следующие варианты конструкций пола в междуэтажных перекрытиях:

Вариант 1 - линолеум с тепло-звукоизолирующей основой на мастике по жесткой древесноволокнистой плите, укладываемой на черный дощатый пол по деревянным лагам и упругим древесноволокнистым прокладкам;

Вариант 2 - паркетная доска или щит по деревянным лагам с упругими древесноволокнистыми прокладками.

2.3.11. Для временного закрепления и повышения устойчивости оставляемой опалубки стен и перекрытий при производстве работ, повышения устойчивости спаренных ж.б. скорлуп, обеспечения неразрезности стен и перекрытий и увеличения степени их пространственного взаимодействия, а также повышения надежности защиты зданий от прогрессирующего обрушения при возможных чрезвычайных ситуациях необходимо во всех пересечениях стен и перекрытий устанавливать сварные плоские и пространственные каркасы, соединяя их путем сварки.

2.3.12. Рекомендуется использовать в конструкциях минераловатные плиты с объемной массой 80 кг/куб.м, коэффициентом теплопроводности 0,04 Вт/(м°С) в наружных ограждениях и объемной массой 100 кг/куб.м - во внутренних стенах и перекрытиях, а также плиты из пенополистирола марки ПСБ-С объемной массой 40 кг/куб.м и коэффициентом теплопроводности 0,05 Вт/(м°С).

2.3.13. По условию обеспечения пожарной безопасности несущих и ограждающих конструкций надстройки большую часть элементов оставляемой опалубки из плит пенополистирола, используемых зарубежными фирмами, целесообразно заменять элементами из минераловатных плит. Для повышения огнестойкости при использовании пенополистирола в наружных и внутренних стенах увеличивают толщину защитных бетонных слоев, а в местах пересечений продольных и поперечных стен и в уровнях перекрытий, а также по контуру оконных и дверных проемов устанавливают минераловатные вкладыши. Толщина защитного слоя бетона для продольной арматуры сварных каркасов в железобетонных слоях несущих стен и нижних железобетонных слоях перекрытий при их толщине не более 50 мм необходимо принять не менее 15 мм (до оси рабочей арматуры).

2.3.14. Система спаренных оболочек, используемых в несущих стенах и перекрытиях, нуждается в проведении дополнительных исследований и разработок. Их цель - обеспечение и более точный учет степени взаимодействия тонких железобетонных слоев при различных типах соединительных элементов и характеристиках оставляемой опалубки, а также выявление соответствующих им параметров термического сопротивления и звукоизоляции.


Рис. 12. Устройство скатной крыши в системе монолитных оболочек из торкретбетона


2.4. Система с применением металлического каркаса из гнутого профиля

2.4.1. В качестве прототипа при разработке указанной системы легких конструкций приняты конструктивные решения ассоциации "Центр новых строительных технологий" (г. Саратов) и ОАО "ТИГИ-КНАУФ" (г. Красногорск Московской обл.), которые необходимым образом откорректированы с целью применения их при надстройке до 3-х этажей 5-ти этажных домов серий 1-510, 1-511 и 1-515. Эти дома принадлежат к конструктивной системе с тремя продольными несущими стенами и шагом опирания перекрытий, равным 6 м.

2.4.2. Строительные конструкции из стального гнутого профиля обладают на единицу объема наибольшей несущей способностью по сравнению с конструкциями из традиционных строительных материалов. Поэтому они весьма эффективны в качестве несущей основы легких конструкций как наружных, так и внутренних ограждений надстраиваемых этажей жилых зданий. Металлические конструкции из гнутого профиля, имеющие по сравнению с металлопрокатом меньшую толщину стенок и соответственно пониженную массу, обладают необходимой долговечностью в жилом здании.

2.4.3. Рекомендуется принимать наибольшие габаритные размеры монтажных элементов, соединяемых на монтаже в проектную конструкцию, не превышающими 3 м и массой 100 кг. Это позволяет осуществлять надстройку этажей без отселения жильцов, поскольку не требуется использования башенных и мобильных кранов.

2.4.4. Стойки металлического каркаса надстраиваемых 6, 7 и мансардного этажей рекомендуется выполнять из гнутого замкнутого профиля - 150´100´8 мм [21], размещенного в простенках между окнами по осям продольных несущих наружных и внутренней стен основного здания. Большинство стоек располагают внутри указанных стен, а по три на каждом этаже, находящиеся в зоне расширения корпуса, - внутри поперечных перегородок. При этом все стойки каркаса со стороны внутренних помещений облицовывают двумя слоями огнестойких гипсокартонных листов ГКЛО [37].

2.4.5. Собственный каркас наружных стен, а также поперечных перегородок, рекомендуется выполнять из тонкостенных гнутых С-образных профилей 75´50´0,6 мм, а внутренних стен - из аналогичных профилей 150´40´0,8 мм. Шаг размещения стоек высотой на этаж не свыше 625 мм, поскольку ширина стандартных листов ГКЛО 1250 мм. Снизу и сверху стойки С-образного сечения следует объединять в единую конструкцию горизонтальными профилями U-образного сечения [28]. Тонкостенные стойки и горизонтальные элементы соединяют между собой винтами-саморезами М4. Боковые стенки каркаса стен закрепляют к стойкам основного каркаса 150´100´8 винтами-саморезами М5. В навесных наружных стенах эркеров основными стойками каркаса могут быть элементы из замкнутого гнутого профиля 80´80´4 мм.


Рис. 13. Пример установки стоек каркаса надстройки, а также наружных и внутренних стен в системе с металлическим каркасом из гнутого профиля


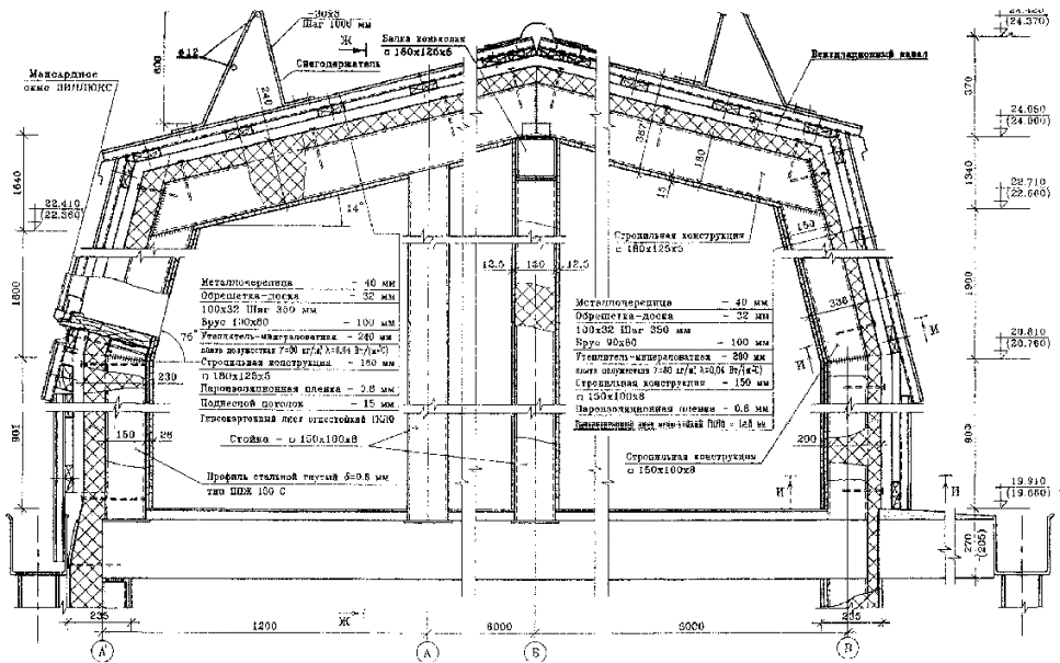
2.4.6. Наружные стены толщиной 235 мм (рис. 14) включают:

- два слоя гипсокартонных листов ГКЛО толщиной 12,5 мм (с заключенной между ними пароизоляцией из полиэтиленовой пленки), которые закреплены винтами-саморезами к металлическому каркасу;

- слой утеплителя толщиной 200 мм из полужесткой минераловатной плиты с каменным волокном плотностью γ = 80 кг/куб.м и с коэффициентом теплопроводимости λ = 0,04 Вт/(м °С);

- крепление утеплителя к металлическому каркасу с помощью металлических анкеров из нержавеющей стали или деревянных кронштейнов (рис. 15);

- защитно-декоративный штукатурный слой толщиной 10 мм;

Наиболее предпочтительны из анкеров - кронштейны из антипирированной и антисептированной древесины, как наиболее дешевые и технологичные.

2.4.7. Внутренние стены толщиной 200 мм и поперечные перегородки толщиной 100 (рис. 13) мм рекомендуется выполнять из гипсокартонных листов ГКЛО толщиной 12,5 мм и металлического каркаса из тонкостенных профилей, между стойками которого размещают звукоизоляционный слой из полужесткой минераловатной плиты П-100 плотностью 100 кг/куб.м [23].

2.4.8. Могут быть выполнены две основные конструкции облегченных монолитных перекрытий надстройки - коробчатые с засыпными пустотами (рис. 14) и слоистые с т.н. "плавающим полом" (рис. 16).

Перекрытия с засыпными пустотами бетонируют у торцов безригельных стоек металлического каркаса, используя для этой цели сборно-разборную опалубку. При возникновении трудностей с применением опалубки выполняют вторую конструкцию перекрытий - сплошную, которую рекомендуется бетонировать по профнастилу, укладываемому на металлические ригели стоек каркаса.

Засыпка, заполняющая пустоты перекрытий, разбивая звуковую волну, способствует повышению звукоизолирующих качеств этих конструкций примерно на 2 дБ по отношению к воздушному шуму, что позволяет снизить бетоноемкость и высоту перекрытий.

С той же целью используют "плавающий пол" в слоистых перекрытиях, который бетонируют по звукоизоляционной прослойке.

В качестве покрытия пола в обеих конструкциях рекомендуется использовать линолеум на теплозвукоизоляционной подоснове.

2.4.9. Монолитные перекрытия с засыпными пустотами толщиной 220 мм включают верхний и нижний железобетонные слои толщиной 55 мм из бетона класса В15, овальные пустоты размерами 420´110 мм, заполненные сыпучим материалом. Шаг пустот 500 мм, толщина ребер между ними 80 мм, приведенная толщина бетона в перекрытиях 139 мм. В качестве сыпучего материала используют керамзитовый гравий плотностью γ = 450 кг/куб.м.

Рис. 14. Конструкция наружных стен, а также монолитных перекрытий в системе с металлическим каркасом из гнутого профиля


Рис. 15. Варианты узла крепления утеплителя к каркасу наружной стены в системе с металлическим каркасом из гнутого профиля


Рис. 16. Конструкция перекрытий в системе с металлическим каркасом из гнутого профиля


Для удобства бетонирования перекрытий засыпной материал затаривают в заводских условиях в полиэтиленовые мешки необходимого размера, применяя для этой цели объемный дозатор. Затем метки запаковывают и после подпрессовки отправляют на стройку.

2.4.10. При необходимости устройства слоистых перекрытий к торцам стоек каркаса следует приваривать поперечные ригели из замкнутого гнутого профиля - 230´100´8 мм и одновременно для обеспечения пространственной жесткости металлического каркаса - продольные ригели из аналогичного профиля 160´8´7 мм.

Изгибаемые ригели 230´100´8 мм максимальной длиной 14,4 м сваривают на стройке из монтажных элементов длиной 2,88 м и массой порядка 100 кг, причем места стыковки проходят вблизи нулевых точек по эпюре моментов.

2.4.11. Несущая часть слоистых перекрытий, укладываемая по профнастилу высотой 60 мм из бетона класса В15, ребристая. Высота несущей части 100 мм, приведенная высота бетона 60 мм. На несущей части рекомендуется укладывать звукоизоляционную прослойку из полужесткой минераловатной плиты П 100 плотностью 100 кг/куб.м, а на ней сверху бетонируют основание пола толщиной 40 мм из цементно-песчаного раствора М 100. Основание пола не должно иметь жестких контактов с другими конструкциями.

2.4.12. Рекомендуемая конструкция скатной крыши над мансардным этажом (рис. 17):

- подвесной потолок из гипсокартонных листов ГКЛО толщиной 15 мм;

- основные стропильные конструкции из металлических замкнутых гнутых профилей 180´125´6 мм и 150´100´8 мм;

- вспомогательные стропильные конструкции из тонкостенного швеллерного профиля 150´40´0,8 мм;

- закрепленные на стропильных конструкциях деревянные брусья;

- слой утеплителя толщиной 230 мм из полужесткой минераловатной плиты с каменным волокном плотностью γ = 80 кг/куб.м и с коэффициентом теплопроводности λ = 0,04 Вт/(м.град.С);

- воздушный вентилируемый зазор толщиной 40 мм;

- металлочерепица, уложенная по деревянной обрешетке из досок 100´32 мм с шагом 350 мм, закрепляется на деревянных брусьях стропильных конструкций.

2.4.13. Все конструкции металлического каркаса, расположенные в несущих стенах и перегородках, в перекрытиях и ограждениях мансардного этажа рекомендуется окрашивать защитными эмалями для предотвращения коррозии в соответствии с требованиями СНиП [15] и, кроме того, все они со стороны внутренних помещений должны быть облицованы огнестойкими гипсокартонными листами ГКЛО, что обеспечивает им предел огнестойкости 45 мин и способствует нулевому пределу распространения огня при пожаре [43].


Рис. 17. Устройство крыши в системе с металлическим каркасом из гнутого профиля


Сравнительные характеристики систем легких эффективных конструкций приведены в таблице 1.1.

Таблица 2.1.

Показатели систем легких эффективных конструкций для надстройки этажей

Наименование систем

Наружные слоистые стены в системах

Перекрытия в системах

Приведенная масса конструкций на 1 м2 общей площади* кг

несущая часть

полы

1.

Система с применением монолитного железобетона и оставляемой опалубки из цCп

Бетон + утеплитель, облицованные зарубежными листами ЦСП

Ребристые бетонные плиты по оставляемой опалубке из ЦСП + ГВЛ

Основание "плавающего пола" из цементно-песчаного раствора. Покрытие из линолеума на тепло- звукоизоляционной подоснове

995

Бетон + утеплитель, облицованные отечественными листами ЦСП

1050

2.

Система с применением монолитного легкого бетона и оставляемой опалубки из пенополистирола

Блоки из ПСБ-С с монолитным сердечником

Армоцементные балки, облицованные ГВЛ

Щитовой паркет по деревянным лагам

682

3.

Система монолитных оболочек из торкретбетона по оставляемой опалубке

Утеплитель с бетонными наружными слоями и бетонными ребрами

Щитовой паркет по деревянным лагам

708

4,

Система с применением металлического каркаса из гнутого профиля

Металлический каркас + утеплитель, облицованные ГВЛО

Ж.б. плита с засыпными пустотами

Линолеум на теплозвукоизоляционной основе

726

Ж.б. ребристая плита по профнастилу на металлических ригелях

527

* - без учета площади лестничных клеток.

3. Статические расчеты

3.1. Общие положения

Для принимаемых конструктивных систем производится проверка прочности, устойчивости, трещиностойкости и жесткости как системы в целом, так и ее основных несущих элементов: стен, стоек, перекрытий и покрытий.

Усилия (изгибающие моменты, продольные и поперечные силы) определяются с использованием основных положений и формул строительной механики с учетом в необходимых случаях пластических свойств материалов по формулам СНиП [9], "Пособия" [39], "Руководства" [40] и др.

В частности, в системах с поперечными рамами из тяжелого или легкого железобетона, где изгибная жесткость перекрытий и стен сопоставима, расчет рам производится с учетом как перекрытий, так и стен, при этом изгибающие моменты в элементах и узлах определяются с помощью ЭВМ или любым инженерным методом, обеспечивающим приемлемую точность. В симметричных или регулярных по высоте многоэтажных рамах допускаются упрощения расчетных схем, согласующиеся с известными правилами строительной механики. Таким же способом рассчитываются рамы со стальными ригелями перекрытий и стальными стойками.

В системах, где перекрытия состоят из монолитного железобетона, а стойки стен из стальных профилей, изгибной жесткостью стоек по сравнению с жесткостью перекрытий пренебрегается, и изгибающие моменты в ригелях перекрытий определяются как в двухпролетных неразрезных балках по формулам "Руководства" [40] и Справочника" [42] соответственно с учетом перераспределения усилий при упруго-пластической работе и в упругой стадии.

Расчетные схемы при определении усилий в поперечных рамах и балках составляются только с учетом основных 6-метровых пролетов без учета ризалитов, что является более невыгодным для изгибаемых элементов случаем нагружения, а при учете ризалитов-консолей дает небольшой запас. Усилия в стойках определяются для обоих случаев.

Результаты расчета железобетонных рам и ригелей по упругой схеме используются для проверки по образованию трещин, а при их отсутствии и жесткости; результаты расчета в упруго-пластической стадии - для расчета прочности, жесткости при наличии трещин и раскрытия трещин, в том числе, с учетом длительного действия нагрузок в соответствии с СНиП [9]. При расчете стальных рам все расчеты производятся только в упругой стадии в соответствии со СНиП [8].

После определения изгибающих моментов и продольных сил в элементах рам и балках подбор и проверка прочности сечений из железобетона выполняются в соответствии с СНиП [9] и "Пособием" [39], а из стали по СНиП [8]. Изгибаемые элементы из железобетона ребристого или коробчатого сечения проверяются также по прочности наклонных сечений, при этом поперечные силы определяются с учетом вертикальной нагрузки и изгибающих моментов.

При проверке по образованию трещин изгибаемых элементов их геометрические и упруго-пластические характеристики определяются в соответствии с правилами сопротивления материалов, строительной механики и положениями СНиП [9]. Прогибы изгибаемых железобетонных элементов определяются, как правило, с учетом знакопеременной эпюры моментов и соответственно переменной жесткости, обусловленной образованием или отсутствием трещин по длине пролета.

Прочность стоек проверяется на действие расчетных вертикальных нагрузок с учетом невыгодных" сочетаний продольных сил и изгибающих моментов, возникающих эксцентриситетов и прогибов. В тех случаях, где изгибающие моменты в узлах отсутствуют, влияние продольного изгиба оценивается с использованием случайного эксцентриситета, регламентированного СНиП [9].

При расчетах по предельным состояниям первой группы величины нормативных нагрузок умножаются на соответствующие коэффициенты надежности по нагрузке согласно табл. 1 и п. 3.7 [7]. При расчетах по предельным состояниям второй группы в определенных случаях используются полные или пониженные значения нормативных нагрузок, приведенных в табл. 3 [7]; коэффициент надежности по нагрузке принимается равным 1. При подборе и проверке сечений во всех случаях принимается единый коэффициент надежности по назначению γп = 0,95 по СНиП [7].

При проектировании ограждающих конструкций из легких небетонных материалов, утеплении ими наружных стен, устройстве экранов и др. прочность этих деталей и крепление их к несущим конструкциям проверяются на совместное действие вертикальных нагрузок и усилий от отрицательного давления ветра (отсоса) согласно СНиП [7].

В примерах расчета для удобства и простоты вычислений величины нагрузок, усилий, напряжений, нормативных и расчетных характеристик материалов приняты в привычных традиционных единицах измерения: кгс/м2, кгс/м, кгс . м, кгс/см2 и др.

Для перевода в систему СИ следует применять соотношения:

1 кПа = 100 кгс/м2; 1 кН/м = 100 кгс/м;

1 кНм = 100 кгс м;  1 МПа = 10 кгс/см2.

3.2. Расчет перекрытий и стен из монолитного железобетона с оставляемой опалубкой из ЦСП

В надстраиваемых этажах по всем трем продольным осям предусматриваются несущие стены с монолитным железобетонным ядром толщиной 100 мм в оставляемой опалубке из плит ЦСП, δ = 20 мм, γ = 750 кг/м3; кроме того, в наружных стенах предусматривается утеплитель δ = 35 мм, γ = 40 кг/м3 и наружная штукатурка δ = 20 мм, γ = 1800 кг/м3; во внутренней стене - штукатурка с обеих сторон. На стены опираются ребристые перекрытия также из монолитного железобетона, которые состоят из верхней полки толщиной hf = 50 мм по ребрам сечением в´h = 80´250 мм, расположенным с шагом 500 мм. Снизу делается подшивной потолок из гипсоволокнистых плит (ГВЛ), δ = 20 мм, γ = 1200 кг/м3. По верху железобетонной плиты устраивается цементно-песчаная стяжка δ = 20 мм, γ = 2000 кг/м3 и пол из линолеума ТЗЛ.

В покрытии (над мансардой) несущая плита и подшивной потолок аналогичны перекрытиям, сверху же укладывается утеплитель из минераловатных плит δ = 300 мм, γ = 200 кг/м3, по которому устраивается стяжка δ = 30 мм и кровля.

Бетон тяжелый класса В15, арматура из стали класса A-III и Вр-I. Расчетные характеристики материалов (кгс/см2): бетона: Rв =78,5; Rв,ser = 112; Rвt =6,83; Rвt,ser = 11,7; Ев = 235000; арматуры: класса A-III: Rs = 3600 (Ø 6 - 8 мм), 3750 (Ø 10 - 16 мм), Rsw = 2900; Es = 2´106; класса Bp-I: Rs = 4200; Rsw = 3000; Es = l,7´106.

Полная нормативная нагрузка на перекрытие qн = 2500´0,082 (бетон) + 750´0,042 (ЦСП) + 1200´0,02(ГВЛ) + 2000´0,02(стяжка) + 10(пол) + 50(перегородки) + 150 (временная) = 510; в том числе длительно действующая q1 = 390; расчетная q = 1,1´2500´0,082 + 1,3(750´0,042 + 1200´0,02 + 2000´0,02 + 10 + 50 + 150) = 624 кгс/м2.

Произведя аналогичные расчеты, нагрузки на покрытие:

qкн = 481; qк1 = 411; qк = 595 кгс/м2.

Вертикальные нагрузки на стены (кгс/м)

На наружную стену:

1) от собственного веса на 1 м глухой части (простенка) на высоту 1 этажа, т.е. Н = 2,8 м: нормативные  =  = [2500´0,1(бетон) + 750´2´0,035(ЦСП) + 40´0,2 (утеплитель - пенополистирол) + 1800´0,02(штукатурка)]´2,8 = 971; то же с учетом проемов  = 971´0,7 = 680; расчетная  = [1,1´2500´0,1 + 1,3(750´2´0,035 + 40´0,2 + 1800´0,2)]´2,8´0,7 = 787;

2) от перекрытий: нормативные нагрузки от 1 этажа:

 = 510´(5,9/2) = 1505;  = 390´(5,9/2) = 1151;

расчетная  = 624´(5,9/2) = 1841;

3) от покрытия:

 = 481´(5,9/2) = 1419;  = 411´(5,9/2) = 1213;  = 595´(5,9/2) = 1755;

На 1 м внутренней продольной стены от 1 этажа:

1) от собственного веса

=[2500´0,1 (бетон) + 750´2´0,035(ЦCП) + 800´2´0,01(штукатурка)]´2,6 = 829;

 = [1,1´2500´0,1 + 1,3(750´2´0,035 + 800´0,2´0,01)]´2,6 = 948;

2) от перекрытий:

= 510´5,9 = 3010;  = 390´5,9 = 2302;  = 624´5,9 = 3682;

3) от покрытия:

 = 481´5,9 = 2838;  = 411´5,9 =2426;  = 595´5,9 = 3510.

Определение усилий

Для определения изгибающих моментов в элементах перекрытий и стен производится расчет поперечной рамы условной шириной в = 1 м на действие вертикальной нагрузки, приходящейся на перекрытие,  = 624 кгс/м. Расчет производится методом распределения моментов защемления [41]. Узлы соединения перекрытий со стенами считаются жесткими, кроме соединений над 5-м этажом, которые принимаются шарнирными. Ввиду симметрии поперечного сечения здания (за исключением единичных случаев) для расчета принимается половина рамы, причем узлы соединения перекрытий с внутренней продольной стеной становятся защемленными опорами. Далее в соответствии с положениями строительной механики для рам высотой два и более этажей в качестве расчетной схемы принимается фрагмент, состоящий из ригеля - перекрытия, нижней стойки (стены) и половины верхней стойки (стены) (рис. 18). Рассматривается более невыгодный случай нагружения ригеля рамы при отсутствии консолей-ризалитов.

По результатам расчета рамы для проверки прочности и подбора арматуры стоек (стен) и ригелей (перекрытий) составляются невыгодные сочетания усилий от вертикальных нагрузок и полученных изгибающих моментов. Изгибающие моменты над опорами принимаются по абсолютной величине.

Проверка прочности и деформаций ребристого перекрытия

Расчетная схема - балочная двухпролетная, неразрезная. Для расчета принимается полоса с условной шириной в = 1 м и пролетами l = 5,9 м.

Нагрузки (кгс/м):  = 510;  = 390;  = 624; изгибающие моменты у опор в упругой стадии (кгс . м) от : МА = 462; Мб = 2436;

;

.

Рис. 18. Расчетная схема для определения усилий в раме

а - схема опирания и нагрузка;

б - обозначение узлов и жесткостей,

эпюра неуравновешенных моментов по [41]

в - эпюра моментов: - - - в упругой стадии,

______ с учетом пластических деформаций.

Подбор продольной арматуры по прочности

С учетом перераспределения усилий с опоры "Б" в пролет [40] на 25 % момент над средней опорой (стеной) Мб = 0,75´2436 = 1827 кгс . м.

 кгс . м.

В сечении над средней стеной: в = 2врр - ширина ребра) = 2´8 = 16 см; h0 = 23 см.

По формулам п.3.18 "Пособия" [39]:

; По табл. 20 ζ = 0,84;  см2, принимается as = 5 Ø 8 A-III (шаг 200 мм) = 2,52 см2.

Из аналогичных расчетов: asA = 0,55 см2; as,пр = 2,04 см2; принимается a sA = 2 Ø 8 A-III (шаг 500 мм) = 1,01 см2; as,пр = 5 Ø 8 A-III (шаг 200 мм) = 2,52 см2.

Проверка прочности наклонных сечений

Максимальная поперечная сила у средней стены

Qmax = 624´5,9/2 + (1827 - 462) : 5,9 = 2072 кгс.

Поперечная арматура Asw = 4 Ø 4 Bp-I = 0,5 см2; шаг S = 20 см;  =  = 6,24 кгс/см, в = 16 см; h0 = 23 см; ;

По формулам п.п. 3.30 ¸ 3.32 "Пособия" [39]: условие (47) Q < 0,3 φW1 . φB1 . RBBh0:

при кгс:

φw1 = 1 + 5 α μ = 5´7,23´0,0016 = 1,056; φВ1 = 1 - 0,01 RВ = 1 - 0,01´7,85 = 0,92;

правая часть условия (47): 0,3´1,056´0,92´78,5´16´23 = 10005 кгс;

Q = 1910 < 10005 кгс; условие (47) удовлетворено.

В условиях (51) ¸ (53) МВ = φв2 . RВt . в . h02 = 2´6,83´16´232 = 115618 кгс . см;

 кгс/см; 0,56 .  = 0,56´75 = 42 >  = 6,24, поэтому  см;

 кгс; QB,min = φв3 . RBt . в . h0 = 0,6´6,83´16´23 = 1508 кгс;

принимается QB = QB,min = 1508 кгc; условие (57):  = 75 > QB,min/2h0 = 1508/(2´23) = 32,8 кгс/см выполняется;

В условиях (54) ¸ (57)  см.

По формуле (54) Qsw =  . С0 = 75´39,3 = 2948 кгс.

Условие (50):  кгс удовлетворено, прочность наклонных сечений обеспечена.

Проверка прогиба.

Для расчета пролет разделяется на 6 участков, на границах которых с координатами (м): l/6 = 0,99; l/3 = 1,97; l/2 = 2,95; 2´l/3 = 3,94; 5´l/6 = 4,92 м по формулам строительной механики находятся изгибающие моменты.

Предварительно определяются сечения, в которых образуются или не образуются трещины от полной нормативной нагрузки  = 510 кгс/м; моменты над опорами были определены из расчета рамы МАn = 378; МБn = 1991 кгс . м.

Реакция на левой опоре Ran = 510(5,9/2) - (1991 - 378):5,9 = 1232 кгс;

моменты в пролете (кгс . м): М1/6n = 1232´0,99 - 510´0,99 2/2 - 378 = 592;

М1/3n = 1232´1,97 - 510´1,972/2 -378 = 1059;

М1/2n = 1232´2,95 - 510´2,952/2 - 378 = 1039;

М2/3n = 1232´3,94 - 510´3,942/2 - 378 = 519;

М5/6n = 1232´4,92 - 510´4,922/2 - 378 = - 483 кгс . м.

Для условной полосы шириной 1 м, пренебрегая в запас арматурой, площадь бетонного сечения А = 100´5 + 2´8(25 - 5) = 820 см2; статический момент относительно нижней грани S = 2´8´25´12,5 + (100 - 16)´5´22,5 = 14450 см3; ордината центра тяжести уц = 14450/820 = 17,6 см; момент инерции

 см4;

моменты сопротивления относительно нижней и верхней граней: в упругой стадии: Wred= 46241/17,6 = 2627 см3; Wred = 46241/(25 - 17,6) = 6249 см3; в упруго-пластической стадии: Wpl = 1,75´2627 = 4597 см3; Wpl = 1,75´6249 = 10936 см3.

Моменты трещинообразования по формуле (125) СНиП [9]:

Mcrc = Rвt,sеr . Wpl/γn:

Mcrc = 11,7´4597´10-2/0,95 = 566 кгс . м;

Mcrc = 11,7´1093´10-2/0,95 = 1347 кгс . м.

Так как Маn < Mcrc, МБn > Mcrc, трещины над крайней опорой не образуются, над средней опорой образуются.

Так как М1/6nMcrc, М2/3n и [М5/6n] < Mcrc, трещины в 1/6, 2/3 и 5/6 пролета не образуются, в 1/3 и 1/2 - образуются.

Изгибающие моменты над опорами от длительной нормативной нагрузки в упругой стадии определены из расчета рамы (см. выше); с учетом частичного перераспределения усилий с правой (средней) опоры в пролет на 10 %: Ма1 = 289; МБ1 = 0,9´1523 = 1371 кгс . м. Ra1 = 390(5,9/2) - (1371 - 289)/5,9 = 968 кгс;

моменты в пролете (кгс . м):

М1/61 = 968´0,99 - 390´0,992/2 - 289 = 498;

М1/31 = 968´1,97 - 390´1,972/2 - 289 = 861;

М1/21 = 968´2,95 - 390´2,952/2 - 289 = 871;

М2/31 = 968´3,94 - 390´3,942/2 - 289 = 499;

М5/61 = 968´4,92 - 390´4,922/2 - 289 = - 245.

Кривизны в сечениях без трещин по формуле (156) СНиП [9]:

 у опоры "А": 1/см;

аналогично в остальных сечениях:

  1/см.

Кривизны в сечениях с трещинами по формулам п.п. 4.27 - 4.29 СНиП [9] в сечении над средней опорой:

; μα = 0,0068´8,51 = 0,058;

; φf = λ = 0;

Z = h0(l - 0,5ξ) = 23(1 - 0,5´0,21) = 20,6 см;

 Ψs = 1,25 - 0,8φm = 1,25 - 0,8´0,93 = 0,5;

Из аналогичных расчетов в сечениях в середине и в 1/3 пролета

 1/см.

По формуле (294) "Пособия" [п. 39] прогиб:

[0,63 + 12,42 + 6(1,09 + 4,59 + 1,09 + 0,53) + (3´6 - 2)´4,59]10-5´0,95 1/см;

; жесткость достаточна.

Проверка ширины раскрытия трещин

В сечении над средней опорой МВ1 = 1371 кгс . м; as = 2,52 кв.см; μ = 0,0068; d = 8 мм; Z = 20,6 см.

По формулам п.п. 4.14 - 4.15 СНиП [9]: φ1 = 1,6 - 15μ = 1,6 - 15´0,0068 = 1,5;

 кгс/см2; δ = η = 1;

 

условие ограничения ширины раскрытия трещин удовлетворено.

В сечениях в середине и 1/3 пролета, где изгибающие моменты меньше на 1/3, а рабочая арматура лишь на 20 %, раскрытие трещин будет еще меньше.

Проверка прочности наружной стены

Составляются 2 невыгодных сочетания усилий:

1) В сечении под перемычкой нижнего этажа надстройки:

N = 787´2,5 + 1841´2 + 1791 = 7441 кгс;

 кгс . м.

2) В сечении на уровне низа оконного проема второго этажа надстройки:

N = 787´1,5 + 1841 + 1791 = 4813 кгс; М = 302/2 = 151 кгс . м.

Приведенная с учетом проемов ширина сечения bred = 100´0,5 = 50 см; h = 10 см;

принимается двойная рабочая арматура

аs = as = 2 Ø 8 A-III (шаг 50 см) = 1,01 см2; h0 = h0’ = 8 см; а’ = 2 см;

Rв = 78,5´0,85 (γB3 = 0,85) = 67 кгс/см2;

; l0 = 2 м.

Для 1-го сочетания усилий  см.

По формулам п. 3.54 "Пособия" [39]: δ1 = e0/h = 1,69 : 10 = 0,17;

δ1min = 0,5 - 0,01´200/10 - 0,01´6,7 = 0,27;

 

По формулам п. 3.61 "Пособия" [39]:

 см < ξr h0 = 0,652´8 = 5,2;

левая часть условия (108) при  см:

N е η = 7441´4,69´1,25 = 43623 кгс . см;

правая часть (108): [RВ . в . X (h0 - 0,5 . Х) + Rs . as’ (h0 - a’)] / γn = [67´50´2,22(8 - 0,5´2,22) + 3600´1,01(8 - 2)] / 0,95 = 65306 кгс . см; N е η = 43623 < 65306 кгс . см; условие (108) удовлетворено; прочность наружной стены в этом сечении обеспечена.

Из аналогичного расчета для 2-го сочетания усилий прочность наружной стены также обеспечивается.

Во внутренней стене изгибающий момент близок к нулю и из аналогичного расчета установлено, что прочность ее обеспечивается с большим запасом.

3.3. Расчет перекрытий по армоцементным балкам и монолитных стен из керамзитобетона

Исходные данные

Ввиду невозможности сделать перекрытия по армоцементным балкам с 6-метровым пролетом применяется измененная по сравнению с существующей "трехстенкой" конструктивная система надстраиваемых этажей: вместо ненесущих перегородок предусматриваются несущие перегородки.

Продольные стены надстраиваемых этажей воспринимают собственный вес и от 1/10 до 1/5 нагрузки от перекрытий и покрытия.

Армоцементные балки располагаются с шагом в перекрытиях 500 мм, в покрытиях - 1 м. Эти балки имеют максимальную длину 3,2 м, сечение в виде швеллера высотой h = 200 мм, шириной полок b = 80 мм, толщиной стенки t = 15 мм, изготавливаются из высокопрочного мелкозернистого бетона класса В30 (группы Б по СНиП [9] с модулем крупности 3 мм и менее); рабочая арматура из стеклопластика: продольная по 1 Ø 8 располагается в полках, поперечная и конструктивная - в стенках и полках в виде сеток с ячейкой 50´50 мм при диаметре 0,3 мм. На монтаже балки соединяются попарно на болтах, образуя двутавры.

Перекрытие по балкам состоит из двух слоев гипсоволокнистых плит (ГВЛ) толщиной δ = 12 мм, γ = 1200 кг/м3, подшиваемых к балкам снизу; по ГВЛ настилается 1 слой рубероида, по нему засыпка на высоту балок γ = 400 кг/м3; по верху балок сборные плиты из 2-х слоев ГВЛ; слой ПСБ, δ = 30 мм, γ = 25 кг/м3 и пол из линолеума.

В покрытии снизу подшивается ЦСП, δ = 20 мм, γ = 1100 кг/м3, 2 слоя рубероида, МВП повышенной жесткости δ = 50 мм, γ = 200 кг/м3, далее кладется полужесткая МВП, δ = 130 мм, γ = 200 кг/м3; 1 слой рубероида, по балкам - деревянный брус 40´80 мм с шагом 60 см, обрешетка из досок δ = 25 мм и металлочерепица.

Наружные стены - из монолитного керамзитобетона класса В15, δ = 150 мм, γ = 1600 кг/м3 в опалубке из блоков ПСБ, δ = 160 мм, γ = 40 кг/м3, изнутри 2 слоя склеенных ГВЛ, δ = 30 мм, γ = 1200 кг/м3, снаружи штукатурка (армированная сетками из стеклопластика) δ = 24 мм, γ = 1800 кг/м3.

Внутренняя продольная стена из керамзитобетона δ = 200 мм, γ = 1600 кг/м3.

Расчетные характеристики материалов (кгс/см2):

армоцементных балок: RВ = 156; RВ,ser = 224; RВt = 10,2; RBt,ser = 15,3; Ев = 209000;

арматуры: стержней Ø 8 мм: Rs = 8500; Rsc = 4000; Es = 5 x 105;

проволоки в сетках Rs = 17000; Rsw = 11000; Es = 5 x 105;

керамзитобетона и арматуры стен - по СНиП [9].

Нагрузки на перекрытие и покрытие

Полная нормативная нагрузка на перекрытие qn = 1200´0,012´2 (ГВЛ) + 400´0,2 (засыпка) + 1200´0,03 (стяжка) + 50 (перегородки) + 150 (временная) = 340 кгс/м2, в том числе длительно действующая q1 = 340 - 120 = 220 кгс/м2;

расчетная q = 1,3´340 = 442 кгс/м2.

Собственный вес балки (кгс/м):  = 24;  = 27.

Нагрузки на балку перекрытия с учетом собственного веса (кгс/м): = 340/2 + 24 = 194;  = 220/2 + 24 =134;  = 442/2 + 27 = 248.

Полная нормативная нагрузка на покрытие qn = 1100´0,02 (ЦСП) + 200(0,03 + 0,16) (МВП) + 5 (обрешетка) + 12 (металлочерепица) + 100 (снег) = 168 кгс/м2, в том числе длительно действующая q1 = 168 - 70 (снег) = 98 кгс/м2;

расчетная q = (168 - 100)´1,3 + 100´1,4 = 228 кгс/м2.

Нагрузки на балку покрытия с учетом собственного веса (кгс/м):

 = 168 + 24 = 192;  = 98 + 24 = 122;  = 228 + 27 = 255.

Нагрузки на 1 м наружной стены (кгс/м):

высота стены Н = (2´2,8 + 2) = 7,6 м; коэффициент проемности Кпр = 0,7;

> = [1600´0,15 (керамзитобетон) + 40´0,16 (ПСБ) + 1200´0,03 (ГВЛ) + 1800´0,024 (штукатурка)]´7,6´0,7 = 1732;

от перекрытия и покрытия = (194´0,1)´3 = 60;

расчетная  = 1,3 (1732 + 60) = 2330.

Нагрузки на 1 м внутренней стены при высоте Н = 2´2,8 + 4 = 9,6 м (кгс/м):

от собственного веса  = 1600´0,2´9,6 = 3072;

от перекрытий и покрытий = 194´0,2´3 = 120;

расчетная  = 1,3(3072 + 120) = 4150.

Подбор продольной арматуры балок по прочности

Поскольку нагрузки на балки перекрытий и покрытия весьма близки по величине, рассчитываются только балки перекрытий. Расчетная схема - шарнирно опертая однопролетная балка с максимальным расчетным пролетом 3,1 м; в спаренном двутавровом сечении h = 20; b = 3; bf’ = 16; hf = hf’ = 1,5 см.

При таких параметрах согласно п. 3.16 СНиП [9] сечение балки рассматривается как прямоугольное шириной bf’= 16 см; h0 = 18 см;

M =  - l2 / 8 = 248´3,12 / 8 = 298 кгс × м.

По формулам п. 3.18 "Пособия" [39], приведенным в п. 3.2, требуемое сечение арматуры достаточно As = 0,19 см2, однако для обеспечения жесткости принимается As = As’ = 2 Ø 8 = 1,01 см2.

Проверка прочности наклонных сечений

Qmax = 248´3,1/2 = 384 кгс.

По формулам п. 3.40 "Пособия" [39] без поперечной арматуры (хомутов):

условие (71) Qmax = 384 < 2,5´10,2´3´18 = 1377 кгс - выполняется;

условие (74) при  =  = 2,48 кгс/см и Cmax / h0 = 2,5:

 кгс/см - выполняется;

условие (72) при  - удовлетворено;

прочность балок по наклонным сечениям обеспечена (поперечная арматура устанавливается конструктивно).

Проверка прогиба балок

Для проверки по образованию трещин Мn =  . l2 / 8 = 194´3,12 / 8 = 233 кгс . м; J = 2´2670 (по сортаменту) = 5340 см4;

 см3; Wpl = 1,5´534 = 801 см3;

по формуле (125) СНиП [9]: кгс . м;

Mn = 233 кгс . м > Mcrc, трещины образуются.

Для проверки прогиба Ml =  . l2/8 = 134´3,12/8 = 161 кгс . м.; учитывается только влияние кривизны в середине пролета - в сечении с трещинами.

По формулам п.п. 4.27 - 4.29 СНиП [9], приведенным в п. 3.2, из аналогичного расчета.

 1/см;

для однопролетных свободно опертых изгибаемых элементов

 см;

;

жесткость армоцементных балок и соответственно перекрытий достаточна.

Проверка прочности стен

Наружная стена

Приведенная с учетом проемов ширина сечения bred = 100´0,5 = 50 см;

h = 15 см (керамзитобетон); N = 2330 кгс; принимается двойная рабочая арматура as = as’ = 1 Ø 8 A-III (шаг 50 см) = 0,503 см2; h0 = h0’ = 13 см.

По формулам п. 3.54 - 3.61 "Пособия" [39], приведенным в п.3.2, из аналогичного расчета установлено:

левая часть условия (108): N е η = 2330´6,5´1,055 = 15978 кгс . см < его правой части: [78,50´50´0,59´(13 - 0,5´0,59) + 3600´0,503(13 - 2)] / 0,95 = 51925 кгс . см, условие (108) удовлетворено; прочность наружной стены обеспечена.

Внутренняя стена

Напряжения сжатия во внутренней продольной стене незначительны по величине, армирование ее может быть конструктивным по минимуму и принимается таким же, как в наружной стене.

3.4. Расчет монолитного коробчатого перекрытия с оставляемой внутренней опалубкой

Исходные данные

В надстраиваемых этажах по всем трем продольным осям предусматриваются несущие конструкции в виде рамных каркасов со стойками из стального проката и "скрытыми" ригелями из монолитного железобетона. Шаг стоек в среднем 3 м, сечение ригелей b´h = 200´250 мм. На ригели опираются коробчатые перекрытия из монолитного железобетона, толщиной h = 250 мм, состоящие из нижней и верхней полок толщиной hf = 40 мм, hf’ = 60 мм, продольных внутренних ребер толщиной bр = 80 мм, располагаемых с шагом 500 мм нормально к продольным стенам здания. Заполнение между ребрами, служащее в качестве оставляемой опалубки и как звукоизолирующие вкладыши - из минераловатных плит δ = 150 мм, γ = 80 кг/м3. По плите устраивается цементно-песчаная стяжка δ = 20 мм, γ = 2000 кг/м3 и пол из линолеума. Бетон тяжелый класса В15, арматура из стали класса A-III и проволоки класса Вр-1. Расчетные характеристики материалов по п. 3.2.

Нагрузки на коробчатую плиту (кгс/м2)

Полная нормативная нагрузка qп = 2500´0,124 (бетон) + 80´0,126 (минвата) + 2000´0,02 (стяжка) + 10 (пол) + 50 (перегородки) + 150 (временная) = 570, в том числе длительно действующая q1 = 450.

Расчетная q= 1,1´2500´0,124 + 1,3 (80´0,126 + 2000´0,02 + 10 + 50 + 150) = 679 кгс/м2.

Нагрузки на ригели (кгс/м)

Линейная нагрузка на ригель по средней оси:

от собственного веса ригеля -

 =  = γ . В . h= 2500´0,2´0,25= 125;  = 1,1´125 = 138;

от заполнения стены (металлический каркас из гнутого профиля с шагом 60 см, q = 1,7 кг/м + звукоизоляция δ = 150 мм, γ = 200 кг/м3 + 2 слоя штукатурки по δ = 10 мм, γ = 1800 кг/м3):

 =  = (1,7´2 + 200´0,15 + 1800´0,01´2)´2,5 = 175;  = [1,1´1,7´2 + 1,3(200´0,15 + 1800´0,01´2)]´2,5 = 225;

от перекрытий пролетами в свету между ригелями 5,8 м по формуле:  =  . l: = 570´5,8 = 3306;  = 450´5,8 = 2610;  = 679´5,8 = 3938;

суммарные на 1 м ригеля: = 125 + 175 + 3306 = 3606;  = 125 + 175 + 2610 = 2910;  = 138 + 225 + 3938 = 4301.

Линейная нагрузка на ригели по крайним осям: от собственного веса как по средней оси; от наружных стен при коэффициенте проемности 0,7 (металлический каркас из гнутого профиля с шагом 600 мм, q = 0,95 кг/м + утеплитель δ = 200 мм γ = 80 кг/м3 + двухслойная гипсовая плита δ = 25 мм, γ = 1200 кг/м3 + штукатурка δ = 10 мм, γ = 1800 кг/м3):

 =  = (0,95´2 + 80´0,2 + 1200´0,025 + 1800´0,01)´2,5´0,7 = 115;

 = [1,1´0,95´2 + 1,3(80´0,2 + 1200´0,025 + 1800´0,01)]´2,5´0,7 = 149;

от перекрытия (0,5 нагрузок на средний ригель):

 = 3306/2 = 1653;  = 2610/2 = 1305;  = 3938/2 = 1969;

суммарные на 1 м ригеля:

 = 125 + 115 + 1653 = 1883;  = 125 + 115 + 1305 = 1545;  = 138 + 149 + 1969 = 2256.

Определение усилий

В плите

Расчетная схема коробчатой плиты перекрытия - балочная двухпролетная, неразрезная над средней стеной (скрытым ригелем) и шарнирно опертая на скрытые ригели наружных стен; это обосновывается тем, что приведенная жесткость стоек наружных стен примерно в 30 раз меньше жесткости перекрытия, и надопорный момент в перекрытии у наружных стен пренебрежимо мал.

Для расчета принимается полоса с условной шириной 1 м и пролетами 5,8 м.

Нагрузки на 1 м длины полосы (кгс/м):

 = 570;  = 450;  = 679,

Абсолютные величины изгибающих моментов в упругой стадии по [42] (кгс/м):

над средней опорой (стеной) по формуле Мiв = 0,125´´12: Мвn = 0,125´570´5,82 = 2397; Мв1 = 0,125´450´5,82 = 1892; Мв = 0,125´679´5,82 = 2855;

в пролете на расстоянии 3/8 от наружной стены по формуле Мiпр = 0,07´´12: Мпрn = 0,07´570´5,82 = 1342; Мпр1 = 0,07´450´5,82 = 1060; Мпр = 0,07´679´5,82 = 1599.

Для расчета прочности учитывается перераспределение усилий (моментов) с опоры в пролет на 30 % [40]: Мв = 0,7´2855 = 1999; Мпр = 1599 + 3/8 (2855 - 1999) = 1920 кгс . м.

Максимальная поперечная сила у средней стены Qmax = ´1/2 + Мв/l = 679´5,8/2 + 1999/5,8 = 2314 кгс.

В ригелях

Расчетная схема ригелей - многопролетная балка со средним шагом опор 3 м, нсразрезная на средних опорах и шарнирно опертая на крайних опорах, с максимальными моментами при расчете прочности [40]: Мпр = Моп =  . l2/11.

Для среднего ригеля - Мпр = [Моп] = 4301´32/11 = 3519;

для крайних ригелей - Мпр = [Моп] = 2256´32/11 = 1846 кгс . м.

Максимальная поперечная сила для среднего ригеля

Qmax = 4301´3/2 + 3519/3 = 7625 кгс;

для крайнего ригеля - Qmax = 2256´3/2 + 1846/3 = 3999 кгс.

Подбор продольной арматуры по прочности

Сечение плиты для расчета трансформируется в двутавровое; при ширине расчетной полосы bf = bf’ = 100 см приведенная ширина ребра b = 16 см;

толщины полок - hf = 4 см, hf’ = 6 см, h = 25 см; h0 = h0 = 23 см.

При этих параметрах и расстояниях между продольными ребрами 50 см, в соответствии с п.п. 3.15 - 3.17 СНиП [9] расчет прочности сечения может производиться как прямоугольного с шириной bf’ = 100 см.

Из расчета, аналогичного примеру 3.2, требуемое сечение арматуры на расчетную полосу as = as’ = 2,37 см2/м; принимается надопорная и пролетная арматура as = as’ = 5 Ø 8 A-III (шаг 200 мм) = 2,52 см2/м;

Сечение среднего ригеля двутавровое с расчетной шириной

bр = b + 2 (l/6) = 20 + 2´300/6 = 120 см; h0 = h0’ = 21 см;

с учетом толщины верхней полки hf’ = 6 см сечение рассчитывается как прямоугольное.

По формулам п. 3.18 "Пособия" [39], приведенным в п. 3.2, требуемая арматура As = As’ = 4,47 см2;

принимается As = As’ = 2 Ø 16 A-III + 4 Ø 5 Вр-I (распределительная в плите) = 4,02 + 0,79´4200/3750 = 4,90 см2.

В крайних ригелях по аналогии bр = 20 + 300/6 = 70 см; требуемая арматура As = As’ = 2,32 см2; принимается As = As’ = 2 Ø 12 A-III + 3 Ø 5 Bp-I = 2,26 + 0,59 = 2,85 см2.

Прочность наклонных сечений

Ввиду того, что конструкция данного перекрытия с позиций расчета близка к предыдущей (см. п. 3.2), расчет не повторяется; прочность наклонных сечений коробчатого перекрытия удовлетворяется с достаточным запасом.

Прогиб и раскрытие трещин

Также из-за сходства с предыдущим вариантом (см. п. 3.2) расчеты не повторяются; прогиб коробчатого перекрытия f = 0,27 см или f/1 = 1/250 < [1/200], а ширина раскрытия трещин acrc = 0,26 мм < [0,3 мм].

3.5. Расчет монолитного перекрытия по профнастилу и металлическим ригелям

Исходные данные

Расположение поперечных несущих рам аналогично предыдущим вариантам, со средним шагом 2,9 м. Стойки и ригели рам - из гнутых стальных профилей по ГОСТ [21]: стойки b´h´t = 100´150´8 мм; ригели перекрытий 100´230´8 мм; ригели покрытия 125´180´5 мм.

В перекрытиях по верху ригелей укладывается неразрезная ребристая монолитная плита с оставляемой опалубкой из стального профилированного настила марки Н60-845. Толщина несущей части плиты h = 100 мм, приведенная толщина бетона hred = 60 мм. В перекрытиях по плите укладывается звукоизоляция из полужестких минераловатных плит (МВП) δ = 40 мм, γ = 100 кг/м3, по ним цементно-песчаная стяжка δ = 40 мм, γ = 2000 кг/м3 и пол из линолеума ТЗЛ. Снизу по ригелям устраивается подшивкой потолок из гипсовых плит δ = 15 мм, γ = 850 кг/м3.

Нагрузки:

на перекрытие (кгс/м2):

qп = 10 (профнастил) + 2500´0,06 (бетон) + 100´0,04 (МВП) + 2000´0,04 (стяжка) + 10 (пол) + 850´0,015 (потолок) + 50 (перегородки) + 150 (временная) = 10 + 150 + 4 + 80 + 10 + 13 + 150 = 467; в том числе длительно действующая q1 = 347; расчетная q = 1,1´(10 + 150) + 1,3 (4 + 80 + 10 + 13 + 50 + 150) = 575.

на покрытие (кгс/м2): qп = 156; q1 = 86; q = 210.

на ригели перекрытий (кгс/м):

от собственного веса (с обшивкой):  =  = 49;  = 57;

от перекрытия при среднем шаге ригелей 2,9 м:

 = 467´2,9 = 1354;  = 347´2,9 = 1006; = 575´2,9 = 1668;

суммарные:  = 49 + 1354 = 1403;  = 49 + 1006 = 1055;

 = 57 + 1668 = 1725;

на ригели покрытия (кгс/м):

 = 34 + 156´2,9 = 486;  = 34 + 86´2,9 = 283;  = 40 + 210´2,9 = 649;

на стойки наружных стен (кгс):

от собственного веса:

Nwn = Nw1 = 27´7,2 = 194; Nw = 1,1´194 = 214;

от заполнения стены (поэтажные нагрузки см. пример 3.4):

Nстn = Nст1 = 115´2,9 (2,5 эт.) = 835; Nст = 149´2,9 (2,5 эт.) = 1082;

от ригелей перекрытий:

Nперn = 1354 (5,9/2)´2 эт. = 7989; Nпер1 = 1006 (5,9/2)´2 эт. = 5935;

Nпер = 1668 (5,9/2)´2 эт. = 9841;

от ригелей покрытия:

Nкn = 486´5,9/2 = 1434; Nк1 = 283´5,9/2 = 835; Nк = 649´5,9/2 = 1915;

на стойки внутренней стены (кгс):

Nwn = Nw1 = 27´9,6 = 259; Nw = 1,1´259 = 285;

Nстn = Nст1 = 17´2,9 (3,5 эт.) = 1776; Nст = 225´2,9 (3,5 эт.) = 2284;

Nперn = 1354´5,9´2 эт.= 15977; Nпер1 = 1006´5,9´2 эт. = 11871;

Nпер = 1668´5,9´2 эт. = 19682;

Nкn = 486´5,9 = 2867; Nк1 = 283´5,9 = 1670; Nк = 649´5,9 = 3829.

Проверка прочности профнастила при укладке монолитного бетона

Для максимального пролета l = 3,2 м при b = 1 м :

 кгс . м; W = 19 см3 (сортамент);

 кгс/см2 < [ Ry] = 2350 кгс/см2;

прочность настила в качестве несущей опалубки достаточна.

Подбор арматуры плит по прочности

По аналогии с п. 3.4 для неразрезной многопролетной плиты

 кгс . м; h0 = h0’ = 8,5 см;

для сечения в пролете b = 100 см; для сечения над опорой b = 4,74´5 = 24 см.

По формулам п. 3.18 "Пособия" [39], приведенным в п. 3.2, требуемая арматура в пролете as = 1,75 см2, над опорой as’ = 2,28 см2; принимается в пролете as = 4,74 Ø 8 A-III (по 1 в ребре с шагом ребер 211 мм) = 2,38 см2; над опорой as’ = 5 Ø 8 A-III (шаг 200 мм) = 2,52 см2.

Прочность наклонных сечений плиты

Расчет аналогичен п. 3.3; прочность наклонных сечений в данном варианте обеспечивается без поперечной арматуры.

Прогиб и раскрытие трещин

Расчет аналогичен п. 3.2 - 3.3; прогиб плиты не превышает предельно допустимой СНиП величины 1/200 пролета.

Ширина раскрытия трещин в наиболее напряженных надопорных сечениях согласно расчету по формулам п.п. 4.14, 4.15 СНиП [9] в данной конструкции плиты вдвое меньше предельно допустимой СНиП величины.

Определение усилий в ригелях и стойках

Расчетная схема поперечных рам аналогична приведенной в п. 3.2. Изгибающие моменты в ригелях перекрытий и стойках определяются методом распределения моментов защемления [41] в упругой стадии. Изгибающие моменты в ригелях покрытия определяются как в неразрезной двухпролетной балке, полагая с некоторым запасом их шарнирное опирание на наружные стены.

Из расчета рамы получены изгибающие моменты: максимальный в ригеле над осью средней стены Мр = 6030 кгс . м, в стойках у наружной стены под перекрытием 6-го этажа Мн = 1139 кгс . м, над перекрытием Мв = 1899 кгс . м.

Проверка прочности ригелей

Максимальный момент в среднем ригеле у грани стойки

 кгс . м; W = 244 см3;

 кгс/см2 < [Ry] = 2350 кгс/см2,

прочность ригеля обеспечивается.

Проверка прочности крайних стоек (по осям "А" и "В")

1) Под перекрытием 6-го этажа

М = 1139 кгс . м;

N = 214 + 1082 + (9841 - 2´6030/5,9) + 1915 = 11008 кгс;

А = 34 см2 ; W = 128 см3 (сортамент);

 кгс/см2 < [Ry] = 2350 кгс/см2.

2) Над перекрытием 6-го этажа

М = 1899 кгс . м;

N = 214 + 1082 + 0,5 (9841 - 6030/5,9) + 1915 = 7621 кгс;

 кгс/см2 < [Ry] = 2350 кгс/см2

прочность стоек наружных стен в плоскости рам обеспечена.

Прочность стоек из плоскости рам ввиду отсутствия изгибающих моментов обеспечивается с еще большим запасом.

Проверка прочности средних стоек (по оси "Б")

N = 285 + 2284 + (19682 + 2´6030/5,9) + 3829 = 28124 кгс;

e0 = eа (случайный эксцентриситет) = 1 см;

M = N . e0 = 28124´0,01 = 281 кгс . м;

 кгс/см2 < [Ry] = 2350 кгс/см2;

прочность стоек средней стены в плоскости рам обеспечена. Ввиду незначительного влияния продольного изгиба прочность стоек из плоскости рам также обеспечивается.

Проверка прогиба ригелей перекрытий

 = 1055 кгс/м = 10,55 кгc/см; изгибающие моменты от нагрузки  (кгс . м): надопорный при жестком защемлении М0’ = 1055´5,92/12 = 3060; надопорные из расчета рамы: М’A = 1858; М’Б = 3688 (по абсолютной величине);

по формуле строительной механики

; жесткость ригелей обеспечена.

4. Теплотехнические расчеты

4.1. Общие положения

4.1.1. Теплотехнические расчеты многослойных наружных утепленных стен начинаются с предварительного определения требуемой толщины теплоизоляционного слоя δут. при заданных материалах утеплителя и конструктивных слоев по формуле:

                               (4.1)

где: R0тр.пр. - требуемое приведенное сопротивление теплопередаче стен по табл. 1б СНиП II-3-79* [4]; r - коэффициент теплотехнической однородности; R1 ... Rn -термические сопротивления конструктивных слоев; αв и αн - нормируемые [1] коэффициенты теплоотдачи внутренней и наружной поверхности.

После определения параметров конструктивных слоев по результатам статических расчетов и величин δут. рассчитываются технические решения многослойных стен.

4.1.2. Для проверки правильности предварительно принятой толщины утепляющего слоя δут. выбирается участок-фрагмент стены с большим проемом или проемами (как наиболее слабый в теплотехническом отношении вариант) и для него определяется приведенное сопротивление теплопередаче R0пр. Фрагмент стены разбивается на участки.

4.1.3. Приведенное сопротивление теплопередаче каждого участка фрагмента стены R0i(n)пр определяется с учетом влияния включений с различными термическими сопротивлениями (перемычек, узлов примыкания перекрытий, внутренних стен и т.п.) по формуле:

                                                           (4.2)

где: n - число участков (с включениями и без них) с различным термическим сопротивлением; Fi, Roi - соответственно площадь и сопротивление теплопередаче каждого из участков; ∑F - суммарная площадь всех участков.

Величина Roi(n)пр может быть также определена с помощью ПЭВМ (см. ниже) или экспериментальным путем по ГОСТ 26254-84 [17].

4.1.4. Приведенное сопротивление теплопередаче стен с учетом оконных откосов определяется в общем виде по формуле:

R0пр = Roi(n)пр x rок,                                                      (4.3)

где: rок - коэффициент теплотехнической однородности, учитывающий оконные откосы.

Этот коэффициент, учитывающий только оконные откосы, определяется по температурным полям, либо по формуле:

,                                                (4.4)

где: F0 - общая площадь рассматриваемой части стены за вычетом проема; Fi -площадь зоны влияния откоса; fi - коэффициент влияния откоса, определяемые по специально выведенным зависимостям.

4.1.5. Приведенное сопротивление теплопередаче наружной стены, состоящей из нескольких типов фрагментов определяется как средневзвешенное значение по участкам, расположенным на одном этаже по формуле:

,         (4.5)

где:

-           площади участков соответственно с окном, глухих (беспроемных) и с оконным и дверным проемами в лоджиях за вычетом проемов;

Rо.опр; Rо.глпр; Rо.длпр; -        приведенные сопротивления теплопередаче участков соответственно с оконным проемом, глухих и с оконным и дверным проемами в лоджиях (определяются в соответствии с формулами (4.2) и (4.3);

n, k, l -                                 количество участков на этаже соответственно с окном, глухих и дверным проемом в лоджиях.

4.1.6. Определение приведенного сопротивления теплопередаче неоднородных наружных стен зданий может быть тоже проведено на ЭВМ методом численного моделирования стационарной теплопередачи (например, в плоских двухмерных сечениях конструкций) при расчетных условиях эксплуатации. Расчеты осуществляются с учетом влияния на теплопередачу примыкающих заполнений оконных проемов, а также стыков и смежных панелей наружного ограждения.

4.1.7. Расчет приведенного сопротивления теплопередаче (п. 4.1.6) сводится к расчету значений усредненной плотности теплового потока через ограждение по формуле:

,                                                          (4,6)

где:

Rопр - приведенное сопротивление теплопередаче наружного ограждения;

Δt - разность температур по обе стороны ограждения, С;

Q - плотность теплового потока через ограждение, усредненная по площади Вт/(кв.м . град.С).

4.1.8. Вся стена условно разбивается на n расчетных участков. Для каждого такого участка с площадью в плане Si определяется плотность теплового потока qi. Затем вычисляется общий поток теплоты через стену по формуле:

                                                              (4.7)

Усредненная плотность теплового потока через ограждение определяется по формуле:

Qус = Q/S                                                               (4.8)

где: S - площадь панели в плане, кв.м.

4.1.9. Плотности тепловых потоков на участках панели определяются из расчетов двухмерных температурных полей в соответствующих сечениях конструкции.

Для расчета температурных полей в программе применяется конечно-разностный алгоритм решения системы стационарных дифференциальных уравнений теплопроводности для участков исследуемой плоской области с различными коэффициентами теплопроводности, сводимый к решению системы линейных алгебраических уравнений, записанных для ячеек конечно-разностной сетки. Решение системы алгебраических уравнений проводится методом последовательного исключения неизвестных, что позволяет получить точные расчетные результаты без назначения величины допустимой невязки. Например, программа для ПЭВМ IBM 486 MEDTF225 автоматически генерирует неравномерную согласованную сетку разбиения конструкции при возможности ее корректировки в реальном масштабе конструкции. Программа позволяет моделировать до 200 отдельных границ и до 1000 прямоугольных участков области исследования при конечно-разностной сетке до 90´90 ячеек.

4.1.10. Если Rопр > Rотр.пр по таблице 1б СНиП II-3-79*, то конструкция стены считается удовлетворяющей требованиям строительной теплотехники. Если же Rопр < Rотр.пр, приступают к следующему этапу расчета: определяется Rопр всех участков стены на этаж или на все здания, а затем - средневзвешенное значение сопротивления теплопередаче Rопр.ср (см. п.4.1.5).

4.1.11. Если Rопр.ср > Rотр.пр конструкция стены удовлетворяет требованиям теплотехнических норм. Если же Rопр.ср < Rотр.пр, то следует либо увеличивать толщину утепляющего слоя, либо рассмотреть возможность включения в проект энергосберегающих мероприятий (утепление узлов, остекление лоджий и т.п.).

4.1.12. Для приближенного расчета средневзвешенного значения многослойных наружных стен при наличии в стенах глухих (без проемов) участков может быть использована формула:

Rопр.ср = Rопр.´n,

где n = 1,05 - коэффициент, учитывающий наличие глухих участков в наружных стенах.

4.1.13. Расчет требуемого сопротивления теплопередаче, отвечающего санитарно-гигиеническим и комфортным условиям, а также температур внутренней поверхности многослойных наружных стен определяется по СНиП II-3-79* [4].

4.1.14. Теплотехнический расчет покрытий чердачных перекрытий и совмещенных крыш начинается с предварительного определения требуемой толщины тепло-изоляционного слоя δут. при заданных материалах утеплителя и конструктивных слоев по формуле (4.1).

4.1.15. Сопротивление теплопередаче покрытий с учетом полученной толщины утеплителя определяется по формуле (4) СНиП II-3-79* [4].

4.1.16. Имея конкретное решение покрытия определяется приведенное сопротивление теплопередаче конструкции Rопр по формуле (10) СНиП II-3-79* [4]. Полученное значение Rопр сравнивается с требуемым Rотр.пр из условия энергосбережения 2 ого этапа по табл. 1б СНиП II-3-79*. При этом должно соблюдаться условие:

Rотр.пр < Rопр.

4.1.17. Вторым нормативным условием является условие Rотр < Rопр, где Rотр - требуемое сопротивление теплопередаче из санитарно-гигиенических условий по формуле (1) СНиП II-3-79* [4].

4.1.18. При разработке рабочих чертежей на основе предлагаемых в альбоме технических решений выполняются корректирующие теплотехнические расчеты.

4.2. Теплотехнические расчеты наружных ограждений

4.2.1. По приведенной выше методике выполнены теплотехнические расчеты ряда вариантов легких наружных ограждающих конструкций надстроек жилых домов.

Рассчитано более 15 вариантов наружных стен и покрытий с эффективным утеплителем по основным направлениям конструктивных систем, представленных в альбоме.

К этим конструктивным системам относятся следующие наружные ограждения:

- из монолитного бетона с применением оставляемой опалубки из ЦСП;

- из монолитного бетона с оставляемой опалубкой из пенополистирола;

- монолитные оболочки из торкретбетона с оставляемой опалубкой;

- из металлического каркаса с применением гнутых профилей и деревянных кронштейнов;

- с применением деревянного каркаса и гипсоволокнистых плит.

4.2.2. В табл. 4.1 представлены результаты расчетов приведенных сопротивлений теплопередаче Rопр, коэффициентов теплотехнической однородности r и требуемых толщин утеплитель δ, м конструкции наружных стен и покрытий по указанным вариантам и направлениям.

4.2.3. Как видно из табл. 4.1, стенами с наибольшей тепловой эффективностью, судя по коэффициенту теплотехнической однородности, являются стены с неснимаемой опалубкой из пенополистирола (r = 0,9 - 0,92) (п.4. табл. 4.1) Rопр = 3,21 - 3,24, при толщине утеплителя δ = 0,16 м.

Наибольшую тепловую эффективность имеет покрытие из монолитного бетона с опалубкой из ЦСП, с деревянной обрешеткой и эффективным утеплителем - импортной минватой (λ = 0,04), при его толщине 0,2 м (r = 0,905; Rопр = 5,28) (п. 3. табл. 4.1).

4.2.4. Анализ данных табл. 4.1 показывает также, что подобранные варианты конструктивных решений стен и покрытий с соответствующими толщинами утеплителя, соответствуют требованиям 2-го этапа строительства СНиП II-3-79* [4] и МГСН 2.01-99 [5], как из условий энергосбережения, так и из санитарно-гигиенических требований.

4.3. Влажностный режим наружных ограждений

4.3.1. Влажностный режим наружных ограждений при дополнительном утеплении оказывает существенное влияние на их теплотехнические характеристики и долговечность. Для получения благоприятного влажностного режима наружных ограждений выполняется анализ расположения слоев с точки зрения влажностного режима.

4.3.2. При анализе влажностных характеристик материалов в разработанных технических условиях учитывалось, что плотные слои с большим сопротивлением паропроницанию располагаются с внутренней стороны, а менее плотные, с меньшим сопротивлением паропроницанию с наружной стороны конструкции.

4.3.3. Как правило, при расположении в наружном ограждении утеплителя из минваты (имеющей малое сопротивление паропроницанию) и наличии наружных слоев из плотных материалов с большим сопротивлением паропроницанию, с внутренней стороны утеплителя предусматривается пароизоляция.

4.3.4. В разработанных технических решениях воздушные прослойки, вентилируемые наружным воздухом в наружных ограждающих конструкциях (покрытиях) выполняются снаружи утепляющего слоя для выноса поступающей из помещения влаги.

4.3.5. При выполнении в покрытии с вентилируемой воздушной прослойкой утеплителя из мягкой минваты необходимо снаружи ее выполнить противоветровую преграду во избежание попадания наружного воздуха в утеплитель и охлаждение его. При этом с внутренней стороны утеплителя - минваты должна быть пароизоляция с большим сопротивлением паропроницанию, чем у противоветровой преграды.

Учитывая вышеизложенное, как правило, в качестве утеплителя в покрытиях с вентилируемыми прослойками рекомендуется применять жесткую (полужесткую) минвату.

Таблица 4.1.

Приведенные сопротивления теплопередаче наружных ограждений конструкций надстроек

Тип наружного ограждения

№ листа

Требуемое сопротивление теплопередаче по МГСН 2.01-99

Коэффициент теплопроводности утеплителя λ

вт/м °С

Толщина утеплителя,

м

Расчетное приведенное сопротивление теплопередаче, Rопр кв.м°С/вт

Коэффициент теплотехнической однородности,

r

1

2

3

4

5

6

7

Стены из монолитного бетона с оставляемой опалубкой из ЦСП и эффективным утеплителем, с ребрами у окон из минваты (δ = 0,1 м; λ = 0,04)

 

3,15

0,05

0,2

3,8

0,83

Покрытие из монолитного бетона с оставляемой опалубкой из ЦСП, железобетонными ребрами и эффективным утеплителем

 

4,7

0,04

0,175; 0,075

4,6

0,653

Покрытие из монолитного бетона с оставляемой опалубкой из ЦСП, с деревянной обрешеткой и эффективным утеплителем

 

4,7

0,04

0,2

5,28

0,905

Стена из монолитного бетона с неснимаемой опалубкой из пенополистирола

 

 

 

 

 

 

керамзитобетонные

 

3,15

0,05

0,16

3,24

0,9

из тяжелого бетона

 

0,05

0,16

3,21

0,92

Покрытие с эффективным утеплителем и обшивками из ЦСП, балками из железобетона

 

4,7

0,04

0,2

5,08

0,88

Наружная стены с эффективным утеплителем с использованием торкретбетона по оставляемой опалубке

 

 

 

 

 

 

- с ребрами из минваты (λ = 0,04) у окон

 

3,15

0,05

0,2

3,3*

0,785

- без ребра из минваты у окон

 

 

0,05

0,2

3,24 (3,09*)

0,77 (0,74*)

Покрытие с эффективным утеплителем (пенополистирол δ = 0,2 м и минвата импортная λ = 0,04, δ = 0,04 м) с использованием торкретбетона

 

4,7

0,05;

0,04

0,2;

0,04

4,9

0,835

Покрытие с эффективным утеплителем (импортная минвата δ1 = 0,2 м, δ2 = 0,03 м, λ = 0,04) с использованием торкретбетона

 

4,7

0,04

0,2;

0,03

4,8

0,77

Консольное перекрытие с эффективным утеплителем (минвата δ1 = 0,08 м, пенополистирол δ2 = 0,15 м, минвата δ3 = 0,03 м, λ = 0,04) с железобетонными ребрами с использованием торкретбетона

 

4,7

0,04;

0,05;

0,04

0,08;

0,15;

0,03

4,7

0,77

Консольное перекрытие с несущими элементами в виде арматурного каркаса с раскосной решеткой с эффективным утеплителем (импортная минвата δ = 0,23 м, λ = 0,04) с использованием торкретбетона

 

4,7

0,04

0,23

5,927

0,83

Стена с металлическим каркасом, эффективным утеплителем и гипсовыми обшивками с применением гнутых профилей

 

3,15

0,04

0,2

3,4

0,64

Стена с металлическими стойками, эффективным утеплителем и деревянными кронштейнами для опоры утеплителя

 

3,15

0,04

0,2

3,71

0,7

Стена с металлическими стойками, эффективным утеплителем, деревянным каркасом для крепления утеплителя и защитного экрана

 

3,15

0,04

0,2

3,57

0,67

Покрытие мансард с металлическими стропильными конструкциями и деревянной обрешеткой

 

4,7

0,04

0,24

4,8

0,73

*) - участок с оконным проемом.

Примечание: Учет влияния балконов дает уменьшение Rопр на 2 - 5 %.

5. Расчеты звукоизоляции

5.1. Общие положения

Нормативные требования к звукоизоляции внутренних конструкций жилых домов содержатся в СНиП II-12-77 [13] и МГСН 2.04-97 [14].

Нормируемыми параметрами звукоизоляции конструкций согласно [13] и [14] являются соответственно индекс изоляции воздушного шума конструкции Iв и Rw дБ, и индекс приведенного уровня ударного шума под перекрытием Iу и Lnw дБ. Индексы звукоизоляции, нормируемые [13] и [14], связаны следующими соотношениями

IB = Rw - 2,                                                          (5.1)

Iy = Lnw + 7                                                         (5.2)

Требования [13] не зависят от категории дома, требования [14] даны для домов трех категорий:

категория А - высоко комфортные условия;

категория Б - комфортные условия;

категория В - предельно-допустимые условия.

В настоящей работе приняты нормативные требования [14] для жилых зданий категории Б (см. табл. 5.1). Кроме значений Rw и Lnw для сопоставления с требованиями [1] приведены соответствующие значения IB и Iy.

Таблица 5.

Нормативные требования к звукоизоляции внутренних конструкций жилых зданий

№№ п/п

Наименование и расположение ограждающих конструкций

Rw,

дБ

IВ,

дБ

Lnw,

дБ

Iy,

дБ

1.

Перекрытия между помещениями квартир и отделяющие помещения квартир от холлов и используемых чердачных помещений

52

50

58

65

2.

Стены и перегородки между квартирами, между помещениями квартир и лестничными клетками, холлами, коридорами, вестибюлями

52

50

-

-

3.

Перегородки между комнатами, между кухней и комнатой в квартире

43

41

-

-

Фактические значения индекса изоляции воздушного, шума должны быть не меньше, а приведенного уровня ударного шума не больше нормативных.

Приведенные в табл. 5.1 требования совпадают с требованиями [13], за исключением значения индекса приведенного уровня ударного шума под перекрытием (в [13] Iy < 67 дБ).

В зависимости от своей структуры легкие ограждающие конструкции делятся на акустические однородные и акустические неоднородные.

К акустически однородным относят однослойные конструкции (в том числе с небольшими пустотами и часто расположенными ребрами), а также состоящие из двух и более слоев (элементов) из твердых материалов (бетона, кирпичной кладки, раствора, металла, дерева и т.п.), жестко связанных между собой по всей площади ограждения.

Конструкция с пустотами или ребрами считается акустически однородной, если стенки пустот или полки между ребрами имеют форму свода с круговым или близким к нему очертанием. При прямолинейном или пологом криволинейном очертании стенок пустоты или полки ребристой плиты их длина (в поперечном сечении ограждения), должна быть меньше 1/4 длины λи изгибной волны в ней, которую определяют по формуле

λи = (2π/f)0,5 [D/(qb)]0,25,                                               (5.3)

где f - частота Гц; D - цилиндрическая жесткость плиты, Па м4; q - поверхностная плотность плиты кг/м2; b - ширина плиты, м.

Из формулы (1) видно, что λи уменьшается с частотой. Поэтому конструкция может вести себя как акустически однородная на низких частотах, а на высоких - как акустически неоднородная. Под воздействием звуковых волн акустически однородная конструкция совершает изгибные колебания как единое целое, а у акустически неоднородной отдельные ее элементы могут совершать самостоятельные изгибные колебания.

Акустически неоднородные внутренние стены и перегородки представлены в рекомендациях следующими конструктивными решениями:

каркасные конструкции с обшивками из листовых материалов (гипсокартон, гипсоволокнистые листы, древесноволокнистые, цементно-стружечные плиты и т.п.);

стены из бетона с обшивками из листовых материалов на относе;

ограждение из двух одинаковых стенок из бетона, разделенных воздушным промежутком.

К акустически неоднородным относятся междуэтажные перекрытия, так как все они имеют в конструкции пола звукоизоляционный слой, который позволяет части пола совершать колебания, отличающиеся от колебаний несущей части перекрытия.

Расчеты звукоизоляции легких конструкций выполнены в соответствии со СНиП [13] с использованием методов, содержащихся в рекомендациях [44], [45], руководстве [46] и пособии [50]. Для конструкций, не поддающихся расчету методами [13], [44] - [46], [50] использованы результаты экспериментальных исследований звукоизоляции, выполненных ЦНИИЭП жилища, [47], [48], а также приведенные в руководстве [49].

5.2. Методы расчета

Акустически однородные легкие конструкции и элементы

Индекс изоляции воздушного шума акустически однородного ограждения или элемента конструкции рассчитывают по формулам

Rw = 23 lg qэ - 8 при qэ > 200 кг/м2,                                 (5.4)

Rw = 13 lg qэ + 15 при qэ < 200 кг/м2,                              (5.5)

где qэ - эквивалентная поверхностная плотность конструкции, кг/м2.

qэ = к q ,                                                               (5.6)

где q - поверхностная плотность конструкции, кг/м2;

к - коэффициент, зависящий от характеристик материала и формы поперечного сечения конструкции.

Согласно [13], [44], [45] для конструкций сплошного сечения из тяжелого бетона к = 1, из гипсобетона к = 1,25.

Для акустически однородных бетонных конструкций с пустотами или ребрами

,                                                     (5.7)

где b - ширина рассматриваемой конструкции, м; hпр - ее приведенная толщина, м; I - момент инерции ее поперечного сечения, м4; n0 - увеличение коэффициента потерь ограждения в результате заполнения пустот сыпучим материалом (в случае заполнения пустот несыпучим материалом n0 = 1).

Для конструкций с заполненными пустотами значение hпр определяют по формуле

,                                                       (5.8)

где q - поверхностная плотность конструкции с учетом заполнения пустот, кг/м2; ρi - плотность бетона, кг/м3.

Значение n0 определяют по формуле

                                      (5.9)

где р = q2/q1; m = η2/η1; q1 и q2 - массы, приходящиеся на 1 м2 конструкции, соответственно бетона и сыпучего материала; η1 и η2 - их коэффициенты потерь.

При определении n0 принимают следующие значения коэффициента потерь материалов:

бетонов на плотных заполнителях η = 0,005;

бетонов на пористых заполнителях η = 0,01;

сыпучих материалов - шлаков, керамзита, перлита предельной крупностью не более 20 мм, песка η = 0,1.

Если длина стенки пустоты или полки ребристой плиты больше 1/4 длины изгибной волны в ней, то для учета влияния самостоятельных колебаний этих элементов используют следующие эмпирические формулы в зависимости от отношения lпол / hпол (lпол - длина полки, hпол - высота полки).

При lпол / hпол < 10

;                                 (5.10)

при 10 < lпол / hпол < 15

;                          (5.11)

при lпол / hпол > 15

Rw = Rwqпол,                                                        (5.12)

где Rwк - индекс изоляции воздушного шума, рассчитанный как для акустически однородной конструкции по формулам (5.4) - (5.7); Rwq - то же, как для плиты сплошного сечения с поверхностной плотностью равной поверхностной плотности q рассматриваемой конструкции; Rwqпол - то же, как для плиты сплошного сечения, поверхностная плотность которой равна суммарной поверхностной плотности полок qпол рассматриваемой конструкции.

При наличии сыпучего материала в плитах с пустотами, индексы изоляции воздушного шума которых рассчитаны по формулам (5.10) - (5.12), к полученному по ним значению Rw нужно прибавить поправку ΔRw, определяемую по формуле

ΔRw = 10 lg n0, при q > 200 кг/м2,                                       (5.13)

где n0 определяют по формуле (5.9).

Акустические неоднородные легкие стены и перегородки

Метод расчета каркасных конструкций перегородок с обшивками из листовых материалов содержится в [46], [50]. Он состоит в графоаналитическом построении частотной характеристики изоляции воздушного шума ограждением в зависимости от вида листового материала, числа слоев обшивки с каждой стороны конструкции, заполнения ее полостей звукопоглощающим материалом и от низшей собственной частоты конструкции, определяемой по формуле

,                                                  (5.14)

где q1 и q2 - поверхностные плотности обшивок, кг/м2; d - толщина воздушного промежутка, м.

Согласно п. 2.6 [46] индекс изоляции воздушного шума стеной (перегородкой) с поверхностной плотностью не менее 150 кг/м2 с дополнительными обшивками на относе определяют, прибавляя к индексу изоляции воздушного шума основной стены величину, определяемую по табл. 6 [46], (от 0 до 6 дБ).

Согласно п. 6.22 [13] индекс изоляции воздушного шума ограждения, состоящего из двух одинаковых стенок, разделенных воздушным промежутком толщиной не менее 40 мм, определяют, прибавляя к индексу изоляции воздушного шума одной стенки 9 дБ. Жесткие связи между стенками допускаются только по контуру ограждающей конструкции.

Междуэтажные перекрытия

Индекс изоляции воздушного шума перекрытием определяют по формуле:

Rw = Rwн.ч + ΔRw ,                                                         (5.15)

где Rwн.ч - индекс изоляции воздушного шума несущей частью перекрытия; ΔRw - изменение индекса в результате устройства пола.

Значение RВн.ч определяют по формулам (2) или (3).

Индекс приведенного уровня ударного шума перекрытия Lnw рассчитывают по формуле:

Lnw = Lnwн.ч - ΔLnw                                                    (5.16)

где Lnwн.ч - индекс приведенного уровня ударного шума несущей части перекрытия; ΔLnw - изменение индекса, вызванное устройством пола.

Значение Lnwн.ч рассчитывают по формуле:

,                                (5.17)

где q - поверхностная плотность несущей части перекрытия кг/м2; h - ее толщина; hпр - ее приведенная толщина (для плиты сплошного сечения h/hпр = 1); n0 - изменение коэффициента потерь несущей части перекрытия при наличии в ней сыпучего материала (при отсутствии сыпучего материала n0 = 1).

При применении раздельных или слоистых полов значение ΔRw рассчитывают согласно [44], [45] по формуле:

                     (5.18)

где Rwк - индекс изоляции воздушного шума, определяемый при условии передачи звука только косвенным путем по стенам, дБ; Rwн.ч - индекс изоляции воздушного шума несущей частью перекрытия; дБ; f0 - низшая собственная частота пола на звукоизоляционной прослойке, Гц; f00 - стандартное значение этой величины (f00 = 650 Гц); q1 - поверхностная плотность несущей части перекрытия, кг/м2; qполн - то же, всего перекрытия с полом; hсп - средняя толщина промежутка между полом и несущей частью перекрытия, м; hспо - стандартное значение этой величины (hспо = 0,02 м); n0 - изменение коэффициента потерь конструкции в результате устройства пола (при наличии в конструкции пола сыпучего материала n0 определяют по формуле (5.9), при его отсутствии n0 = 1).

                                                (5.19)

где Rwc - индекс изоляции воздушного шума вертикальными конструкциями (стенами), по которым передается структурный шум; Rc - усредненная по частоте изоляция структурного шума при его передаче от конструкции в помещении с источником шума конструкции в изолируемом помещении; Fc и Fп - площади вертикальной конструкции (стены) и перекрытия, излучающие звук в изолируемое помещение.

Значение Fc/Fп принимают в зависимости от конструктивно-планировочной структуры здания, согласно [44], [45] или по проектным данным.

Низшую собственную частоту пола на звукоизоляционной прослойке определяют по формуле:

                                                 (5.20)

где S - линейная динамическая жесткость звукоизоляционной прослойки, Па/м; q1 - поверхностная плотность несущей части перекрытия кг/м2; q2 - то же, пола без звукоизоляционной прослойки, кг/м2.

При жесткой конструкции пола (пол на лагах, паркетные щиты, монолитные или сборные бетонные основания пола и т.п.) значение S определяют по формуле:

,                                                               (5.21)

где Ед - динамический модуль упругости материала звукоизоляционной прослойки. Па; hз - толщина материала звукоизоляционной прослойки в обжатом состоянии, м.

Значение hз рассчитывают по формуле

hз == h (1 - εд),                                                         (5.22)

где h - толщина материала в необжатом состоянии; εд - относительное сжатие материала под длительно действующей нагрузкой.

Значения Ед и εд, принимают по [44], [45].

В случае применения пола на звукоизоляционной прослойке, значение ΔLnw рассчитывают по формуле:

                       (5.23)

где f0, f00, hсп, hспо и n0 - имеют те же значения, что в формуле (5.11); Lnwн.ч -индекс приведенного уровня ударного шума несущей части перекрытия; Δу - значение, принимаемое в зависимости от конструкции пола и материала его покрытия (Δу = 0...6 дБ) в соответствии с [45].

В случае применения пола из линолеума на теплозвукоизолирующей подоснове принимают ΔRw = - 1 дБ (п. 6.16 [13]), ΔLnw = 17 дБ при иглопробивной неткановолокнистой подоснове из шерстяных или синтетических волокон и ΔLnw = 16 дБ при подоснове из лубяных волокон.

5.3. Звукоизоляция внутренних стен и перегородок

Приведенные ниже индексы изоляции воздушного шума Rw внутренних стен и перегородок получены расчетом методами, описанными в разделе 5.2.

При проведении этих расчетов предполагалось, что при рабочем проектировании будут предусмотрены меры, не допускающие наличия в соединениях рассматриваемых стен и перегородок с другими конструкциями сквозных щелей и трещин, а также их образования и раскрытия при длительной эксплуатации. Это относится также к местам установки в стенах и перегородках элементов скрытой электропроводки (распаянных коробок, выключателей, штепсельных розеток). В графе №№ п.п в скобках указаны номера систем легких эффективных конструкций (см. пояснительную записку).

Таблица 5.2

Индексы изоляции воздушного шума внутренних стен и перегородок

№№

п.п

Описание конструкции

Rw,

дБ

1.

(п. 3.4)

Межквартирная перегородка толщиной 200 мм по каркасу из швеллерообразных стальных гнутых профилей (150 мм) с обшивками из двух слоев гипсокартона плотностью 1100 кг/м3 (2´12,5 мм) с каждой стороны, с размещением в полостях перегородки минераловатных плит плотностью 100 кг/м3 (80 мм)

53

2.

(п. 3.1)

Межквартирная стена толщиной 200 мм со средним слоем из тяжелого бетона (130 мм) в несъемной опалубке из цементно-стружечных плит плотностью 1200 кг/м3 (35 мм) с двух сторон

52

3.

(п. 3.3)

Межквартирная стена толщиной 200 мм из тяжелого бетона с прямоугольными пустотами; полки (2´60 мм), ребра (80´40 мм) с шагом 300 мм, полости заполнены минераловатными плитами плотностью 100 кг/м3

52

4.

(п. 3.2)

Межквартирная стена из легкого бетона плотностью 1600 кг/м3 (200 мм)

52

5.

(п. 3.4)

Межкомнатная перегородка толщиной 80 мм по каркасу из стальных гнутых профилей (55 мм) с обшивками из гипсокартона (12,5 мм) с каждой стороны, с размещением в полостях перегородки минераловатных плит плотностью 100 кг/м3 (30 мм)

46

6.

(п. 3.1)

Межкомнатная перегородка толщиной 120 мм (сплошная) из цементно-стружечных плит плотностью 1200 кг/м3

43

7.

(п. 3.3)

Межкомнатная стена толщиной 120 мм из тяжелого бетона с прямоугольными пустотами; полки (2´40 мм), ребра (40´40 мм) с шагом 600 мм, полости заполнены минераловатными плитами плотностью 100 кг/м3 или пенополистирольными плитами плотностью 40 кг/м3

45

5.4. Звукоизоляция междуэтажных перекрытий

Ниже даны индексы изоляции воздушного шума Rw и приведенного уровня ударного шума междуэтажных перекрытий Lnw, которые получены расчетом методами, описанными в разделе 5.2. Звукоизоляция конструкций, которые не поддаются расчету этими методами, (п.п. 8 и 9 табл. 5.3) оценена по результатам испытаний конструкций-аналогов, приведенным в руководстве Департамента жилищного строительства и городского развития США [49].

При расчетах предполагалось, что при рабочем проектировании будут предусмотрены меры, недопускающие наличия в соединениях рассматриваемых перекрытий с другими конструкциями или образования и раскрытия в них при длительной эксплуатации сквозных щелей и трещин. Это относится также к местам установки в перекрытиях элементов скрытой электропроводки и пропуска через них труб центрального отопления.

В графе №№ п.п в скобках указаны номера систем легких эффективных конструкций (см. пояснительную записку).

Таблица 5.3

Индексы изоляции воздушного шума и приведенного уровня ударного шума междуэтажных перекрытий

№№

п.п

Описание конструкции

Rw,

дБ

Lnw,

дБ

несущей части

пола

1

2

3

4

5

1.

(п. 3.4)

Железобетонная плита (220 мм) с пустотами; верхняя и нижняя полки (2´55 мм), ребра (110´80 мм) с шагом 500 мм, полости заполнены керамзитом плотностью 500 кг/м3

Линолеум на теплозвуко-изолирующей (т.з.и) подоснове по цементно-песчаной стяжке (40 мм)

52

57

2.

(п. 3.4)

То же, но верхняя и нижняя полки (2´40 мм), ребра (140´80 мм) с шагом 500 мм, полости заполнены пенополистиролом плотностью 40 кг/м3, или минераловатными плитами плотностью 100 кг/м3, или перлитовым песком плотностью 80 кг/м3

Любое покрытие пола по армированной цементно-песчаной стяжке (30 мм), пергамину, минераловатным плитам плотностью 100 кг/м3 (30 мм)

53

< 56

3.

(п. 3.4)

Железобетонная ребристая плита (100 мм) с полкой (40 мм) и ребрами, образованными бетонированием по профнастилу, (60´50 - 90 мм), шаг 212 мм; потолок из гипсоволокнистой плиты (15 мм)

Любое покрытие пола по цементно-песчаной стяжке (40 мм), пергамину, минераловатным плитам плотностью 100 кг/м3 (40 мм)

53

< 55

4.

(п. 3.3)

Трехслойная плита с верхним ребристым слоем из железобетона - полка (40 - 48 мм), ребро (150´60 мм) с шагом 600 мм, средний слой пенополистирольные, минераловатные плиты, нижний слой из железобетона (30 - 32 мм)

Паркетные щиты, доски (35 мм), по лагам (40´100 мм), прокладкам из минераловатных плит ПП-100 плотностью 100 кг/м3 (40 мм); между покрытием пола и лагами - слой пергамина

53

57

5.

(п. 3.4)

Железобетонная плита сплошного сечения (80 мм)

Любое покрытие по цементно-песчаной стяжке (40 мм), пергамину, минераловатным плитам плотностью 100 кг/м3 (40 мм)

53

< 55

6.

(п. 3.4)

То же

Линолеум на т.з.и подоснове по двум слоям гипсоволокнистых листов (2´14 мм), по деревянным лагам (170´40 мм), установленным с шагом 600 мм, прокладкам из минераловатных плит (40 мм) и заполнение пространства между ними керамзитом плотностью 500 кг/м3

58

< 50

7.

(п. 3.4)

Железобетонная плита сплошного сечения (160 мм)

Линолеум на т.з.и подоснове по цементно-песчаной стяжке (40 мм)

52

58

8.

(п. 3.1)

Железобетонная ребристая плита (250 мм), по несъемной опалубке из цементно-стружечных плит -полка (50 мм), ребро (175´80 мм) с шагом 500 мм, потолок из гипсоволокнистой плиты (25 мм)

Любое покрытие пола по цементно-песчаной стяжке (40 мм), пергамину, минераловатным плитам плотностью 100 кг/м3 (40 мм)

53

< 55

9.

(п. 3.2)

По армоцементным балкам высотой 200 мм, армированная гипсовая стяжка (30 мм), между балками засыпка из керамзита, шлака плотностью 500 кг/м3 по гипсоволокнистому листу (12 мм) и двум слоям стеклопластиковой сетки, внизу цементностружечная плита плотностью 1200 кг/м3 (20 мм)

Щитовой паркет (27 мм), лага (40´60 мм), прокладка из минераловатных плит, пористой резины или мягких древесноволокнистых плит (30 мм); между покрытием пола и лагами - слой пергамина

52

58

6. Оценка огнестойкости

Критерии оценки огнестойкости и способности к распространению огня, а также требования норм к конструкциям надстройки

Заключение по предварительной оценке фактических пределов огнестойкости и способности к распространению огня несущих и ограждающих конструкций легких систем надстроек было выполнено по заданию ОАО ЦНИИЭП жилища (№ 101-128 от 08.02.99 г.) ВНИИПО МВД России (№ 43/3.2/553 от 14.04.99 г.)

В Заключении последовательно оцениваются предлагаемые системы на основе СНиП 21-01-97 [11] и других требований нормативных документов.

Пределы огнестойкости строительных конструкций определяются в соответствии с требованиями раздела 9 ГОСТ 30247.0-94 и раздела 8 ГОСТ 30247.1 -94.

По ГОСТ 30247.1-94 предельными состояниями по огнестойкости рассматриваемых типов несущих и ограждающих конструкций являются:

- для несущих внутренних стен и перекрытий - потеря несущей способности (R), целостности (Е) и теплоизолирующей способности (I);

- для наружных несущих стен и покрытий - потеря несущей способности (R) и целостности (Е);

- для ненесущих внутренних стен и перегородок - потеря теплоизолирующей способности (I) и целостности (Е).

Предел распространения огня конструкций определяется в результате огневых испытаний их опытных образцов по методике приложений I СНиП 2.01.02-85*.

При надстройке жилых зданий требования к его несущим и ограждающим конструкциям в общем случае принимаются по табл. 1 СНиП 2.01.02-85* в зависимости от степени огнестойкости зданий.

В данном случае, после надстройки 5-ти этажных домов двумя рядовыми и мансардным этажом, пределы огнестойкости и пределы распространения огня несущих и ограждающих конструкций 6-го и 7-го этажей надстройки следует принимать, как для зданий II степени огнестойкости (табл. 1 СНиП 2.08.01-89* "Жилые здания").

В соответствии с п. 1.13* СНиП 2.08.01-89 в жилых зданиях I-III степеней огнестойкости допускается принимать для несущих конструкций и межсекционных перегородок мансардного этажа предел огнестойкости 0,75 ч. с нулевым пределом распространения огня. При этом требования п. 1.8 СНиП 2.01.02-85* на стропила и обрешетку не распространяются, т.е. таким элементом конструкций должен быть обеспечен также нулевой предел распространения огня.

Система монолитного железобетона с применением оставляемой опалубки из ЦСП

Наружная стена НС-1 (6, 7 этажи) состоит из несъемной опалубки в виде цементно-стружечных плит, между которыми располагается утеплитель и монолитный железобетон. Толщина монолитного бетонного ядра составляет 100 мм из бетона класса В15. Бетонное ядро армируется вертикальными каркасами высотой на этаж. В качестве утеплителя принимается пенополистирол марки ПСБ-С или минераловатные плиты на синтетических связующих. Утеплитель приклеивается на плиты ЦСП минеральным клеем. Внешняя поверхность наружной стены покрывается слоем известково-цементной штукатурки толщиной 8 - 10 мм по стеклопластиковой сетке.

Основным несущим элементом наружной стены является монолитное бетонное армированное ядро из бетона класса В15 толщиной 100 мм, которое обеспечивает предел огнестойкости не менее 2.0 ч. по признаку обрушения (R) и потери целостности (Е).

Предел распространения огня наружной стены с утеплителем из минераловатных плит равен нулю. Данными по пределу распространения огня такой конструкции с утеплителем из пенополистирола институт не располагает.

Предел огнестойкости (REI) внутренней несущей стены ВС-1, состоящей из несъемной опалубки в виде плит ЦСП толщиной 35 мм и монолитного бетонного ядра толщиной 130 мм, составляет не менее 120 минут, при нулевом пределе распространения огня.

Межкомнатная перегородка ВС-2 состоит только из 3-х слоев цементно-стружечных плит толщиной 35 мм каждый, скрепленных между собой гвоздями или дюбелями.

Предел огнестойкости перегородки EI составляет не менее 0,25 ч. при нулевом пределе распространения огня.

Данными о пределах огнестойкости плит перекрытий, используемых в данной системе, институт не располагает, и поэтому для оценки этого показателя требуется проведение огневых испытаний по действующим в России методам исследований.

Предел огнестойкости покрытия RE 15 при нулевом пределе распространения огня будет обеспечен.

Система монолитного легкого бетона с применением оставляемой опалубки из пенополистирола

Ранее на экспериментальной базе ВНИИПО проводились испытания на огнестойкость и распространение огня конструкций наружных стен системы "Пластбау" и "Изодом-2000", предусматривающих монтаж стен с использованием блоков из пенополистирола. На основании анализа испытаний можно сделать вывод, что предел огнестойкости наружных стен, представленных в альбоме, составляет не менее RE 120 при нулевом пределе распространения огня.

Внутренняя несущая стена из легкого бетона толщиной 200 мм обладает огнестойкостью не менее 120 мин с нулевым пределом распространения огня.

Однако следует отметить, что совместное письмо Госстроя Россия и ГУГПС МВД России № 13/620 от 20.11.96 г. разрешает использование пенополистирола ПСБ-С только в качестве наружного утеплителя с защитой со стороны фасада слоем штукатурки толщиной 25 - 30 мм, поэтому применение пенополистирола в наружных стенах внутри помещений требует согласования с органами Госпожнадзора.

Основной несущей частью для межэтажных перекрытий и крыши являются армоцементные двутавровые балки № 20, составленные из двух предварительно изготовленных швеллеров № 20, соединенных между собой болтами из стеклопластика (или пластмассовыми дюбелями).

ВНИИПО не располагается данными по испытаниям конструкций с несущей основой из армоцементных балок, поэтому для оценки пределов огнестойкости подобных перекрытий требуется проведение соответствующих огневых испытаний.

Система монолитных оболочек из торкретбетона по оставляемой опалубке

Основой для конструктивной системы монолитных оболочек из торкретбетона по оставляемой опалубке из пенополистирольных плит являются разработки фирмы "Нидьон" (Италия) и "Спид-Вол" (Англия).

ВНИИПО не располагает данными по огнестойкости и распространению огня конструкций, применяемых в системах "НИДЬОН" и "СПИД ВОЛ". Для оценки пределов огнестойкости и распространения огня несущих и ограждающих конструкций, представленных в альбоме, требуется проведение соответствующих огневых испытаний.

Система с применением металлического каркаса из гнутого профиля

В разработанных решениях несущие стойки металлического каркаса, выполненные из гнутого замкнутого профиля - 150´100´8 мм, размещены в простенках между окнами по осям продольных несущих наружных и внутренних несущих стен основного здания и облицованы со стороны помещений двумя слоями огнестойких гипсокартонных листов ГКЛО.

Облицовка конструкций металлического каркаса двумя слоями гипсокартонных листов ГКЛО не обеспечивает предел огнестойкости RE 120 наружных и REI 120 внутренних несущих стен 6-го и 7-го этажей надстройки. Предел огнестойкости RE 45 наружных несущих стен и REI 45 внутренних несущих стен мансардного этажа будет обеспечен. Предел распространения огня по рассматриваемому типу конструкций при их облицовке двумя слоями гипсокартона следует принять равным нулю.

Данными по испытаниям конструкций перекрытий, применяемых в данной системе, а именно перекрытий с засыпными пустотами и перекрытий слоистых с "плавающим полом" институт не располагает.

Для таких конструкций требуется проведение соответствующих огневых испытаний.

7. Гигиенические качества

Оценка гигиенических качеств систем легких эффективных конструкций для надстроек была выполнена по заданию ОАО ЦНИИЭП жилища (№ 280-1117 от 24.12.98 г.) Центром госэпиднадзора в г. Москве (№ 23-53/186 от 08.02.99 г.). В заключении, подписанном главным государственным санитарным врачом по г. Москве Н. Н. Филатовым, говорится следующее.

Центр госсанэпиднадзора в г. Москве рассмотрел альбом технических решений "Системы легких эффективных конструкций для осуществления реконструкции жилых домов первого периода индустриального домостроения с надстройкой дополнительных этажей" и сообщает, что возражений против реконструкции указанных домов не имеется при соблюдении следующих условий:

проект реконструкции каждого конкретного дома согласовать с территориальным центром госсанэпиднадзора;

- реконструкцию проводить с учетом требований дополнения № 1 к МГСН 3.01.96 "Жилые здания";

- используемые полимерные строительные и отделочные материалы должны быть допущены к применению органами санэпиднадзора (иметь положительное заключение);

- в проекте тепло-влагозащитные и шумо- виброизоляционные свойства конструкций должны быть подтверждены соответствующими расчетами.

8. Технико-экономические показатели

Рассматриваются варианты надстройки дополнительных трех этажей в жилых зданиях:

1. Система с применением монолитного железобетона и оставляемой опалубки из цементно-стружечных плит (ЦСП).

2. Система с применением монолитного легкого бетона и оставляемой опалубки из пенополистирола.

3. Система монолитных оболочек из торкретбетона по оставляемой опалубке.

4. Система с применением металлического каркаса из гнутого профиля.

Все предлагаемые решения выполнены на основе единой планировочной схемы, при этом за основу была принята торцевая блок-секция с поперечными несущими стенами. Это позволило определить удельные нормы расхода конструктивных элементов в расчете на кв. м общей площади (табл. 8.1), на основе которых были определены прямые затраты и сметная стоимость на указанную единицу и обеспечена сопоставимость рассматриваемых вариантов.

Таблица 8.1

Удельная площадь конструкций надстройки в расчете на кв.м общей площади

Наименование

м.кв. конструкций

Наружные стены (без вычета проемов)

0,84

Внутренние стены (без проемов)

 

а) межквартирные

0,76/1,08

б) межкомнатные

0,49/0,17

Перекрытия

 

а) над 5 этажом

0,405

б) над 6 - 7 этажами

0,805

Перекрытие над 8 этажом

0,39

Примечание: под чертой приведен расход внутренних стен каркасной системы (вариант второй) при их толщине 208 мм.

Все варианты имеют одинаковые показатели по прочностным звуко- и теплоизоляционным характеристикам, поэтому их сопоставление осуществлялось лишь по изменяемым статьям, в том числе по затратам, связанным с монтажом конструктивных элементов и стоимостью материалов, применяемых в данных конструкциях, а также трудозатратам на строительной площадке.

Применяемые конструкции в основном собирают и монтируют на строительной площадке. В связи с этим расчет их стоимости возможен лишь на основе применения нормативов ЕНиР. При этом величина заработной платы строительных рабочих приведена к существующему уровню с повышающим коэффициентом К = 18,52, действующим на конец 1999 г. (Сборник коэффициентов пересчета сметной стоимости строительно-монтажных работ для Москвы).

Стоимость строительных материалов принята по информационным коммерческим сборникам на октябрь-ноябрь 1999 года (см. табл. 8.1).

Учитывая различия конструктивных решений по рассматриваемым вариантам, в расчете были выделены отдельной строкой наружные стены, внутренние стены (межквартирные и межкомнатные), перекрытия над 5 этажом и 6 - 7 этажами, покрытия в комплексе с кровлей, а также в отдельных случаях каркас здания.

В таблицах 8.2 - 8.5 представлены результаты расчета технико-экономических показателей по каждому из рассматриваемых вариантов, а в табл. 8.6 - их сводные показатели.

Приведенные данные позволяют сделать вывод о том, что основным фактором, влияющим на экономичность рассматриваемых вариантов, является стоимость применяемых для их реализации строительных материалов. Так, удельный вес заработной платы строительных рабочих в величине прямых затрат составляет всего лишь 11 - 16 % (II-IV вар.) и 20 % (I вар.), а стоимость материалов составляет 80 % и более.

При определении стоимости материалов, применяемых при возведении конструкций, наибольшее влияние оказывает стоимость теплоизоляционных материалов в наружных ограждающих конструкциях.

Рост стоимости строительных материалов, произошедший в течение 1999 г. и вызванный падением курса рубля, оказал существенное влияние на стоимостные показатели рассматриваемых вариантов.

В таблице 8.7 приведен уровень цен на строительные материалы, применяемые при возведении конструкций. Практически в течение 1999 года цены на большинство исходных материалов увеличились в 2 - 3 раза, а в отдельных случаях и более. Особенно это коснулось пиломатериалов (доски обрезные, брус), а также изделий из металла (трубы профильные и др. металлоизделия).

В меньшей степени возросли цены на тяжелые и легкие заполнители для бетонов и растворов и соответственно изделия на их основе.

Примерно на одном уровне находятся цены на теплоизоляционные материалы из минеральной ваты и пенополистирола, за исключением минеральной ваты на основе каменного волокна, стоимость которой более чем в три раза превышает стоимость указанных выше теплоизоляционных материалов.

Таким образом, экономическая целесообразность применения того или иного решения в значительной степени определяется видом применяемых материалов, их расходами и стоимостью.

Выполненные расчеты показывают, что наиболее экономичным решением является система монолитного железобетона с применением оставляемой опалубки из ЦСП (вариант 1), т.к. предусматривает преимущественное применение относительно дешевых материалов (цементно-стружечных плит, бетона и утеплителей отечественного производства).

Наиболее высокие стоимостные показатели имеет система из монолитного легкого бетона с применением опалубки из пенополистирола (вариант II), что связано с существенным увеличением стоимости внутренних стен, вызванным использованием керамзитобетона в межквартирной продольной стене, а также устройством каркаса из деревянных брусьев с заполнением минераловатной плитой для межкомнатных стен.

На 6 - 7 % затраты по III и IV вариантам больше по сравнению с I вариантом. При этом в III варианте это происходит главным образом за счет использования в наружных стенах минераловатных плит с каменным волокном и минераловатных плит на синтетической связке в плитах перекрытий, а в IV - за счет применения дорогостоящих профильных металлических труб, используемых для устройства каркаса.

В то же время следует заметить, что в случае применения пенополистирола в наружных ограждающих конструкциях в III варианте при обеспечении необходимого уровня огнестойкости конструкций данный вариант может оказаться достаточно экономичным, а при механизированном нанесении торкретбетона на поверхности конструкций и наименее трудоемким (9,7 чел.ч./кв.м общ.пл.).

Предлагаемые решения сопоставлены с решениями, выполненными ранее по теме "Реконструкция без отселения жильцов 5-этажных жилых домов серий 1-510, 1-511, 1-515 с надстройкой дополнительных этажей, в т.ч. мансардных".

Расчеты в этом случае производились в сметном уровне.

При определении сметной стоимости кв.м общей площади по рассматриваемым вариантам (табл. 8.8) к прямым затратам была добавлена неизменяемая часть затрат, общая для всех вариантов, и включающая стоимость заполнения проемов, отделочные сантехнические и др. виды работ. Учитывая, что все работы по сборке конструкций (1 - 7 варианты) осуществляются на строительной площадке, при расчете сметной стоимости величина накладных расходов была принята в размере 16,5 % от прямых затрат.

Представленные в табл. 8.8 значения сметной стоимости показывают, что предлагаемые решения III и IV вар. находятся на уровне ранее разработанных вариантов, а I вариант является более экономичным.

В целом выполненные расчеты позволяют сделать следующие выводы:

1. Экономические показатели по вариантам надстройки домов находятся на уровне выполненных ранее предложений.

2. Предлагаемый 1 вариант имеет наименьшие стоимостные показатели, но является наиболее трудоемким.

3. На стоимость технических решений наиболее существенное влияние оказывает стоимость применяемых материалов, что необходимо учитывать при рабочем проектировании.

Таблица 8.2

Расчет технико-экономических показателей по Варианту I - система с применением монолитного железобетона и оставляемой опалубки из цементно-стружечных плит

Конструкции

На м2 конструкции

Расход конструкции на м2 общей площади

На м2 общей площади

Стоимость, руб

Итого Прямые затраты, руб.

Затраты труда, чел.ч.

Стоимость, руб

Итого Прямые затраты, руб.

Затраты труда, чел.ч.

работ

материалов

работ

материалов

1. Наружные стены, пенополистирол (вариант - минераловатные плиты жесткие)

124,4

275,3 (476,9)

399,7 (601,3)

7,6

0,84

104,5

231,2 (400,6)

335,7 (50 5,1)

6,3

2. Внутренние межквартирные стены

105,3

236,1

347,4

6,4

0,76

80,0

179,4

259,4

4,8

3. Внутренние стены межкомнатные

7,3

229,5

236,8

0,5

0,49

3,6

112,4

116,0

0,2

Итого внутренние стены

 

 

 

 

 

 

 

375,4

5,0

4. Перекрытия над 5 этажом

43,9

187,4

231,3

2,9

0,405

17,8

75,9

93,7

1,2

5. Перекрытия над 6 и 7 этажами

45,8

232,4

278,2

3,2

0,805

36,9

187,1

224,0

2,6

Итого перекрытия

 

 

 

 

 

 

 

317,7

3,8

6. Покрытия

55,0

612,8

667,8

3,0

0,39

21,4

239,0

260,4

1,2

Итого

 

 

 

 

 

264,2

1035,0

1289,2

16,3

Таблица 8.3

Расчет технико-экономических показателей по Варианту II - система с применением монолитного легкого бетона и оставляемой опалубки из пенополистирола

Конструкции

На м2 конструкции

Расход конструкции на м2 общей площади

На м2 общей площади

Стоимость, руб

Итого Прямые затраты, руб.

Затраты труда, чел.ч.

Стоимость, руб

Итого Прямые затраты, руб.

Затраты труда. чел.ч.

работ

материалов

работ

материалов

1. Наружные стены

14,5

257,2

351,7

4,7

0,84

62,6

216,0

278,6

3,9

2. Внутренние стены межквартирные

 

 

 

 

 

 

 

 

 

а) продольная из керамзитобетона

22,4

142,6

165,0

1,4

0,27

6,0

38,5

44,5

0,4

б) с обшивкой ГВП

57,2

320,5

377,7

3,6

0,81

46,3

259,6

305,9

2,9

3. Внутренние стены межкомнатные

42,9

204,5

297,4

2,8

0,17

7,3

43,3

50,6

0,5

Итого внутренние стены

 

 

 

 

 

 

 

401,0

3,8

4. Перекрытия над 5 этажом

64,9

172,2

237,1

2,4

0,405

26,3

69,7

96,0

1,0

5. Перекрытия над 6 и 7 этажом

125,8

616,8

742,6

5,9

0,805

101,3

496,5

597,8

4,8

Итого перекрытия

 

 

 

 

 

 

 

693,8

5,8

6. Покрытия

58,9

705,1

764,0

3,2

0,39

23,0

275,0

298,0

1,2

Итого

 

 

 

 

 

272,8

1398,6

1671,4

14,7

Таблица 8.4

Расчет технико-экономических показателей по Варианту III - система монолитных оболочек из торкретбетона по оставляемой опалубке

Конструкции

На м2 конструкции

Расход конструкции на м2 общей площади

На м2 общей площади

Стоимость, руб

Итого Прямые затраты, руб.

Затраты труда, чел.ч.

Стоимость, руб

Итого Прямые затраты, руб.

Затраты труда, чел.ч.

работ

материалов

работ

материалов

1. Наружные стены

46,1

385,6

431,7

2,8

0,84

38,7

323,9

362,6

2,3

2. Внутренние стены межквартирные

55,4

303,0

358,4

3,4

0,76

42,1

230,3

272,4

2,6

3. Внутренние стены межкомнатные

51,1

162,5

213,6

2,9

0,49

25,0

79,6

104,6

1,4

Итого внутренние стены

 

 

 

 

 

 

 

377,0

4,0

4. Перекрытия над 5 этажом

23,7

107,2

130,9

1,8

0,405

9,6

43,4

53,0

0,7

5. Перекрытия над 6 - 7 этажами

38,7

420,9

459,6

2,2

0,805

31,1

338,8

369,9

1,8

Итого перекрытия

 

 

 

 

 

 

 

422,9

2,5

6. Покрытия

42,8

723,5

766,3

2,3

0,39

16,7

282,2

298,9

0,9

Итого

 

 

 

 

 

163,2

1298,2

1461,4

9,7

Таблица 8.5

Расчет технико-экономических показателей по варианту IV - система с применением металлического каркаса из гнутого профиля

Конструкции

На м2 конструкции

Расход конструкции на м2 общей площади

На м2 общей площади

Стоимость, руб

Итого. Прямые затраты, руб.

Затраты труда, чел.ч.

Стоимость, руб

Итого. Прямые затраты, руб.

Затраты труда, чел.ч.

работ

материалов

работ

материалов

1. Металлический каркас из труб коробчатого сечения

20779

139520

56216*)

1109,9

-

37,2

249,9

287,1

2,0

2. Наружные стены

64,6

444,1

332,4

4,0

0,84

54,3

373,0

427,3

3,4

3. Внутренние стены межквартирные

39,8

173,2

120,7

2,5

0,76

30,2

131,6

161,8

1,9

4. Внутренние стены межкомнатные

27,8

166,4

93,7

1,7

0,49

13,6

81,5

95,1

0,9

Итого внутренние стены и каркас

 

 

 

 

 

 

 

256,9

4,8

5. Перекрытия над 5 этажом

13,3

123,1

111,4

0,8

0,405

5,4

49,8

55,2

0,3

6. Перекрытия над 6 - 7 этажами

26,6

261,3

186,6

1,7

0,805

21,1

210,3

231,4

1,4

Итого перекрытия

 

 

 

 

 

 

 

286,6

1,7

7. Покрытия

46,0

432,7

353,3

2,7

0,39

17,9

168,7

186,6

1,1

Итого

 

 

 

 

 

179,7

1264,8

1445,5

11,0

*) - в целом на блок-секцию.

Таблица 8.6

Сводная таблица технико-экономических показателей по рассматриваемым вариантам на кв.м общей площади

Варианты

Наружные стены

Внутренние стены

Перекрытия

Покрытия

Итого

Прямые затраты, руб.

Затраты труда, чел.ч.

Прямые затраты, руб.

Затраты труда, чел.ч.

Прямые затраты, руб.

Затраты труда, чел.ч.

Прямые затраты, руб.

Затраты труда, чел.ч.

Прямые затраты, руб.

Затраты труда, чел.ч.

1

2

3

4

5

6

7

8

9

10

11

1. Система с применением монолитного железобетона и оставляемой опалубки из ЦСП

335,7

6,3

375,4

5,0

317,7

3,8

260,4

1,2

1289,2

16,3

Утеплитель толщиной

ПСБ-

200 мм

 

 

 

 

 

МВП*

80 мм

 

 

 

Бетон (приведенная толщина)

100 мм

 

130 мм

 

76 мм

 

 

 

 

 

Покрытие пола

 

 

 

 

ТЗЛ

6 - 8 эт.

 

 

 

 

 

2. Система с применением легкого бетона и оставляемой опалубки из пенополистирола

278,6

3,9

401,0

3,8

693,8

5,8

298,0

1,2

1671,4

14,7

Утеплитель толщиной

ПСБ -

160 мм

 

МВП 80 и 160 мм

 

 

 

МВП* 180 мм

 

 

 

Бетон (приведенная толщина)

 

 

Кер. бет. 200 мм прод. ст.

 

 

 

 

 

 

 

Покрытие пола

 

 

 

 

ТЗЛ

6 эт.

Парк.

доска

7 - 8 эт.

 

 

 

 

3. Система монолитных оболочек из торкретбетона по оставляемой опалубке

362,6

2,3

377,0

4,0

422,9

2,5

289,9

0,9

1461,4

9,7

Утеплитель толщиной

МВП*

220 мм

 

МВП 200

и 120 мм

 

МВП

200 мм

 

МВП*

200 мм

 

 

 

Бетон (приведенная толщина)

80 мм

 

80 мм

 

70 мм

 

65 мм

 

 

 

Покрытие пола

 

 

 

 

ТЗЛ

6 - 8 эт.

 

 

 

 

 

4. Система с применением металлического каркаса из гнутого профиля

427,4

3,4

256,9

4,8

286,6

1,7

186,6

1,1

1444,5

11,0

Утеплитель толщиной

МВП* 200 мм

 

МВП

80 мм

 

МВП

40 мм 100 мм

 

МВП*

230 мм

 

 

 

Бетон (приведенная толщина)

 

 

 

 

 

 

 

 

 

 

Покрытие пола

 

 

 

 

ТЗЛ

6 - 8 эт.

 

 

 

 

 

* - Минераловатная плита с каменным волокном, (γ = 80 кг/куб.м, λ = 0,04 Вт/(м . °С)); во всех остальных конструкциях применена минераловатная плита на синтетическом вяжущем (γ = 100 кг/куб.м, λ = 0,08 Вт/(м . °С)).

Таблица 8.7

Уровень цен, заложенный в расчеты при определении стоимости материалов

Материалы

Единица измерения

Цена

в руб.

в у.е.

Плиты гипсовые (ГВЛ, ГК и др.)

кв.м

29

1,1

Деревянный брус для каркаса и стропил

куб.м

1900

73,1

Доски обрезные

куб.м

1650

63,5

Плиты минераловатные

куб.м

500

19,2

То же для неизвлекаемой опалубки

куб.м

1850

71,1

Стеклосетка

кв.м

8

0,3

Рубероид

кв.м

6

0,2

Металлочерепица

кв.м

188,1

7,2

Цементно-стружечные плиты отечественного производства

кв.м

 

 

b = 20 мм

57

2,2

b = 25 мм

61,5

2,4

b = 35 мм

76,5

2,9

Металлические профили

пог.м

12,5

0,5

Арматурные сетки, каркасы, анкеры

т

5000

192,3

Полиэтиленовая пленка

кв.м

5

0,2

Пенополистирол типа "Пластбау"

куб.м

625

24

Металлические трубы для каркаса, коробчатого сечения

т

8000

307,7

Пенополистирол блочный, плитный

куб.м

590

22,7

Бетон тяжелый

куб.м

620

23,8

Торкрет-бетон

куб.м

760

29,2

Керамзитобетон

куб.м

713

27,4

Керамзитовый гравий

куб.м

230

8,8

Цементный раствор, штукатурный

куб.м

312

12

Теплозвукоизоляционный линолеум

кв.м

40

1,5

Паркетная доска (береза)

кв.м

220

8,5

Профильный настил металлический

кв.м

88

3,4

Примечание: коэффициент для пересчета в у.е. К = 26.

Таблица 8.8

Сметная стоимость кв.м общей площади по рассматриваемым вариантам

Варианты

Прямые затраты

Сметная стоимость кв.м общей площади

Изменяемая часть

Неизменяемая часть

Итого

в руб.

в %

в у.е. к = 26

1. Система с применением монолитного железобетона и оставляемой опалубки из ЦСП

1289,2

1237

2526,2

3178

96,7

122,2

2. Система с применением монолитного легкого бетона и оставляемой опалубки из пенополистирола

1671,4

1237

2908,4

3658,8

111,3

140,7

3. Система монолитных оболочек из торкретбетона по оставляемой опалубке

1461,4

1237

2698,4

3394,6

103,3

130,6

4. Система с применением металлического каркаса из гнутого профиля

1444,5

1237

2681,5

3373,3

102,6

129,7

5. Надстройка с ризалитами по 5-этажным домам серии 510 и 511

-

-

-

3287

100

126,4

9. Перечень нормативных документов

1.      СНиП 2.08.01-89* "Жилые здания".

2.      МГСН 3.01-96. "Жилые здания".

3.      Дополнение № 1 к МГСН 3.01-96 "Жилые здания" - "Реконструкция и модернизация пятиэтажных жилых домов первого периода индустриального домостроения".

4.      СНиП II-3-79* "Строительная теплотехника" - М.: Стройиздат, 1998 г. и изменение № 4 к нему.

5.      МГСН 2.01-99 "Энергосбережение в зданиях".

6.      СНиП 2.01.01-82 "Строительная климатология и геофизика". - М.: Стройиздат, 1983.

7.      СНиП 2.01.01-85 "Нагрузки и воздействия".

8.      СНиП II-23-81* "Стальные конструкции".

9.      СНиП 2.03.01 -84* "Бетонные и железобетонные конструкции".

10.     СНиП II-25-80 "Деревянные конструкции".

11.     СНиП 21-01-97 "Пожарная безопасность зданий и сооружений".

12.     СНиП 2.01.02-85* "Противопожарные нормы".

13.     СНиП II-12-77 "Защита от шума".

14.     МГСН 2.04-97 "Допустимые уровни шума вибрации и требования к звукоизоляции в жилых и общественных зданиях".

15.     СНиП 2.03.11-85 "Защита строительных конструкций от коррозии".

16.     СНиП 3.04.01-87 "Изоляционные и отделочные покрытия".

17.     ГОСТ 26254-84 "Методы определения сопротивления теплопередаче ограждающих конструкций". М., 1984.

18.     ГОСТ 30247.0-94 "Конструкции строительные. Методы испытаний на огнестойкость. Общие требования".

19.     ГОСТ 30247.1-94 "Конструкции строительные. Методы испытаний на огнестойкость. Несущие и ограждающие конструкции".

20.     ГОСТ 30403-96 "Конструкции строительные. Методы определения пожарной опасности".

21.     ГОСТ 25577-83 "Профили стальные замкнутые сварные квадратные и прямоугольные. Технические условия".

22.     ГОСТ 6266-89 "Листы гипсокартонные. Технические условия".

23.     ГОСТ 9573-96 "Плиты из минеральной ваты на синтетическом связующем теплоизоляционные. Технические условия".

24.     ГОСТ 15588-86 "Плиты пенополистирольные. Технические условия".

25.     ГОСТ 26816-86 "Плиты цементно-стружечные. Технические условия".

26.     ГОСТ 16289-86 "Окна и балконные двери с тройным остеклением для жилых и общественных зданий". - М.: Госстандарт, 1980.

27.     ГОСТ 8462-85 "Материалы стеновые. Методы определения пределов прочности при сжатии и изгибе".

28.     ТУ 1122-080-024946-80-97 "Профили стальные гнутые повышенной жесткости для ограждающих и несущих конструкций".

29.     ТУ 5742-004-03515377-97 "Листы гипсоволокнистые", "Авангард Knauf".

30.     ТУ 5762-010-04001485-96 "Плиты минераловатные на синтетическом связующем".

31.     ТУ 5742-005-04001508-95 "Листы гипсокартонные. Технические условия"

32.     ТУ 38.106569-88 "Пластина из пенорезины".

33.     ТУ 5745-011-04001508-97 Шпаклевка "Фугенфюллер". Клей "Перлфикс".

34.     ТУ 301-05-164-92 Пенополистирол вспенивающийся суспензионный с поверхностной обработкой частиц.

35.     ВСН 27-95 "Инструкция по технологии монтажа и отделке сборных гипсокартонных перегородок на металлическом каркасе поэлементной сборки".

36.     ВСН 28-95 "Инструкция по технологии монтажа и отделке потолков индустриальными методами".

37.     СП "Ограждающие конструкции с применением гипсокартонных листов. Проектирование, устройство, эксплуатация", -М., 1998.

38.     Расчет и проектирование ограждающих конструкций зданий. Справочное пособие к СНиП II-3-79*, М., Стройиздат, 1990.

39.     Пособие по проектированию бетонных и железобетонных конструкций из тяжелых и легких бетонов без предварительного напряжения арматуры (к СНиП 2.03.01-84). - М.: Стройиздат, 1987.

40.     Руководство по расчету статически неопределимых железобетонных конструкций. - М.: Стройиздат, 1975.

41.     Рогицкий С. А. Новый метод расчета на прочность и устойчивость. -Москва - Свердловск : Машиздат, 1961.

42.     Справочник проектировщика. Расчетно-теоретический. Том 1. -М.: Стройиздат, 1972.

43.     Совместное письмо от 20.11.96 г. № 13/620 начальника Главтехнормирования Минстроя России и начальника ГУГПС МВД России.

44.     Рекомендации по обеспечению требуемой звукоизоляции при конструировании жилых зданий. М.: ЦНИИЭП жилища, 1984.

45.     Рекомендации по обеспечению требуемой звукоизоляции квартир от помещений первого этажа жилых домов. М.: ЦНИИЭП жилища, 1992.

46.     Руководство по расчету и проектированию звукоизоляции ограждающих конструкций зданий. М.: Стройиздат, 1983.

47.     Крейтан В. Г. Защита от внутренних шумов в жилых домах. М.: Стройиздат, 1990.

48.     Стронгин Н. С., Крейтан В. Г., Русишвили А. Ш. Пустотно-засыпные панели междуэтажных перекрытий из легких бетонов. Жилищное строительство № 7, 1985.

49.     A Guide to Airborne, Jmpact and Structureborne Noise Control in Multifamily Dwellings Washington. D.C. U.S. Department of housing and urban development U.S. Government printing office, 1974.

50.     Пособие к МГСН 2.04-97 Проектирование звукоизоляции ограждающих конструкций жилых и общественных зданий. М.: ГУП "НИАЦ", 1998.

 




ГОСТЫ, СТРОИТЕЛЬНЫЕ и ТЕХНИЧЕСКИЕ НОРМАТИВЫ.
Некоммерческая онлайн система, содержащая все Российские Госты, национальные Стандарты и нормативы.
В Системе содержится более 150000 файлов нормативно-технической документации, действующей на территории РФ.
Система предназначена для широкого круга инженерно-технических специалистов.

Рейтинг@Mail.ru Яндекс цитирования

Copyright © www.gostrf.com, 2008 - 2026