Крупнейшая бесплатная информационно-справочная система онлайн доступа к полному собранию технических нормативно-правовых актов РФ. Огромная база технических нормативов (более 150 тысяч документов) и полное собрание национальных стандартов, аутентичное официальной базе Госстандарта. GOSTRF.com - это более 1 Терабайта бесплатной технической информации для всех пользователей интернета. Все электронные копии представленных здесь документов могут распространяться без каких-либо ограничений. Поощряется распространение информации с этого сайта на любых других ресурсах. Каждый человек имеет право на неограниченный доступ к этим документам! Каждый человек имеет право на знание требований, изложенных в данных нормативно-правовых актах!

  


 

ПРАВИТЕЛЬСТВО МОСКВЫ
МОСКОМАРХИТЕКТУРА

РЕКОМЕНДАЦИИ
по проектированию
социальных приютов для детей
и подростков

2002

ПРЕДИСЛОВИЕ

1. РАЗРАБОТАНЫ: ГУП МНИИП «Моспроект-4» (архитекторы Любомудрова К.И., Кряжевских М.А., инженер Тихомирова И.Б.).

2. ПОДГОТОВЛЕНЫ К УТВЕРЖДЕНИЮ И ИЗДАНИЮ Управлением перспективного проектирования и нормативов Москомархитектуры (архитектор Шалов Л.А., инженер Щипанов Ю.Б.).

3. СОГЛАСОВАНЫ: Комитетом социальной защиты населения г. Москвы, Москомархитектурой.

4. УТВЕРЖДЕНЫ И ВВЕДЕНЫ В ДЕЙСТВИЕ указанием Москомархитектуры от 04.02.2002 г. № 14.

СОДЕРЖАНИЕ

ВВЕДЕНИЕ

Социальные приюты для детей и подростков (далее СП) являются стационарными, реабилитационными, учебно-воспитательными учреждениями временного проживания, которые оказывают на территории административных округов г. Москвы, обслуживаемых ими, социальную помощь безнадзорным и беспризорным несовершеннолетним, детям-сиротам и детям, оставшимся без попечения родителей или законных представителей, и осуществляют комплекс мер по их социальной реабилитации.

Являясь промежуточной ступенью между улицей и различными типами воспитательно-образовательных учреждений, СП за время, необходимое для юридического решения дальнейшей судьбы ребенка, должны обеспечивать: все типы диагностики физического и психического состояния воспитанника, комплексную медицинскую, психолого-педагогическую, социальную реабилитацию и социально-трудовую адаптацию несовершеннолетних, проживание и коррекционное обучение.

1. ОБЛАСТЬ ПРИМЕНЕНИЯ

1.1. Настоящие «Рекомендации» разработаны для г. Москвы, как дополнение к нормативным документам в строительстве и распространяются на проектирование новых и реконструкцию существующих СП.

1.2. Настоящие «Рекомендации» устанавливают основные положения и требования к размещению, участку, территории, архитектурно-планировочным решениям и инженерному оборудованию СП.

1.3. Проектирование СП должно вестись в соответствии с положениями настоящих «Рекомендаций», а также требованиями нормативно-методических документов в строительстве, действующих на территории г. Москвы.

2. НОРМАТИВНЫЕ ССЫЛКИ

В настоящих Рекомендациях приведены ссылки на следующие нормативно-методические документы:

2.1. СНиП 10.01-94. «Система нормативных документов в строительстве. Основные положения».

2.2. СНиП 2.08.02-89* «Общественные здания и сооружения».

2.3. СНиП 21-01-97* «Пожарная безопасность зданий и сооружений».

2.4. СНиП 2.07.01-89* «Градостроительство. Планировка и застройка городских и сельских поселений».

2.5. СНиП 2.04.09-84 «Пожарная автоматика зданий и сооружений».

2.6. СНиП 2.04.05-91 «Отопление, вентиляция и кондиционирование воздуха».

2.7. СП 2.4.2.782-99 «Гигиенические требования к условиям обучения школьников в различных видах современных общеобразовательных учреждений».

2.8. СП 2.2.1/2.1.1.1076-01 «Гигиенические требования к инсоляции и солнцезащите помещений жилых и общественных зданий и территорий».

2.9. СН 441-72* «Указания по проектированию ограждений площадок и участков предприятий, зданий и сооружений».

2.10. МГСН 4.06-96 «Общеобразовательные учреждения».

2.11. МГСН 4.15-98 «Общеобразовательные учреждения для детей-сирот и детей, оставшихся без попечения родителей».

2.12. МГСН 1.01-99 «Нормы и правила проектирования, планировки и застройки г. Москвы».

2.13. МГСН 4.12-97 «Лечебно-профилактические учреждения»

2.14. МГСН 2.06-99 «Естественное, искусственное и совместное освещение».

2.15. МГСН 2.05-99 «Инсоляция и солнцезащита».

2.16. МГСН 2.01-99 «Энергосбережение в зданиях».

2.17. МГСН 4.07-96 «Дошкольные учреждения».

2.18. «Рекомендации по проектированию образовательных учреждений для детей, нуждающихся в психолого-педагогической и медико-социальной помощи», М., 2000 г.

2.19. «Рекомендации по проектированию сети и зданий детских внешкольных учреждений для г. Москвы», М, 1997 г.

3. ОБЩИЕ ПОЛОЖЕНИЯ

3.1. Назначением СП является оказание социальной поддержки безнадзорным и беспризорным детям и подросткам, организация их временного проживания, оказание правовой, медицинской, психологической, педагогической помощи, дальнейшее жизнеустройство.

3.2. Основными направлениями деятельности СП являются:

- выявление безнадзорных и беспризорных детей и подростков, оставшихся без попечения родителей;

- обеспечения временного проживания безнадзорных и беспризорных несовершеннолетних;

- осуществление медико-психологической, социально-психологической и психолого-педагогической диагностики, направленной на определение форм и степени их социальной дезадаптации;

- организация индивидуальных психо-коррекционных мероприятий;

- организация мероприятий по социально-педагогической реабилитации;

- оказание помощи подросткам в профориентации и трудовой адаптации;

- организация мероприятий по культурно-эстетическому и физическому воспитанию;

- организация мероприятий, направленных на обеспечение защиты юридических прав и законных интересов безнадзорных и беспризорных несовершеннолетних;

- организация мероприятий, направленных на дальнейшее устройство несовершеннолетних, оставшихся без попечения родителей или законных представителей.

3.3. Деятельность СП определяется следующими принципами:

- возможность оперативной корректировки содержания, форм и методов диагностики, коррекции, реабилитации и адаптации в соответствии с индивидуальными особенностями детей и подростков;

- системность и ситуативность подходов к процессам реабилитации, образования, воспитания, оздоровления и развития детей и подростков;

- последовательность и неуклонность в юридической защите прав и интересов, а также судьбы ребенка и возвращением его обществу.

3.4. Контингент воспитанников СП составляют беспризорные и безнадзорные дети и подростки в возрасте от 3 до 18 лет:

- оставшиеся без попечения родителей или законных представителей опеки;

- проживающие в семьях, находящихся в социально опасном положении;

- самовольно оставившие семью, ушедшие из образовательных учреждений для детей-сирот и детей, оставшихся без попечения родителей или других детских учреждений, за исключением лиц, самовольно ушедших из специальных учебно-воспитательных учреждении закрытого типа;

- не имеющие места жительства, места пребывания и (или) средств к существованию;

- заблудившиеся или подкинутые;

- оказавшиеся в иной трудной жизненной ситуации и нуждающиеся в социальной помощи и (или) реабилитации.

В СП не могут быть помещены несовершеннолетние, страдающие алкоголизмом, наркоманией, психически больные с выраженными симптомами болезни, и лица, совершившие преступления. В случае выявления указанных патологий в период нахождения в СП несовершеннолетние помещаются в соответствующие лечебно-профилактические учреждения органов здравоохранения или в воспитательные учреждения органов внутренних дел.

3.5. Воспитанники находятся в СП в течение 6 месяцев, в отдельных случаях (невозможности быстрого решения всех юридических и моральных проблем) этот срок может быть увеличен на время, необходимое для решения вопросов их дальнейшего устройства в соответствии с действующим законодательством. Из указанного срока 1 месяц воспитанники проводят в приемном отделении.

3.6. СП должно быть полностью рассчитано на использование внутренней инфраструктуры. Его воспитанники не могут посещать общеобразовательные учреждения, учреждения дополнительного образования, УПК, культурно-массовые и спортивные, и т.п. Функции этих учреждений должны быть обеспечены в СП за счет соответственной расширенной номенклатуры помещений.

3.7. Оптимальной вместимостью СП является 70 мест, в том числе 20 мест - приемное отделение, 50 мест - стационарное отделение.

3.8. Состав и площади помещений СП должны определяться в соответствии с Разделом 5 настоящих Рекомендаций и уточняются в каждом конкретном случае заданием на проектирование.

4. ТРЕБОВАНИЯ К РАЗМЕЩЕНИЮ, УЧАСТКУ И ТЕРРИТОРИИ

4.1. СП следует размещать в периферийной зоне города.

4.2. Размеры и составы зон участков определяются заданием на проектирование или проектом, с учетом положений настоящего раздела.

4.3. Здания СП следует размещать на обособленных земельных участках. Расстояние от зданий СП до красной линии и от границы земельного участка СП до стен жилых домов следует принимать в соответствии с МГСН 4.06-96.

4.4. Площадь участка СП принимается из расчета 80-120 м2 на 1 место с учетом размещения на участке площадок и сооружений оздоровительного и досугового характера.

4.5. В составе территории участка СП предусматриваются следующие зоны:

- общественная и проживания;

- физкультурно-оздоровительная;

- изолятора;

- приемного и карантинного отделения;

- хозяйственная.

4.6. В зоне размещения функциональных блоков общественного назначения и проживания у главного входа рекомендуется предусматривать мощеную площадку для массовых сборов воспитанников.

4.7. В физкультурно-оздоровительной зоне рекомендуется предусматривать игровые и спортивные площадки, теневые навесы для отдельных групп детей.

Площадь игровых площадок следует принимать 6-8 м2 на 1 ребенка из расчета одновременного присутствия всех детей дошкольного возраста и 40-50 % детей школьного возраста. Площадки должны иметь травянисто-песчаный покров. Теневые навесы - 2 м2 на 1 место - должны примыкать к игровым площадкам и быть рассчитаны на проведение игр в плохую погоду, а также на возможность проведения занятий с детьми на воздухе. Теневые навесы должны иметь дощатый пол и ветрозащитные стенки с двух-трех сторон.

На игровых площадках для детей дошкольного и младшего школьного возраста рекомендуется предусматривать следующее оборудование: качели, качалки, грибки, скамейки для отдыха, песочные дворики с ящиками для хранения песка, столы для игр с песком, а также оборудования для развития всех основных видов движения (для лазания, скатывания, перелезания).

Для детей среднего и старшего школьного возраста рекомендуется предусматривать: комбинированную площадку для спортивных игр 60´40 м; гимнастическую площадку 15´16 м.

4.8. Площадку для игры с мячом следует располагать на расстоянии не менее 25 м от окон здания, а при наличии ограждения высотой 3 м - не менее 15 м. Площадки для занятий физкультурой - на расстоянии не менее 10 м.

4.9. Изолятор и приемное отделение должны иметь самостоятельные выходы на участок: изолятор - 1 выход, приемное отделение - 2 выхода (для санпропускника и карантинного отделения).

4.10. Изолятор и приемное отделение должны иметь подъездные пути, обеспечивающие возможность проезда специального транспорта для доставки вновь прибывающих детей и эвакуации заболевших.

4.11. В зоне приемного отделения (карантинного отделения) следует предусматривать теневые навесы (2 м2 на 1 место) с примыкающими игровыми площадками (6-8 м2 на 1 место) из расчета одновременного присутствия 50-60 % детей, находящихся в приемном отделении. Зона приемного отделения должна быть удалена от физкультурно-оздоровительной зоны СП и иметь ограждение высотой не менее 2 м.

4.12. Площадь озеленения должна составлять не менее 40 % от общей площади участка в соответствии с СП 2.4.2.782-99. В зеленой зоне рекомендуется предусматривать газоны с низкорастущими декоративными растениями. Учитывая специфику контингента воспитанников, не допускается применение посадок деревьев и кустарников (исключение возможности спрятаться).

4.13. Хозяйственная зона должна иметь отдельный въезд (вход) и размещаться со стороны производственных помещений столовой. На ее территории допускается размещать гараж служебных машин, навесы для инвентаря и оборудования, мусоросборники и т.п.

4.14. Земельный участок СП должен иметь глухое ограждение высотой не менее 2 м с проходной для охраны в соответствии с требованиями СН 441-72*.

4.15. Участок СП должен быть освещен в соответствии с требованиями СНиП 23-05-95.

4.16. На участке СП должно быть предусмотрено не менее двух въездов (один хозяйственный), проезды должны иметь твердое покрытие и ширину не менее 3 м; планировка участка должна обеспечивать подъезды пожарных машин ко всем зданиям, а также объезды вокруг них (СНиП 21-01- 97*).

4.17. Для автомашин сотрудников СП следует предусматривать открытую стоянку в соответствии с требованиями МГСН 1.01-99.

5. ТРЕБОВАНИЯ К АРХИТЕКТУРНО-ПЛАНИРОВОЧНЫМ РЕШЕНИЯМ И ИНЖЕНЕРНОМУ ОБОРУДОВАНИЮ

Общие требования.

5.1. В состав СП входят следующие функциональные группы помещений:

- вестибюльная;

- приемного отделения;

- социально-правовой помощи;

- диагностики социальной дезадаптации;

- проживания (стационарное отделение);

- общего образования и начальной профессиональной подготовки;

- лечебно-реабилитационная (психолого- и медико-коррекционные, медицинские);

- досуговая и физкультурно-оздоровительная;

- изолятора;

- питания;

- административно-бытовая;

- хозяйственного обслуживания.

Архитектурно-планировочные решения СП должны учитывать требования функционального зонирования помещений с учетом осуществляемой в них деятельности.

Различные функциональные группы помещений, рассчитанные на работу с детьми, помимо своих основных функций, должны обеспечивать также коррекционную функцию, что учитывается составом и площадями их помещений и должно быть отражено в архитектурно-планировочных решениях.

5.2. При проектировании помещений СП рекомендуется пользоваться габаритными схемами, приведенными в Приложениях. Рекомендуемые площади помещений в зависимости от конкретных планировочных и конструктивных решений могут быть откорректированы (уменьшены или увеличены) на 15 %.

5.3. Функциональные группы помещений могут размещаться либо в отдельных корпусах или блоках, либо непосредственно примыкающих друг к другу, либо соединенных отапливаемыми переходами. Учитывая специфику контингента воспитанников, необходимо предусмотреть возможность полной изоляции отдельных блоков. В случае непосредственного примыкания корпусов (блоков) должны предусматриваться пожарные отсеки площадью не более 5000 м2, разделяемые противопожарными стенами 1-го типа (в соответствии с требованиями СНиП 2.08.02-89*), а из каждого пожарного отсека должно быть предусмотрено не менее двух эвакуационных выходов, один из входов допускается предусматривать в соседний блок.

5.4. Здания СП не должны превышать 3 этажей (СП 2.4.2.782-99, п. 2.3.4.).

5.5. Объемно-планировочная структура здания должна обеспечивать оптимальные условия осуществления протекающих в нем функциональных процессов, отражать специфику учреждения и обеспечивать комфортные условия эксплуатации и необходимую связь с участком.

5.6. Ширина лестничных маршей должна быть не менее 1,35 м. Лестничные марши и площадки должны иметь защитное ограждение на всю высоту. Лестничные марши должны быть оборудованы поручнями на разной высоте (0,9 м и 0,7-0,75 м) в соответствии с положениями Пособия к МГСН 4.05-95.

Ширину дверей основных помещений следует принимать не менее 1 м.

Ширину коридоров в группах помещений административно-бытового, методического и хозяйственного назначения следует принимать не менее 1,4 м; а во всех группах помещений, рассчитанных на работу с детьми - не менее 2,2 м.

Ширина рекреационных помещений должна приниматься не менее 4 м.

5.7. Высота наземных этажей здания СП должна быть не менее 3,3 м (от пола до пола вышележащего этажа). Высота зрительного зала принимается не менее 3,6 м, высота спортзала - 6 м (до низа несущих конструкций).

5.8. Внутренняя отделка помещений СП должна быть выполнена из материалов, разрешенных для применения органами Госсанэпиднадзора Минздрава РФ, допускающих влажную уборку, а также применение дезинфицирующих средств.

5.9. Все помещения групп общего образования, начальной профессиональной подготовки и лечебно-реабилитационных помещений, рассчитанные на пребывание детей, должны быть оборудованы умывальниками.

5.10. В помещениях рекреаций, фойе, и холлах рекомендуется организовывать уголки релаксации с зелеными насаждениями, фонтанчиками, аквариумами и т.д.

5.11. Естественное освещение в помещениях следует проектировать в соответствии с требованиями МГСН 2.06-99.

5.12. Все основные учебные помещения и помещения начальной профессиональной подготовки должны иметь КЕО не менее 1,5 на поверхности столов и освещаться боковым с левой стороны светом. Для организации мобильных форм ведения занятий необходимо предусматривать равномерное освещение по всей рабочей плоскости в помещении за счет дополнительного верхнего света или дополнительного искусственного освещения в глубине помещения.

5.13. Допускается не предусматривать естественного освещения:

- в зрительном зале, в конференц-зале;

- в коммуникациях и коридорах, не являющихся рекреационными помещениями;

- в умывальных, душевых и уборных при спортивном зале, санитарных узлах для персонала, комнатах личной гигиены женщин;

- в радиоузле;

- в буфете для персонала;

- в кладовых инвентаря, комнатах хранения предметов уборки;

- в помещениях технических служб.

В зависимости от архитектурно-планировочного решения допускается проектировать с искусственным освещением санитарные узлы для детей и подростков (при соблюдении необходимой кратности обмена воздуха).

5.14. Санитарные узлы и туалетные комнаты в СП проектируются с учетом специфики работы каждого подразделения в соответствии с действующими нормативными документами: МГСН 4.15-98, МГСН 4.06-96, МГСН 4.07-96, СП 2.4.2.782-99.

Общий расчет количества санитарных узлов СП принимается в соответствии с «Рекомендациями по проектированию образовательных учреждений для детей, нуждающихся в психолого-педагогической и медико-социальной помощи» Общее количество санитарных приборов принимается из расчета: на каждые 20 мест по два унитаза для мальчиков и для девочек, 2 писсуара в уборной для мальчиков, 1 умывальник на каждые 30 мальчиков и 30 девочек.

Учитывая специфику контингента воспитанников, размещение санитарных приборов осуществляется только в общих санитарных узлах в открытых кабинах.

5.15. В комнатах хранения уборочного инвентаря следует предусматривать умывальник и слив.

5.16. Инсоляцию помещений, в которых находятся дети, следует предусматривать в соответствии с требованиями МГСН 4.06-96 и СП 2.2.1/2.1.1.1076-01.

5.17. Отопление и вентиляцию зданий следует проектировать в соответствии с требованиями СНиП 2.04.05-91*, МГСН 4.06-96, МГСН 2.01-99.

5.19. Энергоснабжение, электрооборудование, электрическое освещение здания и наружное освещение территории следует предусматривать в соответствии с требованиями МГСН 2.06-99 , МГСН 4.06-96, МГСН 2.01-99.

5.20. Здания должны проектироваться с учетом максимального энергосбережения в соответствии с требованиями МГСН 2.01-99.

5.21. Здания следует проектировать не менее II степени огнестойкости в соответствии с СНиП 21-01-97*.

5.22. В зданиях должна быть предусмотрена автоматическая пожарная сигнализация в соответствии с требованиями СНиП 2.04.09-84. Перечень помещений, в которых необходимо предусматривать автоматическую пожарную сигнализацию, следует определять в соответствии с МГСН 4.06-96 и МГСН 4.15-98. Сигнал о срабатывании системы АПС (автоматической пожарной сигнализации) выводится в помещение с круглосуточным пребыванием персонала.

5.23. На путях эвакуации из здания должно быть предусмотрено аварийное и эвакуационное освещение, проектируемое в соответствии с требованиями СНиП 21-01-97* и СНиП 23-05-95.

Вестибюльная группа помещений

5.24. Рекомендуемый состав помещений вестибюльной группы СП приведен в таблице 5.1.

5.25. Гардероб для верхней одежды персонала и посетителей рекомендуется предусматривать в отдельном помещении при вестибюле.

5.26. В состав вестибюльной группы рекомендуется включать комнату свиданий воспитанников с посетителями с остекленным проемом в стене, смежной с коридором для организации наблюдения.

5.27. В помещениях приемного отделения (карантинного отделения) следует предусматривать вестибюль, площадью не менее 30 м2.

5.28. В составе оборудования гардероба для детей при карантинном отделении рекомендуется предусматривать сушильные шкафы для одежды и обуви с подогревом и вытяжкой, а также вешалки консольного типа.

5.29. При входах в здание следует предусматривать тамбуры.

Таблица 5.1.

Рекомендуемые состав и площади помещений вестибюльной группы.

№№

п.п.

Наименование помещений

Площадь помещений, м2

Примечание

Ha 1 место

Всего

1.

Вестибюль

0,5

-

С учетом численности персонала и посетителей

2.

Гардероб для верхней одежды персонала и посетителей

0,1

-

 

3.

Комната свиданий с посетителями

-

12

 

4.

Помещение дежурного администратора

-

10

В ночное время используется для вахтера

5.

Санитарный узел с умывальником в шлюзе

-

3

 

6.

Комната хранения предметов уборки

-

4

 

Группа помещений приемного отделения.

5.30. Состав и площади помещений приемного отделения приведены в таблице 5.2.

5.31. Назначение приемного отделения:

- уточнение личности несовершеннолетнего, места проживания его родителей или лиц их заменяющих, места его обучения;

- извещение родителей или лиц, их заменяющих, директора учебного или интернатного учреждения о месте нахождения несовершеннолетнего;

- проведение первичного медицинской диагностики (определение состояния здоровья ребенка и необходимых мероприятий по нормализации психического и физического состояния воспитанника, а также профилактических мероприятий), направление при наличии показаний на лечение в стационарное медицинское учреждение;

- проведение первичной психолого-медико-педагогической диагностики (определение социального диагноза и возможных путей психологической реабилитации, а также индивидуального подхода для полноценного развития личности каждого воспитанника);

- оказание первичной психологической помощи (ослабление психического напряжения у детей, преодоление острой кризисной ситуации).

5.32. Группу помещений приемного отделения следует размещать в отдельном блоке, который соединяется с остальными помещениями СП через специальный тамбур-шлюз, или в отдельном корпусе. В тамбуре-шлюзе следует размещать умывальник и вешалку для смены халатов.

5.33. Помещения приемного отделения должны быть разделены на две зоны:

- санитарного пропускника;

- карантинного отделения.

В каждую из этих зон необходимо предусматривать отдельный вход с участка. Друг с другом зоны необходимо соединять через переходный тамбур-шлюз. Причем, связь помещений санпропускника с другими помещениями СП возможна только через помещения карантинного отдаления.

5.34. Функционально-планировочная схема и взаимосвязь помещений приемного отделения представлены на Рис. 1.

5.35. Карантинное отделение состоит из двух жилых секций (для мальчиков и для девочек) по 10 чел. и общих помещений: медицинских, психо-коррекционных, столовой и хозяйственных помещений кухни. Следует предусмотреть возможность полной изоляции каждой секции.

5.36. В спальных комнатах карантинного отделения необходимо предусматривать остекленный проем в стене, смежной с коридором, для наблюдения за воспитанниками.

5.37. Спальные комнаты рекомендуется оборудовать только кроватями и стульями.

5.38. Санитарные узлы и душевые рекомендуется предусматривать на каждую секцию отдельно. В состав санитарного узла следует включать: унитаз и умывальник. В состав душевой следует включать: душ и умывальник. В секции для мальчиков в состав оборудования санитарного узла следует включать писсуар; а в секции для девочек - биде.

5.39. В состав карантинного отделения входят кабинет психотерапевта, который рассчитан на проведение индивидуальных психо-коррекционных занятий. Основная функция данного кабинета - оказание первичной психологической помощи.

РИС. 1. ФУНКЦИОНАЛЬНО-ПЛАНИРОВОЧНАЯ СХЕМА И ВЗАИМОСВЯЗЬ ПОМЕЩЕНИЙ ПРИЕМНОГО ОТДЕЛЕНИЯ

Таблица 5.2.

Рекомендуемые состав и площади группы помещений приемного отделения.

№№

п.п.

Наименование помещений

Площадь помещений, м2

Примечания

А. Санпропускник.

1.

Приемная

12

 

2.

Смотровая с первичной обработкой

12

 

3.

Одевальная для мальчиков и для девочек

6´2

 

4.

Кабинет врача для первичного осмотра

14

 

5.

Лаборатория экспрессанализов

12

 

6.

Душевая для мальчиков и для девочек

4´2

В состав оборудования входит: ванна, умывальник

7.

Санузлы для мальчиков и для девочек с умывальниками

3´2

В состав оборудования входит: 1 унитаз, 1 умывальник

8.

Санузел персонала с умывальником

3

 

9.

Комната хранения предметов уборки

4

 

10.

Дезкамера

4

Может размещаться в подвале, оборудуется принудительной вентиляцией

11.

Помещение для утилизации волос и одежды

6

Может размещаться в подвале, оборудуется вытяжкой и принудительной вентиляцией

Б. Карантинное отделение

1. Жилая секция на 10 чел. (2 секции)

1.

Спальные комнаты:

 

 

 

- на 1 место

6

 

 

- на 4 места

16

 

 

- на 5 мест

20

 

2.

Игровая

36

 

3.

Комната приготовления уроков

36

 

4.

Душевая

4

В состав оборудования входят: душ, умывальник

5.

Санузел

4

В состав оборудования входят: унитаз, умывальник, писсуар или биде

6.

Комната дежурного воспитателя с санузлом в шлюзе

10+3

 

2. Общие помещения

1.

Кабинет заведующего отделением

14

 

2.

Кабинет врача-консультанта

14

 

3.

Процедурная

12

 

4.

Кабинет психотерапевта

14

 

5.

Комната дежурной медицинской сестры

10

 

6.

Столовая

36

 

7.

Буфетная

8

 

8.

Моечная посуды

4

 

9.

Санузел персонала с умывальником

3

 

10.

Комната хранения предметов уборки

4

 

Группа помещений отделения социально-правовой помощи.

5.40. Рекомендуемый состав и площади помещений отделения социально-правовой помощи приведены в таблице 5.3.

5.41. Основное назначение отделения - оказание содействия в дальнейшем жизненном устройстве несовершеннолетних, проживающих в СП, т.е. возвращение в семью, интернатное учреждение, оформление, документов на передачу под опеку, на попечение и т.д.

5.42. Отделение социально-правовой помощи рассчитано на проведение мероприятий, направленных на:

- коррекцию семейных отношений, в т.ч. разрешение кризисных ситуаций в семье;

- при невозможности преодоления дисфункциональности семьи, содействие в образовании опекунской семьи;

- организацию коммуникативной среды для адаптации потенциальных опекунов и несовершеннолетних;

- при невозможности создания опекунской семьи, содействие в переводе воспитанника в интернатное учреждение;

- оказание юридической помощи и содействие правовой защите несовершеннолетних.

5.43. Отделение социально-правовой помощи рекомендуется размещать непосредственно при вестибюльной группе помещений.

5.44. Все кабинеты специалистов рассчитаны на работу с детьми и родителями (опекунами). Рекомендуемый состав оборудования: стол специалиста, компьютерный стол, стеллажи, журнальный столик с 4 креслами.

5.45. В состав отделения входят помещения «Родительского клуба». Основное назначение его - создание условий для общения и адаптации опекунов и несовершеннолетних. Рекомендуемый состав оборудования: обеденный стол со стульями, шкаф с посудой, уголок отдыха с мягкой мебелью, подсобный столик с микроволновой печью и чайником, раковина. «Родительский клуб» рассчитан на пребывание группы до 6 чел. При «Родительском клубе» следует предусматривать лаборантскую с зеркалом «гезелла» в стене, смежной с основным помещением, для скрытого наблюдения.

Таблица 5.3.

Рекомендуемые состав площади помещений социально-правовой помощи

№№

п.п.

Наименование помещений.

Площадь помещения, м2

Примечания

1.

Кабинет заведующего отделением

14

 

1.

Кабинет психолога

18

Приложение, Рис. П.1.

2.

Кабинет юриста

18

 

3.

Кабинет специалиста по восстановительному правосудию

18

 

4.

Родительский клуб с лаборантской

36+9

Приложение, Рис. П.2.

5.

Архив

12

 

6.

Санитарный узел с умывальником

3

 

Помещения диагностики социальной дезадаптации.

5.46. Рекомендуемый состав и площади помещений диагностики социальной дезадаптации приведены в таблице 5.4.

5.47. Группа помещений диагностики социальной дезадаптации обеспечивает проведение мероприятий, направленных на:

- диагностику психофизического развития воспитанника;

- выявление формы и степени социальной дезадаптированности;

- проведение психолого-педагогической диагностики с целью установления уровня обученности и соответствия заявленному году обучения.

5.48. Группа помещений диагностики обслуживает как карантинное, так и стационарное отделения,

5.49. Кабинеты диагностики рассчитаны на проведение индивидуальной работы. Рекомендуемый состав оборудования кабинетов: стол специалиста, компьютерный стол, стеллажи, уголок индивидуальной психотерапии (2 кресла и журнальный столик).

Таблица 5.4.

Рекомендуемые состав в площади помещений диагностики социальной дезадаптации.

№№

п.п.

Наименование помещений.

Площадь помещений, м2

Примечания.

1.

Кабинет заведующего отделением

16

 

2.

Кабинет социального педагога

16

 

3.

Кабинет специалиста по социальной работе

16

 

4.

Кабинет психолога

16

 

5.

Кабинет психофизиологического тестирования

22

 

Помещения проживания (стационарное отделение).

5.50. Рекомендуемые состав и площади помещений проживания приведены в таблице 5.5.

5.51. Помещения проживания рекомендуется проектировать в виде изолированных секций, организованных по половозрастному принципу, а также степени социальной адаптированности воспитанников:

- группы для детей младшего возраста (от 3 до 9 лет);

- группы для детей среднего и старшего возраста (от 10 до 18 лет);

- группы, организованные по «семейному» принципу.

Первые две группы организованы по половозрастному принципу. Третья группа - для детей разного возраста, психологически готовых к проживанию в семье.

5.52. В соответствии с возрастом и степенью социальной адаптации рекомендуется три основных типа жилых секций:

1. тип дошкольного учреждения, когда все помещения секции образуют единый блок (для детей от 3 до 9 лет);

2. тип коридорной системы, когда спальни с другими помещениями жилой ячейки связаны через коридор (для подростков от 10 до 18 лет);

3. тип «квартирный», когда жилые помещения проектируются для группы детей, образующих «семью». В этом случае группа детей может быть как одновозрастная, так и разновозрастная.

5.53. Рекомендуемая вместимость жилых секций первого и второго типа составляет 10 чел., третьего типа - 5 чел.

5.54. При организации жилых секций следует предусмотреть возможность их полной изоляции.

5.55. Входы в помещения жилых групп всех типов, в том числе и «семейных», рекомендуется организовывать через раздевальные.

В случае если входы в группы жилых помещений предусматриваются через общий вестибюль, раздевальные должны быть предусмотрены при нем. Они располагаются в открытых помещениях, выделенных оборудованием.

Раздевальные следует оборудовать сушильными шкафами для одежды и обуви с подогревом и вытяжкой, а также секционными шкафами для хранения детской одежды и обуви.

5.56. Санитарные узлы в жилых секциях, проектируемых по принципу дошкольного учреждения, размещаются в туалетной, смежной с групповой. В состав санитарного узла входят: два унитаза в кабинках, огороженных экранами, один душевой рожок с поддоном, две ногомойки, шкаф для хранения горшков, поддон для мойки горшков.

5.57. В жилых секциях, проектируемых по коридорному типу, санитарные узлы и душевые организуются на секцию. Рекомендуемый состав оборудования санитарного узла: унитаз и умывальник. Рекомендуемый состав оборудования душевой: душ и умывальник. В секции для мальчиков в состав оборудования санитарного узла следует включать писсуар. В секции для девочек - кабину личной гигиены (умывальник и биде).

5.58. В группах, комплектуемых по «семейному» принципу, санитарные узлы предусматриваются общими на квартиру. В состав оборудования санитарного узла входят: унитаз и умывальник. В состав оборудования туалетной входят: унитаз, умывальник, душ.

5.59. Во всех секциях следует предусмотреть возможность организации одной одноместной спальной комнаты, что объясняется наличием в контингенте воспитанников детей с выраженной акцентуацией характера и агрессивностью поведения.

5.60. В спальных комнатах всех типов должны быть предусмотрены незакрывающиеся дверные проемы с целью организации постоянного наблюдения за воспитанниками.

5.61. В состав оборудования спальных комнат рекомендуется включать только кровати и стулья.

5.62. В состав секций 1 и 2 типа следует включать кабинет индивидуальной работы с ребенком для проведения занятия с логопедом, дефектологом, психотерапевтом. Рекомендуемый состав оборудования кабинета: стол специалиста, два кресла, журнальный столик.

5.63. Помещения игровых и групповых должны быть приспособлены к проведению групповых психо-коррекционных занятий (ситуационных игр, «лего» и т.п.), для этого в состав оборудования должен входить стол длиной 2 м.

5.64. Секции, проектируемые по «семейному» принципу, организуются для выпускников приютов, прошедших коррекционно-психологическую реабилитацию. Этот тип проживания является оптимальным для дальнейшей адаптации детей в общество (возвращение в родную семью или дальнейшее воспитание в «замещающей семье»).

Для повышения эффективности социальной адаптации детей в «семейной» жилой секции, мебель и оборудование ее должны быть максимально приближены к «домашнему» варианту.

5.65. Питание для детей, проживающих в «семейной» секции организуется непосредственно в группе, для чего в состав помещений следует включать столовую с кухней-нишей, оборудование которой составляют: мойка, разделочный стол, шкаф для хранения посуды, электрическая плита для подогрева пищи. Подобное решение жилой секции дает возможность провести весь комплекс мероприятий по социально-бытовой реабилитации воспитанников.

Таблица 5.5.

Рекомендуемые состав и площади помещений проживания.

№№

п.п.

Наименование помещений

Площадь помещений, м2

Примечания

1. Жилая секция по типу дошкольного учреждения.

1.

Спальная на 9 мест

36

Приложение, Рис. П.3.

2.

Спальная на 1 место

6

-²-

3.

Групповая

36

Приложение, Рис. П.4.

4.

Кабинет индивидуальной работы с ребенком

16

 

5.

Комната дежурного воспитателя с санитарным узлом в шлюзе

10+3

Состав оборудования: унитаз, умывальник, душ

6.

Санитарный узел для детей

20

 

7.

Комната хранения предметов уборки

4

 

2. Жилая секция по типу коридорной системы.

1.

Спальная на 5 мест

20

Приложение, Рис. П.5.

2.

Спальная на 4 места

16

-²-

3.

Спальная на 1 место

6

-²-

4.

Игровая

36

Приложение, Рис. П.6.

5.

Комната приготовления уроков

36

-²-

6.

Кабинет индивидуальной работы с ребенком

16

 

7.

Санитарный узел для детей

3

 

8.

Кабина личной гигиены для девочек

2

 

9.

Душевая

4

 

10.

Комната дежурного воспитателя с санитарным узлом в шлюзе

10+3

Состав оборудования: унитаз, умывальник, душ

11.

Комната хранения предметов уборки

4

 

3. Жилая секция по типу квартиры.

1.

Спальная на 4 мест

16

 

2.

Спальная на 1 место

6

 

3.

Игровая

36

 

4.

Гостиная

36

 

5.

Столовая с кухней-нишей

20+5

 

6.

Комната «мамы»

10

 

7.

Санузел

2

 

8.

Туалетная

4

 

Помещения общего образования и начальной профессиональной подготовки.

5.66. Рекомендуемые состав и площади помещений общего образования и начальной профессиональной подготовки приведены в таблице 5.6.

5.67. Данная группа помещений обеспечивает проведение мероприятий, направленных на:

- обучение по образовательным программам в соответствии с возрастными и индивидуальными особенностями детей и подростков, на уровне, предусмотренном законом «Об образовании»;

- психолого-педагогическую помощь в усвоении образовательных программ;

- дополнительное образование по интересам (кружки);

- социальное образование детей с отклонениями в развитии;

- начальное профессиональное образование;

- трудовую терапию и привитие устойчивых навыков к труду;

- социально-бытовую адаптацию и привитие навыков самостоятельного жизнеобеспечения.

5.68. Наполняемость классов и мастерских принимается в соответствии с «Рекомендациями по проектированию образовательных учреждений для детей, нуждающихся в психолого-педагогической и медико-социальной помощи» - 9 чел.

5.69. В составе помещений общего образования и начальной профессиональной подготовки следует предусматривать рекреации с живыми уголками из расчета 1,2 м2 на 1 учащегося.

5.70. Во всех классах, кроме специализированных кабинетов, рекомендуется предусматривать зону психологической разгрузки из расчета 10 % общей площади класса, на которых следует располагать ковер и мягкую мебель.

5.71. Количество неспециализированных классных помещений определяется в каждом конкретном случае заданием на проектирование.

5.72. В состав помещений общего образования входит библиотека площадью 90 м2 с читальным залом и книгохранилищем.

5.73. Проектирование санитарных узлов при учебных помещениях осуществляется в соответствии с МГСН 4.06-96.

5.74. Состав и профиль мастерских начальной профессиональной подготовки и кружковых помещений в каждом конкретном случае уточняются заданием на проектирование.

Номенклатура видов начальной профессиональной подготовки должна быть расширенной, предоставляющей возможность подбирать каждому ребенку занятия, соответствующие его склонностям.

5.75. Учитывая специфику контингента воспитанников, планировка мастерских для занятий, проведение которых связано с использованием ценного оборудования, должна обеспечивать выделение двух зон доступности:

- зону занятий с руководителем;

- зону ограниченной доступности (хранения ценного оборудования, сырья, изделий).

5.76. При помещениях начальной профессиональной подготовки следует предусматривать кладовые для хранения материалов и готовых изделий.

5.77. Мастерские следует оборудовать шкафами для хранения спецодежды.

Вентиляцию помещений начальной профессиональной подготовки, в частности с процессами обучения, связанными с выделением химических веществ и пыли (мастерские радиотехники, электроники, монтажные и др.) следует предусматривать в соответствии со СНиП 2.04.05-91*.

5.78. В связи с тем, что у воспитанников СП полностью отсутствуют элементарные навыки ведения домашнего хозяйства, кулинарная мастерская является обязательной и должна включать в свой состав две зоны: зону производства и зону «чаепития». В оборудование первой зоны входят разделочные столы, плита, холодильник, шкаф сухих продуктов, шкаф кухонной посуды, мойка. Оборудование второй зоны составляют обеденный стол со стульями, шкаф с чайной посудой.

Таблица 5.6.

Рекомендуемые состав площади помещений общего образования и начальной профессиональной подготовки.

№№

п./п.

Наименование помещений

Площадь помещений, м2

Примечания

Ha 1 учащегося

Всего

А. Помещения общего образования.

1.

Класс с уголком релаксации

5,5

50

Приложение, Рис. П.7.

2.

Кабинет занятий физикой и химией с двумя лаборантскими

5,0

45

14´2

Приложение, Рис. П.8.

3.

Компьютерный класс

5,5

50

Приложение, Рис. П.9.

4.

Класс рисования - изостудия с кладовой

-

38+14

Приложение, Рис. П.10.

5.

Библиотека с книгохранилищем и читальным залом

-

90

 

6.

Рекреационный холл с живым уголком

1,2

-

 

7.

Санитарные узлы для мальчиков и девочек с умывальниками в шлюзе

 

16´2

 

Б. Помещения начальной профессиональной подготовки.

1.

Мастерские начальной профессиональной подготовки с кладовыми

7,5

68+12

3 мастерские

2.

Кружковые комнаты

5,0

-

3 помещения Приложение, Рис. П.11

3.

Кулинария

4,5

-

Приложение, Рис. П.12

4.

Театрально-художественная мастерская с кладовой

-

49+15

 

5.

Кинофотолаборатория

-

18

 

6.

Комната музыкальных занятий с кладовой инструментов

-

32+14

Приложение, Рис. П.13.

7.

Санитарные узлы для мальчиков и девочек с умывальниками в шлюзе

-

16´2

 

8.

Санитарный узел персонала с умывальником

-

3

 

9.

Комната хранения предметов уборки

-

4

 

Лечебно-реабилитационные помещения (психолого- и медико-коррекционные, медицинские).

5.79. Рекомендуемые состав и площади лечебно-реабилитационных помещений приведены в таблице 5.7. Состав, количество кабинетов и их площади должны уточняться заданием на проектирование в каждом конкретном случае.

5.80. Группа лечебно-реабилитационных помещений предназначена для проведения мероприятий, направленных на:

- лечение, оздоровление и профилактику физических и психических заболеваний у воспитанников;

- нормализацию психического состояния воспитанников;

- преодоление отклонений в эмоционально-волевой сфере детей;

- социально-средовую адаптацию детей.

5.81. Медицинские помещения следует проектировать с учетом положений МГСН 4.12-97 и Пособия по проектированию учреждений здравоохранения к СНиП 2.08.02-89*. Все помещения данной группы рассчитаны на индивидуальную работу с воспитанниками.

5.82. Психолого-коррекционные помещения предназначены для проведения мероприятий, направленных на:

- индивидуальную психологическую коррекцию;

- преодоление социальной дезадаптации.

5.83. В состав оборудования кабинета групповой психотерапии рекомендуется включать кресла, журнальный столик, компьютерный стол специалиста. Кабинет рассчитан на проведение занятий группы из 9 чел.

5.84. Кабинет социального педагога рассчитан на проведение занятий с детской группой из 3 чел. Данный кабинет представляет собой классное помещение с уголком релаксации.

5.85. Кабинет релаксации рассчитан на проведение индивидуальной психотерапевтической коррекции. В состав оборудования его рекомендуется включать мягкую мебель (кресло или диван), светомузыкальную установку, аквариум с рыбками, зеленый уголок.

5.86. Группа медико-коррекционных помещений рассчитана на профилактику соматических заболеваний у воспитанников и общее укрепление организма.

5.87. Кабинет групповых занятий ЛФК рассчитан на проведение занятий в группе из 9 чел.

Таблица 5.7.

Рекомендуемые состав и площади лечебно-реабилитационных помещений (психолого- и медико-коррекционных, медицинских).

№№

п.п.

Наименование помещений

Площадь помещений, м2

Примечания

А. Медицинские помещения.

1.

Кабинет врача - педиатра

14

 

2.

Кабинет дефектолога

14

 

3.

Кабинет нарколога

14

 

4.

Кабинет медицинской сестры

14

 

5.

Процедурная

18

 

Б. Психолого-коррекционные помещения

1.

Кабинет психолога

14

 

2.

Кабинет групповой психотерапии

44

Приложение, Рис. П.14.

3.

Кабинет социального педагога

26

Приложение, Рис. П.15.

4.

Кабинет релаксации

12

 

В. Медико-коррекционные помещения.

1.

Фитокабинет с кладовой

14+6

 

2.

Ингаляторий на 3 места со стерилизационной

15

 

3.

Кабинет физиотерапии с подсобной комнатой

24+8

 

4.

Кабинет групповых занятий ЛФК с кладовой и раздевалкой

60+6+8

Приложение, Рис. П.16.

5.

Кабинет массажа на 1 место

8

 

6.

Санузлы для мальчиков и для девочек с умывальниками в шлюзе

16´2

 

7.

Санузел персонала с умывальником

3

 

8.

Комната хранения предметов уборки

4

 

Досуговые и физкультурно-оздоровительные помещения

5.88. Рекомендуемый состав и площади досуговых и физкультурно-оздоровительных помещений приведены в таблице 5.8.

5.89. Эта группа помещений обеспечивает проведение мероприятий, направленных на:

- формирование у детей и подростков потребности в групповом и межличностном общении;

- физическое развитие, предоставление позитивной возможности дать выход своей энергии.

5.90. Актовый зал рекомендуется проектировать на 120 % вместимости стационарного отделения (в расчете на персонал и гостей).

5.91. При актовом зале рекомендуется предусматривать фойе - зимний сад, который может быть также использован для музея детских поделок.

5.92. Спортивный зал рекомендуется размещать не выше второго этажа. Не допускается предусматривать проходы в спортивные помещения через жилые и учебные секции. Вход в спортивный зал из раздевальных предусматривается непосредственно или через обособленный коридор.

5.93. Снарядная должна соединяться со спортивным залом через дверь или открытый проем шириной не менее 2 м и высотой не менее 2,2 м. Длина снарядной из условий хранения гимнастического бревна должна быть не менее 5 м. Пол снарядной должен быть в одном уровне с полом спортивного зала (без порога).

5.94. В этой группе рекомендуется дополнительно предусматривать помещения для хранения лыж и велосипедов, необходимость и площади которых определяются заданием на проектирование.

Таблица 5.8.

Рекомендуемые состав и площади досуговых и физкультурно-оздоровительных помещений

№№

п.п.

Наименование помещений

Площадь помещений, м2

Примечания

На 1 место

всего

I. Досуговые помещения

1.

Актовый зал

1,0

-

Используется также для занятий театральной студии

2.

Эстрада при зале

-

-

Глубина эстрады - 3,5-4 м

3.

Кинопроекционная с перемоточной и радиоузлом

-

26

 

4.

Фойе - Зимний сад

0,9

-

На 1 место в зале. Используется для организации музея детских поделок.

5.

Санитарные узлы для мальчиков и девочек с умывальником в шлюзе при фойе

-

16´2

 

6.

Помещение для артистов

-

15´2

 

7.

Фильмовидеотека

-

8

 

8.

Помещение пожарного поста

-

10

 

9.

Кладовая мебели и реквизита

-

20

 

10.

Кладовая аппаратуры

-

10

 

II. Физкультурно-оздоровительные помещения

1.

Спортивный зал 12´24 м

-

288

 

2.

Снарядная

-

16

Смежно со спортивным залом

3.

Раздевальные для девочек и для мальчиков с душевыми и санитарными узлами

-

24´2

 

4.

Комната инструкторов-методистов с санузлом в шлюзе

-

10+3

 

5.

Санитарный узел с умывальником для персонала

-

3

 

6.

Комната хранения предметов уборки

-

4

 

Помещения изолятора

5.95. Рекомендуемый состав и площади помещений изолятора приведены в таблице 5.9.

5.96. Вместимость изолятора следует предусматривать из расчета 10-15 % от числа воспитанников стационарного отделения.

5.97. Помещения изолятора соединяется с остальными помещениями СП через тамбур-шлюз, в котором следует размещать умывальник и вешалку для смены халатов.

5.98. В состав помещений изолятора следует включать изоляционные палаты на 1 и 3 чел.

5.99. Между изоляционными палатами и коридором следует предусматривать глухие (не открывающиеся) окна для наблюдения за детьми.

5.100. Для организации питания детей, находящихся в изоляторе, в состав его помещений следует включать столовую с буфетной и моечной посуды. Оборудование буфетной рассчитано на подогрев готовой пищи.

5.101. Вход в санитарные узлы в изоляторе следует проектировать из коридора, обособленно от жилых палат (для возможного наблюдения за воспитанниками). Рекомендуемое оборудование санитарного узла: унитаз, умывальник; туалетной: унитаз, умывальник, ванна.

Таблица 5.9.

Рекомендуемый состав и площади помещений изолятора.

№№

п.п.

Наименование помещений

Площадь помещений, м2

Примечания

1.

Изоляционная палата на 1 место

6

 

2.

Изоляционная палата на 3 места

15

 

3.

Санитарный узел для воспитанников

3

 

4.

Туалетная для воспитанников

4

 

5.

Процедурная

8

 

6.

Кабинет врача, медицинской сестры

16

 

7.

Комната персонала с раздевальной и санузлом

10+4+3

Состав оборудования санузла: душ, унитаз, умывальник

8.

Столовая

20

 

9.

Буфетная с моечной посуды

12

 

10.

Кладовая со шкафами для чистого и грязного белья

6

 

11.

Комната хранения уборочного инвентаря

4

 

Помещения питания

5.102. Питание для воспитанников стационарного отделения организуется в одну смену в общей столовой.

5.103. Площадь обеденного зала принимается из расчета 1,8 м2 на 1 посадочное место; при зале предусматривается умывальная из расчета 3 м2 (1 умывальник) на каждые 18-20 мест.

5.104. Производственные помещения кухни следует рассчитывать на работу на сырье. Кроме питания детей, помещения кухни должны обеспечивать питание персонала.

В производственные помещения столовой должен предусматриваться отдельный вход.

5.105. Для питания персонала предусматривается обеденный зал самообслуживания (или буфет) из расчета 1,8 м2 на 1 посадочное место. Его следует располагать в составе помещений кухни или администрации. Количество мест определяется заданием на проектирование, исходя из количества питающихся в учреждении, продолжительности обеденного времени и количества смен. При зале предусматривается подсобное помещение, предназначенное для раздачи пищи, хранения и мойки посуды площадью 8 м2.

5.106. Для обслуживания карантинного отделения и изолятора при помещениях кухни следует предусматривать раздаточную, которая имеет удобный доступ к внутренним коммуникационным связям (коридорам, лестницам).

5.107. Учитывая специфику контингента воспитанников СП (большое количество детей с хроническими заболеваниями в запущенной форме) в состав производственных помещений кухни следует включать кабинет диетсестры.

5.108. Рекомендуемые состав и площади производственных помещений кухни приведены в табл. 5.10.

Таблица 5.10

Рекомендуемый состав и площади производственных помещений кухни

№№

п.п.

Наименование помещений

Площадь помещений, м2

Примечания

1.

Горячий цех

} 35

 

2.

Холодный цех

 

3.

Рыбный цех

} 9

 

4.

Мясной цех

 

5.

Хлеборезка, хранение хлеба

4

 

6.

Цех мучных изделий

6

 

7.

Раздаточная

16

 

8.

Сервизная

6

 

9.

Моечная кухонной посуды

10

 

10.

Моечная столовой посуды

14

 

11.

Моечная котлов

10

 

12.

Охлаждаемая камера для хранения:

 

 

- молочных продуктов

6

 

- рыбы, мяса

6

 

- яиц

6

 

13.

Кладовая сухих продуктов

6

 

14.

Кладовая овощей

12

 

15.

Кладовая суточного запаса

8

 

16.

Помещение первичной обработки овощей

6

 

17.

Загрузочная, кладовая тары

8

 

18.

Камера утилизации отходов с техническим сливом

4

 

19.

Комната заведующего производством

8

 

20.

Кабинет диетсестры

8

 

21.

Бельевая, гардеробная персонала, душевая, уборная

14

 

22.

Комната хранения предметов уборки

4

 

Административно-бытовые помещения

5.109. Рекомендуемый состав и площади административно-бытовых помещений приведены в таблице 5.11.

5.110. В состав административно-бытовых помещений рекомендуется включать группу помещений организации перевозки несовершеннолетних, предназначенную для доставки и сопровождения ребенка к месту его дальнейшего проживания. Группа состоит из 2 кабинетов: кабинета заведующего отделением и кабинета специалистов. Кабинет специалистов рассчитан на одновременное пребывание 7 сотрудников.

5.111. Кладовую чистого белья рекомендуется располагать при жилых помещениях.

5.112. Кладовую грязного белья, прачечную, помещение для приготовления дезраствора, кладовую сезонной одежды и инвентарные рекомендуется располагать в подвальном помещении.

Таблица 5.11.

Рекомендуемые состав и площади помещений административно-бытового обслуживания.

№№

п.п.

Наименование помещений.

Площадь помещений, м2

Примечания.

1.

Кабинет директора

36

 

2.

Приемная

18

Смежно с кабинетом директора

3.

Канцелярия

12

 

4.

Кабинет заместителя директора по хозяйственной части

16

 

5.

Помещение дежурного персонала технического обслуживания

14

 

6.

Бухгалтерия с кассой

18+4

 

7.

Комната сестры-хозяйки

12

 

8.

Кабинет заведующего отделением организации перевозки несовершеннолетних

12

 

9.

Кабинет специалистов отделения организации перевозки несовершеннолетних

36

 

10.

Комната психологической разгрузки персонала

18

 

11.

Комната отдыха персонала

36

 

12.

Компьютерный центр с архивом

36+10

 

13.

Помещение пожарного поста

12

 

14.

Кладовая чистого белья

 

 

15.

Кладовая грязного белья

18

Располагается рядом с прачечной

16,

Прачечная

36

 

17.

Помещение для приготовления дезраствора

6

 

18.

Кладовая сезонной одежды и обуви

22

Оборудуется вытяжкой и принудительной вентиляцией

19.

Инвентарные

40

 

20.

Санитарные узлы для мужчин и женщин с умывальниками в шлюзе

3´2

 

21.

Кабины личной гигиены для женщин

2

Разместить при санитарном узле

22.

Комната хранения уборочного инвентаря

4

 

ПРИЛОЖЕНИЯ

ЭКСПЛИКАЦИЯ ОБОРУДОВАНИЯ

1. СТОЛ СПЕЦИАЛИСТА

2. СТУЛ

3. СТОЛ ДЛЯ КОМПЬЮТЕРА

4. ШКАФ-СТЕЛЛАЖ

5. ЖУРНАЛЬНЫЙ СТОЛ

6. МЯГКАЯ МЕБЕЛЬ

7. УМЫВАЛЬНИК

8. ВЕШАЛКА ДЛЯ ПОЛОТЕНЦА

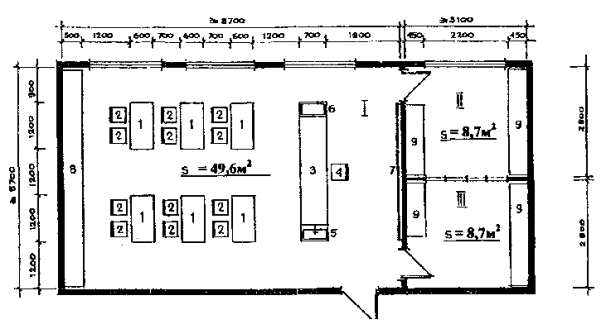
РИС. П.1. КАБИНЕТ СПЕЦИАЛИСТА (ПСИХОЛОГА, ЮРИСТА ПО ВОССТАНОВЛЕНИЮ ПРАВОСУДИЯ)

ЭКСПЛИКАЦИЯ ОБОРУДОВАНИЯ

I. КЛУБ

1. ОБЕДЕННЫЙ СТОЛ

2. СТУЛ

3. ШКАФ ДЛЯ СУХИХ ПРОДУКТОВ

4. ХОЛОДИЛЬНИК

5. РАБОЧИЙ СТОЛ С МИКРОВОЛНОВОЙ ПЕЧЬЮ И ЭЛЕКТРОЧАЙНИКОМ

6. РАКОВИНА

7. ЖУРНАЛЬНЫЙ СТОЛИК

8. МЯГКАЯ МЕБЕЛЬ

9. ТЕЛЕВИЗОР

10. НАВЕСНЫЕ ПОЛКИ ДЛЯ ПОСУДЫ

II. ЛАБОРАНТСКАЯ

2. СТУЛ

11. СТОЛ СПЕЦИАЛИСТА

12. ШКАФ-СТЕЛЛАЖ

13. ЗЕРКАЛО ГЕЗЕЛЛА

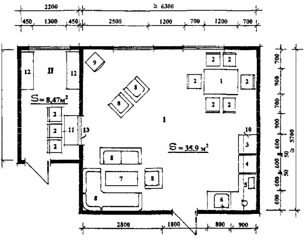
РИС. П.2. ПОМЕЩЕНИЕ РОДИТЕЛЬСКОГО КЛУБА С ЛАБОРАНТСКОЙ

I. СПАЛЬНЯ НА 1 МЕСТО

II. СПАЛЬНЯ НА 9 МЕСТ

ЭКСПЛИКАЦИЯ ОБОРУДОВАНИЯ

1. КРОВАТЬ

2. ДЕТСКИЙ СТУЛ

3. СТУЛ ДЛЯ ВОСПИТАТЕЛЯ

РИС. П.3. ПРИМЕРЫ ПЛАНИРОВКИ СПАЛЕН НА 1 И 9 МЕСТ ДЛЯ ДЕТЕЙ МЛАДШЕГО ВОЗРАСТА

ЭКСПЛИКАЦИЯ ОБОРУДОВАНИЯ

1. СТОЛ УЧЕНИЧЕСКИЙ

2. СТУЛ ДЕТСКИЙ

3. СТУЛ

4. СТОЛ ВОСПИТАТЕЛЯ - ПЕДАГОГА

5. СТЕЛЛАЖ С ВИДЕОАППАРАТУРОЙ

6. СТЕЛЛАЖ

7. ЖИВОЙ УГОЛОК

8. УЧЕНИЧЕСКАЯ ДОСКА

9. УМЫВАЛЬНИК

10. ВЕШАЛКА ДЛЯ ПОЛОТЕНЦА

РИС. П.4. ВАРИАНТЫ ПЛАНИРОВКИ ГРУППОВОЙ КОМНАТЫ ДЛЯ ДЕТЕЙ МЛАДШЕГО ВОЗРАСТА


ЭКСПЛИКАЦИЯ ОБОРУДОВАНИЯ

1. кровать                                                                                                                                                                                           2. стул

РИС. П.5. ПЛАНИРОВКА СПАЛЬНЫХ КОМНАТ НА 1, 4 И 5 МЕСТ ДЛЯ ДЕТЕЙ СРЕДНЕГО И СТАРШЕГО ВОЗРАСТА


ЭКСПЛИКАЦИЯ ОБОРУДОВАНИЯ

I. КОМНАТА ПРИГОТОВЛЕНИЯ УРОКОВ

1. СТОЛ УЧЕНИЧЕСКИЙ

2. СТУЛ

3. СТОЛ УЧИТЕЛЯ

4. СТЕЛЛАЖ

5. КЛАССНАЯ ДОСКА

6. УМЫВАЛЬНИК

7. ВЕШАЛКА ДЛЯ ПОЛОТЕНЦА

II. ИГРОВАЯ

1. СТОЛ ИГРОВОЙ

2. СТУЛ

3. СТОЛ ВОСПИТАТЕЛЯ

4. СТЕЛЛАЖ

5. УМЫВАЛЬНИК

6. ВЕШАЛКА ДЛЯ ПОЛОТЕНЦА

7. КЛАССНАЯ ДОСКА

РИС. П.6. ПРИМЕРЫ ПЛАНИРОВКИ КОМНАТЫ ПРИГОТОВЛЕНИЯ УРОКОВ (I) И ИГРОВОЙ (II) ДЛЯ ДЕТЕЙ СРЕДНЕГО И СТАРШЕГО ВОЗРАСТА

ЭКСПЛИКАЦИЯ ОБОРУДОВАНИЯ

1. Стол ученический

2. СТОЛ УЧИТЕЛЯ

3. СТУЛ

4. СТЕЛЛАЖ

5. УГОЛОК РЕЛАКСАЦИИ

6. МЯГКАЯ МЕБЕЛЬ

7. УЧЕНИЧЕСКАЯ ДОСКА

8. УМЫВАЛЬНИК

9. ВЕШАЛКА ДЛЯ ПОЛОТЕНЦА

РИС. П.7. КЛАСС С УГОЛКОМ РЕЛАКСАЦИИ

ЭКСПЛИКАЦИЯ ОБОРУДОВАНИЯ

I. КАБИНЕТ

1. СТОЛ УЧЕНИЧЕСКИЙ ЛАБОРАТОРНЫЙ

2. СТУЛ УЧЕНИЧЕСКИЙ

3. СТОЛ ДЕМОНСТРАЦИОННЫЙ

4. СТУЛ УЧИТЕЛЬСКИЙ

5. МОЙКА (УМЫВАЛЬНИК)

6. БАК ДЛЯ МУСОРА

7. КЛАССНАЯ ДОСКА

8. КОМБИНИРОВАННЫЙ ШКАФ

II. III. - ЛАБОРАНТСКИЕ

9. ШКАФ - СТЕЛЛАЖ

РИС. П.8. КАБИНЕТ ДЛЯ ЗАНЯТИЙ ФИЗИКОЙ И ХИМИЕЙ (I) С ЛАБОРАНТСКИМИ (II) И (III)

ЭКСПЛИКАЦИЯ ОБОРУДОВАНИЯ

1. СТОЛ

2. СТУЛ

3. СТОЛ СПЕЦИАЛИСТА

4. СТОЛ ДЛЯ СЕРВЕРА (ЦЕНТРАЛЬНОГО ПРОЦЕССОРА)

5. ШКАФ - СТЕЛЛАЖ

6. СТОЛ ДЛЯ КОМПЬЮТЕРА (ТЕРМИНАЛА)

7. ПОЛКИ ПОДВЕСНЫЕ

8. УМЫВАЛЬНИК

9. ВЕШАЛКА ДЛЯ ПОЛОТЕНЦА

10. КЛАССНАЯ ДОСКА

РИС. П.9. КОМПЬЮТЕРНЫЙ КЛАСС

ЭКСПЛИКАЦИЯ ОБОРУДОВАНИЯ

I. ИЗОСТУДИЯ

1. МОЛЬБЕРТ

2. ПОМОСТ ДЛЯ МОДЕЛЕЙ

3. ВЫСТАВКА РИСУНКОВ И КАРТИН

4. СТОЛ ПРЕПОДАВАТЕЛЯ

5. СТУЛ ПРЕПОДАВАТЕЛЯ

6. УМЫВАЛЬНИК

7. ВЕШАЛКА ДЛЯ ПОЛОТЕНЦА

II. КЛАДОВАЯ

8. КОМБИНИРОВАННЫЙ ШКАФ

РИС. П.10. КЛАСС РИСОВАНИЯ - ИЗОСТУДИЯ (I) С КЛАДОВОЙ (II)

ЭКСПЛИКАЦИЯ ОБОРУДОВАНИЯ

1. РАБОЧИЙ СТОЛ

2. СТОЛ РУКОВОДИТЕЛЯ

3. СТЕЛЛАЖ

4. СТУЛ

5. ТАБУРЕТ

6. РАКОВИНА

РИС. П.11. ВАРИАНТЫ ПЛАНИРОВКИ КРУЖКОВЫХ КОМНАТ

ЭКСПЛИКАЦИЯ ОБОРУДОВАНИЯ

1. СТОЛ-ШКАФ КУХОННЫЙ

2. ХОЛОДИЛЬНИК

3. МОЙКА

4. ПЛИТА

5. СЕРВИРОВОЧНАЯ СТОЙКА С РАЗДЕЛОЧНЫМ СТОЛОМ

6. КОМБИНИРОВАННАЯ СТЕНКА

7. ТАБУРЕТ

8. ОБЕДЕННЫЙ СТОЛ

9. СТУЛ

10 СТОЛ РЕЗЕРВНЫЙ

РИС. П.12. МАСТЕРСКАЯ КУЛИНАРНОГО ТВОРЧЕСТВА (КУЛИНАРИЯ)

ЭКСПЛИКАЦИЯ ОБОРУДОВАНИЯ

I. КОМНАТА

1. СТУЛ

2. ПЮПИТР

3. ПОМОСТ ДЛЯ ПРЕПОДАВАТЕЛЯ

4. ПИАНИНО

5. ТАБУРЕТ ВИНТОВОЙ

6. СТОЛ ПРЕПОДАВАТЕЛЯ

II. КЛАДОВАЯ

7. ШКАФ КОМБИНИРОВАННЫЙ

РИС. П.13. КОМНАТА МУЗЫКАЛЬНЫХ ЗАНЯТИЙ (1) С КЛАДОВОЙ ИНСТРУМЕНТОВ (П)

ЭКСПЛИКАЦИЯ ОБОРУДОВАНИЯ

1. СТОЛ

2. СТУЛ

3. СТОЛ СПЕЦИАЛИСТА

4. КРЕСЛО

5. ШКАФ-СТЕЛЛАЖ

6. УМЫВАЛЬНИК

7. ВЕШАЛКА ДЛЯ ПОЛОТЕНЦА

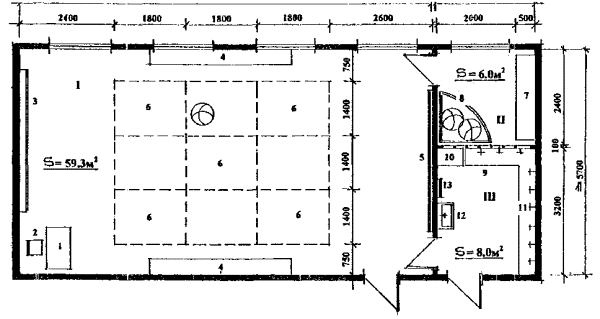
РИС. П.14. КАБИНЕТ ГРУППОВОЙ ПСИХОТЕРАПИИ НА 9 ЧЕЛОВЕК

ЭКСПЛИКАЦИЯ ОБОРУДОВАНИЯ

1. СТОЛ

2. СТУЛ

3. СТОЛ СПЕЦИАЛИСТА

4. СТОЛ ДЛЯ КОМПЬЮТЕРА

5. УМЫВАЛЬНИК

6. ВЕШАЛКА ДЛЯ ПОЛОТЕНЦА

7. УГОЛОК РЕЛАКСАЦИИ

8. УЧЕНИЧЕСКАЯ ДОСКА

9. ШКАФ - СТЕЛЛАЖ

РИС. П.15. КАБИНЕТ СОЦИАЛЬНОГО ПЕДАГОГА

ЭКСПЛИКАЦИЯ ОБОРУДОВАНИЯ

I. КАБИНЕТ

1. СТОЛ МЕТОДИСТА

2. СТУЛ МЕТОДИСТА

3. ШВЕДСКАЯ СТЕНКА

4. СКАМЬЯ

5. ЗЕРКАЛО

6. МЕСТА ДЛЯ ЗАНЯТИЙ (КОВЕР)

II. КЛАДОВАЯ

7. КОМБИНИРОВАННЫЙ ШКАФ

8. МАНЕЖ ДЛЯ СКЛАДИРОВАНИЯ МЯЧЕЙ

III. РАЗДЕВАЛКА

9. СКАМЬЯ ДЛЯ ПЕРЕОДЕВАНИЯ

10. ШКАФ МЕТОДИСТА

11. КРЮЧКИ ДЛЯ ОДЕЖДЫ

12. УМЫВАЛЬНИК

13. ВЕШАЛКА ДЛЯ ПОЛОТЕНЦА

РИС. П.16. КАБИНЕТ ГРУППОВЫХ ЗАНЯТИЙ ЛФК (I) С КЛАДОВОЙ (II) И РАЗДЕВАЛКОЙ (III)

 




ГОСТЫ, СТРОИТЕЛЬНЫЕ и ТЕХНИЧЕСКИЕ НОРМАТИВЫ.
Некоммерческая онлайн система, содержащая все Российские Госты, национальные Стандарты и нормативы.
В Системе содержится более 150000 файлов нормативно-технической документации, действующей на территории РФ.
Система предназначена для широкого круга инженерно-технических специалистов.

Рейтинг@Mail.ru Яндекс цитирования

Copyright © www.gostrf.com, 2008 - 2026