Крупнейшая бесплатная информационно-справочная система онлайн доступа к полному собранию технических нормативно-правовых актов РФ. Огромная база технических нормативов (более 150 тысяч документов) и полное собрание национальных стандартов, аутентичное официальной базе Госстандарта. GOSTRF.com - это более 1 Терабайта бесплатной технической информации для всех пользователей интернета. Все электронные копии представленных здесь документов могут распространяться без каких-либо ограничений. Поощряется распространение информации с этого сайта на любых других ресурсах. Каждый человек имеет право на неограниченный доступ к этим документам! Каждый человек имеет право на знание требований, изложенных в данных нормативно-правовых актах!

  


 

ПРАВИТЕЛЬСТВО МОСКВЫ
МОСКОМАРХИТЕКТУРА

ПОСОБИЕ
К МГСН 3.01-01

ЖИЛЫЕ ЗДАНИЯ

2004

ПРЕДИСЛОВИЕ

1. РАЗРАБОТАНО МНИИТЭП

Авторы - канд. архитектуры С.И. Яхкинд (руководитель темы), профессор Ю.П. Григорьев, кандидаты архитектуры И.С. Генкина, Б.Ю. Бранденбург и Л.В. Петрова, канд. геогр. наук Л.И. Конова.

2. ПОДГОТОВЛЕНЫ к утверждению и изданию Управлением перспективного проектирования, нормативов и координации проектно-изыскательских работ Москомархитектуры (архитекторы Л.П. Ревкевич и С.С. Горин).

3. СОГЛАСОВАНО Москомархитектурой.

4. УТВЕРЖДЕНО указанием Москомархитектуры от 01.07.04 № 104

Графика С.И. Яхкинд и М.Ю. Васильева.

Содержание

Введение. 1

1. Область применения пособия к МГСН 3.01-01 «Жилые здания». 2

2. Нормативные ссылки. 2

3. Основные положения. 2

Санитарно-гигиенические требования. 26

Противопожарные требования. 33

Нежилые помещения. 52

Лифты.. 68

Мусороудаление. 74

4. Требования к основным элементам жилых зданий. 77

Квартиры и одноквартирные дома. 79

Дополнительные требования к квартирам для престарелых и инвалидов. 98

Жилые ячейки общежитий. 104

Помещения общественного назначения в специализированных квартирных жилых домах. 106

Помещения общественного назначения в общежитиях. 112

Хозяйственные и технические помещения. 115

Приложение А. Список нормативных документов. 120

ВВЕДЕНИЕ

Настоящее Пособие выпущено в развитие и дополнение МГСН 3.01-01 «Жилые здания».

В Пособии даются разъяснения по применению положений нормативного документа в практике проектирования, а также приводятся примеры объемно-планировочных решений жилых домов и квартир.

Пособие разработано в помощь проектировщику в создании современного московского жилища с целью повышения вариантности его объемно-планировочных решений, уровня комфорта проживания, экологических качеств, обеспечения безопасности людей при пожаре.

После каждого пункта в скобках «[ ]» даны ссылки на соответствующие пункты МГСН 3.01-01, к которым дается разъяснение.

1. ОБЛАСТЬ ПРИМЕНЕНИЯ ПОСОБИЯ К МГСН 3.01-01 «ЖИЛЫЕ ЗДАНИЯ»

1.1. [1.2] Пособие к МГСН 3.01-01 «Жилые здания» предназначено для использования при проектировании жилых зданий до 25 этажей включительно с высотой расположения верхнего этажа не более 75,0 м разных типов (одноквартирных и многоквартирных, в том числе специализированных квартирных жилых домов для престарелых и семей с инвалидами, общежитий для студентов и аспирантов), а также при разработке проектов реконструкции и модернизации 4 - 5-этажных жилых домов I периода индустриального домостроения (далее в тексте - реконструируемые и модернизируемые жилые дома).

Материалы Пособия не предназначены для проектирования инвентарных и мобильных жилых зданий, зданий с эпизодическим проживанием (мотели, пансионаты, гостиницы, ночлежные жилые дома), а также ведомственных общежитий для рабочих и служащих.

2. НОРМАТИВНЫЕ ССЫЛКИ

2.1. Перечень нормативных документов, на которые даны ссылки в тексте Пособия, приведен в Приложении А.

3. ОСНОВНЫЕ ПОЛОЖЕНИЯ

3.1. В основу разработанного документа положена классификация московского жилища по уровню комфорта (табл. 1).

Таблица 1

КЛАССИФИКАЦИЯ МОСКОВСКОГО ЖИЛИЩА ПО УРОВНЮ КОМФОРТА

Уровень комфорта

Принципы нормирования площадей жилища

Типы жилища

I категория

Нормируемые нижние и неограниченные верхние пределы площадей квартир или одноквартирных домов

Одноквартирные и многоквартирные жилые дома (блокированные, секционные, коридорные, смешанной планировочной структуры)

II категория

Нормируемые нижние и верхние пределы площадей квартир (жилых комнат общежитий)

Многоквартирные жилые дома (секционные, коридорные, смешанной планировочной структуры)

Специализированные многоквартирные жилые дома (секционные, коридорные, смешанной планировочной структуры) или группы квартир для одиноких инвалидов и семей с инвалидами (в том числе колясочниками), для одиноких престарелых и семей из двух престарелых

Общежития для студентов высших учебных заведений и аспирантов (секционные, коридорные, коридорно-секционные)

В настоящем разделе приведены основные характеристики жилых домов, которые могут быть использованы в застройке Москвы, даны принципиальные схемы и примеры объемно-планировочных решений домов различных типов: одноквартирных и блокированных, секционных (односекционных и многосекционных), коридорных и галерейных, а также домов смешанных планировочных структур.

В том числе выделено жилище, специфика которого определяется санитарно-гигиеническими характеристиками и градостроительными условиями шумозащищенные жилые дома и террасные жилые дома.

3.2. [3.1] Одноквартирный жилой дом предназначен для проживания одной семьи. В зависимости от величины выделенного под застройку участка и композиционного замысла форма плана одноквартирного дома может быть разнообразной - от компактной прямоугольной до сложной, с криволинейными очертаниями наружных стен.

Данный тип жилого дома характеризуется развитым и разнообразным составом помещений от минимального (как правило, при площади порядка 160 - 250 м2) до развитого с дополнительными помещениями, например, банкетным залом, кабинетом, библиотекой, биллиардной, бассейном, сауной, игровой, помещениями для проживания обслуживающего персонала, в том числе для охраны и другими (при площади свыше 250 м2).

Примеры решений одноквартирных жилых домов приведены на рис. 1.

Рис. 1. Примеры одноквартирных жилых домов.

I - двухэтажный жилой дом из сборного железобетона с несущим безригельным каркасом: а - план 1 этажа; б - план 2 этажа (МНИИТЭП, М1. Архитекторы: А. Надысев и Ю. Шаморгин);

II - двухэтажный жилой дом с кирпичными стенами: в - план 2 этажа, г - план 1 этажа (ООО «Таммвис», Архитектор А. Михе).

III - трехэтажный жилой дом с кирпичными стенами (коттедж «Барс»): д - план цокольного этажа, е - план 1 этажа, ж - план 2 этажа, и - план 3 этажа - мансарды (МНИИТЭП, М1. Архитекторы: А. Надысев, Т. Принтц и Н. Скуридина).

3.3. [3.1] Блокированный жилой дом характеризуется наличием непосредственных выходов на приквартирный участок из каждой квартиры, в том числе и при расположении ее выше первого этажа.

Особенностью блокированного жилого дома является, как правило, развитая номенклатура подсобных и дополнительных помещений квартир, в том числе с включением в их перечень гаража-стоянки, непосредственно связанной с квартирой (с учетом требований МГСН 5.01-94*).

Размеры приквартирных участков для блокированных жилых домов следует определять по заданию на проектирование с учетом требований МГСН 1.01-99.

Блокированные жилые дома могут быть сформированы из квартир с различной формой плана - квадратной, прямоугольной, с конфигурацией Г- или Т-образной, криволинейной и др.

Варианты компоновки квартир в блокированных типах жилых домов приведены в табл. 2, а примеры планировочных решений блокированных жилых домов - на рис. 2.

Блокировка квартир может осуществляться как по горизонтали, так и по вертикали, в том числе через основные, подсобные или дополнительные помещения, включая гараж-стоянку. При этом могут быть запроектированы блокированные жилые дома с квартирами, в которых один или несколько уровней одной квартиры располагается над помещениями другой квартиры.

Рис. 2. Примеры блокированных жилых домов.

I - 2-этажный двухквартирный жилой дом с кирпичными стенами («Эксодин-строй». Архитекторы: С. Яхкинд и Т. Бессонова): а - план 1 этажа; б - план 2 этажа;

II - 2-этажный четырехквартирный жилой дом из сборного железобетона И-950-2 (МНИИТЭП, М5. Архитекторы: В. Аникин и В. Павлушин): в - фрагмент плана 1 этажа; г - фрагмент плана 2 этажа;

III - одноэтажный многоквартирный жилой дом из сборного железобетона (МНИИТЭП, М4, проектное предложение. Архитекторы: В. Датюк, Р. Богуславский, С. Яхкинд и другие): д - план квартиры элемента блокировки; е - схема блокировки;

IV - 3-этажный многоквартирный жилой дом со стенами из полистеролбетона (МНИИТЭП, М1. Архитекторы: А. Надысев и О. Орлеанская): ж - план цокольного этажа; и - план 1 этажа; к - план 2 этажа, л - схема блокировки.

Таблица 2

ВАРИАНТЫ КОМПАНОВКИ КВАРТИР В БЛОКИРОВАННЫХ ЖИЛЫХ ДОМАХ

Возможно также построение блокированного жилого дома, в котором вход с приквартирного участка в каждую из квартир верхних этажей осуществляется по отдельной лестнице (открытой или закрытой). Пример такого решения блокированного жилого дома с закрытой лестницей приведен на рис. 3.

Рис. 3. Четырехэтажный блокированный жилой дом из сборного железобетона со сложной системой блокировки квартир (МНИИТЭП, М4, проектное предложение. Архитекторы В. Датюк, Е. Староносова и другие):

а - план 1 этажа; б - план 2 этажа; в - план 3 этажа; г - план 4 этажа.

3.4. [3.1] Жилым зданием секционного типа является здание, состоящее из одной или нескольких секций.

Многосекционный жилой дом формируется путем блокировки нескольких секций, являющихся элементами объемно-планировочной структуры дома, которые следует проектировать рядовыми и поворотными, в том числе с торцевыми окончаниями или без них.

Рядовые секции (в том числе с торцевыми окончаниями) по форме плана могут проектироваться прямолинейными или со сдвигом в плане, а также сложной формы (в том числе криволинейной, Т-образной и т.д. - рис. 4а, б).

Поворотные секции (в том числе угловые) могут проектироваться с развитием (табл. 3):

1) в двух направлениях (с углом поворота на 90°, 135° и др. - угловые секции);

2) в трех направлениях (с углом поворота на 90°, 120° и др.).

Секции могут проектироваться двух-, трех-, четырехквартирными, а также с большим числом квартир на этаже. В жилище I категории комфорта в пределах секции может быть выполнена одна квартира.

Схемы планировочных решений секций, различающихся набором квартир и характером блокировки, приведены в табл. 3.


Таблица 3

СХЕМЫ СЕКЦИЙ МНОГОСЕКЦИОННЫХ ЖИЛЫХ ДОМОВ

Типы секций

Углы поворота

Кол-во сторон блокировки

Количество квартир на этаже секции

2 шт.

3 шт.

4 шт.

5 шт. и более

1

2

3

4

5

6

7

рядовые

с торцом

прямолинейные

 

1

У

Ч0

(III)

Ч0

(III)

0(М)

без торцов

прямолинейные

 

2

У

Ч0

(III)

Ч0

(III)

0(М)

со сдвигом

 

2

У

Ч0

(III)

Ч0

(III)

0(М)

поворотные

без торцов

лестница во внутреннем углу

90°

2

У

Ч0

(III)

Ч0

(III)

0(М)

лестница во внешнем углу

2

У

Ч0

(III)

Ч0

(III)

0(М)

лестница во внутреннем углу

90° и 135° и др.

2

У

Ч0

(III)

Ч0

(III)

0(М)

 

 

лестница во внешнем углу

90° и 135° и др.

2

У

Ч0

(III)

Ч0

(III)

0(М)

 

 

лестница во внутреннем углу

2

У

Ч0

(III)

Ч0

(III)

0(М)

 

 

трехлучевые

90°

3

У

Ч0

(III)

Ч0

(III)

0(М)

 

 

трехлучевые

120° и др.

3

У

Ч0

(III)

Ч0

(III)

0(М)

 

 

четырехлучевые

90°

4

 

Ч0

(III)

Ч0

(III)

0(М)

вставки

*)

-

*) углы поворота от 0° до 180°                                                                  условные обозначения:

У - секция универсальной (неограниченной) ориентации

О (Ш) - секция ограниченной (меридиональной) ориентации

ЧО (М) - секция частично ограниченной (широтной) ориентации


В зависимости от размещения домов относительно сторон горизонта по условиям ориентации, исходя из требований инсоляции квартир (с учетом п. 3.15 настоящего «Пособия»), секции могут проектироваться неограниченной (универсальной) ориентации, частично-ограниченной (широтной) ориентации и ограниченной (меридиональной) ориентации (рис. 4).

На этаже секции универсальной (неограниченной) ориентации число одноуровневых квартир может составлять одну, две (рис. 4ж) или три, а при размещении в ней только двухэтажных квартир с двухсторонней ориентацией - до восьми квартир (рис. 4г, д, е).

На этаже секции ограниченной (меридиональной) ориентации могут быть запроектированы, как правило, шесть и более квартир в одном уровне (рис. 4б), а также включать квартиры в двух уровня.

Рис. 4. Примеры планировочных решений многосекционных жилых домов различной ориентации.

I - рядовая и торцевая секции широтной ориентации серии П44Т (ГУП МНИИТЭП, М1. Архитекторы: Ю. Григорьев, А. Надысев и другие):

а - план типового этажа;

II - рядовая секция меридиональной ориентации серии КОПЭ (Моспроект-1): б - план типового этажа;

III - четырехсекционный жилой дом меридиональной ориентации для застройки ОПЖР «Северное Чертаново» (проектное предложение. Архитекторы: М. Посохни, Л. Дюбек, А. Шапиро и другие): в - план типового этажа.

IV - шестиквартирная секция универсальной ориентации с двухуровневыми квартирами (ГУП МНИИТЭП, ЛТЖС, проектное предложение. Архитекторы: С. Яхкинд и И. Генкина): г, д - планы этажей;

V - двухквартирные секции универсальной ориентации в жилом доме по 1-му Колобовскому пер., вл. 18 - 24 (ГУП Моспроект-2, М18. Руководитель авторского коллектива М. Посохин, архитекторы М. Плеханов и А. Левитина): е, ж - планы этажей.

3.5. [3.1] Односекционный жилой дом по форме плана может проектироваться:

с компактным планом различной конфигурации - квадратным, прямоугольным, круглым, эллипсовидным и др.;

с расчлененным планом - Т-образным, трехлучевым, крестообразным и др.

Примеры односекционных жилых домов с различной формой плана приведены в табл. 4.

Таблица 4

СХЕМЫ ОДНОСЕКЦИОННЫХ ЖИЛЫХ ДОМОВ

Форма плана односекционных жилых домов

компактная

расчлененная

Для односекционных жилых домов характерно максимальное использование периметра наружных стен для светового фронта квартир. При этом лестнично-лифтовой узел, как правило, размещается в центре плана жилого дома, что позволяет увеличить число квартир с двухсторонней ориентацией, обеспеченных сквозным или угловым проветриванием.

Односекционные жилые дома могут проектироваться с различным числом квартир на этаже в зависимости от ориентации жилого дома, принятого варианта планировочного решения и категории жилища.

Так, на этаже может быть запроектировано: при неограниченной ориентации жилого дома - одна или две квартиры (рис. 5г); при частично ограниченной или ограниченной ориентации - до четырех квартир (рис. 5а - в). В жилище I категории комфорта может быть выполнена и одна квартира на этаже.

В односекционных жилых домах могут применяться как одноуровневые, так и многоуровневые квартиры (рис. 24г - д).

3.6. [3.1] Жилые дома коридорного типа в зависимости от компоновки квартир вдоль общего внеквартирного коридора подразделяются на две группы: с односторонним или с двухсторонним размещением квартир вдоль общего внеквартирного коридора (табл. 5).

По форме плана коридорные жилые дома могут проектироваться:

протяженными - с общим внеквартирным коридором, соединяющим лестнично-лифтовые узлы (или лестничные клетки) по прямой;

с компактной формой плана - с общим внеквартирным коридором, как правило, имеющим круговой обход вокруг лифтового узла;

с лучевой формой плана - с общими внеквартирными коридорами, отходящими от одного из лестнично-лифтовых узлов (или лестничной клетки) в разные стороны.

Квартиры в коридорных жилых домах могут проектироваться как в одном уровне, так и в двух и более уровнях.

Примеры планировочных решений жилых домов коридорного типа различной ориентации приведены на рис. 6.

3.7. [3.1] Галерейные жилые дома могут проектироваться различными по характеру расположения галерей и по количеству уровней в квартирах. Классификация домов по этим признакам приведена в табл. 6.

С учетом климатических условий г. Москвы галерейные жилые дома могут проектироваться в том числе и путем различного объединения объемов этих зданий:

крытым пассажем - фрагментов жилых домов с односторонними галереями, обращенными внутрь, с одноуровневыми или многоуровневыми квартирами (дома имеют меридиональную ориентацию);

крытым атриумом - фрагментов жилых домов с односторонними галереями, обращенными внутрь, с одноуровневыми или многоуровневыми квартирами (дома имеют широтную ориентацию).

Рис. 5. Примеры планировочных решений односекционных жилых домов.

а - 24-этажный каркасно-панельный жилой дом по Кантемировской ул., к. 8 (ОАО Моспроект. Архитектор М. Скулимовский);

б - 24-этажный жилой дом из изделий И-155 (ГИПРОНИИ РАН. Архитекторы: Ю. Григорьев, А. Панфиль, В.Репин, Э. Судариков и другие);

в - 22-этажный жилой дом серии П4/22 (ГУП МНИИТЭП. Архитекторы: А. Самсонов, А. Бергельсон и другие);

г - 9-этажный жилой дом универсальной ориентации (ГУП МНИИТЭП, ЛТЖС, проектное предложение. Архитекторы: С. Яхкинд и И. Генкина).

Рис. 6. Коридорные жилые дома.

I - с односторонним размещением одно- и двухуровневых квартир вдоль внеквартирного коридора - 9 этажный жилой дом в г. Зелинограде (Моспроект-2. Архитекторы: М. Покровский и Ф. Новиков): а - схема дома; б - планы 4-комнатной квартиры;

II - с двухсторонним размещением одноуровневых квартир вдоль внеквартирного коридора: 22 этажный жилой дом серии II-68-01/22-83 (МНИИТЭП. Архитекторы: Е. Иохелес, В. Дзедушицкий и другие): в - план типового этажа.

III - с двухсторонним размещением одноуровневых квартир - 22-этажный дом компактной формы плана жилого комплекса «Крылатские огни» (ЗАО «Пик-проект». Архитекторы. С. Хегай и другие): г - план 9 - 20 этажей.

IV - с двухсторонним размещением двухуровневых квартир вдоль внеквартирного коридора - 9-этажный жилой дом серии 84 (ЦНИИЭП жилища. Архитекторы: Е. Иохелес, В. Дзедушидский и другие): д - схема дома, е, ж - - планы 3-комнатных квартир.

Таблица 5

КЛАССИФИКАЦИЯ КОРИДОРНЫХ ЖИЛЫХ ДОМОВ

                    коридоры

             квартиры

                 лифтовой холл

Таблица 6

КЛАССИФИКАЦИЯ ГАЛЕРЕЙНЫХ ЖИЛЫХ ДОМОВ

  закрытый атриум

  квартиры

       галереи

3.8. [3.1] Жилые дома смешанной планировочной структуры (коридорно-секционные, секционно-блокированные и другие) проектируются за счет объединения в их планировочной структуре объемно-планировочных решений, характерных для различных типов жилых домов.

Коридорно-секционный тип жилого дома (рис. 7) проектируется путем объединения планировочных структур домов секционного и коридорного типов.

В коридорно-секционных домах рекомендуется проектировать лифтовые или лестнично-лифтовые узлы, объединяя их коридорным этажом, который может располагаться через несколько этажей по высоте дома (от двух до четырех). При этом, промежуточные этажи дома имеют секционную структуру, а вертикальные коммуникации - лифтовые или лестнично-лифтовые узлы - могут быть включены в основной объем здания или располагаться вне его и быть соединены с ним переходами.

Для входа в квартиры, расположенные на секционных этажах, следует проектировать лестничные клетки, по которым осуществляется подъем или спуск с уровня коридорного этажа на секционные этажи.

Рис. 7. Коридорно-секционный жилой лом (МНИИТЭП, проектное предложение Архитекторы: В. Дадья, Р. Саруханян, Т. Турина):

а - фрагмент плана коридорного этажа; б - фрагмент плана секционного этажа; в - схема плана коридорного этажа; г - схема плана секционного этажа.

Секционно-блокированный тип жилого дома проектируется в виде планировочной структуры, при которой первые этажи (как правило, один или два) включают блокированные квартиры, имеющие входы с придомовой территории (или придомового участка), а выше располагаются секционные этажи (рис. 8).

Для входа в квартиры, расположенные на секционных этажах, следует проектировать лестничные клетки (или лестнично-лифтовые узлы), по которым осуществляется подъем или спуск.

Для квартир блокированной части жилого дома такого типа допускается выход на основную лестничную клетку.

Рис. 8. Секционно-блокированный жилой дом (Научно-архитектурный центр жилищного строительства Госкомархитектуры, проектное предложение. Архитекторы: Н. Кордо, Н. Сидлерова, Т. Берсенева и другие):

а - план 1 этажа; б - план 2 этажа; в - планы 3 и 4 этажей.

3.9. [3.13] Шумозащищенные жилые дома следует применять для застройки примагистральных территорий с повышенным уровнем транспортного шума. Эти дома проектируются:

1) с обычной планировочной структурой и конструктивно-техническими средствами шумозащиты;

2) со специальной планировочно шумозащищенной структурой;

3) со специальной планировочно шумозащищенной структурой и конструктивно-техническими средствами шумозащиты.

Шумозащищенные жилые дома рекомендуется проектировать со следующими объемно-планировочными характеристиками:

с конфигурацией плана - П-, С-образной, а также близкой к ним, в том числе усложненной (при обосновании акустическими расчетами - О-образной формой плана);

протяженностью - длиной фронта жилого дома вдоль магистральной улицы 100 м и более, боковых объемов - 30 м и более;

высотой - не менее 20 м.

При размещении шумозащищенных жилых домов на территории с выраженным рельефом, а также расположении магистральной улицы (улиц) ниже защищаемой территории высота здания уточняется, исходя из условий распространения шума. Меньшая высота допускается при обосновании акустическими расчетами.

Характерные типы шумозащищенных жилых ломов для различных сторон магистрали показаны в табл. 7, а примеры шумозащищенных секций и жилых домов приведены на рис. 9.

Таблица 7

ПРИЕМЫ РАЗМЕЩЕНИЯ И ТИПЫ ЖИЛЫХ ДОМОВ С ПЛАНИРОВОЧНО ШУМОЗАЩИЩЕННОЙ СТРУКТУРОЙ

Рис. 9. Примеры планировочно шумозащищенных решений в жилых зданиях.

I - Т-образная 10-квартирная секция для застройки южной стороны магистрали: а - план типового этажа;

II - 2-квартирная секция неограниченной ориентации (МНИИТЭП, М4. Архитекторы: В. Датюк, Р. Богуславский): б - план типового этажа;

III - коридорный жилой дом неограниченной ориентации: в - план типового этажа; г - планы двухэтажных 3-комнатных квартир (МНИИТЭП, М4, проектное предложение. Архитектор Г. Бочаров).

3.10. [3.1]. Террасные жилые дома в Москве могут проектироваться для территорий с выраженным рельефом, а также и при его отсутствии - для участков плотной застройки в условиях недостаточной инсоляции и естественной освещенности.

Ступенчатое построение объема (по одной или нескольким сторонам) этих зданий может быть достигнуто за счет уменьшения: глубины комнат по торцам здания или по его фронту; числа комнат в квартире; количества квартир на этаже; этажей в смежных секциях.

Для территорий на рельефе, как правило, применяются дома со ступенчатым построением объема как вдоль протяженного фасада, так и поперек торцевой части здания. Для условий плоского рельефа допускается применение домов с террасированным построением объема по всем сторонам здания.

Террасные жилые дома могут проектироваться блокированными, секционными (рис. 10б - в), коридорными (рис. 10а), а также могут иметь смешанную планировочную структуру (табл. 8).

Таблица 8

ТЕРРАСНЫЕ ЖИЛЫЕ ДОМА

 

 

варианты размещения

схема плана

типы жилых домов

блокированные

секционные

коридорные

коридорно-секционные

3.11. [3.3] При проектировании реконструкции или модернизации 4 - 5-этажных жилых домов I периода индустриального домостроения особое внимание следует обращать на планировочные решения квартир, обеспечивая при этом соответствие требованиям раздела 4 МГСН 3.01-01, а при выполнении надстроек и пристроек - требованиям по пожарной безопасности и санитарно-гигиеническим в пределах этих зданий, а также в зданиях на прилегающей территории.

3.12. [3.4] При разработке проектов модернизации жилых домов без изменения объема жилого здания (кроме пристройки лифтового узла) допускается:

изменение площадей квартир (или их отдельных помещений) в существующих габаритах жилого дома, в том числе изменение количества и типов квартир на этаже, а также проектирование смежно-изолированных квартир для семей, состоящих из нескольких поколений;

изменение функционального назначения помещений, в том числе существующих в их структуре нежилых помещений, расположенных на первом этаже, переустройство квартир первых этажей под нежилые помещения, а также устройство помещений дежурного по подъезду, технических помещений и др.

Рис. 10. Террасные жилые дома.

I - 14-этажный односекционный сборно-монолитный жилой дом (ГУП МНИИТЭП, М3. Архитекторы: Ю. Григорьев, С. Пахомов): а, б - планы 13 и 14 этажей;

II - конкурсный проект односекционного 16-этажного жилого дома для Москвы (Архитекторы: Г. Павлов, В. Аникин и другие): в - планы изменяемых этажей; г - фрагменты планов 15 - 16 этажей; д - фрагменты планов 12 - 14 этажей.

На рис. 11 приведен проект модернизации 5-этажного жилого дома серии I-515.

Рис. 11. Проектное предложение по модернизации 5-этажных жилых домов серии I-515 (ГУП МНИИТЭП, ЛФР. Архитекторы: Б. Дмитриев, Н. Бурмистрова):

а - план 1 этажа; б - план типовых этажей.

3.13. [3.5] При разработке проектов реконструкции жилых домов с изменением объема жилого здания допускается:

пристройка новых объемно-планировочных элементов, в том числе квартир или их помещений, лестнично-лифтовых узлов, тамбуров и др.;

надстройка жилых домов на один (в том числе мансардный) или два этажа, а также разборка совмещенных кровель и чердаков;

изменение функционального назначения помещений, в том числе существующих в их структуре нежилых помещений, расположенных на первом этаже, переустройство квартир первых этажей под нежилые помещения, устройство помещений дежурного по подъезду, технических помещений и др.

На рис. 12 приведен проект реконструкции 5-этажного жилого дома серии I-511.

Рис. 12. Проект реконструкции 5-этажных жилых домов серии I-511 (ОАО ЦНИИЭП жилища):

а - план 1 этажа; б - план 2 - 5 этажей; в - план 6 этажа; г - план 7 этажа.

САНИТАРНО-ГИГИЕНИЧЕСКИЕ ТРЕБОВАНИЯ

3.14. [3.7] Минимальные высоты и правила подсчета площадей помещений с наклонными ограждающими конструкциями и помещений с антресолями. Минимальные высоты помещений определяются, исходя из эргономических требований и функционального назначения помещения.

Правила подсчета площадей помещения с наклонными ограждающими конструкциями (S) в зависимости от углов их наклона к горизонту и минимально нормируемых высот от пола до наклонного потолка (h) приведены на рис. 13.

Рис. 13. Правила подсчета площадей для помещений с наклонными ограждающими конструкциями. I - схемы разрезов; II - схемы планов.

Условные обозначения:

а - глубина помещения с высотой h > 2,5 м;

b - ширина помещения;

с - глубина части помещения с высотой 1,6 м < h < 2,5 м при углах наклона к горизонту 45° и более (или 1,9 м < h < 2,5 м при углах наклона к горизонту от 30° до 45°).

d - глубина части помещения с высотой h £ 1,6 м при углах наклона к горизонту 45° и более (или h £ 1,9 м при углах наклона к горизонту от 30° до 45°).

S = a ´ b + с ´ b ´ 0,7

Зоны помещений, имеющие высоту менее нормируемой, в подсчете площадей не учитываются, их рекомендуется использовать для размещения хозяйственных емкостей или элементов мебели.

В помещениях с высотой в свету, как правило, не ниже 4,4 м допускается устройство промежуточных уровней или антресолей.

При этом проходы под антресолями и над ними допускается выполнять высотой не менее 2,1 м, а при подсчете площадей учитывать данные помещения с коэффициентом 1,0 (рис. 14).

Рис. 14. Правила подсчета площадей для помещений с антресолями. I - схема разреза, II - схемы планов.

Условные обозначения:

a1 - глубина помещения под антресолями с высотой h ³ 2,1 м;

а2 - глубина помещения на антресолях с высотой h ³ 2,1 м;

b - ширина помещения с антресолями.

S = а1 ´ b + а2 ´ b

3.15. [3.8]. Инсоляцию квартир следует определять по СанПиН 2.2.1/2.1.1.1076-01. При этом, если все квартиры дома (или секции), обеспечены нормативной инсоляцией при любой постановке его относительно сторон горизонта, то данный дом имеет неограниченную (универсальную) ориентацию, при постановке по параллели или меридиану - частично-ограниченную (широтную) ориентацию, а при постановке по меридиану - ограниченную (меридиональную) ориентацию.

Возможные отклонения от параллели или меридиана определяются на основании результатов расчета продолжительности инсоляции помещений согласно СанПиН 2.2.1/2.1.1.1076-01.

3.16. [3.9] Взаимосвязь предельной длины общих внеквартирных коридоров и характера расположения и ширины световых карманов показана на рис. 15.

Рис. 15. Предельная длина внеквартирных (L) коридоров и ширина световых карманов (а) по условиям естественного освещения:

1 - через лестничную клетку; 2 - через лифтовой холл; 3 - с торца коридора и через световой карман (в том числе холл, лифтовой холл, лестничную клетку); 4, 5 -через световые карманы (в том числе холлы, лифтовые холлы, лестничные клетки); 6 - с одного торца коридора; 7- с двух торцов коридора.

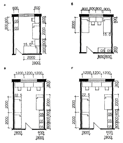
3.17. [3.9] Примеры размещения кухонь и кухонь-ниш без естественного освещения в квартирах жилища I и II категории комфорта, а также в жилых ячейках общежитий приведены на рис. 16.

 

Рис. 16. Примеры решений кухонь-ниш и кухонь без естественного освещения.

I - в жилище I категории комфорта: а - 1-комнатная квартира (Архитекторы: Б Уборевич-Боровский и А Вязьмин); б - 3-комнатная квартира (Архитекторы: А. Вануни, Л. Малащонок и Н. Захаров);

II - в жилище II категории комфорта: в, г - 1-комнатная квартира (МНИИТЭП, ЛТЖС, проектное предложение. Архитекторы С. Яхкинд и И. Генкина): д, е - 1- и 2-комнатные квартиры серии на широком шаге (МНИИТЭП, М4, проектное предложение. Архитекторы: В. Горчаков, Е. Староносова);

III - в жилой ячейке общежития (ж).

3.18. [3.9, 3.48] Остекление летних помещений может быть запроектировано в квартирах многоквартирных жилых домов и в одноквартирных жилых домах.

Проектируя остекление летних помещений (балконов или лоджий) в квартирах многоквартирных жилых домов, следует предусматривать комплекс санитарно-гигиенических и противопожарных мероприятий:

остекление балконов и лоджий, как правило, раскрываемое, выполненное с учетом нормативных требований по естественному освещению;

конструктивно-технические мероприятия, исключающие проникновение влаги;

конструктивные элементы остекления с расположением их от уровня пола летнего помещения на расстоянии, как правило, 1,0 м и более до нижней части конструктивного элемента и, при этом не менее, чем через 1,2 м до его верхней части и с шириной между вертикальными элементами конструкций не менее 0,7 м для обеспечения доступности квартиры с внешней стороны при пожаре.

При подсчете площадей остекленных летних помещений их площади принимаются согласно действующим правилам подсчета площадей: с коэффициентом 0,35 - для балконов; коэффициентом 0,5 - для лоджий.

При расчете инсоляции для квартир и их помещений остекление балконов и лоджий не учитывается. Примеры остекления летних помещений в жилых домах секционного типа приведены на рис. 17.

 

Условные обозначения:

1 - ограждение;

2 - вертикальный конструктивный элемент;

3 - нижний конструктивный элемент;

4 - остекленная створка;

5 - сдвигаемое стекло;

6 - верхний конструктивный элемент.

Рис. 17. Остекление летних помещений:

I - схемы остекления: а - с раскрываемыми створками; б - с раздвигаемым остеклением;

II - примеры остекления летних помещений: в - в двухкомнатной квартире жилого дома серии «Юбилейный» (ГУП МНИИТЭП); г - в трехкомнатной квартире 23-этажного дома серии ПЗМ (ГУП МНИИТЭП).

3.19. [3.13] Обеспечение защиты квартир от транспортного шума может быть достигнуто в шумозащищенных жилых зданиях за счет применения:

конструктивных средств шумозащиты с повышенными звукоизолирующими свойствами наружных ограждающих конструкций, а также окон и балконных дверей (в том числе с учетом Пособия к МГСН 2.04-97 «Проектирование защиты от транспортного шума и вибрации жилых и общественных зданий»);

технических средств шумозащиты, в том числе клапанов-глушителей и других инженерно-технических устройств для снижения уровня шума при обеспечении нормативного воздухообмена в квартире.

планировочных приемов формирования жилых домов (с учетом п. 3.9 настоящего Пособия и «Рекомендаций по проектированию экономичных планировочно шумозащищенных жилых домов»).

При проектировании планировочно шумозащищенных жилых домов жилища II категории комфорта на сторону магистральных улиц с повышенным уровнем транспортного шума допускается ориентировать (см. рис. 9):

окна жилых помещений квартир - одной общей комнаты (гостиной) в квартирах с числом жилых комнат 3 и более;

подсобные помещения квартир (кухня, кладовая, передняя и другие);

летние (в том числе остекленные) помещения квартир;

внеквартирные коммуникации - коридоры, холлы, лестницы, лифтовые холлы, а также помещения системы мусороудаления, хозяйственные кладовые и внеквартирные летние помещения.

В квартирах жилища I категории комфорта на сторону магистральных улиц с повышенным уровнем транспортного шума допускается ориентировать вышеперечисленные помещения, а также окна дополнительных помещений.

3.20. [3.18] Выбор строительных и отделочных материалов осуществляется, исходя из критериев их безопасности, в соответствии с Перечнем разрешенных в строительстве материалов и при наличии сертификатов их качества.

3.21. [3.19] Для выявления источников природного и техногенного ионизирующего излучения, в том числе радона на участке и принятия решения о строительстве на нем жилого здания необходимо выполнить замеры по состоянию гамма-фона, уровню радиоактивного излучения, поступлению радона в соответствии с требованиями, изложенными в НРБ-99 и МГСН 1.01-99.

При уровнях гамма-фона и радиоактивного излучения на участке выше нормируемых значений строительство жилого здания не допускается.

Для исключения или ограничения поступления радона в квартиры из технического подполья (технического подвального или цокольного этажа) жилого здания могут быть рекомендованы мероприятия, перечень и ориентировочные показатели эффективности применения которых представлены в табл. 9.

Таблица 9 (рекомендуемая)

МЕРОПРИЯТИЯ, ОГРАНИЧИВАЮЩИЕ ПРОНИКНОВЕНИЕ РАДОНА В ЖИЛЫЕ ПОМЕЩЕНИЯ И ИХ ЭФФЕКТИВНОСТЬ

№№ пп

Мероприятие

Эффективность

1

Герметизация перекрытия между подвальным или цокольным и первым этажом *)

Снижение поступления радиации от грунта

2

Воздухообмен в квартире с кратностью 0,5 м3/час

Сохраняется нормативный уровень содержания радона

3

Покрытие внутренней поверхности стен масляной краской в три слоя

Уменьшение поступления радона от стен в 10 раз

4

Покрытие внутренней поверхности стен слоем краски на эпоксидной основе

Уменьшение поступления радона от стен в 10 раз

5

Оклейка внутренней поверхности стен обоями

Замедление скорости поступления радона на 30 %

*) В зависимости от технических условий герметизация перекрытий со второго по пятый этажи.

ПРОТИВОПОЖАРНЫЕ ТРЕБОВАНИЯ

3.22. [3.22] Подъезд для пожарных автолестниц и автоподъемников к жилому зданию, в котором все квартиры имеют окна, ориентированные на противоположные фасады, может быть предусмотрен (рис. 18):

только к одной стороне - к продольному фасаду многосекционного и коридорного дома;

к двум сторонам - к двум фасадам поворотной секции (со стороны внешнего или внутреннего угла), имеющей двухстороннюю блокировку.

Если в жилом здании имеются квартиры с окнами, выходящими на один фасад, то подъезды для пожарной автолестницы обязательно выполняются с двух сторон этого здания. Подъезд только с одной стороны допускается при условии оборудования такого жилого здания системами противопожарной защиты согласно МГСН 4.04-94*.

Условные обозначения:

1 - квартиры двухсторонней ориентации,

2 - переход по балконам;

3 - квартиры ориентированные в сторону пристройки.

Рис. 18. Проезды пожарных автомашин к фасадам жилых домов.

I - условия проезда пожарных автомашин: а - вдоль продольного фасада, б - при угловом решении жилого здания к двум его сторонам;

II - схемы секций двухсторонней ориентации с одноуровневыми (в) и двухуровневыми (г) квартирами;

III - условия проезда пожарных автомашин к фасаду жилого здания с пристроенным объемом: д, ж - схемы секций; е - разрез.

3.23. [3.23] Пример размещения приемной площадки для транспортно-спасательной кабины вертолета на покрытии жилого здания с высотой расположения верхнего этажа более 65,0 м приведен на рис. 19.

Рис. 19. Пример размещения вертолетной площадки на многоэтажном жилом здании - 22-этажный сборно-монолитный жилой дом (ГУП МНИИТЭП, М2. Архитектор И. Калашникова):

а - разрез; б - план на отметке 86.200; в - план на отметке 82.460.

3.24. [3.26, 3.27, 3.29] Пути эвакуации в жилых зданиях проектируются, исходя из определенных нормируемых параметров.

К минимально нормируемым параметрам относятся:

ширина внеквартирных коридоров в чистоте, составляющая при длине коридора до 40 м - 1,4 м; свыше 40 м - 1,6 м (для всех типов жилых домов, в том числе с квартирами для семей с инвалидами и квартир для престарелых) (табл. 10);

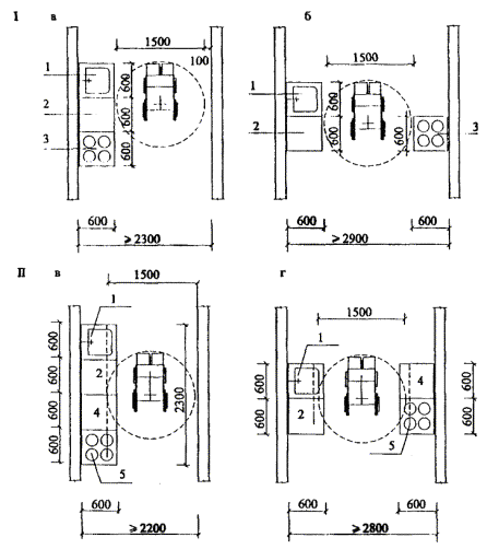
ширина галерей - 1,2 м (табл. 10);

ширина марша пандуса - 1,2 м;

ширина марша внеквартирных лестниц, ведущих на жилые этажи зданий различных типов - 1,05 м (табл. 11);

ширина маршей внутриквартирных лестниц - 0,9 м (рис. 20).

длина пути эвакуации - расстояние от двери квартиры, а также дверей жилой ячейки и поэтажных помещений общественного назначения в общежитиях до ближайшей лестничной клетки или выхода наружу (табл. 12).

Таблица 10

МИНИМАЛЬНАЯ ШИРИНА ВНЕКВАРТИРНОГО КОРИДОРА (ГАЛЕРЕИ)

Тип жилого дома

Схема плана

Минимальная ширина, м

коридора (а)

галереи (b)

1

2

3

4

Односекционные и многосекционные жилые здания

1,4

 

Жилые здания коридорного типа

1,4 *)

1,6 **)

Жилые дома галерейного типа

 

1,2

*) до 40,0 м включительно;

**) более 40,0 м.

Таблица 11

ПАРАМЕТРЫ МАРШЕЙ ЛЕСТНИЦ В ЖИЛЫХ ДОМАХ РАЗЛИЧНЫХ ТИПОВ

Тип жилого дома

Схема плана

Этажи

Максимальный уклон лестницы

Минимальная ширина марша лестницы (d), м

1

2

3

4

5

А. ВЕДУЩИХ НА ЖИЛЫЕ ЭТАЖИ

Односекционные жилые здания

2 эт.

1:5

1,05

³ 3 эт.

1:1,75

Многосекционные жилые здания

2 эт.

1:5

1,05

³ 3 эт.

1:1,75

Жилые здания коридорного типа

³ 2 эт.

1:1,75

1,2

(1,05)*

Жилые дома галерейного типа

³ 2 эт.

1:1,75

1,2

(1,05)*

Б. ВЕДУЩИХ В ПОДВАЛЬНЫЙ И ЦОКОЛЬНЫЙ ЭТАЖИ

Все типы жилых зданий

 

 

1:1,25

0,9

В. ВНУТРИКВАРТИРНЫХ ЛЕСТНИЦ

Все типы жилых зданий

 

 

1:1,25

0,9

*) при числе проживающих на этаже до 100 чел.

Таблица 12

ДЛИНА ПУТИ ЭВАКУАЦИИ

(МАКСИМАЛЬНОЕ РАССТОЯНИЕ ОТ ДВЕРЕЙ КВАРТИРЫ ДО ВЫХОДОВ В ДОМАХ РАЗЛИЧНЫХ ТИПОВ)

*) в тупиковом внеквартирном коридоре без естественного освещения или освещении вторым светом

Рис. 20. Типы внутриквартирных лестниц.

I - одномаршевые лестницы (а - к);

II - двухмаршевые лестницы (л - н);

III - винтовая лестница;

IV - трехмаршевая лестница;

V - минимальные параметры лестниц:

Условные обозначения:

высота прохода - d;

высота подступенка - h;

длина проступи - а.

3.25. [3.30] Выбор типов лестничных клеток в секционных жилых зданиях в качестве путей эвакуации следует осуществлять с учетом ограничений, связанных с суммарной площадью квартир (жилых ячеек общежитий) на этаже, а также высотой расположения верхнего этажа жилого здания.

Максимальная отметка пола верхнего этажа жилого здания определяется от уровня проезжей части ближайшего к дому пожарного проезда до уровня расположения верхнего (в том числе мансардного) этажа независимо от того, является ли этот этаж первым, вторым или другим уровнем квартиры.

При суммарной площади квартир (жилых ячеек общежитий) на этаже секции до 500 м2 в жилище I и II категории комфорта следует проектировать один эвакуационный выход из каждой квартиры (жилой ячейки) на лестничную клетку (табл. 13).

Таблица 13

ПРИМЕНЕНИЕ ЛЕСТНИЧНЫХ КЛЕТОК РАЗЛИЧНЫХ ТИПОВ В КАЧЕСТВЕ ПУТЕЙ ЭВАКУАЦИИ В СЕКЦИОННЫХ ЖИЛЫХ ЗДАНИЯХ

В зависимости от высоты расположения верхнего этажа этот выход следует предусматривать:

на незадымляемую лестничную клетку типа Н1 - для жилых зданий высотой не более 75,0 м и с этажностью 25 этажей включительно;

на лестничную клетку типа ЛI - для жилых зданий высотой не более 28,0 м с этажностью 10 этажей включительно.

Если суммарная площадь квартир на этаже секции не более указанной выше, то допускается один эвакуационный выход:

на лестничную клетку типа Л2 (с учетом п. 6.35 и п. 6.39* СНиП 21-01-97*) -для жилых зданий высотой не более 9,0 м и с этажностью 3 этажа включительно;

на лестничную клетку типа Л2 - для жилых зданий не более 28,0 м и с этажностью 10 этажей включительно;

на незадымляемые лестничные клетки типов Н2 или Н3 - для жилых зданий высотой не более 50,0 м с этажностью 17 этажей включительно.

В табл. 14 и 15 приведены примеры решений лестничных клеток различных типов, обозначения которых даны согласно СНиП 21-01-97*: в табл. 14 - типа «Л» (обычные), а в табл. 15 - типа «Н» (незадымляемые).

Таблица 14

СХЕМЫ ОБЫЧНЫХ ЛЕСТНИЧНЫХ КЛЕТОК

 - входы в квартиры

 - световой фонарь

 - световая шахта

Таблица 15

СХЕМЫ НЕЗАДЫМЛЯЕМЫХ ЛЕСТНИЧНЫХ КЛЕТОК

Условные обозначения:

 входы в квартиры;     подпор;      дымоудаление;

Примеры планировочных решений секционных жилых домов с лестницами различных типов приведены на рис. 21 и 22.

Рис. 21. Примеры секций с обычной лестничной клеткой типа Л1.

а - фрагмент плана типового этажа секции жилого дома И-1509 (МНИИТЭП, М4. Архитекторы: В. Датюк, Р. Богуславский и другие); б, в - фрагменты секций.

Рис. 22. Примеры решения аварийных выходов из квартир в секционных жилых домах с незадымляемыми лестничными клетками.

а - лестничная клетка типа Н1 в 17-этажной секции серии ГМС-2001 (ОАО ЦНИИЭП жилища);

б - лестничная клетка типа Н2 в 14-этажной секции серии П55М (ГУП МНИИТЭП);

в - лестничная клетка типа Н1 в 23-этажной секции серии П3М (ГУП МНИИТЭП).

3.26. [3.30] При проектировании незадымляемой лестничной клетки типа Н1 следует обеспечивать:

ширину прохода к воздушной зоне - не менее 1,1 м для возможности беспрепятственной транспортировки носилок с лежащим на них человеком;

ширину прохода по воздушной зоне - не менее 1,2 м, высоту ограждения - не менее 1,2 м;

расстояние между дверными проемами лестничной клетки и ближайшим окном - не менее 2,0 м при размещении во внутренних углах жилых зданий и обеспечении незадымляемости воздушной зоны с учетом п. 6.37 СНиП 21-01-97*.

При проектировании незадымляемых лестничных клеток типа Н2 следует обеспечивать:

выполнение не менее двух дверей на проходе к лестничной клетке;

выход на лестничную клетку через тамбур (или лифтовой холл с противопожарными дверями с пределом огнестойкости не менее ЕI 30).

3.27. [3.30] Необходимые планировочные и конструктивно-технические требования, которые следует обеспечивать при проектировании секционного жилого дома с лестничной клеткой типа Л2 с верхним естественным освещением через светопроемы в покрытии отражены в табл. 16.

Таблица 16

ПЛАНИРОВОЧНЫЕ И ДРУГИЕ КОНСТРУКТИВНО-ТЕХНИЧЕСКИЕ ПРОТИВОПОЖАРНЫЕ ТРЕБОВАНИЯ К РЕШЕНИЮ СЕКЦИОННЫХ ЖИЛЫХ ДОМОВ ПРИ ИСПОЛЬЗОВАНИИ ЛЕСТНИЧНОЙ КЛЕТКИ ТИПА Л2

Аварийные выходы

Схема плана

Высота расположения верхнего этажа, м (этажность жилого здания)

до 8,4 (до 3 этажей включительно)

а

выход из каждой квартиры 2 и 3 этажей на балкон (лоджию) с глухим простенком ³ 1,2 м от торца балкона (лоджии) до остекленного проема или ³ 1,6 м между остекленными проемами, выходящими на балкон

от 8,4 до 28,0 (до 10 этажей включительно)

б

выход из каждой квартиры 2 и выше этажей на балкон (лоджию), оборудованную наружной лестницей поэтажно их соединяющей со спуском до 2 этажа (с высотой расположения £ 5,6 м)

 

Схема разреза

Планировочные и конструктивно-технические требования

 

(1) - площадь светопроемов ³ 4,0 кв.м

 

(2) - просветы между маршами шириной ³ 0,7 кв.м или

(3) - световая шахта на всю высоту лестничной клетки с площадью горизонтального сечения ³ 2 кв.м

(4) - установка защитных сеток (рекомендуемое)

 

(5) - открывание створок (фрамуг) в светопроемах вручную

 

(4) - установка защитных сеток

 

(6) - установка дверей лестничных клеток с пределом огнестойкости ³ ЕI 30

 

(7) - площадь светопроемов ³ 11,5 кв.м

(8) - световая шахта на всю высоту лестничной клетки с площадью горизонтального сечения ³ 4 кв.м

(9) - выходы из квартир через внеквартирный поэтажных коридор (холл) или тамбур

 

(10) - оборудование квартир автоматической пожарной сигнализацией

 

(11) - автоматическое открывание при пожаре створок (фрамуг) в светопроемах дистанционными устройствами

 

Этот тип лестничной клетки не допускается применять в специализированных квартирных жилых домах для престарелых и семей с инвалидами.

3.28. [3.31] Аварийный выход является обязательным в зданиях секционного типа, начиная с высоты расположения этажа 15,0 м и более: в жилых домах - для квартир, а в общежитиях - для жилых ячеек и поэтажных помещений общественного назначения.

Аварийный выход в жилых зданиях секционного типа может выполняться в вариантах согласно табл. 17.

Таблица 17

АВАРИЙНЫЕ ВЫХОДЫ В ЖИЛЫХ ЗДАНИЯХ СЕКЦИОННОГО ТИПА

Аварийные выходы

Типы лестничных клеток

Варианты

Схемы планов

Обычная

Незадымляемые

Л1

Н1

Н2

Н3

а на балкон (лоджию) с глухим - простенком ³ 1,2 м от торца балкона (лоджии) до остекленного проема или ³ 1,6 м между остекленными проемами

+

+

+

+

б выход на поэтажный переход в смежную секцию по балконам (лоджиям) шириной ³ 0,6 м

+

+

+

+

в выход на балкон (лоджию), оборудованную наружной лестницей

со спуском до 6 этажа

из коридора со спуском до 2 этажа

+

+

+

+

+

+

+

+

При этом в специализированных квартирных жилых домах для престарелых и для семей с инвалидами применение наружной лестницы в качестве аварийного выхода не допускается.

В пределах этажа секции с незадымляемой лестничной клеткой могут применяться различные варианты аварийных выходов. Так, например, возможен вариант, когда в одних квартирах (жилых ячейках) предусматриваются поэтажные переходы через воздушную зону, в других - выходы на летние помещения с глухими простенками, а в третьих - выходы на летние помещения, оборудованные наружными лестницами.

Примеры решения аварийных выходов из квартир в секционных жилых домах показаны на рис. 23.

3.29. [3.32, 3.33] Применение лестничных клеток различных типов в коридорных жилых зданиях в качестве путей эвакуации может быть достаточно разнообразным. Их выбор зависит от суммарной площади квартир (или жилых ячеек общежитий) на этаже и высоты расположения верхнего этажа жилого здания. Варианты решения путей эвакуации для жилых зданий коридорного типа приведены в табл. 18.

3.30. [3.34] Площадь этажа секции (а также этажа коридорного или галерейного жилого дома с наружной лестницей) жилого дома может составлять от 500 м2 до 800 м2.

В этом случае предусматриваются следующие компенсирующие противопожарные мероприятия:

автоматическая пожарная сигнализация в квартирах - при высоте расположения верхнего этажа не более 28,0 м;

адресная сигнализация или автоматическое пожаротушение во всех помещениях квартиры (кроме санузлов, саун и построчных) - при высоте расположения верхнего этажа более 28,0 м;

проходы к лестничным клеткам через внеквартирные коридоры (галереи, холлы или тамбуры);

противопожарные двери лестничных клеток и лифтовых холлов с пределом огнестойкости не менее ЕI 30.

Рис. 23. Примеры решения аварийных выходов из квартир в секционных жилых домах.

I - габариты вариантов глухих простенков (а, б, в);

II - варианты решений аварийных выходов: г - 7-этажная секция серии П46М с лестничной клеткой типа Л1 (ГУП МНИИТЭП); д - 17-этажная секция серии IIIМ с лестничной клеткой типа Н1 (ОАО ЦНИИЭП жилища); е - фрагмент плана угла здания из секций серии П3М с лестничной клеткой типа Н2 (ГУП МНИИТЭП).

Таблица 18

ЭВАКУАЦИОННЫЕ ПУТИ В КОРИДОРНЫХ И ГАЛЕРЕЙНЫХ ЖИЛЫХ ЗДАНИЯХ

Условные обозначения:

Л1 - обычная лестничная клетка;

Н1 и Н2 - тины незадымляемых лестничных клеток;

*) - наружная открытая лестница

3.31. [3.37] Многоэтажные (многоуровневые) квартиры могут проектироваться в жилых зданиях с отметкой пола верхнего этажа (в том числе мансардного) до 75,0 м включительно. Выход на лестничную клетку из многоэтажных (многоуровневых) квартир допускается выполнять через этаж.

Схемы разрезов двухуровневых и трехуровневых квартир в секционных жилых домах с выходами (эвакуационными) в лестничные клетки и на летние помещения (аварийные выходы) приведены на рис. 24.

Внутриквартирные лестницы могут проектироваться одно-, двух- или трехмаршевыми, в том числе с забежными ступенями, а также винтовыми варианты решений внутриквартирных лестниц приведены на рис. 20.

3.32. [3.36] Требования к многоуровневым квартирам, проектируемым в многоквартирных жилых домах и имеющим выходы непосредственно наружу отражены в табл. 19 и 20. Такие квартиры допускается располагать в одном или двух надземных и в цокольном этажах, или в одном или двух надземных и подвальном этажах.

3.33. [3.42] Требования к внеквартирным хозяйственным кладовым, размещаемым в первом, цокольном и подвальном этажах многоквартирных жилых домов секционного и коридорного типов отражены в табл. 21. Примеры планировочных решений внеквартирных хозяйственных кладовых в многоквартирных жилых домах даны на рис. 59.

3.34. [3.43] Варианты размещения каминов на твердом топливе (в квартирах многоквартирных жилых домов на верхнем этаже или на любом уровне последней по высоте многоуровневой квартиры, а также на любом уровне в одноквартирном или блокированном жилом доме) приведены на рис. 25.

Обязательным требованием для каминов является устройство автономных дымоходов, проходящих через помещения квартиры, в которой они располагаются.

Рис. 24. Пути эвакуации в многоуровневых квартирах.

I - пути эвакуации из двухуровневых квартир (а, б);

II - пути эвакуации из трехуровневых квартир (в);

III - пример решения квартиры в двух уровнях (МНИИТЭП, М2. Проектное предложение. Архитектор И. Калашникова):

г - план верхнего уровня; д - план нижнего уровня.

Условные обозначения:

 -многоуровневые квартиры;

* - основной путь эвакуации через лестничную клетку

 -аварийный путь эвакуации

Таблица 19

ТРЕБОВАНИЯ К МНОГОУРОВНЕВЫМ КВАРТИРАМ, РАЗМЕЩАЕМЫМ В ЦОКОЛЬНОМ, ПОДВАЛЬНОМ И 1 - 2 НАЗЕМНЫХ ЭТАЖАХ

*) Пунктиром показаны поэтажные варианты размещения помещений квартир.

**) Кроме бассейнов и саун

***) Кроме уборных, ванных комнат, душевых, санузлов и построчных.

****) При отметке пола нижнего этажа > 0,5 м от планировочной отметки земли.

Таблица 20

ТРЕБОВАНИЯ К ГАРАЖАМ-СТОЯНКАМ, РАЗМЕЩАЕМЫМ В МНОГОУРОВНЕВЫХ КВАРТИРАХ В ЦОКОЛЬНОМ И 1 ЭТАЖАХ

*) С учетом требований табл. 19.

Условные обозначения:

· - этажи размещения;

L - величина заглубления пола нижнего этажа относительно планировочной отметки земли;

Н - высота помещения

Таблица 21

ТРЕБОВАНИЯ К ВНЕКВАРТИРНЫМ ХОЗЯЙСТВЕННЫМ КЛАДОВЫМ В МНОГОКВАРТИРНЫХ ЖИЛЫХ ЗДАНИЯХ

Условные обозначения:

* - неоткрываемые окна (EI 30) размерами 0,9 ´ 1,2 м;

* - неоткрываемые окна (EI 30) размерами 0,9 ´ 1,2 м с приямками;

Условные обозначения:

1 - дымосборник; 2 - каминная доска; 3 - портал камина; 4 - топливник; 5 - пол камина; 6 - предтопочная площадка; 7 - предтопочный лист; А - ширина портала; Б - высота портала; В - глубина топливника; Г - высота горловины; а - глубина сечения трубы; б - ширина сечения трубы.

Рис. 25. Решение каминов в одноквартирных домах или квартирах многоквартирных жилых домов.

I - схемы размещения каминов в квартирах верхних этажей многоквартирных жилых домов:

а - в одноуровневой квартире; б, в - в двухуровневой квартире; г - в трехуровневой квартире;

II - схемы решения камина (фасад, разрез, план);

III - варианты размещения камина в помещении;

IV - таблица 22 «Основные размеры каминов (см) в зависимости от площадей помещений».

Примечания. 1. Схемы II и таблица 22 - по материалам Л. Агаянц, В. Масютина и др. Жилой дом для индивидуального застройщика. - М.: Стройиздат, 1991.

2. Схема III - по материалам архитектора Х. Бутусова.

Таблица 22 (рекомендуемая)

ОСНОВНЫЕ РАЗМЕРЫ КАМИНОВ (см) В ЗАВИСИМОСТИ ОТ ПЛОЩАДЕЙ ПОМЕЩЕНИЙ

Площадь помещения м2

А

Б

В

Г

а ´ б

14 - 16

55

50

35

12

14 ´ 27

16 - 18

60

53

36

12

14 ´ 27

18 - 20

65

56

37

12

14 ´ 27

20 - 24

70

60

38

13

27 ´ 27

24 - 30

75

65

40

13

27 ´ 27

НЕЖИЛЫЕ ПОМЕЩЕНИЯ

3.35. [3.50] Перечень предприятий и учреждений общественного обслуживания, допускаемых к размещению встроенными и встроенно-пристроенными в надземные этажи жилых зданий даны в приложении 5 МГСН 3.01-01 и дополнении 1 к МГСН 3.01-01.

Номенклатура предприятий и учреждений общественного обслуживания, допускаемых к размещению встроенными и встроенно-пристроенными в реконструируемые 4 - 5-этажные жилые дома I периода индустриального домостроения при отселении проживающих в здании, приведен в табл. 23. Данной номенклатурой допускается руководствоваться при разработке проектов реконструкции жилых домов без отселения при согласовании с проживающими.

Таблица 23

Номенклатура учреждений и предприятий обслуживании, допускаемых к размещению в реконструируемых 4 - 5-этажных жилых домах I периода индустриального домостроения

Наименование

размещ.

Мощн.

Примечание

5.1. Дошкольные учреждения

Малые дошкольные учреждения 1)

В

0,5 - 1,0 группы (5 - 10 чел.)

частные; возраст 3 - 7 лет; без спального помещения и блока питания; с площадкой для прогулок; не более одного на дом

Прогулочная группа, дежурная дневная группа кратковременного присмотра (в том числе при квартире) 1)

В

0,5 - 1,0 группы (5 - 10 чел.) 50 м2

- ² -

5.2. Учреждения здравоохранения и социального обеспечения *)

Микрополиклиника на 1 или 2-х семейных врачей 2)

м

180 м2

частные

Микрополиклиника на 2-х врачей (семейного и стоматолога) 2)

м

180 м2

- ² -

Стоматологическая поликлиника на 2-х врачей 2)

м

80 м2

частные; без кабинета для протезирования

Аптека 7 - 8 группы, в том числе хозрасчетная 2)

м

200 м2

два эвакуационных выхода

Аптечный киоск, в том числе хозрасчетный 2)

М

в

12 м2

 

Административное отделение центра социального обслуживания населения (ЦСО) 3, 4)

М

в

200 м2

два эвакуационных выхода при количестве сотрудников более 15 чел.

Учреждения платных социальных услуг (без проживания) 3, 5)

м

100 м2

- ² -

Подразделения управлений социальной защиты населения 3)

м

100 м2

- ² -

5.3. Предприятия торговли (непродовольственные товары) *)

Специализированные магазины с узким или ограниченным ассортиментом «Книги» 6)

м

до 100 м2

 

5.5 Предприятия бытового обслуживания *)

Мастерские по ремонту часов, ювелирных изделий и фотоаппаратов

М

до 100 м2

 

5.6. Учреждения досугового назначения *)

Помещение для собраний жителей и работы с населением 8)

М

В

до 50 м2

 

Творческая мастерская художника, архитектора 8)

м

в

до 30 м2

 

Музей-квартира 8)

м

в

до 100 м2

 

Выставочный зал 8)

м

до 100 м2

 

5.7. Учреждения управления, проектирования, информации, связи, коммунального хозяйства, конторские (офисные) помещения для других типов коммерческой деятельности *)

Административные учреждения (отделения): управы, службы занятости, инспекции, управления, офисы, представительства и другие государственные учреждения 8)

м

до 200 м

с фиксированным режимом функционирования; 2 эвакуационных выхода при количестве сотрудников более 15 чел

Общественные организации и их структурные подразделения 8)

м

до 200 м2

- «-

Учреждения страхования: инспекции Госстраха, страховые компании 8)

м

до 200 м2

- «-

Юридические консультации, нотариальные, адвокатские конторы 8)

м

до 200 м2

- «-

Отделения диспетчерской связи

м

в

до 150 м2

- «-

ДЭЗ (без мастерских) и их отделения (ДЕЗ, ЖЭК, УВЖД) 8)

м

в

до 200 м2

- «-

*) Для учреждений и предприятий подразделов 5.2, 5.3, 5.5 - 5.7 - с обеспечением подъезда и стоянок для автотранспорта.

М - размещение на магистральной улице,

В - размещение во внутриквартальной застройке.

Примечания. 1. МГСН 4.07-96 «Дошкольные учреждения», Пособие к МГСН 4.07-96.

2. МГСН 4.12-97 «Лечебно-профилактические учреждения», Пособие к МГСН 4.12-97.

3. МГСН 4.09-97 «Здания органов социальной защиты населения»; Пособие к МГСН 4.09-97.

4. «Программы-задания на проектирование центров социального обслуживания» / ЛТЖС МНИИТЭП.

5. «Рекомендации по проектированию объектов малого предпринимательства в г. Москве» / ИОЗ. - М., 2002.

6. МГСН 4.13-97 «Предприятия розничной торговли».

7. МГСН 4.18-99 «Предприятия бытового обслуживания населения», Пособие к МГСН 4.18-99.

8. С учетом нормативно-методических документов.

9. МГСН 4.10-97 «Здания банковских учреждений», Пособие к МГСН 4.10-97.

10. Размещение других нежилых помещений, кроме перечисленных в табл. 25, по согласованию с органами ЦГСЭН, отделами пожарного надзора и АПУ.

Примеры размещения встроенных в нижние этажи жилых зданий нового строительства учреждений социального и общественного назначения приведены на рис. 26, а в первый этаж реконструируемого 5-этажного жилого дома серии I-515 - на рис. 27.

Рис. 26. Примеры планировочных решений нежилых помещений, встроенных в нижние этажи жилых зданий.

I - жилой дом И-1279 в сборно-монолитных конструкциях с двумя нежилыми этажами: а - план первого этажа (МНИИТЭП, М2. Архитектор И. Калашникова).

10 - распределительный вестибюль; 11 - торговый зал мастерской по ремонту радио-телеаппаратуры; 12 - приемочная; 13 - мастерские; 14 - подсобные помещения; 15 - административно-бытовые помещения; 16 - вестибюль спортивно-оздоровительного комплекса; 17 - спортзал; 18 - раздевалка с душевой; 19 - массажная; 20 - кабинет врача; 21 - камера сухого жара; 22 - ДТП;

II - секция дома серии П44Т со встроенными предприятиями общественного обслуживания без конкретной технологии: б - план первого этажа (ГУП МНИИТЭП, М1. Архитекторы: А. Надысев, О. Орлеанская);

III - кирпичный жилой дом с двумя нежилыми этажами (ул. Тверская, д. 47): в - план первого этажа; г - план второго этажа.

1 - парикмахерская, 2 - торговый зал, 3 - складские помещения, 4 - административно-бытовые помещения, 5 - торговый зал кафетерия, 6 - производственные помещения кафетерия, 7 - подсобные помещения кафетерия, 8 - подсобные помещения, 9 - диспетчерская.

Условные обозначения:

1 - помещение дежурного по подъезду; 2 - помещение для переговоров; 3 - кабинет бухгалтерии; 4 - комната отдыха; 5 - кабинет начальника инспекции; 6 - служебное помещение; 7 - справочная; 8 - помещение для приема пищи; 9 - мастерская художника; 10 - игровая комната для детей; 11 - комната воспитателя; 12 - раздевалка; 13 - кабинет начальника управления; 14 - кабинет заместителя начальника управления; 15 - холл-приемная; 16 - секретарь; 17 - комната охраны; 18 - офисное помещение; 19 - помещение для оформления заказов на ремонт квартир; 20 - кабинет дизайнера и флориста; 21 - кабинет администратора; 22 - зал для посетителей; 23 - помещение для оформления заказов на услуги по уборке квартир и мойке окон; 24 - подсобное помещение; 25 - помещение выездных мастеров; 26 - помещение для оформления транспортных услуг; 27 - кабинет адвоката; 28 - кабинет нотариусов; 29 - помещение для секретаря-машинистки.

Рис. 27. Встроенные объекты социального и общественного назначения в первые этажи реконструируемой секций серии I-511 (ОАО ЦНИИЭП жилища. Архитекторы: М. Магай, О. Евтенева):

а - инспекция Госстраха;

б - административные учреждения (управления, офисы);

в - юридическая контора;

г - творческая мастерская и группа дневного пребывания;

д - бюро посреднических услуг.

3.36. [3.56] Перечень предприятий и учреждений общественного обслуживания, не допускаемых по их функциональному назначению к размещению встроенными и встроенно-пристроенными в любые жилые здания, дан в табл. 24, а с учетом дополнительных конструктивных и планировочных ограничений для реконструируемых 4 - 5-этажных жилых домов I периода индустриального домостроения - в табл. 25.

Таблица 24

Общие ограничения по размещению учреждений и предприятий обслуживания в жилых зданиях нового строительства и реконструируемых 4 - 5-этажных жилых домах I периода индустриального домостроения

Не допускается встраивать в надземные этажи

Не допускается встраивать в цокольный и подвальный этажи

1

2

5.1. Дошкольные учреждения

При количестве групп, классов, человек более указанных в МГСН 3. 01-01

Все объекты номенклатуры

5.2. Учреждения здравоохранения и социального обеспечения

Специализированные поликлиники или диспансеры с инфицированным материалом (противотуберкулезного, онкологического, кожно-венерологического профиля и др.); психодиспансеры; травмотологические пункты; кабинеты с рентгеновскими аппаратами, физиотерапевтической аппаратурой, магниторезонансными томографами, зуботехнические лаборатории; по номенклатуре учреждений здравоохранения и социального обеспечения МГСН 3.01-01 при площади, числе посещений в смену или мест более указанных в данном приложении

Требования графы 1 настоящей таблицы при учете требований МГСН 4.09-97, МГСН 4.12-97;

Помещения для пребывания детей; 1)

Помещения для хранения, переработки и использования в различных установках и устройствах легковоспламеняющихся и горючих жидкостей и газов, взрывчатых веществ, горючих материалов;

Помещения с пребыванием в одном противопожарном отсеке с самостоятельными эвакуационными выходами более 100 человек.

5.3. Предприятия торговли

Специализированные магазины москательно-химических товаров, эксплуатация которых может вести к загрязнению воздуха и территории жилой застройки, рыбные магазины, магазины с режимом функционирования после 23 ч; по номенклатуре предприятий торговли МГСН 3.01-01 при торговой площади и общей площади более указанных в данном приложении

Требования графы 1 настоящей таблицы при учете требований МГСН 4.13-98;

Помещения для хранения, переработки и использования в различных установках и устройствах легковоспламеняющихся и горючих жидкостей и газов, взрывчатых веществ, горючих материалов;

Помещения с пребыванием в одном противопожарном отсеке с самостоятельными эвакуационными выходами более 100 человек

5.4. Предприятия питания

Клубы, кафе, бары, рестораны - с режимом функционирования после 23 ч и с оркестровым сопровождением;

по номенклатуре предприятий питания МГСН 3.01-01 при числе мест и общей площади более указанных в данном приложении

Требования графы 1 настоящей таблицы;

Помещения для пребывания детей

5.5. Предприятия бытового обслуживания

Предприятия бытового обслуживания, эксплуатация которых может вести к загрязнению воздуха и территории жилой застройки, а также с наличием взрывопожароопасных веществ и материалов, прачечные, химчистки 2)

По номенклатуре учреждений бытового обслуживания МГСН 3.01-01 при общей площади более указанной в данном приложении.

Требования графы 1 настоящей таблицы при учете требований МГСН 4.13-98;

Помещения для хранения, переработки и использования в различных установках и устройствах легковоспламеняющихся и горючих жидкостей и газов, взрывчатых веществ, горючих материалов;

Помещения с пребыванием в одном противопожарном отсеке с самостоятельными эвакуационными выходами более 100 человек

5.6. Учреждения досугового назначения

По номенклатуре учреждений досугового назначения согласно МГСН 3.01-01 при площади, числе посещений или мест более указанных в данном приложении;

Кружки музыкальные и танцевальные;

Театры и театральные студии;

Бани и сауны; 3)

Казино;

Дискотеки

Требования графы 1 настоящей таблицы;

Помещения для пребывания детей;

Зальные помещения с числом мест более 300.

5.7. Учреждения управления, проектирования, информации, связи, коммунального хозяйства, конторские (офисные) помещения для других типов коммерческой деятельности

Похоронные бюро; общественные уборные; автоматические телефонные станции площадью более 100 м2.

Требования графы 1 настоящей таблицы и МГСН 4.10-97.

При номенклатуре учреждений типологической группы МГСН 3.01-01 при количестве сотрудников, площади и количестве залов более указанных в данном приложении.

 

5.8. Учреждения внешкольного обучение детей и подростков

При номенклатуре учреждений типологической группы МГСН 3.01-01 при количестве мест и площади более указанных в данном приложении

Помещения для пребывания детей

5.9. Учебные учреждения и курсы

При номенклатуре учреждений типологической группы МГСН 3.01-01 при количестве мест и площади более указанных в данном приложении.

Требования графы 1 настоящей таблицы

Помещения для пребывания детей

По другим функциональным группам

Общеобразовательные учреждения

Школы всех типов - согласно требований МГСН 4.06-96

Производственно-складские помещения

Производственные помещения.

Склады оптовой и мелкооптовой торговли 4)

Примечания: 1. Возраст до 14 лет.

2. Кроме приемных пунктов прачечных самообслуживания и домашних прачечных.

3. Кроме индивидуальных саун в квартирах и одноквартирных жилых домах.

4. Кроме помещений для труда инвалидов и престарелых - в составе специализированных квартирных жилых домов пунктов выдачи работы на дом, мастерских сборочных, монтажных, декоративных работ и других с чистыми технологическими процессами.

Таблица 25

Номенклатура учреждений и предприятий обслуживания, не допускаемых к размещению в реконструируемых 4 - 5-этажных жилых домах I периода индустриального домостроения

Наименование функциональной группы

Наименование предприятия (учреждения)

1

2

5.1. Дошкольные учреждения

Дежурная круглосуточная группа кратковременного присмотра

5.2. Учреждения здравоохранения и социального обеспечения

Поликлиника и микрополиклиника; женская консультация; стоматологическая поликлиника

Оздоровительный центр

Раздаточный центр молочной кухни

Центры медико-социальной реабилитации инвалидов

5.3. Предприятия торговли

Интернет-магазины

5.4. Предприятия питания

Кафе, столовая (в т.ч. диетическая и раздаточная), закусочная, ресторан, бар, магазины кулинарии

5.5. Предприятия бытового обслуживания

Салон красоты, парикмахерская; мастерские по ремонту часов и ювелирных изделий, обуви, бытовых машин и приборов; ателье; фотографии; прачечные самообслуживания

5.6. Учреждения досугового назначения

Физкультурно-оздоровительные учреждения

Зал компьютерных игр; игротека для детей; помещения игровых автоматов для детей; видеосалон

5.7. Учреждения управления, проектирования, информации, связи, коммунального хозяйства, конторские (офисные) помещения для других типов коммерческой деятельности

Судебные и юридические учреждения; суды, прокуратуры первичного звена

Расчетно-кассовые центры

Проектные и конструкторские организации

Теле- и радиоцентры; центры научно-технической информации; научно-технические библиотеки, издательства, редакции, рекламные и информационные агентства;

Конторские (офисные) помещения для других типов коммерческой деятельности, бизнес-центры, помещения для обучения предпринимательской деятельности

5.8. Учреждения внешкольного обучение детей и подростков

Курсы, группы, студии по углубленному изучению предметов школьной программы и специальным предметам

5.9. Учебные учреждения и курсы

Курсы репетиторские, иностранного языка, компьютерные курсы, курсы, группы по повышению квалификации, профессиональной переподготовке и подготовке к поступлению в ВУЗы

3.37. [3.51] В первом, цокольном и подземном этажах одноквартирных и блокированных жилых домов при наличии потребностей в объектах повседневного и периодического обслуживания с учетом градостроительных требований допускается проектировать встроенные (встроенно-пристроенные), а также пристроенные нежилые помещения согласно номенклатуре п. 3.51 МГСН 3.01-01.

3.38. [3.53] На любом из этажей общежитий и специализированных квартирных жилых домов для престарелых и для семей с инвалидами могут размещаться помещения, необходимые по технологическим требованиям. К таким помещениям, например, относятся: комнаты социальных работников или гостиные - в специализированных квартирных жилых домах для престарелых и для семей с инвалидами, а также комнаты отдыха, помещения для занятий и постирочные - в общежитиях.

При проектировании помещений общественного назначения в общежитиях и специализированных квартирных жилых домах для престарелых или семей с инвалидами эвакуационные выходы из этих помещений допускается объединять с эвакуационными выходами из жилой части здания.

Примеры размещения комнаты отдыха и помещения для занятий в общежитии, а также гостиной в специализированном квартирном жилом доме для престарелых показаны на рис. 28.

3.39. [3.54] В многоквартирных жилых, домах (кроме блокированных) допускается проектировать рекреационные зоны, предназначенные для пользования только жителями дома (как правило, в жилище I категории комфорта). С учетом размещения эти зоны могут включать:

на эксплуатируемой кровле и открытых нежилых этажах - площадки озелененные для отдыха взрослых, спортивные, хозяйственные для сушки белья и чистки вещей, а также солярии;

на кровлях встроенно-пристроенных и пристроенных предприятий общественного назначения, а также на кровлях соединительных элементов между жилыми зданиями - площадки озелененные для отдыха взрослых;

на козырьках над входной зоной и на летних внеквартирных помещениях - площадки хозяйственные для сушки белья и чистки вещей.

При этом следует обеспечивать технологические, санитарно-гигиенические, противопожарные требования и меры безопасности от падения. В том числе следует предусматривать: сплошное или сетчатое ограждение по периметру кровли; выходы инженерных систем на кровле на недоступных для посетителей площадках или проектировать их ограждение; шумозащитные мероприятия, в том числе устройство технического чердака.

Перечень элементов благоустройства указанных рекреационных зон принимается по заданию на проектирование с учетом положений «Рекомендаций по проектированию озеленения и благоустройства крыш жилых и общественных зданий и других искусственных оснований». Примеры решений эксплуатируемых кровель приведены на рис. 29.

Условные обозначения:

1 - кухня;

2 - общая комната;

3 - спальня;

4 - жилая комната в общежитии.

Рис. 28. Примеры размещения нежилых помещений в промежуточных этажах жилых зданий.

I - гостиная (а) в специализированном квартирном жилом доме для одиноких престарелых и супружеских пар. План типового этажа (МНИИТЭП, М4. Архитекторы: В. Датюк, Е. Суслина, В. Ландиховская).

II - комната отдыха (б) и комната для занятий (в) в общежитии для студентов и аспирантов. Схема плана типового этажа.

Рис. 29. Примеры решений рекреационных помещений в жилых зданиях.

а - эксплуатируемая кровля жилого комплекса по ул. Шверника, д. 18 (МНИИТЭП, проектное предложение. Архитекторы: Н. Остерман, А. Петрушкова, И. Канаева и другие);

б - эксплуатируемая кровля двухэтажного гаража-стоянки, пристроенного к жилому дому по ул. Наметкина.

3.40. [3.55] Гаражи-стоянки для проживающих в жилых домах могут быть встроенными и встроенно-пристроенными в первый, подземный и цокольный этажи как в одноквартирных и блокированных жилых домах, так и в многоквартирных жилых домах других типов. В эти гаражи-стоянки не должны включаться помещения для ремонта и мойки автомобилей.

При этом следует предусматривать устройство въездов (выездов) вне зон окон жилых комнат, выносные козырьки над въездами, а также отделение (при необходимости) жилой части техническим этажом.

Проектируя под многоквартирными жилыми зданиями открытые автостоянки, для уменьшения загрязнения воздушной среды от воздействия личного автотранспорта следует предусматривать устройство выносных козырьков по периметру здания (шириной не менее 1,0 м), а также отделение жилой части техническим этажом.

Примеры размещения гаражей-стоянок в одноквартирных и блокированных жилых домах приведены на рис. 1 - 2, в многоквартирных жилых домах - на рис. 30, открытой автостоянки - на рис. 31.

Рис. 30. Примеры подземных этажей под жилыми домами.

I - гараж-стоянка под жилым домом серии Пд4 (МНИИТЭП, М4. Архитекторы: Г. Горчаков и Е. Староносова): а - разрез, б - план.

II - гараж-стоянка под 24-этажным каркасно-панельным жилым домом на Кантемировской ул., к. 8 (ОАО Моспроект. Архитектор М. Скулимовский): в - план;

III - гараж-стоянка под 3-секционным жилым домом серии П44/17 (МНИИТЭП): г - разрез, д - план;

IV - гараж-стоянка под жилым домом в 1-ом Колобовском пер., д. 18 - 24 (ГУП Моспроект-2, М18, стадия проект. Руководитель авторского коллектива М. Посохин, архитекторы М. Плеханов и А. Левитина): с - разрез, ж - план.

Рис. 31. Пример размещения открытой автостоянки под многоквартирным жилым домом серии «Юбилейный» (ГУП МШШТЭП, М1. Архитекторы: Ю. Григорьев, А. Надысев и др.).

а - разрез; б - план первого этажа.

1 - открытая автостоянка; 2 - вестибюль; 3 - помещение дежурного по подъезду; 4 -электрощитовая; 5 - ИТП.

3.41. [3.39, 3.60, Прил. 5]. При размещении в многоквартирных жилых зданиях предприятий общественного обслуживания для исключения их негативного воздействия на жилище и при необходимости выполнения в них зальных помещений следует предусматривать специальные планировочные технологические, конструктивные и инженерные решения.

В составе специальных планировочных и технологических решений предусматриваются входы в нежилые помещения, изолированные от входов в жилую часть (кроме помещений для работы с населением и присмотра за детьми, проживающими в этом доме), размещение технологически шумных зон вне объема жилого здания или использование мероприятий по звукоизоляции, организация загрузки вне зон окон жилых помещений, размещение уровня кровли встроено-пристроенных учреждений с примыканием их ниже уровня пола жилых помещений и другие.

В составе специальных инженерных решений могут предусматриваться отдельные инженерные системы для встроенных (встроенно-пристроенных в здания нежилых помещений, применение малошумного инженерного оборудования, а также, при необходимости, технический этаж (или выполнение специальных технических помещений) для размещения инженерных систем и другие.

В составе специальных конструктивных решений (для зальных помещений учреждений досугового назначения, предприятий торговли и питания) может предусматриваться изменение конструктивной системы по высоте здания, в том числе с использованием каркасных конструкций в нижних этажах, устройство технического этажа для перехода к узкому шагу поперечных несущих стен в вышележащих этажах жилой части здания и другие.

Примеры организации загрузки предприятий торговли, бытового обслуживания и предприятий питания приведены на рис. 32.

Условные обозначения:

1 - торговый зал;

2 - загрузочное помещение;

3 - административные помещения;

4 - кладовые;

5 - тоннель;

6 - дебаркадер.

Рис. 32. Варианты загрузки встроенных и встроенно-пристроенных в жилые здания предприятий торговли.

I - загрузка через подземный тоннель: а - план первого этажа магазина; б - план подземного этажа магазина;

II - загрузка с торца здания: в - план первого этажа секции серии П44 со встроенно-пристроенным промтоварным магазином (МНИИТЭП, М1);

III - загрузка с улицы: г - схема плана магазина «Семена» общей площадью 130 м2 (секция серии П44, МНИИТЭП, М1).

Схемы разрезов жилых зданий различных конструктивных систем с помещениями общественного назначения, а также примеры решений примыкания кровли встроенно-пристроенных нежилых помещений к жилой части здания приведены на рис. 33, 34.

Рис. 33. Разрезы жилых зданий различных конструктивных систем со встроенными и встроенно-пристроенными нежилыми помещениями.

I - жилой комплекс «Лебедь» в каркасных конструкциях (Архитекторы: А. Меерсон, Е. Подольская, И. Федоров и другие);

II - схема фрагмента разреза жилого дома в панельных конструкциях со встроенными нежилыми помещениями;

III - схема фрагмента жилого здания смешанной конструктивной системы с переходом от каркасной системы к панельной через сборно-монолитную коробчатую плиту с поперечными ребрами (Авторы: Л. Аншин, Г. Львов, Ю. Дыховичный и другие).

а - жилой этаж; б - технический этаж; в - первый этаж; г - подвальный этаж.

Рис. 34. Варианты примыкания нежилых помещений к жилому дому:

а - с устройством «лотка»; б - с размещением технического этажа между жилой частью и нежилыми помещениями.

ЛИФТЫ

3.43. [3.62, 3.63]. Минимальное число лифтов, их грузоподъемность и скорость для конкретного жилого здания определяется в зависимости от его типа, этажности и суммарной площади квартир на этаже по приложению 6 МГСН 3.01-01. При этом нижняя граница этажности многоквартирных жилых домов, при которой следует устанавливать не менее одного лифта грузоподъемностью не менее 630 кг (с габаритами кабины не менее 2100 ´ 1100 мм) - 4-й этаж (отметка пола верхнего этажа 11,2 м от уровня пола первого этажа).

При выполнении пристроенных к 4 - 5-этажным модернизируемым и реконструируемым жилым домам лифтовых шахт, допускается изменение грузоподъемности лифтов и габаритов их кабин для обеспечения нормативных требований инсоляции и освещенности в помещениях смежных квартир.

Компоновка групп лифтов может быть как однорядной, так и двухрядной. При этом минимально нормируемая ширина лифтового холла зависит от количества, размещения и грузоподъемности лифтов (табл. 26).

В одноквартирных и блокированных жилых домах лифты могут быть установлены, если это предусматривается заданием на проектирование, в котором определяется их грузоподъемность, и, при необходимости, нестандартные габариты.

3.44. [3.62 - 3.65]. Планировочные решения мансардного (или верхнего) этажа в значительной степени зависят от остановки лифта на уровне пола этажа или на другом уровне, от места размещения машинного помещения, а также от применяемых типов квартир (одноуровневых или многоуровневых).

В структуре многоквартирного жилого дома машинное помещение лифтов может размещаться: на уровне чердака (или выше его); в техническом подполье; на уровне последнего (в том числе мансардного) этажа.

При расположении машинного помещения лифтов в техническом подполье особое внимание следует обращать на мероприятия, обеспечивающие исключение доступа в него влаги.

Выполняя размещение машинного помещения лифтов в жилом здании, следует обратить внимание на то, чтобы над данным помещением, под ним, а также смежно не располагались жилые комнаты - спальни и общие комнаты (гостиные).

Устройство машинного помещения лифтов на уровне мансардного этажа требует дополнительных конструктивных и планировочных мероприятий для обеспечения акустического комфорта в квартирах. К их числу относятся: отделение машинного помещения от квартир внеквартирными коридорами; примыкание к машинному помещению подсобных или дополнительных помещений квартир, таких как кухня, внутриквартирные коридоры, холлы, гардеробные, тренажерный зал и другие.

В жилых домах секционного, коридорного и галерейного типов (и также в секционных, коридорных и галерейных частях жилых домов смешанных планировочных структур) с одноуровневыми квартирами остановки лифтов выполняются на уровне пола каждого этажа или на уровне пола промежуточной лестничной площадки между этажами.

Исключение может составлять мансардный этаж с одноуровневыми квартирами, в котором остановка лифтов может не предусматриваться. При этом высота подъема от последней остановки лифтов до входа в квартиры не должна превышать 3,0 м, то есть последняя остановка лифта располагается на промежуточной лестничной площадке или на уровне пола нижележащего этажа.

В жилых домах с многоэтажными (многоуровневыми) квартирами остановки лифтов могут выполняться как через этаж, так и на каждом этаже. При этом уровни остановки лифтов могут располагаться как на уровне пола этажей, с которых осуществляются входы в квартиры, так и на уровне пола промежуточной лестничной площадки.

В реконструируемых и модернизируемых жилых домах допускается выполнять остановки лифтов на уровне промежуточных площадок лестниц с обязательной первой остановкой между первым и вторым этажами.

Примеры планировочных решений мансардных этажей с машинным отделением в домах нового строительства и в реконструируемых приведены на рис. 35.

3.45. [3.67] Габариты платформы подъемника принимаются с учетом требований ГОСТ Р 51030-2000, обеспечивая возможность перемещения инвалида на кресло-коляске.

Ширина входного проема в ограждении платформы (в свету) должна быть, мм, не менее: 650 - для транспортирования пользователя на платформе в положении сидя или стоя; 800 - для транспортирования пользователя в положении сидя в кресло-коляске.

Перед платформой подъемника должна быть предусмотрена посадочная площадка с размерами не менее 1100 ´ 1400 мм.

При наличии перепадов уровней в вестибюльно-входных группах, а также в тамбурах (и холлах) квартир для семей с инвалидами-колясочниками с отдельным входом следует устанавливать подъемники в виде платформы, перемещаемой наклонно вдоль лестничного марша или вертикально вверх. Примеры размещения данных типов подъемников приведены на рис. 36.

Таблица 26

ШИРИНА ЛИФТОВОГО ХОЛЛА В ЗАВИСИМОСТИ ОТ РАЗМЕЩЕНИЯ ЛИФТОВ И ИХ ГРУЗОПОДЪЕМНОСТИ

Рис. 35. Примеры примыкания квартир к машинному помещению лифтов в жилых домах нового строительства и реконструируемых:

I - рядовая секция серии Пд4 (ТУП МНИИТЭП, М1. Архитекторы: Ю. Григорьев, А. Надысев, Ю. Шаморгин): а - планы первого уровня квартиры; б - план мансардного этажа - второй уровень квартиры;

II - угловая секция серии П44Т (ГУП МНИИТЭП, М1. Архитекторы: Ю. Григорьев, А. Надысев и другие): в - план мансардного этажа;

III - реконструируемый 5-этажный жилой дом по ул. Кржижановского, д. 23, корп. 4 (ООО «Протэк-М»): г - план надстраиваемого мансардного этажа.

Условные обозначения:

1 - машинное помещение, 2 - технический коридор, 3 - гардеробная, 4 - кухня.

Рис. 36. Габариты платформы подъемника для перемещения инвалидов-колясочников и примеры его размещения.

I - подъемник для инвалидов-колясочников, перемещаемый вертикально вверх (тип ПВИ-220): а - вид А; б - вид В; в - вид сверху; г - размещение подъемника ПВИ-220 в тамбуре квартиры для семьи с инвалидом-колясочником в первом этаже серии П46М; д - размещение подъемника ПВИ-220 вестибюле секции серии П44Т;

II - подъемник для инвалидов-колясочников (тип ПНИ-200) перемещаемый наклонно: е - вид сверху, ж - вид А, и - вид Б; к - размещение подъемника ПВИ-220 в вестибюле секции серии ПЗМ.

МУСОРОУДАЛЕНИЕ

3.46. [3.68, 3.69] Размещение ствола мусоропровода в планировочной структуре жилого здания возможно как в специальных поэтажных помещениях на жилых этажах, так и в коммуникационных узлах жилого здания - в лестнично-лифтовом узле смежно с лифтовым холлом или внеквартирным коридором, на промежуточной площадке лестничной клетки типа Л1 (в жилых зданиях с отметкой пола верхнего этажа не более 28,0 м) или смежно с внеквартирным коридором. Варианты планировочного размещения загрузочных клапанов и мусоросборных камер приведены в табл. 27. Схемы мусоропровода см. СП 31-108-2002 приложение А.

Если ствол мусоропровода располагается в пределах лестничных клеток типа Л1 (в жилых зданиях с высотой расположения верхнего этажа не более 28,0 м), то загрузочные клапаны допускается выполнять на промежуточных площадках лестницы. Размещение ствола мусоропровода с загрузочными клапанами в незадымляемой лестничной клетке не допускается.

3.47. [3.70] Мусоросборная камера может проектироваться на уровне отметки входов в надземную часть жилого здания (первого или цокольного этажей) или в уровне его подземной части (подвального этажа).

При этом следует исключать расположение мусоросборной камеры под жилыми комнатами (спальнями, гостиными или общими комнатами) или смежно с ними, а также необходимо выполнять самостоятельный выход из нее, оборудованный козырьком над дверью и изолированный от входа в жилое здание глухой стеной (экраном). Выступ козырька и стены (экрана) должен быть размером не менее ширины двери.

3.48. [3.71] Проектируя систему мусороудаления, следует выполнять ствол мусоропровода из экологически чистых материалов, а также устройство его прочистки, промывки и дезинфекции с системой пожаротушения. Пример такого решения мусоропровода приведен на рис. 37.

3.49. [3.72] В многоквартирных жилых зданиях (кроме блокированных) по заданию на проектирование допускается предусматривать и другие системы мусороудаления (например, вакуумную).

При отсутствии централизованного мусороудаления на территориях застройки одноквартирными и блокированными жилыми домами следует предусматривать специально выделенные площадки (крытые или открытые) для сбора мусора.

Таблица 27

СХЕМЫ РАЗМЕЩЕНИЯ МУСОПРОВОДА В ЖИЛЫХ ЗДАНИЯХ

Размещение мусоропровода

Загрузка

Ствол мусоропровода

Типовой этаж

Первый этаж

с 1/2 этажа

на лестничной площадке *)

примыкает к лестничной площадке *)

с этажа

смежно с коридором

с этажа

в тамбуре

с 1/2 этажа

рядом с лифтовым холлом

*)

с этажа

с этажа

в отдельном помещении

Условные обозначения:  - входы в квартиры

*) допускается при применении обычных лестничных клеток типа Л1 при высоте расположения верхнего этажа £ 28,0 м.

Условные обозначения:

1 - контейнер;

2 - шибер ШСМН-ДО 1940* (с огнеотсекающей заслонкой);

3 - труба НСТ;

4 - клапан загрузочный;

5 - зачистное устройство мусоропроводов ЗУМ 01;

6 - дефлектор.

Рис. 37. Пример устройства прочистки, промывки и дезинфекции с системой пожаротушения в стволе мусоропровода на примере 16 этажного жилою здания (ГУП МНИИТЭП):

а - разрез;

б - фрагмент разреза шибера ШСМН-ДО 1940* (с огнеотсекающей заслонкой);

в, г - разрез и план зачистного устройства мусоропроводов ЗУМ 01.

4. ТРЕБОВАНИЯ К ОСНОВНЫМ ЭЛЕМЕНТАМ ЖИЛЫХ ЗДАНИЙ

4.1. [4.2, 3.25] Тамбур (или тамбуры), проектируются в составе вестибюльно-входной группы жилого здания.

Планировочные требования к решению тамбуров и площадки перед входом в жилые здания определяются климатическими условиями и возможностью доступности маломобильными группами населения (согласно СНиП 35-01-2001) и предусматривают устройство пандусов при входе, а также необходимые размеры тамбуров.

В составе вестибюльно-входной группы помещений многоквартирных жилых домов (кроме блокированных) проектируется тамбур (или тамбуры), и, в зависимости от планировочного решения ЛЛУ, другие помещения: вестибюльная зона (вестибюль), помещение для дежурного по подъезду, а также - помещение колясочной для хранения детских колясок или уличных кресел-колясок (согласно п. 4.35 МГСН 3.01-01). Примеры решений тамбуров и вестибюльно-входных групп приведены на рис. 38б и 58 к, л, н, р.

Минимально необходимый состав помещений вестибюльно-входной группы многоквартирных жилых зданий (кроме блокированных) определяется заданием на проектирование с учетом типа жилого здания и уровня комфорта проживания.

Для реконструируемых жилых домов выполнение требований по доступности входных групп предусматривается по заданию на проектирование в доступно полном или сокращенном объеме.

Почтовые абонентские шкафы в многоквартирных жилых домах (кроме блокированных) допускается располагать в вестибюлях, лифтовых холлах или проходах к лифтам, а также на основной или промежуточной лестничной площадке (кроме незадымляемых лестничных клеток) при обеспечении нормативных параметров проходов и с учетом габаритов сертифицированных изделий (рис. 38).

В одноквартирных и блокированных жилых домах при входах в дом или квартиру следует предусматривать тамбур, а индивидуальные почтовые абонентские шкафы устанавливать рядом со входами в дом или квартиру, также на приквартирных участках. Объединенные абонентские шкафы допускается устанавливать на границе участков.

Рис. 38. Примеры размещения абонентских почтовых ящиков в жилых домах:

а - установочные размеры абонентских почтовых ящиков;

б - размещение абонентских почтовых ящиков на проходе к лестнице в реконструируемой секции серии I-511;

в - размещение абонентских почтовых ящиков в вестибюле секции серии П55М.

Условные обозначения: 1 - вестибюль; 2 - абонентские почтовые ящики; 3 - помещение дежурного по подъезду; 4 - помещение уборочного инвентаря.

КВАРТИРЫ И ОДНОКВАРТИРНЫЕ ДОМА

4.2. [4.6]. Нормирование площадей квартир и одноквартирных домов основывается на определении нижнего предела площадей квартир каждого типа жилища I и II категории комфорта.

Минимально нормируемые пределы площадей квартир каждого типа с различным числом жилых комнат в жилище I категории комфорта принимаются по табл. 1 МГСН 3.01-01. При этом верхние пределы площадей и число жилых комнат не устанавливаются, а перечень и площади дополнительных помещений определяются по заданию на проектирование, но не менее минимально нормируемых.

Квартиры жилища II категории комфорта следует проектировать с числом жилых комнат от одной до шести и в соответствии с социально-демографическим составом населения г. Москвы. При этом для нового строительства минимально нормируемые нижние пределы площадей квартир, а также верхние пределы площадей квартир с различным числом жилых комнат принимаются по табл. 2 МГСН 3.01-01 (для типов М и Б).

Для реконструируемых и модернизируемых жилых домов жилища II категории комфорта нижние пределы площадей квартир каждого типа с различным числом жилых комнат также принимаются по табл. 2 МГСН 3.01-01.

Примеры решения квартир и одноквартирных домов жилища I категории комфорта приведены на рис. 39, квартир жилища II категории комфорта - на рис. 40, а в модернизируемых и реконструируемых жилых домах - на рис. 11 - 12.

4.3. [4.7, 4.8, 4.12, 4.13] Жилыми комнатами в жилище I и II категорий являются общая комната (гостиная) и спальни.

Общая комната (гостиная) предназначается для дневного пребывания семьи и приема гостей и включает, как правило, следующие функциональные зоны: общения, отдыха, расстановки предметов бытового назначения общего пользования. Кроме того, допускается также размещение зоны эпизодического приема пищи (при отсутствии в квартире кухни-столовой, а в отдельных случаях и при наличии указанного помещения), зоны индивидуальных, профессиональных или любительских занятий членов семьи и зоны для хозяйственных работ, а в квартирах жилища II категории - размещение спального места.

Минимальные размеры общих комнат (гостиных) принимаются с учетом возможности размещения вышеперечисленных зон, а также расстановки минимального набора мебели и устройства минимальных подходов к ней. Минимальные площади общих комнат (гостиных), примеры их решений для различных категорий жилища представлены в табл. 28.

Проход через общие комнаты (гостиные) в жилище II категории комфорта может быть предусмотрен в квартирах, начиная с пятикомнатных в домах нового строительства и с четырехкомнатных - в реконструируемых и модернизируемых жилых домах.

В квартирах жилища I категории комфорта общая комната (гостиная) может быть проходной только при отсутствии в ней спального места.

Спальня предназначается для одного или двух человек с учетом размещения следующих функциональных зон: сна, хранения одежды и белья, вещей бытового назначения. Допускается в спальнях жилища II категории комфорта размещение зон индивидуальных, профессиональных и любительских занятий членов семьи.

Минимальные размеры спален принимаются с учетом возможности размещения вышеперечисленных зон, а также расстановки минимального набора мебели и устройства минимальных подходов к ней. Минимальные площади спален и примеры их решений для различных категорий жилища представлены в табл. 29.

Спальни следует проектировать непроходными.

В жилище I категории комфорта допускаются входы из спален в ванную комнату и совмещенный санузел (рис. 41д - ж), при наличии входа из коридора (холла) в санитарно-гигиеническое помещение, оборудованное унитазом и, как правило, умывальником. Кроме того, в жилище любой категории комфорта допускается вход из спален в кладовую или гардеробную (рис. 41а - г), а в квартирах со спальней для инвалида-колясочника вход из нее в санитарно-гигиенические помещения или кухню.

4.4. [4.7, 4.8] Кухня в зависимости от площади может проектироваться трех типов с соответствующей оснащенностью.

Кухня-ниша может иметь сокращенный состав оборудования зоны для приготовления пищи (без обеденной зоны), кухня (рабочая) - полный состав оборудования зоны приготовления пищи и зону для эпизодического приема пищи членами семьи, а кухня-столовая - полный состав оборудования зоны приготовления пищи и обеденную зону для приема пищи всеми членами семьи одновременно.

Сокращенный состав оборудования для приготовления пищи включает мойку, электроплиту (при обязательной приточно-вытяжной вентиляции с механическим побуждением для кухни-ниши), холодильник, рабочий стол и навесной шкаф.

Полный состав оборудования зоны приготовления пищи включает мойку, плиту (электрическую или газовую), кухонную мебель (в том числе один или несколько рабочих столов, навесные и напольные шкафы, иные элементы), холодильник и другие электробытовые приборы.

Минимальные размеры кухни (и кухни-ниши) принимаются с учетом возможности размещения фронта оборудования и организации обеденной зоны, а также расстановки минимального набора оборудования и мебели с устройством подходов к ней. Минимальные площади кухонь (и кухонь-ниш) и примеры их решений для различных категорий жилища представлены в табл. 30.

4.5. [4.11] Санитарно-гигиенические помещения могут предусматриваться следующих типов и минимальной оснащенности санитарно-гигиеническими приборами (табл. 31):

совмещенный санитарный узел с ванной (длиной 1,7 м), умывальником и унитазом - в жилище I и II категории комфорта;

совмещенный санитарный узел с ванной (допускается длиной 1,5 м) или душевым поддоном, умывальником и унитазом допускается в квартирах типов 1М и 2М жилища II категории комфорта, проектируемым по нижним пределам площадей;

раздельный санузел в составе ванной комнаты и уборной с соответствующим оборудованием в жилище I и II категории комфорта;

ванная комната с ванной (длиной не менее 1,7 м) и умывальником - в жилище I и II категории комфорта;

ванная комната с ванной (длиной не менее 1,5 м) или душевым поддоном и умывальником - допускается в квартирах типов 1М и 2М жилища II категории комфорта, проектируемых по нижним пределам площадей;

уборная с унитазом (или унитазом и умывальником) - в жилище I и II категории комфорта.

В ванной комнате или в совмещенном санитарном узле следует предусматривать место для размещения стиральной машины. Допускается установка стиральных машин под умывальником при подборе соответствующих габаритов машин.

Варианты компоновки и расстановки санитарно-технического оборудования с учетом вариантов открывания дверей приведены на рис. 42.

4.6. [4.14] Совмещенные санузлы допускается проектировать:

в квартирах и одноквартирных домах жилища I категории комфорта;

в квартирах типов 1Б и 1М жилища II категории комфорта;

в квартирах типа 2М, проектируемых по нижним пределам площадей квартир жилища II категории комфорта;

в квартирах с числом жилых комнат три и более жилища II категории комфорта, при наличии еще одного помещения (совмещенного санузла или уборной), оборудованного унитазом и умывальником;

в квартирах с двумя и более жилыми комнатами жилища I категории комфорта (по заданию на проектирование) при наличии еще одного помещения, оборудованного унитазом и умывальником (совмещенного санузла или уборной).

4.7. [4.14] В квартирах или одноквартирных домах жилища I категории комфорта может проектироваться также помещение душевой с душевым поддоном или душевой кабиной при наличии в квартире ванной комнаты или совмещенного санузла.

В жилище I категории комфорта уровень оснащенности санитарно-гигиеническими приборами может быть значительно поднят за счет расширения их номенклатуры и улучшения их качества. В санитарно-гигиенических помещениях в зависимости от их функционального назначения могут быть установлены биде, сушильная машина, душевая кабина, гидромассажная ванна и другие устройства. Примеры решений санитарно-гигиенических помещений повышенного уровня комфорта приведены на рис. 43.

4.8. [4.9] В квартирах жилища II категории комфорта площади кладовых и (или) встроенных шкафов определяются заданием на проектирование. Рекомендуется предусматривать антресоли, располагаемые, как правило, над коридорами (в передней или в холлах), а также допускается устройство в кухнях под оконным проемом холодного шкафа. Примеры решения кладовых и встроенных шкафов приведены на рис. 44.

4.9. [4.5] Кроме традиционных жилых и подсобных помещений в квартирах и одноквартирных домах жилища I категории комфорта могут проектироваться и дополнительные помещения, в том числе: игровая, детская, столовая, кабинет, библиотека, помещения для хозяйственных работ (постирочная, гардеробная), помещения физкультурно-оздоровительного назначения (сауна, бассейн, тренажерный зал, биллиардная) и другие (рис. 1 - 2, 39, 45 - 47).

Перечисленные помещения выполняются для дифференциации определенных функций и их вынесения из помещений кухни, гостиной, спальни, санитарно-гигиенического назначения и могут предусматриваться по заданию на проектирование.

Постирочная может предусматриваться при необходимости вынесения ряда хозяйственных работ из кухни, совмещенного санузла и ванной комнаты (стирка, сушка, глажение белья и другие). В постирочной рекомендуется размещать стиральную и сушильную машины, обеспечивающие стирку, отжим и сушку белья, гладильные и другие устройства, а также емкости для хранения грязного белья и средств для стирки.

Постирочную рекомендуется проектировать вблизи зон расположения инженерных коммуникаций (сетей канализации и водопровода) и оборудовать раковиной. Примеры решения данных хозяйственных помещений приведены на рис. 45.

Гардеробная может предусматриваться в жилище I категории комфорта. Помещение гардеробной рекомендуется предусматривать шириной не менее 1,5 м и располагать, как правило, обеспечивая вход в нее из спальни. Примеры решения гардеробных приведены на рис. 44.

Сауна (баня сухого жара) может предусматриваться только в жилище I категории комфорта. Ее устройство требует специальных инженерно-технических решений, в том числе в связи, например, с необходимостью установки специальной печи, организации специальной вентиляции (в том числе механической) и устройства систем противопожарной безопасности.

Она может проектироваться как в одноквартирных домах, квартирах блокированных жилых домов, так и в многоквартирных домах любой этажности.

Сауна может располагаться у наружной стены или в глубине помещения. Вентиляция должна быть автономной с естественным (или механическим) побуждением - с притоком из смежного помещения под печь и вытяжкой из нижней зоны. Предпочтительно местоположение сауны у наружной стены в связи с целесообразностью вытяжки через каналы, расположенные в этой стене.

По заданию на проектирование при сауне также могут предусматриваться душевая или совмещенный санузел, а в одноквартирных домах - бассейн.

Непосредственного выхода наружу из сауны, в том числе размещаемой в цокольном или подвальном этаже, не требуется. Однако, дополнительный выход на участок одноквартирного или блокированного дома может осуществляться из комнаты отдыха, располагаемой рядом с указанным помещением.

На рис. 1г - д, 2ж, 46 приведены примеры размещения сауны в одноквартирном жилом доме и в квартире многоэтажного жилого дома.

Бассейн может проектироваться в квартирах блокированных жилых домов на первом этаже, а в одноквартирных жилых домах - в подвальном, цокольном и на первом этаже. Выбор решения бассейна должен осуществляться в соответствии с технологической схемой водоснабжения и расчетами объемов водопотребления и водоотведения.

На рис. 1д и 2ж приведены примеры размещения бассейна в одноквартирном и блокированном жилом доме.

4.10. Помещения для индивидуальной трудовой деятельности (номенклатура по п. 3.51 МГСН 3.01-01) могут быть расположены под квартирами блокированных жилых домов и в одноквартирных домах при обеспечении нормативных требований по уровню шума в смежных с ними жилых и нежилых помещениях. Допускается располагать внутриквартирную лестницу между помещениями для индивидуальной трудовой деятельности и подсобными помещенными квартиры (передней, коридором или холлом).

Пример жилого дома с помещениями для индивидуальной трудовой деятельности (офисными) приведен на рис. 47.

Рис. 39. Планировочные решения квартир и одноквартирных жилых домов жилища I категории комфорта.

I - одноквартирный жилой дом (Архитектор А. Панченко): а - план 1 этажа; б - план 2 этажа; в - план мансарды;

II - 3-комнатная квартира жилого дома по 1-му Колобовскому пер., д. 18 - 24 (Управление Моспроект 2, М18. Руководитель авторского коллектива М. Посохин, архитекторы М. Плеханов и А. Левитина);

III - 2-комнатная квартира жилого дома серии П44М-АН (МНИИТЭП, М1. Архитекторы А. Надысев и Ю. Шаморгин);

IV - 5-комнатная квартира жилой блок-секции на безригельном каркасе (МНИИТЭП, М1, стадия проект. Архитекторы А. Надысев и Ю. Шаморгин).

Рис. 40. Планировочные решения квартир жилища II категории комфорта.

I - квартиры, проектируемые по верхним пределам площадей;

II - квартиры, проектируемые по нижним пределам площадей.

а, б, ж - однокомнатные квартиры;

в, г, и - двухкомнатные квартиры;

д, е, к - трехкомнатные квартиры.

Таблица 28

ПРИМЕРЫ ПЛАНИРОВОЧНЫХ РЕШЕНИЙ ЖИЛЫХ КОМНАТ-ГОСТИНЫХ

*) В том числе в реконструируемых и модернизируемых жилых домах.

Таблица 29

ПРИМЕРЫ ПЛАНИРОВОЧНЫХ РЕШЕНИЙ ЖИЛЫХ КОМНАТ-СПАЛЕН

*) В том числе реконструируемых и модернизируемых домах.

**) Для одной из спален квартир в реконструируемых и модернизируемых домах.

Рис. 41. Варианты входов из спален в подсобные и дополнительные помещения:

а - вход из спальни в кладовую;

б - г - вход из спальни в гардеробную;

д - ж - вход из спальни в санитарно-гигиенические помещения.

Таблица 30

ПРИМЕРЫ ПЛАНИРОВОЧНЫХ РЕШЕНИЙ КУХОНЬ

*) В том числе в реконструируемых и модернизируемых жилых домах.

**) Допускается в реконструируемых и модернизируемых жилых домах проектировать кухни площадью 8 м2.

Таблица 31

ПРИМЕРЫ ПЛАНИРОВОЧНЫХ РЕШЕНИЙ САНИТАРНО-ГИГИЕНИЧЕСКИХ ПОМЕЩЕНИЙ

Таблица 31 (продолжение)

*) Без учета допуска 20 - 30 мм на установку ванны.

**) Для квартир типов 1М и 2М II категории комфорта, проектируемых по нижним пределам площадей.

Рис. 42. Примеры расстановки оборудования в санитарно-гигиенических помещениях жилища I категории комфорта с различными вариантами открывания дверей.

Рис. 43. Решение санитарно-гигиенических помещений повышенной комфортности в квартирах жилища I категории.

I - планы квартир жилой части комплекса школы оперного искусства Г. Вишневской по ул. Остоженка (ГУП Моспроект-2, М18. Руководитель авторского коллектива М. Посохин, архитекторы М. Плеханов и Л. Левитина): а - план нижнего уровня 4-комнатной квартиры; б - план верхнего уровня;

II - план 3-комнатной квартиры (в) (ГУП МНИИТЭП ЛТЖС. проектное предложение. Архитекторы: С. Яхкинд и И. Генкина);

III - план 3-комнатной квартиры жилого дома с использованием планировочной структуры серии Пд1М-АН (г) (ГУП МНИИТЭП, М1. Архитекторы: Ю. Григорьев, А. Надысев, Ю. Шаморгин и другие);

IV - план 4-комнатной квартиры жилого комплекса «Золотые ключи» по ул. Минской (д) (ГУП МНИИТЭП, ГУП Моспроект-2. Руководитель авторского коллектива Ю. Григорьев. Архитекторы: А. Надысев, Т. Принтц и другие).

Рис. 44. Примеры решения встроенных шкафов, кладовых и гардеробных.

а - г - встроенные шкафы;

д - ж - кладовые;

и - м - гардеробные.

Условные обозначения:

1 - автоматическая стиральная машина;

1* - автоматическая стиральная, машина с функцией сушки белья;

2 - гладильная машина;

3 - гладильная доска (или стол для глажения белья)

Рис. 45. Примеры размещения постирочной в жилище I категории комфорта:

а - в отдельном помещении без освещения или с освещением вторым светом (смежном с кухней и санузлом);

б, в - в отдельном помещении с естественным освещением (смежном с кухней).

Рис. 46. Примеры решения саун.

а - план трехкомнатной квартиры с сауной в многоэтажном жилом доме;

б - план цокольного этажа с сауной в одноквартирном жилом доме;

в - примеры планировок и размеры саун.

Рис. 47. Одноквартирный жилой дом с дополнительными помещениями и помещениями для индивидуальной трудовой деятельности (МГП «ПРОТЭКС»).

а - план подвального этажа;

б - план 1 этажа;

в - план 2 этажа.

ДОПОЛНИТЕЛЬНЫЕ ТРЕБОВАНИЯ К КВАРТИРАМ ДЛЯ ПРЕСТАРЕЛЫХ И ИНВАЛИДОВ

4.11. [4.15] Специализированное квартирное жилище для престарелых и инвалидов может быть запроектировано в виде:

жилых домов для престарелых и для семей с инвалидами (неколясочниками) - высотой до 9 этажей включительно;

жилых домов для семей с инвалидами-колясочниками - высотой до 5 этажей включительно;

групп квартир (или одной квартиры) для престарелых и семей с инвалидами (неколясочниками) - не выше девятого этажа жилого дома;

групп квартир (или одной квартиры) для семей с инвалидами-колясочниками - на первом этаже жилого дома (без устройства лифта для пожарных подразделений);

групп квартир (или одной квартиры) для семей с инвалидами-колясочниками - на этажах жилого дома со второго по пятый включительно (с устройством лифта для пожарных подразделений в соответствующей секции или коридорном доме по требованиям НПБ 250-97).

4.12. [4.16] Нормирование площадей специализированных квартир для инвалидов (табл. 3 МГСН 3.01-01) основано на эргономических требованиях к параметрам квартир и отдельным помещениям для инвалидов с различным характером патологических отклонений (при заселении К = N, где К - количество комнат, а N - количество проживающих).

В нормируемые площади квартир не включаются площади летних помещений, холодных кладовых, а также площади приквартирных тамбуров.

Минимальные площади специализированных квартир для инвалидов-колясочников приняты, исходя из эргономических требований, связанных с передвижением по квартире инвалида на кресле-коляске, выполнением им различных бытовых процессов, а также с размещением специального оборудования. Примеры решения квартир для инвалидов-колясочников приведены на рис. 48.

Предусмотрена возможность увеличения верхнего предела площадей квартир для семей с инвалидами-колясочниками на величину холла (площадью не более 12 м) для размещения в нем подъемника и лестницы при организации входа в квартиру с придомовой территории.

4.13. [4.16] Минимальные площади специализированных квартир для престарелых приняты, исходя из предоставления одиноким и семьям из двух человек соответственно однокомнатной квартира (площадью 38 м2) или двухкомнатной (площадью 44 м2). Примеры решения таких квартир приведены на рис. 49.

4.14. [4.17, 4.19, 4.15, 4.22] Площади и габариты отдельных помещений квартиры, предназначенных для проживания инвалидов-колясочников, принимаются исходя из площадей отдельных функциональных зон, параметры которых определяются с учетом возможности передвижения инвалида на кресле-коляске.

Ширина кухни зависит от принятой расстановки кухонного оборудования и может быть уменьшена за счет применения настольной электроплиты, настольного жарочного шкафа, а также консольной мойки и рабочих столов (рис. 50).

Примеры решения летних помещений в квартирах для семьи с инвалидом-колясочником показаны на рис. 51.

4.15. [4.21] Пример размещения специального оборудования в совмещенном санузле в квартире для инвалида-колясочника с применением поручней, сидений и гидравлического подъемника для перемещения инвалида с кресла-коляски в ванну и на унитаз приведен на рис. 51.

4.16. [4.24] Изложенные требования к минимальным площадям помещений и квартир, к их устройству и оборудованию следует учитывать также при проектировании жилища I категории комфорта (одноквартирных или блокированных жилых домов), в составе которого планируется размещение помещений для проживания инвалидов, в том числе передвигающихся на креслах-колясках.

4.17. При проектировании в доме квартир, предназначенных для проживания инвалидов по зрению, следует предусматривать мероприятия по тактильной отделке стен и полов на путях эвакуации, входных дверей и дверей квартир. Необходимы также специальная организация и оборудование в квартире отдельных зон, например, для труда и для приготовления пищи (рис. 52).

Рис. 48. Примеры решения квартир жилища II категории комфорта для семей с инвалидами-колясочниками:

а - 1-комнатная квартира в составе специализированного жилого дома для семей с престарелыми ВАО г. Москвы, Щелковский проезд, вл. 7А (ГУП МНИИТЭП, М4. Архитектор Ю. Григорьев, В. Ландиховская);

б - 2-комнатная квартира и составе серии ПЗМ (ГУП МНИИТЭП, М3);

в - 2-комнатная квартира в составе КТЖС-2 серии КОПЭ (ОАО «Моспроект»);

г - 3-комнатная квартира в составе серии ПЗМ (ГУП МНИИТЭП, М3).

Рис. 49. Примеры решения квартир для одиноких престарелых и семей из двух престарелых:

а - однокомнатная квартира;

б - двухкомнатная квартира.

Условные обозначения: 1 - мойка, 2 - рабочий стол, 3 - электроплита, 4 - жарочный шкаф, 5 - консольная электроплита.

Рис. 50. Решения кухонь в квартирах для инвалидов на креслах-колясках с учетом зон доступности.

I - схемы планов кухонь с напольным оборудованием:

а - с односторонней расстановкой; в - с двухсторонней расстановкой.

II - схемы планов кухонь с настольным оборудованием:

б - с односторонней расстановкой; г - с двухсторонней расстановкой.

Рис. 51. Оборудование специализированного квартирного жилища.

I - примеры решения летних помещений в квартирах для инвалидов: а, б, в - схемы планов летних помещений, г - схема разреза;

II - пример решения санузла (г).

Условные обозначения: 1 - гидроподъемник; 2, 3 - опорные поручни; 4 - дверная ручка; 5 - сиденье.

Рис. 52. Примеры оборудования в жилище для слепых и средства ориентирования.

I - зона для работы: 1 - стол; 2 - шкаф; 3 - тара; 4 - светильник; 5 - стул.

II - элементы оборудования: а - неослепляющее освещение; б - эластичная облицовка светильника; в - обработка углов; г - плоскостной, сенсорный и шнуровой выключатели.

III - средства ориентирования: д - на лестнице; е - на двери, в том числе при входе в квартиру; ж - на стеклянной двери входа в жилой дом; и - тактильный указатель номера этажа.

ЖИЛЫЕ ЯЧЕЙКИ ОБЩЕЖИТИЙ

4.18. [4.25] Общежития для студентов и аспирантов следует проектировать из жилых ячеек, в составе которых проектируются жилые помещения - одна или две жилых комнаты, а также подсобные помещения - санитарно-гигиенические (совмещенный санузел или уборная и ванная комната), передняя и встроенные шкафы. Кроме того, может быть выполнена кухня или кухня-ниша.

Вместимость жилой ячейки для одиночек определяется заданием на проектирование, и при этом в двух жилых комнатах может проживать не более 6 человек, то есть не более 3 человек в каждой комнате.

Вместимость жилой ячейки для семейных не должна быть более 3 человек. То есть такую жилую ячейку следует проектировать из расчета проживания двух человек - супругов (или родственников) или трех человек - супружеской пары с ребенком (или неполной семьи - родителя с двумя детьми). Примеры решения жилых ячеек общежитий приведены на рис. 53.

4.19. [4.26] Площади жилых комнат общежитий в составе жилых ячеек принимаются в зависимости от числа проживающих с учетом размещения рабочего места для каждого проживающего. Таким образом, проектируя жилую комнату на двух или трех человек из расчета 7,5 м2 площади на проживающего, ее площадь должна быть соответственно не менее 15 или 22,5 м2. Если же по заданию на проектирование в составе жилых ячеек предусматриваются комнаты, предназначенные для проживания 1 человека, то площадь такой жилой комнаты должна быть не менее 10 м2. Примеры решения жилых комнат общежитий приведены на рис. 53 - 54.

Рис. 53. Жилые ячейки общежитий.

I - для одиночек: а - на 6 человек; б - на 4 человек; в, г, д - на одного человека;

II - для семейных: е - на супружескую пару с ребенком; ж - на двух человек.

4.20. [4.27] Если в составе жилой ячейки проектируется кухня (или кухня-ниша), то ее площадь должна быть не менее 5 м2.

Для жилых ячеек, в которых проживают одиночки, кухни могут проектироваться на несколько жилых ячеек с числом проживающих в этих ячейках не более 12 человек. При этом площадь кухни определяется из расчета не менее 1,0 м2 на одного человека, но ее площадь должка быть не менее 5 м2. Примеры решения кухонь и кухонь-ниш приведены на рис. 16ж и 53.

4.21. [4.28] Размещение санитарно-гигиенических помещений в каждой жилой ячейке позволяет качественно повысить уровень их комфорта.

Для одиночек в жилых ячейках на два человека и более следует предусматривать раздельный санузел, включающий уборную и ванную комнату (или душевую, оборудованную душевым поддоном и умывальником). В жилой ячейке для семейных, а также на одного человека может быть выполнен как раздельный, так и совмещенный санузел.

Вне зависимости от числа проживающих (от одного до шести человек) в санузлах жилых ячеек предусматривают не менее одного умывальника и унитаза.

Необходимость оборудования санузлов ванной или душевым поддоном определяется заданием на проектирование. В санузлах жилых ячеек для семейных рекомендуется установка ванны. Примеры решения санитарно-гигиенических помещений в составе жилых ячеек приведены на рис. 53 - 54.

Рис. 54. Жилые комнаты общежитий.

а, б - пример решения жилой комнаты на двух человек;

в, г - пример решения жилой комнаты на трех человек.

ПОМЕЩЕНИЯ ОБЩЕСТВЕННОГО НАЗНАЧЕНИЯ В СПЕЦИАЛИЗИРОВАННЫХ КВАРТИРНЫХ ЖИЛЫХ ДОМАХ

4.22 [4.31] В структуре специализированных квартирных жилых домов (СКЖД) для одиноких престарелых и семей из двух престарелых проектируются центры социального обслуживания (ЦСО) по заданию на проектирование, согласованному с органами социальной защиты населения.

При определении минимального состава помещений ЦСО в СКЖД для одиноких престарелых и семей из двух престарелых следует руководствоваться табл. 32 настоящего Пособия. Данный состав помещений следует предусматривать при работе ЦСО как по закрытой системе (обслуживание только проживающих в специализированном жилом доме), так и по частично открытой (обслуживание проживающих в указанном доме, также одиноких престарелых и инвалидов, проживающих на прилегающей территории). Дополнительную площадь помещений ЦСО при его работе по частично открытой системе следует предусматривать заданием на проектирование.

Необходимость проектирования помещений бытового обслуживания (элементов комплексного пункта службы быта, стола заказов, парикмахерской) следует определять, исходя из наличия в зоне пешеходной доступности соответствующих элементов сети бытового обслуживания.

Пример размещения помещений общественного назначения в составе специализированного квартирного жилого дома для одиноких престарелых и семей из двух престарелых приведен на рис. 55.

4.23. [4.32] В структуре специализированного квартирного жилого дома для семей с инвалидами проектируется комплекс обслуживания по заданию на проектирование, согласованному с органами социальной защиты населения.

При определении минимального состава помещений, общественного назначения в специализированных квартирных жилых домах для семей с инвалидами следует руководствоваться табл. 33 настоящего Пособия. Данный состав помещений следует предусматривать при обслуживании как по закрытой системе - только для проживающих в специализированном жилом доме (или комплексе), так и по частично открытой - проживающих в указанном доме (или комплексе), а также инвалидов, проживающих на прилегающей территории.

Кроме того, в составе помещений общественного назначения вместо помещений медико-социального назначения может предусматриваться центр медико-социальной реабилитации, номенклатура и площади помещений которого определяются заданием на проектирование.

Пример размещения помещений общественного назначения в составе жилого комплекса для молодых инвалидов приведен на рис. 56.

Таблица 32

МИНИМАЛЬНЫЙ СОСТАВ ПОМЕЩЕНИЙ ОБЩЕСТВЕННОГО НАЗНАЧЕНИЯ (ЦСО) В СПЕЦИАЛИЗИРОВАННЫХ КВАРТИРНЫХ ЖИЛЫХ ДОМАХ ДЛЯ ОДИНОКИХ ПРЕСТАРЕЛЫХ И СЕМЕЙ ИЗ ДВУХ ПРЕСТАРЕЛЫХ 1)

Наименование помещений

Число проживающих

50

100

150

200

1

2

3

4

5

1. Вестибюльно-входная группа

 

 

 

 

1.1. Вестибюль

О

О

О

О

1.2. Гардероб для пенсионеров с дневным пребыванием

О

О

О

О

1.3. Помещение дежурного

О

О

О

О

1.4. Санузел 2)

р

р

р

р

2. Помещения административно-хозяйственного назначения

 

 

 

 

2.1. Кабинет директора

О

О

О

О

2.2. Кабинет секретаря

-

-

О

О

2.3. Отдел кадров

О

О

О

О

2.4. Бухгалтерия

О

О

О

О

2.5. Касса

О

О

О

О

2.6. Санузел 2)

-

-

О

О

2.7. Помещение для водителя автомашин

р

р

р

р

2.8. Кладовая инвентаря и оборудования

О

О

О

О

2.9. Комната отдыха персонала

О

О

О

О

2.10. Помещение для постов охранной и пожарной сигнализации

О

О

О

О

3. Помещения для культурно-массовой работы

 

 

 

 

3.1. Гостиные или кружковые

О

О

О

О

3.2. Комнаты для тихих занятий

О

О

О

О

5.3. Библиотека

О

О

О

О

3.4. Зрительный зал с эстрадой

-

О

О

О

3.5. Зал

О

-

О

О

3.6. Комната лектора

-

-

О

О

3.7. Санузел 2)

О

О

О

О

4. Столовая-раздаточная

 

 

 

 

4.1. Обеденный зал

О

О

О

О

4.2. Кухня-доготовочная

О

О

О

О

4.3. Холодный цех и хлеборезка

 

 

О

О

4.4. Мойка столовой посуды

О

О

О

О

4.5. Мойка кухонной посуды и тары полуфабрикатов

О

О

О

О

4.6. Загрузочная

О

О

О

О

4.7. Кладовая

О

О

О

О

4.8. Комната отдыха персонала с душевой

О

О

О

О

4.9. Санузел для персонала

О

О

О

О

4.10. Умывальная для пенсионеров 3)

-

-

-

-

4.11. Санузел

Р

р

Р

Р

5. Помещения для занятий трудовой деятельностью

 

 

 

 

5.1. Пункт выдачи работы на дом

О

О

р

р

5.2. Учебный класс

-

О

О

О

5.3. Мастерские

-

-

О

О

5.4. Кладовые материалов

-

-

О

О

5.5. Кладовые готовых изделий

-

-

О

О

5.6. Комната инструктора

-

-

О

О

5.7. Санузел 2)

р

р

р

р

6. Помещения медицинского обслуживания и занятий лечебной физкультурой

 

 

 

 

6.1. Кабинет медсестры 4)

О

О

О

О

6.2. Процедурная

-

О

О

О

6.3. Кабинет врача

-

О

О

О

6.4. Помещение для занятий лечебной физкультурой

О

О

О

О

6.5. Раздевалки с душевыми

-

-

О

О

6.6. Кабинет врачей консультантов

-

-

О

О

6.7. Кабинет физиотерапии

-

-

О

О

6.8. Комната инструктора

р

р

О

О

6.9. Санузел

О

О

О

О

7. Помещения бытового обслуживания

 

 

 

 

7.1. Стол заказов

-

р

О

О

7.2. Парикмахерская

 

О

О

О

7.3. Пункт приема белья в стирку

р

р

О

О

7.4. Пункт приема обуви в ремонт

р

р

О

О

7.5. Пункт приема одежды в ремонт

р

р

р

р

7.6. Санузел 2)

р

р

р

р

8. Отделение социальной помощи на дому (ОСП)

 

 

 

 

8.1. Кабинеты заведующих

О

О

О

О

8.3. Комната отдыха персонала

р

р

р

р

8.4. Кладовая инвентаря и оборудования

О

О

О

О

8.5. Санузел 2)

р

р

р

р

9. Отделение срочной социальной помощи

 

 

 

 

9.1. Приемная

О

О

О

О

9.2. Комната посетителей

р

р

р

р

9.3. Комната дежурного

О

О

О

О

9.4. Комната для работы специалистов

р

р

р

р

9.5. Кладовая

О

О

О

О

9.6. Санузел 2)

р

р

р

р

10. Гараж-стоянка 5)

О

О

О

О

Примечания. 1 Помещения, обозначенные знаком «О», являются обязательными, знаком «Р» - рекомендуемыми, знаком «-» - данное помещение не требуется.

2. Допускается проектировать санузлы общими для помещений 1, 2, 7, 8 и 9 групп, а также для помещений 3 и 5 групп.

3. Рекомендуется выполнять в нише при входе в обеденный зал.

4. При числе проживающих в доме до 50 чел. - допускается объединение с кабинетом врача-терапевта.

5. Количество машиномест для служебных автомашин ЦСО определяется заданием на проектирование.

Таблица 33

МИНИМАЛЬНЫЙ СОСТАВ ПОМЕЩЕНИЙ ОБЩЕСТВЕННОГО НАЗНАЧЕНИЯ В СПЕЦИАЛИЗИРОВАННЫХ КВАРТИРНЫХ ЖИЛЫХ ДОМАХ ДЛЯ СЕМЕЙ С ИНВАЛИДАМИ 1)

Наименование помещений

Число проживающих

50

100

150

200

1

2

3

4

5

1. Вестибюльно-входная группа

 

 

 

 

1.1. Вестибюль

О

О

О

О

1.2. Гардероб

О

О

О

О

1.3. Помещение дежурного

О

О

О

О

1.4. Санузел 2)

р

р

р

р

1.5. Помещение для хранения уличных креслах-колясках

О

О

О

О

1.6. Помещение для хранения детских колясок

О

О

О

О

2. Помещения административно-хозяйственного назначения

 

 

 

 

2.1. Кабинет директора

О

О

О

О

2.2. Кабинет секретаря

-

-

О

О

2.3. Отдел кадров

О

О

О

О

2.4. Бухгалтерия

О

О

О

О

2.5. Касса

О

О

О

О

2.6. Санузел 2)

 

 

О

О

2.7. Помещение для водителя автомашин

р

р

р

р

2.8. Кладовая инвентаря и оборудования

О

О

О

О

2.9. Комната отдыха персонала

О

О

О

О

2.10. Помещение для постов охранной и пожарной сигнализации

О

О

О

О

3. Помещения для культурно-массовой работы 3)

 

 

 

 

3.1. Зрительный зал с эстрадой

-

О

О

О

3.2. Зал

О

-

О

О

3.3. Кинопроекционная

 

О

О

О

3.4. Радиоузел

О

О

О

О

3.5. Комната лектора

-

-

О

-

3.6. Гостиные или кружковые

О

О

О

О

3.7. Комнаты для тихих занятий

О

О

О

О

3.8. Библиотека

О

О

О

О

3.9. Санузел 2)

О

О

О

О

4. Столовая-раздаточная 3)

 

 

 

 

4.1. Обеденный зал

О

О

О

О

4.2. Кухня-доготовочная

О

О

О

О

4.3. Холодный цех и хлеборезка

-

-

О

О

4.4. Мойка столовой посуды

О

О

О

О

4.5. Мойка кухонной посуды и тары полуфабрикатов

О

О

О

О

4.6. Загрузочная

О

О

О

О

4.7. Кладовая

О

О

О

О

4.8. Комната отдыха персонала с душевой

О

О

О

О

4.9. Санузел для персонала

О

О

О

О

4.10. Умывальная для посетителей 4)

О

О

О

О

4.11. Санузел для посетителей

Р

Р

Р

Р

4.12. Магазин-кулинария

Р

Р

Р

Р

5. Помещения для занятий трудовой деятельностью

 

 

 

 

5.1. Мастерские

О

О

О

О

5.2. Кладовые материалов

-

-

О

О

5.3. Кладовые готовых изделий

-

-

О

О

5.4. Комната инструктора

-

-

О

О

5.5. Санузел

Р

Р

Р

Р

6. Помещения медицинского обслуживания

 

 

 

 

6.1. Кабинет медсестры 5)

О

О

О

О

6.2. Процедурная

-

О

О

О

6.3. Кабинет врача терапевта

-

О

О

О

6.4. Кабинет врачей консультантов

-

Р

О

О

6.5. Кабинет физиотерапии

О

О

О

О

6.6. Санузел

О

О

О

О

7. Помещения для занятий лечебной физкультурой

 

 

 

 

7.1. Универсальный зал для общей физической подготовки

О

О

О

О

7.2. Зал для занятий на тренажерах

Р

Р

Р

Р

7.3. Раздевалки с душевыми

О

О

О

О

7.4. Санузел

О

О

О

О

7.5. Комната инструктора

О

О

О

О

8. Помещения бытового обслуживания

О

О

О

О

8.1. Пункт приема белья в стирку

Р

Р

О

О

8.2 Пункт приема обуви в ремонт

Р

Р

О

О

8.3. Ремонт ортопедической обуви и протезов

Р

Р

Р

Р

8.4. Парикмахерская

Р

Р

Р

Р

8.5. Стол заказов

Р

Р

О

О

8.6. Помещение выездной почты и сберкассы

Р

Р

О

О

8.7. Санузел

Р

Р

Р

Р

9. Гараж-стоянка 6)

О

О

О

О

Примечания. 1. Помещения, обозначенные знаком «О», являются обязательными, знаком «Р» - рекомендуемыми, знаком «-» - данное помещение не требуется.

2. Допускается проектировать санузлы общими для помещений 1 и 2 групп, а также для помещений 1 и 3 групп.

3. По заданию на проектирование допускается кафе, состав помещений уточняется технологическим заданием.

4. Рекомендуется выполнять в нише при входе в обеденный зал.

5. При числе проживающих в доме до 50 чел. - допускается объединение с кабинетом врача-терапевта.

6. Количество машиномест для служебных автомашин, обслуживающих помещение общественного назначения специализированного квартирного жилого дома для семей с инвалидами, определяется заданием на проектирование.

Рис. 55. Помещения общественного назначения в составе блока пристройки специализированного квартирного жилого дома для одиноких престарелых и супружеских пар пожилого возраста (Марьинский парк, мкр. 43, корп. 11, ГУП МННИТЭП. М4. Архитекторы: Ю. Григорьев, В. Ландиховская):

а - план 1 этажа; б - план 2 этажа; 1 - фойе-вестибюль; 2 - гардероб; 3 - зал столовой; 4 - производственные помещения столовой; 5, 6 - помещения торгового обслуживания; 7 - помещения для занятий трудом; 8, 9 - гимнастический залы; 11 - аптечный пункт; 12 - клубная комната; 13 - блок медицинского обслуживания; 14 - зимний сад; 15 - буфет; 16 - административные помещения; 17 - библиотека.

Рис. 56. Помещения обслуживания в составе жилого комплекса с обслуживанием и центром реабилитации для молодых инвалидов (МНИИТЭП, М2, стадия «проект». Архитекторы: В. Дадья и А. Полетаев). План 1 и 2 этажей.

Условные обозначения: а - жилая часть; б - общественная часть; 1 - спортивный зал; 2 - раздевалка; 3 - актовый зал; 4 - рекреации; 5 - коммуникационный узел блока обслуживания; 6 - квартиры для семьи с инвалидом-колясочником; 7 - терраса.

ПОМЕЩЕНИЯ ОБЩЕСТВЕННОГО НАЗНАЧЕНИЯ В ОБЩЕЖИТИЯХ

4.24. [4.33] При проектировании помещений общественного назначения в общежитиях следует учитывать проживание в них как одиночек, так и семейных студентов и аспирантов, конкретное процентное соотношение численности одиночек и семейных принимается по заданию на проектирование.

Определение номенклатуры элементов обслуживания связано также и с необходимостью формирования:

полной системы обслуживания - при строительстве отдельно стоящих общежитий, не связанных с вузовскими комплексами или комплексом общежитий;

сокращенной системы обслуживания - при строительстве общежитий, как правило, в реконструируемых вузовских комплексах или комплексах общежитий, имеющих сложившуюся систему общественного обслуживания.

Пример размещения помещений общественного назначения в общежитии приведен на рис. 57.

4.25. [4.34] При определении состава помещений общественного назначения в общежитиях различной вместимости для студентов и аспирантов следует руководствоваться табл. 34 настоящего Пособия.

Если новое общежитие проектируется в составе существующего комплекса общежитий, то площади помещений общественного назначения в расчете на одного проживающего уточняются в задании на проектирование с учетом уже имеющихся в комплексе.

Таблица 34

МИНИМАЛЬНЫЙ СОСТАВ ПОМЕЩЕНИЙ ОБЩЕСТВЕННОГО НАЗНАЧЕНИЯ В ОБЩЕЖИТИЯХ

Наименование помещения

Число проживающих

25

50

100

200

400

600

800

1000

1200

1

2

3

4

5

6

7

8

9

10

1. Вестибюльно-входная группа

 

 

 

 

 

 

 

 

 

1.1. Помещение дежурного

О

О

О

О

О

О

О

О

О

1.2. Санузел

О

О

О

О

О

О

О

О

О

1.3. Колясочная 2)

-

-

-

-

-

-

-

-

-

2. Помещения административно-хозяйственного назначения

 

 

 

 

 

 

 

 

 

2.1. Комната заведующего общежитием

О

О

О

О

О

О

О

О

О

2.2. Комната заведующего хозяйством

 

 

 

 

О

О

О

О

О

2.3. Комната паспортистки

-

-

-

-

-

О

О

О

О

2.4. Мастерская слесаря

-

-

-

-

О

О

О

О

О

2.5. Мастерская электрика

-

-

-

-

-

-

О

О

О

2.6. Мастерская столяра

-

-

-

-

-

-

-

О

О

2.7. Кладовые:

-

-

-

-

-

-

-

-

-

2.7.1. чистого белья 3)

О

О

О

О

О

О

О

О

О

2.7.2. грязного белья

-

-

-

О

О

О

О

О

О

2.7.3. хозяйственного инвентаря

-

О

О

О

О

О

О

О

О

2.7.4. личных вещей

-

-

-

О

О

О

О

О

О

2.7.5. уборочного инвентаря

-

-

О

О

О

О

О

О

О

2.8. Санузел

О

О

О

О

О

О

О

О

О

3. Помещения для культурно-массовых мероприятий, отдыха, учебных и спортивных занятий

 

 

 

 

 

 

 

 

 

3.1. Зал-аудитория с кулуарами

О

О

О

О

О

О

О

О

О

3.2. Комната отдыха

-

-

-

-

О

О

О

О

О

3.3. Комнаты для учебных занятий

-

О

О

О

О

О

О

О

О

3.4. Помещения для работы кружков 4)

О

О

О

О

О

О

О

О

О

3.5. Помещения для физкультурных занятий

-

О

О

О

О

О

О

О

О

3.6. Кладовая спортивного инвентаря

О

О

О

О

О

О

О

О

О

3.7. Библиотека с читальным залом и хранилищем

-

-

-

-

О

О

О

О

О

3.8. Санузлы

р

О

О

О

О

О

О

О

О

4. Помещения питания 5)

 

 

 

 

 

 

 

 

 

4.1. Столовая

-

-

-

О

О

О

-

-

-

4.2. Кафе

-

-

-

-

-

-

О

О

О

5. Помещения бытового обслуживания

 

 

 

 

 

 

 

 

 

5.1. Помещения для стирки, сушки и глажения одежды

 

р

Р

Р

р

р

р

р

р

5.2. Пункт приема обуви в ремонт

 

р

Р

Р

р

р

р

О

О

5.3. Приемный пункт химчистки

 

р

Р

Р

р

р

р

О

О

5.4. Пункт проката

 

р

Р

Р

р

р

р

О

О

6. Помещения кратковременного пребывания детей 2)

 

 

 

 

 

 

 

 

 

6.1. Комната отдыха

О

О

О

О

О

О

О

О

О

6.2. Игровая

О

О

О

О

О

О

О

О

О

6.3. Передняя

О

О

О

О

О

О

О

О

О

6.4. Кухня

О

О

О

О

О

О

О

О

О

6.5. Санузел

О

О

О

О

О

О

О

О

О

7. Помещения медицинского обслуживания

 

 

 

 

 

 

 

 

 

7.1. Изолятор

-

-

р

О

О

О

О

О

О

7.2. Медпункт

О

О

О

О

О

О

О

О

О

7.3. Санузел

О

О

О

О

О

О

О

О

О

Примечания. 1. Помещения, обозначенные знаком «О», являются обязательными, знаком «Р» - рекомендуемыми, знаком «-» - данное помещение не требуется.

2. Помещения являются обязательными при наличии в общежитии жилых ячеек для семейных.

3. В общежитиях вместимостью 25 - 100 чел. кладовые для белья допускается объединять.

4. В общежитиях вместимостью 25 чел. в помещении для работы кружков допускается проведение спортивных занятий.

5. Состав помещений столовой и кафе следует принимать по технологическому заданию.

Рис. 57. Примеры размещения помещений обслуживания в общежитиях.

I - размещение помещений обслуживания в блоке-пристройке к жилой части общежития на 800 мест: а - план первого этажа; б - план 2 этажа. 1 - вестибюль, 2 - торговый зал молодежного кафе; 3 - производственные, подсобные и бытовые помещения кафе; 4 - постирочная; 5 - сушильная; 6, 7 - спортзалы; 8 - зал для культурно-массовых мероприятий; 9 - радиоузел; 10 - выставочный зал; 11 - кружковые; 12 - библиотека (абонемент).

II - размещение помещений обслуживания под жилой частью общежития на 1000 мест: в - план первого этажа; г - фрагмент плана цокольного этажа. 1 - вестибюль, 2 - комната заведующего общежитием; 3 - кладовые хозяйственного инвентаря; 4 - кладовая чистого белья; 5 - кладовая грязного белья; 6 - помещение для стирки, сушки и глажения одежды; 7 - помещения медобслуживания; 8 - комната паспортистки; 9 - торговый зал молодежного кафе; 10 - производственные помещения кафе; 11 - кружковые; 12 - зал-аудитория с кулуарами; 13 - зал для спортивных занятий; 14 - комната для учебных занятий; 15 - кладовая спортивного инвентаря; 16 - мастерская слесаря; 17- мастерская электрика; 18 - мастерская столяра; 19 - кладовая личных вещей; 20 - складские помещения кафе.

ХОЗЯЙСТВЕННЫЕ И ТЕХНИЧЕСКИЕ ПОМЕЩЕНИЯ

4.26. [4.35, 4.37] Помещения хозяйственного назначения в составе многоквартирных жилых домов (кроме блокированных) подразделяются на обязательные и рекомендуемые. Хозяйственные помещения в общежитиях выполняются в составе помещений общественного назначения.

К обязательным помещениям хозяйственного назначения в многоквартирных жилых домах (кроме блокированных), в том числе реконструируемых 4 - 5-этажных жилых домах I периода индустриального домостроения, относятся: помещение для хранения уборочного инвентаря, оборудованное мойкой и трапом; помещение дежурного по подъезду (консьержки); в специализированных квартирных жилых домах для семей с инвалидами-колясочниками - помещение для хранения уличных кресел колясок.

Обязательной в вестибюлях секций (домов) при наличии перепадов уровней является также зона для последующей установки подъемника для перемещения инвалида на кресле-коляске. При пристройке лифтовой шахты к реконструируемому или модернизируемому жилому дому место для установки такого подъемника в вестибюле допускается не предусматривать.

Примеры размещения помещений дежурного по подъезду, для хранения уличных кресел-колясок для инвалидов, а также помещения уборочного инвентаря приведены на рис. 58.

4.27. [4.35, 4.37] Кладовую для хранения уборочного инвентаря рекомендуется располагать на первом этаже, как правило, смежно с помещениями дежурного по подъезду, и оборудовать раковиной.

Допускается размещение помещения кладовой для хранения уборочного инвентаря в цокольном или подвальном этажах

4.28. [4.36, 3.49] Помещения для дежурного по подъезду (консьержки) следует располагать на первом этаже при входе (рис. 58): с примыканием к входному тамбуру; в зоне вестибюля; в помещении смежном с проходом на лестничную клетку или к лифтам.

Из рабочего помещения дежурного по подъезду должен быть обеспечен обзор места перед входом в здание и, как правило, прохода к лестнице и входа в лифт. Допускается предусматривать видеонаблюдение для обзора входа в жилое здание и прилегающей территории. В помещении дежурного по подъезду следует предусматривать телефонную связь, в том числе с помещениями ОДС, переговорную связь через домофон, а по заданию на проектирование - связь с квартирами.

4.29. [3.42] К рекомендуемым помещениям хозяйственного назначения многоквартирных жилых домов (кроме блокированных) относятся хозяйственные кладовые, колясочные (а также велосипедные) и встроенные (или встроенно-пристроенные) гаражи-стоянки для жителей дома.

Хозяйственные кладовые для жителей дома по заданию на проектирование допускается предусматривать в первом, цокольном или подвальном этажах многоквартирных жилых зданий. При этом их численность должна быть не менее числа квартир. Ширина коридоров перед этими кладовыми должна быть не менее 1,1 м. Примеры размещения внеквартирных хозяйственных кладовых приведены на рис. 59.

В помещениях внеквартирных хозяйственных кладовых следует предусматривать систему спринклерного пожаротушения (или другие системы противопожарной защиты по согласованию с местными органами государственного пожарного надзора).

Помещения для хранения детских колясок, санок, лыж и велосипедов рекомендуется проектировать из расчета 0,06 м на одного проживающего, и исходя из процентного соотношение жителей дома, пользующихся данными помещениями (табл. 35): 50 % - хранящих коляски; 35 % - лыжи, санки и велосипеды в целом (при отсутствии внеквартирных хозяйственных кладовых).

Проектирование данных помещений следует осуществлять исходя из необходимой площади для единицы данного инвентаря (рис. 58):

1,5 м2 с учетом проходов - для хранения одной коляски;

1,2 м2 для хранения одного дорожного велосипеда.

4.30. [4.38, 4.39]. Помещения технического назначения, предназначенные для эксплуатации многоквартирных жилых домов проектируются с учетом инженерно-технических требований.

В многоквартирных жилых домах (кроме блокированных) следует предусматривать следующие технические помещения: электрощитовую (по расчету для размещения оборудования связи, АСУЭ, диспетчеризации и телевидения); помещения для головных станций (ГС), технических центров (ТЦ) кабельного телевидения, звуковых трансформаторных подстанций (ЗТП); место для установки телефонных распределительных шкафов (ШРП), а также по заданию на проектирование другие помещения с учетом инженерно-технических требований.

При этом места для установки телефонных распределительных шкафов следует располагать на каждом этаже, а остальные перечисленные помещения - на первом этаже, в том числе обеспечивая выход из них непосредственно на улицу (для электрощитовой допускается в поэтажный внеквартирный коридор или холл). Размещение помещений ГС и ТЦ допускается на чердаке.

Примеры размещения технических помещений в составе многоквартирных жилых домов приведены на рис. 58 к, л, н, и, а также рис. 31б.

Рис. 58. Примеры размещения помещений хозяйственного назначения в многоквартирных жилых домах:

I - зоны для размещения детских колясок (а) и велосипедов (б) в составе колясочных;

II - примерные схемы колясочных (в - е) и помещений для хранения велосипедов (ж - и);

III - фрагменты вестибюльно-входных групп с помещениями дежурного по подъезду и колясочной: к - в 22-этажном сборно-монолитном доме (ГУП МНИИТЭП, М2); л - в секции серии Пд4* (ГУП МНИИТЭП, М4);

IV - зона для размещения коляски для инвалида-колясочника (м);

V - вестибюльно-входные группы с помещениями дежурного по подъезду и колясочной для инвалидов: н - в секции серии П44Т (ГУП МНИИТЭП, М1); п - в секции серии Пд4* (ГУП МНИИТЭП, М4).

Таблица 35 (рекомендуемая)

СООТНОШЕНИЕ КОЛИЧЕСТВА МЕСТ ДЛЯ КОЛЯСОК И ВЕЛОСИПЕДОВ

в зависимости от числа проживающих в секции, доме коридорного или галерейного типа *)

Число квартир

Число колясок

Число велосипедов **)

до 60

3

5

от 60 до 80

4

7

от 80 до 100

5

10

от 100 до 140

7

12

от 140 до 160

8

14

от 160 до 200

9

16

*) При средней численности семьи 3 чел.

**) При отсутствии хозяйственных кладовых.

Условные обозначения:

1 - вестибюль;

2 - колясочная;

3 - помещение уборочного инвентаря (или шкаф);

4 - помещение дежурного по подъезду;

5 - абонентские ящики;

6 - колясочная для инвалидов;

7 - электрощитовая;

8 - помещение ТВ;

9 - место для установки телефонных распределительных, шкафов.

Рис. 59. Хозяйственные кладовые в многоквартирных жилых домах серии КОПЭ (ОАО «Моспроект-1»).

Условные обозначения: 1 - хозяйственные кладовые, 2 - гаражи-стоянки

Приложение А

(справочное)

Список нормативных документов

Настоящее «Пособие» содержит ссылки на следующие документы:

СНиП 31-01-2003          «Здания жилые многоквартирные».

СНиП 2.08.02-89*         «Общественные здания и сооружения».

СНиП 21-01-97 *           «Пожарная безопасность зданий и сооружений».

СНиП 35-01-2001          «Проектирование зданий и сооружений с учетом доступности для маломобильных групп населения».

СП 35-102-2001             «Жилая среда с планировочными элементами доступными инвалидам».

НРБ-99                            «Нормы радиационной безопасности».

МГСН 3.01 -01               «Жилые здания».

МГСН 1.01-99                «Нормы и правила проектирования планировки и застройки г. Москвы».

МГСН 4.04-94*              «Многофункциональные здания и сооружения».

МГСН 4.13-98                «Предприятия розничной торговли».

МГСН 4.18-99                «Предприятия бытового обслуживания населения».

МГСН 4.10-97                «Здания банковских учреждений».

МГСН 4.09-97                «Здания органов социальной защиты населения».

МГСН 4.12-97                «Лечебно-профилактические учреждения».

МГСН 4.06-96                «Общеобразовательные учреждения».

МГСН 4.07-96                «Дошкольные учреждения».

МГСН 5.01-01                «Стоянка легковых автомобилей».

СП 31-108-2002             «Мусоропроводы жилых и общественных зданий и сооружений».

НПБ 250-97                    «Требования к лифтам для пожарных подразделений».

СН 2.4/2.1.8.562-96       «Шум на рабочих местах, в помещениях жилых, общественных зданий и на территории жилой застройки».

СанПиН 2.2.1/2.1.1.1076-01 «Гигиенические требования к инсоляции и солнцезащите помещений жилых и общественных зданий и территорий».

Дополнение № 1 к МГСН 3.01-01 «Жилые здания» в части размещения в первых этажах объектов социального и общественного назначения.

Пособие к МГСН 2.04-97 «Проектирование защиты от транспортного шума и вибрации зданий».

Пособие к МГСН 4.18-99 «Предприятия бытового обслуживания населения».

Пособие к МГСН 4.12-97 «Лечебно-профилактические учреждения».

Пособие к МГСН 4.07-96 «Дошкольные учреждения».

Пособие к МГСН 4.09-97 «Здания органов социальной защиты населения».

Пособие к МГСН 4.10-97 «Здания банковских учреждений».

ГОСТ Р 51630-2000 «Платформы подъемные с вертикальным и наклонным перемещением для инвалидов».

«Программы-задания на проектирование центров социального обслуживания» / ЛТЖС МНИИТЭП. - 1998.

«Рекомендации по проектированию объектов малого предпринимательства в г. Москве» / ИОЗ. - М., 2002.

«Рекомендации по проектированию экономичных планировочно шумозащищенных жилых домов» / ЛТЖС МНИИТЭП. - М., ГУП «НИАЦ», 1999.

«Рекомендации по проектированию озеленения и благоустройства крыш жилых и общественных зданий и других искусственных оснований» / ОАО «Моспроект-1». - М., 1999.

 




ГОСТЫ, СТРОИТЕЛЬНЫЕ и ТЕХНИЧЕСКИЕ НОРМАТИВЫ.
Некоммерческая онлайн система, содержащая все Российские Госты, национальные Стандарты и нормативы.
В Системе содержится более 150000 файлов нормативно-технической документации, действующей на территории РФ.
Система предназначена для широкого круга инженерно-технических специалистов.

Рейтинг@Mail.ru Яндекс цитирования

Copyright © www.gostrf.com, 2008 - 2026