|
|
|
Система нормативных документов в газовой промышленности ВЕДОМСТВЕННЫЕ СТРОИТЕЛЬНЫЕ НОРМЫ
ОТКРЫТОЕ АКЦИОНЕРНОЕ ОБЩЕСТВО «ГАЗПРОМ» Общество с ограниченной ответственностью (ООО «Газнадзор») Общество с ограниченной ответственностью «Информационно-рекламный центр газовой промышленности» (ООО «ИРЦ Газпром») Москва 2002 ПРЕДИСЛОВИЕ
Содержание ВВЕДЕНИЕУказания разработаны на основе опыта изготовления, монтажа и эксплуатации опытных партий ВЭИ с использованием результатов испытаний и исследований параметров ВЭИ при опытно-промышленной эксплуатации, а также нормативных документов, приведенных в приложении 2 к настоящим Указаниям При разработке Указаний использован отечественный и зарубежный опыт применения электроизолирующих вставок различной конструкции и результаты полигонных и опытно-промышленных испытаний применения ВЭИ на предприятиях ОАО «Газпром», Указания устанавливают единые требования по применению ВЭИ для электрического разъединения газопроводов и предназначены для организаций, занимающихся проектированием, строительством и эксплуатацией газопроводных систем, а также организаций, занимающихся их изготовлением. Указания разработаны ДАО «Оргэнергогаз» ОАО «Газпром». В разработке правил принимали участие: Салюков В.В., Долганов М.Л. (ОАО «Газпром»), Петров Н.Г.,Семенюга В.В., Муханов Н.А., Спиридонов В.В., Бирюков А.В. (ДАО «Оргэнергогаз») Эристов В.И. (Газнадзор). Система нормативных документов в газовой промышленности ВЕДОМСТВЕНЫЕ СТРОИТЕЛЬНЫЕ НОРМЫ
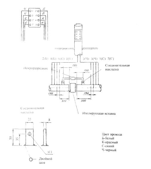
Дата введения 2002-03-01 1. ОБЩИЕ ПОЛОЖЕНИЯ1.1. Указания распространяются на применение ВЭИ на новых и реконструируемых магистральных и промысловых газопроводах и ответвлениях от них условным диаметром до 1400 мм включительно с избыточным давлением среды до 10 МПа (100 кг/см2) при одиночной прокладке и многониточной прокладке в технических коридорах, а также на промысловых трубопроводах условным диаметром до 500 мм включительно с избыточным давлением среды выше 10 МПа (100 кг/см2) до 20 МПа (200 кг/см2). 1.2. Действие настоящих Указаний распространяется на все организации, занимающиеся проектированием, строительством и эксплуатацией газопроводов, а также организации, занимающиеся разработкой и изготовлением электроизолирующих вставок для газопроводов. 1.3. Указания разработаны в развитие и дополнение действующих нормативных документов и правил (приложение 2), требованиями которых надлежит руководствоваться при проектировании, организации и проведении работ, предусмотренных настоящими Указаниями. 1.4. Указания устанавливают требования к установке и эксплуатации вставок электроизолирующих (ВЭИ) в газотранспортных системах. 1.5. Вставка электроизолирующая для газопроводов предназначена для обеспечения электрического разъединения защищаемого катодной защитой объекта от не защищаемого, заземленного или имеющего собственную систему ЭХЗ, а также электрического секционирования трубопроводов, проходящих в зонах воздействия блуждающих токов. 1.6. ВЭИ могут устанавливаться надземно, в шахтах или в грунте с изоляцией усиленного типа. При этом наиболее предпочтительна установка в местах доступных для технического контроля. 1.7. ВЭИ не должна нарушать конструктивную схему трубопровода и ухудшать его эксплуатационные свойства. 1.8. Необходимость и место установки ВЭИ для повышения эффективности электрохимической защиты магистральных и промысловых газопроводов определяется конкретным проектом. 2. КОНСТРУКЦИЯ ЭЛЕКТРОИЗОЛИРУЮЩИХ ВСТАВОК2.1. ВЭИ - это трубопроводное изделие (фитинг), изготовленное и испытанное в заводских условиях, состоящее из двух металлических патрубков с соответствующими трубопроводу характеристиками и присоединительными размерами, соединенных между собой силовыми элементами (стеклопластиковая оболочка с кольцевыми буртами на патрубках, фланцы с болтовыми или сварными элементами), электрически изолированными диэлектрическим материалом. Герметичность ВЭИ обеспечивается специальным уплотнением. 2.2. Изготовление и испытание ВЭИ производятся в соответствии с техническими условиями завода - изготовителя и должны удовлетворять требованиям нормативных документов (приложение 2) и настоящим Правилам. 2.3. ВЭИ поставляется в виде готового к монтажу заводского изделия, в технический паспорт которого внесены все результаты прочностных и электрических испытаний и гарантийные обязательства завода - изготовителя. 2.4. Характеристики прочности и долговечности ВЭИ должны быть не ниже характеристик участка трубопровода, где устанавливается ВЭИ. 3. ОСНОВНЫЕ ТЕХНИЧЕСКИЕ ХАРАКТЕРИСТИКИ ВЭИ3.1. ВЭИ должны соответствовать требованиям технических условий завода - изготовителя, комплектов документации согласно спецификации на каждый типоразмер, требованиям СНиП 2.05.06-85*, СНиП III-42-80*, ГОСТ Р 51164-98, РД 08-59-94 и настоящих Указаний. 3.2. Концевые патрубки должны быть изготовлены из прямошовных (бесшовных) труб, рассчитанных по рабочему давлению (не более 10 МПа) участка газопровода по категории участков «В» по СНиП 2.05.06-85* из материалов и по сортаменту в соответствии с «Инструкцией по применению стальных труб в газовой и нефтяной промышленности». - М. 2000 г. При этом, марка стали должна соответствовать трубопроводу, в который вваривается ВЭИ. 4. МОНТАЖ ВЭИ4.1. Организация, осуществляющая монтаж ВЭИ. должна иметь лицензию Госгортехнадзора России на проведение соответствующих работ. 4.2. Все работы по монтажу ВЭИ должны осуществляться в соответствии с проектом. Любые отклонения от проекта должны быть согласованы с проектной организацией до начала монтажа. 4.3. ВЭИ, устанавливаемые на газотранспортных системах, должны отвечать требованиям технических условий, утвержденных в установленном порядке, нормативной документации и техническим параметрам участка газопровода, на котором устанавливается ВЭИ и иметь паспорт (сертификат) завода-изготовителя. Проектирование и установку ВЭИ следует осуществлять на наименее напряженных участках газопровода в местах доступных для освидетельствования технического состояния ВЭИ и не подверженных механическим воздействиям, подтоплению и другим внешним воздействиям. Расположение ВЭИ следует предусматривать на повышенных участках газопроводов, где не может скапливаться жидкость внутри газопровода (вода, конденсат, метанол и т.п.). 4.5. При монтаже ВЭИ на эксплуатируемых газопроводах газотранспортное предприятие (ГП) обязано провести анализ готовности участка газопровода к установке ВЭИ, выполнить необходимые работы по подготовке объекта в соответствии с предъявляемыми техническими требованиями, согласовать режимы транспорта газа с ЦПДУ и обеспечить проведение работ в соответствии с требованиями по безопасной организации работ, изложенными в соответствующих документах (приложение 2) и настоящих Указаниях. 4.6. Эксплуатирующая организация должна выдать производителю огневых работ наряд-допуск и осуществить огневые работы в порядке, установленном РД 09-364-00. 4.7. При монтаже ВЭИ на действующих газопроводах предварительно отключают ближайшие установки электрохимической защиты и электроперемычки (если они имеются и работают). 4.8. Отрывается траншея, обеспечивающая свободную и безопасную работу в ней. При этом, расстояние между трубопроводом и откосом траншеи должно быть не менее 2,5 м, а просвет между трубой и дном траншеи не менее 0,7 м. Длина траншеи должна быть больше длины ВЭИ на 3 м в каждую сторону. Траншея должна с двух сторон иметь два удобных выхода. 4.9. Удаляется изоляционное покрытие и очищаются места вырезки катушек не менее чем на 2 м в стороны, примыкающих к катушке участков трубопровода и места приварки перемычек и контактных соединений проводов установок ЭХЗ и КИП. 4.10. Перед вырезкой катушки к двум участкам трубопровода, между которыми монтируется ВЭИ, приваривается электрическая изолированная перемычка безопасности с сечением по меди не менее 25 мм2. 4.11. Приварку перемычек и контактных соединений проводов установок ЭХЗ и КИП к поверхности трубопровода следует производить: Для труб, изготовленных из сталей с временным сопротивлением разрыву 539 МПа (55 кгс/мм»): - термитной или электродуговой сваркой, согласно п. 10.6 СНиП III-42-80*. Для труб, изготовленных из сталей с временным сопротивлением разрыву более 539 МПа (55 кгс/мм2): - термитной сваркой с применением только медного термита или электродуговой сваркой к продольным и кольцевым сварным швам, согласно п. 10.6 СНиП III-42-80*; - электродуговой сваркой с применением электродов с основным покрытием марки Э 42-А-Б (ГОСТ 9467-75), диаметром 3 мм при силе тока не более 120 А (ВСН 006-89). 4.12. Вырезка катушки производится в месте установки ВЭИ в соответствии с размерами вставки, затем катушка извлекается и подготавливаются кромки трубопровода под сварку в соответствии с требованиями СНиП 2.05.06-85*, СП 105-34-96, ВСН 006-89, ВСН 51-1-97 и РД 558-97. 4.13. Перед монтажом ВЭИ внутренняя полость примыкающих участков труб должна быть очищена, а кромки и прилегающие к ним внутренняя и наружная поверхности труб зачищены на ширину, обеспечивающую нормальные условия сварки встык в соответствии с требованиями СНиП 2.05.06-85*, СП 105-34-96, ВСН 006-89 и РД 558-97. Электропроводящий смазочный материал должен быть полностью удален со свариваемых частей труб и патрубков. 4.14. По окончании варки ВЭИ устанавливается КИП для проведения измерений изолирующих свойств вставки (приложение 5). 4.15. Между участками газопровода, примыкающими к ВЭИ, необходимо установить искроразрядник, рассчитанный на напряжение пробоя 500 V и минимальный импульсный ток 1500 А. 4.16. Схема установки КИП и искроразрядника в месте монтажа ВЭИ показана на рисунке (приложение 5). Подводящие провода к КИП должны иметь сечение по меди не менее 2,5 мм2, а искроразрядник должен быть подключен короткими металлическими проводниками сечением эквивалентным 25 мм2 по меди. 5. ПРИЕМКА ВЭИ В ЭКСПЛУАТАЦИЮ5.1. При производстве работ по испытанию участка нового газопровода с ВЭИ на прочность и проверке на герметичность необходимо руководствоваться проектом и следующими документами: СНиП 2.05.06-85*, СНиП III-42-80*, ВСН 011-88, ВСН 012-88, СП 111-34-96, ВРД 39-1.10-006-2000. 5.2. Участки нового газопровода с ВЭИ подвергаются гидравлическим испытаниям и считаются выдержавшими испытания, если они сохранили прочность и герметичность в течение не менее 2 часов при испытательном давлении на участках I и II категорий Рисп=1,25, Pmax (Рmах - максимальное рабочее давление в газопроводе); III и IV категорий Рисп=1,1 Pmax. 5.3. При установке ВЭИ на газопроводе, находящемся в эксплуатации, гарантийные стыки проверяются ультразвуковым и рентгенографическим методами согласно требованиям ВСН 012-88 с составлением акта на сварку гарантийных стыков. 5.4. ВЭИ с гарантийными стыками, установленные на газопроводе, находящемся в эксплуатации, испытываются максимальным возможным рабочим давлением газа на данном участке в течение не менее 2 часов. 5.5. После испытания ВЭИ шунтируется на КИПе и удаляется электрическая перемычка безопасности, установленная до начала монтажа ВЭИ. 5.6. Участки газопровода, примыкающие к ВЭИ, протяженностью не менее 2 м, покрываются изоляцией усиленного типа по ГОСТ 51164-98, качество которой проверяется искровым дефектоскопом согласно требованиям ГОСТ 9.602-89. 5.7. После завершения изоляционных работ шунты с КИПа снимаются. 5.8. Контроль исправности ВЭИ перед вводом в эксплуатацию производят измерением разности потенциалов между обоими концами электроизолирующей вставки и измерением «кажущегося» сопротивления. При измерениях разности потенциалов между концами ВЭИ на одной стороне ближайшая УКЗ отключается, а на другой стороне на ближайшей УКЗ ставится прерыватель с тактами прерывания 12/3. Значения разности потенциалов между концами ВЭИ должны быть не менее 0,1 В по абсолютной величине. Измерение «кажущегося» сопротивления производят приборами типа М 416 или МС 08. На газопроводах допускаются следующие результаты измерений «кажущегося» сопротивления: более 5 Ом - при полиэтиленовой изоляции; более 0,40 Ом - при старой битумной изоляции. 5.9. После окончания испытаний и изоляционных работ при подземной установке ВЭИ траншея засыпается песчаным грунтом с последующей подбивкой и трамбовкой. Верхняя кромка грунта должна быть выше верхней образующей ВЭИ не менее чем на 0,7 м. 5.10. На каждую ВЭИ составляется исполнительная техническая документация в соответствии с требованиями ВСН 012-88 и акт о приемке в эксплуатацию установленной формы (приложение 3), в котором отражают качество сварки и изоляции, результаты испытаний, а также сведения об исполнителях. 6. ЭКСПЛУАТАЦИЯ ВЭИ6.1 Конструкция ВЭИ не требует специального технического обслуживания и ремонта, отличающегося от обслуживания линейной части газопроводных систем, в течение всего срока службы. 6.2 Эксплуатирующая организация должна иметь технологический паспорт на каждую установленную ВЭИ, в котором должны быть указаны: местоположение и обозначение вставки, наружный диаметр металлических патрубков, толщина стенки патрубков, марка стали, рабочее давление, тип защитного покрытия, номер вставки, завод-изготовитель, дата изготовления, дата установки в газопровод (приложение 4). К технологическому паспорту должны быть приложены: - копии сертификатов (паспортов) на материалы, из которых изготовлена ВЭИ; - данные входного контроля всех материалов (при отсутствии сертификатов); - свидетельства о результатах испытаний по определению физико-механических характеристик материалов согласно требований чертежей и технических условий завода-изготовителя; - копии протоколов или актов испытаний; - заключение о готовности; - акт о приемке в эксплуатацию. 6.3. Контроль исправности ВЭИ после ввода в эксплуатацию защитной системы осуществляют в соответствии с п.5.8 настоящих Указаний. При эффективно действующей ВЭИ разница между потенциалом включения на защищаемой стороне ВЭИ значительно выше, чем на не защищаемой по абсолютной величине. 6.4. Периодичность технического осмотра и проверки исправности ВЭИ должна осуществляться в соответствии с требованиями «Правил технической эксплуатации магистральных газопроводов» ВРД 39-1.10-006-2000 (п. 8.3), но не реже одного раза в квартал в объеме п.5.8 настоящих Указаний. 7. ХРАНЕНИЕ И ТРАНСПОРТИРОВАНИЕ ВЭИ7.1. Хранение упакованных вставок разрешается в неотапливаемых складских помещениях при температуре от - 60°С до + 60°С. Не допускается попадание внутрь вставок атмосферных осадков, пыли, загрязнений. 7.2. Транспортирование упакованных вставок разрешается производить любым видом транспорта при температуре от -60 °С до +60 °С. 7.3. При хранении и транспортировании вставок торцы концевых патрубков должны быть плотно закрыты технологическими крышками, скрепленными резьбовыми стяжками. 8. ТРЕБОВАНИЯ БЕЗОПАСНОСТИ ПРИ МОНТАЖЕ И ЭКСПЛУАТАЦИИ ВЭИ8.1. Перед началом работ ответственный руководитель от газотранспортного предприятия проводит инструктаж бригады Исполнителя по технике безопасности, уточняет особенности конкретного участка газопровода, знакомит с действующими на данном предприятии и в отрасли документами и инструкциями, знание которых необходимо при выполнении работ по монтажу ВЭИ. 8.2. Газотранспортное предприятие несет ответственность за соблюдение правил техники безопасности при выполнении всех работ на газопроводе, за обеспечение оговоренных режимов перекачки газа, за все действия персонала по погрузке, транспортировке, вырезке катушек и варке ВЭИ, испытаниям и изоляционным работам. Персонал, в том числе персонал Исполнителя, задействованный в перечисленных выше работах, должен все время находиться под контролем и руководством ответственного представителя ГП. 8.3. При монтаже к эксплуатации ВЭИ необходимо соблюдать: «Правила технической эксплуатации электроустановок потребителей», «Правила техники безопасности при эксплуатации электроустановок», «Правила устройства электроустановок», «Правила технической эксплуатации магистральных газопроводов», «Правила безопасности при эксплуатации магистральных газопроводов», «Правила пожарной безопасности в газовой промышленности», «Правила устройства и безопасной эксплуатации грузоподъемных кранов», настоящие Указания, а также действующие в конкретном ГП инструкции по технике безопасности. Принятые сокращенияВЭИ - вставка электроизолирующая. ГИС - газоизмерительная станция. ЦПДУ - центральное производственно-диспетчерское управление. ГП - газотранспортное предприятие. КИП - контрольный измерительный пункт. УКЗ - установка катодной защиты. ЛЭС - линейная эксплуатационная служба. Дн - наружный диаметр патрубков ВЭИ. Рраб - рабочее давление в газопроводе. Рисп - испытательное давление. Pmax - максимальное рабочее давление на участке газопровода. U - напряжение. I - сила тока. В - вольт. А - ампер. Нормативные и руководящие документы1. Правила безопасности при эксплуатации магистральных газопроводов. «Недра». М.. 1985 г. 2. Правила технической эксплуатации магистральных газопроводов. ВРД 39-1.10-006-2000., М. 3. Правила безопасности в нефтяной и газовой промышленности. Госгортехнадзор, 1993 г. 4. Правила устройства электроустановок. Энергия, М., 1998 г. 5. Правила технической эксплуатации электроустановок потребителей. Энергоатомиздат, М., 1992 г. 6. Правила техники безопасности при эксплуатации электроустановок. 7. ВППБ 01-04-98. Правила пожарной безопасности для предприятий и организаций газовой промышленности. 8. Правила устройства и безопасной эксплуатации грузоподъемных кранов. 9. Положение о техническом надзоре заказчика за качеством строительства (реконструкции) и капитального ремонта объектов газовой промышленности. М., 1994 г. 10. СНиП 2.05.06-85*. Магистральные трубопроводы. Нормы проектирования. 11. СНиП III-42-80*. Правила производства и приемки работ. Магистральные трубопроводы. 12. СНиП 3.05.05-84. Технологическое оборудование и технологические трубопроводы. 13. СНиП III-4-80 Техника безопасности в строительстве. 14. РД 09-364-00. Типовая инструкция по организации безопасного проведения огневых работ на взрывоопасных и взрывопожароопасных объектах. 15. Типовая инструкция по организации безопасного ведения газоопасных работ. Госгортехнадзор, 1985 г. 16. ВСН 006-89. Строительство магистральных и промысловых трубопроводов. Сварка. 17. ВСН 51-1-97 Правила производства работ при капитальном ремонте магистральных газопроводов. 18. ВСН 008-88. Противокоррозионная и тепловая защита. 19. ВСН 009-88. Средства и установки химзащиты. 20. ВСН 011-88. Очистка полости и испытание. 21. ВСН 012-88 Контроль качества и приемка работ. 22. РД 51-108-86. Инструкция по технологии сварки и резки труб при производстве ремонтно-восстановительных работ на магистральных газопроводах. 23. ГОСТ 9.602-89. Единая система защиты от коррозии и старения. Сооружения подземные. 24. РД 558-97 Руководящий документ по технологии сварки труб при производстве ремонтно-восстановительных работ на газопроводах. 25. ГОСТ Р 51164-98. Трубы стальные. Защита металлов от коррозии. 26. ГОСТ 9.602-89. Единая система защиты от коррозии и старения. Сооружения подземные. Общие требования к защите от коррозии. 27. Руководство по эксплуатации средств противокоррозионной защиты подземных газопроводов. М., ВНИИгаз, 1986 г. 28. ОНТП 51-1-85. Газопроводы. Нормы технологического проектирования. 29. СП 105-34-96. Свод правил по производству сварочных работ и контролю качества сварных соединений. 30. СП 111-34-96. Свод правил по очистке полости и испытанию газопроводов. 31. СНиП 2.04.08-87. Газоснабжение. 32. СНиП 3.05.02-88. Газоснабжение. 33. Инструкция по применению стальных труб в газовой и нефтяной промышленности. М. 2000 г. 34. РД 08-59-94. Положение о порядке разработки (проектирования) допуска к испытаниям и серийному выпуску нового бурового, нефтегазопромыслового, геологоразведочного оборудования для трубопроводного транспорта и проектирования технологических процессов, входящих в перечень объектов, подконтрольных Госгортехнадзору России.
АКТ
|
||||||||||||||||||||||||||||||||||||||||||||||||||||||||||||||||||||||||||||||||||||||||||||||||||||||||||||||||||||||||||||||||||||||||||||||||||||||||||||||||||||||||
|
Комиссия в составе: |
|
|
|
|
|
осмотрела ВЭИ №…………Ду...…..и установила: |
|
1. ВЭИ №………….установлена в соответствии с проектом черт. №…………
2. Установлен типовой КИП №…………
|
Место установки |
Тип КИПа |
Выводы выполнены |
Примечания |
||||
|
км |
пикет |
Провод марка |
Сечение мм2 |
Длина м |
Глубина прокладки |
||
|
|
|
|
|
|
|
|
|
3.Установлен разрядник:
|
Марка разрядника |
Параметры разрядника |
Соединение выполнено |
Изоляция |
Примечания |
|||
|
Up (B) |
I (кА) |
Провод марка |
Сечение, мм2 |
Длина |
|||
|
|
|
|
|
|
|
|
|
4. Данные электрометрических испытаний ВЭИ:
|
Потенциалы включения/выключения (с обоих сторон) |
«Кажущееся» сопротивление (Ом) |
Установлена шунтирующая перемычка (Ом) |
|||||
|
U вкл |
U выкл |
U вкл |
U выкл |
||||
|
|
|
|
|
|
|
|
|
5. Сварные швы удовлетворяют требованиям технических условий указанным в проекте.
6. Изоляция удовлетворяет требованиям технических условий указанным в проекте.
Заключение комиссии:
ВЭИ №…………принимается к эксплуатации
Исполнитель работы (организация)_______________________________________________
К акту приложена схема подключения КИП и разрядника
|
Председатель комиссии |
(подпись) |
|
Члены комиссии: |
(подписи) |
№…………ВЭИ………………………………………………………………………………….
Наименование объекта……………………………………………………………………………
Место установки ВЭИ……………………………………………………………………………
Заводской номер ВЭИ……………………Наименование изготовителя……………………….
Дата изготовления…………………………Дата установки на трубопровод………………….
Диаметр патрубков…………….Толщина стенки……………….Марка стали………………...
Установленное рабочее давление…………….Испытательное давление……………………...
Тип защитного покрытия…………………………………………………………………………
Дата подписания акта приемки в эксплуатацию………………………………………………..
Тип и параметры установленного искроразрядника……………………………………………
Места расположения ближайших к ВЭИ с обоих сторон узла катодной защиты……………
Результаты электрометрических измерений
|
Дата |
Потенциалы включения/выключения с обоих сторон |
«Кажущееся» сопротивление (Ом) |
Профилактические работы |
Подпись исполнителя |
||||
|
U вкл |
U выкл |
U вкл |
U выкл |
|||||
|
|
|
|
|
|
|
|
|
|
|
|
|
|
|
|
|
|
|
|
|
|
|
|
|
|
|
|
|
|
|
|
|
|
|
|
|
|
|
|
|
|
|
|
|
|
|
|
|
|
Приложение: Принципиальная схема и план размещения ВЭИ
|
Начальник ЛЭС |
(подпись) |
Ф.И.О. |

|
ГОСТЫ, СТРОИТЕЛЬНЫЕ и ТЕХНИЧЕСКИЕ НОРМАТИВЫ. Некоммерческая онлайн система, содержащая все Российские Госты, национальные Стандарты и нормативы. В Системе содержится более 150000 файлов нормативно-технической документации, действующей на территории РФ. Система предназначена для широкого круга инженерно-технических специалистов. Copyright © www.gostrf.com, 2008 - 2026 |