|
|
|
ПРАВИТЕЛЬСТВО МОСКВЫ
ПОСОБИЕ к МГСН 4.12-97 ЛЕЧЕБНО-ПРОФИЛАКТИЧЕСКИЕ УЧРЕЖДЕНИЯ РАЗДЕЛ III ВЫПУСК 5 ДИАГНОСТИЧЕСКИЕ ОТДЕЛЕНИЯ Отделения (кабинеты) функциональной диагностики. Эндоскопические отделения (кабинеты). Отделы (отделения) лучевой диагностики (рентгенологические, компьютерной и магнитно-резонансной томографии, радионуклидной диагностики).
2005 ПРЕДИСЛОВИЕ1. РАЗРАБОТАНО: ГУП МНИИП «Моспроект-4» (архитектор Сорокина Ю.В., инженер Демина Е.С.), при участии: - Департамента здравоохранения города Москвы (Главный специалист по функциональной диагностике Сахно Ю.Ф.; Главный специалист по эндоскопии Сотников В.Н., Главный специалист по лучевой диагностике Директор НПЦ МР Варшавский Ю.В.); - Сотрудников НПЦ МР (зам. директора к.м.н. Гуреев Г.Т., зав. организационно-методическим отделением Жаворонкова З.В., зав отделом технического рентгенорадиологического контроля Бердяков Г.И.); - Заведующей отделением лучевой диагностики клинического онкологического диспансера к.м.в., доц. Сологубовой Г.Ф. 2. ПОДГОТОВЛЕНО к утверждению и изданию Управлением перспективного проектирования, нормативов и координации проектно-изыскательских работ Москомархитектуры. 3. СОГЛАСОВАНО: Департаментом здравоохранения города Москвы и Москомархитектурой. 4. УТВЕРЖДЕНО И ВВЕДЕНО В ДЕЙСТВИЕ Приказом Москомархитектуры от 26 февраля 2006г. № 38. СОДЕРЖАНИЕВВЕДЕНИЕПособие разработано в развитие действующих МГСН 4.12-97 «Лечебно-профилактические учреждения». Пособие состоит из 7 разделов и 9 выпусков: Раздел I - Общие положения (Выпуск 1); Раздел II - Стационары (Выпуски 2, 3); Раздел III - Диагностические отделения (Выпуски 4, 5); Раздел IV - Специализированные и вспомогательные отделения (Выпуск 6); Раздел V - Амбулаторно-поликлинические учреждения (Выпуск 7); Раздел VI - Служебно-бытовые помещения. Подстанции скорой и неотложной медицинской помощи. Молочные кухни и раздаточные пункты молочных кухонь (Выпуск 8); Раздел VII - Инженерное оборудование (Выпуск 9). В настоящем Выпуске 5 Пособия изложены основные положения и специфические требования к проектированию отделений (кабинетов) функциональной диагностики, эндоскопических отделений (кабинетов), отделов (отделений) лучевой диагностики (рентгенологических, компьютерной томографии, магнитно-резонансной томографии, лабораторий радионуклидной диагностики), а также рекомендуемые составы и площади помещений и примерные габаритные схемы с набором необходимого технологического оборудования Пособие предназначено для проектировщиков, а также для организаторов здравоохранения, работающих в области планирования и проектирования лечебно-профилактических учреждений. ОБЛАСТЬ ПРИМЕНЕНИЯНастоящий выпуск Пособия распространяется на проектирование отделений (кабинетов) функциональной диагностики, эндоскопических отделений (кабинетов), отделений лучевой диагностики (рентгенодиагностических, магнитнорезонансной томографии, лабораторий радиоизотопной диагностики) новых и реконструируемых лечебно-профилактических учреждений, независимо от их организационноправовой формы и форм собственности. При проектировании лечебно-профилактических учреждений следует руководствоваться требованиями СНиП 2.08.02-89*, МГСН 4.12-97, МГСН 4.01-94, других действующих на территории г. Москвы нормативных документов в строительстве, а также учитывать положения выпусков 1, 2, 3, 4 Пособия к МГСН 4.12-97 и настоящего выпуска. До выхода последующих выпусков Пособия к МГСН 4.12-97 следует также руководствоваться Пособием по проектированию учреждений здравоохранения (к СНиП 2.08.02-89*) в части отделений, подразделений и учреждений не входящих в выпуски 1, 2, 3, 4 и 5 настоящего Пособия. 1. ОТДЕЛЕНИЕ (КАБИНЕТ) ФУНКЦИОНАЛЬНОЙ ДИАГНОСТИКИ1.1. Отделение (кабинет) функциональной диагностики является структурным подразделением лечебно-профилактического учреждения (стационарного, либо амбулаторно-поликлинического). Основными задачами отделения являются выполнение специальными биофизическими методами и средствами исследований в целях физиологической оценки состояния органов, систем и организма в целом здоровых и больных людей, а также оформление врачом специалистом квалифицированного заключения по результатам этих исследований. 1.2. В амбулаторно-поликлинических учреждениях исследования проводятся как непосредственно в отделении в специально оборудованных кабинетах, так и на дому. В стационарных учреждениях исследования проводятся как непосредственно в отделении в специально оборудованных кабинетах, так и в других отделениях (приемном, палатном) в случаях, когда больной нетранспортабелен. В связи с этим, а также с тем, что исследования больному за время его пребывания в стационаре проводятся неоднократно, отделения функциональной диагностики должны иметь удобные и, по возможности, короткие связи с приемным отделением и палатными отделениями. В кабинетах отделения функциональной диагностики стационара должна быть предусмотрена возможность ввоза больного на каталке. 1.3. К кушетке, на которой проводится исследование необходимо предусмотреть подход с трех сторон. Все аппараты, а также кушетки в отделении должны быть заземлены. 1.4. Все рабочие помещения (кабинеты в которых проводятся исследования) отделения должны располагаться вне зоны воздействия электромагнитных полей, в удалении от рентгенодиагностических кабинетов и кабинетов электросветолечения, в связи с тем, что исследования проводятся с использованием высокочувствительной электронной аппаратуры. При проектировании этих помещений следует учитывать следующие требования: необходимость устранения вибрационных помех, повышенные требования к шумозащите, а также устройство электроэкранов с заземлением. 1.5. Примерные габаритные схемы основных помещений отделения функциональной диагностики с необходимым оборудованием и мебелью приведены в Приложении 1. 1.6. Состав и площади помещений отделений функциональной диагностики определяется заданием на проектирование. Набор помещений для стационаров зависит от профиля палатных отделений, для консультативно-диагностических центров - от специализации кабинетов врачебного приема. Рекомендуемый набор и минимально необходимая площадь помещений отделений функциональной диагностики приведена в таблице 1. Таблица 1
2. ЭНДОСКОПИЧЕСКИЕ ОТДЕЛЕНИЯ (КАБИНЕТЫ)2.1. Эндоскопическое отделение (кабинет) является структурным подразделением лечебно-профилактического учреждения (стационарного или амбулаторно-поликлинического). 2.2. Основной задачей отделения является применение эндоскопических методов в целях ранней диагностики и лечения заболеваний желудочно-кишечного тракта, верхних дыхательных путей и бронхолегочного аппарата, органов брюшной полости, гинекологических и урологических заболеваний. 2.3. Эндоскопическое отделение стационара должно быть планировочно приближено к палатным отделениям и иметь отдельный вход. Набор кабинетов отделения должен соответствовать специализации палатных отделений стационара. 2.4. При узкой специализации стационара эндоскопическое отделение (кабинеты) может размещаться непосредственно в палатном отделении (отделениях), оставаясь при этом самостоятельным структурным подразделением. 2.5. Эндоскопическое отделение (кабинеты) может располагаться в отдельно стоящем лечебно-диагностическом корпусе, соединенным с палатными отделениями переходом. 2.6. В больницах работающих в системе скорой медицинской помощи, следует предусматривать удобную связь эндоскопического отделения (кабинетов) с приемным отделением, отделениями хирургического профиля и отделением анестезиологии и реанимации. 2.7. При проектировании эндоскопического отделения (кабинетов) в составе стационарного учреждения необходимо предусмотреть возможность транспортировки больных на каталках. 2.8. В системе амбулаторно-поликлинических учреждений полноценные эндоскопические отделения проектируются в составе Консультативно-диагностических центров. В территориальных поликлиниках могут предусматриваться отдельные эндоскопические кабинеты. В том и другом случае, структура и набор кабинетов зависит от профилей кабинетов врачебного приема и определяются заданием на проектирование. 2.9. В амбулаторно-поликлинических учреждениях эндоскопическая операционная не предусматривается. 2.10. В эндоскопических операционных необходимо наличие специальных устройств, предназначенных для подъема эндоскопической аппаратуры на время уборки. 2.11. При проектировании отделения необходимо учесть, что для проведения ряда эндоскопических исследований необходим рентгенологический контроль (в соответствии с требованиями СанПиН 2.6.1.1192-03). 2.12. Примерные габаритные схемы основных помещений эндоскопического отделения с необходимым оборудованием и мебелью приведены в Приложении 2. Рекомендуемая минимальная площадь помещений эндоскопических отделений (кабинетов) приведена в таблице 2. Таблица 2
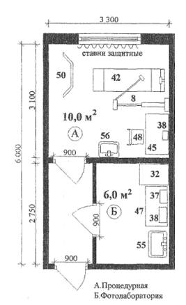
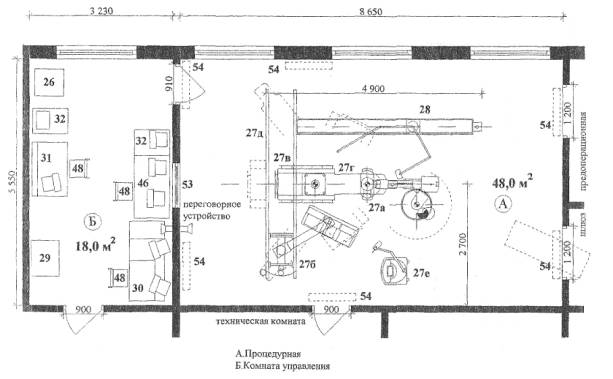
3. ОТДЕЛ (ОТДЕЛЕНИЕ) ЛУЧЕВОЙ ДИАГНОСТИКИОтдел (отделение) лучевой диагностики организуется на базе лечебно - профилактических учреждений, клиник медицинских и научно-исследовательских институтов и является их структурным подразделением, В состав отдела (отделения) лучевой диагностики входят отделения, кабинеты и лаборатории рентгенологической, ангиографической, рентгенотомографической, магнитно-резонансной, радиоизотопной, ультразвуковой и других видов диагностики, в зависимости от профилей палатных отделений и кабинетов врачебного приема лечебно-профилактических учреждений. Размещение рентгеновских кабинетов, помещений, связанных с работой с радиоактивными веществами, осуществляется в соответствии с гигиеническими требованиями устройства и эксплуатации рентгеновских кабинетов, аппаратов и проведения рентгенологических исследований, а также других действующих нормативных документов. Процедурные рентгенологических кабинетов, кабинетов и помещений отделения лучевой диагностики, в которых находятся источники ионизирующих излучений, помещения лабораторий радиоизотопной диагностики, где ведутся работы 1 и 2 классов, не допускается размещать смежно (по горизонтали и вертикали) с палатами беременных и детей. 3.1. Рентгенологическое отделение3.1.1. Рентгенологическое отделение является самостоятельным подразделением лечебно-профилактического учреждения (стационарного или амбулаторно-поликлинического), либо входит в состав отдела (отделения) лучевой диагностики. 3.1.2. Размещение рентгенологических отделений (кабинетов) в жилых зданиях и детских учреждениях (яслях, детских садах, школах) запрещается. В отдельных случаях, по согласованию с органами санитарно-эпидемиологической службы, допускается размещение рентгенологических отделений (кабинетов) в отдельной пристройке к жилому зданию, а также в цокольных этажах. 3.1.3. Разрешается размещение в жилых зданиях рентгеностоматологических кабинетов, при условии их оборудования дентальными аппаратами, работающими с высокочувствительными приемниками изображения, или с цифровой обработкой изображения, рабочая нагрузка которых не превышает нормативную (СанПиН 2.6.1.1192-03). 3.1.4. Стационарные средства радиационной защиты процедурной рентгеновского кабинета (стены, пол, потолок, защитные двери, ставни, смотровые окна и др.) должны обеспечивать ослабление рентгеновского излучения до уровня, при котором не будет превышен основной предел дозы (ПД) для соответствующих категорий облучаемых лиц (СанПиН 2.6.1.1192-03). 3.1.5. В объединенных лечебно-профилактических учреждениях (стационар с амбулаторно-поликлиническим отделением, или консультативно-диагностическим центром) рентгенологическое отделение должно быть централизованным и обслуживать как стационарных, так и амбулаторно-поликлинических больных, за исключением тех случаев, когда в структуре стационара имеются инфекционные, туберкулезные, акушерские и педиатрические отделения. Наличие в этих отделениях рентгенологических кабинетов предусматривается заданием на проектирование. 3.1.6. Входы в рентгенологическое отделение для больных стационара и для посетителей амбулаторно-поликлинического отделения должны быть раздельными. Размещение отделения в планировочной структуре лечебно-профилактического учреждения должно предусматривать удобные и короткие связи с палатными отделениями и амбулаторно-поликлиническим подразделением. Рентгенологическое отделение не должно быть проходным. 3.1.7. Количество рентгенологических кабинетов для общих исследований в стационарных ЛПУ определяется заданием на проектирование (из расчета 1 кабинет для универсальных рентгеновских аппаратов на 200 коек). Дополнительно предусматривается рентгенологический кабинет при приемном отделении. В территориальных поликлиниках - один кабинет на 400 посещений в смену (без учета рентгенофлюорографического кабинета), в консультативно-диагностических центрах - один кабинет на 250 посещений в смену. 3.1.8. Рентгеноперационный блок (кабинет) организуется в составе отдела (отделения) лучевой диагностики многопрофильной больницы, имеющей в своем составе торакальное, абдоминальное, урологическое, сосудистое и другие отделения хирургического профиля, либо диагностического центра при наличии соответствующих условий (стационар, реанимационное отделение и т.д.) 3.1.9. В стационарных и амбулаторно-поликлинических учреждениях имеющих в своем составе травматолого-ортопедическое (травматологическое) отделение (кабинет) предусматривается дополнительный рентгенологический кабинет. 3.1.10. В процедурной рентгенологического кабинета допускается предусматривать только искусственное освещение. 3.1.11. В состав рентгеновского кабинета для общих исследований входят процедурная, комната управления и фотолаборатория. 3.1.12. Площадь процедурной может быть скорректирована в соответствии с технологическим проектом, утвержденным в установленном порядке, с учетом следующих требований: - расстояние до рабочего места персонала за малой защитной ширмой до стен помещения - не менее 1,5 м; - расстояние от рабочего места персонала за большой защитной ширмой до стен помещения - не менее 0,6 м; - расстояние от стола-штатива поворотного или от стола снимков до стен помещения - не менее 1,5 м; - расстояние от стойки снимков до ближайшей стены - не менее 0,1 м; - расстояние от рентгеновской трубки до смотрового окна - не менее 2 м (для маммографических и дентальных аппаратов - не менее 1 м); - ширина технологического прохода для персонала между штативами - не менее 0,8 м; - зона размещения каталки для пациента - не менее 1,5×2 м; - дополнительная площадь при технологической необходимости ввоза каталки в процедурную - 6 м2. 3.1.13. В процедурной рентгенологического кабинета для общих исследований допускается дополнительно устанавливать малогабаритный рентгеновский аппарат с напряжением до 60 кВт для снимков зубов и маммографии. 3.1.14. Кабинет врача не должен размешаться в непосредственной близости с процедурной. 3.1.15. Фотолаборатория может быть общей для двух кабинетов или предусматривается при одном кабинете. Вход в фотолабораторию следует предусматривать непосредственно из процедурных. 3.1.16. Фотолаборатория может состоять из одного помещения - «темной комнаты». При оснащении лаборатории проявочным автоматом и большом объеме работ следует предусматривать дополнительную «светлую» комнату для сортировки, маркировки и обрезки сухих снимков. 3.1.17. Архив материалов лучевой диагностики является составной частью отдела (отделения) лучевой диагностики. В зависимости от типа носителя информации в архиве выделяются помещения для хранения пленочных материалов, магнитных материалов, бумажных носителей. Архив делится на три части: - оперативный (снимки больных, обследованных в течение года); - основной (со сроком хранения рентгенограмм более года); - учебно-научный архив. Помещения оперативного и научно-учебного архива располагаются непосредственно в отделении лучевой диагностики. Основной архив может находиться вне отделения лучевой диагностики в зданиях лечебного и вспомогательного назначения. Помещение архива должно быть сухим, защищено от прямого солнечного света, может располагаться в подвальном этаже без окон, при наличии окон они экранируются защитными шторами или жалюзи. 3.1.18. В состав рентгенологических отделений могут быть включены кабинеты ультразвуковой диагностики. 3.1.19. Примерные габаритные схемы основных помещений рентгенологического отделения с необходимым оборудованием и мебелью приведены в Приложении 3. 3.1.20. Рекомендуемая минимальная площадь помещений, входящих в состав рентгенологических отделений приведена в таблице 3.1. Рекомендуемые площади помещений могут быть уменьшены, а набор помещений изменен по проектному заданию фирмы-изготовителя оборудования. При этом организация работ должна обеспечивать общегигиенические требования.
3.2. Отделение рентгеновской компьютерной томографии (РКТ)3.2.1. Отделение рентгеновской компьютерной томографии является самостоятельным подразделением лечебно-профилактического учреждения (стационарного или амбулаторно-поликлинического), либо входит в состав отдела (отделения) лучевой диагностики. 3.2.2. Площади помещений кабинета рентгеновской компьютерной томографии задается фирмой-изготовителем компьютерного томографа в форме проектного предложения, которое учитывается при создании технологического проекта кабинета, но не заменяет его. Примерная габаритная схема кабинета компьютерной томографии приведена в Приложении 4. Рекомендуемая минимальная площадь помещений отделения компьютерной томографии приведена в таблице 3.2. Таблица 3.2.
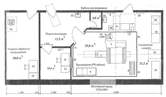
3.3. Кабинет магнитно-резонансной томографии3.3.1. Кабинет магнитно-резонансной томографии (МРТ) входит в состав отдела (отделения) лучевой диагностики лечебно-профилактического учреждения. 3.3.2. При размещении кабинета МРТ следует принимать во внимание большой вес МР-томографа (несущая способность перекрытия рассчитывается в соответствии с нагрузкой от установки). 3.3.3. В зоне магнитной индукции до 0,5 милли Тесла (мТ) не допускается нахождение пациентов с кардиостимуляторами и другими типами имплантированных электронных стимуляторов. Зона магнитной индукции (более 0,5 мТ) должна быть обозначена предупреждающими сигналами, в соответствии с действующими нормами, а вход в нее должен постоянно контролироваться. 3.3.4. В состав кабинета МРТ входят: сканирующая комната (РЧ - кабина), комната управления, техническая комната, кабина для раздевания. 3.3.5. Площадь помещений кабинета МРТ определяется на основе рекомендаций фирмы-изготовителя оборудования и согласовываются со службой Госсанэпиднадзора в установленной порядке. 3.3.6. Примерная габаритная схема кабинета магнитно-резонансной томографии приведена в Приложении 5. 3.3.7. Рекомендуемая минимальная площадь помещений кабинета магнитно-резонансной томографии приведена в таблице 3.3.1. Таблица 3.3.1.
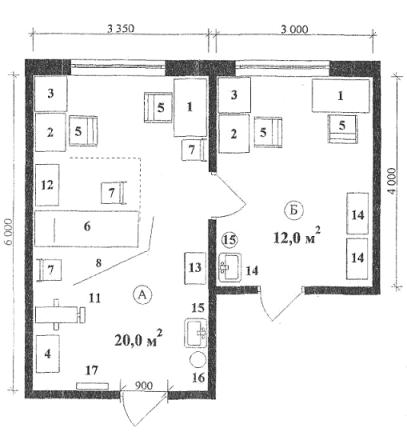
3.4. Отделение (лаборатория) радионуклидной диагностики3.4.1. Отделение (лаборатория) радионуклидной диагностики является самостоятельным подразделением стационарного лечебно-профилактического учреждения, либо входит в состав отдела (отделения) лучевой диагностики. Отделение (лаборатория) радионуклидной диагностики не должно размещаться в жилых зданиях и детских учреждениях. 3.4.2. Помещения для проведения радиологических исследований должны иметь защиту со стороны смежно-расположенных помещений, в которых имеются источники ионизирующих излучений (расчетная мощность дозы - 0,03 мбэр/час). 3.4.3. Входы в отделение (лабораторию) радионуклидной диагностики для больных стационара и поликлинического отделения должны быть раздельными. 3.4.4. Отделение (лаборатория) радионуклидной диагностики не должно быть проходным. 3.4.5. При приеме радиоактивных источников и удаления, выдержанных до установленного уровня активности радиоактивных отходов необходимо предусматривать отдельный наружный вход. 3.4.6. Блок радиодиагностических исследований «ИН ВИТРО» с помещениями радиоизотопного обеспечения может предусматриваться вне отделения (лаборатории) радионуклидной диагностики. 3.4.7. Процедурная с генератором короткоживущих изотопов должна быть приближена к помещениям для гамма-камеры. 3.4.8. Помещения, где используются открытые радиоактивные источники с диагностической целью по активности на рабочем месте, как правило, относятся к помещениям для III класса работ, за исключением помещений, предназначенных, для хранения радиоактивных веществ и их фасовки, которые устраиваются по II классу. По II классу устраиваются также помещения, в которых применяются методики, требующие повышенной активности радиофармацевтических препаратов (в соответствии с исходными данными на проектирование и санитарными правилами). 3.4.9. Помещения для работы III класса, предназначенные непосредственно для диагностических исследований, во избежание получения искаженных данных, вызванных влиянием посторонних радиоактивных источников на радиометрическую аппаратуру, должны быть максимально удалены от помещений, где хранятся радиоактивные вещества (хранилище) и где ведутся работы с ними в количествах, превышающих минимальную значимую активность (не требующую регистрации в санитарных органах). В помещениях для работ III класса должна предусматриваться приточно-вытяжная вентиляция с 4-кратным воздухообменом при вытяжке и 3-кратным - по притоку. Помещения для каждого из классов работ необходимо сосредотачивать в одной части здания. 3.4.10. Примерная габаритная схема кабинета сканирования с необходимым оборудованием и мебелью приведена в Приложении 6. 3.4.11. Рекомендуемая минимальная площадь помещений отделения (лаборатории) радионуклидной диагностики приведена в таблице 3.4.1. Таблица 3.4.1.
4. НОРМАТИВНЫЕ ССЫЛКИВ настоящем выпуске Пособия приведены ссылки на следующие документы: 4.1. СНиП 2.08.02-89* «Общественные здания и сооружения». 4.2. СНиП 2.04.05-91* «Отопление, вентиляция и кондиционирование» 4.3. СанПиН 2.1.3.1375-03 «Гигиенические требования к размещению, устройству, оборудованию и эксплуатации больниц, родильных домов и других лечебных стационаров» 4.4. МГСН 4.12-97 «Лечебно-профилактические учреждения». 4.5. Выпуски 1, 2, 3 и 4 Пособия к МГСН 4.12-97 4.6. МГСН 2.01-99 «Энергосбережения в зданиях. Нормативы по теплозащите и тепловодоэлектроснабжению». 4.7. Санитарные правила и нормативы СанПиН 2.6.1.1192-03 «Гигиенические требования к устройству и эксплуатации рентгеновских кабинетов, аппаратов и проведению рентгенологических исследований». 4.8. Санитарно-эпидемиологические правила СП 3.1.1275-03 «Профилактика инфекционных заболеваний при эндоскопических манипуляциях» Приложение 1Примерные габаритные схемы основных помещений отделение функциональной диагностики с необходимым оборудованием и мебельюЭкспликация оборудования
Рис 1.1. Кабинет исследований нарушений регионарного кровообращения
Рис.1.2. Кабинет исследований функций внешнего дыхания
Рис. 1.3. А. Кабинет электрокардиографии с физической нагрузкой
|
|||||||||||||||||||||||||||||||||||||||||||||||||||||||||||||||||||||||||||||||||||||||||||||||||||||||||||||||||||||||||||||||||||||||||||||||||||||||||||||||||||||||||||||||||||||||||||||||||||||||||||||||||||||||||||||||||||||||||||||||||||||||||||||||||||||||||||||||||||||||||||||||||||||||||||||||||||||||||||||||||||||||||||||||||||||||||||||||||||||||||||||||||||||||||||||||||||||||||||||||||||||||||||||||||||||||||||||||||||||||||||||||||||||||||||||||||||||||||||||||||||||||||||||||||||||||||||||||||||||||||||||||||||||||||||||||||||||||||||||||||||||||||||||||||||||||||||||||||||||||||||||||||||||||||||||||||||||||||||||||||||||||||||||||||||||||||||||||||||||||||||||||||||||||||||||||||||||||||||||||||||||||||||||||||||||||||||||||||||||||||||||||||||||||||||||||||||||||||||||||||||||||||||||||||||||||||||||||||||||||||||||||||||||||||||||||||||||||||||||||||||||||||||||||||||||||||||||||||||||||||||||||||||||||||||||||||||||||||||||||||||||||||||||||||||||||||||||||||||||||
|
№№п/п |
Наименование оборудования |
Габариты, мм |
|
1 |
2 |
3 |
|
1. |
Стол врача |
1100×630×740 |
|
2. |
Стол для компьютера |
720×580×735 |
|
3. |
Принтерная тележка |
620×680×890 |
|
4. |
Стол-тумбочка под аппаратуру с распашными дверями |
700×440×667 |
|
5. |
Кушетка смотровая |
1850×600×500 |
|
6. |
Стул винтовой |
D=320; H=400/545 |
|
7. |
Стул полумягкий |
430×470×770 |
|
8. |
Стол |
2000×600×750 |
|
9. |
Ширма четырехстворчатая |
2000×1600 |
|
10. |
Облучатель бактерицидный потолочный |
1070×140×80 |
|
11. |
Шкаф |
1000×305×1053 |
|
12. |
Шкаф медицинский двухстворчатый |
830×451×1610 |
|
13. |
Штатив для длительных вливаний |
650×650×2130 |
|
14. |
Негатоскоп общего назначения |
420×222×660 |
|
15. |
Стол перевязочный |
2000×500×850 |
|
16. |
Подставка для стерильных коробок |
500×550×1085 |
|
17. |
Подставка для тазов |
434×495×760 |
|
18. |
Аппарат для ингаляционного наркоза прерывистого потока |
486×593×960 |
|
19. |
Кресло гинекологическое с гидравлическим приводом |
1606×1193×1640 |
|
20. |
Стол операционный универсальный |
2000×607×1000 |
|
21. |
Светильник потолочный 6-ти рефлекторный |
1480×1000 |
|
22. |
Светильник 4-рефлекторный передвижной |
530×1750×2000 |
|
23. |
Аппарат для высокочастотной электрохирургии |
530×540×900 |
|
24. |
Столик анестезиолога |
735×515×920 |
|
25. |
Столик инструментальный |
710×515×667 |
|
26. |
Столик медицинский хирургический |
800×460×1540 |
|
27. |
Умывальник хирургический |
650×590×190 |
|
28. |
Умывальник прямоугольный фарфоровый со спинкой |
550×420×150 |
|
29. |
Слив больничный (видуар) |
500×450×480 |
|
30. |
Умывальник прямоугольный керамический |
650×500×150 |
|
31. |
Холодильник бытовой |
690×700×1400 |
|
32. |
Ведро педальное |
372×315×360 |

Рис. 2.1. Кабинет ректороманоскопии

|
№№ п/п |
Наименование оборудования |
Габариты, мм |
|
1 |
2 |
3 |
|
1. |
Стол-штатив поворотный с излучателем (без решетки) |
1300×1600×2600 |
|
2. |
Штатив снимков с излучателем |
1100×1500×2900 |
|
3. |
Стол снимков горизонтальный |
2000×720×800 |
|
4. |
Привод приставки для томографии |
200×400×2500 |
|
5. |
Пульт управления приставок для томографии |
200×250×300 |
|
6. |
Стол-штатив поворотный с колонной для снимков и томографии |
3500×1900×2850 |
|
7. |
Стойка снимков |
590×760×2200 |
|
8. |
Аппарат рентгеновский дентальный стационарный |
L=1530,Н=560 |
|
9. |
Аппарат для панорамной томографии |
1180×930×1998 |
|
10. |
Электрошкаф |
360×250×1205 |
|
11. |
Пульт управления аппарата панорамной томографии |
494×450×905 |
|
12. |
Блок силовой питающего устройства |
900×425×1057 |
|
13. |
Видеоконтрольное устройство |
600×600×890 |
|
14. |
Стойка низковольтная питающего устройства |
580×340×2120 |
|
15. |
Пульт управления питающего устройства |
770×420×850 |
|
16. |
Шкаф низковольтный питающего устройства |
600×500×2000 |
|
17. |
Среднечастотное рентгеновское питающее устройство |
600×500×2200 |
|
I8. |
Пульт управления ручной с приставкой |
400×300×600 |
|
19. |
Несущая стойка с тубусом |
1000×800×2200 |
|
20. |
Подъемник для пациента приводом и подножкой |
|
|
21. |
Штатив напольный с излучателем |
400×800×2200 |
|
22. |
Цифровая ПЗС камера |
|
|
23. |
Прибор для приготовления рентгеноконтрастной взвеси |
250×260×490 |
|
24. |
Сканер для оцифровки рентгеновской пленки |
|
|
25. |
Негатоскоп настенный |
440×730×120 |
|
26. |
АРМ рентген-лаборанта |
|
|
27. |
Рентгеновская установка для ангиокардиографии |
|
|
|
27а Штатив потолочный с УРИ |
|
|
|
276 Цифровой дисплей |
|
|
|
27в Пульт управления |
|
|
|
27г Ангиографический стол |
|
|
|
27д Потолочная система с двумя мониторами |
|
|
|
27е Инъектор |
|
|
28. |
Верхняя защитная ширма с операционной лампой на рельсах |
|
|
29. |
Видеоконтрольное устройство выносное |
629×800×720 |
|
30. |
Станция регистрации катетеризации сердца |
910×580×750 |
|
31. |
Станция архивирования и воспроизведения кардиоснимков |
1200×800×750 |
|
32. |
Тумба под аппаратуру |
570×800×730 |
|
33. |
Автоматизированное рабочее место рентгенолога (АРМ) |
1160×960×750 |
|
34. |
Генератор питающего устройства |
700×500×1000 |
|
35. |
Автоматическая проявочная машина (бак термостата) |
745×800×915 |
|
36. |
Бак промывной |
688×450×860 |
|
37. |
Фонарь неактиничный |
355×200×340 |
|
38. |
Негатоскоп общего назначения |
420×222×340 |
|
39. |
Шкаф сушильный электрический для рентгеновских плёнок |
657×550×1657 |
|
40. |
Кассетница для хранения кассет с рентгеновскими пленками |
675×387×750 |
|
41. |
Стеллаж для приспособлений |
900×260×1910 |
|
42. |
Кресло стоматологическое |
1950×612×1620 |
|
43. |
Кушетка смотровая |
1970×670×520 |
|
44. |
Шкаф |
450×650×1480 |
|
45. |
Стол врача |
1132×630×750 |
|
46. |
Стол оператора |
1400×800×730 |
|
47. |
Стол лабораторный химический |
1100×600×850 |
|
48. |
Стул |
430×440×770 |
|
49. |
Стул винтовой |
Д=320 Н=430/545 |
|
50. |
Ширма большая защитная |
1205×630×2040 |
|
51. |
Ширма малая защитная |
1028×462×935 |
|
52. |
Окно смотровое рентгеновское защитное |
825×425 |
|
53. |
Окно смотровое рентгеновское защитное |
1000×800 |
|
54. |
Облучатель бактерицидный настенный |
1070×140×80 |
|
55. |
Раковина стальная эмалированная с объемной спинкой |
500×400×540 |
|
56. |
Умывальник прямоугольный фарфоровый со спинкой |
550×420×150 |
|
57. |
Унитаз |
533×737×545 |




Рис.3.4. Кабинет рентгенодиагностики заболеваний зубов методом рентгенографии с детальным аппаратом




|
№№ п/п |
Наименование оборудования |
Габариты, мм |
|
1. |
Гентри |
2280×768×1780 |
|
2. |
Стол пациента |
2230×680×934 |
|
3. |
Силовой соединительный шкаф |
750×300×815 |
|
4. |
Тележка для монитора |
540×580×1140 |
|
5. |
Инъекторная система |
650×600×800 |
|
6. |
Распределительный шкаф |
550×220×800 |
|
7. |
Пульт управления с контейнером (система изображения) |
600×858×700 |
|
8. |
Консоль управления |
2660×180×300 |
|
9. |
Система обработки изображения с контейнером |
660×860×700 |
|
10. |
Негатоскоп демонстрационный |
440×730×120 |
|
11. |
Стол врача |
1132×630×750 |
|
12. |
Стол оператора |
1400×800×730 |
|
13. |
Стул |
430×440×770 |
|
14. |
Окно смотровое рентгеновское защитное |
1000×800 |
|
15. |
Облучатель бактерицидный настенный |
1070×140×80 |
|
16. |
Кушетка смотровая |
1970×670×520 |
|
17. |
Умывальник прямоугольный фарфоровый со спинкой |
550×420×150 |

|
№№ п/п |
Наименование оборудования |
Габариты, мм |
|
1. |
Магнит OR70 (с переменной индукцией 1,5 Т) |
2129×1942×2344 |
|
2. |
Стол для больного |
850×630×740 |
|
3. |
Радиочастотный фильтр |
1179×550×550 |
|
4. |
Пульт остановки магнита |
80×120×80 |
|
5. |
Тележка для катушек |
1354×540×1275 |
|
6. |
Каталка |
1810×670×1000 |
|
7. |
Шкаф электроники |
1600×650×2110 |
|
8. |
Шкаф системы охлаждения |
650×650×1920 |
|
9. |
Блок подключения воды |
650×120×300 |
|
10. |
Компьютер изображения |
400×400×1200 |
|
11. |
Стол оператора |
1200×800×730 |
|
12. |
Центральный компьютер MRC |
280×685×460 |
|
13. |
Пульт управления и сигнализации |
300×105×200 |
|
14. |
Стол врача |
1200×800×730 |
|
15. |
Центральный компьютер MRSC |
280×685×460 |
|
16. |
Трансформатор |
360×330×570 |
|
17. |
Источник бесперебойного питания |
815×830×1600 |
|
18. |
Шкаф с батареями на 10 минут |
910×800×1600 |
|
19. |
Инъектор для МР |
1300×635×2050 |
|
20. |
Сетевой распределитель |
650×120×300 |
|
21. |
Система кондиционирования |
800×1700×1300 1200×850×1500 |
|
22. |
Умывальник |
550×420×150 |
|
23. |
Окно смотровое защитное |
1000×800 |

|
№№ п/п |
Наименование оборудования |
Габариты, мм |
|
1 |
2 |
3 |
|
1. |
Стол врача |
1100×630×740 |
|
2. |
Стул полумягкий |
430×470×770 |
|
3. |
Стол перевязочный |
2000×500×850 |
|
4. |
Сканер |
1900×900×1800 |
|
5. |
Стол лабораторный |
1250×630×809 |
|
6. |
Экран защитный |
2000×1600 |
|
7. |
Шкаф медицинский двухстворчатый |
830×451×1610 |
|
8. |
Умывальник лабораторный |
1050×700×550 |
|
9. |
Ведро педальное |
372×315×360 |
|
10. |
Вешалка |
600×120×100 |

|
ГОСТЫ, СТРОИТЕЛЬНЫЕ и ТЕХНИЧЕСКИЕ НОРМАТИВЫ. Некоммерческая онлайн система, содержащая все Российские Госты, национальные Стандарты и нормативы. В Системе содержится более 150000 файлов нормативно-технической документации, действующей на территории РФ. Система предназначена для широкого круга инженерно-технических специалистов. Copyright © www.gostrf.com, 2008 - 2026 |