Крупнейшая бесплатная информационно-справочная система онлайн доступа к полному собранию технических нормативно-правовых актов РФ. Огромная база технических нормативов (более 150 тысяч документов) и полное собрание национальных стандартов, аутентичное официальной базе Госстандарта. GOSTRF.com - это более 1 Терабайта бесплатной технической информации для всех пользователей интернета. Все электронные копии представленных здесь документов могут распространяться без каких-либо ограничений. Поощряется распространение информации с этого сайта на любых других ресурсах. Каждый человек имеет право на неограниченный доступ к этим документам! Каждый человек имеет право на знание требований, изложенных в данных нормативно-правовых актах!

  


 

Система нормативных документов в строительстве

СВОД ПРАВИЛ ПО ПРОЕКТИРОВАНИЮ И СТРОИТЕЛЬСТВУ

ПРОЕКТИРОВАНИЕ ЗЕМЛЯНОГО ПОЛОТНА
ЖЕЛЕЗНЫХ ДОРОГ
КОЛЕИ 1520 мм

СП 32-104-98

ГОСУДАРСТВЕННЫЙ КОМИТЕТ РОССИЙСКОЙ ФЕДЕРАЦИИ
ПО СТРОИТЕЛЬНОЙ, АРХИТЕКТУРНОЙ И ЖИЛИЩНОЙ ПОЛИТИКЕ

(ГОССТРОЙ РОССИИ)

МОСКВА

1999

ПРЕДИСЛОВИЕ

1 РАЗРАБОТАН институтом ОАО «ЦНИИС» с участием ВНИИЖТ, ОАО «Мосгипротранс», АО «Ленгипротранс», АО «Сибгипротранс», Киевгипротранс, Московского государственного университета путей сообщения, РИСИ, Промтрансниипроект, ТашИИТ

2 ВНЕСЕН ОАО «ЦНИИС»

3 ОДОБРЕН Минземстроем России (письмо № 13-498 от 08.09.98 г.)

4 УТВЕРЖДЕН зам. директора ОАО «ЦНИИС» 27.12.96

5 РАЗРАБОТАН впервые

СВОД ПРАВИЛ РАЗРАБОТАЛИ:

ОАО «ЦНИИС»: доктора технических наук А.А. Цернант, Г.С. Переселенков, кандидаты технических наук Е.Я. Яковлева, С.Г. Жорняк, А.И. Песов, Ф.И. Целиков, Н.Д. Меренков, В.В. Гулецкий. Л.Н. Юдин, инженеры Л.И. Кузнецова, В.Г. Переселенков, Л.М. Бирюкова, С.И. Стряпчев, М.Г. Камаева;

АО «Ленгипротранс»: инженеры Е.А. Бойцов, А.А. Пушкина;

ОАО «Мосгипротранс»: инженеры С.Н. Махлис, М.Г. Дыкман, Н.М. Фомина, Ю.В. Исаков;

Киевгипротранс: инженер Г.Б. Книжник;

ВНИИЖТ МПС: канд. техн. наук П.Г. Пешков, д-р техн. наук П.И. Дыдышко;

МГУПС: д-р техн. наук Т.Г. Яковлева, д-р техн. наук В.В. Виноградов;

АО «Сибгипротранс»: инж. Н.П. Мурованный;

РИСИ: д-р техн. наук В.И. Грицык;

Промтрансниипроект: инженеры В.И. Поляков, Н.И. Провоторов;

ТашИИТ: д-р техн. наук Р.С. Закиров, канд. техн. наук С.Н. Смирнов.

Рецензенты: инженеры Г.И. Куркова, О.Н. Сильницкая.

СОДЕРЖАНИЕ

1 область применения. 3

2 нормативные ссылки. 4

3 общие положения. 4

4 грунты для земляного полотна. 5

Классификация грунтов. 5

Грунты для насыпей. 6

Нормы уплотнения грунтов земляного полотна. 7

Нормы влажности грунтов. 9

Естественные основания. 10

5 Основные конструктивные параметры земляного полотна. Очертания основной площадки и ширина земляного полотна. 11

Общие положения. 11

Защитный слой. 12

Высота насыпей, глубина выемок и крутизна их откосов. 13

6 Основные положения проектирования. 14

7 Насыпи. 16

Общие положения. 16

Насыпи на сыром и мокром основании. 20

Насыпи из глинистых грунтов повышенной влажности. 20

8 Насыпи на болотах. 21

Общие положения. 21

Насыпи на болотах i типа. 22

Насыпи на болотах i - ii, ii и iii типов. 25

9 Насыпи в условиях подтоплений. 27

10 Выемки. 31

Выемки при благоприятных инженерно-геологических условиях. 31

Выемки в глинистых грунтах повышенной влажности и переувлажненных. 34

Выемки в скальных грунтах. 35

11 Земляное полотно на участках засоленных и набухающих грунтов, наличия карстов. 39

Земляное полотно в засоленных грунтах. 39

Земляное полотно в набухающих грунтах. 40

Земляное полотно в карстовых районах. 41

12 Земляное полотно в районах распространения песков. 41

13 Земляное полотно в районах искусственного орошения. 43

14 Земляное полотно для железнодорожных узлов и станций. 45

15 Особенности проектирования земляного полотна, возводимого в зимнее время. 47

16 Резервы, кавальеры, банкеты.. 48

Резервы.. 48

Кавальеры.. 50

Банкеты.. 51

17 Устройства для отвода поверхностных и грунтовых вод. 52

Общие положения. 52

Водоотводные канавы.. 53

Нагорные канавы.. 54

Кюветы и лотки. 54

Водоотводные устройства в пределах раздельных пунктов. 55

Устройства для отвода грунтовых вод. 55

Поглощающие колодцы и испарительные бассейны.. 56

18 Защита и укрепление земляного полотна и водоотводных сооружений. 57

Общие положения. 57

Защитные конструкции и мероприятия. 57

Укрепление земляного полотна и водоотводных сооружений. 58

19 Фильтрующие насыпи. 61

20 Земляное полотно в районах распространения вечномерзлых грунтов. 64

21 Земляное полотно внешних (подъездных) путей. 70

22 Экологические требования при проектировании земляного полотна. 72

Приложение А. Классификация скальных грунтов по выветриваемости во времени 74

Приложение Б. Характеристика грунтов засоленных, набухающих, просадочных, пучинистых. 75

Приложение В. Методика определения толщины защитного слоя по условию ограничения величины морозного пучения его основания и обеспечения необходимой прочности подстилающего слоя. 79

Приложение Г. Рекомендации по расчету устойчивости земляного полотна. 85

Приложение Д. Характеристики болотных отложений. 95

Приложение Е. Методика определения осадки насыпей на болотах. 96

Приложение Ж. Методика испытания насыпей на болотах. 99

Приложение З. Определение размера камня для защиты откоса от размыва текущим потоком.. 100

Приложение И. Величина уширенной защитной призмы Dl при защите откоса от размыва с использованием несортированной горной массы.. 101

Приложение К. Армирующие материалы.. 101

Приложение Л. Характеристика полимерных труб и трубофильтров. 103

Приложение М. Схематическая карта климатического районирования территорий для строительства. 103

Приложение Н. Схематическая карта глубины промерзания глинистых и суглинистых грунтов. 104

Приложение П. Расчет параметров ветровых волн для определения отметки бровки насыпи и мощности крепления откоса. 105

Приложение Р. Устойчивость земляного полотна на участках склоновых процессов в лессовидных грунтах. 111

Приложение С. Перечень нормативных документов. 117

Приложение Т. Библиография. 119

СП 32-104-98

СВОД ПРАВИЛ ПО ПРОЕКТИРОВАНИЮ И СТРОИТЕЛЬСТВУ

ПРОЕКТИРОВАНИЕ ЗЕМЛЯНОГО ПОЛОТНА
ЖЕЛЕЗНЫХ ДОРОГ КОЛЕИ 1520 мм

DESIGN OF EARTHWORK FOR RAIL
WAYS WITH 1520 mm TRACK

Дата введения 1999-01-01

1 ОБЛАСТЬ ПРИМЕНЕНИЯ

1.1 Свод правил разработан для обеспечения выполнения требований СНиП 32-01-95 «Железные дороги колеи 1520 мм» (Раздел 4. Земляное полотно).

Документ предназначен для применения при проектировании и строительстве земляного полотна новых железнодорожных линий колеи 1520 мм, главных и станционных путей, узлов и станций, а также внешних (подъездных) железнодорожных путей предприятий и организаций по согласованию с органами исполнительной власти в области железнодорожного транспорта.

1.2 Свод правил распространяется на проектирование земляного полотна железнодорожных линий, представляющего собой комплекс земляных сооружений в виде насыпей, выемок, водоотводов, обеспечивающих отвод поверхностных и грунтовых вод от земляного полотна, сооружений инженерной защиты земляного полотна от природных геофизических процессов (с учетом требований СНиП 2.01.15-90) и специальных мероприятий по повышению устойчивости основания земляного полотна.

2 НОРМАТИВНЫЕ ССЫЛКИ

Перечень нормативных документов, на которые даны ссылки в Своде правил, приведен в приложении С.

3 ОБЩИЕ ПОЛОЖЕНИЯ

3.1 Земляное полотно следует проектировать на основе материалов инженерно-геодезических, инженерно-геологических, инженерно-гидрометеорологических, гидрогеологических и гидрологических изысканий. При необходимости, в сложных условиях, следует выполнять геокриологические, инженерно-сейсмологические и другие виды изысканий, а также натурные определения деформативных и прочностных свойств грунтов основания.

При проектировании необходимо обеспечивать заданный уровень надежности по прочности, стабильности и устойчивости земляного полотна. При минимальных затратах, а также максимальном сохранении ценных земель, наименьшем ущербе природной среде.

Необходимые сооружения и устройства инженерной защиты (снего- и пескозащитные, противообвальные, противоналедные, противолавинные, противоселевые, охранные лесополосы и др.) могут располагаться как в полосе отвода железной дороги, так и за ее пределами в специально выделенных охранных зонах по согласованию с местными органами исполнительной власти и владельцами земель.

3.2 При проектировании земляного полотна должны быть приняты комплексные решения по выбору и назначению:

конструкции земляного полотна в зависимости от категории железнодорожной линии, инженерно-геологических и природных условий с учетом деления территории страны на климатические зоны (СНиП 2.01.01-82), а также способов производства работ;

грунта для насыпей с учетом вида и состояния грунтов основания, высоты проектируемой насыпи, а также разведанных запасов грунтов, дальности их возки, наличия поблизости отходов промышленного производства, пригодных для сооружения земляного полотна;

вида и конструкции водоотводных устройств соответственно расчетным расходам поверхностного стока и гидрогеологическим условиям;

типа укрепления откосов земляного полотна и водоотводов с учетом местных условий;

комплекса устройств и мероприятий по защите пути от вредного воздействия природных факторов.

3.3 При проектировании земляного полотна следует принимать нагрузку от подвижного состава и верхнего строения пути с учетом перспективных условий эксплуатации дороги. В необходимых случаях следует проверять устойчивость откосов, прочность основной площадки и основания насыпей, их деформативность в части непревышения допустимых значений деформаций равномерного морозного пучения и обратимых (упругих) и остаточных осадок оснований насыпей.

3.4 Для обеспечения надежности конструкций земляного полотна и расширения сферы применения местных грунтов следует предусматривать:

уплотнение до нормируемой плотности грунта в насыпях, в необходимых случаях под основной площадкой в выемках и на нулевых местах;

устройство защитного слоя из дренирующих грунтов под балластной призмой;

применение геотекстильных материалов (на основной площадке под защитным слоем, в конструкциях укрепления откосов, а также на слабых основаниях);

использование теплоизоляционных материалов для предотвращения морозных деформаций (пенопласты, шлаки, торф);

надежное обеспечение отвода поверхностных и подземных вод от земляного полотна (в том числе с применением дренажей мелкого заложения, водоотводных лотков);

применение инженерных способов защиты откосов насыпей (пляжные откосы, обсев, железобетонные укрепления, химическое закрепление поверхностного слоя грунта) и скальных выемок (пневмонабрызг бетона, одевающие стены, анкерные крепления и др.);

обсыпку откосов насыпей и выемок крупнообломочным и скальным грунтом.

3.5 В связи с современными требованиями по увеличению скоростей движения поездов и увеличению нагрузок на оси подвижного состава необходимо не только учитывать деформационные показатели конструкций земляного полотна, но и производить проверки прочности основания под балластным слоем на виброустойчивость при принимаемых скоростях движения поездов.

4 ГРУНТЫ ДЛЯ ЗЕМЛЯНОГО ПОЛОТНА

Классификация грунтов

4.1 Грунты в соответствии с ГОСТ 25100 подразделяются на 4 класса: скальные, дисперсные, мерзлые и техногенные.

4.2 Применительно к условиям проектирования земляного полотна скальные грунты подразделяются на залегающие в естественных условиях в виде массивов (в выемках) и раздробленные, полученные посредством разрушения скальных массивов (для насыпей).

Скальные грунты характеризуются показателями прочности и выветриваемости во времени; в массивах, кроме того, - наличием трещин, их состоянием, ориентацией в пространстве, блочностью и др.

По степени устойчивости к выветриванию во времени под воздействием природных факторов скальные грунты подразделяются на слабовыветривающиеся, выветривающиеся и легковыветривающиеся (приложение А).

Способность к выветриванию определяется литологическим составом, лабораторными испытаниями образцов при многократном увлажнении - высушивании, а в северной климатической зоне - дополнительно замораживанием - оттаиванием, с учетом результатов наблюдений за природными обнажениями и грунтовыми сооружениями в аналогичных условиях.

4.3 По водопроницаемости грунты, используемые для сооружения насыпей, разделяются на дренирующие и недренирующие.

К дренирующим следует относить грунты, имеющие при максимальной плотности при стандартном уплотнении по ГОСТ 22733 коэффициент фильтрации не менее 0,5 м/сут и содержание менее 10 % частиц по массе размером менее 0,1 мм.

Оценка водопроницаемости грунтов возможна по показателям гранулометрического состава. К дренирующим грунтам (Kф ³ 0,5 м/сут) относятся крупнообломочные грунты с песчаным заполнителем, пески гравелистые, крупные, средней крупности, если в перечисленных грунтах содержание частиц размером менее 0,1 мм не превышает 10 % по массе. При большем содержании в них частиц размером менее 0,1 мм определение коэффициента фильтрации является обязательным.

При технико-экономическом обосновании с разрешения заказчика допускается применение в качестве дренирующего грунта песков мелких и пылеватых, содержащих более 10 % частиц размером менее 0,1 мм, если коэффициент фильтрации их не менее 0,5 м/сут.

Для крупнообломочных грунтов с песчаным заполнителем коэффициент фильтрации устанавливается на основании испытания заполнителя.

4.4 Учитывая сложные и изменяющиеся во времени условия работы грунтов в конструкции земляного полотна, глинистые грунты дополнительно к ГОСТ 25100 подразделяются по степени засоленности, просадочности, набухаемости и пучинистости (приложение Б), что следует учитывать при проектировании земляного полотна.

Грунты для насыпей

4.5 Грунты для насыпей следует применять с учетом их свойств и состояния, особенностей природных условий в пределах участка размещения проектируемого объекта, а также места нахождения запасов грунта (таблица 4.1).

Допускается использовать местные грунты, в том числе техногенные (отходы производства): металлургические шлаки, золошлаковые смеси, материалы породных отвалов и др., пригодные для сооружения земляного полотна.

Для насыпей во всех условиях можно применять грунты, состояние которых под воздействием природных факторов практически не изменяется или изменяется незначительно и не влияет на прочность и устойчивость земляного полотна

4.6 Грунты, состояние и свойства которых существенно изменяются под воздействием природных факторов, допускаются к использованию в качестве материала для насыпей с учетом ограничений (таблица 4.1).

Возможность и целесообразность применения таких грунтов устанавливают в зависимости от местных условий и технико-экономических соображений с учетом обоснованного выбора конструкций насыпей, а также способов защиты земляного полотна от разрушающего действия природных факторов.

Таблица 4.1

Вид грунта

Ограничения по применению

Область применения

Скальные слабовыветривающиеся и выветривающиеся, неразмягчаемые, крупнообломочные и крупнообломочные с песчаным заполнителем, пески дренирующие, металлургические шлаки

Без ограничения

Во всех случаях, в том числе для отсыпки в воду в открытые водоемы

Мелкие недренирующие и пылеватые пески, супеси легкие

Ограничения по минимальному возвышению бровки насыпей на сырых и мокрых основаниях; по условиям отсыпки в воду; для супесей ограничения по влажности

Во всех случаях, в том числе на болотах в заполненные водой котлованы. При отсыпке в открытые водоемы требуются дополнительные конструктивные и технологические решения

Глинистые грунты, крупнообломочные грунты с глинистым заполнителем, легковыветривающиеся размягчаемые скальные грунты (за исключением перечисленных ниже)

Ограничения по минимальному возвышению бровок насыпей на сырых и мокрых основаниях и по влажности грунтов в период производства земляных работ, не допускаются в основную площадку

Во всех случаях при влажности, не превышающей установленные нормы; на сухом основании - без ограничения высоты насыпей, на сыром и мокром основаниях - для насыпей высотой не менее установленной

Глинистые грунты с WL > 0,4, выветрелые слюдяные и слюдистые сланцы, размокаемые и выветрелые тальковые, хлоритовые и глинистые сланцы, техногенные грунты

Требуется индивидуальное проектирование. Не допускаются под основную площадку, для отсыпки на сырые и мокрые основания, для подтопляемых насыпей

Допускаются для отсыпки ядра насыпи на сухом основании

4.7 При применении техногенных грунтов в проектах должны предусматриваться мероприятия по обеспечению стабильности основной площадки и по защите откосов от ветровой и водной эрозии.

4.8 Не допускается применять для насыпей следующие грунты:

глинистые с влажностью, превышающей допустимую (п. 4.19);

глинистые избыточно засоленные и сильнонабухающие, жирные глины (приложение Б);

торф, ил, мел, заторфованные грунты, содержащие более 15 % органических веществ;

грунты заторфованные (содержащие органические вещества в количестве 10 - 15 %) - для верхнего трехметрового слоя насыпей;

грунты с примесью органических веществ (в количестве 3 - 10 %) для верхнего метрового слоя насыпи (под основной площадкой);

грунты, содержащие гипс в количестве, превышающем 30 % - для насыпей на сухом основании, 20 % - для насыпей на мокром основании, 5 % - для подтопляемых насыпей.

Перечисленные грунты разрешается использовать в исключительных случаях для дорог IV категории при соответствующем технико-экономическом обосновании при обязательном осуществлении мер, обеспечивающих требуемую устойчивость земляного полотна.

4.9 Для нижней части постоянно подтопленных насыпей, при сооружении которых требуется отсыпка грунта в воду, рекомендуется применять скальные (слабовыветривающиеся и выветривающиеся неразмягчаемые), крупнообломочные грунты (в том числе с песчаным заполнителем), пески гравелистые, крупные, средней крупности. Допускаются также мелкие и пылеватые пески и супеси легкие при условии ограничений по крутизне откосов и технологии производства работ. При этом отметка верха отсыпки указанных грунтов назначается с учетом высоты капиллярного поднятия.

Для периодически подтопляемых насыпей, при отсыпке их на незатопленное основание, нижнюю подтопляемую часть насыпи следует отсыпать из дренирующих грунтов или песчанистых супесей.

4.10 Для насыпей, возводимых средствами гидромеханизации рекомендуется использовать гравийно-галечниковые, песчано-гравелистые и песчаные грунты. Возможность применения пылеватых песков, а также супесей определяется проектом с учетом обогащения состава грунтов при их намыве, при этом в теле возводимой насыпи содержание частиц размером менее 0,1 мм должно быть не более 15 % по массе.

Нормы уплотнения грунтов земляного полотна

4.11 В проектах необходимо предусматривать уплотнение грунтов при сооружении земляного полотна:

для насыпей - из всех видов грунтов, за исключением слабовыветривающихся, на дорогах всех категорий;

в основаниях насыпей высотой до 0,5 м и под основной площадкой в выемках и «нулевых местах», в тех случаях, когда естественная плотность грунтов ниже нормируемой - на дорогах III категории и выше.

4.12 Требуемую в земляном полотне для песчаных и глинистых грунтов плотность сухого грунта  следует определять по формуле

                                                         (1)

где ρdmax - максимальная плотность сухого грунта, г/см3, определяемая по методу стандартного уплотнения (ГОСТ 22733);

K - минимальный коэффициент уплотнения, принимаемый по таблице 4.5 СНиП 32-01-95.

При этом необходимо проверять пригодность грунта карьера (резерва) по условиям его влажности (в соответствии с указаниями п. 4.19).

4.13 Уменьшение при проектировании коэффициента уплотнения по сравнению с нормами, приведенными в таблице 4.5 СНиП 32-01-95, допускается в исключительных случаях при невозможности или экономической нецелесообразности его достижения (при наличии грунтов повышенной влажности или грунтов малой влажности в засушливых зонах).

При этом следует предусматривать в проекте дополнительные мероприятия, обеспечивающие общую устойчивость земляного полотна и прочность его основной площадки (уположенные откосы, песчаные подушки, бермы, прослойки геотекстильных материалов, запас на осадку и др.).

4.14 Уплотнение отсыпаемых в насыпи скальных грунтов из слабовыветривающихся, выветривающихся, лековыветривающихся пород (алевролитов, аргиллитов, мергелей, глинистых сланцев и др.), а также песчаных и глинистых грунтов обеспечивается соблюдением установленной технологии производства работ (заданной толщиной уплотняемого слоя, числа проходов уплотняющих машин и механизмов) и корректировки ее на основании предварительного пробного уплотнения [1].

4.15 Для насыпей, возводимых из глинистых грунтов и песков с коэффициентом уплотнения K £ 0,95, насыпей, сооружаемых способом гидромеханизации, а также из скальных и крупнообломочных грунтов, следует предусматривать запас на осадку за счет уплотнения грунтов тела насыпи по нормам таблицы 4.2.

Большие значения запаса относятся к насыпям, возводимым в короткие сроки (до 6 месяцев) из грунтов с влажностью, близкой к предельно допустимой (п. 4.19).

В случаях невозможности отсыпки насыпей с полным запасом на осадку на участках, где это приводит к превышению руководящего уклона более чем на 0,002 (на подходах к мостам и др.), следует предусматривать уширение основной площадки, обеспечивающее возможность подъемки пути до проектных отметок после завершения осадки.

Таблица 4.2

Характеристика грунтов и условия возведения насыпей

Запас, % проектной высоты насыпи

Пески и глинистые грунты, отсыпаемые с коэффициентом уплотнения:

 

K = 0,95

0,5

K = 0,90

1 - 2,5

Глинистые грунты повышенной влажности (0,25 < IL £ 0,5)

2 - 3

Пески и песчано-гравелистые грунты, укладываемые в насыпи способом гидронамыва

0,75 - 1,5

Легковыветривающиеся и выветривающиеся размягчаемые скальные и крупнообломочные грунты

1 - 3

Скальные слабовыветривающиеся грунты

3

4.16 При сооружении земляного полотна в зимнее время запас на осадку за счет уплотнения грунтов тела насыпей следует принимать по п. 15.6.

4.17 фактический объем грунта, необходимого для сооружения насыпей, в тех случаях когда требуемая плотность грунта в теле насыпи больше естественной плотности грунта в резерве (карьере), определяется по формуле

                                                             (2)

где Vн - объем проектируемой насыпи, м3;

K1 - коэффициент относительного уплотнения грунта в теле насыпи, определяемый по формуле

                                                              (3)

где ρнdн и ρdр - плотность сухого грунта, г/см3, соответственно требуемая в насыпи и естественная - в резерве (карьере).

Для ориентировочного предварительного определения объема грунта в резервах (карьерах), выемках, необходимого для возведения насыпей с требуемой плотностью грунтов, коэффициент относительного уплотнения K1 может быть принят по таблице 4.3.

При возведении насыпи гидромеханизированным способом объем потребного грунта в карьере следует определять в соответствии с указаниями по проектированию гидромеханизированных работ [24].

Таблица 4.3

Заданный коэффициент уплотнения насыпи K

Коэффициент относительного уплотнения K1 для грунтов

пески, супеси, пылеватые суглинки

суглинки, глины

лессы и лессовидные грунты

1,0

1,10

1,05

1,3

0,95

1,05

1,00

1,15

0,90

1,00

0,95

1,10

Нормы влажности грунтов

4.18 Влажность глинистых грунтов необходимо учитывать при установлении коэффициента уплотнения и оценки возможности использования этих грунтов в земляном полотне.

Для насыпей следует применять грунты, имеющие преимущественно оптимальную влажность Wо и близкие к ней.

Численные значения оптимальной влажности определяют по ГОСТ 22733.

4.19 Наибольшая допустимая влажность грунта, при которой обеспечивается нормируемая плотность (см. п. 4.12), устанавливается по кривой стандартного уплотнения. Ориентировочно она может быть определена по графику на рисунке 4.1.

На указанном графике для пяти основных разновидностей грунта представлены теоретические зависимости, характеризующие максимально возможную их уплотняемость при различной естественной влажности.

4.20 Глинистые грунты, находящиеся в тугопластичном состоянии (0,25 < IL £ 0,50), используются для сооружения земляного полотна при соблюдении требований к конструкциям, изложенным в пп. 7.12 - 7.14, 10.5 - 10.7.

Грунты, находящиеся в мягкопластичном состоянии (0,50 < IL £ 0,75), допускается использовать лишь по индивидуальным проектам на основании технико-экономических расчетов.

1 - глины, 2 - суглинки; 3 - супеси; 4 - пески; 5 - черноземы

Рисунок 4.1 Зависимость возможного уплотнения грунта от его естественной влажности

Примечание - Зависимости rd = f(W) рассчитаны при значениях плотности частиц грунтов rs, равных 2,74; 2,70; 2,68; 2,66; 2,60 г/см3 соответственно для глины, суглинков, супесей, песков, грунтов с примесью органических веществ (черноземов) (для всех указанных типов грунтов при содержании воздуха в порах 5 %, что обеспечивается при правильном соблюдении технологии уплотнения).

4.21 При влажности глинистых грунтов, мелких и пылеватых песков менее 0,75 - 0,80Wо их необходимо увлажнять.

В засушливых районах должны быть предусмотрены мероприятия по влагонакоплению (снегозадержание) и получению воды для поливов в местах выполнения земляных работ.

При определении количества воды, потребной для увлажнения грунта, следует учитывать климатические и погодные условия района строительства и ориентироваться на обеспечение при уплотнении влажности грунта, соответствующей 0,9 - 1,0 оптимальной.

Естественные основания

4.22 Оценку естественных оснований по условиям их увлажнения при выборе грунтов для насыпей и проектировании земляного полотна следует выполнять с учетом таблицы 4.4.

Таблица 4.4

Тип основания

Характеристика основания

1. Сухое

Условия для поверхностного стока хорошие; глинистые грунты на глубине до 1 м имеют влажность не более Wp + 0,25Ip, грунтовые воды отсутствуют или залегают на глубине более 2 м от поверхности земли

2. Сырое

Условия для поверхностного стока плохие, грунты водонасыщенные песчаные, глинистые; глинистые грунты в предморозный период имеют влажность на глубине до 1 м от Wp + 0,25Ip до Wp + 0,75Ip, а уровень грунтовых вод - на глубине более 1 м от поверхности земли; признаки поверхностного заболачивания

3. Мокрое

Поверхностный сток отсутствует; грунты глинистые, торфы, илы, сапропели; глинистые грунты в предморозный период имеют влажность на глубине до 1 м, равную Wp + 0,75Ip и более, а уровень грунтовых вод - на глубине до 1 м; имеются выходы грунтовых вод на поверхность земли или длительно стоящие (более 20 суток) поверхностные воды

4.23 В зависимости от прочности грунтов, их влажности, степени однородности, а также значений расчетных нагрузок естественные основания насыпей следует подразделять на прочные, недостаточно прочные и слабые. При этом должны учитываться возможные изменения свойств грунтов в условиях эксплуатации.

К прочным относятся естественные основания, представленные скальными и крупнообломочными грунтами (независимо от условий увлажнения), а также маловлажными и влажными песками и глинистыми грунтами твердой и полутвердой консистенции преимущественно сухие (по таблице 4.4), при которых не наблюдается деформаций основания под нагрузкой, требующих осуществления специальных мероприятий.

К недостаточно прочным относятся основания преимущественно сырые (согласно таблице 4.4), сложенные неоднородными переслаивающимися по протяжению грунтами, низкие насыпи на которых могут иметь неравномерное пучение и небольшие осадки, что необходимо учитывать при проектировании.

К слабым относятся мокрые (по таблице 4.4) естественные основания, сложенные переувлажненными грунтами, насыпи на которых могут иметь осадки значительные по величине и неравномерные во времени, а также терять устойчивость. Для предотвращения деформаций необходимо предусматривать специальные конструктивные решения.

5 ОСНОВНЫЕ КОНСТРУКТИВНЫЕ ПАРАМЕТРЫ ЗЕМЛЯНОГО ПОЛОТНА. ОЧЕРТАНИЯ ОСНОВНОЙ ПЛОЩАДКИ И ШИРИНА ЗЕМЛЯНОГО ПОЛОТНА

Общие положения

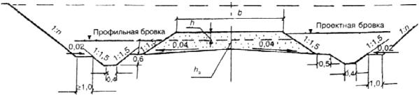
5.1 Поперечное очертание основной площадки проектируемого однопутного земляного полотна из недренирующих грунтов без устройства защитного слоя, а также из мелких и пылеватых песков следует назначать в виде трапеции шириной поверху 2,3 м, высотой 0,15 м, и с основанием, равным ширине земляного полотна, а поперечное очертание верха двухпутного земляного полотна - в виде треугольника высотой 0,2 м с основанием, равным ширине земляного полотна (рисунок 5.1).

Основную площадку одно- и двухпутного земляного полотна из раздробленных скальных слабовыветривающихся грунтов, крупнообломочных с песчаным заполнителем, дренирующих песков (кроме мелких и пылеватых) следует проектировать горизонтальной, так же как и верх защитного слоя, отсыпаемого из указанных грунтов под балластной призмой.

При использовании для защитного слоя мелких и пылеватых песков верх земляного полотна следует проектировать в виде сливной призмы (аналогично верху земляного полотна из глинистых грунтов). Конструкцию защитного слоя из указанных грунтов, возможность и целесообразность их применения устанавливают на основании расчетов.

а - для однопутного земляного полотна из недренирующих грунтов без защитного слоя; б - то же, из дренирующих грунтов; в - для двухпутного земляного полотна из недренирующих грунтов, г - то же, из дренирующих грунтов; b - ширина основной площадки земляного полотна в соответствии с данными таблицы 4.1 СНиП 32-01-95; h - величина, равная 0,15 м, если дренирующий грунт удовлетворяет требованиям к балластному материалу, плюс разность толщин балластного слоя на данном участке и на смежных с ним участках из недренирующих грунтов

Рисунок 5.1 - Поперечные очертания основной площадки земляного полотна на прямых участках пути на перегонах

Примечание - Рисунки б и г распространяются на мелкие барханные пески в районах засушливого климата, в этих случаях h принимается равной 0,15 м.

5.2 Ширину земляного полотна поверху (основной площадки) новых железных дорог на прямых участках пути в пределах перегонов следует принимать по нормам, приведенным в таблице 4.1 СНиП 32-01-95.

5.3 Выемки глубиной более 6 м, располагаемые в скальных грунтах, а также располагаемые на крутых косогорах и на прижимах рек, независимо от высоты откосов на линиях II категории и выше следует проектировать под два пути.

Ширину земляного полотна многопутных железных дорог следует назначать с учетом уширенного расстояния между осями второго и третьего (четвертого) путей. При соответствующем технико-экономическом обосновании третий и четвертый пути допускается проектировать и на раздельном земляном полотне.

5.4 Ширину земляного полотна насыпей, возводимых на слабых основаниях, и насыпей, возводимых с запасом на осадку, следует устанавливать с расчетом обеспечения требуемых согласно таблице 4.3 СНиП 32-01-95 размеров после полной осадки.

На участке с вечномерзлыми грунтами необходимо предусматривать уширение земляного полотна с учетом его осадки за счет возможного оттаивания и уплотнения вечномерзлых грунтов основания или подземного льда; значения осадок и размеры уширения следует устанавливать расчетами.

Защитный слой

5.5 Для земляного полотна из глинистых грунтов всех видов с влажностью на границе текучести WL > 0,23, кроме супесей, содержащих песчаные частицы размером от 2 до 0,05 мм в количестве более 50 % по массе, следует предусматривать усиление конструкции в зоне основной площадки: устройство под балластной призмой защитного слоя из дренирующего грунта или из дренирующего грунта в комбинации с геотекстильными материалами. Защитный слой из дренирующего грунта (с геотекстильными материалами или без них) следует применять также при использовании глинистых грунтов всех разновидностей при повышенной влажности (IL > 0,25).

5.6 Для устройства защитного слоя следует применять дренирующие грунты: крупнообломочные (с фракциями не более 0,2 м) с песчаным заполнителем, пески (за исключением мелких пылеватых).

Применение недренирующих мелких и пылеватых песков допускается в исключительных случаях, обоснованных технико-экономическими расчетами при отсутствии в зоне строительства требуемых кондиционных грунтов. При этом конструкцию защитного слоя и его толщину устанавливают индивидуальным проектом.

Поверхность глинистого грунта в основании защитного слоя на новых линиях следует планировать с двусторонним уклоном 0,04 от оси полотна в сторону откосов.

Верх защитного слоя планируется в соответствии с требованиями п. 3.1: горизонтально - при дренирующих грунтах, в виде сливной призмы - при песках мелких и пылеватых (рисунок 5.2).

а, б, в - насыпи и выемки с защитным слоем из дренирующих песчано-гравийных грунтов; г, д, е - то же, с защитным слоем из мелких и пылеватых песков; 1 - балласт щебеночный; 2 - балласт песчано-гравийный; 3 - защитный слой; 4 - глинистый грунт

Рисунок 5.2 - Земляное полото из глинистых грунтов, характеризуемых WL > 0,23 с защитным слоем

5.7 Толщина защитного слоя под балластной призмой устанавливается на основании расчетов в зависимости от вида грунта земляного полотна и его состояния, категории железной дороги, и с учетом вида грунта защитного слоя, глубины промерзания грунтов.

Расчеты по определению толщины защитного слоя выполняют исходя из двух условий:

обеспечения заданной прочности основной площадки, исключающей появление деформаций под воздействием поездной нагрузки выше допустимых значений;

ограничения деформаций пути под воздействием морозного пучения или набухания сильнонабухающих грунтов (при WL > 0,40).

Толщину защитного слоя следует назначать по большему из полученных расчетом значений, но не менее 0,8 м для суглинков и глин, 0,5 - для супесей.

Методики расчетов представлены в технических указаниях и рекомендациях [10 - 12], в ВСН 61-89 и в приложении В.

5.8 На участках примыкания защитных слоев к земляному полотну из скальных и других дренирующих грунтов, а также к искусственным сооружениям для исключения неравномерности морозного пучения следует предусматривать сопряжения, которые должны обеспечивать плавный переход в продольном направлении, соответствующий нормам текущего содержания пути.

5.9 В пределах раздельных пунктов на главных, приемоотправочных и подгорочных путях и на стрелочных улицах защитный слой в случае его необходимости устраивается из дренирующего грунта с обязательной укладкой геотекстильных материалов, при этом конструкция верха земляного полотна проектируется индивидуально.

Высота насыпей, глубина выемок и крутизна их откосов

5.10 Максимальные значения высоты насыпей и глубины выемок определяют технико-экономическими расчетами при проектировании продольного профиля с учетом обеспечения наилучших условий охраны окружающей среды. При этом в качестве сравниваемых решений принимают: для насыпей - виадук (эстакада), а для выемок - тоннель.

5.11 Минимальную высоту насыпей следует назначать с учетом условий предотвращения заносимости снегом и песком, пучинообразования, обеспечения прочности основной площадки на участках сырых и мокрых оснований, а также возможности механизации производства работ.

5.12 Крутизну откосов насыпей и выемок следует назначать в зависимости от инженерно-геологических и климатических условий, вида грунта, его состояния, высоты откосов земляного полотна с учетом намечаемого укрепления откосов.

5.13 Значения крутизны откосов применительно к типовым конструкциям земляного полотна для обычных наиболее часто встречающихся условий, в том числе скальных, при благоприятном расположении поверхности ослабления (см. п. 10.8) приведены для насыпей в таблице 4.3, а для выемок - в таблице 4.4 СНиП 32-01-95.

6 ОСНОВНЫЕ ПОЛОЖЕНИЯ ПРОЕКТИРОВАНИЯ

6.1 При проектировании земляного полотна применяют:

типовые конструктивные решения для участков с простыми инженерно-геологическими и топографическими условиями в соответствии с альбомом [14];

индивидуальные проекты, разрабатываемые для отдельных участков со сложными инженерно-геологическими условиями, перечисленными в п. 6.2, а также при проектировании земляного полотна с заданными нестандартными параметрами, когда требуется проверка устойчивости и прочности земляного полотна и его основания;

групповые поперечные профили, разрабатываемые для применения на ряде участков со сложными и многократно повторяющимися на рассматриваемой линии инженерно-геологическими условиями. При этом земляное полотно с уточненными на основании выполненных расчетов параметрами (по сравнению с типовыми поперечными профилями) не требует индивидуального обоснования для каждого объекта.

6.2 Индивидуальные проекты применяют для следующих объектов и условий:

насыпи высотой более 12 м - из раздробленных скальных грунтов, крупнообломочных грунтов, из песков и из глинистых грунтов твердых и полутвердых;

насыпи высотой более 6 м - из глинистых грунтов тугопластичных, а также из крупнообломочных грунтов с глинистым тугопластичным заполнителем;

насыпи на слабых основаниях, а также при выходе ключей в пределах основания;

насыпи в пределах болот I и III типов глубиной более 4 м и болот II типа глубиной более 3 м, а также при поперечном уклоне минерального дна болот I типа круче 1:10, II типа - 1:15, III - 1:20, болот с торфом неустойчивой консистенции, не поддающихся классификации;

насыпи на поймах рек, на участках пересечения водоемов и водотоков, на участках временного подтопления, а также на участках земляного полотна, расположенных вдоль водотоков, водоемов, водохранилищ и морей;

насыпи на косогорах круче 1:5, сложенных скальными грунтами, на косогорах круче 1:3, сложенных дисперсными грунтами, а также на косогорах крутизной от 1:5 до 1:3 при высоте низовых откосов более 12 м;

выемки при высоте откосов более 12 м;

выемки в скальных грунтах при неблагоприятных инженерно-геологических условиях, в том числе при залегании пластов горных пород с наклоном круче 1:3 в сторону пути;

выемки в глинистых переувлажненных грунтах с показателем текучести IL > 0,5 или вскрывающие водоносные горизонты;

выемки глубиной более 6 м в глинистых грунтах в районах избыточного увлажнения;

выемки в сильнонабухающих грунтах, в других (в том числе искусственных) грунтах, резко снижающих устойчивость откоса и прочность основной площадки при воздействии климатических факторов и динамических воздействиях (глинистые грунты с влажностью на границе текучести более 0,4), а также насыпи, проектируемые с использованием указанных грунтов;

земляное полотно на пучиноопасных участках (места с перемежающимися разнородными по своим пучинистым свойствам грунтами в зоне промерзания; насыпи высотой до 3 м на основании с мелкобугристым рельефом; участки с локальным увлажнением пучинистых грунтов, концевые участки скальных выемок, участки с нарушением температурного режима);

земляное полотно в местах активных склоновых процессов (на участках с наличием или возможным развитием оползней, обвалов, осыпей, каменных россыпей, снежных лавин, селей, оврагов);

земляное полотно на участках с развитием естественных или искусственных подземных полостей (горные выработки, карcты);

земляное полотно в местах пересечения его трубопроводами;

земляное полотно, при сооружении которого используются гидромеханизация и взрывные способы производства работ, а также земляное полотно с элементами геотекстильных и теплоизоляционных материалов в конструкции;

земляное полотно, пристраиваемое к существующему при наличии на последнем балластных корыт и лож на основной площадке, балластных шлейфов на откосах существующей насыпи из недренирующих грунтов, которые невозможно удалить при нарезке уступов и на участках наблюдающихся или наблюдавшихся деформаций эксплуатируемого пути;

земляное полотно в районах распространения вечномерзлых грунтов: при основаниях с относительной осадкой более 0,1, в том числе на марях, а также на наледных участках, на участках с наличием подземного льда, развития термокарста, солифлюкций, бугров пучения;

насыпи и выемки на участках с грунтами, подверженными разжижению при динамическом воздействии;

насыпи при насыщенных водой грунтах основания и переходные участки от насыпей к выемкам на косогорах круче 1:2;

земляное полотно в районах строительства с высокой сейсмичностью (7 баллов и более - в соответствии со СНиП II-7-81*).

6.3 При проектировании земляного полотна необходимо учитывать влияние климатических условий района при наиболее неблагоприятном сочетании внешних факторов, а также специфические условия проявления деформаций на эксплуатируемых участках земляного полотна в районе проектируемой линии.

Проект земляного полотна разрабатывается на основании материалов, характеризующих топографические и инженерно-геологические условия объекта, отражающих его специфические особенности, и должен содержать:

- решение по конструкции земляного полотна и способам его защиты от вредного воздействия внешних факторов, с указанием границ их применимости;

- мероприятия по охране окружающей среды (обеспечение экологического равновесия), требования по технологии производства работ;

- технико-экономическое обоснование принятых решений, характеристики рассмотренных вариантов при наличии альтернативных решений.

Указанные материалы должны быть отражены на чертежах (продольном и поперечных профилях, детали конструкции - на отдельных чертежах) и в пояснительной записке в соответствии со СНиП 11-02-96.

По крупным объектам (оползневой косогор, пересечение водоема, глубокое болото и др.) материал оформляется в виде отдельного раздела проекта.

6.4 В зависимости от специфики объекта расчетом проверяются: устойчивость земляного полотна (общая, а при необходимости и местная), стабильность основания, прочность и деформативность конструкции принятых защитных устройств.

При проверке устойчивости земляного полотна следует учитывать снижение прочностных характеристик грунтов под влиянием вибродинамического воздействия поездов.

В приложении Г приведены рекомендации по методике расчета устойчивости откосов и даны примеры расчетов.

6.5 Для установления расчетных характеристик грунтов могут быть использованы положения нормативных документов (например, СНиП 2.02.01-83*), а также данные, полученные на основании анализа состояния аналогичных конструкций, успешно эксплуатируемых в условиях, подобных рассматриваемым.

При разработке проекта земляного полотна обязательно натурное определение расчетных характеристик грунтов и других исходных данных по материалам инженерно-геологического, гидрогеологического и гидрологического обследования объекта.

6.6 Программа обследования составляется в зависимости от специфики объекта и решаемой задачи, с учетом степени изученности участка размещения объекта. Объем работ и порядок обработки материалов устанавливаются в соответствии с рекомендациями методических указаний по инженерно-геологическим изысканиям [30] и действующим ГОСТам (приложение С).

6.7 Размеры и очертания поперечного профиля земляного полотна следует назначать с учетом обеспечения механизации всех производственных процессов, предусматривать технологические полки шириной не менее 5 м на подлежащих укреплению высоких откосах выемок и насыпей [1], технологические полки безопасности на откосах скальных выемок (см. п. 10.14) и др.

7 НАСЫПИ

Общие положения

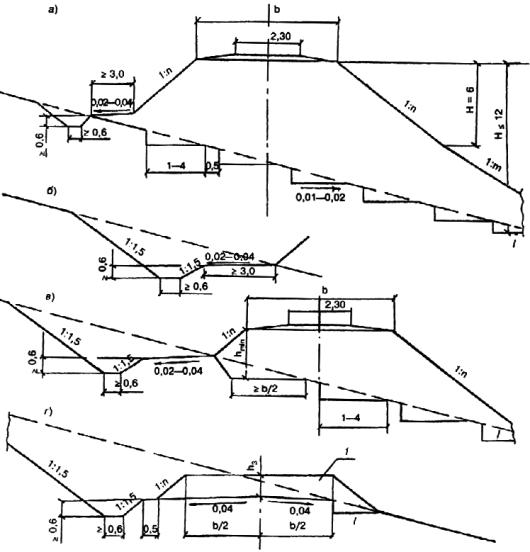
7.1 Конструкцию насыпей следует проектировать в зависимости от их высоты, вида, свойств и состояния применяемого грунта, поперечного уклона местности, инженерно-геологических, гидрогеологических, климатических условий и способов производства земляных работ. Для типовых решений очертания насыпей необходимо назначать в соответствии с указаниями таблицы 4.3 СНиП 32-01-95, руководствуясь поперечными профилями на рисунке 7.1. В соответствии с требованиями раздела 3 следует предусматривать усиление конструкций насыпи в рабочей зоне путем устройства защитного слоя под балластной призмой.

7.2 Для насыпей на сухом и прочном основании допускаются все грунты, пригодные для их возведения (см. таблицу 4.1). При этом следует, как правило, использовать грунт из ближайших выемок, притрассовых карьеров и резервов, а при его отсутствии - техногенные грунты.

а - насыпь без защитного слоя H £ 6 м; б - то же, высотой от 6 до 12 м; в - насыпь с защитным слоем Н £ 6 м; г - то же, высотой от 6 до 12 м

Рисунок 7.1 - Поперечные профили насыпей из недренирующих грунтов при поперечном уклоне местности не круче 1:5

7.3 При соответствующем обосновании допускается проектирование насыпей из разнородных грунтов. При этом в случае расположения песка (за исключением защитного слоя в основной площадке) над глинистым грунтом поверхности последнего необходимо придавать поперечный уклон 0,04 - 0,10 от середины к краям насыпи. Поверхность слоя песка, расположенного под слоем глинистого грунта, подлежит выравниванию без придания уклонов. Каждый слой отсыпаемого грунта должен располагаться по всей ширине насыпи (исключение составляют случаи устройства защитных экранов на откосах). Сопряжение в продольном направлении слоев разнородных грунтов должно осуществляться с уклоном не круче 0,15 - 0,20 при высоте насыпи над сопрягаемыми слоями более глубины промерзания; сопряжение разнородных грунтов в уровне защитного слоя следует предусматривать с продольным уклоном в соответствии с рекомендациями п. 5.8.

В сейсмических районах более тяжелые грунты рекомендуется располагать в нижней части насыпи (рисунок 7.2).

а - дренирующий грунт расположен над глинистым; б - глинистый грунт находится между слоями дренирующего; 1 - дренирующий грунт; 2 - глинистый грунт

Рисунок 7.2 - Схемы возможного расположения разнородных грунтов в насыпях

7.4 Для насыпей, отсыпаемых из скальных слабовыветривающихся и выветривающихся грунтов (горной массы), а также из крупнообломочных (валунных и глыбовых) грунтов, верхний слой мощностью не менее 0,5 м следует проектировать из гравийно-галечниковых или щебенистых грунтов, наиболее крупные фракции в которых не должны превышать 0,2 м. В нижележащих слоях насыпи максимально допустимый размер камня устанавливается при пробном уплотнении в зависимости от принятой толщины отсыпаемого слоя.

7.5 При проектировании насыпей из глинистых грунтов, характеризуемых влажностью на границе текучести WL ³ 0,40, а также из других специфических грунтов, в том числе техногенных (прочностные свойства которых в конструкции под воздействием природных факторов могут значительно снижаться), необходимо предусматривать отсыпку верхнего слоя из песков, а также создание защитного экрана на откосах.

7.6 При проектировании пересечений железнодорожной линии с трубопроводами последние должны быть реконструированы или переустроены, при этом предусматривают надземную (на опорах или эстакадах) или подземную их прокладку.

Устройство переходов трубопроводов в теле насыпи запрещается (СТН Ц-01-95).

7.7 Состав работ по подготовке оснований насыпей следует назначать с учетом высоты проектируемой насыпи и поперечному уклону местности. Во всех случаях подлежит удалению и складированию почвенно-растительный слой с площади основания насыпи для последующего использования его в природоохранных целях (в том числе для покрытия откосов земляного полотна, рекультивации карьеров).

В местах, где срезка почвенно-растительного слоя нецелесообразна вследствие низкого уровня его плодородия, необходимо предусматривать удаление дерна в основании насыпей высотой до 0,5 м на равнинных участках и косогорах крутизной до 1:10, а также в основании насыпей высотой до 1 м на косогорах крутизной от 1:10 до 1:5.

В таежных и лесных районах при подготовке основания под насыпи необходимо предусматривать удаление валежника; при высоте насыпи до 1 м обязательна сплошная корчевка пней и удаление мохового покрова; при большей высоте насыпей пни могут быть оставлены, но спилены так, чтобы высота их не превышала 0,2 м.

7.8 В пределах косогоров крутизной от 1:5 до 1:3 независимо от высоты насыпей требуется нарезка уступов в соответствии с рисунком 7.3. Ширина уступов принимается равной от 1 до 4 м. Поверхности уступов следует придавать поперечный уклон в низовую сторону величиной 0,01 - 0,02, стенки уступов при их высоте до 1 м можно проектировать вертикальными, а при высоте до 2 м - с наклоном около 1:0,5.

Нарезка уступов не предусматривается для насыпей, размещаемых на косогорах, сложенных дренирующими грунтами и не имеющих растительного покрова.

Необходимость подготовки основания насыпей, размещаемых на косогорах, сложенных скальными грунтами, следует устанавливать в зависимости от местных условий.

При небольшой высоте насыпей на косогорах, а также на участках полувыемок и полунасыпей следует обеспечивать однородные грунтовые условия под основной площадкой в пределах зоны промерзания за счет частичной замены естественных грунтов насыпными (в том числе дренирующими) для исключения неравномерного пучения (рисунок 7.2). При этом толщина слоя насыпного грунта hmin должна быть не менее указанной в таблице 7.1.

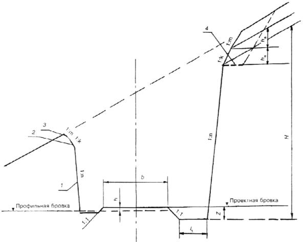
а - насыпь высотой низового откоса до 12 м, б - деталь нагорной канавы с бермой в грунте естественного сложения; в - низкая насыпь на косогоре; г - полунасыпь-полувыемка; l - ширина нижнего уступа определяется из условия возможности уплотнения грунтов нижней части насыпи, 1 - защитный слой

Рисунок 7.3 - Поперечные профили насыпей на косогорах крутизной от 1:5 до 1:3

Примечание - Очертания верха земляного полотна назначаются в соответствии с требованиями п. 3.1.

Насыпи на сыром и мокром основании

7.9 Насыпи на сыром и мокром основании следует проектировать преимущественно из дренирующих грунтов. При использовании мелких и пылеватых песков и глинистых грунтов следует предусматривать мероприятия, обеспечивающие устойчивость и прочность земляного полотна и его основания: осушение грунтов основания посредством углубленных канав, дренажей, прослоев из дренирующих грунтов, геотекстильных материалов, устройство берм.

7.10 Бровка насыпей должна возвышаться над уровнем длительно (более 20 суток) стоящих поверхностных вод или над наивысшим расчетным уровнем грунтовых вод, а при сырых основаниях над поверхностью земли на величину, достаточную для предохранения основной площадки от пучения и просадок. Размер этого возвышения следует устанавливать в зависимости от вида грунтов, высоты капиллярного поднятия, глубины промерзания в районе строительства, но не менее значений, указанных в таблице 7.1.

Для насыпей из суглинков и глин возможно некоторое уменьшение указанных высот при условии устройства капилляропрерывателя.

Глубину промерзания следует принимать по карте 3 приложения 1 СНиП 2.01.01-82 (см. приложение Н) или по данным местных гидрометеостанций.

За расчетный уровень грунтовых вод следует принимать расчетный осенний уровень, а при отсутствии необходимых данных - наивысший возможный уровень, определяемый по верхней границе оглеения грунтов.

Возвышение бровки насыпей дорог IV категории допускается уменьшать по сравнению с нормами таблицы 7.1 на основании данных опыта эксплуатации дорог в районе строительства, но не более чем в 1,5 раза.

Таблица 7.1

В метрах

Грунт, используемый для насыпи

Минимальное возвышение бровки насыпи при расчетной глубине промерзания

1,0

1,5

2,0

2,5

Пески средней крупности, дренирующие мелкие

0,9/0,6

1,1/0,8

1,4/1,1

1,6/1,3

Мелкие недренирующие и пылеватые пески, супеси песчанистые

1,2/1,0

1,5/1,2

1,8/1,4

2,0/1,6

Суглинки и глины, пылеватые тяжелые супеси

1,6/1,3

1,9/1,5

2,1/1,7

2,4/2,0

Примечание - Перед чертой - возвышение бровки насыпи над расчетным уровнем грунтовых вод или длительного (более 20 суток) стояния поверхностных вод. За чертой - возвышение бровки насыпи над поверхностью земли при сыром основании или над уровнем кратковременно (менее 20 суток) стоящих поверхностных вод.

Указанные минимальные возвышения бровки насыпей должны быть обеспечены после завершения осадки грунтов основания.

7.11 Для насыпей на слабых и недостаточно прочных основаниях необходимо выполнять проверку устойчивости откосов насыпей и стабильности грунтов основания, определять интенсивность осадок основания. В обоснованных технико-экономическими расчетами случаях следует предусматривать мероприятия по сокращению сроков стабилизации.

Насыпи из глинистых грунтов повышенной влажности

7.12 Глинистые грунты повышенной влажности (тугопластичные с показателем текучести 0,25 < IL £ 0,50) допускается применять для насыпей типовых конструкций при высоте их до 6 м (рисунок 7.4) на естественном сухом или осушаемом основании при крутизне откосов, указанной в таблице 4.3 СНиП 32-01-95. При высоте насыпей из этих грунтов более 6 м, а также при переувлажненных грунтах (с показателем текучести IL > 0,50) независимо от высоты насыпей требуется индивидуальное проектирование, установление способов снижения их влажности.

Рисунок 7.4 - Типовой поперечный профиль насыпи высотой до 6 м из глинистых грунтов тугопластичной консистенции (0,25 < IL £ 0,5)

7.13 В проектах насыпей из грунтов повышенной влажности и осушаемых переувлажненных необходимо предусматривать мероприятия, учитывающие возможность последующей повышенной осадки грунтов тела насыпи - конструктивный запас по высоте (по нормам таблицы 4.2) или по ширине верха насыпи.

При сравнении возможных вариантов следует учитывать затраты на подготовку (осушение) грунтов и повышенные эксплуатационные расходы в первые годы работы таких насыпей.

7.14 Для осушения грунтов повышенной влажности и переувлажненных возможно применение следующих способов:

- естественное просушивание грунтов в летний и осенний периоды, если климатические условия (температура, ветер, отсутствие атмосферных осадков) являются благоприятными и стабильными во времени;

- осушение грунтов неактивными добавками (топливные золы, шлаки, отходы горно-рудной промышленности) или путем чередования слоев грунта (переувлажненного и сухого) из двух источников;

- осушение грунта активными добавками (негашеной известью, цементом, золой-уноса, гипсом, безводной кристаллической фосфорной кислотой и др.). При этом наибольший эффект достигается при сооружении насыпей из пылеватых песков, супесей, легких суглинков, использование конструктивных решений [25].

8 НАСЫПИ НА БОЛОТАХ

Общие положения

8.1 Насыпи на болотах следует проектировать с учетом:

- категории дороги;

- типа и глубины болота;

- уклона минерального дна болота и вида слагающих его грунтов;

- вида грунтов и материалов, используемых для сооружения насыпи;

- высоты насыпи;

- рельефа местности.

8.2 При проектировании и строительстве земляного полотна следует различать три основных типа болот:

I - заполненные торфом и другими болотными грунтами устойчивой консистенции, сжимающимися под нагрузкой от насыпи высотой до 3 м;

II - заполненные торфом и другими болотными грунтами разной консистенции, в том числе выдавливающимися под нагрузкой от насыпи высотой 3 м;

III - заполненные болотными грунтами в разжиженном состоянии, выдавливающимися под нагрузкой, с торфяной коркой (сплавиной) или без нее.

Тип болот необходимо устанавливать по данным инженерно-геологических изысканий на основании:

- геологического разреза на глубину не менее 1 м ниже поверхности минерального дна;

- физико-механических характеристик торфа и других болотных грунтов.

При установлении типа болот может быть использована таблица приложения Д.

8.3 При проектировании насыпей на болотах необходимо обеспечивать:

непревышение допустимых расчетных значений упругих осадок насыпей на дорогах скоростных, особогрузонапряженных, I - III категорий - 2 мм, на дорогах IV категории - 3 мм [12];

ограничение по возможности сроков осадки грунтов основания насыпей строительным периодом.

Пересечение болот трассой линии следует предусматривать в узких местах, преимущественно на участках с меньшей глубиной и минимальным поперечным уклоном минерального дна.

8.4 Для сооружения насыпей на болотах следует использовать преимущественно дренирующие грунты для всей насыпи или ее нижней части.

При отсутствии таких грунтов допускается применять для сооружения насыпей на болотах I и II типов мелкие недренирующие пески, пылеватые пески и песчанистые супеси.

Проектировать насыпи из указанных грунтов следует в соответствии с приведенными поперечными профилями (рисунки 8.1 - 8.5).

Использование тяжелых супесей и суглинков для отсыпки нижней части насыпи (в зоне выторфовывания) допускается в исключительных случаях на болотах I и II типов с обязательным усилением конструкции земляного полотна и при технико-экономическом обосновании, учитывающем, помимо первоначальных строительных затрат, повышенные расходы на содержание земляного полотна и верхнего строения пути в период временной эксплуатации.

Для отсыпки верхней части насыпи (выше уровня болота на 0,5 м) допускаются все грунты, пригодные для возведения насыпей, при условии обеспечения необходимого возвышения бровки.

8.5 Возвышение бровки насыпи над поверхностью болота следует назначать не менее: для дренирующих грунтов 0,8 м при полном удалении торфа в основании и 1,2 м при частичном выторфовывании, для мелких и пылеватых песков и песчанистых супесей - 2 м.

Насыпи на болотах I типа

8.6 На болотах I типа насыпи высотой до 3 м следует проектировать с полным или частичным удалением торфа из основания с заменой его минеральным грунтом.

Полное удаление торфа необходимо предусматривать на болотах глубиной до 2 м при высоте насыпей до 3 м (рисунок 8.1).

Частичное удаление торфа применяют на болотах глубиной до 2 м при высоте насыпи более 2 м, а также на болотах глубиной до 4 м (рисунок 8.2). При этом глубину траншей выторфовывания необходимо назначать исходя из условий, чтобы сумма высоты насыпи над поверхностью болота и глубины траншеи выторфовывания была бы не менее 3,5 м для дорог I - III категории и не менее 3 м для дорог IV категории. При этом отношение суммарной мощности насыпного слоя с учетом расчетной осадки к толщине уплотненного слоя торфа должно быть не менее 2:1. Крутизну откоса траншеи выторфовывания следует устанавливать в зависимости от способа производства работ в пределах от 1:0 до 1:0,5.

Для дорог IV категории перечисленные в п. 8.6 параметры допускается уменьшать исходя из условий обоснованного снижения сметной стоимости с учетом местных особенностей.

8.7 Насыпи высотой 3 м и более на болотах I типа следует проектировать в соответствии с поперечными профилями, приведенными на рисунке 8.3 с использованием торфа в качестве естественного основания насыпи. При больших высотах насыпей и глубинах болот насыпи могут быть запроектированы с бермами с учетом технико-экономического обоснования.

При этом обязательной является проверка расчетом упругой осадки насыпей.

В случае превышения допустимого значения упругой осадки (см. п. 8.3) следует предусматривать усиление конструкции - увеличение толщины насыпи* за счет увеличения ее высоты или частичной замены торфа в основании насыпи грунтом.

* Толщина насыпи определяется по оси пути и включает в себя: высоту насыпи над поверхностью болота, глубину траншеи выторфовывания и осадку торфа под насыпью.

а - из дренирующих грунтов; б и в - из мелких и пылеватых песков, песчанистых супесей, 1:m - крутизна откосов траншеи выторфовывания (от 1:0 до 1:0,5)

Рисунок 8.1 - Поперечные профили насыпей высотой до 3 м с предварительным выторфовыванием на болотах I типа глубиной до 2 м при поперечном уклоне основания не круче 1:10

а - из дренирующих грунтов; б - из мелких и пылеватых песков, песчанистых супесей; 1:m - крутизна откосов траншеи выторфовывания (от 1:0 до 1:0,5); hв - глубина траншеи выторфовывания; S - осадка насыпи

Рисунок 8.2 - Поперечные профили насыпей высотой от 2 до 3 м с частичным выторфовыванием на болотах I типа глубиной от 2 до 4 м при поперечном уклоне минерального дна болота не круче 1:10

а - из дренирующих грунтов; б - из мелких и пылеватых песков, песчанистых супесей

Рисунок 8.3 - Поперечные профили насыпей высотой более 3 м на болотах I типа глубиной до 4 м при поперечном уклоне минерального дна болота не круче 1:10

8.8 Проверку непревышения допустимых упругих осадок следует проводить и при частичной выторфовании при высоте насыпи менее 3 м, если отношение толщины насыпи к толщине обжатого торфа в основании менее 3:1 на дорогах I - III категорий и менее 2:1 на дорогах IV категории и подъездных путях.

Методика расчета представлена в методических рекомендациях [12].

8.9 При оставлении торфа в основании насыпей (полном или частичном) объем земляных работ по возведению насыпей следует определять с учетом осадки насыпи вследствие сжимаемости торфа в ее основании.

Ориентировочно осадку основания насыпей высотой до 4 м на болоте глубиной до 4 м можно определять по нормам, приведенным в таблице 8.1.

Таблица 8.1

Толщина обжимаемого слоя торфа, м

Осадка S, % толщины обжимаемого слоя торфа под насыпями высотой

< 3 м при частичном выторфовывании

от 3 до 4 м на естественном основании

2

40

50

От 2 до 4

35

40

Величину осадки у краев траншей выторфовывания S при проектировании насыпей из пылеватых песков и легких супесей (см. рисунок 8.2) допускается принимать равной 20 % толщины обжимаемого слоя торфа.

Осадку насыпей при любом сочетании их высоты и мощности слоев торфа в основании приближенно можно определить расчетом в соответствии с рекомендациями приложения Е.

На стадии технико-экономических исследований для предварительных расчетов при сравнении вариантов трасс, определении оптимального сочетания глубины выторфовывания и высоты насыпи над поверхностью болота можно также применять номограммы, приведенные в приложении Е.

Насыпи на болотах I - II, II и III типов

8.10 Насыпи из дренирующих грунтов на болотах I - II, II типов глубиной до 3 м следует проектировать с расчетом полного удаления торфа устойчивой консистенции и посадки насыпи на минеральное дно болота, применительно к поперечным профилям, приведенным на рисунке 8.4, а.

Глубину канав-торфоприемников следует назначать равной толщине растительно-корневого покрова, но не менее 1 м.

При использовании для сооружения насыпей на болотах I - II и II типов мелких и пылеватых песков и песчанистых супесей следует предусматривать полное удаление торфа в основании (рисунок 8.4, б).

Вырезается растительно-корневой покров, после чего разрыхляются нижележащие слои и удаляется всплывающий торф за пределы траншеи выторфовывания. Нижняя часть насыпи (ниже поверхности болота) сооружается путем отсыпки грунта в воду. При такой технологии взамен торфоприемников с двух сторон насыпи нарезаются водоотводные канавы. Указанные работы рекомендуется выполнять в зимнее время.

При проектировании насыпей на болотах всех типов, сооружаемых способом гидромеханизации, следует рассматривать варианты конструкции насыпи с пляжными откосами. Высоту пляжного откоса в месте сопряжения его с откосом насыпи следует принимать равной 1 м над основанием насыпи.

8.11 Насыпи на болотах III типа глубиной до 4 м следует проектировать, предусматривая использование минерального дна болота в качестве основания земляного полотна, с учетом предварительного удаления торфяной корки (рисунок 8.5) или без удаления. В последнем случае толщина насыпи с учетом ее части, расположенной ниже уровня болота, должна быть не менее 3 м над поверхностью торфяной корки, при этом следует вдоль подошвы откоса насыпи предусматривать устройство прорезов на всю толщину растительного слоя.

Осадку насыпи за счет сжатия торфяной корки можно определить по нормам, приведенным в таблице 8.1.

Крутизну откосов насыпей выше поверхности болота следует назначать по нормам, приведенным в таблице 4.3 СНиП 32-01-95 и таблице 8.2 с учетом угла естественного откоса под водой.

Таблица 8.2

Вид грунта

Крутизна откосов ниже уровня болота

Песок мелкий и пылеватый

1:3

Песок гравелистый, крупный и средней крупности

1:1,75

Крупнообломочные грунты (галечниковый, гравийный, щебенистый, дресвяный)

1:1,5

Примечание - При гидронамыве насыпей крутизна откосов устанавливается проектом.

а - из дренирующих грунтов; б - из мелких и пылеватых песков, песчанистых супесей; 1 - торфоприемник; 2 - вспомогательная линия для определения ширины траншеи выторфовывания

Рисунок 8.4 - Поперечные профили насыпей на болотах II типа глубиной до 3 м при поперечном уклоне основания не круче 1:15

1 - торфяная корка

Рисунок 8.5 - Поперечный профиль насыпи на болотах III типа глубиной до 4 м при поперечном уклоне основания не круче 1:20

8.12 При проектировании насыпей на болотах с сохранением торфа в основании могут быть применены конструктивно-технологические мероприятия, направленные на обеспечение устойчивости насыпи, стабильности грунтов основания, снижение значения общих и упругих осадок и т.д.

Основными из этих мероприятий являются:

- устройство берм или уположенных откосов;

- устройство в основании вертикальных грунтовых свай или свай из других материалов, в том числе конструкций ростверкового типа;

- устройство настилов под насыпью или армирование самой насыпи, в том числе геотекстильными материалами;

- устройство дренажных прорезей или вертикальных дрен;

- увеличение высоты насыпи или глубины выторфовывания;

- мероприятия для предотвращения сползания насыпи при наклонном дне болота (выравнивание дна, устройство упорных каменных призм и др.);

- использование геотекстильных материалов, укладываемых непосредственно на поверхность болота или на выравнивающий слой грунта (для перераспределения нагрузки, выравнивания осадки и предупреждения локального продавливания насыпного грунта в основание).

8.13 Проектирование насыпей из местных глинистых грунтов должно выполняться в соответствии с требованиями п. 8.4 при крутизне откосов в нижней части насыпи не круче 1:2, с устройством защитного слоя под балластной призмой (см. п. 5.5). При расчетах устойчивости насыпи следует учитывать снижение прочностных характеристик грунтов, вызываемое особенностями условий производства земляных работ.

8.14 На дорогах высокой грузонапряженности, высокоскоростных, а также при ускоренных темпах строительства для создания равнопрочного по протяжению земляного полотна на болоте I типа и смежных с ним участках рекомендуется рассматривать варианты проектирования насыпей высотой до 2 м на болотах I типа глубиной до 3 м с полным удалением торфа в основании.

8.15 При проектировании насыпей на болотах с оставлением торфа в основании обязательна: проверка непревышения допустимого значения упругих осадок грунтов основания насыпи, а также интенсивности осадок [12].

Для таких объектов необходимо предусматривать испытание готового земляного полотна пробными нагрузками (приложение Ж).

9 НАСЫПИ В УСЛОВИЯХ ПОДТОПЛЕНИЙ

9.1 Насыпи на участках подтопления следует проектировать с учетом постоянного или периодического воздействия водных масс водотоков или водоемов, которое проявляется в виде обводнения грунта тела насыпей, размывающего воздействия, вызываемого течением водного потока или волнением, разрушения и загромождения откосов земляного полотна льдом.

9.2 На прижимных участках трассы, где размещение земляного полотна ограничено с одной стороны крутыми (как правило, скальными) косогорами, а с другой - водотоками (и водоемами), в большинстве случаев не имеющими прибрежных террас по технико-экономическим соображениям, предпочтительно проектирование земляного полотна прислоненными насыпями.

На прижимных участках следует проверять достаточность возвышения бровки земляного полотна (установленной в соответствии с указаниями п. 9.3) на условиях заторных и зажорных явлений.

9.3 Бровка земляного полотна на подходах к водопропускным сооружениям через водотоки в пределах их разлива, при расположении железнодорожных линий вдоль водотоков, озер, морей, водохранилищ, а также бровка оградительных и водораздельных дамб должны возвышаться над наивысшим уровнем воды при пропуске наибольшего паводка с учетом подпора, наката волны на откос, ветрового нагона, приливных и ледовых явлений не менее чем на 0,5 м, а бровка незатопляемых регуляционных сооружений и берм - не менее чем на 0,25 м.

Наивысший расчетный уровень воды следует определять по СНиП 2.01.14-83 исходя из вероятности превышения:

- на скоростных, особогрузонапряженных линиях и линиях I - III категорий общей сети - 1:300 (0,33 %);

- на линиях IV категории общей сети - 1:100 (1 %);

- на подъездных путях IV категории - 1:50 (2 %).

На подъездных путях, где по технологическим причинам не допускается перерыв движения, в обоснованных случаях вероятность превышения наивысшего расчетного уровня воды следует принимать равной 1:100 (1 %).

Подпор следует определять с учетом возможного размыва русла под мостом, но не более чем на 50 % полного размыва.

Высоту ветрового нагона и высоту наката волн следует определять по СНиП 2.06.04-82* для обеспеченностей указанных выше расчетных уровней воды.

Для малых мостов и труб расход допускается определять с учетом аккумуляции воды перед сооружением.

9.4 Откосы и подошвы насыпей и берм на подходах к мостам и трубам, откосы регуляционных сооружений и конусов мостов в пределах подтопления должны быть укреплены от воздействия льда, волны и течения воды.

Границы отдельных частей крепления и их тип (мощность) следует рассчитывать по эпюрам волновых нагрузок (СНиП 2.06.04-82*) исходя из обеспеченности расчетного шторма. При расчетах мощности крепления на волновые воздействия обеспеченность расчетной высоты волны принимается 5 % в системе расчетного шторма обеспеченности 4 % (1 раз в 25 лет).

Верх крепления доводится до бровки откоса, если ее отметка определена из гидрологических условий водотока по п. 9.3 или до той же отметки на откосе при более высокой насыпи. В конструкциях крепления следует предусматривать меры, исключающие затекание воды под крепление с вышерасположенной части откоса.

Тип и мощность крепления определяют по условиям, соответствующим расчетным расходам воды. Вероятности превышения расходов и соответствующих им уровней воды на пике паводков, при которых действуют указанные факторы, следует принимать в зависимости от категорий дорог:

на линиях III и более высоких категорий и на всех линиях, не допускающих по технологическим причинам перерыва движения, - 1:100 (1 %);

на линиях IV категории 1:50 (2 %).

Пример расчета волнового воздействия, выполненный в соответствии с требованиями СНиП 2.06.04-82*, ВСН 206-87, НИМП-72 приведен в приложении П.

Для защиты подтопляемых насыпей от размывов могут применяться конструкции пассивного и активного типа (пляжные откосы, бермы, дамбы).

В соответствии с условиями эксплуатации и действующими нагрузками назначаются способы защиты подтопляемых откосов насыпей в соответствии с рекомендациями настоящего документа и альбома типовых конструкций [22].

9.5 Для защиты откосов от размывающего воздействия при расчетной скорости течения водотока до 4 - 5 м/с наиболее целесообразно использовать разрыхленные слабовыветривающиеся скальные грунты особенно в горных районах. При отсутствии такого материала, а также при скорости течения свыше 4 - 5 м/с следует проектировать в качестве защиты инженерные конструкции (сборные и монолитные железобетонные плитные покрытия, жесткие и гибкие покрытия, защитные и подпорно-оседающие стены, сборные железобетонные ряжи, береговые ограждения и др.).

Для снижения размывающего воздействия потока на земляное полотно при высокой скорости течения предусматривают устройство поперечных сооружений (бун, шпор, полузапруд и др.). Целесообразность применения их и порядок размещения на объекте, а также необходимость срезки противоположного берега рекомендуется проверять моделированием речного потока.

В пределах между поперечными сооружениями для укрепления откосов насыпи следует применять способы защиты, учитывающие снижение скорости течения в этих зонах.

9.6 Защитные конструкции из разрыхленных скальных слабовыветривающихся грунтов (несортированной горной массы) могут быть запроектированы в виде защитных берм и уширенных защитных призм.

Основным типом укрепления является конструкция в виде защитной призмы (берм) (рисунок 9.1), которая отсыпается из несортированной горной массы, содержащей не менее 50 % камней расчетного диаметра dк. Толщину защитного слоя следует принимать не менее трех расчетных диаметров, при ширине призмы поверху не менее 1 м. При невозможности по местным условиям одновременной отсыпки ядра насыпи и защитной призмы ширину ее поверху следует назначать не менее 3 м.

Определение dк, приведенного к диаметру шара, производится в зависимости от скорости течения водотока и крутизны откоса (приложение 3). При этом одновременно обосновывается заложение наружного откоса защитной призмы mп на основании технико-экономических расчетов.

На вогнутых участках русла реки, в северных районах, где откосы насыпи могут подвергаться интенсивному воздействию ледохода, следует предусматривать защитную призму шириной поверху не менее 3 м с внешним откосом не круче 1:2.

При размываемых грунтах основания следует у подошвы насыпи предусматривать упорную призму - рисберму (рисунок 9.1, б), требования к крупности камня в которой такие же, как и для камня защитной призмы на откосе (приложение 3).

Конструкция упорной призмы определяется по расчету.

а и б - соответственно при неразмываемых и размываемых грунтах основания; 1 - несортированная горная масса, содержащая камень расчетной крупности dк в количестве ³ 50 %; mп - заложение наружного откоса защитной призмы

Рисунок 9.1 - Конструкция укрепления подтопленного откоса насыпи несортированной горной массой в виде защитной призмы

9.7 Уширенные защитные призмы рекомендуются для защиты откосов от паводковых вод и ледохода на дорогах III и IV категорий при расчетной скорости течения до 4 м/с и высоте насыпей не свыше 10 м (рисунок 9.2). Эта конструкция создается путем пересыпки под углом естественного откоса несортированной горной массы, содержащей обломки расчетного диаметра не менее 25 %. Эта конструкция рассчитана на последующее частичное ее переформирование под воздействием паводковых вод и ледохода с образованием на откосе самоотмостки из крупного камня. Целесообразность устройства такой конструкции определяется технико-экономическим расчетом.

Определение размеров уширенной защитной призмы Dl возможно по приложению И.

9.8 Гибкие железобетонные покрытия различной толщины от 5 до 15 см целесообразны при ожидаемых неравномерных осадках откосов насыпей и их заложении не круче 1:2. Они располагаются в границах от расчетных отметок верха крепления до меженного уровня. В зоне меженного горизонта необходимо создание упора в виде каменной призмы, устойчивой на воздействие потока и льда. Покрытия в подводной части берегового склона применяют толщиной 5 см на подложке из геотекстиля [2].

9.9 Защитные стены следует применять для укрепления земляного полотна при расположении его на стесненных участках русла при высоких скоростях течения. Их проектируют с фундаментом, заглубляемым на величину, не меньшую расчетной глубины размыва.

1 - контур защищаемого откоса; 2 - несортированная горная масса, содержащая dк ³ 25 %; hmax - наибольшая высота уступа при размыве

Рисунок 9.2 - Конструкция укрепления подтопленного откоса насыпи несортированной горной массой, отсыпаемой под углом естественного откоса в виде уширенной защитной призмы

Подпорно-оседающие стены являются бесфундаментной разновидностью продольных берегоукрепительных сооружений. Они состоят из одевающих стен и оседающих массивов (рисунок 9.3). Основным преимуществом этой конструкции по сравнению с защитными стенами является отсутствие фундамента, что резко снижает их стоимость и трудоемкость работ по сооружению [5].

1 - сборная одевающая стена из блоков; 2 - насыпь (или защищаемый берег); 3 - противовес (наращенный участок оседающего массива); 4 - прокладка из толя; 5 - сборно-монолитный оседающий массив

Рисунок 9.3 - Конструкции сборной подпорно-оседающей стены

9.10 В северных районах на реках с интенсивным ледоходом рекомендуется проверять берегозащитные сооружения на устойчивость под влиянием ледового воздействия [6, 21, 33].

9.11 Для укрепления следует назначать конструкции, приведенные в альбоме типовых конструкций [28]: каменные наброски различных модификаций; бетонные плиты (при высоте волн до 0,7 м и слабом ледоходе); железобетонные разрезные плиты (при высоте волн до 1,0 - 1,5 м); железобетонные плиты, омоноличиваемые по контуру и монолитные железобетонные плиты (при волнах высотой до 3 м); железобетонные гибкие покрытия (при волнах до 1,5 м); берегозащитные стены и др. Укрепляемые плитами откосы насыпей должны быть не круче 1:2. Особое внимание при защите от волнобоя уделяется подготовке под плиты - обратному фильтру, выполняемому по расчету. Для устройства обратного фильтра применяются щебенисто-гравийно-песчаные грунты, а также геотекстильные материалы (приложение К).

В качестве защитных конструкций от волнового воздействия следует рассматривать пляжные откосы, волноломы, волноотбойные стены, буны и др.

9.12 При применении на подтопляемых объектах бетонных и железобетонных укрепительных конструкций в необходимых случаях следует предусматривать защиту их от истирающего воздействия гравийно-галечниковым материалом.

9.13 При наличии больших неиспользуемых территорий и широких возможностей применения гидромеханизации вышеуказанные защитные конструкции в обоснованных технико-экономическими расчетами случаях могут быть заменены пляжными откосами.

Крутизну пляжных откосов следует устанавливать по расчету.

В расчетах следует учитывать кратковременность и периодичность подтопления откосов и реальные условия образования волны на пойме, а также воздействие продольного течения при паводке.

9.14 Снижение воздействия ветровой волны на откос оказывает произрастающая на пойме древесная растительность. Влияние растительности как один из элементов укрепления подтопляемых откосов следует учитывать, если ее высота превышает расчетную глубину воды более чем на 0,7 высоты волны в соответствии с рекомендациями ВСН 206-87.

10 ВЫЕМКИ

Выемки при благоприятных инженерно-геологических условиях

10.1 Конструкцию выемок следует назначать в зависимости от их глубины, вида и свойств грунта, климатических условий района строительства, с учетом способов производства работ. При проектировании выемок следует учитывать потребность грунтов для сооружения смежных насыпей и при недостаточности грунтов - рассматривать варианты расширения выемок под карьеры.

Для типовых решений очертания выемок следует принимать, руководствуясь поперечными профилями, показанными на рисунках 10.1 - 10.8, крутизну откосов - назначать по таблице 4.4 СНиП 32-01-95.

Для усиления конструкции земляного полотна в выемках и на нулевых местах следует при глинистых грунтах с влажностью WL > 0,23 предусматривать устройство защитного слоя в соответствии с указаниями пп. 5.5 - 5.8.

10.2 В районах с засушливым климатом, где происходит полное впитывание атмосферных осадков во всякое время года, выемки в дренирующих грунтах и барханных песках допускается проектировать без кюветов (рисунок 10.3). На раздельных пунктах на сильнозаносимых участках в малоподвижных и подвижных песках выемки следует проектировать с кювет-траншеями у подошвы откосов шириной 4 м, глубиной до 0,6 м (рисунок 10.4).

10.3 При проектировании выемок глубиной более 2 м в глинистых грунтах, в мелких и пылеватых песках и в легковыветривающихся скальных грунтах следует предусматривать закюветные полки шириной 1 - 2 м (рисунок 10.5); при глубине выемок более 6 м в легковыветривающихся скальных грунтах следует предусматривать кювет-траншеи шириной понизу 4 м, глубиной 0,6 м.

Для выемок в районах избыточного увлажнения при указанных грунтах, а также в выемках с крутыми откосами в сухих лессах закюветные полки следует предусматривать при всех высотах откосов.

10.4 При проектировании выемок в сильнонабухающих грунтах, жирных глинах, в глинистых грунтах, характеризуемых влажностью на границе текучести WL > 0,4, в выветрелых слюдяных и слюдистых сланцах, а также в выветрелых и размокаемых тальковых, хлоритовых и глинистых сланцах необходимо разрабатывать индивидуальные решения по защите откосов и замене указанных грунтов под основной площадкой.

При этом решающее значение для обеспечения устойчивости конструкции имеет своевременное (без задержки) выполнение укрепительных работ.

Рисунок 10.1 - Поперечный профиль выемки глубиной (высотой верхового откоса) до 12 м в крупнообломочных, крупнообломочных с песчаным заполнителем и песчаных дренирующих грунтах

а - в глинистых грунтах твердых и полутвердых, характеризуемых WL £ 0,23, и в крупнообломочных грунтах с глинистым заполнителем, б - то же, при глинистых грунтах, характеризуемых WL > 0,23; hз - толщина защитного слоя

Рисунок 10.2 - Поперечный профиль выемки глубиной (высотой верхового откоса) до 12 м

Рисунок 10.3 - Поперечный профиль выемки в районах с засушливым климатом в дренирующих грунтах, в малоподвижных и неподвижных песках

Рисунок 10.4 - Поперечный профиль выемки в песках на сильнозаносимых участках с кювет-траншеями

Рисунок 10.5 - Поперечный профиль выемки глубиной до 12 м в мелких и пылеватых песках, в глинистых грунтах с WL ≤ 0,23 и в легковыветривающихся скальных

Примечание - Ширина закюветной полки при высоте откоса от 2 до 6 м - 1 м, при высоте откоса от 6 до 12 м - 2 м

h3 - толщина слоя замены глинистого грунта дренирующим

Рисунок 10.6 - Поперечный профиль выемки глубиной (высотой верхового откоса) до 12 м в глинистых тугопластичных грунтах (0,25 < IL < 0,50)

а - с железобетонным лотком; б - с лотком и дренажем мелкого заложения; hз - толщина слоя замены глинистого грунта дренирующим; 1 - водоотводный лоток; 2 - дренаж мелкого заложения

Рисунок 10.7 - Поперечный профиль выемки глубиной (высотой верхового откоса) до 12 м в глинистых тугопластичных грунтах с врезной подушкой

Рисунок 10.8 - Поперечный профиль выемки глубиной (высотой верхового откоса) до 12 м в сухих лессах засушливых районов

Выемки в глинистых грунтах повышенной влажности и переувлажненных

10.5 Крутизна откосов выемок в глинистых грунтах повышенной влажности (тугопластичных 0,25 < IL ≤ 0,5) назначается по таблице 4.4 СНиП 32-01-95. Конструкция выемок, прорезающих массивы переувлажненных глинистых грунтов (мягкопластичных IL > 0,5), определяется по индивидуальному проекту с проверкой расчетом общей и местной устойчивости.

10.6 При замене грунта в основной площадке на нулевых местах и в выемках, разрабатываемых в глинистых грунтах повышенной влажности и переувлажненных, толщина защитного слоя, устраиваемого из дренирующих грунтов под балластной призмой, устанавливается расчетом по рекомендациям методических указаний [9 - 11] и приложения В.

10.7 Замена глинистых грунтов на основной площадке в выемке дренирующими может быть осуществлена не только путем устройства накладных, но и врезных конструкций защитного слоя (рисунки 10.6, 10.7).

При врезной конструкции защитного слоя (рисунок 10.7) в качестве водоотвода могут быть использованы: железобетонные лотки, двухъярусные лотки, лотки в комбинации с дренажами неглубокого (или глубокого) заложения.

Выемки в скальных грунтах

10.8 Проектирование откосов скальных выемок (полувыемок) должно основываться на оценке их общей и местной устойчивости в соответствии с расчетными схемами, отражающими специфику рассматриваемого объекта, учитывающими наличие и направление поверхностей ослабления - трещин - по отношению к откосу, характер заполнения трещин, прочность грунтов, их блочность и интенсивность выветривания во времени (приложение А).

Благоприятно ориентированными по отношению к откосу являются поверхности ослабления, расположенные горизонтально, запрокинутые, секущие откос вкрест, вертикальные.

10.9 При наличии материалов инженерно-геологического обследования (включающих диаграммы трещиноватости, характеристики блочности и прочности массива) откосы выемок в скальных слабовыветривающихся массивных грунтах (приложение А) с благоприятным расположением поверхностей ослабления, выдержанным по длине проектируемого откоса, и блочностью более 0,5 м, допускается проектировать с использованием групповых поперечных профилей (рисунок 10.9).

Откосы выемок в скальных слабовыветривающихся трещиноватых грунтах при аналогичном благоприятном расположении поверхностей ослабления и блочности 0,3 - 0,5 м можно проектировать по групповым поперечным профилям при их заложении 1:0,5 до высоты 15 м.

10.10 Прорезные выемки в слабовыветривающихся скальных грунтах следует проектировать применительно к поперечным профилям, приведенным на рисунке 10.9.

Расстояние от оси крайнего пути до подошвы откоса выемки в слабовыветривающихся скальных грунтах (при отсутствии падения пластов массива в сторону пути), а также до подпорной стены следует принимать не менее 5 м, предусматривая устройство ниш и камер.

Ниши следует проектировать через 50 м с каждой стороны пути в шахматном порядке; через 300 м с каждой стороны пути взамен ниш надлежит проектировать камеры для размещения путевого инструмента и оборудования, глубиной не менее 3 м. Глубина ниш назначается в зависимости от скорости движения поездов: при скорости поезда до 140 км/ч - 1 м, при V = 141 - 160 км/ч - 2 м, при V = 161 - 200 км/ч - 3 м [31].

Для отвода воды из выемок необходимо предусматривать по обеим сторонам балластной призмы укладку бордюра из местного камня или бетонных блоков или же устройство кюветов и закюветных полок.

а - без кюветов, б - с кюветами, заглубленными в скальный грунт или получаемыми за счет устройства основной площадки путем отсыпки крупнообломочного или песчаного грунта; В - ширина понизу; 1, 2, 3 - заложение откосов в коренных скальных грунтах, элювии и делювии соответственно; 4 - камера для укрытия; 5 - ниша для укрытия; 6 - контур балластной призмы; 7, 8, 9 - коренные скальные грунты, элювий и делювий (соответственно)

Рисунок 10.9 - Поперечные профили выемок в скальных слабовыветривающихся грунтах с благоприятным расположением поверхностей ослабления при поперечном уклоне местности не круче 1:3

10.11 При невыдержанности залегания скальных слабовыветривающихся грунтов, их сильной дислоцированности и неблагоприятном расположении поверхностей ослабления, а также на крутых косогорах и в районах с расчетной сейсмичностью 8 баллов и более следует проектировать очертания выемок (полувыемок) с путевыми улавливающими траншеями (рисунок 10.10), а крутизну откосов назначать индивидуально.

Габариты траншей определяются расчетом. Для приближенной оценки их можно пользоваться данными, приведенными в таблице 10.1.

Таблица 10.1

Общая высота откоса Н, м

Ширина траншеи понизу, м

Глубина траншеи, м

£ 16

4

1,0 - 1,25

16 - 25

4 - 5

1,25 - 1,50

25 - 35

5 - 6

1,50 - 2,0

> 35

6 - 8

2,0 - 2,5

1, 2, 3 - крутизна откосов в коренных скальных грунтах, элювии и делювии; 4 - технологическая полка безопасности; lт - ширина траншеи; Z - глубина траншеи; Н - высота верхового откоса; hн; hв - высота откоса в элювиальном и делювиальном слоях

Рисунок 10.10 - Поперечный профиль выемки в скальных грунтах с путевыми улавливающими траншеями

10.12 Откосы выемок в скальных выветривающихся грунтах следует проектировать с учетом не только обеспечения общей, но и оценки местной устойчивости, с учетом интенсивности выветривания (приложение А). При назначении конструкции выемок в таких грунтах можно исходить из двух принципов:

а) обеспечения общей и местной устойчивости;

б) обеспечения общей устойчивости при допущении местных деформаций в виде осыпей.

При этом возможны следующие конструктивные варианты:

- крутые откосы, с траншеей, обеспечивающей аккумуляцию продуктов выветривания и периодическое механизированное их удаление;

- крутые откосы, защищенные от выветривания различными покрытиями (типа пневмонабрызга);

- уположенные откосы, обеспечивающие стабильное положение продуктов выветривания на их поверхности.

При обосновании технико-экономическими расчетами в выветривающихся скальных грунтах допускается крутизна откосов до 1:0,5 с устройством у подошвы откосов путевых улавливающих траншей, габариты которых указаны в таблице 10.1.

10.13 Крутизна откосов скальных выемок в пределах делювиально-элювиального слоя определяется в зависимости от мощности слоя грунта и прочностных параметров его.

Для делювия при мощности его £ 2 м рекомендуется заложение откоса (1:m) принимать равным 1:1, а при большей мощности - 1:1,5; для элювия (разборной скалы) при мощности его £ 3 м рекомендуется заложение откосов (1:к) принимать таким же, как для нижележащего коренного скального грунта, при большей мощности - от 1:1 до 1:1,5.

10.14 Для возможности профилактической механизированной очистки от неустойчивых скальных обломков высоких и крутых откосов скальных выемок в процессе их сооружения и эксплуатации в верхней зоне откоса следует предусматривать технологическую полку безопасности (рисунок 10.10) шириной 6 - 8 м.

При незначительной крутизне косогоров и возможности прохождения по ним машин и механизмов такие полки можно не устраивать.

При большой высоте откоса следует по расчету через каждые три яруса разработки выемки устраивать дополнительные технологические полки безопасности.

10.15 Очертания профилей выемки в легковыветривающихся скальных грунтах следует проектировать аналогично откосам выемок в песчано-глинистых грунтах, при этом допускается устройство у подошвы откосов высотой более 6 м кювет-траншей глубиной 0,6 м и шириной понизу 4 м.

10.16 Наиболее надежно достигается общая и местная устойчивость скальных откосов, безопасность строительных работ и эксплуатация сооружений при применении способа контурного взрывания, обеспечивающего сохранение устойчивости скального массива за пределами проектного контура выемки. Применение этого способа обязательно при создании откосов крутизной 1:0,2 м и более.

При контурном взрывании очертание участков откоса в пределах каждого яруса разработки выемки (крутизна откосов уступов) может быть вертикальным или наклонным. Ширина горизонтальных ступеней, оставляемых в пределах каждого яруса, обусловливается конструкцией применяемых буровых станков, запроектированной общей крутизной устойчивого откоса разрабатываемой выемки, наличием в пределах откоса дополнительной технологической полки безопасности (см. п. 10.14).

Крутизна откосов уступов и участков откоса между технологическими полками определяется расчетом на общую устойчивость.

Ширину горизонтальных ступеней, в пределах каждого яруса, устраиваемых по условиям технологии буровых работ, допускается оставлять менее 1,0 м.

Откосы заложением 1:0,5 целесообразно создавать с использованием метода наклонных откосных скважин.

10.17 При проектировании выемок в стабилизировавшихся глыбовых осыпях (курумниках) рекомендуется откосы их в зоне глыбового материала устраивать аналогично тому, как это рекомендовано для делювия (см. п. 10.13).

При подрезке откосом скоплений глыбового материала на косогорах крутизною свыше 35° в районах с сейсмичностью, превышающей 8 баллов, целесообразно по индивидуальным проектам предусматривать у основания откосов соответствующие ограждающие сооружения (в виде, например, уширенных и углубленных улавливающих траншей, рвов, улавливающих стен, рассчитанных на вмещение объема оползшего материала).

При расположении основной площадки выемок в валунно-глыбовых грунтах следует предусматривать отсыпку верхнего ее слоя толщиной 0,5 м галечно-гравийным или щебенисто-дресвяным грунтом.

11 ЗЕМЛЯНОЕ ПОЛОТНО НА УЧАСТКАХ ЗАСОЛЕННЫХ И НАБУХАЮЩИХ ГРУНТОВ, НАЛИЧИЯ КАРСТОВ

Земляное полотно в засоленных грунтах

11.1 Земляное полотно в районах распространения засоленных грунтов следует проектировать насыпями с учетом степени и качественного характера засоления грунта (используемого в качестве материала как для возведения насыпи, так и для ее основания - приложение Б), а также наивысшего уровня грунтовых вод, глубины засоления в периоды наибольшего соленакопления в верхних горизонтах.

11.2 Слабо- и среднезасоленные грунты на участках с сухими основаниями, в том числе на слабо- и среднезасоленных допускаются для возведения насыпей с типовыми поперечными профилями по нормам раздела 7.

Сильнозасоленные грунты допускаются для насыпей только на участках с сухим или осушаемым основанием при обязательном применении мер, направленных на предохранение верхней части насыпи от дополнительного засоления.

11.3 На участках с сильно- и избыточно засоленными грунтами, а при сырых и мокрых основаниях также со слабо- и среднезасоленными грунтами необходимо предусматривать мероприятия по предотвращению избыточного засоления грунта в теле насыпей, в том числе:

использовать для возведения насыпи привозные незасоленные, слабо- или среднезасоленные грунты;

назначать высоту насыпей по расчету для типовых поперечников, но не менее указанных в таблице 7.1;

при высоте насыпей до 6 м (на участках с сухим основанием и глубоким залеганием грунтовых вод) предусматривать удаление поверхностного слоя грунтов основания, содержащих более 10 % легкорастворимых в воде солей с заменой их качественным грунтом (рисунок 11.1, а). При этом глубина вырезки устанавливается по солевым профилям, составленным по данным инженерно-геологического обследования грунтов основания;

на участках с неглубоким залеганием грунтовых вод, периодически выходящих на дневную поверхность, удалять поверхностный слой грунта основания и применять для отсыпки насыпи дренирующие грунты или устраивать капилляропрерыватели (рисунок 11.1, б);

предусматривать дренажные и водоотводные устройства, понижающие уровень грунтовых вод.

а - на участках с сухим естественным основанием и глубоким залеганием грунтовых вод; б - на участках с неглубоким залеганием грунтовых вод, периодически выходящих на дневную поверхность, в - на участках пухлых солончаков; 1 - местный недренирующий грунт; 2 - дренирующий грунт; V - глубина вырезки засоленного грунта; Z - высота капиллярного поднятия плюс 0,25 м

Рисунок 11.1 - Поперечные профили насыпей на участках распространения засоленных грунтов

Земляное полотно в набухающих грунтах

11.4 При оценке свойств набухающих грунтов, используемых для сооружения земляного полотна, рекомендуется руководствоваться обобщенным показателем набухания-усадки eswh, который в наибольшей степени отражает возможную деформативность грунтов, проявляющуюся в зоне сезонного изменения температурно-влажностного режима (под основной площадкой, в поверхностных слоях откосов).

Для предварительной оценки набухающих грунтов показатели набухания могут быть определены по приближенным эмпирическим зависимостям их от значения влажности на границе текучести - WL (приложение Б).

11.5 В грунтах слабонабухающих (eswh £ 0,1) земляное полотно следует проектировать с применением типовых поперечных профилей по нормам разделов 7 и 10.

При средненабухающих грунтах (0,1 < eswh £ 0,2) возможность применения типовых решений должна быть обоснована дополнительными расчетами по оценке устойчивости откосов и стабильности основной площадки, на основании опыта эксплуатации земляных сооружений из аналогичных грунтов в районе строительства и в необходимых случаях поверочных расчетов.

11.6 В сильнонабухающих грунтах (eswh > 0,2) земляное полотно следует проектировать индивидуально с учетом влияния всех возможных неблагоприятных факторов и предусматривать мероприятия, обеспечивающие стабильность основной площадки и откосов, в том числе:

устройство защитного слоя под балластной призмой на насыпях и соответственно замену сильнонабухающих грунтов под основной площадкой в выемках и на нулевых местах;

устройство надежного укрепления откосов (в том числе защитных экранов, прислоненных дренажей при наличии грунтовых вод в выемках и др.).

Технология производства работ должна способствовать сохранению естественной структуры грунтов за пределами контура выемок и защите насыпей от воздействия природно-климатических факторов (см. п. 10.4).

Земляное полотно в карстовых районах

11.7 В районах развития карста (т.е. наличия подземных полостей и пустот, возникших в результате растворения или механического разрушения грунта потоками воды) земляное полотно следует проектировать индивидуально, преимущественно насыпями; при этом размещение трассы на участках с развитием карста допускается лишь в случае невозможности или технико-экономической нецелесообразности обхода таких участков.

11.8 В качестве мероприятий, предотвращающих деформации земляного полотна в пределах зоны влияния карстовых полостей с недостаточной несущей способностью их сводов, могут использоваться:

заполнение полостей и пустот водонепроницаемым материалом и заделка их цементацией;

снижение давления на кровлю полостей и пустот посредством разгружающих устройств (эстакад, перекрытий и т.п.);

применение более мощного верхнего строения пути;

обрушение взрывами неустойчивой кровли над полостями и пустотами.

11.9 Тектонические трещины, обнаруженные в пределах основной площадки скальных выемок и полувыемок, должны заделываться (цементацией и другими способами).

11.10 Состав инъекционного раствора выбирается в зависимости от геологии, зоны карстующихся пород, размера и количества полостей, их морфологии, пространственного положения, связи между ними, наличия заполнителей и степени заполнения, состояния грунта и назначения самой инъекции: заполнение пустот с целью предотвращения возможных провалов или омоноличивание массива с целью повышения его несущей способности. В первом случае используются растворы, после твердения которых получается материал с небольшой прочностью, но устойчивый к размыванию его грунтовыми водами. Во втором случае - растворы с высокой механической прочностью цементного камня.

Для заполнения пустот наибольшее распространение получили глино-цементные и глино-силикатные растворы, а для укрепления массивов грунта - цементные растворы, а также цементные растворы с различными наполнителями (песок, зола-унос, глина и т.д.).

11.11 При проектировании водоотводов (размещения их в плане, назначении способов укрепления откосов и дна) следует учитывать их возможное влияние на активизацию развития карста.

12 ЗЕМЛЯНОЕ ПОЛОТНО В РАЙОНАХ РАСПРОСТРАНЕНИЯ ПЕСКОВ

12.1 Проектирование земляного полотна в районах распространения песков заключается в выборе конструкции земляного полотна, мало подверженной песчаным заносам, в установлении мер по укреплению его, в определении зоны, в пределах которой требуется закрепление песков, а также в разработке комплекса мероприятий по предохранению земляного полотна от выдувания и образования песчаных заносов с учетом местных условий:

рельефа местности;

скорости, направления и продолжительности ветра, вызывающего перенос песка к земляному полотну;

подвижности песков (закрепления растительностью);

гранулометрического состава песка, его влажности и засоленности.

Характеристика степени подвижности песков приведена в таблице 12.1.

Таблица 12.1

Подвижность песков

Содержание пылевато-глинистых фракций, %, гранулометрический состав

Покрытие растительностью, %

Характеристика растительного покрова

Тип и характер движения

1

2

3

4

5

Подвижные (барханные)

< 5,

песок однороден, график грансостава однопиковый

< 15

Растительность отсутствует. Одиночная кустарниковая или редкая травянистая растительность в понижениях

Поступательное, поступательно- колебательное движение форм рельефа

Малоподвижные (полузаросшие)

5 - 15,

песок на гребнях однороден, график грансостава однопиковый. В понижениях график грансостава двухпиковый

15 - 35

Растительность древесно-кустарниковая и травянистая. В понижениях - дерновый слой

Поступательное, поступательно-колебательное и колебательное движение одиночных барханов и шлейфов среди заросших неподвижных форм рельефа

Неподвижные (заросшие)

> 15,

график грансостава двухпиковый

> 35

Сплошной растительный покров и дерн. Гребни песчаных форм обнажены или покрыты редкой растительностью

Ветропесчаный поток

Примечание - Степень подвижности песков оценивают в полосе шириной не менее 100 м в каждую сторону от намечаемой трассы дороги.

12.2 Вдоль железных дорог, пересекающих песчаные территории, надлежит предусматривать фитомелиоративные пескозащиты (закрепление с помощью посева или посадки древесной, кустарниковой и травянистой растительности) в необходимых случаях в сочетании со средствами механической защиты.

Ширину полосы закрепления следует проектировать в размерах: не менее 200 м в пустынных и полупустынных районах и не менее 100 м в остальных.

В зависимости от степени подвижности песков и годовых объемов переноса песка к пути ориентировочные значения ширины закрепляемой полосы для дорог I - III категорий составляют:

на особо сильнозаносимых участках (при объеме переноса песка более 30 м3/м в год) - до 300 м;

на сильнозаносимых (20 - 30 м3/м в год) - до 200 м;

на среднезаносимых (10 - 20 м3/м в год) - до 150 м;

на слабозаносимых (до 10 м3/м в год) - до 100 м.

За зоной фитомелиоративных мероприятий надлежит выделять охранную зону шириной не менее 500 м в пустынных и полупустынных районах и 100 м - в остальных районах, где запрещаются действия, способствующие увеличению подвижности песков (уничтожение растительности, выпас скота, нарушение почвенного покрова и т.д.).

12.3 Продольный профиль и земляное полотно в районах распространения песков (подвижных, малоподвижных и неподвижных) следует проектировать с учетом вписывания в рельеф местности при максимальном сохранении растительности, как правило, насыпями высотой до 0,9 м. Следует избегать высоких насыпей, так как они меняют условия прохождения ветропесчаного потока.

Короткие выемки допускаются как исключение, при пересечении высоких барханных гряд.

12.4 Насыпи проектируются преимущественно с использованием грунтов из узких и глубоких резервов, глубина которых не ограничивается и определяется способом производства работ. Крутизну откосов насыпей следует назначать 1:2.

12.5 Выемки в неподвижных и малоподвижных песках, на слабозаносимых участках и при обеспечении полного впитывания атмосферных осадков в грунт во всякое время года следует проектировать по типу рисунка 10.3.

В малоподвижных и подвижных песках, на средне- и сильнозаносимых участках, а также в районах, где возможны снежные заносы или не обеспечивается полное впитывание атмосферных вод во всякое время года, выемки следует проектировать по типу рисунка 10.4. Такая конструкция рекомендуется также при необходимости использования выемки в качестве карьера. Крутизна откосов выемок назначается 1:1,75 - 1:2 в зависимости от угла естественного откоса песков.

12.6 Укрепление земляного полотна (откосов, обочин основной площадки и полос шириной 3 м вдоль бровок выемок и подошв насыпей) и подвижных песков на подлежащей закреплению полосе, в том числе на участках нарушенного в период строительства естественного покрова, следует производить в соответствии с рекомендациями раздела 18.

При этом в зависимости от местных условий мероприятия по закреплению песков могут осуществляться поэтапно:

в первую очередь - временное закрепление механической защитой полосы шириной до 50 м;

во вторую - закрепление песков посадкой местных сортов древесно-кустарниково-травяной растительности (фитомелиорация). Выполнение этих работ целесообразно после уточнения направления и объемов пескопереноса, в период эксплуатации.

12.7 Возведение земляного полотна следует предусматривать, как правило, в зимне-весенний период.

13 ЗЕМЛЯНОЕ ПОЛОТНО В РАЙОНАХ ИСКУССТВЕННОГО ОРОШЕНИЯ

13.1 На орошаемых территориях земляное полотно следует проектировать с учетом неблагоприятного водного режима, возникающего вследствие:

общего повышения уровня грунтовых вод при поливе и промывке грунтов;

местного повышения уровня грунтовых вод при размещении дороги рядом с сооружениями оросительной и водосборно-сбросной сетей;

затопления водоотводных и нагорных канав и кюветов промывными и поливными водами.

Кроме того, необходимо учитывать, что в процессе эксплуатации открытая коллекторно-дренажная сеть углубляется.

На территориях, подлежащих освоению и орошению в период эксплуатации дороги, при ее проектировании расчетный горизонт грунтовых вод необходимо принимать по перспективным данным органов водного хозяйства с учетом изменения естественного уровня грунтовых вод, связанного с орошением, промывками и реконструкцией дренажной сети.

13.2 Земляное полотно дорог в зоне орошения следует проектировать с учетом рельефа местности, конструкции сооружений ирригационной сети и расхода в них воды, технологических подъездов к полям, условий эксплуатации дороги, каналов и сооружений дренажной сети.

Рекомендуется размещать земляное полотно с верховой стороны от оросительных каналов и с низовой стороны от дренажно-коллекторной сети.

13.3 При размещении насыпи вдоль оросительных каналов минимально допустимое расстояние от них до подошвы насыпи определяется с учетом расчетного уровня фильтрационных грунтовых вод и требуемого возвышения бровки насыпи над этим уровнем.

Проектировать земляное полотно следует с учетом минимального использования площади орошаемых земель (без резервов).

Не допускается использование нагорных и водоотводных канав и кюветов в качестве распределителей воды.

Пересечение водоотводных и нагорных канав с мелкими оросителями (арыками) следует проектировать в разных уровнях.

13.4 В районах искусственного орошения земляное полотно следует проектировать, как правило, насыпями согласно рисунку 13.1 и указаниям раздела 7, таблицы 4.3 СНиП 32-01-95. Высоту насыпи необходимо назначать индивидуально с учетом предохранения верхней ее части от увлажнения и от образования соляных корок на основной площадке.

а - насыпь, размещаемая вдоль закрытых трубчатых дрен; б - то же, вдоль каналов из железобетонных лотков; в - то же, вдоль коллекторов и каналов; 1 - защитный земляной валик; 2 - берма; 3 - трубчатая дрена; 4 - лоток; 5 - автодорога; 6 - коллектор (канал); L - расстояние от ЛЭП (СЦБ), линии связи до оси пути

Рисунок 13.1 - Поперечные профили насыпей вблизи ирригационных сооружений

13.5 Земляное полотно в пределах полей орошения следует ограждать валиками шириной поверху 3 м и высотой не менее 0,6 м, располагаемыми на расстоянии не менее 4 м от бровки водоотводной канавы, от подошвы насыпи или ЛЭП и линий связи.

В условиях затрудненности продольного стока допускается взамен водоотводных канав предусматривать сооружение насыпей с бермами шириной 3 и высотой не менее 0,6 м.

В полосе между подошвой насыпи и железобетонным лотком оросительного канала необходимо устройство водоотводной канавы.

13.6 При проектировании земляного полотна в зонах искусственного орошения на просадочных грунтах (например, лессовидных суглинках) следует оценивать надежность несущей способности оснований и при необходимости предусматривать искусственное его упрочнение (путем предварительного замачивания, уплотнения трамбованием, глубинных взрывов и т.п.).

14 ЗЕМЛЯНОЕ ПОЛОТНО ДЛЯ ЖЕЛЕЗНОДОРОЖНЫХ УЗЛОВ И СТАНЦИЙ

14.1 Для проектирования земляного полотна в пределах раздельных пунктов в дополнение к материалам, используемым при проектировании земляного полотна на перегонах, необходимы следующие исходные данные:

план в горизонталях с показанием существующих и проектируемых путей, зданий, сооружений, подземных и надземных коммуникаций, полосы отвода;

материалы инженерно-геологических изысканий по участку (разрезы, техническое заключение и т.п.), а в сложных природных условиях инженерно-геологическая карта территории и при необходимости карта гидроизогипс с показанием на плане инженерно-геологических выработок.

14.2 Распределение земляных масс и мероприятия по обеспечению устойчивости земляного полотна следует проектировать с учетом рельефа местности и последующего развития станции, в том числе размещения земляного полотна для подходов к станции водоотводных устройств и других сооружений. При этом должна учитываться этапность путевого развития.

14.3 Станционные площадки следует, как правило, проектировать в плане на прямой, а в профиле - насыпями.

В обоснованных случаях проектом необходимо предусматривать устройства для защиты от заносимости снегом и песком.

На неподвижных и малоподвижных песках станционные площадки следует, как правило, проектировать на нулевых отметках и насыпях высотой до 0,9 м, в подвижных песках - насыпями высотой более 1,0 м.

14.4 Земляное полотно новых раздельных пунктов, дополнительных путей в пределах существующих железнодорожных узлов и станций, а также новое земляное полотно, сооружаемое с использованием существующего при развитии остановочных пунктов или их реконструкции, следует проектировать в соответствии с нормами и положениями настоящего документа.

14.5 Ширину земляного полотна (поверху) на раздельных пунктах следует устанавливать в соответствии с проектируемым путевым развитием в зависимости от числа путей и ширины междупутий.

При этом расстояние от оси крайних станционных путей до бровки земляного полотна должно быть не менее половины ширины земляного полотна на прямых участках пути однопутных железнодорожных линий, приведенной в таблице 4.1 СНиП 32-01-95, а в пределах стрелочных улиц, вытяжных путей и крайних сортировочных путей - не менее 3,6 м для линий всех категорий.

14.6 На сортировочных участках станций (при наличии горок и вытяжных путей специального профиля) балластный слой путей надвига и вытяжных путей должен быть уширен на ширину не менее 1 м от конца шпал с каждой стороны на протяжении от места расцепки вагонов до горба горки или до точки отрыва вагонов от состава; ширину земляного полотна в этих местах следует увеличить с таким расчетом, чтобы ширина обочины была не менее 0,5 м.

Такое же уширение балластного слоя, а в соответствии с этим и земляного полотна следует проектировать у крайних путей приемоотправочных парков, специализируемых для досмотра подвижного состава и производства безотцепочного ремонта вагонов в поездах.

14.7 На станциях, разъездах и обгонных пунктах в пределах кривых участков главного пути, имеющего возвышение наружного рельса, при расположении этого пути крайним, ширину земляного полотна с наружной стороны кривой следует увеличивать на величину, указанную в таблице 4.2 СНиП 32-01-95, а на двух- и многопутных участках, кроме того, на величину уширений междупутий в кривых как между главными, так и станционными путями.

14.8 Поперечное очертание верха земляного полотна станционных площадок в зависимости от числа путей и вида грунта земляного полотна следует проектировать одно- и двускатным. При значительной ширине площадки допускается применение пилообразного поперечного профиля с сооружением в междупутьях с пониженными отметками закрытых продольных водоотводов (лотков и дренажей) с уклоном не менее 0,002, а при необходимости с устройством поперечных выпусков из них для отвода воды за пределы земляного полотна.

На промежуточных станциях всех типов, а также на обгонных пунктах и разъездах поперечного типа очертания верха следует проектировать, как правило, с двускатными уклонами, направленными в разные стороны: на однопутных линиях - от оси междупутья существующего главного и предполагаемого второго главного путей, на двухпутных - от оси междупутья между главными путями.

На разъездах с продольным расположением приемоотправочных путей поверхность земляного полотна следует планировать с двускатными уклонами, направленными вне пределов пассажирской платформы в обе стороны от оси междупутья главного и смежного путей, а в пределах платформы - от борта платформы.

Площадки для размещения локомотивного и вагонного хозяйства и грузового двора проектируются одно- и двускатными; уклон ската необходимо проектировать по направлению от здания во внешнюю сторону; при значительных по ширине площадках целесообразно применять пилообразный профиль.

Поперечные профили земляного полотна отдельных приемоотправочных и сортировочных парков проектируются одно-, двускатными или пилообразными (в зависимости от числа путей).

При проектировании новых путей рядом с существующими (в том числе при открытии новых раздельных пунктов на существующих линиях) верх земляного полотна новых путей следует проектировать с поперечным уклоном от бровки существующих путей.

14.9 Поверхности земляного полотна следует придавать поперечный уклон в сторону водоотводов в зависимости от вида грунта земляного полотна, климатических зон и числа путей, располагаемых в пределах каждого ската, в соответствии с таблицей 14.1.

Таблица 14.1

Грунт земляного полотна

Климатические зоны

Максимальное число путей на одном скате

Уклон верха земляного полотна

Дренирующий

Засушливые

10 и более

0

Все остальные

10

0 - 0,01

Недренирующий

Засушливые

10 - 8

0,01

Все остальные

8 - 6

0,02

Примечания

1. К засушливым отнесены зоны при количестве осадков до 300 мм.

2. В незасушливых районах для недренирующих грунтов земляного полотна в обоснованных технико-экономическими расчетами случаях (с учетом инженерно-геологических условий) допускается уменьшение поперечного уклона до 0,01 и увеличение его до 0,03.

14.10 Отдельные станционные пути, парки и другие устройства станций допускается проектировать в разных уровнях. При этом размеры междупутий и расстояний между парками следует назначать с учетом размещения в их пределах откосов земляного полотна, водоотводных устройств, а в случае необходимости - устройств и оборудования для защиты путей от заносимости снегом и песком и других устройств.

14.11 Водоотводные устройства в пределах раздельных пунктов следует проектировать согласно требованиям раздела 17.

15 ОСОБЕННОСТИ ПРОЕКТИРОВАНИЯ ЗЕМЛЯНОГО ПОЛОТНА, ВОЗВОДИМОГО В ЗИМНЕЕ ВРЕМЯ

15.1 Участки, на которых земляное полотно может сооружаться в зимнее время, необходимо отмечать на стадии разработки проекта и рабочего проекта и уточнять при разработке рабочей документации.

15.2 На зимний период целесообразно относить следующие работы:

- разработку выемок и карьеров в песках, гравийно-галечных и скальных грунтах, а также возведение насыпей из указанных грунтов на основаниях, прочностные и деформативные свойства которых изменяются незначительно в результате их промерзания и оттаивания;

- разработку в глинистых грунтах выемок глубиной более 3 м с перемещением грунта в насыпь, кавальер или в отвал;

- устройство насыпей на болотах;

- устройство штолен и глубоких дренажных прорезей;

- укрепление откосов насыпей регуляционных сооружений и русел рек каменной наброской, бетонными массивами, плитами и т.п.

В течение зимнего времени не следует предусматривать:

- разработку выемок в нескальных грунтах глубиной до 3 м;

- возведение насыпей из резервов;

- планировку земляного полотна из глинистых грунтов и пылеватых песков;

- устройство неглубоких канав и русел.

15.3 Для насыпей, возводимых в зимнее время, допускается применять следующие грунты из выемок или карьеров:

- разрыхленные скальные грунты (независимо от степени выветривания), крупнообломочные, крупнообломочные с песчаным заполнителем, пески крупные и средние, а также сыпучемерзлые мелкие и пылеватые пески;

- допускаются также глинистые грунты, имеющие влажность не свыше границы раскатывания.

Глинистые полутвердые грунты (0 < IL £ 0,25) разрешается применять при отсутствии грунтов с меньшей влажностью.

Верхний слой насыпи толщиной не менее 1 м следует отсыпать только талым и сыпучемерзлым дренирующим или талым глинистым грунтом, или крупнообломочным с песчаным заполнителем.

Для насыпей за задними гранями устоев и для конусов у мостов следует применять только талый или сыпучемерзлый дренирующий грунт.

Насыпи на пойме рек в пределах затопления допускается возводить в зимнее время из скальных слабовыветривающихся и выветривающихся грунтов, крупнообломочных и крупнообломочных с песчаным заполнителем, а также из песчаных, включая талые и сыпучемерзлые мелкие и пылеватые пески.

15.4 Высота насыпей, возводимых в зимнее время из глинистых грунтов, не должна превышать значений, приведенных в таблице 15.1.

Таблица 15.1

Климат района

Среднегодовая температура воздуха, °С

Наибольшая высота насыпи из глинистых грунтов, м

Суровый

Ниже -2

2,5

Холодный

От -2 до +1

3,5

Умеренный

От +1 до +5

4,5

Теплый

Более +5

Без ограничений

Примечание - Температуру воздуха среднюю за год следует принимать по данным СНиП 2.01.01-82 «Строительная климатология и геофизика» или по данным ближайшей метеостанции.

15.5 При необходимости возведения в зимнее время насыпей или слоев мощностью более значений, указанных в таблице 15.1, следует предусматривать использование дренирующих грунтов, а при их отсутствии необходимо:

в качестве объектов для производства работ в зимнее время назначать насыпи на прочном основании (см. п. 4.23);

предусматривать соответствующий запас на осадку грунтов (по высоте насыпи или ширине поверху);

предусматривать уположение откосов или устройство берм, назначаемых по расчету;

проектировать защитные слои под основной площадкой.

Проектировать верхнюю часть насыпи на высоту 1 м из талого грунта с отсыпкой этого слоя в теплое время года и уплотнением до установленных норм (см. п. 4.12), а при необходимости укладки пути в зимнее время - верхнюю часть насыпи толщиной не менее 1 м возводить из дренирующих грунтов.

15.6 Для насыпей, возводимых в зимнее время, в проекте производства работ запас на осадку необходимо предусматривать в размере:

5 - 6 % - при глинистых грунтах;

4 - 5 % - при песках, крупнообломочных грунтах с песчаным и глинистым заполнителем и легковыветривающихся.

Кроме того, дополнительно следует учитывать осадку оснований, вызываемую пучением поверхностного слоя грунтов основания.

15.7 Для насыпей, возводимых в зимнее время, рекомендуется предусматривать карьеры (выемки), толщина мерзлого слоя в которых не превышает 1/3 общей высоты забоя, с тем чтобы содержание твердомерзлого грунта в насыпи не превышало 30 % общего объема грунта, укладываемого в насыпь. Твердомерзлый грунт в насыпи должен размещаться равномерно без концентрации мерзлых комьев в откосной части.

Разрыхление мерзлого грунта должно обеспечивать получение комьев с размерами не более 0,2 м.

15.8 В необходимых случаях следует предусматривать специальные мероприятия по снижению глубины промерзания в карьерах и выемках (предварительное рыхление поверхностного слоя грунта до его промерзания, покрытие поверхности теплоизоляционными материалами и др.).

15.9 Насыпи на затопляемых поймах должны быть отсыпаны к началу половодья до отметки, не менее чем на 0,5 м превышающей уровень ожидаемого горизонта высоких вод с учетом высоты наката волны на откос. При этом должны быть также выполнены предусмотренные проектом укрепления откосов.

16 РЕЗЕРВЫ, КАВАЛЬЕРЫ, БАНКЕТЫ

Резервы

16.1 Резервы, размещаемые вдоль насыпей, следует проектировать в случаях непригодности или нехватки для отсыпки насыпей грунта из смежных выемок и технико-экономической нецелесообразности использования выемок-карьеров или транспортирования грунта из других карьеров.

16.2 Не допускается размещать резервы в пределах раздельных пунктов с путевым развитием, населенных пунктов, в местах расположения путевых зданий и переездов, на участках развития карста, а также, как правило, на поймах рек. Смежные участки резервов в пределах отдельных зданий и переездов следует соединять канавами, лотками или трубами.

16.3 Расположение резервов относительно проектируемой насыпи следует назначать согласно таблице 16.1 с учетом поперечного уклона на местности. Расстояние между внешней бровкой резерва и границей полосы отвода должно быть не менее 1 м.

16.4 Между подошвой откоса насыпи и бровкой резерва необходимо оставлять берму шириной не менее 3 м. У насыпей высотой до 2 м на сухом основании ширину берм разрешается уменьшать до 1 м.

Со стороны будущего второго пути железных дорог I - III категорий ширину берм следует назначать равной 8,0 м.

Таблица 16.1

Поперечный уклон местности

Расположение резервов

оптимальное

допустимое

Положе 1:10

С двух сторон

С одной стороны

От 1:10 до 1:5

С нагорной стороны

С двух сторон

Круче 1:5

Резервы не проектировать

С нагорной стороны по отдельным решениям с расчетом общей устойчивости косогора и насыпи после устройства резерва

Бермам с нагорной стороны необходимо придавать поперечный уклон от 0,02 до 0,04 в сторону резерва за счет срезки или присыпки грунта (см. рисунок 7.3).

16.5 Резервы необходимо, как правило, включать в общую систему водоотводных устройств, ограждающих земляное полотно от воздействия поверхностной воды, и предусматривать отдельные выпуски воды из резервов в пониженные места прилегающей местности согласно требованиям раздела 17.

16.6 Замкнутые резервы без водоотводов допускается применять на участках с дренирующими грунтами в районах с засушливым климатом (исключая районы просадочных грунтов) и в районах расположения подвижных песков. В подвижных песках резервы следует проектировать преимущественно узкими и глубокими, их рекомендуется размещать с подветренной стороны.

Форма и расположение резервов не должны ухудшать условия пескопереноса.

16.7 Дну резервов, входящих в общую систему водоотводных устройств, необходимо придавать поперечный и продольный уклоны. Поперечный уклон должен быть не менее 0,02, а продольный - не менее 0,002. Дно резерва при его ширине до 10 м следует проектировать односкатным с поперечным уклоном от земляного полотна, а при ширине более 10 м - двускатным, с уклоном от краев резерва к его середине.

Наибольший продольный уклон резерва с низовой стороны насыпи не должен превышать 0,008, а для легкоразмываемых грунтов - 0,005. Уклон дна резервов с нагорной стороны насыпей следует назначать по расчету в зависимости от вида грунта, количества и скорости течения воды.

В случаях когда по условиям рельефа местности продольный уклон дна резерва получается круче допускаемого по размываемости грунта, резервы следует проектировать отдельными участками с наибольшим допустимым уклоном дна. Между соседними участками резерва необходимо оставлять полосы ненарушенного грунта шириной не менее 3 м и предусматривать в них устройство укрепленных канав с перепадами высотой до 0,5 м.

16.8 Размеры резервов следует определять исходя из объема потребного грунта и уклона, необходимого для обеспечения стока, с учетом параметров применяемых для сооружения насыпей машин и механизмов и условий охраны окружающей среды.

При невозможности или нецелесообразности увеличения глубины резерва, используемого в качестве водоотвода, для пропуска воды следует проектировать водоотводную канаву с размещением ее в пониженной части резерва.

Откосы резервов следует проектировать не круче 1:1,5. Переходы от одной ширины резерва к другой следует назначать за счет отклонения полевого откоса под углом около 15°.

16.9 На поймах рек закладка резервов, как правило, не допускается. В исключительных случаях устройство резервов производится по индивидуальному проекту, причем:

расположение резервов необходимо увязывать с регуляционными сооружениями;

расстояние между нижним концом резерва и урезом меженных вод должно быть не менее 10 м;

отметку дна резервов следует назначать выше уровня меженных вод;

для выпуска воды из резерва необходимо предусматривать устройство канавы;

бермы между подошвой насыпи и бровкой резерва следует назначать не менее 4 м.

Со стороны насыпи в резервах следует оставлять выступы в виде траверс и укреплять откос, если при паводке возможно течение воды вдоль резерва.

16.10 Сосредоточенные резервы - грунтовые карьеры, располагаемые в удалении от насыпи, следует проектировать с соблюдением требований по максимально возможному сохранению окружающей среды, в соответствии с указаниями раздела 22. Необходимо предусматривать планировку откосов после выработки карьера с учетом последующей посадки деревьев, использования карьера под водоем или для других народнохозяйственных целей.

Размеры и конфигурация карьеров назначаются с учетом потребности в грунте, его состояния и в соответствии с требованиями техники безопасности, а также с учетом их последующего использования для хозяйственных целей.

Кавальеры

16.11 Кавальеры необходимо предусматривать в случаях непригодности или технико-экономической нецелесообразности использования грунта из выемки для насыпей, а также при отсутствии в непосредственной близости от выемки пониженных мест рельефа, которые могут быть использованы дня размещения непригодного или излишнего грунта. При проектировании кавальеров следует учитывать также необходимость соблюдения требований по максимально возможному сохранению окружающей среды в соответствии с указаниями раздела 22, предусматривать срезку растительного слоя с площади, занимаемой кавальером.

Размещение грунта в кавальерах не допускается:

на территории станционных площадок, населенных пунктов и промышленных предприятий;

в местах, где кавальеры могут способствовать снежным или песчаным заносам пути, в том числе вдоль мелких выемок;

с нагорной стороны полувыемок;

в тех случаях, когда нагрузка от кавальера может вызвать нарушение общей устойчивости откосов выемки.

16.12 Кавальеры следует проектировать в соответствии с рисунком 16.1 и размещать в зависимости от поперечного уклона местности (таблица 16.2), с учетом условий заносимости снегом или песком, а также свойств и состояния грунта прорезаемой выемки и подлежащего укладке в кавальер.

Таблица 16.2

Поперечный уклон

Расположение кавальеров

оптимальное

допустимое

Положе 1:5

С двух сторон

С одной стороны

От 1:5 до 1:3

С низовой стороны

С верховой стороны с проверкой расчетом общей устойчивости сооружения

Круче 1:3

Необходимо устанавливать с учетом местных условий и с проверкой расчетом общей устойчивости сооружения

1 - нагорная канава; 2 - кавальер; 3 - забанкетная канава; 4 - банкет; 5 - откос выемки

Рисунок 16.1 - Схема размещения банкетов, кавальеров, забанкетных и нагорных канав

16.13 Размеры кавальеров (их высота и ширина понизу) определяют в зависимости от объема отсыпаемого в них грунта, параметров применяемых машин и механизмов, условий охраны окружающей среды и физико-механических характеристик отсыпаемого грунта. Откосы кавальеров следует проектировать с заложением не круче 1:1,5; верху кавальеров придают поперечный уклон не менее 0,02 в полевую сторону.

Кавальеры с низовой стороны выемки должны иметь разрывы шириной не менее 3 м через каждые 50 м и в пониженных местах. Площадке между бровкой выемки и откосом кавальера придается уклон в сторону разрывов.

16.14 Расстояние от подошвы кавальера до бровки откоса проектируемой выемки, а на участках устройства в ближайшей перспективе второго пути - до бровки откоса выемки для будущего пути должно быть не менее 5 м. На участках с глинистыми переувлажненными грунтами, в том числе при наличии верховодки, это расстояние должно быть не менее (5 + Н) ³ 10 м, где Н - высота откоса проектируемой выемки.

16.15 В пределах полувыемок, а также раздельных пунктов, размещенных на крутых косогорах, лишний или непригодный для насыпей грунт следует размещать с низовой стороны полотна, причем верх отсыпки необходимо проектировать ниже бровки земляного полотна не менее чем на 0,5 м, с поперечным уклоном 0,02 - 0,04 от полотна с проверкой устойчивости пути.

16.16 В районах подвижных песков на сильно заносимых участках кавальеры не устраивают; лишний грунт из выемок следует размещать слоем толщиной до 1 м за пределами откоса с подветренной стороны и немедленно укреплять его поверхность. В пределах малозаносимых участков кавальеры следует проектировать согласно требованиям пп. 16.11 - 16.15 настоящего раздела, располагая их с подветренной стороны.

16.17 Если в разделе проекта охраны окружающей среды (ООС) устройство кавальеров не предусмотрено, как защитное мероприятие необходимо производить отсыпку грунтов слоями до 1 м и планировку каждого слоя бульдозером. После завершения отсыпки поверхность кавальеров следует укреплять посевом многолетних трав.

Банкеты

16.18 Банкеты и забанкетные канавы необходимы для отвода поверхностной воды с площади между нагорным откосом выемки и подошвой кавальера и защиты откосов выемок от размыва.

Банкеты и забанкетные канавы следует проектировать треугольной формы в соответствии с рисунком 16.1. Они образуются путем планирования поверхности полосы между бровкой откоса выемки и подошвой кавальера с продольным уклоном не менее 0,005 и поперечным уклоном в сторону кавальера 0,02 - 0,04. При наличии местных понижений необходимо предусматривать организованный выпуск воды из забанкетной канавы по откосу в кювет.

В пределах пологих косогоров, а также у неглубоких выемок, когда устройство банкетов и забанкетных канав нецелесообразно, проектом необходимо предусматривать планировку поверхности косогора на полосе шириной около 3 м, прилегающей к бровке выемки, с приданием поверхности поперечного уклона к выемке не менее 0,02 и укрепление ее посевом трав.

16.19 Банкеты с забанкетными канавами не следует проектировать на косогорах крутизной 1:5 и более, а также у выемок в лессовых и скальных грунтах.

Водоотводные устройства в этих случаях необходимо проектировать индивидуально с учетом местных условий.

17 УСТРОЙСТВА ДЛЯ ОТВОДА ПОВЕРХНОСТНЫХ И ГРУНТОВЫХ ВОД

Общие положения

17.1 В пределах перегонов и раздельных пунктов следует проектировать устройства для отвода от земляного полотна поверхностных вод и (в необходимых случаях) для понижения уровня грунтовых вод. При соответствующем обосновании водоотводы могут не устраиваться на участках распространения песков в районах с засушливым климатом.

17.2 Отвод поверхностных вод следует предусматривать:

от насыпей - канавами (продольными и поперечными водоотводными, осушительными) или резервами;

от откосов выемок и полувыемок - канавами (нагорными и забанкетными);

от основной площадки земляного полотна в выемках и полувыемках и с откосов выемок - кюветами, лотками, кювет-траншеями и траншеями, кюветами и лотками в комбинации с дренажами мелкого заложения.

Поверхностные воды необходимо отводить к ближайшему водопропускному сооружению или в сторону от земляного полотна в пониженные места рельефа.

С нагорной стороны полотна должен быть предусмотрен сплошной продольный водоотвод от каждого пересекаемого дорогой водораздела до водопропускного сооружения или до места, от которого возможен поперечный отвод воды в сторону от земляного полотна.

Сопряжения водоотвода с руслом водотоков следует проектировать с выполнением следующих требований: в месте сопряжения канаву направлять по течению водотока (угол между осями у канавы и водотока назначать не более 45°); изменения направления канав проектировать плавными по кривой радиусом не менее 10 м.

17.3 Поперечное сечение водоотводных устройств следует назначать по расчетным расходам воды, устанавливаемым с вероятностью превышения по нормам, указанным в таблице 17.1.

Бровка водоотводов должна возвышаться над уровнем воды, соответствующим расходу указанной вероятности превышения, не менее чем на 0,2 м.

Таблица 17.1

Категория линий

Вероятность превышения расчетных расходов, %, для

кюветов, нагорных канав и водосбросов

продольных (у насыпей) и поперечных водоотводных канав

Скоростные, особогрузонапряженные

I - II

1

4

III

3

7

IV

5

10

17.4 Наибольший продольный уклон водоотводных устройств следует назначать по расчету в зависимости от расхода воды, вида грунта, типа укрепления откосов и дна канавы и допускаемых скоростей течения по размыву. Если установленный по расчету уклон водоотвода меньше естественного уклона местности, то необходимо предусматривать устройство перепадов, а при больших расходах - быстротоков, и водобойных колодцев. Все водоотводные устройства на участках со сложными инженерно-геологическими условиями проектируются индивидуально.

17.5 На невысоких водоразделах двух смежных бассейнов, на полосе длиной не менее 5 м, устройство резервов и канав не допускается, если выпуск воды будет осуществлен в разные водопропускные сооружения. В необходимых случаях на таких водоразделах следует предусматривать устройство разделительной дамбы шириной поверху не менее 3 м с заложением откосов не круче 1:2, с возвышением ее верха над расчетным уровнем воды не менее 0,25 м.

В отдельных случаях при технико-экономическом обосновании допускается пропуск расходов воды с двух бассейнов и более в одно искусственное сооружение.

17.6 Водоотводные устройства размещаются в полосе отвода так, чтобы расстояние от наружной бровки откоса водоотводного устройства до границы полосы отвода было не менее 1 м.

17.7 Водоотводные устройства в местах выхода их на склоны водотоков, оврагов и низин необходимо отводить в сторону от земляного полотна, предусматривать их укрепление или расширение русел с соответствующим уположением откосов, в необходимых случаях применяя индивидуальные решения.

17.8 При явно выраженном поперечном по отношению к земляному полотну уклоне местности (0,04 и круче) водоотводные сооружения следует проектировать только с верховой стороны.

Водоотводные канавы

17.9 Продольные водоотводные канавы предусматриваются с нагорной стороны у насыпей (любой высоты) при отсутствии резервов. На местности с поперечным уклоном менее 0,04 при высоте насыпей менее 2,0 м и на участках с переменной сторонностью поперечного уклона, а также на болотах водоотводные канавы следует проектировать с обеих сторон земляного полотна.

17.10 Глубина продольных водоотводных канав и ширина их по дну определяются расчетом, но должны быть не менее 0,6 м, а на болотах соответственно не менее 0,8 м. Заложение откосов канав принимается не круче 1:1,5.

При пересечении местных понижений допускается уменьшать глубину канав до 0,2 м с устройством со стороны насыпи бермы шириной поверху не менее 3 м и возвышением ее бровки над расчетным уровнем воды не менее 0,25 м и поперечным уклоном верха бермы от насыпи равным 0,02 - 0,04.

17.11 Продольный уклон водоотводных канав должен быть не менее 0,003.

На болотах, речных поймах и в других случаях малого естественного уклона местности продольный уклон водоотводных канав допускается уменьшать до 0,002, а в исключительных случаях - до 0,001, если расчетом установлено, что при заполнении канав на полный профиль обеспечивается скорость течения, исключающая заиливание.

17.12 Расстояние между подошвой откосов насыпей и внутренней бровкой продольных водоотводных канав следует принимать не менее 3 м, а со стороны размещения будущего второго пути - не менее 8 м.

Поверхности между насыпью и канавой придается поперечный уклон в сторону канавы от 0,02 до 0,04.

17.13 Поперечные канавы следует проектировать в равнинной местности в случаях, когда затруднен сток воды по продольным водоотводным канавам или требуется отвод воды из местных понижений у земляного полотна.

Нагорные канавы

17.14 Нагорные канавы у выемок устраиваются при поперечном уклоне местности круче 0,04 лишь с верховой стороны, а при меньшем уклоне - с двух сторон.

17.15 Ширина дна нагорных канав и глубина их должны определяться расчетом и быть не менее 0,6 м. Заложение откосов этих канав должно быть не круче 1:1,5. Требования, предъявляемые к продольному уклону нагорных канав, аналогичны требованиям, предъявляемым к водоотводным канавам (см. п. 17.10).

17.16 На местности с большой крутизной склона вдоль пути, где при проектировании приходится предусматривать перепады, быстротоки и водобойные колодцы (см. п. 17.4) в виде исключения допускается также ступенчатое размещение отдельных участков нагорной канавы на косогоре. При этом начало участка канавы, располагаемого ниже, следует размещать с некоторым перекрытием выхода на косогор вышерасполагаемого участка канавы. Размер перекрытия и тип укрепления склона в местах выхода отдельных участков канавы необходимо назначать с учетом местных условий, расходов и скорости движения воды.

17.17 Минимальное расстояние между внутренней бровкой нагорной канавы и бровкой откоса выемки должно быть не менее 5 м, а со стороны размещения будущего второго пути - не менее 9 м. Расстояние между подошвой полевого откоса кавальера и внутренней бровкой откоса нагорной канавы принимается в пределах от 1 до 5 м в зависимости от условий снегозаносимости и фильтрационных свойств грунта.

17.18 При проектировании скальных выемок и полувыемок, прорезающих косогоры круче 1:3, нагорные канавы не устраиваются, но кюветы или кювет-траншеи проверяются на пропуск поступающего со склона расчетного расхода воды.

На более пологих склонах допускается устройство нагорных канав с откосами с нагорной стороны круче 1:1,5.

Кюветы и лотки

17.19 Кюветы следует размещать с обеих сторон основной площадки земляного полотна в выемках. Допускается проектировать выемки без кюветов:

- в дренирующих грунтах, а также в песках мелких, в районах с засушливым климатом, где происходит полное впитывание и испарение атмосферных осадков;

- в слабовыветривающихся скальных грунтах, где для сбора и отвода поверхностной воды, поступающей в выемку с откосов и основной площадки, а также для ограждения балластной призмы предусмотрена выкладка из камня или бетонных бордюрных блоков вдоль основной площадки полотна железных дорог (см. рисунок 10.9);

- в скальных грунтах, при проектировании выемок с траншеями (см. рисунок 10.10).

17.20 Кюветы, как правило, следует проектировать трапецеидальной формы с шириной по дну не менее 0,40 м, глубиной - 0,6 м. Крутизну откосов кюветов следует назначать с полевой стороны, равной крутизне откосов выемки при отсутствии закюветных полок и 1:1,5 при их наличии, а со стороны пути - 1:1,5.

17.21 Продольный уклон кюветов следует принимать равным уклону профильной бровки. В выемках, располагающихся на горизонтальных площадках и на участках с уклоном менее 0,002, уклон кюветов должен быть не менее 0,002. В таких случаях в точках водораздела глубину кюветов разрешается уменьшать до 0,2 м при сохранении ширины кюветов по дну и ширины выемки на уровне бровки земляного полотна.

Кюветам предтоннельных выемок следует придавать уклон не менее 0,002 в сторону от тоннеля.

Указанные требования к продольному уклону должны выдерживаться и при проектировании водоотводов в виде кювет-траншей и траншей.

17.22 Лотки в выемках следует применять в случаях:

- когда увеличение сечения кюветов приводит к значительному увеличению объема земляных работ по устройству выемки;

- наличия слабых и водонасыщенных грунтов, в которых устойчивость откосов кюветов не может быть обеспечена;

- скальных грунтов в целях снижения объема земляных работ, при размещении трассы в пределах крутого косогора;

- стесненных условий, когда невозможно устройство углубленных кюветов или нормального их сечения.

17.23 Использование кюветов и лотков для пропуска воды из нагорных и забанкетных канав, а также из водоотводных канав при объединении искусственных водопропускных сооружений допускается в исключительных случаях при соответствующем обосновании.

При этом проект выемки необходимо разрабатывать с учетом местных условий, предусматривая:

- углубление и уширение кюветов до сечения, достаточного для пропуска суммарного расчетного расхода воды вероятностью превышения, устанавливаемой по таблице 17.1;

- устройство берм шириной не менее 3,0 м между кюветом и основной площадкой;

- укрепление дна и откосов кюветов в соответствии с расчетными глубиной и скоростью течения воды.

Водоотводные устройства в пределах раздельных пунктов

17.24 Водоотводные устройства на раздельных пунктах должны обеспечивать полный и по возможности быстрый отвод воды с поверхности земляного полотна и балластной призмы, а также отвод производственных вод от депо, мастерских, гидравлических кранов, снеготаялок и других производственных зданий и сооружений. При этом загрязненная вода от производственных зданий должна быть пропущена через очистные сооружения.

17.25 Поперечный поверхностный водоотвод обеспечивается посредством придания верху земляного полотна поперечного уклона в сторону продольного водоотвода.

17.26 Для продольного водоотвода следует проектировать канавы, лотки или дренажи, размещаемые на междупутьях и по краям станционной площадки. В местах пешеходных переходов и при пересечении территорий, на которых предусмотрено хождение технического персонала, необходимо проектировать закрытые канавы, лотки и водопропускные трубы.

17.27 Для отвода воды из продольных канав и лотков в водоемы или пониженные места за пределы станционных площадок необходимо предусматривать водостоки (коллекторы) с очистными сооружениями, проектируя их, по возможности, короткими с малым числом пересечений железнодорожных путей.

17.28 Минимальные размеры сечений и другие параметры водоотводных устройств и водостоков в пределах раздельных пунктов необходимо принимать согласно положениям 17.1 - 17.24.

Устройства для отвода грунтовых вод

17.29 Грунтовые воды, которые могут нарушить прочность и устойчивость земляного полотна, а также стабильность основной площадки, должны быть отведены от него дренажными устройствами.

Типы устройств для понижения, перехвата и отвода грунтовых вод, их размеры и расположение необходимо проектировать на основе данных инженерно-геологического и гидрогеологического обследования, гидравлического расчета и технико-экономического сравнения возможных вариантов в зависимости от расхода, характера и глубины залегания грунтовых вод, напластования и вида грунтов, рельефа местности, расположения и размеров земляного полотна.

17.30 Понижение горизонта грунтовых вод (перехват) может осуществляться углубленными канавами, лотками, дренажами, в том числе мелкого заложения.

17.31 Дренажи мелкого заложения (глубиной до 2,0 - 2,5 м) используются для улучшения условий дренирования балластной призмы и защитного слоя на перегонах и станциях, а также сбора и отвода воды из периодически действующих водоносных горизонтов типа верховодки в откосах выемок или их перехвата на глубине на косогорах.

17.32 В конструкциях дренажей используются керамические, асбестоцементные, бетонные, полимерные трубы и трубофильтры [32].

Для предотвращения заиления трубы возможно изготовление на заводах защитно-фильтрующей оболочки из синтетического нетканого материала. При ее отсутствии трубы обертывают защитно-фильтрующим материалом на стройплощадке.

При отсутствии защитно-фильтрующей оболочки вокруг труб устраивается дренажный фильтр из песков и мелкого щебня. Крупность дренажной засыпки и ее конструкция определяются расчетом [32].

17.33 Для засыпки фильтра с трубой и дренажной траншеи могут быть использованы щебень и песчано-гравийные балластные материалы (по ГОСТ 7394), крупные и средней крупности пески, а также чистые мелкие пески с содержанием частиц размером менее 0,1 мм не более 10 % и имеющие коэффициент фильтрации не менее 1,0 м/сут.

17.34 Уклон дренажа должен быть не менее 0,003. При использовании полимерных труб малого диаметра рекомендуется увеличение уклона до 0,005. Выходы дренажных сооружений подлежат защите от промерзания.

17.35 Конструкция дренажных сооружений должна обеспечивать возможность прочистки их, для чего следует предусматривать смотровые колодцы (из железобетонных или полимерных колец).

При сооружении дренажей мелкого заложения с использованием полимерных дренажных труб необходимо устраивать промывочные колодцы из полимерных колец через 50 - 100 м по длине трубопровода и в местах перелома профиля. В местах поворота и пересечения трубчатых дренажей следует предусматривать смотровые колодцы из железобетонных колец диаметром 1 м.

17.36 Лотки глубиной 1,0 - 2,0 м допускается проектировать многоярусной конструкции из унифицированных удлиненных элементов высотой 0,5 и 0,75 м.

При сооружении лотков в пределах участков с легкоразмываемыми, а также глинистыми грунтами необходимо предусматривать устройство за их стенками песчаного фильтра.

Поглощающие колодцы и испарительные бассейны

17.37 В равнинной местности, где отсутствует возможность для отвода воды из замкнутых понижений рельефа, пересекаемых дорогой, следует прорабатывать варианты устройства поглощающих колодцев или испарительных бассейнов.

17.38 Поглощающие колодцы следует проектировать в местах, где на небольшой глубине от поверхности земли залегают хорошо дренирующие грунты некарстующихся пород, мощность слоя которых достаточна для поглощения объема расчетного стока поверхностной воды.

17.39 Испарительные бассейны допускается предусматривать при проектировании дорог в засушливых районах, при грунтах, просадка которых (при замачивании) от собственного веса отсутствует или не превышает 5 см (грунты I типа по просадочности).

В качестве испарительного бассейна могут быть использованы местные понижения, впадины, выработанные карьеры и замкнутые резервы глубиной не более 0,4 м. На участках, где под испарительные бассейны будет использован резерв, проектировать насыпи без берм не допускается.

Если нельзя использовать резерв и отсутствуют местные понижения, впадины, выработанные карьеры, разрешается проектировать испарительные бассейны, размещаемые с двух сторон земляного полотна на расстоянии не менее 10 м от подошвы откоса насыпи.

Объем каждого бассейна можно назначать до 300 м3, а глубину - не более 1 м.

18 ЗАЩИТА И УКРЕПЛЕНИЕ ЗЕМЛЯНОГО ПОЛОТНА И ВОДООТВОДНЫХ СООРУЖЕНИЙ

Общие положения

18.1 Защиту и укрепление земляного полотна и водоотводных сооружений необходимо предусматривать с целью предохранения конструкций от разрушающего воздействия природных факторов.

18.2 Тип укрепления и конструкции следует назначать с учетом вида и ответственности сооружения, его размеров, а также грунтовых, климатических, топографических и гидрологических условий, наличия местных материалов для укрепления, заданных сроков строительства и результатов технико-экономических расчетов.

18.3 Применяемые средства защиты и укрепления земляного полотна и водоотводных сооружений должны обладать необходимой прочностью и надежностью, устойчивостью против разрушающего воздействия природных факторов, а также долговечностью и обеспечивать возможность механизации производства работ в процессе их выполнения и минимальные затраты в условиях эксплуатации. Как правило, эти конструкции и мероприятия проектируются индивидуально.

18.4 Мероприятия по защите от размыва подтопляемых откосов представлены в разделе 9 настоящего документа.

Защитные конструкции и мероприятия

18.5 Защитные конструкции и мероприятия следует предусматривать при проектировании земляного полотна на участках проявления или возможного развития оползней, обвалов, осыпей, селевых потоков, снежных лавин, а также в районах воздействия сейсмики, водотоков и водоемов, наличия карстующихся пород, подрабатываемых территорий и т.п., в соответствии с требованиями СНиП 2.01.15-90.

18.6 В качестве вариантов противооползневых сооружений и мероприятий следует предусматривать:

регулирование поверхностного стока и защиту склонов и земляного полотна от его вредного воздействия (планировкой территории, устройством поверхностного водоотвода, предотвращением инфильтрации воды в грунт и эрозионных процессов);

регулирование подземного стока (перехватом или понижением уровня грунтовых вод);

изменение крутизны склона с целью повышения его устойчивости;

поддерживающие сооружения (контрбанкеты, контрфорсы, подпорные стены и др.);

укрепление грунтов (электрохимическое, цементацией, силикатизацией, обжигом и др.);

агролесомелиорацию;

берегоукрепительные сооружения и мероприятия (при вредном влиянии на склон деятельности морей, водохранилищ, рек и озер).

18.7 При проектировании противообвальных и противоосыпных сооружений и мероприятий в качестве вариантов следует предусматривать:

укрепительные сооружения и мероприятия (поддерживающие и подпорные стены, контрфорсы, пломбы, опояски, анкерные крепления, сваи и шпоны, инъецирование трещин);

защитные конструкции и мероприятия для выемок (одевающие или облицовочные стены, покрытия откосов и склонов различными вяжущими - аэроцемом, торкрет-бетоном, набрызг-бетоном, агролесомелиорация);

улавливающие сооружения (улавливающие, барьерные и оградительные стены, улавливающие траншеи, рвы и валы, сетчатые ограждения, надолбы);

противообвальные галереи;

мероприятия по предупреждению горных обвалов (профилактическая очистка склонов и откосов от неустойчивых в обвальном отношении элементов горных пород, обрушение крупных глыб и скальных массивов, угрожающих обвалами, уположение скальных откосов).

Методика расчетов указанных конструкций приведена в руководстве по проектированию противообвальных и защитных сооружений [8, 16].

При проектировании подпорных поддерживающих и улавливающих стен следует взамен традиционных использовать армогрунтовые конструкции с применением в качестве армирующих полотнищ геотекстиля (в частности, стеклотканей и стеклопластиков, в том числе в комбинации с неткаными синтетическими материалами).

18.8 При проектировании земляного полотна в районах распространения селевых потоков необходимо предусматривать следующие противоселевые конструкции и мероприятия:

селепропускные сооружения - в виде каналов и мостов для пропуска селевых потоков, селеспусков (применение труб для пропуска селевых потоков не допускается);

селезадерживающие сооружения, образующие селехранилища, - в виде плотин из грунта, скальных обломков, бетона, железобетона;

селенаправляющие сооружения (направляющие дамбы, шпоры, каналы);

стабилизирующие сооружения (система запруд);

мероприятия по предотвращению образования селевых потоков (агролесомелиорация, организация охранных зон, устройство поверхностного водоотвода).

18.9 Противолавинные сооружения в зависимости от их назначения подразделяют на следующие виды:

регулирующие отложения снежного покрова (снегосборные и выдувающие, кусты и др.);

удерживающие снег на склонах (снегоудерживающие щиты или так называемые мосты и решетки, сетки, стены, заборы, земляные террасы);

изменяющие направление движения лавин (лавинорезы, отбойные дамбы, направляющие стены);

тормозящие лавины (надолбы, клинья, бугры из рыхлого грунта или каменной наброски, лавиногасители, дамбы);

пропускающие лавины над или под защищаемым объектом (галереи, навесы, эстакады).

Укрепление земляного полотна и водоотводных сооружений

18.10 Укреплению подлежат:

откосы насыпей, выемок и защитного слоя при всех видах грунтов, кроме скальных слабовыветривающихся и выветривающихся и крупнообломочных;

обочины насыпей и выемок при песчаных, а в выемках, кроме того, и при переувлажненных глинистых грунтах;

в засушливых районах основная площадка и откосы земляного полотна, сооружаемого из развеваемых ветром песчаных грунтов, полосы шириной не менее 3 м вдоль бровок выемок и подошв насыпей, а также подлежащие укреплению зоны, указанные в пп. 12.2 и 12.6;

бермы, разделительные площадки на откосах насыпей и выемок, регуляционные сооружения, кавальеры, банкеты;

откосы и дно водоотводных канав и кюветов;

поверхности нарушенных при выполнении земляных работ площадей, а также в обоснованных случаях отвалы грунта.

18.11 В качестве укрепительных мероприятий, обеспечивающих защиту создаваемых конструкций земляного полотна от вредного воздействия природных факторов, следует предусматривать*:

создание дернового покрова посевом многолетних трав;

покрытие слоем щебенисто-дресвяных и глинистых грунтов, торфогрунтовые смеси;

сборную железобетонную обрешетку в комплексе с посевом трав или с засыпкой ячеек щебенкой;

пневмонабрызг вяжущими по заанкеренной сетке;

обработку грунтов вяжущими материалами, в том числе поликомплексами;

древесные и древесно-кустарниковые насаждения;

армирование и укрепление откосов геотекстильными материалами в различных комбинациях.

* Мероприятия по укреплению подтопляемых откосов представлены в разделе 9.

18.12 Основным видом укрепления является создание дернового покрова посевом многолетних трав, осуществляемого посредством:

гидропосева многолетних трав с мульчированием, без использования растительной земли;

механизированного посева многолетних трав по слою растительного грунта.

При посеве трав необходимо соблюдать агротехнические требования в части: подбора видов многолетних трав, установления норм высева семян, видов удобрений и норм их внесения, а также условий подкормки всходов, учета кислотности и засоленности грунтов, сроков высева и последовательности операций по укреплению откосов. Рекомендуется использование семян трав трех видов - злаковых рыхло-кустовых, корневищевых и стержне-корневых, бобовых.

18.13 Гидропосев следует применять для укрепления откосов (насыпей, выемок и водоотводов) крутизной не более 1:1,5 в пылеватых, песчаных (за исключением гидронамывных), глинистых грунтах, в том числе содержащих до 30 % крупнообломочных включений, во всех районах страны за исключением районов Крайнего Севера и приравненных к ним.

В засушливых районах юга гидропосев следует предусматривать в весенне-зимний период в оптимальные агротехнические сроки и в обоснованных случаях допустимо включение этих работ в послепусковой комплекс.

При гидропосеве на откосы наносится рабочая смесь, состоящая из семян трав, минеральных удобрений, пленкообразующего, а в необходимых случаях и мульчирующего материалов и воды.

В качестве пленкообразующих (стабилизирующих) материалов рекомендуются отходы целлюлозно-бумажной промышленности (скоп и лигнин), при использовании их мульчирующие материалы не требуются. Могут применяться также синтетические латексы, битумные эмульсии и поликомплексы.

Для мульчирования рекомендуется использовать древесные опилки и торфяную крошку.

В районах подвижных песков укрепление гидропосевом откосов и непосредственно прилегающих к земляному полотну полос шириной не менее 3 м производится по слою глинистых грунтов.

В проектах следует предусматривать увеличение площади гидропосева на 10 - 15 % за счет необходимости вторичного посева в местах разреженного травостоя или механического повреждения его.

18.14 В тех случаях, когда укрепление откосов гидропосевом трав неприменимо по грунтовым условиям (при наличии лековыветривающихся скальных грунтов, жирных глин, песков гравелистых, песков, уложенных в насыпь способом гидронамыва), посев трав может быть осуществлен по предварительно нанесенному на откосы слою растительного грунта толщиной 10 - 15 см, с содержанием гумуса не менее 2 % или по слою торфогрунтовой смеси, имеющей зольность не более 50 %.

Для нанесения на укрепляемые откосы должен использоваться растительный грунт, заготовленный при срезке гумусированного слоя с площадей: основания насыпей, резервов, кавальеров, выемок, а также при вскрыше карьеров.

18.15 Покрытие откосов крупнообломочными (галечниково-гравийными и щебенисто-дресвяными) грунтами целесообразно осуществлять в тех случаях, когда создание искусственного дернового покрова посевом многолетних трав невозможно или экономически нецелесообразно из-за грунтовых, климатических или технических условий.

Крупнообломочные грунты, используемые для покрытия откосов, должны быть представлены слабовыветривающимися разностями. При отсутствии в районе строительства крупнообломочных грунтов допускается устройство неразвеваемых покрытий из торфогрунтовых смесей.

18.16 Глинистые грунты применяются для защиты от выдувания песчаных (в том числе пляжных) откосов в комплексе с созданием дернового покрова, предотвращающего водную эрозию.

В засушливых районах глинистые грунты наряду с другими тяжелыми неразвеваемыми грунтами (гравийными, дресвяными) применяются также для укрепления основной площадки и откосов.

Толщина слоя защиты на откосах принимается равной 0,10 - 0,15 м, на основной площадке - 0,30 м.

В обоснованных технико-экономическими расчетами случаях для укрепления основной площадки земляного полотна могут использоваться смеси суглинка с песком. Число пластичности смеси не должно быть менее 7.

18.17 Сборные железобетонные обрешетки в комплексе с посевом трав или с крупнообломочным заполнителем могут использоваться при укреплении откосов, сложенных переувлажненными пылеватыми грунтами, способными к развитию поверхностных сплывов.

18.18 Применение вяжущих материалов рекомендуется для закрепления песчаных откосов в комплексе с посевом семян местных многолетних трав.

Посадка местной древесно-кустарниковой растительности применяется для закрепления подвижных песков, в зоне, прилегающей к земляному полотну. Этот способ закрепления целесообразно применять в совокупности с укреплением песков вяжущими материалами, в том числе и с внесением семян местных растений.

В отдельных случаях для временной защиты могут быть использованы покрытия из стеблей местных растений, средства барьерной защиты в виде пескозадерживающих устройств.

18.19 Укрепление откосов земляного полотна может осуществляться с применением геотекстильных материалов в различных комбинациях.

Армирование геотекстилем откосов производят при необходимости увеличения их крутизны в стесненных условиях и при использовании грунтов повышенной влажности. Сведения о материалах, рекомендуемых для использования при армировании, приведены в приложении К.

Укрепление откосов выемок в выветривающихся и легковыветривающихся скальных грунтах может быть выполнено пневмонабрызгом по заанкеренной сетке (в том числе из геотекстиля).

Укрепление поверхности откосов крутизной 1:1 - 1:1,25 выполняется посевом многолетних трав по слою растительного грунта, нанесенного на закрепленную по откосу металлическую сетку, стеклосетку или другую георешетку.

18.20 Для защиты обочин земляного полотна из песчаных грунтов от выдувания и размыва, а также обочин земляного полотна из глинистых грунтов следует покрывать их щебенисто-дресвяным, галечниково-гравийным материалом слоем 5 - 10 см. Такое же укрепление рекомендуется для обочин и откосов защитного слоя, устраиваемого под балластной призмой.

18.21 Водоотводные устройства (водоотводные и нагорные канавы, кюветы и др.) следует укреплять с целью предотвращения их размыва или инфильтрации воды в грунт.

Способ укрепления водоотводов следует назначать в зависимости от расчетной скорости течения воды, свойства и состояния грунта, в котором они закладываются.

Для укрепления применяют: щебневание дна водоотвода и укрепление откосов гидропосевом многолетних трав, обработку дна и откосов вяжущими веществами, тощим монолитным бетоном, покрытия бетонными или асфальтобетонными плитами, а также сборными железобетонными конструкциями вида лотков и др.

Укрепление водоотводов посевом трав можно осуществлять в случаях, если имеется возможность произрастания их без подсыпки растительной земли.

19 ФИЛЬТРУЮЩИЕ НАСЫПИ

19.1 Фильтрующие насыпи допускается применять в качестве водопропускных сооружений на дорогах III и низших категорий при пересечении логов, местных понижений, а также постоянных водотоков с расчетным расходом: не более 10 м3/с при залегании в основании земляного полотна прочных скальных, крупнообломочных грунтов, крупных и средней крупности песков, плотных глин и суглинков, и не более 3 м3/с - на торфяных и заторфованных грунтах [3].

При необходимости пропуска расхода воды более 10 м3/с следует применять комбинированные фильтрующие насыпи с водопропускными трубами.

19.2 Возможность и целесообразность применения фильтрующих насыпей необходимо устанавливать в зависимости от местных условий на основе сравнения вариантов с учетом эксплуатационных расходов, срока службы сооружений и условий их текущего содержания.

Применение фильтрующих насыпей наиболее целесообразно:

в районах с наличием местных скальных слабовыветривающихся грунтов в качестве материала насыпи;

в случаях необходимости выполнения строительных работ в зимнее время;

на участках где в последующем потребуется смягчение продольных уклонов дороги или введение более мощных подвижных единиц, требующих перестройки мостов и труб;

в сейсмических районах.

19.3 Фильтрующие насыпи в зависимости от очертания лога и принятой технологии производства работ назначают прямоугольного, параболического, треугольного или трапецеидального поперечного сечения.

19.4 Размеры фильтрующей части сооружения необходимо определять гидравлическим расчетом на пропуск расчетных расходов воды с вероятностью превышения 2 %. В случае преобладания ливневого стока на участках залегания прочных грунтов (п. 4.23) расчетный расход допускается определять с учетом аккумуляции. При этом уменьшение расхода допускается не более чем в три раза.

При расчетах по расходам других видов стока аккумуляция воды не учитывается.

На участках залегания торфяных и заторфованных грунтов размеры фильтрующей части следует назначать без учета аккумуляции расхода, но с запасом на осадку сооружения.

При расчетном расходе 0,5 м3/с и менее размеры сооружения следует назначать конструктивно.

19.5 Фильтрующие насыпи можно применять напорные (рисунок 19.1, а) и безнапорные (рисунок 19.1, б).

Напорные фильтрующие насыпи, имеющие большую водопропускную способность и требующие меньшего расхода камня по сравнению с безнапорными, целесообразно применять в местах пересечения логов.

На равнинных участках трассы в местах залегания торфяных грунтов следует применять безнапорные фильтрующие насыпи (рисунок 19.2).

а - напорных; б - безнапорных; 1 - земляное полотно; 2 - изоляционный материал; 3 - фильтрующая часть насыпи; 4 - укрепление основания; 5 - кривая депрессии; ГВВ - расчетный горизонт высоких вод перед сооружением; hв - допускаемая глубина потока перед насыпью; hб - бытовая глубина потока; L - длина фильтрующей насыпи; Бп - бровка профильная

Рисунок 19.1 - Продольный разрез фильтрующих насыпей

19.6 Для фильтрующих насыпей следует предусматривать использование скальных обломков примерно одинакового размера (0,25 - 0,40 м), морозостойких и неразмягчаемых.

В проектах необходимо учитывать, что заполнение пустот между камнями в теле фильтрующих насыпей обломками меньших размеров не допускается.

Сверху и с боков фильтрующей части насыпи следует предусматривать устройство изоляции.

Тело фильтрующей части насыпи должно выступать с обеих сторон земляного полотна в виде берм не менее чем на 0,5 м после завершения осадки сооружения.

а - продольный разрез; б и в - разрезы по А-А в случаях (соответственно) возведения ФН до отсыпки земляного полотна и при размещении ФН в прогале между подходными участками насыпи; 1 - дорожная насыпь; 2 - фильтрующая часть водопропускного сооружения; 3 - изоляция верха ФН из синтетического нетканого материала; 4 - песчаная или галечно-гравийная подушка высотой h3 над верхом кочек под основной площадкой, отсыпаемая на поверхность растительно-мохового покрова; 5, 6 - оголовки фильтрующей части (входной и выходной), выступающие за плоскость откосов дорожной насыпи в виде берм шириной l; 7 - изоляция верха и боков подушки и откосов насыпи из синтетического нетканого материала; 8 - кривая депрессии водного потока в пределах сооружения; 9 - примерный уровень верха кочек; 10 - откосы оголовков фильтрующей части сооружения; 11 - откосы подходных участков насыпи до возведения ФН

Рисунок 19.2 - Схема устройства фильтрующей насыпи (ФН) на торфяных и заторфованных грунтах

Основание фильтрующей насыпи и русло водотока должны быть укреплены на 3 м в верхнем и нижнем бьефах от размыва в соответствии с расчетной скоростью движения воды через насыпь. При этом растительный слой на участках с сильно размываемыми грунтами удалять не допускается.

Если верх фильтрующей насыпи располагается на уровне бровки полотна, то над фильтрующей частью на расстоянии 5 м в обе стороны от нее необходимо предусматривать отсыпку балластного слоя из щебня.

19.7 В проекте производства строительных работ следует предусматривать возведение фильтрующих насыпей способом свободной наброски скальных обломков или валунного грунта, а в случаях применения скальных обломков плитного типа - укладку их горизонтальными рядами с максимальным сохранением пустот.

19.8 Откосы земляного полотна от подошвы до верха фильтрующей части сооружения, а для напорных - на 0,5 м выше горизонта воды при расчетном расходе необходимо укреплять бетонными или железобетонными плитами на расстояние в соответствии со СНиП 2.05.03.

19.9 С нагорной стороны фильтрующих насыпей при необходимости следует предусматривать илоудерживающие устройства в виде вала высотой не менее 0,4 м (например, из камня), охватывающие полукольцом входное отверстие сооружения на расстоянии около 2 м.

20 ЗЕМЛЯНОЕ ПОЛОТНО В РАЙОНАХ РАСПРОСТРАНЕНИЯ ВЕЧНОМЕРЗЛЫХ ГРУНТОВ

20.1 Земляное полотно в районах распространения вечномерзлых грунтов следует проектировать по нормам настоящего Свода правил по проектированию земляного полотна с учетом дополнительных положений данного раздела, отражающих состояние и свойства вечномерзлых грунтов, их изменение во времени (в результате производства строительных работ, последующего динамического воздействия поездной нагрузки и природных факторов), а также указаний по изысканиям, проектированию и строительству железных дорог в районах вечной мерзлоты ВСН 61-89 с учетом рекомендаций других ведомственных норм - ВСН 200-85, ВСН 203-85, Пособия к СНиП 2.05.07-85 [17].

20.2 Проектировать земляное полотно в районах вечной мерзлоты следует в комплексе с продольным профилем и планом линии, водопропускными, водоотводными и противодеформационными сооружениями с учетом требований к производству работ.

20.3 Конструкции земляного полотна следует назначать в зависимости от его расположения на элементах рельефа, вида грунтов, категории просадочности основания вечномерзлых грунтов (таблица 20.1)*; состава грунтов в карьере и состояния их при оттаивании в откосах выемок, а также технологии производства работ.

* Вечномерзлые грунты в зависимости от их температуры подразделяются на низкотемпературные и высокотемпературные.

К низкотемпературным относят грунты, имеющие температуру минус 2 °С и ниже на глубине 10 - 15 м от поверхности земли.

К высокотемпературным грунтам - грунты, имеющие температуру выше минус 2 °С, а при островном залегании - независимо от значения отрицательной температуры.

Вечномерзлые грунты по степени их деформативности при оттаивании разделяются на устойчивые и неустойчивые.

К неустойчивым относятся глинистые грунты, дресвяные и щебенистые грунты с глинистым заполнителем, которые при оттаивании приходят в мягкопластичное и текучее состояние (показатель текучести IL > 0,5), а также все нескальные грунты, независимо от их вида при наличии в них подземного льда.

20.4 Для обеспечения прочности и устойчивости земляного полотна при его проектировании следует предусматривать:

преимущественное размещение трассы на участках распространения грунтов, слагающих прочное основание и устойчивых при оттаивании в откосах выемок;

для сооружения насыпей преимущественное использование грунтов, имеющих лучшие строительные свойства и в меньшей степени подверженных изменению состояния под воздействием природных факторов;

конструктивные и организационно-технологические мероприятия, направленные на ограничение величины, интенсивности и неравномерности осадок и морозного пучения грунтов земляного полотна и его основания;

создание запасов по ширине и высоте насыпей в соответствии с расчетной величиной деформаций грунтов основания;

устройство искусственного основания и применение других противодеформационных конструкций (в том числе с использованием пенопласта, геотекстиля и т.д.) в выемках и на подходах к ним, при наличии пучинистых грунтов, слабых и просадочных оснований;

минимальное нарушение естественного растительно-мохового покрова, а также режима поверхностной и грунтовой вод на участках со слабым и просадочным основанием.

Таблица 20.1

Тип основания

Величина относительной осадки d

Основные виды и состояние грунтов основания

I прочное

d < 0,03

Скальные, крупнообломочные и песчаные грунты без включений льда; глинистые талые грунты в твердом и полутвердом состояниях

II недостаточно прочное

0,03 < d £ 0,1

Глинистые грунты в тугопластичном и мягкопластичном состояниях, а также песчаные и крупнообломочные грунты с глинистым заполнителем при наличии в них прослоев или линз льда суммарной толщиной до 0,10 м в каждом слое мощностью 1 м исследуемой вечномерзлой толщи основания

III слабое

0,1 < d £ 0,4

Глинистые грунты в текучепластичном и текучем состояниях, а также торфы, песчаные и крупнообломочные грунты при наличии в них линз или отдельных прослоев льда суммарной толщиной до 0,4 м в каждом слое мощностью 1 м

IV просадочное

d > 0,4

Глинистые грунты в текучем состоянии, торфяные отложения, а также грунты всех видов при наличии в них подземного льда суммарной мощностью более 0,4 м в каждом слое толщиной 1 м

20.5 Типовые конструкции земляного полотна следует применять для участков трассы, характеризуемых величиной относительной осадки основания и d £ 0,1 (см. таблицу 20.1) и устойчивыми грунтами в откосах независимо от глубины, характера залегания и температуры вечномерзлых грунтов:

для насыпей на основаниях I и II категорий просадочности, сооружаемых из скальных, крупнообломочных, песчаных талых и сыпучемерзлых грунтов (с влажностью до 3 %);

для выемок глубиной до 12 м в скальных и крупнообломочных грунтах, талых песках крупных и средней крупности и вечномерзлых грунтах I категории просадочности.

При этом ширину земляного полотна, очертание его верха, крутизну откосов следует назначать в соответствии с требованиями раздела 5 в зависимости от вида, состояния и свойств грунтов с учетом возможного их изменения.

20.6 Минимальную высоту насыпей на всех видах оснований следует назначать по условиям проектирования продольного профиля, а на участках со слабыми и просадочными основаниями - кроме того, по результатам теплотехнических расчетов.

20.7 Индивидуальному проектированию подлежат объекты, перечисленные в п. 6.2, и дополнительно в условиях вечной мерзлоты земляное полотно в пределах:

марей, представляющих собой слабые и просадочные основания (d > 0,1, т.е. III и IV категорий просадочности);

участки с активным развитием или возможным возникновением термокарстового процесса;

участки с наличием сезонных или многолетних бугров пучения;

наледей, действующих в естественных условиях, и прогнозируемых.

20.8 Независимо от температуры вечномерзлых грунтов основания следует учитывать осадки насыпей и основной площадки выемок, возникающие в результате деформирования грунтов деятельного слоя Sg и от деформирования оттаивающих вечномерзлых грунтов So.

20.9 Суммарную величину осадки насыпей S = Sg + So следует подразделять на строительную Sc и эксплуатационную Sэ.

Соотношение между ними следует устанавливать на основании опытных данных. При отсутствии таких данных ориентировочно можно принять Sс = Sэ = 0,5S.

Увеличение ширины насыпи Db на уровне профильной бровки следует определять по формуле

                                                          (20.1)

В тех случаях, когда предусматривается частичный запас на осадку по высоте насыпи, величина уширения насыпи должна быть соответственно уменьшена (рисунок 20.1).

20.10 На участках слабых и просадочных оснований насыпей высотой менее 1,0 м при наличии растительно-мохового покрова и менее 1,5 м при его отсутствии следует предусматривать устройство искусственного основания из скального, крупнообломочного или песчаного хорошо дренирующего грунта (рисунок 20.2). Глубина траншеи вырезки определяется расчетом.

1 - откос насыпи типовой конструкции; 2 и 3 - запас по ширине и высоте насыпи; 4 - верхний слой насыпи, досыпаемый в условиях эксплуатации; 5 и 6 - поверхность вечномерзлого грунта соответственно в естественных условиях и после ее понижения на расчетную глубину; Бпр и Бп - отметка бровки земляного полотна соответственно проектной и профильной высоты

Рисунок 20.1 - Расчетная схема к определению осадок и увеличению начальных размеров насыпей

1 - водоотводная канава; 2 - дренирующий грунт; 3 - теплоизоляция, назначаемая по результатам теплофизических расчетов; 4 - дренажная труба; 5 - глинистый грунт; 6 - поверхность вечномерзлого грунта в естественных условиях (размеры в м); Но - общая высота слоя насыпного грунта со слоем вырезки hв

Рисунок 20.2 - Схема устройства искусственного основания насыпей высотой менее 1 м на участках с вечномерзлыми грунтами II и III категорий (а) и IV категории просадочности (б)

1 - дренирующий грунт; 2 - глинистый грунт; 3 - поверхность вечномерзлого грунта после образования деятельного слоя по периметру выемки; Нп - глубина выемки по продольному профилю; Нр - глубина выемки с учетом величины вырезки hв слабого грунта основания, назначаемой по расчету; hос - величина осадки оттаивающего грунта основания при образовании деятельного слоя по периметру выемки

Рисунок 20.3 - Поперечный профиль выемки в тугопластичных и мягкопластичных глинистых грунтах

1 - дренирующий, крупнообломочный грунты, в том числе, с песчаным и глинистым заполнителем; 2 - дренажная труба; l - толщина слоя, назначаемая по расчету

Рисунок 20.4 - Поперечный профиль выемки в глинистых грунтах, переходящих при оттаивании в текучепластичное и текучее состояние

1 - лоток противопучинной конструкции; 2 - галька или гравий, а если выемка прорезает плывуны или глинистые грунты, то крупнозернистый песок; 3 - укрепление откосов; hв - глубина вырезки, назначаемая по расчету; Нп - глубина выемки по продольному профилю

Рисунок 20.5 - Поперечный профиль выемки в глинистых грунтах, переходящих при оттаивании в текучепластичное и текучее состояние

20.11 В выемках, на участках залегания глинистых грунтов или крупнообломочных с глинистым заполнителем при содержании частиц размером 0,1 мм и менее в объеме более 20 % следует предусматривать замену естественных грунтов основания дренирующими путем соответствующего увеличения глубины выемки (рисунки 20.3, 20.4) или разработки траншеи под основной площадкой с устройством лотков противопучинной конструкции (рисунок 20.5).

Для неустойчивых грунтов при оттаивании в откосах (см. п. 20.3) необходимы дополнительные противодеформационные мероприятия: уположение откосов, теплоизоляция, устройство откосного дренажа, обсыпка откосов дренирующим и крупнообломочным материалом.

20.12 Участки трассы с наличием подземного льда, залегающего на глубине меньшей, чем двойная или тройная толщина деятельного слоя в районах соответственно с низкотемпературными и высокотемпературными вечномерзлыми грунтами, подлежат выделению.

Для таких участков в проектах земляного полотна следует предусматривать:

создание запретных зон, ограждаемых специальными знаками, в пределах которых запрещается хозяйственная деятельность, как при строительстве, так и в период эксплуатации;

указания о времени и технологии производства земляных работ, исключающих возможность оттаивания грунтов;

размещение притрассовой автодороги на расстоянии не менее 50 м от подошвы насыпи;

требования к грунтам, устройствам теплоизоляции и т.д.

Минимальную высоту насыпи Нmin на таких участках следует назначать в соответствии с требованиями п. 20.6 и, кроме того, исходя из условия

                                               (20.2)

где hд - толщина деятельного слоя, м;

lл - расстояние от поверхности вечномерзлого грунта до верха слоя льда, м;

hmin - 2 м для дорог I и II категорий, 1, 2 м - для дорог III - IV категорий.

Принимать следует большую из полученных величин.

При существенном нарушении растительно-мохового покрова, а также на участках, где возможно нарушение режима поверхностного стока воды, следует предусматривать противодеформационные мероприятия.

20.13 В пределах участков залегания подземного льда непосредственно под деятельным слоем, где по техническим причинам высота насыпи назначается менее требуемой пункта 20.6, следует предусматривать полное или частичное удаление льда из основания насыпи с заполнением траншеи местным грунтом (рисунок 20.6).

Если сумма толщин деятельного слоя и высоты насыпи будет равна или превысит 4 м, подземный лед разрешается не удалять.

20.14 Выемки в грунтах, содержащих подземный лед, следует проектировать по нормам ВСН 61-89.

Если выемка прорезает линзу льда, то необходимо раскрывать ее в пределах контура линзы на такую ширину, чтобы лед из откосов был удален (рисунок 20.7).

1 - подземный лед; 2 - засыпка местным глинистым грунтом; 3 - поверхность вечномерзлого грунта в естественных условиях; hд - мощность деятельного слоя в естественных условиях

Рисунок 20.6 - Схема устройства насыпи над подземным льдом, залегающим на глубине, равной мощности деятельного слоя

При значительном простирании слоя льда раскрытие выемки целесообразно в соответствии с рисунком 20.8. Лед, обнаженный на откосах выемки, следует прикрывать слоем дренирующего грунта.

При залегании слоя льда ниже бровки земляного полотна на глубине менее или равной толщине деятельного слоя необходимо предусматривать удаление льда и замену его местным грунтом; при большей глубине залегания льда его разрешается не удалять.

1 - контуры линзы льда; 2 - ось пути; Нп - глубина выемки по продольному профилю; hос - величина осадки оттаивающего грунта основания при образовании деятельного слоя по периметру выемки

Рисунок 20.7 - Поперечный профиль выемки, прорезающей линзу льда

1 - откос не круче 1:1,5; 2 - грунт замены; 3 - расстояние до поверхности слоя льда (не менее двойной глубины оттаивания грунта замены); 4 - лед

Рисунок 20.8 - Поперечный профиль выемки, прорезающей слой подземного льда

20.15 Выемки, прорезающие водоносные горизонты, следует ограждать дренажными устройствами или противоналедными сооружениями. Последние надлежит предусматривать на участках, действующих в природных условиях или на участках прогнозируемых наледей, в комплексе с водоотводными устройствами.

20.16 Дренажи разрешается применять только при дебите источника и температуре грунтовой воды, обеспечивающих круглогодичную работу дренажа, или в случаях осуществления подогрева или других мероприятий, предохраняющих дренаж от промерзания.

20.17 Водоотводные сооружения на участках с вечномерзлыми грунтами, сохраняющими устойчивость в откосах при оттаивании, следует проектировать по нормам раздела 17.

20.18 На марях водоотводные канавы следует предусматривать на расстоянии 5 - 10 м от подошвы насыпи.

Продольный уклон водоотводных канав следует назначать не менее 0,004 на моховой и не менее 0,002 на кочковатой мари. Ширину канавы понизу следует принимать не менее 0,8 м (после укрепления), глубину не менее 0,6 м от низа кочек.

Если требуемый продольный уклон не может быть обеспечен или устройство продольной канавы может привести к возникновению термокарстового процесса, следует предусматривать поперечный пропуск поверхностной воды посредством фильтрующих насыпей, дренирующих прорезей или других водопропускных сооружений.

Возможно меньшей протяженности следует также проектировать продольные водоотводные и нагорные канавы на участках слабых и просадочных оснований, легкоразмываемых и неустойчивых после оттаивания грунтов.

20.19 На марях и торфяниках в случаях, когда оползание откосов и заплывание канав неизбежно, следует применять лотки или индивидуально проектируемые водоотводные устройства.

20.20 Откосы выемок в глинистых грунтах, приобретающих после оттаивания состояние от твердого до мягкопластичного (IL £ 0,75), в мелких и пылеватых песках, в том числе и с содержанием гальки, гравия и дресвы до 50 %, а также в крупнообломочных грунтах с глинистым заполнителем до 50 %, целесообразно укреплять посевом многолетних трав районированных сортов при повышенной норме высева семян.

Работы по укреплению откосов следует предусматривать через 1 - 2 года после разработки выемки и образования нового деятельного слоя на откосах.

Для выемок в глинистых грунтах, приходящих в мягкопластичное состояние при оттаивании, в проекте следует предусматривать дополнительные объемы работ по 2 - 3-разовой планировке откосов и очистке кюветов в период формирования деятельного слоя.

20.21 Способы укрепления откосов выемок в глинистых грунтах, приходящих при оттаивании в текучепластичное и текучее состояние, необходимо назначать в комплексе с противодеформационными мероприятиями.

20.22 Откосы и дно канав в мягкопластичных суглинках и супесях целесообразно укреплять галечно-гравийным или щебенистым материалом толщиной слоя до 0,30 м в зависимости от размеров частиц используемого материала.

21 ЗЕМЛЯНОЕ ПОЛОТНО ВНЕШНИХ (ПОДЪЕЗДНЫХ) ПУТЕЙ

21.1 К внешним (подъездным) путям относятся железнодорожные пути, предназначенные для внешних перевозок грузов предприятий и организаций и соединяющие станцию (пункт) примыкания железных дорог общей сети с промышленной станцией, а при ее отсутствии - с погрузочно-разгрузочными путями или со стрелочным переводом первого ответвления внутренних железнодорожных путей.

21.2 Внешние (подъездные) пути, имеющие 5 - 10-летнюю перспективу включения в общую сеть железных дорог России или предназначенные для пассажирского движения, следует проектировать по СНиП 32-01-95 для соответствующей категории линии.

Земляное полотно этих подъездных путей следует проектировать по нормам настоящего документа.

21.3 Конструкцию земляного полотна назначают с открытой балластной призмой в увязке с рельефом местности, плановыми и высотными отметками других действующих и проектируемых сооружений и коммуникаций и общими решениями по организации водоотвода в районе строительства.

По согласованию с заказчиком на пересечениях или расположенных параллельно железнодорожному полотну других сооружениях и коммуникациях, на участках застроенной территории предприятий и организаций, городских поселков и т.п., допускается конструкцию земляного полотна принимать с заглубленной или полузаглубленной балластной призмой и надежным водоотводом с применением железобетонных лотков (рисунки 21.1, 21.2).

21.4 Конструкция земляного полотна подъездных путей с открытой, заглубленной или полузаглубленной балластной призмой должна отвечать требованиям долговечности, прочности и устойчивости в любое время года и должна быть рассчитана на движение четырехосных вагонов с нагрузкой на ось 294 кН (30 тс).

21.5 Земляное полотно внешних (подъездных) железнодорожных путей, не имеющих перспективы включения в общую железнодорожную сеть России (см. п. 21.2), а также внутренних путей предприятий и организаций, проектируется и сооружается по СНиП 2.05.07-91.

Однопутный участок: а, б - с отводом воды кюветом; в, г - с отводом воды лотком; hб - толщина балластного слоя; В - ширина земляного полотна; в - ширина балластной призмы

Рисунок 21.1 - Земляное полотно с заглубленной и полузаглубленной балластной призмой

Двухпутный участок: а - с отводом воды дренажом; б, г - с отводом воды лотком; в - с отводом воды лотком и кюветом; hб - толщина балластного слоя; d - междупутье; в - ширина балластной призмы

Рисунок 21.2 - Земляное полотно с заглубленной и полузаглубленной балластной призмой

22 ЭКОЛОГИЧЕСКИЕ ТРЕБОВАНИЯ ПРИ ПРОЕКТИРОВАНИИ ЗЕМЛЯНОГО ПОЛОТНА

22.1 При проектировании земляного полотна в проектах должны предусматриваться конструкции и технологии производства работ, способствующие снижению отрицательного воздействия строительства на окружающую природную среду.

22.2 Для предотвращения деградации окружающей среды, восстановления нарушенных при строительстве природных систем и обеспечения эколого-экономической сбалансированности будущего развития транспортно-природной системы в целом в проекте следует предусматривать оценку воздействия на окружающую среду (ОВОС) проектируемого земляного полотна в соответствии с СП 11-101-95 и Временной инструкцией «Оценка воздействия строительства на окружающую среду в проектах железных и автомобильных дорог» [58].

ОВОС является самостоятельным этапом в системе подготовки решений о развитии хозяйственной деятельности, разрабатывается до принятия проектных решений, входит в состав проектно-сметной документации и оформляется отдельным документом.

22.3 Раздел «Охрана окружающей среды» выполняется в соответствии со СНиП 11-01-95 и содержит проектные решения по комплексу проектных мероприятий, обеспечивающих выполнение положений ОВОС по экологической безопасности.

22.4 Основные конструктивные решения земляного полотна должны обеспечивать наименьшую потребность в отчуждении земель, наибольшую сохранность флоры и фауны в процессе строительства и эксплуатации, в том числе за счет:

наименьшего раскрытия выемок в скальных и рыхлых грунтах;

устройства насыпей с крутыми откосами, создаваемыми путем соответствующего их закрепления;

сооружения вместо выемок тоннелей, а вместо насыпей эстакад;

использования (вместо традиционных) новых конструктивных решений и материалов при проектировании и строительстве земляного полотна, упрощающих технологию и в меньшей степени воздействующих на окружающую среду.

22.5 Наименьшее раскрытие выемок и полувыемок за счет придания их откосам крутого очертания при сохранении необходимого уровня надежности осуществляется с учетом всей совокупности инженерно-геологических условий. При этом в экологическом плане уменьшается объем разрабатываемого грунта, что способствует уменьшению при строительстве:

запыленности ландшафтов в процессе разработки грунтов;

рассеивания взрывчатых веществ;

уровня шумов, выбросов различных вредных веществ при работе СДМ и механизмов.

22.6 В тех случаях, когда устойчивый откос не догоняет склон, для снижения нарушенных полезных земель, флоры и фауны целесообразным является создание и укрепление откосов более крутых очертаний несущими конструкциями - анкерами или заанкеренными подпорными стенами.

22.7 С целью уменьшения площади, занимаемой откосами насыпей на затяжных косогорах, рекомендуется укреплять низовые откосы различными подпорными сооружениями.

22.8 При высоте насыпей от 8 до 20 м целесообразным является вместо насыпей строительство эстакад. Они позволяют экономить большие площади земельных угодий, снижать уровень шума и вибрации и сократить длину трассы.

22.9 Замена выемок тоннелями целесообразна, начиная с глубины выемки 25 м. При этом сохраняется существующий ландшафт.

22.10 Факторами, влияющими на окружающую среду при сооружении земляного полотна, являются:

нарушение занимаемых земель, отведенных под устройство насыпей и выемок, строительных площадок и территорий временных поселков;

загрязнение воздуха выбросами вредных веществ от работы строительных машин, механизмов, строительной пылью;

загрязнение водоемов хозяйственно-бытовыми, производственными и дождевыми сточными водами;

загрязнение строительных площадок и территорий временных поселков бытовыми и строительными отходами;

вибрация и шум от работы строительных машин и механизмов.

22.11 Проектом должно предусматриваться:

предварительное снятие почвенного слоя на участках сооружения земляного полотна и на территориях, предназначенных под строительные площадки и временные поселки;

рекультивация нарушаемых полезных земель резервами, карьерами, отвалами, землевозными дорогами, временными строительными площадками и поселками.

22.12 Нормы снятия плодородного слоя почвы различного типа и механического состава содержатся в ГОСТ 17.5.3.06 (таблица 22.1), а требования к охране плодородного слоя почвы при производстве земляных работ - в ГОСТ 17.4.3.02.

Рекультивацию нарушенных земель производят в соответствии с ГОСТ 17.5.3.04.

Таблица 22.1 Норма снятия плодородного слоя почвы для основных типов и подтипов почв глинистого и суглинистого механического состава

Тип и подтип почв

Диапазон глубин снятия, см

Дерново-подзолистые

20 или на всю глубину пахотного слоя

Буроземно-подзолистые

20 - 50

Дерново-карбонатные

20 - 40

Дерново-глеевые

30 - 60

Бурые лесные

20 - 80

Светло-серые лесные

20 - 30

Серые лесные

20 - 50

Темно-серые лесные

40 - 70

Черноземы:

 

оподзоленные и выщелоченные

40 - 120

типичные

50 - 120

обыкновенные

40 - 100

южные

40 - 70

Лугово-черноземные

60 - 100

Черноземно-луговые

50 - 90

Луговые

30 - 100

Темно-каштановые

40 - 50

Каштановые

30 - 40

Светло-каштановые

30

Лугово-каштановые

40 - 70

Лугово-сероземные

40 - 60

Лугово-такыровидные

30

Сероземы

20 - 40

Красноземы

40

Желтоземы

30

Горно-луговые

30 - 80

Горные лугово-степные

20 - 70

Аллювиальные (пойменные)

40 - 120

Торфяные болотные (после осушения)

На всю мощность торфяного слоя

ПРИЛОЖЕНИЕ А

КЛАССИФИКАЦИЯ СКАЛЬНЫХ ГРУНТОВ ПО ВЫВЕТРИВАЕМОСТИ ВО ВРЕМЕНИ [29]

Таблица А.1

Категория грунта по выветриваемости

Потери образцов в массе при попеременном воздействии высушивания - увлажнения (или замораживания - оттаивания в водонасыщенном состоянии)

1. Слабовыветривающиеся

Потери образцов в массе при 20 циклах попеременного высушивания - увлажнения (или замораживания - оттаивания в увлажненном состоянии) практически не наблюдаются

2. Выветривающиеся

Потери образцов в массе при 20 циклах испытаний не превышают 25 %, но составляют не менее 5 %. Продукты разрушения представлены обломочно-щебенисто-дресвяными фракциями

3. Легковыветривающиеся

Потери образцов в массе при количестве циклов £ 20 достигают 25 - 100 %.

Продукты разрушения представлены преимущественно песчано-пылевато-глинистыми фракциями

Методика испытаний образцов на попеременное высушивание - увлажнение (или замораживание - оттаивание в увлажненном состоянии) сводится к изложенному ниже.

Образцы грунтов массой 100 - 300 г (в количестве 2 - 3) высушиваются в термостате при t = 105 °С, взвешиваются, заливаются водой, выдерживаются в ней (7 - 8 ч) и снова высушиваются; затем процесс повторяется.

После трех - пяти циклов мелкие фракции отсеивают (через сито с 10-миллиметровыми ячейками) и взвешивают их. В массе исследуемых образцов вычисляют потерю, которая равняется отношению массы частиц, прошедших через сито, к первоначальной массе образцов (в процентах). Далее испытания с оставшимся на сите грунтом повторяются в той же последовательности.

Потери в массе рекомендуется фиксировать после 5; 10; 15; 20 циклов испытаний. При каждом последующем вычислении учитывается суммарная с предшествующими потеря в массе.

Испытания могут быть завершены при меньшем числе циклов, если потери испытуемых образцов грунта по массе превысят 25 %, что свидетельствует о принадлежности грунтов к категории лековыветривающихся.

Образцы некоторых разновидностей таких грунтов полностью разрушаются после нескольких циклов испытаний.

Для наглядности целесообразно оформлять результаты испытаний в виде графиков зависимости процента потерь образцов в массе от числа циклов испытаний.

В некоторых случаях (особенно для районов с суровыми климатическими условиями) циклические испытания следует проводить на совместное воздействие замораживания - оттаивания и высушивания - увлажнения. Количественная оценка интенсивности выветривания аналогична изложенной выше.

Наиболее характерными скальными грунтами, подверженными выветриваемости во времени, являются мергели, аргиллиты, алевролиты, мел, некоторые виды сланцев и др.

Мергель - грунт, состоящий из смеси глины с известняком или доломитом, плотный тонкослоистый, светлого цвета. По содержанию различных компонентов выделяются: мергель гипсовый, глинистый (с содержанием глины до 70 - 80 %), доломитовый (с высоким содержанием магнезии), известковый (с преобладанием извести над глиной) и другие разновидности.

Некоторые разновидности мергелей обладают способностью к набуханию и интенсивному размоканию.

Кремнистые мергели отличаются устойчивостью к выветриванию.

Аргиллит - сильно переуплотненная глина с тонкослоистой, иногда неясно выраженной текстурой. Содержит преимущественно (в количестве более 50 %) глинистые частицы (< 0,005 мм). Интенсивно разрушаются при преобладании глинистого цемента. Разновидности с кремнистым и известковым цементом более устойчивы к выветриваемости.

В естественных условиях аргиллиты во многих случаях переслаиваются мергелями, песчаниками и алевролитами.

Алевролит - сильно переуплотненные пылеватые грунты. Количество пылеватых (алевритовых) частиц (0,05 - 0,005 мм) превышает 50 %.

Они интенсивно разрушаются при преобладании глинистого цемента. При наличии кремнистого и известкового цемента алевролиты более устойчивы к выветриваемости.

В естественном сложении алевролиты часто переслаиваются с мергелями, песчаниками и аргиллитами.

Мел - белый тонкозернистый известняк биогенного и биохимического происхождения. Состоит из мелких морских раковин. Пористость достигает 50 %.

Размягчается и размокает в воде. Интенсивно выветривается.

Сланцы - отличаются ориентированным расположением слагающих их минералов.

Сланцы осадочного происхождения имеют тонкослоистую текстуру без изменения своего состава (глинистые, кремнистые сланцы).

Кристаллические сланцы возникают в результате процессов метаморфизма и характеризуются резким изменением исходного вещества.

Тальковые, хлоритовые, глинистые, слюдяные и слюдистые сланцы способны интенсивно разрушаться под воздействием атмосферных факторов. В выемках они пучат.

ПРИЛОЖЕНИЕ Б

ХАРАКТЕРИСТИКА ГРУНТОВ ЗАСОЛЕННЫХ, НАБУХАЮЩИХ, ПРОСАДОЧНЫХ, ПУЧИНИСТЫХ

Засоленные грунты - грунты, содержащие в количестве более 0,3 % массы абсолютно сухого грунта легкорастворимые соли (хлористый натрий, хлористый кальций, хлористый магний, сернокислый магний, углекислый натрий и двууглекислый натрий), а также - в больших количествах труднорастворимый сернокислый кальций (гипс) и практически нерастворимый углекислый кальций. Засоленные грунты при увлажнении резко снижают прочность на сжатие.

Засоленные грунты следует разделять по степени засоления с учетом его качественного характера (таблица Б.1).

Таблица Б.1

Грунты

Среднее суммарное содержание легкорастворимых солей, % массы сухого грунта

Хлоридное и сульфатно-хлоридное засоление

Сульфатное, хлоридно-сульфатное и содовое засоление

районы с засушливым климатом

остальные районы

районы с засушливым климатом

остальные районы

Слабозасоленные

0,5 - 2

0,3 - 1

0,5 - 1

0,3 - 0,5

Среднезасоленные

2 - 5

1 - 5

1 - 3

0,5 - 2

Сильнозасоленные

5 - 10

5 - 8

3 - 8

2 - 5

Избыточно засоленные

> 10

> 8

> 8

> 5

К слабозасоленным грунтам необходимо также относить грунты со средним суммарным содержанием легкорастворимых солей менее 0,5 % в районах с засушливым климатом и менее 0,3 % в остальных районах, если эти грунты содержат более 0,25 % Nа2SO4 + MgSO4 или более 0,5 % NаНСО3 + Nа2СО3.

Качественный характер засоления можно установить по соотношению содержания ионов Cl¢ и SO4¢¢ в водной вытяжке, выраженного в миллиэквивалентах на 100 г сухого грунта (таблица Б.2).

Таблица Б.2

Наименование засоления

Отношение

Хлоридное

Более 2,5

Сульфатно-хлоридное

2,5 - 1,5

Хлоридно-сульфатное

1,5 - 1,0

Сульфатное

Менее 1,0

Засоление называется содовым при содержании в грунте ионов СО3¢¢ и НСО3¢ более одной трети суммарного содержания ионов Сl¢ и SO4¢¢.

Степень и качественный характер засоления определяют в период наибольшего накопления солей в верхних слоях грунтов.

Набухающие грунты - морские и озерные глинистые отложения палеогена, неогена и четвертичной системы, майкопские, сарматские, мэотические, киммерийские, апшеронские, бакинские, аральские и хвалынские породы и их элювий, делювий.

Характерной особенностью этих грунтов является изменение их состояния и свойств под воздействием природных факторов при нарушении естественных условий залегания.

Набухающие грунты при замачивании водой или другой жидкостью увеличиваются в объеме, при этом относительное набухание в условиях свободного набухания (без нагрузки) esw ³ 0,04 - ГОСТ 25100.

Набухающие грунты характеризуются следующими показателями: свободное набухание - esw, набухание под нагрузкой eswp, усадка при высыхании - esh, влажность набухания - Wsw, влажность предела усадки - Wsh.

Показатели набухания и усадки грунта определяются по относительной деформации:

набухание - в условиях исключения возможности бокового расширения при насыщении грунта водой или химическим раствором;

усадку - в условиях свободной трехосной деформации при высыхании грунта

                                                        (Б.1)

                                                        (Б.2)

где ho и hsw - высота образца до и после увлажнения;

Vo и Vsh - начальный и конечный объемы образца.

Методы лабораторного определения характеристик набухания и усадки представлены в ГОСТ 24143.

По ГОСТ 25100 набухающие грунты в зависимости от величины относительного набухания без нагрузки подразделяются на:

слабонабухающие, если 0,04 £ esw £ 0,08;

средненабухающие, если 0,08 < esw £ 0,12;

сильнонабухающие, если esw > 0,12.

В наибольшей степени величину возможной деформативности набухающих грунтов отражает обобщенный показатель набухания - усадки eswh.

                                          (Б.3)

Обозначения прежние.

Поверхностные слои земляного полотна (на откосах, под основной площадкой) находятся в зоне сезонных изменений влияния внешних факторов и работают в условиях переменного температурно-влажностного режима. Поэтому при установлении расчетных параметров грунтов следует учитывать наибольшую их деформативность и ориентироваться на показатель усадки набухания - eswh.

I - зона постоянного значения плотности и влажности грунтов после стабилизации процессов набухания в изменившихся при строительстве условиях; II - зона сезонного изменения плотности и влажности грунтов; hв - глубина зоны выветривания

Рисунок Б.1 - Схема образования зоны сезонного выветривания после сооружения земляного полотна

Грунты считаются слабонабухающими, если eswh £ 0,10; средненабухающими, если 0,10 < eswh £ 0,20; сильнонабухающими, если eswh > 0,20.

Для глинистых грунтов с влажностью предела текучести 0,35 £ WL £ 0,65, удовлетворяющих требованию 0,03 £ (Wp - 0,4WL) £ 0,09; при ориентировочных расчетах могут быть использованы эмпирические зависимости для прогнозирования состояния и свойств набухающих грунтов [38; 39; 47]. Показатель усадки - набухания: eswh = 1,05 - 0,45. Давление набухания Рsw:

Рsw = 6eswh × WL = 6 МПа (60 кгс/см2).                            (Б.4)

Просадочные грунты - грунты, которые под действием внешней нагрузки или собственной массы при замачивании водой или другой жидкостью дают просадку и при этом значение относительной просадочности esl ³ 0,01 - по ГОСТ 25100.

Относительная просадочность - отношение уменьшения высоты образца грунта в результате его замачивания водой или другой жидкостью при определенном вертикальном давлении к высоте образца природной влажности при давлении, равном природному на глубине отбора образца. Определяется по ГОСТ 23161.

При предварительной оценке к просадочным грунтам обычно относятся лессовые грунты со степенью влажности Sr £ 0,8, для которых величина показателя Iss, определяемого по формуле B.5, меньше значений, указанных в таблице Б.3.

Таблица Б.3

Число пластичности грунта, Ip

0,01 < Ip < 0,10

0,10 £ Ip < 0,14

0,14 £ Ip < 0,22

Показатель Iss

0,1

0,17

0,24

                                                    (Б.5)

где е - коэффициент пористости грунта природного сложения и влажности;

     еL - коэффициент пористости, соответствующий влажности на границе текучести WL и определяемый по формуле

                                                        (Б.6)

где rs - плотность частиц грунта, г/см3;

rw - плотность воды, принимаемая равной 1 г/см3.

Пучинистые грунты - грунты, которые при замерзании могут увеличиваться в объеме. К грунтам, подверженным морозному пучению, относятся:

глинистые - супеси, суглинки, глины;

легковыветривающиеся - сланцы, алевролиты, аргиллиты, мергели в зоне активного выветривания;

крупнообломочные - грунты с глинистым заполнителем, пылеватые пески.

Значение морозного пучения грунтов зависит от их естественной влажности и условий возможного увеличения влажности слоя в процессе его промерзания (от глубины расположения уровня грунтовых вод). В наибольшей степени подвержены пучению пылеватые грунты.

Ориентировочные значения относительного пучения грунтов в зависимости от их естественной влажности и разности величин естественной влажности и влажности на границе раскатывания (пластичности) приведены в таблице Б.4.

Таблица Б.4

W - Wp, доли единицы

Интенсивность пучения глинистых грунтов, f

Влажность грунта в слое промерзания, W, доли единицы

16

18

20

22

24

26

28

30

32

34

36

0,01

0,015

0,018

0,021

0,025

0,028

0,031

0,034

0,037

0,041

0,044

0,047

0,02

0,022

0,025

0,029

0,032

0,035

0,038

0,041

0,045

0,048

0,051

0,054

0,03

0,034

0,037

0,040

0,044

0,047

0,050

0,053

0,056

0,060

0,063

0,066

0,04

0,050

0,054

0,057

0,060

0,063

0,066

0,070

0,073

0,076

0,079

0,082

0,05

-

0,075

0,078

0,081

0,084

0,088

0,091

0,094

0,097

0,100

0,103

0,06

-

0,097

0,100

0,104

0,107

0,110

0,113

0,116

0,120

0,123

0,126

0,07

-

-

0,130

0,133

0,136

0,139

0,143

0,146

0,149

0,152

0,155

0,08

-

-

0,164

0,167

0,170

0,173

0,176

0,180

0,183

0,186

0,189

0,09

-

-

-

0,205

0,208

0,212

0,215

0,218

0,221

0,224

0,227

0,10

-

-

-

0,248

0,251

0,254

0,258

0,261

0,264

0,267

0,270

Примечания

1 Величины интенсивности пучения, приведенные в таблице Б.4, определены расчетом для грунта с плотностью скелета rd = 1,6 г/см3. Интенсивность пучения грунтов с другим значением rd можно определять по формуле , где fi,  - соответственно интенсивность пучения и плотность скелета исследуемого слоя грунта.

2 W - естественная влажность грунта, установленная по данным замеров в природных условиях.

3 Wp - влажность данного слоя грунта на границе раскатывания.

ПРИЛОЖЕНИЕ В

МЕТОДИКА ОПРЕДЕЛЕНИЯ ТОЛЩИНЫ ЗАЩИТНОГО СЛОЯ ПО УСЛОВИЮ ОГРАНИЧЕНИЯ ВЕЛИЧИНЫ МОРОЗНОГО ПУЧЕНИЯ ЕГО ОСНОВАНИЯ И ОБЕСПЕЧЕНИЯ НЕОБХОДИМОЙ ПРОЧНОСТИ ПОДСТИЛАЮЩЕГО СЛОЯ

Определение необходимой толщины защитного слоя может быть выполнено по методике, представленной в Методических рекомендациях [9]; при отсутствии детальных исходных данных рекомендуется использовать методику, приведенную в Технических указаниях [10]. При этом в настоящем приложении приведены графики, значительно упрощающие выполнение расчетов.

В действующих нормативах ВСН 61-89 и рекомендациях [9 - 11] толщину подушки из дренирующих грунтов (т.е. толщину защитного слоя hз) рекомендуется определять по формуле

                                                   (В.1)

где Zmax - максимальная глубина сезонного промерзания земляного полотна из дренирующих грунтов от верха балластной призмы; определяется по среднему многолетнему значению суммы градусо-суток (W, °С × сут) отрицательных температур наружного воздуха (СНиП 2.01.01-82);

hб - толщина балластного слоя (от верха балластной призмы);

hдоп - допустимая толщина промерзающего глинистого грунта под подушкой из дренирующих грунтов.

В Технических указаниях [10] приведены поправочные коэффициенты для определения расчетной глубины промерзания

                                                     (В.2)

где q - коэффициент, учитывающий вид дренирующего грунта (q = 1 для песчано-гравийной смеси и 0,90 - для асбестовых отходов);

n - коэффициент, учитывающий вид конструкции земляного полотна (n = 1 для нулевых мест, 0,95 - для выемок глубин более 1 м, 1,05 - для насыпей высотой более 1 м);

т - коэффициент, учитывающий увеличение глубины промерзания земляного полотна по сравнению с многолетними и средними данными, определяется по формуле

                                                             (B.3)

где W10 - максимальная в десятилетнем периоде сумма градусо-суток отрицательных температур наружного воздуха за год, W10, °С × сут.

Величина hдоп определяется по формуле

                                                        (В.4)

где Dдоп - допустимая величина пучения, принимается в зависимости от категории дорог и перспективной скорости движения поездов.

Категория дорог...... IV          III         II - I

Dдоп, мм..................... 35          25          20

С - коэффициент, характеризующий условия промерзания и пучения. С = 1 для условий сезонного промерзания и несливающейся мерзлоты, С = 1,4 - для условий сливающейся мерзлоты;

f - расчетная интенсивность пучения, зависит от вида и состояния грунта (в наибольшей степени от его влажности).

а - при многолетней средней сумме градусо-суток отрицательных температур наружного воздуха W, °С × сут - 2600; б - то же W - 2200; в - то же W - 1800; г - то же W - 1400; д - то же W - 1000

Нпр - глубина промерзания двухслойной среды, м.

Рисунок В.1 - Графики для определения толщины слоя дренирующего грунта, обеспечивающего непревышение допустимой величины пучения 20 мм, при различной интенсивности пучения f, %, для различных климатических условий

Установление толщины защитного слоя, при которой значение морозного пучения земляного полотна не превысит допустимых значений, должно проводиться методом подбора - путем последовательных приближений. Для упрощения этих расчетов составлены вспомогательные графики (рисунки В.1, В.2).

Для построения первичных графиков (рисунок В.1), характеризующих глубину промерзания двухслойной среды в зависимости от толщины поверхностного слоя дренирующих грунтов при различных климатических условиях, использована номограмма, взятая из Технических указаний [10], рисунок В.3.

На итоговом графике (рисунок В.2) представлены значения суммарной толщины слоя дренирующих (песчано-гравийных) грунтов (Н = hз + hб), обеспечивающего непревышение заданной величины пучения подстилающих глинистых грунтов (20 - 25 - 35 мм) при известных климатических и грунтовых условиях, выражаемых через суммарное количество градусо-суток отрицательных температур W и через интенсивность пучения глинистых грунтов f.

Требуемая толщина защитного слоя из песчано-гравийных грунтов hз определяется по формуле

                                                  (В.5)

Значения W определяются по СНиП 2.01.01-82.

а - при допустимой величине пучения D = 20 мм; б - то же, при D = 25 мм, в - то же, при D = 35 мм; Ндр - толщина слоя дренирующего грунта, м; f - интенсивность пучения, %; W - средняя многолетняя сумма отрицательных температур наружного воздуха, градусо-сутки

Рисунок В.2 - Толщина дренирующего слоя, обеспечивающая непревышение допустимой величины пучения, в зависимости от интенсивности пучения, для различных климатических условий

Zпр - глубина промерзания; W - средняя многолетняя сумма градусо-суток отрицательных температур наружного воздуха; h - толщина слоя дренирующего грунта (песчано-гравийного)

Рисунок В.3 - Номограмма для определения глубины промерзания в зависимости от климатических условий при различной толщине дренирующего грунта

Значения интенсивности пучения могут быть установлены по прилагаемой таблице В.1 с учетом прогнозируемого режима поверхностных и грунтовых вод, устанавливающегося в результате разработки земляного полотна и осуществления запроектированных противодеформационных устройств.

В таблице В.2 приведены результаты расчетов, выполненных с использованием приведенных графиков по двум пунктам при различных условиях для насыпей и выемок.

Окончательно решение о требуемой толщине защитного слоя для каждого объекта принимается по большему из двух значений, полученных из условия непревышения допустимой величины морозного пучения подстилающих грунтов и по условию их прочности, но не менее предусмотренных СНиП 32-01-95.

Расчет толщины защитного слоя по условию обеспечения необходимой прочности подстилающего слоя

Принятая в настоящее время методика расчета представлена в ВСН 61-89, Технических указаниях и Методических рекомендациях [9 - 11] и в другой технической литературе.

Для предотвращения возможности возникновения в грунте деформаций, пластических сдвигов суммарные нормативные напряжения «s» (от поездной нагрузки, собственного веса грунта и веса верхнего строения пути) не должны превышать критической для данного грунта нагрузки - Ркр.

В указанных нормативах значение Ркр определяется по формуле

 кПа (тс/м2)                               (В.6)

где С - удельное сцепление, кПа (тс/м2);

j - угол внутреннего трения, рад;

g - удельный вес грунта, кН/м3 (тс/м3);

h - расстояние от основной площадки до рассматриваемого горизонта, м.


Таблица В.1 - Характеристика пучинистости грунтов

Грунты

Интенсивность пучения грунтов f

Основания выемок и естественные основания

Насыпи высотой более 2 м

сухие

сырые

мокрые

Влажность глинистых грунтов

от Wp + 0,10Wп

до Wp + 0,25Wп

от Wp + 0,25Wп

до Wp + 0,50Wп

от Wp + 0,5Wп

до Wp + 0,75Wп

более Wp + 0,75Wп

от Wp + 0,10Wп

до Wp + 0,25Wп

от Wp + 0,25Wп

до Wp + 0,50Wп

Суглинки и глины пылеватые

0,03 - 0,05

0,10 - 0,15

0,15 - 0,20

0,20 - 0,30

0,02 - 0,03

0,04 - 0,07

Суглинки, глины, пылеватые супеси

0,02 - 0,04

0,08 - 0,12

0,12 - 0,18

0,18 - 0,25

0,01 - 0,02

0,03 - 0,06

Супеси

0,01 - 0,03

0,06 - 0,10

0,10 - 0,15

0,15 - 0,20

0,01 - 0,2

0,02 - 0,05

Песок пылеватый и мелкий

0,00 - 0,01

0,02 - 0,05

0,05 - 0,10

0,05 - 0,10

-

-

Крупнообломочные с пылевато-глинистым заполнителем, более 30 % по массе

0,01 - 0,02

0,03 - 0,05

0,05 - 0,07

0,07 - 0,10

0,01 - 0,02

0,02 - 0,03

Таблица В.2

Исходные данные

Определяемые величины

Определение hз = mnНдр - hб для дорог

 

Место расположения

Вид сооружения, грунты

Влажность грунтов

Показатель текучести, IL

По СНиП 2.01.01-82, W, °С · сут

Коэффициенты по формуле В.2

Интенсивность пучения f по таблице В.1

I - II категорий D = 20 мм

IV категории, D = 35 м

 

по СНиП 32-01-95

hб, м

требуемая толщина дренирующего грунта по рисунку Б.2, Ндр, м

hз, м

hб, м

Ндр, м

hз, м

т

n

 

Москва (Калинин)

Выемка глубиной более 1 м

Сухая 0,1 - 0,25

1032

1,10

0,95

0,03 - 0,05

0,7

0,6

0

0,6

0,10

0

 

Суглинки пылеватые

Сырая 0,25 - 0,50

1032

1,10

0,95

0,10 - 0,15

0,7

1,1

0,45

0,6

0,85

0,29

 

Мокрая 0,50 - 0,75

1032

1,10

0,95

0,15 - 0,20

0,7

1,15

0,50

0,6

1,0

0,45

 

Насыпь, Н > 1 м

0,1 - 0,25

1032

1,10

1,05

0,02 - 0,03

0,7

0,2

0

0,6

0

0

 

Суглинки пылеватые

0,25 - 0,50

1032

1,10

1,05

0,04 - 0,07

0,7

0,8

0,22

0,6

0,4

0

 

Челябинск (Свердловск)

Выемка Н > 1 м

Сухая 0,1 - 0,25

1783

1,10*

0,95

0,04

0,7

1,15

0,50

0,6

0,6

0,03

 

Суглинки пылеватые

Сырая 0,25 - 0,50

1783

1,10*

0,95

0,12

0,7

1,8

1,18

0,6

1,5

0,97

 

Мокрая 0,5 - 0,75

1783

1,10"

0,95

0,18

0,7

1,9

1,29

0,6

1,65

1,12

 

Насыпь Н > 1 м

0,1 - 0,25

1783

1,10*

1,05

0,025

0,7

0,7

0,11

0,6

0

0

 

Суглинки пылеватые

0,25 - 0,50

1783

1,10*

1,05

0,055

0,7

1,4

0,92

0,6

0,9

0,44

 

Примечание - Значения коэффициента т приняты условно.

 


Значение Ркр может быть определено по преобразованной - упрощенной формуле

                                            (В.7)

где А и Б - параметры, значения которых устанавливаются по номограмме (рисунок В.4) в зависимости от сдвиговых характеристик грунта.

Во всех случаях для расчетов следует принимать минимально возможные прочностные характеристики грунтов, соответствующие условиям их весеннего оттаивания.

Величину Ркр необходимо определять для двух значений глубины, например, для h = 0 и h = 1,0 м.

Напряжение в теле земляного полотна устанавливается суммированием напряжений от всех действующих нагрузок (рисунок В.5).

В приведенном примере нормальные напряжения от поезда определены расчетом по программе ЦНИИСа для 4- и 8-осных вагонов (при нагрузке на ось 30 тс и с учетом размещения осей в экипаже).

Влияние динамики отражено по рекомендации [35], при скорости движения поезда 120 км/ч.

Значения критического давления Ркр представлены на рисунке В.5 прямой А-В. Они приведены для суглинков мягкопластичной консистенции (0,5 < IL £ 0,75), характеризуемых следующими показателями СНиП 2.02.01-83:

е = 0,75, rd = 1,56 т/м3, g = 1,94 тс/м3 (19,4 кН/м3);

Сn = 2 тс/м2 (20 кПа); Сp = 1,33 тс/м2 (13,3 кПа);

jn = 18°; jp = 16°.

По формуле В.6

при h = 0 Ркр = 0,67 кгс/см2 = 67,0 кПа

при h = 1 м Ркр = 1,137 кгс/м2 = 113,65 кПа.

По точке пересечения суммарной кривой нормальных напряжений s = f (h) и прямой Ркр = f(h) определяется минимально допустимая (по условиям прочности подстилающих грунтов) толщина защитного слоя.

Примечание - В лаборатории конструкций земляного полотна ЦНИИСа разработан пакет программ для расчета в упруго-пластической постановке напряженно-деформированного состояния земляного полотна и его прочности.

В расчете принята модель динамического воздействия поездной нагрузки с учетом фактического расположения осей в экипаже, осевых нагрузок, характеристик верхнего строения пути и др.

Использование указанных программ в сочетании с пакетом программ расчета водно-теплового режима земляного полотна позволяет проектировать насыпи и выемки при широком наборе факторов воздействия на сооружения в период строительства и эксплуатации.

1 - кривая зависимости А от j; 2 - 7 - кривые зависимости параметра Б от j при С, равном соответственно 0,5; 1,0; 1,5; 2,0; 2,5; 3,0 тс/м2

Рисунок В.4 - Кривые зависимости параметров А и Б от прочностных характеристик грунта (ВСН 61-89)

Напряжения от: 1 - собственного веса грунта; 2 - верхнего строения пути; 3, 4 - поездной нагрузки для 4- и 8-осных вагонов при скоростях движения 120 км/ч (Рос = 30 тс/ось); 5, 6 - суммарные напряжения при 4- и 8-осных вагонах; 7 - прямая изменения несущей способности грунта Ркр

Рисунок В.5 - Распределение по глубине слоя критической нагрузки Ркр и нормальных напряжений в грунте sh

ПРИЛОЖЕНИЕ Г

РЕКОМЕНДАЦИИ ПО РАСЧЕТУ УСТОЙЧИВОСТИ ЗЕМЛЯНОГО ПОЛОТНА

Общие положения

Оценку общей устойчивости земляного полотна (насыпей и откосов выемок) рекомендуется осуществлять по первому предельному состоянию - несущей способности (по условиям предельного равновесия).

Устойчивость откосов должна быть проверена по возможным поверхностям сдвига (кругло-цилиндрическим или по другим, в том числе ломаным поверхностям) с нахождением наиболее опасной призмы обрушения, характеризуемой минимальным отношением обобщенных предельных реактивных сил сопротивления к активным сдвигающим силам.

Критерием устойчивости земляных массивов является соблюдение (для наиболее опасной призмы обрушения) неравенства

                                                       (Г.1)

где gfc     - коэффициент сочетания нагрузок, учитывающий уменьшение вероятности одновременного появления расчетных нагрузок;

Т   - расчетное значение обобщенной активной сдвигающей силы;

gc  - коэффициент условий работы;

gn  - коэффициент надежности по назначению сооружения (коэффициент ответственности сооружения);

R  - расчетное значение обобщенной силы предельного сопротивления сдвигу, определенное с учетом коэффициента надежности по грунту gg.

Расчетные значения T и R определяются с учетом коэффициента надежности по нагрузке gf. Учет коэффициента надежности по нагрузке осуществляется путем умножения на него всех действующих сил (в том числе веса призмы обрушения или ее отсеков).

Сейсмические нагрузки следует принимать с коэффициентом надежности по нагрузке gf, равным единице (СНиП 2.06.05-84*, СНиП 2.02.01-83*, СНиП 2.01.07-85).

Значения коэффициента gf принимаются при расчете устойчивости откосов высотой более 3 м для выемок равным 1,1, а при расчете устойчивости насыпей - 1,15 (СНиП 2.01.07-85).

В тех случаях, когда снижение устойчивости может произойти за счет уменьшения действующих сил, следует принимать gf = 0,9.

Значения коэффициента надежности по грунтам gg устанавливаются в соответствии с указаниями СНиП 2.02.01-83*, а также ГОСТ 20522.

Учет коэффициента надежности по грунтам осуществляется путем деления нормативных значений прочностных характеристик грунтов (удельного сцепления, угла внутреннего трения) на величину коэффициента надежности, устанавливаемую в зависимости от изменчивости этих характеристик, числа определений и значения доверительной вероятности, принимаемой d = 0,95.

Численные значения коэффициентов gn, gfc, gc приведены в таблицах Г.1 - Г.3.

Таблица Г.1

Категория линий

Скоростные и особогрузонапряженные

I - II

III

IV

Значение gn

1,25

1,20

1,15

1,10

Таблица Г.2

Сочетание нагрузок

Основное

Особое (сейсмика)

Строительного периода

Значение gfc

1,00

0,90

0,95

Таблица Г.3

Методы расчета

Удовлетворяющие условиям равновесия

Упрощенные

Значение gc

1,00

0,95

При поиске наиболее опасной призмы обрушения за критерий устойчивости может быть принята зависимость для оценки коэффициента устойчивости Ks в следующем виде:

                                                      (Г.2)

Полученные расчетом значения коэффициента устойчивости при соответствующем сочетании нагрузок не должны превышать величины  более чем на 10 % и его численное значение должно быть не менее чем 1,05*.

* При расчетах насыпей с высоким уровнем динамического воздействия (скорости более 120 км/ч, 8-осный подвижной состав), сооружаемых из мелких и пылеватых песков и супесей, величина Ks должна быть не менее 1,25.

Для оценки воздействия землетрясений на объекты с расчетной сейсмичностью 7 и более баллов расчеты устойчивости откосов следует выполнять по формуле (Г.1) с учетом сейсмической силы, прикладываемой к призме обрушения (или ее отсекам), определяемой по формуле

                                                        (Г.3)

где Kc    - коэффициент сейсмичности, равный 0,025, 0,05, 0,10 - соответственно для интенсивности расчетного сейсмического воздействия 7, 8 и 9 баллов (СНиП II-7-81*);

С  - вес призмы обрушения (или ее отсеков) с учетом коэффициента надежности по нагрузке.

Угол наклона вектора сейсмичности силы к горизонту принимается наиневыгоднейшим для устойчивости - обычно параллельно поверхности смещения призмы (или ее отсеков).

Устойчивость откосов можно считать обеспеченной, если условия, определяемые формулой (Г.1), удовлетворяются, в противном случае принимается решение о перепроектировании очертаний земляного полотна, об армировании откосов, устройстве берм, контрбанкетов и т.д. либо о стратегии восстановления его при землетрясении.

При проектировании проверяется общая и местная устойчивость откосов земляного полотна [8, 43, 18, 44].

Проверка местной устойчивости необходима при глинистых грунтах, характеризуемых влажностью на границе текучести WL < 0,4, а также при легковыветривающихся скальных грунтах в выемках с целью выявления возможности появления поверхностных сплывов на откосах и прогнозирования интенсивности осыпания продуктов выветривания с откосов в процессе эксплуатации.

Нагрузки и воздействия

Расчеты общей устойчивости земляного полотна, его основания и поддерживающих сооружений следует выполнять на основное сочетание действующих нагрузок и воздействия:

веса и давления грунтов;

веса сооружений и их частей, в том числе верхнего строения пути, подпорных стен и т.п.;

подвижной временной нагрузки;

гидростатического и гидродинамического воздействия воды на участках подтопления.

При этом необходимо учитывать сопротивляемость грунтов силовым воздействиям и возможное изменение прочностных свойств грунтов (угол внутреннего трения, удельное сцепление).

В сейсмических районах расчеты следует выполнять на особое сочетание постоянных и временных нагрузок, реакций и сейсмического воздействия.

Нагрузка на основную площадку от веса верхнего строения пути [18, 44] принимается равной:

17 кПа (1,7 тс/м2) для железных дорог линий высокоскоростных, особогрузонапряженных I - III категорий;

15 кПа (1,5 тс/м2) для линий IV категории.

С учетом средней ширины балластного слоя нагрузка от верхнего строения пути на один метр по длине земляного полотна составит соответственно Рвс = 83 кН (8,3 тс) и 64 кН (6,4 тс).

Временная нагрузка на основную площадку от подвижного состава принимается равной воздействию грузовых вагонов, с нагрузкой на ось 4-осного вагона 294 кН (30 тс).

Значение временной нагрузки устанавливается исходя из напряжений на уровне основной площадки, определяемых для расчетной единицы подвижного состава по Правилам расчетов верхнего строения железнодорожного пути на прочность [18].

При оценке прочности грунтов непосредственно основной площадки следует принимать максимальное значение напряжения, соответствующее подрельсовому сечению. При оценке общей устойчивости откосов насыпей к указанному значению следует вводить коэффициент 0,85, учитывающий неравномерность распределения напряжений в продольном и поперечном направлениях. При этом нагрузка от поезда на один метр по длине насыпи Рп определяется по формуле

                                                 (Г.4)

где lш  - длина шпалы, м;

hб - величина, численно равная толщине балластного слоя под шпалой, м;

Рр - напряжение на уровне основной площадки в подрельсовом сечении, кПа (тс/м2).

При расчете устойчивости насыпи воздействие на земляное полотно временной нагрузки и веса верхнего строения пути учитывается посредством введения в расчет фиктивного слоя грунта высотой h, определяемой по формуле

                                                   (Г.5)

где g - удельный вес грунта в верхней части насыпи кН/м3 (тс/м3).

Эпюру нагрузки рекомендуется принимать трапецеидальной формы шириной поверху, равной длине шпалы, понизу - (lш + hб).

Для ориентировочных расчетов устойчивости насыпей при вибродинамическом воздействии на грунты проходящих поездов повышенного веса и с высокими скоростями может использоваться методика МИИТа, тестируемая в МПС, или методика Ленгипротранса, разработанная на основании научных исследований ЛИИЖТа.

По методике МИИТа учет динамического состояния насыпи как системы (единого целого) в статической расчетной схеме производится интегрально с помощью единого показателя - интегрального параметра - I.

При определении высоты фиктивного слоя в расчет вместо Рn вводится приведенное значение нагрузки от поезда Рпр = Рп × I. Значение I принимается по прилагаемому графику [18, 44], рисунок Г.1.

1 - супесь, IL < 0; Kу (коэффициент уплотнения) = 0,97 ¸ 1,00; 2 - супесь, IL £ 0,25; Kу = 0,90 ¸ 1,00; 3 - легкий суглинок, IL < 0; Kу = 0,90 ¸ 0,95; 4 - легкий суглинок, IL £ 0,25; Kу = 0,90 + 1,00; 5 - тяжелый суглинок, IL £ 0,50; Kу = 0,90 + 1,00, 6 - пылеватый песок, Kу = 0,90 ¸ 1,00

Примечание - Для насыпей из пылеватых песков при Нн = 2,0 ¸ 4,0 м на торфяных основаниях I = 2,0.

Рисунок Г.1 - Величина I для насыпей на прочном основании

По методике Ленгипротранса динамическое состояние насыпи учитывается в расчетах устойчивости посредством снижения прочностных характеристик грунта.

Вибродинамическое воздействие измеряется амплитудой среднечастотной составляющей колебаний. Амплитуда колебания грунтов является функцией многих переменных, значение ее существенно изменяется по глубине и при удалении от источника колебаний.

При проверке устойчивости насыпи для каждого отсека определяется амплитуда колебаний А и соответствующие ей значения угла внутреннего трения и удельного сцепления (jдин, Сдин). Дальнейшие расчеты выполняются по обычной методике.

Для уточненных расчетов устойчивости и прочности земляного полотна поездная нагрузка должна учитываться исходя из реальной расстановки осей в экипаже, статических и динамических нагрузок от колес на рельсы, типа верхнего строения и т.д.

Соответствующие пакеты прикладных программ разработаны в лаборатории конструкций земляного полотна АО ЦНИИС.

Расчет устойчивости откосов в нескальных грунтах

В расчетах необходимо проверять поперечники с наиболее неблагоприятными для устойчивости условиями (большая высота откоса, наличие подтопления, прослойки слабых грунтов и т.д.).

Расчетные схемы следует принимать с учетом возможных форм нарушения общей устойчивости. При расчетах проектируемых насыпей, при однородном строении существующих массивов или расположении в них слоев близком к горизонтальному рекомендуется расчет по круглоцилиндрической поверхности скольжения.

При этом в качестве основной рекомендуется методика проф. Г.М. Шахунянца (рисунок Г.2).

Возможно применение других методов, известных по литературным источникам или разработанных в проектных организациях и проверенных практикой. К числу таких методов относится, например, метод инж. Л.Л. Перковского по расчету насыпей на слабых основаниях (иольдиевых глинах, илах), широко апробированный Ленгипротрансом.

При наличии в рассматриваемом грунтовом массиве фиксированных поверхностей ослабления следует применять методику расчета по ломаным поверхностям скольжения [43, 44].

При расчете устойчивости откосов по круглоцилиндрической поверхности обрушения рекомендуется использовать формулу проф. Г.М. Шахунянца

Рисунок Г.2 - Расчет устойчивости откосов в нескальных грунтах

                                   (Г.6)

где K - коэффициент устойчивости откоса;

fiNi - сила трения;

fi = tg ji - коэффициент внутреннего трения для основания i-го отсека;

cili - сила сцепления;

сi - удельное сцепление, Па;

li - длина плоскости возможного смещения в пределах i-го отсека;

Qi - равнодействующая всех сил;

Ni - нормальная составляющая сила;

Ti-уд - тангенциальная составляющая Тi направлена в сторону, обратную направлению возможного смещения блока, удерживающая отсек от возможного смещения;

Тi-сд - тангенциальная составляющая Тi, стремящаяся сдвинуть отсек по своему основанию.

Расчет устойчивости откосов скальных выемок [8]

Расчет общей устойчивости скальных откосов и склонов необходимо начинать с изучения решетки трещиноватости скального массива, с установления положения возможных поверхностей обрушения (скольжения), которые определяются ориентацией по отношению к проектируемому откосу поверхностей ослабления (трещиноватости, слоистости).

При оценке общей устойчивости скальных откосов рекомендуется руководствоваться расчетными схемами, представленными на рисунке Г.3. Условия применения указанных схем приведены в таблице Г.4.

Как правило, поверхности обрушения совпадают с существующими в массиве поверхностями ослабления, но в некоторых условиях этого не наблюдается.

Все приведенные на рисунке Г.3 формы поверхностей обрушения можно объединить в четыре группы:

плоские поверхности (схемы А, Б);

призматические и полигональные поверхности (схемы В, Г, Д, Е);

криволинейные и комбинированные поверхности (схемы Ж, З, И, К);

объемные желобчатые поверхности обрушения (схема Л).

Порядок построения возможных поверхностей обрушения откосов, методика установления расчетных параметров, последовательность выполнения расчетов и расчетные формулы для определения обобщенных значений активной сдвигающей силы Т и силы предельного сопротивления сдвигу R представлены в Руководстве по проектированию противообвальных сооружений [8].

После выявления решетки трещиноватости для рассматриваемого объекта выбирается по рисунку Г.3 одна или несколько расчетных схем. Расчеты выполняются по всем выбранным схемам.

Оценка устойчивости скального массива производится по формулам Г.1, Г.2 настоящего приложения.

Решение об устойчивости откосов принимается на основании анализа результатов расчетов по всем рассмотренным схемам - по наименьшему из полученных значений.

1 - контур поверхности обрушения; 2 - трещины, расчленяющие массив возможного обрушения на блоки; 3 - выветрелый слой в схеме К; 1 - желобчатые поверхности обрушения

Рисунок Г.3 - Расчетные схемы общей устойчивости

Таблица Г.4

Расчетная схема

Условия применения

Расчетные параметры

А

Наличие системы трещин с неблагоприятным залеганием. Угол наклона откоса превышает угол наклона трещин (a > jтр; aо > a)

a, Стр, jтр, gо

Б

Наличие двух систем трещин, одна из которых имеет неблагоприятное залегание (при этом aо > a), а вторая падает в глубь массива

a, Стр, jтр

(по системе трещин, падающих в сторону откоса)

В

Наличие системы трещин с неблагоприятным залеганием. Угол наклона откоса меньше угла наклона трещин (a2 > jтр, a0 < a2)

a1, a2, С, jк, См, lo, Стр, jтр, g0

Г

Наличие двух систем трещин, падающих в сторону откоса, при этом a2 > jтр2

a1, a2, Стр1, jтр1, Стр2, jтр2, g0

Д

Наличие полигональной поверхности скольжения (образуемой крупными отдельными трещинами, разломами и т.д.)

Углы наклона отдельных участков поверхности скольжения, параметры прочности на сдвиг по ним, g0

Е

Наличие полигональной поверхности скольжения и наклонных трещин, расчленяющих оползающий скальный массив

То же, что и в схеме Д, кроме того, ориентация и параметры прочности на сдвиг по наклонным трещинам

Ж

Наличие благоприятного расположения систем трещин, в том числе падающей в глубь массива

Стр, С, jк, См, lо, g0

З

Наличие благоприятного расположения систем трещин, в том числе пологопадающей в сторону склона (a < jтр)

a, Стр, jтр, С, j, См, lо, g0

И

Отсутствие выдержанных систем трещин

С, jк, Стр, См, lо, g0

К

Наличие выветрелого слоя на поверхности откоса

С, Смм = С), j, g0

Л

Наличие двух пересекающихся систем трещин, падающих вкрест простирания откоса с образованием двугранного угла (желоба)

Ао, А1, А2, dо, d1, d2, Стр, jтр, g0

Примечание - Значения расчетных параметров: a - угол наклона трещин; aо - угол наклона откоса; a1, a2 - углы наклона систем трещин; Стр1, Стр2 - сцепление по соответствующим системам трещин, кН/м2; jтр1, jтр2 - углы внутреннего трения по соответствующим системам трещин, град.; lо - осредненная блочность пород в массиве, м.

Примеры расчета устойчивости насыпей высотой 3 - 6 - 12 м

Грунт: суглинок  jп = 24°;         Сп = 3,1 тс/м2;          gd = 1,65 тс/м3

                          jр = 21,8°;        Ср = 2,07 тс/м2;          g = 2,01 тс/м3

Изменение коэффициента устойчивости по высоте для насыпи Н = 12 м

Минимальные значения коэффициента устойчивости насыпей высотой 3 - 6 - 12 м при заложении откосов

а)

б) до 6 - 1,5; ниже - 1,75

в) до 6 м - 1,75; ниже - 2,0

Расстояние от бровки по вертикали

Высота насыпи

Высота насыпи

Пояснения к графикам

Позиции рисунка

Исходные данные

Результаты расчета

Высота насыпи, Н, м

Нагрузка от поезда

Скорость поезда, V, км/ч

Нагрузка от верхнего строения Рвс, тс/м

Интегральный параметр I (рисунок Г.1)

Высота фиктивного слоя грунта, h, м (формула Г.5)

Коэффициент надежности по нагрузке, gf

Номер кривой

Минимальное значение, Kуст

на ось, тс/ось

в подрельсовом сечении Рр, тс/м2

Рп (формула Г.4), тс/м

а - откосы до 6 м, 1:1,5, ниже 1:1,75

12

30

7,4

20,4

0

8,3

1

4,4

1,15

1

1,23

12

30

7,4

20,4

0

8,3

1

4,4

1

1¢

1,27

12

30

7,4

20,4

0

8,3

1,65

6,5

1,15

2

1,16

12

30

7,4

20,4

0

8,3

1,65

6,5

1

2¢

1,19

12

30

12,5

34,5

120

8,3

1,65

10,0

1,15

3

1,06

12

30

12,5

34,5

120

8,3

1,65

10,0

1

3¢

1,08

б - откосы до 6 м, 1:1,5, ниже 1:1,75

3

30

7,4

20,4

0

8,3

1

4,4

1,15

4

1,70

6

30

7,4

20,4

0

8,3

1

4,4

1,15

4

1,45

12

30

7,4

20,4

0

8,3

1

4,4

1,15

4

1,23

3

30

7,4

20,4

0

8,3

1,2

5,0

1,15

5

1,61

6

30

7,4

20,4

0

8,3

1,4

5,7

1,15

5

1,34

12

30

7,4

20,4

0

8,3

1,65

6,5

1,15

5

1,16

3

30

12,5

34,5

120

8,3

1,2

7,6

1,15

6

1,32

6

30

12,5

34,5

120

8,3

1,4

8,7

1,15

6

1,16

12

30

12,5

34,5

120

8,3

1,65

10,0

1,15

6

1,06

в - откосы до 6 м, 1:1,75, ниже 1:2

3

30

7,4

20,4

0

8,3

1

4,4

1,15

7

1,75

6

30

7,4

20,4

0

8,3

1

4,4

1,15

7

1,53

12

30

7,4

20,4

0

8,3

1

4,4

1,15

7

1,34

3

30

7,4

20,4

0

8,3

1,2

5,0

1,15

8

1,66

6

30

7,4

20,4

0

8,3

1,4

5,7

1,15

8

1,43

12

30

7,4

20,4

0

8,3

1,65

6,5

1,15

8

1,27

3

30

12,5

34,5

120

8,3

1,2

7,6

1,15

9

1,37

6

30

12,5

34,5

120

8,3

1,4

8,7

1,15

9

1,23

12

30

12,5

34,5

120

8,3

1,65

10,0

1,15

9

1,16

Примечание - Увеличение нагрузки на земляное полотно за счет повышения скорости движения поездов принято на основании анализа опубликованных материалов [18].


ПРИЛОЖЕНИЕ Д

ХАРАКТЕРИСТИКИ БОЛОТНЫХ ОТЛОЖЕНИЙ

Разновидность

Коэффициент пористости, е

Степень разложения R, %

Сопротивляемость сдвигу по крыльчатке Сусл, МПа

Сжимаемость

Типы болот, сложенных только данной разновидностью

наименование грунта

природная влажность в долях единицы

модуль деформации при нагрузке Р, МПа

модуль осадки lр, мм/м при нагрузке Р, МПа

в природном залегании

после уплотнения

под нагрузкой Р = 0,05 МПа

0,05

0,10

0,05

0,10

1

2

3

4

5

6

7

8

9

10

11

Осушенный (или уплотненный)

< 3

< 5

< 25

> 0,42

> 0,172

> 0,25

> 0,33

< 200

(< 100)

< 300

(< 200)

I

25 - 40

> 0,030

> 0,105

> 40

> 0,019

> 0,078

Маловлажный

3 - 6

5 - 8

< 25

0,049 - 0,022

0,250 - 0,090

0,25 - 0,15

0,33 - 0,23

200 - 350

(100 - 250)

300 - 420

(200 - 370)

I

25 - 40

0,030 - 0,016

0,125 - 0,056

I

> 40

0,008 - 0,026

0,036 - 0,073

II

Средней влажности

6 - 9

8 - 14

< 25

0,026 - 0,016

0,136 - 0,066

0,15 - 0,11

0,23 - 0,19

350 - 450

(250 - 400)

420 - 530

(370 - 500)

I

25 - 40

0,017 - 0,011

0,060 - 0,035

II

> 40

0,005 - 0,013

0,036 - 0,021

Очень влажный

9 - 12

14 - 20

< 25

0,016 - 0,011

0,087 - 0,046

0,11 - 0,90

0,19 - 0,17

450 - 550

(400 - 470)

530 - 600

(500 - 550)

I

25 - 40

0,010 - 0,006

0,042 - 0,028

II

> 40

0,005 - 0,003

0,021 - 0,015

Избыточно влажный

> 12

> 20

< 25

25 - 40

0,011 - 0,005

0,062 - 0,020

0,090 - 0,085

0,17 - 0,15

550 - 600

(470 - 490)

600 - 650

(550 - 570)

II

-

-

III

-

-

Сапропель:

 

 

 

 

 

 

 

 

 

 

маловлажный

< 0,5

< 20

< 0,02

I

влажный

0,5 - 5,5

2 - 10

0,02 - 0,05

II

сильновлажный

> 5,5

> 10

> 0,005

III

Примечания

1 В графе 2 - в числителе указаны влажности органоминеральных сапропелей, в знаменателе - органических сапропелей.

2 В скобках - в графах 9 и 10 даны средние значения модулей осадки, без скобок - максимальные.


ПРИЛОЖЕНИЕ Е

МЕТОДИКА ОПРЕДЕЛЕНИЯ ОСАДКИ НАСЫПЕЙ НА БОЛОТАХ*

* В лаборатории конструкций земляного полотна АО ЦНИИС разработана программа для ПЭВМ расчета осадки насыпей на слабых основаниях.

Осадку насыпи S любой высоты за счет сжатия разнородных слоев торфа в основании приближенно можно определить по формуле

                                                         (Е.1)

где Нi - мощность слоя торфа, м;

li - модуль осадки этого слоя, см/м;

значения li устанавливаются по формуле

                                           (Е.2)

где Аi, Вi, Сi - коэффициенты, устанавливаемые по прилагаемой таблице в зависимости от начального коэффициента пористости е0 (его значения могут быть приняты по таблице Е.1 приложения Е);

ai - коэффициент, устанавливаемый по графику на рисунке Е.1 в зависимости от Zi и ан;

Zi - глубина от подошвы насыпи (с учетом глубины выторфовывания) до середины слоя Hi;

ан - горизонтальная проекция откоса;

Р - нагрузка от насыпи на торфяное основание с учетом взвешивания в обводненной части насыпи, МПа.

Изложенная ниже методика позволяет провести приближенный расчет.

Численные значения ln (10aiР + Сi) могут быть определены по графику на рисунке Е.2 по предварительно установленным значениям ai, Р, Сi.

Таблица Е.1 - Значения коэффициентов A, В, С в зависимости от начального коэффициента пористости е0

e0

5

6

7

8

9

10

11

12

13

14

15

16

17

18

19

20

21

22

23

24

25

А

-28

-4

7

16

24

30

35

39

42

45

48

51

53

55

56

58

59

61

62

63

64

В

40,5

36,3

33,1

30,6

28,6

27

25,7

24,5

23,5

22,7

21,9

21,3

20,7

20,2

19,7

19,3

18,9

18,5

18,2

17,9

17,7

С

1,89

1,17

0,78

0,55

0,40

0,31

0,24

0,19

0,15

0,13

0,11

0,09

0,08

0,07

0,06

0,05

0,04

0,04

0,04

0,03

0,03

а - для однопутной насыпи; б - для двухпутной насыпи

Рисунок Е.1 - Значения коэффициента a в основании насыпи в зависимости от Z и aн

Рисунок Е.2 - График значений ln (10aiP + Ci)

Номограммы
для определения осадок железнодорожных насыпей на болотах
I типа при различной глубине болота 4 - 3,5 - 3 - 2,5 м (по вертикали а - б - в - г) и разной плотности торфа (по горизонтали)

1 - глубина болота, h, м; 2 - высота насыпи над уровнем болота - Н, м; 3 - изолинии осадок, см (искомая величина определяется точкой пересечения Н и hв); 4 - глубина выторфовывания - hв, м

ПРИЛОЖЕНИЕ Ж

МЕТОДИКА ИСПЫТАНИЯ НАСЫПЕЙ НА БОЛОТАХ

1. Насыпи индивидуального проектирования, возведенные на болотах с сохранением торфа в основании, следует испытывать на устойчивость к воздействию статической и динамической нагрузки, эквивалентной или большей, чем запланированная для постоянной эксплуатации.

Испытание необходимо проводить при непромерзших основании и грунте тела насыпи.

2. Испытанию статической нагрузкой подвергают насыпи, если они:

запроектированы из расчета на частичное отжатие болотных грунтов из основания или на полное их выдавливание в случае, если полного отжатия не произошло;

при поперечном уклоне дна болота круче 1:10 для болот I типа, 1:15 для болот II типа и 1:20 для болот III типа;

в других случаях индивидуального проектирования, когда для повышения устойчивости основания применены те или иные конструктивные решения недостаточно апробированные и плохо поддающиеся расчету.

3. Последовательность статических испытаний сводится к следующему. На испытываемых участках насыпи устанавливают два или более 4-, 6- или 8-осных полногрузных вагона на срок не менее чем трое суток.

В период испытаний ведутся ежедневные инструментальные наблюдения за осадками и другими деформациями насыпи и основания.

Если деформации насыпи носят затухающий характер, статические испытания считаются завершенными.

При испытаниях насыпи следует вести журнал, в котором приводится характеристика участка, конструкции насыпи, тип и величина нагрузки, результаты испытаний, включая величину осадки насыпи, перемещений основания и т.п.

4. Испытанию динамической нагрузкой следует подвергать насыпи, имеющие конструктивные особенности, при которых необходимо считаться с возможностью повышенных деформаций (небольшая мощность насыпи или повышенная мощность торфа под ней) основания вследствие передачи на него динамических нагрузок, сопоставимых по величине с нагрузкой от веса самой насыпи.

Вопрос о необходимости испытания насыпи динамической нагрузкой решается в проекте.

Испытание динамической нагрузкой должно состоять из нескольких циклов последовательных заездов испытательного поезда с постепенно возрастающими скоростями.

После каждого цикла заездов в зависимости от величины осадки и состояния пути определяется порядок продолжения испытаний.

В процессе испытаний по маркам специальной конструкции ведутся наблюдения за упругими и остаточными осадками основания насыпи.

О результатах испытаний составляется акт, в котором отмечается пригодность насыпи для нормальной эксплуатации.

Насыпь можно считать пригодной для нормальной эксплуатации, если не наблюдаются местные просадки и перекосы пути, а упругие осадки и другие деформации насыпи и основания не превышают величин, установленных в проекте.

ПРИЛОЖЕНИЕ З

ОПРЕДЕЛЕНИЕ РАЗМЕРА КАМНЯ ДЛЯ ЗАЩИТЫ ОТКОСА ОТ РАЗМЫВА ТЕКУЩИМ ПОТОКОМ

Определение расчетного диаметра камня как шара dк, требуемого для укрепления откоса от размыва текущим водотоком, рекомендуется производить по формуле

                                         (З.1)

где А - коэффициент, учитывающий устойчивость камня на откосе, рекомендуется принимать А = 1 на участках крутых поворотов русла реки (R < 300 м) и А = 1,15 во всех остальных участках;

g - ускорение свободного падения;

rк, rw - соответственно плотность камня и воды;

a - угол наклона поверхности откоса бермы к горизонту;

Vp - расчетная скорость течения водотока. При проектировании защитных конструкций в качестве расчетной скорости следует принимать среднюю скорость потока на вертикали у подошвы откоса в рассматриваемом створе.

ПРИЛОЖЕНИЕ И

ВЕЛИЧИНА УШИРЕННОЙ ЗАЩИТНОЙ ПРИЗМЫ Dl ПРИ ЗАЩИТЕ ОТКОСА ОТ РАЗМЫВА С ИСПОЛЬЗОВАНИЕМ НЕСОРТИРОВАННОЙ ГОРНОЙ МАССЫ

H - высота укрепляемого откоса; т - заложение укрепляемого откоса

------ dк = 1,0 м; - - - - - dк = 0,5 м

ПРИЛОЖЕНИЕ К

АРМИРУЮЩИЕ МАТЕРИАЛЫ

В качестве армирующих материалов в армогрунтовых конструкциях в мировой практике используют: металл, железобетон, геотекстиль, а также различные комбинированные конструкции.

В последнее время в качестве армирующих полотнищ все чаще применяют геотекстильные материалы.

Общий перечень номенклатуры геотекстильных материалов включает более 200 марок, выпускаемых в стране и за рубежом [4, 7].

Геотекстильные материалы изготавливают из нефти (полиамиды, полиэфиры, полипропилены), кремнезема (стекловолокно), древесной пульпы (вискоза, ацетат). Выпускают их в виде полотнищ (тканых, нетканых, сетчатых).

При применении в качестве армирующих элементов геотекстиля предпочтение отдается материалам, обладающим высокими прочностью на растяжение и модулем деформации (небольшим удлинением при разрыве), устойчивыми при воздействии температурных колебаний, минеральных кислот, щелочных сред, засоленности, влаги и солнечной радиации.

В таблице К.1 приведены характеристики некоторых выпускаемых в нашей стране геотекстильных материалов.

Таблица К.1

Наименование материала

Усилие разрыва, кН/м (кг/м)

Толщина, мм

Удлинение при разрыве, %

Ширина рулона, м

Дорнит (синтетический нетканый материал различных марок, ТУ 21-29-81)

5 - 12

(500 - 1200)

4 - 5

70 - 140

1,5 - 2,5

Армодор-1 (отходы синтетических волокон и восстановленной шерсти, пропитанные водной дисперсией резины)

4 - 7

(400 - 700)

4

60 - 70

1,6

СПАП-Кема (стеклопластик на основе стеклосетки, ТУ 6-11-217-76)*

63 - 73

(6300 - 7300)

1

4 - 5

1

Ровинговая ткань ТУ 6-48-43-90 марки Тр-07

80

(8000)

1

3 - 4

1

Стеклопластик РСТ-Л (на основе стеклосетки вязально-прошивной электроизоляционной марки ВП7-04, ТУ 6-11-286-73)**

80

(8000)

1

5 - 6

1

Стеклопластик НС-120-ТС (на основе стеклосетки из некрученых стеклонитей)

30 - 40

(3000 - 4000)

0,5

2 - 4

1

Стекловолокно НПС-290-0 (некрученые нити с крупными ячейками, пропитанные латексом)

38

(3800)

1

-

1

* Пропиточный состав: лак бакелитовый - 100 в.ч.; хлорпарафин (ТУ 6-01-568-76) - 10 в.ч.; флотореагентоксоль (ТУ 38.103.429-83) - 40 в.ч.

** Покрытие латексом марки ВХВД-А.

Из таблицы видно, что требованиям армирования грунтов в наибольшей степени удовлетворяют стеклоткани и стеклосетки, покрытые различными защитными пленками, смолами и лаками (так называемые стеклопластики).

Стеклопластики имеют следующие преимущества:

высокую прочность на разрыв;

незначительное относительное удлинение (высокий модуль деформации), что позволяет им включаться в работу практически одновременно с грунтом;

устойчивы к атмосферным и другим внешним воздействиям (при покрытии их защитными пленками, лаками и смолами соответствующего состава);

сравнительно невысокую стоимость.

При строительстве железных дорог геотекстильные материалы целесообразно применять в следующих случаях.

Таблица К.2

Сфера применения

Рекомендуемый материал

1. Для усиления рабочей зоны земляного полотна (в основании балластной призмы или защитного слоя)

Дорнит или стеклоткани и стеклопластики (возможны в комбинации)

2. Для повышения несущей способности слабых оснований (представленных торфами, илами, сапропелями и др.)

Стеклоткани и стеклопластики в комбинации с дорнитом

3. При сооружении насыпей из некондиционных грунтов (твердомерзлые пески, переувлажненные глинистые грунты для создания замкнутых оболочек в откосных зонах)

Дорнит

4. Для создания насыпей с повышенной крутизной откосов (в сложных инженерно-геологических и стесненных условиях)

Стеклоткани и стеклопластики в комбинации с дорнитом

5. Защита откосов земляных сооружений от эрозии

Заанкерная стеклосетка в комбинации с посевом трав по растительному слою

6. В конструкциях защиты откосов подтопляемых насыпей от размывов на водоемах и водотоках

Дорнит - в качестве антифильтра под плитами и каменной наброской; стеклоткани и стеклопластики для армирования откосов насыпей, устраиваемых вдоль водотоков при условии защиты откосов облегченными железобетонными плитами

7. В дренажах в качестве фильтрационной защиты крупнообломочного заполнителя и труб от кольматации

Дорнит

ПРИЛОЖЕНИЕ Л

ХАРАКТЕРИСТИКА ПОЛИМЕРНЫХ ТРУБ И ТРУБОФИЛЬТРОВ [32]

Прейскурант, наименование изделий

Позиция

Диаметр трубы, мм

Единица измерения

1, Прейскурант 05-03-32 на изделия из пластмасс:

 

 

1000 м

а) трубы дренажные гофрированные из полиэтилена (ПВП) (ТУ 6-19-224-83)

8-0128

8-0219

8-0220

90

110

125

 

б) трубы из поливинилхлорида (ПВХ)

 

116

 

2. Ирпенский комбинат «Прогресс»:

 

100

м

а) трубы витые из поливинилхлорида (ТУ 21 УССР-72-72)

 

150

»

б) трубофильтр из ПВХ, опыленный защитным фильтром из полиэтилена

 

100

»

3. Прейскурант 06-14-01. Трубофильтр из керамзитобетона (Лианозовский завод)

3-079

150

»

4 Трубофильтр из керамзитобетона (экспериментальный завод ВНИИЖТ МПС)

 

125

0,5 м

5. Муфта из полиэтилена

 

-

1 шт.

ПРИЛОЖЕНИЕ М

СХЕМАТИЧЕСКАЯ КАРТА КЛИМАТИЧЕСКОГО РАЙОНИРОВАНИЯ ТЕРРИТОРИЙ ДЛЯ СТРОИТЕЛЬСТВА (СНиП 2.01.01-82)

Обозначения:

 

________

границы климатических подрайонов;

северная строительно-климатическая зона

Характеристики климатических районов

Климатические районы

Климатические подрайоны

Среднемесячная t воздуха в январе, °С

Среднемесячная t воздуха в июле, °С

Среднегодовое количество осадков, мм

Возможная испаряемость с поверхности суши, мм

Характеристика подрайона

1

2

3

4

5

6

7

I

От -32 и ниже

От 4   до 19

184 - 705

200 - 300

Вечная мерзлота

»    -28  »   »

»  0    »  13

 

 

То же

»   -14  до -28

» 12    »  21

485 - 697

360 - 410*

300 - 500

600 - 700*

Суровый климат, избыточное увлажнение

От -14 до -28

От   0 до 14

 

 

Вечная мерзлота

»    -14  »   -32

»  10  »  20

478 - 688

300 - 400

Суровый климат, избыточное увлажнение

II

IIА

От -4 до -14

От   8 до 12

589 - 675

200 - 400

Суровый климат, избыточное увлажнение

IIБ

»    -3  »   -15

»  12  »  21

678 - 856

300 - 500

Избыточное увлажнение

IIВ

»    -4  »   -14

»  12  »  21

609 - 798

300 - 600

То же

IIГ

»    -5  »   -14

»  12  »  21

 

 

III

IIIА

От -14 до -20

От 21   до 25

195 - 432

500 - 800

Засушливый климат

IIIБ

»      -5  »    +2

»  21    »  25

 

 

IIIВ

»      -5  »   -14

»  21    »  25

403 - 629

500 - 800

IV

IVА

От -10 до +2

От 26 и выше

127 - 437

1000 - 1400

Засушливый климат

IVБ

»     +2  »  +6

»   22  до   28

 

 

Субтропики

IVВ

»        0  »  +2

»   25   »    28

 

 

»

IVГ

»    -15  »    0

»   25   »    28

151 - 249

800 - 1000

Засушливый климат

* Значения характеризуют климат вблизи Целинограда и Караганды, которые по условиям дорожного строительства целесообразно выделить из подрайона IВ и включить в подрайон IIIА.

Примечание - Графы 1 - 4 взяты из таблицы СНиП 2.01.01-82; графа 5 заполнена на основании данных приложения 3 этого же СНиП; графа 6 заполнена по данным климатического атласа СССР, вып. 1.

ПРИЛОЖЕНИЕ Н

СХЕМАТИЧЕСКАЯ КАРТА ГЛУБИНЫ ПРОМЕРЗАНИЯ ГЛИНИСТЫХ И СУГЛИНИСТЫХ ГРУНТОВ (СНиП 2.01.01-82)

ПРИЛОЖЕНИЕ П

РАСЧЕТ ПАРАМЕТРОВ ВЕТРОВЫХ ВОЛН ДЛЯ ОПРЕДЕЛЕНИЯ ОТМЕТКИ БРОВКИ НАСЫПИ И МОЩНОСТИ КРЕПЛЕНИЯ ОТКОСА

Параметры ветровых волн определяют для двух расчетных случаев:

для назначения отметки бровки насыпи или верха крепления откоса, когда принимают условия подтопления насыпи при наибольшем расходе; при расчете конструкции крепления откоса, когда принимают условия подтопления насыпи при расчетном расходе.

Различные глубины воды на пойме реки при наибольшем и расчетном расходах, а также нормативные обеспеченности ветра и высоты волны в системе шторма для двух названных расчетных случаев определяют два значения высоты волны и ее периода.

Нормативные обеспеченности расходов воды, скорости ветра и расчетной волны в системе шторма даны соответственно в пп. 9.3 и 9.4 настоящего Свода правил.

В систему расчетов входят определение скоростей ветра, параметров волны для расчета высоты наката волны на откос, параметров волны для расчета мощности крепления. Все расчеты производятся в соответствии со СНиП 2.06.04-82*, ВСН 206-87 и РД 31.33.05 [20].

Пример расчета. Рассмотрим участок подходной насыпи к мостовому переходу железной дороги первой категории общей сети у г. Астрахани, работающего в условиях подтопления паводковыми водами р. Волги.

А. Определение расчетных скоростей ветра

Ветровой режим в рассматриваемом районе прогнозируется на основании материалов непрерывных в течение 25 лет срочных наблюдений на Астраханской гидрометобсерватории (ГМО), как репрезентативной для данного района. Астраханская ГМО расположена на местности типа В (п. 2.8 ВСН 206-87); измерения скорости ветра производились флюгером на высоте 11,6 м.

Пики половодья в районе, по данным многолетних гидрографов р. Волги, приходятся на два месяца: май и июнь, для периода которых и определяется расчетная скорость и направление ветра.

Статистические данные повторяемости в процентах градаций ветра по скоростям и направлениям средние за май и июнь месяцы приведены в таблице П.1.

Таблица П.1

Градации скорости ветра, м/с

Направления (румбы)

Всего

С

СВ

В

ЮВ

Ю

ЮЗ

З

СЗ

0 - 1

1,7

0,9

1,25

1,75

1,55

1,55

1,5

1,8

12,0

2 - 5

6,75

7,2

8,55

8,7

5,8

6,8

8,0

7,7

59,5

6 - 9

2,15

2,9

4,05

3,45

2,25

1,8

2,4

2,5

21,5

10 - 13

0,3

0,8

1,1

1,45

0,35

0,35

0,65

0,75

5,75

14 - 17

0,08

0,15

0,2

0,3

0,085

0,035

0,15

0,135

1,135

18 - 20

 

 

 

0,03

0,015

0,015

0,015

0,035

0,11

21 - 26

 

 

 

 

0,015

 

 

 

0,015

Всего Р, %

10,98

11,95

15,15

15,68

10,065

10,55

12,715

12,92

100,01

Таблица П.2

В процентах

Скорость ветра, м/с

Направления (румбы)

С

СВ

В

ЮВ

Ю

ЮЗ

З

СЗ

Р

F

Р

F

Р

F

Р

F

Р

F

Р

F

Р

F

Р

F

21 - 26

 

 

 

 

 

 

 

 

0,15

0,15

 

 

 

 

 

 

18 - 20

 

 

 

 

 

 

0,19

0,19

0,15

0,30

0,14

0,14

0,12

0,12

0,27

0,27

14 - 17

0,73

0,73

1,25

1,25

1,32

1,32

1,91

2,10

0,85

1,15

0,33

0,47

1,18

1,30

1,04

1,37

10 - 13

2,73

3,46

6,70

7,95

7,26

8,58

9,25

11,35

3,48

4,63

3,32

3,79

5,11

6,41

5,80

7,11

6 - 9

19,58

23,04

24,27

32,22

26,74

35,32

22,00

33,35

22,35

26,98

17,06

20,84

18,87

25,28

19,36

26,47

2 - 5

61,48

84,52

60,25

92,47

56,43

91,75

55,49

88,84

57,62

84,60

64,46

85,30

62,92

88,20

59,60

86,07

0 - 1

15,48

100,0

7,53

100,0

8,25

100,0

11,16

100,0

15,40

100,0

14,7

100,0

11,8

100,0

13,93

100,0

Для каждого румба рассчитаны повторяемость ветра по градациям Р, % числа случаев наблюдений (из таблицы П.1), а также обеспеченности F, % (как последовательные суммы повторяемостей по градациям от больших скоростей ветра к меньшим). Результат приведен в таблице П.2. По обеспеченностям F, %, на клетчатке вероятностей строятся графики режимных функций ветра в рассматриваемом районе (рисунок П.1), для всех 8 румбов.

Расчетные скорости ветра в соответствии с пп. 9.3 и 9.4 приняты повторяемостей: при определении отметки бровки насыпи 1 раз в 2 года (обеспеченность 50 %) и при расчетах мощности крепления 1 раз в 25 лет (обеспеченность 4 %).

Для каждого румба применительно к использованным данным статистического ряда наблюденных скоростей ветра определяется обеспеченность ветра повторяющегося один раз в нормативные nt лет по формуле (1) ВСН 206-87

                                                 (П.1)

где t - непрерывная продолжительность действия ветра (при отсутствии данных принимается равной 6 ч);

N - число дней срочных наблюдений в году за паводковый период, в данном примере май-июнь N = 61 день;

nt - нормативное число лет повторяемости ветра, в данном примере nt1 = 2 года и nt2 = 25 лет;

PV - повторяемость направления ветра в долях единицы от суммы повторяемостей всех направлений (берется из последней строчки таблицы П.1).

Рисунок П.1 - Режимные функции скорости ветра (ГМО г. Астрахань)

Вычисленные значения обеспеченностей в процентах F2 и F25 и соответственно им снятые с графиков режимных функций (рисунок П.1) расчетные скорости ветра V50% и V4% приведены в таблице П.3.

Таблица П.3

Показатели

Направление ветра (румбы)

С

СВ

В

ЮВ

Ю

ЮЗ

З

СЗ

F2 (50 %), %

1,87

1,72

1,35

1,31

2,04

1,44

1,61

1,59

F25 (4 %), %

0,15

0,14

0,11

0,10

0,16

0,16

0,13

0,13

V4%, м/с

17,0

18,0

18,5

14,0

19,0

17,0

19,5

19,0

V50%, м/с

12,5

13,5

14,5

15,0

13,0

11,5

13,5

14,0

Скорость ветра Vw, прогнозируемую по данным материковой гидрометеостанции Vlz, следует привести к условиям водной поверхности на высоте Z = 10 м по формуле (149) СНиП 2.06.04-82*:

                                                              (П.2)

где Vl = Vlz, kz - скорость на высоте z = 10 м на материковой ГМО;

kz - коэффициент приведения скорости ветра к значению на высоте 10 м, принимаемый при z = 5 м - 1,1; z = 10 м - 1,0; при z = 20 м - более 0,9, в данном примере z = 11,6 м - 0,98;

kfl - коэффициент пересчета скорости, измеренной флюгером (но не более 1).

                                                         (П.3)

здесь kl - коэффициент приведения скорости ветра, измеренной на материковой ГМО, к условиям водной поверхности протяженностью L, км, в зависимости от типа местности А, В и С по СНиП 2.01.07-85; при длине водоема менее 20 км следует пользоваться графиком рисунка 2 СНиП 2.01.07-85, ВСН 206-87.

Расчеты скоростей ветра над водной поверхностью по 8 румбам для повторяемости 1 раз в 2 года (обеспеченность 50 % для назначения отметки бровки насыпи) и 1 раз в 25 лет (обеспеченность 4 % для расчета мощности крепления) приведены в таблицах П.4 и П.5.

Таблица П.4

Наименование расчетных величин

Значения расчетных величин

С

СВ

В

ЮВ

Ю

ЮЗ

З

СЗ

Vlz, м/с

12,5

13,5

14,5

15,0

13,0

11,5

13,5

14,0

kfl

1,0

1,0

0,99

0,98

1,0

1,0

1,0

1,0

kfl Vl, м/с

12,0

13,2

14,1

14,4

12,7

11,3

13,2

13,7

L, км

-

1,2

1,2

1,2

-

3,2

3,2

3,2

kl

-

1,06

1,06

1,06

-

1,14

1,13

1,129

Vw 50 %, м/с

-

14,0

15,0

15,3

-

12,9

15,0

15,5

Таблица П.5

Наименование расчетных величин

Значения расчетных величин

С

СВ

В

ЮВ

Ю

ЮЗ

З

СЗ

Vlz, м/с

17,0

18,0

18,5

19,0

19,0

17,0

19,5

19,0

kfl

0,945

0,931

0,924

0,917

0,917

0,944

0,911

0,917

kfl Vlz, м/с

15,8

16,4

16,7

17,1

17,1

15,8

17,4

17,1

L, км

-

1,2

1,2

1,2

-

3,2

3,2

3,2

kl

-

1,055

1,055

1,055

-

1,12

1,12

1,12

Vw 4 %, м/с

-

17,3

17,6

18,0

-

17,7

19,5

19,2

Б. Определение параметров волн и высоты наката для назначения отметки бровки насыпи

Исходя из топографии района подтопления и азимута оси насыпи a = 187° установлено, что наибольшие длины разгонов волн, подходящих практически фронтально к оси насыпи со стороны р. Волги (западное направление) и со стороны ее поймы (восточное направление), составляют соответственно 3200 м и 1200 м.

По этим направлениям прогнозируемые скорости ветра практически будут наибольшими (см. таблицу П.3), т.е. направления являются волноопасными и для них определяются расчетные параметры волн.

В случаях сложной конфигурации береговой линии волноопасное направление определяется по результатам расчета высоты волны с использованием спектрального метода, а при отклонении главного луча волны от нормали к оси насыпи более 20°, должна учитываться рефракция волны в соответствии с пп. 14 - 17 приложения 1 СНиП 2.06.04-82*

Бровка насыпи назначается исходя из уровня на пике паводка повторяемостью 1 раз в 300 лет (обеспеченность 0,33 %) и высота наката на этот откос при шторме повторяемостью 1 раз в 2 года (обеспеченность 50 %).

Для одной из характерных точек трассы железной дороги (а их на проектируемом участке может быть несколько) по волноопасному направлению «запад» на луче протяженностью L = 3200 м средняя глубина воды на акватории определена с плана с горизонталями в масштабе 1:25000, значением dср = 3,45 м, а по волноопасному направлению «восток» на луче протяженностью L = 1200 - dср = 2,30 м.

При сложном рельефе дна на акватории должно учитываться изменение глубины воды по лучу волны (п. 3.5 ВСН 206-87), или в итоге расчетная высота волны, как правило, будет меньше.

При расчетном ветре западного направления V50% = 15 м/с и восточного V50% = 15 м/с определяются относительные характеристики разгона волны  и средней глубины воды . По ним с графика рисунка 1, приложение 1, СНиП 2.06.04-82* снимаются относительные характеристики параметров волны: средней высоты  и периода , по которым определяются средняя высота волны h, ее период Т и длина l.

Высота наката волны на откос рассчитывается по волне h1% обеспеченностью 1 % (в системе шторма).

                                                       (П.4)

                                                          (П.5)

Результаты расчетов приведены в таблице П.6.

У основания откоса насыпи глубина воды d = 1,45 м и волна, выходя на мелководную зону, трансформируется. Ее высота hi определяется по п. 17, формуле (153) и графику рисунка 5 приложения 1 СНиП 2,06.04-82*:

                                                      (П.6)

где kt, kr, kl - коэффициенты соответственно трансформации, рефракции и потерь;

ki, hd - высота волны до трансформации.

Коэффициент трансформации определяется в функции от . При угле подхода луча волны к откосу a = 7° рефракция волны не возникает и kr = 1, а при уклонах дна более 0,03 потери отсутствуют (kl = 1).

Волна начинает разрушаться с глубины меньшей критической dcr, определяемой в функции  и при глубине у откоса d = 1,45 м > dcr разрушается и переходит в накат непосредственно на откосе. Расчет параметров волны для определения высоты наката дан в таблице П.7.

Высоту наката волны hrun 1% (обеспеченность по накату 1 %) на откос заложением т фронтально подходящей волны h1% определяют по формуле (25), графику рисунка 10 и таблицам 6 - 9 п. 1.14 СНиП 2.06.04-82*.

                                            (П.7)

где kr и kp - коэффициенты шероховатости и проницаемости защитного покрытия;

ksp - коэффициент, зависящий от скорости ветра и заложения откоса;

krun - коэффициент, зависящий от пологости волны l / h и заложения откоса т. При угле a луча волны к нормали оси насыпи высота наката уменьшается на коэффициент ka.

В нашем примере для откоса заложением т = 2 в предположении укрепления его железобетонными плитами и угле a = 7° результаты расчета высоты наката волны на откосы насыпи с западного и восточного направлений сведены в таблицу П.8.

Таблица П.6

Волноопасное направление

, м

Т, с

h1%, м

l, м

Запад

140

0,15

0,016

1,47

0,36

2,25

0,75

7,9

Восток

52

0,10

0,011

1,19

0,26

1,82

0,54

5,2

Таблица П.7

Волноопасное направление

h1%, м

Т, с

l, м

d, м

d / l

kl

hт1%, м

dcr, м

Запад

0,75

2,25

7,9

1,45

0,18

0,91

0,68

0,014

0,10

0,79

Восток

0,54

1,82

5,2

1,45

0,28

0,95

0,51

0,016

0,11

0,57

Таблица П.8

Волноопасное направление

hт1%, м

l, м

kr

kp

ksp

krun

hrun 1%, м

ka

hrun 1%, м

Запад

0,68

7,9

1

0,9

1,25

2,0

1,53

0,985

1,51

Восток

0,51

5,2

1

0,9

1,25

1,85

1,06

0,985

1,05

Таким образом бровка земляного полотна должна возвышаться над уровнем воды, соответствующем паводковому расходу повторяемостью один раз в 300 лет на величину наката hrun = 1,51 м с запасом а = 0,5 м.

Бровка насыпи также должна быть поднята на высоту нагона и подпора (у мостовых переходов), если эти явления прогнозируются в районе проектируемого объекта.

В. Определение параметров волны для расчета мощности крепления

Обычно расчеты проводятся для тех же характерных точек трассы насыпи и принимаются за расчетные те же волноопасные направления, что и в случае расчетов, проводимых для назначения бровки насыпи.

При расчете мощности креплений откоса за исходные принимаются расчетный расход повторяемостью один раз в 100 лет (обеспеченность - 1 %) и шторм повторяемостью один раз в 25 лет (обеспеченность - 4 %).

В системе шторма расчетной принимается волна обеспеченностью 5 %. Уровень воды при расчетном расходе в нашем примере на 0,4 м ниже уровня наибольшего расхода. Уменьшатся соответственно средние глубины и длины разгонов по западному волноопасному направлению до значений d = 3,05 м и L = 2900 м и восточному - d = 1,90 м и L = 900 м.

Расчетные скорости ветра обеспеченностью 4 % для западного направления V4% = 19,5 м/с и восточного V4% = 17,6 м/с взяты из таблицы П.5.

Относительные характеристики разгона волны, глубины воды, соответствующие им, приведены на графике рисунка 1 приложения 1 СНиП 2.06.04-82*, относительные характеристики параметров волны и соответственно параметры волны приведены в таблице П.9, при этом h5% = 1,76 h.

Полученные параметры волн могут быть откорректированы в связи с трансформацией волны аналогично методу, изложенному при расчете наката волны на откос.

Таблица П.9

Волноопасное направление

, м

Т, с

h5%, м

l, м

Запад

74,8

0,08

0,011

1,15

0,43

2,29

0,75

8,2

Восток

28,5

0,06

0,0078

0,92

0,25

1,65

0,44

4,25

Г. Назначение конструкций укрепления откоса

Полученные в пунктах Б и В параметры волн служат основой для расчета и назначения типа и мощности защитной конструкции.

Высота насыпи в случае определения ее только гидравлическими условиями не должна быть менее

                                                  (П.8)

где h - глубина воды у основания откоса насыпи при уровне наибольшего паводка обеспеченностью 0,33 %;

hrun 1% - высота наката волны на откос;

a - запас 0,25 - 0,5 м.

При соответствующих условиях высоту насыпи следует поднимать, учитывая нагон и подпор воды. В данном примере высота насыпи H = 1,45 + 1,51 + 0,5 = 3,46 м.

Укрепление откоса заложением т = 2 выполняют от его основания до бровки насыпи на всей его длине  = 7,74 м конструкциями, рассчитанными на высоту волны с западной стороны h = 0,75 м и восточной h = 0,44 м. Покрытие, выполненное по этим параметрам волн, называется основным.

В случае больших глубин у откоса и волновых воздействий, когда высота наката hrun 1% возрастает, в соответствии с указаниями ВСН 206-87 целесообразно мощность и тип конструкций дифференцировать по длине откоса, назначая в зоне разрушения волны основное крепление, а выше по откосу в зоне наката крепление облегченное. Верхняя граница основного крепления при этом принимается на отметке

                                            (П.9)

где Ñ - отметка уровня воды на пике наибольшего паводка обеспеченностью 0,33 % (с учетом нагона и подпора).

Облегченное крепление рассчитывается на скорость потока в зоне наката, образовавшегося после разрушения волны. Скорость может быть определена формулой

                                                    (П.10)

где h5% - высота расчетной волны в зоне разрушения.

Тип и мощность креплений определяют по материалам типовых проектов, приведенных в Альбомах [16, 22].

В данном примере защита откоса насыпи основным креплением с западного волноопасного направления при h5% = 0,75 м может быть выполнена каменной наброской с dcp = 0,25 м и толщиной t = 3dcp = 0,75 м (листы 10 - 13, Альбом [16]), бетонными плитами 1´1´0,16 м (лист 14, Альбом [16]), железобетонными плитами с открытыми швами 2,5´3,0´0,15 м (лист 16 - 19, Альбом [16]), железобетонными плитами 2,5´3,0´0,10 м, омоноличенными по контуру (листы 20 - 38, Альбом [16]) и монолитными железобетонными плитами толщиной 0,15 м.

С восточного волноопасного направления при h5% = 0,44 м крепление может быть выполнено каменной наброской с dcp = 0,14 м толщиной t = 0,42 м и бетонными плитами 1´1´0,16 м.

В том случае, когда значения расчетной высоты волны на проектируемом объекте ниже нормативной типового проекта обратный песчано-гравийный фильтр и щебеночную подготовку под покрытием возможно заменять геотекстилем в соответствии с указаниями ВСН 205-87, ТУ ЦП-4591 [19] и Рекомендациями [23].

ПРИЛОЖЕНИЕ Р

УСТОЙЧИВОСТЬ ЗЕМЛЯНОГО ПОЛОТНА НА УЧАСТКАХ СКЛОНОВЫХ ПРОЦЕССОВ В ЛЕССОВИДНЫХ ГРУНТАХ

Различные формы нарушения устойчивости склонов следует рассматривать в качестве форм нарушения устойчивости земляного полотна, расположенного на склонах. В лессовидных грунтах наиболее распространены следующие формы нарушения устойчивости склонов.

Поверхностные оплывины - оползание почвенно-растительного слоя по подпочве вследствие насыщения грунта влагой атмосферных осадков со склонов крутизной 25 - 30°. Глубина захвата пород смещения не более 2,0 м. Распространены повсеместно.

Сплывы - на склонах крутизной 25 - 30°. Глубина захвата пород смещением 5 - 6 м. Объем сместившихся масс - до 100 тыс. м3.

Оползни-обвалы - на склонах круче 30°. Глубина захвата пород смещением до 20,0 м. Происходят во влажные сезоны года.

Оползни-потоки - на склонах крутизной 15 - 45°, т.е. практически не зависят от крутизны склонов. Имеют русловой характер с шириной русла до 500 м при длине 1 - 2 км. Очень опасны, так как сходят внезапно и могут формировать селевые потоки.

Ступенчатые оползни - на склонах крутизной 15 - 45°. Глубина захвата пород смещением до 80 м. Практически не зависят от крутизны склонов. Тело оползня состоит из больших блоков, образующих на продольном профиле русла характерные ступени.

Щебенисто-глинистые потоки - на склонах круче 30°. Происходят вследствие изменений режима грунтовых вод.

Контактные оползни - перемещение толщи пород по контакту с пластичной породой на склонах крутизной 18 - 40°. Глубина захвата пород смещением - десятки метров. Сходят медленно, редко - катастрофически.

Принято считать, что все склоновые процессы вызываются аномально обильными в некоторые годы атмосферными осадками, когда грунты склонов переувлажняются, теряют прочность и оползают со склонов в той или иной форме.

С течением времени склоны постепенно увеличивают крутизну, а подземные водные потоки в их теле меняют маршруты своего следования и гидрологические режимы. Идет постоянная подготовка будущих оползней.

То или иное количество атмосферных осадков служит проявителем оползней, подготовленных ранее природными процессами.

Перечисленные виды нарушений устойчивости склонов можно сгруппировать по степени их опасности для железнодорожного земляного полотна и по их предсказуемости.

Первая группа. Поверхностные оплывины, оползни-обвалы, щебенисто-глинистые потоки. Все они происходят вследствие подготовки процессами поднятия регионов. Поверхностные оплывины большой опасности для целостности земляного полотна не представляют, их объемы недостаточны для того, чтобы вызвать серьезные разрушения. Оползни-обвалы можно предвидеть и заранее ликвидировать возможность их проявления путем устранения нависающих козырьков, уположения крутых обрывистых участков на склонах, устройства подпорных стенок. Предсказание появления щебенисто-глинистых потоков возможно при результатах ежегодной аэрофотосъемки опасных склонов в инфракрасных лучах. Такая съемка дает возможность следить за накоплением подземных вод на участках, где есть материалы для формирования тела щебенисто-глинистого потока.

83 % всех оползней происходит на склонах теневой экспозиции, 64 % на склонах с выпукло-вогнутым и выпуклым продольным профилем; 56 % - на склонах, вогнутых в плане. Следовательно, наилучший способ избежать появления оползней этой группы и расходов на их прогноз, предупреждение и ликвидация последствий схода - вести трассирование будущей железной дороги по возможности избегая расположения ее земляного полотна на склонах крутизной 25 - 30°, стараясь держаться на расстоянии не менее 4 км от местных разломов земной коры по склонам южной, юго-восточной и юго-западной экспозиции с вогнутым продольным и выпуклым в плане профилем.

Вторая группа. Русловые оползни, практически независимые от крутизны склонов - оползни-потоки, ступенчатые оползни. Русловые оползни, происходящие в интервале крутизны склонов от 25 до 35° - сплывы. Независимость от крутизны склонов и пространственный характер первых двух типов не дают возможности прогнозировать последние ныне действующими методами расчета устойчивости склонов. Впервые метод их расчета был предложен в работе [38].

Поскольку формирование тела оползней руслового типа связано с наличием в грунтах склонов просадочных горизонтов, полный расчет-прогноз распадается на этапы:

1-й - обследование склона с целью обнаружения в интервале глубин 8 - 20 м просадочных горизонтов и определение в лаборатории коэффициента K, характеризующего снижение модуля общей деформации грунтов указанных горизонтов при замачивании.

Если K £ 0,80, следует выполнить расчет на возможность сформирования тела русловых оползней;

2-й - расчет ведут по сечению русла, поперечному к направлению движения грунтовых масс тела будущего оползня. Глубину русла последнего считают равной глубине залегания просадочного горизонта. Расчетную ширину назначают по кривым рисунка Р.1. Поскольку наиболее опасными являются оползни-потоки, рекомендуется в первую очередь выполнить расчет на возможность их появления;

1 - для ступенчатых оползней; 2 - для оползней-потоков

Рисунок Р.1 - Корреляция между глубиной захвата пород смещением и шириной оползня руслового типа

3-й - при положительном результате расчета переходят к определению возможностей увлажнения просадочного горизонта грунта для будущего оползня. Этот этап может длиться десятилетиями, ибо при отсутствии источника увлажнения просадочного горизонта тело оползня не сформируется.

Возможность увлажнения прогнозируют по материалам аэрофотосъемки склонов в инфракрасных лучах или путем размещения в просадочном горизонте надежно работающих датчиков влажности. В случае обнаружения внутри склона бассейна подземной воды с размерами, близкими к расчетной ширине русла будущего оползня и при длине бассейна вниз по склону вчетверо превышающей ширину, следует готовиться к сходу оползня.

Механизм образования сплывов не может быть сведен к механизму образования первых двух видов русловых оползней потому, что на глубинах 5 - 6 м нет закономерно приуроченных к ним просадочных горизонтов, а соотношение между шириной русла и глубиной захвата пород смещением меньше чем у первых двух видов русловых оползней. Нельзя объяснить сплывы и сезонными колебаниями влажности грунтов за счет атмосферных осадков, так как на отметках дна их русла указанные колебания отсутствуют.

В то же время визуальное обследование сошедших сплывов позволяет с полной достоверностью утверждать, что в подошве стенки срыва всегда есть источник увлажнения. Его появление на ранее устойчивом склоне можно объяснить только изменением маршрутов водных потоков вследствие постоянно идущего процесса поднятия.

Грунты дна русла сплыва должны быть сильно набухающими, только тогда соотношение между шириной русла и глубиной захвата пород смещением будет меньше, чем у оползней-потоков.

Наибольшее количество русловых оползней происходит в глинистых породах, содержащих гипс, а это и есть сильно набухающие грунты. Таким образом, наиболее вероятная причина возникновения сплывов - это увлажнение загипсованных пород дна русла блуждающим водным потоком внутри склона.

Метод расчета сплывов на сегодняшний день отсутствует. Прогноз возникновения - по материалам аэрофотосъемки склона в инфракрасных лучах и данным о грунтах склона на глубинах 5 - 6 м.

Рекомендации по трассированию аналогичны таковым для первой группы оползней.

Третья группа. Контактные оползни. Характер их появления и схода, глубина захвата пород смещением позволяют предположить, что они возникают в результате постепенного увеличения крутизны склонов в сочетании с сезонной активностью межпластовых вод.

Их прогноз возможен методом Н.Н. Маслова на скольжение по поверхности, предопределенной геологическим строением склона. Однако задача обнаружения такой поверхности скольжения затрудняется тем, что образцы грунта с различных глубин по 2 - 3 створам на каждом склоне необходимо отбирать не менее 4 раз в году в течение 20 лет, предшествующих началу работ по освоению склонов. Кроме того, каждый сезонный отбор проб сопряжен с рытьем глубоких шурфов одноразового использования или бурения каждый раз новых скважин с периодическими перегонами буровой техники вниз и вверх по склону.

Стоимость работ очень высокая, результаты не гарантированы и, следовательно, неопределенны.

Поэтому прогноз оползней этой группы может иметь лишь гипотетический характер.

В основном же можно рассчитывать только на растянутость их схода во времени, имея в виду возможность за этот период выполнить противооползневые или спасательные мероприятия. Рекомендации по трассированию - как для оползней 1-й и 2-й групп.

Большой фактический материал показывает, что на сухих лессовых косогорах типичной формой нарушения устойчивости откосов выемок является их эрозионное разрушение от атмосферных осадков.

Объем разрушений и возможность выноса продуктов последних в эксплуатируемое пространство поперечного профиля выемки тесно связано с крутизной нагорных откосов выемки и крутизной косогора, в который врезана последняя. Эта связь использована в работе [38]. В результате полевым методом и методом предельной эрозии получены показанные на рисунке Р.2 кривые оптимальной крутизны откосов, выемок, врезаемых в сухие косогоры, сложенные лессовидными, а также обыкновенными грунтами.

1 - косогоры 1:1,6 и отложе, обыкновенные грунты; 2 - косогоры 1:1,5 и отложе, лессовые грунты; 3 - косогоры 1:3,0 и отложе, лессовые грунты

Рисунок Р.2 - Зависимость оптимальной крутизны откосов выемок от их высоты для сухих косогоров

Использовать эти кривые можно без каких-либо дополнительных расчетов. Для поперечных профилей крутизна откосов назначена по кривым 2 и 3, следует предусмотреть закюветные полки для размещения и последующей уборки с них продуктов ежегодного эрозионного разрушения откосов. Размер полок - до 3,0 м в зависимости от высоты нагорного откоса выемки и крутизны косогора.

Расчеты устойчивости откосов выемок на мокрых косогорах. Полностью, на 100 % и круглый год мокрые косогоры встречаются редко и требуют индивидуального проектирования. Возможны косогоры, увлажняемые подземными водами на некоторой глубине от поверхности косогора, как показано на рисунке Р.3.

Ф3С1 - граница увлажнения, ниже которой грунты имеют W > Wp

Рисунок Р.3 - Расчетная схема для определения устойчивости откоса выемки в мокром лессовом косогоре

До сооружения выемки поверхностный слой грунта обеспечивал существование по направлению R удерживающих напряжений, равных

                                                 (Р.1)

где  t = 0,50gобh2tgjc + Сc; s3 = 0,5gобh2

jc и Сc - углы внутреннего трения и сцепления, соответствующие упругой фазе сопротивления грунтов нагрузкам (см. [38]).

Следовательно, природные давления вдоль по С13 до сооружения выемки в периоды сезонного увлажнения ниже С13 были:

sпр1 = Kgобh1 - rsin a; sпр2 = Kgобh - rsin a; sпр3 = Kgобh2 - rsin a,

где K - коэффициент, характеризующий снижение модуля общей деформации грунтов при увеличении влажности последних.

Значит, как только будет сооружена выемка и удерживающие напряжения по направлению R исчезнут, нагрузка по С13 возрастет при увеличении влажности ниже указанной горизонтали во время ближайшего мокрого сезона там начнется разрушение грунтов.

Блок ДГФ3С1 получит импульс к повороту против часовой стрелки вокруг точки О. Однако указанный блок будет оставаться в покое до тех пор, пока сумма удерживающих моментов от растягивающих напряжений на вертикали Г-О, от сжимающих напряжений по О-Ф3 и природного противодавления, нормального к С13 будет превышать Мразруш от собственного веса G.

Эпюру растягивающих напряжений ГВУО начинают строить с определения максимальных растягивающих напряжений sp » Cc по образцам грунта с глубин 5 - 6 м, где нет сезонных колебаний влажности грунтов от атмосферных осадков.

На участке Г-В ординату эпюры принимают равной 0,20Сc, так как расчеты ведут на наиболее неблагоприятное время года - весну, когда верхние 1,5 м имеют наибольшую влажность и наименьшую прочность.

На участках В-У и У-О с достаточной для практических целей точностью можно провести прямые. Ординаты О-К и Л-Ф3 по упрощенному варианту расчетов можно принять равными 0,6 и 0,5r соответственно.

Определение равнодействующих от растягивающих и сжимающих напряжений, от природного противодавления для поперечного профиля выемки толщиной 1,0 м выполняют по площадям эпюр напряжений. Точками приложения равнодействующих считают центры тяжести соответствующих эпюр. Точкой приложения равнодействующей собственного веса G считают центр тяжести косой трапеции ДГФ3С1.

Возможны случаи, когда граница увлажнения лежит ниже С1-ЮО. В этом случае сначала выполняют расчет на отрыв ДГОЮС1 от материнского массива, а затем - на скольжение по ОЮС1. Точка С1 в общем случае может находиться как выше ее положения, показанного на рисунке Р.3, так и ниже его.

Определение коэффициента надежности по грунту. Во всех расчетах устойчивости приходится иметь дело с образцами грунта, по которым определяют необходимые для расчетов его прочностные характеристики. Поскольку грунты, как правило, неоднородны, всегда имеются различия между каждым отдельным измерением прочностного показателя и всеми другими. Величину этих различий для п измерений принято оценивать коэффициентом вариации n:

                                                     (P.2)

где xi - результат одного измерения;

 - среднеарифметическое значение результатов п измерений.

Чем больше n, тем больший коэффициент безопасности по грунту KГ следует выбирать для того, чтобы разделить  на последний и получить расчетное значение прочностного показателя. На рисунке Р.4 представлен график, по которому можно определить KГ в зависимости от заданной надежности a для расчетной величины того или иного прочностного показателя грунтов. При использовании графика рисунка Р.4 необходимо иметь в виду, что две основные прямые действуют при 3 £ п £ 6. Если 30 > п > 6, то KГ = 1 + na. Прямые, соответствующие последнему уравнению, показаны на рисунке Р.4 тонкими линиями. Также не следует забывать, что KГ для jс;w и для Cc;w будут различными, так как nj и nc будут отличаться друг от друга. Если n окажется больше 0,40 - 0,45 результаты отдельных измерений прочностного показателя следует забраковать и перейти на образцы большего размера. n должен лежать в интервале от 0,10 до 0,25.

Расчеты устойчивости склонов с оползнями руслового типа приведены в ряде работ [38 - 40].

Рисунок Р.4 - График для определения коэффициента безопасности по грунту KГ в зависимости от коэффициента вариации n ряда измерений и заданной надежности a

ПРИЛОЖЕНИЕ С

ПЕРЕЧЕНЬ НОРМАТИВНЫХ ДОКУМЕНТОВ

ГОСТ 5180-84 Грунты. Методы лабораторного определения физических характеристик.

ГОСТ 7394-85 Балласт гравийный и гравийно-песчаный для железнодорожного пути. Технические условия.

ГОСТ 10650-72 Торф. Метод определения степени разложения.

ГОСТ 11305-83 Торф. Методы определения влаги.

ГОСТ 11306-83 Торф и продукты его переработки. Методы определения зольности.

ГОСТ 12071-84 Грунты. Отбор, упаковка, транспортирование и хранение образцов.

ГОСТ 12248-96 Грунты. Методы лабораторного определения характеристик прочности и деформируемости.

ГОСТ 12536-79 Грунты. Методы лабораторного определения зернового (гранулометрического) состава.

ГОСТ 17.4.3.02-85 Охрана природы. Почвы. Требования к охране плодородного слоя почвы при производстве земляных работ.

ГОСТ 17.5.3.04-83 Охрана природы. Земли. Общие требования к рекультивации земель.

ГОСТ 17.5.3.06-85 Охрана природы. Земли. Требования к определению норм снятия плодородного слоя почвы при производстве земляных работ.

ГОСТ 20522-96 Грунты. Методы статистической обработки результатов испытаний.

ГОСТ 21153.2-84 Породы горные. Методы определения предела прочности при одноосном сжатии.

ГОСТ 22733-77 Грунты. Метод лабораторного определения максимальной плотности.

ГОСТ 23061-90 Грунты. Методы радиоизотопных измерений плотности и влажности.

ГОСТ 23161-78 Грунты. Метод лабораторного определения характеристик просадочности.

ГОСТ 23740-79 Грунты. Методы лабораторного определения содержания органических веществ.

ГОСТ 23741-79 Грунты. Методы полевых испытаний на срез в горных выработках.

ГОСТ 24143-80 Грунты. Методы лабораторного определения характеристик набухания и усадки.

ГОСТ 25100-95 Грунты. Классификация.

ГОСТ 25260-82 Породы горные. Метод полевого испытания пенетрационным каротажем.

ГОСТ 25584-90 Грунты. Методы лабораторного определения коэффициента фильтрации.

СНиП 2.01.01-82 Строительная климатология и геофизика.

СНиП 2.01.07-85 Нагрузки и воздействия.

СНиП 2.01.14-83 Определение расчетных гидрологических характеристик.

СНиП 2.01.15-90 Инженерная защита территорий, зданий и сооружений от опасных геологических процессов. Основные положения проектирования.

СНиП 2.02.01-83 Основания зданий и сооружений.

СНиП 2.05.02-85 Автомобильные дороги.

СНиП 2.05.03-84* Мосты и трубы.

СНиП 2.05.07-91 Промышленный транспорт.

СНиП 2.06.05-84* Плотины из грунтовых материалов.

СНиП 2.06.04-82* Нагрузки и воздействия на гидротехнические сооружения (волновые, ледовые и от судов).

СНиП II-7-81* Строительство в сейсмических районах.

СНиП 11-01-95 Инструкция о порядке разработки, согласования, утверждения и составе проектной документации на строительство предприятий, зданий и сооружений.

СНиП 11-02-96 Инженерные изыскания для строительства. Основные положения.

СНиП 32-01-95 Железные дороги колеи 1520 мм.

СП 11-101-95 Порядок разработки, согласования, утверждения и состав обоснований инвестиций в строительство предприятий, зданий и сооружений.

ВСН 61-89 Изыскания, проектирование и строительство железных дорог в районах вечной мерзлоты.

ВСН 200-85 Проектирование и сооружение земляного полотна железнодорожной линии Ягельская-Ямбург.

ВСН 205-87 Нормы на проектирование земляного полотна железных дорог из глинистых грунтов с применением геотекстиля.

ВСН 206-87 Параметры ветровых волн, воздействующих на откосы берегозащитных сооружений.

ВСН 203-89 Нормы и технические условия на проектирование и строительство железных дорог на полуострове Ямал.

СТН Ц-01-95 Железные дороги колеи 1520 мм.

ПРИЛОЖЕНИЕ Т

БИБЛИОГРАФИЯ

[1] Пособие по технологии сооружения земляного полотна железных дорог (в развитие СНиП 3.06.02-86). - М.: ПКТИтрансстрой, 1993.

[2] Методические рекомендации по проектированию и строительству гибких железобетонных покрытий откосов транспортных сооружений / ЦНИИС. - М., 1984.

[3] Рекомендации по проектированию, строительству и эксплуатации фильтрующих насыпей / ЦНИИС. - М., 1987.

[4] Рекомендации по проектированию и строительству устоев диванного типа для малых и средних автодорожных мостов / ЦНИИС. - М., 1988.

[5] Рекомендации по применению подпорно-оседающих стен при строительстве дорог в условиях подмыва земляного полотна / ЦНИИС. - М., 1983.

[6] Рекомендации по проектированию и сооружению земляного полотна на прижимных участках рек / ЦНИИС. - М., 1982.

[7] Армирование геотекстилем откосов земляного полотна: Науч.-техн. информ. сб. № 21. - М., 1989.

[8] Руководство по проектированию противооползневых и противообвальных защитных сооружений. Проектирование противообвальных защитных сооружений / ВПТИтрансстрой. - М., 1984.

[9] Методические рекомендации по проектированию земляного полотна железных дорог на пучинистых грунтах в суровых климатических условиях / ЦНИИС. - М., 1986.

[10] Технические указания по устранению пучин и просадок железнодорожного пути. - М.: Транспорт, 1987.

[11] Рекомендации по проектированию противодеформационных мероприятий на участках весенних просадок пути. - М.: Транспорт, 1982.

[12] Методические рекомендации по проектированию насыпей на болотах по условию допустимых упругих осадок / ЦНИИС. - М., 1981.

[13] Методические указания по предупреждению появления пучин в местах пересечения земляного полотна трубопроводами. - М.: Транспорт, 1974.

[14] Поперечные профили земляного полотна железных дорог колеи 1520 мм. - Инв. № 1223. - М., 1980.

[15] Альбом водоотводных устройств на станциях. - Инв. № 984 / Мосгипротранс. - М., 1975.

[16] Альбом конструкций креплений откосов земляного полотна железных дорог и автомобильных дорог общей сети Союза ССР. - Инв. № 750. - М., 1970.

[17] Пособие по проектированию железных и автомобильных дорог промышленных предприятий в районах вечной мерзлоты (к СНиП 2.05.07-85) / Союзпромтрансниипроект. - М., 1990.

[18] Методические рекомендации по прогнозированию надежной работы железнодорожных насыпей в условиях интенсивной эксплуатации пути / МИИТ. - М., 1990.

[19] Технические указания по применению нетканых материалов для усиления земляного полотна. - М.: Транспорт, 1989.

[20] Методические указания РД 31.33.05. Расчет режимных характеристик ветра для портовых сооружений / СоюзморНИИпроект. - М., 1985.

[21] Наставление по изысканиям и проектированию железнодорожных и автодорожных переходов через водотоки, НИПМ-72. - М.: Транспорт, 1972.

[22] Укрепление русел, конусов и откосов насыпей у малых и средних мостов и водопропускных труб: Альбом / Ленгипротрансмост. - Л., 1981.

[23] Рекомендации по применению геотекстильных материалов в морском гидротехническом строительстве / ЦНИИС. - М., 1989.

[24] Указания по проектированию производства земляных работ при сооружении земляного полотна железных и автомобильных дорог способом гидромеханизации / Мосгипротранс. - М.: 1987.

[25] Методические рекомендации по разработке выемок в глинистых грунтах с влажностью выше оптимальной и использованию этих грунтов для возведения насыпей автомобильных дорог во II и III климатических зонах / СоюздорНИИ - М.: 1988.

[26] Временные методические указания по расчету устойчивости эксплуатируемых насыпей и проектированию контрбанкетов. - М.: Транспорт, 1979.

[27] Методические указания по определению свойств грунтов эксплуатируемого земляного полотна. - М.: Транспорт, 1984.

[28] Временная инструкция по составлению раздела «Оценка воздействия строительства на окружающую среду в проектах железных и автомобильных дорог» / АО ЦНИИС. - М., 1994.

[29] Методические указания по проектированию земляного полотна (выемок) в легковыветривающихся скальных породах / ЦНИИС. - М., 1974.

[30] Методические рекомендации по инженерно-геологическим изысканиям новых железнодорожных линий и реконструкции существующих железных дорог. - М.: ЦНИИС, 1976.

[31] Правила техники безопасности и производственной санитарии при ремонте и содержании железнодорожного пути и сооружений. - М.: Транспорт, 1989.

[32] Рекомендации по сферам применения и технологии сооружения дренажей с полимерными трубами для железнодорожного пути. - М., ЦНИИС, 1987.

[33] Железные дороги в долинах рек / Под ред. Г.С. Переселенкова. - М.: Транспорт, 1991.

[34] Байков В.Н., Сигалов Э.Е. Железобетонные конструкции. - М.: Стройиздат, 1985.

[35] Вериго М.Ф., Крепкогорский С.С. Общие предпосылки для корректировки правил расчетов железнодорожного пути на прочность - предложения по изменению этих правил: Труды ЦНИИ МПС, вып. 466. - М.: Транспорт, 1972.

[36] Зарецкий Ю.К. Лекции по современной механике грунтов. - Ростов: Изд-во Ростовского университета, 1989.

[37] Ибрагимов М.И. Подготовка оснований на закарстованных грунтах инъекцией тампонажных растворов. Строительство на закарстованных территориях: Тезисы докладов Всесоюзного совещания. - Подольск, 22 - 23 ноября 1983 г. - М., 1983.

[38] Казакбаев К.К., Смирнов С.Н. Устойчивость откосов выемок на косогорах. - Ташкент: Фан, 1975.

[39] Колпаков В.Н., Абдуназаров У.К. Инженерно-геологические свойства генетических разностей лессовидных пород Чарвакской впадины // Вопросы методики и инж.-геолог. условия отдельных регионов Узбекистана. - Ташкент: Гидроингео, 1973.

[40] Смирнов С.Н. О разрушении грунтов при сжатии и растяжении // Транспортное строительство. - 1978. - № 3.

[41] Сорочан Е.А. Строительство сооружений на набухающих грунтах. - М.: Стройиздат, 1974.

[42] Трескинский С.А. Горные дороги. - М.: Транспорт, 1974.

[43] Шахунянц Г.М. Железнодорожный путь. - М.: Транспорт, 1987.

[44] Яковлева Т.Г., Шульга В.Я., Амелин С.В. и др. Основы устройства и расчетов железнодорожного пути. - М.: Транспорт, 1990.

Ключевые слова: проект, земляное полотно, грунты, насыпи и выемки, защитный слой, дренирующие грунты, водоотводы, укрепление, конечные упругие осадки, фильтрующие насыпи, вечномерзлые грунты, экологические требования.

 




ГОСТЫ, СТРОИТЕЛЬНЫЕ и ТЕХНИЧЕСКИЕ НОРМАТИВЫ.
Некоммерческая онлайн система, содержащая все Российские Госты, национальные Стандарты и нормативы.
В Системе содержится более 150000 файлов нормативно-технической документации, действующей на территории РФ.
Система предназначена для широкого круга инженерно-технических специалистов.

Рейтинг@Mail.ru Яндекс цитирования

Copyright © www.gostrf.com, 2008 - 2026