Крупнейшая бесплатная информационно-справочная система онлайн доступа к полному собранию технических нормативно-правовых актов РФ. Огромная база технических нормативов (более 150 тысяч документов) и полное собрание национальных стандартов, аутентичное официальной базе Госстандарта. GOSTRF.com - это более 1 Терабайта бесплатной технической информации для всех пользователей интернета. Все электронные копии представленных здесь документов могут распространяться без каких-либо ограничений. Поощряется распространение информации с этого сайта на любых других ресурсах. Каждый человек имеет право на неограниченный доступ к этим документам! Каждый человек имеет право на знание требований, изложенных в данных нормативно-правовых актах!

  


 

МЕЖГОСУДАРСТВЕННЫЙ СТАНДАРТ

КРАНЫ КОЗЛОВЫЕ ЭЛЕКТРИЧЕСКИЕ КОНТЕЙНЕРНЫЕ

Основные параметры и размеры

ГОСТ 24390-99

Предисловие

1. РАЗРАБОТАН Всероссийским научно-исследовательским институтом железнодорожного транспорта (ВНИИЖТ), Государственным Российским научно-исследовательским и проектно-конструкторским институтом подъемно-транспортного машиностроения (ВНИИПТМАШ)

ВНЕСЕН Госстандартом России

2. ПРИНЯТ Межгосударственным советом по стандартизации, метрологии и сертификации (протокол № 15 от 28 мая 1999 г.)

За принятие проголосовали:

Наименование государства

Наименование национального органа по стандартизации

Азербайджанская Республика

Азгосстандарт

Республика Армения

Армгосстандарт

Республика Беларусь

Госстандарт Беларуси

Грузия

Грузстандарт

Республика Казахстан

Госстандарт Республики Казахстан

Киргизская Республика

Киргизстандарт

Республика Молдова

Молдовастандарт

Российская Федерация

Госстандарт России

Туркменистан

Главная государственная инспекция Туркменистана

Украина

Госстандарт Украины

3. Постановлением Государственного комитета Российской Федерации по стандартизации и метрологии от 18 августа 1999 г. № 257-ст межгосударственный стандарт ГОСТ 24390-99 введен в действие непосредственно в качестве государственного стандарта Российской Федерации с 1 июля 2000 г.

4. ВЗАМЕН ГОСТ 24390-86

5. ПЕРЕИЗДАНИЕ. Ноябрь 2004 г.

Содержание

 

Предисловие

1. Область применения

2. Нормативные ссылки

3. Основные параметры и размеры

 

МЕЖГОСУДАРСТВЕННЫЙ СТАНДАРТ

КРАНЫ КОЗЛОВЫЕ ЭЛЕКТРИЧЕСКИЕ КОНТЕЙНЕРНЫЕ

Основные параметры и размеры

Container gantry electrical cranes. Basic parameters and dimensions

ГОСТ 24390-99

Дата введения 2000-07-01

1. Область применения

Настоящий стандарт распространяется на козловые электрические контейнерные краны грузоподъемностью на захвате 6,3; 12,5; 24; 30,5 и 45 т., передвигающиеся по крановым путям, управляемые из кабины, работающие на трехфазном токе напряжением 220 или 380 В частотой 50 Гц, изготавливаемые в климатическом исполнении У и Т категории размещения 1 по ГОСТ 15150 для ветровой нагрузки по ГОСТ 1451, предназначенные для перегрузки и складирования универсальных, специализированных среднетоннажных и крупнотоннажных контейнеров массой брутто 3; 5; 6; 24; 30,5 т. по ГОСТ 18477 и ГОСТ 26380, а также автомобильных полуприцепов массой брутто 45 т. на железнодорожных станциях, морских и речных портах и складах промышленных предприятий, оптовоснабженческих базах.

2. Нормативные ссылки

В настоящем стандарте использованы ссылки на следующие стандарты:

ГОСТ 1451-77 Краны грузоподъемные. Нагрузка ветровая. Нормы и метод определения

ГОСТ 1575-87 Краны грузоподъемные. Ряды основных параметров

ГОСТ 15150-69 Машины, приборы и другие технические изделия. Исполнения для различных климатических районов. Категория, условия эксплуатации, хранения и транспортирования в части воздействия климатических факторов внешней среды

ГОСТ 18477-79 Контейнеры универсальные. Типы, основные параметры и размеры

ГОСТ 25546-82 Краны грузоподъемные. Режимы работы

ГОСТ 26380-84 Контейнеры специализированные групповые. Типы, основные параметры и размеры

3. Основные параметры и размеры

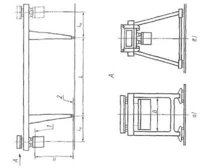
3.1 Основные параметры и размеры козловых электрических контейнерных кранов должны соответствовать указанным на рисунке 1 и в таблице 1 .

Рисунок 1

1 - нижняя плоскость захвата;

а - прямоугольное сечение опоры;

2 - уровень головки кранового

б - трапециевидное сечение опоры рельса

Таблица 1

Основные параметры и размеры

Показатели кранов при грузоподъемности на контейнерном захвате, т

6,3; 12,5

24

30,5

45

Группа режима работы крана по ГОСТ 25546

3 К;

4 К;

5 К;

6 К

Пролет L, м

16; 25

16; 20*;

25; 32;

40

Рабочий вылет консоли L K , м, не менее

3,2*; 4,5

5,0;

8,0**;

9,2**

Расстояние между опорами В, м, не менее

-

14***;

16***

Высота подъема контейнерного захвата, над уровнем головки кранового рельса Н, м, не менее

8; 9

9,0; 10,8

9; 10; 11; 12,5; 13,5

Угол поворота контейнерного захвата, в горизонтальной плоскости, не менее

+240°
-60°

±7,5°

Скорость подъема (опускания) груза, по ГОСТ 1575, м/с

0,125; 0,16; 0,2; 0,25; 0,32; 0,4

Скорость передвижения грузовой тележки по ГОСТ 1575, м/с

0,63; 0,8; 1,0; 1,25; 1,6

Скорость передвижения крана по ГОСТ 1575, м/с

0,63; 0,8; 1,0; 1,25; 1,6; 2,0

Предел регулирования скоростей, не менее

1:8

Нагрузка на колесо при работе, кН, не более

150; 200

300

______________________________________

* По согласованию с заказчиком.

** Допускается бесконсольный вариант.

*** Только для консольных конструкций.

Допускается изменение от указанных в табл. 1 основных параметров и размеров по согласованию с заказчиком при изготовлении по индивидуальным заказам.

Примеры условных обозначений:

Двухконсольный козловой электрический контейнерный кран грузоподъемностью на контейнерном захвате 30,5 т, пролетом 25 м, высотой подъема контейнерного захвата 9 м и вылетом консолей по 5 м:

ККК 30,5-25-9-5 ГОСТ 24390-99

То же, бесконсольный грузоподъемностью на контейнерном захвате 30,5 т, пролетом 25 м, высотой подъема 9 м:

ККК 30,5-25-9 ГОСТ 24390-99

Ключевые слова: козловые электрические контейнерные краны, размеры, грузоподъемность, пролет, высота подъема, режим работы, скорости, давление

 




ГОСТЫ, СТРОИТЕЛЬНЫЕ и ТЕХНИЧЕСКИЕ НОРМАТИВЫ.
Некоммерческая онлайн система, содержащая все Российские Госты, национальные Стандарты и нормативы.
В Системе содержится более 150000 файлов нормативно-технической документации, действующей на территории РФ.
Система предназначена для широкого круга инженерно-технических специалистов.

Рейтинг@Mail.ru Яндекс цитирования

Copyright © www.gostrf.com, 2008 - 2026