|
|
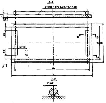
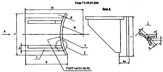
|
ЗАКРЫТОЕ АКЦИОНЕРНОЕ ОБЩЕСТВО
ОПОРЫ ТРУБОПРОВОДОВ ТЕХНИЧЕСКИЕ УСЛОВИЯ ТУ 3680-001-04698606-04 Дата введения « 27 »
декабря 2004г.
2004 Содержание 1. ВведениеНастоящие технические условия распространяются на опоры стальных технологических трубопроводов различного назначения с наружным диаметром от 18 до 1620 мм, транспортирующих рабочую среду температурой от 0° до +450° и давлением до 10 МПа, при температуре окружающей среды до минус 70°С. Технические условия устанавливают классификацию, основные параметры, размеры, технические требования, комплектность, правила приёмки, методы испытаний, требования к маркировке, упаковке, транспортированию, хранению, указания по монтажу и гарантии изготовителя. 2. Технические требования2.1. Опоры должны изготавливаться в соответствие с требованиями настоящих технических условий, по рабочим чертежам, утвержденным в установленном порядке. 2.2. Качество и свойства материала, крепежных деталей для изготовления опор должны быть подтверждены сертификатами заводов-изготовителей. 2.3. Вид климатического исполнения по ГОСТ 15150-69 устанавливается в рабочих чертежах и заказе изделий. 2.4. Детали опор должны изготавливаться из листового, полосового и круглого проката по ГОСТ 16523-97, ГОСТ 14637-89, ГОСТ 19903-74, ГОСТ 1577-93, ГОСТ 19281-89, ГОСТ 5520-79, ГОСТ 103-76, ГОСТ 2590-88, труб по ГОСТ 8731-87 (группа В), ГОСТ 8732-78, ГОСТ 10704-91, ГОСТ 10705-80 (группа В), швеллеров по ГОСТ 8240-97, уголков ГОСТ 8509-93, ГОСТ 8510-86. 2.5. Марки сталей для деталей опор должны соответствовать табл. 1;2.
Материал крепежных изделий Таблица 2
2.6. Допускается изготавливать опоры из листового проката или труб по другим стандартам или техническим условиям, если установленные в них требования не ниже, чем в перечисленных нормативных документах. 2.7. Типы и размеры сварных швов следует применять по ГОСТ 5264-80 и ГОСТ 14771-76. 2.8. Для сварки опор применяются сварочные материалы по ГОСТ 9467-75, ГОСТ 2246-70, ГОСТ 8050-85. 2.9. Качество сварных швов должно соответствовать ТИ 25080.00024. 2.10. Резьба на деталях должна соответствовать ГОСТ 24705-81. Допуски на резьбу: для болтов - 8g, гаек - 7Н по ГОСТ 16093-81, выход резьбы, сбег, недорезы, проточки и фаски - по ГОСТ 10549-80. 2.11. Крепежные изделия должны соответствовать: болты - ГОСТ 7798-70, гайки - ГОСТ 5915-70. Класс прочности болтов должен быть не ниже 4.6, гаек - 4 по ГОСТ 1759-70: Вид антикоррозийного покрытия болтов и гаек должен выбираться по ГОСТ 9.303-84 в зависимости от условий эксплуатации, определяемых по ГОСТ 15150-69 и указываться в рабочих чертежах. 2.12. Предельные отклонения размеров по ГОСТ 25346-82: Н14; h4; ±IТ14/2. 2.13. Отклонение от перпендикулярности d стенок опор относительно основания или опорной плиты, не более 1 мм на 100 мм высоты - Рис. 1.
Рис.1 2.14. Отклонение от перпендикулярности d плоскости А относительно плоскости Б в корпусах опор типов КП, КХ должно быть не более 1 мм на 100 мм длины ребра - Рис. 2.
Рис. 2 2.15. На деталях опор прямоугольной формы, изготовленных из листа или полосовой стали отклонение от перпендикулярности короткой стороны относительно длинной должно быть не более 1,5 мм. 2.16. Для деталей опор, изготовленных штамповкой или вырубкой, допускаются следующие отклонения геометрической формы и размеров: утяжка по контуру 1 не более 0,3S - Рис. 3.
Рис. 3 угол скоса продольных кромок a не более 3 независимо от 8 - Рис. 4.
Рис. 4 угол скоса a по периметру отверстий не более 3° - Рис. 5.
Рис. 5 отклонение от плоскостности поверхностей не более 1 мм на 100 мм длины. 2.17. Опоры корпусные с вырезом для спутника изготавливаются по требованию потребителя. 2.18. Острые кромки деталей опор должны быть притуплены. 2.19. На поверхности деталей опор не допускаются пузыри, трещины, накаты, задиры, раковины и брызги металла от сварки и резки. 2.20. Защиту от коррозии назначают в соответствии со СНиП 2.03.11-85, ГОСТ 9.401-79 и указывают в рабочих чертежах и заказе изделии. 2.21. Резьбовые части деталей опор должны защищаться от коррозии смазкой «ЦИАТИМ-201» ГОСТ 6267-93 или «ЦИАТИМ-203» ГОСТ 8773-75. 3. Комплектность3.1. Опоры должны поставляться комплектно согласно рабочим чертежам, разработанным в установленном порядке. 3.2. В состав комплекта должны входить следующие сборочные единицы и детали: а) корпус в сборе; б) хомут; в) крепежные изделия. В комплект поставки входит паспорт или сертификат. 3.3. С согласия потребителя допускается поставка отдельных деталей и сборочных единиц опор с их комплектацией на месте сборки и монтажа. 4. Правила приемки4.1. Опоры должны приниматься техническим контролем предприятия партиями. Партией следует считать изделия одной марки, предназначенные для эксплуатации в одинаковых условиях. Размер партии определяется заказом потребителя, но не более 200 шт. 4.2. Для контроля качества на соответствие требованиям п.п. 2.7; 2.9; 2.10; 2.12-2.19 отбирают 3 % от общего числа изделий в партии, но не менее 5 шт. 4.3. При получении неудовлетворительных результатов контроля хотя бы по одному из показателей качества, по этому показателю проводят повторный контроль на удвоенном числе образцов, отобранных от той же партии. 4.4. Если при повторной проверке окажется хотя бы одно изделие не удовлетворяющее требованиям настоящих технических условий, то всю партию подвергают поштучной приемке. 4.5. Потребитель имеет право производить контрольную проверку соответствия изделий требованиям технических условий, соблюдая при этом приведенный порядок отбора и применяя указанные методы контроля. 5. Методы контроля5.1. Проверка соответствия изделия требованиям конструкторской документации производится путем внешнего осмотра, измерениями геометрических размеров средствами измерений и сличения с рабочими чертежами. 5.2. Проверка наличия сертификатов на материалы и крепежные изделия производится путем ознакомления с сертификатами, применение материалов без сертификатов не допускается. 5.3. Контроль геометрических размеров по п.п. 2.7; 2.12; 2.13; 2.14 производить универсальным измерительным инструментом. 5.4. Контроль сварных соединений изделий следует осуществлять внешним осмотром и измерениями по ТИ 25080.00024. 5.5. Контроль качества по п.п. 2.16; 2.17; 2.19 производят внешним осмотром. 5.6. Проверка лакокрасочного покрытия производится внешним осмотром. 5.7. Проверка комплектности, маркировки и упаковки производится внешним осмотром. 6. Упаковка, маркировка, транспортирование и хранение6.1. Маркировка, наносимая любым способом непосредственно на изделие в местах, указанных на чертежах, должна содержать условное обозначение изделия. Четкость надписей должна сохраняться в течение гарантийного срока. 6.2. Упаковка деталей сборочных единиц опор должна соответствовать категории КУ-1 по ГОСТ 23170-78 и обеспечивать их сохранность в течение двух лет. 6.3. Детали и сборочные единицы должны быть уложены комплектно в деревянные ящики по ГОСТ 10198-78. 6.4. Маркировка упаковки - по ГОСТ 14192-77. 6.5. Опоры допускается транспортировать любым видом транспорта. 6.6. Условия хранения сборочных единиц и деталей опор - 4(Ж2) по ГОСТ 15150-69. 6.7. К каждой партии опор должен быть приложен паспорт, заполненный ОТК предприятия-изготовителя. 7. Гарантия изготовителя7.1. Изготовитель гарантирует соответствие опор требованиям настоящих технических условий при соблюдении потребителем условий эксплуатации и хранения. 7.2. Гарантийный срок эксплуатации - 24 месяца со дня получения изделий потребителем. Приложение 1ПЕРЕЧЕНЬ
|
|||||||||||||||||||||||||||||||||||||||||||||||||||||||||||||||||||||||||||||||||||||||||||||||||||||||||||||||||||||||||||||||||||||||||||||||||||||||||||||||||||||||||||||||||||||||||||||||||||||||||||||||||||||||||||||||||||||||||||||||||||||||||||||||||||||||||||||||||||||||||||||||||||||||||||||||||||||||||||||||||||||||||||||||||||||||||||||||||||||||||||||||||||||||||||||||||||||||||||||||||||||||||||||||||||||||||||||||||||||||||||||||||||||||||||||||||||||||||||||||||||||||||||||||||||||||||||||||||||||||||||||||||||||||||||||||||||||||||||||||||||||||||||||||||||||||||||||||||||||||||||||||||||||||||||||||||||||||||||||||||||||||||||||||||||||||||||||||||||||||||||||||||||||||||||||||||||||||||||||||||||||||||||||||||||||||||||||||||||||||||||||||||||||||||||||||||||||||||||||||||||||||||||||||||||||||||||||||||||||||||||||||||||||||||||||||||||||||||||||||||||||||||||||||||||||||||||||||||||||||||||||||||||||||||||||||||||||||||||||||||||||||||||||||||||||||||||||||||||||||
|
Наименование, тип |
Обозначение документа на поставку |
Кол-во |
Примечание |
|
Линейка-300 |
1 |
|
|
|
Линейка-1000 |
1 |
|
|
|
Рулетка 3ВД2-2 |
ГОСТ 7502-80 |
1 |
|
|
Штангенциркуль ШЦ-10-125 |
1 |
|
|
Обозначение документа |
Наименование |
Примечание |
|
Прокат тонколистовой из углеродистой стали качественной и обыкновенного качества общего назначения. Технические условия. |
|
|
|
Прокат толстолистовой из углеродистой стали обыкновенного качества. Технические условия. |
|
|
|
Прокат листовой горячекатаный. Сортамент. |
|
|
|
Прокат из стали повышенной прочности. Общие технические условия. |
|
|
|
Прокат стальной горячекатаный круглый. Сортамент. |
|
|
|
Полоса стальная горячекатаная. |
|
|
|
Прокат толстолистовой и широкополосный из конструкционной качественной стали. Технические условия. |
|
|
|
Прокат листовой из углеродистой, низколегированной и легированной стали для котлов и сосудов, работающих по давлением. Технические условия. |
|
|
|
Трубы стальные бесшовные горячедеформированные. Технические требования. |
|
|
|
Трубы стальные бесшовные горячедеформированные. Сортамент. |
|
|
|
Трубы стальные электросварные прямошовные. Сортамент. |
|
|
|
Трубы стальные электросварные. Технические условия. |
|
|
|
Уголки стальные горячекатаные равнополочные. Сортамент. |
|
|
|
Уголки стальные неравнополочные. Сортамент. |
|
|
|
Швеллеры стальные горячекатаные. Сортамент. |
|
|
|
Сталь углеродистая обыкновенного качества. Марки. |
|
|
|
Прокат сортовой, калиброванный, со специальной отделкой поверхности из углеродистой качественной конструкцией стали. Общие технические условия. |
|
|
|
Прокат из легированной конструкционной стали. Технические условия. |
|
|
|
Электроды покрытые металлические для ручной дуговой сварки сталей и наплавки. Классификация и общие технические условия. |
|
|
|
Ручная дуговая сварка. Соединения сварные. Основные типы, конструктивные элементы. |
|
|
|
Дуговая сварка в защитном газе. Соединения сварные. Основные типы, конструктивные элементы и размеры. |
|
|
|
Проволока стальная сварочная. Технические условия. |
|
|
|
Двуокись углерода газообразная и жидкая. Технические условия. |
|
|
|
Основные нормы взаимозаменяемости. Резьба метрическая. Основные размеры. |
|
|
|
Основные нормы взаимозаменяемости. Резьба метрическая. Допуски. Посадки с зазором. |
|
|
|
Выход резьбы. Сбеги, недорезы, проточки и фаски. |
|
|
|
Болты с шестигранной головкой класса точности В. Конструкция и размеры. |
|
|
|
Гайки шестигранные класса точности В. Конструкция и размеры. |
|
|
|
Машины, приборы и другие технические изделия исполнения для различных климатических районов. |
|
|
|
Основные нормы взаимозаменяемости ЕСДП. Общие положения, ряды допусков и основных отклонений. |
|
|
|
ГОСТ 10198-91 |
Ящики деревянные для грузов 200 до 2000 кг. Общие технические условия. |
|
|
ГОСТ 14192-96 |
Маркировка грузов. |
|
|
Упаковка для изделий машиностроения. Общие требования. |
|
|
|
ЕСЭКС Покрытия металлические и неметаллические неорганические. Общие требования к выбору. |
|
|
|
ГОСТ 9.401-91 |
ЕСЭКС Покрытия лакокрасочные. Общие требования. |
|
|
ТИ 25080-00024 |
Технологическая инструкция по сварке нестандартного оборудования и металлоконструкций. |
|
Опоры стальных трубопроводов квалифицируются по конструкции, назначению и применяются в соответствии с таблицей 3
Классификация опор
Таблица 3
|
Тип опоры |
Исполнение и эскиз опоры |
dн, мм |
Назначение опоры |
Применяемость |
Аналог стандарта |
|
1 |
2 |
3 |
4 |
5 |
6 |
|
1. Опоры трубопроводов ( подвижные и неподвижные) |
|||||
|
Тавровые приварные - ТП |
|
£ 45 |
Для изолированных и неизолированных трубопроводов |
П Н |
|
|
|
П |
||||
|
|
П Н |
||||
|
|
П Н |
||||
|
Тавровые хомутовые - ТХ |
|
£ 45 |
Для изолированных и неизолированных трубопроводов |
П Н |
|
|
|
57-89 |
П |
|||
|
|
П Н |
||||
|
|
108-159 |
П Н |
|||
|
Корпусные приварные - КП |
|
57-630 |
Для изолированных и неизолированных трубопроводов |
П Н |
|
|
57-159 |
|||||
|
|
57-1420 |
П Н |
|||
|
|
57-1420 |
П Н |
|||
|
|
219-1420 |
П Н |
|||
|
|
219-1420 |
П Н |
|||
|
Корпусные хомутовые - КХ |
|
57-630 |
Для изолированных и неизолированных трубопроводов |
|
|
|
57-159 |
|||||
|
|
57-630 |
|
|||
|
|
57-630 |
|
|||
|
Трубчатые - ТР |
|
57-630 |
Для изолированных и неизолированных трубопроводов |
П |
|
|
|
57-630 |
Н |
|||
|
Швеллерные приварные - ШП |
|
57-820 |
Для неизолированных трубопроводов |
П Н |
|
|
Уголковые приварные - УП |
|
1020-1420 |
П Н |
||
|
Хомутовые бескорпусные - ХБ |
|
Исп. А 25-630 Исп. Б 25-159 |
П |
||
|
|
Исп. Б 25-530 Исп. Г 25-159 |
Н |
|||
|
Трубчатые крутоизогнутых отводов - ТО |
|
57-630 |
Для изолированных и неизолированных трубопроводов |
П Н |
|
|
Вертикальных трубопроводов приварные - ВП |
|
57-1420 |
Для изолированных и неизолированных трубопроводов |
П |
|
|
Катковые направляющие - КН |
|
Исп. А11 57-630 |
Для изолированных и неизолированных трубопроводов |
П |
|
|
|
Исп. А12 57-1420 |
П |
|||
|
|
57-1420 |
П |
|||
|
|
57-1420 |
П |
|||
|
Катковые направляющие - КН |
|
57-1420 |
Для изолированных и неизолированных трубопроводов |
П |
|
|
|
57-1420 |
П |
|||
|
|
57-1420 |
П |
|||
|
|
57-1420 |
П |
|||
|
Опоры подвижные - тип ОПП1 |
|
18-48 |
Для изолированных и неизолированных трубопроводов |
П |
ГОСТ 14911-82 |
|
Опоры подвижные - тип ОПП2 |
|
57-1620 |
Для изолированных и неизолированных трубопроводов |
П |
ГОСТ 14911-82 |
|
Опоры подвижные - тип ОПП3 |
|
57-1620 |
Для изолированных и неизолированных трубопроводов |
П |
ГОСТ 14911-82 |
|
Опоры подвижные хомутовые - тип ОПХ1 |
|
18-48 |
Для изолированных и неизолированных трубопроводов |
П |
ГОСТ 14911-82 |
|
Опоры подвижные хомутовые - тип ОПХ2 |
|
57-89 |
Для изолированных и неизолированных трубопроводов |
П |
ГОСТ 14911-82 |
|
|
108-630 |
П |
|||
|
Опоры подвижные хомутовые - тип ОПХ3 |
|
57-630 |
Для изолированных и неизолированных трубопроводов |
П |
ГОСТ 14911-82 |
|
Опоры подвижные бескорпусные - тип ОПБ1 |
|
18-530 |
Для изолированных и неизолированных трубопроводов |
П |
ГОСТ 14911-82 |
|
Опоры подвижные бескорпусные - тип ОПБ2 |
|
18-530 |
Для изолированных и неизолированных трубопроводов |
П |
ГОСТ 14911-82 |
|
Опоры скользящие - тип Т13.00 |
|
32-159 |
Для изолированных и неизолированных трубопроводов |
П |
серия 4.903-10 выпуск 5 |
|
|
194-630 |
П |
|||
|
Опоры скользящие - тип Т14.00 |
|
32-159 |
Для изолированных и неизолированных трубопроводов |
П |
серия 4.903-10 выпуск 5 |
|
|
194-1420 |
П |
|||
|
Опоры скользящие - тип Т15.00 |
|
194-1420 |
Для изолированных и неизолированных трубопроводов |
П |
серия 4.903-10 выпуск 5 |
|
Опоры скользящие диэлектрические - тип Т16.00 |
|
194-377 |
Для изолированных и неизолированных трубопроводов |
П |
серия 4.903-10 выпуск 5 |
|
|
377-630 |
П |
|||
|
Опоры скользящие диэлектрические - тип Т17.00 |
|
194-377 |
Для изолированных и неизолированных трубопроводов |
П |
серия 4.903-10 выпуск 5 |
|
|
' 377-1420 |
П |
|||
|
Опоры скользящие диэлектрические - тип Т18.00 |
|
194-377 |
Для изолированных и неизолированных трубопроводов |
П |
серия 4.903-10 выпуск 5 |
|
|
377-1420 |
П |
|||
|
Плиты опорные с диэлектрической прокладкой - тип Т43.00 |
|
32-273 |
Для изолированных и неизолированных трубопроводов |
П |
серия 4.903-10 выпуск 5 |
|
|
325-1420 |
П |
|||
|
Опоры однокатковые - тип Т19.00 |
|
194-1420 |
Для изолированных и неизолированных трубопроводов |
П |
серия 4.903-10 выпуск 5 |
|
Опоры двухкатковые - тип Т20.00 |
|
720-1420 |
Для изолированных и неизолированных трубопроводов |
П |
серия 4.903-10 выпуск 5 |
|
Опоры шариковые - тип Т21.00 |
|
194-1420 |
Для изолированных и неизолированных трубопроводов |
П |
серия 4.903-10 выпуск 5 |
|
Опоры неподвижные - тип Т3.00 |
|
32-219 |
Для изолированных и неизолированных трубопроводов |
Н |
серия 4.903-10 выпуск 4 |
|
Опоры неподвижные лобовые двухупорные - тип Т4.00 |
|
108-1420 |
Для изолированных и неизолированных трубопроводов |
Н |
серия 4.903-10 выпуск 4 |
|
Опоры неподвижные лобовые четырехупорные - тип Т5.00 |
|
133-1420 |
Для изолированных и неизолированных трубопроводов |
Н |
серия 4.903-10 выпуск 4 |
|
Опоры неподвижные лобовые двухупорные усиленные - тип Т6.00 |
|
108-1420 |
Для изолированных и неизолированных трубопроводов |
Н |
серия 4.903-10 выпуск 4 |
|
Опоры неподвижные лобовые четырехупорные усиленные - тип Т7.00 |
|
426-1420 |
Для изолированных и неизолированных трубопроводов |
Н |
серия 4.903-10 выпуск 4 |
|
Опоры неподвижные лобовые щитовые - тип Т8.00 |
|
108-1420 |
Для изолированных и неизолированных трубопроводов |
Н |
серия 4.903-10 выпуск 4 |
|
Опоры неподвижные лобовые щитовые усиленные - тип Т9.00 |
|
426-1420 |
Для изолированных и неизолированных трубопроводов |
Н |
серия 4.903-10 выпуск 4 |
|
Опоры неподвижные боковые - тип Т10.00 |
|
194-820 |
Для изолированных и неизолированных трубопроводов |
Н |
серия 4.903-10 выпуск 4 |
|
Опоры неподвижные хомутовые, бескорпусные - тип Т11.00 |
|
108-1020 |
Для изолированных и неизолированных трубопроводов |
Н |
серия 4.903-10 выпуск 4 |
|
Опоры неподвижные хомутовые - тип Т12.00 |
|
57-377 |
Для изолированных и неизолированных трубопроводов |
Н |
серия 4.903-10 выпуск 4 |
|
Опоры неподвижные бугельные - тип Т44.00 |
|
377-1420 |
Для изолированных и неизолированных трубопроводов |
Н |
серия 4.903-10 выпуск 4 |
|
Опоры неподвижные лобовые сальниковых компенсаторов - тип Т46.00 |
|
530-820 |
Для изолированных и неизолированных трубопроводов |
Н |
серия 4.903-10 выпуск 4 |
|
Опоры приварные неподвижные и скользящие - тип ОПН |
|
57-1620 |
Для изолированных и неизолированных трубопроводов |
Н |
серия 4.903-10 выпуск 4 |
|
Опоры хомутовые неподвижные - тип ОХН |
|
57-159 |
Для изолированных и неизолированных трубопроводов |
Н |
серия 4.903-10 выпуск 4 |
|
|
168-426 |
Н |
|||
|
Опоры хомутовые неподвижные и направляющие - тип ОБН |
|
25-530 |
Для изолированных и неизолированных трубопроводов |
Н |
серия 4.903-10 выпуск 4 |
8.1. Опоры подвижные и неподвижные трубопроводов (аналог ОСТ 36-146-88)
8.1.1. Буквами в шифре исполнения опоры разделены по конструктивным признакам (буква С обозначает сварной вариант). Первая цифра в шифре исполнения определяет высоту опоры и её основания до нижней образующей трубы, вторая цифра - длину основания опоры. Для опор типа ШП и ВП цифра в обозначениях определяет их длину.
8.1.2. Буква «П» в графе «применяемость» обозначает использование конструкции в качестве подвижной опоры, буква «Н» - в качестве неподвижной.
8.1.3. Упоры, показанные на эскизах хомутовых опор, применяются для неподвижных, а также подвижных опор типов КХ, КН для Dн ³ 377 мм.
8.1.4. Опоры типов ТП, ТХ, КП, КХ в зависимости от величины тепловых перемещений трубопровода изготавливаются в 3-х исполнениях по длине:
- длиной 170 мм с перемещением до 90 мм;
- длиной 340 мм с перемещением до 250 мм;
- длиной 680 мм с перемещением до 600 мм.
8.1.5. Применением хомутовых опор рекомендуется при наличии угловых деформаций трубопровода.
8.1.6. Использование в опорах подушек и накладок определяется проектной организацией с учётом размеров трубопроводов и внешних нагрузок.
8.1.7. Основные параметры и размеры.
8.1.7.1. Опоры предназначены для крепления труб из углеродистой и низколегированной стали при строительстве технологических трубопроводов с наружным диаметром от 18 до 1420 мм, транспортирующих вещества с температурой от 0 до 100° и условным давлением Ру до 10 МПа при температуре окружающей среды до минус 70°С.
8.1.7.2. Конструкция, размеры, масса и допускаемые расчётные нагрузки опор должны соответствовать указанным на чертежах 1-16 и в таблицах 1-16.
8.1.7.3. Величины осевых и боковых допускаемых расчётных нагрузок заданы при условии отсутствия внешних изгибающих моментов.
8.1.7.4. Пределы применения опор по допускаемым нагрузкам для трубопроводов, прокладываемых в сейсмических районах, устанавливает проектная организация.
8.1.7.5. Все опоры условно обозначаются по следующей схеме:

8.1.8. Технические требования.
8.1.8.1. Опоры должны изготавливаться в соответствии с требованиями настоящих технических условий по рабочим чертежам, утверждённым в установленном порядке.
8.1.8.2. Качество к свойствам материала и полуфабрикатов для изготовления опор должно быть подтверждены сертификатами заводов-изготовителей этих материалов и полуфабрикатов.
8.2. Опоры подвижные трубопроводов
8.2.1. Опоры подвижные трубопроводов (аналог ГОСТ 14911-82 и ОСТ 36-94-83)
8.2.1.1. Буквами в шифре исполнения опоры разделены по конструктивным признакам. Первая цифра в шифре исполнения определяет высоту опоры, вторая цифра - наружный диаметр трубопровода.
8.2.1.2. Буква «П» в графе «применяемость» обозначает использование конструкции в качестве подвижной опоры.
8.2.1.3. Применением хомутовых опор ОПБ1 и ОПБ2 рекомендуется при наличии угловых деформаций трубопроводов.
8.2.1.4. Использование в опорах подушек и накладок определяется проектной организацией с учётом размеров трубопроводов и внешних нагрузок.
8.2.1.5. Конструкция, размеры, масса и допускаемые расчётные нагрузки опор должны соответствовать указанным на чертежах 17-20, в таблицах 19-22 и приложении 3.
8.2.1.6. Величины вертикальных допустимых расчётных нагрузок, при температурах рабочей среды заданы при условии отсутствия внешних изгибающих моментов.
8.2.1.7. Пределы применения опор по допускаемым нагрузкам для трубопроводов, прокладываемых в сейсмических районах, устанавливает проектная организация.
8.2.1.8. Все опоры условно обозначаются по следующей схеме:

8.2.1.9. Технические требования. Опоры должны изготавливаться в соответствии с требованиями настоящих технических условий по рабочим чертежам, утверждённым в установленном порядке.
Качество к свойствам материала и полуфабрикатов для изготовления опор должно быть подтверждены сертификатами заводов-изготовителей этих материалов и полуфабрикатов.
8.2.2. Опоры подвижные трубопроводов (аналог серия 4.903-10 Выпуск 5)
8.2.2.1. Буква «П» в графе «применяемость» обозначает использование конструкции в качестве подвижной опоры.
8.2.2.2. Применение хомутовых опор рекомендуется при наличии угловых деформаций трубопроводов.
8.2.2.3. Использование в опорах подушек и накладок определяется проектной организацией с учётом размеров трубопроводов и внешних нагрузок.
8.2.2.4. Конструкция, размеры, масса и допускаемые расчётные нагрузки опор должны соответствовать указанным на чертежах 21-73 и в таблицах 23-73.
8.2.2.5. Величины вертикальных допустимых расчётных нагрузок, при температурах рабочей среды заданы при условии отсутствия внешних изгибающих моментов.
8.2.2.6. Пределы применения опор по допускаемым нагрузкам для трубопроводов, прокладываемых в сейсмических районах, устанавливает проектная организация.
8.2.2.7. Все опоры условно обозначаются по следующей схеме:

8.2.2.8. Технические требования. Опоры должны изготавливаться в соответствии с требованиями настоящих технических условий по рабочим чертежам, утверждённым в установленном порядке.
Качество к свойствам материала и полуфабрикатов для изготовления опор должно быть подтверждено сертификатами заводов-изготовителей этих материалов и полуфабрикатов.
8.3. Опоры неподвижные трубопроводов
8.3.1. Опоры неподвижные трубопроводов (аналог серия 4.903-10 Выпуск 4)
8.3.1.1. Буква «Н» в графе «применяемость» обозначает использование конструкции в качестве неподвижной опоры.
8.3.1.2. Применение хомутовых опор рекомендуется при наличии угловых деформаций трубопроводов.
8.3.1.3. Использование в опорах подушек и накладок определяется проектной организацией с учетом размеров трубопроводов и внешних нагрузок.
8.3.1.4. Конструкция, размеры, масса и допускаемые расчётные нагрузки опор должны соответствовать указанным на чертежах 74-102 и в таблицах 74-102.
8.3.1.5. Величины вертикальных допустимых расчетных нагрузок, при температурах рабочей среды заданы при условии отсутствия внешних изгибающих моментов.
8.3.1.6. Пределы применения опор по допускаемым нагрузкам для трубопроводов, прокладываемых в сейсмических районах, устанавливает проектная организация.
8.3.1.7. Все опоры условно обозначаются по следующей схеме:

8.3.1.8. Технические требования. Опоры должны изготавливаться в соответствии с требованиями настоящих технических условий по рабочим чертежам, утверждённым в установленном порядке.
Качество к свойствам материала и полуфабрикатов для изготовления опор должно быть подтверждено сертификатами заводов-изготовителей этих материалов и полуфабрикатов.
8.3.2. Опоры неподвижные трубопроводов (аналог машиностроительные нормали МН 4008-62, МН 4010-62 и МН 4016-62)
8.3.2.1. Буква «Н» в графе «применяемость» обозначает использование конструкции в качестве неподвижной опоры.
8.3.2.2. Применение хомутовых опор рекомендуется при наличии угловых деформаций трубопроводов.
8.3.2.3. Использование в опорах подушек и накладок определяется проектной организацией с учётом размеров трубопроводов и внешних нагрузок.
8.3.2.4. Конструкция, размеры, масса и допускаемые расчётные нагрузки опор должны соответствовать указанным на чертежах 21-73 и в таблицах 23-73.
8.3.2.5. Величины вертикальных допустимых расчётных нагрузок, при температурах рабочей среды заданы при условии отсутствия внешних изгибающих моментов.
8.3.2.6. Пределы применения опор по допускаемым нагрузкам для трубопроводов, прокладываемых в сейсмических районах, устанавливает проектная организация.
8.3.2.7. Все опоры условно обозначаются по следующей схеме:

8.3.2.8. Технические требования. Опоры должны изготавливаться в соответствии с требованиями настоящих технических условий по рабочим чертежам, утверждённым в установленном порядке.
Качество к свойствам материала и полуфабрикатов для изготовления опор должно быть подтверждено сертификатами заводов-изготовителей этих материалов и полуфабрикатов.
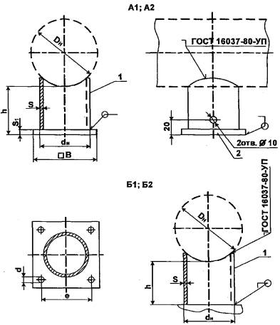
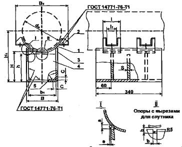
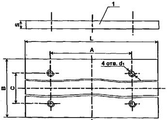
ОПОРЫ ТАВРОВЫЕ ПРИВАРНЫЕ - тип ТП

Сварные монтажные швы по ГОСТ
5264-80
1 - тавр, изготовленный из двутавра по ГОСТ 8339-72; 2 - сварной тавр; 3 -
ребро
Чертёж 1.
Таблица 4
Размеры, мм
|
Наружный диаметр трубопровода, Dн |
Исполнение |
h |
В |
S |
№ профиля двутавра |
К - катет шва |
Масса, кг не более |
Допускаемые нагрузки, кН |
||
|
Вертикальная Qy |
Осевая Рz при |
|||||||||
|
Рx=Pz |
Рx=0,5Pz |
|||||||||
|
18-45 |
АС00 |
70 |
50 |
5 |
- |
4 |
0,6 |
2,0 |
1,5 |
2 |
|
АС10 |
100 |
0,7 |
1,0 |
|||||||
|
57-89 |
А11 |
100 |
100 |
- |
20 |
6 |
1,8 |
4,0 |
- |
- |
|
А12 |
3,6 |
3,0 |
7 |
|||||||
|
АС11 |
6 |
- |
1,7 |
- |
- |
|||||
|
АС12 |
3,4 |
3,0 |
7 |
|||||||
|
А21 |
150 |
135 |
- |
30 |
3,1 |
- |
- |
|||
|
А22 |
6,2 |
3,0 |
7 |
|||||||
|
АС21 |
100 |
6 |
- |
2,2 |
- |
- |
||||
|
АС22 |
4,4 |
3,0 |
7 |
|||||||
|
108-159 |
Б12 |
100 |
100 |
- |
20 |
4,0 |
9,5 |
18,0 |
35 |
|
|
БС12 |
6 |
- |
3,8 |
|||||||
|
Б22 |
150 |
135 |
- |
30 |
7,0 |
|||||
|
БС22 |
100 |
6 |
- |
5,0 |
||||||
Примечание: Значения h для опор, изготовленных путём разрезки двутавров, уменьшить на половину ширины реза, но не более, чем на 4 мм.
Пример условного обозначения опоры типа ТП исполнения А11 из стали ВСт3пс для трубопровода Дн = 76 мм
ОПОРА 76-ТП-А11-ВСт3пс-ТУ......
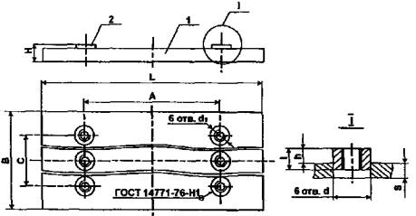
ОПОРЫ ТАВРОВЫЕ ХОМУТОВЫЕ - тип ТХ

Сварные монтажные швы по ГОСТ
5264-80
1,2,3,4 - Опоры типа ТП соответственно тех же исполнений (см. черт. 1 табл. 4);
5 - полухомут (черт. 15 табл. 17); 6 - болт по ГОСТ
7798-70 с гайкой по ГОСТ
5915-70)
Чертёж 2.
Размеры, мм
|
Наружный диаметр трубопровода, Dн |
Исполнение |
h |
В |
В1 |
Размеры болта d*1 |
К - катет шва |
Масса, кг не более |
Допускаемые нагрузки, кН |
||
|
Вертикальная |
Осевая Рz при |
|||||||||
|
Рx = Pz |
Рx = 0,5Pz |
|||||||||
|
18; 25; 32; 38; 45 |
АС00 |
70 |
50 |
- |
М12´40 |
5 |
1,0 |
2 |
1,5 |
2 |
|
АС10 |
100 |
1,1 |
1,0 |
|||||||
|
57 |
А11 |
106 |
100 |
142/100 |
6 |
2,6 |
4 |
- |
- |
|
|
А12 |
5,2 |
3,0 |
7,0 |
|||||||
|
АС11 |
2,5 |
- |
- |
|||||||
|
АС12 |
5,0 |
3,0 |
7,0 |
|||||||
|
А21 |
156 |
135 |
3,9 |
- |
- |
|||||
|
А22 |
7,8 |
3,0 |
7,0 |
|||||||
|
АС21 |
100 |
3,0 |
- |
- |
||||||
|
АС22 |
6,0 |
3,0 |
7,0 |
|||||||
|
76 |
А11 |
106 |
100 |
160/113 |
2,7 |
- |
- |
|||
|
А12 |
5,4 |
3,0 |
7,0 |
|||||||
|
АС11 |
2,6 |
- |
- |
|||||||
|
АС12 |
5,2 |
3,0 |
7,0 |
|||||||
|
А21 |
156 |
135 |
4,0 |
- |
- |
|||||
|
А22 |
8,0 |
3,0 |
7,0 |
|||||||
|
АС21 |
100 |
3,1 |
- |
- |
||||||
|
АС22 |
6,2 |
3,0 |
7,0 |
|||||||
|
89 |
А11 |
106 |
100 |
179/127 |
2,8 |
- |
- |
|||
|
А12 |
5,6 |
3,0 |
7,0 |
|||||||
|
АС11 |
2,7 |
- |
- |
|||||||
|
АС12 |
5,4 |
3,0 |
7,0 |
|||||||
|
А21 |
156 |
135 |
4,1 |
- |
- |
|||||
|
А22 |
8,2 |
3,0 |
7,0 |
|||||||
|
АС21 |
100 |
3,2 |
- |
- |
||||||
|
АС22 |
6,4 |
3,0 |
7,0 |
|||||||
|
108 |
Б12 |
108 |
100 |
200/141 |
М16´50 |
7 |
7,9 |
9,5 |
18 |
35 |
|
БС12 |
7,7 |
|||||||||
|
Б22 |
158 |
135 |
10,9 |
|||||||
|
БС22 |
100 |
8,9 |
||||||||
|
133 |
Б12 |
108 |
100 |
250/177 |
8,7 |
18 |
35 |
|||
|
БС12 |
8,5 |
|||||||||
|
Б22 |
158 |
135 |
11,7 |
|||||||
|
БС22 |
100 |
9,7 |
||||||||
|
159 |
Б12 |
108 |
100 |
275/194 |
9,3 |
18 |
35 |
|||
|
БС12 |
9,1 |
|||||||||
|
Б22 |
158 |
135 |
12,3 |
|||||||
|
БС22 |
100 |
10,3 |
||||||||
Примечания: В графе «В1» в знаменателе дроби указан размер для исполнений опор с креплением полухомутов под углом.
Значения массы опор приведены без учёта массы упоров.
Для опор с креплениями полухомутов под углом в обозначении исполнения после цифр добавляется «У»
Пример условного обозначения опоры типа ТХ исп. АСП из стали 09Г2С для трубопровода Дн = 89 мм;
ОПОРА 89-ТХ-АС12-09Г2С-ТУ......
То же с креплениями полухомутов под углом:
ОПОРА 89-ТХ-АС12У-09Г2С-ТУ......
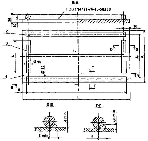
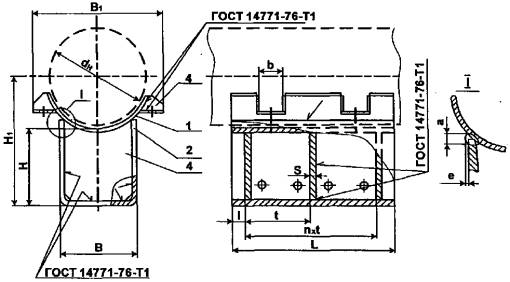
ОПОРЫ КОРПУСНЫЕ ПРИВАРНЫЕ - тип КП


Сварные монтажные швы по ГОСТ
5264-80
1 - корпус; 2 - ребро; 3 - подушка
Остальные размеры корпусов опор Б12, Б22, Б13, Б23, БС12, БС22, БС13, БС23 так
же, как и у опор А12, А22, А13, А23, АС12, АС22, АС13, АС23 соответственно.
Корпуса могут быть сварного варианта (черт.4, табл.6)
Чертёж 3
СВАРНЫЕ КОРПУСА ОПОР

Размеры, мм
|
Наружный диаметр трубопровода, Dн |
Исполнение |
h |
h1 |
h2 |
В |
s |
В1 |
L |
Длина развертки подушки |
a |
b |
c |
k |
Масса, кг не более |
Допускаемые нагрузки, кН |
||
|
Вертикальная |
Осевая Рz при |
||||||||||||||||
|
Рx = Pz |
Рx = 0,5Pz |
||||||||||||||||
|
1 |
2 |
3 |
4 |
5 |
6 |
7 |
8 |
9 |
10 |
11 |
12 |
13 |
14 |
15 |
16 |
17 |
18 |
|
57 |
А11 |
100 |
110 |
98 |
50 |
3 |
- |
- |
- |
30 |
5 |
5 |
6 |
1,3 |
2,5 |
5,5 |
8 |
|
А12 |
- |
2,6 |
15 |
||||||||||||||
|
А21 |
150 |
180 |
148 |
1,8 |
5,5 |
8 |
|||||||||||
|
А22 |
- |
3,6 |
15 |
||||||||||||||
|
76 |
А11 |
100 |
107 |
98 |
1,3 |
3,0 |
5,5 |
8 |
|||||||||
|
А12 |
- |
2,5 |
15 |
||||||||||||||
|
А21 |
150 |
157 |
148 |
1,8 |
5,5 |
8 |
|||||||||||
|
А22 |
- |
3,5 |
15 |
||||||||||||||
|
89 |
А11 |
100 |
108 |
98 |
1,2 |
5,0 |
5,5 |
8 |
|||||||||
|
А12 |
- |
2,5 |
15 |
||||||||||||||
|
А21 |
150 |
156 |
148 |
1,3 |
5,5 |
8 |
|||||||||||
|
А22 |
- |
3,5 |
15 |
||||||||||||||
|
108 |
А11 |
100 |
116 |
95 |
80 |
45 |
1,5 |
6,0 |
10,0 |
13 |
|||||||
|
А12 |
- |
3,0 |
30,0 |
45 |
|||||||||||||
|
А21 |
150 |
165 |
145 |
2,1 |
8,0 |
10 |
|||||||||||
|
А22 |
- |
4,2 |
25,0 |
38 |
|||||||||||||
|
133 |
А11 |
100 |
111 |
95 |
1,5 |
8,0 |
10,0 |
13 |
|||||||||
|
А12 |
- |
3,0 |
30,0 |
45 |
|||||||||||||
|
А21 |
150 |
161 |
145 |
2,0 |
8,0 |
10 |
|||||||||||
|
А22 |
- |
4,1 |
25,0 |
38 |
|||||||||||||
|
159 |
А11 |
100 |
109 |
95 |
1,5 |
10 |
10,0 |
13 |
|||||||||
|
А12 |
- |
3,0 |
30,0 |
45 |
|||||||||||||
|
А21 |
150 |
159 |
145 |
2,0 |
8,0 |
10 |
|||||||||||
|
А22 |
- |
4,1 |
25,0 |
38 |
|||||||||||||
|
219 |
А11 |
100 |
159 |
95 |
200 |
2,7 |
25 |
- |
- |
||||||||
|
А12 |
- |
6,1 |
60 |
85 |
|||||||||||||
|
А13 |
95 |
11,0 |
80 |
110 |
|||||||||||||
|
Б12 |
104 |
- |
215 |
60 |
305 |
7,2 |
60 |
85 |
|||||||||
|
Б13 |
95 |
11,9 |
80 |
110 |
|||||||||||||
|
А21 |
150 |
209 |
145 |
- |
- |
- |
3,4 |
- |
- |
||||||||
|
А22 |
- |
7,3 |
50 |
70 |
|||||||||||||
|
А23 |
145 |
13,8 |
70 |
95 |
|||||||||||||
|
Б22 |
152 |
- |
215 |
60 |
306 |
8,2 |
50 |
70 |
|||||||||
|
Б23 |
145 |
14,2 |
70 |
95 |
|||||||||||||
|
273 |
А11 |
100 |
140 |
95 |
- |
- |
- |
2,6 |
- |
- |
|||||||
|
А12 |
- |
4 |
7,1 |
40 |
60 |
85 |
|||||||||||
|
А13 |
95 |
133 |
80 |
110 |
|||||||||||||
|
Б12 |
- |
220 |
60 |
260 |
8,1 |
60 |
85 |
||||||||||
|
Б13 |
95 |
14,3 |
80 |
110 |
|||||||||||||
|
А21 |
150 |
190 |
145 |
- |
- |
- |
3,2 |
25 |
- |
- |
|||||||
|
А22 |
- |
9,0 |
40 |
50 |
70 |
||||||||||||
|
А23 |
145 |
16,6 |
70 |
95 |
|||||||||||||
|
Б22 |
- |
220 |
60 |
260 |
10,0 |
50 |
70 |
||||||||||
|
Б23 |
145 |
17,6 |
70 |
95 |
|||||||||||||
|
325 |
А11 |
100 |
131 |
90 |
200 |
4 |
- |
- |
- |
60 |
5 |
6 |
6 |
3,3 |
50 |
- |
- |
|
А12 |
- |
6,9 |
70 |
60 |
85 |
||||||||||||
|
А13 |
90 |
12,8 |
80 |
110 |
|||||||||||||
|
Б12 |
- |
220 |
60 |
245 |
7,9 |
60 |
85 |
||||||||||
|
Б13 |
90 |
13,8 |
80 |
110 |
|||||||||||||
|
А21 |
150 |
181 |
140 |
- |
- |
- |
4,2 |
50 |
- |
- |
|||||||
|
А22 |
- |
8,7 |
70 |
50 |
70 |
||||||||||||
|
А23 |
140 |
16,2 |
70 |
96 |
|||||||||||||
|
Б22 |
- |
220 |
60 |
245 |
9,7 |
50 |
70 |
||||||||||
|
Б23 |
140 |
17,2 |
70 |
96 |
|||||||||||||
|
377 |
А11 |
100 |
126 |
90 |
|
|
|
3,2 |
50 |
- |
- |
||||||
|
А12 |
- |
- |
- |
- |
6,7 |
70 |
60 |
85 |
|||||||||
|
А13 |
90 |
|
|
|
12,5 |
80 |
110 |
||||||||||
|
Б12 |
- |
220 |
60 |
237 |
7,7 |
60 |
85 |
||||||||||
|
Б13 |
90 |
13,5 |
80 |
110 |
|||||||||||||
|
А21 |
150 |
176 |
140 |
- |
- |
- |
4,1 |
50 |
- |
- |
|||||||
|
А22 |
- |
8,6 |
70 |
50 |
70 |
||||||||||||
|
А23 |
140 |
15,7 |
70 |
96 |
|||||||||||||
|
Б22 |
- |
220 |
60 |
237 |
9,6 |
50 |
70 |
||||||||||
|
Б23 |
140 |
16,7 |
70 |
96 |
|||||||||||||
|
426 |
А11 |
100 |
122 |
90 |
6 |
- |
- |
- |
8 |
8 |
10 |
4,6 |
60 |
- |
- |
||
|
А12 |
- |
9,8 |
80 |
90 |
125 |
||||||||||||
|
А13 |
90 |
18,3 |
120 |
170 |
|||||||||||||
|
Б12 |
- |
220 |
60 |
234 |
11,2 |
90 |
125 |
||||||||||
|
Б13 |
90 |
19,7 |
120 |
170 |
|||||||||||||
|
А21 |
150 |
172 |
140 |
- |
- |
- |
6,1 |
60 |
- |
- |
|||||||
|
А22 |
- |
12,5 |
80 |
80 |
110 |
||||||||||||
|
А23 |
140 |
23,2 |
105 |
150 |
|||||||||||||
|
Б22 |
- |
220 |
60 |
234 |
13,9 |
80 |
110 |
||||||||||
|
Б23 |
140 |
24,6 |
105 |
150 |
|||||||||||||
|
530 |
А11 |
100 |
143 |
90 |
300 |
- |
- |
- |
6,3 |
80 |
- |
- |
|||||
|
А12 |
- |
13,7 |
120 |
110 |
145 |
||||||||||||
|
А13 |
90 |
25,1 |
150 |
200 |
|||||||||||||
|
Б12 |
- |
350 |
70 |
376 |
16,4 |
110 |
145 |
||||||||||
|
Б13 |
90 |
27,8 |
150 |
200 |
|||||||||||||
|
А21 |
150 |
193 |
140 |
- |
- |
- |
8,0 |
80 |
- |
- |
|||||||
|
А22 |
- |
17,1 |
120 |
100 |
130 |
||||||||||||
|
А23 |
140 |
30,9 |
140 |
180 |
|||||||||||||
|
Б22 |
- |
350 |
70 |
376 |
19,8 |
100 |
130 |
||||||||||
|
Б23 |
140 |
33,6 |
140 |
180 |
|||||||||||||
|
630 |
А11 |
100 |
135 |
90 |
- |
- |
- |
6,2 |
80 |
- |
- |
||||||
|
А12 |
- |
13,3 |
120 |
110 |
145 |
||||||||||||
|
А13 |
90 |
24,4 |
150 |
200 |
|||||||||||||
|
Б12 |
- |
350 |
70 |
367 |
16,0 |
110 |
145 |
||||||||||
|
Б13 |
90 |
27,1 |
150 |
200 |
|||||||||||||
|
А21 |
150 |
185 |
140 |
|
|
|
7,9 |
80 |
- |
- |
|||||||
|
А22 |
- |
- |
- |
- |
16,6 |
120 |
100 |
130 |
|||||||||
|
А23 |
140 |
|
|
|
30,2 |
140 |
180 |
||||||||||
|
Б22 |
- |
350 |
70 |
367 |
19,3 |
100 |
130 |
||||||||||
|
Б23 |
140 |
32,9 |
140 |
180 |
|||||||||||||
|
720 |
А12 |
100 |
125 |
- |
8 |
- |
- |
- |
70 |
10 |
12 |
17,0 |
200 |
125 |
160 |
||
|
А13 |
90 |
31,1 |
175 |
220 |
|||||||||||||
|
Б12 |
- |
350 |
70 |
358 |
20,5 |
125 |
160 |
||||||||||
|
Б13 |
90 |
34,6 |
175 |
220 |
|||||||||||||
|
А22 |
150 |
176 |
- |
- |
- |
- |
21,3 |
115 |
150 |
||||||||
|
А23 |
140 |
38,8 |
165 |
210 |
|||||||||||||
|
Б22 |
- |
350 |
70 |
358 |
24,8 |
115 |
150 |
||||||||||
|
Б23 |
140 |
42,3 |
165 |
210 |
|||||||||||||
|
1020 |
А12 |
100 |
161 |
- |
500 |
- |
- |
- |
12 |
27,6 |
340 |
140 |
175 |
||||
|
А13 |
90 |
49,3 |
200 |
250 |
|||||||||||||
|
Б12 |
- |
560 |
120 |
588 |
37,3 |
140 |
175 |
||||||||||
|
Б13 |
90 |
59,0 |
200 |
250 |
|||||||||||||
|
А22 |
150 |
211 |
- |
- |
- |
- |
33,3 |
130 |
165 |
||||||||
|
А23 |
140 |
69,0 |
185 |
235 |
|||||||||||||
|
Б22 |
- |
560 |
120 |
588 |
43,0 |
130 |
165 |
||||||||||
|
Б23 |
140 |
68,7 |
185 |
235 |
|||||||||||||
|
1220 |
А12 |
100 |
180 |
- |
- |
- |
- |
26,8 |
400 |
140 |
175 |
||||||
|
А13 |
90 |
47,9 |
200 |
250 |
|||||||||||||
|
Б12 |
- |
560 |
120 |
577 |
36,4 |
140 |
175 |
||||||||||
|
Б13 |
90 |
57,6 |
200 |
250 |
|||||||||||||
|
А22 |
150 |
200 |
- |
- |
- |
- |
32,5 |
130 |
165 |
||||||||
|
А23 |
140 |
57,6 |
185 |
235 |
|||||||||||||
|
Б22 |
- |
560 |
120 |
577 |
42,1 |
130 |
165 |
||||||||||
|
Б23 |
140 |
67,2 |
185 |
235 |
|||||||||||||
|
1420 |
А12 |
100 |
142 |
- |
10 |
- |
- |
- |
32,5 |
450 |
150 |
190 |
|||||
|
А13 |
90 |
58,2 |
210 |
270 |
|||||||||||||
|
Б12 |
- |
560 |
120 |
571 |
44,8 |
150 |
190 |
||||||||||
|
Б13 |
90 |
70,0 |
210 |
270 |
|||||||||||||
|
А22 |
150 |
192 |
- |
- |
- |
- |
39,5 |
140 |
180 |
||||||||
|
А23 |
140 |
70,3 |
200 |
250 |
|||||||||||||
|
Б22 |
- |
560 |
120 |
571 |
51,3 |
140 |
180 |
||||||||||
|
Б23 |
140 |
82,1 |
200 |
250 |
|||||||||||||
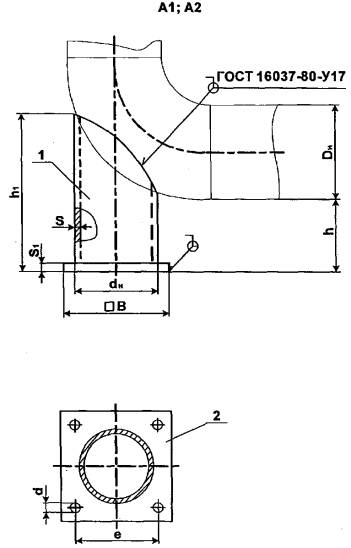
Примечание:
1. Допускается выполнить вырез под спутник с другими размерами.
2. Для опор с вырезом для спутника в обозначении исполнения после цифр добавляется «в».
3. Значения массы опор со сварными корпусами на 3 % выше указанных в таблице.
Пример условного обозначения опоры типа КП исполнения А21 из стали марки ВСт3пс для трубопровода Дн = 630 мм:
ОПОРА 630-КП-А21-ВСт3пс-ТУ......
То же со сварным корпусом и вырезом для спутника:
ОПОРА 630-КП-АС21в-ВСт3пс-ТУ......
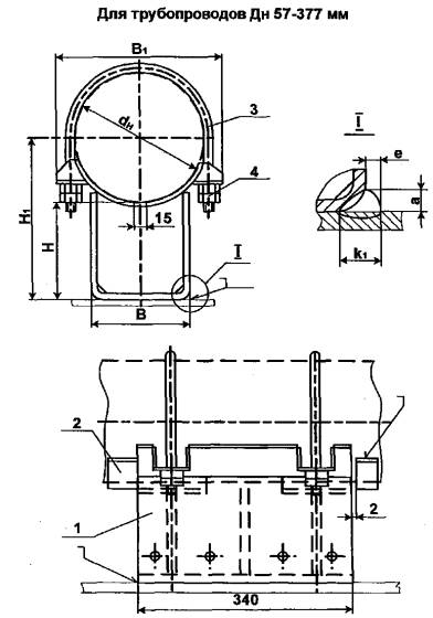
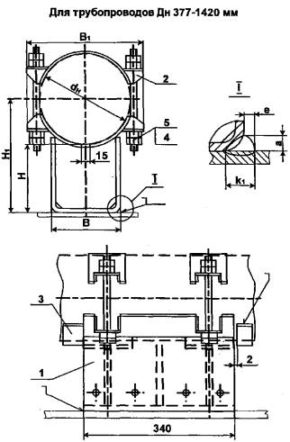
ОПОРЫ КОРПУСНЫЕ ХОМУТОВЫЕ - шип КХ

Сварные монтажные швы по ГОСТ
5264-80
Катет - по наименьшей толщине свариваемых деталей, варить сплошным швом (см.
черт. 3 вид IV, табл. 6)
1 - опора типа КП соответственно того оке исполнения (черт. 3, 4, табл. 6); 2 - полухомут (черт. 15. табл. 17); 3
-болт по ГОСТ
7798-70 с гайкой по ГОСТ
5915-70; 4 - упор (черт. 3, 4
табл. 18)
Чертёж 5
Размеры, мм
|
Наружный диаметр трубопровода, Dн |
Исполнение |
h |
В |
В1 |
Размеры болта d*1 |
Масса, кг не более |
Допускаемые нагрузки, кН |
||
|
Вертикальная Qy |
Осевая Рz при |
||||||||
|
Рx = Pz |
Рx = 0,5Pz |
||||||||
|
1 |
2 |
3 |
4 |
5 |
6 |
7 |
8 |
9 |
10 |
|
57 |
А11 |
102 |
50 |
142 |
М12´40 |
2,1 |
2,5 |
3,0 |
3,0 |
|
А12 |
4,2 |
15,0 |
|||||||
|
А21 |
152 |
2,5 |
3,0 |
3,0 |
|||||
|
А22 |
5,2 |
15,0 |
|||||||
|
76 |
А11 |
101 |
160 |
2,2 |
3,0 |
3,0 |
3,0 |
||
|
А12 |
4,3 |
15,0 |
|||||||
|
А21 |
151 |
2,7 |
3,0 |
3,0 |
|||||
|
А22 |
6,3 |
15,0 |
|||||||
|
89 |
А11 |
100 |
179 |
2,2 |
5,0 |
3,0 |
3,0 |
||
|
А12 |
4,5 |
15,0 |
|||||||
|
А21 |
150 |
2,8 |
3,0 |
3,0 |
|||||
|
А22 |
5,5 |
15,0 |
|||||||
|
108 |
А11 |
103 |
80 |
200 |
М16´50 |
5,4 |
6,0 |
10 |
13 |
|
А12 |
6,9 |
30 |
45 |
||||||
|
А21 |
153 |
6,0 |
8 |
10 |
|||||
|
А22 |
8,1 |
25 |
38 |
||||||
|
133 |
А11 |
101 |
250 |
6,3 |
8,0 |
10 |
13 |
||
|
А12 |
7,8 |
30 |
45 |
||||||
|
А21 |
151 |
6,8 |
8 |
10 |
|||||
|
А22 |
8,9 |
25 |
38 |
||||||
|
159 |
А11 |
101 |
275 |
6,9 |
10,0 |
10 |
13 |
||
|
А12 |
8,4 |
30 |
45 |
||||||
|
А21 |
151 |
7,4 |
8 |
10 |
|||||
|
А22 |
9,5 |
25 |
38 |
||||||
|
219 |
А11 |
109 |
200 |
365 |
М20´60 |
13,4 |
25,0 |
- |
- |
|
А12 |
16,8 |
60 |
85 |
||||||
|
А13 |
21,7 |
80 |
110 |
||||||
|
А21 |
159 |
14,1 |
- |
- |
|||||
|
А22 |
18,0 |
50 |
70 |
||||||
|
А23 |
24,0 |
70 |
95 |
||||||
|
273 |
А11 |
103 |
420 |
15,1 |
25 |
- |
- |
||
|
А12 |
104 |
19,6 |
40 |
60 |
85 |
||||
|
А13 |
25,8 |
80 |
110 |
||||||
|
А21 |
153 |
15,7 |
25 |
- |
- |
||||
|
А22 |
154 |
21,5 |
40 |
50 |
70 |
||||
|
А23 |
29,1 |
70 |
95 |
||||||
|
325 |
А11 |
102 |
470 |
17,4 |
50 |
- |
- |
||
|
А12 |
21,0 |
70 |
60 |
85 |
|||||
|
А13 |
26,9 |
80 |
110 |
||||||
|
А21 |
152 |
18,3 |
50 |
- |
- |
||||
|
А22 |
22,8 |
70 |
50 |
70 |
|||||
|
А23 |
30,3 |
70 |
95 |
||||||
|
377 |
А11 |
101 |
200 |
525 |
М20´60 |
19,1 |
50 |
- |
- |
|
А12 |
22,6 |
70 |
60 |
85 |
|||||
|
А13 |
28,4 |
80 |
110 |
||||||
|
А21 |
151 |
20,0 |
50 |
- |
- |
||||
|
А22 |
24,5 |
70 |
50 |
70 |
|||||
|
А23 |
31,6 |
70 |
95 |
||||||
|
426 |
АН |
101 |
575 |
22,1 |
60 |
- |
- |
||
|
А12 |
27,3 |
80 |
90 |
125 |
|||||
|
А13 |
35,8 |
120 |
170 |
||||||
|
А21 |
151 |
23,6 |
60 |
- |
- |
||||
|
А22 |
30,0 |
80 |
80 |
110 |
|||||
|
А23 |
40,7 |
105 |
150 |
||||||
|
530 |
А11 |
103 |
300 |
705 |
М24´80 |
36,5 |
80 |
- |
- |
|
А12 |
43,9 |
120 |
110 |
145 |
|||||
|
А13 |
55,3 |
150 |
200 |
||||||
|
А21 |
153 |
38,2 |
80 |
- |
- |
||||
|
А22 |
47,3 |
120 |
100 |
130 |
|||||
|
А23 |
61,1 |
140 |
180 |
||||||
|
630 |
А11 |
102 |
805 |
41,0 |
80 |
- |
- |
||
|
А12 |
48,1 |
120 |
110 |
145 |
|||||
|
А13 |
59,2 |
150 |
200 |
||||||
|
А21 |
152 |
42,7 |
80 |
- |
- |
||||
|
А22 |
51,4 |
120 |
100 |
130 |
|||||
|
А23 |
65,0 |
140 |
180 |
||||||
Примечание:
1. Значения массы опор со сварными корпусами на 3 % выше указанных в таблице 5.
2. Значения массы опор приведены без учёта массы упоров.
Пример условного обозначения опоры типа КХ исполнения А13 из стали ВСт3пс для трубопровода Дн = 219 мм:
Опора 219-КХ-А13-ВСт3пс-ТУ......
То же со сварным корпусом и вырезом для спутника:
Опора 219-КХ-АС13в-ВСтп3пс-ТУ......
ОПОРЫ ТРУБЧАТЫЕ - тип ТР

Сварные монтажные швы по ГОСТ
5264-80
Катет - по наименьшей толщине свариваемых деталей.
1 - Патрубок; 2 - плита.
Чертёж 6
Таблица 8
Размеры, мм
|
Наружный диаметр трубопровода, Dн |
Исполнение |
h |
dн |
s |
В |
s1 |
е |
d |
Масса, кг не более |
Допускаемые нагрузки, кН |
||
|
Вертикальная Qy |
Осевая Рz при |
|||||||||||
|
Рx = Pz |
Рx = 0,5Pz |
|||||||||||
|
1 |
2 |
3 |
4 |
5 |
6 |
7 |
8 |
9 |
10 |
и |
12 |
13 |
|
57 |
А1 |
100 |
57 |
3 |
100 |
10 |
65 |
14 |
1,4 |
3 |
2,0 |
2,5 |
|
А2 |
150 |
1,6 |
||||||||||
|
Б1 |
100 |
- |
- |
- |
- |
0,5 |
- |
2,0 |
2,1 |
|||
|
Б2 |
150 |
0,7 |
||||||||||
|
89 |
А1 |
100 |
76 |
120 |
10 |
85 |
14 |
1,9 |
6 |
6,0 |
7,5 |
|
|
А2 |
150 |
2,2 |
4,5 |
5,5 |
||||||||
|
Б1 |
100 |
- |
- |
- |
- |
0,7 |
- |
6,0 |
7,5 |
|||
|
Б2 |
150 |
1,0 |
4,5 |
5,5 |
||||||||
|
133 159 |
А1 |
100 |
108 |
4 |
135 |
12 |
105 |
18 |
3,2 |
10 |
14,0 |
17,0 |
|
А2 |
150 |
3,8 |
11,0 |
13,0 |
||||||||
|
Б1 |
100 |
- |
- |
- |
- |
1,3 |
- |
14,0 |
17,0 |
|||
|
Б2 |
150 |
1,9 |
11,0 |
13,0 |
||||||||
|
219 273 |
А1 |
100 |
159 |
6 |
180 |
14 |
140 |
18 |
7,0 |
40 |
35,0 |
43,0 |
|
А2 |
150 |
8,8 |
26,0 |
32,0 |
||||||||
|
Б1 |
100 |
- |
- |
- |
- |
3,0 |
- |
35,0 |
43,0 |
|||
|
Б2 |
150 |
4,3 |
26,0 |
32,0 |
||||||||
|
325 |
А1 |
100 |
219 |
250 |
16 |
200 |
26 |
12,9 |
70 |
48,0 |
61,0 |
|
|
А2 |
150 |
14,7 |
41,0 |
51,0 |
||||||||
|
Б1 |
100 |
- |
- |
- |
- |
4,3 |
- |
48,0 |
61,0 |
|||
|
Б2 |
150 |
6,1 |
41,0 |
51,0 |
||||||||
|
377 426 |
А1 |
100 |
273 |
8 |
300 |
16 |
240 |
26 |
20,2 |
80 |
85,0 |
110,0 |
|
А2 |
150 |
23,2 |
70,0 |
90,0 |
||||||||
|
Б1 |
100 |
- |
- |
- |
- |
7,5 |
- |
85,0 |
110,0 |
|||
|
Б2 |
150 |
10,5 |
70,0 |
90,0 |
||||||||
|
530 |
А1 |
100 |
325 |
380 |
20 |
300 |
30 |
34,1 |
120 |
100,0 |
120,0 |
|
|
А2 |
150 |
37,7 |
90,0 |
100,0 |
||||||||
|
Б1 |
100 |
- |
- |
- |
- |
9,1 |
- |
100,0 |
120,0 |
|||
|
Б2 |
150 |
12,8 |
90,0 |
100,0 |
||||||||
|
630 |
А1 |
100 |
426 |
10 |
450 |
25 |
370 |
39 |
60,4 |
120 |
205,0 |
250,0 |
|
А2 |
150 |
66,3 |
180,0 |
230,0 |
||||||||
|
Б1 |
100 |
- |
- |
- |
- |
16,7 |
- |
205,0 |
250,0 |
|||
|
Б2 |
150 |
22,6 |
180,0 |
230,0 |
||||||||
Примечание:
Для опор с отверстиями в плите в обозначении исполнения после цифр добавляется «О».
Пример условного обозначения опоры типа ТР исполнения А1 из стали 20 для трубопровода Дн = 219 мм:
Опора 219-ТР-А1-20-ТУ......
То же с отверстиями в плите:
Опора 219-ТР-А10-20-ТУ......
ОПОРЫ ШВЕЛЛЕРНЫЕ ПРИВАРНЫЕ - тип ШП

Сварные монтажные швы по ГОСТ
5264-80
Катет - по наименьшей толщине свариваемых деталей.
1 - Швеллер по ГОСТ 8240-89.
Чертёж 7.
Таблица 9
Размеры, мм
|
Наружный диаметр трубопровода, Dн |
Исполнение |
L |
№ швеллера |
В |
h |
К |
К1 - катет шва |
Масса, кг не более |
Допускаемые нагрузки, кН |
|
|
Вертикальная Qy |
Осевая Рz при Рx = 0,2Pz |
|||||||||
|
57 |
А1 |
100 |
5 |
50 |
17 |
4 |
4 |
0,5 |
2,5 |
10 |
|
А2 |
200 |
1,0 |
||||||||
|
76 |
А1 |
100 |
23 |
0,5 |
3,0 |
|||||
|
А2 |
200 |
1,0 |
||||||||
|
89 |
А1 |
100 |
8 |
80 |
15 |
0,7 |
5,0 |
20 |
||
|
А2 |
200 |
1,4 |
30 |
|||||||
|
108 |
А1 |
100 |
22 |
0,7 |
6,0 |
20 |
||||
|
А2 |
200 |
1,4 |
30 |
|||||||
|
133 |
А1 |
100 |
10 |
100 |
23 |
0,9 |
8,0 |
30 |
||
|
А2 |
250 |
2,1 |
50 |
|||||||
|
159 |
А1 |
100 |
28 |
0,9 |
10,0 |
30 |
||||
|
А2 |
250 |
2,1 |
50 |
|||||||
|
219 |
А1 |
100 |
12 |
120 |
34 |
6 |
6 |
1,6 |
20,0 |
50 |
|
А2 |
250 |
2,6 |
75 |
|||||||
|
273 |
А1 |
200 |
38 |
2,1 |
25,0 |
60 |
||||
|
А2 |
300 |
3,1 |
40,0 |
90 |
||||||
|
325 |
А1 |
200 |
40 |
2,1 |
25,0 |
50 |
||||
|
А2 |
300 |
3,1 |
40,0 |
80 |
||||||
|
377 |
А1 |
200 |
16 |
160 |
46 |
2,8 |
30,0 |
70 |
||
|
А2 |
300 |
4,3 |
50,0 |
100 |
||||||
|
426 |
А1 |
200 |
48 |
2,8 |
30,0 |
60 |
||||
|
А2 |
300 |
4,3 |
50,0 |
90 |
||||||
|
530 |
А1 |
250 |
20 |
200 |
56 |
8 |
4,6 |
50,0 |
80 |
|
|
А2 |
400 |
7,4 |
70,0 |
120 |
||||||
|
630 |
А1 |
250 |
60 |
4,6 |
80,0 |
65 |
||||
|
А2 |
400 |
7,4 |
120 |
|||||||
|
820 |
А1 |
400 |
30 |
300 |
72 |
10 |
8 |
12,7 |
100,0 |
120 |
Пример условного обозначения опоры типа ШП исполнения А2 из стали ВСт3пс для трубопровода Дн = 273 мм:
Опора 273-ШП-А2-ВСт3пс-ТУ......
ОПОРЫ УГОЛЬНЫЕ ПРИВАРНЫЕ - тип УП

Сварные монтажные швы по ГОСТ
5264-80
Катет - по наименьшей толщине свариваемых деталей,
1 - Уголок 125´125´10
по ГОСТ 8509-93,
2 - плита, 3 - подушка
Чертёж 8.
Таблица 10
Размеры, мм
|
Наружный диаметр трубопровода, Dн |
Исполнение |
В |
b |
h |
L |
L1 |
В1 |
I |
S |
Длина развёртки подушки |
Масса, кг не более |
Допускаемые нагрузки, кН |
|
|
Вертикальная Qy |
Осевая Рz при Рx = 0,2Pz |
||||||||||||
|
1020 |
А |
420 |
400 |
53 |
400 |
380 |
- |
- |
- |
- |
25,0 |
150 |
100 |
|
Б |
560 |
120 |
8 |
588 |
32,4 |
||||||||
|
1220 |
А |
520 |
500 |
41 |
500 |
480 |
- |
- |
- |
- |
35,3 |
200 |
150 |
|
Б |
560 |
120 |
8 |
577 |
44,8 |
||||||||
|
1420 |
А |
520 |
500 |
48 |
550 |
530 |
- |
- |
- |
- |
38,9 |
250 |
130 |
|
Б |
560 |
120 |
10 |
571 |
50,7 |
||||||||
Пример условного обозначения опоры типа УП исполнения А из стали ВСт3пс для трубопровода Дн = 1220 мм:
Опора 1220-Ж-А-ВСт3пс-ТУ......
ОПОРЫ ХОМУТОВЫЕ БЕСКОРПУСНЫЕ - шип ХБ

Сварные монтажные швы по ГОСТ
5264-80
Катет - по наименьшей толщине свариваемых деталей.
1 - Хомут (черт.10, табл.12), 2 - гайка по ГОСТ
5915-70, 3 - подушка (черт. 16,
табл.18)
Чертёж 9
Таблица 11
Размеры, мм
|
Наружный диаметр трубопровода, Dн |
Исполнение |
d |
е |
S, не более |
Масса, кг, не более опоры исполнения |
Допускаемая осевая нагрузка Р для опор исп. Б, кН |
|
|
А, Б |
B, Г |
||||||
|
1 |
2 |
3 |
4 |
5 |
6 |
7 |
8 |
|
25 |
А; Б; В; Г |
М10 |
38 |
10 |
0,1 |
0,1 |
0,4 |
|
32 |
44 |
0,1 |
0,1 |
||||
|
38 |
50 |
12 |
0,2 |
0,1 |
0,8 |
||
|
45 |
60 |
0,2 |
0,1 |
||||
|
57 |
А; Б; В; Г |
М12 |
74 |
14 |
0,3 |
0,2 |
5,0 |
|
76 |
94 |
0,4 |
0,3 |
||||
|
89 |
106 |
0,4 |
0,3 |
||||
|
108 |
М16 |
130 |
16 |
0,8 |
0,6 |
||
|
133 |
154 |
1,0 |
0,7 |
10,0 |
|||
|
159 |
М20 |
190 |
20 |
1,8 |
1,3 |
||
|
219 |
А; Б |
244 |
22 |
- |
20,0 |
||
|
273 |
300 |
2,6 |
|||||
|
325 |
352 |
3,0 |
|||||
|
377 |
М24 |
410 |
30 |
5,0 |
30,0 |
||
|
426 |
460 |
5,5 |
|||||
|
530 |
570 |
6,6 |
|||||
Примечание:
1. Значения массы опор приведены без учёта массы подушек.
2. Для опор исполнения Г усилие Рz уменьшить соответственно в 2 раза.
Пример условного обозначения опоры типа ХБ исполнения А из стали ВСт3пс для трубопровода Дн = 530 мм:
Опора 530-ХБ-А-ВСт3пс-ТУ......
ХОМУТ

Чертёж 10
Таблица 12
Размеры, мм
|
Наружный диаметр трубопровода, Dн |
r |
е |
d |
I |
I1 |
с |
Длина развёртки опор исполнения |
Масса, кг не более, опор исполнения |
||
|
А; Б |
В; Г |
А; Б |
В; Г |
|||||||
|
1 |
2 |
3 |
4 |
5 |
6 |
7 |
8 |
9 |
10 |
11 |
|
25 |
14 |
38 |
М10 |
36 |
30 |
1,5 |
132 |
101 |
0,09 |
0,07 |
|
32 |
17 |
44 |
38 |
145 |
112 |
0,10 |
0,08 |
|||
|
38 |
20 |
50 |
50 |
40 |
179 |
134 |
0,12 |
0,09 |
||
|
45 |
25 |
60 |
50 |
194 |
149 |
0,13 |
0,10 |
|||
|
57 |
31 |
74 |
М12 |
69 |
55 |
2,0 |
254 |
190 |
0,25 |
0,19 |
|
76 |
41 |
94 |
79 |
306 |
232 |
0,30 |
0,23 |
|||
|
89 |
47 |
106 |
83 |
332 |
255 |
0,32 |
0,25 |
|||
|
108 |
57 |
180 |
М16 |
103 |
65 |
410 |
312 |
0,71 |
0,54 |
|
|
133 |
69 |
154 |
116 |
474 |
363 |
0,82 |
0,63 |
|||
|
159 |
86 |
190 |
М20 |
140 |
85 |
2,5 |
578 |
443 |
1,57 |
1,20 |
|
219 |
112 |
244 |
173 |
729 |
- |
1,98 |
- |
|||
|
273 |
140 |
300 |
200 |
871 |
2,36 |
|||||
|
325 |
166 |
352 |
228 |
1011 |
2,74 |
|||||
|
377 |
193 |
410 |
М24 |
267 |
3,0 |
1178 |
4,50 |
|||
|
426 |
218 |
460 |
292 |
1306 |
5,08 |
|||||
|
530 |
273 |
570 |
343 |
1581 |
6,17 |
|||||
ОПОРЫ ТРУБЧАТЫЕ КРУТОИЗОГНУТЫХ ОТВОДОВ - тип ТО

Сварные монтажные швы по ГОСТ
5264-80
Катет - по наименьшей толщине свариваемых деталей.
1 - Патрубок, 2 - Плита
Чертёж 11
Таблица 13
Размеры, мм
|
Наружный диаметр трубопровода, Dн |
Исполнение |
h |
h1 |
dн |
S |
В |
S1 |
е |
d |
Масса, кг не более |
Допускаемые нагрузки, кН |
||
|
Вертикальная Qy |
Осевая Рz при |
||||||||||||
|
Рx = Pz |
Рx = 0,5Pz |
||||||||||||
|
57 |
А1 |
100 |
169 |
45 |
3 |
100 |
10 |
65 |
14 |
1,2 |
1,0 |
1,5 |
2,0 |
|
А2 |
150 |
210 |
1,4 |
||||||||||
|
76 |
А1 |
100 |
108 |
57 |
1,5 |
2,0 |
2,0 |
2,5 |
|||||
|
А2 |
150 |
238 |
1,8 |
||||||||||
|
89 |
А1 |
100 |
219 |
76 |
120 |
85 |
2,2 |
2,5 |
4,0 |
5,0 |
|||
|
А2 |
150 |
269 |
2,6 |
||||||||||
|
108 |
А1 |
100 |
225 |
2,3 |
3,0 |
||||||||
|
А2 |
150 |
275 |
2,6 |
||||||||||
|
133 |
А1 |
100 |
277 |
108 |
4 |
135 |
12 |
105 |
18 |
4,2 |
6,0 |
8,0 |
10,0 |
|
А2 |
150 |
327 |
4,8 |
||||||||||
|
159 |
А1 |
100 |
283 |
4,3 |
8,0 |
||||||||
|
А2 |
150 |
339 |
4,9 |
||||||||||
|
219 |
А1 |
100 |
356 |
159 |
6 |
180 |
14 |
140 |
10,3 |
20,0 |
20,0 |
25,0 |
|
|
А2 |
150 |
406 |
11,6 |
||||||||||
|
273 |
А1 |
100 |
377 |
11,6 |
|||||||||
|
А2 |
150 |
427 |
12,8 |
||||||||||
|
325 |
А1 |
100 |
463 |
219 |
250 |
16 |
200 |
26 |
20,1 |
25,0 |
25,0 |
30,0 |
|
|
А2 |
150 |
513 |
22,0 |
||||||||||
|
377 |
А1 |
100 |
546 |
273 |
8 |
300 |
240 |
34,4 |
35,0 |
40,0 |
50,0 |
||
|
А2 |
150 |
596 |
37,4 |
||||||||||
|
426 |
А1 |
100 |
569 |
35,9 |
|||||||||
|
А2 |
150 |
619 |
38,9 |
||||||||||
|
530 |
А1 |
100 |
482 |
325 |
380 |
20 |
300 |
30 |
47,3 |
40,0 |
50,0 |
100,0 |
|
|
А2 |
150 |
532 |
50,9 |
||||||||||
|
630 |
А1 |
100 |
595 |
426 |
10 |
450 |
25 |
370 |
39 |
86,8 |
70,0 |
120,0 |
140,0 |
|
А2 |
150 |
645 |
92,7 |
||||||||||
Примечание:
Для опор с отверстиями в плите в обозначении исполнения после цифр добавляется «О».
Пример условного обозначения опоры типа ТО исполнения А1 из стали 20 для трубопровода Дн = 219 мм:
Опора 219-ТО-А1-20-ТУ......
То же с отверстиями в плите:
Опора 219-ТО-А10-20-ТУ......
ОПОРЫ ВЕРТИКАЛЬНЫХ ТРУБОПРОВОДОВ - тип ВП

Сварные монтажные швы по ГОСТ
5264-80
Катет - по наименьшей толщине свариваемых деталей,
1 - Корпус штампованный или сварной, 2 - Накладка
Чертёж 12
Таблица 14
Размеры, мм
|
Наружный диаметр трубопровода, Dн |
Исполнение |
I |
В |
h |
S |
В1 |
Н |
Масса, кг не более |
Допускаемая нагрузка, кН |
|
57; 76; 89 |
А1 |
100 |
40 |
100 |
3 |
- |
- |
2,4 |
8 |
|
А2 |
150 |
2,6 |
|||||||
|
108 133 159 219 |
А1 |
100 |
80 |
150 |
4 |
- |
- |
0,9 |
15 |
|
Б1* |
100 |
190 |
1,7 |
||||||
|
А2 |
250 |
- |
- |
2,2 |
|||||
|
Б2* |
100 |
190 |
3,0 |
||||||
|
273 325 377 426 |
А1 |
150 |
200 |
200 |
6 |
- |
- |
3,4 |
40 |
|
Б1 |
240 |
250 |
7,1 |
||||||
|
А2 |
300 |
|
- |
6,6 |
|||||
|
Б2 |
240 |
250 |
10,3 |
||||||
|
530 630 820 1020 |
А1 |
200 |
300 |
8 |
- |
- |
7,4 |
100 |
|
|
Б1 |
240 |
400 |
14,0 |
||||||
|
А2 |
350 |
- |
- |
12,6 |
|||||
|
Б2 |
240 |
400 |
19,2 |
||||||
|
1220 1420 |
А1 |
300 |
400 |
10 |
- |
- |
16,2 |
160 |
|
|
Б1 |
250 |
500 |
27,0 |
||||||
|
А2 |
450 |
- |
- |
18,6 |
|||||
|
Б2 |
250 |
500 |
29,7 |
Примечание:
* Исполнение только для Дн = 219 мм.
Значения массы опор со сварными корпусами на 3% выше указанных в таблице.
Пример условного обозначения опоры типа ВП исполнения Б2 из стали 09Г2С для трубопровода Дн = 325 мм:
Опора 325-ВП-Б2-09Г2С-ТУ......
То же со сварным корпусом:
Опора 325-ВП-БС2-09Г2С-ТУ......
ОПОРЫ КАТКОВЫЕ НАПРАВЛЯЮЩИЕ - тип КН


Сварные монтажные швы по ГОСТ
5264-80
Катет - по наименьшей толщине свариваемых деталей.
1, 2 - Опоры соответственно типов КП так же исполнений (черт. 3, 4, табл. 6); *КХ тех же цифровых исполнений (черт.5, табл. 7);
3 - каток из блока типа БлОК по ГОСТ 14097-77; 4 - катки с угольником из блока
типа БлДК по ГОСТ 14097-77; 5 - опорная плита из блока типа БлДК по ГОСТ
14097-77; 6 - опорная плита (черт. 14, табл.16)
Чертёж 13
Таблица 15
Размеры, мм
|
Наружный диаметр трубопровода, Dн |
Исполнение |
В |
b |
Длина катка |
Масса, кг не более |
Наружный диаметр трубопровода, Dн |
Исполнение |
В |
b |
Длина катка |
Масса, кг не более |
|
219 |
А11 |
200 |
320 |
300 |
17,5 |
325 |
А11 |
200 |
320 |
300 |
18,1 |
|
X11 |
27,1 |
X11 |
31,1 |
||||||||
|
А12 |
320 |
39,9 |
А12 |
320 |
40,7 |
||||||
|
А13 |
62,5 |
А13 |
64,3 |
||||||||
|
Б12 |
40,8 |
Б12 |
41,7 |
||||||||
|
Б13 |
63,4 |
Б13 |
85,3 |
||||||||
|
Х12 |
49,5 |
Х12 |
53,7 |
||||||||
|
Х13 |
72,1 |
Х13 |
77,3 |
||||||||
|
273 |
А11 |
300 |
17,4 |
377 |
А11 |
300 |
18,1 |
||||
|
X11 |
28,8 |
X11 |
32,9 |
||||||||
|
А12 |
320 |
40,9 |
А12 |
320 |
40,5 |
||||||
|
А13 |
64,8 |
А13 |
64,0 |
||||||||
|
Б12 |
41,9 |
Б12 |
41,5 |
||||||||
|
Б13 |
65,8 |
Б13 |
65,0 |
||||||||
|
Х12 |
62,3 |
Х12 |
55,3 |
||||||||
|
Х13 |
76,2 |
Х13 |
78,3 |
||||||||
|
426 |
А11 |
300 |
19,5 |
630 |
А11 |
300 |
420 |
400 |
26,8 |
||
|
X11 |
35,9 |
X11 |
59,6 |
||||||||
|
А12 |
320 |
43,6 |
А12 |
420 |
59,8 |
||||||
|
А13 |
69,3 |
А13 |
91,2 |
||||||||
|
Б12 |
45,0 |
Б12 |
61,5 |
||||||||
|
Б13 |
71,2 |
Б13 |
93,9 |
||||||||
|
Х12 |
60,0 |
Х12 |
92,6 |
||||||||
|
Х13 |
86,2 |
Х13 |
124,0 |
||||||||
|
630 |
А11 |
300 |
420 |
400 |
27,0 |
820 |
А12 |
63,5 |
|||
|
X11 |
55,2 |
А13 |
97,9 |
||||||||
|
А12 |
420 |
60,2 |
Б12 |
67,0 |
|||||||
|
А13 |
91,9 |
Б13 |
101,4 |
||||||||
|
Б12 |
61,5 |
1020 |
А12 |
500 |
620 |
620 |
95,0 |
||||
|
Б13 |
94,6 |
А13 |
146,4 |
||||||||
|
Х12 |
88,4 |
Б12 |
104,0 |
||||||||
|
Х13 |
120,1 |
Б13 |
156,3 |
||||||||
|
1220 |
А12 |
500 |
620 |
620 |
94,5 |
1420 |
А12 |
100,0 |
|||
|
А13 |
145,2 |
А13 |
155,0 |
||||||||
|
Б12 |
104,1 |
Б12 |
112,0 |
||||||||
|
Б13 |
154,8 |
Б13 |
167,0 |
Примечание:
Допустимая вертикальная нагрузка Qy = 1,5 кН на 1 см, контакта каждого катка с опорной плитой.
Пример условного обозначения опоры типа КН исполнения Б13 из стали ВСт3пс для трубопровода Дн = 219 мм:
Опора 219-КН-Б13-ВСт3пс-ТУ.....
Опорная плита

Чертёж 14
Размеры, мм
|
Наружный диаметр трубопровода, Dн |
Исполнение |
b |
А |
L |
А1 |
Масса, кг, не более |
|
219-426 |
А11 |
320 |
258 |
200 |
150 |
5,5 |
|
X11 |
||||||
|
А13 |
700 |
660 |
20,2 |
|||
|
В13 |
||||||
|
Х13 |
||||||
|
530; 630; 820 |
А11 |
420 |
358 |
200 |
150 |
7,1 |
|
X11 |
||||||
|
А13 |
700 |
660 |
25,6 |
|||
|
В13 |
||||||
|
Х13 |
||||||
|
1020-1420 |
А13 |
620 |
558 |
700 |
38,5 |
|
|
В13 |
Полухомут

Размеры, мм
|
Наружный диаметр трубопровода, Dн |
m |
S |
B1 |
M |
d |
f |
Длина развёртки, мм |
Масса, кг, не более |
|
18 |
30 |
4 |
85 |
55 |
14 |
3 |
95 |
0,08 |
|
25 |
91 |
61 |
97 |
0,09 |
||||
|
32 |
98 |
68 |
105 |
0,11 |
||||
|
38 |
104 |
74 |
116 |
0,12 |
||||
|
45 |
112 |
82 |
128 |
0,13 |
||||
|
57 |
40 |
6 |
142 |
102 |
4 |
161 |
0,33 |
|
|
76 |
160 |
120 |
190 |
0,39 |
||||
|
89 |
179 |
189 |
6 |
212 |
0,44 |
|||
|
108 |
50 |
8 |
200 |
160 |
18 |
241 |
0,83 |
|
|
133 |
250 |
200 |
8 |
301 |
1,04 |
|||
|
159 |
275 |
225 |
345 |
1,19 |
||||
|
219 |
60 |
10 |
365 |
305 |
23 |
10 |
454 |
2,40 |
|
273 |
420 |
360 |
549 |
2,84 |
||||
|
325 |
470 |
410 |
628 |
3,25 |
||||
|
377 |
525 |
455 |
713 |
3,69 |
||||
|
426 |
575 |
515 |
789 |
4,09 |
||||
|
530 |
70 |
12 |
705 |
635 |
27 |
12 |
974 |
7,05 |
|
630 |
805 |
735 |
1141 |
8,20 |
Подушка

Размеры, мм
|
Наружный диаметр трубопровода, Dн |
R |
I |
S |
L |
Длина развёртки, мм |
Масса, кг, не более |
|
18 |
9 |
11 |
6 |
30 |
12 |
0,02 |
|
25 |
13 |
|||||
|
32 |
16 |
19 |
40 |
20 |
0,04 |
|
|
38 |
19 |
|||||
|
45 |
23 |
24 |
25 |
0,05 |
||
|
57 |
29 |
33 |
8 |
35 |
0,10 |
|
|
76 |
38 |
|||||
|
89 |
45 |
34 |
||||
|
108 |
54 |
48 |
50 |
0,14 |
||
|
133 |
56 |
71 |
10 |
75 |
0,26 |
|
|
159 |
80 |
72 |
||||
|
219 |
110 |
97 |
12 |
50 |
100 |
0,52 |
|
273 |
136 |
98 |
||||
|
325 |
162 |
|||||
|
377 |
188 |
99 |
60 |
0,62 |
||
|
426 |
213 |
14 |
120 |
1,45 |
||
|
530 |
265 |
|||||
|
630 |
315 |
100 |
Опора OПП1

Сварные монтажные швы по ГОСТ
5264-80
Катет - по наименьшей толщине свариваемых деталей.
1 - корпус; 2 - ребро; 3 - проушина; 4 - хомут; 5 - гайка по ГОСТ
5915-70.
Чертёж 17
Размеры опор ОПП1 и ОПХ1, мм
|
dн |
r |
h |
h1 |
а |
b |
d |
|
18; 21,3 |
11 |
70 и 100 |
30 60 |
34 |
40 |
М8 |
|
25; 26,8 |
14 |
38 |
||||
|
32; 33,5 |
17 |
44 |
60 |
М10 |
||
|
38; 42,3 |
22 |
54 |
||||
|
45; 48 |
25 |
62 |
Примечание. Размер h1 дан для двух значений h: в числителе для h = 70 мм и в знаменателе для h = 100 мм.

Сварные монтажные швы по ГОСТ
5264-80
Катет - по наименьшей толщине свариваемых деталей.
1 - корпус; 2 - ребро
Чертёж 18
Опора ОПХ2

Сварные монтажные швы по ГОСТ
5264-80
Катет - по наименьшей толщине свариваемых деталей, 1 - корпус; 2 - ребро; 3 -
проушина; 4 - хомут; 5 - гайка по ГОСТ
5915-70; 6 - упор для dн = 377 мм
и более; 7-подушка
Чертёж 19, лист 1
Таблица 20
Размеры опор ОПП2 и ОПП3 высотой h = 100 и 150 мм
|
dн |
b |
I |
s |
а |
|
57; 60; 75,5; 76 |
55 |
170 |
3 |
34 |
|
88,5; 89 |
||||
|
108; 114; 127; 133; 140 |
100 |
45 |
||
|
159; 165 |
4 |
|||
|
194; 219; 273 |
190 |
|||
|
325; 377; 426 |
280 |
220 |
6 |
60 |
|
480;530 |
400 |
70 |
||
|
630; 720; 820; 920 |
8 |
|||
|
1020 |
10 |
|||
|
1220; 1420; 1620 |
520 |

Чертёж 19, лист 2
Таблица 21
Размеры опор ОПХ2 и ОПХ3 высотой h =100 и 150 мм
|
dн |
h1 |
а |
а1 |
b |
b1 |
I |
L1 |
I2 |
s |
d |
|
57; 60 |
35 |
86 |
- |
55 |
34 |
170 |
50 |
30 |
3 |
М10 |
|
75,5; 76 |
90 |
М12 |
||||||||
|
88,5; 89 |
106 |
45 |
||||||||
|
108;114 |
45 |
136 |
120 |
100 |
38 |
|||||
|
133 |
150 |
М16 |
||||||||
|
159 |
180 |
4 |
||||||||
|
194 |
50 |
230 |
100 |
190 |
70 |
56 |
||||
|
219 |
242 |
М20 |
||||||||
|
273 |
70 |
298 |
М24 |
|||||||
|
325 |
90 |
350 |
150 |
280 |
60 |
220 |
6 |
|||
|
377 |
402 |
|||||||||
|
426 |
110 |
456 |
||||||||
|
480 |
508 |
380 |
70 |
|||||||
|
530 |
120 |
558 |
400 |
|||||||
|
630 |
145 |
658 |
140 |
440 |
80 |
8 |
Опора ОПБ1

Сварные монтажные швы по ГОСТ
5264-80
Катет - по наименьшей толщине свариваемых деталей.
1- Хомут; 2 - подушка; 3 - гайка по ГОСТ
5915-70
Чертёж 20
Размеры опор ОПБ1 и ОПБ2, мм
|
dн |
r |
а |
b |
L |
h, не более |
d |
|
18; 21,3 |
11 |
34 |
20 |
50 |
8 |
М8 |
|
23; 26,8 |
14 |
38 |
||||
|
32; 33,5 |
17 |
44 |
М10 |
|||
|
38; 42,3 |
21 |
54 |
||||
|
44,5; 45; 48 |
24 |
62 |
||||
|
57; 60 |
29 |
70 |
50 |
|||
|
75,5; 76 |
38 |
90 |
М12 |
|||
|
88,5; 89 |
45 |
106 |
100 |
|||
|
108 |
54 |
122 |
12 |
|||
|
114 |
57 |
136 |
||||
|
133 |
67 |
150 |
100 |
150 |
М16 |
|
|
159 |
80 |
180 |
||||
|
194 |
97 |
230 |
200 |
|||
|
219 |
110 |
242 |
16 |
М20 |
||
|
273 |
137 |
298 |
200 |
|||
|
325 |
163 |
350 |
||||
|
377 |
189 |
402 |
||||
|
426 |
213 |
456 |
300 |
М24 |
||
|
480 |
240 |
508 |
350 |
|||
|
530 |
265 |
558 |
Марка опоры должна состоять из условного наименования (ОП), типа опоры, высоты опоры (h), наружного диаметра трубопровода (dн), указания о наличии спутника (с) и обозначения настоящего ТУ.
Пример условного обозначения марки опоры типа П2, высотой Н = 100 мм, для стального трубопровода с наружным диаметром dн = 194 мм, со спутником:
ОПП2-100.194 с ТУ-04698606-001-04
То же, без спутника:
ОПП2-100.194 ТУ-04698606-001-04
То же, типа Б2, для стального трубопровода с наружным диаметром dн = 194 мм:
ОПБ2-194 ТУ-04698606-001-04
Марки опор, масса и расчётные максимальные вертикальные нагрузки на опоры указаны в справочном приложении.
|
Марка опоры |
Масса, кг не более |
Расчетная максимальная вертикальная нагрузка Н (кгс), при температурах рабочей среды, °С |
||
|
до 150 |
Св. 150 до 300 |
Св. 300 до 450 |
||
|
|
|
3 |
4 |
5 |
|
ОПП1-70.18 ОПП1-70.21,3 |
0,43 |
21570 (2200) |
18630 (1900) |
10790 (1100) |
|
ОПП1-70.25 ОПП1-70.26,8 |
||||
|
ОПХ1-70.18 |
0,78 |
|||
|
ОПХ1-70.25 |
0,80 |
|||
|
ОПП1-70.32 ОПП1-70.33,5 |
0,51 |
|||
|
ОПП1-70.38 ОПП1-70.42,3 |
||||
|
ОПП1-70.45 ОПП1-70.48 |
||||
|
ОПХ1-70.32 |
0,90 |
|||
|
ОПХ1-70.38 |
0,97 |
|||
|
ОПХ1-70.45 |
1,00 |
|||
|
ОПП1-100.18 ОПП1-100.21,3 |
0,60 |
14710 (1500) |
13230 (1350) |
7550 (770) |
|
ОПП1-100.25 ОПП1-100.26,8 |
||||
|
ОПХ1-100.18 |
0,90 |
|||
|
ОПХ1-100.25 |
0,94 |
|||
|
ОПП1-100.32 ОПП1-100.33,5 |
0,62 |
|||
|
ОПП1-100.38 ОПП1-100.42,3 |
||||
|
ОПП1-100.45 ОПП1-100.48 |
||||
|
ОПХ1-100.32 |
1,05 |
14710 (1500) |
13230 (1350) |
7550 (770) |
|
ОПХ1-100.38 |
1,10 |
|||
|
ОПХ 1-100.45 |
1,П |
|||
|
ОПП2-100.57 ОПП2-100.60 |
1,24 |
44130 (4500) |
33340 (3400) |
18140 (1850) |
|
ОПХ2-100.57 ОПХ2-100.60 |
1,70 |
|||
|
ОПП2-100.75,5 ОПП2-100.76 |
1,17 |
49030 (5000) |
37260 (3800) |
20100 (2050) |
|
ОПХ2-100.75,5 ОПХ2-100.76 |
1,90 |
|||
|
ОПП2-100.88,5 ОПШ-100.89 |
1,15 |
53940 (5500) |
40700 (4150) |
22060 (2250) |
|
ОПХ2-100.88,5 ОПХ2-100.89 |
2,90 |
|||
|
ОПП2-100.108 ОПП2-100.114 ОПП2-100.127 |
1,63 |
56390 (5750) |
42660 (4350) |
23040 (2350) |
|
ОПХ2-100.108 ОПХ2-100.114 ОПХ2-100.127 |
3,40 |
|||
|
ОПП2-100.133 ОПП2-100.140 |
1,62 |
59820 (6100) |
45600 (4650) |
24520 (2500) |
|
ОПХ2-100.133 ОПХ2-100.140 |
4,40 |
|||
|
ОПП2-100.159 ОПП2-100.165 |
1,97 |
84830 (8650) |
63740 (6500) |
34810 (3550) |
|
ОПХ2-100.159 ОПХ2-100.165 |
5,50 |
|||
|
ОПП2-100.194 |
3,28 |
82370 (8400) |
62760 (6400) |
33830 (3450) |
|
ОПХ2-100.194 |
7,80 |
|||
|
ОПП2-100.219 |
3,13 |
80410 (8200) |
61290 (6250) |
32750 (3340) |
|
ОПХ2-100.219 |
8,90 |
|||
|
ОПП2-100.273 |
2,90 |
80410 (8200) |
61290 (6250) |
32750 (3340) |
|
ОПХ2-100.273 |
13,40 |
|||
|
ОПП2-100.325 |
7,59 |
196130 (20000) |
148080 (15100) |
79430 (8100) |
|
ОПХ2-100.325 |
20,10 |
|||
|
ОПП2-100.377 |
7,19 |
185340 (18900) |
141210 (14400) |
75510 (7700) |
|
ОПХ2-100.377 |
22,80 |
|||
|
ОПП2-100.426 |
7,03 |
183380 (18700) |
138270 (14100) |
74530 (7600) |
|
ОПХ2-100.426 |
25,10 |
|||
|
ОПП2-100.480 |
10,64 |
172600 (17600) |
130430 (13300) |
69630 (7100) |
|
ОПХ2-100.480 |
29,10 |
|||
|
ОПП2-100.530 |
10,62 |
|||
|
ОПХ2-100.530 |
31,90 |
|||
|
ОПП2-100.630 |
14,87 |
237320 (24200) |
180440 (18400) |
96100 (9800) |
|
ОПХ2-100.630 |
50,50 |
|||
|
ОПП2-100.720 |
12,57 |
268700 (27400) |
203000 (20700) |
110810 (11300) |
|
ОПП2-100.820 |
12,17 |
287330 (29300) |
216730 (22100) |
116700 (11900) |
|
ОПП2-100.920 |
11,81 |
296160 (30200) |
223590 (22800) |
120130 (12250) |
|
ОПП2-100.1020 |
14,93 |
392260 (40000) |
294200 (30000) |
158870 (16200) |
|
ОПП2-100.1220 |
18,74 |
347150 (35400) |
262820 (26800) |
141210 (14400) |
|
ОПП2-100.1420 |
18,07 |
|||
|
ОПП2-100.1620 |
17,63 |
|||
|
ОПП2-150.57 |
1,71 |
28140 (2870) |
21180 (2160) |
7840 (800) |
|
ОПП2-150.60 |
||||
|
ОПХ2-150.57 |
2,00 |
|||
|
ОПХ2-150.60 |
||||
|
ОПП2-150.75.5 |
1,53 |
31380 (3200) |
23930 (2440) |
12840 (1310) |
|
ОШ12-150.76 |
||||
|
ОПХ2-150.75,5 |
2,10 |
|||
|
ОПХ2-150.76 |
||||
|
ОПП2-150.88,5 |
1,61 |
35990 (3670) |
26180 (2670) |
14710 (1500) |
|
ОПП2-150.89 |
||||
|
ОПХ2-150.88,5 |
2,30 |
|||
|
ОПХ2-150.89 |
||||
|
ОПП2-150.108 |
2,10 |
37660 (3840) |
28440 (2900) |
15400 (1570) |
|
ОПП2-150.114 |
||||
|
ОПП2-150.127 |
||||
|
ОПХ2-150.108 |
4,00 |
|||
|
ОПХ2-150.114 |
||||
|
ОПХ2-150.127 |
||||
|
ОПП2-150.133 |
2,01 |
39710 (4050) |
30400 (3100) |
16380 (1670) |
|
ОПП2-150.140 |
||||
|
ОПХ2-150.133 |
5,00 |
|||
|
ОПХ2-150.140 |
||||
|
ОПП2-150.159 |
3,00 |
56390 (5750) |
42660 (4350) |
23240 (2370) |
|
ОПП2-150.165 |
||||
|
ОПХ2-150.159 |
6,30 |
|||
|
ОПХ2-150.165 |
||||
|
ОПП2-150.194 |
4,11 |
52950 (5400) |
41680 (4250) |
22550 (2300) |
|
ОПХ2-150.194 |
8,60 |
|||
|
ОПП2-150.219 |
3,91 |
53940 (5500) |
40700 (4150) |
21960 (2240) |
|
ОПХ2-150.219 |
10,20 |
|||
|
ОПП2-150.273 |
3,69 |
|||
|
ОПХ2-150.273 |
14,30 |
|||
|
ОПП2-150325 |
9,19 |
130430 (13300) |
98060 (10000) |
52460 (5350) |
|
ОПХ2-150.325 |
21,80 |
|||
|
ОПП2-150.377 |
8,79 |
124540 (12700) |
94630 (9650) |
50500 (5150) |
|
ОПХ2-150.377 |
24,10 |
|||
|
ОПП2-150.426 |
8,62 |
122580 (12500) |
91200 (9300) |
49030 (5000) |
|
ОПХ2-150.426 |
29,40 |
|||
|
ОПП2-150.480 |
12,63 |
114740 (11700) |
87280 (8900) |
47070 (4800) |
|
ОПХ2-150.480 |
32,40 |
|||
|
ОПП2-150.530 |
12,72 |
114740 (11700) |
86300 (8800) |
46090 (4700) |
|
ОПХ2-150.530 |
31,10 |
|||
|
ОПП2-150.630 |
17,67 |
157890 (16100) |
120620 (12300) |
63740 (6500) |
|
ОПХ2-150.630 |
55,60 |
|||
|
ОПП2-150.720 |
15,14 |
178480 (18200) |
135330 (13800) |
73550 (7500) |
|
ОПП2-150.820 |
14,71 |
191230 (19500) |
144160 (14700) |
78450 (8000) |
|
ОПП2-150.920 |
14,51 |
196130 (20000) |
149060 (15200) |
80410 (8200) |
|
ОПП2-150.1020 |
18,23 |
262820 (26800) |
196130 (20000) |
105910 (10800) |
|
ОПП2-150.1220 |
22,44 |
231430 (23600) |
175540 (17900) |
94140 (9600) |
|
ОПП2-150.1420 |
21,77 |
|||
|
ОПП2-150.1620 |
21,33 |
|||
|
ОПП3-100.57 |
2,48 |
107870 (11000) |
81880 (8350) |
44130 (4500) |
|
ОПП3-100.60 |
||||
|
ОПХ3-100.57 |
3,50 |
|||
|
ОПХ3-100.60 |
||||
|
ОПП3-100.75,5 |
2,33 |
126500 (12900) |
96100 (9800) |
51970 (5300) |
|
ОПП3-100.76 |
||||
|
ОПХ3-100.75,5 |
3,80 |
|||
|
ОПХ3-100.76 |
||||
|
ОПП3-100.88,5 |
2,30 |
142190 (14500) |
107870 (11000) |
57860 (5900) |
|
ОПП3-100.89 |
||||
|
ОПХ3-100.88,5 |
4,70 |
|||
|
ОПХ3-100.89 |
||||
|
ОПП3-100.108 |
3,00 |
155920 (15900) |
117680 (12000) |
63250 (6450) |
|
ОПП3-100.114 |
||||
|
ОПП3-100.127 |
||||
|
ОПХ3-100.108 |
4,60 |
|||
|
ОПХ3-100.114 |
||||
|
ОПХ3-100.127 |
||||
|
ОПП3-100.133 |
3,23 |
170630 (17400) |
129440 (13200) |
69620 (7100) |
|
ОПП3-100.140 |
||||
|
ОПХ3-100.133 |
5,50 |
|||
|
ОПХ3-100.140 |
||||
|
ОПП3-100.159 |
4,35 |
247120 (25200) |
186320 (19000) |
101000 (10300) |
|
ОПП3-100.165 |
||||
|
ОПХ3-100.159 |
7,10 |
|||
|
ОПХ3-100.165 |
||||
|
ОПП3-100.194 |
6,56 |
251050 (25600) |
190240 (19400) |
100990 (10400) |
|
ОПХ3-100.194 |
10,60 |
|||
|
ОПП3-100.219 |
6,27 |
251050 (25600) |
190240 (19400) |
101990 (10400) |
|
ОПХ3-100.219 |
11,80 |
|||
|
ОПП3-100.273 |
5,81 |
196130 (20000) |
148080 (15100) |
79430 (8100) |
|
ОПХ3-100.273 |
16,30 |
|||
|
ОПП3-100.325 |
15,29 |
598200 (61000) |
451100 (46000) |
243200 (24800) |
|
ОПХ3-100.325 |
24,40 |
|||
|
ОПП3-100.377 |
14,39 |
588390 (60000) |
441300 (45000) |
239280 (24400) |
|
ОПХ3-100.377 |
29,90 |
|||
|
ОПП3-100.426 |
14,06 |
|||
|
ОПХ3-100.426 |
32,50 |
|||
|
ОПП3-100.480 |
21,27 |
564860 (57600) |
427570 (43600) |
229470 (23400) |
|
ОПХ3-100.480 |
39,20 |
|||
|
ОПП3-100.530 |
21,25 |
561920 (57300) |
423640 (43200) |
227510 (23200) |
|
ОПХ3-100.530 |
42,20 |
|||
|
ОПП3-100.630 |
29,75 |
781590 (79700) |
591340 (60300) |
317730 (32400) |
|
ОПХ3-100.630 |
65,10 |
|||
|
ОПП3-100.720 |
25,18 |
882590 (90000) |
666850 (68000) |
358920 (36600) |
|
ОПП3-100.820 |
24,32 |
929670 (94800) |
702150 (71600) |
378040 (38550) |
|
ОПП3-100.920 |
23,72 |
951240 (97000) |
676650 (69000) |
386380 (39400) |
|
ОПП3-100.1020 |
29,87 |
1216020 (124000) |
924760 (94300) |
497190 (50700) |
|
ОПП3-100.1220 |
37,88 |
1137570 (116000) |
858080 (87500) |
442280 (45100) |
|
ОПП3-100.1420 |
37,34 |
|||
|
ОПП3-100.1620 |
35,27 |
|||
|
ОПП3-150.57 |
3,36 |
72070 (7350) |
53930 (5500) |
29420 (3000) |
|
ОПП3-150.60 |
||||
|
ОПХ3-150.57 |
4,40 |
|||
|
ОПХ3-150.60 |
||||
|
ОПП3-150.75,5 |
3,25 |
84330 (8600) |
63740 (6500) |
33530 (3420) |
|
ОПП3-150.76 |
||||
|
ОПХ3-150.75,5 |
4,70 |
|||
|
ОПХ3-150.76 |
||||
|
ОПП3-150.88,5 |
3,22 |
94630 (9650) |
72070 (7350) |
39220 (4000) |
|
ОПП3-150.89 |
||||
|
ОПХ3-150.88,5 |
4,80 |
|||
|
ОПХ3-150.89 |
||||
|
ОПП3-150.108 |
4,20 |
102970 (10500) |
78450 (8000) |
42650 (4350) |
|
ОПП3-150.114 |
||||
|
ОПП3-150.127 |
||||
|
ОПХ3-150.108 |
5,90 |
|||
|
ОПХ3-150.114 |
||||
|
ОПХ3-150.127 |
||||
|
ОПП3-150.133 |
4,01 |
114730 (11700) |
86780 (8850) |
46580 (4750) |
|
ОПП3-150.140 |
||||
|
ОПХ3-150.133 |
7,30 |
|||
|
ОПХ3-150.140 |
||||
|
ОПП3-150.159 |
6,01 |
163770 (16700) |
124540 (12700) |
67170 (6850) |
|
ОПП3-150.165 |
||||
|
ОПХ3-150.159 |
8,0 |
|||
|
ОПХ3-150.165 |
||||
|
ОПП3-150.194 |
8,22 |
166710 (17000) |
127480 (13000) |
68150 (6950) |
|
ОПХ3-150.194 |
12,10 |
|||
|
ОПП3-150.219 |
7,83 |
166710 (17000) |
127480 (13000) |
68150 (6950) |
|
ОПХ3-150.219 |
13,40 |
|||
|
ОПП3-150.273 |
7,39 |
130420 (13300) |
98060 (10000) |
52950 (5400) |
|
ОПХ3-150.273 |
18,00 |
|||
|
ОПП3-150.325 |
18,39 |
398150 (40600) |
302040 (30800) |
161810 (16500) |
|
ОПХ3-150.325 |
30,80 |
|||
|
ОПП3-150.377 |
17,59 |
392260 (40000) |
298120 (30400) |
159840 (16300) |
|
ОПХ3-150.377 |
33,20 |
|||
|
ОПП3-150.426 |
17,24 |
|||
|
ОПХ3-150.426 |
35,80 |
|||
|
ОПП3-150.480 |
25,27 |
376570 (38400) |
284390 (29000) |
152980 (15600) |
|
ОПХ3-150.480 |
43,40 |
|||
|
ОПП3-150.530 |
25,45 |
372650 (38000) |
282430 (28800) |
152000 (15500) |
|
ОПХ3-150.530 |
46,50 |
|||
|
ОПП3-150.630 |
35,35 |
519750 (53000) |
392260 (40000) |
211820 (22600) |
|
ОПХ3-150.630 |
71,20 |
|||
|
ОПГО-150.720 |
30,28 |
588390 (60000) |
441300 (45000) |
239280 (24400) |
|
ОПГО-150.820 |
29,42 |
617810 (63000) |
470720 (48000) |
251050 (25600) |
|
ОПП3-150.920 |
2935 |
637430 (65000) |
451100 (46000) |
256930 (26200) |
|
ОПП3-150.1020 |
36,46 |
813950 (83000) |
617810 (63000) |
333420 (34000) |
|
ОПП3-150.1220 |
44,88 |
755110 (77000) |
568780 (58000) |
307920 (31400) |
|
ОПП3-150.1420 |
43,54 |
|||
|
ОПП3-150.1620 |
42,67 |
|||
|
ОПБ1-18; 213; 23; 26,8; 32; 33,5 |
0,03 |
- |
- |
- |
|
ОПБ1-38; 42,3; 44,5; 45; 48 |
0,02 |
- |
- |
- |
|
ОПБ1-57; 60 |
0,06 |
- |
- |
- |
|
ОПБ1-75,5; 76 |
0,05 |
- |
- |
- |
|
ОПБ1-88,5;89 |
0,12 |
- |
- |
- |
|
ОПБ1-108; 114 |
0,13 |
- |
- |
- |
|
ОПБ1-133 |
0,39 |
- |
- |
- |
|
ОПБ1-159 |
0,38 |
- |
- |
- |
|
ОПБ1-194; 219 |
0,37 |
- |
- |
- |
|
ОПБ1-273 |
1,02 |
- |
- |
- |
|
ОПБ1-325; 377 |
1,00 |
- |
- |
- |
|
ОПБ1-426 |
1,60 |
- |
- |
- |
|
ОПБ1-480 |
1,90 |
- |
- |
- |
|
ОПБ1-530 |
1,80 |
- |
- |
- |
|
ОПБ2-18; 21,3 |
0,12 |
- |
- |
- |
|
ОПБ2-23; 26,8 |
0,13 |
- |
- |
- |
|
ОПБ2-32; 33,5 |
0,12 |
- |
- |
- |
|
ОПБ2-38; 42,3 |
0,16 |
- |
- |
- |
|
ОПБ2-44,5; 45; 48 |
0,19 |
- |
- |
- |
|
ОПБ2-57; 60 |
0,33 |
- |
- |
- |
|
ОПБ2-75.5; 76 |
0,46 |
- |
- |
- |
|
ОПБ2-88,5; 89 |
0,52 |
- |
- |
- |
|
ОПБ2-108 |
0,56 |
- |
- |
- |
|
ОПБ2-114 |
0,55 |
- |
- |
- |
|
ОПБ2-133 |
1,21 |
- |
- |
- |
|
ОПБ2-159 |
1,32 |
- |
- |
- |
|
ОПБ2-194 |
1,45 |
- |
- |
- |
|
ОПБ2-219 |
2,29 |
- |
- |
- |
|
ОПБ2-273 |
3,81 |
- |
- |
- |
|
ОПБ2-325 |
3,82 |
- |
- |
- |
|
ОПБ2-377 |
4,40 |
- |
- |
- |
|
ОПБ2-426 |
6,65 |
- |
- |
- |
|
ОПБ2-480 |
7,90 |
- |
- |
- |
|
ОПБ2-530 |
8,46 |
- |
1 |
- |
Опора скользящая Т 13.00.00.000

Сварные монтажные швы по ГОСТ
5264-80
Катет - по наименьшей толщине свариваемых деталей.
1 - Скоба (черт. 22, табл. 24); 2 - Ребро (черт. 23, табл. 25)
Чертёж 21
Размеры, мм
|
Обозначение |
Наружный диаметр трубопровода, Dн |
Н |
Н1 |
В |
h |
Масса, кг, не более |
Наибольшая нагрузка, кгс |
|
|
Вертикальная |
Горизонтальная при f = 0,3 |
|||||||
|
1 |
2 |
3 |
4 |
5 |
6 |
7 |
8 |
9 |
|
Т 13.01 |
32; 38; 45 |
100 |
104 |
50 |
95 |
0,697 |
120 |
36 |
|
Т 13.02 |
150 |
154 |
145 |
0,915 |
||||
|
Т 13.03 |
200 |
204 |
195 |
1,234 |
||||
|
Т 13.04 |
57; 76 |
100 |
108 |
70 |
95 |
0,886 |
220 |
66 |
|
Т 13.05 |
150 |
168 |
145 |
1,190 |
||||
|
Т 13.06 |
200 |
208 |
195 |
1,499 |
||||
|
Т 13.07 |
89; 108 |
100 |
113 |
90 |
95 |
1,096 |
400 |
120 |
|
Т 13.08 |
150 |
163 |
145 |
1,460 |
||||
|
Т 13.09 |
200 |
213 |
195 |
1,864 |
||||
|
Т 13.10 |
133;159 |
100 |
118 |
120 |
95 |
1,335 |
800 |
240 |
|
Т 13.11 |
150 |
168 |
145 |
1,830 |
||||
|
Т 13.12 |
200 |
218 |
195 |
2,264 |
||||
Пример условного обозначения скользящей опоры для трубопровода Дн = 76 мм, Н = 100 мм:
Опора скользящая 76-Т 13.04-ТУ......
Скоба Т 13.01.00.001

Чертёж 22
Таблица 24
Размеры, мм
|
Обозначение |
Dн |
Н |
Н1 |
R |
В |
b |
L |
Масса, кг |
|
1 |
2 |
3 |
4 |
5 |
6 |
7 |
8 |
9 |
|
Т 13.01.00.001 |
32; 38; 45 |
100 |
104 |
22 |
50 |
25 |
366 |
0,304 |
|
Т 13.02 |
150 |
154 |
466 |
0,325 |
||||
|
Т 13.03 |
200 |
204 |
566 |
0,440 |
||||
|
Т 13.04 |
57; 76 |
100 |
108 |
38 |
70 |
45 |
375 |
0,493 |
|
Т 13.05 |
150 |
158 |
475 |
0,600 |
||||
|
Т 13.06 |
200 |
208 |
575 |
0,705 |
||||
|
Т 13.07 |
89;108 |
100 |
113 |
54 |
90 |
70 |
385 |
0,688 |
|
Т 13.08 |
150 |
163 |
485 |
0,850 |
||||
|
Т 13.09 |
200 |
213 |
585 |
1,050 |
||||
|
Т 13.10 |
133;159 |
100 |
118 |
78 |
120 |
100 |
395 |
0,927 |
|
Т 13.11 |
150 |
168 |
495 |
1,220 |
||||
|
Т 13.12.00.001 |
200 |
218 |
595 |
1,460 |
Ребро Т 13.01.00.002

Размеры, мм
|
Обозначение |
Dн |
h |
Масса, кг |
|
1 |
2 |
3 |
4 |
|
Т 13.01.00.002 |
32; 38; 45 |
95 |
0,358 |
|
Т 13.02 |
145 |
0,550 |
|
|
Т 13.03 |
195 |
0,744 |
|
|
Т 13.04 |
57; 76 |
95 |
0,358 |
|
Т 13.05 |
145 |
0,550 |
|
|
Т 13.06 |
195 |
0,744 |
|
|
Т 13.07 |
89;108 |
95 |
0,358 |
|
Т 13.08 |
145 |
0,550 |
|
|
Т 13.09 |
195 |
0,744 |
|
|
Т 13.10 |
133;159 |
95 |
0,358 |
|
Т 13.11 |
145 |
0,550 |
|
|
Т 13.12.00.002 |
195 |
0,744 |
Опора скользящая Т 13.00.00.000

Сварные монтажные швы по ГОСТ
5264-80
Катет - по наименьшей толщине свариваемых деталей.
1 - Скоба (черт. 25, табл. 27); 2 - Подушка (Т 14.00.00.002 - черт. 31, табл. 33); 3 - Ребро (Т 14.00.00.003 - черт. 32, табл. 34)
Чертёж 24
Размеры, мм
|
Обозначение |
Наружный диаметр трубопровода, Dн |
Н |
Н1 |
В |
b |
S |
k |
аmin |
еmin |
Масса, кг |
Наибольшая нагрузка, кгс |
|
|
Вертикальная |
Горизонтальная при f = 0,3 |
|||||||||||
|
1 |
2 |
3 |
4 |
5 |
6 |
7 |
8 |
9 |
10 |
11 |
12 |
13 |
|
Т 13.13.00.00.000 |
194 |
100 |
148 |
180 |
45 |
3 |
3 |
4 |
0 |
3,91 |
2200 |
660 |
|
Т 13.14 |
150 |
198 |
4,92 |
|||||||||
|
Т 13.15 |
200 |
248 |
5,87 |
|||||||||
|
Т 13.16 |
219 |
100 |
136 |
1 |
3,71 |
|||||||
|
Т 13.17 |
150 |
186 |
4,70 |
|||||||||
|
Т 13.18 |
200 |
236 |
5,67 |
|||||||||
|
Т 13.19 |
273 |
100 |
126 |
3,25 |
||||||||
|
Т 13.20 |
150 |
176 |
4,50 |
|||||||||
|
Т 13.21 |
200 |
226 |
5,49 |
|||||||||
|
Т 13.22 |
325 |
100 |
165 |
280 |
60 |
4 |
4 |
5 |
0 |
6,52 |
7000 |
2100 |
|
Т 13.23 |
150 |
216 |
8,25 |
|||||||||
|
Т 13.24 |
200 |
265 |
9,25 |
|||||||||
|
Т 13.25 |
377 |
100 |
152 |
1 |
6,10 |
|||||||
|
Т 13.26 |
150 |
202 |
7,82 |
|||||||||
|
Т 13.27 |
200 |
252 |
9,58 |
|||||||||
|
Т 13.28 |
426 |
100 |
142 |
6 |
5,47 |
|||||||
|
Т 13.29 |
150 |
192 |
7,23 |
|||||||||
|
Т 13.30 |
200 |
242 |
8,90 |
|||||||||
|
Т 13.31 |
480 |
100 |
174 |
380 |
6 |
б |
7 |
12,93 |
12500 |
3750 |
||
|
Т 13.32 |
150 |
224 |
16,13 |
|||||||||
|
Т 13.33 |
200 |
274 |
19,43 |
|||||||||
|
Т 13.34 |
530 |
100 |
164 |
12,33 |
||||||||
|
Т 13.35 |
150 |
214 |
15,50 |
|||||||||
|
Т 13.36 |
200 |
264 |
18,79 |
|||||||||
|
Т 13.37 |
630 |
100 |
150 |
11,74 |
||||||||
|
Т 13.38 |
150 |
200 |
14,96 |
|||||||||
|
Т 13.39.00.00.000 |
200 |
250 |
18,24 |
|||||||||
Примечание:
1 .Допускается выполнить вырез под спутник с другими размерами.
2. Для опор с вырезом для спутника в обозначении исполнения после цифр добавляется «в».
Пример условного обозначения скользящей опоры для трубопровода Дн = 325 мм, Н = 100 мм:
Опора скользящая 325-Т13.22-ТУ......
Пример условного обозначения скользящей опоры для трубопровода Дн = 325 мм, Н = 100 мм со спутником:
Опора скользящая 325-Т13.22в-ТУ......
Скоба Т 13.13.00.001

Размеры, мм
|
Обозначение |
В |
H1 |
R |
S |
Развёрнутая длина |
Масса, кг |
|
1 |
2 |
3 |
4 |
5 |
6 |
7 |
|
Т 13.13.00.001 |
180 |
149 |
4 |
3 |
458 |
1,83 |
|
Т 13.14 |
198 |
558 |
2,23 |
|||
|
Т 13.15 |
248 |
658 |
2,63 |
|||
|
Т 13.16 |
136 |
434 |
1,74 |
|||
|
Т 13.17 |
186 |
534 |
2,14 |
|||
|
Т 13.18 |
236 |
634 |
2,54 |
|||
|
Т 13.19 |
126 |
412 |
1,65 |
|||
|
Т 13.20 |
176 |
512 |
, 2,05 |
|||
|
Т 13.21 |
226 |
612 |
2,45 |
|||
|
Т 13.22 |
280 |
165 |
4 |
590 |
3,16 |
|
|
Т 13.23 |
216 |
690 |
3,67 |
|||
|
Т 13.24 |
265 |
790 |
4,22 |
|||
|
Т 13.25 |
152 |
564 |
3,01 |
|||
|
Т 13.26 |
202 |
664 |
3,54 |
|||
|
Т 13.27 |
252 |
764 |
4,08 |
|||
|
Т 13.28 |
142 |
544 |
2,90 |
|||
|
Т 13.29 |
192 |
644 |
3,44 |
|||
|
Т 13.30 |
242 |
744 |
3,97 |
|||
|
Т 13.31 |
380 |
174 |
6 |
6 |
698 |
5,59 |
|
Т 13.32 |
224 |
798 |
6,39 |
|||
|
Т 13.33 |
274 |
898 |
7,19 |
|||
|
Т 13.34 |
164 |
678 |
5,43 |
|||
|
Т 13.35 |
214 |
778 |
6,23 |
|||
|
Т 13.36 |
264 |
878 |
7,03 |
|||
|
Т 13.37 |
150 |
650 |
5,20 |
|||
|
Т 13.38 |
200 |
750 |
6,00 |
|||
|
Т 13.39.00.001 |
250 |
850 |
6,80 |
Опора скользящая Т14.00.00.000

Сварные монтажные швы по ГОСТ
5264-80
Катет - по наименьшей толщине свариваемых деталей.
1 - Скоба (черт. 27, табл. 29); 2 - Ребро (черт. 28, табл. 30)
Чертёж 26
Таблица 28
Размеры, мм
|
Обозначение |
Наружный диаметр трубопровода, Dн |
Н |
Н1 |
В |
h |
Масса, кг, не более |
Наибольшая нагрузка, кгс |
|
|
Вертикальная |
Горизонтальная при f = 0,3 |
|||||||
|
1 |
2 |
3 |
4 |
5 |
6 |
7 |
8 |
9 |
|
Т 14.01.00.000 |
32; 38; 45 |
100 |
104 |
50 |
95 |
1,28 |
120 |
36 |
|
Т 14.02 |
150 |
154 |
145 |
1,74 |
||||
|
Т 14.03 |
200 |
204 |
195 |
2,20 |
||||
|
Т 14.04 |
57; 76 |
100 |
108 |
70 |
95 |
1,55 |
220 |
66 |
|
Т 14.05 |
150 |
168 |
145 |
2,06 |
||||
|
Т 14.06 |
200 |
208 |
195 |
2,64 |
||||
|
Т 14.07 |
89; 108 |
100 |
113 |
90 |
95 |
1,84 |
400 |
120 |
|
Т 14.08 |
150 |
163 |
145 |
2,39 |
||||
|
Т 14.09 |
200 |
213 |
195 |
2,98 |
||||
|
Т 14.10 |
133;159 |
100 |
118 |
120 |
95 |
2,25 |
800 |
240 |
|
Т 14.11 |
150 |
168 |
145 |
2,89 |
||||
|
Т 14.12.00.000 |
200 |
218 |
195 |
3,54 |
||||
Пример условного обозначения скользящей опоры для трубопровода Дн = 76 мм, Н = 100 мм:
Опора скользящая 76-Т 14.04-ТУ......
Скоба Т 14.01.00.001

Чертёж 27
Таблица 29
Размеры, мм
|
Обозначение |
Dн |
Н |
Н1 |
R |
В |
b |
L |
Масса, кг |
|
Т 14.01.00.001 |
32; 38; 45 |
100 |
104 |
22 |
50 |
25 |
536 |
0,505 |
|
Т 14.02 |
150 |
154 |
636 |
0,560 |
||||
|
Т 14.03 |
200 |
204 |
736 |
0,640 |
||||
|
Т 14.04 |
57; 76 |
100 |
108 |
38 |
70 |
45 |
545 |
0,775 |
|
Т 14.05 |
150 |
158 |
645 |
0,880 |
||||
|
Т 14.06 |
200 |
208 |
745 |
0,985 |
||||
|
Т 14.07 |
89; 108 |
100 |
113 |
54 |
90 |
70 |
555 |
1,050 |
|
Т 14.08 |
150 |
163 |
655 |
1,200 |
||||
|
Т 14.09 |
200 |
213 |
755 |
1,380 |
||||
|
Т 14.10 |
133;159 |
100 |
118 |
78 |
120 |
100 |
565 |
1,460 |
|
Т 14.11 |
150 |
168 |
665 |
1,700 |
||||
|
Т 14.12.00.001 |
200 |
218 |
765 |
1,950 |
Ребро Т 14.01.00.002

Размеры, мм
|
Обозначение |
Dн |
h |
Масса, кг |
|
1 |
2 |
3 |
4 |
|
Т 14.01.00.002 |
32; 38; 45 |
95 |
0,738 |
|
Т 14.02 |
145 |
1,130 |
|
|
Т 14.03 |
195 |
1,510 |
|
|
Т 14.04 |
57; 76 |
95 |
0,738 |
|
Т 14.05 |
145 |
1,130 |
|
|
Т 14.06 |
195 |
1,510 |
|
|
Т 14.07 |
89; 108 |
95 |
0,738 |
|
Т 14.08 |
145 |
1,130 |
|
|
Т 14.09 |
195 |
1,510 |
|
|
Т 14.10 |
133;159 |
95 |
0,738 |
|
Т 14.11 |
145 |
1,130 |
|
|
Т 14.12.00.002 |
195 |
1,510 |
Опора скользящая Т 14.00.00.000

Сварные монтажные швы по ГОСТ
5264-80
Катет - по наименьшей толщине свариваемых деталей.
1- Скоба (Т14.00.00.001 - черт.30, табл. 32); 2 - Подушка (Т14.00.00.002 -
черт. 31, табл. 33); 3 - Ребро (Т 14.00.00.003 - черт. 32, табл. 34); 4
- Ребро (Т14.00.00.004 - черт. 33,
табл. 35)
Чертёж 29
Размеры, мм
|
Обозначение |
Наружный диаметр трубопровода, Dн |
Н |
Н1 |
В |
b |
I |
I1 |
S=k |
с |
аmin |
еmin |
Масса, кг |
Наибольшая нагрузка, кгс |
|
|
Вертикальная |
Горизонтальная при f = 0,3 |
|||||||||||||
|
1 |
2 |
3 |
4 |
5 |
6 |
7 |
8 |
9 |
10 |
11 |
12 |
13 |
14 |
15 |
|
Т 14.13.00.000 |
194 |
100 |
148 |
180 |
45 |
50 |
50 |
3 |
5 |
4 |
0 |
6,17 |
2200 |
660 |
|
Т 14.14 |
150 |
198 |
7,80 |
|||||||||||
|
Т 14.15 |
200 |
248 |
9,36 |
|||||||||||
|
Т 14.16 |
219 |
100 |
136 |
1 |
6,87 |
|||||||||
|
Т 14.17 |
150 |
186 |
7,46 |
|||||||||||
|
Т 14.18 |
200 |
236 |
9,07 |
|||||||||||
|
Т 14.19 |
273 |
100 |
125 |
5,33 |
||||||||||
|
Т 14.20 |
150 |
175 |
7,20 |
|||||||||||
|
Т 14.21 |
200 |
225 |
8,81 |
|||||||||||
|
Т 14.22 |
325 |
100 |
165 |
280 |
60 |
4 |
6 |
5 |
0 |
10,58 |
7000 |
2100 |
||
|
Т 14.23 |
150 |
215 |
13,28 |
|||||||||||
|
Т 14.24 |
200 |
265 |
15,29 |
|||||||||||
|
Т 14.25 |
377 |
100 |
152 |
1 |
10,04 |
|||||||||
|
Т 14.26 |
150 |
202 |
12,23 |
|||||||||||
|
Т 14.27 |
200 |
252 |
15,47 |
|||||||||||
|
Т 14.28 |
426 |
100 |
142 |
6 |
9,29 |
|||||||||
|
Г 14.29 |
150 |
192 |
12,04 |
|||||||||||
|
Т 14.30 |
200 |
242 |
14,68 |
|||||||||||
|
Т 14.31 |
480 |
100 |
174 |
380 |
6 |
8 |
7 |
20,55 |
12500 |
3750 |
||||
|
Т 14.32 |
150 |
224 |
25,45 |
|||||||||||
|
Т 14.33 |
200 |
274 |
30,76 |
|||||||||||
|
Т 14.34 |
530 |
100 |
164 |
19,81 |
||||||||||
|
Т 14.35 |
150 |
214 |
24,76 |
|||||||||||
|
Т 14.36 |
200 |
264 |
29,78 |
|||||||||||
|
Т 14.37 |
630 |
100 |
150 |
80 |
19,02 |
|||||||||
|
Т 14.38 |
150 |
200 |
23,96 |
|||||||||||
|
Т 14.39 |
200 |
250 |
29,06 |
|||||||||||
|
Т 14.40 |
720 |
100 |
185 |
500 |
80 |
60 |
8 |
2 |
27,42 |
22000 |
6600 |
|||
|
Т 14.41 |
150 |
235 |
33,41 |
|||||||||||
|
Т 14.42 |
200 |
285 |
39,48 |
|||||||||||
|
Т 14.43 |
820 |
100 |
172 |
7 |
3 |
26,56 |
||||||||
|
Т 14.44 |
150 |
222 |
32,56 |
|||||||||||
|
Т 14.45 |
200 |
272 |
38,60 |
|||||||||||
|
Т 14.46 |
920 |
100 |
158 |
8 |
10 |
8 |
33,85 |
36000 |
1080 |
|||||
|
Т 14.47 |
150 |
208 |
41,76 |
|||||||||||
|
Т 14.48 |
200 |
258 |
50,02 |
|||||||||||
|
Т 14.49 |
1020 |
100 |
218 |
700 |
11 |
50,45 |
||||||||
|
Т 14.50 |
150 |
268 |
60,87 |
|||||||||||
|
Т 14.51 |
200 |
318 |
71,59 |
|||||||||||
|
Т 14.52 |
1220 |
100 |
195 |
10 |
4 |
52,29 |
||||||||
|
Т 14.53 |
150 |
245 |
62,71 |
48000 |
14400 |
|||||||||
|
Т 14.54 |
200 |
295 |
73,15 |
|||||||||||
|
Т 14.55 |
1420 |
100 |
172 |
120 |
10 |
12 |
62,36 |
36000 |
10800 |
|||||
|
Т 14.56 |
150 |
222 |
73,15 |
60000 |
18000 |
|||||||||
|
Т 14.57.00.000 |
200 |
272 |
88,58 |
|||||||||||
Примечание:
1. Допускается выполнить вырез под спутник с другими размерами.
2. Для опор с вырезом для спутника в обозначении исполнения после цифр добавляется «в».
Пример условного обозначения скользящей опоры для трубопровода Дн = 1220 мм, Н = 100 мм:
Опора скользящая 1220-Т 14.52-ТУ......
Пример условного обозначения скользящей опоры для трубопровода Дн = 1220 мм, Н = 100 мм со спутником:
Опора скользящая 1220-Т 14.52в-ТУ......
Скоба Т 14.13.00.001

Чертёж 30
Таблица 32
Размеры, мм
|
Обозначение |
В |
Н1 |
R |
S |
Развернутая длина |
Масса, кг |
|
1 |
2 |
3 |
4 |
5 |
6 |
7 |
|
Т 14.13.00.001 |
180 |
148 |
4 |
3 |
458 |
3,66 |
|
Т 14.14 |
198 |
558 |
4,46 |
|||
|
Т 14.15 |
248 |
658 |
5,25 |
|||
|
Т 14.16 |
136 |
434 |
3,48 |
|||
|
Т 14.17 |
186 |
534 |
4,28 |
|||
|
Т 14.18 |
236 |
634 |
5,08 |
|||
|
Т 14.19 |
126 |
412 |
3,30 |
|||
|
Т 14.20 |
176 |
512 |
4,10 |
|||
|
Т 14.21 |
226 |
612 |
4,90 |
|||
|
Т 14.22 |
280 |
165 |
4 |
590 |
6,30 |
|
|
Т 14.23 |
216 |
690 |
7,34 |
|||
|
Т 14.24 |
265 |
790 |
8,44 |
|||
|
Т 14.25 |
152 |
564 |
6,02 |
|||
|
Т 14.26 |
202 |
664 |
7,08 |
|||
|
Т 14.27 |
252 |
764 |
8,16 |
|||
|
Т 14.28 |
142 |
544 |
5,80 |
|||
|
Т 14.29 |
192 |
644 |
6,88 |
|||
|
Т 14.30 |
242 |
744 |
7,94 |
|||
|
Т 14.31 |
380 |
174 |
6 |
6 |
698 |
11,20 |
|
Т 14.32 |
224 |
798 |
12,70 |
|||
|
Т 14.33 |
274 |
898 |
14,40 |
|||
|
Т 14.34 |
164 |
678 |
10,90 |
|||
|
Т 14.35 |
214 |
778 |
12,50 |
|||
|
Т 14.36 |
264 |
878 |
14,1 |
|||
|
Т 14.37 |
150 |
650 |
10,4 |
|||
|
Т 14.38 |
200 |
750 |
12,0 |
|||
|
Т 14.39 |
250 |
850 |
13,6 |
|||
|
Т 14.40 |
500 |
185 |
840 |
13,4 |
||
|
Т 14.41 |
235 |
940 |
15,0 |
|||
|
Т 14.42 |
285 |
1040 |
16,6 |
|||
|
Т 14.43 |
172 |
812 |
13,0 |
|||
|
Т 14.44 |
222 |
912 |
14,6 |
|||
|
Т 14.45 |
272 |
1012 |
16,2 |
|||
|
Т 14.46 |
158 |
8 |
8 |
774 |
16,5 |
|
|
Т 14.47 |
208 |
874 |
18,6 |
|||
|
Т 14.48 |
258 |
974 |
20,8 |
|||
|
Т 14.49 |
700 |
218 |
1094 |
23,3 |
||
|
Т 14.50 |
268 |
1194 |
25,5 |
|||
|
Т 14.51 |
318 |
1294 |
27,6 |
|||
|
Т 14.52 |
195 |
1048 |
22,4 |
|||
|
Т 14.53 |
245 |
1148 |
24,5 |
|||
|
Т 14.54 |
295 |
1248 |
26,6 |
|||
|
Т 14.55 |
172 |
10 |
10 |
992 |
26,5 |
|
|
Т 14.56 |
222 |
1092 |
29,1 |
|||
|
Т 14.57.00.001 |
272 |
1192 |
31,8 |
Подушка Т 14.13.00.002

Размеры, мм
|
Обозначение |
R |
В |
~h |
L |
S |
Развёрнутая длина |
Масса, кг |
|
1 |
2 |
3 |
4 |
5 |
6 |
7 |
8 |
|
Т 14.13.00.002 |
98 |
190 |
67 |
50 |
3 |
246 |
0,290 |
|
Т 14.16 |
111 |
200 |
60 |
240 |
0,283 |
||
|
Т 14.19 |
138 |
42 |
220 |
0,260 |
|||
|
Т 14.22 |
164 |
300 |
92 |
4 |
365 |
0,573 |
|
|
Т 14.25 |
191 |
70 |
336 |
0,528 |
|||
|
Т 14.28 |
215 |
60 |
225 |
0,353 |
|||
|
Т 14.31 |
242 |
430 |
125 |
6 |
512 |
130 |
|
|
Т 14.34 |
267 |
105 |
490 |
1,154 |
|||
|
Т 14.37 |
317 |
82 |
465 |
1,100 |
|||
|
Т 14.40 |
362 |
560 |
130 |
80 |
628 |
2,370 |
|
|
Т 14.43 |
412 |
108 |
606 |
2,280 |
|||
|
Т 14.46 |
462 |
92 |
8 |
592 |
2,970 |
||
|
Т 14.49 |
512 |
760 |
172 |
862 |
4,330 |
||
|
Т 14.52 |
612 |
128 |
120 |
806 |
6,070 |
||
|
Т 14.55.00.002 |
712 |
110 |
10 |
796 |
7,500 |
Ребро Т 14.13.00.003

Размеры, мм
|
Обозначение |
h |
R |
В |
S |
с |
Масса, кг |
|
1 |
2 |
3 |
4 |
5 |
6 |
7 |
|
Т 14.13.00.003 |
140 |
102 |
172 |
3 |
5 |
0,718 |
|
Т 14.14 |
190 |
1,020 |
||||
|
Т 14.15 |
240 |
1,290 |
||||
|
Т 14.16 |
130 |
115 |
0,675 |
|||
|
Т 14.17 |
180 |
0,959 |
||||
|
Т 14.18 |
230 |
1,240 |
||||
|
Т 14.19 |
120 |
142 |
0,506 |
|||
|
Т 14.20 |
170 |
0,930 |
||||
|
Т 14.21 |
220 |
1,220 |
||||
|
Т 14.22 |
160 |
168 |
270 |
4 |
6 |
1,040 |
|
Т 14.23 |
210 |
1,635 |
||||
|
Т 14.24 |
260 |
1,860 |
||||
|
Т 14.25 |
145 |
195 |
0,954 |
|||
|
Т 14.26 |
195 |
1,540 |
||||
|
Т 14.27 |
245 |
2,140 |
||||
|
Т 14.28 |
135 |
220 |
0,874 |
|||
|
Т 14.29 |
185 |
1,470 |
||||
|
Т 14.30 |
235 |
2,030 |
||||
|
Т 14.31 |
165 |
248 |
365 |
6 |
8 |
2,280 |
|
Т 14.32 |
215 |
3,460 |
||||
|
Т 14.33 |
265 |
4,690 |
||||
|
Т 14.34 |
155 |
274 |
2,100 |
|||
|
Т 14.35 |
205 |
3,270 |
||||
|
Т 14.36 |
255 |
4,500 |
||||
|
Т 14.37 |
145 |
324 |
1,985 |
|||
|
Т 14.38 |
195 |
3,170 |
||||
|
Т 14.39 |
245 |
4,390 |
||||
|
Т 14.40 |
175 |
368 |
485 |
3,070 |
||
|
Т 14.41 |
225 |
4,660 |
||||
|
Т 14.42 |
275 |
6,260 |
||||
|
Т 14.43 |
165 |
418 |
2,960 |
|||
|
Т 14.44 |
215 |
4,550 |
||||
|
Т 14.45 |
265 |
6,160 |
||||
|
Т 14.46 |
150 |
482 |
482 |
8 |
10 |
3,470 |
|
Т 14.47 |
200 |
5,570 |
||||
|
Т 14.48 |
250 |
7,690 |
||||
|
Т 14.49 |
195 |
520 |
682 |
6,230 |
||
|
Т 14.50 |
245 |
9,220 |
||||
|
Т 14.51 |
295 |
12,360 |
||||
|
Т 14.52 |
180 |
620 |
5,260 |
|||
|
Т 14.53 |
230 |
8,850 |
||||
|
Т 14.54 |
280 |
11,900 |
||||
|
Т 14.55 |
158 |
722 |
678 |
10 |
12 |
6,350 |
|
Т 14.56 |
208 |
10,010 |
||||
|
Т 14.57.00.003 |
258 |
13,850 |
Ребро Т 14.13.00.004

Размеры, мм
|
Обозначение |
h |
b1 |
S |
с |
Масса, кг |
|
1 |
2 |
3 |
4 |
5 |
6 |
|
Т 14.13.00.004 |
85 |
172 |
3 |
5 |
0,150 |
|
Т 14.14 |
135 |
0,180 |
|||
|
Т 14.15 |
185 |
0,210 |
|||
|
Т 14.16 |
85 |
0,150 |
|||
|
Т 14.17 |
135 |
0,180 |
|||
|
Т 14.18 |
185 |
0,210 |
|||
|
Т 14.19 |
85 |
0,150 |
|||
|
Т 14.20 |
135 |
0,180 |
|||
|
Т 14.21 |
185 |
0,210 |
|||
|
Т 14.22 |
85 |
270 |
4 |
6 |
0,320 |
|
Т 14.23 |
135 |
0,380 |
|||
|
Т 14.24 |
185 |
0,420 |
|||
|
Т 14.25 |
85 |
0,340 |
|||
|
Т 14.26 |
135 |
0,370 |
|||
|
Т 14.27 |
185 |
0,400 |
|||
|
Т 14.28 |
85 |
0,330 |
|||
|
Т 14.29 |
135 |
0,380 |
|||
|
Т 14.30 |
185 |
0,410 |
|||
|
Т 14.31 |
85 |
365 |
6 |
8 |
0,930 |
|
Т 14.32 |
135 |
1,100 |
|||
|
Т 14.33 |
185 |
1,400 |
|||
|
Т 14.34 |
85 |
0,950 |
|||
|
Т 14.35 |
135 |
1,100 |
|||
|
Т 14.36 |
185 |
1,200 |
|||
|
Т 14.37 |
85 |
1,000 |
|||
|
Т 14.38 |
135 |
1,100 |
|||
|
Т 14.39 |
185 |
1,300 |
|||
|
Т 14.40 |
85 |
485 |
1,200 |
||
|
Т 14.41 |
135 |
1,270 |
|||
|
Т 14.42 |
185 |
1,400 |
|||
|
Т 14.43 |
85 |
1,100 |
|||
|
Т 14.44 |
135 |
1,200 |
|||
|
Т 14.45 |
185 |
1,300 |
|||
|
Т 14.46 |
80 |
482 |
8 |
10 |
1,900 |
|
Т 14.47 |
130 |
2,000 |
|||
|
Т 14.48 |
180 |
2,300 |
|||
|
Т 14.49 |
80 |
682 |
2,600 |
||
|
Т 14.50 |
130 |
2,700 |
|||
|
Т 14.51 |
180 |
2,900 |
|||
|
Т 14.52 |
80 |
2,600 |
|||
|
Т 14.53 |
130 |
2,800 |
|||
|
Т 14.54 |
180 |
2,900 |
|||
|
Т 14.55 |
80 |
678 |
10 |
12 |
3,900 |
|
Т 14.56 |
130 |
4,200 |
|||
|
Т 14.57.00.004 |
180 |
4,500 |
Опора скользящая Т 15.00.00.000

Сварные монтажные швы по ГОСТ
5264-80
Катет - по наименьшей толщине свариваемых деталей.
1 - Скоба (Т 15.00.00.001 - черт. 35, табл. 37); 2 - Подушка (Т 14.00.00.002 -
черт. 31, табл. 33); 3 - Ребро (Т 14.00.00.003 - черт. 32, табл. 34); 4
- Ребро (Т14.00.00.004 - черт. 33,
табл. 35)
Чертёж 34
Размеры, мм
|
Обозначение |
Наружный диаметр трубопровода, Dн |
Н |
Н1 |
В |
b |
I |
I1 |
I2 |
S=k |
с |
аmin |
еmin |
Масса, кг |
Наибольшая нагрузка, кгс |
|
|
Вертикальная |
Горизонтальная при f = 0,3 |
||||||||||||||
|
1 |
2 |
3 |
4 |
5 |
6 |
7 |
8 |
9 |
10 |
11 |
12 |
13 |
14 |
15 |
16 |
|
Т 15.01.00.000 |
194 |
100 |
148 |
180 |
45 |
50 |
70 |
160 |
3 |
5 |
4 |
0 |
10,26 |
2200 |
660 |
|
Т 15.02 |
150 |
198 |
12,90 |
||||||||||||
|
Т 15.03 |
200 |
248 |
15,44 |
||||||||||||
|
Т 15.04 |
219 |
100 |
136 |
1 |
9,79 |
||||||||||
|
Т 15.05 |
150 |
186 |
12,41 |
||||||||||||
|
Т 15.06 |
200 |
236 |
15,03 |
||||||||||||
|
Т 15.07 |
273 |
100 |
125 |
9,06 |
|||||||||||
|
Т 15.08 |
150 |
175 |
11,94 |
||||||||||||
|
Т 15.09 |
200 |
225 |
14,54 |
||||||||||||
|
Т 15.10 |
325 |
100 |
165 |
280 |
60 |
4 |
6 |
5 |
0 |
17,82 |
7000 |
2100 |
|||
|
Т 15.11 |
150 |
215 |
22,01 |
||||||||||||
|
Т 15.12 |
200 |
265 |
25,57 |
||||||||||||
|
Т 15.13 |
377 |
100 |
152 |
1 |
16,95 |
||||||||||
|
Т 15.14 |
150 |
202 |
21,22 |
||||||||||||
|
Т 15.15 |
200 |
252 |
25,44 |
||||||||||||
|
Т 15.16 |
426 |
100 |
145 |
6 |
16,04 |
||||||||||
|
Т 15.17 |
150 |
195 |
20,33 |
||||||||||||
|
Т 15.18 |
200 |
245 |
24,47 |
||||||||||||
|
Т 15.19 |
480 |
100 |
178 |
380 |
80 |
190 |
6 |
8 |
7 |
33,68 |
12500 |
3750 |
|||
|
Т 15.20 |
150 |
228 |
41,16 |
||||||||||||
|
Т 15.21 |
200 |
278 |
48,64 |
||||||||||||
|
Т 15.22 |
530 |
100 |
164 |
32,63 |
|||||||||||
|
Т 15.23 |
150 |
214 |
40,09 |
||||||||||||
|
Т 15.24 |
200 |
264 |
47,57 |
||||||||||||
|
Т 15.25 |
630 |
100 |
150 |
31,28 |
|||||||||||
|
Т 15.26 |
150 |
200 |
38,78 |
||||||||||||
|
Т 15.27 |
200 |
250 |
47,24 |
||||||||||||
|
Т 15.28 |
720 |
100 |
185 |
500 |
80 |
100 |
8 |
2 |
43,26 |
22000 |
6600 |
||||
|
Т 15.29 |
150 |
235 |
52,02 |
||||||||||||
|
Т 15.30 |
200 |
285 |
60,90 |
||||||||||||
|
Т 15.31 |
820 |
100 |
172 |
7 |
3 |
42,10 |
|||||||||
|
Т 15.32 |
150 |
222 |
50,84 |
||||||||||||
|
Т 15.33 |
200 |
272 |
59,72 |
||||||||||||
|
Т 15.34 |
920 |
100 |
158 |
8 |
10 |
8 |
53,42 |
36000 |
1080 |
||||||
|
Т1535 |
150 |
208 |
65,04 |
||||||||||||
|
Т 15.36 |
200 |
258 |
77,02 |
||||||||||||
|
Т 15.37 |
1020 |
100 |
218 |
700 |
11 |
77.18 |
|||||||||
|
Т 15.38 |
150 |
268 |
92,04 |
||||||||||||
|
Т 15.39 |
200 |
318 |
107,1 |
||||||||||||
|
Т 15.40 |
1220 |
100 |
195 |
120 |
10 |
4 |
78,12 |
||||||||
|
Т 15.41 |
150 |
245 |
92,78 |
48000 |
14400 |
||||||||||
|
Т 15.42 |
200 |
295 |
107,7 |
||||||||||||
|
Т 15.43 |
1420 |
100 |
172 |
10 |
12 |
93,52 |
36000 |
10800 |
|||||||
|
Т 15.44 |
150 |
222 |
111,8 |
60000 |
18000 |
||||||||||
|
Т 15.45.00.000 |
200 |
272 |
130,7 |
||||||||||||
Примечание:
1. Допускается выполнить вырез под спутник с другими размерами.
2. Для опор с вырезом для спутника в обозначении исполнения после цифр добавляется «в».
Пример условного обозначения скользящей опоры для трубопровода Дн = 194 мм, Н = 100 мм:
Опора скользящая 194-Т 15.01-ТУ......
Пример условного обозначения скользящей опоры для трубопровода Дн = 194 мм, Н = 100 мм со спутником:
Опора скользящая 194-Т 15.01в-ТУ......
Скоба Т 15.00.001

Размеры, мм
|
Обозначение |
В |
Н1 |
h1 |
S=R |
Развернутая длина |
Масса, кг |
|
1 |
2 |
3 |
4 |
5 |
6 |
7 |
|
Т 15.01.00.001 |
180 |
148 |
- |
3 |
458 |
7,32 |
|
Т 15.02 |
198 |
558 |
8,92 |
|||
|
Т 15.03 |
248 |
658 |
10,50 |
|||
|
Т 15.04 |
136 |
434 |
6,96 |
|||
|
Т 15.05 |
186 |
534 |
8,56 |
|||
|
Т 15.06 |
236 |
634 |
10,20 |
|||
|
Т 15.07 |
125 |
412 |
6,60 |
|||
|
Т 15.08 |
175 |
512 |
8,20 |
|||
|
Т 15.09 |
225 |
612 |
9,80 |
|||
|
Т 15.10 |
280 |
165 |
4 |
590 |
12,60 |
|
|
Т 15.11 |
215 |
690 |
14,70 |
|||
|
Т 15.12 |
265 |
790 |
16,90 |
|||
|
Т 15.13 |
152 |
564 |
12,00 |
|||
|
Т 15.14 |
202 |
664 |
14,20 |
|||
|
Т 15.15 |
252 |
764 |
16,30 |
|||
|
Т 15.16 |
145 |
544 |
11,60 |
|||
|
Т 15.17 |
195 |
644 |
13,80 |
|||
|
Т 15.18 |
245 |
744 |
15,90 |
|||
|
Т 15.19 |
380 |
178 |
6 |
698 |
22,40 |
|
|
Т 15.20 |
228 |
798 |
25,60 |
|||
|
Т 15.21 |
278 |
898 |
28,80 |
|||
|
Т 15.22 |
164 |
678 |
21,80 |
|||
|
Т 15.23 |
214 |
778 |
25,00 |
|||
|
Т 15.24 |
264 |
878 |
28,20 |
|||
|
Т 15.25 |
150 |
650 |
20,80 |
|||
|
Т 15.26 |
200 |
750 |
24,00 |
|||
|
Т 15.27 |
250 |
850 |
27,20 |
|||
|
Т 15.28 |
500 |
185 |
130 |
840 |
26,80 |
|
|
Т 15.29 |
235 |
180 |
940 |
30,00 |
||
|
Т 15.30 |
285 |
230 |
1040 |
33,20 |
||
|
Т 15.31 |
172 |
130 |
812 |
26,00 |
||
|
Т 15.32 |
222 |
180 |
912 |
29,20 |
||
|
Т 15.33 |
272 |
230 |
1012 |
32,40 |
||
|
Т 15.34 |
158 |
100 |
8 |
774 |
33,00 |
|
|
Т 15.35 |
208 |
150 |
874 |
37,20 |
||
|
Т 15.36 |
258 |
200 |
974 |
41,60 |
||
|
Т 15.37 |
700 |
218 |
150 |
1094 |
46,60 |
|
|
Т 15.38 |
268 |
200 |
1194 |
51,00 |
||
|
Т 15.39 |
318 |
250 |
1294 |
55,20 |
||
|
Т 15.40 |
195 |
150 |
1048 |
44,80 |
||
|
Т 15.41 |
245 |
200 |
1148 |
49,00 |
||
|
Т 15.42 |
295 |
250 |
1248 |
53,20 |
||
|
Т 15.43 |
172 |
130 |
10 |
992 |
53,00 |
|
|
Т 15.44 |
222 |
180 |
1092 |
58,20 |
||
|
Т 15.45.00.001 |
272 |
230 |
1192 |
63,60 |
Опора скользящая диэлектрическая Т16.00.00.000

Сварные монтажные швы по ГОСТ
5264-80
Катет - по наименьшей толщине свариваемых деталей.
1 - Корпус (Т 16.00.01.000 - черт. 38,
табл. 40); 2 - Хомут (Т 17.00.00.001 -
черт. 45, табл. 47); 3 - Прокладка; 4 - Прокладка; 5 - Гайка по ГОСТ
5915-70
Чертёж 36
Таблица 38
Размеры, мм
|
Обозначение |
Наружный диаметр трубопровода, Dн |
Н |
Н1 |
В |
В1 |
Масса, кг |
Наибольшая нагрузка, кгс |
|
|
Вертикальная |
Горизонтальная при f = 0,3 |
|||||||
|
1 |
2 |
3 |
4 |
5 |
6 |
7 |
8 |
9 |
|
Т 16.01.00.000 |
194 |
100 |
200 |
180 |
255 |
7,26 |
2200 |
660 |
|
Т 16.02 |
150 |
250 |
8,36 |
|||||
|
Т 16.03 |
200 |
300 |
9,20 |
|||||
|
Т 16.04 |
219 |
100 |
215 |
280 |
7,56 |
|||
|
Т 16.05 |
150 |
265 |
8,54 |
|||||
|
Т 16.06 |
200 |
315 |
9,50 |
|||||
|
Т 16.07 |
273 |
100 |
240 |
350 |
8,94 |
|||
|
Т 16.08 |
150 |
290 |
10,18 |
|||||
|
Т 16.09 |
200 |
340 |
11,16 |
|||||
|
Т 16.10 |
325 |
100 |
266 |
280 |
395 |
12,45 |
7000 |
2100 |
|
Т 16.11 |
150 |
316 |
14,15 |
|||||
|
Т 16.12 |
200 |
366 |
15,46 |
|||||
|
Т 16.13 |
377 |
100 |
292 |
460 |
14,48 |
|||
|
Т 16.14 |
150 |
342 |
16,19 |
|||||
|
Т 16.15.00.000 |
200 |
392 |
17,93 |
|||||
Пример условного обозначения скользящей диэлектрической опоры для трубопровода Дн = 194 мм, Н = 100 мм:
Опора диэлектрическая 194-T 16.01-ТУ......
Корпус Т 16.00.01.000

Катет - по наименьшей толщине свариваемых деталей.
1 - Подушка (Т 17.00.01.001 - черт. 43,
табл. 45); 2 - Ребро (T 17.00.01.002 - черт. 44, табл. 46); 3 - Скоба (Т 13.00.00.001 - черт. 25, табл. 27); 4
- Ребро (Т 14.13.00.003 - черт. 32,
табл. 34)
Чертёж 37
Таблица 39
Размеры, мм
|
Обозначение |
Наружный диаметр трубопровода, Dн |
Н |
Н1 |
В |
В1 |
b |
I |
k |
k1 |
аmin |
еmin |
Масса, кг |
|
Т 16.01.01.000 |
194 |
100 |
170 |
180 |
255 |
45 |
34 |
6 |
4 |
4 |
0 |
5,88 |
|
Т 16.02 |
150 |
220 |
6,98 |
|||||||||
|
Т 16.03 |
200 |
270 |
7,82 |
|||||||||
|
Т 16.04 |
219 |
100 |
180 |
280 |
1 |
6,03 |
||||||
|
Т 16.05 |
150 |
230 |
7,01 |
|||||||||
|
Т 16.06 |
200 |
280 |
7,97 |
|||||||||
|
Т 16.07 |
273 |
100 |
200 |
350 |
38 |
6,28 |
||||||
|
Т 16.08 |
150 |
250 |
7,52 |
|||||||||
|
Т 16.09 |
200 |
300 |
8,50 |
|||||||||
|
Т 16.10 |
325 |
100 |
220 |
280 |
395 |
60 |
5 |
0 |
9,50 |
|||
|
Т 16.11 |
150 |
270 |
11,20 |
|||||||||
|
Т 16.12 |
200 |
320 |
12,21 |
|||||||||
|
Т 16.13 |
377 |
100 |
250 |
460 |
1 |
9,94 |
||||||
|
Т 16.14 |
150 |
310 |
11,65 |
|||||||||
|
Т 16.15 |
200 |
360 |
13,39 |
|||||||||
|
Т 16.19 |
426 |
100 |
270 |
505 |
6 |
10,63 |
||||||
|
Т 16.20 |
150 |
320 |
12,37 |
|||||||||
|
Т 16.21 |
200 |
370 |
14,02 |
|||||||||
|
Т 16.22 |
480 |
100 |
305 |
380 |
570 |
44 |
6 |
7 |
18,92 |
|||
|
Т 16.23 |
150 |
355 |
22,08 |
|||||||||
|
Т 16.24 |
200 |
405 |
25,34 |
|||||||||
|
Т 16.25 |
530 |
100 |
315 |
615 |
19,50 |
|||||||
|
Т 16.26 |
150 |
365 |
22,84 |
|||||||||
|
Т 16.27 |
200 |
415 |
25,90 |
|||||||||
|
Т 16.28 |
630 |
100 |
360 |
715 |
20,13 |
|||||||
|
Т 16.29 |
150 |
410 |
23,31 |
|||||||||
|
Т 16.30.01.000 |
200 |
460 |
26,55 |
Опора скользящая диэлектрическая Т 16.00.00.000

Сварные монтажные швы по ГОСТ
5264-80
Катет - по наименьшей толщине свариваемых деталей.
1 - Корпус (Т 16.00.01.000 - черт. 38, табл. 40); 2 - Бугель (Т 17.00.02.000 -
черт. 42, табл. 44); 3 - Прокладка; 4 - Прокладка; 5 - Шпилька по ГОСТ
11769-76; 6 - Гайка по ГОСТ
5915-70
Чертёж 38
Размеры, мм
|
Обозначение |
Наружный диаметр трубопровода, Dн |
Н |
Н1 |
В |
В1 |
Масса, кг |
Наибольшая нагрузка, кгс |
|
|
Вертикальная |
Горизонтальная при f = 0,3 |
|||||||
|
1 |
2 |
3 |
4 |
5 |
6 |
7 |
8 |
9 |
|
Т 16.16.00.000 |
377 |
100 |
292 |
280 |
460 |
15,27 |
7000 |
2100 |
|
Т 16.17 |
150 |
342 |
16,98 |
|||||
|
Т 16.18 |
200 |
392 |
18,72 |
|||||
|
Т 16.19 |
426 |
100 |
318 |
505 |
17,10 |
|||
|
Т 16.20 |
150 |
368 |
18,84 |
|||||
|
Т 16.21 |
200 |
418 |
20,49 |
|||||
|
Т 16.22 |
480 |
100 |
345 |
380 |
570 |
27,79 |
12500 |
3759 |
|
Т 16.23 |
150 |
395 |
30,95 |
|||||
|
Т 16.24 |
200 |
445 |
34,21 |
|||||
|
Т 16.25 |
530 |
100 |
370 |
615 |
29,55 |
|||
|
Т 16.26 |
150 |
420 |
32,89 |
|||||
|
Т 16.27 |
200 |
470 |
33,95 |
|||||
|
Т 16.28 |
630 |
100 |
420 |
715 |
31,08 |
|||
|
Т 16.29 |
150 |
470 |
34,26 |
|||||
|
Т 16.30.00.000 |
200 |
520 |
37,50 |
|||||
Пример условного обозначения скользящей диэлектрической опоры для трубопровода Дн = 377 мм, Н = 150 мм:
Опора диэлектрическая 377-Т 16.17-ТУ......
Опора скользящая диэлектрическая Т 17.00.00.000

Сварные монтажные швы по ГОСТ
5264-80
Катет - по наименьшей толщине свариваемых деталей.
1 - Корпус (Т 17.00.01.000 - черт. 41,
табл. 43); 2 - Хомут (Т 17.00.00.001 -
черт. 45, табл. 47); 3 - Прокладка; 4 - Прокладка; 5 - Гайка по ГОСТ 5915-70
Чертеж 39
Таблица 41
Размеры, мм
|
Обозначение |
Наружный диаметр трубопровода, Dн |
Н |
Н1 |
В |
В1 |
Масса, кг |
Наибольшая нагрузка, кгс |
|
|
Вертикальная |
Горизонтальная при f = 0,3 |
|||||||
|
1 |
2 |
3 |
4 |
5 |
6 |
7 |
8 |
9 |
|
Т 17.01.00.000 |
194 |
100 |
200 |
180 |
255 |
10,42 |
2200 |
660 |
|
Т 17.02 |
150 |
250 |
12,06 |
|||||
|
Т 17.03 |
200 |
300 |
13,60 |
|||||
|
Т 17.04 |
219 |
100 |
215 |
280 |
10,72 |
|||
|
Т 17.05 |
150 |
265 |
12,30 |
|||||
|
Т 17.06 |
200 |
315 |
13,89 |
|||||
|
Т 17.07 |
273 |
100 |
240 |
350 |
13,16 |
|||
|
Т 17.08 |
150 |
290 |
15,02 |
|||||
|
Т 17.09 |
200 |
340 |
16,61 |
|||||
|
Т 17.10 |
325 |
100 |
266 |
280 |
395 |
18,62 |
7000 |
2100 |
|
Т 17.11 |
150 |
316 |
21,29 |
|||||
|
Т 17.12 |
200 |
366 |
23,31 |
|||||
|
Т 17.13 |
377 |
100 |
292 |
460 |
22,14 |
|||
|
Т 17.14 |
150 |
342 |
24,83 |
|||||
|
Т 17.15.00.000 |
200 |
392 |
27,57 |
|||||
Пример условного обозначения скользящей диэлектрической опоры для трубопровода Дн = 273 мм, Н = 200 мм:
Опора диэлектрическая 273-Т 17.09-ТУ......
Опора скользящая диэлектрическая Т 17.00.00.000

Сварные монтажные швы по ГОСТ
5264-80
Катет - по наименьшей толщине свариваемых деталей.
1 - Корпус (Т 17.00.01.000 - черт. 41, табл. 43); 2 - Бугель (Т 17.00.02.000 -
черт. 42, табл. 44); 3 - Прокладка; 4 - Шпилька по ГОСТ 11769-76; 5 -
Гайка по ГОСТ
5915-70
Чертёж 40
Таблица 42
Размеры, мм
|
Обозначение |
Наружный диаметр трубопровода, Dн |
Н |
Н1 |
В |
В1 |
Масса, кг |
Наибольшая нагрузка, кгс |
|
|
Вертикальная |
Горизонтальная при f = 0,3 |
|||||||
|
1 |
2 |
3 |
4 |
5 |
6 |
7 |
8 |
9 |
|
Т 17.16.00.000 |
377 |
100 |
292 |
280 |
460 |
23,71 |
7000 |
2100 |
|
Т 17.17 |
150 |
342 |
26,40 |
|||||
|
Т 17.18 |
200 |
392 |
29,14 |
|||||
|
Т 17.19 |
426 |
100 |
318 |
505 |
26,73 |
|||
|
Т 17.20 |
150 |
368 |
29,46 |
|||||
|
Т 17.21 |
200 |
418 |
32,10 |
|||||
|
Т 17.22 |
480 |
100 |
345 |
380 |
570 |
45,95 |
12500 |
3750 |
|
Т 17.23 |
150 |
395 |
50,70 |
|||||
|
Т 17.24 |
200 |
445 |
54,75 |
|||||
|
Т 17.25 |
530 |
100 |
370 |
615 |
48,08 |
|||
|
Т 17.26 |
150 |
420 |
52,91 |
|||||
|
Т 17.27 |
200 |
470 |
57,86 |
|||||
|
Т 17:28 |
630 |
100 |
420 |
715 |
50,02 |
|||
|
Т 17.29 |
150 |
470 |
54,89 |
|||||
|
Т 17.30 |
200 |
520 |
59,82 |
|||||
|
Т 17.31 |
720 |
100 |
465 |
500 |
815 |
63,56 |
22000 |
6600 |
|
Т 17.32 |
150 |
515 |
69,78 |
|||||
|
Т 17.33 |
200 |
565 |
76,02 |
|||||
|
Т 17.34 |
820 |
100 |
515 |
920 |
67,84 |
|||
|
Т 17.35 |
150 |
565 |
74,04 |
|||||
|
Т 17.36 |
200 |
615 |
80,28 |
|||||
|
Т 17.37 |
920 |
100 |
565 |
1030 |
104,07 |
36000 |
10600 |
|
|
Т 17.38 |
150 |
615 |
112,08 |
|||||
|
Т 17.39 |
200 |
665 |
120,24 |
|||||
|
Т 17.40 |
1020 |
100 |
615 |
700 |
1140 |
123,13 |
||
|
Т 17.41 |
150 |
665 |
133,65 |
|||||
|
Т 17.42 |
200 |
715 |
144,37 |
|||||
|
Т 17.43 |
1220 |
100 |
715 |
1360 |
142,82 |
48000 |
14400 |
|
|
Т 17.44 |
150 |
765 |
153,24 |
|||||
|
Т 17.45 |
200 |
815 |
163,78 |
|||||
|
Т 17.46 |
1420 |
100 |
815 |
1575 |
161,81 |
60000 |
18000 |
|
|
Т 17.47 |
150 |
865 |
174,59 |
|||||
|
Т 17.48.00.000 |
200 |
915 |
187,83 |
|||||
Пример условного обозначения скользящей диэлектрической опоры для трубопровода Дн = 377 мм, Н = 100 мм:
Опора диэлектрическая 377-Т 17.16-ТУ......

Катет - по наименьшей толщине свариваемых деталей.
1 - Подушка (Т 17.00.01.001 - черт. 43,
табл. 45); 2 - Ребро (Т 17.00.01.002 -
черт. 44, табл. 46); 3 - Скоба (Т 14.00.00.001 - черт. 31, табл. 33); 4
- Ребро (Т 14.13.00.004 - черт. 33,
табл. 35)
Чертёж 41
Таблица 43
Размеры, мм
|
Обозначение |
Наружный диаметр трубопровода, Dн |
Н |
Н1 |
В |
В1 |
b |
I |
I2 |
k |
k1 |
c |
аmin |
еmin |
Масса, кг |
|
|
|
|
|
|
|
7 |
8 |
9 |
10 |
11 |
12 |
13 |
14 |
15 |
|
Т 17.01.01.000 |
194 |
100 |
170 |
180 |
255 |
45 |
80 |
34 |
6 |
3 |
5 |
4 |
0 |
8,00 |
|
Т 17.02 |
150 |
220 |
9,64 |
|||||||||||
|
Т 17.03 |
200 |
270 |
11,18 |
|||||||||||
|
Т 17.04 |
219 |
100 |
180 |
280 |
1 |
8,04 |
||||||||
|
Т 17.05 |
150 |
230 |
9,62 |
|||||||||||
|
Т 17.06 |
200 |
280 |
11,21 |
|||||||||||
|
Т 17.07 |
273 |
100 |
200 |
350 |
38 |
8,30 |
||||||||
|
Т 17.08 |
150 |
250 |
10,16 |
|||||||||||
|
Т 17.09 |
200 |
300 |
11,76 |
|||||||||||
|
Т 17.10 |
325 |
100 |
220 |
280 |
395 |
60 |
4 |
6 |
5 |
0 |
13,28 |
|||
|
Т 17.11 |
150 |
270 |
15,95 |
|||||||||||
|
Т 17.12 |
200 |
320 |
17,97 |
|||||||||||
|
Т 17.13 |
377 |
100 |
260 |
460 |
1 |
13,72 |
||||||||
|
Т 17.14 |
150 |
310 |
16,41 |
|||||||||||
|
Т 17.15 |
200 |
360 |
19,15 |
|||||||||||
|
Т 17.19 |
426 |
100 |
270 |
505 |
б |
14,56 |
||||||||
|
Т 17.20 |
150 |
320 |
17,29 |
|||||||||||
|
Т 17.21 |
200 |
370 |
19,93 |
|||||||||||
|
Т 17.22 |
480 |
100 |
305 |
380 |
570 |
100 |
44 |
8 |
6 |
8 |
7 |
27,88 |
||
|
Т 17.23 |
150 |
355 |
32,63 |
|||||||||||
|
Т 17.24 |
200 |
405 |
37,68 |
|||||||||||
|
Т 17.25 |
530 |
100 |
315 |
615 |
28,72 |
|||||||||
|
Т 17.26 |
150 |
365 |
33,55 |
|||||||||||
|
Т 17.27 |
200 |
415 |
38,50 |
|||||||||||
|
Т 17.28 |
630 |
100 |
360 |
715 |
28,98 |
|||||||||
|
Т 17.29 |
150 |
410 |
33,85 |
|||||||||||
|
Т 17.30 |
200 |
460 |
38,78 |
|||||||||||
|
Т 17.31 |
720 |
100 |
410 |
500 |
815 |
8 |
2 |
37,44 |
||||||
|
Т 17.32 |
150 |
460 |
43,66 |
|||||||||||
|
Т 17.33 |
200 |
510 |
49,90 |
|||||||||||
|
Т 17.34 |
820 |
100 |
465 |
920 |
7 |
3 |
39,14 |
|||||||
|
Т 17.35 |
150 |
515 |
45,34 |
|||||||||||
|
Т 17.36 |
200 |
565 |
51,58 |
|||||||||||
|
Т 17.37 |
920 |
100 |
520 |
1030 |
120 |
60 |
10 |
8 |
10 |
8 |
56,57 |
|||
|
Т 17.38 |
150 |
570 |
64,58 |
|||||||||||
|
Т 17.39 |
200 |
620 |
72,74 |
|||||||||||
|
Т 17.40 |
1020 |
100 |
565 |
700 |
1140 |
11 |
72,55 |
|||||||
|
Т 17.41 |
150 |
615 |
83,07 |
|||||||||||
|
Т 17.42 |
200 |
665 |
93,79 |
|||||||||||
|
Т 17.43 |
1220 |
100 |
670 |
1360 |
70 |
10 |
4 |
77,07 |
||||||
|
Т 17.44 |
150 |
720 |
82,49 |
|||||||||||
|
Т 17.45 |
200 |
770 |
98,03 |
|||||||||||
|
Т 17.46 |
1420 |
100 |
775 |
1575 |
10 |
12 |
89,70 |
|||||||
|
Т 17.47 |
150 |
825 |
102,48 |
|||||||||||
|
Т 17.48 |
200 |
875 |
115,72 |
Бугель Т 17.00.02.000

Катет - по наименьшей толщине свариваемых деталей.
1 - Подушка ( Т 17.00.01.001 - черт. 43,
табл. 45); 2 - Ребро (Т 17.00.01.002 -
черт. 44, табл. 46);
Чертёж 42
Размеры, мм
|
Обозначение |
R |
Н |
В |
А |
L |
I |
d |
Масса, кг |
|
1 |
2 |
3 |
4 |
5 |
6 |
7 |
8 |
10 |
|
Т 17.16.02.000 |
192 |
170 |
460 |
406 |
80 |
38 |
18 |
2,49 |
|
Т 17.19 |
218 |
180 |
505 |
456 |
3,10 |
|||
|
Т 17.22 |
246 |
215 |
570 |
510 |
100 |
44 |
23 |
5,17 |
|
Т 17.25 |
272 |
225 |
615 |
560 |
5,97 |
|||
|
Т 17.28 |
320 |
272 |
715 |
666 |
6,47 |
|||
|
Т 17.31 |
366 |
324 |
815 |
756 |
27 |
7,48 |
||
|
Т 17.34 |
416 |
376 |
920 |
860 |
8,62 |
|||
|
Т 17.37 |
466 |
434 |
1030 |
960 |
120 |
60 |
34 |
14,38 |
|
Т 17.40 |
516 |
482 |
1140 |
1060 |
15,78 |
|||
|
Т 17.43 |
616 |
584 |
1360 |
1270 |
70 |
40 |
18,86 |
|
|
Т 17.46.02.000 |
717 |
692 |
1575 |
1476 |
21,62 |
Подушка Т 17.00.01.001

Размеры, мм
|
Обозначение |
R |
Н |
Н1 |
А |
В |
L |
S |
r |
d |
L1 |
I |
I1 |
I2 |
I3 |
a |
Масса, кг |
|
1 |
2 |
3 |
4 |
5 |
6 |
7 |
8 |
9 |
10 |
11 |
12 |
13 |
14 |
15 |
16 |
17 |
|
Т 17.01.01.001 |
102 |
80 |
35 |
220 |
255 |
80 |
6 |
6 |
18 |
275 |
50 |
17 |
46 |
- |
150 |
1,08 |
|
Т 17.02 |
170 |
67 |
2,20 |
|||||||||||||
|
Т 17.03 |
114 |
90 |
244 |
280 |
80 |
308 |
17 |
1,15 |
||||||||
|
Т 17.04 |
170 |
67 |
2,46 |
|||||||||||||
|
Т 17.05 |
142 |
но |
45 |
304 |
350 |
80 |
23 |
380 |
60 |
15 |
50 |
1,45 |
||||
|
Т 17.06 |
170 |
60 |
3,04 |
|||||||||||||
|
Т 17.07 |
168 |
130 |
356 |
395 |
80 |
450 |
15 |
1,67 |
||||||||
|
Т 17.08 |
170 |
60 |
3,60 |
|||||||||||||
|
Т 17.09 |
192 |
170 |
90 |
404 |
460 |
80 |
525 |
75 |
15 |
25 |
155 |
1,80 |
||||
|
Т 17.10 |
170 |
60 |
4,04 |
|||||||||||||
|
Т 17.11 |
218 |
180 |
100 |
456 |
505 |
80 |
610 |
100 |
15 |
160 |
2,13 |
|||||
|
Т 17.12 |
170 |
60 |
4,72 |
|||||||||||||
|
Т 17.13 |
246 |
215 |
120 |
510 |
570 |
100 |
8 |
8 |
690 |
20 |
60 |
40 |
4,00 |
|||
|
Т 17.14 |
170 |
55 |
7,00 |
|||||||||||||
|
Т 17.15 |
272 |
225 |
560 |
615 |
100 |
760 |
120 |
20 |
45 |
4,35 |
||||||
|
Т 17.16 |
170 |
55 |
7,70 |
|||||||||||||
|
Т 17.17 |
320 |
272 |
665 |
715 |
100 |
895 |
140 |
20 |
50 |
5,17 |
||||||
|
Т 17.18 |
170 |
55 |
9,12 |
|||||||||||||
|
Т 17.19 |
366 |
324 |
130 |
756 |
815 |
100 |
27 |
1025 |
150 |
20 |
60 |
5,90 |
||||
|
Т 17.20 |
416 |
376 |
860 |
920 |
1200 |
165 |
7,00 |
|||||||||
|
Т 17.21 |
466 |
434 |
140 |
960 |
1030 |
120 |
10 |
10 |
34 |
1305 |
155 |
80 |
65 |
170 |
12,10 |
|
|
Т 17.22 |
516 |
482 |
1060 |
1140 |
1540 |
13,50 |
||||||||||
|
Т 17.23 |
616 |
584 |
1270 |
1360 |
40 |
1840 |
160 |
15 |
90 |
60 |
16,30 |
|||||
|
Т 17.24.01.001 |
716 |
692 |
1476 |
1575 |
2135 |
155 |
55 |
19,10 |
Ребро Т 17.00.02.000

Размеры, мм
|
Обозначение |
R |
В |
В1 |
Н |
h |
S=b |
Масса, кг |
|
1 |
2 |
3 |
4 |
5 |
6 |
7 |
8 |
|
Т 17.01.01.002 |
110 |
30 |
12 |
35 |
6 |
6 |
0,04 |
|
Т 17.04 |
120 |
40 |
16 |
0,06 |
|||
|
Т 17.07 |
170 |
50 |
20 |
45 |
8 |
0,08 |
|
|
Т 17.13 |
200 |
70 |
34 |
90 |
0,16 |
||
|
Т 17.19 |
225 |
90 |
46 |
100 |
0,23 |
||
|
Т 17.22 |
246 |
120 |
10 |
8 |
0,28 |
||
|
Т 17.25 |
272 |
50 |
0,38 |
||||
|
Т 17.28 |
320 |
80 |
46 |
0,30 |
|||
|
Т 17.31 |
366 |
130 |
0,37 |
||||
|
Т 17.34 |
416 |
36 |
0,38 |
||||
|
Т 17.37 |
466 |
32 |
140 |
15 |
10 |
0,52 |
|
|
Т 17.40 |
530 |
||||||
|
Т 17.43 |
630 |
90 |
24 |
0,59 |
|||
|
Т 17.46.01.002 |
730 |
20 |
0,58 |
Хомут Т 17.00.00.001

Размеры, мм
|
Обозначение |
R |
Н |
h |
А |
d1 |
С |
Развёрнутая длина |
Масса, кг |
|
1 |
2 |
3 |
4 |
5 |
6 |
7 |
8 |
9 |
|
Т 17.01.00.001 |
102 |
220 |
35 |
220 |
М16 |
2,0 |
550 |
0,84 |
|
Т 17.04 |
114 |
235 |
244 |
594 |
0,94 |
|||
|
Т 17.07 |
142 |
290 |
304 |
М20 |
2,5 |
734 |
1,81 |
|
|
Т 17.10 |
168 |
320 |
40 |
356 |
824 |
1,98 |
||
|
Т 17.13.00.001 |
192 |
370 |
404 |
952 |
3,45 |
Опора скользящая диэлектрическая Т 18.00.00.000

Сварные монтажные швы по ГОСТ
5264-80
Катет - по наименьшей толщине свариваемых деталей.
1 - Корпус (Т 18.00.01.000 - черт. 47, табл. 49); 2 - Хомут (Т 17.00.00.001 -
черт. 45, табл. 47); 3 - Прокладка; 4 - Прокладка; 5 - Гайка по ГОСТ
5915-70
Чертёж 46
Таблица 48
Размеры, мм
|
Обозначение |
Наружный диаметр трубопровода, Dн |
Н |
Н1 |
В |
В1 |
Масса, кг |
Наибольшая нагрузка, кгс |
|
|
Вертикальная |
Горизонтальная при f = 0,3 |
|||||||
|
1 |
2 |
3 |
4 |
5 |
6 |
7 |
8 |
9 |
|
Т 18.01.00.000 |
194 |
100 |
200 |
180 |
255 |
14,59 |
2200 |
660 |
|
Т 18.02 |
150 |
250 |
17,23 |
|||||
|
Т 18.03 |
200 |
300 |
19,77 |
|||||
|
Т 18.04 |
219 |
100 |
215 |
280 |
14,71 |
|||
|
Т 18.05 |
150 |
265 |
17,31 |
|||||
|
Т 18.06 |
200 |
315 |
19,93 |
|||||
|
Т 18.07 |
273 |
100 |
240 |
350 |
16,95 |
|||
|
Т 18.08 |
150 |
290 |
19,83 |
|||||
|
Т 18.09 |
200 |
340 |
22,43 |
|||||
|
Т 18.10 |
325 |
100 |
266 |
280 |
395 |
26,00 |
7000 |
2100 |
|
Т 18.11 |
150 |
316 |
30,19 |
|||||
|
Т 18.12 |
200 |
366 |
33,75 |
|||||
|
Т 18.13 |
377 |
100 |
292 |
460 |
29,20 |
|||
|
Т 18.14 |
150 |
342 |
33,47 |
|||||
|
Т 18.15.00.000 |
200 |
392 |
37,69 |
|||||
Пример условного обозначения скользящей диэлектрической опоры для трубопровода Дн = 273 мм, Н = 200 мм:
Опора диэлектрическая 273-Т 18.09-ТУ......
Корпус Т 18.00.01.000

Сварные монтажные швы по ГОСТ
5264-80
Катет - по наименьшей толщине свариваемых деталей.
1 - Подушка (Т 17.00.01.001 - черт. 43,
табл. 45); 2 - Ребро (Т 17.00.01.002 -
черт. 44, табл. 46); 3 - Скоба (Т 15.00.00.001 - черт. 35, табл. 37); 4
- Ребро (Т 14.00.00.003 - черт. 32,
табл. 34); 5 - Ребро ( Т 14.00.00.003
- черт. 33, табл. 35);
Чертёж 47
Таблица 49
Размеры, мм
|
Обозначение |
Наружный диаметр трубопровода, Dн |
Н |
Н1 |
В |
В1 |
b |
I0 |
I |
I1 |
I2 |
С |
k |
аmin |
еmin |
Масса, кг |
|
1 |
2 |
3 |
4 |
5 |
6 |
7 |
8 |
9 |
10 |
11 |
12 |
13 |
14 |
15 |
16 |
|
Т 18.01.01.000 |
194 |
100 |
170 |
180 |
255 |
45 |
80 |
34 |
80 |
150 |
5 |
6 |
4 |
0 |
12,17 |
|
Т 18.02 |
150 |
220 |
14,81 |
||||||||||||
|
Т 18.03 |
200 |
270 |
17,35 |
||||||||||||
|
Т 18.04 |
219 |
100 |
180 |
280 |
I |
12,03 |
|||||||||
|
Т 18.05 |
150 |
230 |
14,63 |
||||||||||||
|
Т 18.06 |
200 |
280 |
17,25 |
||||||||||||
|
Т 18.07 |
273 |
100 |
200 |
350 |
38 |
12,09 |
|||||||||
|
Т 18.08 |
150 |
250 |
14,97 |
||||||||||||
|
Т 18.09 |
200 |
300 |
17,57 |
||||||||||||
|
Т 18.10 |
325 |
100 |
220 |
280 |
395 |
50 |
6 |
5 |
0 |
20,66 |
|||||
|
Т 18.11 |
150 |
270 |
24,85 |
||||||||||||
|
Т 18.12 |
200 |
320 |
28,41 |
||||||||||||
|
Т 18.13 |
377 |
100 |
260 |
460 |
1 |
20,78 |
|||||||||
|
Т 18.14 |
150 |
310 |
25,05 |
||||||||||||
|
Т 18.15 |
200 |
360 |
29,27 |
||||||||||||
|
Т 18.19 |
426 |
100 |
270 |
505 |
6 |
21,44 |
|||||||||
|
Т 18.20 |
150 |
310 |
25,73 |
||||||||||||
|
Т 18.21 |
200 |
370 |
29,87 |
||||||||||||
|
Т 18.22 |
480 |
100 |
305 |
380 |
570 |
100 |
44 |
100 |
190 |
8 |
8 |
7 |
41,52 |
||
|
Т 18.23 |
150 |
355 |
49,00 |
||||||||||||
|
Т 18.24 |
200 |
405 |
56,58 |
||||||||||||
|
Т 18.25 |
530 |
100 |
315 |
615 |
42,06 |
||||||||||
|
Т 18.26 |
150 |
365 |
49,52 |
||||||||||||
|
Т 18.27 |
200 |
415 |
57,10 |
||||||||||||
|
Т 18.28 |
630 |
100 |
360 |
715 |
60 |
41,82 |
|||||||||
|
Т 18.29 |
150 |
410 |
49,32 |
||||||||||||
|
Т 18.30 |
200 |
460 |
56,88 |
||||||||||||
|
Т 18.31 |
720 |
100 |
410 |
500 |
815 |
8 |
2 |
53,28 |
|||||||
|
Т 18.32 |
150 |
460 |
62,04 |
||||||||||||
|
Т 18.33 |
200 |
510 |
70,92 |
||||||||||||
|
Т 18.34 |
820 |
100 |
465 |
920 |
7 |
3 |
54,58 |
||||||||
|
Т 18.35 |
150 |
515 |
63,32 |
||||||||||||
|
Т 18.36 |
200 |
565 |
72,20 |
||||||||||||
|
Т 18.37 |
920 |
100 |
520 |
1030 |
120 |
60 |
10 |
8 |
75,84 |
||||||
|
Т 18.38 |
150 |
570 |
87,16 |
||||||||||||
|
Т 18.39 |
200 |
620 |
99,54 |
||||||||||||
|
Т 18.40 |
1020 |
100 |
565 |
700 |
1140 |
10 |
11 |
99,68 |
|||||||
|
Т 18.41 |
150 |
615 |
114,54 |
||||||||||||
|
Т 18.42 |
200 |
665 |
129,60 |
||||||||||||
|
Т 18.43 |
1220 |
100 |
670 |
1360 |
70 |
12 |
4 |
103,30 |
|||||||
|
Т 18.44 |
150 |
720 |
117,96 |
||||||||||||
|
Т 18.45 |
200 |
770 |
132,84 |
||||||||||||
|
Т 18.46 |
1420 |
100 |
775 |
1575 |
12 |
121,36 |
|||||||||
|
Т 18.47 |
150 |
825 |
139,60 |
||||||||||||
|
Т 18.48.01.000 |
200 |
875 |
158,50 |
Опора скользящая диэлектрическая Т 18.00.00.000

Сварные монтажные швы по ГОСТ
5264-80
Катет - по наименьшей толщине свариваемых деталей.
1 - Корпус (Т 18.00.01.000 - черт. 47, табл. 49); 2 - Бугель (Т 17.00.02.000 -
черт. 42, табл. 44); 3 - Прокладка; 4 - Шпилька по ГОСТ 11769-76; 5 -
Гайка по ГОСТ
5915-70
Чертёж 48
Таблица 50
Размеры, мм
|
Обозначение |
Наружный диаметр трубопровода, Dн |
Н |
Н1 |
В |
В1 |
Масса, кг |
Наибольшая нагрузка, кгс |
|
|
Вертикальная |
Горизонтальная при f = 0,3 |
|||||||
|
1 |
2 |
3 |
4 |
5 |
6 |
7 |
8 |
9 |
|
Т 18.16.00.000 |
377 |
100 |
292 |
280 |
460 |
30,77 |
7000 |
2100 |
|
Т 18.17 |
150 |
342 |
35,04 |
|||||
|
Т 18.18 |
200 |
392 |
39,26 |
|||||
|
Т 18.19 |
426 |
100 |
318 |
505 |
33,67 |
|||
|
Т 18.20 |
150 |
368 |
37,96 |
|||||
|
Т 18.21 |
200 |
418 |
42,10 |
|||||
|
Т 18.22 |
480 |
100 |
345 |
380 |
570 |
58,59 |
12500 |
3750 |
|
Т 18.23 |
150 |
395 |
66,07 |
|||||
|
Т 18.24 |
200 |
445 |
73,65 |
|||||
|
Т 18.25 |
530 |
100 |
370 |
615 |
61,42 |
|||
|
Т 18.26 |
150 |
420 |
68,88 |
|||||
|
Т 18.27 |
200 |
470 |
76,46 |
|||||
|
Т 18.28 |
630 |
100 |
420 |
715 |
62,86 |
|||
|
Т 18.29 |
150 |
470 |
70,36 |
|||||
|
Т 18.30 |
200 |
520 |
77,92 |
|||||
|
Т 18.31 |
720 |
100 |
465 |
500 |
815 |
79,48 |
22000 |
6600 |
|
Т 18.32 |
150 |
515 |
88,24 |
|||||
|
Т 18.33 |
200 |
565 |
97,12 |
|||||
|
Т 18.34 |
820 |
100 |
515 |
920 |
8334 |
|||
|
Т 18.35 |
150 |
565 |
92,08 |
|||||
|
Т 18.36 |
200 |
615 |
100,96 |
|||||
|
Т 18.37 |
920 |
100 |
565 |
1030 |
123,14 |
36000 |
10800 |
|
|
Т 18.38 |
150 |
615 |
134,76 |
|||||
|
Т 18.39 |
200 |
665 |
146,84 |
|||||
|
Т 18.40 |
1020 |
100 |
615 |
700 |
1140 |
150,42 |
||
|
Т 18.41 |
150 |
665 |
165,28 |
|||||
|
Т 18.42 |
200 |
715 |
180,34 |
|||||
|
Т 18.43 |
1220 |
100 |
715 |
1360 |
169,05 |
48000 |
14400 |
|
|
Т 18.44 |
150 |
765 |
183,71 |
|||||
|
Т 18.45 |
200 |
815 |
198,59 |
|||||
|
Т 18.46 |
1420 |
100 |
815 |
1575 |
193,67 |
60000 |
18000 |
|
|
Т 18.47 |
150 |
865 |
211,81 |
|||||
|
Т 18.48.00.000 |
200 |
915 |
230,81 |
|||||
Пример условного обозначения скользящей диэлектрической опоры для трубопровода Дн = 377 мм, Н = 200 мм:
Опора диэлектрическая 273-Т 18.18-ТУ......
Плита опорная с диэлектрической прокладкой Т 43.00.00.000

Сварные монтажные швы по ГОСТ
5264-80
Катет - по наименьшей толщине свариваемых деталей.
1 - Плита опорная для опор Дн £ 273 мм (Т
43.00.01.000 - черт. 50, табл. 52); 2 - Плита опорная для опор Дн ³
325 мм (Т 43.00.02.000 - черт. 51,
табл. 53) ; 3 - Прокладка; 4 - Втулка
(Т 43.00.00.001 - черт. 52, табл. 54); 5 - Шайба (Т 43.00.00.002 - черт. 53, табл. 55); 6 - Болт по ГОСТ
7798-70; 7 - Шайба по ГОСТ
11371-78; 8 - Шайба по ГОСТ
6958-78;
Чертёж 49
Таблица 51
Размеры, мм
|
Обозначение |
Тип опоры |
Наружный диаметр трубопровода, Dн |
L |
В |
Н |
С |
А |
d |
Масса, кг |
|
1 |
2 |
3 |
4 |
5 |
6 |
7 |
8 |
9 |
10 |
|
Т 43.01.00.000 |
Т 13.01.00.000 |
32; 38; 45 |
160 |
50 |
8 |
30 |
120 |
11 |
0,44 |
|
Т 43.02 |
Т 14.01 |
330 |
240 |
0,88 |
|||||
|
Т 43.03 |
Т 13.04 |
57; 76 |
160 |
70 |
40 |
120 |
0,51 |
||
|
Т 43.04 |
Т 14.04 |
330 |
240 |
1.21 |
|||||
|
Т 43.05 |
Т 13.07 |
89; 108 |
160 |
90 |
50 |
120 |
0,77 |
||
|
Т 43.06 |
Т 14.07 |
330 |
240 |
1,55 |
|||||
|
Т 43.07 |
Т 13.10 |
133; 159 |
160 |
120 |
70 |
120 |
1,01 |
||
|
Т 43.08 |
Т 14.10 |
330 |
240 |
2,05 |
|||||
|
Т 43.09 |
Т 13.13 |
194 |
170 |
170 |
10 |
80 |
145 |
13 |
1,99 |
|
Т 43.10 |
Т 14.13 |
340 |
290 |
3,92 |
|||||
|
Т 43.11 |
Т 15.01 |
680 |
620 |
7,78 |
|||||
|
Т 43.12 |
Т 13.16 |
219 |
170 |
145 |
1,99 |
||||
|
Т 43.13 |
Т 14.16 |
340 |
290 |
3,92 |
|||||
|
Т 43.14 |
Т 15.04 |
680 |
620 |
7,78 |
|||||
|
Т 43.15 |
Т 13.19 |
273 |
170 |
145 |
1,95 |
||||
|
Т 43.16 |
Т 14.19 |
340 |
290 |
3,92 |
|||||
|
Т 43.17 |
Т 15.07 |
680 |
620 |
7,78 |
|||||
|
Т 43.18 |
Т 13.22 |
325 |
170 |
270 |
180 |
145 |
21 |
3,19 |
|
|
Т 43.19 |
Т 14.22 |
340 |
290 |
6,23 |
|||||
|
Т 43.20 |
Т 15.10 |
680 |
620 |
1237 |
|||||
|
Т 43.21 |
Т 13.25 |
377 |
170 |
145 |
3,19 |
||||
|
Т 43.22 |
Т 14.25 |
340 |
290 |
6,23 |
|||||
|
Т 43.23 |
Т 15.13 |
680 |
620 |
12,37 |
|||||
|
Т 43.24 |
Т 13.28 |
426 |
170 |
145 |
3,19 |
||||
|
Т 43.25 |
Т 14.28 |
340 |
290 |
6,23 |
|||||
|
Т 43.26 |
Т 15.16 |
680 |
620 |
12,37 |
|||||
|
Т 43.27 |
Т 13.31 |
480 |
170 |
360 |
280 |
145 |
4,21 |
||
|
Т 43.28 |
Т 14.31 |
340 |
290 |
8,29 |
|||||
|
Т 43.29 |
Т 15.19 |
680 |
620 |
16,46 |
|||||
|
Т 43.30 |
Т 13.34 |
530 |
170 |
145 |
4,21 |
||||
|
Т 43.31 |
Т 14.34 |
340 |
290 |
8,29 |
|||||
|
Т 43.32 |
Т 15.22 |
680 |
620 |
16,46 |
|||||
|
Т 43.33 |
Т 13.37 |
630 |
170 |
145 |
4Д1 |
||||
|
Т 43.34 |
Т 14.37 |
340 |
290 |
8,29 |
|||||
|
Т 43.35 |
Т 15.25 |
680 |
620 |
16,46 |
|||||
|
Т 43.36 |
Т 14.40 |
720 |
340 |
480 |
12 |
400 |
290 |
41 |
14,28 |
|
Т 43.37 |
Т 15.28 |
680 |
620 |
27,74 |
|||||
|
Т 43.38 |
Т 14.43 |
820 |
340 |
290 |
14,28 |
||||
|
Т 43.39 |
Т 15.31 |
680 |
620 |
27,74 |
|||||
|
Т 43.40 |
Т 14.46 |
920 |
340 |
290 |
14,28 |
||||
|
Т 43.41 |
Т 15.34 |
680 |
620 |
27,74 |
|||||
|
Т 43.42 |
Т 14.49 |
1020 |
340 |
670 |
600 |
290 |
19,61 |
||
|
Т 43.43 |
Т 15.37 |
680 |
620 |
38,30 |
|||||
|
Т 43.44 |
Т 14.52 |
1220 |
340 |
290 |
19,62 |
||||
|
Т 43.45 |
Т 15.40 |
680 |
620 |
38,41 |
|||||
|
Т 43.46 |
Т 14.55 |
1420 |
340 |
290 |
19,62 |
||||
|
Т 43.47 |
Т 15.43 |
680 |
620 |
38,41 |
|||||
|
Т 43.48 |
Т 14.56 |
340 |
290 |
19,62 |
|||||
|
Т 43.49.00.000 |
Т 15.44.00.000 |
680 |
620 |
38,41 |
Пример условного обозначения плиты диэлектрической для опоры типа Т 13.07
Плита диэлектрическая Т 43.05-ТУ......
Плита опорная Т 43.00.01.000

Сварные монтажные швы по ГОСТ
5264-80
Катет - по наименьшей толщине свариваемых деталей.
1 - Плита
Чертёж 50
Размеры, мм
|
Обозначение |
Наружный диаметр трубопровода, Dн |
В |
L |
С |
А |
d1 |
S |
k |
Масса, кг |
|
1 |
2 |
3 |
4 |
5 |
6 |
7 |
8 |
9 |
10 |
|
Т 43.01.00.000 |
32; 38; 45 |
50 |
160 |
30 |
120 |
М6 |
6 |
2 |
0,38 |
|
Т 43.02 |
330 |
240 |
0,78 |
||||||
|
Т 43.03 |
57; 76 |
70 |
160 |
40 |
120 |
0,53 |
|||
|
Т 43.04 |
330 |
240 |
1,09 |
||||||
|
Т 43.05 |
89; 108 |
90 |
160 |
50 |
120 |
0,68 |
|||
|
Т 43.06 |
330 |
240 |
1,40 |
||||||
|
Т 43.07 |
133; 159 |
120 |
160 |
70 |
120 |
0,90 |
|||
|
Т 43.08 |
330 |
240 |
1,87 |
||||||
|
Т 43.09 |
194 |
170 |
170 |
80 |
145 |
М8 |
8 |
3 |
1,81 |
|
Т 43.10 |
340 |
290 |
3,63 |
||||||
|
Т 43.11 |
680 |
620 |
7,26 |
||||||
|
Т 43.12 |
219 |
170 |
145 |
1,81 |
|||||
|
Т 43.13 |
340 |
290 |
3,63 |
||||||
|
Т 43.14 |
680 |
620 |
7,26 |
||||||
|
Т 43.15 |
273 |
170 |
145 |
1,81 |
|||||
|
Т 43.16 |
340 |
290 |
3,63 |
||||||
|
Т 43.17.00.000 |
680 |
620 |
7,26 |
Плита опорная Т 43.00.02.000

Сварные монтажные швы по ГОСТ
5264-80
Катет - по наименьшей толщине свариваемых деталей.
1 - Плита; 2 - Бобышка
Чертёж 51
Размеры, мм
|
Обозначение |
Наружный диаметр трубопровода, Dн |
В |
L |
С |
А |
d |
d1 |
Н |
h |
I |
S |
К - катет шва |
Масса, кг |
|
1 |
2 |
3 |
4 |
5 |
6 |
7 |
8 |
9 |
10 |
11 |
12 |
13 |
14 |
|
Т 43.18.01.000 |
325 |
270 |
170 |
180 |
145 |
16,5 |
М8 |
13 |
5 |
10 |
8 |
3 |
2,89 |
|
Т 43.19 |
340 |
290 |
5,75 |
||||||||||
|
Т 43.20 |
680 |
620 |
11,53 |
||||||||||
|
Т 43.21 |
377 |
170 |
145 |
2,89 |
|||||||||
|
Т 43.22 |
340 |
290 |
5,75 |
||||||||||
|
Т 43.23 |
680 |
620 |
11,53 |
||||||||||
|
Т 43.24 |
426 |
170 |
145 |
2,89 |
|||||||||
|
Т 43.25 |
340 |
290 |
5,75 |
||||||||||
|
Т 43.26 |
680 |
620 |
11,53 |
||||||||||
|
Т 43.27 |
480 |
360 |
170 |
280 |
145 |
15 |
7 |
12 |
3,84 |
||||
|
Т 43.28 |
340 |
290 |
7,68 |
||||||||||
|
Т 43.29 |
680 |
620 |
15,36 |
||||||||||
|
Т 43.30 |
530 |
170 |
145 |
3,84 |
|||||||||
|
Т 43.31 |
340 |
290 |
7,68 |
||||||||||
|
Т 43.32 |
680 |
620 |
15,36 |
||||||||||
|
Т 43.33 |
630 |
170 |
145 |
3,84 |
|||||||||
|
Т 43.34 |
340 |
290 |
7,68 |
||||||||||
|
Т 43.35 |
680 |
620 |
15,36 |
||||||||||
|
Т 43.36 |
720 |
480 |
340 |
400 |
290 |
36,5 |
М16 |
19 |
9 |
14 |
10 |
5 |
12,81 |
|
Т 43.37 |
680 |
620 |
25,62 |
||||||||||
|
Т 43.38 |
820 |
340 |
290 |
12,81 |
|||||||||
|
Т 43.39 |
680 |
620 |
25,62 |
||||||||||
|
Т 43.40 |
920 |
340 |
290 |
12,81 |
|||||||||
|
Т 43.41 |
680 |
620 |
25,62 |
||||||||||
|
Т 43.42 |
1020 |
670 |
340 |
600 |
290 |
17,88 |
|||||||
|
Т 43.43 |
680 |
620 |
35,77 |
||||||||||
|
Т 43.44 |
1220 |
340 |
290 |
21 |
11 |
16 |
17,89 |
||||||
|
Т 43.45 |
680 |
620 |
35,77 |
||||||||||
|
Т 43.46 |
1420 |
340 |
290 |
17,89 |
|||||||||
|
Т 43.47.00.000 |
680 |
620 |
35,77 |
Втулка Т 43.00.00.001

Паронит ГОСТ 481-71
Размеры, мм
|
Обозначение |
d |
d1 |
I |
Масса, кг |
|
1 |
2 |
3 |
4 |
5 |
|
Т 43.01.00.001 |
10 |
6 |
6 |
0,0007 |
|
Т 43.09 |
12 |
8 |
7 |
0,0003 |
|
Т 43.18 |
20 |
16 |
6 |
0,0010 |
|
Т 43.27 |
20 |
16 |
8 |
0,0020 |
|
Т 43.35 |
40 |
36 |
10 |
0,0050 |
|
Т 43.44.00.001 |
40 |
36 |
12 |
0,0060 |
Шайба Т 43.00.00.002

Паронит ГОСТ 481-71
Размеры, мм
|
Обозначение |
d2 |
d1 |
S |
Масса, кг |
|
1 |
2 |
3 |
4 |
5 |
|
Т 43.01.00.002 |
12 |
6 |
1 |
0,0002 |
|
Т 43.09 |
18 |
8 |
1 |
0,0004 |
|
Т 43.18 |
25 |
8 |
1 |
0,0008 |
|
Т 43.36.00.002 |
50 |
16 |
1 |
0,0030 |
Опора однокатковая Т 19.00.00.000

Сварные монтажные швы по ГОСТ
5264-80
Катет - по наименьшей толщине свариваемых деталей.
1 - Опора (Т 13.00.00.000 - черт. 24,
табл. 26, Т 14.00.00.000 - черт. 29, табл. 31); 2 - Плита опорная (Т 19.00.01.000 - черт. 56, табл. 58); 3 - Каток (Т 19.00.00.001 - черт. 55, табл. 57); 4
- Ребро
Чертеж 54
Таблица 56
Размеры, мм
|
Обозначение |
Наружный диаметр трубопровода, Dн |
Наибольшее перемещение трубопровода |
L |
Н |
В |
В1 |
I |
k |
Масса, кг |
Наибольшая нагрузка, кгс |
|
|
Вертикальная |
Горизонтальная при f = 0,3 |
||||||||||
|
1 |
2 |
3 |
4 |
5 |
6 |
7 |
8 |
9 |
10 |
11 |
12 |
|
Т 19.01.00.000 |
194 |
180 |
170 |
150 |
180 |
340 |
170 |
3 |
12,32 |
2200 |
220 |
|
Т 19.02 |
520 |
340 |
340 |
18,79 |
|||||||
|
Т 19.03 |
219 |
180 |
170 |
170 |
12,12 |
||||||
|
Т 19.04 |
520 |
340 |
340 |
18,49 |
|||||||
|
Т 19.05 |
273 |
180 |
170 |
170 |
11,66 |
||||||
|
Т 19.06 |
520 |
340 |
340 |
17,95 |
|||||||
|
Т 19.07 |
325 |
100 |
170 |
200 |
280 |
440 |
170 |
4 |
33,86 |
6000 |
600 |
|
Т 19.08 |
440 |
340 |
340 |
44,31 |
|||||||
|
Т 19.09 |
377 |
100 |
170 |
170 |
33,44 |
||||||
|
Т 19.10 |
440 |
340 |
340 |
43,79 |
|||||||
|
Т 19.11 |
426 |
100 |
170 |
170 |
32,81 |
||||||
|
Т 19.12 |
440 |
340 |
340 |
43,04 |
|||||||
|
Т 19.13 |
480 |
100 |
170 |
380 |
540 |
170 |
6 |
48,00 |
10000 |
1000 |
|
|
Т 19.14 |
440 |
340 |
340 |
63,32 |
|||||||
|
Т 19.15 |
530 |
100 |
170 |
170 |
47,40 |
||||||
|
Т 19.16 |
440 |
340 |
340 |
62,58 |
|||||||
|
Т 19.17 |
630 |
100 |
170 |
170 |
46,81 |
||||||
|
Т 19.18 |
440 |
340 |
340 |
61,79 |
|||||||
|
Т 19.19 |
720 |
500 |
660 |
81,95 |
|||||||
|
Т 19.20 |
820 |
81,09 |
|||||||||
|
Т 19.21 |
920 |
8 |
88,68 |
||||||||
|
Т 19.22 |
1020 |
700 |
860 |
123,52 |
20000 |
2000 |
|||||
|
Т 19.23 |
1220 |
125,35 |
|||||||||
|
Т 19.24.00.000 |
1420 |
10 |
135,43 |
24000 |
2400 |
||||||
Пример условного обозначения однокатковой опоры для трубопровода Дн = 219 мм и наибольшим перемещением 180 мм
Опора однокатковая 219-Т 19.03-ТУ......
Каток Т 19.00.00.001

Чертёж 55
Таблица 57
Размеры, мм
|
Обозначение |
I |
I1 |
D |
d |
Масса, кг |
|
1 |
2 |
3 |
4 |
5 |
6 |
|
Т 19.01.00.001 |
288 |
340 |
40 |
16 |
3,26 |
|
Т 19.07 |
388 |
440 |
90 |
66 |
20,60 |
|
Т 19.13 |
488 |
540 |
26,90 |
||
|
Т 19.19 |
608 |
660 |
34,90 |
||
|
Т 19.22.00.001 |
808 |
860 |
47,80 |
Опорная плита Т 19.00.01.000

Катет - по наименьшей толщине свариваемых деталей.
1 - Основание; 2 - Направляющая; 3 - Упор
Чертёж 56
Размеры, мм
|
Обозначение |
L |
L1 |
А |
А1 |
I |
I1 |
Масса, кг |
|
1 |
2 |
3 |
4 |
5 |
6 |
7 |
8 |
|
Т 19.01.01.000 |
170 |
150 |
340 |
300 |
160 |
60 |
4,95 |
|
Т 19.02 |
340 |
320 |
330 |
8,93 |
|||
|
Т 19.07 |
170 |
150 |
440 |
400 |
160 |
120 |
6,48 |
|
Т 19.08 |
340 |
320 |
330 |
12,58 |
|||
|
Т 19.13 |
170 |
150 |
540 |
500 |
160 |
7,81 |
|
|
Т 19.14 |
340 |
320 |
330 |
15,01 |
|||
|
Т 19.19 |
660 |
620 |
180 |
18,43 |
|||
|
Т 19.21.01. 000 |
860 |
820 |
23,77 |
Опора двухкатковая Т 20.00.00.000

Сварные монтажные швы по ГОСТ
5264-80
Катет - по наименьшей толщине свариваемых деталей.
1 - Опора (Т 14.00.00.000 - черт. 29,
табл. 31, Т 15.00.00.000 - черт. 34, табл. 36); 2 - Плита опорная (Т 20.00.01.000 - черт. 58, табл.
60); 3 - Обойма (Т 20.00.02.000 - черт. 59,
табл. 61); 4 - Ребро
Чертёж 57
Таблица 59
Размеры, мм
|
Обозначение |
Наружный диаметр трубопровода, Dн |
Наибольшее перемещение трубопровода |
L |
L1 |
В |
В1 |
k |
Масса, кг |
Наибольшая нагрузка, кгс |
|
|
Вертикальная |
Горизонтальная при f = 0,3 |
|||||||||
|
1 |
2 |
3 |
4 |
5 |
6 |
7 |
8 |
9 |
10 |
11 |
|
Т 20.01.00.000 |
720 |
200 |
360 |
340 |
660 |
500 |
6 |
117,49 |
18000 |
1800 |
|
Т 20.02 |
800 |
640 |
680 |
151,15 |
||||||
|
Т 20.03 |
820 |
200 |
360 |
340 |
116,63 |
|||||
|
Т 20.04 |
800 |
640 |
680 |
149,99 |
||||||
|
Т 20.05 |
920 |
200 |
360 |
340 |
8 |
124,69 |
22000 |
2200 |
||
|
Т 20.06 |
800 |
640 |
680 |
162,52 |
||||||
|
Т 20.07 |
1020 |
200 |
360 |
340 |
860 |
700 |
167,79 |
30000 |
3000 |
|
|
Т 20.08 |
800 |
640 |
680 |
217,28 |
||||||
|
Т 20.09 |
1220 |
200 |
360 |
340 |
169,53 |
40000 |
4000 |
|||
|
Т 20.10 |
800 |
640 |
680 |
218,22 |
30000 |
3000 |
||||
|
Т 20.11 |
1420 |
200 |
360 |
340 |
10 |
180,07 |
50000 |
5000 |
||
|
Т 20.12.00.000 |
800 |
640 |
680 |
234,90 |
30000* |
3000 |
||||
Примечание: *Допускается увеличение нагрузки до 50 т при условии обеспечения необходимой прочности несущих строительных конструкций.
Пример условного обозначения двухкатковой опоры для трубопровода Дн = 720 мм и наибольшим перемещением 200 мм
Опора однокатковая 720-Т 20.01-ТУ......
Опорная плита Т 20.00.01.000

Катет - по наименьшей толщине свариваемых деталей.
1 - Основание; 2 - Направляющая ; 3 - Упор
Чертёж 58
Таблица 60
Размеры, мм
|
Обозначение |
L |
L1 |
A |
A1 |
I |
Масса, кг |
|
1 |
|
|
|
|
6 |
8 |
|
Т 20.01.01.000 |
360 |
340 |
660 |
620 |
350 |
16,67 |
|
Т 20.02 |
640 |
620 |
630 |
34,58 |
||
|
Т 20.07 |
360 |
340 |
860 |
820 |
350 |
25,37 |
|
Т 20.08.01.000 |
640 |
620 |
630 |
44,68 |
Обойма Т 20.00.02.000

Катет - по наименьшей толщине свариваемых деталей.
1 - Каток (Т 20.00.02.001 - черт. 60, табл. 62); 2 - Угольник (Т 20.00.02.002 -
черт. 61, табл. 63)
Чертёж 59
Размеры, мм
|
Обозначение |
В |
Масса, кг |
|
|
номинальная |
Доп. отклонения |
||
|
1 |
2 |
3 |
4 |
|
Т 20.01.02.001 |
662 |
+1,0 -0,5 |
69,2 |
|
Т 20.07.02.001 |
862 |
90,0 |
|
Каток Т 20.00.02.001

Чертёж 60
Таблица 62
Размеры, мм
|
Обозначение |
I |
I1 |
I2 |
Масса, кг |
|
1 |
2 |
3 |
4 |
5 |
|
Т 20.01.02.001 |
608 |
660 |
680 |
32,9 |
|
Т 20.07.02.001 |
808 |
860 |
880 |
42,9 |
Угольник Т 20.00.02.002

Размеры, мм
|
Обозначение |
В |
Развёрнутая длина |
Масса, кг |
|
1 |
2 |
3 |
4 |
|
Т 20.01.02.002 |
670 |
905 |
1,70 |
|
Т 20.07.02.002 |
870 |
1105 |
2,08 |
Опора шариковая Т 21.00.00.000

Сварные монтажные швы по ГОСТ
5264-80
Катет - по наименьшей толщине свариваемых деталей.
1 - Опора (Т 13.00.00.000 - черт. 24,
табл. 26, Т 14.00.00.000 - черт. 29, табл. 31); 2 - Каретка ( Т 21.00.01.000-черт. 63, табл. 65) ;
3 - Сепаратор (Т 21.00.02.000 - черт. 65,
табл. 67); 4 - Основание (Т
21.00.03.000 - черт. 68, табл. 70); 5 - Плита (Т 21.00.00.001 - черт. 69, табл. 71); 6 - Подпятник (Т 21.00.00.002 - черт. 70); 7 - Пята (T 21.00.00.003 -
черт. 71); 8 - Накладка (T 21.00.00.004
- черт. 72, табл. 72); 9 - Кольцо (Т 21.00.00.005 - черт. 73, табл. 73); 10 - Болт по ГОСТ
7798-70
Чертёж 62
Таблица 64
Размеры, мм
|
Обозначение |
Наружный диаметр трубопровода, Dн |
Наибольшее перемещение трубопровода |
Н |
Н1 |
Н 2 |
L |
L1 |
С |
Масса, кг |
Наибольшая нагрузка, кгс |
|
|
Вертикальная |
Горизонтальная при f = 0,3 |
||||||||||
|
1 |
2 |
3 |
4 |
5 |
6 |
7 |
8 |
9 |
10 |
11 |
12 |
|
Т 21.01.00.000 |
194 |
200 |
350 |
150 |
250 |
660 |
560 |
10 |
112,06 |
2200 |
220 |
|
Т 21.02 |
400 |
1000 |
700 |
62,66 |
|||||||
|
Т 21.03 |
219 |
200 |
360 |
660 |
560 |
111,86 |
|||||
|
Т 21.04 |
400 |
1000 |
700 |
162,46 |
|||||||
|
Т 21.05 |
273 |
200 |
390 |
660 |
560 |
111,40 |
|||||
|
Т 21.06 |
400 |
1000 |
700 |
162,00 |
|||||||
|
Т 21.07 |
325 |
200 |
415 |
660 |
560 |
115,60 |
7000 |
700 |
|||
|
Т 21.08 |
400 |
1000 |
700 |
166,20 |
|||||||
|
Т 21.09 |
377 |
200 |
440 |
660 |
560 |
115,18 |
|||||
|
Т 21.10 |
400 |
1000 |
700 |
165,78 |
|||||||
|
Т 21.11 |
426 |
200 |
465 |
660 |
560 |
114,55 |
|||||
|
Т 21.12 |
400 |
1000 |
700 |
165,15 |
|||||||
|
Т 21.13 |
480 |
200 |
540 |
200 |
300 |
660 |
560 |
154,67 |
12500 |
1250 |
|
|
Т 21.14 |
400 |
900 |
700 |
241,94 |
|||||||
|
Т 21.15 |
530 |
200 |
565 |
660 |
560 |
154,07 |
|||||
|
Т 21.16 |
400 |
900 |
700 |
241,34 |
|||||||
|
Т 21.17 |
630 |
200 |
615 |
660 |
560 |
153,48 |
|||||
|
Т 21.18 |
400 |
900 |
700 |
240,75 |
|||||||
|
Т 21.19 |
720 |
200 |
610 |
150 |
250 |
660 |
560 |
95 |
138,58 |
7000 |
700 |
|
Т 21.20 |
400 |
900 |
700 |
189,18 |
|||||||
|
Т 21.21 |
200 |
560 |
200 |
300 |
800 |
274,28 |
16200 |
1620 |
|||
|
Т 21.22 |
400 |
1000 |
800 |
330,88 |
|||||||
|
Т 21.23 |
820 |
200 |
710 |
660 |
560 |
169,43 |
10300 |
1030 |
|||
|
Т 21.24 |
400 |
900 |
700 |
256,70 |
|||||||
|
Т 21.25 |
200 |
800 |
273,40 |
21300 |
2130 |
||||||
|
Т 21.26 |
400 |
1000 |
800 |
329,80 |
|||||||
|
Т 21.27 |
920 |
200 |
760 |
660 |
560 |
176,72 |
12300 |
1230 |
|||
|
Т 21.28 |
400 |
900 |
700 |
263,99 |
|||||||
|
Т 21.29 |
200 |
800 |
850 |
451,78 |
27500 |
2750 |
|||||
|
Т 21.30 |
400 |
1000 |
950 |
534,48 |
|||||||
|
Т21.31 |
1020 |
200 |
810 |
660 |
700 |
299,18 |
16200 |
1620 |
|||
|
Т 21.32 |
400 |
900 |
800 |
356,58 |
|||||||
|
Т 21.33 |
200 |
800 |
850 |
470,27 |
36100 |
3610 |
|||||
|
Т 21.34 |
400 |
1000 |
950 |
552,87 |
|||||||
|
Т 21.35 |
1220 |
200 |
910 |
660 |
700 |
301,02 |
21300 |
2130 |
|||
|
Т 21.36 |
400 |
900 |
800 |
357,42 |
|||||||
|
Т 21.37 |
200 |
800 |
850 |
472,12 |
45000 |
4500 |
|||||
|
Т 21.38 |
400 |
1000 |
950 |
554,71 |
|||||||
|
Т 21.39 |
1420 |
200 |
1010 |
660 |
700 |
311,09 |
21300 |
2130 |
|||
|
Т 21.40 |
400 |
900 |
800 |
367,49 |
|||||||
|
Т 21.41 |
200 |
800 |
850 |
482,18 |
45000 |
4500 |
|||||
|
Т 21.42.00.000 |
400 |
1000 |
950 |
564,78 |
|||||||
Пример условного обозначения опоры шариковой для трубопровода Дн = 194 мм и наибольшим перемещением 400 мм
Опора шариковая 194-Т 21.02-ТУ......
Каретка Т 21.00.01.000

Катет - по наименьшей толщине свариваемых деталей.
1 - Ребро (Т 21.00.01.001 - черт. 64, табл. 66); 2 - Труба; 3 - Лист
Чертёж 63
Таблица 65
Размеры, мм
|
Обозначение |
D |
D1 |
Н |
α |
α1 |
A |
A1 |
Масса, кг |
|
1 |
2 |
3 |
4 |
5 |
6 |
7 |
8 |
9 |
|
Т 21.01.01.000 |
500 |
320 |
65 |
22°30 |
45° |
10 |
4 |
19,4 |
|
Т 21.02 |
680 |
440 |
34,0 |
|||||
|
Т 21.13 |
500 |
320 |
90 |
12 |
23,8 |
|||
|
Т 21.14 |
680 |
440 |
45° |
30° |
20 |
67,3 |
||
|
Т 21.22 |
780 |
390 |
87,0 |
|||||
|
Т 21.29 |
800 |
465 |
80 |
25 |
108,9 |
|||
|
Т 21.30.01.000 |
900 |
515 |
136,4 |
Ребро Т 21.00.01.001

Чертёж 64
Таблица 66
Размеры, мм
|
Обозначение |
L |
h |
Масса, кг |
|
1 |
2 |
3 |
4 |
|
Т 21.01.01.001 |
180 |
50 |
0,352 |
|
Т 21.02 |
270 |
0,521 |
|
|
Т 21.13 |
180 |
70 |
0,471 |
|
Т 21.14 |
270 |
0,697 |
|
|
Т 21.22 |
320 |
0,823 |
|
|
Т 21.29 |
330 |
55 |
0,688 |
|
Т 21.30.01.001 |
380 |
0,790 |
Сепаратор Т 21.00.02.000

1 - Обойма (Т 21.00.02.001 - черт. 66, табл. 68); 2 - Заклёпка (Т
21.00.02.002 - черт. 67, табл. 69); 3 - Шарик по ГОСТ 3722-81
Чертёж 65
Размеры, мм
|
Обозначение |
D |
D1 |
d |
h |
Масса, кг |
|
1 |
2 |
3 |
4 |
5 |
6 |
|
Т 21.01.02.000 |
520 |
120 |
35,7 |
12 |
11,7 |
|
Т 21.02 |
220 |
8,8 |
|||
|
Т 21.13 |
120 |
50,8 |
15 |
25,5 |
|
|
Т 21.14 |
220 |
24,0 |
|||
|
Т 21.21 |
600 |
120 |
40,7 |
||
|
Т 21.22 |
220 |
39,5 |
|||
|
Т 21.29 |
750 |
120 |
60,0 |
20 |
88,3 |
|
Т 21.30.02.000 |
220 |
87,1 |
Обойма Т 21.00.02.001

Чертёж 66
Таблица 68
Размеры, мм
|
Обозначение |
D |
D1 |
D2 |
D3 |
D4 |
D5 |
D6 |
d |
S |
Количество отверстий |
Масса, кг |
|
|
z |
n |
|||||||||||
|
1 |
2 |
3 |
4 |
5 |
6 |
7 |
8 |
9 |
10 |
11 |
12 |
13 |
|
Т 21.01.02.001 |
520 |
120 |
- |
485 |
400 |
280 |
220 |
33 |
2 |
- |
12 |
2,67 |
|
Т 21.02 |
220 |
430 |
310 |
245 |
1,25 |
|||||||
|
Т 21.13 |
120 |
400 |
280 |
220 |
47 |
3 |
3,37 |
|||||
|
Т 21.14 |
220 |
410 |
290 |
245 |
2,63 |
|||||||
|
Т 21.21 |
600 |
120 |
530 |
570 |
26 |
13 |
3,88 |
|||||
|
Т 21.22 |
220 |
3,25 |
||||||||||
|
Т 21.29 |
750 |
120 |
550 |
460 |
420 |
55 |
6 |
5,22 |
||||
|
Т 21.30.02.001 |
220 |
4,60 |
||||||||||
Заклепка Т 21.00.02.002

Размеры, мм
|
Обозначение |
L |
L1 |
Масса, кг |
|
1 |
2 |
3 |
4 |
|
Т 21.01.02.002 |
24 |
12 |
0,012 |
|
Т 21.13 |
27 |
15 |
0,014 |
|
Т 21.29.02.002 |
32 |
20 |
0,018 |
Основание Т 21.00.03.000

Размеры, мм
|
Обозначение |
В |
h |
С |
Масса, кг |
|
1 |
2 |
3 |
4 |
5 |
|
Т 21.01.03.000 |
560 |
30 |
160 |
41,7 |
|
Т 21.02 |
700 |
200 |
64,4 |
|
|
Т 21.13 |
560 |
40 |
160 |
41,7 |
|
Т 21.14 |
700 |
200 |
64,4 |
|
|
Т 21.22 |
800 |
220 |
81,3 |
|
|
Т 21.29 |
850 |
45 |
250 |
93,8 |
|
Т 21.30.03.000 |
950 |
270 |
118,8 |
Плита Т 21.00.00.001

Размеры, мм
|
Обозначение |
В |
D |
С |
S |
S1 |
I |
α |
Масса, кг |
|
1 |
2 |
3 |
4 |
5 |
6 |
7 |
8 |
9 |
|
Т 21.01.00.001 |
560 |
320 |
160 |
20 |
14 |
10 |
45° |
28,8 |
|
Т 21.02 |
700 |
440 |
200 |
45,0 |
||||
|
Т 21.13 |
560 |
320 |
160 |
25 |
20 |
14 |
41,6 |
|
|
Т 21.14 |
700 |
440 |
200 |
22°30¢ |
64,3 |
|||
|
Т 21.22 |
800 |
390 |
220 |
85,3 |
||||
|
Т 21.29 |
850 |
465 |
250 |
30 |
25 |
117,2 |
||
|
Т 21.30.00.001 |
950 |
515 |
270 |
148,5 |
Подпятник Т 21.00.00.002

Пята Т 21.00.00.003

Накладка Т 21.00.00.004

Размеры, мм
|
Обозначение |
L |
Масса, кг |
|
1 |
2 |
3 |
|
Т 21.01.00.004 |
140 |
1,32 |
|
Т 21.07 |
240 |
2,25 |
|
Т 21.13 |
340 |
3,20 |
|
Т 21.19 |
460 |
4,33 |
|
Т 21.31.00.004 |
660 |
6,22 |
Кольцо Т 21.00.00.005

Размеры, мм
|
Обозначение |
S |
Масса, кг |
|
1 |
2 |
3 |
|
Т 21.01.00.005 |
10 |
0,284 |
|
Т 21.13 |
35 |
0,993 |
|
Т 21.14 |
30 |
0,851 |
|
Т 21.29.00.005 |
15 |
0,425 |
Опора неподвижная Т 3.00.00.000

Сварные монтажные швы по ГОСТ
5264-80
Катет - по наименьшей толщине свариваемых деталей.
1 - Упор; 2 - Хомут
Чертёж 74
Размеры, мм
|
Обозначение |
Dн |
S=k |
Осевая сила Q, тс |
b |
I |
S1 |
S2 |
Масса, кг |
|
1 |
2 |
3 |
4 |
5 |
6 |
7 |
8 |
9 |
|
Т 3.01.00.000 |
32 |
2,5 |
0,5 |
25 |
75 |
3 |
6 |
0,329 |
|
Т 3.02 |
38 |
0,338 |
||||||
|
Т 3.03 |
45 |
0,350 |
||||||
|
Т 3.04 |
57 |
3 |
0,368 |
|||||
|
Т 3.05 |
76 |
1,0 |
8 |
0,465 |
||||
|
Т 3.06 |
89 |
3,5 |
0,486 |
|||||
|
Т 3.07 |
108 |
4 |
2,5 |
40 |
100 |
10 |
1,180 |
|
|
Т 3.08 |
133 |
1,240 |
||||||
|
Т 3.09 |
159 |
4,5 |
1,300 |
|||||
|
Т 3.10 |
194 |
5 |
1,385 |
|||||
|
Т 3.11.00.000 |
219 |
6 |
1,447 |
Пример условного обозначения опоры неподвижной для трубопровода Дн = 219 мм:
Опора неподвижная 219-Т 3.11-ТУ......
Опора неподвижная лобовая двухупорная Т 4.00.00.000

Сварные монтажные швы по ГОСТ
5264-80
Катет - по наименьшей толщине свариваемых деталей.
1 - Упор (Т 4.00.01.000 - черт. 76,
табл. 76); 2 - Лист защитный; 3 -
Прокладка
Чертёж 75, лист 1

Чертёж 75, лист 2
Таблица 75
Размеры, мм
|
Обозначение |
Dн |
S=k |
Осевая сила Q, тс |
Н |
В |
I |
L |
m |
Масса, кг |
|
|
1 |
2 |
3 |
4 |
5 |
6 |
7 |
8 |
9 |
10 |
|
|
Т 4.01.00.000 |
108 |
4 |
3 |
230 |
70 |
110 |
170 |
30 |
4,24 |
|
|
Т 4.02 |
133 |
260 |
80 |
180 |
4,40 |
|||||
|
Т 4.03 |
159 |
4,5 |
4 |
320 |
90 |
112 |
190 |
6,60 |
||
|
Т 4.04 |
194 |
5 |
360 |
100 |
200 |
6,88 |
||||
|
Т 4.05 |
219 |
6 |
420 |
120 |
132 |
220 |
11,64 |
|||
|
7 |
5 |
|||||||||
|
Т 4.06 |
273 |
480 |
80 |
11,28 |
||||||
|
8 |
6 |
|||||||||
|
Т 4.07 |
325 |
7 |
5 |
530 |
162 |
12,60 |
||||
|
8 |
7 |
|||||||||
|
Т 4.08 |
377 |
9 |
8 |
580 |
140 |
240 |
14,16 |
|||
|
Т 4.09 |
426 |
7 |
б |
660 |
160 |
196 |
250 |
26,72 |
||
|
9 |
10 |
|||||||||
|
Т 4.10 |
480 |
7 |
6 |
720 |
180 |
280 |
25,92 |
|||
|
8 |
8 |
|||||||||
|
Т 4.11 |
530 |
7 |
7 |
770 |
200 |
226 |
300 |
32,32 |
||
|
8 |
8 |
|||||||||
|
9 |
9 |
|||||||||
|
Т 4.12 |
630 |
7 |
8 |
870 |
240 |
340 |
150 |
33,88 |
||
|
9 |
12 |
|||||||||
|
10 |
15 |
|||||||||
|
11 |
17 |
|||||||||
|
Т 4.13 |
720 |
8 |
10 |
960 |
280 |
266 |
380 |
38,40 |
||
|
10 |
14 |
|||||||||
|
11 |
18 |
|||||||||
|
12 |
22 |
|||||||||
|
Т 4.14 |
820 |
8 |
10 |
1060 |
300 |
400 |
40,00 |
|||
|
9 |
12 |
|||||||||
|
10 |
15 |
|||||||||
|
12 |
22 |
|||||||||
|
Т 4.15 |
920 |
8 |
10 |
1160 |
320 |
420 |
42,40 |
|||
|
9 |
12 |
|||||||||
|
10 |
16 |
|||||||||
|
14 |
28 |
|||||||||
|
Т 4.16 |
1020 |
9 |
14 |
1260 |
360 |
286 |
460 |
48,80 |
||
|
10 |
16 |
|||||||||
|
11 |
20 |
|||||||||
|
12 |
25 |
|||||||||
|
14 |
32 |
|||||||||
|
Т 4.17 |
1220 |
9 |
18 |
1480 |
400 |
336 |
500 |
58,80 |
||
|
11 |
22 |
|||||||||
|
12 |
25 |
|||||||||
|
14 |
35 |
|||||||||
|
Т 4.18.00.000 |
1420 |
10 |
20 |
1680 |
500 |
600 |
66,00 |
|||
|
14 |
35 |
Пример условного обозначения опоры неподвижной лобовой двухупорной для трубопровода Дн = 219 мм, S = 6 мм, тип I:
Опора неподвижная 219´6-1-Т 4.05-ТУ......
Упор Т 4.00.01.000

1 - Плита; 2 - Ребро
Чертёж 76
Размеры, мм
|
Обозначение |
Наружный диаметр трубопровода Дн |
К |
В |
L |
Н |
H1 |
H 2 |
h |
k |
S |
I |
I1 |
Масса, кг |
|
1 |
2 |
3 |
4 |
5 |
6 |
7 |
8 |
9 |
10 |
11 |
12 |
13 |
14 |
|
Т 4.01.01.000 |
108 |
54 |
70 |
110 |
115 |
75 |
55 |
17 |
4 |
10 |
20 |
20 |
1,06 |
|
Т 4.02 |
133 |
66 |
80 |
130 |
77 |
65 |
20 |
1,10 |
|||||
|
Т 4.03 |
159 |
80 |
90 |
112 |
160 |
95 |
75 |
22 |
12 |
1,65 |
|||
|
Т 4.04 |
194 |
97 |
100 |
180 |
98 |
95 |
25 |
1,72 |
|||||
|
Т 4.05 |
219 |
110 |
120 |
132 |
210 |
118 |
75 |
30 |
2,91 |
||||
|
Т 4.06 |
273 |
136 |
240 |
117 |
120 |
40 |
2,82 |
||||||
|
Т 4.07 |
325 |
162 |
162 |
265 |
115 |
100 |
20 |
3,15 |
|||||
|
Т 4.08 |
377 |
188 |
140 |
290 |
120 |
90 |
35 |
25 |
3,54 |
||||
|
Т 4.09 |
425 |
213 |
160 |
195 |
330 |
135 |
120 |
40 |
16 |
40 |
6,68 |
||
|
Т 4.10 |
480 |
240 |
180 |
360 |
138 |
100 |
45 |
20 |
6,73 |
||||
|
Т 4.11 |
530 |
265 |
200 |
225 |
385 |
140 |
120 |
50 |
40 |
8,08 |
|||
|
Т 4.12 |
630 |
315 |
240 |
435 |
144 |
150 |
60 |
8,47 |
|||||
|
Т 4.13 |
720 |
360 |
280 |
266 |
480 |
145 |
100 |
70 |
20 |
9,60 |
|||
|
Т 4.14 |
820 |
410 |
300 |
530 |
148 |
120 |
75 |
8 |
40 |
10,00 |
|||
|
Т 4.15 |
920 |
460 |
320 |
580 |
150 |
155 |
80 |
10,60 |
|||||
|
Т 4.16 |
1020 |
510 |
360 |
285 |
630 |
155 |
120 |
90 |
12,20 |
||||
|
Т 4.17 |
1220 |
610 |
400 |
336 |
740 |
164 |
175 |
100 |
14,70 |
||||
|
Т 4.18.01.000 |
1420 |
710 |
500 |
840 |
176 |
200 |
125 |
16,50 |
Пример условного обозначения упора для трубопровода Дн = 219 мм:
Упор 219-Т 4.05-ТУ......
Опора неподвижная лобовая четырехупорная Т 5.00.00.000

Сварные монтажные швы по ГОСТ
5264-80
Катет - по наименьшей толщине свариваемых деталей.
1- Упор (Т 4.00.01.000 - черт. 76,
табл. 76); 2 - Лист защитный; 5 -
Прокладка
Чертёж 77, лист 1

Чертёж 77, лист 2
Таблица 77
Размеры, мм
|
Обозначение |
Dн |
S=k |
Осевая сила Q, тс |
Н |
В |
I |
L |
m |
Масса, кг |
|
|
1 |
2 |
3 |
4 |
5 |
6 |
7 |
8 |
9 |
10 |
|
|
Т 5.02.00.000 |
133 |
4 |
7 |
260 |
80 |
110 |
180 |
32 |
8,8 |
|
|
Т 5.03 |
159 |
4,5 |
10 |
320 |
90 |
112 |
190 |
13,2 |
||
|
Т 5.04 |
194 |
5 |
12 |
360 |
100 |
200 |
13,7 |
|||
|
Т 5.05 |
219 |
6 |
420 |
120 |
132 |
220 |
23,3 |
|||
|
7 |
15 |
|||||||||
|
Т 5.06 |
273 |
480 |
80 |
22,5 |
||||||
|
8 |
18 |
|||||||||
|
Т 5.07 |
325 |
7 |
15 |
530 |
162 |
25,2 |
||||
|
8 |
22 |
|||||||||
|
Т 5.08 |
377 |
9 |
25 |
580 |
140 |
240 |
28,3 |
|||
|
Т 5.09 |
426 |
7 |
18 |
660 |
150 |
196 |
260 |
53,4 |
||
|
9 |
30 |
|||||||||
|
Т 5.10 |
480 |
7 |
18 |
720 |
180 |
280 |
53,8 |
|||
|
8 |
25 |
|||||||||
|
Т 5.11 |
530 |
7 |
22 |
770 |
200 |
226 |
300 |
54,5 |
||
|
8 |
25 |
|||||||||
|
9 |
30 |
|||||||||
|
Т 5.12 |
630 |
7 |
25 |
870 |
240 |
340 |
150 |
57,7 |
||
|
9 |
35 |
|||||||||
|
10 |
45 |
|||||||||
|
11 |
50 |
|||||||||
|
Т 5.13 |
720 |
8 |
30 |
960 |
280 |
266 |
380 |
76,8 |
||
|
10 |
42 |
|||||||||
|
11 |
55 |
|||||||||
|
12 |
65 |
|||||||||
|
Т 5.14 |
820 |
8 |
30 |
1060 |
300 |
400 |
80,0 |
|||
|
9 |
35 |
|||||||||
|
10 |
45 |
|||||||||
|
12 |
65 |
|||||||||
|
Т 5.15 |
920 |
8 |
30 |
1160 |
320 |
420 |
84,8 |
|||
|
9 |
36 |
|||||||||
|
10 |
48 |
|||||||||
|
14 |
55 |
|||||||||
|
Т 5.16 |
1020 |
9 |
42 |
1260 |
360 |
285 |
460 |
97,6 |
||
|
10 |
48 |
|||||||||
|
11 |
60 |
|||||||||
|
12 |
75 |
|||||||||
|
14 |
95 |
|||||||||
|
Т 5.17 |
1220 |
9 |
55 |
1480 |
400 |
336 |
500 |
117,6 |
||
|
11 |
65 |
|||||||||
|
12 |
75 |
|||||||||
|
14 |
100 |
|||||||||
|
Т 5.18.00.000 |
1420 |
10 |
60 |
1680 |
500 |
600 |
132,0 |
|||
|
14 |
100 |
Пример условного обозначения опоры неподвижной лобовой четырёхупорной для трубопровода Дн = 219 мм, S = 6 мм, тип I:
Опора неподвижная 219´6-1-Т 5.05-ТУ......
Опора неподвижная лобовая двухупорная усиленная Т 6.00.00.000

Сварные монтажные швы по ГОСТ
5264-80
Катет - по наименьшей толщине свариваемых деталей.
1 - Упор (Т 6.00.01.000 - черт. 79,
табл. 79); 2 - Подушка (Т 6.00.01.000
- черт. 80, табл. 80); 3 - Лист защитный; 4 - Прокладка
Чертёж 78, лист 1

Чертёж 78, лист 2

Чертёж 78, лист 3
Таблица 78
Размеры, мм
|
Обозначение |
Dн |
S |
Осевая сила Q, тс |
Н |
В |
L |
I |
m |
k |
Масса, кг |
|
|
1 |
2 |
3 |
4 |
5 |
6 |
7 |
8 |
9 |
10 |
11 |
|
|
Т 6.01.00.000 |
108 |
4 |
5 |
238 |
70 |
170 |
115 |
30 |
4 |
5,2 |
|
|
Т 6.02 |
133 |
268 |
80 |
180 |
5,6 |
||||||
|
Т 6.03 |
159 |
4,5 |
6 |
328 |
90 |
190 |
117 |
7,8 |
|||
|
Т 6.04 |
194 |
5 |
8 |
372 |
100 |
200 |
6 |
9,2 |
|||
|
Т 6.05 |
219 |
6 |
9 |
432 |
120 |
228 |
137 |
14,4 |
|||
|
7 |
10 |
80 |
|||||||||
|
Т 6.06 |
273 |
492 |
14,1 |
||||||||
|
8 |
12 |
||||||||||
|
Т 6.07 |
325 |
7 |
10 |
542 |
167 |
16,5 |
|||||
|
8 |
15 |
||||||||||
|
Т 6.08 |
377 |
9 |
596 |
140 |
240 |
7 |
20,8 |
||||
|
Т 6.09 |
426 |
7 |
12 |
676 |
160 |
260 |
200 |
35,2 |
|||
|
9 |
18 |
||||||||||
|
Т 6.10 |
480 |
7 |
12 |
736 |
180 |
280 |
37,0 |
||||
|
8 |
15 |
||||||||||
|
Т 6.11 |
530 |
7 |
12 |
786 |
200 |
300 |
230 |
43,7 |
|||
|
8 |
14 |
||||||||||
|
9 |
18 |
||||||||||
|
Т 6.12 |
630 |
7 |
14 |
890 |
240 |
340 |
150 |
8 |
52,0 |
||
|
9 |
20 |
||||||||||
|
10 |
26 |
||||||||||
|
11 |
30 |
||||||||||
|
Т 6.13 |
720 |
8 |
16 |
980 |
280 |
380 |
270 |
64,8 |
|||
|
10 |
24 |
||||||||||
|
11 |
30 |
||||||||||
|
12 |
35 |
||||||||||
|
Т6.14 |
820 |
8 |
16 |
1080 |
300 |
400 |
67,3 |
||||
|
9 |
20 |
||||||||||
|
10 |
26 |
||||||||||
|
12 |
38 |
||||||||||
|
Т 6.15 |
920 |
8 |
16 |
1184 |
320 |
420 |
77,8 |
||||
|
9 |
20 |
||||||||||
|
10 |
25 |
||||||||||
|
12 |
50 |
||||||||||
|
Т 6.16 |
1020 |
9 |
24 |
1284 |
360 |
460 |
290 |
10 |
89,6 |
||
|
10 |
28 |
||||||||||
|
11 |
35 |
||||||||||
|
12 |
40 |
||||||||||
|
14 |
55 |
||||||||||
|
Т 6.17 |
1220 |
9 |
30 |
1504 |
400 |
500 |
340 |
113,3 |
|||
|
11 |
40 |
||||||||||
|
12 |
50 |
||||||||||
|
14 |
60 |
||||||||||
|
Т 6.18 |
1420 |
10 |
35 |
1704 |
500 |
600 |
135,8 |
||||
|
14 |
60 |
||||||||||
|
Т 6.19 |
194 |
5 |
10 |
372 |
100 |
200 |
117 |
30 |
6 |
11,8 |
|
|
Т 6.20 |
219 |
6 |
14 |
432 |
120 |
228 |
137 |
17,6 |
|||
|
7 |
12 |
80 |
|||||||||
|
Т 6.21.00.000 |
273 |
12 |
492 |
17,3 |
|||||||
|
8 |
15 |
167 |
|
||||||||
|
Т 6.22.00.000 |
325 |
7 |
12 |
542 |
120 |
228 |
167 |
80 |
6 |
20,8 |
|
|
8 |
18 |
||||||||||
|
Т 6.23 |
377 |
8 |
20 |
596 |
140 |
240 |
7 |
27,5 |
|||
|
Т 6.24 |
426 |
7 |
15 |
676 |
160 |
260 |
200 |
44,2 |
|||
|
9 |
25 |
||||||||||
|
Т 6.25 |
480 |
7 |
15 |
736 |
180 |
280 |
47,1 |
||||
|
8 |
20 |
||||||||||
|
Т 6.26 |
530 |
7 |
18 |
786 |
200 |
300 |
230 |
56,7 |
|||
|
8 |
20 |
||||||||||
|
9 |
25 |
||||||||||
|
Т 6.27 |
630 |
7 |
20 |
890 |
240 |
340 |
150 |
8 |
71,1 |
||
|
9 |
30 |
||||||||||
|
10 |
38 |
||||||||||
|
11 |
42 |
||||||||||
|
Т 6.28 |
720 |
8 |
25 |
980 |
280 |
380 |
270 |
90,6 |
|||
|
10 |
35 |
||||||||||
|
11 |
45 |
||||||||||
|
12 |
55 |
||||||||||
|
Т 6.29 |
820 |
8 |
25 |
1080 |
300 |
400 |
94,6 |
||||
|
9 |
30 |
||||||||||
|
10 |
35 |
||||||||||
|
12 |
55 |
||||||||||
|
Т 6.30 |
920 |
8 |
25 |
1184 |
320 |
420 |
112,2 |
||||
|
9 |
30 |
||||||||||
|
10 |
40 |
||||||||||
|
12 |
70 |
||||||||||
|
Т 6.31 |
1020 |
9 |
35 |
1284 |
360 |
460 |
290 |
10 |
132,2 |
||
|
10 |
40 |
||||||||||
|
11 |
50 |
||||||||||
|
12 |
65 |
||||||||||
|
14 |
80 |
||||||||||
|
Т 6.32 |
1220 |
9 |
45 |
1504 |
400 |
500 |
340 |
169,3 |
|||
|
11 |
55 |
||||||||||
|
12 |
65 |
||||||||||
|
14 |
85 |
||||||||||
|
Т 6.33.00.000 |
1420 |
10 |
50 |
1704 |
500 |
600 |
205,8 |
||||
|
14 |
85 |
Пример условного обозначения опоры неподвижной лобовой двухупорной усиленной для трубопровода Дн = 325 мм, S = 7 мм, тип I:
Опора неподвижная 325´7-1-Т 6.07-ТУ......

1 - Упор (Т 4.00.01.000 - черт. 76,
табл. 76); 2 - Подушка
Чертёж 79
Размеры, мм
|
Обозначение |
Наружный диаметр трубопровода Дн |
R |
L |
I |
Н |
h |
h1 |
S=k |
h2 |
Масса, кг |
|
1 |
2 |
3 |
4 |
5 |
6 |
7 |
8 |
9 |
10 |
11 |
|
Т 6.01.01.000 |
108 |
54 |
76 |
115 |
119 |
80 |
17 |
4 |
17 |
1,29 |
|
Т 6.02 |
133 |
66 |
88 |
134 |
82 |
20 |
18 |
1,40 |
||
|
Т 6.03 |
159 |
80 |
101 |
117 |
164 |
100 |
22 |
20 |
1,95 |
|
|
Т 6.04 |
194 |
97 |
111 |
186 |
103 |
25 |
6 |
22 |
2,31 |
|
|
Т 6.05 |
219 |
110 |
130 |
137 |
216 |
124 |
30 |
25 |
3,60 |
|
|
Т 6.06 |
273 |
136 |
246 |
123 |
22 |
3,53 |
||||
|
Т 6.07 |
325 |
162 |
167 |
271 |
120 |
20 |
4,13 |
|||
|
Т 6.08 |
377 |
188 |
158 |
298 |
126 |
35 |
8 |
25 |
5,20 |
|
|
Т 6.09 |
426 |
213 |
178 |
200 |
338 |
140 |
40 |
27 |
8,80 |
|
|
Т 6.10 |
480 |
240 |
197 |
368 |
145 |
45 |
28 |
9,25 |
||
|
Т 6.11 |
530 |
265 |
222 |
230 |
393 |
146 |
50 |
31 |
10,93 |
|
|
Т 6.12 |
630 |
315 |
262 |
445 |
150 |
60 |
10 |
37 |
13,00 |
|
|
Т 6.13 |
720 |
360 |
300 |
270 |
490 |
154 |
70 |
41 |
16,19 |
|
|
Т 6.14 |
820 |
410 |
320 |
540 |
156 |
75 |
16,84 |
|||
|
Т 6.15 |
920 |
460 |
346 |
592 |
158 |
80 |
12 |
44 |
19,46 |
|
|
Т 6.16 |
1020 |
510 |
382 |
290 |
642 |
163 |
90 |
48 |
22,39 |
|
|
Т 6.17 |
1220 |
610 |
435 |
340 |
752 |
174 |
100 |
51 |
28,33 |
|
|
Т 6.18.01.000 |
1420 |
710 |
540 |
852 |
188 |
125 |
64 |
33,96 |
Пример условного обозначения упора для трубопровода Дн = 325 мм:
Упор 325-Т 6.07.01-ТУ......
Опора неподвижная лобовая четырёхупорная усиленная Т 7.00.00.000

Сварные монтажные швы по ГОСТ
5264-80
Катет - по наименьшей толщине свариваемых деталей.
1- Упор (Т 6.00.01.000 - черт. 79,
табл. 79); 2 - Лист защитный; 3 -
Прокладка
Чертёж 80, лист 1

Чертёж 80, лист 2
Размеры, мм
|
Обозначение |
Наружный диаметр трубопровода Дн |
S |
Осевая сила, тс |
Н |
В |
L |
I |
k |
m |
Масса, кг |
|
|
Для железобетонных опорных конструкций |
Для стальных опорных конструкций |
||||||||||
|
1 |
2 |
3 |
4 |
5 |
6 |
7 |
8 |
9 |
10 |
11 |
12 |
|
Т 7.09.00.000 |
426 |
7 |
40 |
40 |
656 |
160 |
260 |
200 |
6 |
80 |
70,4 |
|
9 |
60 |
60 |
|||||||||
|
Т 7.10 |
480 |
7 |
45 |
45 |
736 |
180 |
280 |
7 |
74,1 |
||
|
8 |
65 |
65 |
|||||||||
|
Т 7.11 |
530 |
7 |
45 |
45 |
786 |
200 |
300 |
230 |
87,4 |
||
|
8 |
55 |
55 |
|||||||||
|
9 |
70 |
70 |
|||||||||
|
Т 7.12 |
630 |
7 |
55 |
55 |
890 |
240 |
340 |
8 |
150 |
104,0 |
|
|
9 |
85 |
85 |
|||||||||
|
10 |
100 |
||||||||||
|
11 |
120 |
||||||||||
|
Т 7.13 |
720 |
8 |
75 |
75 |
980 |
280 |
380 |
270 |
129,5 |
||
|
10 |
90 |
100 |
|||||||||
|
11 |
125 |
||||||||||
|
12 |
150 |
||||||||||
|
Т 7.14 |
820 |
8 |
80 |
80 |
1080 |
300 |
400 |
134,7 |
|||
|
9 |
90 |
90 |
|||||||||
|
10 |
100 |
100 |
|||||||||
|
12 |
150 |
||||||||||
|
Т 7.15 |
920 |
8 |
75 |
75 |
1184 |
320 |
420 |
155,7 |
|||
|
9 |
100 |
100 |
|||||||||
|
10 |
110 |
120 |
|||||||||
|
14 |
180 |
||||||||||
|
Т 7.16 |
1020 |
9 |
120 |
120 |
1284 |
360 |
460 |
290 |
10 |
179,1 |
|
|
10 |
130 |
140 |
|||||||||
|
11 |
160 |
||||||||||
|
12 |
175 |
||||||||||
|
14 |
220 |
||||||||||
|
Т 7.17 |
1220 |
9 |
90 |
90 |
1504 |
400 |
500 |
340 |
226,6 |
||
|
11 |
110 |
110 |
|||||||||
|
12 |
130 |
130 |
|||||||||
|
14 |
145 |
170 |
|||||||||
|
Т 7.18.00.000 |
1420 |
10 |
100 |
100 |
1704 |
500 |
600 |
271,7 |
|||
|
14 |
170 |
170 |
|||||||||
Пример условного обозначения опоры неподвижной лобовой четырёхупорной усиленной для трубопровода Дн = 480 мм, S = 7 мм, тип I:
Опора неподвижная 480´7-1-Т 7.10-ТУ......
Опора неподвижная лобовая сальниковых компенсаторов Т 46.00.00.000

Сварные монтажные швы по ГОСТ
5264-80
Катет - по наименьшей толщине свариваемых деталей.
1- Упор (Т 46.00.01.000 - черт. 82,
табл. 82); 2 - Лист защитный; 3 -
Прокладка
Чертёж 81, лист 1

Чертёж 81, лист 2
Таблица 81
Размеры, мм
|
Обозначение |
Наружный диаметр трубопровода Дн |
Осевая сила Q, тс |
D |
S |
Н |
В |
L |
I |
m |
k |
Масса, кг |
|
1 |
2 |
3 |
4 |
5 |
6 |
7 |
8 |
9 |
10 |
11 |
12 |
|
Т 46.11.00.000 |
530 |
6 |
576 |
7 |
816 |
200 |
300 |
226 |
80 |
8 |
32,0 |
|
Т 46.12 |
630 |
7 |
680 |
920 |
240 |
340 |
150 |
10 |
33,6 |
||
|
Т 46.13 |
720 |
8 |
772 |
8 |
1012 |
280 |
380 |
266 |
40,0 |
||
|
Т 46.14.00.000 |
820 |
9 |
874 |
9 |
1114 |
300 |
400 |
41,6 |
Пример условного обозначения опоры неподвижной лобовой для сальникового компенсатора для трубопровода Дн = 630 мм, тип I:
Опора неподвижная 630-1-Т 46.12-ТУ......
Упор Т 46.00.01.000

1 - Плита; 2 - Ребро
Чертёж 82
Размеры, мм
|
Обозначение |
Диаметр корпуса компенсатора D |
R |
В |
L |
Н |
H1 |
H 2 |
h |
k |
S |
I |
I1 |
Масса, кг |
|
1 |
2 |
3 |
4 |
5 |
6 |
7 |
8 |
9 |
10 |
11 |
12 |
13 |
14 |
|
Т 46.11.01.000 |
576 |
288 |
200 |
226 |
408 |
138 |
120 |
50 |
4 |
16 |
40 |
25 |
8,00 |
|
Т 46.12 |
680 |
340 |
240 |
460 |
140 |
150 |
60 |
8,40 |
|||||
|
Т 46.13 |
772 |
386 |
280 |
266 |
506 |
142 |
100 |
70 |
20 |
10,00 |
|||
|
Т 46.14.01.000 |
874 |
437 |
300 |
557 |
144 |
120 |
75 |
6 |
40 |
10,40 |
Пример условного обозначения упора для сальникового компенсатора для трубопровода Дн = 680 мм:
Опора неподвижная 680-Т 46.12-ТУ......
Опора неподвижная щитовая Т 8.00.00.000

Сварные монтажные швы по ГОСТ
5264-80
Катет - по наименьшей толщине свариваемых деталей.
1 - Щит (Т 8.00.01.000 - черт. 84,
табл. 84); 2 - Прокладка
Чертёж 83, лист 1

Чертёж 83, лист 2
Таблица 83
Размеры, мм
|
Обозначение |
Наружный диаметр трубопровода Dн |
S |
Осевая сила Q, тс |
D |
I |
С |
Масса, кг |
|
|
1 |
2 |
3 |
4 |
5 |
6 |
7 |
8 |
|
|
Т 8.01.00.000 |
108 |
4 |
5 |
225 |
110 |
20 |
8,9 |
|
|
Т 8.02 |
133 |
7 |
245 |
9,3 |
||||
|
Т 8.03 |
159 |
4,5 |
10 |
282 |
10,8 |
|||
|
Т 8.04 |
194 |
5 |
14 |
325 |
30 |
13,0 |
||
|
Т 8.05 |
219 |
6 |
20 |
365 |
16,3 |
|||
|
7 |
||||||||
|
Т 8.06 |
273 |
24 |
420 |
18,3 |
||||
|
8 |
||||||||
|
Т 8.07 |
325 |
7 |
30 |
480 |
24,6 |
|||
|
8 |
||||||||
|
Т 8.08 |
377 |
9 |
38 |
540 |
27,8 |
|||
|
Т 8.09 |
426 |
7 |
32 |
610 |
132 |
46,9 |
||
|
9 |
55 |
|||||||
|
Т 8.10 |
480 |
7 |
35 |
570 |
40 |
49,1 |
||
|
8 |
40 |
|||||||
|
Т 8.11 |
530 |
7 |
152 |
34,2 |
||||
|
Т 8.12 |
8 |
50 |
740 |
162 |
51,8 |
|||
|
9 |
55 |
|||||||
|
Т 8.13 |
630 |
7 |
50 |
780 |
152 |
38,5 |
||
|
Т 8.14 |
9 |
80 |
870 |
72,8 |
||||
|
10 |
85 |
|||||||
|
11 |
||||||||
|
Т 8.15 |
720 |
8 |
70 |
880 |
51,2 |
|||
|
Т 8.16 |
10 |
90 |
975 |
85,6 |
||||
|
11 |
95 |
|||||||
|
12 |
||||||||
|
Т 8.17 |
820 |
8 |
85 |
1000 |
196 |
90,4 |
||
|
Т 8.18 |
9 |
110 |
1110 |
145,1 |
||||
|
10 |
130 |
|||||||
|
12 |
165 |
|||||||
|
Т 8.19 |
920 |
8 |
105 |
1120 |
226 |
112,0 |
||
|
Т 8.20 |
9 |
135 |
1220 |
173,6 |
||||
|
10 |
165 |
|||||||
|
12 |
220 |
|||||||
|
Т 8.21 |
1020 |
9 |
135 |
1230 |
||||
|
Т 8.22 |
10 |
165 |
1330 |
266 |
125,8 |
|||
|
11 |
200 |
202,2 |
||||||
|
12 |
240 |
|||||||
|
14 |
250 |
|||||||
|
Т 8.23 |
1220 |
9 |
150 |
1440 |
152,2 |
|||
|
Т 8.24 |
11 |
220 |
1570 |
286 |
255,0 |
|||
|
12 |
255 |
|||||||
|
14 |
310 |
|||||||
|
Т 8.25 |
1420 |
10 |
145 |
1640 |
270 |
202,0 |
||
|
Т 8.26.00.000 |
14 |
330 |
1820 |
300 |
393,4 |
Пример условного обозначения опоры неподвижной щитовой для трубопровода Дн = 530 мм, S = 8 мм, тип I:
Опора неподвижная 530´8-1-Т 8.12-ТУ......
Щит Т 8.00.01.000

1 - Полукольцо; 2 - Ребро
Чертёж 84
Размеры, мм
|
Обозначение |
Наружный диаметр трубопровода Дн |
r |
R |
S |
S1 |
α |
h |
h1 |
I |
I1 |
k |
Масса, кг |
|
1 |
2 |
3 |
4 |
5 |
6 |
7 |
8 |
9 |
10 |
11 |
12 |
13 |
|
Т 8.01.01.000 |
108 |
54 |
112 |
10 |
10 |
30° |
110 |
100 |
20 |
20 |
10 |
2,23 |
|
Т 8.02 |
133 |
67 |
122 |
2,32 |
||||||||
|
Т 8.03 |
159 |
80 |
141 |
12 |
2,71 |
|||||||
|
Т 8.04 |
194 |
97 |
162 |
3,24 |
||||||||
|
Т 8.05 |
219 |
110 |
182 |
120 |
4,08 |
|||||||
|
Т 8.06 |
273 |
137 |
210 |
40 |
4,58 |
|||||||
|
Т 8.07 |
325 |
163 |
240 |
150 |
20 |
6,14 |
||||||
|
Т 8.08 |
377 |
189 |
270 |
25 |
6,95 |
|||||||
|
Т 8.09 |
426 |
213 |
305 |
12 |
16 |
135 |
179 |
40 |
12 |
11,73 |
||
|
Т 8.10 |
480 |
240 |
335 |
20 |
12,22 |
|||||||
|
Т 8.11 |
530 |
265 |
155 |
209 |
40 |
8,55 |
||||||
|
Т 8.12 |
370 |
165 |
12,95 |
|||||||||
|
Т 8.13 |
630 |
315 |
380 |
22°30¢ |
155 |
9,62 |
||||||
|
Т 8.14 |
435 |
18,20 |
||||||||||
|
Т 8.15 |
720 |
360 |
440 |
250 |
20 |
16 |
12,82 |
|||||
|
Т 8.16 |
488 |
21,40 |
||||||||||
|
Т 8.17 |
820 |
410 |
500 |
16 |
200 |
40 |
22,60 |
|||||
|
Т 8.18 |
555 |
36,28 |
||||||||||
|
Т 8.19 |
920 |
460 |
560 |
220 |
28,00 |
|||||||
|
Т 8.20 |
610 |
43,40 |
||||||||||
|
Т 8.21 |
1020 |
510 |
615 |
269 |
31,45 |
|||||||
|
Т 8.22 |
665 |
270 |
50,55 |
|||||||||
|
Т 8.23 |
1220 |
610 |
720 |
320 |
38,04 |
|||||||
|
Т 8.24 |
785 |
290 |
63,76 |
|||||||||
|
Т 8.25 |
1420 |
710 |
820 |
20 |
270 |
50,50 |
||||||
|
Т 8.26.01.000 |
910 |
300 |
98,35 |
Пример условного обозначения щита для трубопровода Дн = 194 мм, R = 162 мм:
Щит 194-Т 8.04.01-ТУ......
Опора неподвижная щитовая усиленная Т 9.00.00.000

Сварные монтажные швы по ГОСТ
5264-80
Катет - по наименьшей толщине свариваемых деталей.
1 - Щит (Т 9.00.01.000 - черт. 86, табл.
86); 2 - Полукольцо (Т 9.00.00.001 - черт. 87,
табл. 87); 3 - Прокладка
Чертёж 85, лист 1

Чертёж 85, лист 2
Таблица 85
Размеры, мм
|
Обозначение |
Наружный диаметр трубопровода Дн |
S |
Осевая сила Q, тс |
D |
I |
С |
k |
k1 |
Масса, кг |
|
|
Т 9.09.00.000 |
426 |
7 |
55 |
610 |
144 |
30 |
8 |
12 |
49,1 |
|
|
Т 9.10 |
480 |
65 |
670 |
40 |
56,1 |
|||||
|
8 |
||||||||||
|
Т 9.12 |
530 |
80 |
740 |
174 |
69,4 |
|||||
|
9 |
||||||||||
|
Т 9.14 |
630 |
115 |
870 |
10 |
97,6 |
|||||
|
10 |
||||||||||
|
11 |
||||||||||
|
Т 9.16 |
720 |
10 |
145 |
975 |
16 |
114,5 |
||||
|
11 |
||||||||||
|
12 |
||||||||||
|
Т 9.18 |
820 |
9 |
180 |
1110 |
238 |
143,5 |
||||
|
10 |
||||||||||
|
12 |
||||||||||
|
Т 9.20 |
920 |
9 |
225 |
1220 |
242 |
12 |
220,4 |
|||
|
10 |
||||||||||
|
12 |
||||||||||
|
Т 9.22 |
1020 |
10 |
265 |
1330 |
282 |
261,8 |
||||
|
11 |
||||||||||
|
12 |
||||||||||
|
14 |
||||||||||
|
Т 9.24 |
1220 |
11 |
365 |
1570 |
302 |
334,2 |
||||
|
12 |
||||||||||
|
14 |
||||||||||
|
Т 9.25 |
1420 |
10 |
210 |
1640 |
306 |
264,5 |
||||
|
Т 9.26.00.000 |
14 |
485 |
1820 |
315 |
429,2 |
Пример условного обозначения опоры неподвижной щитовой усиленной для трубопровода Дн = 530 мм, тип I:
Опора неподвижная 530-1-Т 9.12-ТУ......
Щит Т 9.00.01.000

1 - Полукольцо; 2 - Ребро
Чертёж 86
Таблица 86
Размеры, мм
|
Обозначение |
Наружный диаметр трубопровода Дн |
r |
R |
S=S1 |
α |
h |
h1 |
I |
I1 |
k - катет шва |
Масса, кг |
|
1 |
2 |
3 |
4 |
5 |
6 |
7 |
8 |
9 |
10 |
11 |
12 |
|
Т 9.09.01.000 |
426 |
213 |
305 |
12 |
30° |
132 |
90 |
40 |
25 |
6 |
9,47 |
|
Т 9.10 |
480 |
240 |
335 |
10,53 |
|||||||
|
Т 9.12 |
530 |
265 |
370 |
162 |
100 |
45 |
13,04 |
||||
|
Т 9.14 |
630 |
315 |
435 |
22°30¢ |
120 |
50 |
18,86 |
||||
|
Т 9.16 |
720 |
360 |
488 |
21,62 |
|||||||
|
Т 9.18 |
820 |
410 |
555 |
226 |
8 |
28,07 |
|||||
|
Т 9.20 |
920 |
460 |
610 |
16 |
140 |
60 |
35 |
42,50 |
|||
|
Т 9.22 |
1020 |
510 |
665 |
266 |
150 |
49,26 |
|||||
|
Т 9.24 |
1220 |
610 |
785 |
286 |
155 |
70 |
63,55 |
||||
|
Т 9.25 |
1420 |
710 |
820 |
290 |
110 |
45 |
51,12 |
||||
|
Т 9.26.01.000 |
910 |
300 |
200 |
70 |
83,80 |
Полукольцо Т 9.00.00.001

Размеры, мм
|
Обозначение |
r |
R |
S |
Масса, кг |
|
1 |
2 |
3 |
4 |
5 |
|
Т 9.09.00.001 |
213 |
255 |
12 |
2,80 |
|
Т 9.10 |
240 |
285 |
3,50 |
|
|
Т 9.12 |
265 |
315 |
4,30 |
|
|
Т 9.14 |
315 |
370 |
5,55 |
|
|
Т 9.16 |
360 |
420 |
7,00 |
|
|
Т 9.18 |
410 |
470 |
7,80 |
|
|
Т 9.20 |
460 |
525 |
16 |
12,60 |
|
Т 9.22 |
510 |
585 |
16,20 |
|
|
Т 9.24 |
610 |
690 |
20,00 |
|
|
Т 9.25 |
710 |
760 |
15,00 |
|
|
Т 9.26.00.001 |
790 |
23,50 |
Опора неподвижная боковая Т 10.00.00.000

Сварные монтажные швы по ГОСТ
5264-80
Катет - по наименьшей толщине свариваемых деталей.
1 - Подушка для типов I
и II (Т 10.00.01.001 -
черт. 90, табл. 90); 1 - Упор боковой для типов III и IV (Т 10.00.01.000 - черт. 89, табл. 89); 2 - Лист защитный; 3 - Прокладка
Чертёж 88, лист 1

Чертёж 88, лист 2
Таблица 88
Размеры, мм
|
Обозначение |
Наружный диаметр трубопровода Дн |
S |
Боковая сила Т, тс |
Н |
L |
Масса, кг |
|
|
1 |
2 |
3 |
4 |
5 |
6 |
7 |
|
|
Тип I и II |
|||||||
|
Т 10.04.00.000 |
194 |
5 |
0,75-1,5 |
140 |
80 |
1.14 |
|
|
Т 10.05 |
219 |
6 |
164 |
1,76 |
|||
|
7 |
|||||||
|
Т 10.06 |
273 |
1-3 |
200 |
100 |
2,16 |
||
|
8 |
|||||||
|
Т 10.07 |
325 |
7 |
240 |
4,00 |
|||
|
8 |
|||||||
|
Т 10.08 |
377 |
9 |
2-5 |
277 |
120 |
5,66 |
|
|
Т 10.09 |
426 |
7 |
2,5-6 |
310 |
6,32 |
||
|
9 |
4-9 |
||||||
|
Т 10.10 |
480 |
7 |
4-9 |
353 |
160 |
9,68 |
|
|
8 |
5-10 |
||||||
|
Т 10.11 |
530 |
7 |
3,5-7 |
388 |
10,63 |
||
|
8 |
4-8,5 |
||||||
|
9 |
5-11 |
||||||
|
Т 10.12 |
630 |
7 |
4-7 |
327 |
200 |
12,66 |
|
|
9 |
6-12 |
||||||
|
10 |
8-16 |
||||||
|
11 |
9-18 |
||||||
|
Т 10.13 |
720 |
8 |
5-9 |
372 |
14,46 |
||
|
10 |
7-14 |
||||||
|
11 |
8-17 |
||||||
|
12 |
10-21 |
||||||
|
Т 10.14 |
820 |
8 |
4-9 |
422 |
16,42 |
||
|
9 |
5-11 |
||||||
|
10 |
6-13 |
||||||
|
12 |
9-19 |
||||||
|
Т 10.15 |
920 |
8 |
5-10 |
476 |
250 |
30,78 |
|
|
9 |
6-12 |
||||||
|
10 |
8-16 |
||||||
|
12 |
12-27 |
||||||
|
Т 10.16 |
1020 |
9 |
6-12 |
526 |
34,04 |
||
|
10 |
7-14 |
||||||
|
11 |
8-17 |
||||||
|
12 |
10-20 |
||||||
|
14 |
12-27 |
||||||
|
Т 10.17 |
1220 |
9 |
6-12 |
626 |
300 |
48,98 |
|
|
11 |
9-18 |
||||||
|
12 |
10-20 |
||||||
|
14 |
12-27 |
||||||
|
Т 10.18 |
1420 |
10 |
6-14 |
726 |
56,52 |
||
|
14 |
12-27 |
||||||
|
Тип III и IV |
|||||||
|
Т 10.19 |
377 |
9 |
7 |
410 |
120 |
16,50 |
|
|
Т 10.20 |
426 |
7 |
9 |
480 |
18,50 |
||
|
Т 10.21 |
530 |
7 |
9 |
560 |
160 |
30,40 |
|
|
Т 10.22 |
630 |
7 |
10 |
410 |
200 |
32,60 |
|
|
Т 10.23 |
720 |
8 |
12 |
460 |
36,66 |
||
|
Т 10.24 |
820 |
8 |
22 |
520 |
41,26 |
||
|
9 |
|||||||
|
10 |
|||||||
|
12 |
|||||||
|
Т 10.25 |
920 |
8 |
27 |
580 |
250 |
77,76 |
|
|
9 |
|||||||
|
10 |
|||||||
|
Т 10.26 |
1020 |
9 |
640 |
85,54 |
|||
|
10 |
|||||||
|
11 |
|||||||
|
12 |
|||||||
|
Т 10.27 |
1220 |
9 |
750 |
300 |
121,86 |
||
|
11 |
|||||||
|
12 |
|||||||
|
Т 10.28.00.000 |
1420 |
10 |
765 |
I 140,74 |
|||
Пример условного обозначения опоры неподвижной боковой для трубопровода Дн = 820 мм, S = 9 мм, тип III:
Опора боковая 820´9-III-Т 10.24-ТУ......

Катет - по наименьшей толщине свариваемых деталей.
1 - Подушка (Т 10.00.01.001- черт. 90,
табл. 90); 2 - Плита; 3 - Планка
Чертёж 89
Размеры, мм
|
Обозначение |
Наружный диаметр трубопровода Дн |
R |
Н |
L |
I |
I1 |
h |
k |
Масса, кг |
|
1 |
2 |
3 |
4 |
5 |
6 |
7 |
8 |
9 |
10 |
|
Т 10.19.01.000 |
377 |
188 |
410 |
208 |
120 |
74 |
12 |
10 |
8,25 |
|
Т 10.20 |
426 |
213 |
460 |
233 |
80 |
9,25 |
|||
|
Т 10.21 |
530 |
265 |
560 |
265 |
160 |
98 |
15,20 |
||
|
Т 10.22 |
630 |
315 |
410 |
339 |
200 |
64 |
14 |
12 |
16,30 |
|
Т 10.23 |
720 |
360 |
460 |
384 |
72 |
18,33 |
|||
|
Т 10.24 |
820 |
410 |
520 |
434 |
80 |
20,63 |
|||
|
Т 10.25 |
920 |
460 |
580 |
492 |
250 |
90 |
18 |
16 |
38,88 |
|
Т 10.26 |
1020 |
510 |
640 |
542 |
100 |
42,77 |
|||
|
Т 10.27 |
1220 |
610 |
750 |
642 |
300 |
114 |
60,93 |
||
|
Т 10.28.01-000 |
1420 |
710 |
765 |
742 |
126 |
70^7 |
Пример условного обозначения бокового упора для трубопровода Дн = 377 мм:
Упор боковой 377-Т 10.19.01-ТУ......
Подушка Т 10.00.01.001

Размеры, мм
|
Обозначение |
R |
S |
L |
I |
h |
Развёрнутая длина |
Масса, кг |
|
1 |
2 |
3 |
4 |
5 |
6 |
7 |
8 |
|
Т 10.04.01.001 |
97 |
6 |
140 |
80 |
32 |
150 |
0,57 |
|
Т 10.05 |
110 |
8 |
164 |
39 |
175 |
0,88 |
|
|
Т 10.06 |
136 |
200 |
46 |
215 |
1,08 |
||
|
Т 10.07 |
162 |
10 |
240 |
100 |
56 |
255 |
2,00 |
|
Т 10.08 |
188 |
277 |
120 |
64 |
300 |
2,83 |
|
|
Т 10.09 |
213 |
310 |
70 |
335 |
3,16 |
||
|
Т 10.10 |
240 |
353 |
160 |
80 |
385 |
4,84 |
|
|
Т 10.11 |
265 |
388 |
88 |
425 |
5,34 |
||
|
Т 10.12 |
315 |
12 |
327 |
200 |
54 |
336 |
6,33 |
|
Т 10.13 |
360 |
372 |
60 |
384 |
7,23 |
||
|
Т 10.14 |
410 |
422 |
67 |
436 |
8,21 |
||
|
Т 10.15 |
460 |
16 |
476 |
250 |
77 |
490 |
15,35 |
|
Т 10.16 |
510 |
526 |
84 |
542 |
17,02 |
||
|
Т 10.17 |
610 |
626 |
300 |
98 |
650 |
24,49 |
|
|
Т 10.18.01.001 |
710 |
726 |
111 |
750 |
28,26 |
Опора неподвижная хомутовая, бескорпусная Т 11.00.00.000

Сварные монтажные швы по ГОСТ
5264-80
Катет - по наименьшей толщине свариваемых деталей.
1 - Упор (Т 6.00.01.000 - черт. 79,
табл. 79); 2 - Хомут (Т 11.00.00.001 -
черт. 92, табл. 92); 3 - Прокладка; 4 - Лист защитный;
Чертёж 91
Таблица 91
Размеры, мм
|
Тип I и II |
Тип III и IV |
Dн |
S |
Осевая сила Q, тс |
Вертикальная сила Р, тс |
Н |
В |
I |
L |
k |
K1 |
k2 |
|
||
|
Обозначение |
Масса, кг |
Обозначение |
Масса, кг |
|
|||||||||||
|
1 |
2 |
3 |
4 |
5 |
6 |
7 |
8 |
9 |
10 |
11 |
12 |
13 |
14 |
15 |
|
|
Т 11.01.00.000 |
3,09 |
Т 11.17.00.000 |
3,48 |
108 |
4 |
2,5 |
2,5 |
119 |
70 |
115 |
170 |
4 |
5 |
3 |
|
|
Т 11.02 |
3,40 |
Т 11.18 |
3,78 |
133 |
134 |
80 |
180 |
|
|||||||
|
Т 11.03 |
4,60 |
Т 11.19 |
4,96 |
159 |
4,5 |
3 |
164 |
90 |
117 |
190 |
|
||||
|
Т 11.04 |
5,52 |
Т 11.20 |
5,88 |
194 |
5 |
5 |
186 |
100 |
200 |
6 |
|
||||
|
Т 11.05 |
8,70 |
Т 11.21 |
8,94 |
219 |
6 |
7 |
4 |
216 |
120 |
137 |
220 |
5 |
|
||
|
7 |
9 |
5 |
|||||||||||||
|
Т 11.06 |
9,91 |
Т 11.22 |
9,14 |
273 |
246 |
||||||||||
|
8 |
12 |
|
|||||||||||||
|
Т 11.07 |
11,72 |
Т 11.23 |
13,14 |
325 |
7 |
9 |
270 |
167 |
6 |
|
|||||
|
8 |
12 |
7 |
|
||||||||||||
|
Т 11.08 |
14,36 |
Т 11.24 |
15,90 |
377 |
9 |
15 |
300 |
140 |
240 |
7 |
|
||||
|
Т 11.09 |
22,04 |
Т 11.25 |
23,70 |
426 |
7 |
9 |
338 |
160 |
200 |
260 |
|
||||
|
9 |
15 |
|
|||||||||||||
|
Т 11.10 |
23,47 |
Т 11.26 |
25,24 |
480 |
7 |
9 |
368 |
180 |
280 |
|
|||||
|
8 |
12 |
|
|||||||||||||
|
Т 11.11 |
27,31 |
Т 11.27 |
29,26 |
530 |
7 |
8 |
393 |
200 |
226 |
300 |
|
||||
|
8 |
10 |
|
|||||||||||||
|
9 |
12 |
|
|||||||||||||
|
Т 11.12 |
35,70 |
Т 11.28 |
40,08 |
630 |
7 |
10 |
445 |
240 |
230 |
340 |
8 |
6 |
|
||
|
9 |
14 |
10 |
|
||||||||||||
|
10 |
18 |
|
|||||||||||||
|
11 |
22 |
|
|||||||||||||
|
Т 11.13 |
44,58 |
Т 11.29 |
48,20 |
720 |
8 |
12 |
8 |
490 |
280 |
270 |
380 |
8 |
|
||
|
10 |
20 |
10 |
|
||||||||||||
|
11 |
25 |
|
|||||||||||||
|
12 |
30 |
|
|||||||||||||
|
Т 11.14 |
47,48 |
Т 11.30 |
51,44 |
820 |
8 |
12 |
8 |
540 |
300 |
400 |
|
||||
|
9 |
16 |
10 |
|
||||||||||||
|
10 |
20 |
|
|||||||||||||
|
12 |
30 |
|
|||||||||||||
|
Т 11.15 |
54,32 |
Т 11.31 |
58,62 |
920 |
8 |
12 |
8 |
592 |
320 |
420 |
|
||||
|
9 |
16 |
10 |
|
||||||||||||
|
10 |
22 |
|
|||||||||||||
|
12 |
40 |
|
|||||||||||||
|
Т 11.16.00.000 |
61,78 |
Т 11.32.00.000 |
68,88 |
1020 |
9 |
20 |
642 |
360 |
290 |
460 |
10 |
|
|||
|
10 |
22 |
|
|||||||||||||
|
11 |
26 |
|
|||||||||||||
|
12 |
35 |
|
|||||||||||||
|
14 |
45 |
|
|||||||||||||
Пример условного обозначения опоры неподвижной хомутовой, бескорпусной для трубопровода Дн = 325 мм, S = 7 мм, тип I:
Опора хомутовая бескорпусная 325´7-1-Т 11.07-ТУ......
Хомут Т 11.00.00.001

Чертёж 92
Таблица 92
Размеры, мм
|
Обозначение |
R |
b |
L |
I |
S |
Развёрнутая длина |
Масса, кг |
|
1 |
2 |
3 |
4 |
5 |
6 |
7 |
8 |
|
Т 11.01.00.001 |
55 |
40 |
145 |
85 |
5 |
350 |
0,51 |
|
Т 11.02 |
67 |
170 |
98 |
415 |
0,60 |
||
|
Т 11.03 |
80 |
195 |
110 |
480 |
0,70 |
||
|
Т 11.04 |
98 |
231 |
128 |
575 |
0,90 |
||
|
Т 11.05 |
111 |
60 |
256 |
140 |
640 |
1,50 |
|
|
Т 11.06 |
139 |
314 |
170 |
785 |
1,85 |
||
|
Т 11.07 |
165 |
80 |
366 |
195 |
6 |
920 |
3,46 |
|
Т 11.08 |
191 |
417 |
220 |
1050 |
3,96 |
||
|
Т 11.09 |
216 |
467 |
245 |
1180 |
4,44 |
||
|
Т 11.10 |
242 |
520 |
272 |
1315 |
4,95 |
||
|
Т 11.11 |
268 |
572 |
298 |
1450 |
5,45 |
||
|
Т 11.12 |
318 |
100 |
674 |
348 |
8 |
1740 |
10,70 |
|
Т 11.13 |
363 |
766 |
395 |
1945 |
12,20 |
||
|
Т 11.14 |
413 |
866 |
445 |
2200 |
13,80 |
||
|
Т 11.15 |
463 |
955 |
495 |
2450 |
15,40 |
||
|
Т 11.16 |
513 |
1066 |
545 |
2710 |
17,00 |
||
|
Т 11.17 |
55 |
25 |
183 |
125 |
5 |
435 |
0,45 |
|
Т 11.18 |
67 |
208 |
138 |
495 |
0,49 |
||
|
Т 11.19 |
80 |
233 |
150 |
550 |
0,53 |
||
|
Т 11.20 |
98 |
271 |
170 |
650 |
0,63 |
||
|
Т 11.21 |
111 |
30 |
305 |
190 |
740 |
0,87 |
|
|
Т 11.22 |
139 |
364 |
220 |
885 |
1,04 |
||
|
Т 11.23 |
165 |
60 |
425 |
255 |
1040 |
2,44 |
|
|
Т 11.24 |
191 |
476 |
280 |
1170 |
2,75 |
||
|
Т 11.25 |
216 |
526 |
305 |
1295 |
3,05 |
||
|
Т 11.26 |
242 |
577 |
330 |
1430 |
3,35 |
||
|
Т 11.27 |
268 |
633 |
360 |
1570 |
3,70 |
||
|
Т 11.28 |
318 |
80 |
754 |
430 |
6 |
1870 |
7,04 |
|
Т 11.29 |
363 |
844 |
475 |
2100 |
7,91 |
||
|
Т 11.30 |
413 |
944 |
525 |
2355 |
8,88 |
||
|
Т 11.31 |
463 |
1044 |
575 |
2615 |
9,85 |
||
|
Т 11.32.00.001 |
513 |
1144 |
625 |
2875 |
10,80 |
Опора неподвижная хомутовая Т 12.00.00.000

Сварные монтажные швы по ГОСТ
5264-80
Катет - по наименьшей толщине свариваемых деталей.
1 - Корпус (Т 12.00.01.000 - черт. 94, табл. 94); 2 - Упор (Т 12.00.00.001 -
черт. 99, табл. 99); 3 - Хомут (Т 12.00.00.002 - черт. 100, табл. 100); 4 - Гайка по ГОСТ
5915-70
Чертёж 93
Таблица 93
Размеры, мм
|
Обозначение |
Наружный диаметр трубопровода Дн |
Осевая сила Q |
Боковая сила T |
Н |
Н1 |
В |
В1 |
k |
k1 |
а |
е |
Масса, кг |
|
тс |
||||||||||||
|
1 |
2 |
3 |
4 |
5 |
6 |
7 |
8 |
9 |
10 |
11 |
12 |
13 |
|
Т 12.01.00.000 |
57 |
2 |
- |
100 |
130 |
50 |
90 |
3 |
6 |
5 |
2 |
3,8 |
|
Т 12.02 |
150 |
180 |
4,7 |
|||||||||
|
Т 12.03 |
200 |
230 |
5,6 |
|||||||||
|
Т 12.04 |
76 |
100 |
138 |
108 |
4,1 |
|||||||
|
Т 12.05 |
150 |
188 |
4,9 |
|||||||||
|
Т 12.06 |
200 |
238 |
6,0 |
|||||||||
|
Т 12.07 |
89 |
100 |
145 |
128 |
4,3 |
|||||||
|
Т 12.08 |
150 |
195 |
5,2 |
|||||||||
|
Т 12.09 |
200 |
245 |
6,2 |
|||||||||
|
Т 12.10 |
108 |
5 |
2 |
100 |
154 |
90 |
150 |
4 |
5,8 |
|||
|
Т 12.11 |
150 |
204 |
6,9 |
|||||||||
|
Т 12.12 |
200 |
254 |
8,0 |
|||||||||
|
Т 12.13 |
133 |
6 |
100 |
165 |
170 |
6,8 |
||||||
|
Т 12.14 |
150 |
215 |
7,8 |
|||||||||
|
Т 12.15 |
200 |
265 |
8,9 |
|||||||||
|
Т 12.16 |
159 |
100 |
180 |
200 |
7,5 |
|||||||
|
Т 12.17 |
150 |
230 |
8,5 |
|||||||||
|
Т 12.18 |
200 |
280 |
9,5 |
|||||||||
|
Т 12.19 |
194 |
12 |
5 |
100 |
197 |
180 |
250 |
5 |
10 |
8 |
5 |
21,4 |
|
Т 12.20 |
150 |
247 |
24,1 |
|||||||||
|
Т 12.21 |
200 |
297 |
27,1 |
|||||||||
|
Т 12.22 |
219 |
16 |
10 |
100 |
210 |
275 |
6 |
22,3 |
||||
|
Т 12.23 |
150 |
260 |
24,9 |
|||||||||
|
Т 12.24 |
200 |
310 |
27,6 |
|||||||||
|
Т 12.25 |
273 |
24 |
15 |
100 |
237 |
340 |
25,9 |
|||||
|
Т 12.26 |
150 |
287 |
28,9 |
|||||||||
|
Т 12.27 |
200 |
337 |
31,5 |
|||||||||
|
Т 12.28 |
325 |
30 |
20 |
100 |
263 |
280 |
395 |
7 |
30,4 |
|||
|
Т 12.29 |
150 |
313 |
33,3 |
|||||||||
|
Т 12.30 |
200 |
363 |
36,0 |
|||||||||
|
Т 12.31 |
377 |
38 |
100 |
289 |
450 |
33,5 |
||||||
|
Т 12.32 |
150 |
339 |
36,2 |
|||||||||
|
Т 12.33.00.000 |
200 |
389 |
38,8 |
|||||||||
Пример условного обозначения опоры неподвижной хомутовой для трубопровода Дн = 108 мм, Н = 200 мм:
Опора хомутовая 108-Т 12.12-ТУ......
Корпус Т 12.00.01.000

1 - Подушка ( Т12.00.01.001 - черт. 95, табл. 95); 2 - Скоба
(Т12.00.01.002 - черт. 96, табл. 96); 3 - Ребро (Т 12.00.01.003 - черт. 97, табл. 97); 4 - Ребро (Т12.00.01.004 - черт. 98, табл. 98)
Чертёж 94
Размеры, мм
|
Обозначение |
Наружный диаметр трубопровода Дн |
L |
H |
H1 |
В |
B1 |
I |
t |
b |
S=k |
а |
е |
n |
Масса, кг |
|
1 |
2 |
3 |
4 |
5 |
6 |
7 |
8 |
9 |
10 |
11 |
12 |
13 |
14 |
15 |
|
Т 12.01.01.000 |
57 |
340 |
100 |
126 |
50 |
90 |
85 |
170 |
24 |
3 |
5 |
0 |
1 |
3,1 |
|
Т 12.02 |
150 |
176 |
4,0 |
|||||||||||
|
Т 12.03 |
200 |
226 |
4,9 |
|||||||||||
|
Т 12.04 |
76 |
100 |
132 |
108 |
4 |
1 |
3,3 |
|||||||
|
Т 12.05 |
150 |
182 |
4,2 |
|||||||||||
|
Т 12.06 |
200 |
232 |
5,2 |
|||||||||||
|
Т 12.07 |
89 |
100 |
140 |
128 |
3,5 |
|||||||||
|
Т 12.08 |
150 |
190 |
4,4 |
|||||||||||
|
Т 12.09 |
200 |
240 |
5,4 |
|||||||||||
|
Т 12.10 |
108 |
100 |
150 |
90 |
150 |
27 |
4 |
7 |
0 |
4,4 |
||||
|
Т 12.11 |
150 |
200 |
5,5 |
|||||||||||
|
Т 12.12 |
200 |
250 |
6,6 |
|||||||||||
|
Т 12.13 |
133 |
100 |
150 |
170 |
6 |
1 |
5,2 |
|||||||
|
Т 12.14 |
150 |
200 |
6,2 |
|||||||||||
|
Т 12.15.01.000 |
200 |
250 |
7,3 |
|||||||||||
|
Т 12.16.01.000 |
159 |
340 |
100 |
160 |
90 |
200 |
85 |
170 |
27 |
4 |
6 |
1 |
1 |
5,6 |
|
Т 12.17 |
150 |
210 |
6,6 |
|||||||||||
|
Т 12.18 |
200 |
260 |
7,6 |
|||||||||||
|
Т 12.19 |
194 |
100 |
170 |
180 |
250 |
30 |
140 |
39 |
6 |
10 |
0 |
2 |
17,0 |
|
|
Т 12.20 |
150 |
220 |
19,7 |
|||||||||||
|
Т 12.21 |
200 |
270 |
22,7 |
|||||||||||
|
Т 12.22 |
219 |
100 |
180 |
275 |
2 |
17,4 |
||||||||
|
Т 12.23 |
150 |
230 |
20,0 |
|||||||||||
|
Т 12.24 |
200 |
280 |
22,7 |
|||||||||||
|
Т 12.25 |
273 |
100 |
200 |
340 |
44 |
8 |
18,4 |
|||||||
|
Т 12.26 |
150 |
250 |
21,4 |
|||||||||||
|
Т 12.27 |
200 |
300 |
24,0 |
|||||||||||
|
Т 12.28 |
325 |
100 |
220 |
280 |
395 |
12 |
21,8 |
|||||||
|
Т 12.29 |
150 |
270 |
24,7 |
|||||||||||
|
Т 12.30 |
200 |
320 |
27,4 |
|||||||||||
|
Т 12.31 |
377 |
100 |
250 |
450 |
10 |
23,7 |
||||||||
|
Т 12.32 |
150 |
300 |
26,4 |
|||||||||||
|
Т 12.33 |
200 |
350 |
29,0 |
|||||||||||
|
Т 12.37 |
426 |
100 |
270 |
515 |
49 |
8 |
25,2 |
|||||||
|
Т 12.38 |
150 |
320 |
28,9 |
|||||||||||
|
Т 12.39 |
200 |
370 |
31,6 |
|||||||||||
|
Т 12.40 |
480 |
100 |
285 |
380 |
580 |
50 |
8 |
12 |
46,0 |
|||||
|
Т 12.41 |
150 |
335 |
51,5 |
|||||||||||
|
Т 12.42 |
200 |
385 |
57,1 |
|||||||||||
|
Т 12.43 |
530 |
100 |
310 |
630 |
47,8 |
|||||||||
|
Т 12.44 |
150 |
360 |
53,3 |
|||||||||||
|
Т 12.45 |
200 |
410 |
59,1 |
|||||||||||
|
Т 12.46 |
630 |
100 |
360 |
750 |
56 |
4 |
55,9 |
|||||||
|
Т 12.47 |
150 |
410 |
61,4 |
|||||||||||
|
Т 12.48 |
200 |
460 |
67,4 |
|||||||||||
|
Т 12.49 |
720 |
680 |
100 |
415 |
500 |
860 |
55 |
61 |
2 |
4 |
133,3 |
|||
|
Т 12.50 |
150 |
465 |
145,6 |
|||||||||||
|
Т 12.51 |
200 |
515 |
158,0 |
|||||||||||
|
Т 12.52 |
820 |
100 |
460 |
975 |
144,2 |
|||||||||
|
Т 12.53 |
150 |
510 |
154,1 |
|||||||||||
|
Т 12.54 |
200 |
560 |
165,9 |
|||||||||||
|
Т 12.55 |
920 |
100 |
540 |
1085 |
67 |
4 |
168,5 |
|||||||
|
Т 12.56 |
150 |
590 |
180,9 |
|||||||||||
|
Т 12.57 |
200 |
640 |
193,8 |
|||||||||||
|
Т 12.58 |
1020 |
100 |
590 |
700 |
1185 |
72 |
10 |
16 |
228,8 |
|||||
|
Т 12.59 |
150 |
640 |
246,3 |
|||||||||||
|
Т 12.60 |
200 |
690 |
255,9 |
|||||||||||
|
Т 12.61 |
1220 |
100 |
690 |
1400 |
235,1 |
|||||||||
|
Т 12.62 |
150 |
740 |
252,6 |
|||||||||||
|
Т 12.63 |
200 |
790 |
272,1 |
|||||||||||
|
Т 12.64 |
1420 |
100 |
780 |
1600 |
14 |
5 |
266,4 |
|||||||
|
Т 12.65 |
150 |
830 |
284,0 |
|||||||||||
|
Т 12.66.01.000 |
200 |
880 |
303,5 |
Подушка Т 12.00.01.001

Размеры, мм
|
Обозначение |
R |
S |
L |
L1 |
H |
B |
A |
h |
I |
I1 |
I2 |
I3 |
d |
r |
Масса, кг |
|
1 |
2 |
3 |
4 |
5 |
6 |
7 |
8 |
9 |
10 |
11 |
12 |
13 |
14 |
15 |
16 |
|
Т 12.01.01.001 |
30 |
3 |
340 |
94 |
30 |
90 |
68 |
18 |
25 |
50 |
30 |
20 30 |
12 14 |
4 |
0,76 |
|
Т 12.02 |
38 |
118 |
36 |
108 |
86 |
0,96 |
|||||||||
|
Т 12.03 |
45 |
140 |
44 |
128 |
100 |
22 |
30 |
1,05 |
|||||||
|
Т 12.04 |
55 |
4 |
170 |
55 |
150 |
122 |
35 |
13 |
|||||||
|
Т 12.05 |
67 |
185 |
170 |
146 |
26 |
35 |
1,94 |
||||||||
|
Т 12.06 |
81 |
220 |
65 |
200 |
174 |
2,35 |
|||||||||
|
Т 12.07 |
98 |
8 |
270 |
80 |
250 |
212 |
35 |
45 |
55 |
18 23 |
8 |
5,75 |
|||
|
Т 12.08 |
111 |
305 |
90 |
275 |
238 |
50 |
6,60 |
||||||||
|
Т 12.09 |
138 |
375 |
110 |
340 |
296 |
45 |
60 |
60 |
7,94 |
||||||
|
Т 12.10 |
164 |
445 |
130 |
395 |
348 |
10,50 |
|||||||||
|
Т 12.11 |
190 |
100 |
525 |
155 |
450 |
400 |
85 |
110 |
20 |
3,34 |
|||||
|
Т 12.12 |
340 |
50 |
11,30 |
||||||||||||
|
Т 12.13 |
214 |
100 |
590 |
175 |
515 |
460 |
100 |
125 |
17 |
65 |
27 |
10 |
3,70 |
||
|
Т 12.14 |
340 |
50 |
12,60 |
||||||||||||
|
Т 12.15 |
242 |
10 |
120 |
670 |
195 |
580 |
510 |
130 |
25 |
70 |
6,32 |
||||
|
Т 12.16 |
340 |
50 |
17,90 |
||||||||||||
|
Т 12.17 |
267 |
120 |
740 |
220 |
630 |
560 |
120 |
145 |
25 |
7,20 |
|||||
|
Т 12.18 |
340 |
50 |
20,30 |
||||||||||||
|
Т 12.19 |
316 |
12 |
120 |
900 |
270 |
750 |
660 |
120 |
150 |
20 |
80 |
12 |
10,00 |
||
|
Т 12.20 |
340 |
50 |
28,50 |
||||||||||||
|
Т 12.21 |
362 |
120 |
1060 |
325 |
860 |
760 |
135 |
165 |
17 |
85 |
40 |
34 |
11,90 |
||
|
Т 12.22 |
680 |
160 |
70,73 |
||||||||||||
|
Т 12.23 |
412 |
120 |
1210 |
370 |
975 |
860 |
145 |
185 |
17 |
55 |
13,50 |
||||
|
Т 12.24 |
680 |
160 |
80,10 |
||||||||||||
|
Т 12.25 |
462 |
14 |
150 |
1430 |
455 |
1085 |
960 |
160 |
27 |
95 |
14 |
23,60 |
|||
|
Т 12.26 |
680 |
160 |
107,25 |
||||||||||||
|
Т 12.27 |
512 |
150 |
1590 |
505 |
1185 |
1060 |
195 |
225 |
25 |
100 |
90 |
40 |
26,00 |
||
|
Т 12.28 |
680 |
160 |
118,60 |
||||||||||||
|
Т 12.29 |
612 |
150 |
1890 |
600 |
1400 |
1260 |
25 |
31,20 |
|||||||
|
Т 12.30 |
680 |
160 |
131,80 |
||||||||||||
|
Т 12.31 |
712 |
150 |
2200 |
695 |
1600 |
1460 |
25 |
36,60 |
|||||||
|
Т 12.32.01.001 |
680 |
160 |
166,00 |
Скоба Т 12.00.01.002

Размеры, мм
|
Обозначение |
В |
Н |
L |
I |
R |
d=S |
Развёрнутая длина |
n |
n1 |
Масса, кг |
|
1 |
2 |
3 |
4 |
5 |
6 |
7 |
8 |
9 |
10 |
11 |
|
Т 12.01.01.002 |
50 |
105 |
340 |
65 |
4 |
3 |
250 |
3 |
8 |
2,00 |
|
Т 12.02 |
155 |
350 |
2,80 |
|||||||
|
Т 12.03 |
205 |
450 |
3,60 |
|||||||
|
Т 12.04 |
102 |
244 |
1,95 |
|||||||
|
Т 12.05 |
152 |
344 |
2,75 |
|||||||
|
Т 12.06 |
202 |
444 |
3,55 |
|||||||
|
Т 12.07 |
90 |
115 |
310 |
2,50 |
||||||
|
Т 12.08 |
165 |
410 |
3,30 |
|||||||
|
Т 12.09 |
215 |
510 |
4,10 |
|||||||
|
Т 12.10 |
110 |
300 |
2,40 |
|||||||
|
Т 12.11 |
160 |
400 |
3,20 |
|||||||
|
Т 12.12 |
210 |
500 |
4,00 |
|||||||
|
Т 12.13 |
180 |
135 |
6 |
6 |
430 |
7,30 |
||||
|
Т 12.14 |
185 |
530 |
8,90 |
|||||||
|
Т 12.15 |
235 |
630 |
10,50 |
|||||||
|
Т 12.16 |
125 |
410 |
7,04 |
|||||||
|
Т 12.17 |
175 |
510 |
8,64 |
|||||||
|
Т 12.18 |
225 |
610 |
10,20 |
|||||||
|
Т 12.19 |
120 |
400 |
6,64 |
|||||||
|
Т 12.20 |
170 |
500 |
8,26 |
|||||||
|
Т 12.21.01.002 |
220 |
600 |
9,86 |
|||||||
|
Т 12.22.01.002 |
280 |
155 |
340 |
65 |
6 |
6 |
570 |
3 |
8 |
9,30 |
|
Т 12.23 |
205 |
670 |
10,90 |
|||||||
|
Т 12.24 |
255 |
770 |
12,50 |
|||||||
|
Т 12.25 |
145 |
550 |
8,50 |
|||||||
|
Т 12.26 |
195 |
650 |
10,11 |
|||||||
|
Т 12.27 |
245 |
750 |
11,70 |
|||||||
|
Т 12.28 |
135 |
530 |
8,70 |
|||||||
|
Т 12.29 |
185 |
630 |
10,20 |
|||||||
|
Т 12.30 |
235 |
730 |
11,80 |
|||||||
|
Т 12.31 |
380 |
165 |
8 |
8 |
685 |
15,40 |
||||
|
Т 12.32 |
215 |
785 |
17,50 |
|||||||
|
Т 12.33 |
265 |
885 |
19,70 |
|||||||
|
Т 12.34 |
160 |
675 |
14,90 |
|||||||
|
Т 12.35 |
210 |
775 |
17,00 |
|||||||
|
Т 12.36 |
260 |
875 |
193 |
|||||||
|
Т 12.37 |
145 |
645 |
1430 |
|||||||
|
Т 12.38 |
195 |
745 |
16,40 |
|||||||
|
Т 12.39 |
245 |
845 |
18,60 |
|||||||
|
Т 12.40 |
500 |
175 |
680 |
25 |
825 |
9 |
20 |
36,00 |
||
|
Т 12.41 |
225 |
925 |
40,10 |
|||||||
|
Т 12.42 |
275 |
1025 |
44,40 |
|||||||
|
Т 12.43 |
165 |
805 |
37,72 |
|||||||
|
Т 12.44 |
215 |
905 |
39,00 |
|||||||
|
Т 12.45 |
265 |
1005 |
433 |
|||||||
|
Т 12.46 |
150 |
775 |
33,60 |
|||||||
|
Т 12.47 |
200 |
875 |
37,90 |
|||||||
|
Т 12.48 |
250 |
975 |
42,20 |
|||||||
|
Т 12.49 |
700 |
210 |
10 |
10 |
1085 |
59,00 |
||||
|
Т 12.50 |
260 |
1185 |
64,30 |
|||||||
|
Т 12.51 |
310 |
1285 |
59,70 |
|||||||
|
Т 12.52 |
185 |
1035 |
56,00 |
|||||||
|
Т 12.53 |
235 |
1135 |
61,30 |
|||||||
|
Т 12.54 |
285 |
1235 |
66,60 |
|||||||
|
Т 12.55 |
170 |
1005 |
54,30 |
|||||||
|
Т 12.56 |
220 |
1105 |
59,60 |
|||||||
|
Т 12.57.01.002 |
270 |
1205 |
64,90 |
Ребро Т 12.00.01.003

Размеры, мм
|
Обозначение |
R |
В |
S |
С |
H |
H1 |
Масса, кг |
|
1 |
2 |
3 |
4 |
5 |
6 |
7 |
8 |
|
Т 12.01.01.003 |
42 |
42 |
3 |
5 |
100 |
93 |
0,08 |
|
Т 12.02 |
150 |
143 |
0,13 |
||||
|
Т 12.03 |
200 |
193 |
0,18 |
||||
|
Т 12.10 |
58 |
80 |
4 |
6 |
110 |
93 |
0,19 |
|
Т 12.11 |
160 |
143 |
0,31 |
||||
|
Т 12.12 |
210 |
193 |
0,44 |
||||
|
Т 12.13 |
78 |
105 |
93 |
0,25 |
|||
|
Т 12.14 |
155 |
143 |
0,33 |
||||
|
Т 12.15 |
205 |
193 |
0,45 |
||||
|
Т 12.19 |
105 |
165 |
6 |
8 |
128 |
85 |
0,97 |
|
Т 12.20 |
178 |
135 |
134 |
||||
|
Т 12.21 |
228 |
185 |
1,73 |
||||
|
Т 12.22 |
118 |
118 |
85 |
0,93 |
|||
|
Т 12.23 |
168 |
135 |
1,25 |
||||
|
Т 12.24 |
228 |
185 |
1,65 |
||||
|
Т 12.25 |
144 |
112 |
85 |
0,88 |
|||
|
Т 12.26 |
162 |
135 |
1,25 |
||||
|
Т 12.27 |
212 |
185 |
1,65 |
||||
|
Т 12.28 |
170 |
265 |
6 |
8 |
150 |
85 |
0,42 |
|
Т 12.29 |
200 |
135 |
0,60 |
||||
|
Т 12.30 |
250 |
185 |
0,95 |
||||
|
Т 12.31 |
196 |
140 |
85 |
0,46 |
|||
|
Т 12.32 |
190 |
135 |
0,70 |
||||
|
Т 12.33 |
240 |
185 |
1,00 |
||||
|
Т 12.37 |
220 |
130 |
85 |
0,39 |
|||
|
Т 12.38 |
180 |
135 |
0,78 |
||||
|
Т 12.39 |
230 |
185 |
1,10 |
||||
|
Т 12.40 |
250 |
362 |
8 |
10 |
155 |
82 |
2,40 |
|
Т 12.41 |
205 |
132 |
3,50 |
||||
|
Т 12.42 |
255 |
182 |
4,60 |
||||
|
Т 12.43 |
275 |
150 |
82 |
2,15 |
|||
|
Т 12.44 |
200 |
132 |
3,25 |
||||
|
Т 12.45 |
250 |
182 |
4,40 |
||||
|
Т 12.46 |
327 |
135 |
82 |
2,00 |
|||
|
Т 12.47 |
185 |
132 |
3,10 |
||||
|
Т 12.48 |
235 |
182 |
4.30 |
||||
|
Т 12.49 |
372 |
482 |
165 |
80 |
3,50 |
||
|
Т 12.50 |
215 |
130 |
5,10 |
||||
|
Т 12.51 |
265 |
180 |
6,70 |
||||
|
Т 12.52 |
422 |
155 |
80 |
3,30 |
|||
|
Т 12.53 |
205 |
130 |
5,00 |
||||
|
Т 12.54 |
255 |
180 |
6,50 |
||||
|
Т 12.55 |
474 |
140 |
78 |
3,20 |
|||
|
Т 12.56 |
190 |
128 |
4,80 |
||||
|
Т 12.57 |
240 |
178 |
6,50 |
||||
|
Т 12.58 |
524 |
678 |
10 |
12 |
200 |
76 |
6,60 |
|
Т 12.59 |
250 |
126 |
9,00 |
||||
|
Т 12.60 |
300 |
176 |
11,80 |
||||
|
Т 12.61 |
624 |
175 |
76 |
5,80 |
|||
|
Т 12.62 |
225 |
126 |
8,20 |
||||
|
Т 12.63 |
275 |
176 |
11,00 |
||||
|
Т 12.64 |
724 |
160 |
76 |
5,60 |
|||
|
Т 12.65 |
210 |
126 |
8,00 |
||||
|
Т 12.66.01.003 |
260 |
176 |
10,80 |
Ребро Т 12.00.01.004

Размеры, мм
|
Обозначение |
R |
В |
В1 |
Н |
h |
S |
Масса, кг |
|
1 |
2 |
3 |
4 |
5 |
6 |
7 |
8 |
|
Т 12.01.01.004 |
32 |
20 |
5 |
18 |
5 |
3 |
0,005 |
|
Т 12.04 |
42 |
8 |
|||||
|
Т 12.07 |
48 |
24 |
10 |
22 |
0,007 |
||
|
Т 12.10 |
60 |
8 |
|||||
|
Т 12.13 |
80 |
28 |
12 |
26 |
0,011 |
||
|
Т 12.19 |
110 |
38 |
16 |
35 |
8 |
6 |
0,039 |
|
Т 12.25 |
160 |
50 |
20 |
45 |
0,064 |
||
|
Т 12.31 |
198 |
80 |
40 |
85 |
10 |
8 |
0,245 |
|
Т 12.37 |
222 |
100 |
50 |
100 |
0,353 |
||
|
Т 12.40 |
252 |
46 |
15 |
10 |
0,458 |
||
|
Т 12.43 |
277 |
50 |
120 |
0,542 |
|||
|
Т 12.46 |
328 |
46 |
12 |
0,662 |
|||
|
Т 12.49 |
374 |
135 |
0,699 |
||||
|
Т 12.52 |
424 |
40 |
145 |
0,802 |
|||
|
Т 12.55 |
476 |
160 |
20 |
14 |
1,082 |
||
|
Т 12.58 |
526 |
110 |
50 |
190 |
1,342 |
||
|
Т 12.61 |
626 |
40 |
1,356 |
||||
|
Т 12.64.01.004 |
726 |
35 |
1,349 |
Упор Т 12.00.00.001

Размеры, мм
|
Обозначение |
R |
S |
I |
L |
h |
Развёрнутая длина |
Масса, кг |
|
1 |
2 |
3 |
4 |
5 |
6 |
7 |
8 |
|
Т 12.01.00.001 |
30 |
3 |
39 |
100 |
8 |
36 |
0,08 |
|
Т 12.04 |
38 |
41 |
8,1 |
42 |
0,09 |
||
|
Т 12.07 |
45 |
48 |
9 |
49 |
0,11 |
||
|
Т 12.10 |
54 |
4 |
58 |
11,2 |
59 |
0,17 |
|
|
Т 12.13 |
66 |
65 |
11,5 |
65 |
0,20 |
||
|
Т 12.16 |
80 |
78 |
13 |
79 |
0,25 |
||
|
Т 12.19 |
97 |
8 |
97 |
19 |
97 |
0,61 |
|
|
Т 12.22 |
110 |
110 |
21 |
110 |
0,69 |
||
|
Т 12.25 |
136 |
133 |
23 |
134 |
0,85 |
||
|
Т 12.28 |
162 |
157 |
27 |
160 |
1,00 |
||
|
Т 12.31 |
188 |
181 |
29 |
184 |
1,15 |
||
|
Т 12.37 |
213 |
187 |
28 |
192 |
1,20 |
||
|
Т 12.40 |
240 |
10 |
212 |
32,4 |
214 |
1,68 |
|
|
Т 12.43 |
265 |
232 |
35 |
236 |
1,87 |
||
|
Т 12.46 |
315 |
12 |
276 |
42 |
280 |
2,64 |
|
|
Т 12.49 |
360 |
315 |
150 |
46 |
320 |
4,50 |
|
|
Т 12.52 |
410 |
355 |
50 |
364 |
5,10 |
||
|
Т 12.55 |
460 |
14 |
400 |
57 |
405 |
6,60 |
|
|
Т 12.58 |
510 |
444 |
62 |
450 |
7,50 |
||
|
Т 12.61 |
610 |
525 |
71 |
540 |
9,00 |
||
|
Т 12.64.00.001 |
710 |
550 |
68 |
560 |
10,80 |
Хомут Т 12.00.00.002

Размеры, мм
|
|
R |
Н |
h |
А |
d |
d1 |
с |
Развёрнутая длина |
Масса, кг |
|
1 |
2 |
3 |
4 |
5 |
6 |
7 |
8 |
9 |
10 |
|
|
29 |
78 |
25 |
68 |
10 |
М10 |
1,6 |
185 |
0,11 |
|
|
38 |
95 |
86 |
230 |
0,14 |
||||
|
|
45 |
110 |
100 |
265 |
0,16 |
||||
|
|
55 |
130 |
30 |
120 |
12 |
М12 |
310 |
0,28 |
|
|
|
67 |
155 |
146 |
380 |
0,34 |
||||
|
|
81 |
170 |
174 |
420 |
0,37 |
||||
|
|
98 |
220 |
35 |
212 |
16 |
М16 |
2,0 |
540 |
0,85 |
|
|
111 |
230 |
238 |
580 |
0,92 |
||||
|
|
138 |
290 |
296 |
20 |
М20 |
2,5 |
730 |
1,80 |
|
|
|
164 |
325 |
40 |
348 |
830 |
2,05 |
|||
|
|
190 |
370 |
400 |
950 |
2,34 |
Опора неподвижная бугельная Т 44.00.00.000

Сварные монтажные швы по ГОСТ
5264-80
Катет - по наименьшей толщине свариваемых деталей.
1 - Корпус (Т 12.00.01.000 - черт. 94,
табл. 94); 2 - Бугель (Т 44.00.01.000
- черт. 102, табл. 102); 3 - Упор (Т 12.00.00.001 - черт. 99, табл. 99); 4
- Шпилька по ГОСТ 11769-70; 5 - Гайка по ГОСТ
5915-70
Чертёж 101
Таблица 101
Размеры, мм
|
Обозначение |
Наружный диаметр трубопровода Дн |
Осевая сила Q |
Боковая сила Т |
L |
Н |
H1 |
В |
B1 |
k |
k1 |
а |
е |
Масса, кг |
|
тс |
|||||||||||||
|
1 |
2 |
3 |
4 |
5 |
6 |
7 |
8 |
9 |
10 |
11 |
12 |
13 |
14 |
|
Т 44.01.00.000 |
377 |
30 |
20 |
340 |
100 |
290 |
280 |
450 |
7 |
10 |
8 |
5 |
40,9 |
|
Т 44.02 |
150 |
340 |
43,6 |
||||||||||
|
Т 44.03 |
200 |
390 |
46,2 |
||||||||||
|
Т 44.04 |
426 |
35 |
100 |
315 |
515 |
46,9 |
|||||||
|
Т 44.05 |
150 |
365 |
50,6 |
||||||||||
|
Т 44.06 |
200 |
415 |
53,3 |
||||||||||
|
Т 44.07 |
480 |
40 |
25 |
100 |
340 |
380 |
580 |
12 |
10 |
4 |
75,8 |
||
|
Т 44.08 |
150 |
390 |
81,3 |
||||||||||
|
Т 44.09 |
200 |
440 |
86,9 |
||||||||||
|
Т 44.10 |
530 |
45 |
100 |
365 |
630 |
81,5 |
|||||||
|
Т 44.11 |
150 |
415 |
87,0 |
||||||||||
|
Т 44.12 |
200 |
465 |
92,8 |
||||||||||
|
Т 44.13 |
630 |
50 |
100 |
415 |
750 |
99,5 |
|||||||
|
Т 44.14 |
150 |
465 |
105,0 |
||||||||||
|
Т 44.15 |
200 |
515 |
111,0 |
||||||||||
|
Т 44.16 |
720 |
65 |
35 |
680 |
100 |
460 |
500 |
860 |
8 |
193,4 |
|||
|
Т 44.17 |
150 |
510 |
205,7 |
||||||||||
|
Т 44.18 |
200 |
560 |
218,1 |
||||||||||
|
Т 44.19 |
820 |
75 |
100 |
510 |
975 |
210,7 |
|||||||
|
Т 44.20 |
150 |
560 |
220,6 |
||||||||||
|
Т 44.21 |
200 |
610 |
232,4 |
||||||||||
|
Т 44.22 |
920 |
85 |
100 |
560 |
1085 |
263,8 |
|||||||
|
Т 44.23 |
150 |
610 |
276,2 |
||||||||||
|
Т 44.24 |
200 |
660 |
289,1 |
||||||||||
|
Т 44.25 |
1020 |
100 |
60 |
100 |
610 |
700 |
1185 |
9 |
15 |
14 |
8 |
345,0 |
|
|
Т 44.26 |
150 |
660 |
362,5 |
||||||||||
|
Т 44.27 |
200 |
710 |
372,1 |
||||||||||
|
Т 44.28 |
1220 |
130 |
100 |
1400 |
368,0 |
||||||||
|
Т 44.29 |
150 |
760 |
385,5 |
||||||||||
|
Т 44.30 |
200 |
810 |
405,0 |
||||||||||
|
Т 44.31 |
1420 |
180 |
100 |
1600 |
417,3 |
||||||||
|
Т 44.32 |
150 |
860 |
434,9 |
||||||||||
|
Т 44.33.00.000 |
200 |
910 |
454,4 |
||||||||||
Пример условного обозначения опоры неподвижной бугельной для трубопровода Дн = 426 мм, Н = 200 мм:
Опора бугельная 426-Т 44.06-ТУ......
Бугель Т 44.00.01.000

1 - Подушка (Т 12.00.01.000 - черт. 95, табл. 95); 2
- Ребро (Т 12.00.01.000 - черт. 98,
табл. 98)
Чертёж 102
Размеры, мм
|
Обозначение |
R |
H |
B |
A |
L |
I |
d |
k |
Масса, кг |
|
1 |
2 |
3 |
4 |
5 |
6 |
7 |
8 |
9 |
10 |
|
Т 44.01.01.000 |
190 |
155 |
450 |
400 |
100 |
44 |
23 |
8 |
4,37 |
|
Т 44.04 |
214 |
175 |
515 |
460 |
49 |
27 |
5,16 |
||
|
Т 44.07 |
242 |
195 |
580 |
510 |
120 |
50 |
8,25 |
||
|
Т 44.10 |
267 |
220 |
630 |
560 |
9,47 |
||||
|
Т 44.13 |
316 |
270 |
750 |
660 |
56 |
10 |
12,80 |
||
|
Т 44.16 |
362 |
325 |
860 |
760 |
61 |
34 |
14,85 |
||
|
Т 44.19 |
412 |
370 |
975 |
860 |
16,86 |
||||
|
Т 44.22 |
462 |
455 |
1085 |
960 |
150 |
67 |
28,23 |
||
|
Т 44.25 |
512 |
505 |
1185 |
1060 |
72 |
40 |
31,67 |
||
|
Т 44.28 |
612 |
600 |
1400 |
1260 |
37,02 |
||||
|
Т 44.31.01.000 |
712 |
695 |
1800 |
1460 |
42,40 |
Опоры приварные неподвижные и скользящие

Сварные монтажные швы по ГОСТ
5264-80
Катет - по наименьшей толщине свариваемых деталей.
1 - Основание; 2 - Проволока 1 ГОСТ
3282-74; 3 - Угольник
Чертёж 103
Таблица 103
Размеры, мм
|
Обозначение |
Наружный диаметр трубопровода Дн |
H |
H1 |
H2 |
В |
b |
b1 |
S |
k |
k1 |
Неподвижные |
Скользящие |
||||||||||
|
L |
I |
I1 |
t |
n |
Масса, кг |
L |
I |
I1 |
t |
n |
Масса, кг |
|||||||||||
|
1 |
2 |
3 |
4 |
5 |
6 |
7 |
8 |
9 |
10 |
11 |
12 |
13 |
14 |
15 |
16 |
17 |
18 |
19 |
20 |
21 |
22 |
21 |
|
57-95 |
57;60 |
91 |
99 |
124 |
54 |
34 |
26 |
4 |
4 |
5 |
60 |
40 |
45 |
40 |
1 |
0,598 |
- |
- |
- |
- |
- |
- |
|
68-95 |
68 |
104 |
129 |
62 |
42 |
0,677 |
||||||||||||||||
|
76-95 |
76 |
133 |
68 |
48 |
35 |
0,680 |
||||||||||||||||
|
83-95 |
83 |
136 |
70 |
50 |
70 |
50 |
55 |
50 |
0,822 |
|||||||||||||
|
89-95 |
89 |
140 |
75 |
55 |
0,835 |
|||||||||||||||||
|
102-95 |
102 |
146 |
85 |
65 |
140 |
120 |
125 |
60 |
2 |
1,594 |
70 |
50 |
55 |
50 |
1 |
0,930 |
||||||
|
108-95 |
108 |
149 |
1,614 |
0,934 |
||||||||||||||||||
|
114-95 |
114 |
152 |
||||||||||||||||||||
|
127-95 |
127 |
109 |
158 |
100 |
10 |
150 |
130 |
140 |
65 |
1,869 |
80 |
60 |
65 |
60 |
1,202 |
|||||||
|
133-95 |
133 |
114 |
162 |
110 |
90 |
2,029 |
1,281 |
|||||||||||||||
|
140-95 |
140 |
165 |
2,114 |
1,359 |
||||||||||||||||||
|
152-95 |
152 |
171 |
130 |
110 |
2,308 |
1,497 |
||||||||||||||||
|
159-95 |
159 |
175 |
170 |
150 |
155 |
50 |
3 |
2,540 |
1,503 |
|||||||||||||
|
168-95 |
168 |
126 |
179 |
160 |
130 |
6 |
6 |
6 |
185 |
155 |
4,599 |
110 |
80 |
85 |
40 |
2 |
3,222 |
|||||
|
180-95 |
180 |
185 |
4,637 |
3,238 |
||||||||||||||||||
|
194-95 |
194 |
192 |
175 |
145 |
210 |
180 |
190 |
60 |
5,454 |
3,329 |
||||||||||||
|
219-95 |
219 |
136 |
205 |
200 |
170 |
6,174 |
125 |
95 |
105 |
50 |
4,191 |
|||||||||||
|
245-95 |
245 |
218 |
210 |
180 |
240 |
210 |
205 |
50 |
4 |
6,966 |
4,380 |
|||||||||||
|
273-95 |
273 |
232 |
235 |
205 |
260 |
230 |
245 |
60 |
7,958 |
4,724 |
||||||||||||
|
299-95 |
299 |
146 |
245 |
255 |
225 |
8,864 |
200 |
170 |
170 |
55 |
1 |
7,249 |
||||||||||
|
325-95 |
325 |
258 |
265 |
235 |
70 |
320 |
290 |
305 |
5 |
10,29 |
210 |
180 |
180 |
60 |
7,472 |
|||||||
|
377-95 |
377 |
284 |
295 |
265 |
360 |
330 |
135 |
55 |
6 |
11,93 |
220 |
190 |
205 |
50 |
4 |
8,107 |
||||||
|
426-95 |
426 |
166 |
308 |
345 |
315 |
420 |
390 |
395 |
65 |
16,20 |
10,05 |
|||||||||||
|
480-95 |
478; 480 |
176 |
335 |
395 |
365 |
450 |
420 |
425 |
60 |
7 |
19,31 |
11,34 |
||||||||||
|
530-95 |
529; 530 |
360 |
415 |
385 |
20,02 |
240 |
210 |
12,44 |
||||||||||||||
|
630-95 |
630 |
158 |
410 |
465 |
425 |
8 |
8 |
8 |
500 |
460 |
460 |
65 |
29,65 |
280 |
240 |
245 |
60 |
19,17 |
||||
|
720-95 |
720 |
148 |
455 |
420 |
380 |
520 |
410 |
505 |
50 |
10 |
27,75 |
12,65 |
||||||||||
|
820-95 |
820 |
138 |
505 |
26,94 |
180 |
140 |
140 |
65 |
2 |
12,12 |
||||||||||||
|
920-95 |
920 |
555 |
26,91 |
12,24 |
||||||||||||||||||
|
1020-95 |
1020 |
140 |
605 |
450 |
400 |
10 |
10 |
12 |
530 |
35,88 |
220 |
170 |
170 |
55 |
1 |
18,36 |
||||||
|
1120-95 |
1120 |
130 |
655 |
34,59 |
17,57 |
|||||||||||||||||
|
1220-95 |
1220 |
150 |
705 |
550 |
500 |
42,74 |
22,10 |
|||||||||||||||
|
1420-95 |
1420 |
140 |
805 |
41,52 |
21,57 |
|||||||||||||||||
|
1620-95 |
1620 |
905 |
560 |
512 |
43,81 |
21,96 |
||||||||||||||||
|
168-145 |
168 |
145 |
176 |
229 |
160 |
130 |
60 |
6 |
6 |
6 |
185 |
155 |
155 |
3 |
5,832 |
110 |
80 |
85 |
40 |
2 |
4,050 |
|
|
180-145 |
180 |
235 |
5,870 |
4,101 |
||||||||||||||||||
|
194-145 |
194 |
242 |
175 |
145 |
210 |
180 |
190 |
60 |
6,885 |
4,303 |
||||||||||||
|
219-145 |
219 |
186 |
255 |
200 |
170 |
7,736 |
125 |
95 |
105 |
50 |
5,384 |
|||||||||||
|
245-145 |
245 |
268 |
210 |
180 |
240 |
210 |
205 |
50 |
4 |
8,729 |
5,628 |
|||||||||||
|
273-145 |
273 |
282 |
235 |
205 |
260 |
230 |
245 |
60 |
9,994 |
6,054 |
||||||||||||
|
299-145 |
299 |
196 |
295 |
255 |
225 |
10,88 |
200 |
170 |
170 |
55 |
3 |
9,074 |
||||||||||
|
325-145 |
325 |
308 |
265 |
235 |
120 |
320 |
290 |
305 |
5 |
12,47 |
210 |
180 |
190 |
60 |
9,154 |
|||||||
|
377-145 |
377 |
334 |
295 |
265 |
360 |
330 |
335 |
55 |
6 |
14,48 |
220 |
190 |
205 |
50 |
4 |
10,07 |
||||||
|
426-145 |
426 |
216 |
358 |
345 |
315 |
420 |
390 |
395 |
65 |
19,32 |
12,10 |
|||||||||||
|
480-145 |
478;480 |
226 |
385 |
395 |
365 |
450 |
420 |
425 |
60 |
7 |
22,83 |
13,68 |
||||||||||
|
530-145 |
529; 530 |
410 |
415 |
385 |
23,58 |
240 |
210 |
15,19 |
||||||||||||||
|
630-145 |
630 |
208 |
460 |
465 |
425 |
8 |
8 |
8 |
500 |
460 |
460 |
65 |
35,21 |
280 |
240 |
245 |
60 |
23,16 |
||||
|
720-145 |
720 |
198 |
505 |
420 |
380 |
520 |
480 |
505 |
50 |
10 |
32,95 |
15,72 |
||||||||||
|
820-145 |
820 |
188 |
555 |
32,05 |
170 |
140 |
140 |
65 |
2 |
15,16 |
||||||||||||
|
920-145 |
920 |
605 |
32,35 |
15,31 |
||||||||||||||||||
|
1020-145 |
1020 |
190 |
655 |
450 |
400 |
10 |
10 |
12 |
530 |
42,62 |
210 |
170 |
170 |
55 |
3 |
22,92 |
||||||
|
1120-145 |
1120 |
180 |
705 |
41,38 |
21,99 |
|||||||||||||||||
|
1220-145 |
1220 |
200 |
755 |
550 |
500 |
50,29 |
27,46 |
|||||||||||||||
|
1420-145 |
1420 |
190 |
855 |
49,05 |
26,68 |
|||||||||||||||||
|
1620-145 |
1620 |
955 |
560 |
512 |
51,64 |
27,01 |
||||||||||||||||
Пример условного обозначения опоры хомутовой неподвижной для трубопровода Дн = 219 мм, Н = 95 мм:
Опора ОПН 219-95 ТУ......
То же, скользящей:
Опора ОПН С-219-95 ТУ......
Опоры хомутовые неподвижные

Сварные монтажные швы по ГОСТ
5264-80
Катет - по наименьшей толщине свариваемых деталей.
1 - Корпус; 2 - Упор; 3 - Хомут ; 4 - Гайка по ГОСТ
5915-70; 5 - Гайка по ГОСТ 5917-70
Чертёж 104
Таблица 104
Размеры, мм
|
Исполнение |
I |
II |
III |
IV |
V |
|
1 |
2 |
3 |
4 |
5 |
6 |
|
Температура рабочей среды трубопровода ºС |
До 450 |
Св.450 до 500 |
Св.500 до 540 |
Св. 540 до 575 |
Св. 575 до 600 |
Таблица 105
Размеры, мм
|
Обозначение |
Наружный диаметр трубопровода Дн |
Н |
Н1 |
В |
В1 |
b |
L |
k |
k1 |
Масса, кг |
Исполнение |
||||||
|
Исполнение |
|||||||||||||||||
|
I |
II-V |
I |
II-V |
I |
II |
III |
IV |
V |
|||||||||
|
1 |
2 |
3 |
4 |
5 |
6 |
7 |
8 |
9 |
10 |
11 |
12 |
13 |
14 |
15 |
16 |
17 |
18 |
|
57-100 |
57; 60 |
100 |
128 |
54 |
92 |
26 |
60 |
4 |
4 |
4 |
1,115 |
1,115 |
X |
X |
X |
X |
X |
|
68-100 |
68 |
134 |
62 |
102 |
1,255 |
1,255 |
X |
X |
X |
X |
X |
||||||
|
76-100 |
76 |
138 |
68 |
118 |
35 |
1,465 |
1,465 |
X |
X |
X |
X |
X |
|||||
|
83-100 |
83 |
142 |
70 |
120 |
70 |
1,704 |
1,704 |
X |
X |
X |
X |
X |
|||||
|
89-100 |
89 |
145 |
75 |
126 |
1,702 |
1,702 |
X |
X |
X |
X |
X |
||||||
|
102-100 |
102 |
151 |
85 |
148 |
140 |
3,062 |
3,062 |
X |
X |
X |
X |
X |
|||||
|
108-100 |
108 |
154 |
3,145 |
3,145 |
X |
X |
X |
X |
X |
||||||||
|
114-100 |
114 |
157 |
156 |
3,309 |
3,309 |
X |
X |
X |
X |
X |
|||||||
|
127-100 |
127 |
164 |
100 |
170 |
150 |
6 |
4,118 |
4,118 |
X |
X |
X |
X |
|
||||
|
133-100 |
133 |
166 |
110 |
180 |
3,910 |
4,422 |
X |
X |
X |
X |
|||||||
|
140-100 |
140 |
170 |
190 |
5,014 |
5,044 |
X |
X |
X |
X |
||||||||
|
159-100 |
159 |
180 |
130 |
210 |
170 |
5,359 |
5,919 |
X |
X |
X |
X |
||||||
|
168-100 |
168 |
184 |
160 |
224 |
185 |
6 |
6 |
10,66 |
- |
X |
|
|
|
||||
|
180-100 |
180 |
190 |
234 |
11,50 |
X |
||||||||||||
|
194-100 |
194 |
197 |
175 |
248 |
210 |
12,06 |
X |
||||||||||
|
219-100 |
219 |
210 |
200 |
281 |
8 |
15,16 |
X |
||||||||||
|
245-100 |
245 |
222 |
210 |
306 |
240 |
17,73 |
X |
||||||||||
|
273-100 |
273 |
236 |
235 |
352 |
260 |
8 |
22,50 |
X |
|||||||||
|
299-100 |
299 |
250 |
255 |
372 |
28,52 |
X |
|||||||||||
|
325-100 |
325 |
262 |
265 |
400 |
70 |
320 |
- |
29,41 |
X |
||||||||
|
377-100 |
377 |
288 |
295 |
450 |
360 |
35,62 |
X |
||||||||||
|
426-100 |
426 |
313 |
345 |
500 |
420 |
45,34 |
X |
||||||||||
Пример условного обозначения опоры хомутовой неподвижной для трубопровода Дн = 219 мм, Н = 95мм:
Опора ОХН 219-95 ТУ......
Опоры бескорпусные неподвижные и направляющие

Сварные монтажные швы по ГОСТ
5264-80
Катет - по наименьшей толщине свариваемых деталей.
1 - Хомут (черт. 106, табл. 107); 2 - Упор; 3 - Гайка по ГОСТ
5915-70
Чертёж 105
Таблица 106
Размеры, мм
|
Обозначение |
Наружный диаметр трубопровода Дн |
Допускаемое осевое усилие Р, кгс |
А |
S |
К |
Масса, кг |
|
1 |
2 |
3 |
4 |
5 |
6 |
7 |
|
25 |
25; 26,75 |
30 |
36 |
8 |
- |
0,070 |
|
Н-25 |
- |
|||||
|
32 |
32; 33,5 |
40 |
42 |
0,075 |
||
|
Н-32 |
- |
|||||
|
38 |
38 |
60 |
48 |
0,082 |
||
|
Н-38 |
- |
|||||
|
42,25 |
42,25 |
70 |
52 |
0,086 |
||
|
Н-42,25 |
- |
|||||
|
45 |
44,5; 45 |
80 |
58 |
0,155 |
||
|
Н-45 |
- |
|||||
|
48 |
48 |
100 |
62 |
0,161 |
||
|
Н-48 |
- |
|||||
|
57 |
57 |
500 |
70 |
3 |
0,222 |
|
|
Н-57 |
- |
0,198 |
||||
|
60 |
60 |
500 |
74 |
0,228 |
||
|
Н-60 |
- |
0,204 |
||||
|
76 |
75,5; 76 |
500 |
90 |
0391 |
||
|
Н-76 |
- |
0^61 |
||||
|
89 |
88,5; 89 |
500 |
106 |
0,442 |
||
|
Н-89 |
- |
0,407 |
||||
|
108 |
108 |
1200 |
122 |
12 |
0,584 |
|
|
Н-108 |
- |
0,500 |
||||
|
114 |
114 |
1500 |
128 |
0,633 |
||
|
Н-114 |
- |
0,530 |
||||
|
133 |
133 |
1600 |
150 |
1,013 |
||
|
Н-133 |
- |
0,934 |
||||
|
152 |
152 |
1300 |
170 |
1,090 |
||
|
Н-152 |
- |
1,013 |
||||
|
159 |
159 |
1800 |
180 |
1,198 |
||
|
Н-159 |
- |
1,089 |
||||
|
194 |
194 |
3200 |
214 |
5 |
1,507 |
|
|
Н-194 |
- |
1,308 |
||||
|
219 |
219 |
3600 |
242 |
16 |
2,468 |
|
|
Н-219 |
- |
2,214 |
||||
|
273 |
273 |
3400 |
298 |
2,884 |
||
|
Н-273 |
- |
2,601 |
||||
|
325 |
325 |
3400 |
350 |
3,064 |
||
|
Н-325 |
- |
2,733 |
||||
|
377 |
377 |
4000 |
402 |
3,840 |
||
|
Н-377 |
- |
3,408 |
||||
|
426 |
426 |
4000 |
456 |
5,709 |
||
|
Н-426 |
- |
5,226 |
||||
|
480 |
478; 480 |
4000 |
508 |
6,311 |
||
|
Н-480 |
- |
5,768 |
||||
|
530 |
529; 530 |
4000 |
558 |
6,856 |
||
|
Н-530 |
|
6,267 |
Пример условного обозначения опоры бескорпусной неподвижной для трубопровода Дн = 159 мм:
Опора ОБН 159 ТУ......
Тоже, направляющей:
Опора ОБН Н-159 ТУ......
Хомут

Чертёж 106
Таблица 107
Размеры, мм
|
Обозначение |
r |
А |
d |
I |
I1 |
с |
Развёрнутая длина |
Масса, кг |
|
|
Номин. |
Доп. откл. |
||||||||
|
1 |
2 |
3 |
4 |
5 |
6 |
7 |
8 |
9 |
10 |
|
25/1 |
14 |
36 |
±1,0 |
М8 |
38 |
34 |
1,2 |
133 |
0,046 |
|
32/1 |
17 |
42 |
40 |
146 |
0,051 |
||||
|
38/1 |
20 |
48 |
44 |
163 |
0,058 |
||||
|
42,25/1 |
22 |
52 |
45 |
172 |
0,062 |
||||
|
45/1 |
24 |
58 |
М10 |
52 |
40 |
1,5 |
195 |
0,111 |
|
|
48/1 |
26 |
62 |
54 |
205 |
0,117 |
||||
|
57/1 |
30 |
70 |
58 |
226 |
0,130 |
||||
|
60/1 |
32 |
74 |
60 |
236 |
0,136 |
||||
|
76/1 |
39 |
90 |
М12 |
70 |
50 |
1,8 |
281 |
0,235 |
|
|
89/1 |
47 |
106 |
80 |
327 |
0,276 |
||||
|
108/1 |
55 |
122 |
92 |
376 |
0,320 |
||||
|
114/1 |
58 |
128 |
94 |
389 |
0,331 |
||||
|
133/1 |
67 |
150 |
М16 |
108 |
58 |
2,0 |
452 |
0,691 |
|
|
152/1 |
77 |
170 |
118 |
503 |
0,772 |
||||
|
159/1 |
82 |
180 |
124 |
531 |
0,816 |
||||
|
194/1 |
98 |
214 |
140 |
613 |
0,945 |
||||
|
219/1 |
111 |
242 |
±1,5 |
М20 |
164 |
76 |
2,5 |
708 |
1,672 |
|
273/1 |
139 |
298 |
192 |
852 |
2,030 |
||||
|
325/1 |
165 |
350 |
218 |
986 |
2,114 |
||||
|
377/1 |
191 |
402 |
244 |
1119 |
2,688 |
||||
|
426/1 |
216 |
456 |
М24 |
278 |
90 |
3,0 |
1272 |
4,315 |
|
|
480/1 |
242 |
508 |
304 |
1406 |
4,797 |
||||
|
530/1 |
267 |
558 |
330 |
1537 |
5,250 |
||||
|
ГОСТЫ, СТРОИТЕЛЬНЫЕ и ТЕХНИЧЕСКИЕ НОРМАТИВЫ. Некоммерческая онлайн система, содержащая все Российские Госты, национальные Стандарты и нормативы. В Системе содержится более 150000 файлов нормативно-технической документации, действующей на территории РФ. Система предназначена для широкого круга инженерно-технических специалистов. Copyright © www.gostrf.com, 2008 - 2026 |