| |
РСФСР
КОНЦЕРН "РЕЧФЛОТ"
Центр
по координации эксплуатационных услуг и маркетингу
Государственный институт проектирования на речном транспорте
"ГИПРОРЕЧТРАНС"
|
СОГЛАСОВАНЫ:
|
УТВЕРЖДЕНЫ:
|
|
Московской
инспекцией
|
Концерном РОСРЕЧФЛОТ
|
|
Речного
Регистра РСФСР
|
16 марта 1991 г.
|
|
24
января 1991 г.
|
|
|
Отделом охраны труда
|
Срок введения в действие
|
|
Совета
Федеративного
|
установлен с 1 июня 1991 г.
|
|
независимого
профсоюза
|
|
работников
водного
|
|
транспорта
|
|
19
февраля 1991 г.
|
ТЕХНИЧЕСКИЕ УСЛОВИЯ
ПЕРЕГРУЗКИ, РАЗМЕЩЕНИЯ В СУДАХ И НА СКЛАДАХ
ЖЕЛЕЗОБЕТОННЫХ ИЗДЕЛИЙ, ПЕРЕВОЗИМЫХ
РЕЧНЫМ ТРАНСПОРТОМ
Москва 1991 г.
Технические условия перегрузки,
размещения в судах и на складах железобетонных изделий, перевозимых речным транспортом, разработаны
Гипроречтрансом по договору с генеральным
заказчиком - Московским, речным пароходством № 10-35 от 30.03.89. Финансировали работу пароходства: МРП, ОИРП,
ЗСРП, КРП, БОП.
Технические условия (ТУ)
учитывают изменения, происшедшие в последние годы в номенклатуре
перевозимых ЖБИ и составе флота.
Регламентирование размещения ЖБИ
в судах по допустимому удельному давлению штабелей на грузовую площадку,
предусматриваемое в ТУ, упрощает составление грузового плана и дает по ряду
проектов повышение загрузки судов. В ТУ расширен состав приложений, что облегчает
работу технологов портов.
С введением в действие настоящих
ТУ в качестве отраслевых
утрачивают силу Технические условия перегрузки, размещения в судах и на складах сборных железобетонных изделий и деталей, перевозимых речным
транспортом, утвержденные Минречфлотом РСФСР 25.04.85.
ТУ разработаны сотрудниками Гипроречтранса: Ежовым
О.П. (главный инженер проекта), Дуда Г.Я., Седовой А.В., Лебедевой В.Г.,
Устимовой И.Л.
Расчеты прочности и качки для
включенных в ТУ типов судов выполнены корпусным, отделом Речного Регистра
РСФСР.
Содержание
1. ОБЩИЕ ПОЛОЖЕНИЯ
1.1. ТУ устанавливают требования
к погрузке и размещению в судах, выгрузке из судов и складированию в портах и
на пристанях сборных железобетонных (бетонных, силикатобетонных и
гипсобетонных) конструкций и деталей промышленного, гидротехнического и
жилищного строительства (ЖБИ), разработанные Гипроречтрансом на основании
действующих руководящих и нормативных материалов, приведенных в разделе 6, с
соблюдением требований по охране труда при производстве перегрузочных работ и
использованием, средств механизации ручного труда.
1.2. ТУ являются обязательным,
руководящим документом для работников пароходств, портов, экипажей судов,
грузоотправителей, грузополучателей, осуществляющих перегрузку, складирование и
перевозку ЖБИ, а также проектно-конструкторских организации речного транспорта
РСФСР.
1.3. Пароходства, порты, экипажи
судов, грузоотправители и грузополучатели несут ответственность за невыполнение
требований настоящих ТУ.
1.4. Перегрузку железобетонных
изделий из судов (складов порта) в вагоны необходимо производить с учетом
требований Технических условий погрузки и крепления грузов, изданных МПС СССР [6.l]. Для типоразмеров
изделий, не предусмотренных указанными Техническими условиями,
грузоотправителем разрабатываются утверждаются в действующем порядке и
передаются в одном экземпляре порту чертежи или схемы размещения и крепления
груза в вагоне.
1.5. Перегрузку и складирование
ЖБИ при перевозке их судовыми, вагонными и мелкими партиями следует
осуществлять без смешения соответствующих отправок.
1.6. ЖБИ перегружают на причалах,
оснащенных перегрузочными машинами с соответствующими грузозахватными
устройствами и приспособлениями.
1.7. Размещают ЖБИ с учетом
наибольшего использования грузоподъемности судов и вместимости складов,
сохранности груза и судна, удобства выполнения работ при наименьшей трудоемкости
перегрузочных операций.
1.8. Каждая партия ЖБИ,
предъявляемая к перегрузке или складированию в порту, должна быть принята. ОТК
предприятия-изготовителя в соответствии с требованиями ГОСТ
13015.1-81 и стандартов или технических условий на изделия конкретных
видов, а также сопровождаться документом, о качестве (техническим паспортом),
подписанным ОТК.
1.9. ЖБИ должны предъявляться грузоотправителем к
перевозке укрупненными грузовыми единицами - в крупнотоннажных контейнерах,
кассетах или пакетах. Как исключение, допускается перевозка изделий отдельными
местами.
Основные данные по номенклатуре и
транспортным, характеристикам ЖБИ представлены в приложении 1.
Наиболее распространенные
средства контейнеризации для перевозки малогабаритных и легковесных ЖБИ
приведены в приложении 2.
1.10. Конструкция контейнеров и пакетов должна
обеспечивать сохранность изделий при многократной перегрузке, удобство
строповки, возможность применения полуавтоматических и автоматических грузозахватных
устройств (в том числе для установки низкогабаритных контейнеров и пакетов в
2-3 яруса).
1.11. Реквизит (подкладки,
прокладки, внутритрюмные упоры, контейнеры, кассеты, опорные пирамиды,
проволока, скобы, гвозди и др.), необходимый при перевозке ЖБИ,
грузоотправитель обязан представлять порту отправления в необходимом количестве
до начала загрузки судна.
1.12. Необходимое количество
реквизита определяется пор том отправления по каждому из типоразмеров ЖБИ,
исходя из характеристик изделий и условий их размещения в судне.
1.13. Изделие, предъявленное
грузоотправителем к перевозке, должно иметь маркировку согласно ГОСТ
13015.2-81 и ГОСТ 14192-77,
содержащую следующие данные:
марку изделия;
товарный знак или краткое
наименование предприятия-изготовителя, штамп ОТК;
дату изготовления изделия;
массу изделия;
обозначение на изделии мест
строповки и положения центра тяжести изделия согласно ГОСТ
12.3.009-76;
обозначение на изделии мест
опирания (установки подкладок и прокладок); упрощенную отправительную марку с
указанием в ней наименования порта отправления, грузополучателя и
грузоотправителя.
1.14. Грузоотправитель до
предъявления к перевозке ЖБИ должен выдать порту отправления в двух экземплярах
Грузовые характеристики изделий и условия их строповки и складирования по
форме, рекомендуемой в настоящих ТУ (приложение 9.1-9.24). Грузовые
характеристики (второй экземпляр) прилагается к транспортным, документам, для
информации порта прибытия, о чем в накладных делают соответствующую отметку.
1.15. В Грузовой характеристике
ЖБИ должны быть указаны:
а) расстояние между осями
подкладок;
б) расстояния от торца изделия до
осей подкладок и раз меры, определяющие положение и высоту грузоподъемных
петель;
в)
схемы складирования и число ярусов изделия, допускаемое в штабеле (для
различных условий формирования: склад пор та, трюм или палуба судна, вагон);
г) удельное давление от штабеля
ЖБИ (тс/м2) на основание (площадку склада, палубу, второе дно,
люковые крышки судна), определяемое по формуле:
(1)
где:
РЖБИ - масса штабеля ЖБИ, т;
bшт - ширина основания штабеля, м;
lшт - длина основания штабеля (вдоль подкладок), м;
S - площадь
грузового штабеля, м2.
Расчетная
длина основания отдельного штабеля из горизонтально размещаемых изделий
определяется как расстояние (вдоль подкладок) между начальной конечной точками
опорных поверхностей по крайним в штабеле изделиям.
Расчетная
длина основания отдельного штабеля из наклонно (вертикально) устанавливаемых
изделий определяется как расстояние между осью опорной пирамиды и габаритом,
крайнего в ряду (вдоль прокладок) изделия.
д)
данные по грузозахватному устройству;
е)
размеры подкладок и прокладок (с учетом высоты грузоподъемных петель и
выступающих частей изделия);
ж)
схема строповки изделий;
з)
особые условия складирования и гранения по требованию
грузоотправителя
или запросу порта (предельные углы отклонения канатов от вертикали и т.п.).
Если на
изделия действует государственный стандарт, в котором имеются сведения по
пунктам а, б, в, г, е, з, то грузоотправители могут представлять портам только
данные по грузозахватному устройству и схеме строповки. Копии грузовых
характеристик или заменяющих их документов необходимо регистрировать и хранить
в портах.
1.16.
ЖБИ размещают в трюмах и на палубах согласно заранее разработанным, грузовым
планам. Грузовые планы составляют с учетом представляемого грузоотправителем
нормокомплекта изделий, подлежащих погрузке в судно и требований, изложенных в
действующей Инструкции по составлению грузового плана загрузки судов. Извещение
грузоотправителя по нормокомплектам выдается порту за 10 суток до начала загрузки
судна.
1.17. Для типов судов, не предусмотренных
настоящими ТУ, разрабатываются непосредственно речным портом (пароходством)
местные технические условия, которые согласовываются и утверждаются в
установленном порядке.
1.18.
ЖБИ должны иметь приспособления для строповки (грузоподъемные петли,
отверстия и другие элементы необходимой прочности).
На
изделия, у которых, конструктивно не предусмотрены приспособления для строповки
и трудно отличить верх от низа (балки, плиты и другие изделия с несимметрично расположенной
арматурой), грузоотправителем должна быть сделана надпись несмываемой краской
"верх".
1.19.
Изделия из автоклавных ячеистых и жаростойких бетонов на жидком стекле, а также
многослойные изделия с прослойками утеплителя, элементы со вставленными
оконными переплетами и дверными блоками должны быть надежно защищены
грузоотправителем от повреждения и увлажнения.
1.20.
Офактуренные, шлифованные или облицованные поверхности стеновых панелей и
блоков должны быть защищены от повреждений при помощи мягких прокладок из
губчатой резины или технического грубошерстного войлока.
Средства
защиты поверхностей от повреждений и методы их применения следует
предусматривать грузоотправителю.
1.21.
Вставленные в рамы оконные переплеты и двери должны быть закреплены грузоотправителем
в закрытом состоянии.
1.22.
Элементы конструкций, не обладающие достаточной жесткостью, при транспортировке
должны быть временно усилены грузоотправителем.
1.23. К
перевозке не принимаются ЖБИ, имеющие трещины (кроме местных усадочных шириной
не более 0,2 мм), недоброкачественные и заплывшие бетоном грузоподъемные петли,
обнажения арматуры.
1.24.
ЖБИ, предназначенные к перегрузке, должны быть очищены ото льда и снега.
Запрещается укладывать изделия на подкладки (прокладки), покрытые снегом,
наледью, грязью, мазутом и другими нефтепродуктами.
1.25.
ЖБИ следует опирать при укладке в штабель на подкладки и прокладки только в
местах, обозначенных соответствующими метками или установленных Грузовыми
характеристиками, стандартом, техническими условиями на изделия конкретных
видов. При этом дополнительное опирание в промежуточных местах не допускается.
1.26.
Применение вместо подкладок и прокладок шашечных подставок не допускается.
1.27.
Применение лесоматериалов круглого и полукруглого сечения в качестве подкладок
(прокладок) не допускается.
1.28.
Размеры подкладок (прокладок), устанавливаемых под ЖБИ, могут быть определены
из условия обеспечения прочности древесины на смятие от давления штабеля. При
этом их минимальную толщину принимают:
для
подкладок не менее 100 мм;
для
прокладок не менее 30 мм.
При
наличии у изделий выступающих частей или грузоподъемных петель толщина
прокладок должна превышать размер выступающих элементов не менее чем на 20 мм.
Ширина
подкладок (прокладок) определяется по формуле:
(2)
где:
b - ширина подкладки (прокладки),
см;
РЖБИ - масса штабеля ЖБИ, кг;
n - количество ярусов над данной
подкладкой или прокладкой;
[σсм]
- допускаемое напряжение древесины на смятие поперек волокон, кгс/см2
(приложение
3, таблица 3.1);
l - длина подкладки (прокладки), см;
m - общее количество ярусов в
штабеле.
Для унификации сечений прокладок их ширина определяется при n = m - 1
Пример
Определить сечение, подкладок и
прокладок для штабеля железобетонных плит Ш60.38. по ГОСТ
21924.0-84. Согласно требованиям, стандарта высота штабеля (hшт) должна быть не более 200 см. Масса одной
плиты (Ризд) равна 7850
кг. Габаритные размеры плиты L×B×H равны-600´375´14
см. Допускаемое напряжение древесины на смятие поперек волокон для деталей из
сосны и ели [σсм] =
18 кгс/см . Подкладки и прокладки располагаются вдоль короткой
стороны плиты. Толщина подкладок (δпод)
должна быть не менее 10 см., а толщина прокладок (δпр) - не менее 3 см.
Количество ярусов над нижней
прокладкой:

Общее количество ярусов в штабеле
m = 11
Ширина подкладок (РЖБИ =Ризд m; n = m = 11; l = b)

Ширина прокладок (РЖБИ = Ризд n;n = m-1; l = b)

По ГОСТ 24454-80
"Пиломатериалы хвойных пород", принимаем, поперечное сечение
подкладок δпод´bпод равным
100 125 мм, а поперечное сечение прокладок δпр´bпр равным 32´100 мм.
1.29. Подкладки и прокладки под ЖБИ должны быть
уложены до подачи изделия в штабель. Концы прокладок и подкладок не должны
выходить за габариты уложенного груза более чем на 0,1 м.
Запрещается изменять положение
подкладок и прокладок под висящим, над ними грузом.
1.30. Подъем и опускание ЖБИ должны производиться
строго вертикально, без боковых подтягиваний, плавно и без рывков, с
соблюдением, мер, исключающих возможность их повреждения. До начала подъема и
затем после подъема на высоту 0,3 м стропальщики обязаны убедиться, что
строповка груза выполнена правильно (каната, балансиры, крюки, предохранители и
защитные прокладки должны быть в положении, соответствующем, схеме строповки).
1.31. При укладке изделии
необходимо обеспечивать возможность строповки каждого (очередного в штабеле)
изделия и свободный подъем изделия для последующей погрузки в судно, вагон или
автомобиль.
1.32. Изделия, штабелируемые в
горизонтальном, положении, должны укладываться на деревянные подкладки и
прокладки. Под кладки, следует укладывать на ровное основание. Расположение
подкладок и прокладок должно соответствовать установленному стандартом или
техническими условиями на изделия конкретных видов или проектной документации
на них.
При укладке ЖБИ в штабели
подкладки и прокладки по высоте штабеля следует располагать по вертикали одна
над другой.
1.33. Изделия, штабелируемые в
наклонном положении, должны укладываться с применением опорных пирамид,
конструкция которых должна исключать возможность самопроизвольного
опрокидывания и сдвига при установке на них изделий. Основания одно сторонних и
двусторонних пирамид должны иметь выпуски (удлинители) под подкладки, жестко
связанные с фермой пирамиды. Длина выпусков должна быть не менее 0,3 высоты
изделий, устанавливаемых к пирамиде. Изделия в начале формирования штабеля
устанавливают на прокладки, размещенные на выпусках. Угол наклона изделий к
вертикали должен быть равен 8-10°, обеспечивающим устойчивость изделий во время
перегрузки. Наклонные прокладки между изделиями устанавливают согласно
указаниям, приводимым в Грузовых характеристиках изделий, и условиях их
строповки и складирования. Для удобства фиксирования положения прокладок их
изготовляют навесными с верхним Г-образным выступом.
Допускается опирать штабель
наклонно размещаемых изделий о штабель горизонтально размещаемых изделий. При
этом, штабель горизонтально размещаемых изделий должен иметь массу не менее 3
т, длину вдоль подкладок не менее 1,5 м и высоту не менее 2/3 высоты наклонно
устанавливаемых изделий. Между штабелями размещают деревянные упоры-прокладки
на полную высоту штабеля, воспринимающего горизонтальное усилие.
1.34. Узкие неустойчивые изделия
(панели, фермы), штабелируемые в вертикальном положении, устанавливаются на
специальные опоры (кассеты), снабженные крепежными и фиксирующими устройствами,
обеспечивающими устойчивость и сохранность ЖБИ.
Опоры (кассеты) должны
поставляться порту отправления грузоотправителем с обязательным
сопроводительным документом, (паспортом), удостоверяющим, область их применения
(для хранения на складе, для транспортировки), устанавливающим правила и
последовательность размещения, в них изделий.
1.35. Изделия, у которых в
транспортном положении высота больше размера вдоль подкладок (балки, ригели,
блоки стеновые), а также изделия таврового сечения, опираемые на стенку, должны
быть предохранены, от развала в штабеле. Для этого грузоподъемные петли рядом
размещаемых в штабеле изделий увязывают (вдоль подкладок) стальной проволокой в
две нити. Проволока должна применяться мягкая, термически обработанная
(отожженная) согласно ГОСТ
3282-74, Диаметр проволоки для изделий массой до 2 т - 4 мм, свыше 2 т до 3
т - 5 мм, свыше 3 т - 6 мм. Допускается крепить изделия штатными средствами -
стальным канатом с закрепленными на нем с соответствующим шагом скобами.
Крайнее изделие в каждом ярусе штабеля (если оно не установлено в кассете)
предварительно скрепляют проволокой или скобой с рядом, размещенным, штабелем
или со специальными упорами. Остальные изделия в ярусе (последовательно,
начиная с крайнего) крепят, скручивая проволокой, пропускаемой через
грузоподъемные петли, а при применении стальных канатов со скобами, - соединяя
их с грузоподъемными петлями изделий. Длина горизонтальных прокладок в штабелях
вышеуказанных изделий не должна быть меньше высоты штабеля.
1.36. Узкие изделия (с
отношением, высоты к размеру вдоль подкладок равным, от 0,5 до 1,0) допускается
размещать в штабелях с двусторонними уступами (вдоль подкладок) без крепления в ярусах. Уступы формируют
последовательно уменьшая каждый ярус на два изделия.
Если штабель примыкает к
вертикальным, поверхностям других штабелей, уступы не выкладывают. При этом
длина прокладок в каждом ярусе штабеля должна быть равна расстоянию между
поверхностями, ограничивающими штабель. В штабелях, выкладываемых в три и более
ярусов, изделия верхних ярусов (кроме первого) скрепляют в группы. Размер
группы вдоль прокладок должен быть не менее высоты штабеля.
1.37. Изделия по пп. 1.35 и 1.36
укладывают в ярусах штабеля вплотную один к другому (или к разделительным,
прокладкам, размещаемым, в разрыве между изданиями). Поверхности изделий,
уложенных вплотную, защищают от взаимного касания (если это требуется по государственному
стандарту или техническим. условиям на. изделие) установкой деревянных
разделителей толщиной 10-20 мм.
1.38. При несоответствии
прочностных данных одиночных ЖБИ скоростным режимам кранов порта,
грузоотправитель в Грузовой характеристике изделия обязан указать, что
перегрузка кранами порта, одиночных (т.е. не уложенных в контейнеры или пакеты
с несущей обвязкой) изделий не допускается. Информацию о работах скоростях
кранов представляет грузоотправителю порт отправления груза.
2. ПОГРУЗКА И РАЗМЕЩЕНИЕ ЖБИ В СУДАХ,
ВЫГРУЗКА ИЗ СУДОВ
2.1. Погрузку в суда и размещение
груза в них при полной загрузке ЖБИ, а также отдельных партий железобетонных
изделий при догрузке в суда со сборным грузом производят согласно требованиям
настоящих ТУ по заранее разработанным" грузовым планам.
Последовательность загрузки
(выгрузки) судов и размещения ЖБИ в отдельных трюмах (участках) судов должна
соответствовать требованиям инструкций, приведенных в Сборниках инструкций по
погрузке и выгрузке серийных самоходных и несамоходных сухогрузных судов [6.3
и 6.4].
2.2. Единичная масса изделий
должна соответствовать грузоподъемности кранов, установленных в пункте
разгрузки судна.
ЖБИ в трюмах и на участках
трюмов, палубы или люковых крышек следует размещать, как правило, равномерно с
симметричной укладкой груза относительно диаметральной плоскости судна. При
асимметричной укладке отдельных грузов центр тяжести всей массы груза должен
совпадать с диаметральной плоскостью судна.
ЖБИ, размещаемые в судне, необходимо
располагать таким образом, чтобы были обеспечены: видимость из рулевой рубки
(обзор пространства) при судовождении, свободный и безопасный доступ ко всем
механизмам, штуртросу, кнехтам, отросткам, пожарной магистрали и другим
устройствам, оборудованию и системам судна, удобство и безопасность выполнения
палубных и трюмных работ, а также перемещения членов экипажа по судну для
выполнения работ.
2.3. При размещении грузов на палубе
судов, плавающих в бассейнах разряда "Р" и в трюмах судов, плавающих
в бассейнах разрядов "Р" и "О" крепление ЖБИ от сдвига при
бортовой качке не производится. На палубе судов, плавающих в бассейнах разряда
«О», при высоте волны до 1,2 м ЖБИ не крепятся, а в остальных случаях
размещение и крепление грузов производят в соответствии о Техническими
условиями размещения и крепления массовых тяжеловесных и крупногабаритных
грузов на судах МРФ, выходящих в морские прибрежные районы [6.5].
Если крепление груза не произведено, суда должны ожидать наступления
благоприятных условий плавания в портах-убежищах.
2.4. Перед началом погрузки
вахтенный начальник судна совместно с непосредственным производителем работ
(лицо, ответственное за безопасное перемещение груза) должны согласовать места
размещения подкладок с учетом конструктивных особенностей судна и типоразмеров
перевозимых ЖБИ.
2.5. Транспортные положения
предъявленных к перевозке ЖБИ определяет грузоотправитель и указывает их в
Грузовой характеристике изделия.
2.6. Во всех случаях штабель
изделий, сформированный в судне, должен опираться только на две подкладки и не
касаться других точек второго дна (палубы). Зазор между палубой и изделием
должен быть не менее 30 мм. Второй и последующие ярусы штабеля следует
укладывать по прокладкам (если грузоотправителем не оговорены специальные
условия, например, при укладке труб). Высоту подкладок принимают с учетом
покатости палуб.
Высота штабелей в судах не должна
превышать данных, приведенных в Грузовых характеристиках изделий, и быть не
более допустимой высоты штабеля ЖБИ при их хранении на складе. Зазоры между
штабелями в продольном, и поперечном направлениях относительно ДП судна должны
быть не менее 0,1 м. Уменьшение зазоров допускается для изделий круглой и
полукруглой формы при касании вдоль образующих, а также для изделий с верхним
расположением, грузоподъемных петель.
2.7. Нагрузки, допустимые из условий прочности судна
при размещении ЖБИ в трюме, на палубе или люковых крышках, и основные
транспортно-технологические характеристики судов, рассмотренных в настоящих ТУ,
приводятся в приложении 4.
Для размещения штабеля ЖБИ в
судах должно соблюдаться следующее условие:
qЖБИ ≤ qг.рп (3)
где:
qЖБИ - удельное давление на основание от штабеля ЖБИ,
который (по допускаемому количеству ярусов) принимается в качестве исходного,
выдается грузоотправителем, в Грузовой характеристике изделия, тс/м2;
qг.рп - допустимое удельное давление на палубу (второе дно,
люковые крышки), тс/ м2 (прилож. 4).
Если удельное давление от исходного штабеля больше
допустимого для судна, то в этом, случае количество изделий в судовом штабеле
должно быть, по сравнению с исходным, уменьшено. В тех случаях, когда удельное
давление от судового штабеля меньше удельного давления от исходного штабеля и
допустимого удельного давления для грузовой площадки судна, количество изделий
в судовом штабеле может быть увеличено. Допускается укладка одного изделия на
два соседних, расположенных в одном ряду штабеля, что равноценно увеличению
количества ярусов на 0,5 яруса. Прокладки этого изделия размещают над прокладками
остальных изделий в расположенных рядом штабелях. Возможность такого увеличения
определяется Грузовой характеристикой изделий, выдаваемой грузоотправителем.
Сокращение или увеличение
количества изделий в штабеле достигается:
для штабелей из горизонтально
размещаемых изделий - изменением числа ярусов;
для штабелей из наклонно
(вертикально) составленных изделий - увеличением или уменьшением зазора между
отдельными изделиями толщиной прокладок.
2.8. Если уменьшение количества
изделий во всех многоярусных судовых штабелях приводит к недогрузке трюма
(участка трюма, палубы или люковых крышек), то на некоторых штабелях
разрешается устанавливать дополнительный ярус изделий (например, сантехкабин) в
соответствии с п. 2.19
ТУ. При этом удельное давление от массы каждого из судовых штабелей,
размещаемых в данном трюме (участке трюма, палубы или люковых крышек), не
должно превышать удельного давления от исходного штабеля и допустимого
удельного давления для соответствующей грузовой площадки судна.
2.9. Подкладки под штабелем груза
воспринимают нагрузку от его массы и совместно с настилом палубы (второго дна
или люковых крышек) передают ее на рамные балки набора судна. Стыковку
подкладок осуществляют над рамными балками.
При размещении подкладок поперек
судна они должны устанавливаться в плоскости элементов поперечного набора или
перекрывать не менее двух балок продольного набора.
При размещении подкладок вдоль
судна они должны перекрывать не менее двух балок поперечного набора.
При размещении ЖБИ на крышках
грузовых люков не допускается свисания изделий за поперечный комингс люка.
Подкладки под ЖБИ должны перекрывать не менее двух основных поперечных балок
крышки.
2.10. В порту отправления на
судне должны быть дополнительно уложены подкладки, прокладки, упорные пирамиды
и т.д. в количестве, необходимом для обеспечения начала выгрузки и размещения
ЖБИ на складе в порту прибытия.
2.11. Потребность в подкладочных
и прокладочных материалах (м3) рассчитывают по формуле (4) или (5).
Для горизонтально размещаемых
изделий:
Kr = 2N [Kп
(Ш + 0,1) Ei + Ш (n - 1) ei] (4)
где:
N - количество
штабелей, ед;
Kп - коэффициент, учитывающий дополнительные расходы
подкладочных материалов на невозможность их повторного использования при
погрузке в суда, а также дополнительное количество для отправки с судном. В
межнавигационных условиях принимают Kп = 2,0, в навигационных - Kп =
1,5;
Ш - размер изделия (яруса изделий)
вдоль подкладок, м;
n
- количество изделий в штабеле, ед.;
Ei - площадь поперечного сечения
подкладок, м2;
ei - площадь поперечного сечения
прокладок, м2.
Для наклонно (вертикально)
размещаемых изделий:
(5)
где:
3 - коэффициент, учитывающий расход материала, на
изготовление подкладок и клиновых уступов по ним;
b1 - толщина изделия, м;
b2 - толщина прокладки, м;
Н - длина
прокладки с учетом, изготовления Г-образного выступа, равная высоте изделия, м.
В межнавигационных условиях
принимают Кп = 1,85, в навигационных - Кп = 1,45.
В качестве сепарационного
материала используются пиломатериалы по ГОСТ 24454-80 и ГОСТ
2695-83.
2.12. При горизонтальном
размещении ЖБИ в судах укладку каждого последующего яруса производят после
окончания укладки предыдущего яруса.
В судах, имеющих подпалубные пространства, в каждом
поперечном, ряду яруса первыми укладывают изделия, размещаемые у бортов.
2.13. При наклонном размещении
железобетонных изделий одной марки в судах с одним трюмом, в середине каждого
из участков трюма устанавливают двустороннюю опорную пирамиду. Изделия в
штабеле размещают вдоль судна, поочередно то с одной, то с другой стороны
пирамиды.
В судах с отдельными трюмами
односторонние опорные пирамиды устанавливают вплотную к поперечной переборке
или борту. Изделия можно размещать по всей длине трюма, начиная от опорной
пирамиды. Суда загружают в соответствии с действующей Инструкцией по загрузке и
разгрузке судов. Разгружают суда в порядке, обратном загрузке.
Штабеля, размещаемые в трюмных
судах по подкладкам, уложенным поперек судна, должны с одной стороны
ограждаться пирамидами, а с другой (на высоту штабеля) - упорами между штабелем
и бортом, судна. При установке таких штабелей на палубных судах пирамиду (для
изделий, укладываемых по подкладкам, размещаемым, поперек судна) устанавливают
и закрепляют в диаметральной плоскости судна, и изделия по всей длине штабеля
охватывают на половине их высоты стальным, канатом, с подкладками и скрепляют
его с пирамидой.
2.14. Загрузка судов наклонно
размещаемыми железобетонными изделиями с опиранием на судовые конструкции
(переборки, фальшборты и т.п.), т.е. без применения опорных пирамид не
допускается.
2.15. Если удельное давление от
штабеля ЖБИ на палубу, второе дно или люковые крышки превышает соответствующее
допустимое значение для загружаемого судна и необходимо сохранить исходную
массу штабеля, то подкладки устанавливают на поперечные брусья, разносящие
нагрузку. Толщина брусьев должна быть не менее толщины подкладок. Разносящие
нагрузку брусья допускается укладывать под подкладку с промежутком, равным, их
ширине.
Для определения длины брусьев
(м), разносящих нагрузку используется формула:
(6)
где:
l - длина подкладки, м.
Пример
Определить ширину разносящего
нагрузку настила под подкладки (длину разносящих нагрузку брусьев) для штабеля
ж.б. плит ПАГ-14 по ГОСТ
25912.1-85 общей массой pЖБИ = 42,0 т, уложенного на
подкладки длиной 2,1 м поперечным, сечением 100´125 мм, если допустимая удельная нагрузка на
палубу
qгр.п = 2,5 тс/ м2
(проект Фин 1000/800), а удельная нагрузка от штабеля qЖБИ = 3,5 тс/ м2.

Разносящий нагрузку на палубу настил устраивается из
брусьев поперечным сечением 100×125 мм, длиной 4,0 м, уложенных через
промежутки, равные, ширине брусьев.
2.16. Как возможный вариант для
проектов судов, не вошедших в настоящие ТУ, предлагается допускаемое удельное
давление (тс/м2) на палубу (второе дно, люковые крышки) при
размещении ЖБИ определять путем, сравнения числовых значений, полученных по
формуле (7) и приведенных в судовой документации.
(7)
где:
Р - масса груза,
воспринимаемая рассматриваемой грузовой площадкой (палубой, вторым дном трюма,
люковыми крышками), т;
bn - ширина грузовой площадки, м;
ln - длина грузовой площадки, м.
При этом за допускаемое удельное давление на соответствующую
грузовую площадку принимают наименьшее из сравниваемых значений.
2.17. В качестве вспомогательных материалов,
при определении способов укладки и размещения ЖБИ в судне, могут быть
использованы данные приложения
5.
2.18. Громоздкие и сложные
железобетонные изделия (фермы, высокие балки) размещают в трюмах или на палубах
судов на специальных опорах (кассетах), имеющих наряду с подкладками
фиксирующие приспособления (гребенки, упоры, призмы). В процессе погрузки
изделия крепятся между собой и к опорам, (кассетам.) стильной проволокой.
Погрузка очередного изделия допускается после полной увязки и закрепления
предыдущего.
Расчеты опор под тяжелые, особо
тяжелые и сложные изделия (фермы, высокие балки и др.) должны выполняться
специалистами (конструкторами и технологами).
2.19.
Допускается укладывать в один штабель различные изделия, если их габаритные
размеры в плане, расстояние между подкладками и расчетная прочность, бетона
одинаковы.
Возможность установки в одном,
штабеле различных изделий (по прокладкам, и деревянным, поддонам.) определяется
условиями, прочности опорных, изделий и может допускаться только с согласия
грузоотправителя.
2.20. Для
предотвращения опрокидывания свободно стоящего (не закрепленного на судне)
штабеля скрепленных между собой ЖБИ или отдельного изделия отношение высоты
штабеля (изделия) к длине его основания в направлении, перпендикулярном, ДП
судна, не должно превышать 2,2, а в направлении, параллельном ДП судна - 2,5
для судов, плавающих в бассейнах разряда "Р" и в бассейнах разряда
«О» с ограничением по высоте волны до 1.2 м.
Для трюмных судов (груз в трюме),
плавающих в бассейнах разряда «О» (высота волны 2,0 м), указанные соотношения
высоты штабеля и длины его основания соответственно не должны превышать 1,2 и
2,0.
Размер основания штабеля в
направлении, перпендикулярном, прокладкам, определяют как расстояние между
продольными осями подкладок.
Запас устойчивости свободно
стоящих штабелей (изделий) не должен быть менее 1,5 при размещении грузов на
палубе и 1,3 - при размещении в трюме.
С целью повышения устойчивости
отдельные штабели или изделия следует скреплять между собой, образуя группы.
2.21. Для предотвращения
опрокидывания вертикально устанавливаемых или малоустойчивых узких изделий
(подкрановые балки, ригели, стеновые блоки), а также изделий таврового сечения,
их скрепляют между собой в штабеле. В разрывах между штабелями узких изделий и
бортом судна (штабелем широких изделий) вдоль длинной стороны штабеля размещают
и расклинивают раскрепительные рамы или стойки (брусья).
Штабели узких изделий, у которых
длинная сторона (в плане) перпендикулярна подкладкам, формируют, укладывая
вплотную скрепляемые между собой изделия в каждом ярусе. Подкладки и прокладки
в каждом: ярусе должны быть сквозными, а стыковка их концов не должна
приходиться на промежутки между изделиями в ярусе. Количество ярусов, крепление
изделий в которых обязательно, зависит от отношения высоты изделия (в
транспортном положении) к длине участка, подкладки (прокладки), находящегося в
контакте с изделием. При отношении более 1,5 крепление выполняют во всех
ярусах, при отношении от 1,0 до 1,5 - во всех ярусах кроме нижнего, менее 1,0 -
в двух верхних ярусах. Длина штабеля (вдоль подкладок) должна быть не менее 0,6
его высоты при плавании судна в бассейнах разряда "Р" и 0,85 - в
бассейнах разряда «О».
Штабели узких изделий, у которых
длинная сторона (в плане) параллельна подкладкам, скрепляют в группы между
собой или с рядом расположенными штабелями широких изделий. Размер группы (в
плане) в направлении, перпендикулярном подкладкам, должен быть не менее 0,6
высоты штабеля для грузов в судах, плавающих в бассейнах разряда "Р"
и 0,85 для грузов, размещаемых в трюмах судов, плавающих в бассейнах разряда
«О». Изделия одного штабеля к изделиям рядом расположенного штабеля крепят в
верхних ярусах (на трети высоты штабеля).
Наклонно устанавливаемые изделия,
образующие узкие штабели, крепят (через каждые 3 изделия), к грузоподъемным
петлям изделий в рядом, размещенных штабелях. К узким штабелям, наклонно устанавливаемых
изделий относят штабели, у которых высота превышает расстояние между осями
подкладок в 2,2 и более раза для судов, плавающих в бассейнах разряда
"Р" в 1,2 и более раза для трюмных судов, плавающих в бассейнах
разряда «О».
При креплении изделий таврового
сечения и изделий, у которых отношение высоты к стороне основания, имеющей
наименьшую длину, превышает 2,5, для удерживания от случайного опрокидывания
следует применять оттяжные стропы или упоры, скрепляемые с конструкциями судна
или штабелями широких изделий.
2.22. Крепление изделий между собой
в штабеле выполняют многооборотными (штатными) средствами - стропами цепными
механизированными СМ1 и СМ2, стальным канатом со скобами и т.д., а также
разовыми средствами - устройством проволочного крепления (растяжек, увязок и
обвязок). Проволоку пропускают через грузоподъемные петли рядом расположенных
изделий и натягивают путем закрутки с помощью ломика и свайки. Диаметр
проволоки, количество ее нитей в креплении выбирают в соответствии с допускаемой
нагрузкой, приведенной в таблице 2.1., и учетом массы скрепляемых изделий, а
также условий плавания судна.
Таблица 2.1
В судах при плавании в
бассейнах разряда "Р" (коэффициент запаса крепления - 2,0, удельное
значение горизонтальной составляющей массы груза - 0,13) изделия массой до 4,8
т крепят растяжками из двух нитей проволоки диаметром:
4 мм - изделия массой до 2,1 т;
5 мм - изделия массой свыше 2,1 т
до 3,2 т;
6 мм - изделия массой свыше 3,2 т
до 4,8 т.
При плавании в бассейнах разряда
«О» (коэффициент запаса крепления - 2,0, удельное значение горизонтальной
составляющей массы груза - 0,3) изделия массой до 2,1 т крепят растяжками из
двух нитей проволоки диаметром:
4 мм - изделия массой до 1,0 т;
5 мм - изделия массой свыше 1,0 т
до 1,4 т;
6 мм - изделия массой свыше 1,4 т
до 2,1 т.
Допустимая нагрузка на растяжку
при этом соответствует вышеуказанной.
Если масса закрепляемых изделий
превышает приведенное значение, то количество нитей в растяжке или диаметр
проволоки варьируют, что определяется расчетным путем.
Пример
Определить количество нитей в
растяжке и их диаметр для случая крепления одиночного изделия массой 4 т, судно
плавает в бассейне разряда «О», коэффициент запаса крепления - 2,0, удельное
значение горизонтальной составляющей массы груза - 0,3.
Смещающая горизонтальная
составляющая массы груза равна 0,3´4000 = 1200 кгс.
Груз удерживается от смещения в
каждую, сторону двумя растяжками, тогда нагрузка на одну растяжку с учетом
коэффициента, запаса

По таблице 2.1. такой нагрузке
соответствуют растяжки:
из 4 нитей проволоки диаметром. 6
мм;
из 6 нитей проволоки диаметром 5
мм.
2.23. Выбор вариантов погрузки и
размещения ЖБИ в судне осуществляется на основе расчетов, выполняемых согласно
указаниям, настоящих ТУ.
Примеры размещения ЖБИ в судах
приведены в приложении
6.
2.24. Размещение контейнеров,
кассет и пакетов с ЖБИ производят в соответствии с Техническими условиями
погрузки и размещения тарно-штучных грузов в судах [6.6].
3. СКЛАДИРОВАНИЕ И ХРАНЕНИЕ ЖБИ НА
ОПЕРАТИВНЫХ СКЛАДАХ
3.1. ЖБИ, отгруженные в порты
отправления или перевалки автомобильным или железнодорожным транспортом, должны
быть размещены грузоотправителем в автомобилях (прицепах) и вагонах с
соблюдением зазоров и порядка крепления, необходимых для удобной строповки и
подъема груза (без повреждений автомобиля или вагона и железобетонных изделий),
согласно требованиям ГОСТ
13015.4-84.
3.2. ЖБИ, поступающие в порт, осматривает
представитель порта совместно с представителем грузоотправителя или
грузополучателя.
Запрещается принимать на склады
портов и к перевозке изделия, не достигшие отпускной прочности.
3.3. ЖБИ на причалах портов
нужно, по возможности, хранить в зонах, исключающих повторную внутрипортовую
перевалку изделий.
Перегрузка громоздких изделий
(массой более 16 т или длиной более 7 м), а также конструкций сложных форм
(балки подстропильные, балки подкрановые, фермы, колонны и т.п.) и изделий,
имеющих дефекты изготовления или повреждения, производится под руководством
ответственного производителя работ (сменного помощника начальника грузового
района или мастера перегрузочных работ).
К дефектным относятся изделия с
переломами, изломами, обнажающими арматуру каркаса, отколами, загнутыми или
незакрепленными грузоподъемными петлями, с необозначенными местами строповок и
опирания. Право признать изделие дефектным имеют начальник грузового района,
его сменные помощники или мастера перегрузочных работ в руководимых ими сменах.
Решение о дальнейшем
использовании дефектных изделий представитель грузовладельца обязан объявить в
течение суток.
Дефектные изделия перегружаются с
участием представителя грузовладельца.
3.4. При складировании ЖБИ
следует руководствоваться Грузовыми характеристиками изделий и условиями их
строповки и складирования, стандартами или техническими условиями на изделия
конкретных видов, а также требованиями настоящих ТУ.
3.5. ЖБИ следует хранить в
штабелях рассортированными по видам, типоразмерам, и маркам. Отдельные штабели
объединяют в группы. Зазоры между штабелями устанавливаются не менее 0,1 м.
Исходя из условий перегрузки,
хранения ЖБИ и Правил безопасности труда на перегрузочных работах в речных
портах [6.7]
между группами штабелей должны предусматриваться проходы не менее 1,0 м при
высоте штабеля до 1,2 м и не менее 2,0 м, при высоте штабеля более 1,2 м, а
также проезды: рабочие - 3,5 м, магистральные - 6,0 м.
3.6. ЖБИ следует укладывать
(устанавливать) на складе так, чтобы были видны маркировочные надписи и знаки.
3.7. Ширина зоны, примыкающей к
линии кордона, и допускаемая в ней нагрузка на 1 м2 полезной площади
от действия собственной массы ЖБИ не должна превышать значений, предусмотренных
проектом (паспортом) порта. Если ширина прикордонной зоны проектом (паспортом)
не установлена, то ее принимают равной 25 м. За пределами прикордонной зоны
нагрузка ограничивается несущей способностью покрытия.
3.8. На изделия, укладываемые на
складе, в межнавигационный период разрабатывается план размещения. На плане в
координатной системе обозначаются штабели ЖБИ по отдельным маркам и
направлениям.
3.9. Расстояние от штабеля ЖБИ до
наружно грани головки рельса железнодорожного пути предусматривается не менее
2,0 м при высоте укладки грузов до 1,2 м. (считая от головки рельса), а, при
большей высоте не менее 2,5 м. Расстояние от выступающих частей крана до
штабеля ЖБИ должно быть не менее 0,7 м.
4.
ТРЕБОВАНИЯ БЕЗОПАСНОСТИ
4.1. Перегрузочные и складские
операции с ЖБИ должны выполняться в соответствии с Правилами безопасности
труда, на перегрузочных работах в речных портах [6.7].
Рекомендациями по безопасному производству перегрузочных работ в речных портах
[6.8]
и ГОСТ
12.3.009-76 "Работы погрузочно-разгрузочные. Общие требования
безопасности".
Портовые рабочие и руководители
(производители) перегрузочных работ, занятые на перегрузочных и складских
операциях с ЖБИ, должны пройти специальную подготовку по технике безопасности и
обучены безопасным способам производства работ, а также применению
предохранительных приспособлений и страхующих средств.
Лицо, ответственное за безопасное
перемещение груза, может руководить работами по перегрузке и складированию ЖБИ
после изучения настоящих ТУ, а работники, ему подчиненные, допускаются к
соответствующим работам после инструктажа, по настоящим ТУ в части, их касающейся.
Со всем составом комплексных
бригад портовых рабочих необходимо проводить ежесменный инструктаж по
конкретным, правилам безопасного выполнения операций с каждым из типоразмеров
ЖБИ.
В районе причалов, перегружающих
ЖБИ, рекомендуется разместить щиты с наглядным изображением схем и методов
безопасного производства перегрузочных и складских работ.
4.2. Площадка под оперативное
хранение ЖБИ должна иметь плотную, выровненную поверхность с уклоном для отвода
поверхностных вод. Угол уклона, площадки не должен превышать 2°. В зимнее время
площадку следует очищать от снега и льда, посыпать песком.
Складские площадки необходимо
своевременно убирать и освобождать от бракованных изделий и их отходов, а,
также от металла, арматурных каркасов, обвязочной проволоки и другого
крепежного материала.
4.3. К площадке должны быть
проложены постоянные дороги с твердым покрытием.
4.4. Ширина проездов между
штабелями ЖБИ устанавливается в зависимости от габаритных размеров транспортных
средств и рядности движения.
Движение автомобилей должно
регулироваться в соответствии с Правилами дорожного движения, утвержденными в
установленном порядке. На проездах, как правило, организуется одностороннее
движение автомобилей.
4.5. На территории, занятой
оперативными складами ЖБИ, должны быть установлены: ограждения опасных зон;
указатели проездов и проходов; информационные указатели "Въезд",
"Выезд" и "Разворот". Указатели, предупредительные надписи
и ограждения должны быть ясно видимы в светлое и темное время суток.
4.6. При производстве перегрузочных
и складских работ в темное время суток освещенность рабочих зон должна
соответствовать нормам, действующим для речных портов Росречфлота. В нерабочее
время проходы и проезды
должны иметь освещенность не менее 1 лк, а подъездные пути - не менее 2 лк.
4.7. Указатели, плакаты и знаки,
а также источники света не должны мешать правильному восприятию сигналов,
установленных для машинистов локомотивов Правилами МПС, а для водителей
автомобилей - Правилами дорожного движения.
4.8. При обслуживании штабелей
ЖБИ в транспортных средствах (вагон, автомобиль, судно) и на складе следует
применять исправные переносные лестницы.
4.9. Формирование и размещение
штабелей ЖБИ на складе необходимо производить в соответствии с требованиями,
изложенными в разделах 1
и 3 настоящих
ТУ.
4.10. Высота штабелей ЖБИ при их
хранении на, складе определяется Грузовыми характеристиками и не должна
превышать пределов, установленных соответствующими стандартами или техническими
условиями на конкретные виды изделий.
4.11. Запрещается переносить ЖБИ
над людьми, надстройка ми, вагонами (если в них находятся люди), кабинами
транспортных средств.
Нахождение лиц, не принимающих,
непосредственное участие в перегрузочном процессе, в зоне действующего крана,
воспрещается.
Стропальщики после отстроповки
груза, или его строповки и проверки ее надежности обязаны отойти в безопасное
место.
4.12. Запрещается в целях
исключения опасных последствий от поломок ЖБИ, подвешенных на грузозахватном
устройстве и находящихся на высоте более 1 м от площадки, приближаться к грузу
на расстояние менее длины изделия.
Разворачивать ЖБИ (в случае
отсутствия дистанционного управления разворотом) следует с помощью шестов,
багров или оттяжек, когда груз находится на высоте не более 1 м от уровня
площадки, на которой находятся портовые рабочие.
4.13. Перегрузочные работы должны
выполняться только испытанными и промаркированными грузозахватными устройствами
соответствующей грузоподъемности. Применение случайных грузозахватных устройств
и стропов не допускается.
4.14. Запрещается применять
вместо грузозахватных устройств с уравнительными подвесками другие устройства,
не обеспечивающие равномерное распределение нагрузок на грузоподъемные петли
изделия.
4.15. Замена грузозахватного
устройства или схемы строповки, рекомендованных грузоотправителем и ранее
согласованных с портом, на устройство другой конструкции или другую схему может
быть допущена с согласия грузоотправителя.
4.16. Запрещается применение
грузозахватных устройств, не соответствующих требованиям действующих Правил
устройства и безопасной эксплуатации грузоподъемных кранов Госпроматомнадзора.
[6.9],
РТМ 212.0064-76 "Техника перегрузочная портовая. Требования
безопасности" [6.10]
и Правил технической эксплуатации перегрузочных машин в речных портах [6.11].
4.17. Строповку ЖБИ следует
производить в соответствии с установленной схемой за грузоподъемные петли. В
отдельных, оговоренных грузоотправителем, случаях разрешается осуществлять
строповку изделии в обхват (в специально обозначенных местах).
Запрещается производить строповку
ЖБИ в случайных местах и за выпуски арматурных каркасов.
4.18. Осмотр ЖБИ, подвешенных на
крюке крана, не допускается.
4.19. Перегрузку ЖБИ с дефектами,
могущими вызвать разрушение и обрыв изделий, производят по отдельным,
безопасным, схемам строповки,
4.20. Производство перегрузочных
операций с ЖБИ, не имеющими указаний об их массе и необходимых маркировочных
знаков для строповки, не разрешается.
4.21. Технологические карты составляются технологом,
порта по группам: ЖБИ, имеющим общие конструктивные и технологические
особенности перегрузки, хранения, - транспортировки.
5.
СТРОПОВКА ИЗДЕЛИЙ, ГРУЗОЗАХВАТНЫЕ УСТРОЙСТВА И ПРОИЗВОДСТВО ПЕРЕГРУЗОЧНЫХ
ОПЕРАЦИЙ
5.1. Перегрузка ЖБИ, как правило,
должна производиться грузозахватными устройствами (приспособлениями),
рекомендованными заводом-изготовителем.
5.2. Грузозахватные устройства
для перегрузки ЖБИ могут изготовляться централизованно грузоотправителем или
предприятиями речного транспорта, по рабочим, чертежам грузоотправителя, НПО
"Речпорт", порта или других проектных организаций.
Справочные данные по основным,
грузовым, устройствам приложения 9 настоящих ТУ приведены в приложении 7.
5.3. Допускается одновременный
групповой подъем и перегрузка, двух горизонтально перемещаемых изделий со
строповкой за все грузовые петли специальными многоветвевыми стропами с
противоударными разъединителями (рис. 5.1). Перегрузка двух изделий в два яруса
со строповкой только за петли нижнего изделия допускается в тех случаях, если
имеется специальное разрешение грузоотправителя.
5.4. Грузоподъемные
(строповочные) петли должны быть очищены от наплывов бетона или раствора
согласно требованиям ГОСТ
13015.0-83. Конструкция петель должна отвечать условиям перегрузки изделий
кранами порта. Грузовладелец обязан сообщить порту, что скоростные
характеристики портовых кранов ему известны.
5.5. Специальные грузозахватные устройства для
перегрузки ЖБИ (траверсы, строповочные устройства для беспетлевых изделий)
доставляет порту грузоотправитель. При разовых перевозках специальные
грузозахватные устройства следуют совместно с грузом и передаются
грузополучателю.

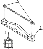
Рис. 5.1. Схемы строповки двух плит (а) и заводки одного из изделий в
подпалубное пространство (б) при восьмиветвеного стропа с противоударными
разделителями.
5.6. Допускаемое нормативное
усилие от собственного веса железобетонного, изделия, приходящееся при его
подъеме на одну грузоподъемную петлю, приведено в таблице
5.1.
Таблица 5.1
|
Диаметр
стержня петли, мм
|
Усилие на одну
петлю, кгс
|
|
При наличии
сгиба, петли (подъем двух и многоветвевыми стропами)
|
При отсутствии
сгиба петли (подъем при помощи траверсы)
|
|
6
|
100
|
150
|
|
8
|
300
|
450
|
|
10
|
700
|
1050
|
|
12
|
1100
|
1650
|
|
14
|
1500
|
2250
|
|
16
|
2000
|
3000
|
|
18
|
2500
|
3750
|
|
20
|
3100
|
4650
|
|
22
|
3800
|
5700
|
|
25
|
4900
|
7350
|
|
28
|
6100
|
9150
|
|
32
|
8000
|
12000
|
6.
ПЕРЕЧЕНЬ РУКОВОДЯЩИХ И НОРМАТИВНЫХ МАТЕРИАЛОВ
6.1. Технические условия погрузки и крепления. МПС СССР.
М., "Транспорт", 1988 г.
6.2.
Инструкция по составлению грузового плана, загрузки судов тарно-штучными и
лесными грузами, Главпорт Минречфлота РСФСР. М., "Транспорт", 1975 г.
6.3. Инструкции по погрузке и выгрузке для серийных
самоходных, сухогрузных судов. Сборник. Главпорт Минречфлота РСФСР. М.,
"Транспорт", 1978 г.
6.4. Инструкции по загрузке и разгрузке серийных
несамоходных сухогрузных судов. Сборник. Главпорт Минречфлота РСФСР. М.,
"Транспорт", 1989 г.
6.5. Технические условия размещения и крепления массовых
тяжеловесных и крупногабаритных грузов на судах МРФ, выходящих в морские
прибрежные районы. Л., "Транспорт", 1983 г.
6.6.
Технические условия погрузки и размещения в судах и на складах тарно-штучных
грузов. Управление портов и нерудных материалов Минречфлота РСФСР. М.,
"Транспорт", 1990 г.
6.7. Правила-безопасности труда, на перегрузочных работах в
речных портах. Минречфлот РСФСР. М., 1989 г.
6.8. Охрана труда на речном, транспорте. Рекомендации по
безопасному производству перегрузочных работ в речных портах. Управление
организации труда и заработной платы Минречфлота РСФСР. М.,
"Транспорт", 1987 г.
6.9. Правила устройства и безопасной эксплуатации
грузоподъемных кранов. Госгортехнадзор СССР. М., "Металлургия", 1983
г.
6.10. Техника перегрузочная портовая. Требования
безопасности. РТМ 212.0064-76. Главное управление портов Минречфлота РСФСР. Л.,
Ленгипроречтранс, 1977 г.
6.11. Правила технической эксплуатации перегрузочных машин
в речных портах. Главное управление портов Минречфлота РСФСР. Л.,
"Транспорт", 1983 г.
6.12. ГОСТ
2695-83. Пиломатериалы лиственных пород.
Технические условия.
6.13. ГОСТ
3282-74. Проволока стальная низкоуглеродистая
общего назначения.
6.14. ГОСТ
13015.0-83. Конструкции и изделия бетонные и
железобетонные сборные. Общие технические требования.
6.15. ГОСТ
13015.1-81. Конструкции и изделия бетонные и
железобетонные сборные. Правила, приемки.
6.16. ГОСТ
13015.2-81. Конструкции и изделия бетонные и
железобетонные. Правила маркировки.
6.17. ГОСТ
13015.4-84. Конструкции и изделия бетонные и
железобетонные. Правила транспортирования и хранения.
6.18. ГОСТ 14192-7.7. Маркировка грузов.
6.19. ГОСТ 18105-86.
Бетоны. Правила контроля прочности.
6.20. ГОСТ 24454-80. Пиломатериалы хвойных пород. Размеры.
6.21. ГОСТ
12.3.009-76. Работы погрузочно-разгрузочные.
Общие
требования безопасности.
Приложение 1
|
Наименование изделия
|
Размеры, мм
|
Масса, т
|
Способ укладки изделий в штабель
|
Предельное количество ярусов в штабеле или его высота
|
Удельная нагрузка от штабеля изделий, тс/м2
|
Источник информации
|
|
длина
|
ширина
|
высота
толщина
|
на складе
|
на судне
|
|
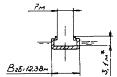
1. Балки подкрановые
|
11950-5950
|
650
600
|
1200
800
|
10,3
3,5
|
На ребро
То же
|
На ребро
То же
|
2
2
|
2,65
2,0
|
Чертежи типовых строительных конструкций» изделий и узлов здании
и сооружений. Серия 1.426.1-4. Выпуск 1,2,3. СК-3 ЦИПТ Москва, 1984г.
|
|
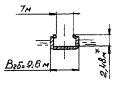
2. Балки подстропильные
|
17950-11950
|
300
700
|
1490
1700
|
13,1
11,5
|
На ребро
То же
|
На ребро
То же
|
1
1
|
2,4
1,47
|
Номенклатурный сборник железобетонных и бетонных изделий,
выпускаемых предприятиями Главмосстроя
|
|
3. Балки обвязочные железобетонные для зданий промышленных
предприятий
|
|
|
|
|
|
|
|
|
.ГОСТ
24893.0-81 -
ГОСТ
24893.2-81
|
|
прямоугольного сечения
|
5950
|
250
|
585
|
2,2
|
На ребро
|
На ребро
|
3
|
4,4
|
|
с консольным выпуском
|
5950
|
380
|
585
|
2,45
|
То же
|
То же
|
3
|
3,2
|
|
4. Кабины санитарно-технические железобетонные
|
2730-940
|
1820-1400
|
2400-2740
|
3,8-1,4
|
Вертикальный
|
Вертикальный
|
I
|
0,8-1,1
|
ГОСТ
18048-80
|
|
5. Конструкции и изделия железобетонные для шахт лифтов жилых
зданий:
|
|
|
|
|
|
|
|
|
ГОСТ
17538-82
|
|
нижний блок
|
2580-1580
|
2680-1580
|
1400
|
3,3-2,5
|
Вертикальный
|
Вертикальный
|
2
|
0,9-2,0
|
|
средний блок
|
2580-1580
|
2680-1530
|
2980-2780
|
6,5-4,5
|
То же
|
То же
|
1
|
1,8-1,9
|
|
верхний блок
|
2580-1580
|
2680-1580
|
930
|
3,3-1,6
|
-«-
|
-«-
|
2
|
0,9-1,3
|
|
плита
перекрытий
|
2780-1780
|
2880-1780
|
200
|
2,9-1,7
|
Плашмя
|
Плашмя
|
8
|
3,26-4,3
|
|
6. Конструкции железобетонные подпорных стен:
|
|
|
|
|
|
|
|
ГОСТ
26815-86
|
|
лицевые плиты
|
5400-1500
|
2980
|
300-130
|
9,4-1,5
|
Плашмя
|
Плашмя
|
Не более 2,5м 4,0-4.,7
|
|
фундаментные плиты
|
2980-1480
|
4800-1500
|
1100-500
|
7,7-2,9
|
Плашмя
|
Плашмя
|
Не более 2,5м 0,98-2,47
|
|
7. Блоки для стен подвалов
|
2380
|
300-600
|
580
|
0,97-1,95
|
Горизонтальный
|
Горизонтальный
|
3
|
4,1
|
ГОСТ
13579-78
|
Продолжение
прилож. 1
|
Наименование изделия
|
Размеры, мм
|
Масса, т
|
Способ изделий в укладки штабель
|
Предельное количество ярусов в штабеле или его высота
|
Удельная нагрузка от штабеля изделии, тс/м2
|
Источник информации
|
|
длина
|
ширина.
|
высота
толщина
|
на складе
|
на судне
|
|
8. Колонны железобетонные прямоугольного сечения (колонны
крайних рядов)
|
9300-15600
|
380
|
600
|
5,2-13,0
|
Горизонтальный
|
Горизонтальный
|
3
|
2,1-4,3
|
Чертежи типовых строительных конструкций, изделий и узлов зданий
и сооружений. Серия 1.424.1-5. Выпуск 0, 1, 2; .,4, 5 СК-3. ЦИТП, Москва,
1984г. и ТУ 400-1-70-85 Главмоспромстрожматериалы
|
|
9. Колонны-железобетонные прямоугольного сечения (колонны
средних рядов)
|
9300-15600
|
600
|
900
|
7,0-13,8
|
Горизонтальный
|
Горизонтальный
|
3
|
3,75-4,4
|
То же
|
|
10. Колонны железобетонные прямоугольного сечения для
прямоугольного и торцового фахверка
|
3700-1750
|
300-600
|
300-400
|
0,8-9,6.
|
Горизонтальный
|
Горизонтальный
|
3
|
2,2-4,2
|
Чертежи типовых строительных конструкций, изделий и узлов зданий
и сооружений. Серия 1.427.1-3. Выпуск 0,1,2. СК-3. ЦИТП. Москва, 1984г.
|
|
11. Колонны верхние для установок балок и ферм
|
|
|
|
|
|
|
|
|
Номенклатурный сборник железобетонных и бетонных изделий,
выпускаемых предприятиями Главмосстроя
|
|
рядовые
|
7700-5300
|
400
|
400
|
3,4-2,2
|
Горизонтальный
|
Горизонтальный
|
3
|
3,2-3,0
|
|
|
фасадные
|
7700-5300
|
400
|
400
|
3,4-2,2
|
Горизонтальный
|
Горизонтальный
|
3
|
3,2-3,0
|
|
|
12. Колонны рядовые одноэтажные
|
3600-2400
|
400
|
400
|
1,6-1,00
|
Горизонтальный
|
Горизонтальный
|
3
|
3,3-3,1
|
То же
|
|
13. Колонны фасадные одноэтажные
|
7200-4200
|
.400
|
400
|
3,2-1,7
|
Горизонтальный
|
Горизонтальный
|
3
|
3,3-3,0
|
-«-
|
|
14. Колонны верхние рядовые
|
6460-1660
|
400
|
400
|
2,4-0,7
|
Горизонтальный
|
Горизонтальный
|
3
|
2,9-3,0
|
-«-
|
|
15. Колонны верхние фасадные
|
6460-1660
|
400
|
400
|
2,4-0,7
|
Горизонтальны!
|
Горизонтальный
|
3
|
2,9-3,0
|
-«-
|
|
16. Лестничные марши плоские без фризовых ступеней типа ЛМ
|
2720-3030
|
1050-1200
|
-
|
1,33-1,70
|
Плашмя ступенями вверх
|
Плашмя ступенями вверх
|
Не более 2,5м 4,65-4,67
|
ГОСТ
9818-85
|
|
17. Лестничные марши ребристые с фризовыми ступенями типа ЛМФ
|
3913-4946
|
1200-1650
|
-
|
1,30-2,23
|
Плашмя ступенями вверх (допускается на ребро)
|
Плашмя ступенями вверх (допускается на ребро)
|
Не более 2,5м 2,73-2,76
|
То же
|
Продолжение
прилож. 1
|
Наименование изделия
|
Размеры, мм
|
Масса, т
|
Способ изделий укладки в штабель
|
Предельное количество ярусов в штабеле или его высота
|
Удельная нагрузка от штабеля изделии, тс/м2
|
Источник информации
|
|
длина
|
ширина
|
высота толщина
|
на складе
|
на судне
|
|
18. Лестничные марши ребристые с двумя полуплощадками типа
ЛМП
|
5650-5980
|
1150
|
1400-1800
|
2,25-2,50
|
На ребро
|
На ребро
|
2
|
0,34-0,36
|
ГОСТ
9818-85
|
|
19. Лестничные марши ребристые без нижней полуплощадки типа ЛМП
|
4475-4790
|
1150
|
1400-1800
|
1,83-2,15
|
На ребро
|
На ребро
|
2
|
0,35-0,39
|
То же
|
|
20. Лестничные площадки
|
2200-2980
|
1300-2200
|
-
|
1,48-3,03
|
Плашмя
|
Плашмя
|
8
|
3,67-4,13
|
-«-
|
|
21. Лестничные площадки
|
2200-2500
|
1300-1900
|
-
|
1,03-1,55
|
Плашмя
|
Плашмя
|
10
|
3,26-3,6
|
-«-
|
|
22. Лестничные площадки
|
2500-3400
|
990-1290
|
-
|
0,90-1,73
|
Плашмя
|
Плашмя
|
10
|
3,64-3,94
|
-«-
|
|
23. Лотковые перекрытия
|
2980
|
2610-1080
|
1140-540
|
-
|
Горизонтальный
|
Горизонтальный
|
2
|
-
|
Чертеж П.0. "Мосспецжелезобетон"
|
|
24. Лотковые днища
|
2980
|
2620-1090
|
220-180
|
-
|
Горизонтальный
|
Горизонтальный
|
6
|
-
|
То же
|
|
25. Панели железобетонные сплошные для перекрытий жилых и
общественных зданий
|
2980
|
4780-2380
|
140
|
4,87-2,83
|
Плашмя
|
Плашмя
|
10
|
2,03-2,39
|
ГОСТ
12767-80 "Сборник номенклатурный КТБ
Мосоргстройматериалы
|
|
26. Плиты железобетонные многопустотные для перекрытий зданий
и сооружений
|
|
|
|
|
|
|
|
|
ГОСТ
9561-76
|
|
общественные здания с несущими стенами
|
11980-3580
|
3580-1190
|
300-200
|
4,5-1,2
|
Плашмя
|
Плашмя
|
8-10
|
0,84
|
|
общественные каркасные здания
|
11760-2760
|
1490-1190
|
300-220
|
4,1-1,1
|
Плашмя
|
Плашмя
|
8-10
|
2,34-2,67
|
|
производственные здания промышленных предприятий
|
5650
|
2980-1190
|
220
|
4,6-3,9
|
Плашмя
|
Плашмя
|
10
|
2,74-5,8
|
|
27. Панели стеновые внутренние бетонные и железобетонные для
жилых и общественных зданий
|
5800-4000
|
140
|
2620
|
4,82-3,60
|
В кассетах вертикально или наклонно
|
Наклонно
|
1
|
4,86-5,29
|
ГОСТ
12504-80 и Сборник номенклатурный КТБ
Мосоргстройматериалы
|
Продолжение
прилож. 1
|
Наименование изделия
|
Размеры, мм
|
Масса, т
|
Способ укладки изделий в штабель
|
Предельное количество ярусов в штабеле или его высота
|
Удельная нагрузка от штабеля изделий, тс/м2
|
Источник информации
|
|
длина
|
ширина
|
высота
толщина
|
на складе
|
на судне
|
|
28. Панели стеновые наружные бетонные и железобетонные для жилых
и общественных зданий:
|
|
|
|
|
|
|
|
|
ГОСТ
11024-84 и Сборник номенклатурный КТБ
Мосоргстройматериалы
|
|
наружные цокольные
|
5585-2990
|
280
|
2370
|
5,79-3,06
|
В кассетах вертикально или наклонно
|
Наклонно
|
1
|
3,40-3,45
|
|
рядовые цокольные
|
6590-1190
|
340
|
3580-2380
|
15,65-4,26
|
В кассетах вертикально или наклонно
|
Наклонно
|
1
|
6,43-9,68
|
|
29. Панели перегородок железобетонные для зданий промышленных и
сельскохозяйственных предприятий
|
5980-2540
|
2980-2785
|
80
|
0,7-0,3
|
В кассетах вертикально или наклонно к пирамиде
|
Наклонно к пирамиде
|
1
|
0,04-0,4
|
ГОСТ
25098-87
|
|
5930-2980
|
1785
|
80
|
0,4-0,1
|
1
|
0,04-0,4
|
|
5930-2385
|
1485-1185
|
80
|
0,3-0,1
|
1
|
0,04-0,4
|
|
30. Плиты плоские сплошные железобетонные:
|
|
|
|
|
|
|
|
|
ГОСТ
25697-83 и Сборник номенклатурный железобетонных и бетонных изделий,
выпускаемых предприятиями Главмосстроя
|
|
для балконов
|
|
|
|
|
|
|
|
|
|
балочные
|
6580-4180
|
1180
|
220
|
4,0-2,5
|
Плашмя
|
Плашмя
|
10
|
5,07-5,15
|
|
консольные
|
7830-6130
|
1930
|
240
|
5,3-4,2
|
Плашмя
|
Плашмя
|
10
|
3,4-3,55
|
|
для лоджий
|
|
|
|
|
|
|
|
|
|
балочные
|
4180-2980
|
1080
|
125
140
|
1,45-1,05
|
Плашмя
|
Плашмя
|
12
|
1,47-3,27
|
|
консольные
|
6480-5900
|
1190
|
220
|
2,41-2,15
|
Плашмя
|
Плашмя
|
10
|
3,06-3,11
|
|
31. Плиты железобетонные предварительно напряженные для аэродромных
покрытий типа:
|
|
|
|
|
|
|
|
|
ГОСТ
25912.0-83 - ГОСТ
25912.3-83
|
|
ПАГ-14
|
6000
|
2000
|
140
|
4,2
|
Плашмя
|
Плашмя
|
10
|
3,5
|
|
ПАГ-18
|
|
|
180
|
5,4
|
Плашмя
|
Плашмя
|
10
|
4,5
|
|
32. Плиты железобетонные для покрытий городских дорог типа П
|
6000-1750
|
3750-1500
|
170-140
|
7,85-1,03
|
Плашмя
|
Плашмя
|
8-10
|
3,49-3,54
|
ГОСТ
21924.0-84 - ГОСТ
21924.3-84
|
|
33. Плиты перекрытий железобетонные для жилых зданий
|
7200-1800
|
6600-1000
|
220-120
|
8,7-0,8
|
В кассетах вертикально (допускается горизонтально)
|
Плашмя
|
8-10
|
1,46-4,4
|
ГОСТ
26434-85
|
Продолжение
прилож. 1
|
Наименование изделия
|
Размеры, мм
|
Масса, т
|
Способ изделий укладки в штабель
|
Предельное количество ярусов в штабеле или его высота
|
Удельная нагрузка от штабеля изделий, тс/м2
|
Источник информации
|
|
длина
|
ширина
|
высота толщина
|
на складе
|
на судне
|
|
34. Плиты железобетонные ребристые предварительно напряженные
размерами 6 ´ 3м для
покрытий производственных зданий
|
5970
|
2980
|
300
|
3,60-1,75
|
Плашмя
|
Плашмя
|
7
|
0,7-1,4
|
ГОСТ 22701.0-77 - ГОСТ 22701.5-79
|
|
35. Плиты железобетонные ребристые предварительно напряженные
размерами 6´3 м под
нагрузки свыше 9,81 кПа (1000 кгс/м2) для покрытий
производственных зданий
|
5970
|
2980
|
305
|
2,9
|
Плашмя
|
Плашмя
|
7
|
1,15
|
ГОСТ 22701.6-79 и ГОСТ 22701.0-77
|
|
36. Плиты железобетонные ребристые предварительно напряженные
размерами 6´3 м для
покрытий производственных зданий. Плиты типа ПФ с проемами 1,5´1,7 м
|
5970
|
2980
|
308-300
|
2,45-2,2
|
Плашмя
|
Плашмя
|
7
|
0,87-0,96
|
ГОСТ 22701.7-81 и ГОСТ 22701.0-77
|
|
37. Плиты перекрытий железобетонные ребристые высотой 400 мм
для производственных зданий промышленных предприятий
|
5950-5050
|
12985-740
|
400
|
4,73-1,37
|
Плашмя
|
Плашмя
|
5.
|
1,33-1,83
|
ГОСТ
27215-87
|
|
38. Плиты покрытий железобетонные для зданий предприятий:
предварительно напряженные
|
|
|
|
|
|
|
|
|
ГОСТ
28042-89
|
|
с верхней плоской (горизонтальной или двускатной
поверхностью)
|
5970
|
2980-1480
|
300-250
|
2,65-1,54
|
Плашмя
|
Плашмя
|
7-8
|
1,04-1,39
|
|
11960
|
2980
|
450
|
5,4
|
То же
|
То же
|
4
|
0,6
|
|
17940
|
2960
|
600
|
6,5
|
-«-
|
-«-
|
3
|
0,36
|
|
со сводчатой верхней полостью (плиты-оболочки)
|
17960
|
2980
|
150
|
5,3
|
-«-
|
-«-
|
12
|
1,18
|
|
с ненапрягаемой арматурой:
|
|
|
|
|
|
|
|
|
|
ребристые
|
2990
|
495
|
140
|
0,44
|
Плашмя
|
Плашмя
|
12
|
0,8
|
|
|
1490
|
550
|
250
|
0,23
|
То же
|
То же
|
12
|
3,15
|
|
|
5970
|
260
|
|
1,2
|
-«-
|
-«-
|
10
|
3,65-4,5
|
|
|
|
|
|
0,7
|
|
|
|
|
|
плоские
|
750
|
500
|
40
|
0,55
|
-«-
|
-«-
|
12
|
-
|
|
|
600
|
400
|
|
|
|
|
|
|
Продолжение
прилож. 1
|
Наименование изделия
|
Размеры, мм
|
Масса т
|
Способ укладки изделий в штабель
|
Предельное количество ярусов в штабеле или его высота
|
Удельная нагрузка от штабеля изделий, тс/м2
|
Источник информации
|
|
длина
|
ширина
|
высота толщина
|
на складе
|
на судне
|
|
39. Плиты подоконные железобетонные:
|
|
|
|
|
|
|
|
|
ГОСТ
6785-80
|
|
для жилых, общественных и вспомогательных зданий
|
2300-700
|
450-150
|
45
|
0,142-0,012
|
На
нелицевое ребро лицевыми поверхностями одно к другому
|
Контейнер
|
Контейнер
|
|
для
производственных зданий
|
2200-300
|
500-100
|
35
|
0,080-0,003
|
|
40 Плиты парапетные
железобетонные для производственных зданий
|
|
|
|
|
|
|
|
|
ГОСТ
6786-80
|
|
рядовые
|
1490
990
|
400-600
400-600
|
60-100
60-100
|
0,099-0,180
0,066-0,120
|
1.
В штабелях плашмя лицевой поверхностью вверх
|
1.
Плашмя лицевой поверхностью вверх
|
10
|
1,66-2,01
|
|
2.
На продольное ребро при наличии спец. подставки
|
2.
На продольное ребро при наличии спец. подставки
|
10
|
1,66-2,02
|
|
41. Плиты железобетонные для покрытия трамвайных путей:
|
|
|
|
|
|
|
|
|
ГОСТ
19231.0-83 - 19231.1-83
|
|
для путей с деревянными шпалами
|
2070-1390
|
1400-680
|
120-100
|
0,88-0,23
|
Плашмя
|
Плашмя
|
9-12
|
2,7-3,0
|
|
для путей с железобетонными шпалами
|
2070
1390
|
1400
680
|
120
100
|
0,78
0,20
|
Плашмя
Плашмя
|
Плашмя
Плашмя
|
9-
12
|
2,8
2,2
|
|
для путей с деревянными и с железобетонными шпалами
|
740
|
680
|
80
|
0,10
|
Плашмя
|
Плашмя
|
18
|
2,6
|
|
42. Прогоны железобетонные для покрытий зданий промышленных и
сельскохозяйственных предприятий
|
5970
|
220-160
|
330-300
|
0,4-0,6
|
Горизонтальный
|
Горизонтальный
|
Не
более 2 м.
Изделие
требует инвентарных прокладок
|
-
|
ГОСТ
26992-86
|
|
43 Ригели легкого каркаса для колонн 400´400 мм
|
|
|
|
|
|
|
|
|
Сборник
номенклатурный железобетонных и бетонных изделий, выпускаемых предприятиями
Главмосстроя
|
|
рядовые
|
8560-1360
11560
|
400
500
|
600-450
920-900
|
4,2-0,4
10,5-10,3
|
Горизонтальный
То же
|
Горизонтальный
То же
|
2
2
|
1,5-2,4
3,5-3,6
|
|
фасадные
|
8560-1360
|
690
|
480
|
6,3-0,7
|
-«-
|
-«-
|
2
|
1,5-2,1
|
|
коридорные
|
3160-1360
|
400
|
300
|
0,6-0,3
|
-«-
|
-«-
|
2
|
0,9-1,1
|
Продолжение
прилож. 1
|
Наименование изделия
|
Размеры, мм
|
Масса т
|
Способ укладки изделий в штабель
|
Предельное количество ярусов в штабеле или его высота
|
Удельная нагрузка от штабеля изделий, тс/м2
|
Источник информации
|
|
длина
|
ширина
|
высота
толщина
|
на складе
|
на судне
|
|
44. .Сваи забивные железобетонные:
|
|
|
|
|
Горизонтальный острием в одну сторону
|
Горизонтальный острием в одну сторону
|
|
|
ГОСТ 19804.0-78
|
|
цельные сплошного квадратного сечения с ненапрагаемой
арматурой
|
12000-3000
|
300
|
300
|
2,73-0,70
|
5
|
0,39-0,8
|
ГОСТ 19804.1-79
|
|
16000-8000
|
350
|
350
|
4,95-4,25
|
4
|
3,54-6,1
|
ГОСТ 19804.1-79
|
|
20000-13000
|
400
|
400
|
6,45-5,25
|
4
|
3,23-4,04
|
То же
|
|
цельные сплошного квадратного сечения с напрягаемой
арматурой
|
15000-3000
|
300
|
300
|
3,40-1,70
|
То же
|
То же
|
5
|
3,78-9,45
|
ГОСТ
19804.2-79
|
|
20000-8000
|
350
|
350
|
6,18-2,50
|
-«-
|
-«
|
4
|
3,53-3,58
|
То же
|
|
20000-13000
|
400
|
400
|
8,05-5,26
|
-«-
|
-«
|
4
|
4,03-4,05
|
-«
|
|
квадратного сечения без поперечного армирования ствола
|
6000-5000
|
250
|
250
|
0,95-0,80
|
-«-
|
-«-
|
6
|
3,8-3,9
|
ГОСТ
19804.4-78
|
|
9000-3000
|
300
|
300
|
2,50-0,70
|
-«-
|
-«-
|
5
|
3,9-4,63
|
То же.
|
|
квадратного сечения с круглой полостью
|
12000-3000
|
300
|
300
|
2,70-0,52
|
-«-
|
-«-
|
5
|
2,89-2,92
|
ГОСТ
19804.3-80
|
|
12000-3000
|
400
|
400
|
3,02-0,75
|
-«-
|
-«-
|
4
|
2,5-2,52
|
То же
|
|
45. Фундамента железобетонные сборные под колонны
сельскохозяйственных зданий
|
1800-900
|
1800-900
|
90O-65O
|
3,4-0,9
|
Горизонтальный
|
Горизонтальный
|
2 на складе
|
0,8-2,2
|
ГОСТ-
24022-80
|
|
1 в судне
|
|
46. Фундамента железобетонные сборные под-колонна каркаса
межвидового применения для .многоэтажных зданий
|
2100-1200
|
2100-1200
|
1050-750
|
5,8-1,9
|
Горизонтальный
|
Горизонтальный
|
2 на складе
|
1,3-2,6
|
ГОСТ
24476-80
|
|
1 в судне
|
|
47. Фермы стропильные, железобетонные безраскосные
|
23940
17340
|
280
|
3300
3000
|
15,5
8,38
|
В кассете
|
В. кассете
|
1
|
-
|
ГОСТ 20213-74
|
|
48. Утяжелите железобетонные сборные кольцевые типа УТК для
магистральных трубопроводов
|
2400-1200
|
2080-660
|
1010-315
|
4,12-0,23
|
Горизонтальный
|
Горизонтальный
|
-
|
1,16-3,3
|
ТУ 102-265-81 Министерство строительства предприятий нефтяной и
газовой промышленности
|
|
49. Плиты анкерные прямоугольного сечения марки:
|
|
|
|
|
|
|
|
|
Типовая документация на строительные системы, изделия и узды.
Серия 3.505.1-15. Причальные набережные высотой от 4 до 15 м, Выпуск 2.
Гипроречтранс ТУ. 212 РСФСР 195-88 *;. МРФ
|
|
с 1АП 10.2 по
1АП 30.4
|
1000-3000
|
1500
|
150-400
|
0,58-4,5
|
Плашмя
|
Плашмя
|
4-9
|
3,42-4s0
|
|
с 2АН 10.2 по
2АП 30.4
|
1000-3000
|
3000
|
150-400
|
1,1-9,0
|
Плашмя
|
Плашмя
|
4-9
|
3,3-4,0
|
Продолжение
прилож. 1
|
Наименование изделия
|
Размеры, мм
|
Масса, т
|
Способ укладки изделий в штабель
|
Предельное количество ярусов в штабеле или его высота
|
Удельная нагрузка от штабеля изделий, тс/м2
|
Источник информации
|
|
длина
|
ширина
|
высота толщина
|
т
|
на складе
|
на судне
|
|
50. Плиты ниш
|
2150
|
1000-2000
|
200
|
1,1-2,2
|
Плашмя
|
Плашмя
|
8
|
3,52-4,09
|
Типовая документация на строительные системы, изделия и узлы зданий
и сооружений. Серия 3.505.1-15. Причальные набережные высотой от 4 до 15м
Выпуск 2. Гипроречтранс
|
|
51. Плиты марки П-1, П-11 П-13, П-14, П-15
|
10000-7500
|
2845-2780
|
250-150
|
16,5-8,1
|
Плашмя
|
Плашмя
|
8
|
3,07-5,08
|
Типовой проект 3.505.1-18.2 Гипроречтранс
|
|
52. Плита дорожная железобетонная марки ПД 32-12
|
3220
|
1220
|
160
|
1,5
|
Плашмя
|
Плашмя
|
7
|
2,7
|
Чертеж № 21882-ГР Гипроречтранс
|
|
53. Железобетонные балки марки Б-1 и Б-2
|
6286
|
2000
|
450
|
7,7
|
Плашмя
|
Плашмя
|
4
|
2,44
|
Чертеж № 218531.01..000 Гипроречтранс
|
|
54. Плита покрытия откосов марки: с 1П010 по 4П025
|
3000
|
2500
2000
|
100-250
|
1,9-3,8
|
Плашмя
|
Плашмя
|
10-16
|
4,05-6,33
|
Типовая документация на строительные системы, изделия и узлы
зданий и сооружений. Серия 3.505.1-16 "Крепление откосов судоходных рек
и каналов железобетонными плитами". Выпуск I, Гипроречтранс
|
|
55. Шпунт тавровый железобетонный марки ШТВ
|
10450
|
1630
|
400-800
|
7,50-11,5
|
Горизонтальный
|
Горизонтальный
|
3-5
|
2,03-2,20
|
Типовая документация на строительные системы изделия и узлы
зданий и сооружений. Серия 3.505.I-I5 "Причальные набережные высотой от 4 до 15 м".
Выпуск 2, Гипроречтранс
|
|
56. Элементы вертикальные предварительно напряженные для монтажа
в воду собранными блоками
|
6500-10500
|
3130
|
400-800
|
10,8-30,0
|
Горизонтальный
|
Горизонтальный
|
2
|
1,06-1,82
|
То же, "Причальные набережные высотой от 4 до 15 м".
Выпуск I.
|
|
|
|
|
|
|
|
|
|
|
|
Продолжение
прилож. 1
|
Наименование изделия
|
Размеры, мм
|
Масса, т
|
Способ укладки изделий в штабель
|
Предельное количество ярусов в штабеле или его высота
|
Удельная нагрузка от штабеля изделий, тс/м2
|
Источник информации
|
|
длина
|
ширина
|
высота толщина
|
на складе
|
на судне
|
|
57. Шпунт прямоугольный предварительно напряженный
|
11000-18000
|
500
|
230-350
|
3,5-8,0
|
Горизонтальный
|
Горизонтальный
|
4
|
2,5-3,5
|
Типовая документация на строительные системы, изделия и
узлы зданий и сооружений. Серия 3.505.I-15. Причальные набережные высотой от 4 до 15 м. Выпуск I. Гипроречтранс
|
|
58. Элемент вертикальный предварительно напряженный
|
6500-12500
|
1580
|
400-800
|
5,3-14,8
|
Горизонтальный
|
Горизонтальный
|
3-5
|
2,6-3,25
|
То же
|
|
59. Плиты фундаментные для монтажа насухо
|
4000-12000
|
3090
|
300-800
|
8,0-35,5
|
Горизонтальный
|
Горизонтальный
|
1
|
0,6-0,9
|
Типовая документация на строительные системы, изделия и узлы
зданий и сооружений. Серия 3.505.I-I5. Причальные
набережные высотой от 4 до 15 м. Выпуск. 2.
|
|
60. Сваи железобетонные прямоугольного сечения марки с СВ-35´30 по С12-35´30
|
6300-12300
|
300
|
350
|
1,63-3,2
|
Горизонтальный
|
Горизонтальный
|
4
|
3,4
|
ТУ .212 РСФСР, 197-88 МРФ
|
|
61. Балки подкрановые марок БК I, БК I-I
|
12500
|
1000
|
400
|
7,5
|
Горизонтальный
|
Горизонтальный
|
3
|
1,8
|
Черт. № № 3.505.9-17.1.010 лист 1 и 2 и
3.505.9-17.1-000Т0,
Гипроречтранс
|
|
62. Упоры марок У1 и У-2
|
5057
|
450
|
550-750
|
3,1-4,3
|
Горизонтальный
|
Горизонтальный
|
3
|
4,04-5,6
|
Черт.№ №
3.505.1-16.1 34000
3.505.1-16.1 35000
3.505.I1-16.1 000Т0,
Гипроречтранс
|
Продолжение
прилож. 1
|
На именование изделия
|
Размеры, мм
|
Масса, т
|
Способ укладки изделий в штабель
|
Предельное количество ярусов в штабеле
|
Удельная нагрузка от штабеля изделий, тс/м2
|
Источник информации
|
|
длина
высота
|
диаметр
наружный
|
Диаметр
внутренний
толщина
|
на складе
|
на судне
|
|
63. Опоры железобетонные высоковольтно-сигнальных линий
автоблокировки железных дорог
|
11100
|
335
|
170
|
0,9
|
Горизонтальный
|
Горизонтальный
|
5
|
1,2
|
ГОСТ
22131-76
|
|
10100
|
320
|
170
|
0,7
|
Горизонтальный
|
Горизонтальный
|
5
|
0,94
|
|
64. Изделия железобетонные для смотровых колодцев водопроводных
и канализационных сетей
|
|
|
|
|
|
|
|
|
ГОСТ
8020-80
|
|
стеновые кольца
|
1190-290
|
2200-840
|
2000-600
|
1,96-0,13
|
Вертикальный
|
Вертикальный
|
2
|
|
|
|
плита днища
|
-
|
2500-1500
|
120-100
|
1,47-0,44
|
Плашмя
|
Плашмя
|
-
|
-
|
|
|
плита
перекрытия
|
-
|
2200-1160
|
150
|
50
|
1,13
0,25
|
То же
|
То же
|
-
|
-
|
|
|
кольцо опорное
|
-
|
840
|
-/70
|
0,050
|
-«-
|
-«-
|
|
плита опорная
|
-
|
1300
|
-/150
|
0,8
|
-«-
|
-«-
|
|
65. Стойки железобетонные центрифугированные для опор
высоковольтных линий электропередачи:
|
|
|
|
|
|
|
|
|
ГОСТ
22687.0-85 - 22687.3-85
|
|
конические
|
26000
|
650-410
|
504-280
|
7,1-6,7
|
Горизонтальный
|
Горизонтальный
|
5
|
2,1-2,9
|
|
цилиндрические
|
26400-20000
|
560
630
|
440
|
6,8
|
Горизонтальный
|
Горизонтальный
|
5
|
2,29-2,69
|
|
|
66. Трубы бетонные безнапорные:
|
|
|
|
|
|
!
|
|
От схемы укладки
|
ГОСТ 20054-82
|
|
раструбные
|
2110-1050
|
1210-150
|
-
|
2,004
2,9
|
Горизонтальный
|
Горизонтальный
|
7-3
|
|
фальцовые
|
2055-1525
|
1010-410
|
-
|
1,28 2,2
|
Горизонтальный
|
Горизонтальный
|
7-3
|
|
67. Трубы железобетонные напорные виброгидропрессованные
|
5225
|
1600
|
-
|
8,2
|
Горизонтальный
|
Горизонтальный
|
2
|
От схемы укладки
|
ГОСТ
12586.0-83
|
|
5185
|
500
|
-
|
1,32
|
4
|
|
|
|
|
|
|
|
|
|
|
|
Продолжение
прилож. 1
|
Наименование
|
Размеры, мм
|
Масса, т
|
Способ изделий укладки в штабель
|
Удельная нагрузка от штабеля изделий, тс/м2
|
Источник информации
|
|
длина
высота
|
диаметр наружный
|
диаметр
внутренний
толщина
|
на складе
|
на судне
|
|
68. Трубы железобетонные безнапорные:
|
|
|
|
|
|
|
|
ГОСТ
6482-88
|
|
Т - цилиндрические раструбные со стыковыми соединениями.
|
5100
|
400-1000
|
500-1200
|
0,95-4,8
|
Горизонтальный
|
Горизонтальный
|
4
|
-
|
|
1200
|
1420
|
6,0
|
То же
|
То же
|
3
|
-
|
|
1400-1600
|
1620-1840
|
7,0-8,7
|
-«-
|
-«-
|
2
|
-
|
|
ТП - цилиндрические раструбные с подошвой
|
5000
|
1000
|
1230-1450
|
5,5-7,3
|
Горизонтальный
|
Горизонтальный
|
3
|
|
|
1200
|
|
|
1400-1600
|
1840-2280
|
8,8-10,5
|
То же
|
То же
|
2
|
-
|
|
4500
|
2000
|
2260
|
12,5
|
-«-
|
-«-
|
2
|
-
|
|
3000
|
2400
|
2700
|
12,0
|
-«-
|
-«-
|
2
|
-
|
|
ТБ - цилиндрические раструбные с упорным буртиком на
стыковой поверхности
|
5000
|
400-1000
|
684-1498
|
0,95-4,8
|
Горизонтальный
|
Горизонтальный
|
4
|
-
|
|
1200
|
1420
|
6,3
|
То же
|
То же
|
3
|
-
|
|
1400-1600
|
1620
1840
|
7,3-9,0
|
-«-
|
-«-
|
2
|
-
|
|
ТБП-то же с
подошвой
|
5000
|
1000
|
1200
|
5,3
|
Горизонтальный
|
Горизонтальный
|
4
|
-
|
|
1200
|
1420
|
6,8
|
То же
|
То же
|
3
|
-
|
|
1400-1600
|
1620-1840
|
8,5-10,0
|
-«-
|
-«-
|
2
|
-
|
|
ТС - цилиндрические раструбные со ступенчатой стыковой
втулочного конца трубы и стыковыми соединениями
|
2500-5000
|
400-600
|
510-731
|
0,52-1,5
|
Горизонтальный
|
Горизонтальный
|
4
|
-
|
|
3500-5000
|
800-1000
|
960-1200
|
2,2-3,5
|
То же
|
То же
|
4
|
-
|
|
3500-5000
|
1200
|
1420
|
4,5-6,3
|
-«-
|
-«-
|
3
|
-
|
|
3500-5000
|
1400-1600
|
1620;1840
|
5,3-9,0
|
-«-
|
-«-
|
2
|
-
|
|
ТСП - то же с
подошвой
|
3500-5000
|
1000
|
1200
|
4,0-5,5
|
Горизонтальный
|
Горизонтальный
|
4
|
-
|
|
3500-5000
|
1200
|
1420
|
5,0-7,0
|
То же
|
То же
|
3
|
-
|
|
3500-5000
|
1400-1600
|
1620; 1840
|
7,5-10,5
|
Горизонтальный
|
Горизонтальный
|
2
|
-
|
|
ТФП - цилиндрические фальцевые с подошвой и стыковыми
соединениями
|
5000
|
1000
|
1200
|
5,3
|
Горизонтальный
|
Горизонтальный
|
4
|
-
|
|
5000
|
1200
|
1420
|
6,8
|
То же
|
То же
|
3
|
-
|
|
3000
|
1400-1600
|
1620; 1840
|
8,5-10,0
|
-«-
|
-«-
|
2
|
-
|
|
4500
|
2000-2400
|
2260-2700
|
11,8-10,0
|
-«-
|
-«-
|
2
|
-
|
Приложение 2
|
Наименование
|
Эскиз
|
Техническая характеристика
|
№ рабочих чертежей, разработчик
|
Источник получения технической документации
|
|
Контейнер КП-4Г для
перевозки и временного хранения стеновых камней и тротуарной плитки
|

|
Габаритные размеры, мм:
|
РЧ-796-84
проект 343-4.00.000,
ЦНИИОМТП Госстроя СССР
|
ЦНИИОМТП, бюро внедрения
103012, Москва, К-12, ул. Куйбышева 3/8
|
|
длина
|
2550
|
|
ширина
|
1320
|
|
высота
|
1190
|
|
Собственная масса, т
|
0,40
|
|
Масса брутто, т
|
4,00
|
|
Контейнер для транспортировки
ж/б изделий
|

|
Габаритные
размеры, мм:
|
Арх. № 5216, трест Мосоргстрой ПСО
Мосстрой
|
Трест Мосоргстрой 113095, Москва, ул. Б.
Полянка, 51 а
|
|
длина
|
2200
|
|
ширина
|
1230
|
|
высота
|
550
|
|
Собственная масса, т
|
0,98
|
|
Масса брутто, т
|
378
|
|
Контейнер для лестничных маршей
ЛМ-2411
|

|
Габаритные
размеры, мм:
|
Арх. № 8876, трест Мосоргстрой ПСО
Мосстрой
|
Трест Мосоргстрой 113095, Москва, ул. Б.
Полянка, 51а
|
|
длина
|
3009
|
|
ширина
|
1350
|
|
высота
|
1963
|
|
Собственная масса, т
|
0,985
|
|
Масса брутто, т
|
5,585
|
|
Контейнер для лестничных
площадок типа 3ЛП-1;3ЛП1-1
|

|
Габаритные
размеры, мм:
|
Арх. № 8878, трест Мосоргстрой ПСО
Мосстрой
|
Трест Мосоргстрой 113095, Москва, ул. Б.
Полянка, 51а
|
|
длина
|
2480
|
|
ширина
|
1660
|
|
высота
|
1598
|
|
Собственная масса, т
|
0,874
|
|
Масса брутто, т
|
6,754
|
Продолжение
прилож. 2
|
Наименование
|
Эскиз
|
Техническая характеристика
|
№ рабочих чертежей, разработчик
|
Источник получения технической документации
|
|
Контейнер для вентблоков
|

|
Габаритные размеры, мм:
|
Арх. № 8877, трест Мосоргстрой ПСО
Мосстрой
|
Трест Мосоргстрой 113095, Москва, ул. Б.
Полянка, 51а
|
|
длина
|
2946
|
|
ширина
|
1990
|
|
высота
|
2900
|
|
Собственная масса, т
|
1,35
|
|
Масса брутто, т
|
5,75
|
|
Контейнер для лестничных маршей ЛМ1 дома серии 92-УБ
|

|
Габаритные
размеры, мм:
|
Арх. № 9620, трест Мосоргстрой ПСО
Мосстрой
|
Трест Мосоргстрой 113095, Москва, ул. Б.
Полянка, 51а
|
|
длина
|
3080
|
|
ширина
|
1580
|
|
высота
|
1965
|
|
Собственная масса, т
|
0,943
|
|
Масса брутто, т
|
7,043
|
|
Контейнер для лестничных
площадок ЛП1 дома серии 92-УБ
|

|
Габаритные
размеры, мм:
|
Арх. № 9621, трест Мосоргстрой ПСО
Мосстрой
|
Трест Мосоргстрой 113095, Москва, ул. Б.
Полянка, 51а
|
|
длина
|
3180
|
|
ширина
|
1800
|
|
высота
|
1800
|
|
Собственная масса, т
|
0,83
|
|
Масса брутто, т
|
6,83
|
|
Контейнер для вентблоков
ВВ1 дома серии 92-УБ
|

|
Габаритные
размеры, мм:
|
Арх. № 9622, трест Мосоргстрой ПСО
Мосстрой
|
Трест Мосоргстрой 113095, Москва, ул. Б.
Полянка, 51а
|
|
длина
|
2460
|
|
ширина
|
2100
|
|
высота
|
2780
|
|
Собственная масса, т
|
0,665
|
|
Масса брутто, т
|
3,965
|
Продолжение
прилож. 2
|
Наименование
|
Эскиз
|
Техническая характеристика
|
№ рабочих чертежей, разработчик
|
Источник получения технической документации
|
|
Кассета для временного
складирования железобетонных поясных панелей и лестничных маршей
|

|
Габаритные размеры,
мм:
|
РЧ-725-78
проект
839.00.000
ЦНИИОМТП
Госстроя СССР
|
ЦНИИОМТП
103012,
Москва, К-12, ул. Куйбышева 3/8
|
|
длина
|
3448; 3148; 2848
|
|
ширина
|
1300
|
|
высота
|
1050
|
|
Собственная масса, т
|
0,22; 0,21;
0,20
|
|
Толщина складируемых панелей, мм:350;
300; 250
|
|
Количество складируемых панелей и
лестничных маршей, шт.
|
6
|
|
Кассета для временного
складирования Н-образных железобетонных рам
|

|
Габаритные
размеры, мм:
|
То же
|
То же
|
|
длина
|
4458
|
|
ширина
|
1080
|
|
высота
|
1840
|
|
Собственная масса, т
|
1,063
|
|
Количество складируемых рам, шт.
|
6
|
|
Кассета для временного складирования железобетонных диафрагм жесткости
|

|
Габаритные
размеры, мм:
|
-«-
|
-«-
|
|
длина
|
3960
|
|
ширина
|
1300
|
|
высота
|
1500
|
|
Собственная масса, т
|
0,403
|
|
Толщина складируемых диафрагм, мм
|
160
|
|
Количество складируемых диафрагм, шт.
|
5-6
|
|
Склад-пирамида для
железобетонных панелей наружных стен
|

|
Габаритные
размеры, мм:
|
Черт. № 10825,
Трест Мосоргстрой ПСО
Мосстрой
|
Трест Мосоргстрой 113095, Москва, ул. Б.
Полянка, 51 а
|
|
длина
|
5082
|
|
ширина
|
6030
|
|
высота
|
3360
|
|
ширина
в транспортномположении
|
2400
|
|
Собственная масса, т
|
2,193
|
Продолжение
прилож. 2
|
Наименование
|
Эскиз
|
Техническая характеристика
|
№ рабочих чертежей, разработчик
|
Источник получения технической документации
|
|
Универсальная пирамида для
складирования легких фасадных панелей
|

|
Габаритные
размеры, мм:
|
Арх. № 4962, трест Мосоргстрой ПСО
Мосстрой
|
Трест Мосоргстрой 113095, Москва, ул. Б.
Полянка, 51 а
|
|
длина
|
7030
|
|
ширина
|
1900
|
|
высота
|
2800
|
|
Собственная масса, т
|
1,45
|
|
Склад-пирамида для
хранения железобетонных панелей и плит перекрытий
|

|
Габаритные
размеры, мм:
|
Черт. № 3942А, трест Мосоргстрой ПСО
Мосстрой
|
Трест Мосоргстрой 113095, Москва, ул. Б.
Полянка, 51а
|
|
длина
|
5040
|
|
ширина
|
6020
|
|
высота
|
2410
|
|
Ширина в транспортном положении, мм
|
2400
|
|
Собственная масса, т
|
2,143
|
|
Контейнер для перевозки и хранения наружных панелей ПТ-1
|

|
Габаритные
размеры, мм:
|
Арх. № 5198, трест Мосоргстрой ПСО
Мосстрой
|
Трест Мосоргстрой 113095, Москва, ул. Б.
Полянка, 51а
|
|
длина
|
2100
|
|
ширина
|
1990
|
|
высота
|
1980
|
|
Собственная масса, т
|
0,50
|
|
Опорная пирамида для изделий,
перевозимых в судах наклонно
|

|
|
|
|
|
Приложение
3
Допускаемые
напряжения для деталей из сосны и ели
Таблица 3.1
|
Вид напряжения
|
Допускаемое напряжение, кгс/см2
|
|
Изгиб
|
120
|
|
Растяжение вдоль волокон
|
85
|
|
Сжатие и смятие вдоль волокон
|
120
|
|
Сжатие и смятие поперек волокон
|
18
|
|
Смятие местное поперек волокон на части длины (если длина
свободного конца детали составляет 100 мм или более, но не менее ее толщины)
|
30
|
|
Смятие местное под шайбами при передаче нагрузки поперек
волокон, перпендикулярно или под углом не менее 60°
|
40
|
|
Скалывание в лобовых врубках при условии, что длина скалывания
не превышает двух полных толщин вставляемой детали или 10 глубин врубки:
|
|
|
вдоль волокон
|
12
|
|
поперек волокон
|
6
|
|
Скалывание вдоль волокон в щековых врубках при условии, что
длина скалывания не превышает пяти полных толщин детали в сопряжениях деталей
под углом:
|
|
|
менее 30°
|
6
|
|
30° и более
|
4
|
|
Срез поперек волокон
|
55
|
Примечание. При использовании других
пород древесины допускаемое напряжение, приведенное в табл. 3.1, необходимо
умножить на переводной коэффициент, приведенный в табл. 3.2.
Таблица 3.2
Поправочные коэффициенты для определения допускаемых
напряжений различных пород древесины
|
Порода древесины
|
Поправочный коэффициент
для допускаемых напряжений различных пород древесины
|
|
Растяжение, изгиб, сжатие
и смятие вдоль волокон
|
Сжатие и смятие поперек
волокон
|
Скалывание
|
|
Лиственница
|
1,2
|
1,2
|
1,0
|
|
Сосна
якутская, пихта кавказская, кедр
|
0,9
|
0,9
|
0,9
|
|
Сосна и ель Кольского полуострова, пихта
|
0,8
|
0,8
|
0,8
|
|
Дуб,
ясень, клен, акация белая
|
1,3
|
2,0
|
1,6
|
|
Береза, бук, ясень дальневосточный
|
1,1
|
1,6
|
1,3
|
Приложение 4.1
|
Тип
судна
|
Однопалубный
двухвинтовой сухогрузный теплоход с одним открытым грузовым трюмом
|
|
Класс
Речного Регистра РСФСР
|
«О»
|
|
Грузоподъемность
при осадке судна Тгр = 3,5 м, т
|
5300
|
|
Высота
борта, м
|
5,5
|
|
Грузовой
трюм:
|
Размеры, м
72,0×12,34+24,6×12,34¸9,3
|
Площадь, м2
1155
|
|
Грузовой
люк
|
68,4×13,1+24,6×13,1¸10,2
|
|
Толщина
листов обшивки настила второго дна, мм
|
7; 8
|
|
Расстояние
между соседними несущими (рамными) элементами набора судна, мм:
|
|
|
флорами
|
1800
|
|
кильсонами
|
2800
|
|
Допустимое
удельное давление на настил второго дна, тс/м2
|
4,82
|
|
Сечение по ДП:
|
Сечение поперек ДП:
|
|

План трюма:

|

|
|
*
Высота трюма
|
|
Тип
судна
|
Однопалубный
двухвинтовой сухогрузный теплоход с одним открытым грузовым трюмом
|
|
Класс
Речного Регистра РСФСР
|
«О»
|
|
Грузоподъемность
при осадке судна Тгр = 3,5/3,53 м, т
|
5300/5000
|
|
Высота
борта, м
|
5,5
|
|
Грузовой
трюм:
|
Размеры, м
|
Площадь, м2
|
|
72,6×12,34+24,0×12,34¸10
|
1164
|
|
Грузовой
люк
|
93,0×13,1
|
|
Толщина
листов обшивки настила второго дна, мм
|
7; 8/
10
|
|
Расстояние
между соседними несущими (рамными) элементами набора судна, мм:
|
|
|
флорами
|
1800
|
|
кильсонами
|
3300
|
|
Допустимое
удельное давление на настил второго дна, тс/м2
|
4,82/4,55
|
|
Примечание. Числовые значения величин, приведенные в
числителе относятся к проекту 507Б, в знаменателе - проекту 1565
|
|
Сечение по ДП:
|
Сечение поперек ДП:
|
|

План трюма:

|

|
|
* Высота трюма
|
|
Тип
судна
|
Однопалубный
двухвинтовой сухогрузный теплоход с двумя закрытыми грузовыми трюмами
|
|
Класс
Речного Регистра РСФСР
|
«О»
|
|
Грузоподъемность
при осадке судна Тгр = 3,5/3,53 м, т
|
5300/5000
|
|
Высота
борта, м
|
5,5
|
|
Грузовой
трюм:
|
Размеры, м
|
Площадь, м2
|
|
№ 1
|
45,6×12,34/44,4×12,34
|
563/548
|
|
№ 2
|
45,0×12,34
|
555
|
|
|
|
Всего: 1118/1103
|
|
Грузовой
люк
|
|
|
№ 1
|
44,4×13,1
|
|
№ 2
|
44,4×13,1
|
|
Толщина
листов обшивки настила второго дна, мм
|
7;
8/10
|
|
Расстояние
между соседними несущими (рамными) элементами набора судна, мм:
|
|
|
флорами
|
1800
|
|
кильсонами
|
3300
|
|
Допустимое
удельное давление на настил второго дна, тс/м2
|
4,82/4,55
|
|
Примечание. Числовые значения величин, приведенные в
числителе, относятся к проекту 507В, в знаменателе - к проекту 1565
|
|
Сечение по ДП:
|
Сечение поперек ДП:
|
|

План трюма:

|

|
|
*
Высота трюма
|
|
Тип
судна
|
Однопалубный
двухвинтовой сухогрузный теплоход с четырьмя закрытыми грузовыми трюмами
|
|
Класс
Речного Регистра РСФСР
|
"М-СП"
|
|
Грузоподъемность
при осадке судна Тгр = 3,2 м, т
|
3345
|
|
Высота
борта, м
|
6,0
|
|
Грузовой
трюм:
|
Размеры,
м
|
Площадь,
м2
|
|
№ 1
|
19,8×11,0
|
220
|
|
№ 2
|
19,8×11,0
|
220
|
|
№ 3
|
19,8×11,0
|
220
|
|
№ 4
|
19,8×11,0
|
220
|
|
|
|
Всего: 880
|
|
Толщина
листов обшивки настила второго дна, мм
|
12
|
Люковые
крышки:
|
|
длина,
м
|
79,0
|
|
ширина,
м
|
11,2
|
|
площадь,
м2
|
885
|
|
Расстояние
между соседними несущими (рамными) элементами набора судна, мм:
|
|
|
флорами
|
1100
|
|
кильсонами
|
2750
|
|
Допустимое
удельное давление, тс/ м2
|
|
|
на настил второго дна
|
3,71
|
|
на крышки люков
|
1,1
|
|
Количество
груза:
|
|
|
в трюмах, т
|
2385-3345
|
|
на крышках, т
|
960-0
|
|
Сечение по ДП:
|
Сечение поперек ДП:
|
|

План трюма:

|

|
|
*
Высота трюма
|
|
Тип
судна
|
Однопалубный
двухвинтовой сухогрузный теплоход с четырьмя закрытыми грузовыми трюмами
|
|
Класс
Речного Регистра РСФСР
|
"М-СП"
|
|
Грузоподъемность
при осадке судна Тгр = 2,99 м, т
|
2870
|
|
Высота
борта, м
|
5,45
|
|
Грузовой
трюм:
|
Размеры,
м
|
Площадь,
м2
|
|
№ 1
|
19,4×11,0
|
213
|
|
№ 2
|
19,4×11,0
|
213
|
|
№ 3
|
19,4×11,0
|
213
|
|
№ 4
|
19,4×11,0
|
213
|
|
|
|
Всего: 852
|
|
Толщина
листов обшивки настила второго дна, мм
|
12
|
Люковые
крышки:
|
|
длина,
м
|
77,0
|
|
ширина,
м
|
11,0
|
|
площадь,
м2
|
847
|
|
Расстояние
между соседними несущими (рамными) элементами набора судна, мм:
|
|
|
флорами
|
1100
|
|
кильсонами
|
2750
|
|
Допустимое
удельное давление, тс/ м2:
|
|
|
на настил второго дна
|
3,71
|
|
на крышки люков
|
1,15
|
|
Количество
груза:
|
|
|
в трюмах, т
|
1910-2870
|
|
на крышках, т
|
960-0
|
|
Сечение по ДП:
|
Сечение поперек ДП:
|
|

План трюма:

|

|
|
*
Высота трюма
|
|
Тип
судна
|
Однопалубный двухвинтовой сухогрузный теплоход
с четырьмя закрытыми грузовыми трюмами
|
|
Класс
Речного Регистра РСФСР
|
"М"
|
|
Грузоподъемность
при осадке судна Тгр = 3,35 м, т
|
2700
|
|
Высота
борта, м
|
5,5
|
|
Грузовой
трюм:
|
Размеры,
м
|
Площадь,
м2
|
|
№ 1
|
23,2×11,26¸1
|
142
|
|
№ 2
|
19,8×11,24
|
223
|
|
№ 3
|
19,8×11,24
|
223
|
|
№ 4
|
19,8×11,25¸10,5
|
215
|
|
|
|
Всего: 803
|
|
Толщина
листов обшивки настила второго дна, мм
|
7; 8
|
|
|
Расстояние
между соседними несущими (рамными) элементами набора судна, мм:
|
|
Люковые
крышки:
|
|
длина,
м
|
72,5
|
|
ширина,
м
|
10,4
|
|
площадь,
м2
|
754
|
|
флорами
|
1650
|
|
кильсонами
|
2000
|
|
Допустимое
удельное давление, тс/ м2:
|
|
|
на настил второго дна
|
3,89
|
|
на крышки люков
|
1,25
|
|
Количество
груза:
|
|
|
в трюмах, т
|
1760-2700
|
|
на крышках, т
|
940-0
|
|
Сечение по ДП:
|
Сечение поперек ДП:
|
|

План
трюма:

|

|
|
*
Высота трюма
|
|
Тип
судна
|
Однопалубный
двухвинтовой сухогрузный теплоход с четырьмя закрытыми грузовыми трюмами
|
|
Класс
Речного Регистра РСФСР
|
"М"
|
|
Грузоподъемность
при осадке судна Тгр = 3,44 м, т
|
2700
|
|
Высота
борта, м
|
5,5
|
|
Грузовой
трюм:
|
Размеры,
м
|
Площадь,
м2
|
|
№ 1
|
18,6×11,2¸4,2
|
143
|
|
№ 2
|
18,8×11,2
|
211
|
|
№ 3
|
18,8×11,2
|
211
|
|
№ 4
|
20,3×11,2
|
227
|
|
|
|
Всего: 792
|
|
Грузовой
люк
|
77,3×9,52
|
Люковые
крышки:
|
|
Толщина
листов обшивки настила второго дна, мм
|
8; 9
|
длина,
м
|
72,5
|
|
|
ширина,
м
|
10,4
|
|
|
площадь,
м2
|
754
|
|
Расстояние
между соседними несущими (рамными) элементами набора судна, мм:
|
|
|
флорами
|
1650
|
|
кильсонами
|
2000
|
|
Допустимое
удельное давление, тс/ м2
|
|
|
на настил второго дна
|
3,89
|
|
на крышки люков
|
1,05
|
|
Количество
груза:
|
|
|
в трюмах, т
|
1900-2700
|
|
на крышках, т
|
800-0
|
|
Сечение
по ДП:
|
Сечение
поперек ДП:
|
|

План
трюма:

|

|
|
*
Высота трюма
|
|
Тип
судна
|
Однопалубный
двухвинтовой сухогрузный теплоход с четырьмя закрытыми грузовыми трюмами
|
|
Класс
Речного Регистра РСФСР
|
«О»
|
|
Грузоподъемность
при осадке судна Тгр = 3,15 м, т
|
2300
|
|
Высота
борта, м
|
4,8
|
|
Грузовой
трюм:
|
Размеры,
м
|
Площадь,
м2
|
|
№ 1
|
15,6×12,2¸3,6
|
123
|
|
№ 2
|
16,2×12,2
|
198
|
|
№ 3
|
16,2×12,2
|
198
|
|
№ 4
|
18,0×12,2
|
220
|
|
|
|
Всего:
739
|
|
Грузовой
люк:
|
|
|
№ 1
|
12,0×8,8
|
|
№ 2
|
15,0×8,8
|
|
№ 3
|
15,0×8,8
|
|
№ 4
|
10,2×8,8
|
|
Толщина
листов обшивки настила второго дна, мм
|
7; 8
|
|
Расстояние
между соседними несущими (рамными) элементами набора судна, мм:
|
|
|
флорами
|
1800
|
|
кильсонами
|
2000
|
|
Допустимое
удельное давление на настил второго дна, тс/ м2
|
3,53
|
|
Сечение
по ДП:
|
Сечение
поперек ДП:
|
|

План
трюма:

|

|
|
*
Высота трюма
|
|
Тип
судна
|
Однопалубный
двухвинтовой сухогрузный теплоход с четырьмя закрытыми грузовыми трюмами
|
|
Класс
Речного Регистра РСФСР
|
"М"
|
|
Грузоподъемность
при осадке судна Тгр = 2,51 м, т
|
2100
|
|
Высота
борта, м
|
5,0
|
|
Грузовой
трюм:
|
Размеры,
м
|
Площадь,
м2
|
|
№ 1
|
18,0×12,84
|
231
|
|
№ 2
|
18,0×12,84
|
231
|
|
№ 3
|
18,0×12,84
|
231
|
|
№ 4
|
17,4×12,84
|
223
|
|
|
|
Всего:
916
|
|
Толщина
листов обшивки настила второго дна, мм
|
8
|
|
|
Расстояние
между соседними несущими (рамными) элементами набора судна, мм:
|
|
Люковые крышки:
|
|
длина,
м
|
64,0
|
|
ширина,
м
|
11,2
|
|
площадь,
м2
|
717
|
|
флорами
|
1800
|
|
кильсонами
|
2200
|
|
Допустимое
удельное давление, тс/м2:
|
|
|
на настил второго дна
|
2,85
|
|
на крышки люков
|
0,80
|
|
Количество
груза:
|
|
|
в трюмах, т
|
1524-2100
|
|
на крышках, т
|
576-0
|
|
Сечение
по ДП:
|
Сечение
поперек ДП:
|
|

План
трюма:

|

|
|
*
Высота трюма
|
|
Тип
судна
|
Однопалубный
двухвинтовой сухогрузный теплоход с четырьмя закрытыми грузовыми трюмами
|
|
Класс
Речного Регистра РСФСР
|
«О»
|
|
Грузоподъемность
при осадке судна Тгр = 2,85 м, т
|
2000
|
|
Высота
борта, м
|
4,8
|
|
Грузовой
трюм:
|
Размеры,
м
|
Площадь,
м2
|
|
№ 1
|
15,6×12,0
|
187,2
|
|
№ 2
|
16,2×12,0
|
194,4
|
|
№ 3
|
16,2×12,0
|
194,4
|
|
№ 4
|
18,0×12,0
|
216,0
|
|
|
|
Всего:
792,0
|
|
Грузовой
люк:
|
|
|
№ 1
|
10,8×6,0
|
|
№ 2
|
12,8×6,0
|
|
№ 3
|
12,6×6,0
|
|
№ 4
|
9,0×6,0
|
|
Толщина
листов обшивки настила второго дна, мм
|
5
|
|
Расстояние
между соседними несущими (рамными) элементами набора судна, мм:
|
|
|
флорами
|
1800
|
|
кильсонами
|
2000
|
|
Допустимое
удельное давление
|
|
|
на
настил второго дна, тс/м2
|
2,67
|
|
Сечение
по ДП:
|
Сечение
поперек ДП:
|
|

План
трюма:

|

|
|
*
Высота трюма
|
|
Тип
судна
|
Однопалубный
двухвинтовой сухогрузный теплоход с четырьмя закрытыми грузовыми трюмами
|
|
Класс
Речного Регистра РСФСР
|
«О»
|
|
Грузоподъемность
при осадке судна Тгр = 2,8 м, т
|
2000
|
|
Высота
борта, м
|
4,9
|
|
Грузовой
трюм:
|
Размеры,
м
|
Площадь,
м2
|
|
№ 1
|
18,6×12,0¸5,8
|
166
|
|
№ 2
|
17,0×12,0
|
204
|
|
№ 3
|
17,0×12,0
|
204
|
|
№ 4
|
17,0×12,0
|
204
|
|
|
|
Всего:
778
|
|
Грузовой
люк:
|
69,7×8,0
|
|
Толщина
листов обшивки настила второго дна, мм
|
7
|
Люковые
крышки:
|
|
|
длина,
м
|
61,6
|
|
|
ширина,
м
|
8,0
|
|
|
площадь,
м2
|
493
|
|
Расстояние
между соседними несущими (рамными) элементами набора судна, мм:
|
|
|
флорами
|
1650
|
|
кильсонами
|
2000
|
|
Допустимое
удельное давление, тс/м2:
|
|
|
на настил второго дна
|
2,9
|
|
на крышки люков
|
0,9
|
|
Количество
груза:
|
|
|
в трюмах, т
|
1538-2000
|
|
на крышках, т
|
462-0
|
|
Сечение
по ДП:
|
Сечение
поперек ДП:
|
|

План
трюма:

|

|
|
*
Высота трюма
|
|
Тип
судна
|
Однопалубный
двухвинтовой сухогрузный теплоход с тремя закрытыми грузовыми трюмами
|
|
Класс
Речного Регистра РСФСР
|
"М-СП"
|
|
Грузоподъемность
при осадке судна Тгр = 3,34 м, т
|
2000
|
|
Высота
борта, м
|
5,5
|
|
Грузовой
трюм:
|
Размеры,
м
|
Площадь,
м2
|
|
№ 1
|
23,1×11,2¸1,2
|
149
|
|
№ 2
|
21,4×11,2
|
240
|
|
№ 3
|
16,4×11,2 + 5,0×11,2¸10,4
|
238
|
|
|
|
Всего:
621
|
|
Грузовой
люк:
|
|
|
№ 1
|
16,5×9,35
|
|
№ 2
|
16,5×9,35
|
|
№ 3
|
16,5×9,35
|
|
Толщина
листов обшивки настила второго дна, мм
|
7;8
|
|
Расстояние
между соседними несущими (рамными) элементами набора судна, мм:
|
|
Люковые крышки:
|
|
флорами
|
1650
|
длина,
м
|
51,0
|
|
кильсонами
|
2000
|
ширина,
м
|
9,8
|
|
площадь,
м2
|
500
|
|
Допустимое
удельное давление, тс/м2:
|
|
|
на настил второго дна
|
3,57
|
|
на крышки люков
|
1,25
|
|
Количество
груза:
|
|
|
в трюмах, т
|
1370-2000
|
|
на крышках, т
|
630-0
|
|
Сечение
по ДП:
|
Сечение
поперек ДП:
|
|

План
трюма:

|

|
|
*
Высота трюма
|
|
Тип
судна
|
Однопалубный
двухвинтовой сухогрузный теплоход с тремя закрытыми грузовыми трюмами
|
|
Класс
Речного Регистра РСФСР
|
"М-СП"
|
|
Грузоподъемность
при осадке судна Тгр = 3,47 м, т
|
2000
|
|
Высота
борта, м
|
5,5
|
|
Грузовой
трюм:
|
Размеры,
м
|
Площадь,
м2
|
|
№ 1
|
18,1×11,2¸4,8
|
145
|
|
№ 2
|
21,45×11,2
|
240
|
|
№ 3
|
18,15×11,2
|
203
|
|
|
|
Всего:
588
|
|
Грузовой
люк:
|
|
|
№ 1
|
16,5×9,35
|
|
№ 2
|
16,5×9,35
|
|
№ 3
|
16,5×9,35
|
|
Толщина
листов обшивки настила второго дна, мм
|
7; 8
|
Люковые крышки:
|
|
|
длина,
м
|
51,0
|
|
|
ширина,
м
|
9,8
|
|
|
площадь,
м2
|
500
|
|
Расстояние
между соседними несущими (рамными) элементами набора судна, мм:
|
|
|
флорами
|
1650
|
|
кильсонами
|
2000
|
|
Допустимое
удельное давление, тс/м2:
|
|
|
на настил второго дна
|
3,57
|
|
на крышки люков
|
1,25
|
|
Количество
груза:
|
|
|
в трюмах, т
|
1370-2000
|
|
на крышках, т
|
630-0
|
|
Сечение
по ДП:
|
Сечение
поперек ДП:
|
|

План
трюма:

|

|
|
*
Высота трюма
|
|
Тип
судна
|
Однопалубный
двухвинтовой сухогрузный теплоход с тремя закрытыми грузовыми трюмами
|
|
Класс
Речного Регистра РСФСР
|
"М-СП"
|
|
Грузоподъемность
при осадке судна Тгр = 3,3 м, т
|
1700
|
|
Высота
борта, м
|
5,2
|
|
Грузовой
трюм:
|
Размеры,
м
|
Площадь,
м2
|
|
№ 1
|
19,2×10,6¸4,2
|
142
|
|
№ 2
|
19,2×10,6
|
204
|
|
№ 3
|
19,0×10,6¸9,6
|
192
|
|
Грузовой
люк:
|
|
Всего: 538
|
|
№ 1
|
13,8×8,2
|
|
|
№ 2
|
13,8×8,2
|
|
|
№ 3
|
13,8×8,2
|
|
|
Толщина
листов обшивки настила второго дна, мм
|
11
|
Люковые крышки:
|
|
|
длина,
м
|
42,0
|
|
|
ширина,
м
|
8,5
|
|
|
площадь,
м2
|
357
|
|
Расстояние
между соседними несущими (рамными) элементами набора судна, мм:
|
|
|
флорами
|
1800
|
|
кильсонами
|
2640
|
|
Допустимое
удельное давление, тс/м2:
|
|
|
на настил второго дна
|
3,5
|
|
на крышки люков
|
1,5
|
|
Количество
груза:
|
|
|
в трюмах, т
|
1100-1700
|
|
на крышках, т
|
600-0
|
|
Сечение
по ДП:
|
Сечение
поперек ДП:
|
|

План
главной палубы:

|

|
|
*
Высота трюма
|
|
Тип
судна
|
Двухвинтовой
сухогрузный теплоход с одним закрытым грузовым трюмом и двумя люками
|
|
Класс
Речного Регистра РСФСР
|
"0-ПР"
(лед)
|
|
Грузоподъемность
при осадке судна Тгр = 2,93 м, т
|
1550
|
|
Высота
борта, м
|
3,5
|
|
Грузовой
трюм:
|
Размеры,
м
|
Площадь,
м2
|
|
|
41,25×8,0
|
371,3
|
|
Грузовой
люк:
|
|
|
№ 1
|
20,93×9,0
|
|
№ 2
|
20,93×9,0
|
|
Толщина
листов обшивки настила второго дна, мм
|
8
|
Люковые крышки:
|
|
|
|
длина,
м
|
39,6
|
|
|
|
ширина,
м
|
9,0
|
|
|
|
площадь,
м2
|
356
|
|
Расстояние
между соседними несущими (рамными) элементами набора судна, мм:
|
|
|
флорами
|
1650
|
|
кильсонами
|
2430
|
|
Допустимое
удельное давление, тс/м2:
|
|
|
на настил второго дна
|
4,17
|
|
на крышки люков
|
0,95
|
|
Количество
груза:
|
|
|
в трюме, т
|
1210-1550
|
|
на крышках, т
|
340-0
|
|
Сечение
по ДП:
|
Сечение
поперек ДП:
|
|

План
главной палубы:

|

|
|
*
Высота трюма
|
|
Тип
судна
|
Двухвинтовой
сухогрузный теплоход с двумя закрытыми грузовыми трюмами
|
|
Класс
Речного Регистра РСФСР
|
"М-ПР"
(лед)
|
|
Грузоподъемность
при осадке судна Тгр = 3,13 м, т
|
1385
|
|
Высота
борта, м
|
4,0
|
|
Грузовой
трюм:
|
Размеры,
м
|
Площадь,
м2
|
|
№ 1
|
15,4×9,2+6,6×9,2¸4,4
|
187
|
|
№ 2
|
20,8×9,2
|
191
|
|
|
|
Всего:
378
|
|
Грузовой
люк:
|
|
|
№ 1
|
22,0×9,2¸4,4
|
|
№ 2
|
20,8×9,2
|
|
Толщина
листов обшивки настила второго дна, мм
|
10
|
Люковые крышки:
|
|
|
|
длина,
м
|
40,2
|
|
|
|
ширина,
м
|
9,2
|
|
|
|
площадь,
м2
|
382
|
|
Расстояние
между соседними несущими (рамными) элементами набора судна, мм:
|
|
|
флорами
|
1650
|
|
кильсонами
|
2800
|
|
Допустимое
удельное давление, тс/м2:
|
|
|
на настил второго дна
|
3,61
|
|
на крышки люков
|
1,05
|
|
Количество
груза:
|
|
|
в трюмах, т
|
985-1385
|
|
на крышках, т
|
400-0
|
|
Сечение
по ДП:
|
Сечение
поперек ДП:
|
|

План
главной палубы:

|

|
|
*
Высота трюма
|
|
Тип
судна
|
Двухвинтовой
сухогрузный теплоход с одним закрытым грузовым трюмом
|
|
Класс
Речного Регистра РСФСР
|
"О-ПР" (лед)
|
|
Грузоподъемность
при осадке судна Тгр = 2,5 м, т
|
1350
|
|
Высота
борта, м
|
3,5
|
|
Грузовой
трюм:
|
Размеры,
м
|
Площадь,
м2
|
|
44,82×9,0
|
403,4
|
|
Грузовой
люк:
|
43,2×9,0
|
|
Толщина
листов обшивки настила второго дна, мм
|
8
|
|
Расстояние
между соседними несущими (рамными) элементами набора судна, мм:
|
|
|
флорами
|
1620
|
|
кильсонами
|
2250
|
|
Допустимое
удельное давление на настил второго дна, тс/м2:
|
4,17
|
|
Сечение
по ДП:
|
Сечение
поперек ДП:
|
|

План
главной палубы:

|

|
|
*
Высота трюма
|
|
Тип
судна
|
Двухвинтовой
сухогрузный теплоход с одним закрытым грузовым трюмом
|
|
Класс
Речного Регистра РСФСР
|
"0-ПР"
(лед)
|
|
Грузоподъемность
при осадке судна Тгр = 2,93 м, т
|
1550
|
|
Высота
борта, м
|
3,5
|
|
Грузовой
трюм:
|
Размеры,
м
|
Площадь,
м2
|
|
|
44,0×9,0
|
396
|
|
Грузовой
люк:
|
40,7×9,0
|
|
Толщина
листов обшивки настила второго дна, мм
|
10
|
Люковые крышки:
|
|
длина,
м
|
41,2
|
|
ширина,
м
|
9,6
|
|
площадь,
м2
|
396
|
|
Расстояние
между соседними несущими (рамными) элементами набора судна, мм:
|
|
|
флорами
|
1650
|
|
кильсонами
|
2500
|
|
Допустимое
удельное давление, тс/м2:
|
|
|
на настил второго дна
|
4,17
|
|
на крышках люков
|
0,9
|
|
Количество
груза:
|
|
|
в трюме, т
|
940-1300
|
|
на крышках, т
|
360-0
|
|
Сечение
по ДП:
|
Сечение
поперек ДП:
|
|

План
главной палубы:

|

|
|
*
Высота трюма
|
|
Тип
судна
|
Двухвинтовой
сухогрузный теплоход о двумя закрытыми грузовыми трюмами
|
|
Класс
Речного Регистра РСФСР
|
"М"
(лед)
|
|
Грузоподъемность
при осадке судна Тгр = 2,91 м, т
|
1280
|
|
Высота
борта, м
|
4,0
|
|
Грузовой
трюм:
|
Размеры,
м
|
Площадь,
м2
|
|
№ 1
|
15,4×9,2+6,6×9,2¸4,4
|
187
|
|
№ 2
|
21,4×9,2
|
197
|
|
|
|
Всего:
384
|
|
Грузовой
люк:
|
|
|
№ 1
|
22,0×9,2¸4,4
|
|
№ 2
|
21,4×9,2
|
|
Толщина
листов обшивки настила второго дна, мм
|
10
|
Люковые крышки:
|
|
длина,
м
|
40,2
|
|
дирина,
м
|
9,5
|
|
длощадь,
м2
|
382
|
|
Расстояние
между соседними несущими (рамными) элементами набора судна, мм:
|
|
|
флорами
|
1650
|
|
кильсонами
|
2800
|
|
Допустимое
удельное давление, тс/м2:
|
|
|
на настил второго дна
|
3,61
|
|
на крышки люков
|
1,05
|
|
Количество
груза:
|
|
|
в трюмах, т
|
880-1280
|
|
на крышках, т
|
400-0
|
|
Сечение
по ДП:
|
Сечение
поперек ДП:
|
|

План
главной палубы:

|

|
|
*
Высота трюма
|
|
Тип
судна
|
Однопалубный
двухвинтовой сухогрузный теплоход с тремя закрытыми грузовыми трюмами
|
|
Класс
Речного Регистра РСФСР
|
"М"
|
|
Грузоподъемность
при осадке судна Тгр = 2,4 м, т
|
1000
|
|
Высота
борта, м
|
3,9
|
|
Грузовой
трюм:
|
Размеры,
м
|
Площадь,
м2
|
|
№ 1
|
16,0×10,3¸5
|
120
|
|
№ 2
|
16,0×10,3
|
165
|
|
№ 3
|
16,0×10,3
|
165
|
|
|
|
Всего:
450
|
|
Толщина
слани, мм
|
-
|
Люковые крышки:
|
|
длина,
м
|
36,0
|
|
ширина,
м
|
8,5
|
|
площадь,
м2
|
270
|
|
Расстояние
между соседними несущими (рамными) элементами набора судна, мм:
|
|
|
флорами
|
550
|
|
кильсонами
|
1560
|
|
Допустимое
удельное давление, тс/м2:
|
|
|
на настил второго дна
|
2,5
|
|
на крышки люков
|
1,3
|
|
Количество
груза:
|
|
|
в трюмах, т
|
600-1000
|
|
на крышках, т
|
400-0
|
|
Сечение
по ДП:
|
Сечение
поперек ДП:
|
|

План
главной палубы:

|

|
|
*
Высота трюма
|
|
Тип
судна
|
Однопалубный
одновинтовой сухогрузный теплоход с тремя закрытыми грузовыми трюмами
|
|
Класс
Речного Регистра РСФСР
|
"М"
|
|
Грузоподъемность
при осадке судна Тгр = 2,52 м, т
|
1000
|
|
Высота
борта, м
|
3,6
|
|
Грузовой
трюм:
|
Размеры,
м
|
Площадь,
м2
|
|
№ 1
|
14,9×11,8¸7,0
|
132
|
|
№ 2
|
14,9×11,8
|
165
|
|
№ 3
|
14,0×11,8¸10,6
|
157
|
|
|
|
Всего: 454
|
|
Толщина
слани, мм
|
-
|
|
|
Расстояние
между соседними несущими (рамными) элементами набора судна, мм:
|
|
Люковые крышки:
|
|
длина,
м
|
36,0
|
|
флорами
|
550
|
ширина,
м
|
7,5
|
|
кильсонами
|
1650
|
площадь,
м2
|
270
|
|
|
|
|
|
Допустимое
удельное давление, тс/м2:
|
|
|
на настил второго дна
|
1,98
|
|
на крышки люков
|
0,95
|
|
Количество
груза:
|
|
|
в трюмах, т
|
750-1000
|
|
на крышках, т
|
250-0
|
|
Сечение
по ДП:
|
Сечение
поперек ДП:
|
|

План
трюма:

|

|
|
*
Высота трюма
|
|
Тип
судна
|
Однопалубный
одновинтовой сухогрузный теплоход с четырьмя закрытыми грузовыми трюмами
|
|
Класс
Речного Регистра РСФСР
|
«О»
|
|
Грузоподъемность
при осадке судна Тгр = 2,17 м, т
|
700
|
|
Высота
борта, м
|
2,6
|
|
Грузовой
трюм:
|
Размеры,
м
|
Площадь,
м2
|
|
№ 1
|
12,5×8,16
|
102
|
|
№ 2
|
10,0×8,16
|
82
|
|
№ 3
|
10,0×8,16
|
82
|
|
№ 4
|
12,5×8,16
|
98
|
|
|
|
Всего: 364
|
|
Грузовой
люк:
|
|
|
№ 1
|
12,5×6,7
|
|
№ 2
|
10,0×6,7
|
|
№ 3
|
10,0×6,7
|
|
№ 4
|
12,0×6,7
|
|
Толщина
слани, мм
|
50
|
|
Расстояние
между соседними несущими (рамными) элементами набора судна, мм:
|
|
|
флорами
|
500
|
|
кильсонами
|
1365
|
|
Допустимое
удельное давление на настил второго дна, тс/м2:
|
1,79
|
|
Сечение
по ДП:
|
Сечение
поперек ДП:
|
|

План
трюма:

|

|
|
*
Высота трюма
|
|
Тип
судна
|
Однопалубный
одновинтовой сухогрузный теплоход с четырьмя закрытыми грузовыми трюмами
|
|
Класс
Речного Регистра РСФСР
|
«О»
|
|
Грузоподъемность
при осадке судна Тгр = 2,0 м, т
|
680
|
|
Высота
борта, м
|
2,6
|
|
Грузовой
трюм:
|
Размеры,
м
|
Площадь,
м2
|
|
№ 1
|
11,0×8,16
|
90
|
|
№ 2
|
11,0×8,16
|
90
|
|
№ 3
|
11,0×8,16
|
90
|
|
№ 4
|
14,0×8,16
|
114
|
|
|
Всего:
384
|
|
Грузовой
люк:
|
10,0×6,4
|
|
№ 1
|
12,5×6,4
|
|
№ 2
|
11,1×6,8
|
|
№ 3
|
11,1×6,8
|
|
№ 4
|
10,0×6,4
|
|
Толщина
слани, мм
|
50
|
|
Расстояние
между соседними несущими (рамными) элементами набора судна, мм:
|
|
|
флорами
|
500
|
|
кильсонами
|
1365
|
|
Допустимое
удельное давление на настил второго дна, тс/м2:
|
1,74
|
|
Сечение
по ДП:
|
Сечение
поперек ДП:
|
|

План
трюма:

|

|
|
*
Высота трюма
|
|
Тип
судна
|
Однопалубный
двухвинтовой сухогрузный теплоход с тремя закрытыми грузовыми трюмами
|
|
Класс
Речного Регистра РСФСР
|
«О»
|
|
Грузоподъемность
при осадке судна Тгр = 1,82 м, т
|
600
|
|
Высота
борта, м
|
2,4
|
|
Грузовой
трюм:
|
Размеры,
м
|
Площадь,
м2
|
|
№ 1
|
15,0×8,5¸6
|
105
|
|
№ 2
|
14,0×8,5
|
119
|
|
№ 3
|
13,5×8,5
|
115
|
|
|
Всего:
339
|
|
Грузовой
люк:
|
15,0×7,0
|
|
№ 1
|
15,0×7,0
|
|
№ 2
|
15,0×7,0
|
|
№ 3
|
|
|
Толщина
листов обшивки второго дна, мм
|
5
|
|
Расстояние
между соседними несущими (рамными) элементами набора судна, мм:
|
|
|
флорами
|
1625
|
|
кильсонами
|
2400
|
|
Допустимое
удельное давление на настил второго дна, тс/м2:
|
1,33
|
|
Сечение по ДП:
|
Сечение поперек ДП:
|
|

План трюма:

|

|
|
*
Высота трюма
|
|
Тип
судна
|
Двухвинтовой
сухогрузный теплоход с двумя закрытыми трюмами и одним общим люком
|
|
Класс
Речного Регистра РСФСР
|
"Р"
|
|
Грузоподъемность
при осадке судна Тгр = 1,23 м, т
|
350
|
|
Высота
борта, м
|
2,2
|
|
Грузовой
трюм:
|
Размеры,
м
|
Площадь,
м2
|
|
№ 1
|
15,0×8,5+4,5×8,5¸6,0
|
160
|
|
№ 2
|
19,8×8,5
|
168
|
|
|
Всего:
328
|
|
Грузовой
люк:
|
37,2×6,37
|
|
Толщина
слани, мм
|
-
|
|
Расстояние
между соседними несущими (рамными) элементами набора судна, мм:
|
|
|
флорами
|
1200
|
|
кильсонами
|
2075
|
|
Допустимое
удельное давление на настил второго дна, тс/м2:
|
1,27
|
|
Сечение
по ДП:
|
Сечение
поперек ДП:
|
|

План
трюма:

|

|
|
*
Высота трюма
|
|
Тип
судна
|
Двухвинтовой
сухогрузный теплоход с двумя закрытыми трюмами и с одним общим люком
|
|
Класс
Речного Регистра РСФСР
|
"Р"
(лед)
|
|
Грузоподъемность
при осадке судна Тгр = 1,4 м, т
|
350
|
|
Высота
борта, м
|
2,2
|
|
Грузовой
трюм:
|
Размеры,
м
|
Площадь,
м2
|
|
№ 1
|
19,4×6,64
|
129
|
|
№ 2
|
19,0×6,64
|
126
|
|
|
|
Всего:
255
|
|
Грузовой
люк:
|
37,2×6,37
|
|
Толщина
слани, мм
|
-
|
|
Расстояние
между соседними несущими (рамными) элементами набора судна, мм:
|
|
|
флорами
|
1200
|
|
кильсонами
|
2075
|
|
Допустимое
удельное давление на настил второго дна, тс/м2:
|
1,58
|
|
Сечение
по ДП:
|
Сечение
поперек ДП:
|
|

План
трюма:

|

|
|
*
Высота трюма
|
|
Тип
судна
|
Однопалубный
сухогрузный теплоход с закрытым грузовым трюмом, водометным движителем
|
|
Класс
Речного Регистра РСФСР
|
"Р"
|
|
Грузоподъемность
при осадке судна Тгр = 1,0 м, т
|
150
|
|
Высота
борта, м
|
2,0
|
|
Грузовой
трюм:
|
Размеры,
м
|
Площадь,
м2
|
|
|
25,0×7,25
|
181
|
|
Грузовой
люк:
|
23,0×5,10
|
|
Толщина
слани, мм
|
-
|
|
Расстояние
между соседними несущими (рамными) элементами набора судна, мм:
|
|
|
флорами
|
1100
|
|
кильсонами
|
1850
|
|
Допустимое
удельное давление на настил второго дна, тс/м2:
|
0,82
|
|
Сечение
по ДП:
|
Сечение
поперек ДП:
|
|

План
трюма:

|

|
|
*
Высота трюма
|
|
Тип
судна
|
Двухвинтовой
сухогрузный теплоход с грузовым бункером на главной палубе
|
|
Класс
Речного Регистра РСФСР
|
«О»
|
|
Грузоподъемность
при осадке судна Тгр = 2,25/2,28 м, т
|
1930/1900
|
|
Высота
борта, м
|
2,8
|
|
Грузовая
палуба:
|
|
|
размеры, м
|
62,4×12,0
|
|
площадь, м2
|
730
|
|
Толщина
листов обшивки настила грузовой палубы, мм
|
8
|
|
Расстояние
между соседними несущими (рамными) элементами набора судна, мм:
|
|
|
флорами
|
1200
|
|
кильсонами
|
2500
|
|
Допустимое
удельное давление на настил грузовой палубы, тс/м2:
|
2,42
|
|
Сечение
по ДП:
|
Сечение
поперек ДП:
|
|

План
главной палубы:

|

|
|
Примечание. Числовые значения величин, приведенные в
числителе относятся к проекту Р97, в знаменателе - к проекту Р97И
|
|
Тип
судна
|
Двухвинтовой
сухогрузный теплоход с грузовым ящиком на палубе
|
|
Класс
Речного Регистра РСФСР
|
"P"
|
|
Грузоподъемность
при осадке судна Тгр = 1,6 м, т
|
1200
|
|
Высота
борта, м
|
2,0
|
|
Грузовая
палуба:
|
|
|
размеры, м
|
49,8×12,0
|
|
площадь, м2
|
597,6
|
|
Толщина
листов обшивки настила грузового ящика, мм
|
6
|
|
Расстояние
между соседними несущими (рамными) элементами набора судна, мм:
|
|
|
флорами
|
1200
|
|
кильсонами
|
2500
|
|
Допустимое
удельное давление на настил грузового ящика, тс/м2:
|
2,01
|
|
Сечение
по ДП:
|
Сечение
поперек ДП:
|
|

План
главной палубы:

|

|
|
Тип
судна
|
Двухвинтовой
сухогрузный теплоход с грузовой площадкой на главной палубе между полубаком и
полуютом
|
|
Класс
Речного Регистра РСФСР
|
«О»
|
|
Грузоподъемность
при осадке судна Тгр = 1,71 м, т
|
1200
|
|
Высота
борта, м
|
2,8
|
|
Грузовая
палуба:
|
|
|
размеры, м
|
54,0×12,0
|
|
площадь, м2
|
634
|
|
Толщина
листов обшивки настила грузовой палубы, мм
|
4; 6
|
|
Расстояние
между соседними несущими (рамными) элементами набора судна, мм:
|
|
|
флорами
|
1200
|
|
кильсонами
|
2500
|
|
Допустимое
удельное давление на настил грузовой
палубы, тс/м2:
|
2,17
|
|
Сечение
по ДП:
|
Сечение
поперек ДП:
|
|

План
главной палубы:

|

|
|
Тип
судна
|
Двухвинтовой
сухогрузный теплоход с грузовой площадкой на главной палубе
|
|
Класс
Речного Регистра РСФСР
|
"Р"
|
|
Грузоподъемность
при осадке судна Тгр = 1,78 м, т
|
1000
|
|
Высота
борта, м
|
2,2
|
|
Грузовая
палуба:
|
|
|
размеры,
м
|
48,0×12,0
|
|
площадь,
м2
|
576
|
|
Толщина
листов обшивки настила грузовой палубы, мм
|
6; 8;
10
|
|
Расстояние
между соседними несущими (рамными) элементами набора судна, мм:
|
|
|
флорами
|
1200
|
|
кильсонами
|
2500
|
|
Допустимое
удельное давление на настил грузовой палубы, тс/м2:
|
1,74
|
|
Сечение по ДП:
|
Сечение поперек ДП:
|
|

План главной палубы:

|

|
|
Тип
судна
|
Двухвинтовой
сухогрузный теплоход с грузовым ящиком на палубе
|
|
Класс
Речного Регистра РСФСР
|
"Р"
|
|
Грузоподъемность
при осадке судна Тгр = 1,4 м, т
|
1000
|
|
Высота
борта, м
|
2,0
|
|
Грузовая
палуба:
|
|
|
размеры,
м
|
47,0×12,0
|
|
площадь,
м2
|
560
|
|
Толщина
листов обшивки настила грузового ящика, мм
|
8
|
|
Расстояние
между соседними несущими (рамными) элементами набора судна, мм:
|
|
|
флорами
|
1200
|
|
кильсонами
|
2500
|
|
Допустимое
удельное давлениена настил грузового ящика, тс/м2:
|
1,79
|
|
Сечение
по ДП:
|
Сечение
поперек ДП:
|
|

План
главной палубы:

|

|
|
Тип
судна
|
Двухвинтовой
сухогрузный теплоход, состоящий из двух корпусов, соединенных жестким мостом,
с открытой грузовой палубой
|
|
Класс
Речного Регистра РСФСР
|
«О»
|
|
Грузоподъемность
при осадке судна Тгр = 2,96 м, т
|
1000
|
|
Высота
борта, м
|
4,4
|
|
Грузовая
палуба:
|
|
|
размеры,
м
|
66,5×13,64
|
|
площадь,
м2
|
910
|
|
Толщина
листов обшивки настила грузовой палубы, мм
|
5; 6; 7
|
|
Расстояние
между соседними несущими (рамными) элементами набора судна, мм:
|
|
|
флорами
|
1650
|
|
кильсонами
|
3010
|
|
Допустимое
удельное давление на настил грузовой
палубы, тс/м2:
|
1,27
|
|
Разрез
по ДП:
|
Сечение
поперек ДП:
|
|

План
главной палубы:

|

|
|
|
|
Тип
судна
|
Двухвинтовой
сухогрузный теплоход с грузовой площадкой на главной палубе
|
|
Класс
Речного Регистра РСФСР
|
"Р"
|
|
Грузоподъемность
при осадке судна Тгр = 1,75 м, т
|
900
|
|
Высота
борта, м
|
2,0
|
|
Грузовая
палуба:
|
|
|
размеры,
м
|
48,0×12,0
|
|
площадь,
м2
|
576
|
|
Толщина
листов обшивки настила грузовой палубы, мм
|
6; 8;
10
|
|
Расстояние
между соседними несущими (рамными) элементами набора судна, мм:
|
|
|
флорами
|
1200
|
|
кильсонами
|
2500
|
|
Допустимое
удельное давление на настил грузовой
палубы, тс/м2:
|
1,56
|
|
Сечение
по ДП:
|
Сечение
поперек ДП:
|
|

План
главной палубы:

|

|
|
Тип
судна
|
Двухвинтовой
сухогрузный теплоход-площадка с деревянным тентом
|
|
Класс
Речного Регистра РСФСР
|
«О»
|
|
Грузоподъемность
при осадке судна Тгр = 0,55 м, т
|
800
|
|
Высота
борта, м
|
2,0
|
|
Грузовая
палуба:
|
|
|
размеры,
м
|
47,6×11,4
|
|
площадь,
м2
|
529
|
|
Толщина
листов обшивки настила грузовой палубы, мм
|
7
|
|
Расстояние
между соседними несущими (рамными) элементами набора судна, мм:
|
|
|
флорами
|
1200
|
|
кильсонами
|
2500
|
|
Допустимое
удельное давление на настил грузовой
палубы, тс/м2:
|
1,64
|
|
Сечение
по ДП:
|
Сечение
поперек ДП:
|
|

План
главной палубы:

|

|
|
Тип
судна
|
Сухогрузная
баржа с одним открытым грузовым трюмом
|
|
Класс
Речного Регистра РСФСР
|
«О»
|
|
Грузоподъемность
при осадке судна Тгр = 3,7 м, т
|
3750
|
|
Высота
борта, м
|
5,0
|
|
Грузовой
трюм:
|
|
|
размеры,
м
|
76,2×10,15
|
|
площадь,
м2
|
774
|
|
Размеры
грузового люка, м
|
75,0×11,06
|
|
Толщина
листов обшивки настила второго дна, мм
|
12
|
|
Расстояние
между соседними несущими (рамными) элементами набора судна, мм:
|
|
|
флорами
|
1800
|
|
кильсонами
|
2500
|
|
Допустимое
удельное давление на настил второго
дна, тс/м2:
|
4,84
|
|
Сечение
по ДП:
|
Сечение
поперек ДП:
|
|

План
трюма:

|

|
|
Тип
судна
|
Сухогрузная
баржа с одним открытым грузовым трюмом
|
|
Класс
Речного Регистра РСФСР
|
«О»
|
|
Грузоподъемность
при осадке судна Тгр = 3,2 м, т
|
3000
|
|
Высота
борта, м
|
4,5
|
|
Грузовой
трюм:
|
|
|
размеры,
м
|
70,2×10,2
|
|
площадь,
м2
|
716
|
|
Размеры
грузового люка, м
|
70,2×11,3
|
|
Толщина
листов обшивки настила второго дна, мм
|
8
|
|
Расстояние
между соседними несущими (рамными) элементами набора судна, мм:
|
|
|
флорами
|
1800
|
|
кильсонами
|
2600
|
|
Допустимое
удельное давление на настил второго
дна, тс/м2:
|
4,0
|
|
Сечение
по ДП:
|
Сечение
поперек ДП:
|
|

План
трюма:

|

|
|
*
Высота трюма
|
|
Тип
судна
|
Полусекционная
сухогрузная баржа с одним открытым грузовым трюмом
|
|
Класс
Речного Регистра РСФСР
|
«О»
|
|
Грузоподъемность
при осадке судна Тгр = 2,8 м, т
|
3000
|
|
Высота
борта, м
|
4,0
|
|
Грузовой
трюм:
|
|
|
размеры,
м
|
73,8×13,0
|
|
площадь,
м2
|
960
|
|
Размеры
грузового люка, м
|
75,0×14,0
|
|
Толщина
листов обшивки настила второго дна, мм
|
10
|
|
Расстояние
между соседними несущими (рамными) элементами набора судна, мм:
|
|
|
флорами
|
1200
|
|
кильсонами
|
2600
|
|
Допустимое
удельное давление на настил второго
дна, тс/м2:
|
3,63
|
|
Сечение
по ДП:
|
Сечение
поперек ДП:
|
|

План
трюма:

|

|
|
*
Высота трюма
|
|
Тип
судна
|
Сухогрузная
баржа с одним открытым грузовым трюмом
|
|
Класс
Речного Регистра РСФСР
|
«О»
|
|
Грузоподъемность
при осадке судна Тгр = 2,5 м, т
|
1800
|
|
Высота
борта, м
|
3,21
|
|
Грузовой
трюм:
|
|
|
размеры,
м
|
53,2×9,0+3,8×9,0¸6,8
|
|
площадь,
м2
|
500
|
|
Размеры
грузового люка, м
|
54,3×10,9
|
|
Толщина
листов обшивки настила второго дна, мм
|
6
|
|
Расстояние
между соседними несущими (рамными) элементами набора судна, мм:
|
|
|
флорами
|
1200
|
|
кильсонами
|
3300
|
|
Допустимое
удельное давление на настил второго
дна, тс/м2:
|
3,6
|
|
Сечение
по ДП:
|
Сечение
поперек ДП:
|
|

План
трюма:

|

|
|
* Высота трюма
|
|
Тип
судна
|
Сухогрузное
несамоходное судно с тремя закрытыми грузовыми трюмами
|
|
Класс
Речного Регистра РСФСР
|
«М»
|
|
Грузоподъемность
при осадке судна Тгр = 2,25 м, т
|
1000
|
|
Высота
борта, м
|
3,6
|
|
Грузовой
трюм:
|
Размеры,
м
|
Площадь,
м2
|
|
№
1
|
7,0×11,65+8,8×11,65¸7,5
|
170
|
|
№
2
|
15,4×11,65
|
180
|
|
№
3
|
9,0×11,65+5,85×11,65¸8,3
|
165
|
|
|
|
Всего:
515
|
|
Грузовые
люки трюма:
|
|
|
№ 1
|
10,8×3,5
|
|
№ 2
|
11,0×3,5
|
|
№ 3
|
11,0×3,5
|
|
Толщина
слани, мм
|
50-65
|
|
Расстояние
между соседними несущими (рамными) элементами набора судна, мм:
|
|
|
флорами
|
550
|
|
кильсонами
|
1560
|
|
Допустимое
удельное давление на настил второго дна, тс/м2:
|
1,82
|
|
Сечение
по ДП:
|
Сечение
поперек ДП:
|
|

План
трюма:

|

|
|
* Высота трюма
|
|
Тип
судна
|
Сухогрузная
палубная баржа-площадка
|
|
Класс
Речного Регистра РСФСР
|
«Р»
|
|
Грузоподъемность
при осадке судна Тгр = 2,63 м, т
|
2800
|
|
Высота
борта, м
|
2,85
|
|
Грузовая
палуба:
|
|
|
размеры, м
|
72,8×16,5
|
|
площадь, м2
|
1201
|
|
Толщина
листов обшивки настила грузовой палубы, мм
|
10
|
|
Расстояние
между соседними несущими (рамными) элементами набора судна, мм:
|
|
|
флорами
|
1200
|
|
кильсонами
|
3300
|
|
Допустимое
удельное давление на настил грузовой
палубы, тс/м2:
|
2,3
|
|
Сечение
по ДП:
|
Сечение
поперек ДП:
|
|

План
палубы:

|

|
|
Тип
судна
|
Сухогрузная
палубная баржа-площадка
|
|
Класс
Речного Регистра РСФСР
|
«О»
|
|
Грузоподъемность
при осадке судна Тгр = 2,2 м, т
|
2500
|
|
Высота
борта, м
|
2,8
|
|
Грузовая
палуба:
|
|
|
размеры, м
|
84,0×13,1
|
|
площадь, м2
|
1100
|
|
Толщина
листов обшивки настила грузовой палубы, мм
|
12
|
|
Расстояние
между соседними несущими (рамными) элементами набора судна, мм:
|
|
|
флорами
|
1200
|
|
кильсонами
|
2530
|
|
|
2,82
|
|
Сечение
по ДП:
|
Сечение
поперек ДП:
|
|

План
палубы:

|

|
|
Тип судна
|
Сухогрузная
палубная баржа-площадка
|
|
Класс
Речного Регистра РСФСР
|
«М»
|
|
Грузоподъемность
при осадке судна Тгр = 2,55 м, т
|
2500
|
|
Высота
борта, м
|
3,3
|
|
Грузовая
палуба:
|
|
|
размеры, м
|
67,2×12,7
|
|
площадь, м2
|
853
|
|
Толщина
листов обшивки настила грузовой палубы, мм
|
12
|
|
Расстояние между соседними несущими
(рамными) элементами набора судна, мм:
|
|
|
флорами
|
1200
|
|
кильсонами
|
2530
|
|
Допустимое удельное
давление на настил грузовой
палубы, тс/м2:
|
3,37
|
|
Сечение по ДП:
|
Сечение поперек ДП:
|
|

План палубы:

|

|
|
Тип
судна
|
Наливная
баржа с приподнятой грузовой палубой, приспособленная для перевозки
сухогрузов
|
|
Класс
Речного Регистра РСФСР
|
«Р»
|
|
Грузоподъемность
при осадке судна Тгр = 2,01 м, т
|
1650
|
|
Высота
борта, м
|
2,5
|
|
Грузовая
палуба:
|
|
|
размеры,
м
|
64,0×13,4
|
|
площадь,
м2
|
805
|
|
Грузовые
танки
|
предназначены
для перевозки сырой нефти и нефтепродуктов
|
|
Толщина
листов обшивки настила грузовой палубы, мм
|
6
|
|
Расстояние
между соседними несущими (рамными) элементами набора судна, мм:
|
|
|
флорами
|
2400
|
|
кильсонами
|
2500
|
|
Допустимое
удельное давление на настил грузовой
палубы, тс/м2:
|
2,0
|
|
Примечание: ЖБИ погружают на грузовую
палубу судна
|
|
Разрез
по ДП:
|
Разрез
поперек ДП:
|
|

План
грузовой палубы:

|

|
|
Тип
судна
|
Сухогрузная
баржа с десятью закрытыми грузовыми трюмами и грузовой палубой
|
|
Класс
Речного Регистра РСФСР
|
«Р»
|
|
Грузоподъемность
при осадке судна Тгр = 1,82 м, т
|
1500
|
|
Высота
борта, м
|
2,5
|
|
Грузовая
палуба:
|
|
|
размеры,
м
|
63,2×12,0
|
|
площадь,
м2
|
758
|
|
Грузовые
трюмы
|
предназначены
для перевозки зерна насыпью
|
|
Толщина
листов обшивки настила грузовой палубы, мм
|
5
|
|
Расстояние
между соседними несущими (рамными) элементами набора судна, мм:
|
|
|
флорами
|
2400
|
|
кильсонами
|
2500
|
|
Допустимое
удельное давление на настил грузовой
палубы, тс/м2:
|
1,7
|
|
Примечание: ЖБИ погружают на грузовую
палубу судна
|
|
Разрез
по ДП:
|
Разрез
поперек ДП:
|
|
|
|

План
палубы:

|

|
|
Тип
судна
|
Сухогрузная
палубная баржа - площадка
|
|
Класс
Речного Регистра РСФСР
|
«О»
|
|
Грузоподъемность
при осадке судна Тгр = 1,85 м, т
|
1500
|
|
Высота
борта, м
|
2,5
|
|
Грузовая
палуба:
|
|
|
размеры,
м
|
66,0×13,6
|
|
площадь,
м2
|
898
|
|
Толщина
листов обшивки настила грузовой палубы, мм
|
8
|
|
Расстояние
между соседними несущими (рамными) элементами набора судна, мм:
|
|
|
флорами
|
1200
|
|
кильсонами
|
2500
|
|
Допустимое
удельное давление на настил грузовой
палубы, тс/м2:
|
2,6
|
|
Сечение
по ДП:
|
Сечение
поперек ДП:
|
|

План
палубы:

|

|
|
Тип
судна
|
Саморазгружающаяся
сухогрузная палубная баржа-площадка
|
|
Класс
Речного Регистра РСФСР
|
«Р»
|
|
Грузоподъемность
при осадке судна Тгр = 1,84 м, т
|
1500
|
|
Высота
борта, м
|
2,5
|
|
Грузовая
палуба:
|
|
|
размеры,
м
|
63,6×11,0
|
|
площадь,
м2
|
700
|
|
Толщина
листов обшивки настила грузовой палубы, мм
|
6
|
|
Расстояние
между соседними несущими (рамными) элементами набора судна, мм:
|
|
|
флорами
|
1200
|
|
кильсонами
|
2500
|
|
Допустимое
удельное давление на настил грузовой
палубы, тс/м2:
|
2,1
|
|
Сечение
по ДП:
|
Сечение
поперек ДП:
|
|

План
палубы:

|

|
|
Тип
судна
|
Сухогрузная
палубная баржа-площадка
|
|
Класс
Речного Регистра РСФСР
|
«О»
|
|
Грузоподъемность
при осадке судна Тгр = 1,51 м, т
|
1000
|
|
Высота
борта, м
|
2,0
|
|
Грузовая
палуба:
|
|
|
размеры,
м
|
52,8×12,0
|
|
площадь,
м2
|
634
|
|
Толщина
листов обшивки настила грузовой палубы, мм
|
4; 6;
10
|
|
Расстояние
между соседними несущими (рамными) элементами набора судна, мм:
|
|
|
флорами
|
1200
|
|
кильсонами
|
2500
|
|
Допустимое
удельное давление на настил грузовой
палубы, тс/м2:
|
1,53
|
|
Сечение
по ДП:
|
Сечение
поперек ДП:
|
|

План
палубы:

|

|
|
Тип
судна
|
Сухогрузная
палубная баржа-площадка
|
|
Класс
Речного Регистра РСФСР
|
«Р»
|
|
Грузоподъемность
при осадке судна Тгр = 1,57 м, т
|
1000
|
|
Высота
борта, м
|
2,0
|
|
Грузовая
палуба:
|
|
|
размеры,
м
|
55,0×11,0
|
|
площадь,
м2
|
605
|
|
Толщина
листов обшивки настила грузовой палубы, мм
|
6; 8;
10
|
|
Расстояние
между соседними несущими (рамными) элементами набора судна, мм:
|
|
|
флорами
|
1200
|
|
кильсонами
|
2500
|
|
Допустимое
удельное давление на настил грузовой
палубы, тс/м2:
|
1,9
|
|
Сечение
по ДП:
|
Сечение
поперек ДП:
|
|

План
палубы:

|

|
|
Тип
судна
|
Сухогрузная
палубная баржа-площадка с жилой надстройкой и рубкой в корме
|
|
Класс
Речного Регистра РСФСР
|
«Р»
|
|
Грузоподъемность
при осадке судна Тгр = 1,49 м, т
|
1000
|
|
Высота
борта, м
|
2,0
|
|
Грузовая
палуба:
|
|
|
размеры,
м
|
55,0×12,0
|
|
площадь,
м2
|
660
|
|
Толщина
листов обшивки настила грузовой палубы, мм
|
4; 5
|
|
Расстояние
между соседними несущими (рамными) элементами набора судна, мм:
|
|
|
флорами
|
2400
|
|
кильсонами
|
2500
|
|
Допустимое
удельное давление на настил грузовой палубы,
тс/м2:
|
1,52
|
|
Сечение
по ДП:
|
Сечение
поперек ДП:
|
|

План
палубы:

|

|
|
Тип
судна
|
Сухогрузная
палубная баржа-площадка
|
|
Класс
Речного Регистра РСФСР
|
«Р»
|
|
Грузоподъемность
при осадке судна Тгр = 1,49 м, т
|
1000
|
|
Высота
борта, м
|
2,0
|
|
Грузовая
палуба:
|
|
|
размеры,
м
|
60,0×11,5
|
|
площадь,
м2
|
690
|
|
Толщина
листов обшивки настила грузовой палубы, мм
|
4; 5; 6
|
|
Расстояние
между соседними несущими (рамными) элементами набора судна, мм:
|
|
|
флорами
|
1200
|
|
кильсонами
|
2500
|
|
Допустимое
удельное давление на настил грузовой
палубы, тс/м2:
|
1,63
|
|
Сечение
по ДП:
|
Сечение
поперек ДП:
|
|

План
палубы:

|

|
|
Тип
судна
|
Сухогрузная
палубная баржа-площадка
|
|
Класс
Речного Регистра РСФСР
|
«Р»
|
|
Грузоподъемность
при осадке судна Тгр = 1,25 м, т
|
800
|
|
Высота
борта, м
|
2,0
|
|
Грузовая
палуба:
|
|
|
размеры,
м
|
51,0×12,0
|
|
площадь,
м2
|
612
|
|
Толщина
листов обшивки настила грузовой палубы, мм
|
5
|
|
Расстояние
между соседними несущими (рамными) элементами набора судна, мм:
|
|
|
флорами
|
1200
|
|
кильсонами
|
2500
|
|
Допустимое
удельное давление на настил грузовой
палубы, тс/м2:
|
1,3
|
|
Сечение
по ДП:
|
Сечение
поперек ДП:
|
|

План
палубы:

|

|
|
Тип
судна
|
Сухогрузная
палубная баржа-площадка с полутопленной надстройкой в корме
|
|
Класс
Речного Регистра РСФСР
|
«Р»
|
|
Грузоподъемность
при осадке судна Тгр = 1,36 м, т
|
600
|
|
Высота
борта, м
|
2,0
|
|
Грузовая
палуба:
|
|
|
размеры,
м
|
35,0×7,0+14,0×8,0+5,0×8,0¸7,0
|
|
площадь,
м2
|
400
|
|
Толщина
листов обшивки настила грузовой палубы, мм
|
5; 6;
8; 10
|
|
Расстояние
между соседними несущими (рамными) элементами набора судна, мм:
|
|
|
флорами
|
1200
|
|
кильсонами
|
2500
|
|
Допустимое
удельное давление на настил грузовой
палубы, тс/м2:
|
1,5
|
|
Сечение
по ДП:
|
Сечение
поперек ДП:
|
|

План
палубы:

|

|
|
Тип
судна
|
Сухогрузная
палубная баржа-площадка
|
|
Класс
Речного Регистра РСФСР
|
«Р»
|
|
Грузоподъемность
при осадке судна Тгр = 1,37 м, т
|
600
|
|
Высота
борта, м
|
2,0
|
|
Грузовая
палуба:
|
|
|
размеры,
м
|
41,0×10,0
|
|
площадь,
м2
|
410
|
|
Толщина
листов обшивки настила грузовой палубы, мм
|
6; 8
|
|
Расстояние
между соседними несущими (рамными) элементами набора судна, мм:
|
|
|
флорами
|
1200
|
|
кильсонами
|
2500
|
|
Допустимое
удельное давление на настил грузовой
палубы, тс/м2:
|
1,46
|
|
Сечение
по ДП:
|
Сечение
поперек ДП:
|
|

План
палубы:

|

|
|
Тип
судна
|
Сухогрузная
палубная баржа-площадка
|
|
Класс
Речного Регистра РСФСР
|
«Р»
|
|
Грузоподъемность
при осадке судна Тгр = 1,11 м, т
|
300
|
|
Высота
борта, м
|
2,0
|
|
Грузовая
палуба:
|
|
|
размеры,
м
|
36,6×7,5
|
|
площадь,
м2
|
274
|
|
Толщина
листов обшивки настила грузовой палубы, мм
|
6; 8;
10
|
|
Расстояние
между соседними несущими (рамными) элементами набора судна, мм:
|
|
|
флорами
|
1200
|
|
кильсонами
|
2500
|
|
Допустимое
удельное давление на настил грузовой
палубы, тс/м2:
|
1,2
|
|
Сечение по ДП:
|
Сечение
поперек ДП:
|
|

План
палубы:

|

|
|
Тип
судна
|
Сухогрузная
палубная баржа-площадка
|
|
Класс
Речного Регистра РСФСР
|
«Р»
|
|
Грузоподъемность
при осадке судна Тгр = 1,07 м, т
|
200
|
|
Высота
борта, м
|
1,3
|
|
Грузовая
палуба:
|
|
|
размеры,
м
|
24,19×5,60
|
|
площадь,
м2
|
134
|
|
Толщина
листов обшивки настила грузовой палубы, мм
|
4; 7
|
|
Расстояние
между соседними несущими (рамными) элементами набора судна, мм:
|
|
|
флорами
|
1200
|
|
кильсонами
|
1700
|
|
Допустимое
удельное давление на настил грузовой
палубы, тс/м2:
|
1,5
|
|
Сечение
по ДП:
|
Сечение
поперек ДП:
|
|

План
палубы:

|

|
Приложение 5
1. СВАИ
Сваи размещаются преимущественно
вдоль судна, в несколько ярусов острием в одну сторону.
Сваи квадратного сечения
укладываются на деревянные подкладки сечением не менее 100×100 мм и прокладки
сечением не менее 30´50
мм, расположенные в местах, установленных стандартом или техническими условиями
на изделия (рис. 1).
Сваи круглого сечения
укладываются на седлообразные подкладки или в гнезда, образованные
ограничительными брусками или клиньями, закрепленными на подкладках и
прокладках (рис. 2 и 3).
Ограничительные клинья могут быть
закреплены на подкладках с помощью металлических упоров (рис. 4). Седлообразные выкружки и гнезда, должны иметь
высоту не менее 1/5 диаметра изделия. Радиус выкружки должен быть равен радиусу
изделия в месте прилегания. Сваи круглого сечения при штабелировании
укладываются в ярусы одна над другой.
Сваи каждого яруса сепарируют
между собой (если эта требуется по соответствующему стандарту или техническим
условиям на изделия) деревянными разделителями толщиной не менее 20 мм (рис. 5).
В плоскости установки подкладок и
прокладок сваи верхних ярусов могут быть увязаны между собой за строповочные
петли проволокой согласно требованиям п. 2.21 настоящих ТУ (рис.
6).
Штабели, не доходящие до бортов,
могут расклиниваться с использованием раскрепительных рам (рис. 7).

Рис. 1
1 - свая; 2 -
подкладка; 3 - прокладка

Рис. 2
1 - свая; 2 -
подкладка; 3 - прокладка

Рис. 3
1 - ограничительный брус; 2
- ограничительный клин; 3 - подкладка или прокладка

Рис. 4
1 - металлический упор; 2
- ограничительный клин; 3 - подкладка

Рис. 5
1 - свая; 2 -
разделитель; 3 - прокладка; 4 - подкладка

Рис. 6. Размещение
малоустойчивых изделий: балок, ригелей, свай квадратного сечения в трюме судна:
1 - флоры; 2 -
кильсоны; 3 - прокладки; 4 - строповочные петли; 5 -
проволока

Рис. 7
1 - свая; 2 -
подкладка; 3 - прокладка; 4 - разделитель; 5 -
раскрепительная рама
2.
ОПОРЫ ЛЭП
Опоры линий электропередач (ЛЭП)
размещаются в несколько ярусов вдоль судна.
Опоры ЛЭП укладываются на
подкладки и прокладки с седлообразными выкружками радиусом, равным, радиусу
изделия в месте прилегания. Опоры могут быть уложены в гнезда, образованные ограничительными
брусками или клиньями, закрепленными на подкладках и прокладках. Глубина
выкружек и гнезд должна быть не менее 1/5 диаметра изделий в месте прилегания.
Высота подкладок под опоры
конической формы подбирается таким образом, чтобы продольная ось изделии была
параллельна опорной поверхности (палубе), причем высота подкладки под уширенной
частью должна быть не менее 100 мм. Каждый последующий ярус укладывается
уширенной частью в сторону, противоположную предыдущему, на прокладки
одинаковой толщины, но сечением не менее 30´50 мм, причем для
правильности опирания каждый последующий ярус должен быть сдвинут по отношению
к предыдущему (рис. 8). Подкладки
располагаются на 0,23 и 0,18 длины опоры ЛЭП от уширенной и зауженной
частей изделий соответственно. Прокладки располагаются в строго вертикальной
плоскости над подкладками.
Опоры ЛЭП при штабелировании
укладываются строго одна над другой.
Крепление опор ЛЭП производится
по аналогии с креплением свай путем установки раскрепительных рам между
штабелем и корпусом судна.

Рис. 8
1 - стойка ЛЭП; 2 -
подкладка; 3 - прокладка
3.
БАНКИ И РИГЕЛИ
Балки и ригели укладываются
преимущественно вдоль судна в проектном (рабочем) положении в несколько ярусов.
Во избежание излома размещать и перевозить их плашмя запрещается.
Для предупреждения смещения
каждый ярус изделий должен укладываться на специальные подкладки сечением не
менее 100´100
мм для первого яруса и 30´50 мм, для последующих с гнездами в виде гребенки,
устанавливаемые в плоскости опирания балок и ригелей.
Опоры-гребенки могут быть
деревянными (рис. 9) или набираться из
переносных металлических каркасов, обшитых деревянными досками толщиной не
менее 20 мм и закрепляемых на подкладках (рис
10). Конструкция опор гребенок должна предотвращать соприкосновение
уложенных в штабель изделий, а форма и размеры гнезд должны
соответствовать сечению балок и ригелей в месте опирания.
Если позволяет конструкция балок
и ригелей, то они могут быть уложены, отсепарированы и закреплены по аналогии,
со сваями квадратного сечения без применения гребенок (см. рис. 6
и 7).

Рис. 9
1 - ригель; 2 -
гребенка

Рис. 10
1 - балка; 2 -
гребенка; 3 - металлический каркас, обшитый досками
4. КОЛОННЫ
Колонны размещаются вдоль судна в
горизонтальном положении в несколько ярусов (рис.
11 и 12).
Двухветвевые колонны допускается
укладывать на ребро в 1 ярус в специальные опоры-гребенки, обеспечивающие
устойчивое, положение колонн (рис. 13).
Колонны укладываются на
деревянные подкладки сечением не менее 100´100 мм и прокладки
сечением не менее 30´50
мм. В каждом ярусе колонны сепарируются между собой (если это требуется по
соответствующему стандарту или техническим условиям на изделия) деревянными,
разделителями толщиной не менее 20 мм, которые устанавливаются в плоскости
опирания.

Рис. 11
1 - колонна; 2 - подкладка; 3
- разделитель

Рис. 12
1 - колонна; 2 -
подкладка; 3 - прокладка; 4 - разделитель

Рис. 13
1 - колонна; 2 -
гребенка

Рис. 14
5.
ТРУБЫ
Трубы укладываются вдоль судна в штабель по схемам
согласно рис. 14.
Укладка труб производится на
подкладки сечением не менее 100´100 мм и прокладки сечением не менее 30´50
мм. В любом случае продольные оси труб должны быть параллельны палубе, а зазор
между трубами и судовыми конструкциями должен быть не менее 30 мм.
При укладке по схеме 2
допускается касание труб по образующей (рис. 15).
При формировании штабеля по схеме
1 трубы укладываются одна над другой в гнезда, образованные ограничительными
брусками или клиньями, закрепленными на подкладках и прокладках. Глубина гнезд
должна быть не менее 1/5 диаметра труб (см. рис.
3).
Трубы, имеющие фланцы, или
раструбы, могут укладываться татам, образом, чтобы в каждом последующем ярусе-
штабеля раструбы и фланцы были обращены в сторону, противоположную предыдущему
ярусу, при этом каждый последующий ярус сдвигается по отношению к предыдущему
на длину раструба или фланца.
При формировании штабеля труб от
борта до борта крайние трубы должны опираться на набор судна через посредство
деревянных прокладок или раскрепительных рам (рис.
16).

Рис. 15
1 - труба; 2 -
ограничительный клин или брус; 3 - концевой упор; 4 - подкладка

Рис. 16
1 - труба; 2 -
раскрепительная рама; 3 - клин; 4 - разделитель; 5 - прокладка; 6
- ограничительный брусок; 7- подкладка
6.
ЩИТЫ ПОКРЫТИЙ И ПЕРЕКРЫТИЙ
Плиты при погрузке укладываются в
горизонтальном, положении в несколько ярусов на подкладки сечением не менее 100´100
мм и прокладки сечением не менее 30´50 мм (рис. 17).
Подкладки и прокладки
располагаются на расстоянии 50-75 см от торцов плит, но не далее расположения
строповочных петель. Под плиты из ячеистого бетона прокладки устанавливаются на
расстоянии 50 см от торцов.
При размещении в судне щиты
укладываются в отдельные свободно стоящие штабели, которые согласно требований
п. 2.20 настоящих ТУ могут быть
объединены между собой в группы с целью повышения их устойчивости.
Крепление изделий между собой и в группе выполняется средствами я способами,
оговоренными п. 2.22.
Плиты со строповочными петлями,
не выступающими за их габариты, в штабеле могут крепиться скобами, как показано
на рис. 18, если этого требуют условия
плавания.

Рис. 17
1 - плита; 2 -
подкладка; 3 - прокладка; 4 - кильсоны; 5 - флоры; 6
- строповочная петля

Рис. 18
1 - плита; 2 -
прокладка; 3 - закладная скоба

Рис. 19
1 - панель; 2 -
подкладка с клиньями; 3 - прокладка; 4 - пирамида; 5 -
раскрепительная рама

Рис. 20
1 - панель; 2 -
подкладка с клиньями; 3 - прокладка; 4 - раскрепительная рама; 5
- пирамида
7.
СТЕНОВЫЕ ПАНЕЛИ
Стеновые панели к перевозке, как
правило, должны поставляться в специальных пеналах-кассетах. Панели,
транспортируемые в пеналах-кассетах, расклиниваются и раскрепляются между собой
и к таре. Пеналы-кассеты размещаются как
вдоль, так и поперек судна в соответствии с Техническими условиями
погрузки и размещения тарно-штучных грузов (6.6).
Панели, поставляемые к перевозке
без упаковки, размещаются вдоль судна в I ярус и транспортируются в рабочем, вертикальном или близком к
нему наклонном положении.
При формировании штабеля на всю
ширину судна панели устанавливаются на деревянные подкладки сечением не менее
100´100
мм и опираются на опорные пирамиды, раскрепительные рамы, передающие нагрузку
на прочный набор корпуса судна (рис. 19 и
20).
Стеновые панели могут быть
установлены, на специальные металлические стеллажи с жестко закрепленными на
них опорными пирамидами высотой не менее 3/4 высоты панели (рис. 21). Опорные поверхности пирамид должны быть обшиты
досками толщиной 25 мм. На стеллажах должны быть установлены деревянные
подкладки сечением не менее 100×100 мм. В процессе погрузки каждая панель
должна подклиниваться к подкладкам деревянными клиньями и крепиться к
предыдущей панели отожженной проволокой, а первая - к опорной пирамиде. Между
панелями устанавливаются вертикальные Г-образные прокладки из досок сечением.
100×25 мм. Для того чтобы прокладки при установке не падали, в верхней их
части крепится обрезок доски (рис. 22 и 23).

Рис. 21
1 - панель; 2 -
пирамида; 3 - подкладка; 4 - клин; 5 - вертикальная
прокладка; 6 - деревянная обшивка.

Рис. 22

Рис. 23
1 - панель; 2 -
пирамида; 3 - вертикальная прокладка
8.
ФЕРМЫ
Стропильные, подстропильные,
мостовые и другие фермы при перевозке, размещаются вдоль судна в 1 ярус. Фермы
устанавливаются в рабочем положении на специальные опоры с жестко закрепленными
на них призмами (рис. 24) или в кассеты (рис. 25).
Опоры и кассеты в зависимости от
массы и габаритов перевозимых ферм могут быть деревянными или металлическими.
На металлические каркасы опор и кассет крепятся деревянные подкладки из брусьев
сечением не менее 100×100 мм, а места соприкосновения опорных призм и
кассет с боковыми поверхностями ферм, обшиваются досками толщиной не менее 20
мм.
Опорные призмы и кассеты должны
иметь специальные приспособления для крепления к ним ферм.
Фермы должны устанавливаться на
подкладки опор и кассет местами узлов соединения связей. Между фермами в
плоскости опирания устанавливаются деревянные прокладки, располагать которые
рекомендуется по возможности по вертикальным связям, ферм. Высота, прокладок
должна быть равной высоте ферм в месте установки прокладок, а толщина должна
обеспечивать вертикальное положение и плотную установку ферм.
В процессе погрузки фермы
крепятся между собой и к опорной призме или кассете проволокой (рис. 26).

Рис.
24
1 - ферма; 2 - призма;
3 - подкладка с гребенкой

Рис. 25
1 - ферма; 2 -
кассета; 3 - вертикальная прокладка

Рис. 26
1 - ферма; 2 - призма;
3 - прокладка; 4 - проволока
9.
ФУНДАМЕНТЫ
Фундаментные блоки и плиты укладываются вдоль судна
в несколько ярусов на подкладки и прокладки сечением не менее 100×100 мм
и 30×50 мм, соответственно, устанавливаемые вблизи вертикальной
плоскости, проходящей через строповочные петли.
Фундаментные блоки и плиты
крепятся аналогично плитам покрытий и перекрытий.
Пример размещения этих изделий в
судне приведен на рис. 27.

Рис. 27
1 - блоки фундаментов - плиты
железобетонные для ленточных фундаментов; 2 - подкладки; 3 -
прокладки; 4 - флоры; 5 - кильсоны
10.
СТЕНОВЫЕ КОЛЬЦА
Стеновые кольца, колодцев и
другие детали цилиндрической формы небольшой высоты ставятся на торец в
несколько ярусов на подкладки сечением, не менее 100×100 мм и прокладки
сечением, не менее 30×50 мм, уложенные поперек судна. Каждое изделие
должно укладываться на 2 подкладки
или прокладки, расстояние между осями которых должно составлять 0,55-0,65
наружного диаметра колец.
Для достижения плотной укладки и
предотвращения соприкосновения друг с другом изделия с боков сепарируются между
собой (если это требуется по соответствующему стандарту или техническим
условиям на изделия) деревянными досками толщиной не менее 20 мм, а изделия
верхнего яруса дополнительно расклиниваются (рис. 28).
В обоснованных случаях допускается
касание колец по образующей (рис. 29).

Рис. 28
1 - стеновое кольцо; 2
- подкладка; 3 - прокладка; 4 - клин

Рис. 29
11.
ЛЕСТНИЧНЫЕ МАРШИ
Лестничные марши укладываются вдоль судна в
горизонтальном положении в несколько ярусов лицевой поверхностью вверх.
Подкладки сечением не менее 100´100
мм располагаются параллельно ступеням маршей. Прокладки сечением не менее 30´50
мм устанавливаются вдоль маршей (рис. 30).
Прокладки и подкладки должны устанавливаться на расстоянии 15-20 см от краев и
изделий.
Смежные штабели сепарируются
между собой (если это требуется по соответствующему стандарту или техническим
условиям на изделия) вертикальными деревянными планками толщиной не менее 20
мм.
Крепление лестничных маршей
производится аналогично креплению плит покрытий и перекрытий. Пример размещения
лестничных маршей в трюме судна приведен на рис.
31. Высота укладки эскизом не нормируется.
Лестничные марши с полуплощадками
(типа ЛМП) следует транспортировать в положении "на ребро" с надежным
их закреплением в этом положении. Подкладки и прокладки должны быть установлены
в местах расположений строповочных петель и отверстий.

Рис. 30

Рис. 31
1 - лестничные марши; 2
- разделитель; 3 - подкладка; 4 - прокладка; 5 - кильсоны;
6 - флоры.
12.
МЕЛКИЕ СТРОИТЕЛЬНЫЕ ДЕТАЛИ И ЭЛЕМЕНТЫ
Мелкие строительные детали и элементы (подоконные,
тротуарные и бордюрные плиты, асбоцементные трубы и соединительные муфты,
элементы водопроводных и канализационных колодцев и др.) должны перевозиться в
пакетах и контейнерах.
Укладка в контейнерах и пакетах
должна быть плотной.
Плоские элементы укладываются,
как правило, на ребро.
Приложение
6.1
|
Параметр
|
Значение
параметров, марка изделий, погружаемых
|
|
В трюм
|
на крышки
люков
|
|
ФБС24.46-Т
|
В5-4И
|
ШЛ32С28
|
ФБС24.46-Т
|
|
Масса
изделия, т
|
1,30
|
4,62
|
4,95
|
1,30
|
|
Размеры
изделия L×B×H, мм
|
2380×400×580
|
5800×140×2620
|
1930×1820×2790
|
2980×400×580
|
|
Расстояние,
мм
|
между осями
подкладок А
|
1440
|
3800
|
1780
|
1440
|
|
от торца
изделия до оси подкладок, Т
|
470
|
1000
|
75
|
470
|
|
Размещение
подкладок
|
поперек судна
|
вдоль судна
|
поперек судна
|
вдоль судна
|
|
Допустимое
число ярусов изделия в штабеле, шт.
|
2
|
1
|
1
|
1
|
|
Количество
изделий по ширине судна, шт.
|
6
|
1
|
3
|
4
|
|
Разрыв между изделиями, мм
|
вдоль судна
|
180
|
50
|
100
|
180
|
|
поперек судна
|
-
|
-
|
100
|
-
|
|
Удельное давление от штабеля изделий, тс/ м2
|
2,73
|
4,09
|
1,31
|
0,95
|
|
Допустимое
удельное давление на настил второго дна, крышки люков, тс/м2
|
4,17
|
0,95
|
|
Общее
количество изделий, погружаемых в трюм, шт.
|
192
|
132
|
24
|
256
|
|
Масса, т
|
изделий,
погружаемых в трюм, на крышки люков
|
249,6
|
609,8
|
118,8
|
332,8
|
|
суммарная
|
1311,0
|
|
Размеры h×b×l по ГОСТ 2695-83
(ГОСТ 24454-80Е)
|
подкладки-бруса
|
100×100×1400
|
100×175×6000
клин 100×175×570
|
100×150×6000
|
100×100×5500
|
|
прокладки-бруса
|
50×50×1400
|
50×50×2500
|
-
|
-
|
1. В судно погружают блоки
бетонные для стен подвалов марки ФБС 24.4.6-Т, панели стеновые внутренние
бетонные и железобетонные для жилых и общественных зданий марки В5-4И, элементы
объемные шахты лифта марки ШЛ32С28.
2. В трюме изделия марки
ФБС 24.4.6-Т верхнего яруса увязывают группами по три блока крепежной
проволокой диаметром 4 мм в две нити, пропуская ее через строповочные петли.
|
Потребность
в подкладочных и прокладочных материалах
|
-
8,75 м3
|
|
Из
них брус сечением, мм:
|
100×175
|
-
1,26 м3
|
|
100×150
|
-
1,44 м3
|
|
100×100
|
- 4,18
м3
|
|
50×50
|
-
1,87 м3
|



|
Параметр
|
Значение параметра для изделия марки 2ФПН
|
|
Масса
изделия, т
|
35,5
|
|
Размеры
изделия L×B×H, мм
|
12000×3090×800
|
|
Расстояние, мм
|
между осями
подкладок
|
9100
|
|
от торца
изделия до оси подкладок
|
500 и 2900
|
|
Размещение
подкладок
|
поперек судна
|
вдоль судна
|
|
Допустимое
число ярусов изделия в штабеле, шт.
|
1
|
1
|
|
Количество
изделий по ширине судна, шт.
|
4
|
1
|
|
Разрыв между изделиями, мм
|
вдоль судна
|
100
|
100
|
|
поперек судна
|
200
|
-
|
|
Удельное
давление от штабеля изделии, тс/ м2
|
0,36
|
|
Допустимое
удельное давление на настил грузовой палубы, тс/ м2
|
1,27
|
|
Общее
количество изделий, погружаемых в трюм, шт.
|
22
|
|
Масса, погружаемых изделий, т
|
781
|
|
Размеры h×b×l по ГОСТ 2695-83
(ГОСТ 24454-80Е)
подкладки-бруса
|
100×100×3200
|
1. В судно погружают плиты
фундаментные для монтажа насухо марки 2ФПН .
2. Изделия укладывают
горизонтально. Влияние покатости палубы устраняют подкладками, сечение которых
без разрывов увеличивается от диаметральной плоскости судна к бортам.
Потребность в подкладочных
материалах - 1, 4 м3



|
Параметр
|
Значение параметров, марка изделий, погружаемых
|
|
В трюм № 1
|
|
НВ-28-18
|
ПДП-3,0×1,75
|
ВЦЗТ-1
|
|
Масса изделия, т
|
1,87
|
2,20
|
4,70
|
|
Размеры изделия L×B×H, мм
|
2750×1790×220
|
3000×1750×170
|
5780×2230×180
|
|
Расстояние, мм
|
между осями подкладок А
|
Принимают по
рабочим чертежам или грузовым характеристикам, выдаваемым грузоотправителем
|
1800
|
Принимают по
рабочим чертежам или грузовым характеристикам, выдаваемым грузоотправителем
|
|
от торца изделия до оси подкладок, Т
|
600
|
|
Размещение подкладок
|
вдоль судна
|
поперек судна
|
вдоль судна
|
|
Допустимое число ярусов изделия в штабеле, шт.
|
7
|
6
|
1
|
|
Количество изделий по ширине судна, шт.
|
2
|
5
|
1
|
|
Разрыв между изделиями, мм
|
вдоль судна
|
-
|
100
|
125
|
|
поперек судна
|
100
|
100
|
-
|
|
Удельное давление от штабеля изделии, тс/ м2
|
2,52
|
2,52
|
2,44
|
|
Допустимое удельное давление на настил второго дна, люковые крышки,. тс/ м2
|
2,52
|
|
Общее количество изделий, погружаемых в трюм, шт.
|
14
|
54
|
30
|
|
Масса, т
|
изделий, погружаемых в трюм, на крышки люков
|
26,18
|
118,8
|
141,0
|
|
суммарная
|
285,98
|
|
Размеры h×b×l по ГОСТ 2695-83
(ГОСТ 24454-80Е), мм
|
подкладки-бруса
|
100×100×1900
|
100×100×1850
|
100×150×4500
|
|
прокладки-бруса
|
50×50×1800
|
50×50×1750
|
100×125×2000
|
Придолжение 6.3
|
Параметр
|
Значение параметров, марка изделий, погружаемых
|
|
В трюм № 2
|
|
ПДП-3,0×1,75
|
НВ-28-18
|
ВЦЗТ-1
|
|
Масса изделия, т
|
2,20
|
1,87
|
4,70
|
|
Размеры изделия L×B×H, мм
|
3000×1750×170
|
2750×1790×220
|
5780×2230×180
|
|
Расстояние, мм
|
между осями подкладок А
|
1800
|
Принимают по
рабочим чертежам или грузовым характеристикам, выдаваемым грузоотправителем
|
|
от торца изделия до оси подкладок, Т
|
600
|
|
Размещение подкладок
|
поперек судна
|
поперек судна
|
вдоль судна
|
|
Допустимое число ярусов изделия в штабеле, шт.
|
6
|
7
|
1
|
|
Количество изделий по ширине судна, шт.
|
5
|
5
|
1
|
|
Разрыв между изделиями, мм
|
вдоль судна
|
700
|
-
|
125
|
|
поперек судна
|
100
|
100
|
-
|
|
Удельное давление от штабеля изделий, тс/ м2
|
2,52
|
2,52
|
2,44
|
|
Допустимое удельное давление на настил второго дна, люковые крышки,. тс/ м2
|
2,52
|
|
Общее количество изделий, погружаемых в трюм, шт.
|
54
|
35
|
25
|
|
Масса, т
|
изделий, погружаемых в трюм, на крышки люков
|
118,8
|
65,45
|
117,5
|
|
суммарная
|
301,75
|
|
Размеры h×b×l по ГОСТ 2695-83
(ГОСТ 24454-80Е), мм
|
подкладки-бруса
|
100×100×1850
|
100×100×1900
|
100×150×4500
|
|
прокладки-бруса
|
50×50×1750
|
50×50×1800
|
100×125×2000
|
|
|
|
|
|
|
Придолжение 6.3
|
Параметр
|
Значение параметров, марка изделий, погружаемых
|
|
В трюм № 3
|
на крышки люков
|
|
ПВГ-50
|
ПНГ-50
|
ПДП-3,0×1,75
|
БКНА 6-3С
|
ПА72-24К-2
|
ПДП-3,0×1,75
|
|
Масса изделия, т
|
2,58
|
2,82
|
2,20
|
4,20
|
6,87
|
2,20
|
|
Размеры изделия L×B×H, мм
|
1930×2920×200
|
1930×2920×200
|
3000×1750×170
|
6000×600/200×1000
|
7180×2380×220
|
3000×1750×170
|
|
Расстояние, мм
|
между осями подкладок А
|
2160
|
2160
|
1800
|
5800
|
Принимают по
рабочим чертежам или грузовым характеристикам, выдаваемым грузоотправителем
|
1800
|
|
от торца изделия до оси подкладок, Т
|
380
|
380
|
600
|
100
|
600
|
|
Размещение подкладок
|
Поперек судна
|
Поперек судна
|
Поперек судна
|
Вдоль судна
|
Поперек судна
|
Вдоль судна
|
|
Допустимое число ярусов изделия в штабеле, шт.
|
3,5
|
2
|
6
|
2
|
6,5
|
3
|
|
Количество изделий по ширине судна, шт.
|
4
|
2
|
1
|
4
|
2
|
|
Разрыв между изделиями, мм
|
вдоль судна
|
-
|
900
|
50
|
200
|
100
|
|
поперек судна
|
100
|
-
|
-
|
100
|
100
|
|
Удельное давление от штабеля изделий, тс/ м2
|
2,50
|
2,52
|
2,28
|
2,5
|
0,42
|
|
Допустимое удельное давление на настил второго дна, люковые крышки,. тс/ м2
|
2,52
|
1,30
|
|
Общее количество изделий, погружаемых в трюм, шт.
|
14
|
8
|
12
|
14
|
26
|
36
|
|
Масса, т
|
изделий, погружаемых в трюм, на крышки люков
|
36,12
|
22,56
|
26,4
|
58,8
|
178,62
|
79,2
|
|
суммарная
|
322,49
|
|
|
Размеры h×b×l по ГОСТ 2695-83
(ГОСТ 24454-80Е), мм
|
подкладки-бруса
|
100×100×2000
|
100×100×2000
|
100×100×1850
|
100×100×2000
|
100×100×2450
|
100×100×6000
|
|
прокладки-бруса
|
50×50×1950
|
50×50×1850
|
50×50×1750
|
100×100×2000
|
150×50×2400
|
-
|



1. В судно погружают изделия:
плиты покрытия дорог марки ПДП-3,0×1,75; панели внутренних стен цоколя
(железобетонные) марки ВЦЗТ - 1 и; настилы перекрытий легкого каркаса {рядовые)
марки НВ-28-18; элементы шахты лифта - плиту верхнюю марки ПВГ-50 и плиту
нижнюю марки ПНГ-50; подкрановые балки марки БКНЛ6-З с; панели перекрытий
(зданий на широком шаге) марки ПА 72 - 24К - 2.
2. В каждый общий штабель
элементов шахты лифта укладывают 3,5 плиты марки ПВГ-50 и две плиты марки
ПНГ-50. Одну верхнюю плиту марки ПНГ-50 размещают на двух плитах подстилающего
яруса. На каждую плиту подстилающего яруса приходится половина массы верхней
плиты.
Аналогично размещают одну верхнюю
панель марки ПА72- 24Кв-2 на двух панелях подстилающего яруса в штабеле.
3. Крепление (увязка проволокой в
две нити) подкрановых балок марки ВКНА 6-ЗС обязательна в обоих ярусах. Расход
крепежной проволоки по ГОСТ
3282-74 диаметром 6мм составляет 7,0 кг.
4. Потребность в
подкладочных материалах и бруса сечением 100×150 мм указана с учетом
расхода на изготовление клиновых уступов для изделий марки ВЦЗГ-1и.
|
Всего погружают в судно 322 изделия общей массой:
|
- 989,42 т
|
|
Потребность в подкладочных и прокладочных
материалах
|
- 7,59 м3
|
|
Из них брус сечением, мм:
|
100×150
|
- 0,76 м3
|
|
100×125
|
- 2,63 м3
|
|
100×100
|
- 2,88 м3
|
|
50×50
|
- 1,30 м3
|
|
Параметр
|
Значение параметров, марка изделий, погружаемых
|
|
В трюм № 1
|
В трюм № 2
|
В трюм № 3
|
на крышки люков
|
|
УТК1420-24-1
|
УТК1420-24-1
|
УТК1420-24-1
|
УТК1420-24-2
|
|
Масса изделия, т
|
2,85
|
4,12
|
|
Размеры изделия L×B×H, мм
|
2400×1930×935
|
2400×2080×1010
|
|
Расстояние, мм
|
между осями подкладок А
|
1100
|
1100
|
|
от торца изделия до оси подкладок, Т
|
650
|
650
|
|
Размещение подкладок
|
вдоль судна
|
поперек судна
|
|
Допустимое число ярусов изделия в штабеле, шт.
|
3
|
1
|
|
Количество изделий по ширине судна, шт.
|
2-4
|
4
|
|
Разрыв между изделиями, мм
|
вдоль судна
|
Вплотную без разрывов
|
Вплотную без разрывов
|
|
поперек судна
|
100
|
Вплотную без разрывов
|
|
Удельное давление от штабеля изделий, тс/м2
|
1,49
|
1,82
|
|
Допустимое удельное давление на настил второго дна, крышки люков, тс/ м2
|
2,50
|
1,30
|
|
Общее количество изделий, погружаемых в трюм, шт.
|
60
|
72
|
72
|
60
|
|
Масса, т
|
изделий, погружаемых в трюм, на крышки люков
|
171,0
|
205,2
|
205,2
|
247,2
|
|
суммарная
|
581,4
|
247,2
|
|
Размеры h×b×l по ГОСТ 2695-83
(ГОСТ 24454-80Е), мм
|
подкладки-бруса
|
100×125×4500
|
100×100×4500
|
|
прокладки-бруса
|
50×100×4500
|
-
|



1. Штабели, размещаемые в трюме,
крепят стяжками. Стяжки изготовляют из стального каната (по ГОСТ
2688-80, ГОСТ
3079-80 или ГОСТ
7668-80) диаметром 16,5-10,5 мм на расчетное усилие 2,5 тс. Каждая стяжка
соединяется с двумя стропами механизированными СМ1-25 по ГОСТ 22956-83. Концы
стяжки заделываются зажимами для канатов (по три зажима с каждого конца
стяжки). Стропы закрепляются к штатным скобам второго дна. Крайние утяжелители
фиксируются на подкладках и прокладках деревянными упорами. В местах изгиба под
стропы укладывают подкладку из бывшей в употреблении конвейерной ленты. Схема
крепления указана на разрезе по диаметральной плоскости судна. Изделия поперек
судна крепят в двух нижних ярусах у бортов расклиниванием распорных щитов (из
стоек толщиной 200 мм), в разрывах между изделиями устанавливают с
расклиниванием стойки толщиной 100 мм. Изделия третьего яруса увязывают между
собой крепежной проволокой диаметром 6 мм в четыре нити. Схема крепления
показами на поперечном разрезе.
2. Изделия, размещаемые
по кромке, люковых укрытий трюмов, увязывают между собой и с примыкающими
крепежной проволокой диаметром 6 мм в четыре нити. Крайние утяжелители
фиксируются на подкладках деревянными упорами. Схема крепления показана на
разрезах.
|
Всего погружают в судно 264 изделия общей массой:
|
- 828,6 т
|
|
Потребность в подкладочных и прокладочных
материалах
|
- 9,12 м3
|
|
из них
брус сечением, мм:
|
100×125
|
- 4,5 м3
|
|
100×100
|
- 2,5 м3
|
|
50×50
|
- 2,12 м3
|
|
3. Потребность в крепежных материалах:
|
|
канат стальной диаметром 16,5-19,5 мм
|
- 180 м
|
|
ктроп механизированный СМ.1 -25 (ГОСТ 22956-83)
|
- 48 шт.
|
|
зажимы (для канатов диаметром 16,5-19,5 мм)
|
- 144 шт.
|
|
лента конвейерная, бывшая в употреблении
|
- 4 м2
|
|
стойка-брус, сечением 200×200 мм
|
- 5,3 м3
|
|
доска деревянная сечением 25×100 мм
|
- 0,85 м3
|
|
гвозди для крепления деревянных упоров, длиной
100 мм
|
- 12 кг
|
|
проволока крепежная, диаметром 6 мм
|
- 110 кг
|
4. Строповку и отстроповку изделий
осуществляют с переносных трапов - дорожек
шириной не менее 750 мм, фиксаторы которых размещают в седловинах между
утяжилителями.
5.
Загрузку изделий в подпалубное пространство производят грузозахватными
устройствами на два изделия. Грузозахватные устройства оснащают противоударными
разделителями с облицовкой, из конвейерной ленты, бывшей в употреблении.
|
Параметр
|
Значение параметров, марка изделий, погружаемых
|
|
В трюм № 1
|
В трюм № 2
|
|
ПАГ-14
|
УК1п-БМ
|
ПАГ-14
|
УК1п-БМ
|
|
Масса изделия, т
|
4,2
|
1,65
|
4,2
|
1,65
|
|
Размеры изделия L×B×H, мм
|
6000×2000×140
|
2700×1800×2600
|
6000×2000×140
|
2700×1800×2600
|
|
Расстояние, мм
|
между осями подкладок А
|
4000
|
2600
|
4000
|
2600
|
|
от торца изделия до оси подкладок, Т
|
1000
|
50
|
1000
|
50
|
|
Размещение подкладок
|
поперек судна
|
установлены на поддоны
|
поперек судна
|
вдоль судна
|
установлены на поддоны
|
|
Допустимое число ярусов изделия в штабеле, шт.
|
10
|
1
|
10
|
9
|
1
|
|
Количество изделий по ширине судна, шт.
|
5
|
4
|
5
|
1
|
4
|
|
Разрыв между изделиями, мм
|
вдоль судна
|
100
|
200; 500
|
100
|
100
|
200; 400; 500
|
|
поперек судна
|
200
|
400
|
200
|
-
|
200;400
|
|
Удельное давление от штабеля изделий, тс/ м2
|
3,44
|
3,44; 3,42; 0,34
|
|
Допустимое удельное давление на настил второго дна, тс/ м2
|
3,53
|
|
Общее количество изделий, погружаемых в трюм, шт.
|
66
|
8
|
100
|
9
|
20
|
|
Масса, т
|
изделий, погружаемых в трюм
|
277,2
|
13,2
|
420,0
|
37,8
|
33,0
|
|
суммарная
|
290,4
|
490,8
|
|
Размеры h´b´l по ГОСТ 2695-83
(ГОСТ 24454-80Е), мм
|
подкладки-бруса
|
100×125×4000
|
-
|
100×125×4000
|
100×125×2100
|
-
|
|
прокладки-бруса
|
32×125×2000
|
-
|
32×125×2000
|
32×125×2000
|
-
|
|
|
|
|
|
|
|
|
Продолжение
|
Параметр
|
Значение параметров, марка изделий, погружаемых
|
|
В трюм № 3
|
В трюм № 4
|
|
ПАГ-14
|
УК1п-БМ
|
ПАГ-14
|
УК1п-БМ
|
|
Масса изделия, т
|
4,2
|
1,65
|
4,2
|
1,65
|
|
Размеры изделия L×B×H, мм
|
6000×2000×140
|
2700×1800×2600
|
6000×1800×140
|
2700×1800×2600
|
|
Расстояние, мм
|
между осями подкладок А
|
4000
|
2600
|
4000
|
2600
|
|
от торца изделия до оси подкладок, Т
|
1000
|
50
|
1000
|
50
|
|
Размещение подкладок
|
поперек судна
|
вдоль судна
|
установлены на поддоны
|
поперек судна
|
вдоль судна
|
установлены на поддоны
|
|
Допустимое число ярусов изделия в штабеле, шт.
|
10
|
9
|
1
|
10
|
9
|
1
|
|
Количество изделий по ширине судна, шт.
|
5
|
1
|
4
|
5
|
1
|
4
|
|
Разрыв между изделиями, мм
|
вдоль судна
|
100
|
100
|
200;400;500
|
100
|
100
|
200;400;500
|
|
поперек судна
|
200
|
-
|
200;400
|
200
|
-
|
200;400
|
|
Удельное давление от штабеля изделий, тс/ м2
|
3,44; 3,42; 0,34
|
3,44; 3,42; 0,34
|
|
Допустимое удельное давление на настил второго дна, тс/ м2
|
3,53
|
|
Общее количество изделий, погружаемых в трюм, шт.
|
100
|
9
|
20
|
50
|
18
|
14
|
|
Масса, т
|
изделий, погружаемых в трюм
|
420,0
|
37,8
|
33,0
|
210,0
|
75,6
|
23,1
|
|
суммарная
|
490,8
|
308,7
|
|
Размеры h´b´l по ГОСТ 2695-83
(ГОСТ 24454-80Е), мм
|
подкладки-бруса
|
100×125×4000
|
100×125×2100
|
-
|
100×125×4000
|
100×125×2100
|
-
|
|
прокладки-бруса
|
32×125×2000
|
32×125×2000
|
-
|
32×125×2000
|
32×125×2000
|
-
|



1. Условное обозначение плит
аэродромных покрытий ПЛГ-14, разобщенных санитарно-технических кабин УК1н-5М,
2. Сантехкабины устанавливают на
поддонах, укладываемых на плиты аэродромных покрытий.
3. Для изделий ПЛГ-14,
укладываемых по подкладкам, размещаемым поперек судна, разрыв между изделиями
вдоль штабеля увеличен до 200 мм вместо 100 мм при определении расчетной
нагрузки.
4. Изделия марки УК1н-5М
увязывают между собой и с судном крепежной проволокой диаметрам 6 мм в две
нити.
|
Всего погружают в судно 414 изделия общей массой:
|
- 1580,7 т
|
|
Потребность в подкладочных и прокладочных
материалах
|
- 12,55 м3
|
|
Из них брус сечением, мм:
|
100×125
|
- 2,47 м3
|
|
32×125
|
- 10,08 м3
|
|
поддоны
|
- 100 шт.
|
|
Проволока крепежная, диаметром 6 мм
|
- 55 кг
|
|
Параметр
|
Значение параметров, марка изделий,
погружаемых в трюм
|
|
Н8-9
|
НФ3-9
|
Н8-10
|
Н1-1
|
СБ102.10-К4
|
|
Масса изделия, т
|
2,26
|
7,14
|
2,26
|
6,10
|
4,10
|
|
Размеры изделия L×B×H, мм
|
2380×400×580
|
6245×340×2860
|
2990×340×2860
|
7190 ×340×2860
|
10200×600 Dн
|
|
Расстояние, мм
|
между осями подкладок А
|
Принимают по
рабочим чертежам или грузовым характеристикам, выдаваемым грузоотправителем
|
6120
|
|
от торца изделия до оси подкладок, Т
|
2040
|
|
Размещение подкладок
|
вдоль судна
|
вдоль судна
|
вдоль судна
|
вдоль судна
|
поперек судна
|
|
Допустимое число ярусов изделия в штабеле, шт.
|
1
|
1
|
1
|
1
|
4
|
|
Количество изделий по ширине судна, шт.
|
1
|
1
|
1
|
1
|
9
|
|
Разрыв между изделиями, мм
|
вдоль судна
|
32
|
32
|
32
|
32
|
300
|
|
поперек судна
|
190-200
|
190-200
|
190-200
|
не менее 100
|
укладка вплотную
|
|
Удельное давление от штабеля изделии, тс/ м2
|
2,04
|
3,09
|
2,04
|
2,29
|
2,68
|
|
Допустимое удельное давление на настил второго дна, тс/ м2
|
3,63
|
|
Общее количество изделий, погружаемых в трюм, шт.
|
106
|
106
|
106
|
76
|
108
|
|
Масса, т
|
изделий, погружаемых в трюм
|
239,56
|
756,84
|
239,56
|
463,60
|
442,80
|
|
суммарная
|
2142,36
|
|
Размеры h×b×l по ГОСТ 2695-83 (ГОСТ 24454-80Е), мм
|
подкладки-бруса
|
100×100×21000
|
100×125×21000
|
100×100×21000
|
100×100×14500
|
100×100×2600
|
|
100×150×3300
|
|
прокладки-бруса
|
32×100×2900
|
32×100×2900
|
32×100×2900
|
32×100×2900
|
50×100×2600
|
|
50×100×3300
|

1. В судно погружают изделия:
панели наружных стен с оконными проемами марок H8-9 и H8-10; стеновая фризовая панель марки
НФ3-1; панель наружных стен с оконными проемами марки H1-1; стойки железобетонные,
центрифугированные кольцевого сечения для производственных зданий и инженерных
сооружений марки СБ102.10-К4.
Длина подкладок и прокладок
приведена, а учетом упоров, препятствующих раскатыванию изделий. При погрузке в
судно между штабелями изделий марки СБ102.10-К4 устанавливают вертикально
(через каждые 5 метров) защитные прокладки сечением 100´100 мм и высотой 3
м. В штабелях левого борта укладывают 5 рядов изделий, а правого-4 ряда.
2. Изделия H8-9; H8-10; и НФ3-1 устанавливают в трюмах
наклонно у односторонних, пирамид с выпусками.
|
Потребность
в подкладочных и прокладочных материалах:
|
-
22,286 м3
|
|
|
Из
них брус сечением, мм:
|
100×150
|
-
0,522 м3
|
|
|
100×125
|
-
1,507 м3
|
|
100×100
|
-
10,082 м3
|
|
|
50×100
|
-
3,42 м3
|
|
32×100
|
-
6,755 м3
|
|
Потребность в гвоздях длиной 100 мм для крепления упоров
к подкладкам прокладкам (под изделие СБ102.10-К4) - 50 кг. В скобах
строительных длиной 200 мм, диаметром 10 мм - 48 шт.

|
Параметр
|
Значение
параметров, марка изделий, погружаемых в трюм
|
|
ФБС24.4.6-Т
|
ПГ-5АIVT
|
|
Масса
изделия, т
|
1,3
|
2,65
|
|
Размеры
изделия L×B×H, мм
|
2380×400×580
|
5970×2980×300
|
|
Расстояние, мм
|
между осями
подкладок А
|
1440
|
5850
|
|
от торца
изделия до оси подкладок, Т
|
470
|
60
|
|
Размещение
подкладок
|
вдоль судна
|
поперек судна
|
|
Допустимое
число ярусов изделия в штабеле, шт.
|
3
|
7
|
|
Количество
изделий по ширине судна, шт.
|
1
|
2
|
|
Разрыв между изделиями, мм
|
Вдоль судна
|
-
|
380
|
|
поперек судна
|
-
|
-
|
|
Удельное
давление от штабеля изделии, тс/м2
|
4,09
|
1,04
|
|
Допустимое
удельное давление на настил второго дня, тс/м2
|
4,17
|
|
Общее
количество изделий, погружаемых в трюм, шт.
|
336
|
98
|
|
Масса, т
|
изделий, погружаемых в трюм
|
436,8
|
259,7
|
|
суммарная
|
696,5
|
|
Размеры h×b×l по ГОСТ
2695-83
-
(ГОСТ 24454-80Е), мм
|
подкладки-бруса
|
100×100×5500
|
100×100×3100
|
|
прокладки-бруса
|
32×100×5500
|
32×100×3100
|


В судно погружают блоки бетонные для
стен подвалов марки ФБС24.4.6-Т, плиты железобетонные ребристые для покрытий
производственных здании марки ПГ-5АIVT.
|
Потребность в подкладочных и прокладочных
материалах
|
|
подкладка - брус размерами:
|
100×100×5500
|
- 16 шт. или 0,88 м3
|
|
то же
|
100×100×3100
|
- 28 шт. или 0,87 м3
|
|
прокладка - брус размерами:
|
32×100×3000
|
- 168 шт. или 1,61 м3
|
|
то же
|
32×100×5500
|
- 32 шт. или 0,56 м3
|
|
|
|
Всего: 3,92 м3
|
|
Параметр
|
Значение
параметров, марка изделий, погружаемых в трюм
|
|
ФЛ16.24-1
|
|
Масса
изделия, т
|
2,15
|
|
Размеры
изделия L×B×H, мм
|
2380×1600×300
|
|
Расстояние, мм
|
между осями
подкладок А
|
1200
|
|
от торца
изделия до оси подкладок, Т
|
590
|
|
Размещение
подкладок
|
поперек судна
|
|
Допустимое
число ярусов изделия в штабеле, шт.
|
5
|
|
Количество
изделий по ширине судна, шт.
|
5
|
|
Разрыв между изделиями, мм
|
Вдоль судна
|
100
|
|
поперек судна
|
100
|
|
Удельное
давление от штабеля изделии, тс/ м2
|
2,69
|
|
Допустимое
удельное давление на настил второго дна, тс/ м2
|
4,17
|
|
Общее
количество изделий, погружаемых в трюм, шт.
|
450
|
|
Масса, т
|
изделий, погружаемых в трюм
|
967,5
|
|
суммарная
|
967,5
|
|
Размеры h×b×l ГОСТ 2695-83 (ГОСТ 24454-80Е), мм
|
подкладки-бруса
|
100×100×4500
|
|
прокладки-бруса
|
100×100×4500
|


В судно погружают плиты
железобетонные ленточных фундаментов марки ФЛ16.24-1.
Потребность в подкладочном и
прокладочном материале: брус размерами 100´100´4500
мм - 360 шт. или 16,2 т3
|
Параметр
|
Значение параметров, марка изделий, погружаемых в трюм
|
|
ПГ-5АIVT
|
ШЛ32с28
|
ЛМ27.11.14-4л
|
1П30.18
|
ПН-32
|
|
Масса
изделия, т
|
2,65
|
4,95
|
1,33
|
2,2
|
1,76
|
|
Размеры
изделия L×B×H, мм
|
5970×2980×300
|
19300×1820×2790
|
2720×1050×280
|
3000×1750×170
|
1930×1820×200
|
|
Расстояние, мм
|
между осями
подкладок А
|
5850
|
установлена на поддонах
|
650
|
1800
|
1170
|
|
от торца
изделия до оси подкладок, Т
|
60
|
200
|
600
|
380
|
|
Размещение
подкладок
|
поперек судна
|
-
|
вдоль судна
|
поперек судна
|
вдоль судна
|
|
Допустимое
число ярусов изделия в штабеле, шт.
|
7
|
1
|
7
|
9
|
8
|
|
Количество
изделий по ширине судна, шт.
|
1
|
1
|
4
|
2
|
2
|
|
Разрыв между изделиями, мм
|
вдоль судна
|
200
|
-
|
135
|
135
|
270
|
|
поперек судна
|
-
|
-
|
100
|
-
|
-
|
|
Удельное
давление от штабеля изделии, тс/ м2
|
1,88
|
3,26
|
3,77
|
4,00
|
|
Допустимое
удельное давление на настил второго дна. тс/м2
|
4,17
|
|
Общее
количество изделий, погружаемых в трюм, шт.
|
42
|
16
|
112
|
144
|
48
|
|
Масса, т
|
изделий,
погружаемых в трюм
|
111,3
|
79,2
|
148,96
|
316,8
|
84,48
|
|
суммарная
|
740,74
|
|
Размеры h×b×l по ГОСТ
2695-83 (ГОСТ 24454-80Е), мм
|
подкладки-бруса
|
100×100×3100
|
-
|
100×100×1900
|
100×100×1900
|
100×100×1900
|
|
прокладки-бруса
|
50×50×3000
|
-
|
50×50×2750
|
50×50×1800
|
50×50×1850
|


1. В судно
погружают плиты железобетонные ребристые предварительно напряженные размерами 6´3
м для покрытий производственных зданий марки ПГ-5АIVT, средние блоки шахт лифтов жилых здании марки ШЛ 32 с
28, марши лестниц железобетонные марки ЛМ27.11.14-4л, плиты железо-бетонные для
покрытий городских дорог марки 1П30.18, элементы шахт лифтов жилых зданий марки
ПН-32.
2. Изделия
марки ШЛ 32 с 28 устанавливаются на поддонах, укладываемых на плиты марки ПГ-5АIVT.
3. Изделия
марки ШЛ32 с 28 скрепляют между собой и с корпусом судна проволокой диаметром 6
мм в две нити, как показано на схеме.
4. Крепление изделий марки
ЛМ27.11.14-4л производят в каждом ярусе двух соседних, штабелей увязыванием их
между собой (поперек подкладок) крепежной проволокой диаметром 4 мм в две нити.
|
Потребность
в подкладочных и прокладочных материалах:
|
-
52,62 м3
|
|
Из
них брус сечением, мм:
|
100×100
|
-
2,30 м3
|
|
50×50
|
-
3,32 м3
|
|
Поддон
размерами 1200×800×150 мм
|
-
84 шт.
|
|
Параметр
|
Значение параметров, марка изделий,
погружаемых в трюм
|
|
ПСЯ20-2
1,8×6
|
ПК-58.12
|
РТ10.50
|
|
Масса изделия, т
|
1,60
|
2,17
|
4,6
|
|
Размеры изделия L×B×H, мм
|
5980×200×1785
|
5760×1190×220
|
-
|
|
Расстояние, мм
|
между осями подкладок А
|
3580
|
3460
|
3110
|
|
от торца изделия до оси подкладок, Т
|
1200
|
1150
|
1000
|
|
Размещение подкладок
|
вдоль судна
|
поперек судна
|
поперек судна
|
|
Допустимое число ярусов изделий в штабеле, шт.
|
1
|
10
|
4
|
|
Количество изделий по ширине судна, шт.
|
1
|
2
|
6
|
|
Разрыв между изделиями, мм
|
вдоль судна
|
50
|
100
|
-
|
|
поперек судна
|
-
|
-
|
-
|
|
Удельное давление от штабеля изделии, тс/м2
|
1,07
|
3,16
|
1,67
|
|
Допустимое удельное давление на настил второго дна, тс/м2
|
4,17
|
|
Общее количество изделий, погружаемых в трюм, шт.
|
108
|
80
|
36
|
|
Масса, т
|
изделий, погружаемых в трюм
|
172,8
|
173,6
|
165,6
|
|
суммарная
|
512,0
|
|
Размеры h×b×l по ГОСТ 2695-83 (ГОСТ 24454-80Е), мм
|
подкладки-бруса
|
100×100×5500 и клин 90×100×750
|
100×100×1300
|
100×100×4500
|
|
прокладки-бруса
|
50×60×1700
|
50×60×1300
|
-
|
|
|
|
|
|
|


1. В судно погружают панели стеновые из автоклавных
ячеистых бетонов для наружных стен зданий ПСЯ20-2 1,8´6, плиты
железобетонные многопустотные для перекрытий зданий и сооружений, марки ПК-58,12
и трубы железобетонные безнапорные марки РТ10.50.
2. Под нижний ряд труб каждого
штабеля укладывают две подкладки сечением 100×100 мм.
3. Для предотвращения
раскатывания штабеля трубы нижнего ряда размещают в седловинах подкладок,
образуемых концевыми упорами и башмаками, которые изготовляются из бруса
сечением 100×100 мм.
4. Штабеля
изделий марки ПК-58.12 предохранить от развала установкой боковых стоек из
бруса сечением 150×150 мм.
|
Потребность
в подкладочных и прокладочных материалах:
|
|
|
подкладка
- брус размерами:
|
100×100×4500
|
-
14 шт. или 0,63 м3
|
|
то
же
|
100×100×5500
|
-
31 шт. или 1,70 м3
|
|
то
же
|
100×100×1300
|
-
16 шт. или 0,21 м3
|
|
прокладка
- брус размерами:
|
50×60×1700
|
-
220 шт. или 1,12 м3
|
|
то
же
|
50×60×1300
|
-
144 шт. или 0,56 м3
|
|
|
|
Всего-
4,22 м3
|
|
Параметр
|
Значение
параметров, марка изделий, погружаемых
|
|
в трюм
|
на крышки люков
|
|
ПК-24.36
|
ПБЭ-18-181
|
ПК-24.36
|
|
Масса
изделия, т
|
2,15
|
11,50
|
2,15
|
|
Размеры
изделия L×B×H, мм
|
2380×3580×220
|
11950×700×1700
|
2380×3580×220
|
|
Расстояние, мм
|
между осями
подкладок А
|
1480
|
11050
|
1480
|
|
от торца
изделия до оси подкладок, Т
|
450
|
450
|
450
|
|
Размещение
подкладок
|
вдоль судна
|
поперек судна
|
поперек судна
|
|
Допустимое
число ярусов изделия в штабеле, шт.
|
10
|
1
|
3
|
|
Количество
изделий по ширине судна, шт.
|
3
|
5
|
2
|
|
Разрыв между изделиями, мм
|
вдоль судна
|
300
|
500
|
35
|
|
поперек судна
|
210
|
100
|
100
|
|
Удельное
давление от штабеля изделии, тс/ м2
|
2,52
|
1,20
|
0,76
|
|
Допустимое
удельное давление на настил второго дна, тс/м2
|
4,17
|
0,90
|
|
Общее
количество изделий, погружаемых в трюм, шт.
|
240
|
15
|
102
|
|
Масса, т
|
изделий,
погружаемых в трюм
|
516
|
172,5
|
219,3
|
|
суммарная
|
907,8
|
|
Размеры h×b×l по ГОСТ
2695-83 (ГОСТ 24454-80Е),
мм
|
подкладки-бруса
|
100×100×3700
|
100×100×4000
|
100×100×3700
|
|
прокладки-бруса
|
50×60×3600
|
-
|
50×60×3600
|
|
|
|
|
|
|


В судно погружают плиты
железобетонные многопустотные для перекрытий зданий и сооружений, марки
ПК-24.36 и подстропильные балки марки ПБЭ-18-181.
|
Потребность
в подкладочных и прокладочных материалах:
|
|
|
подкладка - брус
размерами:
|
100×100×4000
|
- 6
шт. или 0,24 м3
|
|
то же
|
100×100×3700
|
-
116 шт. или 4,29 м3
|
|
прокладка - брус
размерами:
|
50×60×3600
|
-
568 шт. или 6,13 м3
|
|
|
|
Всего:
10,66 м3
|
|
Параметр
|
Значение параметров, марка изделий, погружаемых в трюм
|
|
ФЛ20.24-1
|
1К01.6.72-1-1
|
|
Масса изделия, т
|
4,05
|
4,09
|
|
Размеры изделия L×B×H, мм
|
2380×2000×500
|

|
|
Расстояние, мм
|
между осями подкладок А
|
1380
|
4570
|
|
от торца изделия до оси подкладок, Т
|
500
|
1600
|
|
Размещение подкладок
|
поперек судна
|
поперек судна
|
|
Допустимое число ярусов изделия в штабеле, шт.
|
4
|
3
|
|
Количество изделий по ширине судна, шт.
|
4
|
12
|
|
Разрыв между изделиями, мм
|
Вдоль судна
|
150
|
-
|
|
поперек судна
|
200
|
100
|
|
Удельное давление от штабеля изделии, тс/м2
|
4,09
|
1,04
|
|
Допустимое удельное давление на настил второго дня, тс/м2
|
4,17
|
|
Общее количество изделий, погружаемых в трюм, шт.
|
224
|
36
|
|
Масса, т
|
изделий,
погружаемых в
трюм
|
907,2
|
176,4
|
|
суммарная
|
1083,6
|
|
Размеры h×b×l по ГОСТ 2695-83 (ГОСТ 24454-80Е), мм
|
подкладки-бруса
|
100×100×4500
|
100×100×4500
|
|
прокладки-бруса
|
100×100×4500
|
100×100×4500
|


В судно погружают плиты
ленточных фундаментов марки ФЛ20.24-1, колонны железобетонные для зданий марки
1К01.6.72-1-1.
|
Потребность в подкладочных и прокладочных
материалах:
|
|
|
подкладка - брус размерами:
|
100×100×4500
|
- 236 шт. или 10,62 м3
|
|
|
|
|
Параметр
|
Значение
параметров, марка изделий, погружаемых в трюм
|
|
ПК-58.12
|
РТ10.50
|
|
Масса
изделия, т
|
2,17
|
4,6
|
|
Размеры
изделия L×B×H, мм
|
5780×1190×220
|
-
|
|
Расстояние, мм
|
между осями
подкладок А
|
3460
|
3110
|
|
от торца
изделия до оси подкладок, Т
|
1150
|
1000
|
|
Размещение
подкладок
|
поперек судна
|
поперек судна
|
|
Допустимое
число ярусов изделия в штабеле, шт.
|
10
|
4
|
|
Количество
изделий по ширине судна, шт.
|
6
|
6
|
|
Разрыв между изделиями, мм
|
вдоль судна
|
560
|
600
|
|
поперек судна
|
265
|
-
|
|
Удельное
давление от штабеля изделий, тс/м2
|
3,16
|
1,67
|
|
Допустимое
удельное давление на настил второго дня, тс/м2
|
4,17
|
|
Общее
количество изделий, погружаемых в трюм, шт.
|
240
|
54
|
|
Масса, т
|
изделий, погружаемых в трюм
|
520,8
|
248,4
|
|
суммарная
|
759,2
|
|
Размеры h×b×l по ГОСТ
2695-83 (ГОСТ 24454-80Е)
|
подкладки-бруса
|
100×100×4500
|
100×100×4500
|
|
прокладки-бруса
|
50×60×4500
|
-
|


1. В судно погружают плиты железобетонные
многопустотные для перекрытий зданий и сооружений, марки ПК-18.12 и трубы
железобетонные безнапорные марки РТ10.50.
2. Под нижний ряд труб каждого
штабеля укладывают две подкладки сечением 100×100 мм.
3. Для предотвращения
раскатывания штабеля трубы нижнего ряда размещают в седловинах подкладок,
образуемых концевыми упорами и башмаками, которые изготавливаются из бруса сечением 100´100 мм.
|
Потребность
в подкладочных и прокладочных материалах:
|
|
подкладка
- брус размерами:
|
100×100×4500
|
-
37 шт. или 1,67 м3
|
|
прокладка
- брус размерами:
|
50×60×4500
|
-
144 шт. или 1,94 м3
|
|
|
|
Всего:
3,61 м3
|
Приложение
7
|
Наименование
|
Эскиз
|
Техническая характеристика
|
№ рабочих чертежей, разработчик
|
Источник получения технической документации
|
|
Строп одноветвевой IСК (ГОСТ
25573-82)
|

|
Грузоподъемность,
т 0,32-12,5
Диаметр
каната, мм 6,20-39,5
|
Черт.
№ №
3484.01.400-3484.12.400
ЦНИИОМТП
Госстроя
СССР
|
ЦНИИОМТП
Бюро
внедрения 103012, Москва, К-12, ул. Куйбышева, 3/8
|
|
Строп двухветлевой СКПI (ГОСТ
25573-82)
|

|
Грузоподъемность,
т 0,32-12,5
Диаметр
каната, мм 6,20-39,5
|
Черт.
№ №
3484.60.100-3484.75.100
То
же
|
То
же
|
|
Строп кольцевой СККI (ГОСТ
25573-82)
|

|
Грузоподъемность,
т 0,32-16
Диаметр
каната, мм 5-33,5
|
Черт.
№ №
3484.80.100-3484.80.100.74
То
же
|
-«-
|
|
Строп двухветвевой 2СК (ГОСТ
25573-82)
|

|
Грузоподъемность,
т 0,40 - 16,0
Диаметр
каната, мм 6,20 - 39,5
Максимальный
угол между ветвями, град 90
|
РЧ-819-86
Проект
3484.00.000,
То
же
|
-«-
|
Продлжение
прилож. 7
|
Наименование
|
Эскиз
|
Техническая характеристика
|
№ рабочих чертежей, разработчик
|
Источник получения технической документации
|
|
Строп трехветвевой 3СК (ГОСТ
25573-82)
|

|
Грузоподъемность,
т 0,63-20,0
Диаметр
каната, мм 6,20-37,0
Максимальный
угол между ветвями, град 90
|
РЧ-819-86
Проект
3484.00.000,
ЦНИИОМТП
Госстроя
СССР
|
-«-
|
|
Строп
четырехветвевой 4СК (ГОСТ
25573-82)
|

|
Грузоподъемность,
т 0,63-32,0
Диаметр
каната, мм 6,20-39,5
|
РЧ-822-86
проект 34.84.00.000
ЦНИИОМТП
Госстроя
СССР
|
ЦНИИОМТП
Бюро
внедрения 103012, Москва, К-12, ул. Куйбышева, 3/8
|
|
Траверса универсальная с
переставными обоймами
|

|
Грузоподъемность,
т 4,0; 6,3; 10,0; 16,0
|
РЧ-509-72 проекты
065.000-067.000
ЦНИИОМТП
Госстроя
СССР
|
То
же
|
Продлжение
прилож. 7
|
Наименование
|
Эскиз
|
Техническая характеристика
|
№ рабочих чертежей, разработчик
|
Источник получения технической документации
|
|
Универсальная траверса с дистанционной сиделкой
крюков
|

|
Грузоподъемность,
т 10,0
Количество чалочных ветвей
с крюками, шт. 4
Длина чалочных ветвей, мм
6500
Масса, т 0,209
Макс. допустимый угол
между канатными ветвями и вертикалью, град 20
|
Черт. № 4047Н
Трест Мосоргстрой
ПСО Мосстрой
|
Трест Мосоргстрой, 113095,
Москва, ул. Б. Полянка, 51
|
|
Траверса для подъема объемного блока 2Т0-400
|

|
Грузоподъемность,
т 16,0
|
Арх. № 3765
То
же
|
То
же
|
Продлжение
прилож. 7
|
Наименование
|
Эскиз
|
Техническая характеристика
|
№ рабочих
чертежей, разработчик
|
Источник получения
технической документации
|
|
Траверса для строповки стеновых панелей
|

|
Грузоподъемность,
т 10
Масса, т 0,377
|
Черт. № 15946Р-10
Промстальконструкция
Минмонтажспецстроя СССР
|
Промстальконструкция
Минмонтажспецстроя СССР
125080, Москва,
Волоколамское шоссе, 1
|
|
Траверса универсальная для подъема плоских элементов
|

|
Грузоподъемность,
т 10
Масса, т 0,432
|
Арх. № 3769
Трест Мосоргстрой
ПСО Мосстрой
|
Трест Мосоргстрой, 113095,
Москва, ул. Б. Полянка, 51a
|
|
Траверса для безнапорных труб
|

|
Грузоподъемность,
т 5, 10
|
Черт. № 1085-00-00
|
Московский завод
железобетонных труб
121087, Москва, Береговой
переулок, 2
|
|
Захват автоматический для железобетонных напорных
труб ОК № 7.02.291 ОКП 4842237717
|

|
Грузоподъемность,
т 10
Масса, т 1,15
|
СМЖ
380 ТУ 22-5932-76,
Брянский
завод ирригационных машин
|
Брянский
завод ирригационных машин
ОКПО
0239226
|
Продлжение
прилож. 7
|
Наименование
|
Эскиз
|
Техническая характеристика
|
№ рабочих
чертежей, разработчик
|
Источник получения
технической документации
|
|
Автоматический захват для колец
|

|
Грузоподъемность,
т 5
|
Черт.
№
203,
Московский
северный порт
|
Московский
северный порт 125195, Москва, Ленинградское шоссе, 57
|
|
Полуавтоматический захват для подъема колец
диаметром 1000-1500 мм
|

|
Грузоподъемность,
т 1,5
|
|
УПТК
треста № 2 Главсочиспецстроя 352800, Туапсе, набережная, 14
|
Продлжение
прилож. 7
|
Наименование
|
Эскиз
|
Техническая характеристика
|
№ рабочих чертежей, разработчик
|
Источник получения технической документации
|
|
Захват к крану для перегрузки железобетонных труб
|

|
Грузоподъемность,
т 8,88
Кол.
труб. перегружаемых, шт. 2
Масса,
т 1,12
|
Проект
2962 В
НПО
“Речфлот” Минречфлота РСФСР
|
НПО
“Речфлот” Минречфлота РСФСР 109432, Москва, Нагатинская пойма, Проектируемый
пр., 4062, д. 6
|
|
Траверса для подъема санитарно-технических кабин УК1
и УК2
|

|
Грузоподъемность,
т 2,0
Габаритные
размеры, мм:
длина
- 2920
ширина
- 1860
высота
- 3050
Масса, т - 0,118
|
Черт.
№ 4639А
Трест
Мосоргстрой
ПСО
Мосстрой
|
Трест
Мосоргстрой, 113095, Москва, ул. Б. Полянка, 51a
|
|
Траверса для
подъема санитарно-технических кабин УК3
|

|
Грузоподъемность,
т 0,87
Габаритные
размеры, мм:
длина
- 1620
ширина
- 1360
высота
- 3050
Масса, т - 0,092
|
То
же
|
То
же
|
Приложение 8
|
Номер
|
Наименование
|
|
ГОСТ
4.250-84
|
СПКП.
Строительство. Бетонные и железобетонные изделия и конструкции. Номенклатура
показателей.
|
|
ГОСТ
539-80
|
Трубы
и муфты асбестоцементные напорные. Технические условия.
|
|
ГОСТ
948-84
|
Перемычки
железобетонные для зданий с кирпичными стенами. Технические условия.
|
|
ГОСТ
1839-80
|
Трубы
и муфты асбестобетонные для безнапорных, трубопроводов. Технические условия.
|
|
ГОСТ
6133-84
|
Камни
бетонные стеновые. Технические условия.
|
|
ГОСТ
6428-83
|
Плиты
гипсовые для перегородок. Технические условия.
|
|
ГОСТ
6482-88
|
Трубы
железобетонные безнапорные. Технические условия.
|
|
ГОСТ
6665-82
|
Камни
бортовые бетонные и железобетонные. Технические условия.
|
|
ГОСТ
6785-80
|
Плиты
подоконные железобетонные. Технические условия.
|
|
ГОСТ
6786-80
|
Плиты
парапетные железобетонные для производственных зданий. Технические условия.
|
|
ГОСТ
6927-74
|
Плиты
бетонные фасадные. Технические условия.
|
|
ГОСТ
8020-80
|
Изделия
железобетонные для смотровых колодцев водопроводных и канализационных сетей.
Технические условия.
|
|
ГОСТ
8484-82
|
Плиты
подоконные железобетонные для производственных, зданий. Конструкция и
размеры.
|
|
ГОСТ
8717.0-84
|
Ступени
железобетонные и бетонные. Технические условия.
|
|
ГОСТ
8717.1-84
|
Ступени
железобетонные и бетонные. Конструкция и размеры.
|
|
ГОСТ
9561-76
|
Панели
железобетонные многопустотные для перекрытий зданий и сооружений. Технические
условия.
|
|
ГОСТ 9574-80
|
Панели
гипсовые для перегородок. Технические условия.
|
|
ГОСТ
9818-85
|
Марши
и площадки лестниц железобетонные. Технические условия.
|
|
ГОСТ
10629-78
|
Шпалы
железобетонные предварительно напряженные для железных дорог колеи 1520
(1524) мм. Технические условия.
|
|
ГОСТ
11024-84
|
Панели
стеновые наружные бетонные и железобетонные для жилых и общественных зданий.
Общие технические условия,
|
|
ГОСТ
11118-73
|
Панели
из автоклавных ячеистых бетонов для наружных стен зданий. Технические
требования.
|
|
ГОСТ
12504-80
|
Панели
стеновые внутренние бетонные и железобетонные для жилых и общественных
зданий. Общие технические условия.
|
|
ГОСТ
12586.0-83
|
Трубы
железобетонные напорные виброгидропрессованные. Технические условия.
|
|
ГОСТ
12586.1-83
|
Трубы
железобетонные напорные виброгидропрессованные. Конструкция и размеры.
|
|
ГОСТ
12767-80
|
Панели
железобетонные сплошные для перекрытий жилых и общественных зданий.
Технические условия.
|
|
ГОСТ
13015-75
|
Изделия
железобетонные и бетонные. Общие технические требования.
|
|
ГОСТ
13015.0-83
|
Конструкция
и изделия бетонные и железобетонные сборные. Общие технические требования.
|
|
ГОСТ
13015.1-81
|
Конструкции
и изделия бетонные и железобетонные сборные. Правила приемки.
|
|
ГОСТ
13015.2-81
|
Конструкции
и изделия бетонные и железобетонные сборные. Правила маркировки.
|
|
ГОСТ
13015.3-81
|
Конструкции
и изделия бетонные и железобетонные сборные. Документ о качестве.
|
|
ГОСТ
13015.4-84
|
Конструкции
и изделия бетонные и железобетонные сборные. Правила транспортирования и
хранения.
|
|
ГОСТ
13579-78
|
Блоки
бетонные для стен подвалов. Технические условия.
|
|
ГОСТ
13580-85
|
Плиты
железобетонные ленточных фундаментов. Технические условия.
|
|
ГОСТ
14295-75
|
Приставки
железобетонные для деревянных опор воздушных линий электропередачи и связи.
Технические условия.
|
|
ГОСТ
17079-71
|
Панели
и блоки вентиляционные бетонные и железобетонные. Технические условия.
|
|
ГОСТ
17538-82
|
Конструкции
и изделия железобетонные для шахт лифтов жилых зданий. Технические условия.
|
|
ГОСТ
17608-81
|
Плиты
бетонные тротуарные. Технические условия.
|
|
ГОСТ
18048-80
|
Кабины
санитарно-технические железобетонные. Технические условия.
|
|
ГОСТ
19010-82
|
Блоки
стеновые бетонные и железобетонные для зданий. Общие технические условия.
|
|
ГОСТ
19231.0-83
|
Плиты
железобетонные для покрытий трамвайных путей. Технические условия.
|
|
ГОСТ
19231.1-83
|
Плиты
железобетонные для покрытий трамвайных путей. Конструкция и размеры.
|
|
ГОСТ
19330-81
|
Стойки
железобетонные для опор контактной сети железных дорог. Технические условия.
|
|
ГОСТ
19570-74
|
Панели
из автоклавных ячеистых бетонов для внутренних несущих стен перегородок и
перекрытий жилых и общественных зданий. Технические требования.
|
|
ГОСТ
19804.0-78
|
Сваи
забивные, железобетонные. Общие технические условия.
|
|
ГОСТ
19804.1-79
|
Сваи
забивные железобетонные цельные сплошного квадратного сечения с ненапрягаемой
арматурой. Конструкция и размеры.
|
|
ГОСТ
19804.2-79
|
Сваи
забивные железобетонные цельные оплошного квадратного сечения с поперечным
армированием ствола с напрягаемой арматурой. Конструкция и размеры.
|
|
ГОСТ
19804.3-80
|
Сваи
забивные железобетонные квадратного сечения с круглой полостью. Конструкция и
размеры.
|
|
ГОСТ
19804.4-78
|
Сваи
забивные железобетонные квадратного сечения без поперечного армирования
ствола. Конструкция и размеры.
|
|
ГОСТ
19804.5-83
|
Сваи
полые круглого сечения и сваи-оболочки железобетонные - цельные с
ненапрягаемой арматурой. Конструкция и размеры.
|
|
ГОСТ
19804.6-83
|
Сваи
полые круглого сечения и сваи-оболочки железобетонные составные с напрягаемой
арматурой. Конструкция и размеры.
|
|
ГОСТ
19804.7-83
|
Свал-колонны
железобетонные двухконсольные для сельскохозяйственных зданий. Конструкция и
размеры.
|
|
ГОСТ
20054-82
|
Трубы
бетонные, безнапорные. Технические условия.
|
|
ГОСТ
20213-74
|
Фермы
стропильные железобетонные безраскосные.
|
|
ГОСТ
20372-86
|
Балки
стропильные железобетонные с параллельными поясами. Технические условия.
|
|
ГОСТ 20425-75
|
Тетраподы
для берегозащитных и оградительных сооружений.
|
|
ГОСТ
21174-75
|
Шпалы
железобетонные предварительно напряженные для трамвайных путей широкой колеи.
|
|
ГОСТ
21506-87
|
Плиты
перекрытий железобетонные ребристые высотой 300 мм для зданий и сооружений.
Технические условия.
|
|
ГОСТ
21509-76
|
Лотки
железобетонные оросительных систем. Технические условия.
|
|
ГОСТ
21520-79
|
Блоки
из ячеистых бетонов стеновые мелкие. Технические условия.
|
|
ГОСТ
21924.0-84
|
Плиты
железобетонные для покрытий городских дорог. Технические условия.
|
|
ГОСТ
21924.1-84
|
Плиты
железобетонные предварительно напряженные для покрытий городских дорог.
Конструкция и размеры.
|
|
ГОСТ
21924.2-84
|
Плиты
железобетонные с ненапрягаемой арматурой. для покрытий городских дорог.
Конструкция и размеры.
|
|
ГОСТ
21924.3-84
|
Плиты
железобетонные для покрытий городских дорог. Арматурные и монтажно-стыковые
изделия. Конструкция и размеры.
|
|
ГОСТ
22000-86
|
Трубы
бетонные и железобетонные. Типы и основные параметры.
|
|
ГОСТ
22131-76
|
Опоры
железобетонные высоковольтно-сигнальных линий автоблокировки железных дорог.
Технические условия.
|
|
ГОСТ
22687.0-85
|
Стойки
железобетонные центрифугированные для опор высоковольтных линий
электропередачи. Технические условия.
|
|
ГОСТ
22687.1-85
|
Стойки
конические железобетонные центрифугированные для опор высоковольтных линий электропередачи.
Конструкция и размеры.
|
|
ГОСТ
22687.2-85
|
Стойки
цилиндрические железобетонные центрифугированные для опор высоковольтных
линии электропередачи. Конструкция и размеры.
|
|
ГОСТ
22687.3-85
|
Стойки
железобетонные центрифугированные для опор высоковольтных -линий
электропередачи. Конструкция закладных изделий и подпятников.
|
|
ГОСТ
22701.0-77
|
Плиты
железобетонные ребристые предварительно напряженные размерами
6×3 м для покрытий производственных зданий. Технические условия.
|
|
ГОСТ
22701.1-77
|
Плиты
железобетонные ребристые предварительно напряженные размерами 6×3 и для
покрытий производственных зданий. Длина типа ПГ. Показатели и армирование.
|
|
ГОСТ
22701.2-77
|
Плиты
железобетонные ребристые предварительно напряженные размерами 6×3 м для
покрытий производственных зданий. Плиты типа ПВ. Показатели и армирование.
|
|
ГОСТ
22701.3-77
|
Плиты
железобетонные ребристые предварительно напряженные размерами 6×3 м для
покрытий производственных зданий. Плиты типа ПЛ. Показатели и армирование.
|
|
ГОСТ 22701.4-77
|
Плиты железобетонные ребристые
предварительно напряженные размерами 6×3 м для покрытий
производственных зданий. Плиты типа ПФ. Показатели и армирование.
|
|
ГОСТ 22701.5-77
|
Плиты железобетонные ребристые предварительно
напряженные размерами 6×3 м для покрытий производственных зданий.
Арматурные изделия и закладные детали.
|
|
ГОСТ 22701.6-77
|
Плиты железобетонные ребристые
предварительно напряженные размерами 6×3 м под нагрузки свыше 1000
кГс/см2 для покрытий производственных зданий.
Технические условия.
|
|
ГОСТ 22701.7-81
|
Плиты железобетонные ребристые
предварительно напряженные размерами 6×3 м для покрытий
производственных зданий. Плиты типа ПФ с проемами 1,5×1,7 м.
Конструкция и размеры.
|
|
ГОСТ
22930-87
|
Плиты железобетонные ребристые
предварительно напряженные для облицовки оросительных каналов мелиоративных
систем. Технические условия.
|
|
ГОСТ
23009-78
|
Конструкция и изделия бетонные и
железобетонные сборные. Условные обозначения (марки).
|
|
ГОСТ
23444-79
|
Стойки железобетонные центрифугированные
кольцевого сечения для производственных зданий и инженерных сооружений.
Технические условия.
|
|
ГОСТ 23521-79
|
Конструкции и изделия бетонные и
железобетонные из жаростойкого бетона. Общие технические условия.
|
|
ГОСТ 23613-79
|
Стойки железобетонные вибрированные для
опор высоковольтных линий электропередачи. Технические условия.
|
|
ГОСТ
23899-79
|
Колонны железобетонные под
параболические лотки. Технические
условия.
|
|
ГОСТ
23972-80
|
Фундаменты железобетонные для
параболических лотков.
Технические условия.
|
|
ГОСТ
24022-80
|
Фундамента железобетонные сборные под
колонны сельскохозяйственных зданий. Технические условия.
|
|
ГОСТ
24155-80
|
Конструкции железобетонные высоких
пассажирских платформ. Технические условия,
|
|
ГОСТ
24476-80
|
Фундаменты железобетонные сборные под
колонны каркаса межвидового применения для многоэтажных зданий. Технические
условия.
|
|
ГОСТ
24547-81
|
Звенья железобетонные водопропускных
труб под насыпи автомобильных и железных дорог. Общие технические условия.
|
|
ГОСТ
24581-81
|
Панели асбестоцементые трехслойные с
утеплителем из пенопласта. Общие технические условия.
|
|
ГОСТ
24587-81
|
Лотки-водовыпуски железобетонные
оросительных систем. Технические условия.
|
|
ГОСТ
24694-81
|
Тройник железобетонных лотковых
оросительных систем. Технические условия.
|
|
ГОСТ
24893.0-81
|
Балки обвязочные железобетонные для
зданий промышленных предприятий. Технические условия.
|
|
ГОСТ
24893.1-81
|
Балки обвязочные железобетонные для зданий
промышленных предприятий. Конструкция и размеры.
|
|
ГОСТ
24893.2-81
|
Балки обвязочные железобетонные для
зданий промышленных предприятий. Арматурные и закладные изделия. Конструкция
и размеры.
|
|
ГОСТ
25098-87
|
Панели перегородок железобетонные для
зданий промышленных и сельскохозяйственных предприятий. Технические условия.
|
|
ГОСТ
25697-83
|
Платы балконов и лоджий железобетонные.
Общие технические условия.
|
|
ГОСТ
25912.0-83
|
Плиты железобетонные предварительно
напряженные для аэродромных покрытий. Технические условия,
|
|
ГОСТ
25912.1-83
|
Плиты железобетонные предварительно
напряженные
для аэродромных покрытий. Конструкция арматурных и монтажно-стыковых изделий.
|
|
ГОСТ
26067.0-83
|
Звенья
железобетонные безнапорных труб прямоугольного сечения для гидротехнических
сооружений. Технические условия.
|
|
ГОСТ
26067.1-83
|
Звенья
железобетонные безнапорных труб прямоугольного сечения для гидротехнических
сооружений. Конструкция и размеры.
|
|
ГОСТ
26071-84
|
Стойки
железобетонные вибрированные для опор воздушных линий электропередачи
напряжением 0,38 кВ. Технические условия.
|
|
ГОСТ
26434-85
|
Плиты
перекрытий железобетонные для жилых зданий. Типы и основные параметры.
|
|
ГОСТ
26815-86
|
Конструкции
железобетонные подпорных стен. Технические условия,
|
|
ГОСТ
26819-86
|
Трубы
железобетонные напорные со стальным сердечником. Технические условия.
|
|
ГОСТ
26992-86
|
Прогоны
железобетонные для покрытий зданий промышленных и сельскохозяйственных
предприятий. Технические условия.
|
|
ГОСТ
27108-86
|
Конструкции
каркаса железобетонные для многоэтажных зданий с безбалочными перекрытиями.
Технические условия.
|
|
ГОСТ
27215-87
|
Плиты
перекрытий железобетонные ребристые 400 мм для производственных зданий
промышленных предприятий. Технические условия.
|
Приложение
9.1
|
Параметры
|
Значение параметров для марки
|
|
ЛМ27.11.14-4
|
ЛМ27.12.14-4
|
ЛМ27.11.14-4л
|
ЛМ30.11.15-4
|
ЛМ30.12.15-4
|
|
Масса изделия, т
|
1,33
|
1,53
|
1,14
|
1,48
|
1,70
|
|
Размеры изделия, мм
|
длина, L
|
2720
|
2720
|
2720
|
3030
|
3030
|
|
ширина, B
|
1050
|
1200
|
1050
|
1050
|
1200
|
|
высота, H
|
280
|
280
|
280
|
280
|
280
|
|
Расстояние, мм
|
между осями подкладок, А
|
650
|
800
|
650
|
650
|
800
|
|
от
торца изделия до оси подкладок, Т
|
200
|
200
|
200
|
200
|
200
|
|
Число ярусов в
штабеле, допускаемое при укладке на складе, шт.
|
7
|
7
|
7
|
7
|
7
|
|
Удельное
давление от штабеля изделий, тс/ м2
|
3,28
|
3,30
|
2,80
|
3,29
|
3.30
|
|
Тип (вид) грузозахватного устройства
|
Строп 4СК1-20 3200 ГОСТ
25573-82
|
|
Размеры (h×b×l) по ГОСТ 2695-83 (ГОСТ 24454-80Е), мм:
|
подкладки-бруса
|
100×100×2700
|
100×100×3000
|
|
прокладки-бруса
|
32×100×2700
|
32×100×3000
|
Эскиз изделия

Схема складирования (на
примере изделия марки ЛМ30.11.15-4)

Эскиз грузозахватного
устройства

Схема строповки

Данные по изделию приняты
по ГОСТ 3818-85 «Марши и площадки лестниц железобетонные».
|
Параметры
|
Значение параметров для марки
|
|
ПГ-5АNT
|
ПВ4-5Ат-VT
|
ПЛ-4АIIIЗТ-Н
|
ЛФ-4АNT
|
|
Масса изделия, т
|
2,65
|
3,60
|
1,75
|
2,30
|
|
Размеры изделия, мм
|
длина, L
|
5970
|
5970
|
5970
|
5970
|
|
ширина, B
|
2980
|
2980
|
2980
|
2980
|
|
высота, H
|
300
|
300
|
300
|
300
|
|
Расстояние, мм
|
между осями подкладок, А
|
5850
|
5850
|
5850
|
5850
|
|
от
торца изделия до оси подкладок, Т
|
60
|
60
|
60
|
60
|
|
Число ярусов в
штабеле, допускаемое при укладке на складе, шт.
|
7
|
7
|
7
|
7
|
|
Удельное
давление от штабеля изделий, тс/м2
|
1,04
|
1,42
|
0,69
|
0,90
|
|
Тип (вид) грузозахватного устройства
|
Строп 4СК1-4.0 5000 ГОСТ
25573-82
|
|
Размеры (h×b×l) по ГОСТ 2695-83 (ГОСТ 24454-80Е), мм:
|
подкладки-бруса
|
100×100×3100
|
|
прокладки-бруса
|
50×100×3000
|
Эскиз изделия

Схема складирования (на
примере изделия марки ПГ-5АNT)

Эскиз грузозахватного
устройства

Схема строповки

Данные по изделию приняты
по ГОСТ 22701.0-77 - ГОСТ 22701.5-77, ГОСТ 22701.6-79 и ГОСТ 22701.7-81.
|
Параметры
|
Значение параметров для марки
|
|
ПЗТ-14
|
ПЗТ-19А
|
ПЗТ-504
ПЗТ-505
|
|
Масса изделия, т
|
3,70
|
8,15
|
5,80
|
|
Размеры изделия, мм
|
длина, L
|
5980
|
5980
|
5980
|
|
ширина, B
|
2980
|
2980
|
2980
|
|
высота, H
|
140
|
140
|
140
|
|
Расстояние, мм
|
между осями подкладок, А
|
3580
|
3580
|
3580
|
|
от
торца изделия до оси подкладок, Т
|
1200
|
1200
|
1200
|
|
Число ярусов в
штабеле, допускаемое при укладке на складе, шт.
|
10
|
10
|
10
|
|
Удельное
давление от штабеля изделий, тс/м2
|
2,08
|
3,45
|
3,25
|
|
Тип (вид) грузозахватного устройства
|
Универсальная траверса грузоподъемностью 10 т (черт. 4047N Мосоргстроя)
|
|
Размеры (h×b×l) по ГОСТ 2695-83 (ГОСТ 24454-80Е), мм:
|
подкладки-бруса
|
100×100×3200
|
|
прокладки- бруса
|
32×100×3100
|
Эскиз изделия

Схема складирования

Схема строповки

Данные по изделию приняты по Номенклатурному сборнику
железобетонных и бетонных изделий, выпускаемых предприятиями
Главмосстройматериалов для строительства жилых, гражданских, производственных
зданий и инженерных сооружений, разработанному КТБ Мосоргстройматериалы, и ГОСТ
12767-80 "Плиты железобетонные сплошные для перекрытий жилых и
общественных зданий. Технические условия".
Траверса принята по каталогу рабочих чертежей
монтажной оснастки (грузозахватные, монтажные приспособления и инвентарь),
разработанных трестом Мосоргстрой, часть 1.
|
Параметры
|
Значение параметров для марки
|
|
ПК-24.36
|
ПК-24.30
|
ПК-24.18
|
ПК-24.12
|
ПК-58.12
|
|
Масса изделия, т
|
2,15
|
1,80
|
1,50
|
1,20
|
2,17
|
|
Размеры изделия, мм
|
длина, L
|
2380
|
2380
|
2380
|
2380
|
5760
|
|
ширина, B
|
3580
|
2980
|
1790
|
1190
|
1190
|
|
высота, H
|
220
|
220
|
220
|
220
|
220
|
|
Расстояние, мм
|
между осями подкладок, А
|
1480
|
1480
|
1480
|
1480
|
3460
|
|
от
торца изделия до оси подкладок, Т
|
450
|
450
|
450
|
450
|
1150
|
|
Число ярусов в
штабеле, допускаемое при укладке на складе, шт.
|
10
|
10
|
10
|
10
|
10
|
|
Удельное
давление от штабеля изделий, тс/м2
|
2,52
|
2,54
|
3,52
|
4,24
|
3,16
|
|
Тип (вид) грузозахватного устройства
|
Строп 4СК1-3.2 3200 Гост
25513-82
|
|
Размеры (h×b×l) по ГОСТ 2695-83 (ГОСТ 24454-80Е), мм:
|
подкладки-бруса
|
100×100×3700
|
100×100×3100
|
100×100×1900
|
100×100×1300
|
100×100×1300
|
|
прокладки- бруса
|
50×60×3600
|
50×60×3000
|
50×60×1800
|
50×60×1200
|
50×60×12600
|
Эскиз изделия

Схема складирования (на
примере изделия марки ПК-24.30)

Эскиз грузозахватного
устройства

Схема строповки одиночного
изделия

Данные по изделию приняты
по ГОСТ
9561-76 "Плиты железобетонные многопустотные для перекрытий
зданий и сооружений. Технические условия".
|
Параметры
|
Значение параметров для марки
|
|
В5-4Н
В5Т-15Н
В5-18Н
В5Т-5Н
|
В9Т-4Н
В9-5Н
|
В9-15Н
В9Т-16Н
|
В10-4Н
В10Т-3Н
|
В11Т-4Н
В11-5Н
|
|
Масса изделия, т
|
4,62
|
4,15
|
4,17
|
3,89
|
3,60
|
|
Размеры изделия, мм
|
длина, L
|
5600
|
4600
|
4600
|
4300
|
4000
|
|
ширина, B
|
140
|
140
|
140
|
140
|
140
|
|
высота, H
|
2620
|
2620
|
2520
|
2620
|
2620
|
|
Расстояние, мм
|
между осями подкладок, А
|
3800
|
2800
|
2800
|
2600
|
2400
|
|
от
торца изделия до оси подкладок, Т
|
1000
|
900
|
900
|
850
|
800
|
|
Число ярусов в
штабеле, допускаемое при укладке на складе, шт.
|
1
|
1
|
1
|
1
|
1
|
|
Удельное
давление от штабеля изделий, тс/м2
|
2,66
|
3,00
|
3,02
|
3,02
|
3,00
|
|
Тип (вид) грузозахватного устройства
|
Универсальная траверса грузоподъемностью 10 т (черт. № 4047Н)
|
|
Размеры (h×b×l) по ГОСТ 2695-83 (ГОСТ 24454-80Е), мм:
|
подкладки-бруса
|
100×175×1250
и клин 100×175×495
|
|
прокладки- бруса
|
25×60×2600
|
Эскиз изделия

Схема складирования (на
примере изделия марки В9-15Н)

Схема строповки

Данные по изделию приняты по Номенклатурному сборнику
железобетоных и бетонных изделий, выпускаемых предприятиями
Главмосстройматериалов для строительства жилых, гражданских, производственных
зданий и инженерных сооружений, разработанному КТБ Мосоргстройматериалы, и ГОСТ
12504-80 "Панели стеновые внутренние бетонные и железобетонные для
жилых и общественных зданий. Технические условия".
Траверса принята по каталогу рабочих чертежей
монтажной оснастки (грузозахватные, монтажные приспособления и инвентарь),
разработанных трестом Мосоргстрой, часть 1.
ПАНЕЛИ
СТЕНОВЫЕ ИЗ АВТОКЛАВНЫХ ЯЧЕИСТЫХ БЕТОНОВ ДЛЯ
НАРУЖНЫХ СТЕН ЗДАНИЙ
|
Параметры
|
Значение параметров для марки
|
|
ПСЯ 20-2
1,2×6
ПСЯ 20-2а
1,2×6
ПСЯ 20-2б
1,2×6
|
ПСЯ 20-2
1,2×6,25
ПСЯ 20-2а
1,2×6,25
ПСЯ 20-2б
1,2×6,25
|
ПСЯ 20-2
1,8×6,25
ПСЯ 20-3
1,8×6,25
|
ПСЯ 20-2
1,8×6
ПСЯ 20-4
1,8×6
|
|
Масса изделия, т
|
1,05
|
1,10
|
1,65
|
1,60
|
|
Размеры изделия, мм
|
длина, L
|
5980
|
6230
|
6230
|
5980
|
|
ширина, B
|
200
|
200
|
200
|
200
|
|
высота, H
|
1185
|
1185
|
1785
|
1785
|
|
Расстояние, мм
|
между осями подкладок, А
|
3580
|
3830
|
3830
|
3580
|
|
от
торца изделия до оси подкладок, Т
|
1200
|
1200
|
1200
|
1200
|
|
Число ярусов в
штабеле, допускаемое при укладке на складе, шт.
|
1
|
1
|
1
|
1
|
|
Удельное давление от
штабеля изделий, тс/м2
|
0,47
|
0,47
|
0,71
|
0,71
|
|
Тип (вид) грузозахватного устройства
|
Универсальная траверса грузоподъемностью 10 т (черт. № 4047Н)
|
|
Размеры (h×b×l) по ГОСТ 2695-83 (ГОСТ 24454-80Е), мм:
|
подкладки-бруса
|
100×100×1500
и клин 90×100×750
|
|
прокладки- бруса
|
50×60×1200
|
50×60×1800
|
|
|
|
|
|
|
|
Эскиз изделия

Схема складирования (на
примере изделия марки ПСЯ 20-2 1,8×6,25)

Схема строповки

Данные по изделию приняты по Номенклатурному
сборнику железобетонных и бетонных изделий, выпускаемых предприятиями
Главмосстройматериа-лов для строительства жилых, гражданских, производственных
зданий и инженерных сооружений, разработанному КТБ Мосоргстройматериалы.
Траверса принята по каталогу рабочих чертежей монтажной
оснастки (грузозахватные, монтажные приспособления и инвентарь), разработанных
трестом Мосоргстрой, часть 1.
|
Параметры
|
Значение параметров для марки
|
|
ФЛ16.24-1
|
ФЛ16.12-1
|
ФЛ14.24-1
|
ФЛ14.12-1
|
|
Масса изделия, т
|
2,15
|
1,03
|
1,90
|
0,91
|
|
Размеры изделия, мм
|
длина, L
|
2380
|
1180
|
2380
|
1180
|
|
ширина, B
|
1600
|
1600
|
1400
|
1400
|
|
высота, H
|
300
|
300
|
300
|
300
|
|
Расстояние, мм
|
между осями подкладок, А
|
1200
|
400
|
1200
|
400
|
|
от
торца изделия до оси подкладок, Т
|
590
|
390
|
590
|
390
|
|
Число ярусов в
штабеле, допускаемое при укладке на складе, шт.
|
5
|
5
|
5
|
5
|
|
Удельное давление от
штабеля изделий, тс/м2
|
2,78
|
2,68
|
2,80
|
2,70
|
|
Тип (вид) грузозахватного устройства
|
Строп 2СК-3.2 1400 ГОСТ
25573-82
|
|
Размеры (h×b×l) по ГОСТ 2695-83 (ГОСТ 24454-80Е), мм:
|
подкладки-бруса
|
100×100×3400
|
100×100×3000
|
|
прокладки- бруса
|
100×100×3300
|
100×100×2900
|
|
|
|
|
|
|
|
Продолжение
|
Параметры
|
Значение параметров для марки
|
|
ФЛ20.24-1
|
ФЛ20.12-1
|
ФЛ24.24-1
|
ФЛ24.12-1
|
|
Масса изделия, т
|
4,05
|
1,95
|
4,73
|
2,30
|
|
Размеры изделия, мм
|
длина, L
|
2380
|
1180
|
2380
|
1180
|
|
ширина, B
|
2000
|
2000
|
2400
|
2400
|
|
высота, H
|
500
|
500
|
500
|
500
|
|
Расстояние, мм
|
между осями подкладок, А
|
1380
|
400
|
980
|
400
|
|
от
торца изделия до оси подкладок, Т
|
500
|
390
|
700
|
390
|
|
Число ярусов в
штабеле, допускаемое при укладке на складе, шт.
|
4
|
4
|
4
|
4
|
|
Удельное давление от
штабеля изделий, тс/м2
|
3,36
|
3,26
|
3,28
|
3,21
|
|
Тип (вид) грузозахватного устройства
|
Строп 4СК1-5,0 1500 ГОСТ
25573-82
|
Строп 2СК-3,2 1400 ГОСТ
25573-82
|
Строп 4СК1-5,0 1500 ГОСТ
25573-82
|
Строп 2СК1-3,2 1400 ГОСТ
25573-82
|
|
Размеры (h×b×l) по ГОСТ 2695-83 (ГОСТ 24454-80Е), мм:
|
подкладки-бруса
|
100×100×4200
|
100×100×5000
|
|
прокладки-бруса
|
100×100×4100
|
100×100×4900
|
Эскиз изделия

Схема складирования (на
примере изделия марки ФЛ 16.24-1)

Эскиз грузозахватного
устройства

Схема строповки

Данные по изделию приняты по ГОСТ
13580-85 «Плиты железобетонные ленточных фундаментов. Технические условия.
|
Параметры
|
Значение параметров для марки
|
|
1П30.18
|
1П35.28
|
1П60.18
|
1П60.19
|
1П60.38
|
|
Масса изделия, т
|
2,20
|
4,06
|
3,65
|
3,90
|
7,85
|
|
Размеры изделия, мм
|
длина, L
|
3000
|
3500
|
6000
|
6000
|
6000
|
|
ширина, B
|
1750
|
2750
|
1750
|
1870
|
3750
|
|
высота, H
|
170
|
170
|
140
|
140
|
140
|
|
Расстояние, мм
|
между осями подкладок, А
|
1800
|
2100
|
3600
|
3600
|
3600
|
|
от
торца изделия до оси подкладок, Т
|
600
|
700
|
1200
|
1200
|
1200
|
|
Число ярусов в
штабеле, допускаемое при укладке на складе, шт.
|
9
|
9
|
10
|
10
|
10
|
|
Удельное давление от
штабеля изделий, тс/м2
|
3,77
|
3,80
|
3,48
|
3,47
|
3,49
|
|
Тип (вид) грузозахватного устройства
|
Строп 4СК1-10,0 5000 ГОСТ
25573-82
|
|
Размеры (h×b×l) по ГОСТ 2695-83 (ГОСТ 24454-80Е), мм:
|
подкладки-бруса
|
100×100×1900
|
100×100×2900
|
100×100×1900
|
100×100×2000
|
100×100×3900
|
|
прокладки- бруса
|
32×100×1800
|
32×100×2800
|
32×100×1800
|
32×100×1900
|
32×100×3800
|
|
|
|
|
|
|
|
|
Эскиз изделия

Схема складирования (на
примере изделия марки 1Л60.18)

Эскиз грузозахватного
устройства

Схема строповки

Данные по изделию приняты по ГОСТ
21924.0-84-ГОСТ
21924.3-84 «Плиты железобетонные для покрытий городских дорог».
|
Параметры
|
Значение параметров для марки
|
|
ПАГ-14
|
ПАГ-18
|
|
Масса изделия, т
|
4,2
|
5,4
|
|
Размеры изделия, мм
|
длина, L
|
6000
|
6000
|
|
ширина, B
|
2000
|
2000
|
|
высота, H
|
140
|
180
|
|
Расстояние, мм
|
между осями подкладок, А
|
4000
|
4000
|
|
от
торца изделия до оси подкладок, Т
|
1000
|
1000
|
|
Число ярусов в
штабеле, допускаемое при укладке на складе, шт.
|
10
|
10
|
|
Удельное
давление от штабеля изделий, тс/м2
|
3,5
|
4,5
|
|
Тип (вид) грузозахватного устройства
|
Универсальная траверса грузоподъемностью 10т (черт. № 4047Н)
|
|
Размеры (h×b×l) по ГОСТ 2695-83 (ГОСТ 24454-80Е), мм:
|
подкладки-бруса
|
100×100×2100
|
|
прокладки-бруса
|
50×60×2000
|
Эскиз изделия

Схема складирования (на
примере изделия марки ПАГ-18)

Схема строповки

Данные по изделию приняты по ГОСТ
25912.0-83-ГОСТ
25912.3-83 «Плиты железобетонные предварительно напряженные для аэродромных
покрытий».
Траверса принята по каталогу рабочих чертежей монтажной
оснастки (грузозахватные, монтажные приспособления и инвентарь), разработанных
трестом Мосоргстрой, часть 1.
|
Параметры
|
Значение параметров для марки
|
|
УКIДл-РБМ
УКIДп-РБМ
|
УКIл-БМ
УКIп-БМ
|
УКIл-РБМ
УКIп-РБМ
|
УКIДл
УКIДп
|
УКIДл-Р
УКIДп-Р
|
|
Масса изделия, т
|
1,65
|
1,65
|
1,65
|
1,65
|
1,65
|
|
Размеры изделия, мм
|
длина, L
|
2700
|
2700
|
2700
|
2700
|
2700
|
|
ширина, B
|
1800
|
1800
|
1800
|
1800
|
1800
|
|
высота, H
|
2600
|
2600
|
2600
|
2600
|
2600
|
|
Расстояние, мм
|
между осями подкладок, А
|
2600
|
2600
|
2600
|
2600
|
2600
|
|
от
торца изделия до оси подкладок, Т
|
50
|
50
|
50
|
50
|
50
|
|
Число ярусов в
штабеле, допускаемое при укладке на складе, шт.
|
1
|
1
|
1
|
1
|
1
|
|
Удельное
давление от штабеля изделий, тс/м2
|
0,33
|
0,33
|
0,33
|
0,33
|
0,33
|
|
Тип (вид) грузозахватного устройства
|
Траверса для подъема сантехкабин УК-1 и УК-2 грузоподъемностью 2 т
(черт. № 4639А). Строп 4СК1-2,5 8500 ГОСТ
25573-82
|
|
Размеры (h×b×l) по ГОСТ 2695-83 (ГОСТ 24454-80Е) прокладки - бруса, мм
|
100×100×5700
|
Эскиз изделия

Схема складирования

Схема строповки

Данные по изделию приняты по альбому № РС 0321
«Санитарно-технические кабины разобщенные из двухслойных асбецементных
покрытий, разработанному ОАСИ Моспроекта».
Траверса принята по каталогу рабочих чертежей
монтажной оснастки (грузозахватные, монтажные приспособления и инвентарь),
разработанных трестом Мосоргстрой, часть 1.
|
Параметры
|
Значение параметров для марки
|
|
УК3п
|
УК3л-В
|
УК3п-ВБМ
|
УК3п-Р
|
|
Масса изделия, т
|
0,81
|
0,81
|
0,81
|
0,81
|
|
Размеры изделия, мм
|
длина, L
|
1400
|
1400
|
1400
|
1400
|
|
ширина, B
|
1300
|
1300
|
1300
|
1300
|
|
высота, H
|
2600
|
2600
|
2600
|
2600
|
|
Расстояние, мм
|
между осями подкладок, А
|
1300
|
1300
|
1300
|
1300
|
|
от
торца изделия до оси подкладок, Т
|
50
|
50
|
50
|
50
|
|
Число ярусов в
штабеле, допускаемое при укладке на складе, шт.
|
1
|
1
|
1
|
1
|
|
Удельное давление от
штабеля изделий, тс/м2
|
0,42
|
0,42
|
0,42
|
0,42
|
|
Тип (вид) грузозахватного устройства
|
Траверса для подъема сантехкабин УК-3
грузоподъемностью 0,87 т (черт. № 7738). Строп 4СК1-1,0 1600 ГОСТ
25573-82
|
|
Размеры (h×b×l) по ГОСТ 2695-83 (ГОСТ 24454-80Е) подкладки-бруса, мм
|
100×100×4200
|
Эскиз изделия

Схема складирования

Схема строповки

Данные по изделию приняты по альбому № РС 0323
«Санитарно-технические кабины без ванн из двухслойных асбецементных покрытий,
разработанному ОАСИ Моспроекта».
Траверса принята по каталогу рабочих чертежей
монтажной оснастки (грузозахватные, монтажные приспособления и инвентарь),
разработанных трестом Мосоргстрой, часть 1.
|
Параметры
|
Значение параметров для марки
|
|
ШЛ32с28
|
ШЛ32с30
|
ШЛГ50сл28
|
ШЛГ50сл30
|
|
Масса изделия, т
|
4,95
|
5,36
|
6,22
|
6,73
|
|
Размеры изделия, мм
|
длина, L
|
1930
|
1930
|
1930
|
1930
|
|
ширина, B
|
1820
|
1820
|
2920
|
2920
|
|
высота, H
|
2790
|
2990
|
2790
|
2990
|
|
Расстояние, мм
|
между осями подкладок, А
|
1780
|
1780
|
1780
|
1780
|
|
от
торца изделия до оси подкладок, Т
|
75
|
75
|
75
|
75
|
|
Число ярусов в
штабеле, допускаемое при укладке на складе, шт.
|
1
|
1
|
1
|
1
|
|
Удельное давление от
штабеля изделий, тс/м2
|
1,35
|
1,46
|
1,11
|
1,20
|
|
Тип (вид) грузозахватного устройства
|
Универсальная траверса
грузоподъемностью 10 т (черт. № 4047Н).
|
|
Размеры (h×b×l) по ГОСТ 2695-83 (ГОСТ 24454-80Е) подкладки-бруса, мм
|
100×150×5250
|
Эскиз изделия

Схема складирования (на
примере изделия марки ШЛ32с28)

Схема строповки

Данные по изделию приняты по Номенклатурному
сборнику железобетоных и бетонных изделий, выпускаемых предприятиями
Главмосстройматериалов для строительства жилых, гражданских, производственных
зданий и инженерных сооружений, разработанному КТБ Мосоргстройматериалы, и ГОСТ
17538-82 "Конструкции и изделия железобетонные для шахт лифтов жилых
зданий. Технические условия".
Траверса принята по каталогу рабочих чертежей монтажной
оснастки (грузозахватные, монтажные приспособления и инвентарь), разработанных
трестом Мосоргстрой, часть 1.
|
Параметры
|
Значение параметров для
марки плиты
|
|
верхней
|
нижней
|
|
ПВ32С
|
ПВ32С-1
|
ПВГ-50
|
ПН32
|
ПНГ50
|
|
Масса изделия, т
|
1,58
|
1,56
|
2,58
|
1,76
|
2,82
|
|
Размеры изделия, мм
|
длина, L
|
1930
|
1930
|
1930
|
1930
|
1930
|
|
ширина, B
|
1820
|
1820
|
2920
|
1820
|
2920
|
|
высота, H
|
200
|
200
|
200
|
200
|
200
|
|
Расстояние, мм
|
между осями подкладок, А
|
1530
|
1530
|
1530
|
1530
|
1530
|
|
от торца изделия до оси
подкладок, Т
|
380
|
380
|
380
|
380
|
380
|
|
Число ярусов в штабеле,
допускаемое при укладке на складе, шт.
|
8
|
8
|
8
|
8
|
8
|
|
Удельное давление от
штабеля изделий, тс/м2
|
3,60
|
3,55
|
3,66
|
4,00
|
4,00
|
|
Тип (вид) грузозахватного устройства
|
Строп 4СК1-3,2 2500 ГОСТ
25573-82
|
|
Размеры (h×b×l)
по ГОСТ 2695-83
(ГОСТ
24454-80Е) прокладки-бруса,
мм:
|
подкладки-бруса
|
100×100×1900
|
100×100×3000
|
100×100×1900
|
100×100×3300
|
|
прокладки- бруса
|
50×60×1800
|
50×60×2900
|
50×60×1800
|
50×60×2900
|
|
|
|
|
|
|
|
|
|
|
|
Плита верхняя

Плита нижняя

Схема складирования (на
примере изделия марки ПВГ50)

Эскиз грузозахватного
устройства

Схема строповки

Данные по изделию приняты по Номенклатурному сборнику
железобетоных и бетонных изделий, выпускаемых предприятиями
Главмосстройматериалов для строительства жилых, гражданских, производственных
зданий и инженерных сооружений, разработанному КТБ Мосоргстройматериалы, и ГОСТ
17538-82 "Конструкции и изделия железобетонные для шахт лифтов жилых
зданий. Технические условия".
|
Параметры
|
Значение параметров для марки
|
|
ФБС24.3.6-Т
|
ФБС24.4.6-Т
|
ФБС24.5.6-Т
|
ФБС24.6.6-Т
|
|
Масса изделия, т
|
0,97
|
1,30
|
1,63
|
1,96
|
|
Размеры изделия, мм
|
длина, L
|
2380
|
2380
|
2380
|
2380
|
|
ширина, B
|
300
|
400
|
500
|
600
|
|
высота, H
|
580
|
580
|
580
|
580
|
|
Расстояние, мм
|
между осями подкладок, А
|
1440
|
1440
|
1440
|
1440
|
|
от
торца изделия до оси подкладок, Т
|
470
|
470
|
470
|
470
|
|
Число ярусов в
штабеле, допускаемое при укладке на складе, шт.
|
3
|
3
|
3
|
3
|
|
Удельное давление от
штабеля изделий, тс/м2
|
3,67
|
3,78
|
3,85
|
3,90
|
|
Тип (вид) грузозахватного устройства
|
Строп 2СК-2,0 2000 Гост
25573-82
|
|
Размеры (h×b×l) по ГОСТ 2695-83 (ГОСТ 24454-80Е), мм:
|
подкладки-бруса
|
100×100×1100
|
100×100×1400
|
100×100×1700
|
100×100×2000
|
|
прокладки- бруса
|
50×50×1000
|
50×50×1300
|
50×50×1500
|
50×50×1900
|
Эскиз изделия

Схема складирования (на
примере изделия марки ФБС24.5.6-Т)

Эскиз грузозахватного
устройства

Схема строповки

Данные по изделию приняты по ГОСТ 13579-78
"Блоки бетонные для стен подвалов. Технические условия".
|
Параметры
|
Значение параметров для марки
|
|
1К01.6.72-I-I
|
1К02.6.48-I
1К02.6.48-I-I
|
1К02.6.60-1
1К02.6.60-2
1К02.6.60-3
1К02.6.60-I-1
|
1К02.6.72-1
1К02.6.72-2
1К02.6.72-1-1
1К02.6.72-2-2
|
|
Масса изделия, т
|
4,9
|
3,5
|
4,2
|
4,9
|
|
Размеры изделия, мм
|
длина, 
|
7710
720
|
5325
875
|
6525
875
|
7725
875
|
|
ширина, 
|
400
750
|
400
800
|
400
800
|
400
800
|
|
высота, H
|
600
|
600
|
600
|
600
|
|
Расстояние, мм
|
между осями подкладок, А
|
4510
|
3325
|
3920
|
4725
|
|
от
торца изделия до оси подкладок, Т
|
1600
|
1000
|
1300
|
1500
|
|
Число ярусов в
штабеле, допускаемое при укладке на складе, шт.
|
3
|
3
|
3
|
3
|
|
Удельное давление от
штабеля изделий, тс/м2
|
2,74
|
2,74
|
2,68
|
2,64
|
|
Тип (вид) грузозахватного устройства
|
Строп 2СК-5,0/10000 ГОСТ
25573-82 с инвентарными подкладками
|
|
Размеры (h×b×l) по ГОСТ 2695-83 (ГОСТ 24454-80Е), мм:
|
подкладки-бруса
|
100×150×3700
|
|
прокладки-бруса
|
32×150×3600
|
Эскиз изделия

Схема складирования (на
примере изделия марки 1К02.6.60-1)

Эскиз грузозахватного
устройства

Схема строповки

Данные по изделию приняты по строительному каталогу, Часть 3
«Типовая документация на конструкции, изделия и узлы зданий и сооружений».
Сборник К 400-1-3-83 ЦИТП и Техническим условиям ТУ 400-1-70-85 «Колонны
железобетонные для жилых и общественных зданий».
|
Параметры
|
Значение параметров для марки
|
|
ПБ3-18-181
ПБ3-18-281
|
|
Масса изделия, т
|
1150
|
|
Размеры изделия, мм
|
длина, L
|
11950
|
|
ширина, B
|
700
|
|
высота, H
|
1700
|
|
Расстояние, мм
|
между осями подкладок, А
|
11050
|
|
от
торца изделия до оси подкладок, Т
|
450
|
|
Число ярусов в
штабеле, допускаемое при укладке на складе, шт.
|
1
|
|
Удельное давление от
штабеля изделий, тс/м2
|
1,23
|
|
Тип (вид) грузозахватного устройства
|
Траверса универсальная с
передвигаемыми по балке обоймами грузоподъемностью 16 т. Обозначение -
0.68.000
|
|
Размеры (h×b×l) по ГОСТ 2695-83 (ГОСТ 24454-80Е), мм подкладки-бруса
|
100×100×4000
|
Эскиз изделия

Схема складирования

Эскиз грузозахватного
устройства

Схема строповки

Данные по изделию приняты по Номенклатурному сборнику
железобетоных и бетонных изделий, выпускаемых предприятиями
Главмосстройматериалов для строительства жилых, гражданских, производственных
зданий и инженерных сооружений, разработанному КТБ Мосоргстройматериалы.
Конструкция и обозначения траверсы и канатов приняты по
альбому РЧ-455 ЦНИИОМТП
|
Параметры
|
Значение
параметров для марки
|
|
СН

|
СН 
|
СН 
|
СН 
|
|
Масса
изделия, т
|
6,0
|
7,8
|
8,8
|
9,8
|
|
Размеры изделия, мм
|
длина, L
|
15000
|
19000
|
22000
|
24000
|
|
ширина, B
|
400
|
400
|
400
|
400
|
|
высота, H
|
400
|
400
|
400
|
400
|
|
Расстояние, мм
|
между осями подкладок, А
|
9150
|
11700
|
13500
|
14700
|
|
от торца изделия до оси
подкладок, Т
|
2850
|
3650
|
4250
|
4650
|
|
Число ярусов в штабеле, допускаемое при
укладке на складе, шт.
|
4
|
4
|
4
|
4
|
|
Удельное давление от штабеля изделий, тс/м2
|
3,12
|
3,24
|
3,18
|
3,26
|
|
Тип (вид) грузозахватного устройства
|
Строп 2СК-10,0 16000 ГОСТ
25573-82
|
|
Размеры (h×b×l) по ГОСТ 2695-83 (ГОСТ 24454-80Е), мм:
|
подкладки-бруса
|
150×150×3000
|
|
прокладки-бруса
|
125×150×2900
|
Эскиз изделия

Схема складирования (на
примере изделия марки СН )

Эскиз грузозахватного
изделия

Схема строповки одиночного
изделия

Данные по изделию приняты по работе Гипроречтранса
«Типовая документация на строительные системы, изделия и узлы зданий и
сооружений. Серия 3.505.1-15. Причальные набережные высотой от 4 до 15 метров.
Выпуск 1.».
|
Параметры
|
Значение параметров для марки
|
|
U68-8
|
U69-3
|
U69-15
|
|
Масса изделия, т
|
3,1
|
3,2
|
3,2
|
|
Размеры изделия, мм
|
длина, L
|
5300
|
5500
|
5500
|
|
ширина, B
|
300
|
300
|
300
|
|
высота, H
|
800
|
800
|
800
|
|
Расстояние, мм
|
между осями подкладок, А
|
3480
|
3620
|
3620
|
|
от
торца изделия до оси подкладок, Т
|
900
|
940
|
940
|
|
Число ярусов в
штабеле, допускаемое при укладке на складе, шт.
|
2
|
2
|
2
|
|
Удельное давление от
штабеля изделий, тс/м2
|
3,42
|
3,40
|
3,40
|
|
Тип (вид) грузозахватного устройства
|
Универсальная траверса
грузоподъемностью 10т (черт. № 4047Н). Строп 4СК1-10,0 5000 ГОСТ
25573-82
|
|
Размеры (h×b×l) по ГОСТ 2695-83 (ГОСТ 24454-80Е), мм:
|
подкладки-бруса
|
100×100×2200
|
|
прокладки-бруса
|
50×100×2100
|
Эскиз изделия

Схема складирования (на
примере изделия марки U69-15)

Схема строповки

Данные по изделию приняты по каталогу «Типовые конструкции и
детали зданий и сооружений» часть 5, сборник К 400-1-4-73 и Техническим
условиям 400-1-15-85.
Траверса принята по каталогу рабочих чертежей монтажной
оснастки (грузозахватные, монтажные приспособления и инвентарь), разработанных
трестом Мосоргстрой, часть 1.
|
Параметры
|
Значение параметров для марки
|
|
ТБФ 60.20
|
ТБФ 80.20
|
ТБФ 80.20
|
|
Масса изделия, т
|
0,99
|
1,66
|
1,43
|
|
Размеры изделия, мм
|
длина, L
|
2035
|
2055
|
2000
|
|
диаметр
|
790
600
|
1040
800
|
1010
800
|
|
толщина стенок С
|
95
|
120
|
105
|
|
Расстояние, мм
|
между осями подкладок, А
|
1235
|
1235
|
1235
|
|
от
торца изделия до оси подкладок, Т
|
400
|
400
|
400
|
|
Число ярусов в
штабеле, допускаемое при укладке на складе, шт.
|
4
|
3
|
3
|
|
Удельное давление от
штабеля изделий, тс/м2
|
1,66
|
1,81
|
1,64
|
|
Тип (вид) грузозахватного устройства
|
Траверса для труб грузоподъемностью 5
т
|
|
Длина
подкладки-бруса 100×200 по ГОСТ 2695-83 (ГОСТ 24454-80Е), мм
|
4700
|
8000
|
5800
|
Эскиз изделия

Схема складирования (на
примере изделия марки ТБФ 80.20)

Эскиз грузозахватного
устройства

Схема строповки

Данные по изделию приняты по ГОСТ
20054-82 «Трубы бетонные безнапорные. Технические условия».
Конструкция и обозначение траверсы приняты по чертежу
«1085-00-00 Московского завода железобетонных труб.
|
Параметры
|
Значение параметров для марки
|
|
РТ6.50
|
РТ8.50
|
РТ10.50
|
|
Масса изделия, т
|
1,7
|
3,0
|
4,6
|
|
Размеры изделия, мм
|
длина трубы, L
длина раструба, L1
|
5100
150
|
5110
200
|
5110
200
|
|
диаметр трубы 
|
720
600
|
960
800
|
1200
1000
|
|
диаметр раструба 
|
690
750
|
1170
990
|
1450
1230
|
|
Расстояние, мм
|
между осями подкладок, А
|
3100
|
3110
|
3110
|
|
от
торца изделия до оси подкладок, Т
|
1000
|
1000
|
1000
|
|
Число ярусов в
штабеле, допускаемое при укладке на складе, шт.
|
4
|
4
|
4
|
|
Удельное давление от
штабеля изделий, тс/м2
|
0,94
|
1,27
|
1,56
|
|
Тип (вид) грузозахватного устройства
|
Захват автоматический СМЖ 102,
грузоподъемностью 8,0 т.
|
|
Длина
подкладки-бруса 100×200 по ГОСТ 2695-83 (ГОСТ 24454-80Е), мм:
|
4200
|
5200
|
6300
|
Продолжение
|
Параметры
|
Значение параметров для марки
|
|
РТ12.50
|
РТ14.50
|
РТ16.50
|
|
Масса изделия, т
|
6,1
|
7,0
|
8,7
|
|
Размеры изделия, мм
|
длина трубы, L
длина раструба, L1
|
5110
200
|
5110
200
|
5110
200
|
|
диаметр трубы 
|
1420
1200
|
1620
1400
|
1840
1600
|
|
диаметр раструба 
|
1690
1450
|
1890
1650
|
2130
1870
|
|
Расстояние, мм
|
между осями подкладок, А
|
3110
|
3110
|
3110
|
|
от
торца изделия до оси подкладок, Т
|
1000
|
1000
|
1000
|
|
Число ярусов в
штабеле, допускаемое при укладке на складе, шт.
|
3
|
2
|
2
|
|
Удельное давление от
штабеля изделий, тс/м2
|
1,62
|
1,29
|
1,43
|
|
Тип (вид) грузозахватного устройства
|
Захват автоматический СМЖ 102,
грузоподъемностью 8,0 т.
|
|
Длина
подкладки-бруса 100×200 по ГОСТ 2695-83 (ГОСТ 24454-80Е), мм
|
7300
|
8000
|
9000
|
Эскиз изделия

Схема складирования (на
примере изделия марки РТ10.50)

Эскиз грузозахватного
устройства

Схема строповки

Данные по изделию приняты по ГОСТ
20054-82 «Трубы железобетонные безнапорные. Технические условия» и
ГОСТ 6482.1-79 «Трубы железобетонные безнапорные. Конструкция и размеры».
Захват автоматический СМЖ-102. Изготовитель Брянский завод
ирригационных машин. ОКП 484223.
Трубы типа РТБ и РТПБ следует укладывать в штабели по схеме
приведенной в приложении.
|
Параметры
|
Значение параметров для марки
|
|
ТН60-II
|
ТН80-II
|
ТН100-II
|
|
Масса изделия, т
|
1,89
|
2,48
|
3,55
|
|
Размеры изделия, мм
|
длина трубы, L
длина раструба, Lр
|
5185
590
|
5195
650
|
5195
680
|
|
диаметр условного прохода трубы Ду
|
600
|
800
|
1000
|
|
толщина стенки цилиндрической части
трубы, t
|
65
|
65
|
75
|
|
Расстояние, мм
|
между осями подкладок, А
|
3000
|
3000
|
3000
|
|
от
торца изделия до оси подкладок, Т
|
1000
|
1000
|
1000
|
|
Число ярусов изделий
в штабеле, допускаемое при укладке на складе, шт.
|
в ряду
|
6
|
5
|
4
|
|
по высоте
|
4
|
4
|
4
|
|
Удельное давление от
штабеля изделий, тс/м2
|
1,72
|
1,81
|
2,10
|
|
Тип (вид) грузозахватного устройства
|
Захват автоматический СМЖ-380,
грузоподъемностью 10,0 т.
|
|
Длина подкладки-бруса
100×200 по ГОСТ 2695-83 (ГОСТ 24454-80Е), мм
|
5700
|
5900
|
5800
|
Продолжение
|
Параметры
|
Значение параметров для марки
|
|
ТН120-II
|
ТН140-II
|
ТН160-II
|
|
Масса изделия, т
|
4,95
|
6,65
|
8,20
|
|
Размеры изделия, мм
|
длина трубы, L
длина раструба, Lр
|
5195
800
|
5225
870
|
5225
945
|
|
диаметр условного прохода трубы Ду
|
1200
|
1400
|
1600
|
|
толщина стенки цилиндрической части
трубы, t
|
85
|
95
|
105
|
|
Расстояние, мм
|
между осями подкладок, А
|
3000
|
3000
|
3000
|
|
от
торца изделия до оси подкладок, Т
|
1000
|
1000
|
1000
|
|
Число ярусов
изделий в штабеле, допускаемое при укладке на складе, шт.
|
в ряду
|
3
|
3
|
2
|
|
по высоте
|
3
|
2
|
2
|
|
Удельное давление от
штабеля изделий, тс/м2
|
1,81
|
1,45
|
1,26
|
|
Тип (вид) грузозахватного устройства
|
Захват автоматический СМЖ-380,
грузоподъемностью 10,0 т.
|
|
Длина
подкладки-бруса 100×200 по ГОСТ 2695-83 (ГОСТ 24454-80Е), мм
|
5400
|
5900
|
5600
|
Эскиз изделия

Схема складирования (на
примере изделия марки ТН100-II)

Эскиз грузозахватного
устройства

Схема строповки

Данные по изделию и схема складирования приняты по ГОСТ
12586.0-83 ГОСТ
12586.1-83 «Трубы железобетонные безнапорные. Технические условия» и
ГОСТ 6482.1-79 «Трубы железобетонные напорные виброгидропрессованные».
Захват автоматический СМЖ-380 ТУ 22-3681-76. Изготовитель
Брянский завод ирригационных машин. ОКП 484223.
|
Параметры
|
Значение параметров для марки
|
|
КЦ-7-3
|
КЦ-7-9
|
КЦ-10-3
|
|
Масса изделия, т
|
0,13
|
0,38
|
0,20
|
|
Размеры изделия, мм
|
наружный диаметр, Дн
|
840
|
840
|
1160
|
|
внутренний диаметр, Дв
|
700
|
700
|
1000
|
|
высота, H
|
290
|
890
|
290
|
|
толщина стенки, С
|
70
|
70
|
80
|
|
Расстояние, мм
|
между осями подкладок, А
|
540
|
540
|
660
|
|
от
торца изделия до оси подкладок, Т
|
150
|
150
|
200
|
|
Число ярусов изделий в штабеле,
допускаемое при укладке на складе, шт.
|
8
|
2
|
8
|
|
Удельное давление от
штабеля изделий, тс/м2
|
1,47
|
1,07
|
1,19
|
|
Тип (вид) грузозахватного устройства
|
Строп 4СК1-2,0 2000 ГОСТ
25573-82
|
|
Размеры (h×b×l) по ГОСТ 2695-83 (ГОСТ 24454-80Е), мм:
|
подкладки-бруса
|
100×100×5300
|
|
прокладки-бруса
|
50×100×5300
|
Продолжение
|
Параметры
|
Значение параметров для марки
|
|
КЦ-10-6
|
КЦ-10-9
|
КЦ-15-6
|
КЦ-15-9
|
|
Масса изделия, т
|
0,40
|
0,60
|
0,66
|
1,00
|
|
Размеры изделия, мм
|
наружный диаметр, Дн
|
1160
|
1160
|
1680
|
1680
|
|
внутренний диаметр, Дв
|
1000
|
1000
|
1500
|
1500
|
|
высота, H
|
590
|
890
|
590
|
890
|
|
толщина стенки, С
|
80
|
80
|
90
|
90
|
|
Расстояние, мм
|
между осями подкладок, А
|
660
|
660
|
1080
|
1080
|
|
от
торца изделия до оси подкладок, Т
|
200
|
200
|
300
|
300
|
|
Число ярусов изделий в штабеле,
допускаемое при укладке на складе, шт.
|
4
|
2
|
4
|
2
|
|
Удельное давление от
штабеля изделий, тс/м2
|
1,19
|
0,89
|
0,94
|
0,71
|
|
Тип (вид) грузозахватного устройства
|
Строп 4СК1-2,0 2000 ГОСТ
25573-82
|
|
Размеры (h×b×l) по ГОСТ 2695-83 (ГОСТ 24454-80Е), мм:
|
подкладки-бруса
|
100×100×5300
|
|
прокладки-бруса
|
50×100×5300
|
Продолжение
|
Параметры
|
Значение параметров для марки
|
|
КЦ-20-6
|
КЦ-20-9
|
КЦ-20-12
|
|
Масса изделия, т
|
0,98
|
1,47
|
1,96
|
|
Размеры изделия, мм
|
наружный диаметр, Дн
|
2200
|
2200
|
2200
|
|
внутренний диаметр, Дв
|
2000
|
2000
|
2000
|
|
высота, H
|
590
|
890
|
1190
|
|
толщина стенки, С
|
100
|
100
|
100
|
|
Расстояние, мм
|
между осями подкладок, А
|
1400
|
1400
|
1400
|
|
от
торца изделия до оси подкладок, Т
|
400
|
400
|
400
|
|
Число ярусов изделий в штабеле,
допускаемое при укладке на складе, шт.
|
4
|
2
|
2
|
|
Удельное давление от
штабеля изделий, тс/м2
|
0,81
|
0,61
|
0,81
|
|
Тип (вид) грузозахватного устройства
|
Автоматический захват
грузоподъемностью 5 т.
|
|
Размеры (h×b×l) по ГОСТ 2695-83 (ГОСТ 24454-80Е), мм:
|
подкладки-бруса
|
100×100×5300
|
|
прокладки-бруса
|
50×100×5300
|
Эскиз изделия

Схема складирования (на примере
изделия марки КЦ-20-12)

Схема грузозахватного
устройства

Схема строповки

Данные по изделию приняты по ГОСТ
8020-80 «Изделия железобетонные для смотровых колодцев и
канализационных сетей. Технические условия».
Конструкция автоматического захвата принята по чертежу № 203
Северного порта МРП.
|
Параметры
|
Значение параметров для марки
|
|
УТК1020-24-1
|
УТК1020-24-2
|
УТК1220-24-1
|
|
Масса изделия, т
|
1,59
|
2,02
|
2,25
|
|
Размеры изделия, мм
|
длина, L
|
2400
|
2400
|
2400
|
|
ширина, B
|
1430
|
1500
|
1700
|
|
радиус внутренний, Rв
|
550
|
550
|
655
|
|
высота, H
|
690
|
725
|
825
|
|
толщина, d
|
155
|
190
|
185
|
|
Расстояние, мм
|
между осями подкладок, А
|
1100
|
1100
|
1100
|
|
от
торца изделия до оси подкладок, Т
|
650
|
650
|
650
|
|
Число ярусов изделий в штабеле,
допускаемое при укладке на складе, шт.
|
5
|
5
|
4
|
|
Удельное давление от
штабеля изделий, тс/м2
|
2,32
|
2,80
|
2,20
|
|
Тип (вид) грузозахватного устройства
|
Строп 4СК1-5,0 2000 ГОСТ
25573-82
|
|
Размеры (h×b×l) по ГОСТ 2695-83 (ГОСТ 24454-80Е), мм
|
подкладки-бруса
|
100×150×4500
|
|
прокладки-бруса
|
-
|
Продолжение
|
Параметры
|
Значение параметров для марки
|
|
УТК1220-24-2
|
УТК1420-24-1
|
УТК1420-24-2
|
|
Масса изделия, т
|
2,83
|
2,85
|
4,12
|
|
Размеры изделия, мм
|
длина, L
|
2400
|
2400
|
2400
|
|
ширина, B
|
1790
|
1930
|
2080
|
|
радиус внутренний, Rв
|
655
|
755
|
755
|
|
высота, H
|
870
|
935
|
1010
|
|
толщина, d
|
230
|
200
|
275
|
|
Расстояние, мм
|
Между осями подкладок, А
|
1100
|
1100
|
1100
|
|
От
торца изделия до оси подкладок, Т
|
650
|
650
|
650
|
|
Число ярусов изделий в штабеле,
допускаемое при укладке на складе, шт.
|
4
|
4
|
3
|
|
Удельное давление от
штабеля изделий, тс/м2
|
2,64
|
2,80
|
2,48
|
|
Тип (вид) грузозахватного устройства
|
Строп 4СК1-5,0 2000 ГОСТ
25573-82
|
|
Размеры (h×b×l) по ГОСТ 2695-83 (ГОСТ 24454-80Е), мм
|
подкладки-бруса
|
100×150×4500
|
|
прокладки-бруса
|
-
|
Эскиз изделия

Схема складирования (на
примере изделия марки УТК 1420-24-1)

Эскиз грузозахватного
устройства

Схема строповки

Данные по изделию приняты по ТУ 102-264-81 «Утяжелители
железобетонные сборные кольцевого типа УТК для магистральных трубопроводов»,
разработанным ЭКБ по железобетону Министерства строительства предприятий
нефтяной и газовой промышленности.
Приложение
9.24
|
Параметры
|
Значение параметров для марки
|
|
БК6-IAIV-C
БК6-IAIV-K
БК6-IAIV-T
|
БК6-2AIV-C
БК6-2AIV-K
БК6-2AIV-T
|
БК6-4AIV-C
БК6-4AIV-K
БК6-4AIV-T
|
|
Масса изделия, т
|
3,5
|
3,5
|
3,5
|
|
Размеры изделия, мм
|
длина, L
|
5950
|
5950
|
5950
|
|
ширина, B1
|
550
|
600
|
600
|
|
ширина, B2
|
200
|
200
|
200
|
|
высота, H
|
800
|
1000
|
1000
|
|
Расстояние, мм
|
между осями подкладок, А
|
5750
|
5750
|
5750
|
|
от
торца изделия до оси подкладок, Т
|
100
|
100
|
100
|
|
Число ярусов изделий в штабеле,
допускаемое при укладке на складе, шт.
|
2
|
2
|
2
|
|
Удельное давление от
штабеля изделий, тс/м2
|
1,80
|
1,68
|
1,68
|
|
Тип (вид) грузозахватного устройства
|
Строп 2СК-5,0/10000 Гост
25573-82 с инвентарными подкладками
|
|
Размеры (h×b×l) по ГОСТ 2695-83 (ГОСТ 24454-80Е), мм
|
подкладки-бруса
|
150×150×3000
|
|
прокладки-бруса
|
100×150×3000
|
Эскиз изделия

Схема складирования (на
примере изделия марки БК6-2AIV-C)

Эскиз грузозахватного
устройства

Схема строповки

Данные по изделию приняты по строительному каталогу. Часть
3. «Типовая документация на конструкции, изделия и узлы зданий и сооружений»
Серия 1.426.1-4. Выпуск 1.2.3.
|
Параметры
|
Значение параметров для марки
|
|
ВГ-9
|
ВГ-10
|
ВГ-12
|
ВГ-13
|
|
Масса изделия, т
|
0,423
|
0,65
|
1,08
|
0,56
|
|
Размеры изделия, мм
|
длина, L
|
790
|
1190
|
1990
|
990
|
|
ширина (толщина), B
|
390
|
390
|
390
|
390
|
|
высота, H
|
880
|
880
|
880
|
880
|
|
Расстояние, мм
|
между осями подкладок, А
|
395
|
440
|
1200
|
400
|
|
от
торца изделия до оси подкладок, Т1
|
395
|
395
|
395
|
Т1=
395
|
|
от
торца изделия до оси подкладок, Т2
|
395
|
395
|
395
|
Т2=
195
|
|
Число ярусов изделий в штабеле, допускаемое
при укладке на складе, шт.
|
2
|
2
|
2
|
2
|
|
Удельное давление от
штабеля изделий, тс/м2
|
2,75
|
2,80
|
4,65
|
2,90
|
|
Тип (вид) грузозахватного устройства
|
Строп 2СК-2,0 2000 ГОСТ
25573-82
|
|
Размеры (h×b×l) по ГОСТ 2695-83 (ГОСТ 24454-80Е), мм
|
подкладки-бруса
|
50×100×1300
|
|
прокладки-бруса
|
30×500×1200
|
Продолжение
|
Параметры
|
Значение параметров для марки
|
|
ВГ-16
|
ВГ-10К
|
ВГ-12К
|
ВГ-16
|
|
Масса изделия, т
|
1,32
|
0,65
|
1,08
|
1,32
|
|
Размеры изделия, мм
|
длина, L
|
2390
|
1190
|
1990
|
2390
|
|
ширина (толщина), B
|
390
|
390
|
390
|
390
|
|
высота, H
|
880
|
880
|
880
|
880
|
|
Расстояние, мм
|
между осями подкладок, А
|
1600
|
400
|
1200
|
1600
|
|
от
торца изделия до оси подкладок, Т1
|
395
|
395
|
395
|
395
|
|
от
торца изделия до оси подкладок, Т2
|
395
|
395
|
395
|
395
|
|
Число ярусов изделий в штабеле,
допускаемое при укладке на складе, шт.
|
2
|
2
|
2
|
2
|
|
Удельное давление от
штабеля изделий, тс/м2
|
2,83
|
2,80
|
4,65
|
2,83
|
|
Тип (вид) грузозахватного устройства
|
Строп 2СК-2,0 2000 ГОСТ
25573-82
|
|
Размеры (h×b×l) по ГОСТ 2695-83 (ГОСТ 24454-80Е), мм
|
подкладки-бруса
|
50×100×1300
|
|
прокладки-бруса
|
30×500×1200
|
Эскиз изделия

Схема складирования (на
примере изделия марки ВГ-12)

Схема строповки

Примерная принципиальная
схема групповой строповки изделия

Данные по изделию приняты по альбому ИЖ-92 «Блоки
внутренних стен из тяжелого силикатного бетона», разработанному КТБ
Мосоргстройматериалы.
|
Параметры
|
Значение параметров для марки
|
|
ВЖ-15
|
ВЖ-14
|
МЮ-34
|
МЮ-35
|
|
Масса изделия, т
|
0,459
|
0,355
|
0,483
|
0,643
|
|
Размеры изделия, мм
|
длина, L
|
1590
|
1190
|
1990
|
1590
|
|
ширина (толщина), B
|
390
|
390
|
390
|
390
|
|
высота, H
|
540
|
540
|
640
|
640
|
|
Расстояние, мм
|
между осями подкладок, А
|
800
|
400
|
400
|
800
|
|
от
торца изделия до оси Т подкладок
|
395
|
395
|
395
|
395
|
|
Тип (вид) грузозахватного устройства
|
Крановый уравновешенный вилочный
захват грузоподъемностью 3,2 т.
|
Эскиз изделия

Схема размещения изделий
марки ВЖ-15 и ВЖ-14 на универсальных плоских поддонах с размерами в плане
1200×1600 мм

Схема перегрузки изделий
марки ВЖ-15 и ВЖ-14 крановым уравновешенным вилочным захватом по ТУ 31-823-74

Данные по изделию приняты по альбому
ИЖ-92 «Блоки внутренних стен из тяжелого силикатного бетона», разработанному
КТБ Мосоргстройматериалы.
|
|