Крупнейшая бесплатная информационно-справочная система онлайн доступа к полному собранию технических нормативно-правовых актов РФ. Огромная база технических нормативов (более 150 тысяч документов) и полное собрание национальных стандартов, аутентичное официальной базе Госстандарта. GOSTRF.com - это более 1 Терабайта бесплатной технической информации для всех пользователей интернета. Все электронные копии представленных здесь документов могут распространяться без каких-либо ограничений. Поощряется распространение информации с этого сайта на любых других ресурсах. Каждый человек имеет право на неограниченный доступ к этим документам! Каждый человек имеет право на знание требований, изложенных в данных нормативно-правовых актах!

  


 

Общероссийский общественный фонд «Центр качества строительства» Санкт-Петербургское отделение

СХЕМЫ ОПЕРАЦИОННОГО КОНТРОЛЯ КАЧЕСТВА СТРОИТЕЛЬНЫХ, РЕМОНТНО-СТРОИТЕЛЬНЫХ И МОНТАЖНЫХ РАБОТ

Издание 4-е, исправленное и дополненное

Санкт-Петербург 2006

Содержание

ВВЕДЕНИЕ

Нормативные документы, регламентирующие качество строительных материалов, изделий и конструкций, строительно-монтажных работ

Методы испытаний и контроля качества строительных материалов, изделий, конструкций при выполнении строительно-монтажных работ

Часть 1 СТРОИТЕЛЬНЫЕ РАБОТЫ

Земляные работы

Разработка выемок (траншей) под конструкции

Разработка котлованов экскаваторами

Разработка траншей под трубопроводы в нескальных грунтах

Обратная засыпка

Вертикальная планировка

Устройство насыпей

Устройство фундаментов

Монтаж блоков ленточных фундаментов

Монтаж блоков стен подземной части зданий

Установка блоков фундаментов стаканного типа

Устройство свайных фундаментов

Устройство сборных ростверков

Устройство монолитных ростверков

Устройство горизонтальной гидроизоляции фундаментов из цементных растворов

Бетонные работы

Опалубочные работы

Монтаж инвентарной опалубки стен монолитного дома

Монтаж инвентарной опалубки перекрытий

Арматурные работы

Укладка бетонных смесей

Устройство монолитных бетонных и железобетонных стен

Устройство монолитных бетонных и железобетонных колонн

Устройство монолитных бетонных и железобетонных фундаментов

Каменные работы

Кладка перегородок

Кладка стен

Кладка столбов

Монтажные работы

Монтаж железобетонных колонн одноэтажных зданий

Монтаж сборных железобетонных колонн многоэтажных зданий

Монтаж железобетонных ригелей, балок, ферм

Монтаж плит перекрытий и покрытий

Монтаж лестничных маршей и площадок

Монтаж балконных плит и перемычек

Монтаж наружных стеновых панелей каркасных зданий

Монтаж панелей, блоков несущих стен зданий

Монтаж объемных блоков шахт лифтов

Монтаж сборных железобетонных вентиляционных блоков

Монтаж объемных блоков

Монтаж санитарно-технических кабин

Монтаж гипсобетонпых перегородок

Монтаж асбестоцементных экструзионных панелей и плит

Монтаж каркасно-обшивных перегородок

Монтаж стен из панелей типа «Сэндвич» и полистовой сборки

Сварка монтажных соединений железобетонных конструкций

Антикоррозионная защита стальных закладных изделий

Герметизация стыков

Замоноличивание стыков и швов

Устройство мусоропровода

Кровельные и изоляционные работы

Подготовка оснований и нижележащих элементов изоляции и кровли

Устройство теплоизоляции из сыпучих материалов

Устройство теплоизоляции из плит

Устройство изоляции из рулонных материалов

Устройство изоляции из полимерных и эмульсионно-битумных составов

Устройство кровли из рулонных материалов

Устройство кровли из штучных материалов

Устройство кровли из полимерных и эмульсионно-битумных составов

Устройство кровли металлической

Столярные работы

Установка оконных блоков

Установка подоконных досок

Установка дверных блоков

Устройство антресолей, шкафов

Устройство полов

Подготовка грунтовых оснований под полы

Устройство бетонного подстилающего слоя, стяжек

Устройство звукоизоляции пола

Устройство оклеенной гидроизоляции пола

Устройство битумной гидроизоляции пола

Устройство монолитных покрытий

Устройство полов из керамической плитки

Устройство мозаичных полов

Устройство полов из полимерных материалов

Устройство лаг в полах по плитам перекрытий

Устройство лаг на столбиках по грунтовому основанию

Устройство дощатых полов

Устройство полов из штучного паркета

Устройство полов из щитового паркета

Отделочные работы

Штукатурные работы (простая штукатурка)

Штукатурные работы (улучшенная штукатурка)

Штукатурные работы (высококачественная штукатурка)

Штукатурные работы (покрытия из листов сухой гипсовой штукатурки)

Малярные работы (окраска водными составами)

Малярные работы (окраска безводными составами)

Облицовочные работы

Обойные работы

Стекольные работы (остекление переплетов)

Стекольные работы (установка стеклоблоков и стеклопанелей)

Устройство ограждений из стеклопрофилита

Отделка (облицовка) стен панелями, листами с заводской отделкой

Монтаж подвесных потолков в интерьерах зданий

Благоустройство

Устройство дренажа

Устройство отмостки из бетона и асфальтобетона

Устройство тротуаров и дорожек из плит

Устройство щебеночного основания и асфальтобетонного покрытия

Часть 2 РЕМОНТНО-СТРОИТЕЛЬНЫЕ РАБОТЫ

Ремонт и усиление старых фундаментов

Укладка сборных ж/б плит перекрытий при реконструкции кирпичных зданий

Устройство монолитных участков в перекрытиях

Монтаж плит перекрытий по металлическим балкам

Усиление кирпичных столбов и простенков

Установка металлических перемычек

Монтаж лестниц на металлических косоурах

Устройство стропильной системы из деревянных элементов

Ремонт штукатурки

Ремонт штукатурки фасадов зданий

Окраска фасадов

Установка лепных деталей фасадов

Установка водосточных труб

Часть 3 МОНТАЖНЫЕ РАБОТЫ

Устройство отверстий и борозд для прокладки трубопроводов

Монтаж чугунных напорных трубопроводов

Монтаж напорных трубопроводов из асбестоцементных труб

Монтаж трубопроводов внутреннего холодного и горячего водоснабжения

Монтаж железобетонных и бетонных безнапорных трубопроводов

Монтаж канализационных трубопроводов из керамических труб

Монтаж системы внутренней канализации и водостока

Установка ванны и умывальника

Установка санитарных приборов

Монтаж системы внутреннего отопления

Монтаж металлических воздуховодов

Монтаж внутренних газопроводов и газооборудования

Устройство электроосвещения

Устройство круглых железобетонных колодцев

Монтаж камер теплотрасс

Монтаж непроходных каналов

Изоляция трубопроводов теплотрасс

В настоящем издании приведены перечень нормативных документов, регламентирующих качество выполнения строительных и монтажных работ, методы испытаний и контроля качества строительных материалов, изделий и конструкций, схемы операционного контроля качества основных видов строительных, ремонтно-строительных и монтажных работ.

Схемы содержат состав контролируемых операций, требования к качеству применяемых материалов, изделий, конструкций и выполнения работ, указания по производству работ, установленные нормативными документами.

Пособие предназначено для заказчиков (застройщиков), строительно-монтажных организаций, специалистов государственного строительного надзора, а также инженерно-технических работников, непосредственно занятых на строительстве зданий и сооружений. Пособие может представлять интерес для учебных заведений, осуществляющих подготовку специалистов в области строительства.

ВВЕДЕНИЕ

Требуемое качество строительства зданий и сооружений должно обеспечиваться строительными организациями путем осуществления эффективного контроля на всех стадиях создания строительной продукции.

Производственный контроль качества строительных и монтажных работ должен включать:

- входной контроль качества проектной документации, строительных материалов, изделий и оборудования;

- операционный контроль отдельных строительных процессов или производственных операций;

- приемочный контроль выполненных работ.

Более 80% дефектов на строительстве объектов связаны с отступлениями от проектов и СНиП при производстве работ на строительной площадке. Поэтому операционный контроль качества является основным видом производственного контроля. При систематическом осуществлении контроля в ходе выполнения операций прорабы и мастера могут своевременно выявлять и устранять дефекты, принимать меры по их предупреждению.

Основные задачи операционного контроля качества:

- обеспечение соответствия выполняемых СМР проекту и требованиям нормативных документов;

- своевременное выявление дефектов и причин их возникновения, принятие мер по их устранению;

- повышение ответственности непосредственных исполнителей (рабочих, звеньев, бригад, линейных специалистов) за качество выполненных ими работ.

Качество выполнения СМР в значительной мере зависит от знания исполнителями работ и лицами, контролирующими качество их выполнения, основных требований к качеству работ и допускаемых отклонений.

Операционный контроль возлагается на прорабов и мастеров, осуществляющих руководство строительством зданий и сооружений. В необходимых случаях могут привлекаться строительные лаборатории и геодезические службы. Результаты операционного контроля должны фиксироваться в журнале работ.

Основными документами при операционном контроле качества являются строительные нормы и правила (СНиП) «Организация, производство и приемка работ», технологические карты и схемы операционного контроля качества (СОКК).

СОКК должны разрабатываться на все строительные и монтажные процессы строительными организациями или по их заказу научными организациями. Рекомендуется широкое использование типовых СОКК. Руководство строительной организации до начала работ должно передать непосредственному руководителю работ по строительству объекта (мастеру, прорабу) комплект СОКК в составе проекта производства работ (ППР) и технологических карт.

Организация операционного контроля качества и установление надзора за его осуществлением возлагается на главных инженеров строительных организаций.

Прорабы и мастера обязаны требовать от бригад предъявления законченных операций для проверки качества их выполнения до начала последующих. Все выявленные в ходе контроля дефекты должны быть устранены.

Бригады должны сами по СОКК контролировать качество выполнения своих работ, т. е. осуществлять самоконтроль.

Разработанные настоящие карты-схемы операционного контроля качества состоят из четырех частей:

1. Состав операций и средств контроля (перечень контролируемых операций, метод и объем контроля, кто осуществляет контроль).

2. Технические требования к качеству выполнения работы (эскизы конструкций с указанием допускаемых отклонений по СНиП).

3. Требования к качеству применяемых материалов, изделий по нормативным документам (ГОСТ, ТУ).

4. Указания по производству работ (требования по СНиП).

Разработанные материалы предназначены прежде всего для специалистов, непосредственно занятых в сфере контроля качества работ, технического и авторского надзора, органов Государственного строительного надзора, а также для рабочих, бригадиров, выполняющих работы, специалистов строительных организаций; могут быть использованы при подготовке специалистов.

Нормативные документы, регламентирующие качество строительных материалов, изделий и конструкций, строительно-монтажных работ

I. Основания и фундаменты зданий и сооружений

1. СНиП 2.02.01-83*. Основания зданий и сооружений.

2. СНиП 3.02.01-87. Земляные сооружения, основания и фундаменты.

3. ГОСТ 5180-84. Грунты. Методы лабораторного определения физических характеристик.

4. ГОСТ 12071-2000. Грунты. Отбор, упаковка, транспортирование и хранение образцов.

5. ГОСТ 20522-96. Грунты. Метод статистической обработки результатов определения характеристик.

6. ГОСТ 22733-2002. Грунты. Метод лабораторного определения максимальной плотности.

7. ГОСТ 12536-79. Грунты. Методы лабораторного гранулометрического (зернового) и микроагрегатного состава.

8. ГОСТ 12248-96. Грунты. Методы лабораторного определения характеристик прочности и деформативности.

9. ГОСТ 23061-90. Грунты. Методы радиоизотопных измерений плотности и влажности.

10. ГОСТ 25358-82. Грунты. Метод полевого определения температуры.

11. ГОСТ 24846-81. Грунты. Методы измерений деформаций оснований зданий и сооружений.

12. ГОСТ 25100-95. Грунты. Классификация.

II. Каменные конструкции

1. СНиП II-22-81. Каменные и армокаменные конструкции.

2. СНиП 3.03.01-87. Несущие и ограждающие конструкции.

3. СНиП II-7-81*. Строительство в сейсмических районах.

4. ГОСТ 24992-81. Конструкции каменные. Метод определения прочности сцепления в каменной кладке.

III. Бетонные и железобетонные конструкции

1. СНиП 3.03.01-87. Несущие и ограждающие конструкции.

2. СНиП 3.09.01-85. Производство сборных железобетонных конструкций и изделий.

3. ГОСТ 948-84. Перемычки железобетонные для зданий с кирпичными стенами. Технические условия.

4. ГОСТ 6665-91. Камни бетонные и железобетонные бортовые. Технические условия.

5. ГОСТ 6785-80**. Плиты подоконные железобетонные. Технические условия.

6. ГОСТ 6786-80**. Плиты парапетные железобетонные для производственных зданий. Технические условия.

7. ГОСТ 8020-90. Конструкции бетонные и железобетонные для колодцев канализационных, водопроводных и газопроводных сетей. Технические условия.

8. ГОСТ 8717.0-84*. Ступени железобетонные и бетонные. Технические условия.

9. ГОСТ 9561-91. Плиты перекрытий железобетонные многопустотные для зданий и сооружений. Технические условия.

10. ГОСТ 9818-85*. Марши и площадки лестниц железобетонные. Технические условия.

11. ГОСТ 10922-90. Арматурные и закладные изделия сварные, соединения сварные арматуры и закладных изделий железобетонных конструкций. Общие технические условия.

12. ГОСТ 11024-84*. Панели стеновые наружные бетонные и железобетонные для жилых и общественных зданий. Общие технические условия.

13. ГОСТ 12504-80*. Панели стеновые внутренние бетонные и железобетонные для жилых и общественных зданий. Общие технические условия.

14. ГОСТ 12767-94. Плиты перекрытий железобетонные сплошные для крупнопанельных зданий. Общие технические условия.

15. ГОСТ 13015-2003. Изделия железобетонные и бетонные для строительства. Общие технические условия. Правила приемки, маркировки, транспортирования и хранения.

16. ГОСТ 13578-68. Панели из легких бетонов на пористых заполнителях для наружных стен производственных зданий. Технические требования.

17. ГОСТ 13579-78*. Блоки бетонные для стен подвалов. Технические условия.

18. ГОСТ 13580-85. Плиты железобетонные ленточных фундаментов. Технические условий,

19. ГОСТ 14098-91. Соединения сварные арматуры и закладных изделий железобетонных конструкций. Типы, конструкция и размеры.

20. ГОСТ 17079-88. Блоки вентиляционные железобетонные. Технические условия.

21. ГОСТ 17538-82*. Конструкции и изделия железобетонные для шахт лифтов жилых зданий. Технические условия.

22. ГОСТ 18048-80*. Кабины санитарно-технические железобетонные. Технические условия.

23. ГОСТ 18979-90***. Колонны железобетонные для многоэтажных зданий. Технические условия.

24. ГОСТ 18980-90***. Ригели железобетонные для многоэтажных зданий. Технические условия.

25. ГОСТ 19010-82*. Блоки стеновые бетонные и железобетонные для зданий. Общие технические требования.

26. ГОСТ 19804-91. Сваи железобетонные. Технические условия.

27. ГОСТ 20213-89. Фермы железобетонные. Технические условия.

28. ГОСТ 20372-90. Балки стропильные и подстропильные железо бетонные. Технические условия.

29. ГОСТ 21506-87. Плиты перекрытий железобетонные ребристые высотой 300 мм для зданий и сооружений. Технические условия.

30. ГОСТ 23279-85. Сетки арматурные сварные для железобетонных конструкций и изделий. Общие технические условия.

31. ГОСТ 23858-79. Соединения сварные стыковые и тавровые арматуры железобетонных конструкций. Ультразвуковые методы контроля качества. Правила приемки.

32. ГОСТ 5781-82*. Сталь горячекатаная для армирования железобетонных конструкций. Технические условия.

33. ГОСТ 10884-94. Сталь стержневая арматурная термомеханически и термически упрочненная периодического профиля. Технические условия.

34. ГОСТ 12004-81*. Арматура стальная для железобетонных изделий и конструкций. Методы испытаний.

35. ГОСТ 14098-91. Соединения сварные арматуры и закладных изделий железобетонных конструкций. Типы, конструкция и размеры.

IV. Металлические конструкции

1. СНиП II-23-81*. Стальные конструкции.

2. СНиП 3.03.01-87. Несущие и ограждающие конструкции.

3. ГОСТ 23118-99. Конструкции металлические строительные. Общие технические условия.

4. ГОСТ 23119-78. Фермы стропильные стальные сварные с элементами из парных уголков для производственных зданий. Технические условия.

5. ГОСТ 23120-78. Лестницы маршевые, площадки и ограждения стальные. Технические условия.

6. ГОСТ 23486-79. Панели металлические трехслойные стеновые с утеплителем из пеио-полиуритана. Технические условия.

7. ГОСТ 25772-83*. Ограждения лестниц, балконов и крыш стальные. Общие технические условия.

8. СП 53-101-98. Изготовление и контроль качества стальных строительных конструкций (в дополнение к ГОСТ 23118-99).

V. Деревянные конструкции

1. СНиП II-25-80. Деревянные конструкции.

2. СНиП 3.03.01-87. Несущие и ограждающие конструкции.

3. ГОСТ 1005-86. Щиты перекрытий деревянные для малоэтажных домов. Технические условия.

4. ГОСТ 4981-87. Балки перекрытий деревянные. Технические условия.

5. ГОСТ 8242-88. Детали профильные из древесины и древесных материалов для строительства. Технические условия.

6. ГОСТ 11047-90. Детали и изделия деревянные для малоэтажных жилых и общественных зданий. Технические условия.

7. ГОСТ 20850-84. Конструкции деревянные клееные. Общие технические условия.

8. ГОСТ 26138-84. Элементы и детали встроенных шкафов и антресолей для жилых зданий. Технические условия.

9. ГОСТ 28015-89. Щиты покрытий пола деревянные однослойные. Технические условия.

10. ГОСТ 30974-2002. Соединения угловые деревянные брусчатых и бревенчатых малоэтажных зданий. Классификация, конструкция, размеры.

VI. Конструкции из других материалов

1. ГОСТ 6428-83. Плиты гипсовые для перегородок. Технические условия.

2. ГОСТ 9574-90. Панели гипсобетонные для перегородок. Технические условия.

VII. Окна, двери

1. ГОСТ 475-78. Двери деревянные. Общие технические условия.

2. ГОСТ 6629-88. Двери деревянные внутренние для жилых и общественных зданий. Типы и конструкция.

3. ГОСТ 11214-2003. Блоки оконные деревянные с листовым остеклением. Технические условия.

4. ГОСТ 12506-81. Окна деревянные для производственных зданий. Типы, конструкция и размеры.

5. ГОСТ 14624-84. Двери деревянные для производственных зданий. Типы, конструкция и размеры.

6. ГОСТ 18853-73. Ворота деревянные распашные для производственных зданий и сооружений. Технические условия.

7. ГОСТ 21519-2003. Блоки оконные из алюминиевых сплавов. Технические условия.

8. ГОСТ 23166-99. Блоки оконные. Общие технические условия.

9. ГОСТ 23344-78. Окна стальные. Общие технические условия.

10. ГОСТ 23747-88. Двери из алюминиевых сплавов. Общие технические условия.

11. ГОСТ 24698-81. Двери деревянные наружные для жилых и общественных зданий. Типы, конструкция и размеры.

12. ГОСТ 24699-2002. Блоки оконные деревянные со стеклами и стеклопакетами. Технические условия.

13. ГОСТ 24700-99. Блоки оконные деревянные со стеклопакетами. Технические условия.

14. ГОСТ 24866-99. Стеклопакеты клееные строительного назначения. Технические условия.

15. ГОСТ 25097-2002. Блоки оконные деревоалюминиевые. Технические условия.

16. ГОСТ 26601-85. Окна и балконные двери деревянные для малоэтажных жилых домов. Типы, конструкции и размеры.

17. ГОСТ 30674-99. Блоки оконные из поливинилхлоридных профилен. Технические условия.

18. ГОСТ 30734-2000. Блоки оконные деревянные мансардные. Технические условия.

19. ГОСТ 30970-2002. Блоки дверные из поливинилхлоридных профилей. Технические условия.

20. ГОСТ 30971-2002. Швы монтажные узлов примыкания оконных блоков к стеновым проемам. Общие технические условия.

21. ГОСТ 30972-2002. Заготовки и детали деревянные клееные для оконных и дверных блоков. Технические условия.

22. ГОСТ 31173-2003. Блоки дверные стальные. Технические условия.

23. ГОСТ 31174-2003. Ворота металлические. Общие технические условия.

VIII. Стеновые кладочные материалы

1. ГОСТ 379-95. Кирпич и камни силикатные. Технические условия.

2. ГОСТ 474-90. Кирпич кислотоупорный. Технические условия.

3. ГОСТ 530-95. Кирпич и камни керамические. Технические условия.

4. ГОСТ 4001-84. Камни стеновые из горных пород. Технические условия.

5. ГОСТ 6133-99. Камни бетонные стеновые. Технические условия.

6. ГОСТ 7484-78. Кирпич и камни керамические лицевые. Технические условия.

7. ГОСТ 8426-75. Кирпич глиняный для дымовых труб.

8. ГОСТ 19010-82. Блоки стеновые бетонные и железобетонные для зданий. Общие технические условия.

9. ГОСТ 21520-89. Блоки из ячеистых бетонов стеновые мелкие. Технические условия.

10. ГОСТ 24594-81. Панели и блоки стеновые из кирпича и керамических камней. Общие технические условия.

11. ГОСТ 8462-85. Материалы стеновые. Методы определения пределов прочности при сжатии и изгибе.

IX. Бетоны и растворы

1. ГОСТ 5802-86. Растворы строительные. Методы испытаний.

2. ГОСТ 7473-94. Смеси бетонные. Технические условия.

3. ГОСТ 10180-90. Бетоны. Методы определения прочности по контрольным образцам,

4. ГОСТ 10181-2002. Смеси бетонные. Общие требования к методам испытаний.

5. ГОСТ 18105-86*. Бетоны. Правила контроля прочности.

6. ГОСТ 25192-82*. Бетоны. Классификация и общие технические требования.

7. ГОСТ 25820-2000*. Бетоны легкие. Технические условия.

8. ГОСТ 26633-91. Бетоны тяжелые и мелкозернистые. Технические условия.

9. ГОСТ 27006-86. Бетоны. Правила подбора состава.

10. ГОСТ 28013-98. Растворы строительные. Общие технические условия.

X. Щебень, гравий и песок для строительных работ

1. ГОСТ 8267-93*. Щебень и гравий из плотных горных пород для строительных работ. Технические условия.

2. ГОСТ 8736-93*. Песок для строительных работ. Технические условия.

3. ГОСТ 9757-90. Гравий, щебень и песок искусственные пористые. Технические условия;

4. ГОСТ 10832-91. Песок и щебень перлитовые вспученные. Технические условия.

5. ГОСТ 12865-67. Вермикулит вспученный.

6. ГОСТ 22263-76. Щебень и песок из пористых горных пород. Технические условия.

XI. Теплоизоляционные, звукоизоляционные и звукопоглощающие материалы

1. ГОСТ 9573-96. Плиты из минеральной ваты на синтетическом связующем теплоизоляционные. Технические условия.

2. ГОСТ 10140-2003. Плиты теплоизоляционные из минеральной ваты на битумном связующем. Технические условия.

3. ГОСТ 10499-95. Изделия теплоизоляционные из стеклянного штапельного волокна. Технические условия.

4. ГОСТ 16136-2003. Плиты перлитобитумные теплоизоляционные. Технические условия.

5. ГОСТ 16297-80. Материалы звукоизоляционные и звукопоглощающие. Методы испытаний.

6. ГОСТ 16381-77. Материалы и изделия строительные теплоизоляционные. Классификация и общие технические требования.

7. ГОСТ 17177-94. Материалы и изделия строительные теплоизоляционные. Методы испытаний.

8. ГОСТ 18108-80. Линолеум поливинилхлоридный на теплозвукоизолирующей подоснове. Технические условия.

9. ГОСТ 18956-73. Материалы рулонные кровельные. Методы испытаний на старение под воздействием искусственных климатических факторов.

10. ГОСТ 20916-87. Плиты теплоизоляционные из пенопласта на основе резольных фенолоформальдегидных смол. Технические условия.

11. ГОСТ 21880-94. Маты прошивные из минеральной ваты теплоизоляционные. Технические условия.

12. ГОСТ 22546-77. Изделия теплоизоляционные из пенопласта ФРП-1. Технические условия.

13. ГОСТ 22950-95. Плиты минераловатные повышенной жесткости на синтетическом связующем. Технические условия.

14. ГОСТ 23208-2003. Цилиндры и полуцилиндры теплоизоляционные из минеральной ваты на синтетическом связующем. Технические условия.

15. ГОСТ 23307-78. Маты теплоизоляционные из минеральной ваты вертикально-слоистые. Технические условия.

16. ГОСТ 23499-79. Материалы и изделия строительные звукопоглощающие и звукоизоляционные. Классификация и общие технические требования.

17. ГОСТ 24748-2003. Изделия известково-кремнеземистые теплоизоляционные. Технические условия.

18. ГОСТ 25880-83. Материалы и изделия строительные теплоизоляционные. Упаковка, маркировка, транспортирование и хранение.

19. ГОСТ 26281-84. Материалы и изделия строительные теплоизоляционные. Правила приемки.

20. ГОСТ 26417-85. Материалы звукопоглощающие строительные. Метод испытаний в малой реверберационной камере.

XII. Кровельные, гидроизоляционные и герметизирующие материалы и изделия

1. СНиП 3.04.01-87. Изоляционные и отделочные покрытия.

2. СНиП 3.04.03-85. Защита строительных конструкций и сооружений от коррозии.

3. ГОСТ 30693-2000. Мастики кровельные и гидроизоляционные. Общие технические условия.

4. ГОСТ 7415-86. Гидроизол. Технические условия.

5. ГОСТ 10296-79*. Изол. Технические условия.

6. ГОСТ 10923-93. Рубероид. Технические условия.

7. ГОСТ 14791-79. Мастика герметизирующая нетвердеющая строительная. Технические условия.

8. ГОСТ 2697-83. Пергамин кровельный. Технические условия.

9. ГОСТ 2889-80. Мастика битумная кровельная горячая. Технические условия.

10. ГОСТ 15879-70. Стеклорубероид. Технические условия.

11. ГОСТ 15836-79. Мастика битумно-резиновая изоляционная. Технические условия.

12. ГОСТ 15836-79. Мастика битумно-резиновая изоляционная. Технические условия.

13. ГОСТ 20429-84*. Фольгоизол. Технические условия.

14. ГОСТ 30547-97. Материалы рулонные кровельные и гидроизоляционные. Общие технические требования.

14. ГОСТ 25621-83. Материалы и изделия полимерные строительные герметизирующие и уплотняющие. Классификация и общие технические требования.

XIII. Отделочные и облицовочные материалы

1. СНиП 3.04.01-87. Изоляционные и отделочные покрытия.

2. ГОСТ 862.1-85. Изделия паркетные. Паркет штучный. Технические условия.

3. ГОСТ 862.2-85. Изделия паркетные. Паркет мозаичный. Технические условия.

4. ГОСТ 862.3-86. Изделия паркетные. Доски паркетные. Технические условия.

5. ГОСТ 862.4-87. Изделия паркетные. Щиты паркетные. Технические условия.

6. ГОСТ 961-89. Плитки кислотоупорные и термокислотоупорные керамические. Технические условия.

7. ГОСТ 4598-86*. Плиты древесно-волокнистые. Технические условия.

8. ГОСТ 6141-91. Плитки керамические глазурованные для внутренней облицовки стен. Технические условия.

9. ГОСТ 6266-97. Листы гипсокартонные. Технические условия.

10. ГОСТ 6666-81. Камни бортовые из горных пород. Технические условия.

11. ГОСТ 6787-2001. Плитки керамические для полов. Технические условия.

12. ГОСТ 6810-2002. Обои. Технические условия.

13. ГОСТ 6927-74. Плиты бетонные фасадные. Технические требования.

14. ГОСТ 7251-77. Линолеум поливинилхлоридный на тканевой подоснове. Технические условия.

15. ГОСТ 8904-81*. Плиты древесно-волокнистые твердые с лакокрасочным покрытием. Технические условия.

16. ГОСТ 9479-98. Блоки из горных пород для производства облицовочных, архитектурно-строительных, мемориальных и других изделий. Технические условия.

17. ГОСТ 9480-89. Плиты облицовочные пиленые из природного камня. Технические условия.

18. ГОСТ 9590-76. Пластик бумажно-слоистый декоративный. Технические условия.

19. ГОСТ 10632-89. Плиты древесностружечные. Технические условия.

20. ГОСТ 13715-78. Плиты столярные. Технические условия.

21. ГОСТ 13996-93. Плитки керамические фасадные и ковры из них. Технические условия.

22. ГОСТ 17241-71. Материалы и изделия полимерные для покрытия полов. Классификация.

23. ГОСТ 18108-80. Линолеум поливинилхлоридный на теплозвукоизолирующей подоснове. Технические условия.

24. ГОСТ 18958-73. Краски силикатные.

25. ГОСТ 19279-73. Краски полимерцементные.

26. ГОСТ 23342-91. Изделия архитектурно-строительные из природного камня. Технические условия.

27. ГОСТ 23668-79. Камень брусчатый для дорожных покрытий. Технические условия.

28. ГОСТ 24099-80. Плиты декоративные на основе природного камня. Технические условия.

29. ГОСТ 26816-86. Плиты цементно-стружечные. Технические условия.

30. ГОСТ 27023-86. Ковры сварные из поливинилхлоридного линолеума на теплозвукоизолирующей подоснове. Технические условия.

31. ГОСТ 28196-89. Краски водно-дисперсионные. Технические условия.

32. ГОСТ 30884-2003. Краски масляные, готовые к употреблению. Общие технические условия.

33. ГОСТ Р 51691-2000. Краски масляные, готовые к употреблению. Общие технические условия.

34. ГОСТ Р 52020-2003. Материалы лакокрасочные воднодисперсионные. Общие технические условия.

35. ГОСТ Р 52165-2003. Материалы лакокрасочные. Лаки. Общие технические условия.

36. ГОСТ Р 52078-2003. Плиты древесностружечные, облицовочные пленкам и на основе термореактивных полимеров.

XIV. Асбестоцементные изделия

1. ГОСТ 18124-95. Листы асбестоцементные плоские. Технические условия.

2. ГОСТ 30340-95. Изделия асбестоцементные волнистые. Технические условия.

XV. Дорожные материалы

1. ГОСТ 9128-97. Смеси асфальтобетонные дорожные, аэродромные и асфальтобетон. Технические условия.

2. ГОСТ 30491-97. Смеси органоминеральные и грунты, укрепленные органическими вяжущими для дорожного и аэродромного строительства.

3. ГОСТ 30740-2000. Материалы герметизирующие для швов аэродромных покрытий. Общие технические условия.

4. ГОСТ 31015-2002 Смеси асфальтобетонные и асфальтобетон щебеночно-мастичные Технические условия.

5. ГОСТ Р 52056-2003. Вяжущие полимерно-битумные дорожные на основе блоксополимеров типа тирол-бутадиен-стирол.

6. ГОСТ Р 52128-2003. Эмульсии битумные дорожные. Технические условия.

7. ГОСТ Р 52129-2003. Порошок минеральный для асфальтобетонных смесей и органоминеральных смесей. Технические условия.

XVI. Строительное стекло

1. СНиП 3.04.01-87. Изоляционные и отделочные покрытия.

2. ГОСТ 111-2001. Стекло листовое. Технические условия.

3. ГОСТ 5533-86. Стекло листовое узорчатое. Технические условия.

4. ГОСТ 7481-78. Стекло армированное листовое. Технические условия.

5. ГОСТ 9272-81. Блоки стеклянные пустотелые. Технические условия.

6. ГОСТ 21992-83. Стекло строительное профильное. Технические условия.

7. ГОСТ 24866-99. Стеклопакеты клееные строительного назначения. Технические условия.

8. ГОСТ 30698-2000. Стекло закаленное строительное. Технические условия.

9. ГОСТ 30733-2000. Стекло с низкоэмиссионным твердым покрытием. Технические условия.

10. ГОСТ 30826-2001. Стекло многослойное строительного назначения. Технические условия.

11. ГОСТ Р 51136-98. Стекла защитные многослойные. Общие технические условия.

XVII. Водоснабжение и канализация

1. СНиП 3.05.01-85. Внутренние санитарно-технические системы.

2. СНиП 3.05.04-85*. Наружные сети и сооружения водоснабжения и канализации.

3. ГОСТ 286-82. Трубы керамические канализационные. Технические условия

4. ГОСТ 3262-75. Трубы стальные водогазопроводные. Технические условия

5. ГОСТ 3634-99. Люки чугунные для смотровых колодцев. Технические условия.

6. ГОСТ 6942-98. Трубы чугунные канализационные и фасонные части к ним. Технические условия.

7. ГОСТ 8411-74. Трубы керамические дренажные. Технические условия.

8. ГОСТ 15062-83. Сидения для унитазов. Технические условия.

9. ГОСТ 15167-93 Изделия санитарные керамические Общие технические условия.

10. ГОСТ 18297-96 Приборы санитарно-технические чугунные эмалированные. Технические условия.

11. ГОСТ 18599-2001. Трубы напорные из полиэтилена. Технические условия.

12. ГОСТ 19681-94. Арматура санитарно-техническая водоразборная. Общие технические условия.

13. ГОСТ 21485-94. Бачки смывные и арматура к ним. Общие технические условия.

14. ГОСТ 22689.0-89. Трубы полиэтиленовые канализационные и фасонные части к ним. Общие технические условия.

15. ГОСТ 22689.2-89. Трубы полиэтиленовые канализационные и фасонные части к ним. Сортамент.

16. ГОСТ 22689.3-89. Трубы полиэтиленовые канализационные и фасонные части к ним. Конструкция.

17. ГОСТ 23289-94. Арматура санитарно-техническая водосливная. Технические условия.

18. ГОСТ 23695-94. Приборы санитарно-технические стальные эмалированные. Технические условия.

19. ГОСТ 25809-96. Смесители и краны водоразборные. Типы и основные размеры.

20. ГОСТ 30493-96. Изделия санитарные керамические. Типы и основные размеры.

21. ГОСТ 30732-2001. Трубы и фасонные изделия стальные с тепловой изоляцией из пенополиуретана в полиэтиленовой оболочке. Технические условия.

22. ГОСТ Р 50851-96. Мойки из нержавеющей стали. Технические условия.

23. ГОСТ Р 52134-2003. Трубы напорные из термопластов и соединительные детали к ним для систем водоснабжения и отопления. Общие технические условия.

24. ГОСТ Р 51613-2000. Трубы напорные из непластифицированного поливинилхлори-да. Технические условия.

25. ГОСТ Р 52318-2005. Трубы медные круглого сечения для воды и газа. Технические условия.

26. РСТ РСФСР 202-87. Раковины металлические под умывальник. Общие технические условия.

XVIII. Теплоснабжение, отопление, вентиляция и кондиционирование воздуха

1. СНиП 3.05.03-85. Тепловые сети.

2. ГОСТ 8690-94. Радиаторы отопительные чугунные. Технические условия.

3. ГОСТ 20849-94. Конвекторы отопительные. Технические условия.

XIX. Газоснабжение

1. СНиП 42-01-2002. Газораспределительные системы.

2. ГОСТ Р 50696-94. Плиты газовые бытовые. Общие технические условия.

XX. Общетехнические документы

1. СП 11-110-99. Авторский надзор за строительством зданий и сооружений.

2. СНиП 12-01-2004. Организация строительства.

3. СНиП 3.01.04-87. Приемка в эксплуатацию законченных строительством объектов.

4. ГОСТ Р 21.101-97 СПДС. Основные требования к проектной рабочей документации.

5. ГОСТ 15467-79*. Управление качеством продукции. Основные понятия. Термины и определения.

6. ГОСТ Р 50779.71-99. Статистические методы. Процедуры выборочного контроля по альтернативному признаку. Часть 1. Планы выборочного контроля последовательных партий на основе приемлемого уровня качества AQL.

7. ГОСТ 21779-82. Система обеспечения точности геометрических параметров в строительстве. Технологические допуски.

8. ГОСТ 23616-79*. Система обеспечения точности геометрических параметров в строительстве. Контроль точности.

9. ГОСТ 16504-81. Система испытаний продукции. Испытания и контроль продукции. Основные термины и определения.

10. ПР 50.2.002.94 ГСИ. Порядок осуществления государственного метрологического надзора за выпуском, состоянием и применением средств измерений, методикам выполнения измерений, эталонам и соблюдением метрологических правил и норм.

11. ПР 50.2.006.94 ГСИ. Проверка средств измерений. Организация и порядок проведения.

12. ПР 50.2.016.94 ГСИ. Требования к выполнению калибровочных работ.

Методы испытаний и контроля качества строительных материалов, изделий, конструкций при выполнении строительно-монтажных работ

Наименование показателей

Контроль показателей

метод, нормативный документ

средства контроля

объем, периодичность

I. Разработка выемок, планировки, устройство насыпей, обратных засыпок. СНиП 3.02.01-87

1. Гранулометрический состав грунта

Ситовой, ГОСТ 12536-79

Набор сит, весы лабораторные

По указанию проекта

2. Предел прочности

Лабораторный, ГОСТ 12248-96

Цилиндры, пресс

То же

3. Плотность сухого грунта

Взвешивание натурных проб, ГОСТ 5180-84, ГОСТ 22733-2002

Пробоотборник, диаметр 70 мм

По указанию проекта ежесменно, но не реже чем одно определение на 300 м3

4. Влажность

Объемно-весовой с высушиванием, ГОСТ 5180-84, ГОСТ 23061-90

Сушильная камера, весы технические на 1 кг

По указанию проекта, но не менее одного определения на 20-50 м3

5. Температура

Полевое определение, ГОСТ 25358-82

Термометр

2 раза в смену (в зимнее время)

II. Бетонные смеси СНиП 3.03.01-87

А. Технологические показатели:

1. Удобоукладываемость

Осадка конуса, ГОСТ 10181-2000

Стандартный конус

Не реже двух раз в смену

2. Расслаиваемость

Лабораторный, ГОСТ 10181-2000

Формы 20´20´20 см, весы лабораторные, сушильный шкаф, виброплощадка, сито с отверстием 5 мм

То же при приготовлении смесей

3. Класс бетона по прочности на сжатие

Испытание контрольных образцов на сжатие, ГОСТ 10180-90

Формы кубов 15´15´15 см, пресс на 1000 кН

Не менее одного раза на весь объем конструкции

4. Температура смеси на месте укладки

Измерительный

Термометр

Не реже двух раз в смену (при отрицательной температуре воздуха)

Б. Показатели для материалов бетона:

1. Активность цемента

Испытание пропаренных балочек, ГОСТ 310.4-81*

Формы балочек 4´4´16 см, камера термовлажностной обработки, пресс на 100 кН

Одна партия цемента и не реже одного раза в квартал

2. Гранулометрический состав заполнителей

Рассев, ГОСТ 8269.0-97*, ГОСТ 8269.1-97, ГОСТ 8735-88*, ГОСТ 27006-86

Комплект сит, весы

Один раз в смену

3. Прочность крупного заполнителя

Статическое дробление, ГОСТ 8269.0-97*

Форма-пуассон, пресс на 500 кН

При поступлении новой партии заполнителя

III. Цементно-песчаный раствор. СНиП 3.03.01-87

А. Технологические показатели

1. Пластичность (подвижность)

Осадка конуса, ГОСТ 5802-86

Стандартный конус с формой

Не реже одного раза в смену

2. Марка раствора по прочности на сжатие

Испытание контрольных образцов кубов, ГОСТ 5802-86

Формы кубов 7´7´7 см, пресс на 100 кН

То же

3. Морозостойкость

Косвенно по дилагометрическому эффекту, СН 290-74

Дилагомер рычажный, морозильная камера

- » -

4. Температура смеси (в зимнее время)

Измерительный

Термометр

Не реже двух раз в смену

Б. Показатели для материалов раствора:

1. Активность цемента

Испытание пропаренных балочек, ГОСТ 310.4-81*

Формы балочек 4´4´16 см, камера тепловлажностной обработки, пресс на 100 кН

Одна партия цемента и не реже одного раза в квартал

2. Гранулометрический состав песка

Просеивание, ГОСТ 8735-88*,

Комплект сит, весы

Один раз в смену

3. Содержание глинистых, илистых и пылеватых частиц

Отмучивание, ГОСТ 8735-88*,

Сосуд для промывки песка, весы технические на 1 кг

То же

IV Монолитные железобетонные конструкции. СНиП 3.03.01-87, СНиП 2.03.01-84*

А. Показатели для арматуры, опалубки:

1. Расположение рабочих, арматурных стержней

Измерительный ГОСТ 22904-93, ГОСТ 14098-91

Стальная рулетка 10 м, метр

Каждый элемент

2. Качество сварки, вязки стержней

Визуальный, измерительный, ГОСТ 10922-90

 

То же

3. Точность изготовления и установки опалубки

Измерительный, ГОСТ 25346-89, ГОСТ 25347-82*

Стальная рулетка 10 м, метр

- » -

4. Прогиб опалубки

Провешивание струной ГОСТ 8829-94

Струна стальная или капроновая, двухметровая рейка, линейка стальная

- » -

Б. Показатели при укладке бетонной смеси:

1. Интенсивность вибрирования

Визуальный. Глубина погружения глубинного вибратора, шаг перестановки

-

Каждый элемент

2. Температура твердения бетона (при зимнем бетонировании)

Измерительный

Термометр

То же

3. Интенсивность удельных влагопотерь (в сухую жаркую погоду)

Взвешивание образца. Руководство ЦНИИОМТП

Специальные формы 150´150´50 мм, весы технические на 1 кг

- » -

В. Прочностные показатели бетона:

1. При распалубке

Испытание контрольных образцов, ГОСТ 10180-90

Формы кубов 10´10´10 см или 15´15´15 см, пресс на 1000 кН

На весь объем распалубки

2. При частичном загружении

То же

То же

Каждый конструктивный элемент

3. Проектная прочность

Натурные испытания, методами неразрушающего контроля, ГОСТ 22690-88

Склерометр, молоток Кашкарова

Каждая конструкция

Г. Геометрические параметры:

1. Вертикальность и горизонтальность поверхностей

Провешивание, нивелирование, ГОСТ 26433.0-85

Рейка-отвес, нивелир

Каждый конструктивный элемент

2. Неровность поверхностей

Микронивелирование, ГОСТ 26433.0-85

Двухметровая рейка со щупами

Не менее 5 измерений на каждые 50-100 м длины элементов

3. Длина (пролет), размеры поперечного сечения элементов

Линейные измерения, ГОСТ 26433.0-85

Стальная рулетка 10 м, линейка

Каждый элемент

4. Отметки опорных частей

Нивелирование, ГОСТ 26433.0-85

Нивелир

Каждый опорный элемент

5. Уклоны опорных частей под сборные элементы

То же

Нивелир, уровень

То же

6. Раскрытие трещины

Визуальный, измерительный

Измерительная лупа со шкалой 0,1 мм

Каждый конструктивный элемент

V. Сборные железобетонные конструкции. СНиП 3.03.01-87

А. Показатели для сварных соединений:

1. Геометрические размеры сварных швов (длина, катет)

Измерительный

Линейка стальная, катетомер

Весь объем сварных соединений

2. Прочность сварных соединений

Испытания на отрыв, ультразвуковая дефектоскопия, ГОСТ 10922-90, ГОСТ 23858-79

Пресс переносной до 30 кН с приспособлениями, ультразвуковой дефектоскоп серии «Арматура»

По специальному указанию проекте

Б. Показатели для моноличивания стыков и швов:

1. Плотность и однородность бетона(раствора)

Визуальный, выборочное вскрытие. Рекомендации ЦНИИСК

Молоток, скарпель, перфоратор

Не менее 10% от общего количества стыков

2. Проектная прочность

Испытания контрольных образцов, натурные испытания методами неразрушающего контроля, ГОСТ 10180-90, ГОСТ 22690-88, ГОСТ 5802-86

Формы кубов 10´10´10 см, пресс на 100 кН, склерометр

Одна проба (не менее трех образцов) от партии бетона (раствора)

VI. Каменные конструкции. СНиП II-22-81, СНиП 3.03.01-87

А. Показатели для стеновых камней, раствора:

1. Прочность камней на сжатие, растяжение

Механические испытания, ГОСТ 8462-85

Пресс на 500 кН, пресс на 50 кН, приставка для изгиба

Одна проба на партию камней

2. Водопоглощение камней

Водонасыщенные при вакуумировании и кипячении, ГОСТ 7025-91

Вакуум-камеры, весы на 1 кг, сушильный шкаф

То же

3. Прочность сцепления камней с раствором

Испытания на отрыв, ГОСТ 24992-81

Пресс на 30 кН, приспособление, для отрыва камней

Одна проба на 1000 м3 кладки

4. Набор прочности раствора:

- до замерзания

- после оттаивания

Механические испытания контрольных образцов, отрывом со скалыванием, статическим внедрением, ГОСТ 5802-86, ГОСТ 22690-88

Формы кубов 7´7´7 см, пресс на 100 кН, динамометрический рычаг на 5 кН с анкерами

Одна проба на 250 м3 кладки

5. Проектная прочность раствора в швах

Испытание на сжатие натурных образцов, ГОСТ 24992-81

Динамометрический рычаг на 5 кН с конусным индентором и скобой захватом

- » -

Б. Геометрические параметры конструкций:

1. Размеры конструкций (толщина, ширина простенков, проемов)

Измерительный

Рулетка металлическая 10 м

Каждый конструктивный элемент

2. Отметки опорных поверхностей

Нивелирование

Нивелир

Каждый опорный элемент

3. Вертикальность поверхностей и углов кладки

Измерительный, провешивание, ГОСТ 26433.1-89

Рейка-отвес

Каждый элемент

4. Толщина швов

Линейные измерения, ГОСТ 26433.1-89

Линейка металлическая

Не менее пяти измерений на 100 м3 кладки

5. Горизонтальность рядов кладки

Нивелирование, ГОСТ 26433.1-89, ГОСТ 26433.2-94

Нивелир

То же

6. Ровность вертикальной поверхности кладки

Измерительный

Двухметровая рейка

Не менее пяти измерений на 100 м2 поверхности

VII. Отделочные и изоляционные покрытия. СНиП 3.04.01-87, СНиП 3.04.03-85

А. Изоляция и кровля из рулонных материалов:

1. Количество слоев

Выборочное вскрытие

Нож

Пять измерений на 120-150 м2 поверхности покрытия

2. Прочность сцепления изоляционного материала с основанием

Простукивание деревянным молотком, отрыв приклеенных материалов

Деревянный молоток

То же

Б. Облицовка поверхностей стен:

1. Прочность сцепления облицовочных плит с основанием

Отрыв плитки, ГОСТ 27180-2001

Динамометрический рычаг на 5 кН со штампом

Одна проба на весь объем

2. Вертикальность и неровность облицованной поверхности

Провешивание ГОСТ 26433.2-94

Рейка-отвес, рейка-нивелир с погрешностью 1 мм/м, двухметровая рейка

Пять измерений на 70-100 м2 поверхности

Часть 1 СТРОИТЕЛЬНЫЕ РАБОТЫ

Земляные работы

Разработка выемок (траншей) под конструкции

Состав операций и средства контроля

Этапы работ

Контролируемые операции

Контроль (метод, объем)

Документация

Подготовительные работы

Проверить:

Визуальный

Общий журнал работ

- выполнение вертикальной планировки поверхности строительной площадки (при необходимости);

 

- выноску разбивочных осей и надежность их закрепления;

Измерительный

- выполнение работ по отводу поверхностных и подземных вод с помощью временных или постоянных устройств (при необходимости).

Визуальный

Механизированная разработка грунта, зачистка дна котлована (траншеи)

Контролировать:

- отклонения отметок дна выемок от проектных;

 

Измерительный, точки измерений устанавливаются случайным образом; на принимаемый участок 10+20 измерений

Общий журнал работ

- вид и характеристики вскрытого грунта естественных оснований под фундаменты и земляные сооружения;

Технический осмотр всей поверхности основания

- отклонения отметок дна выемок при окончательной разработке (доработке) от проектных;

Измерительный, по углам и центру котлована, на пересечениях осей зданий, в местах изменения отметок; не менее 10 измерений на принимаемый участок

- отклонения от проектного уклона дна траншей и других выемок с уклонами;

 

Измерительный, в местах поворотов, примыканий, расположения колодцев, но не реже чем через 50 м

- размеры выемок по дну;

Измерительный

- крутизну откосов.

То же

Приемка выполненных работ

Проверить:

- соответствие геометрических размеров котлована (траншеи) проектным;

 

Измерительный

Акт освидетельствования скрытых работ

- величину отметки и уклонов дна котлована (траншеи);

То же

- крутизну откосов котлована (траншеи);

- » -

- качество фунтов основания (при необходимости).

Технический осмотр всей поверхности основания

Контрольно-измерительный инструмент: нивелир, теодолит, рулетка, шаблон крутизны откосов.

Операционный контроль осуществляют: мастер (прораб), геодезист - в процессе работ.

Приемочный контроль осуществляют: работники службы качества, мастер (прораб), геодезист, представители заказчика.

Технические требования
СНиП 3.02.01-87 пп. 1.11, 3.1-3.6, 3.29

Размеры выемок по дну в натуре должны быть не менее установленных проектом.

Минимальная ширина выемок должна быть не менее ширины конструкции +0,2 м с каждой стороны, при необходимости передвижения людей в пазухе - не менее 0,6 м.

Отклонения от проектного продольного уклона дна траншей, выемок с уклонами не должны превышать ±0,0005.

Выемки следует разрабатывать, как правило, до проектной отметки с сохранением природного сложения грунтов основания.

Отклонения отметок дна выемок в местах устройства фундаментов и укладки конструкций:

- при окончательной разработке не должны превышать ±5 см;

- при черновой разработке не должны превышать данные, приведенные в таблицах 1, 2.

Таблица 1

Отклонения отметок дна выемок от проектных (кроме выемок в валунных, скальных и вечномерзлых грунтах) при черновой разработке

Вид механизма для разработки грунта

Предельные отклонения, см

Число измерений

1) одноковшовыми экскаваторами, оснащенными ковшами с зубьями:

 

 

а) с механическим приводом по видам оборудования:

 

 

драглайн;

+25

20

прямого копания;

+ 10

15

обратная лопата;

+ 15

10

б) с гидравлическим приводом;

+ 10

10

2) одноковшовыми экскаваторами, оснащенными планировочными ковшами, зачистным оборудованием и др. специальным оборудованием для планировочных работ, экскаваторами-планировщиками;

+5

5

3) бульдозерами;

+ 10

15

4) траншейными экскаваторами;

+ 10

10

5) скреперами.

+ 10

10

Таблица 2

Отклонения отметок дна выемок от проектных в скальных и вечномерзлых грунтах при черновой разработке

Технические требования

Предельные отклонения, см

Число измерений

Отклонения отметок дна выемок от проектных, кроме планировочных выемок:

 

 

а) недоборы;

Не допускаются

20

б) переборы при рыхлении:

 

 

- взрывным способом методом скважинных зарядов:

 

 

прочных грунтов;

20

20

прочих скальных и вечномерзлых грунтов;

40

20

- взрывным способом методом шпуровых зарядов:

 

 

прочных грунтов;

10

20

прочих скальных и вечномерзлых грунтов;

20

20

- механическим способом:

 

 

прочных грунтов;

5

20

прочих скальных и вечномерзлых грунтов;

10

20

Отклонения отметок дна планировочных выемок от проектных:

 

 

- недоборы;

10

20

- переборы.

20

20

На устройство оснований под конструкции следует составлять акт освидетельствования скрытых работ.

Не допускается:

- размыв, размягчение, разрыхление или промерзание верхнего слоя грунта основания толщиной более 3 см.

Указания по производству работ
СНиП 3.02.01-87 пп. 3.6-3.8, 3.11

Выемки в грунтах, кроме валунных, скальных, следует разрабатывать, как правило, до проектной отметки с сохранением природного слоя сложения грунтов основания, разрешается разработка выемок в два этапа: черновая - с отклонениями, приведенными в таблицах 1, 2, и окончательная (непосредственно перед возведением конструкции).

Доработку недоборов до проектной отметки следует производить с сохранением природного сложения грунтов оснований.

Восполнение переборов в местах устройства фундаментов и укладки конструкций должно быть выполнено местным грунтом с уплотнением до плотности грунта естественного сложения основания или малосжимаемым грунтом (модуль деформации не менее 20 МПа). В просадочных грунтах II типа не допускается применение дренирующего грунта.

Наибольшую крутизну откосов траншей, котлованов и других временных выемок, устраиваемых без крепления в грунтах, находящихся выше уровня грунтовых вод, следует принимать по таблице 3 (СНиП III-4-80*).

Таблица 3

Виды грунтов

Крутизна откоса (отношение высоты к заложению) при глубине выемки, м не более

1,5

3

5

Насыпные и неуплотненные

1:0,67

1:1

1:1,25

Песчаные и гравийные

1:0,5

1:1

1:1

Супесь

1:0,25

1:0,67

1:0,85

Суглинок

1:0

1:0,5

1:0,75

Глина

1:0

1:0,25

1:0,5

Лессы и лессовидные

1:0

1:0,5

1:0,5

Максимальную глубину выемок с вертикальными незакрепленными стенками следует принимать по таблице 4 (СНиП III-4-80*).

Таблица 4

Виды грунтов

Глубина выемок, м

Насыпные, песчаные и крупноблочные

1

Супесь

1,25

Суглинок и глина

1,5

Разработка котлованов экскаваторами

Состав операций и средства контроля

Этапы работ

Контролируемые операции

Контроль (метод, объем)

Документация

Подготовительные работы

Проверить:

- выполнение вертикальной планировки поверхности строительной площадки (при необходимости);

 

Визуальный

Общий журнал работ

- разбивку осей сооружения и границ котлована.

 Измерительный

Механизированная разработка фунта

Контролировать:

- отклонения отметок дна котлована от проектных;

 

Измерительный, точки измерений устанавливаются случайным образом; на принимаемый участок 10- 20 измерений

Общий журнал работ

- вид и характеристики вскрытого грунта естественных оснований;

Технический осмотр всей поверхности основания

- размеры котлована в плане;

Измерительный

- крутизну откосов.

То же

Приемка выполненных работ

Проверить:

- геометрические размеры котлована;

 

Измерительный

Акт освидетельствования скрытых работ

- отметки и уклоны дна котлована;

То же

- крутизну откосов котлована;

- » -

- качество фунтов основания (при необходимости).

Технический осмотр всей поверхности основания

Контрольно-измерительный инструмент: нивелир, рулетка, теодолит, шаблон.

Операционный контроль осуществляют: мастер (прораб), геодезист - в процессе работ.

Приемочный контроль осуществляют: работники службы качества, мастер (прораб), представители технадзора заказчика.

Технические требования
СНиП 3.02.01-87 пп. 1.11, 3.1, 3.2, 3.6, табл. 4.

Размеры котлованов по дну в натуре должны быть не менее установленных проектом.

Минимальная ширина котлованов должна быть не менее ширины конструкции +0,2 м с каждой стороны, при необходимости передвижения людей в пазухе - не менее 0,6 м.

Котлованы следует разрабатывать, как правило, до проектной отметки с сохранением природного сложения грунтов основания.

Отклонения отметок дна котлованов в местах устройства фундаментов и укладки конструкций:

- при окончательной разработке не должны превышать ±5 см;

- при черновой разработке не должны превышать данные, приведенные в таблице.

Вид механизма для разработки грунта

Предельные отклонения, см

Число измерений

1) одноковшовыми экскаваторами, оснащенными

 

 

ковшами с зубьями:

 

 

а) с механическим приводом по видам оборудования:

 

 

- драглайн;

+ 25

20

- прямая лопата;

+ 10

15

- обратная лопата;

+ 15

10

б) с гидравлическим приводом;

+ 10

10

2) Одноковшовыми экскаваторами, оснащенными планировочными ковшами, зачистным оборудованием и др. специальным оборудованием для планировочных работ, экскаваторами-планировщиками.

+ 5

5

На устройство оснований под конструкции следует составлять акт освидетельствования скрытых работ.

Не допускается:

- размыв, размягчение, разрыхление или промерзание верхнего слоя грунта основания толщиной более 3 см.

Разработка траншей под трубопроводы в нескальных грунтах

Состав операций и средства контроля

Этапы работ

Контролируемые операции

Контроль (метод, объем)

Документация

Подготовительные работы

Проверить:

 

Общий журнал работ

- выполнение вертикальной планировки поверхности строительной площадки (при необходимости);

Визуальный

- выноску разбивочных осей и надежность их закрепления;

Измерительный

- выполнение работ по отводу поверхностных и подземных вод с помощью временных или постоянных устройств (при необходимости).

Визуальный

Механизированная разработка грунта, зачистка дна траншей

Контролировать:

 

Общий журнал работ

- отклонение отметок дна траншей при механизированной разработке от проектных;

Измерительный, точки измерений устанавливаются случайным образом; на принимаемый участок - 10-20

- отклонения отметок дна выемок при окончательной разработке (доработке) от проектных;

Измерительный, в местах поворотов, примыканий, но не реже чем через 50 м и не менее 10 измерений на принимаемый участок

- отклонения от проектного уклона дна траншей;

Измерительный, в местах поворотов, примыканий, расположения колодцев, но не реже чем через 50 м;

- ширину траншей;

Измерительный

- крутизну откосов.

Измерительный

Приемка выполненных работ

Проверить:

 

Акт освидетельствования скрытых работ

- соответствие геометрических размеров траншей требованиям проекта;

Измерительный

- величины отметок и уклонов дна траншей;

То же

- крутизну откосов траншей;

- » -

- качество грунтов основания (при необходимости).

Визуальный всей поверхности основания.

Контрольно-измерительный инструмент: нивелир, рулетка, шаблон крутизны откосов.

Операционный контроль осуществляют: мастер (прораб), геодезист - в процессе работ.

Приемочный контроль осуществляют: работники службы качества, мастер (прораб, геодезист, представители технадзора заказчика.

Технические требования
СНиП 3.02.01-87 пп. 1.11, 3.29

Допускаемые отклонения:

- отметок дна траншей при окончательной разработке - ±5 см,

- продольного уклона дна траншей под безнапорные трубопроводы от проектного - ±0,0005.

На устройство оснований под трубопроводы следует составлять акт освидетельствования скрытых работ.

Указания по производству работ
СНиП 3.02.01-87 пп. 3.1, 3.3, 3.6-3.9, 3.11, 3.15, 3.17

Минимальная ширина траншей (А) должна приниматься наибольшей из величин, удовлетворяющих следующим требованиям:

- с откосами 1:0,5 и круче - по таблице 1;

- с откосами положе 1:0,5 - не менее:

- D + 0,3 м при укладке плетями;

- D + 0,5 м при укладке отдельными трубами;

- разрабатываемых одноковшовыми экскаваторами:

- в песках и супесях - в + 0,15 м;

- в глинистых грунтах - в + 0,1 м;

- в разрыхленных и мерзлых грунтах - в + 0,4 м, где в - ширина режущей кромки ковша;

- разрабатываемых траншейными экскаваторами - не менее номинальной ширины копания.

Наибольшую крутизну откосов траншей, устраиваемых без крепления в грунтах, находящихся выше уровня грунтовых вод, следует принимать по таблице 2 (СНиП III-4-80*).

Максимальная глубина траншей с вертикальными незакрепленными стенками должна приниматься по таблице 3 (СНиП III-4-80*).

Таблица 1

Минимальная ширина траншей с откосами 1:0,5 и круче

Способ укладки трубопроводов

Ширина траншей, м, без учета креплений при стыковом соединении

сварном

раструбном

муфтовом, фланцевом, фальцевом для всех труб и раструбном для керамических труб

1. Плетями или отдельными секциями при наружном диаметре труб, D, м:

 

 

 

 

 

 

до 0,7 включительно

D + 0,3, но не менее 0,7

-

-

свыше 0,7

1,5D

-

 

-

 

2. То же на участках, разрабатываемых траншейными экскаваторами, под трубопроводы диаметром до 219 мм, укладываемые без спуска людей в траншеи

D + 0,2

 

 

3. Отдельными трубами D, м:

 

 

 

до 0,5

D + 0,5

D + 0,6

D + 0,8

от 0,5 до 1,6

D + 0,8

D + 1

D + 1,2

от 1,6 до 3,5

D + 1,4

D + 1,4

D + 1,4

Таблица 2

Наибольшая крутизна откосов траншей

Виды грунтов

Крутизна откоса (отношение высоты к заложению) при глубине выемки, м, не более

1,5

3

5

1. Насыпные и неуплотненные

1:0,67

1:1

1:1,25

2. Песчаные и гравийные

1:0,5

1:1

1:1

3. Супесь

1:0,25

1:0,67

1:0,85

4. Суглинок

1:0

1:0,5

1:0,75

5. Глина

1:0

1:0,25

1:0,5

6. Лессы и лессовидные

1:0

1:0,5

1:0,5

Таблица 3

Максимальная глубина траншей с вертикальными незакрепленными стенками

Виды грунтов

Глубина траншей, м

1. Насыпные, песчаные и крупноблочные

1

2. Супесь

1,25

3. Суглинок и глина

1,5

Разработку грунта следует производить, как правило, до проектной отметки с сохранением природного сложения грунтов основания.

Восполнение переборов в местах укладки трубопроводов должно быть выполнено местным грунтом с уплотнением до плотности грунта естественного сложения основания или малосжимаемым грунтом (модуль деформации не менее 20 МПа).

Проектом производства работ должна быть установлена необходимость временного крепления вертикальных стенок траншей в зависимости от глубины, вида и состояния грунта, гидрогеологических условий, величины и характера временных нагрузок на бровке.

Обратная засыпка

Состав операций и средства контроля

Этапы работ

Контролируемые операции

Контроль (метод, объем)

Документация

Подготовительные работы

Проверить:

- освидетельствование ранее выполненных земляных работ;

 

Визуальный

Общий журнал работ, акт освидетельствования скрытых работ

- чистоту основания и промерзания грунта (в зимнее время);

 То же

- наличие в проекте данных о типах и характеристиках фунтов для обратных засыпок, указаний по опытному уплотнению.

- » -

Засыпка пазух котлована и траншей

Контролировать:

- гранулометрический состав фунта, предназначенного для устройства обратных засыпок (при необходимости);

 

Измерительный и регистрационный по указаниям проекта

Общий журнал работ

- содержание в фунте древесины, волокнистых материалов, гниющего или легкосжимаемого строительного мусора;

Визуальный, ежесменный

- содержание мерзлых комьев в обратных засыпках;

Визуальный

- размер твердых включений, в т. ч. мерзлых комьев;

 То же

- наличие снега и льда в обратных засыпках и их основаниях;

- » -

- температуру грунта, отсыпаемого и уплотняемого при отрицательной температуре воздуха;

Измерительный, периодический

- среднюю по проверяемому участку плотность сухого фунта обратных засыпок.

То же

Приемка выполненных работ

Проверить:

- соответствие физико-механических характеристик отсыпаемого и уплотненного грунта требованиям проекта.

 

Лабораторный контроль

Акт приемки выполненных работ

Контрольно-измерительный инструмент: нивелир; плотномер ГРПТ-2, ППГР-1; влагомер ПННВ-1, ВПГР-1.

Входной и операционный контроль осуществляют: мастер (прораб).

Приемочный контроль осуществляют: работники службы качества, мастер (прораб), представители технадзора заказчика.

Технические требования
СНиП 3.02.01-87 пп. 4.15, 4.26

Содержание мерзлых комьев для наружных пазух зданий и верхних зон траншей с уложенными коммуникациями не должно быть более 20% от общего объема.

Размер твердых включений, в т. ч. мерзлых комьев, не должен превышать 2/3 толщины уплотненного слоя, но не более 30 см.

Гранулометрический состав грунта должен соответствовать проекту (отклонения допускаются не более чем в 20% определений).

Средняя по проверяемому участку плотность сухого грунта обратных засыпок должна быть не ниже проектной (отклонения допускаются в значениях плотности ниже проектных на 0,06 г/см в отдельных определениях, но не более чем в 20% определений).

Не допускается:

- содержание в грунте древесины, гниющего или легкосжимаемого строительного мусора;

- наличие снега и льда в обратных засыпках и их основаниях;

- содержание мерзлых комьев для пазух внутри здания.

Указания по производству работ
СНиП 3.02.01-87 пп. 4.9-4.11, 4.15

Засыпку траншей с уложенными трубопроводами следует производить в две стадии:

- на первой стадии выполняется засыпка нижней зоны немерзлым грунтом, не содержащим твердых включений размером свыше 1/10 диаметра асбестоцементных, пластмассовых, керамических, железобетонных труб, на высоту 0,5 м над верхом трубы, а для прочих труб - грунтом без включений размером свыше 1/4 их диаметра на высоту 0,2 м над верхом трубы с подбивкой пазух и послойным его уплотнением до проектной плотности с обеих сторон трубы;

- на второй стадии выполняется засыпка верхней зоны траншеи грунтом, не содержащим твердых включений размером свыше диаметра трубы.

Засыпку траншей с непроходными каналами следует производить в две стадии:

- нижняя зона на высоту 0,2 м над верхом канала засыпается немерзлым фунтом, не содержащим твердых включений размером свыше 1/4 высоты канала, но не более 20 см, с послойным его уплотнением до проектной плотности с обеих сторон канала;

- верхняя зона заполняется грунтом, не содержащим твердых включений размером свыше 1/2 высоты канала.

Обратная засыпка траншей, на которые передается только собственный вес грунта, может выполняться без уплотнения фунта, но с отсыпкой по трассе траншеи валика, размеры которого должны определяться с учетом последующей естественной осадки грунта.

Обратную засыпку узких пазух при невозможности уплотнения фунта имеющимися средствами следует выполнять малосжимаемыми грунтами (песком, щебнем) с проливкой водой.

Вертикальная планировка

Состав операций и средства контроля

Этапы работ

Контролируемые операции

Контроль (метод, объем)

Документация

Подготовительные работы

Проверить:

 

Общий журнал работ

- наличие геодезических разбивочных знаков, геодезической разбивочной схемы;

Визуальный

- выполнение срезки плодородного слоя почвы;

Технический осмотр

- выполнение работ по отводу поверхностных и фунтовых вод с территории планируемой поверхности (при необходимости).

То же

Устройство планировки

Контролировать:

 

Общий журнал работ

- величину уклонов;

Измерительный

- величину отметок поверхности.

То же

Приемка

Проверить:

 

Акт приемки выполненных работ, исполнительная геодезическая схема

выполненных работ

- соответствие фактических отметок спланированной поверхности проектным;

Измерительный, по сетке 50´50 м

 

- соответствие фактических уклонов спланированной поверхности проектным;

Визуальный (наблюдение за стоком атмосферных осадков) или измерительный, по сетке 50´50 м

 

- степень уплотнения грунта (при необходимости);

Лабораторный

 

- отсутствие переувлажненных участков и местных просадок фунта.

Визуальный

Контрольно-измерительный инструмент: рулетка металлическая, правило, нивелир.

Входной и операционный контроль осуществляют: мастер (прораб), геодезист - в процессе работ.

Приемочный контроль осуществляют: работники службы качества, мастер (прораб, геодезист, представители технадзора заказчика.

Технические требования
СНиП 3.02.01-87 п. 3.29

Допускаемые отклонения:

- отметки спланированной поверхности от проектных, кроме орошаемых земель, не должны превышать:

- в нескальных грунтах - ±5 см;

- в скальных грунтах - от +10 до -20 см.

- уклон спланированной поверхности от проектного, кроме орошаемых земель, - ±0,001.

Не допускается:

- образование замкнутых понижений на спланированной поверхности.

Устройство насыпей

Состав операций и средства контроля

Этапы работ

Контролируемые операции

Контроль (метод, объем)

Документация

Подготовительные работы

Проверить:

- наличие акта освидетельствования на выполненные ранее земляные работы, в том числе на работы по подготовке оснований под насыпи;

 

Визуальный

Общий журнал работ

- наличие в проекте данных о типах и физико-механических характеристиках грунтов, предназначенных для возведения насыпей, и требований по степени уплотнения грунтов;

То же

- наличие акта геодезической разбивки.

- » -

Устройство насыпей

Контролировать:

- гранулометрический состав фунта, предназначенного для устройства на сыпей;

 

Измерительный и регистрационный по указанию проекта

Общий журнал работ, акт освидетельствования скрытых работ

- содержание в грунте древесины, волокнистых материалов, гниющего или легкосжимаемого строительного мусора;

Визуальный, ежесменно

- содержание в насыпи мерзлых комьев;

Визуальный

- размер твердых включений в насыпях, в т. ч. мерзлых комьев;

То же

- наличие в насыпях и их основаниях снега и льда;

- » -

- среднюю по проверяемому участку плотность сухого грунта;

Измерительный, ежесменно, но не реже чем одно определение на 300 м насыпи

- влажность грунта в теле насыпи;

Измерительный, по указанию проекта

- отклонение геометрических размеров насыпей.

Измерительный, в местах размещения знаков разбивки, но не реже чем через 100 м

Приемка выполненных работ

Проверить:

- соответствие геометрических размеров насыпей требованиям проекта;

 

Измерительный;

Акт приемки выполненных работ

- соответствие физико-механических характеристик грунта требованиям проекта.

 Лабораторный

Контрольно-измерительный инструмент: рулетка металлическая, нивелир.

Входной и операционный контроль осуществляют: мастер (прораб), геодезист - в процессе работ.

Приемочный контроль осуществляют: работники службы качества, мастер (прораб), геодезист, представители технадзора заказчика.

Технические требования
СНиП 3.02.01-87 пп. 4.2, 4.4, 4.20, 4.26

Допускаемые отклонения:

- положения оси насыпей:

- железных дорог - ±10 см;

- автомобильных дорог - ±20 см;

- ширины насыпей по верху и по низу - ±15 см;

- отметок поверхностей насыпей - ±5 см.

Высота насыпей, возводимых без уплотнения, принимается с запасом по высоте на осадку при отсыпке:

- из скальных грунтов - 6%;

- из нескальных грунтов - 9%.

Гранулометрический состав грунта должен соответствовать проекту (отклонения допускаются не более чем в 20% определений).

Содержание мерзлых комьев от общего объема отсыпаемого грунта не должно превышать:

- для насыпей, уплотняемых укаткой, - 20%;

- для насыпей, уплотняемых трамбованием, - 30%;

- для насыпей, возводимых без уплотнения, - 50%.

Размер твердых включений, в т. ч. мерзлых комьев, в насыпях не должен превышать 2/3 толщины уплотненного слоя, но не более 30 см.

Средняя по принимаемому участку плотность сухого грунта должна быть не ниже проектной (допускается снижение плотности не более чем в 10% определений при летней отсыпке и в 20% - при зимней).

Влажность грунта в теле насыпи должна быть в пределах, установленных проектом (отклонения допускаются не более чем в 10% определений).

Не допускается:

- содержание в грунте древесины, волокнистых материалов, гниющего или легкосжимаемого строительного мусора;

- наличие льда и снега;

- увеличение крутизны откосов насыпей;

- использование в одном слое грунтов разных типов.

Устройство фундаментов

Монтаж блоков ленточных фундаментов

Состав операций и средства контроля

Этапы работ

Контролируемые операции

Контроль (метод, объем)

Документация

Подготовительные работы

Проверить:

- наличие документа о качестве;

 

Визуальный

Паспорта (сертификаты), общий журнал работ, акт освидетельствования скрытых работ

- качество поверхности и внешнего вида блоков, точность их геометрических размеров;

Визуальный, измерительный

- перенос основных осей фундаментов на обноску;

Измерительный

- наличие акта освидетельствования работ по подготовке основания под фундамент; наличие заключения о качестве и состоянии грунтов (при необходимости);

Визуальный, измерительный

 

- готовность основания к монтажу фундамента;

Визуальный

- подготовку фундаментных блоков к монтажу, в том числе очистку опорных поверхностей от загрязнений и наледи.

Визуальный, измерительный

Установка фундаментных блоков

Контролировать:

- установку фундаментных блоков; соответствие их положения в плане и по высоте требованиям проекта;

 

Измерительный, каждый элемент

Общий журнал работ, исполнительная геодезическая схема

- плотность примыкания подошвы фундаментных блоков к поверхности основания;

Визуальный

 

- плотность примыкания элементов фундамента друг к другу;

Визуальный, измерительный

- отметку верха конструкции фундамента;

Измерительный, каждый элемент

- заполнение швов цементным раствором согласно требованиям проекта.

Визуальный

Приемка выполненных работ

Проверить:

- отклонение отметок верхних опорных поверхностей элементов фундаментов от проектных;

 

Измерительный, каждый элемент

Исполнительная геодезическая схема, акт приемки выполненных работ

- отклонение осей фундаментных блоков относительно разбивочных осей.

Измерительный

Контрольно-измерительный инструмент: отвес, рулетка металлическая, линейка металлическая, уровень, правило, нивелир.

Операционный контроль осуществляют: мастер (прораб), геодезист - в процессе работ.

Приемочный контроль осуществляют: работники службы качества, мастер (прораб), геодезист, представители технадзора заказчика.

Технические требования
СНиП 3.03.01-87 пп. 3.5, 3.6, 3.10, табл. 12

Предельные отклонения:

- от совмещения установочных ориентиров блоков фундаментов с рисками разбивочных осей - 12 мм;

- отметки выравнивающего слоя песка под блоки от проектной - 15 мм.

Не допускается:

- установка блоков фундаментов на покрытые водой и снегом основания;

- применение раствора, процесс схватывания которого уже начался, а также восстановление его пластичности путем добавления воды;

- загрязнение опорных поверхностей блоков.

Требования к качеству применяемых конструкций

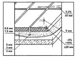
ГОСТ 13580-85. Плиты железобетонные ленточных фундаментов. Технические условия.

ГОСТ 13579-78*. Блоки бетонные для стен подвалов. Технические условия.

Плиты

Категория поверхности: А7

Допускаемые отклонения длины и ширины:

- до 1000 мм - ±10 мм;

- св. 1000 до 1600 мм - ±10 мм;

- св. 1600 до 3200 мм - ±15 мм.

Отклонение положения монтажной петли над плоскостью плиты - +10; -5 мм.

Отклонения положения закладных изделий:

- в плоскости плиты - 10 мм;

- из плоскости плиты - 3 мм.

Непрямолинейность верхней плоскости плиты в любом сечении на всей длине или ширине:

- до 1000 мм - 2,5 мм;

- свыше 1000 до 1600 мм - 3,0 мм;

- свыше 1600 до 3200 мм - 4,0 мм.

Не допускаются:

- на поверхности плит раковины диаметром более 20 мм или сколы ребер глубиной более 20 мм.

Блоки

Допускаемые отклонения размеров блоков:

- по длине - ±13 мм;

- по ширине и высоте - ±8 мм;

- по размерам вырезов - ±5 мм.

Отклонение от прямолинейности профиля поверхностей блока не должно превышать 3 мм на всю длину и ширину блока.

Категория поверхностей блоков: A3, А5, А6 и А7.

При категории поверхности А7 требования по качеству поверхности блоков такие же, как и для плит.

Не допускаются:

- трещины, за исключением местных, поверхностных, усадочных шириной не более 0,1 мм;

- обнажение арматуры, за исключением выпусков.

Указания к производству работ
СНиП 3.03.01-87 пп. 3.5, 3.9, 3.10

Монтаж конструкций фундаментов разрешается производить только после выполнения всего комплекса земляных работ, разбивки осей и устройства основания.

До начала работ по устройству фундаментов подготовленное основание должно быть принято по акту комиссией с участием представителя технадзора заказчика. В акте должно быть отражено соответствие планового и высотного положения основания требованиям проекта.

При разбивке основных осей фундаментов проекции осей должны быть перенесены на обноску. В дальнейшем перенос основных осей на элементы фундаментов в процессе монтажа осуществляется от обноски.

До начала монтажа на верхних обрезах фундаментных плит и блоков и у их оснований должны быть нанесены несмываемой краской риски, фиксирующие положение осей плит и блоков. Опорные поверхности плит и блоков должны быть очищены от загрязнения.

Установку блоков ленточных фундаментов следует производить, начиная с установки маячных блоков в углах здания и на пересечении осей. Маячные блоки устанавливают, совмещая их осевые риски с рисками разбивочных осей по двум взаимно перпендикулярным направлениям. К установке рядовых блоков следует приступать после выверки положения маячных блоков в плане и по высоте.

Фундаментные блоки следует устанавливать на выровненный до проектной отметки слой песка.

Марки растворов, применяемых для устройства постели, должны быть указаны в проекте. Подвижность раствора должна составлять 5-7см.

Монтаж блоков стен подземной части зданий

Состав операций и средства контроля

Этапы работ

Контролируемые операции

Контроль (метод, объем)

Документация

Подготовительные работы

Проверить:

- наличие документа о качестве;

 

Визуальный

Паспорта на плиты и блоки, общий журнал работ

- качество поверхности и внешнего вида блоков, точность их геометрических размеров;

Визуальный, измерительный

- перенос основных осей фундаментов на обноску;

Измерительный

- подготовку фундаментных блоков к монтажу, в том числе очистку опорных поверхностей от загрязнений и наледи.

Визуальный, каждый элемент

Установка фундаментных блоков

Контролировать:

- установку фундаментных блоков, соответствие их положения в плане и по высоте требованиям проекта;

 

Измерительный, каждый элемент

Общий журнал работ

- плотность примыкания подошвы фундаментных блоков к поверхности основания;

Визуальный

- заполнение швов цементным раствором согласно требованиям проекта.

 То же

Приемка выполненных работ

Проверить:

- отклонение от вертикали плоскостей блоков стен;

 

Измерительный, каждый элемент

Исполнительная геодезическая схема, акт приемки работ

- отклонение осей фундаментных блоков относительно разбивочных осей;

То же

- заполнение швов между блоками раствором.

 Визуальный

Контрольно-измерительный инструмент: нивелир, рулетка, линейка металлическая, отвес, правило.

Операционный контроль осуществляют: мастер (прораб), геодезист - в процессе выполнения работ.

Приемочный контроль осуществляют: работник службы качества, мастер (прораб), представитель технадзора заказчика.

Технические требования
СНиП 3.03.01-87 пп. 3.5, 3.6, табл. 12

Предельные отклонения:

- от совмещения установочных ориентиров блоков стен с рисками разбивочных осей - не более 12 мм;

- от вертикали верха плоскостей блоков стен - 12 мм.

Марка раствора должна соответствовать проектной.

Подвижность раствора для устройства постели должна составлять 5-7 см.

Установку блоков стен следует выполнять с соблюдением перевязки.

Не допускается:

- применение раствора, процесс схватывания которого уже начался, а также восстановление его пластичности путем добавления воды;

- загрязнение опорных поверхностей.

Требования к качеству применяемых конструкций

ГОСТ 13580-85*. Плиты железобетонные ленточных фундаментов. Технические условия.

ГОСТ 13579-78*. Блоки бетонные для стен подвалов. Технические условия.

Плиты

Категория поверхности: А7.

Допускаемые отклонения длины и ширины:

- до 1000 мм - ±10 мм;

- св. 1000 до 1600 мм - ±10 мм;

- св. 1600 до 3200 мм - ±15 мм.

Отклонение положения монтажной петли над плоскостью плиты +10; -5 мм.

Отклонения положения закладных изделий:

- в плоскости плиты - 10 мм;

- из плоскости плиты - 3 мм.

Непрямолинейность верхней плоскости плиты в любом сечении на всей длине или ширине:

- до 1000 мм - 2,5 мм;

- свыше 1000 до 1600 мм - 3,0 мм;

- свыше 1600 до 3200 мм - 4,0 мм.

Не допускаются:

- на поверхности плит раковины диаметром более 20 мм или сколы ребер глубиной более 20 мм.

Блоки

Допускаемые отклонения размеров блоков:

- по длине - ±13 мм;

- по ширине и высоте - ±8 мм;

- по размерам вырезов - ±5 мм.

Отклонение от прямолинейности профиля поверхностей блока не должно превышать 3 мм на всю длину и ширину блока.

Категория поверхностей блоков: A3, А5, А6 и А7.

При категории поверхности А7 требования по качеству поверхности блоков такие же, как и для плит.

Не допускаются:

- трещины, за исключением местных, поверхностных, усадочных шириной не более 0,1 мм;

- обнажение арматуры, за исключением выпусков.

Указания по производству работ
СНиП 3.03.01-87 пп. 3.9, 3.11

Монтаж конструкций фундаментов разрешается производить только после выполнения всего комплекса земляных работ, разбивки осей и устройства основания.

До начала монтажа на верхних обрезах фундаментных плит и блоков и у их оснований должны быть нанесены несмываемой краской риски, фиксирующие положение осей плит и блоков. Опорные поверхности плит и блоков должны быть очищены от загрязнения.

Установку блоков стен подвала следует производить, начиная с установки маячных блоков в углах здания и на пересечении осей. Маячные блоки устанавливают, совмещая их осевые риски с рисками разбивочных осей по двум взаимно перпендикулярным направлениям. К установке рядовых блоков следует приступать после выверки положения маячных блоков в плане и по высоте.

Рядовые блоки следует устанавливать, ориентируя низ по обрезу блоков нижнего ряда, верх - по разбивочной оси.

Блоки наружных стен, устанавливаемые ниже уровня грунта, необходимо выравнивать по внутренней стороне стены, а выше - по наружной.

Вертикальные и горизонтальные швы должны быть заполнены раствором и расшиты с двух сторон.

Установка блоков фундаментов стаканного типа

Состав операций и средства контроля

Этапы работ

Контролируемые операции

Контроль (метод, объем)

Документация

Подготовительные работы

Проверить:

- наличие документа о качестве;

 

Визуальный

Паспорта (сертификаты), акт освидетельствования скрытых работ, общий журнал работ

- качество поверхности и внешний вид блоков, точность их геометрических параметров;

Визуальный, измерительный

- наличие акта освидетельствования работ по подготовке основания под фундамент; наличие заключения лаборатории о качестве и состоянии фунтов (при необходимости);

Визуальный

- подготовку фундаментов к монтажу, в т. ч. очистку опорных поверхностей от загрязнения;

То же

- перенос осей на обноску.

 - » -

Монтаж фундаментных блоков

Контролировать:

- совмещение осей фундаментных блоков относительно разбивочных осей;

 

Измерительный, каждый элемент

Исполнительная геодезическая схема, общий журнал работ

- отклонения отметок выравнивающего слоя песка под блоки и опорной поверхности дна стаканов от проектных;

То же

- плотность примыкания подошвы фундамента к поверхности основания.

 Визуальный

Приемка выполненных работ

Проверить:

- фактические отклонения отметок опорных поверхностей дна стаканов от проектных;

 

Измерительный, каждый элемент

Исполнительная геодезическая схема, акт приемки выполненных работ

- соответствие положения смонтированных фундаментов в плане требованиям проекта.

То же

Контрольно-измерительный инструмент: отвес, шнур разметочный, линейка металлическая, нивелир, рулетка, теодолит.

Операционный контроль осуществляют: мастер (прораб), геодезист - в процессе выполнения работ.

Приемочный контроль осуществляют: работники службы качества, мастер (прораб), геодезист, представители технадзора заказчика.

Технические требования
СНиП 3.03.01-87 п. 3.10, табл. 12

Предельные отклонения:

- от совмещения установочных ориентиров стаканов фундаментов с рисками разбивочных осей - 12 мм;

- отметки выравнивающего слоя песка под блоки от проектной - -15 мм;

- отметок опорной поверхности дна стаканов от проектных:

- до устройства выравнивающего слоя по дну стакана - -20 мм;

- после устройства выравнивающего слоя по дну стакана - +5 мм.

Не допускается:

- установка блоков фундаментов на покрытые водой или снегом основания;

- загрязнение опорных поверхностей стаканов фундаментов.

Требования к качеству применяемых материалов

ГОСТ 24476-80*. Фундаменты железобетонные сборные под колонны каркаса межвидового применения для многоэтажных зданий. Технические условия.

Категория бетонных поверхностей фундамента: А7.

Отклонения фактических размеров от номинальных не должны превышать, мм:

- по длине (ширине) - ±15;

- по высоте - ±10.

Отклонения размеров стакана под колонну и выступов фундамента не должны превышать ±5 мм.

Отклонение от плоскости подошвы фундамента не должно превышать ±5 мм.

Отклонения от номинальной толщины защитного слоя бетона до арматуры не должны превышать +10; -5 мм.

На поверхностях фундаментов не допускаются раковины диаметром более 20 мм. Ширина усадочных и других поверхностных технологических трещин не должна превышать 0,1 мм.

Транспортировать и хранить фундаменты следует в рабочем положении. Фундаменты должны храниться в штабелях, рассортированными по маркам и партиям. Высота штабеля фундаментов не должна превышать двух рядов. При хранении каждый фундамент должен укладываться на деревянные инвентарные прокладки и подкладки. Толщина прокладок должна быть не менее 100 мм, подкладок - не менее 30 мм. Прокладки и подкладки в штабеле должны располагаться по одной вертикали. Подкладки под нижний ряд фундаментов следует укладывать по плотному, тщательно выровненному основанию. Транспортировка фундаментов должна производиться в один ряд на деревянных подкладках с надежным закреплением изделий, предохраняющим их от смещения во время перевозки.

Указания по производству работ
СНиП 3.03.01-87 пп. 3.8, 3.10

Монтаж конструкций фундаментов разрешается производить только после выполнения всего комплекса земляных работ, разбивки осей и устройства основания.

До начала работ по устройству фундаментов подготовленное основание должно быть принято по акту комиссией с участием представителя технадзора заказчика. В акте должно быть отражено соответствие планового и высотного положения основания требованиям проекта.

При разбивке основных осей фундаментов проекции осей должны быть перенесены на обноску. В дальнейшем перенос основных осей на элементы фундаментов в процессе монтажа осуществляется от обноски.

До начала монтажа на верхних обрезах фундаментных блоков и у их оснований должны быть нанесены несмываемой краской риски, фиксирующие положение осей стаканов и подошвы фундаментов.

Установку блоков фундаментов стаканного типа следует производить относительно разбивочных осей по двум взаимно перпендикулярным направлениям, совмещая осевые риски фундаментов с ориентирами осей и контролируя правильность установки геодезическими приборами.

На монтаж блоков фундаментов следует составлять исполнительные геодезические схемы.

Устройство свайных фундаментов

Состав операций и средства контроля

Этапы работ

Контролируемые операции

Контроль (метод, объем)

Документация

Подготовительные работы

Проверить:

- наличие документа о качестве;

 

Визуальный

Паспорта (сертификаты), акт освидетельствования скрытых работ, общий журнал работ

- качество поверхности и внешнего вида свай, точность их геометрических параметров;

Визуальный, измерительный

- наличие разбивки свайного поля;

Визуальный

- наличие ППР на устройство свайного фундамента;

 То же

- наличие акта освидетельствования ранее выполненных земляных работ;

- » -

- наличие разметки свай;

- » -

- соответствие сваебойного оборудования проекту.

- » -

Забивка свай и срубка голов свай

Контролировать:

- точность установки на место погружения свай;

 

Измерительный

Общий журнал работ, журнал забивки свай

- величину отказа забиваемых свай;

То же

- амплитуду колебаний свай в конце вибропогружения;

- » -

- положение в плане забиваемых свай;

- » -

- отметки голов свай;

- » -

- вертикальность оси забиваемых свай;

Измерительный, 20% свай, выбранных случайным образом

- размеры дефектов голов свай.

Технический осмотр, каждая свая

Приемка выполненных работ

Проверить:

- фактические отклонения забитых свай от разбивочных осей в плане и от проектной отметки по высоте;

 

Измерительный, каждая свая

Акт освидетельствования скрытых работ, исполнительная геодезическая схема

- соответствие расположения свай в плане свайного поля проекту.

Визуальный, измерительный

Контрольно-измерительный инструмент: рулетка металлическая, отвес, нивелир, теодолит.

Входной и операционный контроль осуществляют: мастер (прораб), геодезист - в процессе работ.

Приемочный контроль осуществляют: работники службы качества, мастер (прораб), представители технадзора заказчика.

Технические требования
СНиП 3.02.01-87 п. 11.6, табл. 18

Предельные отклонения:

- установки на место погружения свай:

а) с кондуктором, с размером свай по диагонали или диаметру (d):

- до 0,5 м - ±5 мм;

- от 0,6 до 1 м - ±10 мм;

- свыше 1 м - ±12 мм;

б) без кондуктора, с размером свай по диагонали или диаметру (d):

- до 0,5 м - ±10 мм;

- от 0,6 м до 1 м - ±20 мм;

- свыше 1 м - ±30 мм.

- от вертикали оси забивных свай, кроме свай-стоек, - ±2%;

- отметок голов свай:

- с монолитным ростверком - ±3 см;

- со сборным ростверком - ±1 см;

- безростверковый фундамент со сборным оголовком - ±5 см;

- сваи-колонны - ±3 см.

Положения в плане забивных и набивных свай в соответствии с таблицей 1.

Таблица 1

Вид свай

Предельные отклонения

1. Забивные сваи диаметром до 0,5 м включительно:

 

а) для однорядного расположения свай:

 

поперек оси свайного ряда

±0,2d

вдоль оси свайного ряда

±0,3d

б) для кустов и лент с расположением свай в два и три ряда:

 

крайних свай поперек оси свайного ряда

±0,2d

остальных свай и крайних свай вдоль свайного ряда

±0,3d

в) для сплошного свайного поля под всем зданием или сооружением:

 

крайние сваи

±0,2d

средние сваи

±0,4d

г) одиночные сваи

±5 см

д) сваи-колонны

±3 см

2. Забивные и набивные сваи диаметром более 0,5 м:

 

а) поперек ряда

±10 см

б) вдоль ряда при кустовом расположении свай

±15 см

в) для одиночных полых круглых свай под колонны

±8 см

He допускается:

- погружать сваи с трещинами более 0,3 мм.

Требования к качеству применяемых конструкций

ГОСТ 19804-91. Сваи железобетонные. Технические условия.

Отклонения от проектных размеров свай, мм:

- по длине призматической части сваи при длине:

до 10 м включительно - ±40;

более 10 м - ±50;

- по размерам поперечного сечения - ±5;

- по толщине защитного слоя бетона - ±5;

- по длине острия сваи - ±30;

- по смещению острия от центра поперечного сечения сваи - 15;

- по расстоянию от центра подъемных петель до концов сваи - ±50;

Отклонения от прямой линии боковых граней свай в мм при длине свай:

- от 3 до 8 м - 8;

- от 9 до 16 м - 13.

Отклонение от перпендикулярности торцевой плоскости не должно превышать 0,015 размера поперечного сечения.

На поверхности свай не допускаются:

- раковины диаметром 15 мм и глубиной 5 мм;

- наплывы бетона высотой более 5 мм;

- местные околы бетона на углах свай глубиной более 10 мм и общей длиной более 50 мм на 1 м свай;

- околы бетона и раковины в торце сваи;

- трещины, за исключением усадочных, шириной более 0,1 мм.

Маркировка

На боковой поверхности сваи на расстоянии 50 см от торца или на торце должны быть нанесены несмываемой краской: товарный знак предприятия-изготовителя; марка сваи; дата изготовления сваи; штамп ОТК; масса сваи.

Каждая партия свай должна сопровождаться установленной формы документом о качестве.

Сваи должны храниться рассортированными по маркам в штабелях высотой не более 2,5 м, горизонтальными рядами, остриями в одну сторону. Между горизонтальными рядами свай должны быть уложены деревянные прокладки, расположенные рядом с подъемными петлями или, в случае отсутствия петель, в местах, предусмотренных для захвата свай при их транспортировании. Прокладки должны быть расположены по вертикали одна над другой, толщина прокладок должна быть на 20 мм больше высоты петель.

Указания по производству работ
СНиП 3.02.01-87 пп. 11.5, 11.10

Величина отказа забиваемых свай или амплитуда колебаний в конце вибропогружения свай не должна превышать расчетную величину. Отказ свай в конце забивки следует измерять с точностью до 0,1 см.

Сваи длиной до 10 м, недопогруженные более чем на 15% проектной глубины, и сваи большей длины, недопогруженные более чем на 10% проектной глубины, но давшие отказ равный или менее расчетного, должны быть подвергнуты обследованию для выяснения причин, затрудняющих погружение, на основании которого должно быть принято решение о возможности использования имеющихся свай или погружения дополнительных.

При поломке свай и в случае вынужденного погружения ниже проектной отметки следует по согласованию с проектной организацией нарастить их монолитным железобетоном.

Устройство сборных ростверков

Состав операций и средства контроля

Этапы работ

Контролируемые операции

Контроль (метод, объем)

Документация

Подготовительные работы

Проверить:

- наличие документа о качестве;

 

Визуальный

Паспорта (сертификаты), исполнительная геодезическая схема

- качество поверхности и внешнего вида блоков, точность их геометрических параметров;

Визуальный, измерительный

- соответствие расположения свай в плане свайного поля проекту;

Измерительный

- соответствие отметок оголовков свай проекту.

То же

Монтаж сборных ростверков

Контролировать:

- смещение относительно разбивочных осей;

Измерительный, каждый ростверк

Общий журнал работ

- отклонения в отметках поверхностей;

То же

- смещение осей оголовка относительно осей свай;

Измерительный, каждый оголовок

- толщину растворного шва между ростверком и оголовком;

То же

- толщину шва после монтажа при платформенном опирании.

- » -

Приемка выполненных работ

Проверить:

- фактические отклонения отметок поверхностей ростверка;

 

Измерительный, каждый ростверк

Исполнительная геодезическая схема

- фактическое смешение относительно разбивочных осей

Измерительный

Контрольно-измерительный инструмент: рулетка металлическая, отвес, нивелир, теодолит.

Входной и операционный контроль осуществляют: мастер (прораб), геодезист - в процессе работ.

Приемочный контроль осуществляют: работники службы качества, мастер (прораб), представители технадзора заказчика.

Технические требования
СНиП 3.02.01-87 пп. 11.6, 11.53, табл. 18

Смещение относительно разбивочных осей:

- фундаменты жилых и общественных зданий - ±10 мм;

- фундаменты промышленных зданий - ±20 мм.

Смещение осей оголовка относительно осей свай - ±10 мм.

Отклонение в отметках поверхностей:

- фундаменты жилых и общественных зданий - ±5 мм;

- фундаменты промышленных зданий - ±10 мм.

Толщина растворного шва между ростверком и оголовком не должна превышать 30 мм.

Не допускается:

- не заполненный раствором промежуток между ростверком и оголовком.

Требования к качеству применяемых изделий

ГОСТ 13579-78*. Блоки бетонные для стен подвалов. Технические условия.

Допускаемые отклонения размеров блоков:

- по длине - ±13 мм;

- по ширине и высоте - ±8 мм;

- по размерам вырезов - ±5 мм.

Отклонение от прямолинейности профиля поверхностей блока не должно превышать 3 мм на всю длину и ширину блока. Категория поверхностей блоков: А6, А7.

Не допускаются:

- трещины, за исключением местных поверхностных усадочных шириной не более 0,1 мм;

- обнажение арматуры, за исключением выпусков.

Указания по производству работ
СНиП 3.02.01-87 пп. 11.49, 11.50, 11.51, 11.52

Сваи с поперечными и наклонными трещинами шириной раскрытия более 0,3 мм должны быть усилены железобетонной обоймой с толщиной стенок не менее 100 мм или заменены.

В случае недобивки свай или повреждения голов при забивке головы свай должны срезаться методами, исключающими нарушение защитного слоя бетона сваи ниже ее среза.

При опирании ростверков на сваи через промежуточные элементы - оголовки стаканного типа - следует сопряжения оголовков и свай выполнять посредством заделки их в оголовок на глубину, указанную в проекте, но не менее 100 мм.

Раствор маяков при монтаже сборных элементов ростверков и безростверковых фундаментов должен быть на один класс ниже предусмотренного проектом для устройства постели.

Устройство монолитных ростверков

Состав операций и средства контроля

Этапы работ

Контролируемые операции

Контроль (метод, объем)

Документация

Подготовительные работы

Проверить:

 

Общий журнал работ, акт приемки ранее вы полненных работ, паспорта (сертификаты)

- наличие актов на ранее выполненные работы;

Визуальный

- правильность установки и надежность закрепления опалубки, поддерживающих лесов, креплений и подмостей;

Технический осмотр

- подготовленность всех механизмов и приспособлений, обеспечивающих производство бетонных работ;

Визуальный

- чистоту голов свай, ранее уложенного слоя бетона и внутренней поверхности опалубки;

То же

- наличие на внутренней поверхности опалубки смазки;

- » -

- состояние арматуры и закладных деталей, соответствие их положения проектному;

Технический осмотр, измерительный

- выноску проектной отметки верха бетонирования на внутренней поверхности опалубки.

Измерительный

Укладка бетонной смеси, твердение бетона, распалубка

Контролировать:

 

Общий журнал работ

- качество бетонной смеси;

Лабораторный

- состояние опалубки;

Технический осмотр

- высоту сбрасывания бетонной смеси, толщину укладываемых слоев, шаг перестановки глубинных вибраторов, глубину их погружения, продолжительность вибрирования, правильность выполнения рабочих швов;

Измерительный, 2 раза в смену

- температурно-влажностный режим твердения бетона;

Измерительный, в местах, определенных ППР

- фактическую прочность бетона и сроки распалубки.

Измерительный не менее одного раза на весь объем распалубки

Приемка выполненных работ

Проверить:

 

Акт приемки выполненных работ

- фактическую прочность бетона;

Лабораторный контроль

- качество поверхности ростверка, геометрические его размеры, соответствие проектному положению всей конструкции;

Визуальный, измерительный, каждый элемент конструкции

- качество применяемых в конструкции материалов.

Визуальный

Контрольно-измерительный инструмент: отвес строительный, рулетка, линейка металлическая, нивелир, теодолит, двухметровая рейка.

Операционный контроль осуществляют: мастер (прораб), инженер строительной лаборатории, геодезист - в процессе выполнения работ.

Приемочный контроль осуществляют: работники службы качества, мастер(прораб), представители технадзора заказчика.

Технические требования
СНиП 3.02.01-87 табл. 18, СНиП 3.03.01-87 табл. 11

Допускаемые отклонения:

- отметки голов свай - ±3см;

- смещений осей оголовка относительно осей свай - ±10 см;

- горизонтальных плоскостей на всю длину выверяемого участка - 20 мм;

- местных неровностей поверхности бетона при проверке двухметровой рейкой - 5 мм;

- размера поперечного сечения - +6 мм, -3 мм.

Толщина зазора между поверхностью грунта и нижней плоскостью ростверка - не менее установленной проектом.

Расстояние в свету от сваи до края ростверка должно быть не менее 5 см.

Требования к головам свай:

- торцы должны быть горизонтальными с отклонением ±5°;

- ширина сколов бетона по периметру сваи - не более 50 мм;

- глубина сколов по углам - не более 35 мм;

- длина сколов - не менее чем на 30 мм короче глубины заделки. Приемку ростверков следует оформлять актом на приемку ответственных конструкций.

Требования к качеству материалов

ГОСТ 7473-94. Смеси бетонные. Технические условия.

ГОСТ 10922-90. Арматурные и закладные изделия сварные, соединения сварные арматуры и закладных изделий железобетонных конструкций. Общие технические условия.

ГОСТ Р 52085-2003 Опалубка. Общие технические условия.

Для деревянной палубы должны применяться пиломатериалы хвойных пород по ГОСТ 8486-86*Е и листовых пород по ГОСТ 2695-83* не ниже II сорта.

Доски палубы должны иметь ширину не более 150 мм.

Влажность древесины, применяемой для палубы, должна быть не более 18%, для поддерживающих элементов - не более 22%.

Элементы опалубки должны плотно прилегать друг к другу при сборке. Щели в стыковых соединениях не должны быть более 2 мм.

Предельные отклонения для сеток, мм:

- ширины, размеров ячеек, разницы в длине диагоналей плоских сеток, свободных концов стержней - ±10;

- длины плоских сеток - ±15.

Предельные отклонения от прямолинейности стержней сеток не должны превышать 6 мм на 1 м длины сетки.

На элементах арматурных изделий и закладных деталей не должно быть отслаивающихся ржавчины и окалины, а также следов масла, битума и других загрязнений.

При входном контроле бетонной смеси на строительной площадке необходимо:

- проверить наличие паспорта на бетонную смесь и требуемых в нем данных;

- путем внешнего осмотра убедиться в отсутствии признаков расслоения бетонной смеси, в наличии в бетонной смеси требуемых фракций крупного заполнителя, в соответствии требуемой ее пластичности;

- при возникновении сомнений в качестве бетонной смеси потребовать контрольной проверки ее соответствия требованиям государственного стандарта и проекта.

Указания по производству работ
СНиП 3.03.01-87 пп. 2.8-2.13, 2.100, 2.109, 2.110

Перед бетонированием оголовки свай должны быть очищены от грязи, масел, снега, цементной пленки.

Армирование, правильность установки и закрепления опалубки должны быть приняты по акту.

Армирование ростверка должно выполняться по проекту. Установка и приемка опалубки, распалубливание должны производиться по ППР.

Бетонные смеси следует укладывать в конструкцию слоями одинаковой толщины. При уплотнении бетонной смеси не допускается опирание вибраторов на арматуру, закладные изделия, элементы крепления опалубки. Глубина погружения глубинного вибратора в бетонную смесь должна обеспечивать углубление его в ранее уложенный слой на 5-10 см, шаг перестановки не должен превышать полуторного радиуса его действия.

Высота свободного сбрасывания бетонной смеси в опалубку не должна превышать 3 м.

Укладка следующего слоя бетонной смеси допускается до начала схватывания бетона предыдущего слоя. Верхний уровень уложенной бетонной смеси должен быть на 50-70 мм ниже верха щитов опалубки. Толщина укладываемых слоев бетонной смеси не должна быть более 1,25 длины рабочей части вибратора.

Поверхность рабочих швов, устраиваемых при укладке бетонной смеси с перерывами, должна быть перпендикулярна оси ростверка в пределах средней трети пролета.

Возобновление бетонирования допускается производить по достижении бетоном прочности не менее 1,5 МПа.

Мероприятия по уходу за бетоном, контроль за их выполнением и сроки распалубки должны устанавливаться ППР.

Минимальная прочность бетона при распалубке ростверка должна быть не менее 70% проектной.

Устройство горизонтальной гидроизоляции фундаментов из цементных растворов

Состав операций и средства контроля

Этапы работ

Контролируемые операции

Контроль (метод, объем)

Документация

Подготовительные работы

Проверить:

 

Акт освидетельствования (приемки) ранее выполненных работ, общий журнал работ, паспорт (сертификат)

- наличие акта освидетельствования (приемки) на ранее выполненные работы;

Визуальный

- очистку основания от грязи, снега, наледи

То же

- наличие документа о качестве растворов.

- » -

Наклеивание рулонных материалов

Контролировать:

 

Общий журнал работ

- толщину и ровность слоя изоляции;

Измерительный, не менее 5 измерений на 70-100 м2 в местах, определяемых визуальным осмотром

- обеспечение готовности предыдущего слоя перед укладкой последующего;

Визуальный

- правильность ухода за уложенным слоем гидроизоляции.

То же

Приемка выполненных работ

Проверить:

 

Общий журнал работ, акт приемки выполненных работ

- качество поверхности изоляции;

Визуальный

- прочность приклейки слоев рулонного материала;

Измерительный, не менее 5 измерений на 70-100 м2

- соблюдение величины перекрытий (нахлестки) полотнищ;

Технический осмотр, выборочно

- правильность устройства изоляции в сопряжениях.

То же

Контрольно-измерительный инструмент: линейка, рулетка, двухметровая рейка.

Входной и операционный контроль осуществляют: мастер (прораб), инженер (лаборант) - в процессе работ.

Приемочный контроль осуществляют: работники службы качества, мастер(прораб), представители технадзора заказчика.

Технические требования
СНиП 3.04.01-87 п. 2.31, табл. 4

Допускаемые отклонения:

- поверхности при проверке двухметровой рейкой:

- по горизонтали - ±5 мм;

- толщины элемента покрытия от проектной - -50 ¸ +10%, но не более 3,0 мм.

Подвижность цементных растворов, см:

- при нанесении вручную - 10-12;

- при нанесении растворонасосами - 5-9;

- с применением пластификаторов - 10-12.

На устройство изоляции следует составлять акт освидетельствования скрытых работ.

Требования к качеству применяемых материалов

ГОСТ 10178-85*. Портландцемент и шлакопортландцемент. Технические условия.

ГОСТ 28013-98. Растворы строительные. Общие технические требования.

ГОСТ 11052-74. Цемент гипсоглиноземистый расширяющийся. Технические условия.

ГОСТ 969-91. Цементы глиноземистые и высокоглиноземистые. Технические условия.

Для гидроизоляционных покрытий должен использоваться цементно-песчаный раствор состава 1:2 - 1:4 на основе портландцемента марки 400 с уплотняющими и гидравлическими добавками, водонепроницаемого безусадочного цемента (ВБЦ) или водонепроницаемого расширяющегося цемента (ВРЦ).

В качестве заполнителя используется мелкозернистый песок с крупностью не более 0,5 мм.

При использовании портландцемента в состав раствора должны вводиться уплотняющие добавки:

- церазит в виде церазитового молока 1:10;

- алюминат натрия в количестве 1,5% от массы цемента;

- хлористое железо в количестве 0,3-1% от массы цемента в перерасчете на сухое вещество (вводится в виде водного раствора);

- жидкое стекло в количестве 1,5-2,5% от массы цемента в комбинации с 0,25% сульфитно-дрожжевой бражки (плотность стекла - 1,425 г/см3).

Каждая партия растворов, доставляемая с централизованных предприятий, должна иметь паспорт, в котором указывают дату и время приготовления, марку, подвижность.

Контроль качества применяемых растворов осуществляется путем освидетельствования их на месте производства работ, отбора проб и проведения испытаний.

Количественные характеристики качества раствора включают следующие показатели:

- подвижность, плотность, расслаиваемость;

- прочность, среднюю плотность, водопоглощение;

- морозостойкость.

Указания по производству работ
СНиП 3.04.01-87 пп. 1.2, 2.28-2.30

Гидроизоляция должна выполняться в соответствии с проектом. Замена предусмотренных проектом материалов и составов допускается только по согласованию с проектной организацией и заказчиком.

Цементные растворы необходимо укладывать по маячным рейкам слоями равномерной толщины (не более 75 мм) с уплотнением и заглаживанием поверхности слоя.

При устройстве цементной гидроизоляции из растворов с применением водонепроницаемых расширяющихся цементов (ВРЦ), водонепроницаемых безусадочных цементов (ВБЦ) или портландцемента с уплотняющими добавками составы следует наносить на смоченную водой поверхность основания.

Каждый последующий слой должен наноситься не позднее чем через 30 мин (при применении составов ВРЦ и ВБЦ) или не более чем через сутки (при применении составов на портландцементе с уплотняющими добавками) после отвердения предыдущего слоя.

Цементная гидроизоляция в течение двух суток после нанесения (1 ч при применении ВБЦ и ВРЦ) должна предохраняться от механических воздействий.

Увлажнение цементной гидроизоляции во время твердения должно осуществляться распыленной струей воды без напора при применении составов:

- ВРЦ и ВБЦ - через 1 ч после нанесения и через каждые 3 ч в течение суток;

- на портландцементе с уплотняющими добавками - через 8-12 ч после нанесения, а затем 2-3 раза в сутки в течение 14 дней.

Бетонные работы

Опалубочные работы

Состав операций и средства контроля

Этапы работ

Контролируемые операции

Контроль (метод, объем)

Документация

Подготовительные работы

Проверить:

- наличие документа о качестве на опалубку;

 

Визуальный

 

Паспорт (сертификат), общий журнал работ (журнал бетонных работ)

- наличие ППР на установку и приемку опалубки;

 То же

- качество подготовки и отметки несущего основания;

Визуальный, измерительный

- наличие и состояние крепежных элементов, средств подмащивания.

Визуальный

Сборка опалубки

Контролировать:

- соблюдение порядка сборки щитов опалубки, установки крепежных элементов, средств подмащивания, закладных элементов;

 

Технический осмотр

Общий журнал работ (журнал бетонных работ)

- плотность сопряжения щитов опалубки между собой и с ранее уложенным бетоном;

Измерительный, всех элементов

- соблюдение геометрических размеров и проектных наклонов плоскостей опалубки;

То же

- надежность крепления щитов опалубки.

Технический осмотр

Приемка опалубки

Проверить:

- соответствие геометрических размеров опалубки проектным;

 

Измерительный, всех элементов

Общий журнал работ (журнал бетонных работ)

- положение опалубки относительно разбивочных осей в плане и по вертикали, в т. ч. обозначение проектных отметок верха бетонируемой конструкции внутри поверхности опалубки;

Измерительный

- правильность установки и надежность крепления пробок и закладных деталей, а также всей системы в целом.

Технический осмотр

Контрольно-измерительный инструмент: рулетка, отвес строительный, нивелир, теодолит, линейка металлическая.

Операционный контроль осуществляют: мастер (прораб), геодезист - в процессе выполнения

Приемочный контроль осуществляют: работники службы качества, мастер (прораб), представители технадзора заказчика.

Технические требования
СНиП 3.03.01-87 п. 2.110, табл. 10

Прогиб собранной опалубки:

- вертикальных поверхностей - 1/400 пролета;

- перекрытий - 1/500 пролета.

Минимальная прочность бетона, незагруженных монолитных конструкций при распалубке поверхностей:

- вертикальных из условия сохранения формы - 0,2-0,3 МПа;

- горизонтальных и наклонных при пролете:

- до 6 м - 70% проектной;

- св. 6 м - 80% проектной.

Минимальная прочность бетона при распалубке загруженных конструкций, в том числе от вышележащего бетона, определяется ППР и согласовывается с проектной организацией.

На устройство опалубки сборно-монолитных конструкций составляется акт освидетельствования скрытых работ с инструментальной проверкой отметок и осей.

Монтаж инвентарной опалубки стен монолитного дома

Требования к качеству применяемых материалов

ГОСТ Р 52086-2003. Опалубка. Термины и определения.

ГОСТ Р 52085-2003. Опалубка. Общие технические условия.

Опалубка должна обладать прочностью, жесткостью, неизменяемостью формы и устойчивостью в рабочем положении, а также в условиях монтажа и транспортирования.

Для деревянной палубы должны применяться пиломатериалы хвойных пород по ГОСТ 8486-86*Е и листовых пород по ГОСТ 2695-83* не ниже II сорта.

Доски опалубки должны иметь ширину не более 150 мм.

Влажность древесины, применяемой для палубы, должна быть не более 18%, для поддерживающих элементов - не более 22%.

Элементы опалубки должны плотно прилегать друг к другу при сборке. Щели в стыковых соединениях не должны быть более 2 мм. На палубе щитов из фанеры не допускаются трещины, заусенцы и местные отклонения глубиной более 2 мм, на палубе из древесины - более 3 мм в количестве не более 3 на 1 м2.

При приемке опалубки необходимо проверить наличие паспорта с инструкцией по монтажу и эксплуатации опалубки, проверить геометрические размеры, качество рабочих поверхностей, защитной окраски поверхностей, не соприкасающихся с бетоном.

Типы опалубок должны применяться в соответствии с ГОСТ Р 52085-2003.

Указания по производству работ
СНиП 3.03.01-87 пп. 2.105, 2.109, табл. 10

Числовые значения отклонений точности установки и изготовления инвентарных опалубок приведены в таблице.

Интервалы размеров инвентарной опалубки, мм

Значения отклонения точности, мм

изготовления

установки

50-80

±0,37

±0,85

80-120

±0,44

±1,10

120-180

±0,50

±1,25

180-250

±0,58

±1,45

230-315

±0,65

±1,60

315-400

±0,70

±1,80

400-500

±0,78

±2,00

500-630

±0,88

±2,20

630-800

±1,00

±2,50

800-1000

±1,15

±2,80

1000-1250

±1,30

±3,30

1250-1600

±1,55

±3,80

1600-2000

±1,85

±4,60

2000-2500

±2,20

±5,50

Точность установки инвентарной опалубки уникальных и специальных сооружений должна определяться проектом.

Точность малооборачиваемой и (или) неинвентарной опалубки при возведении конструкций, к которым не предъявляются требования к поверхности, по согласованию с заказчиком может быть снижена по сравнению с требуемой в вышеприведенной таблице.

Перепады поверхностей, в том числе стыковых, для конструкций, готовых под окраску без шпаклевки, не должны превышать 2 мм.

Установка и приемка опалубки, распалубливание монолитных конструкций, очистка и смазка производятся по проекту производства работ.

Состав операций и средства контроля

Этапы работ

Контролируемые операции

Контроль (метод, объем)

Документация

Подготовительные работы

Проверить:

- наличие документа о качестве на опалубку;

 

Визуальный

Паспорта (сертификаты), общий журнал работ

- наличие ППР на установку и приемку опалубки;

То же

- наличие и состояние крепежных элементов, средств подмащивания.

- » -

Сборка опалубки

Контролировать:

- соблюдение порядка сборки щитов опалубки, установки крепежных элементов, средств подмащивания, закладных элементов;

 

Технический осмотр

Общий журнал работ

- плотность сопряжения щитов опалубки между собой и с ранее уложенным бетоном;

Измерительный, всех элементов

- соблюдение геометрических размеров и проектных наклонов плоскостей опалубки;

То же

- надежность крепления щитов опалубки.

Технический осмотр

Приемка опалубки

Проверить:

- соответствие геометрических размеров опалубки проектным;

 

Измерительный

Общий журнал работ (журнал бетонных работ)

- положение опалубки относительно разбивочных осей в плане и по вертикали, в т. ч. обозначение проектных отметок верха бетонируемой конструкции внутри поверхности опалубки;

Измерительный

- правильность установки и надежность крепления пробок и закладных деталей, а также всей системы в целом.

Технический осмотр

Контрольно-измерительный инструмент: нивелир, теодолит, рулетка, рейка-отвес.

Операционный контроль осуществляют: мастер (прораб), геодезист - в процессе работ.

Приемочный контроль осуществляют: работники службы качества, мастер (прораб), геодезист, представители заказчика.

Технические требования
СНиП 3.03.01-87 пп. 2.16, 3.7

Допускаемые отклонения:

- от совмещения ориентиров (рисок геометрических осей, граней) в нижнем сечении опалубки с установочными ориентирами (рисками геометрических осей или граней, рисками разбивочных осей) - ±5 мм;

- плоскости панели опалубки в верхнем сечении от вертикали - ±8 мм;

- люфт шарниров опалубки - 1 мм.

Перепады поверхностей на стыках частей опалубки не должны превышать:

- предназначенных под окраску - 2 мм;

- предназначенных под оклейку обоями - 1 мм.

Прогиб собранной опалубки вертикальных поверхностей - 1/400 пролета.

Минимальная прочность бетона при распалубке загруженных конструкций, в том числе от вышележащего бетона, определяется ППР и согласовывается с проектной организацией.

На устройство опалубки сборно-монолитных конструкций составляется акт освидетельствования скрытых работ с инструментальной проверкой отметок и осей.

Монтаж инвентарной опалубки перекрытий

Состав операций и средства контроля

Этапы работ

Контролируемые операции

Контроль (метод, объем)

Документация

Подготовительные работы

Проверить:

- наличие документа о качестве на опалубку;

 

Визуальный

Паспорта (сертификаты), общий журнал работ

- наличие ППР на установку и приемку опалубки;

 То же

- наличие и состояние крепежных элементов, средств подмашивания.

- » -

Сборка опалубки

Контролировать:

- соблюдение порядка сборки щитов опалубки, установки крепежных элементов, средств подмащивания, закладных элементов;

 

Технический осмотр

Общий журнал работ

- плотность сопряжения щитов опалубки между собой и с ранее уложенным бетоном;

Измерительный, всех элементов

- соблюдение геометрических размеров и проектных наклонов плоскостей опалубки;

То же

- надежность крепления щитов опалубки.

Технический осмотр

Приемка опалубки

Проверить:

- соответствие геометрических размеров опалубки проектным;

 

Измерительный

Общий журнал работ (журнал бетонных работ)

- положение опалубки относительно разбивочных осей в плане и по вертикали, в т. ч. обозначение проектных отметок верха бетонируемой конструкции внутри поверхности опалубки;

Измерительный

- правильность установки и надежность крепления пробок и закладных деталей, а также всей системы в целом.

Технический осмотр

Контрольно-измерительный инструмент: рейка-отвес, уровень строительный, линейка металлическая, нивелир, теодолит.

Операционный контроль осуществляют: мастер (прораб), геодезист - в процессе работ.

Приемочный контроль осуществляют: работники службы качества, мастер (прораб), представители технадзора заказчика.

Технические требования
СНиП 3.03.01-87 п. 2.110, табл. 10

Допускаемые отклонения:

- отметок установки опалубки перекрытия - 10 мм;

- люфт шарниров опалубки - 1 мм.

Перепады поверхностей на стыках частей опалубки не должны превышать.

- предназначенных под окраску - 2 мм;

- предназначенных под оклейку обоями - 1 мм.

Прогиб собранной опалубки перекрытий - 1/500 пролета.

Минимальная прочность бетона при распалубке загруженных конструкций, в том числе от вышележащего бетона, определяется ППР и согласовывается с проектной организацией.

На устройство опалубки сборно-монолитных конструкций составляется акт освидетельствования скрытых работ с инструментальной проверкой отметок и осей.

Требования к качеству применяемых материалов

ГОСТ Р 52086-2003. Опалубка. Термины и определения.

ГОСТ Р 52085-2003. Опалубка. Общие технические условия.

Опалубка должна обладать прочностью, жесткостью, неизменяемостью формы и устойчивостью в рабочем положении, а также в условиях монтажа и транспортирования.

Для деревянной палубы должны применяться пиломатериалы хвойных пород по ГОСТ 8486-86*Е и листовых пород по ГОСТ 2695-83* не ниже II сорта.

Доски опалубки должны иметь ширину не более 150 мм.

Влажность древесины, применяемой для палубы, должна быть не более для поддерживающих элементов - не более 22%.

Элементы опалубки должны плотно прилегать друг к другу при сборке. Щели в стыковых соединениях не должны быть более 2 мм. На палубе щитов из фанеры не допускаются трещины, заусенцы и местные отклонения глубиной более 2 мм, на палубе из древесины - более 3 мм в количестве не более 3 на 1 м2.

При приемке опалубки необходимо проверить наличие паспорта с инструкцией по монтажу и эксплуатации опалубки, проверить геометрические размеры, качество рабочих поверхностей, защитной окраски поверхностей, не соприкасающихся с бетоном.

Типы опалубок должны применяться в соответствии с ГОСТ Р 52085-2003.

Указания по производству работ
СНиП 3.03.01-87 пп. 2.105, 2.109, табл. 10

Числовые значения отклонений точности установки и изготовления инвентарных опалубок приведены в таблице.

Интервалы размеров инвентарной опалубки, мм

Значения отклонения точности, мм

изготовления

установки

50-80

±0,37

±0,85

80-120

±0,44

±1,10

120-180

±0,50

±1,25

180-250

±0,58

±1,45

230-315

±0,65

±1,60

315-400

±0,70

±1,80

400-500

±0,78

±2,00

500-630

±0,88

±2,20

630-800

±1,00

±2,50

800-1000

±1,15

±2,80

1000-1250

±1,30

±3,30

1250-1600

±1,55

±3,80

1600-2000

±1,85

±4,60

2000-2500

±2,20

±5,50

Точность установки инвентарной опалубки уникальных и специальных сооружений должна определяться проектом.

Установка и приемка опалубки, распалубливание монолитных конструкций, очистка и смазка производятся по проекту производства работ.

Арматурные работы

Состав операций и средства контроля

Этапы работ

Контролируемые операции

Контроль (метод, объем)

Документация

Подготовительные работы

Проверить:

- наличие документа о качестве;

 

Визуальный

Паспорт (сертификат), общий журнал работ

- качество арматурных изделий (при необходимости провести требуемые замеры и отбор проб на испытания);

Визуальный, измерительный

- качество подготовки и отметки несущего основания;

То же

- правильность установки и закрепления опалубки.

Технический осмотр

Установка арматурных изделий

Контролировать:

- порядок сборки элементов арматурного каркаса, качество выполнения сварки (вязки) у3.10в каркаса;

 

Технический осмотр всех элементов

Общий журнал работ

- точность установки арматурных изделий в плане и по высоте, надежность их фиксации;

То же

- величину защитного слоя бетона.

- » -

Приемка выполненных работ

Проверить:

- соответствие положения установленных арматурных изделий проектному;

 

Визуальный, измерительный

Акт освидетельствования скрытых работ

- величину защитного слоя бетона;

Измерительный

- надежность фиксации арматурных изделий в опалубке;

Технический осмотр всех элементов

- качество выполнения сварки (вязки) узлов каркаса.

То же

Контрольно-измерительный инструмент: отвес, рулетка металлическая, линейка металлическая.

Операционный контроль осуществляют: мастер (прораб).

Приемочный контроль осуществляют: работники службы качества, мастер (прораб), представители технадзора заказчика.

Технические требования
СНиП 3.03.01-87 табл. 9

Допускаемые отклонения:

1) В расстоянии между отдельно установленными рабочими стержнями для:

- колонн и балок - ±10 мм;

- плит и стен фундаментов - ±20 мм;

- массивных конструкций - ±30 мм.

2) В расстоянии между рядами арматуры для:

- плит и балок толщиной до 1 м - ±10 мм;

- конструкций толщиной более 1 м - ±20 мм.

3) При армировании конструкций отдельными стержнями, установленными внахлестку без сварки, длина нахлестки определяется проектом

4) При армировании конструкции сварными сетками и каркасами допускается установка их без сварки путем перепуска на длину, указанную в проекте, но не менее 250 мм.

5) Суммарной длины сварных швов на стыке стержней внахлестку или на каждой половине стыка с накладками:

- для стержней класса A-I:

- при двухсторонних швах - 3 мм;

- при односторонних швах - 6 мм;

- для стержней класса A-II и A-IV:

- при двухсторонних швах - 4 мм;

- при односторонних швах - 8 мм.

6) От проекта толщины защитного слоя бетона - в соответствии с таблицей.

Технические параметры

Предельные отклонения, мм

Толщина защитного слоя до 15 мм и размеры поперечного сечения конструкции, мм:

 

до 100;

+4

от 101 до 200

+5

Толщина защитного слоя от 16 до 20 мм и размеры поперечного сечения конструкции, мм:

 

до 100;

+4; -3

от 101 до 200;

+8; -3

от 201 до 300;

+10; -3

свыше 300

+15; -5

Толщина защитного слоя свыше 20 мм и размеры поперечного сечения конструкции, мм:

 

до 100;

+4; -5

от 101 до 200;

+8; -5

от 201 до 300;

+10; -5

свыше 300

+15; -5

На арматурные работы необходимо составлять акты освидетельствования скрытых работ.

Требования к качеству применяемых материалов

ГОСТ 10922-90. Арматурные и закладные изделия сварные, соединения сварные арматуры и закладных изделий железобетонных конструкций. Общие технические условия.

ГОСТ 8478-81. Сетки сварные для железобетонных конструкций. Технические условия.

Предельные отклонения размеров арматурных изделий от проектных, мм:

- габаритный размер и расстояние между крайними стержнями по длине арматурного изделия:

до 4500 мм - ±10;

свыше 4500 до 9000 мм - ±15;

свыше 9000 до 15000 мм - ±20;

свыше 15000 мм - ±25.

- то же по ширине:

до 1500 мм - ±10;

свыше 1500 мм - ±10.

- то же по высоте:

до 100 мм - +3; -5;

свыше 100 до 250 мм - +5; -7;

свыше 250 до 400 мм - +7; -10;

свыше 400 мм - +10; -15.

- расстояние между стержнями:

до 50 мм - ±2;

свыше 50 до 100 мм - ±5;

выше 100 мм - ±10.

Предельные отклонения для сеток, мм:

- ширины, размеров ячеек, разницы в длине диагоналей плоских сеток, свободных концов стержней - ±10;

- длины плоских сеток - ±15.

Предельные отклонения от прямолинейности стержней сеток:

- не должны превышать 6 мм на 1 м длины сетки.

Отклонения размеров и параметров закладных деталей от проектных:

- не должны превышать ±5 мм:

Предельные отклонения в отметках закладных элементов, служащих опорами для металлических или сборных железобетонных колонн и других сборных элементов:

- не должны превышать 5 мм.

Кромки плоских элементов закладных деталей не должны иметь заусенцев, завалов и шероховатостей, превышающих 2 мм.

На элементах арматурных изделий и закладных деталей не должно быть отслаивающихся ржавчины и окалины, а также следов масла, битума и других загрязнений.

Указания по производству работ
СНиП 3.03.01-87 пп. 2.97, 2.98, 2.100-2.102

Заготовку стержней мерной длины из стержневой и проволочной арматуры и изготовление арматурных изделий следует выполнять в соответствии с требованиями СНиП 3.09.01-85.

Изготовление пространственных крупногабаритных арматурных изделий следует производить в сборочных кондукторах.

Бессварочные соединения стержней следует производить:

- стыковые - внахлестку или обжимными гильзами и винтовыми муфтами с обеспечением равнопрочности стыка;

- крестообразные - дуговыми прихватками или вязкой отожженной проволокой. Допускается применение специальных соединительных элементов (пластмассовые и проволочные фиксаторы).

Монтаж арматурных конструкций следует производить преимущественно из крупноразмерных блоков или унифицированных сеток заводского изготовления с обеспечением фиксации защитного слоя.

Установка на арматурных конструкциях пешеходных, транспортных или монтажных устройств должна осуществляться по проекту производства работ по согласованию с проектной организацией.

Укладка бетонных смесей

Состав операций и средства контроля

Этапы работ

Контролируемые операции

Контроль (метод, объем)

Документация

Подготовительные работы

Проверить:

- наличие актов на ранее выполненные скрытые работы;

 

Визуальный

Общий журнал работ, акт приемки ранее выполненных работ, паспорта (сертификаты)

- правильность установки и надежность закрепления опалубки, поддерживающих лесов, креплений и подмостей;

Технический осмотр

- подготовленность всех механизмов и приспособлений, обеспечивающих производство бетонных работ;

Визуальный

- чистоту основания или ранее уложенного слоя бетона и внутренней поверхности опалубки;

То же

- наличие на внутренней поверхности опалубки смазки;

- » -

- состояние арматуры и закладных деталей (наличие ржавчины, масла и т. д.), соответствие положения установленных арматурных изделий проектному;

Технический осмотр, измерительный

- выноску проектной отметки верха бетонирования на внутренней поверхности опалубки.

Измерительный

Укладка бетонной смеси, твердение бетона, распалубка

Контролировать:

- качество бетонной смеси;

 

Лабораторный (до укладки в конструкцию)

Общий журнал работ, журнал бетонных работ

- состояние опалубки;

Технический осмотр

- высоту сбрасывания бетонной смеси, толщину укладываемых слоев, шаг перестановки глубинных вибраторов, глубину их погружения, продолжительность вибрирования, правильность выполнения рабочих швов;

Измерительный, 2 раза в смену

- температурно-влажностный режим твердения бетона согласно требованиям ППР;

Измерительный, в местах, определенных ППР

- фактическую прочность бетона и сроки распалубки

Измерительный, не менее одного раза на весь объем распалубки

Приемка выполненных работ

Проверить:

- фактическую прочность бетона;

 

Лабораторный

Общий журнал работ, геодезическая исполнительная схема

- качество поверхности конструкций, геометрические ее размеры, соответствие проектному положению всей конструкции, а также отверстий, каналов, проемов, закладных деталей

Визуальный, измерительный, каждый элемент конструкции

Контрольно-измерительный инструмент: отвес строительный, рулетка, линейка металлическая, нивелир.

Операционный контроль осуществляют: мастер (прораб), инженер лабораторного поста - в процессе выполнения работ.

Приемочный контроль осуществляют: работники службы качества, мастер (прораб), представители технадзора заказчика.

Технические требования
СНиП 3.03.01-87 пп. 2.8, 2.10-2.14, табл. 2

Высота свободного сбрасывания бетонной смеси в опалубку конструкции, м, не более:

- колонн - 5,0 м;

- перекрытий - 1,0м;

- стен - 4,5 м;

- неармированных конструкций - 6,0 м.

Верхний уровень уложенной бетонной смеси должен быть на 50-70 мм ниже верха щитов опалубки.

Толщина укладываемых слоев бетонной смеси:

- при уплотнении смеси тяжелыми подвесными вертикально расположенными вибраторами - на 5-10 см меньше длины рабочей части вибратора;

- при уплотнении смеси подвесными вибраторами, расположенными под углом к вертикали (до 30°) - не более вертикальной проекции длины рабочей части вибратора;

- при уплотнении смеси ручными глубинными вибраторами - не более 1,25 длины рабочей части вибратора;

- при уплотнении смеси поверхностными вибраторами в конструкциях:

- неармированных - 70 см;

- с одиночной арматурой - 25 см;

- с двойной арматурой - 12 см.

Требования к качеству применяемых материалов

ГОСТ 7473-94. Смеси бетонные. Технические условия.

Каждая партия бетонной смеси, отправляемая потребителю, должна иметь документ о качестве, в котором должны быть указаны:

- изготовитель, дата и время отправки бетонной смеси;

- вид бетонной смеси и ее условное обозначение;

- номер состава бетонной смеси, класс или марка бетона по прочности на сжатие в проектном возрасте;

- то же по прочности на растяжение при изгибе;

- коэффициент вариаций прочности бетона, требуемая прочность бетона;

- вид и объем доставок;

- наибольшая крупность заполнителя, удобоукладываемость бетонной смеси у места укладки;

- номер сопроводительного документа;

- гарантии изготовителя;

- другие показатели (при необходимости).

Результаты испытаний контрольных образцов бетона в проектном или другом требуемом возрасте изготовитель обязан сообщить потребителю по его требованию не позднее чем через 3 сут. после проведения испытаний.

При входном контроле бетонной смеси на строительной площадке необходимо:

- проверить наличие документа о качестве на бетонную смесь и требуемых в нем данных;

- путем внешнего осмотра убедиться в отсутствии признаков расслоения бетонной смеси, в наличии в бетонной смеси требуемых фракций крупного заполнителя, в соответствии требуемой ее пластичности;

- при возникновении сомнений в качестве бетонной смеси потребовать контрольной проверки ее соответствия требованиям государственного стандарта и проекта.

Указания по производству работ
СНиП 3.03.01-87 пп. 2.8, 2.10-2.13

Перед бетонированием горизонтальные и наклонные бетонные поверхности рабочих швов должны быть очищены от мусора, грязи, масел, снега, льда, цементной пленки.

Перед укладкой бетонной смеси очищенные поверхности должны быть промыты водой и просушены струей воздуха.

Бетонные смеси следует укладывать в бетонируемые конструкции горизонтальными слоями одинаковой толщины без разрывов, с последовательным направлением укладки в одну сторону во всех слоях.

Укладка следующего слоя бетонной смеси допускается до начала схватывания бетона предыдущего слоя. Продолжительность перерыва между укладкой смежных слоев бетонной смеси без образования рабочего шва устанавливается строительной лабораторией.

При уплотнении бетонной смеси не допускается опирание вибратора на арматуру и закладные изделия, элементы крепления опалубки.

Поверхность рабочих швов, устраиваемых при укладке бетонной смеси с перерывами, должна быть перпендикулярна оси бетонируемых колонн и балок, поверхности плит и стен. Возобновление бетонирования допускается производить по достижении бетоном прочности не менее 1,5 МПа.

Устройство монолитных бетонных и железобетонных стен

Состав операций и средства контроля

Этапы работ

Контролируемые операции

Контроль (метод, объем)

Документация

Подготовительные работы

Проверить:

- наличие актов на ранее выполненные скрытые работы;

 

Визуальный

Общий журнал работ, акт освидетельствования скрытых работ

- правильность установки и надежность закрепления опалубки, поддерживающих лесов, креплений и подмостей;

Технический осмотр

- подготовленность всех механизмов и приспособлений, обеспечивающих производство бетонных работ;

Визуальный

- чистоту основания или ранее уложенного слоя бетона и внутренней поверхности опалубки;

То же

- состояние арматуры и закладных деталей (наличие ржавчины, масла и т. д.), соответствие положения установленных арматурных изделий проектному;

Технический осмотр, измерительный

- выноску проектной отметки верха бетонирования на внутренней поверхности опалубки.

Измерительный

Укладка бетонной смеси, твердение бетона, распалубка

Контролировать:

- качество бетонной смеси;

 

Лабораторный (до укладки в конструкцию)

Общий журнал работ, журнал бетонных работ

- состояние опалубки;

Технический осмотр

- высоту сбрасывания бетонной смеси, толщину укладываемых слоев, шаг перестановки глубинных вибраторов, глубину их погружения, продолжительность вибрирования, правильность выполнения рабочих швов;

Измерительный, 2 раза в смену

- температурно-влажностный режим твердения бетона;

Измерительный, в местах, определенных ППР

- фактическую прочность бетона и сроки распалубки.

Измерительный

Приемка выполненных работ

Проверить:

- фактическую прочность бетона;

 

Лабораторный

Общий журнал работ, геодезическая исполнительная схема, акт приемки

- качество поверхности конструкций;

Визуальный

- качество применяемых в конструкции материалов и изделий;

То же

- геометрические размеры, соответствие конструкции рабочим чертежам.

Измерительный, каждый элемент конструкции

Контрольно-измерительный инструмент: отвес строительный, рулетка, линейка металлическая, нивелир, 2-метровая рейка.

Операционный контроль осуществляют: мастер (прораб), инженер лабораторного поста, геодезист - в процессе выполнения работ.

Приемочный контроль осуществляют: работники службы качества, мастер (прораб), представители технадзора заказчика.

Технические требования
СНиП 3.03.01-87 п. 2.113, табл. 11

Допускаемые отклонения:

Линий плоскостей пересечения от вертикали или проектного наклона на всю высоту конструкции:

- стен, поддерживающих монолитные покрытия и перекрытия, - 15 мм;

- стен, поддерживающих сборные балочные конструкции, - 10 мм;

- стен зданий и сооружений, возводимых в скользящей опалубке, при отсутствии промежуточных перекрытий - 1/500 высоты сооружений, но не более 100 мм;

- стен зданий и сооружений, возводимых в скользящей опалубке, при наличии промежуточных перекрытий - 1/1000 высоты сооружения, но не более 50 мм;

- местных неровностей поверхности бетона при проверке двухметровой рейкой, кроме опорных поверхностей, - 5 мм;

- горизонтальных плоскостей на всю длину выверяемого участка - 20 мм;

- длины - 20 мм;

- размера поперечного сечения - +6 мм, -3 мм;

- отметок поверхностей и закладных изделий, служащих опорами - 5 мм.

Разница отметок по высоте на стыке двух смежных поверхностей - 3 мм.

Минимальная прочность бетона при распалубке стен, МПа:

- незагруженных - 0,2-0,3;

- загруженных - по проекту или ППР.

Требования к качеству применяемых материалов

ГОСТ 7473-94. Смеси бетонные. Технические условия.

ГОСТ 26633-91. Бетоны тяжелые и мелкозернистые. Технические условия.

Каждая партия бетонной смеси, отправляемая потребителю, должна иметь документ о качестве, в котором должны быть указаны:

- изготовитель, дата и время отправки бетонной смеси;

- вид бетонной смеси и ее условное обозначение;

- номер состава бетонной смеси, класс бетона по прочности на сжатие;

- марка по средней плотности (для легких бетонов);

- вид и объем добавок;

- наибольшая крупность заполнителя, удобоукладываемость бетонной смеси;

- номер сопроводительного документа;

- гарантии изготовителя;

- другие показатели (при необходимости).

Применяемые способы транспортирования бетонной смеси должны исключать возможность попадания в смесь атмосферных осадков, нарушения однородности, потери цементного раствора, а также обеспечивать предохранение смеси в пути от вредного воздействия ветра и солнечных лучей.

Максимальная продолжительность транспортирования смесей - 90 минут. Расслоившаяся растворная смесь должна быть перемешана на месте работ.

При входном контроле бетонной смеси на строительной площадке необходимо:

- проверить наличие паспорта на бетонную смесь и требуемых в нем данных;

- путем внешнего осмотра убедиться в отсутствии признаков расслоения бетонной смеси, в наличии в бетонной смеси требуемых фракций крупного заполнителя;

- при возникновении сомнений в качестве бетонной смеси потребовать контрольной проверки по ГОСТ 10181-2002.

Транспортирование и подача бетонных смесей должны осуществляться специализированными средствами, обеспечивающими сохранение заданных свойств бетонной смеси. Запрещается добавлять воду на месте укладки бетонной смеси для компенсации ее подвижности.

Указания по производству работ
СНиП 3.03.01-87 пп. 2.8, 2.10-2.16, 2.109, 2.110

Перед бетонированием основания горизонтальные и наклонные бетонные поверхности рабочих швов должны быть очищены от мусора, грязи, масел, снега и льда, цементной пленки и др. Непосредственно перед укладкой бетонной смеси очищенные поверхности должны быть промыты водой и просушены струей воздуха.

Все конструкции и их элементы, закрываемые в процессе бетонирования (подготовленные основания конструкций, арматура, закладные изделия и др., а также правильность установки и закрепления опалубки и поддерживающих ее элементов), должны быть приняты и оформлены актом освидетельствования скрытых работ.

Высота свободного сбрасывания бетонной смеси в опалубку конструкций - не более 4,5 м.

Бетонные смеси должны укладываться в бетонируемые конструкции горизонтальными слоями одинаковой толщины без разрывов, с последовательным направлением укладки в одну сторону во всех слоях.

Толщина укладываемых слоев бетонной смеси:

- при уплотнении смеси тяжелыми подвесными вертикально расположенными вибраторами - на 5-10 см меньше длины рабочей части вибратора;

- при уплотнении смеси ручными глубинными вибраторами - не более 1,25 длины рабочей части вибратора.

При уплотнении бетонной смеси не допускается опирание вибраторов на арматуру и закладные изделия, тяжи и другие элементы крепления опалубки. Шаг перестановки глубинных вибраторов не должен превышать полуторный радиус их действия.

Укладка следующего слоя бетонной смеси допускается до начала схватывания бетона предыдущего слоя. Продолжительность перерыва между укладкой смежных слоев бетонной смеси без образования рабочего шва устанавливается строительной лабораторией. Верхний уровень уложенной бетонной смеси должен быть на 50-70 мм ниже верха щитов опалубки.

Мероприятия по уходу за бетоном, контроль за их выполнением и сроки распалубки должны устанавливаться ППР.

Минимальная прочность бетона при распалубке должна быть не менее 0,2-0,3 МПа.

Приемку конструкций следует оформлять в установленном порядке актом освидетельствования скрытых работ или актом на приемку ответственных конструкций.

Устройство монолитных бетонных и железобетонных колонн

Состав операций и средства контроля

Этапы работ

Контролируемые операции

Контроль (метод, объем)

Документация

Подготовительные работы

Проверить:

- наличие актов на ранее выполненные скрытые работы;

 

Визуальный

Общий журнал работ, акт освидетельствования скрытых работ

- правильность установки и надежность закрепления опалубки, поддерживающих лесов, креплений и подмостей;

Технический осмотр

- подготовленность всех механизмов и приспособлений, обеспечивающих производство бетонных работ;

Визуальный

- чистоту основания или ранее уложенного слоя бетона и внутренней поверхности опалубки;

То же

- состояние арматуры и закладных деталей (наличие ржавчины, масла и т. д.), соответствие их положения проектному;

Технический осмотр, измерительный

- выноску проектной отметки верха бетонирования на внутренней поверхности опалубки.

Измерительный

Укладка бетонной смеси, твердение бетона, распалубка

Контролировать:

 

Общий журнал работ, журнал бетонных работ

- качество бетонной смеси;

Лабораторный (до укладки в конструкцию)

 - состояние опалубки;

Технический осмотр

- высоту сбрасывания бетонной смеси, толщину укладываемых слоев, глубину погружения вибраторов, продолжительность вибрирования;

Измерительный, 2 раза в смену

- фактическую прочность бетона и сроки распалубки

Измерительный

Приемка выполненных работ

Проверить:

- фактическую прочность бетона;

 

Лабораторный анализ

Общий журнал работ, акт приемки выполненных работ

- качество поверхности конструкций;

Визуальный

- качество применяемых в конструкции материалов и изделий;

То же

- геометрические размеры, соответствие конструкции рабочим чертежам.

Измерительный, каждый элемент

Контрольно-измерительный инструмент: отвес строительный, теодолит, рулетка, линейка металлическая, нивелир, 2-метровая рейка.

Операционный контроль осуществляют: мастер (прораб), инженер лабораторного поста, геодезист - в процессе работ.

Приемочный контроль осуществляют: работники службы качества, мастер (прораб), представители технадзора заказчика.

Технические требования
СНиП 3.03.01-87 пп. 2.112, 2.113, табл. 11

Допускаемые отклонения:

- плоскостей от вертикали или проектного наклона на всю высоту колонн:

- поддерживающих монолитные покрытия и перекрытия - 15 мм;

- поддерживающих сборные балочные конструкции - 10 мм;

- длины колонн - ±20 мм;

- поперечного сечения - +6 мм, -3 мм;

- местных неровностей стен поверхности бетона при проверке двухметровой рейкой, кроме опорных поверхностей, - 5 мм;

- отметок поверхностей и закладных изделий, служащих опорами, - 5 мм.

Минимальная прочность бетона при распалубке стен, МПа:

- незагруженных - 0,2-0,3;

- загруженных - по проекту или ППР.

Приемку конструкций следует оформлять в установленном порядке актом освидетельствования скрытых работ или актом на приемку ответственных конструкций.

Требования к качеству применяемых материалов

ГОСТ 7473-94. Смеси бетонные. Технические условия.

ГОСТ 26633-91. Бетоны тяжелые и мелкозернистые. Технические условия.

Каждая партия бетонной смеси, отправляемая потребителю, должна иметь документ о качестве, в котором должны быть указаны:

- изготовитель, дата и время отправки бетонной смеси;

- вид бетонной смеси и ее условное обозначение;

- номер состава бетонной смеси, класс бетона по прочности на сжатие;

- марка по средней плотности (для легких бетонов);

- вид и объем добавок;

- наибольшая крупность заполнителя, удобоукладываемость бетонной смеси;

- номер сопроводительного документа;

- гарантии изготовителя;

- другие показатели (при необходимости).

Применяемые способы транспортирования бетонной смеси должны исключать возможность попадания в смесь атмосферных осадков, нарушения однородности, потери цементного раствора, а также обеспечивать предохранение смеси в пути от вредного воздействия ветра и солнечных лучей.

Максимальная продолжительность транспортирования смесей - 90 минут. Расслоившаяся смесь должна быть перемешана на месте работ.

При входном контроле бетонной смеси на строительной площадке необходимо:

- проверить наличие паспорта на бетонную смесь и требуемых в нем данных;

- путем внешнего осмотра убедиться в отсутствии признаков расслоения бетонной смеси, в наличии в бетонной смеси требуемых фракций крупного заполнителя;

- при возникновении сомнений в качестве бетонной смеси потребовать контрольной проверки по ГОСТ 10181-2002.

Транспортирование и подача бетонных смесей должны осуществляться специализированными средствами, обеспечивающими сохранение заданных свойств бетонной смеси. Запрещается добавлять воду на месте укладки бетонной смеси для компенсации ее подвижности.

Указания по производству работ
СНиП 3.03.01-87 пп. 2.8, 2.10-2.16, 2.109, 2.110

Перед бетонированием основания бетонные поверхности рабочих швов должны быть очищены от мусора, грязи, масел, снега и льда, цементной пленки и др. Непосредственно перед укладкой бетонной смеси очищенные поверхности должны быть промыты водой и просушены струей воздуха.

Подготовленные арматура, закладные изделия, а также правильность установки и закрепления опалубки и поддерживающих ее элементов должны быть приняты и оформлены актом освидетельствования скрытых работ.

Высота свободного сбрасывания бетонной смеси в опалубку конструкций - не более 5,0 м.

Бетонные смеси должны укладываться в бетонируемые конструкции горизонтальными слоями одинаковой толщины без разрывов, с последовательным направлением укладки в одну сторону во всех слоях.

При бетонировании колонн сверху нижний слой толщиной около 300 мм укладывают из бетонной смеси с мелким щебнем (иначе внизу получается бетон с раковинами). При сбрасывании следующей порции смеси наиболее крупные камни втапливаются в этот раствор, в результате чего образуется смесь нормального состава.

Уплотнение бетонной смеси в колоннах производится внутренними вибраторами с жестким или гибким валом.

Колонны бетонируют на всю высоту этажа без перерыва. Рабочие швы могут устраиваться только либо у самого низа колонн (на уровне верха фундамента), либо вверху колонны, на несколько сантиметров ниже уровня примыкания балок перекрытия.

При уплотнении бетонной смеси не допускается опирание вибраторов на арматуру и закладные изделия, элементы крепления опалубки. Глубина погружения глубинного вибратора в бетонную смесь должна обеспечивать углубление его в ранее уложенный слой на 5-10 см. Шаг перестановки глубинных вибраторов не должен превышать полуторный радиус их действия.

Верхний уровень уложенной бетонной смеси должен быть на 50-70 мм ниже верха щитов опалубки.

Поверхность рабочих швов, устраиваемых при укладке бетонной смеси с перерывами, должна быть перпендикулярна оси бетонируемых колонн. Возобновление бетонирования допускается производить по достижении бетоном прочности не менее 1,5 МПа.

Мероприятия по уходу за бетоном, контроль за их выполнением и сроки распалубки должны устанавливаться ППР.

Устройство монолитных бетонных и железобетонных фундаментов

Состав операций и средства контроля

Этапы работ

Контролируемые операции

Контроль (метод, объем)

Документация

Подготовительные работы

Проверить:

 

Общий журнал работ, акт освидетельствования скрытых работ

- правильность установки и надежность закрепления опалубки, поддерживающих лесов, креплений;

Технический осмотр

- подготовленность всех механизмов и приспособлений, обеспечивающих производство бетонных работ;

Визуальный

- соответствие отметки основания требованиям проекта;

Измерительный

- чистоту основания или ранее уложенного слоя бетона и внутренней поверхности опалубки;

Визуальный

- состояние арматуры и закладных деталей (наличие ржавчины, масла и т. д.), соответствие положения установленных арматурных изделий проектному

Технический осмотр, измерительный

- выноску проектной отметки верха бетонирования на внутренней поверхности опалубки.

Измерительный

Укладка бетонной смеси твердение бетона, распалубка

Контролировать:

 

Общий журнал работ

- качество бетонной смеси;

Лабораторный

- состояние опалубки;

Технический осмотр

- высоту сбрасывания бетонной смеси, толщину укладываемых слоев, шаг перестановки глубинных вибраторов, глубину их погружения, продолжительность вибрирования, правильность выполнения рабочих швов;

Измерительный, 2 раза в смену

- температурно-влажностный режим твердения бетона;

Измерительный

- фактическую прочность бетона и сроки распалубки.

То же

Приемка выполненных работ

Проверить:

 

Общий журнал работ, акт приемки выполненных работ

- фактическую прочность бетона;

Лабораторный

- качество поверхности конструкций;

Визуальный

- качество применяемых в конструкции материалов и изделий;

То же

- геометрические ее размеры, соответствие конструкции рабочим чертежам.

Измерительный, каждый элемент конструкции

Контрольно-измерительный инструмент: отвес строительный, теодолит, рулетка, линейка металлическая, нивелир, 2-метровая рейка.

Операционный контроль осуществляют: мастер (прораб), инженер лабораторного поста - в процессе выполнения работ.

Приемочный контроль осуществляют: работники службы качества, мастер(прораб), представители технадзора заказчика.

Технические требования
СНиП 3.03.01-87 пп. 2.112, 2.113, табл. 11

Допускаемые отклонения:

- плоскостей от вертикали или проектного наклона на всю высоту фундаментов - 20 мм;

- отметок поверхностей и закладных изделий, служащих опорами для сборных железобетонных колонн и других сборных элементов, - 5 мм;

- горизонтальных плоскостей на всю длину выверяемого участка - 20 мм;

- уклона опорных поверхностей фундаментов при опирании стальных колонн без подливки - 0,0007;

- местных неровностей поверхности бетона при проверке двухметровой рейкой, кроме опорных поверхностей, - 5 мм;

- длины элементов - ±20 мм;

- поперечного сечения элементов - +6 мм, -3 мм;

- расположения анкерных болтов:

- в плане внутри контура опоры - 5 мм;

- в плане вне контура опоры - 10 мм;

- по высоте контура опоры - +20 мм;

- разницы отметок по высоте на стыке двух смежных поверхностей - 3 мм.

Приемку конструкций следует оформлять в установленном порядке актом освидетельствования скрытых работ или актом на приемку ответственных конструкций.

Требования к качеству применяемых материалов

ГОСТ 7473-94. Смеси бетонные. Технические условия.

ГОСТ 26633-91. Бетоны тяжелые и мелкозернистые. Технические условия.

Каждая партия бетонной смеси, отправляемая потребителю, должна иметь документ о качестве, в котором должны быть указаны:

- изготовитель, дата и время отправки бетонной смеси;

- вид бетонной смеси и ее условное обозначение;

- номер состава бетонной смеси, класс бетона по прочности на сжатие;

- марка по средней плотности (для легких бетонов);

- вид и объем добавок;

- наибольшая крупность заполнителя, удобоукладываемость бетонной смеси;

- номер сопроводительного документа;

- гарантии изготовителя;

- другие показатели при необходимости.

Применяемые способы транспортирования бетонной смеси должны исключать возможность попадания в смесь атмосферных осадков, нарушения однородности, потери цементного раствора, а также обеспечивать предохранение смеси в пути от вредного воздействия ветра и солнечных лучей.

Максимальная продолжительность транспортирования смесей - 90 минут. Расслоившаяся смесь должна быть перемешана на месте работ.

При входном контроле бетонной смеси на строительной площадке необходимо:

- проверить наличие паспорта на бетонную смесь и требуемых в нем данных;

- путем внешнего осмотра убедиться в отсутствии признаков расслоения бетонной смеси, в наличии в бетонной смеси требуемых фракций крупного заполнителя;

- при возникновении сомнений в качестве бетонной смеси потребовать контрольной проверки по ГОСТ 10181-2002.

Транспортирование и подача бетонных смесей должны осуществляться специализированными средствами, обеспечивающими сохранение заданных свойств бетонной смеси. Запрещается добавлять воду на месте укладки бетонной смеси для компенсации ее подвижности.

Указания по производству работ
СНиП 3.03.01-87 пп. 2.8-2.16, 2.109, 2.110

Перед бетонированием основания, горизонтальные и наклонные бетонные поверхности рабочих швов должны быть очищены от мусора, грязи, масел, снега и льда, цементной пленки и др. Непосредственно перед укладкой бетонной смеси очищенные поверхности должны быть промыты водой и просушены струей воздуха.

Все конструкции и их элементы, закрываемые в процессе последующего производства работ (подготовленные основания конструкций, арматура, закладные изделия и др., а также правильность установки и закрепления опалубки и поддерживающих ее элементов), должны быть приняты по акту.

Высота свободного сбрасывания бетонной смеси в опалубку слабоармированных конструкций не более 4,5 м.

Бетонные смеси должны укладываться в бетонируемые конструкции горизонтальными слоями одинаковой толщины без разрывов, с последовательным направлением укладки в одну сторону во всех слоях.

Толщина укладываемых слоев бетонной смеси:

- при уплотнении смеси тяжелыми подвесными вертикально расположенными вибраторами - на 5-10 см меньше длины рабочей части вибратора;

- при уплотнении смеси ручными глубинными вибраторами - не более 1,25 длины рабочей части вибратора.

При уплотнении бетонной смеси не допускается опирание вибраторов на арматуру и закладные изделия, тяжи и другие элементы крепления опалубки. Глубина погружения глубинного вибратора в бетонную смесь должна обеспечивать углубление его в ранее уложенный слой на 5-10 см. Шаг перестановки глубинных вибраторов не должен превышать полуторный радиус их действия, поверхностных вибраторов - должен обеспечивать перекрытие на 100 мм площадкой вибратора границы уже провибрированного участка.

Укладка следующего слоя бетонной смеси допускается до начала схватывания бетона предыдущего слоя. Продолжительность перерыва между укладкой смежных слоев бетонной смеси без образования рабочего шва устанавливается строительной лабораторией. Верхний уровень уложенной бетонной смеси должен быть на 50-70 мм ниже верха щитов опалубки.

Мероприятия по уходу за бетоном, контроль за их выполнением и сроки распалубки должны устанавливаться ППР.

Минимальная прочность бетона при распалубке незагруженных конструкций 0,2-0,3 МПа.

Каменные работы

Кладка перегородок

Состав операций и средства контроля

Этапы работ

Контролируемые операции

Контроль (метод, объем)

Документация

Подготовительные работы

Проверить:

 

Паспорта, (сертификат), общий журнал работ

- наличие документа о качестве на партию кирпича, раствора, соответствие их вида, марки и качества требованиям проекта, стандарта;

Визуальный, лабораторный

- очистку основания под кладку от мусора, грязи, снега и наледи;

Визуальный, измерительный

- правильность разбивки осей.

 

Кладка перегородок

Контролировать:

 

Общий журнал работ

- толщину конструкций перегородок поверхностей;

Измерительный, после каждых 10 м кладки

- ширину проемов;

То же

- толщину швов кладки;

- » -

- смещение осей перегородок от разбивочных осей;

Измерительный, каждая ось

- отклонение поверхностей и углов кладки от вертикали, отклонение рядов кладки от горизонтали;

Измерительный, после каждых 10 м кладки

- неровности на вертикальной поверхности кладки;

Визуальный, измерительный, после каждых 10м кладки

- правильность перевязки швов, их заполнение;

Визуальный

- правильность выполнения армирования кладки;

То же

- температуру наружного воздуха и раствора (в зимних условиях).

Измерительный

Приемка выполненных работ

Проверить:

 

Общий журнал работ, акт приемки выполненных работ

- соответствие качества поверхностей перегородок и перевязки швов требованиям проекта;

Измерительный, визуальный

- отклонения в размерах и положении перегородок от проектных.

Измерительный

Контрольно-измерительный инструмент: отвес, рулетка металлическая, линейка металлическая, уровень, правило, нивелир.

Входной и операционный контроль осуществляют: мастер (прораб), геодезист - в процессе работ.

Приемочный контроль осуществляют: работники службы качества, мастер (прораб), представители технадзора заказчика.

Технические требования
СНиП 3.03.01-87 пп. 7.4, 7.6, 7.29, 7.90, табл. 34

Допускаемые отклонения:

- толщины конструкции - ±15 мм;

- ширины простенков - -15 мм;

- ширины проемов - ±15 мм;

- смещения осей конструкции от разбивочных осей - 10 мм;

- поверхностей кладки от вертикали: на один этаж - 10 мм;

- рядов кладки от горизонтали на 10 м длины стены - 15 мм;

- неровности на вертикальной поверхности кладки при наложении 1-метровой рейки - 10 мм.

Толщина швов армированной кладки - не более 16 мм.

Толщина швов кладки:

- горизонтальных - 12 мм; предельное отклонение - -2; +3 мм;

- вертикальных - 10 мм; предельное отклонение - ±2 мм.

Не допускается:

- ослабление конструкций бороздами, отверстиями, нишами, не предусмотренными проектом.

Требования к качеству применяемых материалов

ГОСТ 530-95. Кирпич и камни керамические. Технические условия.

ГОСТ 7484-78. Кирпич и камни керамические лицевые. Технические условия.

ГОСТ 379-95. Кирпич и камни силикатные. Технические условия.

ГОСТ 28013-98. Растворы строительные. Общие технические условия.

Кирпич и камни керамические

Вид изделий

Геометрические размеры, мм

Отклонения от размеров, мм

длина

ширина

толщина

длина

ширина

толщина

Кирпич одинарный

250

120

65

±5

±4

±3

Кирпич утолщенный

250

120

88

±5

±4

±3

Кирпич модульных размеров

288

138

63

±5

±4

±3

Камень

250

120

138

±5

±4

±4

Камень модульных размеров

288

138

138

±5

±4

±4

Камень укрупненный

250

250

138

±5

+4

±4

Камни с горизонтальным расположением пустот

250

250

120

±5

±4

±4

Непрямолинейность ребер и граней кирпича и камня, мм, не более:

- по постели - 3;

- по ложку - 4.

Отбитости углов и ребер глубиной от 10 до 15 мм - не более 2 шт.

Трещины протяженностью по постели полнотелого кирпича - до 30 мм, пустотелых изделий не более чем до первого ряда пустот (на кирпиче - на всю толщину, на камнях - 1/2 ложковой или тычковой граней) - не более 1 шт.

Общее количество кирпича и камней в партии, не отвечающих вышеприведенным требованиям, не должно превышать 5%. Количество половняка в партии не должно быть более 5%.

Кирпич и камни керамические лицевые

Кирпич и камни по форме, размерам и расположению пустот в изделиях должны отвечать требованиям ГОСТ 530-95.

Отклонения от размеров, мм, не более:

- по длине - ±4;

- по ширине - ±3;

- по толщине - +3, -2.

Непрямолинейность лицевых поверхностей и ребер, мм, не более: по ложку - 3; по тычку - 2.

Отбитость или притупленность углов и ребер длиной от 5 до 15 мм - не более 1 шт.

Общее количество кирпича и камней в партии, не отвечающих вышеприведенным требованиям, включая парный половняк, не должно превышать 5%.

На глазурованной поверхности кирпича не допускается более 3 шт. мушек (темных точек) диаметром более 3 мм (на поверхности камня - не более 6 шт.).

Кирпич и камни силикатные

Отбитости углов и ребер глубиной от 10 до 15 мм - 1 шт. (для лицевых) - 3 шт. (для рядовых).

Недогас (дефекты от недогашенной смеси) не допускается.

Трещины в рядовом кирпиче и камнях, пересекающие два смежных ребра одной ложковой грани и протяженностью до 40 мм по постелям, в количестве более одной на изделии не допускаются. Количество изделий с указанными трещинами в партии не должно быть более 10%. Количество половняка в партии лицевых изделий не должно быть более 2%, а рядовых - 3%.

Общее количество кирпича и камней с недопустимыми по количеству и размерам отбитостями в партии не должно быть более 5%.

Растворы строительные

Подвижность растворной смеси:

- при подаче растворонасосом - 14 см;

- для кладки из обыкновенного кирпича - 9-13 см;

- для кладки из пустотелого кирпича или керамических камней - 7-8см.

Величина зерен песка в кладочных растворах должна быть не более 2,5мм и не более 10% по массе.

Указания по производству работ
СНиП 3.03.01-87 пп. 7.2, 7.13, 7.15, прилож. 15

Работы по возведению перегородок должны выполняться в соответствии с проектом.

Раствор, применяемый при кладке, следует использовать до начала схватывания и периодически перемешивать во время использования. Применение обезвоженных растворов не допускается.

Высота неармированных перегородок, не раскрепленных перекрытиями или временными креплениями, не должна превышать:

- для перегородок толщиной 12 см - 1,8 м;

- то же толщиной 9 см - 1,5 м.

При возведении перегородки, связанной со стенами, при расстоянии между ними, не превышающем 3,5Н, допускаемую высоту перегородки можно увеличивать на 15%, при расстоянии не более 2,5Н - на 25%, при расстоянии не более 1,5Н - на 40% (где Н - высота стен).

Вертикальность кладки, горизонтальность ее рядов необходимо проверять по ходу выполнения кладки (через 0,5-0,6 м высоты) с указанием обнаруженных отклонений в пределах яруса.

Кладка стен

Состав операций и средства контроля

Этапы работ

Контролируемые операции

Контроль (метод, объем)

Документация

Подготовительные работы

Проверить:

 

Паспорт, (сертификат), общий журнал работ

- наличие документа о качестве на партию кирпича, раствора, соответствие их вида, марки и качества требованиям проекта, стандарта;

Визуальный, лабораторный

- очистку основания под кладку от мусора, грязи, снега и наледи;

Визуальный

- правильность разбивки осей.

Измерительный

Кладка стен

Контролировать:

 

Общий журнал работ

- толщину конструкций стен, отметки опорных поверхностей;

Измерительный, после каждых 10 м кладки по каждой оси

- ширину простенков, проемов;

То же

- толщину швов кладки;

- » -

- смещение вертикальных осей оконных проемов от вертикали, смешение осей стен от разбивочных осей;

Измерительный, каждый проем, каждую ось

- отклонение поверхностей и углов кладки от вертикали, отклонение рядов кладки от горизонтали;

Измерительный, после каждых 10 м кладки

- неровности на вертикальной поверхности кладки;

Визуальный, измерительный, после каждых 10 м3 кладки

- правильность перевязки швов, их заполнение;

То же

- правильность устройства деформационных швов;

- » -

- правильность выполнения армирования кладки;

Визуальный

- правильность выполнения разрывов кладки;

То же

- температуру наружного воздуха и раствора (в зимних условиях).

Измерительный

Приемка выполненных работ

Проверить:

 

Акт освидетельствования скрытых работ, исполнительная геодезическая схема, акт приемки выполненных работ

- качество фасадных поверхностей стен;

Визуальный, измерительный

- геометрические размеры и положение стен;

Измерительный

- правильность перевязки швов, их толщину и заполнение, горизонтальность рядов, вертикальных углов кладки.

Визуальный, измерительный

Контрольно-измерительный инструмент: отвес, рулетка металлическая, линейка металлическая, уровень, правило, нивелир.

Операционный контроль осуществляют: мастер (прораб), инженер лабораторного поста, геодезист - в процессе работ.

Приемочный контроль осуществляют: работники службы качества, мастер (прораб), представители технадзора заказчика.

Технические требования
СНиП 3.03.01-87 пп. 7.3, 7.4, 7.6, 7.21, 7.29, 7.90, табл. 34

Допускаемые отклонения:

- глубины не заполненных раствором швов при кладке впустошовку с лицевой стороны - 15 мм;

- толщины конструкции - ±15 мм;

- ширины простенков - -15 мм;

- отметок опорных поверхностей - -10 мм;

- ширины проемов - +15 мм;

- смещения вертикальных осей оконных проемов от вертикали - 20 мм;

- смещения осей конструкции от разбивочных осей - 10 мм;

- поверхностей и углов кладки от вертикали:

- на один этаж - 10 мм;

- на здание высотой более двух этажей - 30 мм;

- рядов кладки от горизонтали на 10 м длины стены - 15 мм;

- неровности на вертикальной поверхности кладки при наложений 2-метровой рейки - 10 мм;

- размеров сечений вентиляционных каналов - ±5 мм.

Толщина швов кладки:

- горизонтальных- 12 мм, предельное отклонение - -2; +3 мм;

- вертикальных- 10 мм, предельное отклонение - ±2 мм;

Толщина швов армированной кладки - не более 16 мм.

Не допускается:

- ослабление каменных конструкций бороздами, отверстиями, нишами, не предусмотренными проектом;

- применение силикатного кирпича для кладки цоколей зданий.

Требования к качеству применяемых материалов

По аналогии со схемой операционного контроля качества кладки перегородок.

Указания по производству работ
СНиП 3.03.01-87 пп. 7.7-7.10, 7.17-7.19, 7.28, 7.86

Возведение каменных конструкций последующего этажа допускается только после укладки несущих конструкций перекрытий возведенного этажа, анкеровки стен и замоноличивания швов между плитами перекрытий.

Тычковые ряды в кладке необходимо укладывать из целых кирпичей и камней всех видов. Независимо от принятой системы перевязки швов укладка тычковых рядов в нижнем (первом) и верхнем (последнем) рядах возводимых конструкций, на уровне обрезов стен, в выступающих рядах кладки (карнизах, поясах и т. д.), под опорные части балок, прогонов, плит, перекрытий, балконов, под мауэрлаты и другие сборные конструкции является обязательной. При однорядной (цепной) перевязке швов допускается опирание сборных конструкций на ложковые ряды кладки.

Кирпичные простенки шириной в два с половиной кирпича и менее, рядовые кирпичные перемычки и карнизы следует возводить из отборного целого кирпича.

Применение кирпича-половняка допускается только в кладке забутовочных рядов и малонагруженных участков стен под окнами в количестве не более 10%.

При возведении из керамических камней стен в свешивающихся карнизах, поясках, парапетах, брандмауэрах, где требуется теска кирпича, должен применяться полнотелый или специальный (профильный) лицевой кирпич морозостойкостью не менее Мрз25 с защитой от увлажнения.

Вентиляционные каналы в стенах следует выполнять из керамического полнотелого кирпича марки 100.

При вынужденных разрывах кладку необходимо выполнять в виде наклонной или вертикальной штрабы. При выполнении разрыва кладки вертикальной штрабой кладку следует армировать с расстоянием до 1,5 м по высоте кладки, а также на уровне каждого перекрытия.

Разность высот возводимой кладки на смежных захватках не должна превышать высоту этажа.

При поперечном армировании простенков сетки следует изготовлять и укладывать так, чтобы было не менее двух арматурных стержней, выступающих на 2-3 мм на внутреннюю поверхность простенка.

После окончания кладки каждого этажа следует производить инструментальную проверку горизонтальности и отметок верха кладки независимо от промежуточных проверок горизонтальности ее рядов.

Приемку выполненных каменных конструкций следует производить до оштукатуривания поверхностей.

При возведении каменных стен следует освидетельствовать скрытые работы с составлением актов на:

- армирование стен;

- устройство деформационных швов;

- места опирания несущих сборных элементов;

- закрепление в кладке карнизов, балконов;

- устройство вентиляционных и дымовых каналов.

Кладка столбов

Состав операций и средства контроля

Этапы работ

Контролируемые операции

Контроль (метод, объем)

Документация

Подготовительные работы

Проверить:

 

Паспорта, (сертификаты), общий журнал работ

- наличие документа о качестве на партию кирпича, раствора, соответствие их вида, марки и качества требованиям проекта, стандарта;

Визуальный лабораторный,

- очистку основания под кладку от мусора, грязи, снега и наледи;

Визуальный

- правильность разбивки осей.

Измерительный

Кладка столбов

Контролировать:

 

Общий журнал работ

- толщину конструкций столбов, отметки опорных поверхностей;

Измерительный

- смешение вертикальных осей столбов от вертикали, смещение осей столбов от разбивочных осей;

Измерительный, на высоту одного этажа

- неровности на вертикальной поверхности кладки;

То же

- правильность перевязки швов, их заполнение;

Визуальный

- правильность выполнения армированной кладки;

То же

- температуру наружного воздуха и раствора (в зимних условиях).

Измерительный

Приемка выполненных работ

Проверить:

 

Акт освидетельствования скрытых работ, геодезическая исполнительная схема, акт приемки выполненных работ

- качество поверхностей столбов;

Визуальный, измерительный

- правильность перевязки швов, их толщину и заполнение;

То же

- геометрические размеры и положение столбов.

Измерительный, на высоту одного этажа

Контрольно-измерительный инструмент: отвес, рулетка металлическая, линейка металлическая, уровень, правило, нивелир.

Операционный контроль осуществляют: мастер (прораб), геодезист - в процессе работ.

Приемочный контроль осуществляют: работники службы качества, мастер(прораб), представители технадзора заказчика.

Технические требования
СНиП 3.03.01-87 пп. 7.4, 7.6, 7.21, 7.29, 7.90, табл. 34

Допускаемые отклонения:

- глубины не заполненных раствором вертикальных швов при впустошовку - 10 мм;

- толщины конструкций - ±10 мм;

- отметок опорных поверхностей - -10 мм;

- поверхностей и углов кладки от вертикали:

- на один этаж - 10 мм;

- на здание высотой более двух этажей - 30 мм;

- смещения осей конструкции от разбивочных осей - 10 мм;

- неровностей на вертикальной поверхности кладки, обнаруженных при наложении 2-метровой рейки, - 5 мм.

Толщина швов кладки:

- горизонтальных - 12 мм; предельное отклонение - -2; +3 мм;

- вертикальных - 10 мм; предельное отклонение - ±2 мм.

Толщина швов армированной кладки - не более 16 мм.

Не допускается:

- ослабление каменных конструкций бороздами, отверстиями, нишами, не предусмотренными проектом;

- применение битого кирпича для кладки.

Требования к качеству применяемых материалов

По аналогии со схемой операционного контроля качества кладки перегородок, стен.

Указания по производству работ
СНиП 3.03.01-87 пп. 7.17, 7.18, 7.21, 7.86, 7.87

Кирпичные столбы следует возводить из отборного целого кирпича. Укладка тычковых рядов кладки под опорные части балок, прогонов является обязательной.

Горизонтальные, вертикальные швы следует заполнять раствором, за исключением кладки впустошовку. При кладке впустошовку глубина не заполненных раствором вертикальных швов не должна превышать 10 мм.

При армированной кладке необходимо соблюдать следующие требования:

- толщина швов в армированной кладке должна превышать сумму диаметров пересекающейся арматуры не менее чем на 4 мм при толщине шва не более 16 мм;

- при поперечном армировании столбов сетки следует изготавливать и укладывать так, чтобы не менее двух арматурных стержней (из которых сделана сетка) выступали на 2-3 мм на две стороны столба.

Приемку выполненных работ по возведению каменных столбов необходимо производить до оштукатуривания их поверхностей.

Элементы столбов, скрытых в процессе производства работ (места опирания прогонов, балок на столбы и их заделка в кладке, закладные детали и их антикоррозионная защита, уложенная в кладку арматура), следует принимать по проекту и нормативным документам с составлением акта освидетельствования скрытых работ.

Монтажные работы

Монтаж железобетонных колонн одноэтажных зданий

Состав операций и средства контроля

Этапы работ

Контролируемые операции

Контроль (метод, объем)

Документация

Подготовительные работы

Проверить:

 

Паспорта (сертификаты), общий журнал работ, акт освидетельствования (приемки) ранее выполненных работ

- наличие документа о качестве;

Визуальный

- качество поверхностей, точность геометрических параметров, внешний вид колонн;

Визуальный, измерительный, каждый элемент

- очистку опорных поверхностей колонн и фундамента от мусора, грязи, снега и наледи;

Визуальный

- наличие акта освидетельствования ранее выполненных скрытых работ;

То же

- наличие разметки, определяющей проектное положение колонн в стаканах фундаментов.

Технический осмотр, измерительный, каждый элемент

Монтаж колонн

Контролировать:

 

Общий журнал работ

- установку колонн в проектное положение (отклонение от совмещения рисок геометрических осей в нижнем и верхнем сечениях установленных колонн с рисками разбивочных осей, разность отметок верха колонн);

Измерительный, каждый элемент

- надежность временного крепления;

Технический осмотр

- качество бетонных работ при замоноличивании колонн.

Визуальный, лабораторный

Приемка выполненных работ

Проверить:

 

Акт освидетельствования скрытых работ, исполнительная геодезическая схема, акт приемки выполненных работ

- фактическое положение смонтированных колонн;

Измерительный, каждый элемент

- соответствие закрепления колонн проектным.

Визуальный, технический осмотр

Контрольно-измерительный инструмент: отвес, рулетка металлическая, линейка металлическая, нивелир, теодолит.

Операционный контроль осуществляют: мастер (прораб), геодезист - в процессе работ.

Приемочный контроль осуществляют: работники службы качества, мастер (прораб), представители технадзора заказчика.

Технические требования
СНиП 3.03.01-87 пп. 3.7, 3.16, табл. 12

Предельные отклонения:

- от совмещения ориентиров (рисок геометрических осей, граней) в нижнем сечении колонн с установочными ориентирами (рисками разбивочных осей) - 8 мм;

- осей колонн в верхнем сечении от вертикали при длине колонн, м:

- до 4 - 20 мм;

- св. 4 до 8 - 25 мм;

- св. 8 до 16 - 30 мм;

- св. 16 до 25 - 40 мм;

- разности отметок верха колонн или их опорных площадок при длине колонн, м:

- до 4 - 14 мм;

- св. 4 до 8 - 16 мм;

- св. 8 до 16 - 20 мм;

- св. 16 до 25 - 24 мм.

Не допускается:

Применение не предусмотренных проектом прокладок в стыках колонн для выравнивания высотных отметок и приведения их в вертикальное положение без согласования с проектной организацией.

Требования к качеству применяемых материалов

ГОСТ 25628-90. Колонны железобетонные для одноэтажных производственных зданий. Общие технические условия.

Значения действительных геометрических параметров колонн не должны превышать предельных, указанных в нижеследующей таблице.

Вид отклонения геометрического параметра

Геометрический параметр

Предельные отклонения, мм

Отклонение от номинального линейного размера

Длина колонн, расстояние от нижнего торца колонны до опорной плоскости консоли, расстояние между опорными плоскостями консолей при минимальном размере, мм:

 

до 4000

±5

св. 4000 до 8000

±6

св. 8000

±8

Поперечное сечение колонны, размеры консолей, вырезов и выступов

±5

Отклонение от проектного положения закладных изделий

в плоскости колонны

10

из плоскости колонны

3

Отклонение от прямолинейности.

Профиль лицевой поверхности колонны длиной, мм:

 

до 4000

8

св. 4000 до 8000

10

св. 8000

12

Отклонение от перпендикулярности

Сечение колонны, мм

 

до 400´400

5

Поставленные на монтаж колонны не должны иметь:

- жировых и ржавых пятен на лицевых поверхностях колонн;

- трещин на внешней поверхности колонн, за исключением местных поверхностных усадочных, ширина которых не должна превышать 0,1 мм;

- наплывов бетона на открытых поверхностях стальных закладных изделий, выпусках арматуры и монтажных петлях.

Указания по производству работ
СНиП 3.03.01-87 пп. 3.12, 3.13, 3.16, 3.17

Монтаж колонн разрешается производить только после приемки опорных элементов, включающей геодезическую проверку соответствия их планового и высотного положения проектному с составлением исполнительной схемы.

Проектное положение колонн следует выверять по двум взаимно перпендикулярным направлениям.

Низ колонн следует выверять, совмещая риски, обозначающие их геометрические оси в нижнем сечении, с рисками разбивочных осей на стаканах фундаментов.

Верх колонн одноэтажных зданий следует выверять, совмещая их геометрические оси в верхнем сечении с геометрическими осями в нижнем сечении.

Ориентиры для выверки верха и низа колонн должны быть указаны в ППР.

Способ опирания колонн на дно стакана должен обеспечивать закрепление низа колонны от горизонтального перемещения на период до замоноличивания узла.

При монтаже колонн должно осуществляться постоянное геодезическое обеспечение точности их установки с определением фактического положения монтируемых колонн. Результаты геодезического контроля должны оформляться исполнительной схемой.

Монтаж сборных железобетонных колонн многоэтажных зданий

Состав операций и средства контроля

Этапы работ

Контролируемые операции

Контроль (метод, объем)

Документация

Подготовительные работы

Проверить:

 

Паспорта (сертификаты), общий журнал работ, акт освидетельствования (приемки) ранее выполненных работ

- наличие документа о качестве;

Визуальный

- качество поверхностей, точность геометрических параметров, внешний вид колонн;

Визуальный, измерительный, каждый элемент

- очистку опорных поверхностей колонн и фундамента от мусора, грязи, снега и наледи;

Визуальный

- наличие акта приемки выполненных работ;

То же

- наличие разметки, определяющей проектное положение колонн.

Технический осмотр, измерительный, каждый элемент

Монтаж колонн

Контролировать:

 

Общий журнал работ

- установку колонн в проектное положение (отклонение от совмещения рисок геометрических осей в нижнем и верхнем сечениях установленных колонн с рисками разбивочных осей, разность отметок верха колонн);

Измерительный, каждый элемент

- надежность временного крепления;

Технический осмотр

- качество замоноличивания стыков колонн.

Визуальный, лабораторный

Приемка выполненных работ

Проверить:

 

Акт освидетельствования скрытых работ, исполнительная геодезическая схема, акт приемки выполненных работ

- фактическое положение смонтированных колонн;

Измерительный, каждый элемент

- соответствие закрепления колонн проектному.

Технический осмотр

Контрольно-измерительный инструмент: отвес, рулетка металлическая, линейка металлическая, уровень, правило, нивелир, теодолит.

Операционный контроль осуществляют: мастер (прораб), геодезист - в процессе работ.

Приемочный контроль осуществляют: работники службы качества, мастер (прораб), представители технадзора заказчика.

Технические требования
СНиП 3.03.01-87 пп. 3.7, 3.16, табл. 12

Предельные отклонения:

- от совмещения ориентиров (рисок геометрических осей, граней) в нижнем сечении колонн с установочными ориентирами (рисками разбивочных осей) - 8 мм;

- от совмещения ориентиров в верхнем сечении колонн с рисками разбивочных осей при длине колонн, м:

- до 4 - ±12 мм;

- св. 4 до 8 - ±15 мм;

- св. 8 до 16 - ±20 мм;

- св. 16 до 25 - ±25 мм;

- разности отметок верха колонн каждого яруса зданий и сооружений в пределах выверяемого участка при:

- контактной установке - ±(12 + 2n) мм;

- установке по маякам - 10 мм

Не допускается:

- применение не предусмотренных проектом прокладок в стыках колонн для выравнивания высотных отметок и приведения их в вертикальное положение без согласования с проектной организацией.

Результаты контроля монтажа колонн должны оформляться геодезической исполнительной схемой.

Требования к качеству применяемых материалов

ГОСТ 18979-90***. Колонны железобетонные для многоэтажных зданий. Технические условия.

Значения действительных геометрических параметров колонн не должны превышать предельные, указанные в таблице.

Отклонение геометрического параметра

Геометрический параметр

Предельные отклонения,

мм

1. От номинального линейного размера

Длина колонн, расстояние от нижнего торца колонны до опорной плоскости консоли, расстояние между опорными плоскостями консолей при минимальном размере, мм:

 

до 4000

±5

св. 4000 до 8000

±6

св. 8000

±8

Поперечное сечение колонны, размеры консолей, вырезов и выступов

±5

2. От проектного положения закладных изделий

в плоскости колонны из плоскости колонны

10

3

3. От прямолинейности

Профиль лицевой поверхности колонны длиной, мм:

 

до 4000

8

св. 4000 до 8000

10

св. 8000

12

4. От перпендикулярности

Сечение колонны, мм

5

Поставленные на монтаж колонны не должны иметь:

- жировых и ржавых пятен на лицевых поверхностях колонн;

- трещин на внешней поверхности колонн, за исключением местных поверхностных усадочных, ширина которых не должна превышать 0,1 мм;

- наплывов бетона на открытых поверхностях стальных закладочных изделий, выпусках арматуры и монтажных петлях.

Указания по производству работ
СНиП 3.03.01-87 пп. 3.12-3.14, 3.17

Монтаж колонн разрешается производить только после приемки опорных элементов, включающей геодезическую проверку соответствия их планового и высотного положения проектному с составлением геодезической исполнительной схемы.

Проектное положение колонн следует выверять по двум взаимно перпендикулярным направлениям.

Низ колонн следует выверять, совмещая риски, обозначающие их геометрические оси в нижнем сечении, с рисками разбивочных осей на стаканах фундаментов или геометрических осей нижеустановленных колонн.

Верх колонн многоэтажных зданий следует выверять, совмещая их геометрические оси в верхнем сечении с рисками разбивочных осей.

Ориентиры для выверки верха и низа колонн должны быть указаны в ППР.

Способ опирания колонн на дно стакана должен обеспечивать закрепление низа колонны от горизонтального перемещения на период до замоноличивания узла.

При монтаже колонн должно осуществляться постоянное геодезическое обеспечение точности их установки с определением фактического положения монтируемых колонн.

Монтаж конструкций каждого вышележащего этажа многоэтажного здания следует производить после проектного закрепления всех монтажных элементов и достижения бетоном замоноличенных стыков прочности, указанной в ППР.

Монтаж железобетонных ригелей, балок, ферм

Состав операций и средства контроля

Этапы работ

Контролируемые операции

Контроль (метод, объем)

Документация

Подготовительные работы

Проверить:

 

Паспорта (сертификаты), общий журнал работ, акт освидетельствования (приемки) ранее выполненных работ

- наличие документа о качестве;

Визуальный

- качество поверхностей, точность геометрических параметров, внешний вид конструкций;

Визуальный, измерительный, каждый элемент

- очистку опорных поверхностей конструкций от мусора, грязи, снега и наледи;

Визуальный

- наличие акта освидетельствования ранее выполненных работ;

То же

- наличие разметки, определяющей проектное положение конструкций на опорах.

Измерительный, каждый элемент

Монтаж конструкций

Контролировать:

 

Общий журнал работ

- установку конструкций в проектное положение (предельные отклонения в размерах площадок опирания конструкций, отклонения от совмещения рисок продольных осей);

Измерительный, каждый элемент

- надежность временного крепления;

Технический осмотр, лабораторный

- качество стыков.

То же

Приемка выполненных работ

Проверить:

 

Исполнительная геодезическая схема, акт приемки выполненных работ

- фактическое положение смонтированных конструкций;

Измерительный, каждый элемент

- соответствие закрепления конструкций проектным.

Технический осмотр, измерительный

Контрольно-измерительный инструмент: рулетка, линейка металлическая, нивелир.

Операционный контроль осуществляют: мастер (прораб), геодезист - в процессе работ.

Приемочный контроль осуществляют: работники службы качества, мастер (прораб), представители технадзора заказчика.

Технические требования
СНиП 3.03.01-87 пп. 3.7, 3.22, табл. 12

Предельные отклонения:

- от совмещения ориентиров (рисок геометрических осей, граней) в нижнем сечении установленных элементов с установочными ориентирами - 8 мм;

- от совмещения ориентиров в верхнем сечении установленных элементов с установочными ориентирами при высоте элемента на опоре, м:

- до 1 - 6 мм;

- св. 1 до 1,6 - 8 мм;

- св. 16 до 2,5 - 10 мм;

- св. 2,5 - 12 мм.

- от симметричности (половина разности глубины опирания концов элемента) в направлении перекрываемого пролета при длине элемента, м:

- до 4 - 5 мм;

- св. 4 до 8 - 6 мм;

- св. 8 до 16 - 8 мм;

- св. 16 до 25 - 10 мм;

- в расстоянии между осями верхних поясов ферм и балок в середине пролета - 60 мм.

Не допускается:

- применение не предусмотренных проектом подкладок для выравнивания монтируемых элементов по отметкам без согласования с проектной организацией.

Требования к качеству применяемых материалов

ГОСТ 20213-89. Фермы железобетонные. Технические условия.

ГОСТ 18980-90***. Ригели железобетонные для многоэтажных зданий. Технические условия.

ГОСТ 24893.0-81*. Балки обвязочные железобетонные для зданий промышленных предприятий. Технические условия.

Значения действительных отклонений геометрических параметров ригелей не должны превышать предельных, мм, указанных в таблице 1.

Таблица 1

Вид отклонения геометрического параметра

Геометрический параметр

Предельные отклонения

Отклонение от номинального линейного размера

Длина ригеля, балки:

 

 

от 2500 до 4000 мм;

±5

 

от 4000 до 8000 мм;

±6

 

свыше 8000 мм

±8

 

Размер поперечного сечения ригеля и размеры вырезов и выступов

±5

Отклонение от проектного положения закладных изделий

В плоскости поверхности:

 

 

опорные закладные изделия;

5

 

прочие изделия

10

 

Из плоскости поверхности

3

Отклонение от прямолинейности

Профиль лицевой поверхности ригеля, балки длиной:

 

 

от 2500 до 4000 мм;

8

 

от 4000 до 8000 мм;

10

 

свыше 8000 мм

12

Категория бетонной поверхности должна указываться в заказе на изготовление конструкций.

Требования к поверхности конструкций приведены в таблице 2.

Таблица 2

Характеристика бетонной поверхности

Категория

Диаметр раковин, мм

Высота (глубина) наплыва (впадин)

Глубина сколов,

мм

Длина сколов на 1 м ребра

Предназначенная под окраску, выходящая внутрь жилых и общественных зданий

А2

1

1

5

50

То же, выходящая внутрь производственных и вспомогательных зданий

A3

4

2

5

50

Лицевые неотделываемые

А6

15

5

10

100

Нелицевые, невидимые в условиях эксплуатации

А7

20

-

20

-

Поставленные на монтаж конструкции не должны иметь:

- жировых и ржавых пятен на лицевых поверхностях ригелей;

- трещин на внешней поверхности ригелей, за исключением местных поверхностных усадочных, ширина которых не должна превышать 0,1 мм;

- наплывов бетона на открытых поверхностях стальных закладных изделий, выпусках арматуры и монтажных петлях.

Указания по производству работ
СНиП 3.03.01-87 пп. 3.18-3.20, 3.24

Монтаж ригелей, балок, ферм разрешается производить только после проектного закрепления колонн и достижения бетоном замоноличенных стыков прочности, указанной в ППР, а также после приемки опорных элементов, включающей геодезическую проверку соответствия их планового и высотного положения проектному с составлением исполнительной схемы.

Перед подъемом каждой конструкции необходимо проверить соответствие их проектной марке, отсутствие на опорных поверхностях колонн и ригелей мусора, грязи, снега и наледи, наличие ориентирных рисок, определяющих проектное положение конструкций на опорах.

Укладку конструкций в направлении перекрываемого пролета надлежит выполнять с соблюдением установленных проектом размеров глубины опирания их на опорные конструкции или зазоров между сопрягаемыми элементами.

Установку конструкций в поперечном направлении перекрываемого пролета следует выверять, совмещая риски продольных осей устанавливаемых элементов с рисками осей колонн или рисками разбивочных осей.

Ригели, фермы, строительные балки следует укладывать насухо на опорные поверхности несущих конструкций.

Установку ферм и строительных балок в вертикальной плоскости следует выполнять путем выверки их геометрических осей на опорах относительно вертикали.

При монтаже должен осуществляться постоянный геодезический контроль, результаты контроля должны оформляться геодезической исполнительной схемой.

Монтаж плит перекрытий и покрытий

Состав операций и средства контроля

Этапы работ

Контролируемые операции

Контроль (метод, объем)

Документация

Подготовительные работы

Проверить:

 

Паспорта (сертификаты), общий журнал работ, акт освидетельствования (приемки) ранее выполненных работ

- наличие документа о качестве;

Визуальный

- качество поверхности, точность геометрических параметров, внешний вид плит;

Визуальный, измерительный, каждый элемент

- очистку опорных поверхностей ранее смонтированных конструкций (ригелей, диафрагм жесткости, опорных столиков колонн) и монтируемых плит от мусора, грязи, снега и наледи;

Визуальный

- наличие акта освидетельствования (приемки) ранее выполненных работ;

То же

- наличие разметки, определяющей проектное положение плит на опорах.

Измерительный

Монтаж плит перекрытий

Контролировать:

 

Общий журнал работ

- установку плит в проектное положение (отклонение от симметричности глубины опирания плит в направлении перекрываемого пролета, разность отметок лицевых поверхностей двух смежных плит);

Измерительный, каждый элемент

- глубину опирания плит;

То же

- толщину слоя раствора под плитами.

- » -

Приемка выполненных работ

Проверить:

 

Акт освидетельствования (приемки) выполненных работ, исполнительная геодезическая схема

- фактическое положение смонтированных плит (отклонение от разметки, определяющей проектное положение плит на опорах, разность отметок лицевых поверхностей смежных плит, глубину опирания плит);

Измерительный каждый элемент

- внешний вид лицевых поверхностей.

Визуальный

Контрольно-измерительный инструмент: рулетка, линейка металлическая, нивелир.

Операционный контроль осуществляют: мастер (прораб), геодезист - в процессе работ.

Приемочный контроль осуществляют: работники службы качества, мастер (прораб), представители технадзора заказчика.

Технические требования
СНиП 3.03.01-87 пп. 3.5-3.7, табл. 12

Предельные отклонения:

- разности отметок лицевых поверхностей двух смежных непреддапряженных панелей (плит) перекрытий в шве при длине плит, м:

- до 4 - 8 мм;

- св. 4 до 8 - 10 мм;

- св. 8 до 16 - 12 мм.

- от симметричности (половина разности глубины опирания концов элемента) при установке плит в направлении перекрываемого пролета при длине элемента, м:

- до 4 - 5 мм;

- св. 4 до 8 - 6 мм;

- св. 8 до 16 - 8 мм;

- св. 16 до 25- 10 мм.

Толщина слоя раствора под плитами перекрытий должна быть не более 20 мм.

Марка раствора - по проекту, подвижность - 5-7 см.

Поверхности смежных плит перекрытий вдоль шва со стороны потолка должны быть совмещены.

Глубина опирания плит - по проекту.

Не допускается:

- применение не предусмотренных проектом подкладок для выравнивания укладываемых элементов по отметкам без согласования с проектной организацией;

- применение раствора, процесс схватывания которого уже начался, а также восстановление его пластичности путем добавления воды.

Требования к качеству применяемых материалов

ГОСТ 9561-91. Плиты перекрытий железобетонные многопустотные для перекрытий зданий и сооружений. Технические условия.

ГОСТ 12767-94. Плиты перекрытий железобетонные сплошные для крупнопанельных зданий. Общие технические условия.

Отклонения от номинальных размеров плит, указанных в рабочих чертежах, не должны превышать следующих значений:

- по длине плит:

- до 4 м - ±8 мм;

- св. 4 до 8 м - ±10 мм;

- св. 8 м - ±12 мм;

- по толщине плит - ±5 мм;

- по ширине плит:

- до 2,5 м - ±6 мм;

- св. 2,5 м - ±8 мм.

Неплоскостность нижней поверхности плиты не должна превышать для плит длиной:

- до 8 м - 8 мм;

- св. 8 м - 13 мм.

Отклонения от номинального положения стальных закладных изделии не должны превышать:

- в плоскости плиты - 10 мм;

- из плоскости плиты - 5 мм.

Качество поверхностей и внешний вид плит в зависимости от установленной категории поверхностей должны отвечать требованиям, приведенным в таблице.

Таблица

Характеристика бетонной поверхности

Категория

Диаметр раковин, мм

Высота (глубина) наплыва (впадин), мм

Глубина сколов, мм

Длина сколов в мм на 1 м ребра

Нижняя, потолочная

А2

1

1

5

50

Верхняя, под линолеум

А4

10

1

5

50

Боковая

А7

20

-

20

-

Поставленные на монтаж плиты перекрытий не должны иметь:

- жировых и ржавых пятен на лицевых поверхностях плит;

- трещин на поверхностях плит, за исключением усадочных и других поверхностных технологических шириной не более 0,1 мм;

- наплывов бетона на открытых поверхностях стальных закладных изделий, выпусках арматуры и монтажных петлях.

Указания по производству работ
СНиП 3.03.01-87 пп. 3.18-3.21

Монтаж плит перекрытий разрешается производить только после проектного закрепления колонн, ригелей и диафрагм жесткости и достижения бетоном замоноличенных стыков прочности, указанной в ППР, а также после приемки опорных элементов, включающей геодезическую проверку соответствия их планового и высотного положения проектному с составлением исполнительной схемы.

Перед подъемом каждой плиты необходимо проверить соответствие ее проектной марке, очистить опорные поверхности плиты, колонн, ригелей и диафрагм жесткости от мусора, грязи, снега и наледи.

В первую очередь должны устанавливаться и закрепляться с помощью сварки межколонные (связевые) плиты, а затем рядовые плиты.

Укладку плит в направлении перекрываемого пролета надлежит выполнять с соблюдением установленных проектом размеров глубины опирания их на опорные конструкции или зазоров между сопрягаемыми элементами. Установку плит в поперечном направлении перекрываемого пролета следует выполнять по разметке, определяющей их проектное положение.

Плиты перекрытий по фермам (балкам) укладывают насухо на опорные поверхности несущих конструкций.

Плиты перекрытий необходимо укладывать на слой раствора толщиной не более 20 мм, совмещая поверхности смежных плит вдоль шва со стороны потолка.

Замоноличивание стыков следует выполнять после проверки правильности установки плит, приемки сварных соединений элементов в узлах сопряжений и выполнения антикоррозионного покрытия сварных соединений и поврежденных участков покрытия закладных изделий. Бетонные смеси, применяемые для замоноличивания стыков, должны отвечать требованиям проекта. Наибольший размер зерен крупного заполнителя в бетонной смеси не должен превышать 1/3 наименьшего размера сечения стыка.

Монтаж лестничных маршей и площадок

Состав операций и средства контроля

Этапы работ

Контролируемые операции

Контроль (метод, объем)

Документация

Подготовительные работы

Проверить:

 

Паспорта (сертификаты), общий журнал работ, акт освидетельствования скрытых работ, исполнительная геодезическая схема

- наличие документа о качестве;

Визуальный

- качество поверхности, точность геометрических параметров, внешний вид маршей и площадок;

Визуальный, измерительный, каждый элемент

- очистку опорных поверхностей ранее смонтированных конструкций и поднимаемых элементов лестниц от мусора, грязи, снега и наледи;

Визуальный

- наличие акта освидетельствования ранее выполненных скрытых работ;

То же

- наличие разметки, определяющей проектное положение лестниц и площадок на опорах.

Технический осмотр

Монтаж лестничных маршей и площадок

Контролировать:

 

Общий журнал работ, журнал сварочных работ

- установку элементов в проектное положение (отклонения в размерах площадок опирания, от горизонтали и отметок и т. д.);

Измерительный, каждый элемент

- качество выполнения сварочных работ.

Визуальный, измерительный

Приемка выполненных работ

Проверить:

 

Исполнительная геодезическая схема, акт освидетельствования скрытых работ.

- фактическое положение смонтированных маршей и площадок (отклонение от разметки, определяющей проектное положение маршей и площадок на опорах);

Измерительный, каждый элемент

- выполнение требований проекта и нормативных документов к качеству сварочных соединений и антикоррозионных покрытий.

Измерительный, визуальный

Контрольно-измерительный инструмент: рулетка, линейка металлическая, нивелир, уровень, катетомер.

Операционный контроль осуществляют: мастер (прораб), геодезист - в процессе выполнения работ.

Приемочный контроль осуществляют: работники службы качества, мастер (прораб), представители технадзора заказчика.

Технические требования
СНиП 3.03.01-87 пп. 3.6, 3.7, табл. 12

Предельные отклонения:

- ступеней от горизонтали - 2 мм;

- защитных решеток от вертикали - 3 мм;

- отметок верха лестничной площадки от проектной - 5 мм;

- площадок лестниц от горизонтали - 5 мм;

- от симметричности (половина разности глубины опирания концов площадки) в направлении перекрываемого пролета при длине площадки до 4 м - 5 мм;

- размеры глубины опирания площадок в направлении перекрываемого пролета - по проекту.

Не допускается:

- применение раствора, процесс схватывания которого уже начался;

- восстановление пластичности раствора путем добавления воды.

Требования к качеству применяемых материалов

ГОСТ 9818-85*. Марши и площадки лестниц железобетонные. Технические условия.

ГОСТ 13015-2003. Изделия железобетонные и бетонные для строительства. Общие технические условия. Правила приемки, маркировки, транспортирования и хранения.

Предельные отклонения размеров маршей и площадок от указанных в рабочих чертежах не должны превышать следующих значений:

- по длине для маршей и площадок длиной до 4000 мм - ±5 мм;

- то же, длиной свыше 4000 мм - ±6 мм;

- по толщине - ±3 мм;

- по ширине - ±5 мм;

- по размерам ребер, полок, выступов, отверстий и каналов - ±5;

- по положению выступов, выемок и отверстий - ±5 мм.

Отклонения от проектного положения стальных закладных изделий не должны превышать, мм:

- в плоскости поверхности для закладных изделий размерами до 100 мм - 5;

- то же для закладных изделий размерами св. 100 мм - 10;

- из плоскости поверхности - 3.

Предельные отклонения размеров накладных проступей не должны превышать, мм:

- по длине - ±5;

- по ширине - ±3;

- по толщине - ±2.

Отклонения от прямолинейности профиля лицевой поверхности не должны превышать, мм:

- ступеней марша, площадок или накладных проступей длиной до 2500 мм на участке 1000 мм - 2;

- маршей или площадок длиной св. 2500 мм до 4000 мм на всей длине - ±3;

- то же, длиной св. 4000 мм на всей длине - ±4.

Качество поверхностей и внешний вид конструкций должны отвечать требованиям, приведенным в таблице.

Характеристика бетонной поверхности

Категория

Диаметр раковин, мм

Высота (глубина) наплыва (впадин), мм

Глубина сколов, мм

Длина сколов в мм на 1 м ребра

Лицевая, верхняя

А2

1

1

5

50

Лицевая, нижняя и боковая

А4

4

2

5

50

Лицевая, верхняя под плитку

А5

 

-

 

3

 

10

 

100

 

Нелицевая, невидимая

А7

20

-

20

-

Поставленные на монтаж марши и площадки лестниц не должны иметь:

- жировых и ржавых пятен на лицевой поверхности;

- трещин, за исключением усадочных и других поверхностных технологических трещин на нижней и торцевых поверхностях элементов, ширина которых не должна превышать 0,2 мм;

- наплывов бетона на открытых поверхностях стальных закладных изделий и монтажных петлях.

Указания по производству работ
СНиП 3.03.01-87 пп. 3.3, 3.5

Монтаж лестничных маршей и площадок разрешается производить только после приемки опорных элементов, включающей геодезическую проверку соответствия их планового и высотного положения с составлением геодезической исполнительной схемы.

С целью обеспечения устойчивости лестничной клетки и связи ее с диском перекрытия монтаж лестничных маршей разрешается производить только после полного заполнения смежных пролетов плитами перекрытия.

Перед подъемом каждого лестничного марша необходимо проверить соответствие его проектной марке, очистить опорные поверхности ригелей, диафрагм жесткости и лестничных маршей от мусора, грязи, снега и наледи.

Лестничные марши подают к месту установки в проектном положении и укладывают на слой цементного раствора толщиной до 30 мм. Марка раствора должна быть указана в проекте. Подвижность раствора должна составлять 5-7 мм.

Монтаж балконных плит и перемычек

Состав операций и средства контроля

Этапы работ

Контролируемые операции

Контроль (метод, объем)

Документация

Подготовительные работы

Проверить:

 

Паспорта (сертификаты), общий журнал работ

- наличие документа о качестве;

Визуальный

- качество поверхности, точность геометрических параметров, внешний вид плит, перемычек;

Визуальный, измерительный, каждый элемент

- наличие разметки, определяющей проектные положения плит и перемычек.

То же

Монтаж балконных плит

Контролировать:

 

Общий журнал работ, журнал сварочных работ

- установку балконных плит в проектное положение;

Измерительный, каждый элемент

- качество выполнения сварочных работ;

Визуальный, измерительный

- монтаж железобетонных перемычек в проектное положение.

Измерительный, каждый элемент

Приемка выполненных работ

Проверить:

 

Акт освидетельствования (приемки) выполненных работ.

- фактическое положение смонтированных плит и перемычек;

Измерительный

- качество выполненных сварочных соединений, замоноличивания стыков;

Технический осмотр

- внешний вид элементов.

Визуальный

Контрольно-измерительный инструмент: рулетка металлическая, линейка металлическая, отвес, нивелир, уровень.

Операционный контроль осуществляют: мастер (прораб), инженер (лаборант) - в процессе работ.

Приемочный контроль осуществляют: работники службы качества, мастер (прораб), представители технадзора заказчика.

Технические требования
СНиП 3.03.01-87 табл. 12

Балконные плиты:

- разность уровней плоскости плиты балкона и пола помещения должна быть не более 80-100 мм;

- уклон балконной плиты от наружной стены - 2%.

Перемычки:

- допускаемые отклонения отметок опорных поверхностей стены - 10 мм;

- величина опирания перемычек на стены - по проекту;

- боковая поверхность перемычек не должна выходить за плоскость стены.

Требования к качеству применяемых материалов

ГОСТ 25697-83*. Плиты балконов и лоджий железобетонные. Общие технические условия.

ГОСТ 948-84. Перемычки железобетонные для зданий с кирпичными стенами. Технические условия.

Перемычки железобетонные допускается изготовлять с технологическим уклоном боковых и торцевых граней. Размеры нижней грани перемычки могут быть меньше соответствующих размеров верхней грани:

- по длине - до 20 мм;

- по ширине - до 8 мм.

Значения действительных отклонений геометрических параметров перемычек и балконных плит не должны превышать предельные, указанные в таблице.

Наименование отклонения от геометрического параметра

Наименование геометрического параметра

Предельное отклонение, мм

Отклонение от линейного размера

Длина изделий, мм:

 

до 2500

±6

св. 2500 до 4000

±8

св. 4000

±10

Ширина и высота

±5

Отклонение положения закладных деталей

Положение закладных деталей:

 

 

в плоскости

3

из плоскости

5

Отклонение от прямолинейности

Прямолинейность лицевой поверхности по длине

±3

На лицевых поверхностях железобетонных изделий не допускаются жировые и ржавые пятна.

Маркировочные надписи и знаки наносятся на торцевой стороне перемычки, а на балконной плите - на торцевой стороне, скрываемой в стене.

Маркировочная надпись должна содержать:

- марку изделия;

- краткое наименование предприятия-изготовителя;

- дату изготовления;

- величину массы изделия.

Указания по производству работ
СНиП 3.03.01-87 пп. 2.112, 3.4

Балконные плиты и перемычки монтируются одновременно с возведением наружных стен.

Опорные части кладки под сборные железобетонные конструкции должны выполняться из целого кирпича тычковыми рядами.

При монтаже балконных плит необходимо выполнять временные крепления в виде подпорок из бруса. Сразу же необходимо выполнить постоянное крепление в соответствии с требованиями проекта. Металлические закладные детали, скрываемые в кладке, подлежат защите антикоррозионным покрытием.

На сварку арматуры, закладных частей и на заделку балконных плит должны составляться акты освидетельствования скрытых работ.

Монтаж наружных стеновых панелей каркасных зданий

Состав операций и средства контроля

Этапы работ

Контролируемые операции

Контроль (метод, объем)

Документация

Подготовительные работы

Проверить:

 

Паспорта (сертификаты), ППР, акт освидетельствования скрытых работ (акт приемки), общий журнал работ

- наличие документа о качестве;

Визуальный

- качество поверхности, точность геометрических параметров, внешний вид панелей;

Визуальный, измерительный, каждый элемент

- наличие ППР;

Визуальный

- наличие акта освидетельствования (приемки) ранее выполненных скрытых работ;

То же

- наличие разметки, определяющей проектное положение панелей на опорах;

Технический осмотр

- наличие в местах установки панелей маяков.

 То же

Монтаж стеновых панелей

Контролировать:

 

Общий журнал работ, журнал сварочных работ

- установку панелей в проектное положение;

Измерительный, каждый элемент

- качество выполнения сварочных работ.

Визуальный, измерительный

Приемка выполненных работ

Проверить:

 

Исполнительная геодезическая схема, акт освидетельствования (приемки) работ

- фактическое положение смонтированных панелей;

Измерительный, каждый элемент

- качество выполнения сварочных соединений.

Визуальный, измерительный

Контрольно-измерительный инструмент: отвес строительный, рулетка, линейка металлическая, нивелир, катетомер.

Операционный контроль осуществляют: мастер (прораб), геодезист - в процессе выполнения работ.

Приемочный контроль осуществляют: работники службы качества, мастер (прораб), представители технадзора заказчика.

Технические требования
СНиП 3.03.01-87 пп. 3.6, 3.7, 3.25, табл. 12

Предельные отклонения:

- от смещения ориентиров (рисок геометрических осей, граней) в нижнем сечении установленных панелей навесных стен с установочными ориентирами (рисками геометрических осей или гранями нижележащих элементов, рисками разбивочных осей) - 10 мм;

- от вертикали верха плоскостей навесных стеновых панелей - 12 мм;

- разности отметок верха стеновых панелей в пределах выверяемого участка при:

- установке по маякам - 10 мм;

- контактной установке - (12 + 2n) мм,

где n - число установленных по высоте панелей;

- отметок маяков относительно монтажного горизонта - ±5мм.

Не допускается:

- щели между торцом панели после ее выверки и растворной постелью;

- применение раствора, процесс схватывания которого уже начался;

- восстановление пластичности раствора путем добавления воды.

Требования к качеству применяемых материалов

ГОСТ 11024-84*. Панели стеновые наружные бетонные и железобетонные для жилых и общественных зданий. Общие технические условия.

ГОСТ 11118-73. Панели из автоклавных ячеистых бетонов для наружных стен здания. Технические требования.

ГОСТ 13578-68. Панели из легких бетонов на пористых заполнителях для наружных стен производственных зданий. Технические требования.

Поставленные на монтаж панели наружных стен не должны иметь:

- жировых и ржавых пятен на лицевой поверхности;

- трещин, за исключением местных поверхностных усадочных и других технологических шириной не более 0,2 мм;

- сколов бетона ребер глубиной более 2 мм и длиной более 30 мм на 1 м ребра;

- отслоившихся облицовочных плиток.

Значения действительных отклонений геометрических параметров панелей не должны превышать предельные, указанные в таблице 1.

Таблица 1

Наименование отклонения от геометрического параметра

Геометрический параметр, мм

Предельное отклонение, мм

Отклонение линейного размера

Длина и высота панели:

 

до 1000

±4

св. 1000 до 1600

±5

св. 1600 до 2500

±6

св. 2500 до 4000

±8

св. 4000 до 8000

±10

Толщина панели:

 

до 250

±4

св. 250 до 400

±5

Размер проемов и вырезов

+5

Отклонение от плоскостности

Плоскостность лицевой поверхности панели относительно прилегающей плоскости при длине (высоте) панели:

 

до 1000

3

св. 1000 до 1600

4

св. 1600 до 2500

5

св. 2500 до 4000

6

св. 4000 до 8000

8

Отклонение от равенства диагоналей

Разность длин диагоналей лицевых поверхностей панели при длине (высоте) панели:

 

до 4000

10

св. 4000 до 8000

12

Отклонение от проектного положения закладных изделий

В плоскости панели для закладных изделий размером в этой плоскости:

 

до 100 мм

5

свыше 100 м

10

из плоскости панели

3

Качество поверхностей панелей должно соответствовать требованиям, приведенным в таблице 2.

Таблица 2

Характеристика бетонной поверхности

Категория

Диаметр раковин, мм

Высота (глубина) наплыва (впадин)

Глубина сколов, мм

Длина сколов в мм на 1 м ребра

Лицевая внутренняя, под окраску

А2

1

1

5

50

Нелицевая, невидимая в условиях эксплуатации

А7

20

-

20

-

Указания по производству работ
СНиП 3.03.01-87 пп. 3.25, 3.27, 3.28

Монтаж стен следует выполнять в соответствии с утвержденным ППР. В процессе монтажа необходимо обеспечить устойчивость здания и его частей на всех стадиях строительства.

Монтаж стеновых панелей каждого этажа многоэтажного здания и каждой секции одноэтажного здания следует производить только после сварки и заделки стыков каркаса и монтажа диска перекрытия данного этажа.

Монтаж стеновых панелей вышележащего этажа следует производить после полного проектного закрепления панелей нижележащего этажа.

Установку поясных панелей наружных стен каркасных зданий следует производить:

- в плоскости стены - симметрично относительно оси пролета между колоннами путем выравнивания расстояний между торцами панели и рисками осей колонн в уровне установки панели;

- из плоскости стены:

- в уровне низа панели - совмещая нижнюю внутреннюю грань устанавливаемой панели с гранью нижестоящей панели;

- в уровне верха панели - совмещая (с помощью шаблона) грань панели с риской оси или гранью колонны.

Выверку простеночных панелей следует производить:

- в плоскости стены - совмещая риску оси низа устанавливаемой панели с ориентирной риской, нанесенной на поясной панели;

- из плоскости стены - совмещая внутреннюю грань устанавливаемой панели с гранью нижестоящей панели;

- в вертикальной плоскости - выверяя внутреннюю и торцевую грани панели относительно вертикали.

Установку панелей следует производить, опирая их на выверенные относительного монтажного горизонта маяки. Прочность материалов маяков не должна быть выше установленной проектом прочности на сжатие раствора, применяемого для устройства постели.

Толщина маяков должна составлять 10-30 мм (при отсутствии в проекте специальных предложений).

Монтаж панелей, блоков несущих стен зданий

Состав операций и средства контроля

Этапы работ

Контролируемые операции

Контроль (метод, объем)

Документация

Подготовительные работы

Проверить:

 

Паспорта (сертификаты), ППР, общий журнал работ, акт освидетельствования ранее выполненных работ

- наличие документа о качестве;

Визуальный

- качество поверхности, точность геометрических параметров, внешний вид панелей;

Визуальный, измерительный, каждый элемент

- наличие ППР;

Визуальный

- наличие ориентирных рисок на панелях, блоках;

Технический осмотр

- наличие акта освидетельствования ранее выполненных скрытых работ;

Визуальный

- наличие в местах установки панелей маяков;

То же

- укладку гернита или пороизола;

- » -

- наличие цементного раствора по всей площади опирания панелей.

- » -

Установка наружных стеновых панелей

Контролировать:

 

Общий журнал

работ

- установку панелей в проектное положение (отклонение плоскостей стеновых панелей от вертикали; смещение осей или граней панели в нижнем сечении относительно разбивочных осей или ориентирных рисок);

Измерительный, каждый элемент

- качество заполнения растворной постели.

Визуальный

Приемка выполненных работ

Проверить:

 

Исполнительная геодезическая схема, акт освидетельствования скрытых работ

- фактическое положение смонтированных панелей;

Измерительный, каждый элемент

- качество выполнения сварочных соединений, стыков.

Измерительный, визуальный

Контрольно-измерительный инструмент: отвес, рулетка, линейка металлическая, нивелир.

Операционный контроль осуществляют: мастер (прораб), геодезист - в процессе выполнения работ.

Приемочный контроль осуществляют: работники службы качества, мастер(прораб), представители технадзора заказчика.

Технические требования
СНиП 3.03.01-87 пп. 3.6, 3.7, 3.25, табл. 12

Предельные отклонения:

- от смещения ориентиров (рисок геометрических осей, граней) в нижнем сечении установленных панелей, блоков с установочными ориентирами (рисками геометрических осей или гранями нижележащих элементов, рисками разбивочных осей) - 8 мм;

- от вертикали верха плоскостей:

- панелей - 10 мм;

- блоков- 12 мм;

- отметок маяков относительно монтажного горизонта - ±5 мм.

Толщина маяков при отсутствии в проекте специальных указаний должна составлять 10-30 мм.

Не допускаются:

- щели между торцом панели после ее выверки и растворной постелью;

- применение раствора, процесс схватывания которого уже начался.

- восстановление пластичности раствора путем добавления воды.

Требования к качеству применяемых материалов

ГОСТ 11024-84*. Панели стеновые наружные бетонные и железобетонные для жилых и общественных зданий. Общие технические условия.

ГОСТ 19010-82*. Блоки стеновые бетонные и железобетонные для зданий. Общие технические условия.

Значения предельных отклонений геометрических параметров панелей, блоков не должны превышать значения, приведенные в таблице.

Наименование параметра

Допуски, мм

Разность длин диагоналей лицевых поверхностей

по длине, ширине

по высоте

по толщине

1. Длина и высота, мм:

 

 

 

 

до 500 св. 500 до

2

2

 

 

1000 св. 1000 до

2,5

2,5

 

 

1600 св. 1600 до

3

3

 

 

2500 св. 2500 до

4

4

 

8

4000 св. 4000 до

5

5

 

8

8000

6

6

 

10

2. Толщина, мм:

 

 

 

 

до 250

 

 

±4

 

св. 250

 

 

±5

 

На строительной площадке необходимо проверить:

- наличие паспорта на партию изделий, в котором должны быть указаны: номер и дата выдачи паспорта, номер партии, марка панелей, их число, дата изготовления, класс или марка бетона по прочности, отпускная прочность бетона (нормируемая, требуемая с учетом фактической однородности бетона по ГОСТ 18105-86* и фактическая), марка бетона по морозостойкости (при необходимости), обозначение стандарта;

- наличие маркировки на торцевой поверхности панелей.

Указания по производству работ
СНиП 3.03.01-87 пп. 3.25, 3.26

Монтаж панелей наружных стен разрешается производить только после приемки опорных элементов, включающей геодезическую проверку соответствия их планового и высотного положения проектному с составлением исполнительной геодезической схемы.

Установку панелей стен следует производить, опирая их на выверенные относительно монтажного горизонта маяки. Прочность материала, из которого изготовляют маяки, не должна быть выше установленной проектом прочности на сжатие раствора, применяемого для устройства постели.

Выверку панелей наружных стен однорядной разрезки следует производить:

- в плоскости стены - совмещая осевую риску панели в уровне низа с ориентирной риской на перекрытии, вынесенной от разбивочной оси. При наличии в стыках панелей зон компенсации накопленных погрешностей (при стыковании панелей внахлест в местах устройства лоджий, эркеров и других выступающих или западающих частей здания) выверку можно производить по шаблонам, фиксирующим проектный размер шва между панелями;

- из плоскости стены - совмещая нижнюю грань панели с установочными рисками на перекрытии, вынесенными от разбивочных осей;

- в вертикальной плоскости - выверяя внутреннюю грань панели относительно вертикали.

Монтаж объемных блоков шахт лифтов

Состав операций и средства контроля

Этапы работ

Контролируемые операции

Контроль (метод, объем)

Документация

Подготовительные работы

Проверить:

 

Паспорта (сертификаты), общий журнал работ

- наличие документа о качестве;

Визуальный

- качество поверхности, точность геометрических параметров, внешний вид панелей, наличие рисок осей кабин;

Визуальный, измерительный, каждый элемент

- очистку опорных поверхностей ранее смонтированных и поднимаемых панелей от мусора, грязи, снега и наледи;

Визуальный

- наличие ориентирных рисок на перекрытии, определяющих проектное положение монтируемых панелей;

То же

- наличие цементного раствора по всей площади опирания монтируемых панелей.

- » -

Монтаж панелей шахт лифтов

Контролировать:

 

Общий журнал работ, журнал сварочных работ

- установку блоков в проектное положение (отклонение от совмещения ориентиров в нижнем сечении; отклонение от вертикали граней двух взаимно перпендикулярных стен блока; отклонение по высоте порога дверного проема блока относительно посадочной площадки, отклонение от перпендикулярности внутренней поверхности стен ствола шахты);

Измерительный, каждый элемент

- качество выполнения сварочных работ.

Визуальный, измерительный

Приемка выполненных работ

Проверить:

 

Исполнительная геодезическая схема, акт освидетельствования скрытых работ

- фактическое положение смонтированных конструкций шахт лифтов;

Измерительный, каждый элемент

- качество сварочных соединений стыков.

Измерительный, визуальный

Контрольно-измерительный инструмент: отвес, рулетка, линейка металлическая, нивелир.

Операционный контроль осуществляют: мастер (прораб), геодезист - в процессе выполнения работ.

Приемочный контроль осуществляют: работники службы качества, мастер (прораб), представители технадзора заказчика.

Технические требования
СНиП 3.03.01-87 п. 3.7, табл. 12

Предельные отклонения:

- от совмещения ориентиров (рисок геометрических осей, граней) в нижнем сечении установленных объемных блоков с установочными ориентирами (рисками геометрических осей или гранями нижележащих элементов, рисками разбивочных осей) - 8 мм;

- от перпендикулярности внутренней поверхности стен ствола шахты относительно горизонтальной плоскости (пола приямка) - 30 мм;

- по высоте порога дверного проема объемного элемента шахты лифта относительно посадочной площадки - ±10 мм;

- от вертикали верха плоскостей блоков - 10 мм.

Не допускаются:

- разрывы по высоте при монтаже более чем на один этаж.

Требования к качеству применяемых материалов

ГОСТ 13015-2003. Изделия железобетонные и бетонные для строительства. Общие технические условия. Правила приемки, маркировки, транспортирования и хранения.

ГОСТ 17538-82*. Конструкции и изделия железобетонные для шахт лифтов жилых зданий. Технические условия.

Значения предельных отклонений геометрических параметров блоков не должны превышать, мм:

- по длине - +10 мм;

- по ширине - ±8 мм;

- по толщине стен - ±5 мм.

Неплоскостность лицевых поверхностей - не более 3 мм.

Характеристика бетонной поверхности

Категория

Диаметр раковин, мм

Высота (глубина) наплыва (впадин), мм

Глубина сколов, мм

Длина сколов в мм на 1 м ребра

Лицевая, под окраску

A3

4

2

5

50

Нелицевая, невидимая в условиях эксплуатации

А7

20

-

20

-

Маркировочные надписи и знаки должны быть нанесены на торцевой поверхности, невидимой в процессе эксплуатации.

Указания по производству работ
СНиП 3.03.01-87 п. 3.30

Объемные блоки шахт лифтов следует монтировать, как правило, с установленными в них кронштейнами для закрепления направляющих кабин и противовесов.

Низ объемных блоков необходимо устанавливать по ориентирным рискам, вынесенным на перекрытие от разбивочных осей и соответствующим проектному положению двух взаимно перпендикулярных стен блока (передней и одной из боковых). Относительно вертикальной плоскости блоки следует устанавливать, выверяя грани двух взаимно перпендикулярных стен блока.

Монтаж шахты должен производиться с опережением возведения примыкающих конструкций здания не более чем на один этаж.

Монтаж сборных железобетонных вентиляционных блоков

Состав операций и средства контроля

Этапы работ

Контролируемые операции

Контроль (метод, объем)

Документация

Подготовительные работы

Проверить:

 

Паспорта, (сертификаты) общий журнал работ

- наличие документа о качестве;

Визуальный

- качество поверхности, точность геометрических параметров, внешний вид блоков;

Измерительный, каждый блок

- очистку опорных поверхностей ранее смонтированных и поднимаемых блоков от мусора, грязи, снега и наледи;

Визуальный

- наличие ориентирных рисок на ранее смонтированных блоках, определяющих проектное положение монтируемого блока

 То же

Монтаж объемных блоков

Контролировать:

 

Общий журнал работ

- установку блоков в проектное положение;

Измерительный

- надежность закрепления блоков.

Визуальный

Приемка выполненных работ

Проверить:

 

Акт приемки выполненных работ

- фактическое положение смонтированных блоков;

Измерительный

- закрепление блоков в соответствии с требованиями проекта;

Технический осмотр

- качество заделки стыков между смежными блоками.

 То же

Контрольно-измерительный инструмент: отвес, рулетка, нивелир.

Операционный контроль осуществляют: мастер (прораб), инженер (лаборант) - в процессе работ.

Приемочный контроль осуществляют: работники службы качества, мастер (прораб), представители технадзора заказчика.

Технические требования
СНиП 3.03.01-87 пп. 3.5-3.7, табл. 12

Предельные отклонения:

- от совмещения ориентиров (рисок геометрических осей, граней) в нижнем сечении установленных блоков с установочными ориентирами (рисками геометрических осей или гранями нижележащих элементов, рисками разбивочных осей) - 8 мм;

- от вертикали верха плоскостей объемных блоков - 10 мм;

Марка раствора, применяемого при монтаже блоков, должна быть указана в проекте.

Подвижность раствора - 5-7 см по глубине погружения стандартного конуса.

Не допускается:

- применение раствора, процесс схватывания которого уже начался;

- омолаживание раствора.

Требования к качеству применяемых материалов

ГОСТ 17079-88. Блоки вентиляционные железобетонные. Технические условия.

ГОСТ 13015-2003. Изделия железобетонные и бетонные для строительства. Общие технические условия. Правила приемки, маркировки, транспортирования и хранения.

Значения действительных отклонений геометрических параметров блоков не должны превышать предельные, указанные в таблице, мм.

Наименование отклонения от геометрического параметра

Наименование геометрического параметра

Предельные отклонения

Отклонение от линейного размера

Длина блока:

 

до 1600

±5

св. 1600

±10

Толщина блока

±5

Высота блока

±8

Поперечное сечение каналов, размеры выступов, вырезов и отверстий

±5

Положение каналов

5

Положение закладных изделий:

 

в плоскости блока

10

из плоскости блока

5

Отклонение от прямолинейности профиля лицевых поверхностей в любом сечении на длине 1600 мм

 

5

Отклонение от равенства диагоналей лицевых поверхностей блоков (кроме крышных и чердачных)

 

16

Трещины на поверхностях панелей и в стенах каналов не допускаются, за исключением единичных местных поверхностных усадочных шириной не более 0,1 мм.

Обнажение арматуры не допускается, за исключением выпусков арматуры, предназначенных для сварки и замоноличивания при монтаже.

На лицевых поверхностях конструкций не допускаются жировые и ржавые пятна.

На лицевой поверхности каждой панели должны быть нанесены несмываемой краской при помощи трафарета или разных штампов:

а) товарный знак предприятия-изготовителя или его краткое наименование;

б) марка панели;

в) дата изготовления;

г) масса панели в тоннах.

Предприятие-изготовитель должно сопровождать (или высылать) каждую партию с документом о качестве.

Блоки при транспортировании и хранении следует устанавливать в вертикальном положении в кассеты.

Допускается транспортировать и хранить блоки в горизонтальном положении в штабелях. Высота штабеля - не более 2,5 м. Подкладки под блоками и прокладки между ними в штабеле следует располагать на расстоянии 500 мм от торцов блока.

Указания по производству работ
СНиП 3.03.01-87 п. 3.29

При установке вентиляционных блоков необходимо следить за совмещением каналов и тщательностью заполнения горизонтальных швов раствором.

Выверку вентиляционных блоков следует выполнять, совмещая оси двух взаимно перпендикулярных граней устанавливаемых блоков в уровне нижнего сечения с рисками осей нижестоящего блока.

Относительно вертикальной плоскости блоки следует устанавливать, выверяя плоскости двух взаимно перпендикулярных граней.

Стыки вентиляционных каналов блоков следует тщательно очищать от раствора и не допускать попадания его и других посторонних предметов в каналы.

Следует тщательно заделывать бетоном остающиеся после монтажа вентиляционных блоков отверстия в панелях перекрытия.

Монтаж объемных блоков

Состав операций и средства контроля

Этапы работ

Контролируемые операции

Контроль (метод, объем)

Документация

Подготовительные работы

Проверить:

 

Паспорта (сертификаты), общий журнал работ

- наличие документа о качестве;

Визуальный

- качество поверхности, точность геометрических параметров, внешний вид блоков;

Измерительный, каждый элемент

- очистку опорных поверхностей ранее смонтированных и поднимаемых блоков от мусора, грязи, снега и наледи;

Визуальный

- наличие ориентирных рисок на ранее смонтированных блоках, определяющих проектное положение монтируемого блока.

То же

Монтаж объемных блоков

Контролировать:

 

Общий журнал работ, журнал сварочных работ.

- установку блоков в проектное положение;

Измерительный

- качество выполнения сварочных работ.

Визуальный, измерительный

Приемка выполненных работ

Проверить:

 

Геодезическая исполнительная схема, акт приемки выполненных работ

- фактическое положение смонтированных объемных блоков;

Измерительный

- качество сварочных соединений.

Визуальный, измерительный

Контрольно-измерительный инструмент: отвес, рулетка, нивелир.

Операционный контроль осуществляют: мастер (прораб), инженер (лаборант) - в процессе работ.

Приемочный контроль осуществляют: работники службы качества, мастер (прораб), представители технадзора заказчика.

Технические требования
СНиП 3.03.01-87 пп. 3.5-3.7, 3.29, табл. 12

Предельные отклонения:

- от совмещения ориентиров (рисок геометрических осей, граней) в нижнем сечении установленных блоков с установочными ориентирами (рисками геометрических осей или гранями нижележащих элементов, рисками разбивочных осей) - 8 мм;

- от вертикали верха плоскостей объемных блоков- 10 мм;

Указания по производству работ
СНиП 3.03.01-87 п. 3.29

При монтаже выполняется выверка совмещением осей двух взаимно перпендикулярных граней устанавливаемых блоков в уровне нижнего сечения с рисками осей нижестоящего блока.

Относительно вертикальной плоскости блоки выверяются по двум взаимно перпендикулярным граням.

Требования к качеству применяемых материалов

ГОСТ 13015.0-83*. Конструкции и изделия бетонные и железобетонные сборные. Общие технические условия.

Отклонения фактических размеров блоков от номинальных не должны превышать, мм:

- по длине - ±10;

- по ширине и высоте - ±8;

- по толщине стен - ±5.

Разность длин диагоналей поверхностей - не более 16 мм, проемов - 10 мм.

Положение элементов стальных закладных деталей:

- в плоскости панели - 10 мм;

- из плоскости панели - 5 мм.

Монтаж санитарно-технических кабин

Состав операций и средства контроля

Этапы работ

Контролируемые операции

Контроль (метод, объем)

Документация

Подготовительные работы

Проверить:

 

Паспорта (сертификаты), общий журнал работ

- наличие документа о качестве;

Визуальный

- качество поверхности, точность геометрических параметров, внешний вид кабин;

Визуальный, измерительный, каждый элемент

- очистку опорных поверхностей кабин и перекрытий от мусора, грязи, снега, наледи;

Визуальный

- наличие ориентирных рисок на перекрытии, определяющих проектное положение монтируемой кабины;

Технический осмотр

- устройство проектного основания под кабины.

 То же

Монтаж санитарно-технических кабин

Контролировать:

 

Общий журнал работ

- установку кабин в проектное положение;

Измерительный, каждый элемент

- совмещение канализационного и водопроводного стояков в установленной и нижерасположенной кабинах;

Визуальный

- плотность примыкания поверхности опирания кабины к основанию.

Визуальный

Приемка выполненных работ

Проверить:

 

Исполнительная геодезическая схема, акт приемки выполненных работ

- соответствие фактического положения смонтированных кабин;

Визуальный, измерительный

- соединение трубопроводов водопровода и канализации;

Визуальный

- заделку швов между кабиной и стенками.

 То же

Контрольно-измерительный инструмент: уровень строительный, отвес, линейка металлическая, рейка-отвес, рулетка, нивелир.

Входной и операционный контроль осуществляют: мастер (прораб), геодезист - в процессе работ.

Приемочный контроль осуществляют: работники службы качества, мастер (прораб), представители технадзора заказчика.

Технические требования
СНиП 3.03.01-87 пп. 3.7, 3.31, табл. 12

Предельные отклонения:

- от совмещения ориентиров (рисок геометрических осей, граней) в нижнем сечении кабин с установочными ориентирами (рисками геометрических осей или гранями нижележащих элементов, рисками разбивочных осей) - 8 мм;

- от вертикали верха плоскостей кабин - 10 мм.

- в разнице отметок опорных поверхностей кабин в пределах выверенного участка - 10 мм.

Не допускаются:

- разрывы по высоте при монтаже более чем на один этаж.

Требования к качеству применяемых материалов

ГОСТ 18048-80*. Кабины санитарно-технические железобетонные. Технические условия.

ГОСТ 13015-2003. Изделия железобетонные и бетонные для строительства. Общие технические условия. Правила приемки, маркировки, транспортирования и хранения.

Отклонения фактических размеров кабин от номинальных, указанных в рабочих чертежах, не должны превышать, мм:

- по длине и высоте кабины снаружи - ±8;

- по расположению дверных проемов - ±5;

- по размерам и расположению отверстий - ±5;

- по расположению осей подводок к смесителю - ±2;

- по расположению концов установленных трубопроводов - ±5.

Отклонение от прямолинейности профиля поверхности стен пола и потолка кабин не должно превышать 5 мм на всю длину, ширину и высоту кабины.

Разность длин диагоналей наружных плоскостей кабин не должна превышать 10 мм.

Качество поверхности кабин должно соответствовать требованиям, приведенным в таблице.

Характеристика бетонной поверхности

Категория

Диаметр раковин, мм

Высота (глубина) наплыва (впадин), мм

Глубина сколов, мм

Длина сколов на 1 м ребра

Лицевая, предназначенная под окраску

А2

1

1

5

50

Нелицевая, невидимая в условиях эксплуатации

А7

20

-

20

-

Поставленные на монтаж санитарно-технические кабины должны быть укомплектованы сантехническим оборудованием согласно рабочим чертежам.

Указания по производству работ
СНиП 3.03.01-87 п. 3.30

Перед подъемом каждой санитарно-технической кабины необходимо проверить соответствие ее проектной марке, отсутствие на опорных поверхностях кабины и перекрытия мусора, грязи, снега, наледи, наличие на опорных поверхностях перекрытия ориентирных рисок, вынесенных от разбивочных осей и определяющих проектное положение двух взаимно перпендикулярных стен кабины (передней и одной из боковых).

Санитарно-технические кабины надлежит устанавливать на прокладки. Выверку низа кабин следует производить по ориентирным рискам, вынесенным на перекрытие от разбивочных осей. Относительно вертикальной плоскости кабины следует устанавливать, выверяя грани двух взаимно перпендикулярных стен кабины.

При установке кабин канализационный и водопроводный стояки необходимо тщательно совмещать с соответствующими стояками нижерасположенных кабин.

Отверстия в панелях перекрытий после установки кабин, монтажа стояков и проведения гидравлических испытаний должны быть тщательно заделаны раствором.

Санитарно-технические кабины надлежит устанавливать на прокладки, канализационный и водопроводный стояки необходимо тщательно совмещать с соответствующими стояками нижерасположенных кабин.

Монтаж гипсобетонпых перегородок

Состав операций и средства контроля

Этапы работ

Контролируемые операции

Контроль (метод, объем)

Документация

Подготовительные работы

Проверить:

 

Паспорта (сертификаты), общий журнал работ

- наличие документа о качестве;

Визуальный

- качество поверхности, точность геометрических параметров, внешний вид панелей;

Визуальный, измерительный, каждый элемент

- очистку основания и торцов перегородки от грязи мусора, снега и наледи;

Визуальный

- наличие крепежных деталей в ранее установленных (выложенных) конструкциях;

То же

- наличие цементных маяков в местах установки перегородок;

- » -

- наличие постели из цементного раствора по всей площади опирания перегородки;

- » -

- наличие разметки, определяющей проектное положение перегородок.

Визуальный, измерительный

Установка гипсобетонных перегородок

Контролировать:

 

Общий журнал работ

- установку панелей в проектное положение (предельные отклонения от вертикали верха плоскости перегородок, отклонение от совмещения продольной оси перегородки в нижнем сечении с рисками разбивочных осей);

Измерительный, каждый элемент

- правильность выполнения проектного крепления;

Визуальный

- плотность конопатки и замоноличивания зазоров.

То же

Приемка выполненных работ

Проверить:

 

Общий журнал работ, акт освидетельствования (приемки) выполненных работ

- соответствие фактического положения смонтированных панелей перегородок требованиям проекта;

Измерительный, каждый элемент

- качество крепления и замоноличивания стыков.

Визуальный, измерительный

Контрольно-измерительный инструмент: линейка измерительная, отвес строительный, рулетка.

Операционный контроль осуществляют: мастер (прораб) - в процессе выполнения работ.

Приемочный контроль осуществляют: работники службы качества, мастер(прораб), представители технадзора заказчика.

Технические требования
СНиП 3.03.01-87 пп. 3.7, 6.7, табл. 12

Предельные отклонения:

- от вертикали верха плоскости перегородок - 12 мм;

- от совмещения продольной оси перегородки в нижнем сечении с рисками разбивочных осей - 8 мм.

При приемке должен составляться акт освидетельствования скрытых работ по креплению перегородок и заделке стыков.

При приемке следует проверить надежность закрепления панелей, отсутствие трещин, зыбкости, поврежденных мест, изоляцию стыков между панелями и стенами.

Требования к качеству применяемых материалов

ГОСТ 6428-83. Плиты гипсобетонные для перегородок. Технические условия.

ГОСТ 9574-90. Панели гипсобетонные для перегородок. Технические условия.

Поставленные на монтаж панели гипсобетонные не должны иметь:

- жировых и ржавых пятен на лицевой поверхности;

- усадочных трещин шириной более 0,2 мм.

Значения действительных отклонений геометрических размеров панелей не должны превышать предельные, мм, указанные в таблице 1.

Таблица 1

Вид отклонения от геометрического параметра

Геометрический параметр

Предельные отклонения

Отклонение от линейного размера

Длина панелей:

 

до 4000

±8

св. 4000

±10

Высота панелей

±10

Толщина панелей

±2

Высота и ширина проемов

±5

Отклонение от проектного положения проемов, отверстий и вырезов

5

Отклонение от прямолинейности профиля поверхности панели на длине 2 м

3

Разность длин диагоналей

лицевых поверхностей длиной

 

до 4000

13

св.4000

16

проемов

10

Непрямолинейность на всю длину панели, мм

Длина панели

 

до 4 м

5

св. 4 м

8

Неплоскость панелей при высоте:

до 2500 длиной

 

до 4000

5

св. 4000

8

св. 2500 длиной

 

до 4000

8

св. 4000

13

Качество поверхностей и внешний вид панелей в зависимости от установленной категории поверхности должны отвечать требованиям, приведенным в таблице 2.

Таблица 2

Характеристика бетонной поверхности

Категория

Предельные размеры, мм

раковин

местных наплывов (высота) и впадин (глубина)

сколов гипсобетона

диаметр

глубина

глубина

длина на 1 м ребра

Под окраску

А2

1

1

1

1

50

Под оклейку обоями или пленками

А4

4

3

1

5

50

Под затирку или шпатлевку

А7

15

5

3

8

80

Указания по производству работ
СНиП 3.03.01-87 пп. 3.25, 6.4, 6.7

Установка панелей в плане и по высоте должна выполняться путем совмещения установочных рисок, нанесенных на монтируемых и опорных конструкциях, опирая на выверенные относительно монтажного горизонта маяки, изготовленные из раствора.

Верх панелей необходимо выверить относительно разбивочных осей.

Крепление панелей перегородок к стенам по высоте должно производиться в двух местах:

- к перекрытиям:

- при длине панелей до 4 м - в одном месте;

- при большей длине - в двух местах.

Стыки плотно забивают просмоленной паклей, смоченной в гипсовом растворе, и заделывают гипсовым раствором с затиркой.

Монтаж асбестоцементных экструзионных панелей и плит

Состав операций и средства контроля

Этапы работ

Контролируемые операции

Контроль (метод, объем)

Документация

Подготовительные работы

Проверить:

 

Паспорта (сертификаты), акт освидетельствования скрытых работ, общий журнал работ

- наличие документа о качестве;

Визуальный

- качество поверхности, точность геометрических параметров, внешний вид панелей;

Визуальный, измерительный, каждый элемент

- наличие акта освидетельствования (приемки) ранее выполненных работ;

Визуальный

- наличие разметки, определяющей проектное положение панелей;

Измерительный

- правильность сборки панелей стен в «карты»;

Визуальный

- наличие уплотняющих прокладок в горизонтальных и вертикальных стыках панелей.

То же

Монтаж панелей

Контролировать:

 

Общий журнал работ

- установку панелей в проектное положение (отклонение плоскостей панелей от вертикали, смещение осей или граней панели в нижнем сечении относительно разбивочных осей);

Измерительный, каждая панель

- толщину шва между смежными панелями по длине;

То же

- уступ между смежными гранями панелей из их плоскости;

- » -

- качество выполнения работ по замоноличиванию и герметизации стыков.

Визуальный

Приемка выполненных работ

Проверить:

 

Общий журнал работ, акт приемки выполненных работ

- фактическое положение смонтированных панелей;

Измерительный

- выполнение требований проекта и нормативных документов к качеству крепления герметизации стыков.

Технический осмотр

Контрольно-измерительный инструмент: линейка измерительная, отвес строительный.

Входной и операционный контроль осуществляют: мастер (прораб), инженер (лаборант) - в процессе работ.

Приемочный контроль осуществляют: работники службы качества, мастер (прораб), представители технадзора заказчика.

Технические требования
СНиП 3.03.01-87 табл. 25

Предельные отклонения:

- уступа между смещенными гранями панелей из их плоскости - 4 мм;

- плоскости панелей от вертикали - 5 мм;

- толщины шва между смежными панелями по длине - ±4 мм;

При приемке следует проверять надежность закрепления панелей, отсутствие трещин, зыбкости, поврежденных мест, промежуточному контролю подлежит изоляция стыков между панелями.

Указания по производству работ
СНиП 3.03.01-87 пп. 6.3-6.6

Панели перегородок в многоэтажных зданиях следует монтировать после монтажа несущих элементов на этаже с применением специальных приспособлений (кантователей, вышек с лебедками и др.) без использования монтажных кранов; в одноэтажных зданиях - с помощью монтажных кранов или специальных приспособлений.

Установка панелей и плит в плане и по высоте должна выполняться путем совмещения рисок, нанесенных на монтируемых и опорных конструкциях. Верх панелей необходимо выделять относительно разбивочных осей.

Уплотняющие прокладки в стыки панелей необходимо укладывать до установки панелей.

Законченные конструкции следует принимать поэтажно, посекционно.

Требования к качеству применяемых материалов

ГОСТ 6428-83. Плиты гипсовые для перегородок. Технические условия.

Предельные отклонения размеров плит пазовых, мм:

- по длине - ±4;

- по ширине - ±2;

- по толщине - ±2.

Монтаж каркасно-обшивных перегородок

Состав операций и средства контроля

Этапы работ

Контролируемые операции

Контроль (метод, объем)

Документация

Подготовительные работы

Проверить:

 

Паспорта (сертификаты), общий журнал работ

- наличие документа о качестве;

Визуальный

- качество поверхности, точность геометрических параметров, внешний вид листов обшивки;

Измерительный, каждый элемент

- наличие разметки, определяющей проектное положение листов обшивки на опорах;

Измерительный

- смешение направляющих от разбивочных осей;

Измерительный

- расстояние между осями стоек.

То же

Монтаж перегородок

Контролировать:

 

Общий журнал работ

- правильность стыковки листов обшивки, величину нахлеста листа обшивки на стойку;

Измерительный, каждый элемент

- расстояние между деталями крепления направляющих к несущим конструкциям;

То же

 

- зазоры между плитами, а также между ними и элементами каркаса;

- » -

 

- размеры шва между стыкуемыми листами;

- » -

 

- углубление головки винта или шурупа в обшивку каркаса;

- » -

 

- уступ между смежными листами вдоль шва.

- » -

 

Приемка выполненных работ

Проверить:

 

Акт освидетельствования скрытых работ, акт приемки выполненных работ

- соответствие фактического положения смонтированных каркасно-обшивных перегородок;

Измерительный, каждый элемент

- надежность крепления;

Технический осмотр

 

- качество поверхности.

То же

 

Контрольно-измерительный инструмент: линейка измерительная, отвес строительный, рулетка.

Входной и операционный контроль осуществляют: мастер (прораб) - в процессе работ.

Приемочный контроль осуществляют: работники службы качества, мастер (прораб), представители технадзора заказчика.

Технические требования
СНиП 3.03.01-87 пп. 6.14-6.17, табл. 26

Предельные отклонения:

- смещения направляющих от разбивочных осей - 3 мм;

- минимальной величины нахлеста листа обшивки на стойку:

- в металлическом каркасе - 10 мм;

- в деревянном каркасе - 20 мм;

- расстояния между деталями крепления направляющих к несущим конструкциям - ±5 мм;

- расстояния между осями стоек - ±2 мм;

- уступа между смежными листами вдоль шва - ±1 мм;

- размера шва между стыкуемыми листами - -1; ±2 мм;

- зазора между звукоизоляционными плитами, а также между ними и элементами каркаса - не более 2 мм;

- углубления головки винта или шурупа в обшивку каркаса - 0,5-1 мм;

- перегородок от вертикали - не более 2 мм на 1 м высоты и 10 мм на всю высоту помещения.

Поверхности перегородок, подготовленные для отделки, должны иметь не более двух неровностей глубиной или высотой 3 мм при накладывании двухметровой рейки.

При приемке следует проверять устойчивость каркаса, надежность крепления листов обшивки, отсутствие у листов надрывов, повреждений, масляных пятен и загрязнений.

Монтаж стен из панелей типа «Сэндвич» и полистовой сборки

Состав операций и средства контроля

Этапы работ

Контролируемые операции

Контроль (метод, объем)

Документация

Подготовительные работы

Проверить:

 

Паспорта, (сертификаты), общий журнал работ

- наличие документа о качестве;

Визуальный

- качество поверхности, точность геометрических параметров, внешний вид панелей;

Измерительный, каждый элемент

- наличие разметки, определяющей проектное положение панелей.

Измерительный

Монтаж панелей

Контролировать:

 

Общий журнал работ

- установку панелей в проектное положение (отклонение от вертикали продольных кромок панелей, смещение осей и граней панели в нижнем сечении относительно разбивочных осей или ориентировочных рисок, разность отметок концов горизонтально установленных панелей, плоскости наружной поверхности стенового ограждения от вертикали);

Измерительный, каждая панель

- качество выполнения болтовых соединений панелей с каркасом;

Технический осмотр (каждый элемент)

- качество замоноличивания и герметизации стыков.

То же

Приемка выполненных работ

Проверить:

 

Акт освидетельствования скрытых работ, акт приемки выполненных работ

- фактическое положение смонтированных панелей;

Измерительный, каждый элемент

-качество замоноличивания и герметизации стыков.

Технический осмотр

Контрольно-измерительный инструмент: линейка измерительная, отвес строительный, рулетка.

Входной и операционный контроль осуществляют: мастер (прораб) - в процессе работ.

Приемочный контроль осуществляют: работники службы качества, мастер (прораб), представители технадзора заказчика.

Технические требования
СНиП 3.03.01-87 пп. 6.19-6.21, табл. 27

Предельные отклонения:

- от вертикали кромок панелей - 0,001 длины панели (l);

- разности отметок концов горизонтально установленных панелей при длине панели:

- до 6 м - 5 мм;

- свыше 6 м до 12 м - 10 мм;

- плоскости наружной поверхности стенового ограждения - от вертикали - 0,002 высоты ограждений (h);

- размеров карт укрупненной сборки по длине и ширине - ±6 мм;

- разности размеров диагоналей - 15 мм.

Законченные монтажом конструкции стен следует принимать на все здание, температурный блок или по пролетам.

Сварка монтажных соединений железобетонных конструкций

Состав операций и средства контроля

Этапы работ

Контролируемые операции

Контроль (метод, объем)

Документация

Подготовительные работы

Проверить:

 

Сертификаты, журнал сварочных работ, общий журнал работ

- качество электродов (наличие сертификатов);

Визуальный

- подготовку свариваемых поверхностей и рабочего места сварщика;

 То же

- наличие и исправность сварочного оборудования;

- » -

- перед сборкой конструкций - соответствие классов стержневой арматуры, марок стали закладных изделий и соединительных деталей;

- » -

- перед сваркой - размеры и точность сопряжения соединительных элементов.

- » -

Сварка

Контролировать:

 

Журнал сварочных работ

- соблюдение заданного технологического режима сварки;

Визуальный

- технологию сварки и качество сварных швов.

То же

Приемка сварочных работ

Проверить:

 

Журнал сварочных работ, акт освидетельствования скрытых работ

- соответствие конструкций сварных швов проектным;

Визуальный, измерительный

- очистку сварных швов от шлака и брызг металла;

Визуальный

- наличие недопустимых дефектов (трещин, скоплений и цепочек пор, шлаковых включений, резких сужений и перерывов);

Визуальный, измерительный

- геометрические размеры швов;

Измерительный

- качество стыков механическими, ультразвуковыми или радиографическими методами испытаний (при необходимости).

То же

Контрольно-измерительный инструмент: шаблоны, линейка металлическая, катетомер.

 

Входной и операционный контроль осуществляют: мастер (прораб), сварщик.

Приемочный контроль осуществляют: мастер (прораб), представители технадзора заказчика.

Технические требования
СНиП 3.03.01-87 пп. 8.39, 8.42, 8.43, 8.49, ГОСТ 10922-90, ГОСТ 14098-91

Не допускаются:

- трещины всех видов и размеров в швах сварных соединений;

- ожоги дуговой сваркой на поверхности стержней рабочей арматуры;

- обрезка концов стержней из конструкций при монтаже или подготовка их кромок электродугой;

- применение вставки между стыкуемыми арматурными стержнями менее 80 мм и более одной.

Допускаемые отклонения несоосности стыкуемых арматурных стержней, смещений и размеров элементов сварных соединений приведены в таблице 1 (рис. 1).

Рис. 1

Таблица 1

Технические требования

Допускаемые отклонения для свариваемых стержней диаметром (d), мм

10-28

32-40

45-80

Смещение продольных осей стержней относительно друг друга в стыковых соединениях, выполненных различными способами сварки

0,2

0,1

0,05

То же для соединений, выполненных дуговой сваркой швами с накладками из стержней

0,3

0,3

0,2

Смещение линии, соединяющей центры сечений круглых накладок, относительно стыкуемых стержней при сварке односторонними швами

0,5

0,5

0,3

Отклонение длины круглых накладок

0,5

0,5

0,5

Отклонение длины протяженных швов в стыковых соединениях с круглыми накладками

0,5

0,5

0,5

Отклонение длины нахлестки при сварке стержней

0,5

0,5

0,5

Уменьшение ширины протяженных швов

0,1

0,1

0,5

Допускаемые количество и размеры наружных дефектов в сварных соединениях, выполненных дуговой, ванной и ванно-шовной сваркой, приведены в таблице 2 (рис. 2).

Рис. 2

Таблица 2

Технические требования

Допуски для стержней диаметром (d), мм

10-28

32-40

45-80

Количество единичных сферических пор диаметром до2 мм в стыковых соединениях, выполненных дуговой сваркой протяженными швами, на длине шва 100 мм

5 шт

7 шт

9 шт

То же при других способах дуговой сварки

7 шт

9 шт

12 шт

Количество цепочек и скоплений сферических пор диаметром до 2 мм на длине до 50 мм в соединениях, выполненных дуговой сваркой

2 шт

3 шт

4 шт

То же при других способах дуговой сварки

1 шт

1 шт

2 шт

Глубина усадочных раковин наплавленного металла при стыковой ванной и ванно-шовной сварке

2 мм

3 мм

5 мм

Глубина непровара венчика наплавленного металла с цилиндрической поверхностью стержня при дуговой сварке

1 мм

1 мм

отсутствуют

Наплывы на сварном соединении

5 мм

7 мм

10 мм

Требования к качеству применяемых материалов

ГОСТ 9466-75*. Электроды покрытые металлические для ручной дуговой сварки сталей и наплавки. Классификация и общие технические условия.

Покрытие электродов должно быть плотным, прочным, без вздутий, пор, наплывов, трещин и местных сетчатых растрескиваний.

На отдельных электродах, суммарное количество которых не должно превышать 10% общего числа контролируемых электродов, допускается:

- отклонение длины зачищенного от покрытия конца от номинального значения - до ±7 мм;

- наличие на покрытии каждого электрода не более двух поперечных надрывов размером не более половины длины окружности покрытия.

Электроды должны быть упакованы в коробки или пачки, на которых должна иметься этикетка или маркировка, содержащая наряду с другими данные по режимам сварочного тока, прокаливания электродов. Каждая партия электродов должна сопровождаться сертификатом. При его отсутствии или истечении гарантийного срока хранения необходимо определять механические свойства стыков сварных соединений, выполненных с применением этих электродов.

Указания по производству работ
СНиП 3.03.01-87 пп. 8.33, 8.41, 8.44-8.46

Конструкции сварных соединений стержневой арматуры должны соответствовать проекту или ГОСТ 14098-91.

Перед сваркой арматурные стержни в месте соединения следует зачищать на длине, превышающей на 10-15 мм сварной шов или стык.

Элементы сборных железобетонных конструкций следует собирать с использованием устройств и приспособлений, фиксирующих их проектное положение; сварку производить в надежно зафиксированном положении.

После окончания сварки выполненное сварное соединение необходимо очистить от шлака и брызг металла.

Приемочный контроль выполненных сварных соединений арматуры должен предусматривать внешний осмотр и, при необходимости, комплекс испытаний по ГОСТ 10922-90.

Выполненные сварочные работы перед бетонированием следует оформлять актами освидетельствования скрытых работ.

Антикоррозионная защита стальных закладных изделий

Состав операций и средства контроля

Этапы работ

Контролируемые операции

Контроль (метод, объем)

Документация

Подготовительные работы

Проверить:

 

Паспорта (сертификаты), общий журнал работ

- наличие документа о качестве на материалы, используемые для антикоррозионной защиты;

Визуальный

- качество используемых материалов (внешним осмотром);

То же

- очистку защищаемых поверхностей от остатков сварочного шлака, брызг металла, ржавчины, копоти, пыли и подготовку поверхностей;

- » -

- подготовку материалов (порошка, проволоки, цинкового протекторного грунта) к производству работ.

- » -

Устройство антикоррозионного покрытия

Контролировать:

 

Общий журнал работ

- технологию нанесения антикоррозионных составов;

Визуальный

- толщину отдельных слоев и общую толщину защитного покрытия;

Измерительный

- внешний вид поверхности покрытия, прочность сцепления покрытия с защищаемой поверхностью.

Визуальный

Приемка выполненных работ

Проверить:

 

Акт освидетельствования скрытых работ

- внешний вид покрытия;

Визуальный

- толщину покрытия;

Измерительный

- прочность сцепления покрытия с защищаемой поверхностью.

Технический осмотр

Контрольно-измерительный инструмент: магнитный толщиномер типа ИТП-1, толщиномер для лакокрасочных покрытий.

Операционный контроль осуществляют: мастер (прораб), инженер (лаборант) - в процессе работ.

Приемочный контроль осуществляют: работники службы качества, мастер (прораб), представители технадзора заказчика.

Технические требования
СНиП 3.03.01-87 пп. 3.39, 3.41, 3.42, СНиП 3.04.03-85 прилож. 3

Не допускаются:

- непрокрашенные места, потеки, вздутия, шелушения и растрескивания покрытия на окрашенной поверхности.

Готовое покрытие подлежит проверке по следующим показателям:

- внешний вид;

- время выдержки покрытия до начала эксплуатации;

- толщина;

- сцепление с защищаемой поверхностью.

Внешний вид покрытия проверяется после высыхания материала защиты.

Время выдержки покрытия до начала эксплуатации оценивается степенью высыхания.

Толщина слоя защиты - в соответствии с проектом.

По антикоррозионной защите составляется акт освидетельствования скрытых работ.

Требования к качеству применяемых материалов

ГОСТ 2603-79*. Ацетон технический. Технические условия.

ГОСТ 7313-75*. Эмали ХВ-785 и лак ХВ-784. Технические условия.

ГОСТ 7827-74*. Растворители марок Р-4, Р-4А, Р-5, Р-5А, Р12 для лакокрасочных материалов. Технические условия.

ГОСТ 7871-75*. Проволока сварочная из алюминия и алюминиевых сплавов. Технические условия.

ГОСТ 13073-77*. Проволока цинковая. Технические условия.

Цинковый порошок должен быть светло-серого или серого цвета. Он не должен содержать посторонние примеси: кусочки металла, керамики, глазури, комки, гранулы, окатыши.

Цинковый порошок поставляется в специальной герметической таре: металлических контейнерах, флягах, барабанах, мешочках. Слежавшийся после длительного хранения порошок перед употреблением необходимо просушить, разрыхлить и просеять.

Для нанесения покрытий способом электрометаллизации применяют цинковую проволоку диаметром 1,5 и 2 мм марки ЦТ (ГОСТ 13073-77*). Цинковую проволоку следует хранить в сухих закрытых помещениях. Перед употреблением проволоку выравнивают, удаляют грязь, окислы, жир и влагу.

Для нанесения алюминиевых покрытий применяют проволоку алюминиевую сварочную марок Св-А85, Св-АМц, Св-Амг3, Св-АМг5 (ГОСТ 7871-75*), проволоку алюминиевую круглую электротехническую марок АГ и АПТ

Цинковые протекторные грунты представляют собой смесь наполнителя, цинковой пыли и лаковой основы. В состав фунта входят 80-95% (по массе) цинковой пыли. Материалы для цинковых протекторных грунтов: ацетон - ГОСТ 2603-79*; растворитель (разжижитель Р-4 или Р-5) - ГОСТ 7827-74*; перхлорвиниловый лак ХСЛ - ГОСТ 7313-75*. Растворитель применяется для разбавлений загустевшего лака ХСЛ или готового протекторного грунта до рабочей вязкости.

Лакокрасочные материалы во всех случаях сомнения в их качестве (нарушение целостности упаковки, неясность маркировки, несоответствие условий хранения и др.) должны проверяться в лабораторных условиях на вязкость, адгезию, консистенцию и др.

При входном контроле материалов, используемых для антикоррозионной защиты, необходимо проверить наличие документа о качестве.

Указания по производству работ
СНиП 3.03.01-87 пп. 3.38, 3.39, СНиП 3.04.03-85 пп. 3.1, 8.3, 8.5, 8.6

Защиту от коррозии стальных закладных изделий и соединительных элементов железобетонных конструкций предусматривают:

- металлическими покрытиями (цинковыми или алюминиевыми) в помещениях с влажным или мокрым режимом при неагрессивной или слабоагрессивной степени воздействия среды;

- комбинированными покрытиями (лакокрасочными по металлизационному слою) при средней и сильной степени агрессивного воздействия среды.

Способ антикоррозионной защиты и толщина наносимого слоя должны быть указаны в проекте.

Толщина металлизационных покрытий и металлизационного слоя в комбинированных покрытиях должна быть для цинковых и алюминиевых покрытий не менее 120 мкм.

Антикоррозийное покрытие сварных соединений, а также участков закладных деталей и связей надлежит выполнять во всех местах, где при монтаже и сварке нарушена заводская защита.

Непосредственно перед нанесением антикоррозионных покрытий защищаемые поверхности должны быть очищены от остатков сварочного шлака, брызг металла, жиров и других загрязнений.

На строительной площадке антикоррозионную защиту сварных соединений и соединительных элементов рекомендуется выполнять не позднее чем через 3 дня после выполнения сварочных работ.

В условиях строительной площадки металлизационное покрытие наносят вручную газопламенным и электродуговым способами.

Для обеспечения высокого качества металлизационного покрытия при напылении защитного металла необходимо соблюдать следующие условия: расстояние от точки плавления проволоки (от насадки горелки) до защищаемой поверхности должно быть в пределах 80-150 мм; оптимальный угол нанесения металловоздушной струи должен быть 65-80°; оптимальная толщина одного слоя должна быть 50-60 мкм; температура защищаемой поверхности при нагреве не должна превышать 150 °С.

Антикоррозионная защита сварных соединений цинковыми протекторными грунтами осуществляется путем нанесения грунта кистью за один прием по сухой поверхности. Толщина защитной пленки 0,15-0,2 мм. Покрытие должно быть ровным, не иметь видимых пузырьков и трещин.

Для улучшения защитного действия и долговечности цинкового покрытия или протекторного грунта рекомендуется поверх них наносить один слой битумного лака.

Контроль качества антикоррозионной защиты включает в себя визуальную проверку структуры и сплошности покрытия, а также проверку толщины слоя покрытия, выполненную с помощью магнитного толщиномера.

Герметизация стыков

Состав операций и средства контроля

Этапы работ

Контролируемые операции

Контроль (метод, объем)

Документация

Подготовительные работы

Проверить:

 

Паспорта (сертификаты), общий журнал работ, акт освидетельствования (приемки) работ, общий журнал работ

- наличие документов о качестве на герметизирующие материалы;

Визуальный

- комплектность и качество герметизирующих материалов;

 То же

- наличие акта освидетельствования (приемки) ранее выполненных работ по сварке и антикоррозионной защите закладных изделий и сварных соединений;

- » -

- качество очистки поверхности стыков от пыли, грязи, снега и наледи;

 

- качество просушки поверхности стыков.

- » -

Герметизация стыков

Контролировать:

 

Журнал замоноличивания монтажных стыков и узлов, общий журнал работ

- укладку уплотняющих прокладок;

Визуальный, измерительный

- установку и закрепление в соответствии с проектом теплоизоляционных вкладышей;

Визуальный

- устройство растворной постели;

То же

- устройство воздухоизоляции стыков;

Визуальный, измерительный

- изоляцию стыков мастиками;

То же

- устройство защитного покрытия;

Визуальный

- устройство водоотбойного экрана.

То же

Приемка выполненных работ

Проверить:

 

Акт освидетельствования скрытых работ

- внешний вид стыков;

Визуальный

- качество герметизации стыков.

Измерительный

Контрольно-измерительный инструмент: металлический щуп с делениями, адгезиметр, линейка измерительная.

Входной и операционный контроль осуществляют: мастер (прораб), инженер (лаборант) - в процессе выполнения работ.

Приемочный контроль осуществляют: работники службы качества, мастер (прораб), представители технадзора заказчика.

Технические требования
СНиП 3.03.01-87 пп. 3.54, 3.58-3.72

Соединение уплотняющих прокладок по длине должно быть «на ус», место соединения - на расстоянии не менее 0,3 м от пересечения вертикального и горизонтального стыка.

Обжатие прокладок, установленных в стыках, должно составлять не менее 20% диаметра (ширины) их поперечного сечения.

Соединение воздухозащитных лент подлине внахлест, величина нахлеста - 100-120 мм.

Предельное отклонение толщины слоя мастики от проектной не должно превышать +2 мм.

Температура мастик в момент нанесения:

- при положительных температурах наружного воздуха - 15-20 °С;

- в зимние периоды:

- для нетвердеющих - 35-40 °С;

- для отверждающихся - 15-20 °С.

Не допускается:

- замена материала для изоляции стыков без согласования с проектной организацией;

- нанесение герметизирующих мастик на влажные, заиндевевшие или обледеневшие поверхности стыков;

- уплотнение стыков двумя скрученными вместе прокладками;

- разрывы на поверхности нанесенного слоя мастики.

На весь комплекс работ по герметизации стыков оформляются акты освидетельствования скрытых работ.

Требования к качеству применяемых материалов

К качеству прокладок предъявляются следующие требования:

- прокладки должны иметь сплошную поверхностную пленку без трещин и разрывов;

- на поверхности прокладок не допускаются: бугорки или углубления, завулканизированные складки высотой (глубиной) более 3 мм, отслаивание поверхности пленки от прокладки длиной более 50 мм в количестве более 1/4 наименьшего размера сечения прокладки;

- в поперечном срезе прокладок не должно быть внутренних пустот размером более 1/4 наименьшего размера сечения прокладки; предельные отклонения линейных размеров сечения прокладок не должны превышать 10% номинала; длина прокладки должна быть не менее 3 м.

К качеству теплоизоляционных плит из полистирольного пенопласта предъявляются следующие требования:

- на поверхности плит не допускаются выпуклости или впадины длиной более 50 мм, шириной более 3 мм и высотой (глубиной) более 5 мм.

На воздухозащитной ленте «Герлен-3» не допускается наличие разрывов, сквозных отверстий и посторонних включений, а также разрывов и отслаивания силиконизированной бумаги на липкой стороне ленты. На лицевой стороне допускается наличие шагрени. Допускаемые отклонения по длине ленты - ±100 мм (на размер ленты в рулоне 12 м); по ширине - ±5 мм.

Мастики должны иметь однородную консистенцию, не должны содержать комочки и посторонние включения.

Указания по производству работ
СНиП 3.03.01-87 пп. 3.55-3.72, 3.74

Конструкция и состав заполнения стыка должны соответствовать проекту.

Работы по изоляции стыков должны выполнять специально обученные рабочие, имеющие удостоверение на право производства таких работ.

Изолирующие материалы после истечения установленного стандартами или ТУ срока хранения перед применением подлежат контрольной проверке в лаборатории.

Грунтовка должна образовывать сплошную пленку. Поверхности панелей наружных стен, образующие стыки, перед выполнением работ по устройству водо- и воздухоизоляции должны быть очищены от пыли, грязи, наплывов бетона и просушены. Поверхностные повреждения бетонных панелей в месте устройства стыков (трещины, раковины, сколы) должны быть отремонтированы с применением полимерцементных составов. Нарушенный грунтовочный слой должен быть восстановлен в построечных условиях.

Соединять ленты по высоте до замоноличивания колодцев стыков нижерасположенного этажа не допускается. Наклеенная воздухозащитная лента должна плотно прилегать к изолируемой поверхности стыков, без пузырей вздутий и складок.

Теплоизоляционные вкладыши следует устанавливать в колодцы вертикальных стыков после устройства воздухоизоляции. Материалы вкладышей должны иметь влажность, установленную стандартами или ТУ на эти материалы. Установленные вкладыши должны плотно прилегать к поверхности колодца и быть закреплены в соответствии с проектом. Зазоры между вкладышами должны быть заполнены материалом той же объемной массы.

Замоноличивание стыков и швов

Состав операций и средства контроля

Этапы работ

Контролируемые операции

Контроль (метод, объем)

Документация

Подготовительные работы

Проверить:

 

Паспорта, акт освидетельствования скрытых работ, общий журнал работ

- наличие документов о качестве на бетонную смесь и строительный раствор;

Визуальный

- наличие акта приемки (освидетельствования) на ранее выполненные работы;

То же

- очистку полостей стыков и швов от мусора, грязи, снега, наледи;

- » -

- правильность установки и закрепления опалубки;

- » -

- наличие в полном объеме оборудования и приспособлений для производства работ, их исправность.

- » -

Замоноличивание стыков и швов

Контролировать:

 

Общий журнал работ

- соответствие бетонной и растворной смеси требованиям проекта и технологической карты по удобоукладываемости, крупности заполнителя, отсутствию расслоения;

Визуальный, измерительный

- состояние опалубки;

Визуальный

- укладку и уплотнение бетонной смеси;

То же

- температурно-влажностный режим твердения бетона и раствора;

Измерительный

- фактическую прочность бетона и раствора и сроки распалубки.

То же

Приемка выполненных работ

Проверить:

 

Акт освидетельствования скрытых работ

- фактическую прочность бетона и раствора;

Измерительный

- внешний вид замоноличенных стыков.

Визуальный

Контрольно-измерительный инструмент: отвес, рулетка металлическая, линейка металлическая, уровень, правило.

Входной и операционный контроль осуществляют: мастер (прораб), инженер (лаборант) - в процессе работ.

Приемочный контроль осуществляют: работники службы качества, мастер (прораб), представители технадзора заказчика.

Технические требования
СНиП 3.03.01-87 пп. 3.44, 3.46, 3.50

Класс бетона и марка раствора для замоноличивания стыков и швов - в соответствии с проектом.

Применение для бетонных смесей:

- быстротвердеющие портландцементы и портландцемент М-400 и выше;

- крупность заполнителя размером не более 1/3 сечения стыка. Прочность бетона в стыках ко времени распалубки - в соответствии с проектом; при отсутствии указания в проекте - не менее 50% проектной прочности на сжатие.

Указания но производству работ
СНиП 3.03.01-87 пп. 3.43, 3.47-3.48

Замоноличивание стыков следует выполнять после проверки правильности установки конструкции, приемки соединений элементов в узлах сопряжения и выполнения антикоррозионного покрытия сварных соединений и поврежденных участков покрытия закладных деталей.

Опалубка для замоноличивания стыков и швов, как правило, должна быть инвентарной.

Для улучшения удобоукладываемости в смеси следует вводить пластифицирующие добавки.

Непосредственно перед замоноличиванием стыков и швов необходимо:

- проверить правильность и надежность установки опалубки;

- очистить стыкуемые поверхности от мусора и грязи.

Фактическую прочность уложенного бетона следует контролировать испытанием серии образцов, изготовляемых на месте замоноличивания.

Устройство мусоропровода

Состав операций и средства контроля

Этапы работ

Контролируемые операции

Контроль (метод, объем)

Документация

Подготовительные работы

Проверить:

 

Паспорта (сертификаты), общий журнал работ

- наличие документа о качестве;

Визуальный

- качество поверхности, геометрические размеры, внешний вид труб и соединительных муфт;

Измерительный, каждый элемент

- очистку опорных поверхностей ранее смонтированных и поднимаемых труб от мусора, грязи, снега и наледи;

Визуальный

- наличие ориентирных рисок на основании (ранее смонтированных трубах), определяющих проектное положение трубы.

То же

Монтаж провода

Контролировать:

 

Общий журнал работ

- установку труб в проектное положение, соблюдение проектной оси трубопровода;

Измерительный

- качество заделки стыков труб;

Технический осмотр

- качество крепления кожуха к стволу, плотность притвора клапанов;

То же

- правильность установки и герметизация соединения короба со стволом мусоропровода;

- » -

- соответствие высоты вывода трубы над кровлей и правильность установки дефлектора.

 

Приемка выполненных работ

Проверить:

 

Акт приемки выполненных работ

- фактическое положение смонтированного трубопровода;

Измерительный

- наличие тяги в трубопроводе, отсутствие подсоса;

Технический осмотр

- качество окраски ствола и металлических деталей мусоропровода.

То же

Контрольно-измерительный инструмент: отвес, рулетка, нивелир.

Операционный контроль осуществляют: мастер (прораб), инженер (лаборант) - в процессе работ.

Приемочный контроль осуществляют: работники службы качества, мастер (прораб), представители технадзора заказчика.

Технические требования
СНиП 3.03.01-87 табл. 12

Предельные отклонения;

- от вертикали ствола мусоропровода:

- на 1 м высоты - 2 мм;

- на всю высоту ствола - 25 мм.

Стыки стволов мусоропровода должны быть газоводонепроницаемыми. Приемный клапан должен легко, без заеданий, открываться.

Не допускаются:

- уступы, наплывы, заусенцы на элементах мусоропроводов;

- щели в кожухах клапана.

При приемке мусоропровода должно быть определено:

- соответствие выполненных работ проекту;

- надежность и плотность сопряжений элементов ствола и приемных клапанов;

- надежность крепления элементов мусоропровода;

- легкость и бесшумность работы приемных клапанов;

- качество отделки мусоропровода.

Требования к качеству применяемых материалов

ГОСТ 1839-80*. Трубы и муфты асбестоцементные для безнапорных трубопроводов. Технические условия.

Асбестоцементные трубы, применяемые для устройства мусоропроводов, должны быть диаметром 300 мм и более, длиной 2950 мм и 3950 мм.

Отклонения размеров асбестоцементных труб от номинальных не должны превышать:

- по наружному диаметру обточенного конца трубы - -3 мм;

- по длине трубы - -50 мм;

- по толщине стенки - +3 мм; -4 мм.

Отклонения размеров асбестоцементных муфт от номинальных не должны превышать:

- по длине - +5 мм;

- по внутреннему диаметру и диаметру канавки - +3 мм.

Трубы и муфты не должны иметь трещин, обломов и расслоений. Концы труб и внутренняя поверхность муфт должны быть обточены. Трубы должны быть прямыми, отклонение от прямолинейности не должно превышать:

- для труб длиной 2950 мм и 3950 мм - 12 мм.

Трубы должны поставляться комплектно с муфтами и резиновыми кольцами.

Указания по производству работ
СНиП 2.08.02-89 пп. 1.53-1.54

Мусоропровод должен монтироваться в соответствии с проектом.

Соединение труб должно производиться на муфтах с уплотнительными кольцами.

Стык кожуха клапана со стволом должен быть плотным, без внутренних выступов и неровностей изнутри. При закрытой дверце прикрепленный на ней уплотнитель должен плотно прилегать к кожуху клапана.

В местах вывода вытяжной трубы через кровлю здания должна быть обеспечена водонепроницаемость примыканий.

Перед приемкой в эксплуатацию мусоропровод должен быть испытан:

- на наличие тяги в стволе путем его задымления при закрытых приемных клапанах;

- на отсутствие подсоса воздуха через закрытые дверки приемных клапанов пламенем свечи.

Кровельные и изоляционные работы

Подготовка оснований и нижележащих элементов изоляции и кровли

Состав операций и средства контроля

Этапы работ

Контролируемые операции

Контроль (метод, объем)

Документация

Подготовительные работы

Проверить:

 

Акт, общий журнал работ

- наличие акта освидетельствования (приемки) на ранее выполненные работы;

Визуальный

- очистку основания от грязи, снега, наледи, обеспыливание;

То же

- установку маячных реек.

Визуальный, измерительный

Выполнение основных работ

Контролировать:

 

Общий журнал работ

- отклонения поверхности основания кровли (при рулонной и безрулонной изоляции);

Измерительный, технический осмотр, не менее 5 измерений на каждые 70-100 м поверхности или на участке меньшей площади в местах, определяемых визуальным осмотром

- отклонения плоскости основания от заданного уклона (по всей площади);

То же

- толщину элемента конструкции;

- » -

- толщину грунтовки;

- » -

- влажность основания при нанесении грунтовки;

Измерительный, технический осмотр, не менее 5 измерений на каждые 50-70 м основания

- прочность сцепления грунтовки с основанием:

Технический осмотр

Приемка выполненных работ

Проверить:

 

Акт освидетельствования скрытых работ

- соблюдение заданных толщин, плоскостей, отметок и уклонов;

Технический осмотр

- прочность сцепления грунтовки с основанием;

То же

- ровность поверхности подготовки.

 

Контрольно-измерительный инструмент: линейка, рулетка, отвес, уровень, двухметровая рейка, влагомер.

Входной и операционный контроль осуществляют: мастер (прораб), инженер (лаборант) - в процессе работ.

Приемочный контроль осуществляют: работники службы качества, мастер (прораб), представители технадзора заказчика.

Технические требования
СНиП 3.04.01-87 пп. 2.6, 2.7, табл. 2, 3

Допускаемые отклонения:

- поверхности основания кровли и при рулонной и безрулонной изоляции:

- вдоль уклона и на горизонтальной поверхности - ±5 мм;

- поперек уклона и на вертикальной поверхности - ±10 мм;

- плоскости элемента от заданного уклона (по всей поверхности) - 0,2%;

- по толщине элемента конструкции - 10% от проектной;

- по числу неровностей (плавного очертания протяженностью не более 150 мм) на площади поверхности 4 м2 - не более 2;

- влажность основания перед нанесением грунтовки не должна превышать:

- бетонных - 4%;

- цементно-песчаных, гипсовых и гипсово-песчаных - 5%;

- любых оснований при нанесении составов на водной основе - до появления поверхностно-капельной влаги.

Толщина грунтовки:

- для кровель из наплавляемых материалов - 0,7 мм, предельное отклонение - 5%;

- при огрунтовке отвердевшей стяжки - 0,3 мм, предельное отклонение - 5%;

- при огрунтовке стяжек в течение 4 ч. после нанесения раствора - 0,6 мм, предельное отклонение 10%.

Указания по производству работ
СНиП 3.04.01-87 пп. 2.4-2.6

Обеспыливание оснований необходимо выполнять перед нанесением огрунтовочных составов.

Огрунтовка поверхности должна быть выполнена сплошной, без пропусков и разрывов. Грунтовка должна иметь прочное сцепление с основанием, на приложенном к ней тампоне не должно оставаться следов вяжущего.

Выравнивающие стяжки следует устраивать захватками шириной 2-3 м по направляющим.

На устройство каждого элемента изоляции, кровли следует составлять акт освидетельствования скрытых работ.

Устройство теплоизоляции из сыпучих материалов

Состав операций и средства контроля

Этапы работ

Контролируемые операции

Контроль (метод, объем)

Документация

Подготовительные работы

Проверить:

 

Паспорта (сертификаты), акт освидетельствования (приемки) ранее выполненных работ, общий журнал работ

- наличие документа о качестве на теплоизоляционные материалы;

Визуальный

- наличие акта освидетельствования (приемки) на ранее выполненные работы;

 То же

- очистку основания от грязи, снега, наледи;

- » -

- соответствие рассортированных сыпучих материалов по фракциям согласно проекту;

Визуальный, измерительный

- установку маячных реек.

То же

Устройство теплоизоляции

Контролировать:

 

Общий журнал работ

- чистоту и просушку поверхности, влажность основания;

Измерительный, не менее 5 измерений на каждые 50-70 м поверхности покрытия

- отклонение толщины изоляции;

Измерительный, не менее 3 измерений на каждые 70-100 м2 поверхности покрытия после сплошного визуального осмотра

- отклонение коэффициента уплотнения;

Измерительный, не менее 5 измерений на каждые 100-150 м поверхности покрытия

- отклонения плоскости изоляции от заданного уклона.

Измерительный, на каждые 50-100 м2 поверхности покрытия

Приемка выполненных работ

Проверить:

 

Акт освидетельствования (приемки) выполненных работ.

- соблюдение заданных толщин, плоскостей, отметок и уклонов.

Технический осмотр

Контрольно-измерительный инструмент: линейка, рулетка, отвес, уровень, двухметровая рейка, влагомер.

Входной и операционный контроль осуществляют: мастер (прораб), инженер (лаборант) - в процессе работ.

Приемочный контроль осуществляют: работники службы качества, мастер (прораб), представители технадзора заказчика.

Технические требования
СНиП 3.04.01-87 п. 2.38, табл. 5, 6

Допускаемые отклонения:

-влажности оснований:

- сборных - 4%;

- монолитных - 5%;

-плоскости изоляции:

- от заданного уклона - 0,2%;

- по горизонтали - ±5 мм;

- по вертикали - ±10 мм.

- толщины изоляции от проектной - ±10%;

- коэффициента уплотнения от проектного - ±5%.

Требования к качеству применяемых материалов

ГОСТ 9757-90. Гравий, щебень и песок искусственные пористые. Технические условия

ГОСТ 10832-91. Песок и щебень перлитовые вспученные. Технические условия.

Гравий, применяемый для устройства теплоизоляции, подразделяют:

- на фракции: от 5 до 10 мм; свыше 10 до 20 мм;

- на марки в зависимости от насыпной плотности: 250, 300, 350, 400, 450, 500.

Песок в зависимости от насыпной плотности подразделяют на марки 500-900.

Приемку и поставку насыпных материалов производят партиями. Размер партии одной фракции и марки устанавливают в количестве сменной выработки предприятия-изготовителя, но не более 300 м3.

Для контрольной проверки от партии гравия и песка отбирают не менее пяти проб.

Каждая партия материалов должна сопровождаться документом о качестве, в котором указывается:

- наименование и адрес предприятия-изготовителя;

- номер и дата выдачи документа;

- наименование продукции и ее количество;

- размер фракции, марка по насыпной плотности;

- обозначение стандарта.

Гравий должен храниться раздельно по фракциям, а песок - по маркам.

Указания по производству работ
СНиП 3.04.01-87 пп. 1.2, 2.37

Теплоизоляция должна выполняться в соответствии с проектом. Замена предусмотренных материалов допускается только по согласованию с проектной организацией и заказчиком.

Теплоизоляцию из сыпучих материалов необходимо устраивать по маячным рейкам полосами 3-4 м, слоями толщиной до 60 мм с уплотнением после укладки.

Теплоизоляционные сыпучие материалы перед укладкой должны быть рассортированы по фракциям. Сыпучий утеплитель более мелких фракций должен укладываться в нижнем слое.

На устройство теплоизоляции следует составлять акт освидетельствования скрытых работ.

Устройство теплоизоляции из плит

Состав операций и средства контроля

Этапы работ

Контролируемые операции

Контроль (метод, объем)

Документация

Подготовительные работы

Проверить:

 

Паспорт (сертификат), общий журнал работ

- наличие документа о качестве на теплоизоляционные материалы;

Визуальный

- наличие акта освидетельствования (приемки) на ранее выполненные работы;

То же

- очистку основания от грязи, снега, наледи.

Визуальный, измерительный

Устройство теплоизоляции

Контролировать:

 

Общий журнал работ

- чистоту и просушку поверхности, влажность основания;

Визуальный, измерительный, не менее 5 измерений на каждые 50-70 м2 поверхности покрытия

- толщину слоя прослойки (при наклейке плит);

То же

- ширину швов между плитами, блоками, изделиями;

- » -

- толщину покрытия изоляции;

- » -

- отклонения плоскости изоляции от заданного уклона;

Измерительный, на каждые 50-100 м2 поверхности покрытия

- ровность поверхности изоляции.

То же

Приемка выполненных работ

Проверить:

 

Акт освидетельствования (приемки) выполненных работ

- соблюдение заданных толщин, плоскостей, отметок и уклонов;

Технический осмотр, измерительный

- качество поверхности изоляции.

 

Контрольно-измерительный инструмент: линейка, рулетка, уровень, двухметровая рейка, влагомер.

Входной и операционный контроль осуществляют: мастер (прораб), инженер (лаборант) - в процессе работ.

Приемочный контроль осуществляют: работники службы качества, мастер (прораб), представители технадзора заказчика.

Технические требования
СНиП 3.04.01-87 п. 2.38, табл. 5, 6, 7

Допускаемые отклонения:

- влажности оснований:

- сборных- 4%;

- монолитных - 5%;

- толщина слоя прослойки не должна превышать, мм:

- из клеев и холодных мастик - 0,8;

- из горячих мастик - 1,5;

- ширины швов между плитами, блоками, изделиями, мм:

- при наклейке - не более 5;

- для жестких изделий - 3;

- при укладке насухо - не более 2;

- плоскости изоляции:

- от заданного уклона - 0,2%;

- по горизонтали - ±5 мм;

- по вертикали - ±10 мм;

- величин уступов между плитами - 5 мм.

- толщины теплоизоляции от проектной от -5% до +10%, но не более 20 мм.

Не допускаются:

- механические повреждения, неплотности прилегания к, основанию

Требования к качеству применяемых материалов

ГОСТ 10140-2003. Плиты теплоизоляционные из минеральной ваты на битумном связующем. Технические условия.

ГОСТ 16136-2003. Плиты перлитобитумные теплоизоляционные. Технические условия.

ГОСТ 22950-95. Плиты минераловатные повышенной жесткости на синтетическом связующем. Технические условия.

Теплоизоляционные изделия должны удовлетворять следующим техническим требованиям:

- иметь плотность не более 600 кг/м3;

- обладать стабильными теплотехническими свойствами;

- не выделять токсических веществ.

Отклонения размеров плит от номинальных не должны превышать предельных величин:

- по длине - ±10 мм;

- по ширине - ±5 мм;

- по толщине - +5, -2 мм.

Разность длин диагоналей не должна превышать 10 мм, разнотолщинность - не более 5 мм.

Не допускается расслоение плит.

Для проверки качества должны отбираться пять плит из разных мест каждой партии.

Плиты должны поставляться упакованными, на поддонах или в контейнерах. На каждой упаковке должна быть прикреплена этикетка, в которой указывают:

- наименование предприятия-изготовителя,

- номер партии и дату изготовления,

- количество плит (шт. и м3),

- условное обозначение плит.

Каждая отгружаемая партия плит должна сопровождаться документом о качестве.

Плиты должны храниться упакованными, в закрытых складах или под навесом.

Указания по производству работ
СНиП 3.04.01-87 п. 2.36, табл. 7

Плиты теплоизоляции должны укладываться на основание плотно друг к другу и иметь одинаковую толщину в каждом слое.

При устройстве теплоизоляции в несколько слоев швы плит необходимо устраивать вразбежку.

При приемке теплоизоляции необходимо обращать внимание на качество обделки мест пропуска коммуникаций и примыканий к конструкциям.

На устройство теплоизоляции следует составлять акт освидетельствования скрытых работ.

Устройство изоляции из рулонных материалов

Состав операций и средства контроля

Этапы работ

Контролируемые операции

Контроль (метод, объем)

Документация

Подготовительные работы

Проверить:

 

Акт освидетельствования скрытых работ, общий журнал работ, паспорт (сертификат)

- наличие акта освидетельствования на ранее выполненные работы;

Визуальный

- очистку основания от грязи, снега, наледи;

 То же

- наличие документа о качестве на изоляционные материалы и соответствие их качества.

Визуальный, измерительный

Наклеивание рулонных материалов

Контролировать:

 

Общий журнал

- толщину слоя мастики при наклейке рулонного ковра;

Измерительный, не менее 5 измерений на 70-100 м2 в местах, определяемых визуальным осмотром

- величину перекрытий (нахлестки) полотнищ;

То же

- температуру мастики при его нанесении.

Измерительный, периодический, не менее 4 раз в смену

Приемка выполненных работ

Проверить:

 

Общий журнал работ, акт приемки выполненных работ

 - качество поверхности изоляции;

Визуальный

- прочность приклейки слоев рулонного материала;

Измерительный, не менее 5 измерений на 70-100 м2

- соблюдение величины перекрытий (нахлестки) полотнищ;

Технический осмотр, выборочно

- правильность устройства изоляции в сопряжениях, примыканиях.

То же

Контрольно-измерительный инструмент: линейка, рулетка, термометр.

Входной и операционный контроль осуществляют: мастер (прораб), инженер (лаборант) - в процессе работ.

Приемочный контроль осуществляют: работники службы качества, мастер (прораб), представители технадзора заказчика.

Технические требования
СНиП 3.04.01-87 пп. 2.13, 2.16, 2.17, 2.23, 2.46, табл. 3, 7

Полотнища изоляции должны укладываться внахлестку на 100 им.

Толщина слоя мастик при наклейке рулонного ковра, мм:

- горячих битумных - 2,0;

- холодных битумных - 0,8.

Предельные отклонения толщины каждого слоя мастик - ±10%.

Температура при нанесении мастик, С°:

- горячих битумных - +160, предельное отклонение - +20;

- дегтевых - +130, предельное отклонение - +10.

Прочность сцепления с основанием и между собой гидроизоляционного ковра при сплошной мастичной прослойке эмульсионных составов - не менее 0,5 МПа.

Не допускаются:

- перекрестная наклейка полотнищ;

- наличие пузырей, вздутий, воздушных мешков, разрывов, вмятин, проколов, губчатого строения, потеков и наплывов на поверхности покрытия.

Требования к качеству применяемых материалов

ГОСТ 7415-86. Гидроизол. Технические условия.

ГОСТ 10296-79*. Изол. Технические условия.

Гидроизол выпускают в рулонах шириной полотна 950 ± 5 мм.

Общая площадь полотна в рулоне должна быть 20 ± 0,5 м2.

Изол выпускают в рулонах шириной полотна 800 и 1000 мм, толщиной 2 мм.

Полотна рулонных материалов не должны иметь дыр, разрывов, складок и надрывов кромок. Рулоны должны иметь ровные торцы. При раскатке рулонов полотна не должны быть слипшимися.

В одном рулоне не допускается более двух полотен. Минимальная длина полотна не должна быть менее 3 м. В партии допускается не более 5% составных рулонов.

Приемка и поставка материалов производится партиями, количество рулонов в партии - не более 1500. Каждый рулон должен быть обернут по всей ширине бумагой и снабжен этикеткой.

На этикетке должно быть указано:

- наименование предприятия-изготовителя;

- наименование материала и его марка;

- назначение материала;

- номер партии и дата выпуска;

- обозначение стандарта.

Каждая партия должна сопровождаться документом о качестве. Рулоны должны храниться в сухих помещениях в вертикальном положении не более чем в два ряда по высоте.

Гарантийный срок хранения - один год со дня изготовления.

Указания по производству работ
СНиП 3.04.01-87 пп. 2.13, 2.14, 2.15, 2.18

Гидроизоляционный ковер из рулонных материалов необходимо наклеивать на предварительно огрунтованное основание.

Рулонные материалы перед наклейкой необходимо разметить по месту укладки, раскладка полотнищ должна обеспечивать соблюдение величин их нахлестки при наклейке.

Мастика должна в соответствии с проектом наноситься равномерным сплошным, без пропусков, или полосовым слоем.

Каждый слой следует укладывать после отвердения мастики и достижения прочного сцепления с основанием предыдущего слоя.

Стеклоткань при устройстве изоляции необходимо расстилать, укладывая без образования волн, сразу после нанесения горячей мастики и покрывать мастикой толщиной не менее 2 мм.

При приемке готовой изоляции необходимо проверять соответствие проекту числа слоев гидроизоляционного ковра, а также усилительных (дополнительных) слоев в сопряжениях.

На устройство изоляции, подлежащей закрытию защитными ограждениями, следует оформлять акт освидетельствования скрытых работ.

Устройство изоляции из полимерных и эмульсионно-битумных составов

Состав операций и средства контроля

Этапы работ

Контролируемые операции

Контроль (метод, объем)

Документация

Подготовительные работы

Проверить:

 

Общий журнал работ, акт освидетельствования скрытых работ

- до огрунтовки поверхности:

Измерительный

- ровность поверхности, правильность устранения острых углов в примыканиях;

- чистота и влажность поверхности;

Визуальный, измерительный, не менее 5 измерений равномерно на каждые 50- 70 м основания

- до нанесения изоляционных составов:

 

- качество огрунтовки поверхности;

Визуальный

- правильность приготовления состава мастики;

Лабораторный контроль

- соответствие качества мастики паспортным данным.

То же

Устройство изоляции

Контролировать:

 

Общий журнал работ

- правильность выполнения окрасочной гидроизоляции, температуру мастики;

Измерительный, периодический, не менее 4 раз в смену

- равномерность нанесения состава;

Визуальный

- соблюдение толщины слоя;

Измерительный, не менее 5 измерений на каждые 70-100 м2 в местах, определяемых визуальным осмотром

- правильность выполнения изоляции в примыканиях.

Визуальный

Приемка выполненных работ

Проверить:

- соблюдение требований проекта по устройству изоляции;

 

Технический осмотр

Общий журнал работ, акт приемки выполненных работ

- качество устройства примыканий (сопряжений);

Визуальный

- прочность сцепления мастики с поверхностью основания;

Технический осмотр

- качество поверхности изоляции.

Визуальный

Контрольно-измерительный инструмент: линейка, рулетка, термометр, влагомер.

Входной и операционный контроль осуществляют: мастер (прораб), инженер (лаборант) - в процессе работ

Приемочный контроль осуществляют: работники службы качества, мастер (прораб), представители технадзора заказчика.

Технические требования
СНиП 3.04.01-87 п. 2.27, табл. 3,

Допускаемая влажность оснований при нанесении всех составов, кроме составов на водной основе, не должна превышать:

- бетонных - 4%;

- цементно-песчаных, гипсовых и гипсопесчаных - 5%.

Температура при нанесении горячих мастик, °С:

- битумных - +160, предельное отклонение - +20;

- дегтевых - +130, предельное отклонение - +10.

Толщина одного слоя изоляции, мм:

- холодных асфальтовых мастик - 7;

- эмульсий - 3;

- полимерных составов (типа «Кровлелит» и «Вент») - 1

Не допускаются:

- пузыри, вздутия, губчатое строение, разрывы, потеки и наплывы на поверхности изоляции;

- замена предусмотренных проектом материалов, составов без согласования с проектной организацией и заказчиком.

Требования к качеству применяемых материалов

ГОСТ 15836-79. Мастика битумно-резиновая изоляционная. Технические условия.

ГОСТ 30693-2000. Мастики кровельные и гидроизоляционные. Общие технические условия.

Мастики должны удовлетворять следующим требованиям:

- быть однородными, без видимых посторонних включений, примесей и частиц наполнителя, не покрытых вяжущим;

- быть удобонаносимыми.

Мастики должны быть упакованы в бочки или бумажные мешки с внутренним покрытием, препятствующим прилипанию мастики к таре.

На каждом упаковочном месте должна быть приклеена этикетка или поставлен несмываемый штамп. На этикетке указывается:

- наименование предприятия-изготовителя и его адрес;

- марка мастики;

- номер партии и дата изготовления мастики;

- обозначение стандарта.

Каждая партия мастики должна сопровождаться документом о качестве. Мастика должна храниться раздельно по маркам в помещениях или под навесом.

Указания по производству работ
СНиП 3.04.01-87 пп. 2.24-2.26

При устройстве изоляции из эмульсионно-мастичных составов каждый слой изоляционного ковра должен наноситься сплошным, без разрывов, равномерной толщины после отвердения грунтовки или нижнего слоя.

При устройстве изоляции из полимерных составов типа «Кровлелит» и «Вента» их необходимо наносить агрегатами высокого давления, обеспечивающими плотность, равномерную толщину покрытия и прочность сцепления покрытия с основанием не менее 0,5 МПа. При применении холодных асфальтовых эмульсионных мастик подача и нанесение составов должны осуществляться агрегатами с винтовыми насосами (механического действия), обеспечивающими прочность сцепления покрытия с основанием не менее 0,4 МПа.

При устройстве изоляции из эмульсионно-мастичных составов, армированных фибрами стекловолокна, их нанесение должно выполняться агрегатами, обеспечивающими получение фибр одинаковой длины, равномерное распределение в составе и плотность изоляционного покрытия.

При приемке готовой изоляции необходимо проверять:

- соответствие проекту числа усилительных (дополнительных) слоев в сопряжениях (примыканиях).

- качество заполнения стыков и отверстий в конструкциях из сборных элементов уплотнительными материалами.

Устройство кровли из рулонных материалов

Состав операций и средства контроля

Этапы работ

Контролируемые операции

Контроль (метод, объем)

Документация

Подготовительные работы

Проверить:

 

Акт освидетельствования скрытых работ, общий журнал работ, паспорта (сертификаты)

- наличие акта освидетельствования устройства основания под гидроизоляционный ковер;

Визуальный

- очистку основания от грязи, мусора, снега, наледи и его просушку;

То же

- наличие документа о качестве на изоляционные материалы;

- » -

- подготовку материалов к работе (рулонных материалов, мастик).

- » -

Устройство кровли

Контролировать:

 

Общий журнал работ

- качество приклеивания дополнительных слоев материала в местах примыкания к вертикальным конструкциям;

Визуальный

- направление раскатки, величину перекрытий (стыков) полотнищ;

Визуальный, измерительный

- плотность прилегания полотнищ к поверхности основания;

Технический осмотр

- сплошность и толщину слоя мастики;

Измерительный, не менее 5 измерений на каждые 70-100 м2 в местах, определяемых визуальным осмотром

- температуру наружного воздуха;

Измерительный, периодический, не менее 2 раз в смену

- устройство защитного гравийного покрытия на кровельном ковре.

Визуальный, технический осмотр

Приемка выполненных работ

Проверить:

 

Общий журнал работ, акт приемки выполненных работ

- качество поверхности изоляционного ковра;

Измерительный, не менее 5 измерений на каждые 70-100 м2 поверхности или на участке меньшей площади в местах, определяемых визуальным осмотром

- качество примыканий и водостоков;

Технический осмотр

- прочность приклейки слоев рулонного материала;

То же

- величины перекрытий полотнищ;

Измерительный

- отвод воды со всей поверхности кровли.

Технический осмотр

Контрольно-измерительный инструмент: рулетка металлическая, двухметровая рейка, нивелир, уровень, термометр.

Операционный контроль осуществляют: мастер (прораб), инженер (лаборант) - в процессе работ.

Приемочный контроль осуществляют: работники службы качества, мастер (прораб), представители технадзора заказчика.

Технические требования
СНиП 3.04.01-87 пп. 2.16, 2.17, табл. 3, 7

При наклейке полотнища укладываются внахлестку на 100 мм (70 мм по ширине полотнищ нижних слоев кровли крыш с уклоном более 1,5%).

Прочность сцепления с основанием и между собой кровельного ковра по сплошной мастичной клеящей прослойке эмульсионных составов - не менее 0,5 МПа.

Допускаемая влажность оснований:

- бетонных - 4%;

- цементно-песчаных - 5%.

Толщина слоя мастик, мм:

- горячих битумных 2,0 - ±10%;

- холодных битумных 0,8 - ±10%.

Температура при нанесении мастик, °С:

- горячих битумных - +160, предельное отклонение - +20;

- дегтевых - +130, предельное отклонение - +10.

При приемке готовой кровли необходимо проверять:

- соответствие проекту числа усилительных (дополнительных) слоев в сопряжениях (примыканиях);

- установку чаш водоприемных воронок внутренних водостоков: не должны выступать над поверхностью основания;

- конструкции примыканий (стяжек и бетона): должны быть сглаженными и ровными, не иметь острых углов;

- отвод воды по всей поверхности кровли по наружным или внутренним водостокам: полный, без застоя воды.

Не допускаются:

- перекрестная наклейка полотнищ;

- наличие пузырей, вздутий, воздушных мешков, разрывов, вмятин, проколов, губчатого строения, потеков и наплывов на поверхности покрытия.

Требования к качеству применяемых материалов

ГОСТ 10923-93. Рубероид. Технические условия.

ГОСТ 2889-80. Мастика битумная кровельная горячая. Технические условия.

Рубероид выпускается в рулонах шириной 1000, 1025, 1050 мм, допускаемое отклонение по ширине - ±5 мм. Общая площадь рулона должна быть: 10,0 ±0,5 м2, 15,0 ±0,5 м2, 20,0 ± 0,5 м2.

Рубероид с крупнозернистой и чешуйчатой посыпкой должен иметь с одного края лицевой поверхности вдоль всего полотна чистую непосыпанную кромку шириной не менее 70 и не более 100 мм. Минимальная длина полотна должна быть не менее 3 метров.

Полотно рубероида не должно иметь трещины, дыры, разрывы, складки. На кромках полотна не допускается более 2 надрывов длиной 15-30 мм. Надрывы до 15 мм не нормируются.

Каждая партия рулонных материалов должна сопровождаться документом о качестве, в котором указывается:

- наименование и адрес предприятия-изготовителя;

- номер и дата выдачи документа;

- количество рулонов;

- марка материала;

- дата изготовления;

- площадь рулона, вес рулона;

- результаты испытаний;

- обозначение настоящего стандарта.

Рубероид необходимо хранить рассортированным по маркам в сухом закрытом помещении в вертикальном положении не более чем в два ряда по высоте. Гарантийный срок хранения- 12 месяцев.

Мастики битумные кровельные горячие в зависимости от теплостойкости подразделяют на марки: МБК-Г-55, МБК-Г-65, МБК-Г-75, МБК-Г-85, МБК-100.

По внешнему виду мастика должна быть однородной, без посторонних включений и частиц наполнителя, не покрытых битумом.

Мастика должна прочно склеивать рулонные материалы.

Приемка и поставка мастики осуществляется партиями в бочках стальных или деревянных. Каждая партия мастики должна сопровождаться документом о качестве.

Мастика должна храниться раздельно по маркам в закрытом помещении, гарантийный срок хранения - один год со дня изготовления. По истечении срока мастика должна быть проверена на соответствие стандарту.

Указания по производству работ
СНиП 3.04.01-87 пп. 2.14-2.17, 2.22

Рулонные материалы перед наклейкой необходимо разметить по месту укладки; раскладка полотнищ рулонных материалов должна обеспечивать соблюдение величин их нахлестки при наклейке. Мастика должна в соответствии с проектом наноситься равномерным сплошным, без пропусков, или полосовым слоем. Каждый слой рулонной кровли следует укладывать после отвердения мастик и достижения прочного сцепления с основанием предыдущего слоя. Полотнища рулонных материалов должны наклеиваться в направлении от пониженных участков к повышенным перпендикулярно стоку воды при уклонах крыш до 15%, в направлении стока - при уклонах крыш более 15%.

Устройство каждого элемента кровли следует выполнять после проверки правильности выполнения соответствующего нижележащего элемента с составлением акта освидетельствования скрытых работ.

Обеспыливание оснований необходимо выполнять перед нанесением огрунтовочных составов.

Огрунтовка поверхности должна быть выполнена сплошной и без пропусков и разрывов. Грунтовка должна иметь прочное сцепление с основанием, на приложенном к ней тампоне не должно оставаться следов вяжущего.

Рулонные изоляционные материалы при производстве работ в отрицательных температурах необходимо в течение 20 ч. отогреть до температуры не менее 15° С, перемотать и доставить к месту укладки в утепленной таре.

При наклейке полотнищ кровельного ковра вдоль ската крыши верхняя часть полотнища нижнего слоя должна перекрывать противоположный скат не менее чем на 1000 мм. Мастику следует наносить непосредственно под раскатываемый рулон тремя полосами шириной по 80-100 мм. Последующие слои необходимо наклеивать на сплошной слой мастики.

При наклейке полотнищ поперек ската крыши верхняя часть полотнища каждого слоя, укладываемого на коньке, должна перекрывать скат крыши на 250 мм и приклеиваться на сплошной слой мастики.

Вид наклейки рулонного ковра должен соответствовать проекту. При устройстве защитного гравийного покрытия на кровельный ковер необходимо наносить мастику сплошным слоем толщиной 2-3 мм и шириной до 2 м, рассыпав сразу по ней сплошной слой гравия, очищенного от пыли, толщиной 5-10 мм.

Устройство кровли из штучных материалов

Состав операций и средства контроля

Этапы работ

Контролируемые операции

Контроль (метод, объем)

Документация

Подготовительные работы

Проверить:

 

Паспорта (сертификаты) общий журнал работ

- наличие документа о качестве;

Визуальный

- правильность устройства обрешетки (расстояние между элементами обрешеток, разбежки стыков обрешетки, сплошность обрешетки в местах покрытия карнизных свесов, разжелобков и ендов);

Технический осмотр всей площади

- внешний вил и качество материалов.

Визуальный, измерительный, каждый лист

Устройство кровли

Контролировать:

 

Общий журнал работ

- размер карнизного свеса;

Измерительный (5 измерений на 10 м длины свеса)

- величину напуска вышележащего ряда листов на нижележащий;

Измерительный

- надежность крепления листов к обрешетке;

Технический осмотр

- соблюдение требований проекта по устройству примыканий к выступающим над крышей конструкциям (стенам, трубам, шахтам и т. д.).

Технический осмотр, измерительный, каждый элемент

Приемка выполненных работ

Проверить:

 

Общий журнал работ, акт приемки выполненных работ

- надежность крепления листов к обрешетке;

Технический осмотр

- соблюдение размеров нахлестки вышележащих листов на нижележащие;

Измерительный

- отсутствие околов, трещин на поверхности листов, а также просветов при проверке из чердачных помещений;

Визуальный, вся площадь

- соблюдение требований проекта по устройству примыканий к выступающим над крышей конструкциям;

Технический осмотр, каждый конструктивный элемент

Контрольно-измерительный инструмент: рулетка металлическая, линейка.

Входной и операционный контроль осуществляют: мастер (прораб).

Приемочный контроль осуществляют: работники службы качества, мастер (прораб), представители технадзора заказчика.

Технические требования
СНиП 3.04.01-87 п. 2.39, табл.

При устройстве деревянных оснований (обрешетки):

- стыки обрешетки следует располагать вразбежку;

- расстояния между элементами обрешетки должны соответствовать проектным;

- в местах покрытия карнизных свесов, разжелобков и ендов, а также под кровли из мелкоштучных элементов основания необходимо устраивать из досок (сплошными).

Напуск вышележащего ряда на нижележащий для асбестоцементных листов:

- ВО, СВ - 120-140 мм;

- УВ, ВУ - 200 мм.

Крепление асбестоцементных листов к обрешетке:

- листы ВО и СВ следует крепить шиферными гвоздями с оцинкованной шляпкой;

- листы УВ и ВУ - винтами со специальными захватками;

- плоские листы - двумя гвоздями с противоветровой кнопкой.

Не допускаются:

- отколы и трещины в асбестоцементных листах;

- видимые просветы в покрытии при осмотре кровли из чердачных помещений.

Требования к качеству применяемых материалов

ГОСТ 30340-95. Листы асбестоцементные волнистые. Технические условия.

ГОСТ 18124-95. Листы асбестоцементные плоские. Технические условия.

Листы и детали не должны иметь на лицевой поверхности трещины, сколы и посторонние включения.

Допускаемые дефекты лицевой поверхности

Дефекты

Профиль

обыкновенный

средний

высокий

унифицированный

Отклонение от прямоугольности не более, мм

6

20

10

10

Отклонение от прямолинейности не более, мм

6

10

10

10

Допускается наличие в партии 5% листов, имеющих:

 

 

 

 

откол одного из углов размерами, мм:

 

 

 

 

по длине не более

75

180

180

180

по ширине не более

60

110

110

110

неполное количество волн

5 и 4

6 и 5

6 и 5

4 и 5

не более 1% неполномерных листов, имеющих длину не менее, мм

600

1200 1950

1250

1250

1500

2000

Указания по производству работ
СНиП 3.04.01-87 пп. 2.40-2.42

Штучные кровельные материалы следует укладывать на обрешетку рядами от карниза к коньку по предварительной разметке. Каждый вышележащий ряд должен напускаться на нижележащий.

Асбестоцементные листы волнистые обыкновенного профиля и средне-волнистые необходимо укладывать со смещением на одну волну по отношению к листам предыдущего ряда или без смещения. Листы усиленного и унифицированного профиля необходимо укладывать по отношению к листам предыдущего ряда без смещения.

При укладке листов без смещения на волну в местах стыка четырех листов следует производить обрезку углов двух средних листов с зазором между стыкуемыми углами:

- листов ВО - 3-4 мм;

- листов СВ, УВ и ВУ - 8-10 мм.

Разжелобки, карнизы, ребра скатов и коньки должны накрываться специальными элементами с напусками 100 мм (листовой сталью, алюминием и др.).

Устройство кровли из полимерных и эмульсионно-битумных составов

Состав операций и средства контроля

Этапы работ

Контролируемые операции

Контроль (метод, объем)

Документация

Подготовительные работы

Проверить:

 

Паспорт (сертификат), общий журнал работ

- наличие документа о качестве на мастики;

Визуальный

- очистку оснований от мусора, пыли(в зимнее время от снега, наледи);

То же

- просушку основания до исчезновения влажных пятен на поверхности;

Измерительный, не менее 5 измерений на каждые 50-70 м основания

- качество основания (ровность, уклон) ;

То же

- правильность установки воронок внутренних водостоков, гильз для пропуска коммуникаций;

Технический осмотр

- наличие выкружек и фасок в местах примыканий выступающих конструкций и поверхности кровли;

Визуальный

- температуру наружного воздуха.

Измерительный

Устройство кровли

Контролировать:

 

Общий журнал работ

- сплошность и толщину слоя мастики;

Измерительный, не менее 5 измерений на каждые 70-100 м2 в местах, определяемых визуальным осмотром

- температуру наружного воздуха;

Измерительный, периодический, не менее 2 раз в смену

- качество изоляции в примыканиях.

Технический осмотр

Приемка выполненных работ

Проверить:

 

Общий журнал работ, акт приемки выполненных работ

- качество поверхности изоляционного ковра;

Измерительный, не менее 5 измерений на каждые 70-100 м2 поверхности или на участке меньшей площади в местах, определяемых визуальным осмотром

- прочность сцепления мастики с основанием;

Технический осмотр

- качество обработки мест примыкания воронок водостоков к парапету;

Визуальный, технический осмотр

- качество мест примыканий;

Технический осмотр

- отвод воды со всей поверхности кровли.

То же

Контрольно-измерительный инструмент: рулетка металлическая, двухметровая рейка, нивелир, уровень, термометр.

Операционный контроль осуществляют: мастер (прораб), инженер (лаборант) - в процессе работ.

Приемочный контроль осуществляют: работники службы качества, мастер (прораб), представители технадзора заказчика.

Технические требования
СНиП 3.04.01-87 табл. 3, 7

Допускаемая влажность оснований не должна превышать:

- бетонных - 4%;

- цементно-песчаных - 5%.

Толщина одного слоя изоляции:

- эмульсий - 3 мм;

- полимерных составов (типа «Кровлелит» и «Вента») - 1 мм.

При приемке готовой кровли необходимо проверять:

- соответствие проекту числа усилительных (дополнительных) слоев в сопряжениях (примыканиях);

- чаши водоприемной воронки внутренних водостоков не должны выступать над поверхностью;

- углы конструкций примыканий должны быть сглаженными и ровными, не иметь острых углов;

- полный отвод воды по всей поверхности кровли, без застоя воды.

Не допускаются:

- пузыри, вздутия, разрывы, губчатое строение, потеки и наплывы на поверхности покрытия кровель;

- замена предусмотренных проектом материалов, составов без согласования с проектной организацией и заказчиком.

Требования к качеству применяемых материалов

ГОСТ 15836-79. Мастика битумно-резиновая изоляционная. Технические условия.

ТУ 21-27-39-77. Мастика «Вента».

ТУ 21-27-76-85. Битумно-полимерная мастика «Кровлелит».

ГОСТ 30693-2000. Мастики кровельные и гидроизоляционные.

Классификация и общие технические требования.

Мастика битумно-резиновая должна быть упакована в бочки или бумажные мешки с внутренним покрытием от прилипания. На каждое упаковочное место должна быть приклеена этикетка, в которой указывается:

- наименование предприятия-изготовителя и его адрес;

- марка мастики;

- номер партии и дата изготовления мастики;

- обозначение стандарта.

Мастика, изготовленная в непосредственной близости от объекта строительства, может доставляться к месту производства изоляционных работ в разогретом виде в автогудронаторах.

Мастика «Кровлелит» должна быть упакована в металлическую тару (основной компонент), а вулканизирующий компонент - в полиэтиленовую. Перед нанесением компоненты необходимо тщательно перемешивать.

Мастика «Вента» поставляется в виде двух составов. Транспортируются и хранятся в металлических бочках и флягах. Хранение их должно осуществляться раздельно в помещениях, на расстоянии не ближе 2 м от теплоизлучающих приборов.

Срок хранения не должен превышать 2 месяца.

В документе о качестве материалов должно быть указано:

- наименование предприятия-изготовителя и его адрес;

- марка;

- номер партии;

- дата изготовления мастики;

- результаты испытаний;

- обозначение соответствующего стандарта.

Указания по производству работ
СНиП 3.04.01-87 пп. 2.24-2.26

При устройстве кровли из эмульсионно-мастичных составов каждый слой изоляционного ковра должен наноситься сплошным, без разрывов, равномерной толщины после отвердения грунтовки или нижнего слоя.

При устройстве кровли из полимерных составов типа «Кровлелит» и «Вента» их необходимо наносить агрегатами высокого давления, обеспечивающими плотность, равномерную толщину покрытия и прочность сцепления покрытия с основанием не менее 0,5 МПа. При применении холодных асфальтовых эмульсионных мастик подача и нанесение составов должны осуществляться агрегатами с винтовыми насосами (механического действия), обеспечивающими прочность сцепления покрытия с основанием не менее 0,4 МПа.

При устройстве кровли из эмульсионно-мастичных составов, армированных фибрами стекловолокна, их нанесение должно выполняться агрегатами, обеспечивающими получение фибр одинаковой длины, равномерное распределение в составе и плотность изоляционного покрытия.

Устройство кровли металлической

Состав операций и средства контроля

Этапы работ

Контролируемые операции

Контроль (метод, объем)

Документация

Подготовительные работы

Проверить:

 

Паспорта (сертификаты), общий журнал работ

- наличие документа о качестве на элементы кровли;

Визуальный

- величину отгибов для стоячих и лежачих фальцев, размеры листов, толщину листов;

Измерительный

- качество обрешетки.

Визуальный, измерительный

Устройство кровли металлической

Контролировать:

 

Общий журнал работ

- вынос карнизного свеса от края опалубки;

Измерительный

- смещение фальцев соседних листов и гребней противоположных фальцев;

То же

- шаг расположения костылей, кляммеров;

- » -

- соединение картин;

Визуальный

- правильность устройства желобов, примыканий.

То же

Приемка выполненных работ

Проверить:

 

Акт приемки выполненных работ

- качество кровли (просветы из чердачных помещений, крепление к обрешетке, примыкания);

Технический осмотр

- соответствие расположения металлических картин проекту, их соединение.

То же

Контрольно-измерительный инструмент: рулетка, шаблон, уровень, стальной метр.

Операционный контроль осуществляют: мастер (прораб), геодезист - в процессе работ.

Приемочный контроль осуществляют: работники службы качества, мастер (прораб), представители технадзора заказчика.

Технические требования
СНиП 3.04.01-87 п. 2.45, табл. 7

Допускаемые отклонения:

Соединение картин, располагаемых вдоль стока воды, осуществляется лежачим фальцем.

При уклоне крыш:

- < 30° - двойной, с промазкой суриковой замазкой;

- ³ 30° - одинарный.

Соединение картин в ребрах, скатах и коньках осуществляется стоячими фальцами.

Величина отгибов картин для устройства фальцев:

- для лежачих- 15 мм;

- для стоячих - 20 мм для одной и 35 мм для другой смежной с ним стороны.

Высота стоячих фальцев - 25±2 мм.

Фальцы соседних картин на противоположных скатах крыши должны быть смещены не менее чем на 50 мм. Высота борта желоба - не менее 150 мм. Должно быть жесткое крепление картин к обрешетке.

Не допускаются:

- отступление от проекта по соединению картин, защите мест примыканий к конструкциям и сопряжений в разных плоскостях;

- видимые просветы в покрытии при осмотре кровли из чердачных помещений;

- отсутствие промазки двойных лежачих фальцев в соединениях картин на покрытии с уклоном менее 30°;

- применение листовой неоцинкованной стали.

Требования к качеству применяемых материалов

ТУ 401-11-21-89. Элементы металлической кровли.

Размеры элементов кровли и их допускаемые отклонения не должны превышать данные, приведенные в таблице.

Наименование

Длина

Ширина

размер, мм

допуск, мм

размер, мм

допуск, мм

Картина рядового покрытия

1940

±4

930

±10

Желоб надстенный

2000

±4

955

±10

Свес карнизный

2000

±4

910

±10

Допускаемые отклонения по размерам фальцев всех элементов - ±2 мм.

Допускаемое коробление полотен:

- по длине - ±5 мм;

- по ширине - ±2 мм.

Разность длин диагоналей картин не должна превышать 3 мм.

Поставка изделий производится партиями, количество устанавливается в заказе. Каждая партия должна сопровождаться документом, удостоверяющим их качество, где указывается:

- наименование и адрес предприятия-изготовителя;

- номер и дата выдачи документа;

- количество элементов в партии;

- масса в кг.

Элементы должны храниться под навесом: картины в пакетах по 100 шт., переложенными деревянными прокладками; желоба и свесы - в контейнерах.

Указания по производству работ
СНиП 3.04.01-87 пп. 2.39, 2.45

При устройстве обрешетки под кровлю должны соблюдаться следующие требования:

- расстояние между элементами обрешетки должно соответствовать проектному (не более 250 мм).

- в местах покрытия карнизных свесов, разжелобков и ендов обрешетки необходимо устраивать из досок сплошными;

- в местах расположения лежачих фальцев обрешетку необходимо устраивать из доски.

По сплошной обрешетке карнизного свеса необходимо укладывать подкладочный слой из толя, наклеенного на всю ширину карниза, а в зоне лотка - лист кровельной стали.

В местах сопряжения разжелобков с желобами следует укладывать подкладочный слой из картин кровельной стали, бывшей в употреблении.

Крепление картин к обрешетке следует осуществлять клеммерами, пропущенными между фальцами и Т-образными костылями.

Необходимо тщательно обрабатывать места примыкания покрытия к вентиляционным трубам, слуховым окнам, парапетам.

Борт желоба отгибается под угол 90° при установке на крыше.

Столярные работы

Установка оконных блоков

Состав операций и средства контроля

Этапы работ

Контролируемые операции

Контроль (метод, объем)

Документация

Подготовительные работы

Проверить:

 

Паспорт (сертификат), общий журнал работ

- наличие документа о качестве на оконные блоки;

Визуальный

- точность геометрических параметров, внешний вид оконных блоков;

Измерительный, каждый блок

- наличие разметки, определяющей проектное положение оконных блоков;

Измерительный, каждый элемент

- точность геометрических параметров оконных проемов;

То же

- правильность установки закладных пробок в стене.

Технический осмотр каждого проема

Установка блоков

Контролировать:

 

Общий журнал работ

- правильность выполнения предусмотренной проектом изоляции оконных блоков;

Технический осмотр, каждый блок

- правильность крепления оконных блоков;

То же

- плотность пригонки переплетов.

- » -

Приемка выполненных работ

Проверить:

 

Акт освидетельствования скрытых работ

- фактическое положение установленных блоков;

Технический осмотр, каждый блок

- качество крепления и заполнения теплозвукоизоляционными материалами зазоров;

То же

- плотность пригонки переплетов.

- » -

Контрольно-измерительный инструмент: рулетка металлическая, отвес.

Операционный контроль осуществляют: мастер (прораб) - в процессе работ.

Приемочный контроль осуществляют: работники службы качества, мастер (прораб), представители технадзора заказчика.

Технические требования
СНиП 3.03.01-87 п. 5.6

Поверхности оконных блоков, примыкающие к каменным и бетонным стенам, должны быть антисептированы и защищены гидроизоляционными материалами.

Зазоры между коробкой и кладкой наружных стен должны заделываться термоизоляционными материалами.

Каждый вертикальный брусок коробки должен крепиться не менее чем в двух местах, расстояние между креплениями не должно превышать 1 м.

Приемка оконных блоков, вмонтированных в проемы, должна сопровождаться проверкой плотности пригонки оконных переплетов между собой, правильности установки и крепления уплотняющих прокладок, остекления световых проемов, установки скобяных изделий, наличников с составлением акта освидетельствования скрытых работ по креплению коробок, их теплоизоляции и защитной обработке.

Требования к качеству применяемых материалов

ГОСТ 23344-78. Окна стальные. Общие технические условия.

ГОСТ 23166-99. Окна и балконные двери деревянные. Общие технические условия.

ГОСТ 25097-2002. Окна и балконные двери деревоалюминиевые. Общие технические условия.

Типы и номинальные размеры окон и их элементов должны соответствовать чертежам заказчика.

Влажность древесины деталей должна быть:

- коробок - 12 ± 3%;

- переплетов - 9 ± 3%.

Зазор в притворах должен быть 2 мм.

Окна должны иметь правильную геометрическую форму. Наличие пороков и дефектов обработки древесины оценивают визуально.

Предельные отклонения от номинальных размеров изделий и их сборочных единиц не должны превышать данные, приведенные в таблице:

Параметры

Номинальные размеры, мм

Отклонения, мм

Внутренние размеры коробок и створок

до 250

250-630

630-1600

более 1600

+ 1,0

+ 1,5

+2,0

+2,5

Внешние размеры створок, фрамуг, форточек

до 250

250-630

630-1600

более 1600

-1,0

-1,5

-2,0

-2,5

 

Свободные размеры деталей створок

10-80

±0,5

Провесы по торцам шиповых соединений не допускаются. Допуск плоскостности изделий и их элементов не должен превышать 2 мм по длине и диагонали. Створки окон должны быть навешены на 2 петли. Оконные блоки должны быть проолифлены. Пласть коробки, примыкающая к стенке, должна быть проантисептирована или окрашена.

Каждая партия блоков должна сопровождаться документом о качестве.

Указания по производству работ
СНиП 3.03.01-87 пп. 3.73, 3.74

Крепление оконных пробок следует осуществлять шурупами или стальными ершами, забиваемыми в деревянные антисептированные пробки.

Изоляцию стыков между оконными блоками и четвертями в проемах ограждающих конструкций следует выполнять путем нанесения нетвердеющей мастики на поверхность четверти перед установкой блока либо путем нагнетания мастики в зазор между блоками и ограждающими конструкциями после закрепления блоков в проектное положение.

Места примыкания металлических подоконных сливов к коробке также надлежит изолировать нетвердеющей мастикой.

При изоляции стыков между оконными блоками и ограждающими конструкциями с проемами без четверти перед нанесением мастики следует устанавливать уплотняющую прокладку.

Выполнение работ по изоляции стыков необходимо фиксировать в журнале работ.

Установка подоконных досок

Состав операций и средства контроля

Этапы работ

Контролируемые операции

Контроль (метод, объем)

Документация

Подготовительные работы

Проверить:

 

Паспорт (сертификат), общий журнал работ

- наличие документа о качестве на подоконные доски;

Визуальный

- качество поверхности, точность геометрических параметров, внешний вид подоконных досок;

То же, измерительный, каждая доска

- установку маяков на проектную отметку для монтажа подоконных досок.

Измерительный, каждый проем

Установка подоконных досок

Контролировать:

 

Общий журнал работ

- установку подоконных досок в проектное положение;

Технический осмотр каждой доски

- правильность крепления подоконных досок;

То же

- качество выполнения работ по заполнению зазоров теплозвукоизоляционными материалами.

- » -

Приемка выполненных работ

Проверить:

 

Акт освидетельствования скрытых работ

- фактическое положение установленных досок;

Технический осмотр каждой доски

- качество изоляции.

То же

Контрольно-измерительный инструмент: линейка, рулетка, отвес, нивелир, уровень.

Входной и операционный контроль осуществляют: мастер (прораб), - в процессе работ.

Приемочный контроль осуществляют: работники службы качества, мастер (прораб), представители технадзора заказчика.

Технические требования
СНиП 3.03.01-87 п. 5.5

Верхняя поверхность подоконных досок должна иметь уклон внутрь помещения не менее 1%.

В пределах одного помещения подоконные доски должны быть установлены на одном уровне.

Указания по производству работ
СНиП 3.03.01-87 п. 5.5

При контакте деревянных подоконных досок с кирпичной кладкой, бетоном и т. д. до начала монтажа необходимо выполнить предусмотренные проектом изоляционные работы

Приемка установки подоконных досок должна сопровождаться актом освидетельствования скрытых работ по их теплоизоляции и защитной обработке.

Требования к качеству применяемых материалов

ГОСТ 8242-88*. Детали профильные из древесных материалов для строительства. Технические условия.

ГОСТ 6785-80**. Плиты подоконные железобетонные. Технические условия.

Толщина деревянных досок должна быть 42 ± 1 мм.

Отклонения от номинальных размеров:

- по длине - ±3 мм;

- по ширине - ±1 мм.

Влажность древесины должна быть 12 + 3%.

Отклонение от плоскостности - не более 1,5 мм на 1 м длины.

Установка дверных блоков

Состав операций и средства контроля

Этапы работ

Контролируемые операции

Контроль (метод, объем)

Документация

Подготовительные работы

Проверить:

 

Паспорт (сертификат), общий журнал работ

- наличие паспорта на дверные блоки и требуемых в нем данных;

Визуальный

- качество поверхности, точность геометрических параметров;

Измерительный, каждый блок

- наличие разметки, определяющей проектное положение дверного блока;

Измерительный, каждый проем

- точность геометрических параметров дверного проема;

То же

- правильность установки закладных пробок (для монтажа дверных блоков), крепежных устройств и деталей.

Технический осмотр каждого проема

Установка дверных блоков

Контролировать:

 

Общий журнал работ, акт освидетельствования скрытых работ

- правильность выполнения предусмотренной проектом изоляции дверных блоков;

Технический осмотр, каждый блок

- установку блока в проектное положение;

То же

- правильность крепления дверного блока;

-»-

- качество выполнения работ по заполнению теплозвукоизоляционными материалами зазоров и пазух между коробкой и проемом; правильность установки и крепления уплотняющих прокладок;

- » -

- качество выполнения работ по обналичиванию дверных блоков.

Технический осмотр

Приемка выполненных работ

Проверить:

 

Акт освидетельствования скрытых работ

- фактическое положение установленных блоков;

Технический осмотр, каждый блок

- выполнение требований проекта и нормативных документов к качеству выполнения крепления и заполнения теплозвукоизоляционными материалами зазоров и пазух.

То же

Контрольно-измерительный инструмент: линейка, рулетка, отвес.

Входной и операционный контроль осуществляют: мастер (прораб) - в процессе работ.

Приемочный контроль осуществляют: работники службы качества, мастер (прораб), представители технадзора заказчика.

Технические требования
СНиП 3.03.01-87 п. 5.6

Допускаемое отклонение от вертикали дверных коробок 3 мм.

В пределах одного помещения дверные ручки должны быть установлены на одном уровне.

Каждый вертикальный брусок коробки следует крепить не менее чем в двух местах, расстояние между которыми не должно превышать 1 м.

Зазоры между дверными полотнами и полом должны составлять:

- у внутренних дверей - 5 мм;

- у дверей санитарных узлов- 12 мм.

Напуск наличников на стену или перегородку должен быть не менее 20 мм.

Приемка дверных блоков вмонтированных в проемы, должна сопровождаться проверкой плотности пригонки полотен дверей между собой и к четвертям коробок, правильности установки и крепления уплотняющих прокладок, установки скобяных изделий а также оформлением актов освидетельствования скрытых работ по креплению коробок, их теплоизоляции и защитной обработке.

Требования к качеству применяемых материалов

ГОСТ 475-78*. Двери деревянные. Общие технические условия.

ГОСТ 23747-88. Двери из алюминиевых сплавов. Общие технические условия.

ГОСТ 23166-99. Окна и балконные двери деревянные. Общие технические условия.

При приемке дверных блоков необходимо проверять породу и качество древесины, соответствие размеров изделий чертежам или проекту, а также качество обработки и сборки.

Влажность древесины должна быть:

- для коробок наружных дверей - 12 ± 3%;

- для коробок внутренних дверей и полотен - 9 ± 3%.

Блоки должны иметь правильную геометрическую форму. Наличие пороков и дефектов обработки древесины в дверях оценивают визуально.

Предельные отклонения от номинальных размеров не должны превышать, мм:

- внутренних размеров коробок:

- по ширине - +2,0;

- по высоте - +2,5;

- внешних размеров полотен:

- по ширине - -2,0;

- по высоте - -2,5;

- толщин брусков отвязки - ±0,3;

- толщин брусков коробки - ±0,8.

Зазоры в притворах должны быть 2 мм, отклонения - +2 мм.

Отклонение от плоскости полотен - не более 2 мм по высоте, ширине и диагонали.

Дверные блоки должны поставляться собранными, с навеской полотен на петлях, врезкой замков в двери и окраской за один раз (проолифлены). Пласть коробки, примыкающая к стене, должна быть проантисептирована или окрашена.

Каждая партия блоков должна сопровождаться документом о качестве, в котором указывается:

- наименование предприятия-изготовителя и адрес;

- наименование изделия;

- количество изделий, м2 и шт.;

- номер стандарта.

При приемке блоков на объекте для контрольной проверки отбирают 3% от партии, но не менее 3 штук.

Указания по производству работ
СНиП 3.03.01-87 пп. 3.73, 3.74

Заполнение дверных проемов надлежит осуществлять готовыми блоками. Блоки должны устанавливаться по уровню и отвесу.

Поверхности коробок, примыкающие к стене, должны быть антисептированы и защищены гидроизоляционной прокладкой. Зазоры между коробками и наружной стеной должны быть тщательно проконопачены теплоизолирующим материалом, а между коробками и внутренними стенами - звукоизоляционными материалами.

Изоляцию стыков между балконными дверными блоками и четвертями в проемах ограждающих конструкций следует выполнять путем нанесения нетвердеющей мастики на поверхность четверти перед установкой блока либо путем нагнетания мастики в зазор после закрепления блока в проектном положении.

Выполнение работ по изоляции стыков необходимо ежедневно фиксировать в журнале.

Устройство антресолей, шкафов

Состав операций и средства контроля

Этапы работ

Контролируемые операции

Контроль (метод, объем)

Документация

Подготовительные работы

Проверить:

 

Паспорт (сертификат), общий журнал работ

- наличие документов о качестве;

Визуальный

- точность геометрических параметров, внешний вид деталей;

Измерительный

- наличие разметки, определяющей проектное положение антресолей, шкафов

То же

Устройство антресолей, шкафов

Контролировать:

 

Общий журнал работ

- правильность устройства каркасов (вертикальность, крепление к стене, к перекрытию);

Визуальный, измерительный

- качество крепления листов обшивки к каркасу.

То же

Приемка выполненных работ

Проверить:

 

Акт приемки выполненных работ

- фактическое положение антресолей, шкафов;

Технический осмотр

- качество крепежа листов обшивки.

То же

Контрольно-измерительный инструмент: рулетка металлическая, линейка, отвес.

Операционный контроль осуществляют: мастер (прораб).

Приемочный контроль осуществляют: работники службы качества, мастер (прораб), представители технадзора заказчика.

Требования к качеству применяемых материалов

ГОСТ 26138-84. Элементы и детали встроенных шкафов и антресолей для жилых зданий. Технические условия.

Предельные отклонения от номинальных размеров элементов шкафов и антресолей, размеров зазора в притворе и свободных размеров деталей не должны быть более указанных в таблице.

Наименование размеров

Предельные отклонения, мм

Габаритные размеры полотен дверок, каркасов, боковых и промежуточных стенок, полок:

 

до 500 мм включ.

+2,0

св. 500 мм

+3,0

Размеры зазора в притворе

±1,0

Свободные размеры элементов и деталей (стенок, полок):

 

толщина

±0,6

ширина

±1,0

На строительной площадке детали антресолей должны быть защищены от атмосферных осадков.

Технические требования
СНиП 3.04.01-87 пп. 3.64-3.66, табл. 14

Допускаемые отклонения:

- антресолей, шкафов от вертикали на 1 м высоты - 1 мм;

- провесов в стыках листов обшивки - 1 мм;

- плоскости поля обшивки на 1 м длины - 1,5 мм.

Плоскость поверхности, обшитой листами, должна быть ровной, без провесов в стыках, жесткой.

Указания по производству работ
СНиП 3.04.01-87 п. 3.64

Каркас следует изготавливать из антисептированных деревянных брусков сечением 40´50 мм.

Размеры деталей шкафов и антресолей должны соответствовать спецификации заказчика.

Бруски каркаса изготавливаются из древесины разных пород второй категории с влажностью 12 ± 3%.

Стенки шкафов, антресолей зашиваются древесно-волокнистыми плитами (ДВП), листами сухой гипсовой штукатурки.

ДВП пришиваются к каркасу гвоздями длиной 70 мм с шайбой из оцинкованной стали через 400 мм. Листы сухой гипсовой штукатурки крепятся к деревянному каркасу оцинкованными или черными проолифленными гвоздями длиной 40 мм с увеличенной шляпкой. Гвозди забиваются через 300 мм на расстоянии 20 мм от кромки листа.

Пол антресолей и полки в шкафах выполняются из ДСП (древесностружечной плиты) по деревянному каркасу.

Устройство полов

Подготовка грунтовых оснований под полы

Состав операций и средства контроля

Этапы работ

Контролируемые операции

Контроль (метод, объем)

Документация

Подготовительные работы

Проверить:

 

Общий журнал работ

- выполнение очистки основания

Визуальный

от мусора, грязи;

- проектную отметку основания;

 

Измерительный

Устройство основания

Контролировать:

 

Общий журнал работ

- технологию выполнения; в том числе степень уплотнения основания;

Визуальный, измерительный

 

- соблюдение уклонов и профиля основания проектным;

 

 

 

Измерительный, не менее 5 измерений на каждые 50- 70 м поверхности

- влажность фунта основания.

То же

Приемка основания

Проверить:

 

Общий журнал работ (журнал бетонных работ)

- соответствие уклонов и профиля основания проектным;

Измерительный

 

- качество поверхности и уплотнения основания.

Технический осмотр

Контрольно-измерительный инструмент: двухметровая рейка, уровень строительный, линейка металлическая, нивелир, плотномер ГРПТ-2, влагомер.

Операционный контроль осуществляют: мастер (прораб), геодезист - в процессе работ.

Приемочный контроль осуществляют: работники службы качества, мастер (прораб), представители технадзора заказчика.

Технические требования
СНиП 3.04.01-87 п. 4.2, табл. 20

Допускаемые отклонения:

- плоскости основания от горизонтали или заданного уклона 0,2% от соответствующего размера помещения и не более 50 мм;

- просветы между контрольной двухметровой рейкой и проверяемой поверхностью элемента пола не должны превышать, для:

- грунтовых оснований - 20 мм.

Не допускаются:

- применение растительного грунта, торфа, ила, а также насыпных грунтов с примесью строительного мусора.

Указания по производству работ
СНиП 3.04.01-87 п. 4.3, ВСП 12-101.5-96 п. 5.1.5

Устройство полов допускается при температуре воздуха в помещении, измеряемой в холодное время года около дверных и оконных проемов на высоте 0,5 м от уровня пола - не ниже 0 °С при устройстве элементов пола грунта.

Устройство бетонного подстилающего слоя, стяжек

Состав операций и средства контроля

Этапы работ

Контролируемые операции

Контроль (метод, объем)

Документация

Подготовительные работы

Проверить:

 

Акт освидетельствования (приемки) выполненных работ, общий журнал работ

- наличие акта освидетельствования (приемки) ранее выполненных работ;

Визуальный

- подготовку основания (очистка от мусора, увлажнение, выноска отметок);

То же

- установку маячных реек, надежность их крепления, отметки;

Измерительный

- установку анкеров, пробок, гильз в местах расположения проемов и отверстий для пропуска коммуникаций.

Визуальный

Устройство бетонной подготовки под полы

Контролировать:

 

Общий журнал работ

- соблюдение технологии укладки бетонной смеси, качество заглаживания поверхности;

Визуальный

- температурно-влажностный режим при твердении;

Измерительный

- качество заделки рабочих швов.

Визуальный

Приемка выполненных работ

Проверить:

 

Общий журнал работ, акт освидетельствования скрытых работ

- соблюдение заданных толщин, плоскостей, отметок и уклонов;

Измерительный, не менее 5 измерений на каждые 50-70 м поверхности пола

- качество бетона по прочности;

Лабораторный

- наличие и соответствие проекту отверстий, проемов, каналов, деформационных швов.

Визуальный

Контрольно-измерительный инструмент: рулетка, уровень строительный, двухметровая рейка, нивелир.

Операционный контроль осуществляют: мастер (прораб), инженер (лаборант), геодезист - в процессе выполнения работ.

Приемочный контроль осуществляют: работники службы качества, мастер (прораб), представители технадзора заказчика.

Технические требования
СНиП 3.04.01-87, табл. 17, 20

Допускаемые отклонения:

- просветов между контрольной двухметровой рейкой и проверяемой поверхностью элемента, мм, для:

- бетонных подстилающих слоев под оклеенную гидроизоляцию и покрытия на прослойке из горячей мастики - 5;

- бетонных подстилающих слоев под покрытия других типов - 10;

- стяжек под покрытия из линолеума, рулонных на основе синтетических волокон, паркета и поливинилхлоридных плит - 2;

- стяжек под покрытия из плит других типов (поливинилацетатно-цементно-бетонные) и под гидроизоляцию - 4;

- стяжек под покрытия других типов - 6;

- плоскости элемента от горизонтали или заданного уклона - 0,2 соответствующего размера помещения и не более - 50 мм.

Стяжки, укладываемые по звукоизоляционным прокладкам или засыпкам, в местах примыкания к стенам и перегородкам и другим конструкциям должны быть уложены с зазором шириной 20-25 мм на всю толщину стяжки и заполнены аналогичным звукоизоляционным материалом.

Монолитные стяжки должны быть изолированы от стен и перегородок полосами из гидроизоляционных материалов.

Требования к качеству применяемых материалов

ГОСТ 7473-94. Смеси бетонные. Технические условия.

ГОСТ 28013-98. Растворы строительные. Общие технические условия.

ГОСТ 26633-91. Бетоны тяжелые и мелкозернистые. Технические условия.

Каждая партия бетонной смеси, отправляемая потребителю, должна иметь документ о качестве, в котором должны быть указаны:

- изготовитель, дата и время отправки бетонной смеси;

- вид бетонной смеси и ее условное обозначение;

- номер состава бетонной смеси, класс бетона по прочности на сжатие;

- марка по средней плотности (для легких бетонов);

- вид и объем добавок;

- наибольшая крупность заполнителя, удобоукладываемость бетонной смеси;

- номер сопроводительного документа;

- гарантии изготовителя;

- другие показатели (при необходимости).

Готовые бетонные смеси должны доставляться потребителю специализированными видами транспорта согласно указаниям ППР. Применяемые способы транспортирования бетонной смеси должны исключать возможность попадания в смесь атмосферных осадков, нарушения однородности, потери цементного раствора, а также обеспечивать предохранение смеси в пути от вредного воздействия ветра и солнечных лучей.

Максимальная продолжительность транспортирования смесей 90 минут. Расслоившаяся растворная смесь должна быть перемешана на месте работы.

При входном контроле бетонной смеси на строительной площадке необходимо:

- проверить наличие паспорта на бетонную смесь и требуемых в нем данных;

- путем внешнего осмотра убедиться в отсутствии признаков расслоения бетонной смеси, в наличии в бетонной смеси требуемых фракций крупного заполнителя;

- при возникающих сомнениях в качестве бетонной смеси потребовать контрольной проверки по ГОСТ 10181-2002.

Указания по производству работ
СНиП 3.04.01-87 пп 4.3, 4.8, 4.9, 4.14, табл. 17

Устройство подстилающего слоя допускается при температуре воздуха в помещении, измеряемой в холодное время года около дверных и оконных проемов на высоте 0,5 м от уровня пола, и температуре укладываемых материалов не ниже 5 °С.

При выполнении бетонных подстилающих слоев с применением метода вакуумирования должны соблюдаться следующие требования:

- содержание песка на 1 м3 бетонной смеси должно быть на 150-200 побольше, чем в обычных смесях;

- подвижность бетонной смеси должна быть в пределах 8-12 см;

- разряжение в вакуумнасосе должно быть в пределах 0,06-0,08 МПа;

- продолжительность вакуумирования - 1-1,5 мин. на 1 см подстилающего слоя.

Разбивка полос бетонирования должна быть увязана с расположением деформационных швов, а также с сопряжениями покрытий полов из различных материалов, фундаментами под оборудование и т. п.

В поверхность основания из нескального грунта перед укладкой по нему бетонного подстилающего слоя должно быть предусмотрено вдавливание щебня или гравия на глубину не менее 40 мм.

Заглаживание поверхности монолитных стяжек следует выполнять под покрытия на мастиках и клеевых прослойках и под сплошные (бесшовные) полимерные покрытия до схватывания смесей.

Подстилающие слои, стяжки на цементном вяжущем должны в течение 7-10 дней после укладки находиться под слоем постоянно влажного водоудерживающего материала.

Рабочие швы в стяжках должны быть заглажены так, чтобы были незаметны.

Пешеходное движение по подстилающему слою, стяжке может быть допущено не ранее приобретения бетоном прочности на сжатие, равной 5 МПа.

Устройство звукоизоляции пола

Состав операций и средства контроля

Этапы работ

Контролируемые операции

Контроль (метод, объем)

Документация

Подготовительные работы

Проверить:

 

Паспорт (сертификат), общий журнал работ

- наличие документа о качестве на звукоизоляционные прокладки;

Визуальный

- разметку под укладку звукоизоляционных материалов.

Визуальный, измерительный

Устройство звукоизоляции

Контролировать:

 

Общий журнал работ

- правильность раскладки звукоизоляционных прокладок (под лаги или под сборные стяжки);

Визуальный, измерительный

- точность геометрических параметров звукоизоляционных прокладок;

Измерительный, не менее трех измерений на каждые 50-70 м2 поверхности пола

- крупность и влажность сыпучего звукоизоляционного материала.

Измерительный, не менее трех измерений на каждые 50-70 м2 засыпки

Приемка выполненных работ

Проверить:

 

Акт освидетельствования скрытых работ

- фактическое соблюдение заданных геометрических размеров;

Технический осмотр

- соответствие материалов звукоизоляции проекту.

То же

Контрольно-измерительный инструмент: линейка, рулетка, влагомер.

Входной и операционный контроль осуществляют: мастер (прораб) - в процессе работ.

Приемочный контроль осуществляют: работники службы качества, мастер (прораб), представители технадзора заказчика.

Технические требования
СНиП 3.04.01-87 пп. 4.18, 4.19, табл. 18

Крупность сыпучего звукоизоляционного материала - 0,15-10 мм. Влажность сыпучего материала засыпки между лагами - не более Ширина звукоизоляционных прокладок мм:

- под лаги - 100-120;

- под сборные стяжки размером «на комнату» по периметру - 200-220;

- внутри периметра - 100-120.

Расстояние между осями полос звукоизоляционных прокладок внутри периметра сборных стяжек размером «на комнату» - 0,4 м.

Не допускаются:

- органические примеси в сыпучих звукоизоляционных материалах;

- пылевидные материалы.

Указания по производству работ
СНиП 3.04.01-87 п. 4.19

Прокладки должны быть уложены без приклейки к плитам перекрытия. Прокладки под лаги должны укладываться на всем протяжении лаг без разрывов.

Ленточные прокладки под сборные стяжки размером «на комнату» должны располагаться непрерывными полосами по периметру помещения вплотную к стенам и перегородкам, под стыками смежных плит, а также внутри периметра - параллельно большей стороне плиты.

Устройство оклеенной гидроизоляции пола

Состав операций и средства контроля

Этапы работ

Контролируемые операции

Контроль (метод, объем)

Документация

Подготовительные работы

Проверить:

 

Паспорта (сертификаты), общий журнал работ

- качество материала (соответствие проекту);

Визуальный, технический осмотр

- чистоту и влажность оснований;

Визуальный

- ровность поверхности;

Визуальный, измерительный

- правильность выполнения выкружки (при необходимости);

Визуальный

- качество огрунтовки;

Визуальный, пробная наклейка рулонного материала с отрывом

- разметку (нанесение меловой линии направления кромки укладываемого полотнища).

Визуальный

Устройство гидроизоляции

Контролировать:

 

Общий журнал работ

- правильность нанесения мастики (толщину слоя, температуру мастики);

Измерительный, не менее 5 измерений на каждые 70-100 м в местах, определяемых визуальным осмотром

- плотность прижатия полотнищ, тщательность проглаживания полотнищ в местах стыков;

Технический осмотр

- правильность выполнения сопряжений.

Визуальный

Приемка выполненных работ

Проверить:

 

Акт освидетельствования скрытых работ

- прочность приклейки рулонного материала;

Технический осмотр

- соблюдение величины нахлеста полотнищ;

То же

- отсутствие пузырей, вздутий, разрывов, вмятин, воздушных мешков.

Визуальный

Контрольно-измерительный инструмент: линейка, рулетка, влагомер, двухметровая рейка.

Входной и операционный контроль осуществляют: мастер (прораб), инженер (лаборант) - в процессе работ.

Приемочный контроль осуществляют: работники службы качества, мастер (прораб), представители технадзора заказчика.

Технические требования
СНиП 3.04.01-87 п. 2.17, табл. 3,

Допускаемая влажность оснований при нанесении клеящих составов не должна превышать:

- бетонных - 4%;

- цементно-песчаных, гипсовых и гипсопесчаных - 5%.

Нахлест любых полотнищ изоляции не менее 100 мм.

Прочность сцепления с основанием гидроизоляционного ковра по сплошной мастичной клеящей прослойке эмульсионных составив должна быть не менее 0,5 МПа.

Температура при нанесении горячих мастик:

- битумных - 160 °С, предельное отклонение - +20 °С;

- дегтевых- 130 °С, предельное отклонение - +10 °С.

Толщина слоя мастик при наклейке рулонного ковра:

- горячих битумных - 2,0 мм, предельное отклонение - ±10%;

- холодных битумных - 0,8 мм, предельное отклонение - ±10%.

Не допускаются:

- пузыри, вздутия, воздушные мешки, разрывы, вмятины, проколы, губчатое строение, потеки и наплывы на поверхности покрытия изоляции;

- перекрестная нахлестка полотнищ изоляции.

Требования к качеству применяемых материалов

ГОСТ 2889-80. Мастика битумная кровельная горячая. Технические условия.

ГОСТ 10923-93*. Рубероид. Технические условия.

Для гидроизоляции строительных конструкций применяют рубероид подкладочный марок РПП-300А, РПП-300Б.

Рубероид выпускают в рулонах шириной 1000, 1025 и 1050 мм, допускаемое отклонение по ширине полотна - ±5 мм. Общая площадь рулона должна быть 20 ± 0,5 м2.

Гарантийный срок хранения составляет 12 месяцев со дня отгрузки потребителю (изготовления).

Мастика по внешнему виду должна быть однородной, без посторонних включений и частиц наполнителя не покрытых битумом, прочно склеивать рулонные материалы и быть удобонаносимой.

Приемка и поставка мастики осуществляется партиями. Мастика может быть упакована в стальные бочки со съемным донцем, деревянные бочки и барабаны.

На упаковке должна быть нанесена маркировка:

- наименование завода-изготовителя;

- марка мастики;

- наименование наполнителя.

Гарантийный срок хранения мастики - один год со дня изготовления. По истечении срока мастика должна быть проверена на качество.

Указания по производству работ
СНиП 3.04.01-87 пп. 2.2, 2.3, 2.6, 2.14, 2.15

Перед устройством гидроизоляции пола необходимо выполнить в соответствии с проектом следующие работы:

- заделать швы между сборными элементами;

- смонтировать закладные элементы;

- оштукатурить участки вертикальных поверхностей каменных конструкций на высоту примыкания рулонного ковра изоляции.

Рулонные материалы перед наклейкой необходимо разместить по месту укладки, раскладка полотнищ должна обеспечивать соблюдение величин их нахлестки при наклейке.

Мастики должны наноситься на огрунтованное основание. Огрунтовка поверхности должна быть выполнена сплошной. Огрунтовку стяжек, выполненных из цементно-песчаных растворов, следует выполнять не позднее 4 ч. после их укладки, применяя грунтовки на медленно испаряющихся растворителях.

Мастика должна наноситься равномерным сплошным, без пропусков, слоем.

Горячие мастики должны наноситься на основание непосредственно перед наклейкой полотнищ.

Холодные мастики следует наносить на основание заблаговременно. Между нанесением мастики и приклейкой полотнищ необходимо соблюдать технологические перерывы, обеспечивающие прочное сцепление гидроизоляционного материала с основанием.

Устройство битумной гидроизоляции пола

Состав операций и средства контроля

Этапы работ

Контролируемые операции

Контроль (метод, объем)

Документация

Подготовительные работы

Проверить:

- наличие документа о качестве на мастику;

 

Визуальный

Паспорт, общий журнал работ

- ровность поверхности;

Измерительный, не менее 5 измерений равномерно на каждые 50-70 м основания

- качество огрунтовки и просушку огрунтованной поверхности.

Визуальный

Устройство гидроизоляции

Контролировать:

 

Общий журнал работ

- технологию выполнения гидроизоляции;

Визуальный

- температуру битумной мастики;

Измерительный, каждая партия, приготовленная для нанесения мастики

- соблюдение толщины слоя;

Измерительный, не менее трех измерений на каждые 50-70 м поверхности гидроизоляции

- температуру песка.

Измерительный, каждой порции песка перед его нанесением

Приемка выполненных работ

Проверить:

- соблюдение требований проекта по устройству изоляции;

 

Технический осмотр

Акт освидетельствования скрытых работ

- прочность сцепления мастики с поверхностью основания;

То же

- сплошность и ровность поверхности изоляционного ковра.

Визуальный

Контрольно-измерительный инструмент: линейка, рулетка, двухметровая рейка, термометр, уровень.

Входной и операционный контроль осуществляют: мастер (прораб), инженер (лаборант) - в процессе работ.

Приемочный контроль осуществляют: работники службы качества, мастер (прораб), представители технадзора заказчика.

Технические требования
СНиП 3.04.01-87 табл. 3, 19

Температура битумной мастики при:

- нанесении - +16° С, предельное отклонение - +20° С.

Температура песка - +50° С, предельное отклонение - +10° С.

Толщина слоя битумной мастики - 1,0 мм, предельное отклонение - +0,5 мм.

Приемка осуществляется с составлением акта освидетельствования скрытых работ.

Допускаемая влажность оснований:

- бетонных - 4%;

- цементно-песчаных, гипсобетонных - 5%.

Требования к качеству применяемых материалов

ГОСТ 2889-80. Мастика битумная кровельная горячая. Технические условия.

Мастики битумные кровельные горячие в зависимости от теплостойкости подразделяют на марки: МБК-Г-55, МБК-Г-65, МБК-Г-75, МБК-Г-85, МБК-100.

По внешнему виду мастика должна быть однородной, без посторонних включений и частиц наполнителя, не покрытых битумом.

Мастика должна прочно склеивать рулонные материалы.

Приемка и поставка мастики осуществляется партиями в бочках стальных или деревянных. Каждая партия мастики должна сопровождаться документом о качестве.

Мастика должна храниться раздельно по маркам в закрытом помещении, гарантийный срок хранения - один год со дня изготовления. По истечении срока мастика должна быть проверена на соответствие стандарту.

Свойства мастики должны отвечать требованиям:

- жизнеспособность готовой мастики при нагреве - не менее 1-2 ч.;

- продолжительность послойной сушки при температуре 15-20 °С - 3 ч.;

- теплостойкость - 55-100 °С;

- продолжительность выдерживания готового изоляционного покрытия - 24 ч.

Указания по производству работ
СНиП 3.04.01-87 п. 2.24

Гидроизоляцию необходимо устраивать по выровненному обеспыленному и огрунтованному основанию из битумных мастик.

При устройстве изоляции каждый слой изоляционного ковра должен наносится сплошным, без разрывов, равномерной толщиной после отвердения грунтовки или нижележащего слоя.

Над стыками сборных элементов должна быть наклеена рулонная полоса шириной 10-20 см с нанесенной на ее основание мастикой.

Поверхность битумной гидроизоляции перед укладкой на нее покрытий, прослоек или стяжек, в состав которых входит жидкое стекло или цемент, необходимо покрывать горячей битумной мастикой с втапливанием в нее сухого крупнозернистого песка.

Устройство монолитных покрытий

Состав операций и средства контроля

Этапы работ

Контролируемые операции

Контроль (метод, объем)

Документация

Подготовительные работы

Проверить:

- наличие акта освидетельствования ранее выполненных работ;

 

Визуальный

Акт освидетельствования скрытых работ, общий журнал работ

- выполнение очистки поверхности нижележащего слоя от мусора, грязи, снега и наледи;

То же

- ровность поверхности нижележащего слоя или фактическую величину заданного уклона;

Измерительный, не менее 5 измерений на 50-70 м2 поверхности

- вынесение отметок чистого пола;

Измерительный

- установку маячных реек (расстояние между рейками, надежность крепления, отметка верха реек);

Технический осмотр

- установку пробок в местах расположения проемов, отверстий, анкеров.

Визуальный

Укладка бетонной смеси

Контролировать:

- соблюдение технологии укладки бетонной смеси (качество заглаживания поверхности и степень уплотнения бетона);

 

Визуальный

Общий журнал работ

- толщину укладываемого бетона;

Измерительный

- качество заделки рабочих швов.

Визуальный

Приемка выполненных работ

Проверить:

- фактическую величину прочности бетона;

 

Измерительный

Акт приемки выполненных работ

- соблюдение заданных размеров толщин, плоскостей, отметок и уклонов;

То же

- внешний вид поверхности пола;

Визуальный

- сцепление покрытия пола с нижележащим слоем.

Технический осмотр

Контрольно-измерительный инструмент: рулетка, уровень строительный, двухметровая рейка, нивелир, линейка металлическая.

Операционный контроль осуществляют: мастер (прораб), геодезист - в процессе выполнения

Приемочный контроль осуществляют: работники службы качества, мастер (прораб), представители технадзора заказчика.

Технические требования
СНиП 3.04.01-87 табл. 21, 25

Допускаемые отклонения:

- поверхности покрытия от плоскости при проверке контрольной двухметровой рейкой не должны превышать для:

- асфальтобетонных покрытий - 6 мм;

- цементно-бетонных, цементно-песчаных и других видов бетонных покрытий - 4 мм;

- от заданного уклона покрытий - 0,2% соответствующего размера помещения, но не более 50 мм;

- по толщине покрытия - не более 10% от проектной.

Уступы между покрытиями и элементами окаймления пола - не более 2 мм.

Максимальная крупность щебня и гравия для бетонных покрытий не должна превышать 15 мм и 0,6 толщины покрытий (h).

Прочность на сжатие мраморной крошки для покрытий:

- мозаичных - не менее 600 МПа;

- поливинилацетатно-цементно-бетонных и латексно-цементно-бетонных не менее 800 МПа.

При проверке сцепления монолитных покрытий с нижележащими элементами пола простукиванием не должно быть изменения характера звучания.

Не допускаются:

- зазоры и щели между плинтусами и покрытием пола или стенами (перегородками);

- выбоины, трещины, волны на поверхности покрытий;

- разрезка монолитных покрытий на отдельные карты, за исключением многоцветных покрытий (с установкой разделительных жилок).

Требования к качеству применяемых материалов

ГОСТ 7473-94. Смеси бетонные. Технические условия.

ГОСТ 18105-86*. Бетоны. Правила контроля прочности.

Бетонные смеси должны характеризоваться показателями:

- классом по прочности;

- удобоукладываемостью;

- видом и количеством исходных материалов;

- крупностью заполнителей.

Бетонные смеси должны быть приняты техническим контролем изготовителя, а при отправке потребителю сопровождаться документом о качестве.

При контроле по образцам для определения прочности бетона из произвольно выбранных замесов отбирают не менее одной пробы в одни сутки на строительной площадке.

По согласованию с проектной организацией, осуществляющей авторский надзор, пробы бетонной смеси на месте укладки допускается не отбирать, а оценивать прочность по данным контроля предприятия-изготовителя бетонной смеси.

Удобоукладываемость бетонной смеси определяют для каждой партии не позднее чем через 20 минут после доставки к месту укладки.

Бетонные смеси на месте укладки принимают по объему.

Указания по производству работ
СНиП 3.04.01-87 пп. 4.25, 4.26

Устройство монолитных покрытий допускается при температуре воздуха в помещении, измеряемой в холодное время года около дверных и оконных проемов на высоте 0,5 м от уровня пола, и температуре укладываемых материалов не ниже 5 °С. Такая температура должна поддерживаться до приобретения цементным раствором прочности не менее 50% от проектной.

Монолитные покрытия с упроченным поверхностным слоем, устраиваемые по бетонным подстилающим слоям, следует выполнять одновременно с последними путем втапливания в свежеуложенную отвакуумированную бетонную смесь декоративных, упрочняющих и других сыпучих материалов.

Бетонные смеси, в состав которых не введены пластификаторы, должны применяться с осадкой конуса 2-4 см, а цементно-песчаные смеси - с глубиной погружения конуса 4-5 см. Подвижность смесей следует увеличивать только введением пластификаторов.

Разрезка монолитных покрытий на отдельные карты не допускается, за исключением многоцветных покрытий, где между отдельными картами разного цветового решения должны быть установлены разделительные жилки.

Жесткие смеси должны быть уплотнены. Уплотнение и заглаживание бетона и раствора в местах рабочих швов следует производить до тех пор, пока шов станет незаметным.

Поверхностная пропитка покрытий флюатами и уплотняющими составами, а также отделка полиуретановыми лаками и эпоксидными эмалями бетонных и цементно-песчаных покрытий должна производиться не ранее чем через 10 сут. после укладки смесей при температуре воздуха в помещении не ниже 10 °С. Перед пропиткой покрытие необходимо высушить и тщательно очистить.

Устройство полов из керамической плитки

Состав операций и средства контроля

Этапы работ

Контролируемые операции

Контроль (метод, объем)

Документация

Подготовительные работы

Проверить:

 

Паспорта (сертификаты), акт освидетельствования скрытых работ

- наличие документа о качестве плиток, качество плиток;

Визуальный, измерительный

- вынос отметки чистого пола;

Измерительный

- очистку основания от мусора, грязи;

Визуальный

- ровность основания, горизонтальность или заданный уклон;

Измерительный

- разбивку основания и установку маячных плит.

Технический осмотр

Устройство полов

Контролировать:

 

Общий журнал работ

- соблюдение заданной толщины, отметок, уклонов поверхности подстилающего слоя раствора;

Измерительный, не менее 9 измерений на каждые 50-70 м поверхности покрытия

- ровность поверхности покрытия пола;

Технический осмотр

- соблюдение рисунка ковра согласно проекту;

Визуальный

- прямолинейность и ширину швов;

Измерительный, не менее 5 измерений на каждые 50-70 м2 поверхности покрытий

- соблюдение режима ухода за элементами пола, твердеющими после укладки.

Визуальный

Приемка готового пола

Проверить:

 

Общий журнал работ, акт приемки выполненных работ

- соблюдение рисунка ковра пола;

Визуальный

- внешний вид пола (отсутствие пятен, вздутий, выбоин);

То же

- ровность поверхности пола, величину уступов;

Измерительный

- прямолинейность, размеры и заполнение швов между плитками;

Измерительный, не менее 5 измерений на каждые 50-70 м2 поверхности покрытий

- прочность сцепления плиток с подстилающим слоем;

Технический осмотр

- правильность устройства плинтусов.

То же

Контрольно-измерительный инструмент: рулетка металлическая, линейка металлическая, уровень строительный, двухметровая рейка, угольник, нивелир.

Операционный контроль осуществляют: мастер (прораб), инженер (лаборант) - в процессе работ.

Приемочный контроль осуществляют: работники службы качества, мастер (прораб), представители технадзора заказчика.

Технические требования
СНиП 3.04.01-87 табл. 22, 25

Допускаемые отклонения:

- поверхности покрытия от плоскости при проверке контрольной двухметровой рейкой - 4 мм;

- уступов между смежными плитками - 1 мм;

- от заданного уклона покрытий - 0,2% соответствующего размера помещения, но не более 50 мм;

- по толщине покрытия - не более 10% от проектной.

Ширина швов между плитками не должна превышать:

- 6 мм при втапливании плиток в прослойку вручную;

- 3 мм при вибровтапливании плиток.

Уступы между покрытием и элементами окаймления не должны превышать 2 мм.

При проверке сцепления плиток с нижележащими элементами пола простукиванием не должно быть изменения характера звучания.

Не допускаются:

- зазоры и щели между плинтусами и покрытием пола или стенами (перегородками);

- волны, вздутия, выбоины, приподнятие кромок на поверхности покрытия.

Требования к качеству применяемых материалов

ГОСТ 6787-2001. Плитки керамические для полов. Технические условия.

Отклонения формы и размеров керамических плиток от номинальных не должны превышать нижеследующих значений, мм.

Для плиток длиной, мм

Отклонения, мм

по длине и ширине

по толщине

по косоугольности

по искривлению поверхности

по искривлению углов

до 48 вкл.

±1,0

±0,5

0,5

0,5

-

св. 48 до 100

±2,0

±1,0

0,5

0,75

1,5

св. 100 до 150

±2,0

±1,0

0,5

1,5

2,0

св. 150

±2,5

±1,0

1,0

1,8

2,5

Разница между наибольшим и наименьшим размерами плиток одной партии по длине и ширине не должна превышать 3 мм для плиток размерами до 150 мм и 4 мм - для плиток размерами свыше 150 мм.

Различие в толщине одной плитки не допускается более 1,0 мм.

Плитки в изломе должны иметь плотную структуру без посечек и раковин. Обратная (нелицевая) сторона плиток должна иметь поверхность, способствующую надежному сцеплению плиток с раствором.

Каждые контейнер, пакет, ящик и пачка плиток должны быть снабжены этикеткой, на которой указывают: наименование предприятия-изготовителя; наименование изделия; обозначение стандарта; тип и количество плиток. Этикетка должна быть прочно прикреплена (или вложена) к упаковке или напечатана на упаковочной бумаге.

Каждая партия плиток должна сопровождаться документом, удостоверяющим их качество.

Растворная смесь, отпущенная в транспортное средство, должна сопровождаться документом о качестве, в котором должны быть указаны: наименование и адрес изготовителя, дата и время (часы, минуты) изготовления смеси, марка раствора, вид вяжущего, количество смеси, наименование и количество добавки, обозначение стандарта.

При входном контроле применяемых материалов на строительной площадке необходимо:

- проверить наличие документа о качестве на поступающие материалы и требуемых в нем данных;

- путем внешнего осмотра убедиться в отсутствии дефектов внешнего вида материалов;

- при возникновении сомнений в качестве материалов потребовать контрольной проверки соответствия их требованиям нормативных документов.

Указания по производству работ
СНиП 3.04.01-87 пп. 4.3, 4.27, 4.28

Устройство полов из керамической плитки допускается при температуре воздуха в помещении, измеряемой в холодное время года около дверных и оконных проемов на высоте 0,5 м от уровня пола, и температуре укладываемых материалов не ниже 5° С. Такая температура должна поддерживаться до приобретения цементным раствором прочности не менее 50% от проектной.

Элементы пола из бетона и цементно-песчаного раствора до укладки на них покрытия из керамической плитки должны быть увлажнены до окончательного впитывания воды.

Керамические плитки следует укладывать сразу после устройства соединительной прослойки из раствора. Втапливание плиток в прослойку следует осуществлять с применением вибрации, а в местах, недоступных для вибровтапливания, - вручную. Закончить укладку и втапливание плиток следует до начала схватывания раствора.

Керамические плитки перед укладкой на прослойку из цементно-песчаного раствора должны быть погружены в воду или в водный раствор поверхностно активных веществ на 15-20 мин. (контроль - не реже 4 раз в смену).

Раствор, выступивший из швов, должен быть удален с покрытия заподлицо с его поверхностью до его затвердевания.

Нормативная эксплуатация полов из керамической плитки на прослойке из цементно-песчаного раствора допускается после приобретения раствором Проектной прочности на сжатие. Пешеходное движение по этим полам может быть допущено не ранее приобретения раствором прослойки прочности на сжатие, равной 2,5 МПа.

Устройство мозаичных полов

Состав операций и средства контроля

Этапы работ

Контролируемые операции

Контроль (метод, объем)

Документация

Подготовительные работы

Проверить:

 

Паспорта (сертификаты), акт освидетельствования скрытых работ, общий журнал работ

- наличие документа о качестве на материалы;

Визуальный

- наличие акта освидетельствования(приемки) ранее выполненных работ;

То же

- промывку поверхности нижележащего слоя водой, огрунтовку цементным молоком;

- » -

- ровность поверхности нижележащего слоя или фактическую величину заданного уклона;

Измерительный

- вынесение отметок чистого пола;

То же

- установку маячных реек, надежность их крепления и фактическую величину отметки верха реек;

Визуальный, измерительный

- установку пробок в местах расположения проемов, отверстий.

Технический осмотр

Укладка бетонной смеси

Контролировать:

 

Общий журнал работ

- соблюдение технологии укладки бетонной смеси, в том числе степень уплотнения и качество заглаживания поверхности бетона;

Визуальный, измерительный

- толщину укладываемого слоя бетона;

Измерительный

- соблюдение температурно-влажностного режима твердения;

То же

- качество отделки поверхности чистого пола.

Технический осмотр всей поверхности покрытия

Приемка готового пола

Проверить:

 

Общий журнал работ, акт приемки выполненных работ

- фактическую величину прочности бетона;

Лабораторный анализ

- соблюдение заданных размеров толщин, плоскостей, отметок и уклонов;

Измерительный, не менее девяти измерений на 50-70 м2 поверхности

- внешний вид поверхности пола;

Технический осмотр

- сцепление покрытия пола с нижележащим слоем.

То же, простукиванием

Контрольно-измерительный инструмент: рулетка металлическая, линейка металлическая, уровень строительный, двухметровая рейка, нивелир.

Операционный контроль осуществляют: мастер (прораб), инженер (лаборант) - в процессе

Приемочный контроль осуществляют: работники службы качества, мастер (прораб), представители технадзора заказчика.

Технические требования
СНиП 3.04.01-87 табл. 21, 25

Допускаемые отклонения:

- поверхности пола от плоскости при проверке контрольной двухметровой рейкой - 4 мм;

- от заданного уклона покрытий - 0,2% соответствующего размера помещения, но не более 50 мм;

- по толщине покрытия - не более 10% от проектной. Уступы между покрытием и элементами окаймления пола - 2 мм. Максимальная крупность мраморной крошки не должна превышать 15 мм и 0,6 толщины покрытий.

При проверке сцепления покрытий с нижележащими элементами пола простукиванием не должно быть изменения характера звучания.

При шлифовании должно быть полное вскрытие фактуры декоративного заполнителя.

Не допускаются:

- зазоры и щели между плинтусами и покрытием пола или стенами (перегородками);

- выбоины, трещины на поверхности покрытия;

- разрезка покрытий на отдельные карты, за исключением многоцветных покрытий (с установкой разделительных жилок).

Требования к качеству применяемых материалов

ГОСТ 8267-93*. Щебень и гравий из плотных горных пород для строительных работ. Технические условия.

ГОСТ 15825-80*. Портландцемент цветной. Технические условия.

Мозаичные смеси, в состав которых не введены пластификаторы, должны применяться с осадкой конуса 2-4 см. Подвижность смесей следует увеличивать только введением пластификаторов.

Каждая партия декоративного щебня и мраморной крошки должна сопровождаться документом о качестве, в котором должны быть указаны: наименование и адрес изготовителя, номер и дата выдачи паспорта, номер партии и количество материала, номера накладных, фракции щебня или крошки, зерновой состав, содержание пылевидных частиц, зерен слабых пород, марка по прочности, морозостойкость щебня, истираемость породы, цвет щебня или крошки, обозначение стандарта или технических условий.

При входном контроле бетонных смесей, декоративных заполнителей на строительной площадке необходимо:

- проверить наличие документа о качестве на используемые материалы и требуемых в нем данных;

- убедиться путем внешнего осмотра в соответствии качества используемых материалов требованиям проекта и нормативных документов;

- при возникновении сомнений в качестве материалов потребовать контрольной проверки соответствия их требованиям нормативных документов и проекта.

Прочность на сжатие мраморной крошки должна быть не менее 60 МПа.

Указания по производству работ
СНиП 3.04.01-87 пп. 4.3, 4.25, 4.26

Устройство мозаичных полов допускается при температуре воздуха в помещении, измеряемой в холодное время года около дверных и оконных проемов на высоте 0,5 м от уровня пола, и температуре укладываемых материалов не ниже 5° С. Такая температура должна поддерживаться до приобретения цементным раствором прочности не менее 50% от проектной.

Монолитные мозаичные покрытия, устраиваемые по бетонным подстилающим слоям, следует выполнять одновременно с последними путем втапливания в свежеуложенную отвакуумированную бетонную смесь декоративных материалов.

При устройстве мозаичных полов по элементам пола из бетона и цементно-песчаного раствора последние перед укладкой покрытия должны быть увлажнены до окончательного впитывания воды.

Обработка мест стыкования смежных участков одноцветного покрытия должна быть выполнена путем огрунтовки вертикальных кромок затвердевшего бетона и раствора или их увлажнения.

Уплотнение и заглаживание бетона и раствора в местах рабочих швов следует производить до тех пор, пока шов останется незаметным.

Шлифование полов должно производиться по достижении ими прочности, при которой исключаются выкрашивания заполнителя. При шлифовании обрабатываемая поверхность должна быть покрыта тонким слоем воды или водного раствора поверхностно активных веществ. Толщина снимаемого слоя должна обеспечить полное вскрытие фактуры заполнителя.

Устройство полов из полимерных материалов

Состав операций и средства контроля

Этапы работ

Контролируемые операции

Контроль (метод, объем)

Документация

Подготовительные работы

Проверить:

- наличие документа о качестве и внешний вид линолеума или ковра из него;

 

Визуальный

Паспорт (сертификат), общий журнал работ

- влажность поверхности основания;

Измерительный, не менее 5 измерений на каждые 50-70 м2 поверхности покрытия

- ровность поверхности основания;

Визуальный

- качество очистки основания;

Технический осмотр

- режим вылеживания раскатанного линолеума до исчезновения волнистости.

Визуальный

Устройство полов из рулонного линолеума

Контролировать:

- равномерность нанесения и толщину слоя мастики;

 

Измерительный, не менее 5 измерений на каждые 50-70 м2 поверхности покрытия

Общий журнал работ

- соблюдение рисунка ковра пола;

Визуальный

- плотность прилегания полотнищ линолеума к поверхности основания;

Технический осмотр

- отсутствие зазоров и уступов между смежными кромками полотнищ.

Визуальный

Приемка готового пола

Проверить:

- соблюдение рисунка ковра согласно требованиям проекта;

 

Визуальный

Акт приемки выполненных работ

- внешний вид пола (отсутствие пятен, трещин, царапин, вздутий, отсутствие зазоров между кромками смежных полотен);

То же

- ровность поверхности пола, заданный уклон.

Измерительный, не менее десяти измерений на 50-70 м2

Контрольно-измерительный инструмент: рулетка металлическая, линейка металлическая, уровень строительный, двухметровая рейка.

Операционный контроль осуществляют: мастер (прораб), инженер (лаборант) - в процессе

Приемочный контроль осуществляют: работники службы качества, мастер (прораб), представители технадзора заказчика.

Технические требования
СНиП 3.04.01-87 табл. 24, 25

Допускаемые отклонения:

- поверхности покрытия от плоскости при проверке контрольной двухметровой рейкой - 2 мм;

- от заданного уклона покрытий - 0,2% соответствующего размера помещения, но не более 50 мм.

Толщина слоя клеевой прослойки должна быть не более 0,8 мм.

Влажность оснований перед устройством полимерных покрытий не должна превышать:

- стяжек на основе цементного вяжущего - 5%;

- стяжек из древесноволокнистых плит - 12%.

Не допускаются:

- зазоры и щели между плинтусами и покрытием пола или стенами (перегородками), между смежными кромками полотнищ линолеума, ковров рулонных материалов;

- уступы между смежными полотнищами ковра;

- волны, вздутия, приподнятие кромок на поверхности покрытия;

- устройство поперечных (перпендикулярно направлению движения) швов в покрытиях из линолеума, ковров в зонах интенсивного движения.

Требования к качеству применяемых материалов

ГОСТ 17241-71. Материалы и изделия полимерные для покрытия полов. Классификация.

ГОСТ 27023-86. Ковры сварные из поливинилхлоридного линолеума на теплозвукоизолирующей подоснове. Технические условия.

Предельные отклонения от номинальных размеров линолеума и ковров из него.

Материалы

Предельные отклонения, мм

по длине

по ширине

по толщине

линолеум по ГОСТ 7251-77

не норм.

не норм.

±0,2

линолеум по ГОСТ 14632-79

не норм.

±10

±0,1

линолеум по ГОСТ 16914-71

не норм.

±30

±0,2

линолеум по ГОСТ 18108-80*

±100

±10

±0,2

ковры по ГОСТ 27023-86

+ 10

±10

±0,2

Кромки линолеума и ковров должны быть ровными и параллельными, не иметь заусенцев и щербин. Допускаемое отклонение от параллельности кромок не должно превышать 3 мм на один метр (для релина - 2 мм на один метр).

На лицевой поверхности линолеума не допускаются царапины, раковины, складки, пузыри, пятна, полосы, искажения рисунка и брызги от краски, видимые с расстояния 1 м по вертикали от поверхности пола. Наплывы и вмятины площадью не свыше 0,2 см2 более 3 шт. на 1 м2 допускаются только в линолеумах по ГОСТ 7251-77.

Длина полотнища линолеума в рулоне не должна быть менее 12 м, рулоны могут состоять из двух кусков, причем длина одного из них не должна быть менее 3 м. Размеры ковров по длине и ширине устанавливаются картами раскроя, разработанными, согласованными и утвержденными в установленном порядке.

Каждый рулон или бобина линолеума, каждая упаковка рулона, каждое упакованное место или каждый ковер должны сопровождаться этикеткой.

Указания по производству работ
СНиП 3.04.01-87 пп. 4.3, 4.39-4.42

Устройство полов из линолеума допускается при температуре воздуха в помещении, измеряемой в холодное время года около дверных и оконных проемов на высоте 0,5 м от уровня пола, и температуре укладываемых материалов не ниже 15° С. Такая температура должна поддерживаться в течение суток после окончания работ.

Линолеум перед приклейкой должен вылежаться до исчезновения волн и полностью прилегать к основанию, приклеивать его к нижележащему слою необходимо по всей площади, за исключением случаев, оговоренных в проекте.

Прирезку стыкуемых полотнищ линолеума необходимо производить не ранее 3 сут. после основной приклейки полотнищ. Кромки стыкуемых полотнищ линолеума должны быть после прирезки сварены или склеены.

Кромки стыкуемых полотнищ линолеума, рулонных материалов должны быть после прирезки сварены или склеены не ранее 3 сут. после основной приклейки.

Сварной шов ковров должен быть прямым, ровным, гладким и прочным по всей длине, без разрывов, прогаров и резко выраженных наплывов (высота наплыва не более 0,5 мм).

Устройство лаг в полах по плитам перекрытий

Состав операций и средства контроля

Этапы работ

Контролируемые операции

Контроль (метод, объем)

Документация

Подготовительные работы

Проверить:

 

Паспорта (сертификаты), общий журнал работ

- наличие документа о качестве материала;

Визуальный

- выполнение очистки основания от мусора, грязи;

То же

- отметку опорной плоскости;

Измерительный

- качество антисептирования лаг.

Визуальный

Укладка лаг

Контролировать:

 

Общий журнал работ

- расстояние между лагами;

Измерительный

- величину зазора между лагами и стенами;

То же

- уровень верха лаг;

- » -

- правильность стыковки лаг между собой;

Визуальный

- плотность прилегания лаг к поверхности плит.

То же

Приемка выполненных работ

Проверить:

 

Акт освидетельствования скрытых работ, общий журнал работ

- ровность поверхности лаг;

Визуальный, измерительный

- наличие временного раскрепления лаг (отдельными досками).

Визуальный

Контрольно-измерительный инструмент: рулетка металлическая, линейка металлическая, уровень строительный, двухметровая рейка, нивелир.

Операционный контроль осуществляют: мастер (прораб) - в процессе работ.

Приемочный контроль осуществляют: работники службы качества, мастер (прораб), представители технадзора заказчика.

Технические требования
СНиП 3.04.01-87 пп. 4.29, 4.38, табл. 23

Все лаги должны быть антисептированы.

Влажность материалов лаг не должна превышать - 18%.

Длина стыкуемых лаг должна быть не менее 2 м;

толщина - 40 мм;

ширина - 80-100 мм.

Расстояние между осями лаг, укладываемых по плитам перекрытий, и для балок перекрытия (при укладке покрытия непосредственно по балкам) должно быть 0,4-0,5 м.

Лаги должны стыковаться между собой вплотную торцами в любом месте помещения со смещением стыков в смежных лагах не менее чем на 0,5 м.

Между лагами и стенами (перегородками) необходимо оставлять зазор шириной 20-30 мм.

Не допускаются:

- подбивка деревянных клиньев или подкладок под лаги для их выравнивания;

- опирание лаг на деревянные подкладки.

На укладку лаг следует составлять акт освидетельствования скрытых работ.

Требования к качеству применяемых материалов

ГОСТ 8242-88. Детали профильные из древесины и древесных материалов для строительства. Технические условия.

ГОСТ 8486-86*. Пиломатериалы хвойных пород. Технические условия.

Для лаг применяют нестроганные доски второго и третьего сорта из здоровой древесины хвойных и мягких лиственных пород, за исключением липы и тополя. Доски могут иметь тупой обзол без коры. Не допускаются доски с гнилью.

На строительной площадке надлежит проверить:

- внешний вид лаг и прокладок;

- наличие антисептика на лагах и прокладках;

- наличие паспорта на каждую партию деталей, в котором должно быть указано: наименование предприятия-изготовителя; наименование деталей; размеры; количество в м3 и шт.; порода древесины; обозначение соответствующего стандарта (ГОСТ).

Хранить:

- в сухих закрытых помещениях уложенными в штабеля по типам и размерам. Под штабелями и между рядами деталей или пачек в 2-3 местах по их длине должны быть уложены деревянные прокладки одинаковой толщины.

Указания по производству работ
СНиП 3.04.01-87 пп. 4.3, 4.29, 4.30, 4.32

Устройство полов допускается при температуре воздуха в помещении, измеряемой в холодное время года около дверных и оконных проемов на высоте 0,5 м от уровня пола, не ниже 0° С.

Перед устройством полов, в конструкции которых заложены изделия и материалы на основе древесины, в помещении должны быть выполнены штукатурные и др. работы, связанные с возможностью увлажнения полов. При устройстве этих полов и в последующий период до сдачи объекта в эксплуатацию относительная влажность воздуха в помещении не должна превышать 60%.

Лаги под покрытия следует укладывать поперек направления света из окон, а в помещениях с определенным направлением движения людей (например, в коридорах) - перпендикулярно движению.

Поверхность лаг должна быть выровнена слоем песка с подбивкой его под звукоизоляционные прокладки или лаги по всей их ширине или длине. Лаги должны касаться звукоизоляционного слоя плит перекрытия или песчаного выравнивающего слоя всей нижней поверхностью, без зазоров.

В дверных проемах смежных помещений следует устанавливать уширенную лагу, выступающую за перегородку не менее чем на 50 мм с каждой стороны.

Устройство лаг на столбиках по грунтовому основанию

Состав операций и средства контроля

Этапы работ

Контролируемые операции

Контроль (метод, объем)

Документация

Подготовительные работы

Проверить:

 

Паспорта (сертификаты), общий журнал работ

- наличие документов о качестве материалов;

Визуальный

- качество лаг, прокладок (размеры, влажность, антисептирование);

Визуальный

- выполнение очистки основания от мусора, грязи;

Измерительный

- отметку опорной плоскости столбиков.

- » -

Уклада лаг

Контролировать:

 

Общий журнал работ

- расстояние между лагами;

Измерительный, не менее трех измерений на каждые 50-70 м2 поверхности пола

- величину зазора между лагами и стенами;

То же

- уровень верха лаг;

- » -

- правильность стыковки лаг между собой;

Визуальный

- плотность прилегания лаг к поверхности столбиков.

То же

Приемка выполненных работ

Проверить:

 

Акт освидетельствования скрытых работ

- ровность поверхности лаг;

Визуальный, измерительный

- наличие временного раскрепления лаг (отдельными досками);

Визуальный

- качество антисептирования лаг, прокладок, изоляции прокладок толем.

Технический осмотр

Контрольно-измерительный инструмент: нивелир, рулетка металлическая, линейка металлическая, уровень строительный, двухметровая рейка, влагомер.

Операционный контроль осуществляют: мастер (прораб).

Приемочный контроль осуществляют: работники службы качества, мастер (прораб), представители технадзора заказчика.

Технические требования
СНиП 3.04.01-87 пп. 4.29, 4.31, 4.38, табл. 23

Все лаги, деревянные прокладки, укладываемые столбиком под лаги, Должны быть антисептированы.

Влажность материалов лаг и прокладок не должна превышать 18%. Длина стыкуемых лаг должна быть не менее 2 м;

толщина - 40-50 мм;

ширина - 100-120 мм.

Деревянные прокладки, укладываемые по столбикам под лаги, должны быть следующих размеров:

- ширина- 100-150 мм;

- длина - 200-250 мм;

- толщина не менее 25 мм.

Расстояние между осями лаг должно быть 0,4-0,5 м.

Расстояние между опорами для лаг:

- при толщине лаг 40 мм - 0,8-0,9м;

- при толщине лаг 50 мм - 1,0-1,1м.

При больших эксплуатационных нагрузках на пол (более 500 кг/м2) расстояние между опорами для лаг, между лагами и их толщину следует принимать по проекту (расчету).

Под лаги, располагаемые на столбиках в полах на грунте, должны быть уложены деревянные прокладки по двум слоям толя, края которого следует выпустить из-под прокладок на 30-40 мм и закрепить к ним гвоздями. Стыки лаг должны располагаться на столбиках.

Между лагами и стенами (перегородками) необходимо оставлять зазор шириной 20-30 мм.

Требования к качеству применяемых материалов

ГОСТ 8486-86*Е. Пиломатериалы хвойных пород. Технические условия.

ГОСТ 11047-90. Детали и изделия деревянные для малоэтажных жилых зданий и общественных зданий. Технические условия.

ГОСТ 530-95. Кирпич и камни керамические.

Для лаг и прокладок применяют нестроганные доски второго и третьего сорта из здоровой древесины хвойных и мягких лиственных пород, за исключением липы и тополя, доски могут иметь тупой обзол без коры.

На приемке элементов пола следует проверить:

- внешний вид лаг и прокладок, их размеры;

- наличие антисептирования лаг и прокладок;

- наличие паспорта (сертификата) на каждую партию деталей, в котором должно быть указано: наименование предприятия-изготовителя; наименование деталей; размеры; количество в м3 и шт.; порода древесины; обозначение соответствующего стандарта (ГОСТ).

Лаги и прокладки следует хранить:

- в сухих закрытых помещениях, уложенными в штабеля по типам и размерам;

- под штабелями и между рядами деталей или пачек в 2-3 местах по их длине должны быть уложены деревянные прокладки одинаковой толщины.

Кирпич для устройства столбиков применяют полнотелый размерами 250´120´65 мм или 250´120´88 мм;

Отклонения от размеров и показателей внешнего вида не должны превышать следующие значения:

- по длине - ±5 мм; ширине - ±4 мм; толщине - ±3 мм;

- по отбитости углов: глубина до 15 мм, не более 2;

- трещины по постели длиной до 30 мм.

Предприятие-изготовитель обязано сопровождать партию кирпича документом, удостоверяющим качество. Кирпич должен храниться на поддонах или в контейнерах раздельно по маркам и видам.

Указания по производству работ
СНиП 3.04.01-87 пп. 4.3, 4.29, 4.32, СНиП 2.03.13-88, табл. 1

Устройство полов допускается при температуре воздуха в помещении, измеряемой в холодное время года около дверных и оконных проемов на высоте 0,5 м от уровня пола, не ниже 0° С.

Перед устройством полов, в конструкции которых заложены изделия и материалы на основе древесины, в помещении должны быть выполнены штукатурные и др. работы, связанные с возможностью увлажнения полов. При устройстве этих полов и в последующий период до сдачи объекта в эксплуатацию относительная влажность воздуха в помещении не должна превышать 60%. Сквозняки в помещении не допускаются.

Лаги под покрытия пола следует укладывать поперек направления света из окон, а в помещениях с определенным направлением движения людей (например, в коридорах) - перпендикулярно движению.

В дверных проемах смежных помещений следует устанавливать уширенную лагу, выступающую за перегородку не менее чем на 50 мм с каждой стороны.

Для столбиков под лаги следует применять кирпич керамический обыкновенный марки 75 и выше и цементно-песчаный раствор марки не ниже 25.

Устройство дощатых полов

Состав операций и средства контроля

Этапы работ

Контролируемые операции

Контроль (метод, объем)

Документация

Подготовительные работы

Проверить:

 

Акт освидетельствования скрытых работ, общий журнал работ, паспорта (сертификаты)

- выполнение очистки основания от мусора, грязи;

Визуальный

- наличие и качество звуко-, тепло- и гидроизоляционных прокладок согласно требованиям проекта;

То же

- качество укладки лаг (расстояние между ними, стыкование лаг, отметка);

Измерительный

- величину отметки чистого пола;

То же

- наличие документа о качестве на партию досок, внешний вид досок, влажность древесины.

Визуальный, измерительный

Устройство покрытия из досок

Контролировать:

 

Общий журнал работ

- правильность гвоздевого крепления досок к лагам;

Визуальный

- правильность стыковки досок покрытия между собой;

То же

- провесы, неровности, зазоры и зыбкость дощатого покрытия;

- » -

- правильность установки плинтусов.

- » -

Приемка готового пола

Проверить:

- внешний вид пола;

 

Визуальный

Акт приемки выполненных работ

- ровность поверхности пола;

Визуальный, измерительный

- отсутствие зазоров и уступов между досками покрытия;

То же

- величину заданного уклона (по проекту);

Измерительный, не менее пяти измерений на 50-70 м2

- правильность примыкания пола к другим конструкциям.

Визуальный

Контрольно-измерительный инструмент: рулетка металлическая, линейка металлическая, уровень строительный, двухметровая рейка.

Операционный контроль осуществляют: мастер (прораб).

Приемочный контроль осуществляют: работники службы качества, мастер (прораб), представители технадзора заказчика.

Технические требования
СНиП 3.04.01-87 пп. 4.34, 4.38, табл. 23, 25

Допускаемые отклонения:

- поверхности покрытия от плоскости при проверке контрольной двухметровой рейкой - +2 мм;

- от заданного уклона покрытий - 0,2% соответствующего размера помещения, но не более 50 мм;

- по толщине покрытия - не более 10% от проектной;

- зазоров между досками дощатого покрытия - не более 1 мм.

Длина стыкуемых торцами досок покрытия должна быть не менее 2 м, а паркетных досок - не менее 1,2 м.

Стыки торцов досок дощатых покрытий следует располагать на лагах.

Все доски покрытия должны крепиться к каждой лаге гвоздями длиной в 2-2,5 раза больше толщины покрытия.

Все доски (кроме лицевой стороны) должны быть антисептированы.

Влажность материалов досок не должна превышать 12%.

Не допускаются:

- уступы между смежными изделиями дощатых покрытий;

- зазоры и щели между плинтусами и покрытием пола или стенами (перегородками).

Требования к качеству применяемых материалов

ГОСТ 8242-88*. Детали профильные из древесины и древесных материалов для строительства. Технические условия.

Детали должны поставляться длиной 2,1 и более с градацией 0,1 м. По соглашению сторон могут поставляться детали меньшей длины, а также детали, прирезанные по длине.

Предельные отклонения от установленных размеров деталей не должны превышать, в мм:

- по длине неприрезанных деталей - ±5;

- по длине прирезанных деталей - ±3;

- по толщине - ±1;

- по ширине - ±2;

- по глубине и высоте шпунта - ±0.5;

- по толщине и ширине гребня - -0.5.

Отщепы, задиры и выщербины на поверхностях деталей:

- лицевых - не допускаются;

- нелицевых - не допускаются для плинтусов и досок глубиной более 5 мм и длиной более 1/10 длины детали.

Детали должны поставляться партиями. В партии должны быть детали одного типа, изготовленные из древесины одной породы.

В паспорте на каждую партию досок должно быть указано:

- наименование предприятия-изготовителя;

- наименование деталей;

- размеры;

- количество в м3;

- порода древесины;

- обозначение соответствующего стандарта (ГОСТ).

Хранить

в сухих закрытых помещениях уложенными в штабеля по типам и размерам. Под штабелями в 2-3 местах по их длине должны быть уложены деревянные прокладки одинаковой толщины.

Указания по производству работ
СНиП 3.04.01-87 пп. 4.3, 4.33-4.36

Устройство полов допускается при температуре воздуха в помещении, измеряемой в холодное время года около дверных и оконных проемов на высоте 0,5 м от уровня пола, не ниже 0° С.

Перед устройством полов, в конструкции которых заложены изделия и материалы на основе древесины, в помещении должны быть выполнены штукатурные и др. работы, связанные с возможностью увлажнения полов. При устройстве этих полов и в последующий период до сдачи объекта в эксплуатацию относительная влажность воздуха в помещении не должна превышать 60%.

Доски дощатого покрытия, соединяемые между собой боковыми кромками в шпунт, необходимо плотно сплачивать. Уменьшение ширины досок покрытия при сплачивании должно быть не менее 0,5%.

Гвозди для крепления досок к лагам следует забивать наклонно в пласт досок дощатого покрытия с втапливанием шляпок.

Стыки торцов досок покрытия должны перекрываться доской (фризом) шириной 50-60 мм, толщиной 15 мм, врезанной заподлицо с поверхностью покрытия. Фриз прибивают к лаге гвоздями в два ряда с шагом (вдоль лаги) 200-250 мм. Стыкование торцов без перекрытия фризом допускается только в двух-трех пристенных досках покрытия; стыки не должны находиться напротив дверных проемов и должны располагаться на одной лаге.

Устройство полов из штучного паркета

Состав операций и средства контроля

Этапы работ

Контролируемые операции

Контроль (метод, объем)

Документация

Подготовительные работы

Проверить:

- наличие документа о качестве и внешний вид паркета;

 

Визуальный

Паспорт (сертификат), акт освидетельствования скрытых работ, общий журнал работ

- очистку основания от мусора, грязи;

То же

- ровность основания, горизонтальность или заданный уклон;

Измерительный, не менее 10 измерений на 50-70 м2 поверхности

- наличие огрунтовки (при настилке по бетону или цементной стяжке);

Визуальный

- разбивку площади пола и разметку осей.

Измерительный

Настилка

Контролировать:

 

Общий журнал работ

- равномерность нанесения и толщину слоя мастики (при наклейке штучного паркета);

Визуальный, измерительный

- плотность приклейки паркетных планок;

Визуальный

- правильность соединения паркетных планок между собой;

То же

- шлифовку поверхности пола;

 

- правильность установки плинтусов.

- » -

Приемка готового пола

Проверить:

- внешний вид покрытия, качество циклевки, зазоры и уступы между смежными планками;

 

Визуальный

Общий журнал работ, акт приемки выполненных работ

- сцепление покрытия с нижележащим элементом пола;

Измерительный, поднятие не менее 3 планок на 50 м2 поверхности пола

- ровность поверхности пола;

Измерительный

- правильность примыкания пола к другим конструкциям.

Визуальный

Контрольно-измерительный инструмент: рулетка металлическая, линейка металлическая, уровень строительный, двухметровая рейка.

Операционный контроль осуществляют: мастер (прораб), инженер (лаборант) - в процессе работ.

Приемочный контроль осуществляют: работники службы качества, мастер (прораб), представители технадзора заказчика.

Технические требования
СНиП 3.04.01-87 п. 4.34, табл. 23, 25

Допускаемые отклонения:

- поверхности покрытия от плоскости при проверке контрольной двухметровой рейкой не должны превышать 2 мм;

- от заданного уклона покрытий - 0,2% соответствующего размера помещения, но не более 50 мм;

- толщины покрытия - не более 10% от проектной.

Влажность материалов штучного паркета не должна превышать 10%. Толщина клеевой прослойки под штучный паркет должна быть не более 1 мм.

Площадь приклейки паркетной планки должна быть не менее 80%. Зазоры между смежными планками штучного паркета - не более 0,3 мм.

Не допускаются:

- уступы между смежными изделиями покрытий;

- зазоры и щели между плинтусами и покрытием пола или стенами (перегородками);

- забивка гвоздей в лицевую поверхность паркетной планки.

Требования к качеству применяемых материалов

ГОСТ 8242-88*. Детали профильные из древесины и древесных материалов для строительства. Технические условия.

Предельные отклонения от размеров планок:

- по толщине - ±0,2 мм;

- по ширине - ±0,2 мм;

- по длине - ±0,3 мм.

Штучный паркет должен быть упакован в пачки.

Каждая пачка должна содержать планки одного типа, одной породы древесины и одного размера. В партии должно быть одинаковое количество правых и левых планок.

На каждой пачке должна быть четкая маркировка, содержащая: наименование предприятия-изготовителя; тип планок; породу и название древесины; количество щитов в шт. и м2; размеры в мм; дату изготовления; обозначение стандарта.

Поставляемый паркет должен сопровождаться документом о качестве.

Клеящие составы должны изготовляться централизованно и поступать на строительные площадки готовыми к употреблению. Составы не должны иметь посторонних включений, должны быть водостойкими.

Правила хранения

- клеящие составы - в плотной закрытой таре с соблюдением правил хранения легковоспламеняющихся взрывоопасных материалов.

- штучный паркет - в пачках, уложенных в правильные ряды по типам, размерам и породам древесины, в закрытых помещениях, не допускающих увлажнения.

Указания по производству работ
СНиП 3.04.01-87 пп. 4.3, 4.37

Устройство полов из штучного паркета с применением битумных мастик и их смесей допускается при температуре воздуха в помещении, измеряемой в холодное время года около дверных и оконных проемов на высоте 0,5 м от уровня пола, не ниже 5° С.

Перед устройством полов, в конструкции которых заложены изделия и материалы на основе древесины, в помещении должны быть выполнены штукатурные и др. работы, связанные с возможностью увлажнения полов. При устройстве этих полов и в последующий период до сдачи объекта в эксплуатацию относительная влажность воздуха в помещении не должна превышать 60%.

Наборный и штучный паркет следует приклеивать к основанию быстротвердеющими мастиками на водостойких вяжущих, применяемых в холодном или подогретом состоянии.

Устройство полов из щитового паркета

Состав операций и средства контроля

Этапы работ

Контролируемые операции

Контроль (метод, объем)

Документация

Подготовительные работы

Проверить:

 

Паспорт (сертификат), акт освидетельствования (приемки) скрытых работ, общий журнал работ

- наличие документа о качестве;

Визуальный

- внешний вид щитов;

То же

- очистку основания от мусора, грязи;

- » -

- правильность устройства лаг;

Измерительный, визуальный

- ровность поверхности лаг;

Измерительный

- вынос отметки чистого пола.

То же

Устройство покрытия из паркетных щитов

Контролировать:

 

Общий журнал работ

- соблюдение порядка укладки плит;

Визуальный

- правильность гвоздевого крепления;

То же

- величину зазоров;

Измерительный

- ровность поверхности пола;

То же

- правильность установки плинтусов.

Визуальный

Приемка готового пола

Проверить:

 

Общий журнал работ, акт приемки выполненных работ

- внешний вид покрытия (отсутствие трещин, выщербин, задиров, выполнение циклевки, зазоров между щитами);

Визуальный, измерительный

- ровность поверхности пола;

Измерительный, не менее 5 измерений на 50-70 м2 поверхности пола

- величину допускаемых зазоров;

То же

- отсутствие уступов;

- » -

- правильность установки и крепления плинтусов.

Визуальный

Контрольно-измерительный инструмент: рулетка металлическая, линейка металлическая, уровень строительный, двухметровая рейка.

Операционный контроль осуществляют: мастер (прораб).

Приемочный контроль осуществляют: работники службы качества, мастер (прораб), представители технадзора заказчика.

Технические требования
СНиП 3.04.01-87 п. 4.33, табл. 23, 25

Допускаемые отклонения:

- поверхности покрытия от плоскости при проверке контрольной двухметровой рейкой - не должны превышать 2 мм;

- от заданного уклона покрытий - не должны превышать 0,2% соответствующего размера помещения, но не более 50 мм;

- влажности материалов паркетных щитов - 10%;

- зазоров между паркетными щитами - 0,5 мм.

Не допускаются:

- уступы между смежными изделиями покрытия;

- зазоры и щели между плинтусами и покрытием пола или стенами (перегородками);

- забивка гвоздей в лицевую поверхность паркетных щитов.

Требования к качеству применяемых материалов

ГОСТ 28015-89. Щиты покрытий пола деревянные однослойные. Технические условия.

Номинальные размеры паркетных щитов и предельные отклонения от них должны соответствовать требованиям, приведенным в таблице.

Наименование изделия и его элементов

Наименование показателя

Номинальные размеры, мм

Предельные отклонения, мм

Шит

Толщина

40; 32; 28; 25; 22

±0,2

Ширина ´ длина

400´400; 500´500;

600´600; 800´800

±0,3

Паркетные планки

Толщина:

4; 6

±0,2

- для березы

6; 8

 

- для хвойных пород

8

 

Ширина

от 20 до 50

±0,2

Длина

от 100 до 400

±0,2

Рейки основания обвязки

Ширина

от 25 до 55

±0,5

Ширина

от 35 до 55

±0,5

Квадраты шпона

Толщина

не менее 4 от 100

±0,2

Длина

до 400

±0,2

Квадраты фанерной облицовочной плиты

Толщина

не менее 4

±0,4

Длина (ширина)

от 100 до 400

±0,5

Отклонения от формы паркетных щитов:

- перпендикулярность смежных кромок - не более 0,4 мм на длине 100 мм;

- плоскостность (покоробленность) - не более 1,0 мм на длине 1000 мм.

На лицевой поверхности древесины паркетных планок и квадратов шпона не допускаются отщепы, сколы, вырывы, задиры, выщербины и риски шириной более 0,3 мм и глубиной более 1 мм. На лицевой поверхности квадрата фанерной облицовочной плиты не допускаются вырывы, отщепы, сколы и царапины на наружных кромках шириной более 1,5 мм и шагом более 20, вмятины размером более 8´8 мм.

Допускаемые пороки должны быть зашпатлеваны под цвет древесины водостойкими шпатлевками.

К каждой пачке или пакете паркетных щитов должна быть прикреплена этикетка или бирка, либо нанесена маркировка в виде штампа. Каждая партия щитов должна сопровождаться документом о качестве, в котором должны быть указаны: наименование предприятия-изготовителя; тип и

марка паркетных щитов; порода древесины лицевого покрытия; количество щитов в шт. и м2; номер партии; дата изготовления; обозначение стандарта.

Указания по производству работ
СНиП 3.04.01-87 пп. 4.3, 4.33-4.37

Устройство полов из штучных материалов без приклейки к нижележащему слою допускается при температуре воздуха в помещении, измеряемой в холодное время года около дверных и оконных проемов на высоте 0,5 м от уровня пола, не ниже 0° С.

Перед устройством полов, в конструкции которых заложены изделия и материалы на основе древесины, в помещении должны быть выполнены штукатурные и др. работы, связанные с возможностью увлажнения полов. При устройстве этих полов и в последующий период до сдачи объекта в эксплуатацию относительная влажность воздуха в помещении не должна превышать 60%. Сквозняки в помещении не допускаются.

Паркетные щиты при соединении между собой при помощи шпонок необходимо плотно сплачивать. Уменьшение ширины изделий покрытия при сплачивании должно быть не менее 0,5%.

Паркетные щиты должны крепиться к каждой лаге гвоздями длиной 50-60 мм. Гвозди следует забивать наклонно в основание нижней щеки паза на кромках паркетных щитов с втапливанием шляпок. Стыки параллельных лагам кромок смежных паркетных щитов следует располагать на лагах.

При сопряжении паркетных щитов с опиленными кромками на одних из них должен быть выполнен паз, на других - гребень.

Отделочные работы

Штукатурные работы (простая штукатурка)

Состав операций и средства контроля

Этапы работ

Контролируемые операции

Контроль (метод, объем)

Документация

Подготовительные работы

Проверить:

- наличие акта приемки ранее выполненных работ;

 

Визуальный

Акт приемки ранее выполненных работ, паспорт, общий журнал работ

- наличие паспорта на поступивший раствор и его качество;

То же

- очистку поверхности от грязи, пыли, копоти, жировых и битумных пятен, выступивших солей;

- » -

- выполнение провешивания вертикальных и горизонтальных поверхностей;

Визуальный, измерительный

- влажность стен и температуру воздуха (в зимнее время).

Измерительный

Штукатурные работы

Контролировать:

 

Общий журнал работ

- качество штукатурного раствора;

Лабораторный контроль

- среднюю толщину слоя штукатурки;

Визуальный, измерительный

- вертикальность, горизонтальность оштукатуренных поверхностей;

То же

- качество поверхности штукатурки.

Визуальный

Приемка выполненных работ

Проверить:

- прочность сцепления штукатурки с основанием;

Визуальный

Акт приемки выполненных работ

- качество оштукатуренной поверхности.

Измерительный

Контрольно-измерительный инструмент: отвес строительный, линейка металлическая, рейка-правило, лекало.

Операционный контроль осуществляют: мастер (прораб), лаборант (инженер) - в процессе работ.

Приемочный контроль осуществляют: работники службы качества, мастер (прораб), представители технадзора заказчика.

Технические требования
СНиП 3.04.01-87 табл. 9, 10

Допускаемые отклонения:

- поверхностей от вертикали:

- на 1 м длины - 3 мм;

- на всю высоту помещения - не более 15 мм;

- неровности поверхностей плавного очертания (на 4 м2) - не более 3 шт. глубиной (высотой) до 5 мм;

- оконных и дверных откосов, пилястр, столбов, лузг и т. п. от вертикали и горизонтали (мм на 1 м) - 4 мм;

- радиуса криволинейных поверхностей, проверяемого лекалом, от проектной величины (на весь элемент) не должны превышать 10 мм;

- поверхности от горизонтали на 1 м длины - 3 мм;

- ширины откоса от проектной - 5 мм;

- тяг от прямой линии в пределах между углами - 6 мм.

Толщина однослойной штукатурки, мм:

- из гипсовых растворов - 15;

- из других видов растворов - до 20.

Влажность кирпичных и каменных поверхностей при оштукатуривании - не более 8%.

Прочность сцепления штукатурных растворов, МПа, не менее:

- для внутренних работ - 0,1;

- для наружных работ - 0,4.

Не допускаются:

- отслоения штукатурки, трещины, раковины, высолы, следы затирочного инструмента.

Требования к качеству применяемых материалов

ГОСТ 28013-98. Растворы строительные. Общие технические условия.

СНиП 3.04.01-87. Изоляционные и отделочные покрытия (табл. 8).

Поставленные на строительную площадку штукатурные растворы должны соответствовать следующим техническим требованиям:

- проходить через сетку с размерами ячеек:

- растворы для обрызга и грунта - 3 мм;

- растворы для накрывочного слоя и однослойных покрытий - 1,5 мм;

- подвижность в пределах - 5¸12 см;

- расслаиваемость - не более 15%;

- водоудерживающая способность - не менее 90%;

- прочность - по проекту.

Штукатурный раствор должен приготовляться на песке с модулем крупности от 1 до 2; не содержать зерен размером свыше 2,5 мм в растворах для обрызга и фунта и свыше 1,25 мм - для отделочных слоев.

Штукатурный раствор должен сопровождаться документом о качестве, в котором должны быть указаны: дата и время (часы, мин.) приготовления смеси, марка раствора, вид вяжущего, количество смеси, подвижность смеси, обозначение стандарта.

Доставленная на строительную площадку штукатурная растворная смесь должна быть разгружена в перегружатель-смеситель или в другие емкости при условии сохранения заданных свойств растворной смеси.

Указания по производству работ
СНиП 3.04.01-87 пп. 3.1, 3.3, 3.7-3.11, 3.15, 3.17

Штукатурные работы должны выполняться при положительной температуре окружающей среды и отделываемых поверхностей не ниже 10 °С и влажности воздуха не более 60%. Такая температура в помещении должна поддерживаться круглосуточно не менее чем за 2 сут. до начала и 12 сут. после окончания работ.

Отделочные работы должны выполняться в соответствии с проектом производства работ (ППР) на возведение зданий и сооружений. До начала отделочных работ должны быть произведены следующие работы:

- выполнена защита отделываемых помещений от атмосферных осадков;

- устроены гидроизоляция, теплозвукоизоляция и выравнивающие стяжки перекрытий;

- загерметизированы швы между блоками и панелями;

- заделаны и изолированы места сопряжений оконных, дверных и балконных блоков;

- остеклены световые проемы;

- смонтированы закладные изделия, проведены испытания систем тепловодоснабжения и отопления.

Оштукатуривание и облицовка (по проекту) поверхностей в местах установки закладных изделий санитарно-технических систем необходимо выполнить до начала их монтажа.

Выполнение штукатурных покрытий по основаниям, имеющим ржавчину, высолы, жировые и битумные пятна, не допускается. Обеспыливание поверхностей следует производить перед нанесением каждого слоя штукатурных составов.

Прочность оснований должна быть не менее прочности отделочного покрытия и соответствовать проектной. Выступающие архитектурные детали, места сопряжений с деревянными каменных, кирпичных и бетонных конструкций должны оштукатуриваться по прикрепленной к поверхности основания металлической сетке или проволоке; деревянные поверхности - по щитам из драни.

Внутренние поверхности каменных и кирпичных стен, возведенных методом замораживания, следует оштукатуривать после оттаивания кладки с внутренней стороны не менее чем на половину толщины стены.

При оштукатуривании стен из кирпича при температуре окружающей среды 23 °С и выше поверхность перед нанесением раствора необходимо увлажнить.

При устройстве однослойных покрытий их поверхность следует разравнивать сразу же после нанесения раствора, в случае применения затирочных машин - после его схватывания.

Штукатурные работы (улучшенная штукатурка)

Состав операций и средства контроля

Этапы работ

Контролируемые операции

Контроль (метод, объем)

Документация

Подготовительные работы

Проверить:

 

Акт приемки ранее выполненных работ, паспорт, общий журнал работ

- наличие акта приемки ранее выполненных работ;

Визуальный

- наличие паспорта на поступивший раствор и его качество;

То же

- очистку поверхности от грязи, пыли, копоти, жировых и битумных пятен, выступивших солей;

- » -

- установку съемных марок и маяков;

- » -

- выполнение провешивания вертикальных и горизонтальных поверхностей;

Визуальный, измерительный

- влажность стен и температуру воздуха (в зимнее время).

Измерительный

Штукатурные работы

Контролировать:

 

Общий журнал работ

- качество штукатурного раствора;

Лабораторный контроль

- среднюю толщину слоя штукатурки;

Визуальный, измерительный

- вертикальность, горизонтальность оштукатуренных поверхностей;

То же

- качество поверхности штукатурки.

Визуальный

Приемка выполненных работ

Проверить:

 

Акт приемки выполненных работ

- прочность сцепления штукатурки с основанием;

Визуальный

- качество оштукатуренной поверхности.

Измерительный

Контрольно-измерительный инструмент: отвес строительный, линейка металлическая, рейка-правило, лекало.

Операционный контроль осуществляют: мастер (прораб), лаборант (инженер) - в процессе работ

Приемочный контроль осуществляют: работники службы качества, мастер (прораб), представители технадзора заказчика.

Технические требования
СНиП 3.04.01-87 табл. 9, 10

Допускаемые отклонения:

- поверхностей от вертикали на 1 м длины - 2 мм;

- на всю высоту помещения - не более 10 мм;

- неровности поверхностей плавного очертания (на 4 м2) - не более 2 глубиной (высотой) до 3 мм;

- оконных и дверных откосов, пилястр, столбов, лузг и т. п. от вертикали и горизонтали (мм на 1 м) - 2 мм;

- радиуса криволинейных поверхностей, проверяемого лекалом, от проектной величины (на весь элемент) - 7 мм;

- поверхности от горизонтали на 1 м длины - 2 мм;

- ширины откоса от проектной - 3 мм;

- тяг от прямой линии в пределах между углами - 3 мм. Влажность кирпичных и каменных поверхностей при оштукатуривании - не более 8%.

Толщина каждого слоя при устройстве многослойных штукатурок без полимерных добавок, мм:

- обрызга по каменным, кирпичным, бетонным поверхностям - до 5;

- обрызга по деревянным поверхностям, включая толщину драни, - до 9;

- грунта из цементных растворов - до 5;

- грунта из известковых, известково-гипсовых растворов - до 7;

- накрывочного слоя штукатурного покрытия - до 2;

- накрывочного слоя декоративной отделки - до 7.

Прочность сцепления штукатурных растворов, МПа, не менее:

- для внутренних работ - 0,1;

- для наружных работ - 0,4.

Не допускаются:

- отслоения штукатурки, трещины, раковины, высолы, следы затирочного инструмента.

Требования к качеству применяемых материалов

ГОСТ 28013-98. Растворы строительные. Общие технические условия.

СНиП 3.04.01-87. Изоляционные и отделочные покрытия (табл. 8).

Поставленные на строительную площадку штукатурные растворы должны соответствовать следующим техническим требованиям:

- проходить через сетку с размерами ячеек:

- растворы для обрызга и грунта - 3 мм;

- растворы для накрывочного слоя и однослойных покрытий - 1,5 мм;

- подвижность в пределах - 5¸12 см;

- расслаиваемость не более 15%;

- водоудерживающая способность - не менее 90%;

- прочность - по проекту;

Штукатурный раствор должен приготовляться на песке с модулем крупности от 1 до 2; не содержать зерен размером свыше 2,5 мм в растворах для обрызга и грунта и свыше 1,25 мм для отделочных слоев.

Штукатурный раствор должен сопровождаться документом о качестве, в котором должны быть указаны: дата и время (часы, мин.) приготовления смеси, марка раствора, вид вяжущего, количество смеси, подвижность смеси, обозначение стандарта.

Доставленная на строительную площадку штукатурная растворная смесь должна быть разгружена в перегружатель-смеситель или в другие емкости при условии сохранения заданных свойств растворной смеси.

Указания по производству работ
СНиП 3.04.01-87 пп. 3.1, 3.3, 3.7-3.11, 3.15, 3.17, 3.18

Штукатурные работы должны выполняться при положительной температуре окружающей среды и отделываемых поверхностей не ниже 10 °С и влажности воздуха не более 60%. Такая температура в помещении должна поддерживаться круглосуточно не менее чем за 2 сут. до начала и 12 сут. после окончания работ.

Отделочные работы должны выполняться в соответствии с проектом производства работ (ППР) на возведение зданий и сооружений. До начала отделочных работ должны быть произведены следующие работы:

- выполнена защита отделываемых помещений от атмосферных осадков;

- устроены гидроизоляция, теплозвукоизоляция и выравнивающие стяжки перекрытий;

- загерметизированы швы между блоками и панелями;

- заделаны и изолированы места сопряжений оконных, дверных и балконных блоков;

- остеклены световые проемы;

- смонтированы закладные изделия, проведены испытания систем тепловодоснабжения и отопления.

Оштукатуривание и облицовка (по проекту) поверхностей в местах установки закладных изделий санитарно-технических систем необходимо выполнить до начала их монтажа.

Выполнение штукатурных покрытий по основаниям, имеющим ржавчину, высолы, жировые и битумные пятна, не допускается. Обеспыливание поверхностей следует производить перед нанесением каждого слоя штукатурных составов.

Прочность оснований должна быть не менее прочности отделочного покрытия и соответствовать проектной. Выступающие архитектурные детали, места сопряжений с деревянными каменных, кирпичных и бетонных конструкций должны оштукатуриваться по прикрепленной к поверхности основания металлической сетке или проволоке; деревянные поверхности - по щитам из драни.

Внутренние поверхности каменных и кирпичных стен, возведенных методом замораживания, следует оштукатуривать после оттаивания кладки с внутренней стороны не менее чем на половину толщины стены.

При оштукатуривании стен из кирпича при температуре окружающей среды 23 "С и выше поверхность перед нанесением раствора необходимо увлажнить.

При устройстве однослойных покрытий их поверхность следует разравнивать сразу же после нанесения раствора, в случае применения затирочных машин - после его схватывания. При устройстве многослойного штукатурного покрытия каждый слой необходимо наносить после схватывания предыдущего (накрывочный слой - после схватывания раствора). Разравнивание грунта следует выполнять до начала схватывания раствора.

Штукатурные работы (высококачественная штукатурка)

Состав операций и средства контроля

Этапы работ

Контролируемые операции

Контроль (метод, объем)

Документация

Подготовительные работы

Проверить:

 

Акт приемки ранее выполненных работ, паспорт, общий журнал работ

- наличие акта приемки ранее выполненных работ;

Визуальный

- наличие паспорта на поступивший раствор и его качество;

То же

- очистку поверхности от грязи, пыли, копоти, жировых и битумных пятен, выступивших солей;

- » -

- выполнение провешивания вертикальных и горизонтальных поверхностей;

Визуальный, измерительный

- установку съемных марок и маяков;

Визуальный

- смачивание кирпичных поверхностей водой при работе в сухую погоду и при температуре +23 °С и выше;

То же

- влажность стен и температуру воздуха (в зимнее время).

Визуальный, измерительный

Штукатурные работы

Контролировать:

 

Общий журнал работ

- качество штукатурного раствора;

Лабораторное исследование

- равномерность нанесения по поверхности с обеспечением сплошности покрытия;

Визуальный, измерительный

- среднюю толщину обрызга, грунта, намета;

То же

- соблюдение технологических режимов нанесения слоев штукатурки;

Визуальный

- вертикальность, горизонтальность штукатурного слоя;

Визуальный, измерительный

- радиусы кривизны поверхности;

Измерительный

- ширину откосов;

То же

- качество поверхности штукатурки.

Визуальный

Приемка выполненных работ

Проверить:

- прочность сцепления штукатурки с основанием;

 

Визуальный

Акт приемки выполненных работ

- качество оштукатуренных поверхностей.

То же

Контрольно-измерительный инструмент: отвес строительный, линейка металлическая, рейка-правило, лекало.

Операционный контроль осуществляют: мастер (прораб), лаборант (инженер) - в процессе работ.

Приемочный контроль осуществляют: работники службы качества, мастер (прораб), представители технадзора заказчика.

Технические требования
СНиП 3.04.01-87 табл. 9, 10

Допускаемые отклонения:

- поверхностей от вертикали:

- на 1 м длины - 1 мм,

- на всю высоту помещения - не более 5 мм;

- неровности поверхностей плавного очертания (на 4 м2) - не более 2 шт. глубиной (высотой) до 2 мм;

- оконных и дверных откосов, пилястр, столбов, лузг и т. п. от вертикали и горизонтали (мм на 1 м) - не должны превышать 1 мм;

- радиуса криволинейных поверхностей, проверяемого лекалом, от проектной величины (на весь элемент) - не должны превышать 5 мм;

- поверхности от горизонтали на 1 м длины - 1 мм;

- ширины откоса от проектной - не должны превышать 2 мм;

- тяг от прямой линии в пределах между углами пересечения тяг и раскреповки - не должны превышать 2 мм.

Влажность кирпичных и каменных поверхностей при оштукатуривании - не более 8%.

Толщина каждого слоя при устройстве многослойных штукатурок без полимерных добавок, мм:

- обрызга по каменным, кирпичным, бетонным поверхностям - до 5;

- обрызга по деревянным поверхностям, включая толщину драни, - до 9;

- грунта из цементных растворов - до 5;

- грунта из известковых, известково-гипсовых растворов - до 7;

- накрывочного слоя штукатурного покрытия - 2;

- накрывочного слоя декоративной отделки - до 7.

Прочность сцепления штукатурных растворов, МПа, не менее:

- для внутренних работ - 0,1;

- для наружных работ - 0,4.

Не допускаются:

- отслоения штукатурки, трещины, раковины, высолы, следы затирочного инструмента.

Требования к качеству применяемых материалов

ГОСТ 28013-98. Растворы строительные. Общие технические условия.

СНиП 3.04.01-87. Изоляционные и отделочные покрытия (табл. 8).

Поставленные на строительную площадку штукатурные растворы должны соответствовать следующим техническим требованиям:

- проходить через сетку с размерами ячеек:

- растворы для обрызга и грунта - 3 мм;

- растворы для накрывочного слоя и однослойных покрытий - 1,5 мм;

- подвижность в пределах - 5¸12 см;

- расслаиваемость не более 15%;

- водоудерживающая способность - не менее 90%;

- прочность - по проекту;

Штукатурный раствор должен приготовляться на песке с модулем крупности от 1 до 2; не содержать зерен размером свыше 2,5 мм в растворах для обрызга и грунта и свыше 1,25 мм для отделочных слоев.

Штукатурный раствор должен сопровождаться документом о качестве, в котором должны быть указаны: дата и время (часы, мин.) приготовления смеси, марка раствора, вид вяжущего, количество смеси, подвижность смеси, обозначение стандарта.

Доставленная на строительную площадку штукатурная растворная смесь должна быть разгружена в перегружатель-смеситель или в другие емкости при условии сохранения заданных свойств растворной смеси.

Указания по производству работ
СНиП 3.04.01-87 пп. 3.1, 3.3, 3.7-3.11, 3.15, 3.17

Штукатурные работы должны выполняться при положительной температуре окружающей среды и отделываемых поверхностей не ниже 10 °С и влажности воздуха не более 60%. Такая температура в помещении должна поддерживаться круглосуточно не менее чем за 2 сут. до начала и 12 сут. после окончания работ.

Отделочные работы должны выполняться в соответствии с проектом производства работ (ППР) на возведение зданий и сооружений. До начала отделочных работ должны быть произведены следующие работы:

- выполнена защита отделываемых помещений от атмосферных осадков;

- устроены гидроизоляция, теплозвукоизоляция и выравнивающие стяжки перекрытий;

- загерметизированы швы между блоками и панелями;

- заделаны и изолированы места сопряжений оконных, дверных и балконных блоков;

- остеклены световые проемы;

- смонтированы закладные изделия, проведены испытания систем тепловодоснабжения и отопления.

Оштукатуривание и облицовка (по проекту) поверхностей в местах установки закладных изделий санитарно-технических систем необходимо выполнить до начала их монтажа.

Выполнение штукатурных покрытий по основаниям, имеющим ржавчину, высолы, жировые и битумные пятна, не допускается. Обеспыливание поверхностей следует производить перед нанесением каждого слоя штукатурных составов.

Прочность оснований должна быть не менее прочности отделочного покрытия и соответствовать проектной. Выступающие архитектурные детали, места сопряжений с деревянными каменных, кирпичных и бетонных конструкций должны оштукатуриваться по прикрепленной к поверхности основания металлической сетке или проволоке; деревянные поверхности - по щитам из драни.

Внутренние поверхности каменных и кирпичных стен, возведенных методом замораживания, следует оштукатуривать после оттаивания кладки с внутренней стороны не менее чем на половину толщины стены.

При оштукатуривании стен из кирпича при температуре окружающей среды 23 °С и выше поверхность перед нанесением раствора необходимо увлажнить.

При устройстве однослойных покрытий их поверхность следует разравнивать сразу же после нанесения раствора, в случае применения затирочных машин - после его схватывания. При устройстве многослойного штукатурного покрытия каждый слой необходимо наносить после схватывания предыдущего (накрывочный слой - после схватывания раствора). Разравнивание грунта следует выполнять до начала схватывания раствора.

Штукатурные работы (покрытия из листов сухой гипсовой штукатурки)

Состав операций и средства контроля

Этапы работ

Контролируемые операции

Контроль (метод, объем)

Документация

Подготовительные работы

Проверить:

 

Акт приемки ранее выполненных работ, паспорт (сертификат), общий журнал работ

- наличие акта приемки ранее выполненных работ;

Визуальный

- наличие паспорта (сертификата) на листы гипсовой штукатурки;

То же

- качество листов сухой штукатурки;

То же, измерительный

- выполнение провешивания вертикальных и горизонтальных поверхностей;

Визуальный, измерительный

- установку марок и маяков.

Визуальный

Штукатурные работы

Контролировать:

 

Общий журнал работ

- вертикальность, горизонтальность штукатурного покрытия;

Визуальный, измерительный, не менее 5 измерений на 50-70 м2 поверхности

- прочность крепления листов гипсовой штукатурки к основанию;

Технический осмотр

- качество поверхности штукатурки.

То же

Приемка выполненных работ

Проверить:

 

Акт приемки выполненных работ

- прочность крепления листов штукатурки к основанию;

Технический осмотр

- качество штукатурного покрытия.

Визуальный, измерительный

Контрольно-измерительный инструмент: отвес строительный, линейка металлическая, лекало, двухметровая рейка, уровень.

Операционный контроль осуществляют: мастер (прораб).

Приемочный контроль осуществляют: работники службы качества, мастер(прораб), представители технадзора заказчика.

Технические требования
СНиП 3.04.01-87 табл. 9, 15

Допускаемые отклонения:

- поверхностей от вертикали:

- на 1 м длины - 1 мм;

- на всю высоту помещения - не более 5 мм;

- неровности поверхностей плавного очертания (на 4 м2) - не более 2 глубиной (высотой) до 2 мм;

- оконных и дверных откосов, пилястр, столбов, лузг и т. п. от вертикали и горизонтали (мм на 1 м) - 1 мм;

- радиуса криволинейных поверхностей, проверяемого лекалом, от проектной величины (на весь элемент) - 5 мм;

- поверхности от горизонтали на 1 м длины - 1 мм;

- ширины откоса от проектной - 2 мм;

- тяг от прямой линии в пределах между углами - 3 мм;

- провесов в стыках листов - не более 1 мм.

Штукатурные покрытия из листов сухой гипсовой штукатурки не должны быть зыбкими, при легком простукивании деревянным молотком в стыках не должны появляться трещины.

Не допускаются:

- отслоения штукатурки, трещины в стыках.

Требования к качеству применяемых материалов

ГОСТ 6266-97. Листы гипсокартонные. Технические условия.

По средней плотности, точности изготовления и показателям внешнего вида листы подразделяют на две группы: А и Б.

По форме поперечного сечения продольных кромок листы подразделяют на два типа:

- УК - с утоненными с лицевой стороны кромками;

- ПК - с прямыми кромками.

Средняя плотность листов должна быть, кг/м3, не более:

- 850 - для группы А;

- 1050 - для группы Б.

Условное обозначение листов должно состоять из:

- аббревиатуры наименования листов - ГКЛ;

- обозначения группы листов - А, Б;

- обозначения типа листов - УК, ПК;

- цифр, обозначающих номинальную длину, ширину и толщину листа в мм;

- обозначения настоящего стандарта.

Пример условного обозначения гипсокартонных листов группы А с утоненными кромками длиной 3000 мм, шириной 1200 мм, толщиной 14 мм:

ГКЛ-А-УК-3000´1200´14 ГОСТ 6266-89.

Листы должны иметь в плане прямоугольную форму. Номинальные геометрические размеры листов должны соответствовать значениям, указанным в таблице 1.

Таблица 1

Толщина

Длина

Ширина

8

10

12

13

14

2500, 2600, 2700, 2900, 3000

1200

16

18

20

2500, 2600, 2700, 2900, 3000, 3300, 3600, 3900, 4200, 4500, 4800

24

 

600

Действительные отклонения геометрических размеров листов не должны превышать предельные, указанные в таблице 2.

Таблица 2

Ширина

Предельные отклонения для группы

А

Б

по длине

по ширине

по толщине

по длине

по ширине

по толщине

1200

600

±4

±4

±3

0

-8

±0,5

±1,0

±8

±8

±4

+2

-10

±0,8

±1,0

Допускается в партии (за исключением случаев поставки в розничную торговлю) не более 5% листов длиной и (или) шириной менее допускаемых настоящим стандартом размеров, а также без облицовки картоном продольных кромок.

На листе не допускаются повреждения углов и продольных кромок, размеры и количество которых превышают значения, указанные в таблице 3.

Таблица 3

Наименование показателя

Предельные значения для группы

А

Б

Повреждение углов:

 

 

длина наибольшего катета, мм

3

20

количество, шт.

2

2

Повреждение продольных кромок:

 

 

длина, мм

10

20

глубина, мм

3

5

количество, шт.

2

2

Указания по производству работ
СНиП 3.04.01-87 пп. 3.1, 3.3, 3.19

Штукатурные работы должны выполняться при положительной температуре окружающей среды и отделываемых поверхностей не ниже 10 °С и влажности воздуха не более 60%.

Листы гипсовой штукатурки необходимо приклеивать к поверхности кирпичных стен составами, соответствующими проектным, располагаемыми в виде марок размером 80´80 мм на площади не менее 10% на расстоянии:

- вдоль потолка, пола, углов вертикальной плоскости - через 120-150 мм;

- в промежутках - не более 400 мм;

- вдоль вертикальных кромок листов - сплошной полосой.

Листы гипсовой штукатурки к деревянным основаниям следует крепить гвоздями с широкими шляпками.

Малярные работы (окраска водными составами)

Состав операций и средства контроля

Этапы работ

Контролируемые операции

Контроль (метод, объем)

Документация

Подготовительные работы

Проверить:

 

Паспорт (сертификат), акт приемки ранее выполненных работ, общий журнал работ

- наличие паспорта (сертификата) на окрасочные составы и шпатлевки;

Визуальный

- акты приемки ранее выполненных работ;

 То же

- влажность поверхности и выполнение просушки влажных мест;

Визуальный, измерительный

- температуру в помещении (в зимнее время);

То же

- качество обработки (безусадочной шпатлевки) мест примыкания перегородок, дверных блоков, встроенных шкафов и антресолей к стенам и потолкам, а также мест сопряжений конструкций из различных материалов;

Визуальный

- качество окрашиваемой поверхности.

Визуальный, измерительный

Малярные работы

Контролировать:

 

Общий журнал

- соблюдение технологических режимов и последовательности нанесения слоев красок;

Визуальный

- однотонность фактуры;

То же

- ровность филенок, линий закраски в сопряжениях поверхности, окрашиваемых в разные цвета.

- » -

Приемка выполненных работ

Проверить:

- качество окрашенных поверхностей, в т. ч. отсутствие полос, пятен, потеков, морщин, просвечивание нижележащих слоев краски;

 

Визуальный

Акт приемки выполненных работ

- ровность филенок и линий закраски в сопряжениях поверхности, окрашиваемых в разные цвета.

То же

Контрольно-измерительный инструмент: рулетка, линейка металлическая, влагомер, термометр.

Операционный контроль осуществляют: мастер (прораб).

Приемочный контроль осуществляют: работники службы качества, мастер (прораб), представители технадзора заказчика.

Технические требования
СНиП 3.04.01-87 п. 3.7, табл. 9, 11, 15

Допускаемые отклонения:

- влажности поверхности:

- бетонных, оштукатуренных или прошпатлеванных - до появления капельно-жидкой влаги на поверхности;

- деревянных поверхностей - не более 12%;

- толщины слоев малярного покрытия - не менее 25 Мкм;

- искривлений линий в местах сопряжений поверхностей, окрашенных в различные цвета:

- для простой окраски - 5 мм;

- для улучшенной окраски - 2 мм;

- искривлений линий филенок и закраска поверхностей при применении разных колеров - 1 мм на 1 м длины.

Приемку малярных работ необходимо производить после высыхания водных красок.

Поверхности после высыхания водных составов должны быть однотонными, местные исправления, выделяющиеся на общем фоне (кроме простой окраски), не должны быть заметны на расстоянии 3 м от поверхности.

Не допускаются:

- пятна, полосы, подтеки, брызги, истирания (омелования) поверхности;

- выполнение работ по окраске оснований, имеющих ржавчину, высолы, жировые и битумные пятна.

Требования к качеству применяемых материалов

ГОСТ 18958-73. Краски силикатные.

ГОСТ 28196-89*. Краски водно-дисперсионные. Технические условия.

ГОСТ Р 52020-2003. Материалы лакокрасочные водно-дисперсионные. Общие технические условия.

Краски должны поставляться партиями. За партию принимают количество одной марки и цвета краски, полученной за один технологический цикл и сопровождаемой документом о качестве, в котором должно быть указано:

- наименование предприятия-изготовителя и его товарный знак;

- наименование, марка и цвет материала;

- масса нетто;

- номер партии;

- дата изготовления;

- обозначение нормативно-технической документации;

- результаты проведенных испытаний и подтверждение о соответствии материалов требованиям нормативных документов;

- вид тары и количество единиц упаковок в партии;

- указания об особых свойствах материала (пожаровзрывоопасность, токсичность).

Краски упаковывают в бочки деревянные, фляги, бочки стальные, банки металлические, полиэтиленовые бидоны различной емкости.

Краски хранят и транспортируют при температуре выше 0 °С. Гарантийный срок хранения красок - 6 месяцев со дня изготовления.

Указания по производству работ
СНиП 3.04.01-87 пп. 1.2, 3.8, 3.12, 3.25, 3.26

Окраска внутренних поверхностей безводными красящими составами должна выполняться при положительной температуре окружающей среды и отделываемых поверхностей не ниже 10 °С и влажности воздуха не более 60%.

Окраска поверхностей водными составами должна выполняться в соответствии с проектом. Вид окрасок (простые, улучшенные, высококачественные), тип, вид и цвет устанавливаются проектом или эталоном. При отсутствии указаний в проекте малярные работы выполняются по согласованию с проектной организацией и заказчиком.

До начала малярных работ поверхности, подлежащие окраске, должны быть подготовлены и сданы по акту.

При окраске водными составами качество подготовленных оснований должно удовлетворять следующим требованиям:

- поверхности должны быть сглаженными, без шероховатостей;

- поверхностные трещины раскрыты, огрунтованы, заполнены шпатлевкой на глубину не менее 2 мм и отшлифованы;

- раковины и неровности огрунтованы, прошпатлеваны и сглажены;

- отслоения, потеки раствора, следы обработки затирочными машинами удалены;

- швы между листами сухой гипсовой штукатурки и участки, примыкающие к ним, огрунтованы, прошпатлеваны, отшлифованы заподлицо с поверхностью или обработаны рустами (в соответствии с проектом).

Шпатлевку из малоусадочных составов полимерными добавками необходимо разравнивать сразу же после нанесения со шлифованием отдельных участков; при нанесении других видов шпатлевочных составов поверхность шпатлевки следует отшлифовывать после ее высыхания.

Огрунтовка поверхностей должна производиться перед окраской малярными составами, кроме кремнийорганических. Огрунтовку следует выполнять сплошным равномерным слоем, без пропусков и разрывов. Окраску следует производить после высыхания грунтовки.

Малярные составы необходимо наносить также сплошным слоем. Нанесение каждого окрасочного состава должно начинаться после полного высыхания предыдущего.

Малярные работы (окраска безводными составами)

Состав операций и средства контроля

Этапы работ

Контролируемые операции

Контроль (метод, объем)

Документация

Подготовительные работы

Проверить:

 

Акт приемки ранее выполненных работ, паспорт (сертификат), общий журнал работ

- наличие паспорта (сертификата) на окрасочные составы и шпатлевки;

Визуальный

- качество материалов;

Визуальный, лабораторный

- акты приемки ранее выполненных работ;

Визуальный

- влажность поверхности и выполнение просушки влажных мест;

Визуальный, измерительный

- температуру в помещении (в зимнее время);

Измерительный

- качество сплошной шпатлевки, в т. ч. сплошность покрытия поверхности, закрытие раковин, ровность шпатлевки;

Визуальный, измерительный

- качество окрашиваемой поверхности.

То же

Нанесение масляного колера

Контролировать:

- соблюдение технологических режимов и последовательности нанесения слоев масляных красок;

 

Визуальный

Общий журнал работ

- однотонность фактуры;

То же

- ровность и ширину бордюров, фризов, филенки;

- » -

- ровность линий закраски в сопряжениях поверхности, окрашиваемых в разные цвета.

- » -

Приемка выполненных работ

Проверить:

- качество окрашенных поверхностей, в т. ч. однотонность, отсутствие полос, пятен, потеков, морщин, просвечивание нижележащих слоев краски, ровность фризов и линий закраски в сопряжениях поверхности, окрашиваемых в разные цвета.

 

Визуальный

Акт приемки выполненных работ

Контрольно-измерительный инструмент: рулетка, линейка металлическая, влагомер, термометр.

Операционный контроль осуществляют: мастер (прораб).

Приемочный контроль осуществляют: работники службы качества, мастер (прораб), представители технадзора заказчика.

Технические требования
СНиП 3.04.01-87 п. 3.7, табл. 9, 11, 15

Допускаемые отклонения:

Допускаемая влажность:

- бетонных, оштукатуренных или прошпатлеванных поверхностей - не более 8%;

- деревянных поверхностей - не более 12%.

Поверхность основания должна быть гладкой, без шероховатостей, местных неровностей высотой (глубиной) до 1 мм - не более 2 на площади 4 м2 поверхности покрытий.

Толщина слоев малярного покрытия:

- шпатлевки 0,5 мм и не более 1,5 мм;

- окрасочного покрытия - не менее 25 Мкм.

Искривления линий, закраски высококачественной окраски (для других видов) на отдельных участках, в местах сопряжения поверхностей, окрашенных в различные цвета, не должны превышать, мм:

- для простой окраски - 5;

- для улучшенной окраски - 2.

Искривление линий филенок и закраска поверхностей при применении разных колеров - 1 мм на 1 м длины.

Приемку малярных работ необходимо производить после образования прочной пленки на поверхностях:

- окрашенные малярными безводными составами должны иметь однотонные глянцевые или матовые покрытия;

- окрашенные лаками должны иметь глянцевые покрытия.

Не допускаются:

- пятна, морщины, потеки, видимые крупинки краски, сгустки пленки на поверхности, следы кисти и валика, неровности, отпечатки высохшей краски на приложенном тампоне;

- выполнение работ по окраске оснований, имеющих ржавчину, высолы, жировые и битумные пятна;

- просвечивание нижележащих слоев краски, отслоения.

Требования к качеству применяемых материалов

ГОСТ 30884-2003. Краски масляные, готовые к употреблению. Общие технические условия.

ГОСТ Р 51691-2000. Краски масляные, готовые к употреблению. Общие технические условия.

Материалы должны сопровождаться документом о качестве, в котором должно быть указано:

- наименование предприятия-изготовителя и его товарный знак;

- наименование, марка и цвет материала;

- масса нетто;

- номер партии и дата изготовления;

- обозначение стандарта;

- результаты испытаний и подтверждение о соответствии материалов требованиям стандартов;

- вид тары и количество единиц упаковок в партии;

- указания об особых свойствах материала (пожаровзрывоопасность, токсичность).

Материалы и полуфабрикаты, применяемые для малярных работ, должны проверяться в лабораторных условиях на вязкость, адгезию, консистенцию во всех случаях сомнения в их качестве (нарушение целостности упаковки, неясная маркировка, несоответствие условий хранения требованиям ГОСТ и ТУ). Вязкость окрасочных составов должна быть такой, чтобы окрасочный состав наносился на поверхность без потеков.

Шпатлевки, применяемые для выравнивания и подготовки поверхности под окраску, должны представлять собой однородную не расслаивающуюся массу, иметь консистенцию, соответствующую 12 см осадки стандартного конуса при механическом и 6-8 см при ручном нанесении на обрабатываемую поверхность, обладать свойством прочного сцепления с поверхностями оснований (1 кг/см2 через 24 часа), не давать усадку при высыхании и не образовывать трещин.

Масляные краски должны храниться в несгораемых отдельных сухих помещениях, обеспечиваемых противопожарными средствами, в плотно закрытой таре. Тару устанавливать пробками и крышками вверх.

Гарантийный срок хранения красок - 6 месяцев со дня изготовления.

Указания по производству работ
СНиП 3.04.01-87 пп. 3.1, 3.12, 3.23-3.26

Окраска внутренних поверхностей безводными красящими составами должна выполняться при положительной температуре окружающей среды и отделываемых поверхностей не ниже 10 °С и влажности воздуха не более 60%.

При окраске безводными составами качество подготовленных оснований должно удовлетворять следующим требованиям:

- поверхности должны быть сглаженными, без шероховатостей;

- поверхностные трещины раскрыты, огрунтованы, заполнены шпатлевкой на глубину не менее 2 мм и отшлифованы;

- раковины и неровности огрунтованы, прошпатлеваны и сглажены;

- отслоения, потеки раствора, следы обработки затирочными машинами удалены;

- швы между листами сухой гипсовой штукатурки и участки, примыкающие к ним, огрунтованы, прошпатлеваны, отшлифованы заподлицо с поверхностью или обработаны рустами (в соответствии с проектом).

Шпатлевку из малоусадочных составов полимерными добавками необходимо разравнивать сразу же после нанесения со шлифованием отдельных участков; при нанесении других видов шпатлевочных составов поверхность шпатлевки следует отшлифовывать после ее высыхания.

Огрунтовка поверхностей должна производиться перед окраской малярными составами, кроме кремнийорганических. Огрунтовку следует выполнять сплошным равномерным слоем, без пропусков и разрывов. Высохшая грунтовка должна иметь прочное сцепление с основанием, не отслаиваться при растяжении, на приложенном к ней тампоне не должно оставаться следов вяжущего. Окраску следует производить после высыхания грунтовки.

Малярные составы необходимо наносить также сплошным слоем. Нанесение каждого окрасочного состава должно начинаться после полного высыхания предыдущего. Флейцевание или торцевание красочного состава следует производить по свеженанесенному окрасочному составу.

При окраске дощатых полов каждый слой, за исключением последнего, необходимо прошлифовывать до удаления глянца.

Приемку отделочных покрытий необходимо производить после образования прочной пленки на поверхностях, окрашенных безводными составами.

Поверхности, окрашенные лаками, должны иметь глянцевые покрытия, без трещин, видимых утолщений, следов лака (после высыхания) на приложенном тампоне.

Облицовочные работы

Состав операций и средства контроля

Этапы работ

Контролируемые операции

Контроль (метод, объем)

Документация

Подготовительные работы

Проверить:

- наличие документа о качестве на материалы;

 

Визуальный

Паспорта (сертификаты), общий журнал работ

- подготовку поверхности к облицовке (обеспыливание, выправление неровностей и отклонений по вертикали, насечка);

Визуальный, измерительный

- правильность провешивания поверхности стен и установки маяков и направляющих реек;

То же

- сортировку плиток по цветам и оттенкам.

Визуальный

Выполнение облицовочных работ

Контролировать:

 

Общий журнал работ

- толщину, сплошность и ровность подстилающего слоя раствора (мастики);

Визуальный, измерительный

- соблюдение рисунка поверхности согласно проекту;

Визуальный

- плотность прилегания плиток к поверхности подстилающего слоя;

То же

- ровность облицованной поверхности стен;

Измерительный, не менее 5 измерений на 50-70 м2 поверхности

- прямолинейность и ширину швов между плитками;

То же

- заполнение швов раствором.

Визуальный

Приемка выполненных работ

Проверить:

- внешний вид облицованных поверхностей (отсутствие пятен, сколов, трещин, однотонность цветов плиток, соблюдение рисунка);

 

Визуальный

Акт приемки выполненных работ

- ровность поверхности;

Измерительный

- прямолинейность и однотипность горизонтальных и вертикальных швов, размеры и заполнение швов;

Визуальный, измерительный

- прочность сцепления плиток с основанием.

Простукиванием

Контрольно-измерительный инструмент: рейка, отвес, уровень, линейка металлическая, метр стальной.

Операционный контроль осуществляют: мастер (прораб).

Приемочный контроль осуществляют: работники службы качества, мастер (прораб), представители технадзора заказчика.

Технические требования
СНиП 3.04.01-87 табл. 13, 15

Допускаемые отклонения облицовок не должны превышать нормы, приведенные в таблице 1.

Толщина клеящей прослойки:

- из раствора - 7 мм, но не более 15 мм;

- из мастики - 1 мм, но не более 2 мм.

Поверхность всей облицовки должна быть жесткой.

Горизонтальные и вертикальные швы облицовки должны быть однотипны и равномерны по ширине.

Пространство между стеной и облицовкой должно быть заполнено раствором (табл. 1).

Таблица 1

Виды облицованной поверхности

Допускаемые

отклонения

от вертикали

расположения швов от вертикали и горизонтали, на 1 м длины, мм

несовпадения профиля на стыках архитектурных деталей и швов, мм

неровности плоскости при контроле двухметровой рейкой), мм

ширины шва облицовки, мм

на 1 м длины, мм

на этаж, не более, мм

1. Зеркальная лощеная

2

4

1,5

0,5

2

±0,5

2. Шлифованная, точечная, бугристая, бороздчатая

3

8

3

1

4

±1

3. Типа «Скала»

-

-

3

2

-

±2

4. Керамическими, стеклокерамическими и др. изделиями в облицовке:

 

 

 

 

 

 

наружной

2

5

2

4

3

±0,5

внутренней

1,5

4

1,5

3

2

±0,5

Примечание: отклонение ширины шва облицовки из гранита, мраморов и искусственного камня - ±0,5 мм.

Не допускаются:

- сколы в швах более 0,5 мм;

- трещины, пятна, потеки раствора и высолы.

Требования к качеству применяемых материалов

ГОСТ 6141-91. Плитки керамические глазурованные для внутренней облицовки стен. Технические условия.

ГОСТ 9480-89. Плиты облицовочные пиленые из природного камня.

ГОСТ 17057-89*. Плитки стеклянные облицовочные коврово-мозаичные и ковры из них. Технические условия.

Плитки керамические по ГОСТ 6141-91

Отклонения размеров, не более, мм:

- по длине и ширине граней для плиток длиной:

- 100 мм - ±0,8;

- 150 мм - ±1,2;

- 200 мм - ±1,6;

- по толщине плиток - ±0,5;

- по косоугольности:

- для плиток длиной 100 и 150 мм - 0,5;

- для плиток длиной 200 мм - 1,0.

Плитки должны иметь четкие углы и ребра лицевой грани. Разнотонность плиток не допускается. Кривизна плиток не более 0,9 мм. Не допускаются мушки диаметром более 0,2 мм; отбитые углы; щербины и зазубрины на ребрах лицевой поверхности.

Плитки стеклянные по ГОСТ 17057-89* размером 21´21´4,5 мм.

Допускаемые отклонения по длине, ширине и толщине - ±0,5 мм. На поверхности плиток не допускается:

- более одного отбитого угла размером более 3 мм;

- по стороне плитки более одной вмятины глубиной более 0,4 мм;

- трещины, посечки в сосредоточенном виде, пузыри открытые вытянутые шириной до 1 мм, длиной более 5 мм;

- неплоскостность более 0,5 мм.

Указания по производству работ
СНиП 3.04.01-87 пп. 3.13, 3.51-3.55, 3.58, 3.60

Соединение поля облицовки с основанием должно осуществляться на растворе или мастике (в соответствии с проектом) без дополнительного крепления к основанию.

Облицовку стен, колонн, пилястр интерьеров помещений следует выполнять перед устройством покрытия пола.

Элементы облицовки по клеящейся прослойке из раствора и мастике необходимо устанавливать горизонтальными рядами снизу вверх от угла поля облицовки.

Мастику и раствор клеящейся прослойки следует наносить равномерным, без потеков, слоем до начала установки плиток. Мелкоразмерные плитки на мастиках или растворах с замедлителями следует устанавливать после нанесения составов по всей облицовываемой площади в одной плоскости при их загустевании.

Отделка участка и всей поверхности интерьера облицовочными изделиями разного цвета, фактуры, текстуры и размеров должна производиться с подбором всего рисунка поля облицовки в соответствии с проектом.

Поверхности, облицованные однотипными искусственными материалами, должны иметь однотонность, природным камнем - однотонность или плавность перехода оттенков.

Швы облицовки должны быть ровными, одинаковой ширины.

После облицовки поверхности должны быть очищены от наплывов раствора и мастики немедленно, при этом поверхности глазурованных плит промыты горячей водой.

Облицовочные поверхности должны соответствовать заданным формам в соответствии с проектом.

Размеры и рисунки облицовки, герметизация швов должны соответствовать проектным.

Требования к подготовленным для облицовки основаниям:

- поверхности бетонные и кирпичные с полноразмерными швами должны иметь насечку (поверхности стен, выложенные впустошовку, не требуют насечки);

- любые поверхности необходимо перед их облицовкой очистить, промыть и перед нанесением клеящей прослойки водных составов увлажнить;

- перед облицовкой в помещениях произвести окраску потолков и плоскости стен над облицовываемой поверхностью.

Обойные работы

Состав операций и средства контроля

Этапы работ

Контролируемые операции

Контроль (метод, объем)

Документация

Подготовительные работы

Проверить:

 

Паспорта (сертификаты), акт приемки ранее выполненных работ, общий журнал работ

- наличие документа о качестве на обои и клей;

Визуальный

- влажность оклеиваемых поверхностей;

Визуальный, измерительный

- качество очистки от набела верха стен;

Визуальный

- выполнение и качество работ по исправлению неровных мест шпатлевкой и шлифовку прошпатлеванных мест;

То же

- качество оклейки стен макулатурой;

- » -

- качество приготовления клеевого состава.

- » -

Оклейка обоями

Контролировать:

 

Общий журнал работ

- сплошность и равномерность нанесения клеевого состава на полотнища обоев;

Визуальный

- соблюдение технологии и порядка наклейки обоев;

То же

- вертикальность приклейки полотнищ;

Визуальный, измерительный

- правильность подгонки рисунка на стенах;

Визуальный

- правильность наклейки обоев у плинтусов и наличников;

То же

- плотность прилегания и прочность сцепления полотнищ обоев с поверхностью стен.

Технический осмотр

Приемка выполненных работ

Проверить:

- качество оклеенной поверхности (отсутствие на оклеенной поверхности пятен, пузырей, пропусков, доклеек, перекосов и отслоений);

 

Визуальный

Акт приемки выполненных работ

- прочность сцепления полотнищ обоев с поверхностью стен;

То же

- правильность пригонки рисунка на стыках, соблюдение цвета, оттенка обоев.

- » -

Контрольно-измерительный инструмент: линейка металлическая, отвес строительный, влагомер.

Операционный контроль осуществляют: мастер (прораб).

Приемочный контроль осуществляют: работники службы качества, мастер (прораб), представители технадзора заказчика.

Технические требования
СНиП 3.04.01-87 п. 3.42, табл. 9, 15

Допускаемая влажность бетонных, оштукатуренных или прошпатлеванных поверхностей при оклейке обоями - не более 8%.

Отступления кромок - не более 0,5 мм (незаметные с расстояния 3 м). При оклейке обоями поверхности должны быть выполнены:

- с кромками нахлесток полотнищ, обращенных к световым проемам, без теней от них (при наклейке внахлестку);

- из полотнищ одинакового цвета и оттенков;

- с точной пригонкой рисунка на стыках.

Не допускаются:

- воздушные пузыри, пятна, пропуски, доклейки и отслоения, перекосы, морщины;

- заклейки обоями плинтусов, наличников, розеток, выключателей и т. п.

Требования к качеству применяемых материалов

ГОСТ 6810-2002. Обои. Технические условия.

Обои изготовляются с кромками или без них. Ширина рулона с не обрезанными кромками должна быть 500, 560, 600, 620 мм, длина рулона - 6,0; 10,5; 12,0; 18,0; 25,0; 32,0 и 42,0 м.

Отклонения по длине не должны превышать ±2%.

Обои не должны иметь разрывов кромок и механических повреждений.

Красочный фон обоев должен быть равномерным, без пятен, полос и контрастных включений, при совмещении двух полотен обоев одного рисунка и одной расцветки по линии обреза кромок не должно быть искажения рисунка.

На кромке обоев должны быть нанесены: наименование предприятия-изготовителя, направление и номер рисунка, линии обреза кромок штрихом или пунктиром. Для обоев с обрезанными кромками штампом наносят на обратную сторону полотна наименование предприятия-изготовителя, направление и номер рисунка.

Обои одного рисунка и расцветки, принимаемые за партию, должны сопровождаться документом о качестве, в котором должны быть указаны: наименование предприятия-изготовителя, наименование продукции, артикул, номер рисунка и расцветки, сорт, обозначение стандарта или ТУ, наименование упаковочных единиц и их количество, дата выработки.

Указания по производству работ
СНиП 3.04.01-87 пп. 3.1, 3.12, 3.35-3.41, 3.43

Обойные работы должны выполняться при положительной температуре окружающей среды и отделываемых поверхностей не ниже 10 °С и влажности воздуха не более 60%.

При оклейке обоями качество оснований должно удовлетворять следующим требованиям:

- поверхности должны быть сглаженными, без шероховатостей;

- трещины и раковины огрунтованы, прошпатлеваны и сглажены;

- отслоения, потеки раствора удалены;

- швы между листами сухой гипсовой штукатурки дополнительно оклеены полосами марли, бумаги;

- закончены окраска потолков и другие малярные работы.

Клеевой состав при огрунтовке поверхности под обои должен наноситься сплошным равномерным слоем, без пропусков и потеков. Дополнительный слой клеящей прослойки следует наносить по периметру оконных и дверных проемов, по контуру и в углах отделываемой поверхности полосой шириной 75-80 мм в момент начала загустевания основного слоя.

При оклеивании оснований бумагой отдельными полосами или листами расстояние между ними должно быть 10-12 мм.

Приклейку полотнищ бумажных обоев следует выполнять после их набухания и пропитки клеевым составом.

Обои поверхностной плотностью до 100 г/см2 необходимо наклеивать внахлестку, 100-120 г/см2 и более - впритык.

При стыковании полотнищ внахлестку оклейку поверхностей обоями необходимо производить в направлении от световых проемов, без устройства стыков вертикальных рядов полотнищ на пересечениях плоскостей.

При оклейке поверхностей синтетическими обоями на бумажной основе (или тканевой) углы стен необходимо оклеивать целым полотнищем. Пятна клея на их поверхности необходимо удалять немедленно.

Вертикальные кромки смежных полотнищ текстовинита и пленок на тканевой основе должны при наклейке перекрывать по ширине предыдущее полотнище с нахлесткой 3-4 мм. Обрезку перекрывающихся кромок следует производить после полного высыхания клеевой прослойки и после извлечения кромки дополнительно нанести клей в местах приклейки кромок смежных полотнищ.

При наклейке ворсовых обоев полотнища при наклейке следует приглаживать в одном направлении.

При производстве обойных работ помещения до полной просушки обоев необходимо предохранять от сквозняков и прямого воздействия солнечных лучей с установлением постоянного влажностного режима. Температура воздуха при сушке наклеенных обоев не должна превышать 23 °С.

Стекольные работы (остекление переплетов)

Состав операций и средства контроля

Этапы работ

Контролируемые операции

Контроль (метод, объем)

Документация

Подготовительные работы

Проверить:

- наличие документов о качестве материалов;

 

Визуальный

Паспорта (сертификаты), общий журнал работ

- наличие на переплетах слоя шпатлевки, окраски за 1 раз;

То же

- отсутствие недопустимых дефектов внешнего вида стекла (сколы, щербины, повреждения кромок, углов и т. д.);

Визуальный, измерительный

- чистоту и ровность поверхности фальцев, которые должны быть очищены, проолифены и просушены;

Визуальный

- внешний вид и вязкость замазки;

То же

- комплектность и состояние требуемого инструмента и приспособлений.

- » -

Остекление

Контролировать:

 

Общий журнал работ

- точность установки и крепления стекла;

Визуальный

- отсутствие разрывов в укладываемой замазке и полноту заполнения фальцев замазкой.

То же

Приемка выполненных работ

Проверить:

- чистоту поверхности стекла, отсутствие трещин, выколов, несмываемых пятен;

 

Визуальный

Акт приемки выполненных работ

- полноту заполнения и ровность уложенной замазки, отсутствие в ней трещин, разрывов, шероховатостей;

То же

- плотность прилегания штапиков, надежность их крепления.

- » -

Контрольно-измерительный инструмент: стальной метр.

Операционный контроль осуществляют: мастер (прораб).

Приемочный контроль осуществляют: работники службы качества, мастер (прораб), геодезист, представители технадзора заказчика.

Технические требования
СНиП 3.04.01-87 пп. 3.46, 3.47, табл. 15

Замазка после образования на поверхности твердой пленки не должна иметь трещины, отставать от поверхности стекла и фальца.

Обрез замазки в месте соприкосновения со стеклом должен быть ровным и параллельным кромке фальца, без выступающих крепежных приборов.

Наружные фаски штапиков должны плотно прилегать к внешней грани фальцев, не выступая за их пределы и не образуя впадин.

Штапики, установленные на стекольной замазке, должны быть прочно соединены между собой и с фальцем переплета.

Резиновые прокладки, применяемые для остекления, должны быть плотно защемлены стеклом и плотно прилегать к поверхности фальца, стекла и штапиков, не выступать над гранью штапика, не иметь трещин и разрывов.

Резиновые профили при применении любых крепежных приборов должны быть плотно пригнаны к стеклу и пазу фальца, крепежные приборы должны соответствовать проектным и быть плотно запасованными в пазах фальца.

Стекло должно перекрывать фальцы переплетов не более чем на 3/4 ширины.

Не допускаются:

- стыкование стекол, а также установка стекол с дефектами (трещины, выколы более 10 мм, несмывающиеся пятна, инородные включения) при остеклении жилых домов и объектов культурно-бытового назначения;

- следы замазки, раствора, краски и т. п. на поверхности стекол.

Требования к качеству применяемых материалов

ГОСТ 111-2001. Стекло листовое. Технические условия.

Стекло должно поступать на строительную площадку нарезанным по размерам согласно заказным спецификациям, комплектно с уплотнителями, герметиками и крепежными материалами. Мерное стекло должно быть скомплектовано по группам однотипных помещений.

Раскроенное стекло по геометрическим размерам должно отвечать требованиям, приведенным в таблице 1.

Таблица 1

Толщина, мм

Длина, мм

Ширина, мм

Отклонения размеров по длине и ширине листов при длине, мм

 

 

 

до 1000

св. 1000

2,0

500¸1600

400¸800

±2,0

±2,5

2,5

600¸1800

400¸1200

±2,0

±2,5

3,0

600¸2200

400¸1300

±2,0

±2,5

4,0

600¸2500

400¸1600

±3,0

±3,0

5,0

600¸2500

400¸1600

±3,0

±3,0

6,0

600¸2500

400¸1600

±3,0

±3,0

Отклонения размеров по длине и ширине для листов стекла, поставляемого в заводском ассортименте, - ±10 мм.

Листы стекла должны иметь прямоугольную форму. Разность длин диагоналей листов стекла не должна превышать значения, указанные в таблице 2.

Таблица 2

Толщина, мм

Разность длин диагоналей листов стекла при длине, мм

до 1000

св. 1000

2,0; 2,5; 3,0 и 4,0

5,0 и 6,0

5

7

7

8

Листы стекла должны иметь ровные кромки и целые углы. Сколы и щербины в кромках листа не допускаются длиной (считая от края к центру листа) более 3 мм.

Листы стекла должны храниться в ящиках или распакованными в сухих закрытых помещениях, установленными на пирамиды или стеллажи на резиновые, войлочные или деревянные прокладки в наклонном положении, с углом наклона к вертикали 10-15°.

Замазку следует хранить в закрытой таре (упаковке) при положительной температуре, предохраняя от высыхания и попадания прямых солнечных лучей.

Указания по производству работ
СНиП 3.04.01-87 пп. 3.44-3.46, 3.48

Стекольные работы должны выполняться при положительной температуре окружающей среды. Остекление при отрицательной температуре воздуха допускается только в случае невозможности снятия переплетов, при применении замазки, подогретой не ниже чем до 20 °С.

При остеклении металлических и железобетонных переплетов металлические штапики необходимо устанавливать после укладки в фальц резиновых прокладок.

Крепление стекол в деревянных переплетах должно выполняться при помощи штапиков или шпилек с заполнением фальцев переплета замазкой. Замазка должна наноситься равномерным сплошным слоем, без разрывов, до полного уплотнения фальца переплета.

Крепление увиолевого, матового, матовоузорчатого, армированного и цветного стекла, а также закаленного в оконных и дверных проемах, должно выполняться таким же способом, как и листового, в зависимости от материала переплета.

Стекольные работы (установка стеклоблоков и стеклопанелей)

Состав операций и средства контроля

Этапы работ

Контролируемые операции

Контроль (метод, объем)

Документация

Подготовительные работы

Проверить:

 

Паспорт (сертификат), общий журнал работ

- наличие документа о качестве на стеклоблоки и стеклопанели;

Визуальный

- качество подготовки основания (очистку от мусора, грязи, масел, снега, льда и др.);

То же

- разметку установки конструкции.

Измерительный

Установка стеклоблоков

Контролировать:

 

Общий журнал работ

- толщину горизонтальных и вертикальных швов кладки;

Измерительный, вся поверхность конструкции

- отклонение рядов кладки от горизонтали;

То же

- отклонение поверхности стеклоблоков от вертикали.

- » -

Приемка выполненных работ

Проверить:

 

Акт приемки выполненных работ

- ровность, вертикальность поверхности;

Измерительный

- внешний вид поверхности.

Технический осмотр

Контрольно-измерительный инструмент: уровень строительный, рейка-отвес, линейка металлическая, рулетка.

Входной и операционный контроль осуществляют: мастер (прораб).

Приемочный контроль осуществляют: работники службы качества, мастер (прораб), представители технадзора заказчика.

Технические требования
СНиП 3.04.01-87 табл. 15

Допускаемые отклонения всей конструкции от вертикали:

- на 1 м поверхности - 2 мм;

- на всю высоту - 10 мм.

Конструкция из стеклоблоков, установленных на растворе, должна иметь ровные, строго вертикальные и горизонтальные швы одинаковой ширины, заполненные заподлицо с поверхностями стеклопакетов.

Не допускаются:

- трещины, выколы, пробоины в стеклоблоках и стеклопанелях;

- следы замазки, раствора, краски, жировые пятна на поверхности стеклоконструкции.

Требования к качеству применяемых материалов

ГОСТ 9272-81*. Блоки стекольные пустотелые. Технические условия.

ГОСТ 24866-99. Стеклопакеты клееные. Технические условия.

ГОСТ 21992-83. Стекло строительное профильное. Технические условия.

Блоки стеклянные должны иметь квадратную или прямоугольную форму размером 194´194 мм, 244´244 мм, 194´244 мм.

Отклонения размеров блоков по длине, ширине и толщине не должны превышать ±2 мм.

Наружные поверхности лицевых стенок блоков должны быть гладкими, а торцевых - рифлеными.

Смещение полублоков, из которых состоит блок, не должно быть более 2 мм.

Не допускаются на поверхности блоков пузыри открытые, инородные разрушающие включения, трещины.

Размеры стеклопакетов должны быть, мм:

- по высоте (длине) - от 400 до 2550;

- по ширине - от 400 до 2950;

- по толщине - не более 46.

Отклонения размеров не должны превышать:

- по высоте (длине) - ±2 мм при размерах стеклопакета до 1000 мм;

- по высоте (длине) - ±3 мм при размерах стеклопакета более 1000 мм;

- по толщине - ±1,5 мм.

Стеклоблоки и стеклопакеты должны быть приняты техническим контролем предприятия-изготовителя.

Приемку производят партиями. Размер партии не должен превышать 1200 шт. Партия сопровождается документом о качестве.

Потребитель производит контрольную проверку качества стекла.

Указания по производству работ
СНиП 3.04.01-87 пп. 3.44, 3.49, 3.50, ВСП 12-101.4-96 раздел 2.9

Стекольные работы должны выполняться при положительной температуре воздуха.

При устройстве конструкции из стеклоблоков должны соблюдаться следующие требования:

- кладку вести на цементно-песчаном растворе без перевязки швов;

- видимая толщина швов горизонтальных и вертикальных должна быть не менее 8-10 мм, постоянной ширины в соответствии с проектом;

- все швы должны быть полностью заполнены раствором;

- нижняя часть перегородок на высоту 20-25 см должна выполняться из кирпича или керамического камня;

- прочность и устойчивость перегородок должны обеспечиваться укладкой в горизонтальные и вертикальные швы 1-2 стержней арматуры диаметром 6 мм или полосы стали толщиной 2 мм и шириной 30-50 мм, а также контурной металлической обвязкой из стального уголка.

Монтаж стеклопанелей и сборка их обвязок должны осуществляться в соответствии с проектом.

Стеклопанели следует устанавливать вертикально на эластичные прокладки и закреплять стальным уголком на винтах. Зазоры между стеклопанелями следует заполнять нетвердеющими мастиками.

Устройство ограждений из стеклопрофилита

Состав операций и средства контроля

Этапы работ

Контролируемые операции

Контроль (метод, объем)

Документация

Подготовительные работы

Проверить:

- наличие документа о качестве на материалы;

 

Визуальный

Паспорта (сертификаты), общий журнал работ

- качество подготовки основания (очистку от мусора, грязи, обезжиривание кромок стеклопрофилита и обрамления);

То же

- разметку установки конструкции.

Измерительный

Устройство стеклопрофилита

Контролировать:

 

Общий журнал работ

- отклонение плоскости конструкции от вертикали;

Измерительный, вся поверхность

- толщину швов между стеклопанелями;

То же

- величину прогиба в плоскости остекления элементов, на которые опираются стеклопанели.

- » -

Приемка выполненных работ

Проверить:

- внешний вид поверхности (отсутствие пятен, сколов, трещин);

 

Технический осмотр

Акт приемки выполненных работ

- ровность, вертикальность поверхности.

Измерительный

Контрольно-измерительный инструмент: рейка-отвес, уровень строительный, линейка металлическая, рулетка.

Операционный контроль осуществляют: мастер (прораб), геодезист - в процессе работ.

Приемочный контроль осуществляют: работники службы качества, мастер (прораб), представители технадзора заказчика.

Технические требования
СНиП 3.04.01-87 табл. 13, 15

Допускаемые отклонения:

- плоскости стеклопанели в верхнем сечении по вертикали на всю высоту - 10 мм;

- толщина шва - ±2 мм;

Прогиб в плоскости остекления элементов, на которые опирается профильное стекло, должен быть не более - 15 мм.

Не допускаются:

- трещины, выколы, пробоины в стеклопанелях;

- следы замазки, мастики, раствора, краски, жировые пятна на поверхности стеклоконструкций;

- жесткое соединение элементов профильного стекла с несущими или ограждающими конструкциями зданий, а так же между собой, не допускается.

Требования к качеству применяемых материалов

ГОСТ 24866-99. Стеклопакеты клееные. Технические условия.

ГОСТ 21992-83. Стекло строительное профильное. Технические условия.

Отклонение размеров стекла не должно превышать:

- по длине и ширине - ±5 мм;

- по высоте - 3 мм.

Стекло может быть бесцветным и цветным, армированным и неармированным, с гладкой, рифленой или узорчатой поверхностью.

Бесцветное стекло может иметь желтоватый, голубоватый или зеленоватый оттенок.

Отклонение от прямого угла, образуемого лицевыми и боковыми поверхностями, не должно превышать ±2 мм.

Отклонение от прямого угла, образуемого плоскостью торцов стекла с его лицевыми и боковыми поверхностями, не должно превышать ±2 мм.

Разность высот боковых поверхностей стекла не должна превышать 3 мм.

Отклонение от прямолинейности в плоскости (выпуклость или вогнутость) лицевых поверхностей стекла не должно превышать на 1 мм длины:

- по ширине - 2 мм;

- по длине - 4 мм.

Качество поверхности и внешний вид. Открытые пузыри не допускаются.

Закрытые пузыри на лицевой поверхности размером до 3 мм включительно - не нормируются, размером свыше 3 до 8 мм допускаются не более 20 шт. на 1 м длины стекла; на боковой поверхности не нормируются.

Инородные разрушающие включения (непроваренные частицы огнеупорных материалов) не допускаются.

Инородные неразрушающие включения (непроверенные частицы шихты) размером до 1 мм не нормируются; свыше 1 до 2 мм допускается не более 6 шт. на 1 м длины стекла.

Стекло должно поставляться в комплекте с уплотнителями и герметиками.

Указания по производству работ
СНиП 3.04.01-87 п. 3.44, ВСП 12-101.5-96, раздел 4.6

Стекольные работы должны производиться при положительной температуре воздуха.

Стыки между элементами профильного стекла в конструкциях должны быть уплотнены резиновыми прокладками с обязательной двусторонней герметизацией их мастикой.

Перед наклейкой уплотнителей боковая поверхность профильного стекла обезжиривается растворителем.

Прокладки из резины или поливинилхлорида протирают растворителем и без натяжения наклеивают на одну из боковых поверхностей элементов.

Герметизация стыков мастиками должна производиться при температуре не ниже +5 °С в условиях, исключающих их увлажнение.

В ограждающих конструкциях профильное стекло крепится металлическими уголками или деревянными штапиками, длина которых для швеллерного и ребристого стекла, расположенного в один слой, должна быть не более 0,2 м, а в остальных случаях не более 1,5 м.

Монтаж стеклопанелей и сборка их обвязок должны осуществляться в соответствии с проектом.

Отделка (облицовка) стен панелями, листами с заводской отделкой

Состав операций и средства контроля

Этапы работ

Контролируемые операции

Контроль (метод, объем)

Документация

Подготовительные работы

Проверить:

- наличие документа о качестве;

 

Визуальный

Паспорта (сертификаты), общий журнал работ

- качество подготовки основания;

То же

- соответствие применяемых материалов проекту, стандартам и техническим условиям.

Технический осмотр

Облицовка стен панелями

Контролировать:

 

Общий журнал работ

- монтаж, крепление листов и панелей к основанию;

Технический осмотр

- отклонения и расположения стыков;

Измерительный, не менее 5 измерений на 50-70 м2 поверхности

- уступы между плитами и панелями;

То же

- отклонение плоскости всего поля отделки.

- » -

Приемка выполненных работ

Проверить:

- внешний вид поверхности;

 

Визуальный

Акт приемки выполненных работ

- отклонения плоскости отделки от вертикали, горизонтали.

Измерительный

Контрольно-измерительный инструмент: уровень строительный, рейка-отвес, штангенциркуль.

Входной и операционный контроль осуществляют: мастер (прораб) - в процессе работ.

Приемочный контроль осуществляют: работники службы качества, мастер (прораб), представители технадзора заказчика.

Технические требования
СНиП 3.04.01-87 пп. 3.64, 3.65, 3.66, табл. 14, 15

Допускаемые отклонения:

- величины уступов между панелями, листами - 2 мм;

- плоскости всего поля отделки по диагонали, вертикали и горизонтали (от проектной):

- на 1 м длины - 1,5 мм, но не более 7 мм на всю поверхность;

- направления стыка элементов облицовки стен от вертикали на 1 м длины - 1 мм.

Плоскость поверхности, облицованная панелями и плитами, должна быть ровной без провесов в стыках, жесткой, без вибрации панелей и листов и отслоений от основания (при приклейке).

Швы должны быть равномерными, строго вертикальными.

Крепежные приборы и расстояние между ними, а также материал, размеры должны соответствовать проекту.

Крепление листов и панелей к основанию должно быть прочным, без зыбкости (при легком простукивании деревянным молотком не должно наблюдаться коробления изделий, разрушения их кромок и смещения листов).

Не допускаются:

- горизонтальные стыки панелей, листов, не предусмотренные проектом;

- трещины, царапины, пятна на поверхности листов и панелей.

Монтаж подвесных потолков в интерьерах зданий

Состав операций и средства контроля

Этапы работ

Контролируемые операции

Контроль (метод, объем)

Документация

Подготовительные работы

Проверить:

 

Паспорта (сертификаты), акт освидетельствования скрытых работ, общий журнал работ

- наличие документа о качестве облицовки;

Визуальный

- выноску на стены и колонны проектных отметок монтируемого чистого потолка;

Измерительный

- сортировку (форму и размеры плит) и обрезку плит;

Визуальный, измерительный

 

 

- подготовку деталей рабочего каркаса;

Визуальный

- установку и закрепление элементов каркаса;

То же

- выполнение работ по антикоррозионной защите металлических элементов каркаса и обработке антисептическими составами деревянных элементов каркаса.

- » -

Установка плит

Контролировать:

 

Общий журнал работ

- плотность примыкания плит друг к другу, ширину швов;

Визуальный, измерительный

- надежность крепления плит к элементам каркаса;

Визуальный

- ровность поверхности подвесного потолка;

Визуальный, измерительный, не менее 5 измерений на 50-70 м2 поверхности

- однородность рисунка подвесного потолка;

Визуальный

- соблюдение требований проекта и качество примыкания плит к элементам вентиляционных решеток, светильникам (отсутствие сколов, щелей в местах примыкания).

То же

Приемка выполненных работ

Проверить:

 

Акт приемки выполненных работ

- надежность крепления плит к каркасу;

Технический осмотр

- ровность поверхности подвесного потолка по всей площади;

Измерительный, визуальный, не менее 5 измерений на 50-70 м2 поверхности

- однородность рисунка поверхности потолка;

Визуальный

- качество выполнения примыкания плит к вентиляционным решеткам, светильникам;

То же

- прямолинейность и ширину швов, величину уступов.

Визуальный, измерительный

Контрольно-измерительный инструмент: рулетка металлическая, линейка металлическая, уровень гибкий водяной, рейка двухметровая, шнур разметочный.

Операционный контроль осуществляют: мастер (прораб), инженер (лаборант) - в процессе выполнения работ.

Приемочный контроль осуществляют: работники службы качества, мастер (прораб), представители технадзора заказчика.

Технические требования
СНиП 3.04.01-87 п. 3.65, табл. 14, 15

Допускаемые отклонения:

- величины уступов между плитами и панелями, а также рейками подвесных потолков - 2 мм;

- плоскости всего поля отделки по диагонали и горизонтали (от проектной):

- на 1 м длины - 1,5 мм;

- на всю поверхность - не более 7 мм.

Крепление листов и панелей к основанию должно быть прочным, без зыбкости (при легком простукивании деревянным молотком не должно наблюдаться коробления изделий, разрушения их кромок и смещения листов).

Швы должны быть равномерными и строго прямолинейными.

Плоскость облицованной поверхности должна быть ровной, без провесов в стыках.

Не допускаются:

- трещины, воздушные пузыри, царапины, пятна на поверхности облицовки.

Требования к качеству применяемых материалов

ТУ 400-1-283-82. Плиты перфорированные гипсокартонные звукопоглощающие. Технические условия.

ТУ 21-31-10-86. Плиты гипсовые декоративные. Технические условия.

ОСТ 21-26-84. Плиты звукопоглощающие гипсовые литые.

Плиты перфорированные гипсокартонные звукопоглощающие по ТУ 400-1-283-82

Плиты выпускаются следующих размеров, мм, с допускаемыми отклонениями, мм:

- по длине и ширине - 500 ± 1,0; 600 ± 1,0;

- по толщине - 8,5 ± 0,5.

Отклонения от перпендикулярности смежных граней на длину измеряемой грани:

- не более 1,5 мм для плит 500´500;

- 2,0 мм для плит 600´600.

Влажность плит - не более 1%.

Поверхность плит должна быть плоской. Отклонение лицевой поверхности плиты от прямолинейности не должно превышать:

- 1,0 мм для плит 500´500;

- 1,5 мм для плит 600´600.

Отбитости углов и ребер, а также трещины в гипсовом сердечнике не допускаются.

На лицевых поверхностях плит не допускается наличие расслоения и сдира картона, загрязнений и жировых пятен.

На каждой пачке плит должна быть наклеена этикетка, в которой указывают: наименование и адрес предприятия-изготовителя, наименование продукции и ее условное обозначение, номер партии и дату изготовления, размеры плит, мм, количество, м2; краткие сведения о применении, гарантийный срок хранения.

Каждая партия плит должна сопровождаться документом о качестве.

Плиты следует хранить в закрытых сухих помещениях при относительной влажности воздуха не более 70% на поддонах в штабелях высотой не более 1,8 м.

Плиты гипсовые декоративные по ТУ 21-31-10-86

Размеры плит и допускаемые отклонения, мм:

- по длине и ширине - 300; 600 ±2 мм (1 сорт); ±3 мм (2 сорт);

- по толщине- 15; 20; 25; 30; 40 и более ±2 мм, -1 мм.

Отклонения от перпендикулярности смежных граней (по длине грани) - 3 мм.

Загрязнения, пятна на лицевой поверхности и оголение арматуры не допускаются.

Допускается изготовление плит со сколом кромок на глубину не более 5 мм или округленными углами радиусом не более 5 мм.

Каждая партия плит должна сопровождаться документом о качестве установленной формы, в котором указывается: наименование и адрес предприятия-изготовителя, наименование изделия и его условное обозначение, номер партии и дата изготовления, номер и дата выдачи документа, результаты испытаний.

Плиты должны храниться в сухих складских помещениях установленными на ребро или плоскость боковой грани в пакетах или штабелях высотой не более 1,5 м на ровных горизонтальных площадках.

Плиты звукопоглощающие гипсовые литые по ОСТ 21-26-84

Номинальные размеры плит:

- основных - 600´600 при толщине 30 или 40 мм;

- доборных - 600´300 при толщине 30 или 40 мм.

Допустимые отклонения:

- по длине и ширине - ±3 мм;

- по толщине - +3; -1 мм.

Отклонения от перпендикулярности и плоскостности смежных граней не более 4 мм.

Повреждения (околы) ребер лицевой стороны плиты - не более трех на одном ребре длиной и шириной не более 5 мм, глубиной не более 3 мм.

Раковины и наплывы на лицевой стороне плиты допускаются глубиной и высотой не более 3 мм, диаметром не более 6 мм. Трещины на поверхности плит не допускаются.

Отпускная влажность плит не должна превышать 5%.

Изготовитель должен сопровождать каждую партию плит документом о качестве.

Указания по производству работ
СНиП 3.04.01-87 пп. 3.63-3.64, табл. 15

Устройство подвесных потолков необходимо производить после монтажа и крепления всех элементов каркаса (в соответствии с проектом), проверки горизонтальности его плоскости и соответствия отметкам.

Монтаж плит и элементов подвесного потолка следует производить после разметки поверхности и начинать от угла облицовываемой поверхности.

Крепежные детали и расстояние между ними, а также материал и рисунок должны соответствовать проекту.

Благоустройство

Устройство дренажа

Состав операций и средства контроля

Этапы работ

Контролируемые операции

Контроль (метод, объем)

Документация

Подготовительные работы

Проверить:

- наличие документа о качестве материалов;

 

Визуальный

Паспорта (сертификаты), общий журнал работ

- выноску разбивочных осей и надежность их крепления;

Измерительный

- выполнение работ по отводу поверхностных и подземных вод с помощью временных или постоянных устройств (при необходимости).

Визуальный

Устройство дренажа

Контролировать:

- отклонения отметок дна и уклона траншеи от проектных;

 

Измерительный, на участках не менее 30 м

Общий журнал работ

- плотность естественного основания;

Технический осмотр поверхности основания

- толщину, ровность и плотность песчаной подготовки;

Измерительный, на участках между колодцами, по не менее 30 м

- соответствие уклонов отметок, оси трубопровода проектному положению;

То же

- толщину, гранулометрический состав дренирующего материала.

Технический осмотр

Приемка выполненных работ

Проверить:

- величину отметки и уклонов трубопроводов в соответствии с проектом;

 

Измерительный

Акт освидетельствования скрытых работ

- отклонения от вертикали и горизонтали труб;

Технический осмотр

- качество обсыпки труб дренирующим материалом.

То же

Контрольно-измерительный инструмент: нивелир, рулетка, шаблон, трехметровая рейка.

Операционный контроль осуществляют: мастер (прораб), геодезист - в процессе работ.

Приемочный контроль осуществляют: работники службы качества, мастер (прораб), геодезист, представители технадзора заказчика.

Технические требования
СНиП 3.05.04-85*, раздел 3, СНиП 3.05.03-85 пп. 3.10, 3.6

Предельные отклонения:

- продольных уклонов песчаного основания под трубы от проектных - ±0,0005;

- отметок основания под трубы от проектных - ±5 мм;

- ровности поверхности основания под трубы при проверке трехметровой рейкой - ±5 мм;

- уклона труб дренажа от проектного - ±0,0005;

- от формы круга (прямолинейность участков труб):

- по горизонтали - 1/4 диаметра трубы, но не более 50 мм в каждую сторону; - по вертикали - не допускаются;

- отметок лотков труб в колодцах от проектных - ±5 мм.

При устройстве дренажа подлежат приемке с составлением акта освидетельствования скрытых работ следующие этапы работ: подготовка основания под трубы, укладка труб и устройство колодцев, засыпка дренирующего материала.

Требования к качеству применяемых материалов

ГОСТ 8411-74*. Трубы керамические дренажные. Технические условия.

ГОСТ 1839-80*. Трубы и муфты асбестоцементные для безнапорных трубопроводов. Технические условия.

Асбоцементные трубы

Отклонения размеров асбоцементных труб от номинальных не должны превышать:

- по наружному диаметру обточенного конца трубы - -3 мм;

- по длине трубы - -50 мм;

- по толщине стенки - +3 мм - -4 мм.

Отклонения размеров асбоцементных муфт от номинальных не должны превышать:

- по длине - +5 мм;

- по внутреннему диаметру и диаметру канавки - +3 мм.

Трубы и муфты не должны иметь трещин, обломов и расслоений.

Концы труб и внутренняя поверхность муфт должны быть обточены.

Трубы должны быть прямыми, отклонение от прямолинейности не должно превышать:

- для труб длиной 2950 и 3950 мм - 12 мм.

Трубы должны поставляться комплектно с муфтами и резиновыми кольцами.

Керамические трубы

Отклонения от размеров каждого из взаимно перпендикулярных диаметров на концах трубы (овальность трубы) не должны превышать:

- для труб диаметром: 50 мм - 2 мм;

75 мм - 3 мм;

100-150 мм - 4 мм;

175-200 мм - 5 мм;

250 мм - 6 мм.

Отклонения от перпендикулярности плоскости торцов труб (перекос) не должен превышать:

- для труб диаметром: 50 мм - 3 мм;

75 мм - 4 мм;

100-150 мм - 5 мм;

175-200 мм - 6 мм;

250 мм - 8 мм.

Указания по производству работ
СНиП 3.02.01-87 пп. 2.2, 2.6, СНиП 3.05.04-85* пп. 3.4, 3.5,
СНиП 3.07.03-85 пп. 5.2, 5.8, 5.9, СНиП 3.01.03-85 пп. 3.8-3.10

Устройство горизонтального трубчатого дренажа производится после возведения фундаментов и стен сооружения, выполнения гидроизоляционных работ.

В асбоцементных трубах перед их укладкой должны быть сделаны пропилы шириной 3-7 мм в шахматном порядке на расстоянии 250-500 мм с одной стороны в зависимости от фильтрационных характеристик грунта.

В случае применения керамических труб зазоры в их стыках величиной 5-10 мм следует использовать в качестве водоприемных отверстий, защищая их от заиливания мхом или другими волокнистыми материалами. Соединение асбестоцементных труб должно осуществляться на муфтах с уплотнительными кольцами.

При устройстве дренажей земляные работы следует начинать со сбросных участков с продвижением в сторону более высоких отметок, а укладку труб и фильтрующих материалов - от верхнего колодца к низовому или к устью.

Ширина траншеи по дну должна быть не менее D + 0,6 м (D - наружный диаметр труб).

При устройстве дренажа в песчаных грунтах допускается укладка труб на выровненное и уплотненное дно траншей без устройства подстилающего слоя, в других грунтах подстилающий слой выполняется из песка слоем не менее 15 см.

Для фильтрующих засыпок дренажных труб следует применять гравий мелкий или щебень изверженных пород фракцией 5-20 мм слоем не менее 15 см и песок крупнозернистый (размер зерен 0,25-1 мм) слоем 15 см.

Уложенные дренажные трубы должны быть обсыпаны фильтрующим материалом не позднее конца следующего рабочего дня после укладки.

Устройство отмостки из бетона и асфальтобетона

Состав операций и средства контроля

Этапы работ

Контролируемые операции

Контроль (метод, объем)

Документация

Подготовительные работы

Проверить:

 

Паспорт (сертификат), общий журнал работ, акт освидетельствования скрытых работ

- наличие документа о качестве на асфальтобетонную (бетонную) смесь;

Визуальный

- качество уплотнения и ровность основания;

Визуальный, измерительный

- качество асфальтобетонной смеси.

Лабораторный

Устройство покрытия отмостки

Контролировать:

 

Общий журнал работ

- температуру смеси при укладке;

Измерительный

- толщину, ровность, уклон, достаточность уплотнения укладываемого слоя.

То же

Приемка выполненных работ

Проверить:

 

Акт приемки выполненных работ

- ширину отмостки;

Измерительный

- уклон отмостки, водоотводящих лотков;

То же

- качество поверхности отмостки;

Технический осмотр

- примыкание отмостки к цоколю.

 То же

Контрольно-измерительный инструмент: линейка, рулетка, шаблон, уровень, 2-метровая рейка.

Входной и операционный контроль осуществляют: мастер (прораб), инженер (лаборант) - в процессе работ.

Приемочный контроль осуществляют: работники службы качества, мастер (прораб), представители технадзора заказчика.

Технические требования
СНиП 3.04.01-87 табл. 20, СНиП III-10-75 п. 3.26

Допускаемые отклонения:

- уклона покрытия от заданного - 0,2% от ширины отмостки;

- поверхности асфальтового или бетонного покрытия от плоскости при проверке двухметровой рейкой - 5 мм;

- поверхности щебеночной подготовки от плоскости при проверке двухметровой рейкой- 15 мм;

- толщины покрытия отмостки от проектной - -5% - +10%. Отмостки по периметру здания должны плотно примыкать к цоколю. Уклон отмостки от здания должен быть не менее 1% и не более 10%. Ширина отмостки должна быть:

- при глинистых грунтах - не менее 100 см;

- при песчаных грунтах - не менее 70 см.

Не допускается:

- наличие трещин, раковин и впадин.

На подготовку основания (ровность, качество уплотнения) под отмостку следует оформлять акт освидетельствования скрытых, работ.

Требования к качеству применяемых материалов

ГОСТ 9128-97* Смеси асфальтобетонные дорожные, аэродромные и асфальтобетон. Технические условия.

ГОСТ 7473-94. Смеси бетонные. Технические условия.

Бетонные смеси должны характеризоваться следующими показателями:

- классом по прочности;

- удобоукладываемостью;

- видом и количеством исходных материалов (вяжущие, заполнители, добавки);

- крупностью заполнителей.

По согласованию с проектной организацией, осуществляющей авторский надзор, пробы бетонной смеси на месте укладки их в монолитную конструкцию допускается не отбирать, а оценивать прочность бетона по данным контроля предприятия-изготовителя бетонной смеси.

Удобоукладываемость бетонной смеси определяют для каждой партии не позднее чем через 20 минут после доставки смеси к месту укладки.

Бетонные смеси на месте укладки принимают по объему.

Готовые бетонные смеси должны доставляться потребителю автобетоносмесителями, автобетоновозами. По согласованию изготовителя с потребителем допускается доставка бетонных смесей автосамосвалами и на автомашинах в бункерах (бадьях).

Асфальтобетонные смеси характеризуются следующими показателями:

- характер смеси в зависимости от ее температуры;

- плотность асфальтобетона;

- наибольший размер заполнителя смеси.

Температура горячих смесей при выпуске из смесителя должна быть не ниже 140 °С.

Контроль качества асфальтобетонных смесей производят на асфальтобетонных заводах при их изготовлении, а также при укладке в дело. Для контроля качества смеси отбирают и испытывают по одной пробе от каждой партии.

Каждая партия смеси при доставке потребителю должна сопровождаться документом о качестве.

Указания по производству работ
СНиП III-10-75 п. 3.26

Основание под отмостку из асфальтобетона должно быть уплотнено щебнем или гравием крупностью 40-60 мм с вдавливанием его в грунт катком или трамбовкой.

Отмостку из монолитного бетона следует устраивать по песчаному основанию, уплотненному до коэффициента плотности не ниже 0,98.

Асфальтобетонные отмостки следует устраивать из горячей смеси заводского приготовления с температурой не менее 120 °С при ее укладке.

Бетон, используемый для отмостки, по морозостойкости должен соответствовать дорожному бетону и марка должна быть не менее F200.

Асфальтобетонные смеси допускается укладывать только в сухую погоду.

Основания под покрытия должны быть очищены от грязи.

Температура воздуха при укладке асфальтобетонных покрытий из горячих смесей должна быть не ниже +5 °С весной и летом, а осенью не ниже + 10 °С.

Для отвода влаги от водосточных труб должны быть сделаны специальные бетонные или асфальтобетонные лотки с уклоном не менее 15%.

Устройство тротуаров и дорожек из плит

Состав операций и средства контроля

Этапы работ

Контролируемые операции

Контроль (метод, объем)

Документация

Подготовительные работы

Проверить:

- наличие документа о качестве на изделия;

 

Визуальный

Паспорта (сертификаты), общий журнал работ

- внешний вид, соответствие геометрических размеров сборных изделий;

Визуальный, измерительный

- соответствие уклонов и отметок основания проекту;

Измерительный

- выноску разбивочных осей и надежность их крепления;

То же

- толщину слоя песчаной подготовки и качество уплотнения;

Технический осмотр всей поверхности

- ровность поверхности песчаной подготовки.

То же

Устройство тротуаров и дорожек

Контролировать:

 

Общий журнал работ

- плотность прилегания плит и бортовых камней к основанию;

Визуальный

- вертикальные смещения в швах между плитами и бордюрами (бортовыми камнями);

Измерительный

- ширину швов между плитами и бордюрами.

То же

Приемка выполненных работ

Проверить:

- ровность поверхности покрытия;

 

Технический осмотр

Акт приемки выполненных работ

- заполнение швов.

То же

 

Контрольно-измерительный инструмент: нивелир, рулетка, шаблон, двухметровая рейка.

Операционный контроль осуществляют: мастер (прораб), геодезист - в процессе работ.

Приемочный контроль осуществляют: работники службы качества, мастер (прораб), геодезист, представители технадзора заказчика.

Технические требования
СНиП III-10-75 пп. 3.23, 3.25

Предельные отклонения:

- в вертикальных смещениях в швах между плитами - не более 2 мм;

- швов между плитами- 15 мм;

- швов между бортовыми камнями - 10 мм;

- ровности песчаного основания при проверке двухметровой рейкой - 5 мм.

Песчаное основание должно быть толщиной не менее 3 см и уплотнено до плотности с коэффициентом не ниже 0,98.

Швы между плитами должны быть заполнены герметизирующими материалами (асфальтобетонной смесью), а между бортовыми камнями цементно-песчаным раствором.

Не допускаются:

- уступы в стыках бортовых камней в плане и профиле;

- просветы между плитами и песчаным основанием;

- устройства криволинейного борта радиусом £15 м из прямолинейных камней.

Требования к качеству применяемых материалов

ГОСТ 6665-91. Камни бетонные и железобетонные бортовые. Технические условия.

ГОСТ 17608-91. Плиты бетонные тротуарные. Технические условия.

Отклонения геометрических параметров камней бортовых не должны превышать предельные:

- по длине - ±6 мм;

- по ширине и высоте - ±2 мм.

Непрямолинейность профиля камней допускается не более 3 мм на всю длину.

Не допускаются трещины, за исключением усадочных шириной не более 0,1 мм.

Отклонения геометрических параметров плит тротуарных не должны превышать предельные по ширине, толщине и длине - ±5 мм.

Непрямолинейность лицевой поверхности плит допускается не более 3 мм по длине и ширине.

Поставка и приемка железобетонных изделий должна производиться партиями. Каждая партия должна сопровождаться документом о качестве.

Размеры и геометрическая форма проверяются выборочно.

Объем выборки зависит от объема партии изделий:

- 5 шт. - при объеме партии до 25 шт.;

- 8 шт. -              »                  от 25 до 90 шт.;

- 13 шт. -            »                  более 90 шт.

Изделия должны храниться в штабелях высотой не более 2 м. Между изделиями должны быть проложены деревянные прокладки.

Указания по производству работ
СНиП III-10-75 пп. 3.22, 3.23, 3.25

Сборные бетонные и железобетонные плиты тротуаров и пешеходных дорожек, не рассчитанные на воздействие 8-тонной осевой нагрузки от транспортных средств, следует укладывать на песчаное основание при ширине дорожек и тротуаров до 2 м. Песчаное основание должно иметь боковой упор из грунта или бортовых камней и быть уплотнено до плотности при коэффициенте не ниже 0,98, иметь толщину не менее 3 см и обеспечивать полное прилегание плиток при их укладке.

Плотное прилегание плит к основанию достигается осадкой их при укладке и погружении плиты в песок основания до 2 мм.

Укладку плит следует вести от себя под уклон, перемещая плитоукладочные машины по уложенному покрытию. Посадка плит на песчаное основание должна производиться транспортными средствами.

Заполнение швов между плитами должно производиться герметизирующими материалами сразу же после окончания посадки плит.

Бортовые камни следует устанавливать на грунтовом основании, уплотненном до плотности при коэффициенте не менее 0,98, или на бетонном основании с присыпкой грунтом с наружной стороны или укреплением бетоном. Борт должен повторять проектный профиль покрытия в местах пересечений внутриквартальных проездов и садовых дорожек следует устанавливать криволинейные бортовые камни.

Раствор для заполнения швов должен приготовляться на портландцементе марки не ниже 400 и иметь подвижность, соответствующую 5-6 см погружения стандартного конуса.

В местах пересечения внутриквартальных проездов и пешеходных дорожек с тротуарами, подходами к площадкам и проезжей частью улиц бортовые камни должны заглубляться с устройством плавных примыканий для обеспечения проезда детских колясок и въезда транспортных средств.

Устройство щебеночного основания и асфальтобетонного покрытия

Состав операций и средства контроля

Этапы работ

Контролируемые операции

Контроль (метод, объем)

Документация

Подготовительные работы

Проверить:

 

Паспорта (сертификаты), общий журнал работ

- наличие паспортов на материалы;

Визуальный

- соответствие уклонов и отметок фунтового основания проекту;

Измерительный

- выноску разбивочных осей и надежность их крепления;

То же

- выполнение мероприятий по водоотводу;

- влажность фунтового основания.

Технический осмотр всей поверхности

Устройство щебеночного основания и асфальтобетонного покрытия

Контролировать:

 

Общий журнал работ

- влажность щебня;

Измерительный, не реже одного раза в смену

- ширину и толщину укладываемого

Измерительный

- качество уплотнения и соблюдение режима ухода;

Визуальный

- температуру горячей и теплой асфальтобетонной смеси;

Измерительный, в каждом самосвале

- ровность поверхности;

Измерительный, рейкой длиной 3 м

- качество продольных и поперечных сопряжений укладываемых полос;

Визуальный

- высотные отметки и поперечный уклон полотна.

Измерительный

Приемка выполненных работ

Проверить:

- соответствие выполненных работ требованиям проекта.

 

Технический осмотр, комплексная оценка качества выполненных работ

Акт приемки выполненных работ

Контрольно-измерительный инструмент: нивелир, рулетка, теодолит, трехметровая рейка.

Операционный контроль осуществляют: мастер (прораб), геодезист - в процессе работ.

Приемочный контроль осуществляют: работники службы качества, мастер (прораб), геодезист, представители технадзора заказчика.

Технические требования
СНиП 3.06.03-85 пп. 7.1, 10.16

Предельные отклонения:

- наименьшая толщина распределяемого слоя щебня должна быть не менее 10 см при укладке на прочное основание и не менее 15 см при укладке на песок;

- максимальная толщина слоя щебня не должна превышать значения, указанные в таблице;

- толщина устраиваемого слоя асфальтобетонной смеси должна быть не менее 4 см.

Вид материала

Максимальная толщина уплотняемого слоя, см, при применении катков

с гладкими вальцами массой 10 т и более

решетчатых и на пневматических шинах массой 15 т и более

вибрационных и комбинированных массой, т

вибрационных и комбинированных массой, т

до 10

16 и более

Трудноуплотняемый (из изверженных и метаморфических пород марки по прочности 1000 и более, гравий прочный, хорошо окатанный, шлаки остеклованной структуры)

18

24

18

24

Легкоуплотняемый (из изверженных и метаморфических пород марки по прочности менее 1000, осадочные, гравий неокатанный, шлаки с пористой структурой)

22

30

22

30

Покрытия и основания из асфальтобетонных смесей следует устраивать в сухую погоду. Укладку горячих и холодных смесей следует производить весной и летом при температуре окружающего воздуха не ниже 5 °С, осенью - не ниже 10 °С; теплых смесей - при температуре не ниже 10 °С.

Требования к качеству применяемых материалов

ГОСТ 8736-93*. Песок для строительных работ. Технические условия.

ГОСТ 9128-97. Смеси асфальтобетонные дорожные, аэродромные и асфальтобетон. Технические условия.

Предприятие-изготовитель каждую партию щебня и песка сопровождает документом о качестве, в котором указывает:

- наименование и адрес предприятия-изготовителя;

- номер, дату выдачи документа;

- наименование продукции и ее количество;

- размер фракции;

- плотность (истинную и среднюю);

- пористость;

- пустотность (объем межзерновых пустот);

- водопоглощение.

Асфальтобетонные смеси характеризуются следующими показателями:

- характер смеси в зависимости от ее температуры;

- плотность асфальтобетона;

- наибольший размер заполнителя смеси.

Температура горячих смесей при выпуске из смесителя должна быть не ниже 140 °С.

Контроль качества асфальтобетонных смесей производят на асфальтобетонных заводах при их изготовлении, а также при укладке в дело. Для контроля качества смеси отбирают и испытывают по одной пробе от каждой партии.

Каждая партия смеси должна сопровождаться потребителю документом о качестве.

Указания по производству работ
СНиП 3.06.03-85 пп. 1.7, 1.8, 1.12, 7.1, 7.3-7.4, 7.8, 10.18

Работу по устройству слоев дорожной одежды следует производить только на готовом и принятом в установленном порядке непереувлажненном и недеформированном земляном полотне.

Покрытие и основание с использованием вяжущих материалов следует устраивать на сухом и чистом нижележащем слое, а при использовании органических вяжущих материалов, кроме того, - на непромерзшем слое.

До начала устройства каждого слоя основания и покрытия следует производить разбивочные работы по закреплению положения бровок и высотных отметок слоев. При применении машин, оборудованных автоматическими следящими системами, закрепление бровок и высотных отметок осуществляется путем установки копирных струн с одной или двух сторон укладываемого слоя. Разбивочные работы и их контроль следует выполнять с использованием геодезических инструментов.

Уплотнение катками слоев земляного полотна, оснований и покрытий необходимо осуществлять от краев к середине, при этом каждый след от предыдущего прохода катка должен перекрываться при последующем проходе не менее чем на 1/3.

Число проходов катка и толщину уплотняемого слоя с учетом коэффициента запаса на уплотнение материалов следует устанавливать по результатам пробного уплотнения. Результаты пробного уплотнения необходимо заносить в общий журнал работ.

Наименьшая толщина распределяемого слоя должна в 1,5 раза превышать размер наиболее крупных частиц и быть не менее 10 см при укладке на прочное основание и не менее 15 см при укладке на песок.

Разрешается вывозить щебень и гравий и укладывать их в штабель на земляном полотне или промежуточном складе для последующего использования при устройстве дорожной одежды.

Работы по устройству щебеночных оснований и покрытий методом заклинки следует производить в два этапа:

- распределение основной фракции щебня и его предварительное уплотнение (обжатие и взаимозаклинивание);

- распределение расклинивающего щебня (расклинцовка двух-, трехразовая) с уплотнением каждой фракции. Для оснований допускается одноразовая расклинцовка. При применении щебня осадочных пород марки по прочности менее 600 при устройстве оснований работы можно выполнять в один этап.

После окончания уплотнения покрытия по его поверхности следует распределять каменную мелочь из изверженных пород марки по прочности не ниже 800 (из осадочных пород - не ниже 600) в количестве 1 куб. м на 100 кв. м и уплотнять ориентировочно за 4-6 проходов катка.

Допускается производить работы с использованием горячих асфальтобетонных смесей при температуре воздуха не ниже 0 °С при соблюдении следующих требований:

- толщина устраиваемого слоя должна быть не менее 4 см;

- необходимо применять асфальтобетонные смеси с ПАВ или активированными минеральными порошками;

- устраивать следует, как правило, только нижний слой двухслойного асфальтобетонного покрытия; если зимой или весной по этому слою будут передвигаться транспортные средства, его следует устраивать из плотных асфальтобетонных смесей;

- верхний слой допускается устраивать только на свежеуложенном нижнем слое до его остывания (с сохранением температуры нижнего слоя не менее 20 °С).

Укладку холодных асфальтобетонных смесей следует заканчивать ориентировочно за 15 дней до начала периода осенних дождей, за исключением смесей с активированными минеральными материалами.

Часть 2 РЕМОНТНО-СТРОИТЕЛЬНЫЕ РАБОТЫ

Ремонт и усиление старых фундаментов

Состав операций и средства контроля

Этапы работ

Контролируемые операции

Контроль (метод, объем)

Документация

Подготовительные работы

Проверить:

 

Паспорта (сертификаты), общий журнал работ

- наличие документа о качестве на материалы;

Визуальный

- надежность укрепления стен, перекрытий;

Технический осмотр

- соблюдение размеров очищаемых участков фундаментов в соответствии с ППР.

Визуальный, измерительный

Ремонт и усиление фундаментов

Контролировать:

 

Общий журнал работ, акт освидетельствования скрытых работ

- разборку старого фундамента;

- пробивку гнезд для пропуска анкеров;

Визуальный

Визуальный, измерительный

- установку арматуры, опалубки;

То же

- технологию и качество укрепления фундаментов;

- » -

- качество гидроизоляции.

Визуальный

Приемка выполненных работ

Проверить:

 

Акт освидетельствования скрытых работ

- фактические размеры элементов усиления фундаментов;

Измерительный, каждый элемент

- качество поверхностей фундаментов.

Технический осмотр

Контрольно-измерительный инструмент: нивелир, рулетка, линейка металлическая, отвес.

Операционный контроль осуществляют: мастер (прораб), инженер (лаборант) - в процессе работ.

Приемочный контроль осуществляют: работники службы качества, мастер (прораб), представители технадзора заказчика.

Технические требования
СНиП 3.03.01-87 п. 3.6, табл. 12

Допускаемые отклонения:

- смещения осей фундаментных блоков относительно разбивочных осей - ±12 мм;

- отметок верхних опорных поверхностей элементов фундаментов от проектных - 10 мм;

- толщины вертикальных и горизонтальных швов - 20 мм;

- в перевязке швов при укладке блоков - на половину длины блока, но не менее 20 см.

Не допускается:

- укладка блоков фундаментов на покрытое водой или снегом основание, на промерзшие пучинистые грунты;

- применение раствора, процесс схватывания которого уже начался.

Указания по производству работ

Ремонт и усиление фундаментов могут быть произведены одним из следующих методов:

1) заменой старого фундамента на новый;

2) уширением подошвы фундамента (рис. 3);

3) заменой деревянных свай и лежней на другие, в т. ч. на железобетонные подушки (рис. 6);

4) укреплением старых фундаментов:

- цементацией, химизацией (рис. 5);

- частичной перекладкой, укреплением выпадающих камней;

- специальными обоймами:

а) железобетонными (рис. 1),

б) бетонными подушками (рис. 2),

в) бетонными приливами (рис. 7),

г) набивными сваями (рис. 4).

Замена фундаментов может производиться из старого материала, если он отвечает требованиям ГОСТ. Горизонтальный гидроизоляционный слой между фундаментом и стеной должен быть уложен по выровненной раствором поверхности. Работы по усилению производятся участками длиной 1,5 - 2,0 м одновременно на несмежных участках. Работы должны выполняться по утвержденному проекту и ППР. До начала работ необходимо обеспечить укрепление (вывешивание) перекрытий и стен в местах деформаций. Отрывка траншеи, шурфов, котлована должна вестись после выполнения временного крепления стен в соответствии с проектом.

Укладка сборных ж/б плит перекрытий при реконструкции кирпичных зданий

Состав операций и средства контроля

Этапы работ

Контролируемые операции

Контроль (метод, объем)

Документация

Подготовительные работы

Проверить:

 

Паспорта (сертификаты), общий журнал работ

- наличие документов о качестве на материалы;

Визуальный

- качество поверхности и геометрические параметры плит;

Визуальный, измерительный, каждый элемент

- соответствие отметок, глубины, длины борозды;

Измерительный

- ровность основания.

То же

Монтаж плит

Контролировать:

 

Общий журнал работ, акт освидетельствования скрытых работ

- отметки опорных поверхностей, глубину опирания плит;

Измерительный, каждый элемент

- совмещение нижней поверхности смежных плит;

Визуальный

- установку и заделку анкеров;

То же

- заделку концов плит и замоноличивание швов между плитами.

Технический осмотр

Приемка выполненных работ

Проверить:

 

Акт приемки выполненных работ, исполнительная геодезическая схема

- фактическое положение смонтированных плит согласно проекту;

Измерительный, каждый элемент

- внешний вид лицевых поверхностей;

Визуальный

- качество замоноличивания швов.

То же

Контрольно-измерительный инструмент: рулетка, линейка металлическая, нивелир.

Операционный контроль осуществляют: мастер (прораб), геодезист - в процессе работ.

Приемочный контроль осуществляют: работники службы качества, мастер (прораб), представители технадзора заказчика.

Технические требования
СНиП 3.03.01-87 пп. 3.6, 3.7, 3.21, 3.22, табл. 12

Допускаемые отклонения:

- поверхностей от симметричности (половина разности глубины опирания концов элемента) при установке плит покрытий и перекрытий в направлении перекрываемого пролета при длине элемента, м:

- до 4 - 5 мм;

- свыше 4 до 8 - 6 мм;

- разности отметок лицевых поверхностей двух смежных плит перекрытий в шве при их длине, м:

- до 4 - 8 мм;

- свыше 4 до 8 - 10 мм.

Толщина слоя раствора под плитами - не более 20 мм. Поверхности смежных плит перекрытий вдоль шва со стороны потолка должны быть совмещены.

Глубина опирания плит - по проекту (не менее 130 мм).

Не допускается:

- применение не предусмотренных проектом подкладок для выравнивания укладываемых элементов по отметкам без согласования с проектной организацией;

- применение раствора, процесс схватывания которого уже начался, а также восстановление его пластичности путем добавления воды.

Требования к качеству применяемых материалов

ГОСТ 9561-91. Плиты железобетонные многопустотные для перекрытий зданий и сооружений. Технические условия.

ГОСТ 13015-2003. Изделия железобетонные и бетонные для строительства. Общие технические условия. Правила приемки, маркировки, транспортирования и хранения.

Отклонения от номинальных размеров плит, указанных в рабочих чертежах, не должны превышать следующие значения:

- по длине плит: до 4 м - ±8 мм;

св. 4 до 8 м - ±10 мм;

- по толщине плит - ±5 мм;

- по ширине плит:  до 2,5 м - ±6 мм;

св. 2,5 м - ±8 мм.

Непрямолинейность профиля боковых граней плит не должна превышать на всей длине плиты:

- длиной до 8 м - 8 мм;

Неплоскостность нижней поверхности плиты не должна превышать для плит:

- длиной до 8 м - 8 мм;

Отклонения от номинального положения стальных закладных изделий не должны превышать:

- в плоскости плиты - 10 мм;

- из плоскости плиты - 5 мм.

Качество поверхностей и внешний вид плит в зависимости от установленной категории поверхностей должны отвечать требованиям, приведенным в таблице.

Характеристика бетонной поверхности

Категория

Диаметр раковин, мм

Высота (глубина) наплыва (впадин), мм

Глубина сколов, мм

Длина сколов в мм на 1 м ребра

Нижняя, потолочная

А2

1

1

5

50

Верхняя, под линолеум

А4

10

1

5

50

Невидимая, боковая

А7

20

-

20

-

Поставленные на монтаж плиты перекрытий не должны иметь:

- жировых и ржавых пятен на лицевых поверхностях плит;

- трещин на поверхностях плит, за исключением усадочных и других поверхностных технологических шириной не более 0,1 мм;

- наплывов бетона на открытых поверхностях стальных закладных изделий, выпусках арматуры и монтажных петлях.

Указания по производству работ
СНиП 3.03.01-87 пп. 3.18-3.21

Укладку плит в направлении перекрываемого пролета надлежит выполнять с соблюдением установленных проектом размеров глубины опирания их на опорные конструкции или зазоров между сопрягаемыми элементами. Установку плит в поперечном направлении перекрываемого пролета следует выполнять по разметке, определяющей их проектное положение.

Плиты перекрытий необходимо укладывать на слой раствора толщиной не более 20 мм, совмещая поверхности смежных плит вдоль шва со стороны потолка.

Марка раствора принимается по проекту. Подвижность раствора должна составлять 5-7 см по глубине погружения конуса.

Замоноличивание стыков следует выполнять после проверки правильности установки плит, приемки сварных соединений элементов в узлах сопряжений и выполнения антикоррозионного покрытия сварных соединений и поврежденных участков покрытия закладных изделий. Бетонные смеси, применяемые для замоноличивания стыков, должны отвечать требованиям ГОСТ 7473-94 и проекта.

После установки и приварки анкеров гнезда петель в плитах необходимо замонолитить раствором М 100.

Горизонтальную штрабу в стенах необходимо заложить кирпичом с тщательной расклинкой кладки.

Устройство монолитных участков в перекрытиях

Состав операций и средства контроля

Этапы работ

Контролируемые операции

Контроль (метод, объем)

Документация

Подготовительные работы

Проверить:

 

Паспорта (сертификаты), общий журнал работ

- наличие документов о качестве на элементы опалубки и арматурные изделия, бетонную смесь;

Визуальный

- точность установки и соединение отдельных элементов, качество креплений и внутренней поверхности опалубки;

Визуальный, измерительный

- точность установки арматурных изделий в плане и по высоте, надежность их фиксации.

Технический осмотр всех элементов

Устройство монолитных участков

Контролировать:

 

Общий журнал работ

- качество бетонной смеси;

Лабораторный

- состояние опалубки;

Технический осмотр

- порядок укладки бетонной смеси, заполнения пазух, достаточного уплотнения;

То же

- температурно-влажностный режим твердения бетона согласно требованиям ППР;

Измерительный

- прочность бетона и сроки распалубки.

То же

Приемка выполненных работ

Проверить:

 

Акт приемки выполненных работ

- фактическую прочность бетона;

Лабораторный

- качество поверхности конструкций, соответствие проектному положению отверстий, каналов, проемов, закладных деталей.

Визуальный, измерительный, каждый элемент

Контрольно-измерительный инструмент: отвес, двухметровая рейка, рулетка, линейка металлическая.

Операционный контроль осуществляют: мастер (прораб), инженер лаборатории - в процессе выполнения работ.

Приемочный контроль осуществляют: работники службы качества, мастер (прораб), представители технадзора заказчика.

Технические требования
СНиП 3.03.01-87 п. 2.14, табл. 2

Допускаемые отклонения:

- в расстоянии между:

- отдельно установленными рабочими стержнями - ±20 мм;

- рядами сетки - ±10 мм;

- от проектной толщины защитного слоя бетона при его толщине до 15 мм и линейных размерах поперечного сечения конструкции:

- до 100 мм - +4 мм;

- от 101 мм до 200 мм - +5 мм;

- местных неровностей поверхности бетона при проверке двухметровой рейкой - 5 мм.

Высота свободного сбрасывания бетонной смеси в опалубку перекрытий не должна превышать 1,0 м.

Прочность бетона (в момент распалубки конструкций) должна быть не менее 70% проектной прочности.

Не допускается:

- добавлять воду на месте укладки бетонной смеси для увеличения ее подвижности.

Армирование монолитных участков должно оформляться актом освидетельствования скрытых работ.

Требования к качеству применяемых материалов

ГОСТ 7473-94. Смеси бетонные. Технические условия.

ГОСТ 23279-85. Сетки арматурные сварные для железобетонных конструкций и изделий. Общие технические условия.

ГОСТ 10922-90. Арматурные и закладные изделия сварные, соединения сварные арматурных и закладных изделий железобетонных конструкций. Общие технические условия.

ГОСТ Р 52086-2003. Опалубка. Термины и определения.

Опалубка должна обладать прочностью, жесткостью, неизменяемостью формы и устойчивостью в рабочем положении, а также в условиях монтажа и транспортирования.

Влажность древесины, применяемой для палубы, должна быть не более 18%, для поддерживающих элементов - не более 22%.

Доски палубы должны иметь ширину не более 150 мм.

Элементы опалубки должны плотно прилегать друг к другу при сборке. Щели в стыковых соединениях не должны быть более 2 мм.

На палубе щитов из фанеры не допускаются трещины, заусенцы и местные отклонения глубиной более 2 мм, на палубе из древесины - более 3 мм в количестве не более 3 на 1 м2.

При приемке опалубки необходимо проверить наличие паспорта с инструкцией по монтажу и эксплуатации опалубки, проверить геометрические размеры, качество рабочих поверхностей, защитной окраски поверхностей, не соприкасающихся с бетонами.

Предельные отклонения для арматурных сеток, мм:

- ширины, размеров ячеек, разницы в длине диагоналей плоских сеток, свободных концов стержней - ±10;

- длины плоских сеток - ±15.

Предельные отклонения от прямолинейности стержней сеток не должны превышать 6 мм на 1 м длины сетки.

Бетонные смеси должны характеризоваться следующими показателями:

- классом по прочности;

- удобоукладываемостью;

- видом и количеством исходных материалов (вяжущие, заполнители, добавки);

- крупностью заполнителей.

По согласованию с проектной организацией, осуществляющей авторский надзор, пробы бетонной смеси на месте укладки их в монолитную конструкцию допускается не отбирать, а оценивать прочность бетона по данным контроля предприятия-изготовителя бетонной смеси.

Удобоукладываемость бетонной смеси определяют для каждой партии не позднее чем через 20 минут после доставки смеси к месту укладки.

Указания по производству работ
СНиП 3.03.01-87 пп. 2.8-2.11, 2.16, 2.100, 2.109

Перед бетонированием горизонтальные и наклонные бетонные и кирпичные поверхности рабочих швов должны быть очищены от мусора, грязи, масел, снега и льда, цементной пленки и др. Непосредственно перед укладкой бетонной смеси очищенные поверхности должны быть промыты водой и просушены струей воздуха.

Бетонные смеси следует укладывать в бетонируемые конструкции горизонтальными слоями одинаковой толщины без разрывов, с последовательной укладкой в одну сторону во всех слоях. Арматурная сталь (стержневая, проволочная) и сортовой прокат, арматурные изделия и закладные элементы должны соответствовать проекту и требованиям соответствующих стандартов. Замена предусмотренной проектом арматурной стали должна быть согласована с заказчиком и проектной организацией. Монтаж арматурных конструкций следует производить преимущественно из крупноразмерных блоков или унифицированных сеток заводского изготовления.

Установка и приемка опалубки, распалубливание монолитных конструкций, очистка и смазка, а также мероприятия по уходу за бетоном должны устанавливаться ППР.

Монтаж плит перекрытий по металлическим балкам

Состав операций и средства контроля

Этапы работ

Контролируемые операции

Контроль (метод, объем)

Документация

Подготовительные работы

Проверить:

 

Паспорта (сертификаты), общий журнал работ

- наличие документа о качестве на металлические конструкции и бетонные плиты;

Визуальный

- соответствие размеров конструкций проектным, наличие окраски балок;

Визуальный, измерительный

- соответствие отметок проектным, размеры гнезд, наличие опорных подушек.

Измерительный, визуальный

Монтаж плит перекрытия

Контролировать:

 

Общий журнал работ, акт освидетельствования скрытых работ

- размеры опирания балок на стены(опорные подушки), размеры по осям;

Визуальный, измерительный, каждый элемент

- наличие раствора под концами железобетонных плит, замоноличивание гнезд;

Технический осмотр

- наличие поперечных связей и их анкеровку в стены;

То же

- правильность укладки толя при звукоизоляции;

Визуальный, измерительный

- влажность и толщину слоя засыпки.

То же

Приемка выполненных работ

Проверить:

 

Акт приемки выполненных работ

- фактическое положение смонтированных балок плит;

Визуальный, измерительный

- внешний вид лицевых поверхностей.

То же

Контрольно-измерительный инструмент: рулетка, линейка металлическая, нивелир, двухметровая рейка.

Операционный контроль осуществляют: мастер (прораб), геодезист - в процессе работ.

Приемочный контроль осуществляют: работники службы качества, мастер (прораб), представители технадзора заказчика.

Требования к качеству применяемых материалов

ГОСТ 12767-94. Плиты железобетонные сплошные для перекрытий жилых и общественных зданий. Технические условия.

Отклонения от номинальных размеров плит, указанных в рабочих чертежах, не должны превышать следующие значения:

- по длине плит до 4 м - ±8 мм;

- по толщине плит - ±5 мм;

- по ширине плит до 2,5 м - ±6 мм.

Технические требования
СНиП 3.03.01-87 п. 3.7, табл. 12 Альбом 69 НП Ленжилпроекта

Допускаемые отклонения:

- отклонение отметок опорных узлов ригелей, балок - 10 мм;

- прогиба (кривизны) между точками закрепления сжатых участков ригеля или балки - 0,0013 длины закрепленного участка, но не более 15 мм;

- ровности поверхности со стороны потолка при проверке двухметровой рейкой - 5 мм.

Указания по производству работ
СНиП 3.03.01-87 п. 3.21 Альбом 69 НП Ленжилпроекта

Стальные конструкции должны быть огрунтованы и окрашены на предприятии-изготовителе. Окраске не подлежат зоны монтажной сварки на ширину 100 мм по обе стороны от шва и части стальных конструкций, подлежащие обетонированию.

Изготовленные конструкции должны быть замаркированы в соответствии с чертежами КМД.

Предприятие-изготовитель стальных конструкций обязано выдать сертификаты на конструкции. Металлическая балка по нижним полкам должна быть обернута сеткой «Рабица» для штукатурного слоя.

Плиты укладываются по металлическим балкам на слой, цементного раствора М100 толщиной не более 20 мм, с совмещением поверхности смежных плит вдоль шва со стороны потолка. Замоноличивание стыков плит производится таким же раствором.

При пролете балок свыше 5,0 м до 7,5 м устанавливаются связи из арматуры 020 мм посередине пролета, при пролете от 7,6 до 9,0 м - в каждой трети пролета. Величина опирания балок на стену - по проекту, но не менее 250 мм. При пролете балок свыше 6,0 м под их опорные части необходимо устанавливать опорные подушки.

Усиление кирпичных столбов и простенков

Состав операций и средства контроля

Этапы работ

Контролируемые операции

Контроль (метод, объем)

Документация

Подготовительные работы

Проверить:

 

Паспорт (сертификат), проект, общий журнал работ

- наличие документа о качестве на металл;

Визуальный

 

- соответствие сечения элементов каркаса обоймы проектным с учетом размеров столба или простенка;

Технический осмотр

- удаление существующей штукатурки, четвертей под установку обоймы.

Визуальный

Усиление кирпичных столбов и простенков

Контролировать:

 

Общий журнал работ

- сплошность нанесения раствора под элементы обоймы;

Визуальный

 

- втапливание уголков в раствор при их установке (плотность прилегания, вертикальность уголков);

Измерительный

 

 

- разогрев поперечных планок, качество сварки планок к уголкам.

Технический осмотр

Приемка выполненных работ

Проверить:

 

Акт приемки выполненных работ

- фактическое положение смонтированной обоймы;

Визуальный, измерительный

- качество сварочных соединений и антикоррозионных покрытий.

То же

Контрольно-измерительный инструмент: рулетка, линейка металлическая, уровень, отвес.

Операционный контроль осуществляют: мастер (прораб).

Приемочный контроль осуществляют: работники службы качества, мастер (прораб), представители технадзора заказчика.

Технические требования
СНиП 3.03.01-87 п. 7.90, табл. 34

Допускаемые отклонения:

- поверхностей и углов от вертикали на всю высоту столба или простенка - ±10 мм;

- горизонтальных стягивающих полос от горизонтали на 1 м плоскости в любом направлении - ±5 мм.

Указания по производству работ
Альбом 24 НТ-2/75 Ленжилпроекта

Перед установкой обоймы углы кирпичной кладки и зоны установки поперечных планок очищаются от существующей штукатурки. Четверти в простенках сбиваются. Под металлические уголки обоймы наносится цементный раствор, в который втапливаются уголки. Поперечные планки перед установкой и приваркой к уголкам предварительно нагреваются.

Сечение уголков и пластин принимается по проекту.

Расстояние между планками (h) выполняется согласно проекту.

При отсутствии размера в проекте планки устанавливаются на расстоянии, равном толщине столба, простенка (b), т. е. h = b.

Горизонтальные планки привариваются к уголку по всему периметру нахлестки (фланговый шов).

Пластины должны привариваться перпендикулярно к уголкам.

Установка металлических перемычек

Состав операций и средства контроля

Этапы работ

Контролируемые операции

Контроль (метол, объем)

Документация

Подготовительные работы

Проверить:

 

Паспорт (сертификат), общий журнал работ

- наличие документа о качестве на металлические изделия;

Визуальный

- соответствие размеров проектным, наличие антикоррозионной зашиты;

Визуальный, измерительный

- наличие разметки, определяющей проектное положение перемычек.

- » -

Установка металлических перемычек

Контролировать:

 

Общий журнал работ

- поочередность пробивки борозды, отметку опорной площадки, глубину борозды;

Визуальный, измерительный

- размер опирания;

Измерительный

- установку стягивающих болтов, полос;

Визуальный

- наличие на перемычке сетки «Рабица» под штукатурку.

То же

Приемка выполненных работ

Проверить:

 

Акт приемки выполненных работ

- фактическое положение смонтированных перемычек;

Измерительный

- внешний вид элементов.

Визуальный

Контрольно-измерительный инструмент: рулетка, линейка металлическая, отвес, нивелир.

Операционный контроль осуществляют: мастер (прораб), геодезист - в процессе работ.

Приемочный контроль осуществляют: работники службы качества, мастер (прораб), представители технадзора заказчика.

Технические требования
СНиП 3.03.01-87, табл. 14

Допускаемые отклонения:

- отметок опорных узлов - ±10 мм;

- в разнице длин площадок опирания - 10 мм;

- смещений перемычек из плоскости стены - 15 мм;

- опирание перемычек (обоих концов) на стену должно быть не менее 250 мм.

Указания по производству работ
Альбом 24-НТ-2/75 Ленжилпроекта

Перемычки должны быть стянуты между собой болтами на половине высоты (по краям и в середине перемычки). Допускается сварка перемычек полосой, но обязательно по верхним и нижним полкам.

Перед установкой перемычки обтягиваются сеткой «Рабица», для нанесения штукатурного слоя.

Зазор между вновь установленной перемычкой и вышележащей кладкой должен быть тщательно заделан кирпичом на растворе или бетоном. Не допускается пробивка борозды на всю толщину стены. Установка производится в два приема: вначале пробивается борозда и устанавливается перемычка с одной стороны - с заделкой зазора, затем с другой стороны стены - с установкой болтов и их затяжкой. Запрещается пробивка проема до установки перемычек, ее затяжки и заделки зазоров между перемычкой и вышележащей кладкой стены.

Стягивающие болты и полосы должны привариваться перпендикулярно к продольной оси перемычки. Изгиб болтов и полос не допускается.

Монтаж лестниц на металлических косоурах

Состав операций и средства контроля

Этапы работ

Контролируемые операции

Контроль (метод, объем)

Документация

Подготовительные работы

Проверить:

 

Паспорта (сертификаты), общий журнал работ

- наличие документа о качестве на изделия;

Визуальный

- соответствие размеров изделий проектным;

Измерительный

- разметку проектных положений;

То же

- очистку опорных поверхностей ранее смонтированных конструкций от мусора, грязи, снега и наледи;

Визуальный

Монтаж лестниц на металлических косоурах

Контролировать:

 

Общий журнал работ, журнал сварочных работ

- соответствие отметок установки балок, уклонов косоуров проектным;

Измерительный

- качество сварных соединений, заделки концов балок;

Технический осмотр

- горизонтальность и вертикальность ступеней, высоту подступенков;

Измерительный

- вертикальность решетки.

Визуальный, измерительный

Приемка выполненных работ

Проверить:

 

Исполнительная геодезическая схема, акт освидетельствования скрытых работ

- фактическое положение смонтированных косоуров и площадок (отклонение от разметки, определяющей проектное положение элементов на опорах);

Измерительный, каждый элемент

- качество сварочных соединений и антикоррозионных покрытий.

Технический осмотр

Контрольно-измерительный инструмент: рулетка, линейка металлическая, нивелир, уровень, катетомер.

Операционный контроль осуществляют: мастер (прораб), геодезист - в процессе выполнения работ

Приемочный контроль осуществляют: работники службы качества, мастер (прораб), представители технадзора заказчика.

Технические требования
Альбом 24-НТ-4 Ленжилпроекта

Допускаемые отклонения:

- высоты подступенка от проекта - ±3 мм;

- ширины проступи от проекта - ±5 мм;

- в просветах при наложении рейки длиной 2 м вдоль марша на свесы проступей - 4 мм;

- отклонения от горизонтали проступей - 2 мм;

- от горизонтали площадок лестниц - 5 мм;

- от вертикали подступенка - 3 мм;

- от вертикали металлических решеток - 3 мм;

- в расстояниях между элементами ограждений (стойками) от проектных - 5 мм;

- зазоры между элементами поручня - 0,5 мм.

Опирание балок на стены под лестничные площадки должно быть не менее 250 мм с опорной пластиной размером 200´250 мм.

Требования к качеству применяемых материалов

ГОСТ 8717.0-84*. Ступени железобетонные и бетонные. Технические условия.

ГОСТ 23120-78. Лестницы маршевые, площадки и ограждения стальные. Технические условия.

Значения действительных отклонений геометрических параметров ступеней не должны превышать предельные:

- по длине ступени - ±5 мм;

- по высоте ступени - ±2 мм;

- по ширине ступени - ±3 мм.

Верхняя лицевая поверхность ступеней одной партии должна иметь одинаковый цвет и тон окраски.

Маркировочные надписи и знаки должны быть нанесены на нелицевых поверхностях ступеней.

Каждая партия ступеней должна сопровождаться документом о качестве. Ступени транспортируются и хранятся в контейнерах или пакетах.

Каркасы ограждений лестниц должны изготовляться сварными. Отклонения от проектных размеров элементов каркаса ограждений не должны превышать:

- по высоте - 3 мм;

- по длине - 5 мм;

- по величине стрелки кривизны - 3 мм.

Предприятие-изготовитель должно поставлять металлические ограждения окрашенными масляной краской за один раз (за исключением участков, подлежащих заделке в бетон). Ограждения должны поставляться в виде укрупненных элементов (на марш, площадку) комплектно с крепежными деталями.

Для выборочной проверки качества ограждений отбирают образцы в количестве 5% от партии, но не менее 5 штук. Отобранные образцы подвергают осмотру и обмеру.

Ограждения должны храниться в штабелях высотой не более 1,5 м рассортированными по маркам. Между элементами (пачками) ограждения должны быть проложены деревянные прокладки толщиной не менее 30 мм на расстоянии не более 1 м.

Указания по производству работ
СНиП 3.03.01-87 п. 3.3 ЛЖП альбом 24-НТ-4 Ленжилпроекта

Монтаж лестничных маршей и площадок разрешается производить только после приемки опорных элементов, включающей геодезическую проверку соответствия их планового и высотного положения с составлением геодезической исполнительной схемы.

С целью обеспечения устойчивости лестничной клетки и связи ее с диском перекрытия монтаж лестничных конструкций разрешается производить только после полного заполнения смежных пролетов плитами перекрытия.

Наименьшая высота ограждений лестничных маршей и площадок должна составлять:

- в жилых зданиях - 850 мм;

- в общественных зданиях - 900 мм;

- в детских садах-яслях - 1350 мм.

Наибольшая величина просвета между элементами ограждений:

- в жилых и общественных зданиях - 140 мм;

- в детских садах-яслях- 100 мм.

Укладку ступеней следует производить после приварки косоуров к площадочным балкам. Ступени укладывают, начиная с нижней фризовой. Ширина площадок должна быть не менее ширины марша и не менее 120 см, а площадок, на которые открываются двери лифта, - не менее 160 см.

Высота проходов под лестничными площадками и маршами должна быть в чистоте не менее 2 м.

Устройство стропильной системы из деревянных элементов

Состав операций и средства контроля

Этапы работ

Контролируемые операции

Контроль (метод, объем)

Документация

Подготовительные работы

Проверить:

 

Паспорт (сертификат), общий журнал работ; акт освидетельствования скрытых работ

- наличие документа о качестве на деревянные изделия;

Визуальный

- качество и размеры элементов;

Измерительный

- обработку древесины антисептиком и антипиренами;

Визуальный

- наличие болтовых и гвоздевых соединений в соответствии с типовыми чертежами;

Технический осмотр

- соответствие геометрических размеров собираемых ферм, затяжку болтов проектным;

То же

- наличие изоляции под мауэрлатом, соответствие отметок проектным.

Визуальный, измерительный

Устройство стропильной системы

Контролировать:

 

Общий журнал работ

- наличие врубки конца стропильной ноги в мауэрлат, изоляции конца ноги рубероидом;

Визуальный

- наличие прокладки из обрезной доски под стойками и подкосами;

То же

- вертикальность ферм, расстояния между фермами и отметки конька;

Измерительный, каждый элемент

- наличие анкеровки концов ног к стенам и ветровых связей.

Визуальный

Приемка выполненных работ

Проверить:

 

Акт приемки выполненных работ

- фактическое положение установленной стропильной системы;

Визуальный, измерительный

- внешний вид элементов.

Визуальный

Контрольно-измерительный инструмент: рулетка металлическая, отвес, нивелир, линейка.

Операционный контроль осуществляют: мастер (прораб), геодезист - в процессе работ.

Приемочный контроль осуществляют: работники службы качества, мастер (прораб), представители технадзора заказчика.

Технические требования
СНиП 3.03.01-87 п. 5.7, табл. 24

Допускаемые отклонения:

- в расстояниях между осями конструкций - ±20 мм;

- конструкций от вертикали - ±0,5% высоты элементов;

- по длине конструкций - ±20 мм;

- по высоте конструкций и опор - ±10 мм;

- глубины врубок - ±2 мм;

- в размерах поперечных сечений - ±2,0 мм;

- конька и свеса обрешетки от прямой линии - 10 мм;

- в расстояниях между центрами гвоздей со стороны забивки в гвоздевых соединениях - ±2 мм;

- в расстояниях между центрами рабочих болтов в соединениях относительно проектных:

- для входных отверстий - ±2 мм;

- для входных отверстий поперек волокон - 2% толщины пакета, но не более 5 мм;

- то же вдоль волокон - 4% толщины пакета, но не более 10 мм;

- неплотности в стыках врубок не должны превышать 1 мм;

Зазор между обрешеткой и стропилами от дымовых труб и вентиляционных блоков - не менее 130 мм.

Расстояние между брусками обрешетки (по осям) - по проекту и не более 250 мм.

Требования к качеству применяемых материалов

ГОСТ 2695-83*. Пиломатериалы лиственных пород. Технические условия.

ГОСТ 8486-86*Е. Пиломатериалы хвойных пород. Технические условия.

ГОСТ 11047-90. Детали и изделия деревянные для малоэтажных жилых и общественных зданий. Технические условия.

Элементы стропильной системы изготовляются из хвойных и лиственных пород.

Качество древесины должно соответствовать требованиям 1, 2 и 3 сортов:

- сучки допускаются в количестве 3 шт. на однометровом участке длины, размером не более 30 мм;

- трещины несквозные длиной не более 1/2 длины, при влажности материала не более 22%.

- влажность древесины должна быть не более 18% (измеряется влагомером).

Каждая партия элементов стропильной системы должна сопровождаться документом о качестве, в котором указывается:

- наименование предприятия-изготовителя;

- название изделия и номер стандарта;

- размер, порода древесины, влажность;

- количество элементов в партии;

- дата изготовления.

При транспортировании в открытых транспортных средствах и хранении элементы стропильной системы должны быть защищены от атмосферных осадков и загрязнений.

Древесина элементов стропильной системы должна быть антисептирована и пропитана огнезащитными составами.

Указания по производству работ
СНиП 3.03.01-87 пп. 5.2, 5.3, 5.4, 5.5, 5.6

Сборные несущие элементы деревянных конструкций предприятию-изготовителю следует поставлять на строительную площадку комплектно, вместе с деталями, необходимыми для выполнения проектных соединений, - накладками, крепежными болтами, затяжками, подвесками, стяжными муфтами, элементами связей и т. п., обеспечивающими возможность монтажа объекта захватками с устройством кровли.

При выполнении работ по складированию, перевозке, хранению и монтажу деревянных конструкций следует учитывать их специфические особенности:

- необходимость защиты от длительных атмосферных воздействий, в связи с чем при производстве работ следует предусматривать, как правило, монтаж здания по захваткам, включающий последовательное возведение несущих конструкций, ограждающих конструкций и кровли в короткий срок;

- минимальное возможное число операций по кантовке и перекладыванию деревянных конструкций в процессе погрузки, выгрузки и монтажа.

Конструкции или их элементы, обработанные огнезащитными составами на основе солей, следует хранить в условиях, предотвращающих конструкции от увлажнения и вымывания солей.

Несущие деревянные конструкции зданий надлежит монтировать в максимально укрупненном виде: в виде полурам и полуарок, полностью собранных арок, ферм, секций или блоков, включая покрытия и кровлю.

Установку накладок в коньковых узлах конструкций надлежит производить после достижения плотного примыкания стыкуемых поверхностей по заданной площади.

К монтажу конструкций в сборных элементах следует приступать только после подтяжки всех металлических соединений и устранения дефектов, возникающих при транспортировании и хранении.

При контакте деревянных конструкций с кирпичной кладкой, грунтом, монолитным бетоном и т. п. до начала монтажа необходимо выполнить предусмотренные проектом изоляционные работы.

Стропильные фермы должны поступать на объект в полусобранном виде с постановкой всех болтов в соответствии с типовыми чертежами. Конструкции ферм должны иметь хорошо видимую маркировку. Крепление концов стропильных ног к стенам (через одну) производится проволокой (скрученной) диаметром 4-6 мм.

Гвозди при встречной забивке не должны пробиваться через пакет насквозь. Если проектом предусмотрена сквозная пробивка, концы гвоздей следует загибать поперек волокон.

Ремонт штукатурки

Состав операций и средства контроля

Этапы работ

Контролируемые операции

Контроль (метод, объем)

Документация

Подготовительные работы

Проверить:

 

Акт приемки выполненных работ, акт освидетельствования скрытых работ, проект, общий журнал работ, паспорт

- окончание строительно-монтажных, сантехнических (кроме приборов) и электромонтажных работ;

Визуальный, измерительный

- обивку металлической сеткой мест сопряжения конструкций из различных материалов, оконопатку коробок и перегородок;

То же

- соответствие конструкций проекту, вертикальность и горизонтальность поверхностей;

- » -

- очистку поверхности от грязи, пыли масел;

Визуальный

- наличие паспорта на поступивший раствор и его качество;

То же

- установку съемных марок и маяков;

Измерительный

- влажность степ и температуру воздуха (в зимнее время).

То же

Штукатурные работы

Контролировать:

 

Общий журнал работ

- качество штукатурного раствора;

Лабораторный контроль

- среднюю толщину обрызга, фунта, налета;

Визуальный, измерительный

- вертикальность, горизонтальность, прямолинейность штукатурного слоя;

То же

- радиусы кривизны поверхности;

Измерительный

- ширину откосов;

То же

- качество поверхности штукатурки.

Визуальный

Приемка выполненных работ

Проверить:

 

Акт приемки выполненных работ

- прочность сцепления штукатурки с основанием;

Технический осмотр

- качество оштукатуренной поверхности.

Измерительный

Контрольно-измерительный инструмент: отвес строительный, линейка металлическая, рейка-правило, лекало.

Операционный контроль осуществляют: мастер (прораб), лаборант (инженер) - в процессе работ.

Приемочный контроль осуществляют: работники службы качества, мастер (прораб), представители технадзора заказчика.

Технические требования
СНиП 3.04.01-87 пп. 3.12, 3.21. табл. 9, 10

Допускаемые отклонения:

Толщина однослойной штукатурки, мм:

- из гипсовых растворов - 15;

- из других видов растворов - до 20.

Влажность кирпичных и каменных поверхностей при оштукатуривании - не более 8%.

Не допускаются:

- отслоения штукатурки, трещины, раковины, высолы;

- следы затирочного инструмента.

Допустимые отклонения

Вид штукатурки

простая, мм

улучшенная, мм

высококачественная, мм

поверхности от вертикали на 1 м длины

5

3

2

на всю высоту помещения не более

15

10

5

оконных и дверных откосов, пилястр, столбов, лузг и т. п. от вертикали и горизонтали (мм на 1 м)

4

2

1

радиуса криволинейных поверхностей, проверяемого лекалом, от проектной величины (на весь элемент) не должны превышать

10

7

5

поверхности от горизонтали на 1 м длины

3

2

1

ширины откоса от проектной

5

3

2

тяг от прямой линии в пределах между углами

6

3

2

неровности поверхностей плавного очертания (на 4 м2) не более

3 шт.

2 шт.

2 шт.

глубиной (высотой) до

5

3

2

Требования к качеству применяемых материалов

ГОСТ 28013-98. Растворы строительные. Общие технические условия.

СНиП 3.04.01-87. Изоляционные и отделочные покрытия.

Поставленные на строительную площадку штукатурные растворы должны соответствовать следующим техническим требованиям:

- проходить через сетку с размерами ячеек:

- растворы для обрызга и грунта - 3 мм;

- растворы для накрывочного слоя и однослойных покрытий - 1,5 мм;

- подвижность в пределах - 5¸12 см;

- расслаиваемость - не более 15%;

- водоудерживающая способность - не менее 90%;

- прочность - по проекту.

Штукатурный раствор должен приготовляться на песке с модулем крупности от 1 до 2; не содержать зерен размером свыше 2,5 мм в растворах для обрызга и грунта и свыше 1,25 мм - для отделочных слоев.

Штукатурный раствор должен сопровождаться документом о качестве, в котором должны быть указаны:

- дата и время (часы, мин.) приготовления смеси;

- марка раствора, вид вяжущего;

- количество смеси;

- подвижность смеси;

- обозначение стандарта.

Доставленная на строительную площадку штукатурная растворная смесь должна быть разгружена в перегружатель-смеситель или в другие емкости при условии сохранения заданных свойств растворной смеси.

Указания по производству работ

Поврежденную штукатурку деревянных конструкций, а при необходимости и дрань, полностью удаляют, поверхности тщательно очищают от пыли и остатков раствора. При толщине штукатурных наметов на вертикальных поверхностях до 30 мм и на горизонтальных до 25 мм деревянные поверхности должны обиваться штукатурной дранью с размерами ячеек в свету 15´45 мм, а участки, из которых необходимо нанести больший по толщине намет, обтягиваться прочным плетением или металлической сеткой.

Места сопряжений отштукатуриваемых конструкций, выполненных из разных материалов, обивают металлической сеткой на 40-50 мм по обе стороны стыка.

Места примыкания старой штукатурки к новой, а также поверхность прочного грунта перед оштукатуриванием должны быть насечены и смочены водой.

Трещины в штукатурке следует расчищать на полную глубину, промывать водой, после чего заполнять раствором с тщательной затиркой.

Консистенция штукатурных растворов для обрызга должна соответствовать погружению конуса СтройЦНИИЛа на 80-120 мм, для грунта - на 60-80 мм, для накрывки - на 70-90 мм. Растворы для обрызга и грунта следует процеживать через сетку № 3, а для накрывки - через сетку № 1.

Толщина слоя обрызга при оштукатуривании деревянных поверхностей должна быть не более 9 мм, каменных и бетонных - 5 мм.

Толщина каждого слоя грунта не должна превышать 9 мм при известковых и известково-алебастровых растворах и 5 мм при цементных растворах (проверяется контрольным вскрытием). Каждый слой грунта сразу же после нанесения должен быть разровнен и уплотнен.

Толщина слоя накрывки после разравнивания и затирки должна составлять 2 мм.

Фактура новой штукатурки должна соответствовать фактуре старой. Свежеоштукатуренные поверхности следует предохранять от чрезмерно быстрой сушки, ударов, сотрясений, загрязнений и намокания.

Штукатурные работы могут производиться при температуре не ниже 5 °С (на высоте не более 0,5 м от пола). Температура не ниже 5 °С должна поддерживаться после окончания работ в течение 15 дней (до снижения влажности штукатурки до 6%).

Ремонт штукатурки фасадов зданий

Состав операций и средства контроля

Этапы работ

Контролируемые операции

Контроль (метод, объем)

Документация

Подготовительные работы

Проверить:

- заполнение оконных и дверных проемов;

 

Технический осмотр

Общий журнал работ, паспорт

- наличие документа о качестве на поступивший раствор и его качество;

Визуальный

- очистку поверхности стен от отслоившейся штукатурки, выступивших солей;

То же

- установку съемных марок и маяков;

- » -

- влажность стен и температуру воздуха (в зимнее время).

Измерительный

Штукатурные работы

Контролировать:

 

Общий журнал работ

- качество штукатурного раствора;

Лабораторный контроль

- среднюю толщину обрызга, фунта, намета;

Визуальный, измерительный

- отклонения откосов, пилястр, столбов и т. д. от вертикали;

Измерительный

- качество поверхности штукатурки.

Визуальный

Приемка выполненных работ

Проверить:

- прочность сцепления штукатурных слоев с основанием;

 

Технический осмотр

Акт приемки выполненных работ

- соответствие качества оштукатуренной поверхности требованиям проекта и СНиП.

Измерительный

Контрольно-измерительный инструмент: отвес строительный, линейка металлическая, рейка-правило, лекало.

Операционный контроль осуществляют: мастер (прораб), лаборант (инженер).

Приемочный контроль осуществляют: работники службы качества, мастер (прораб), представители технадзора заказчика.

Технические требования
СНиП 3.04.01-87 табл. 9

Допускаемые отклонения:

- неровности поверхности новой штукатурки при накладывании 2-метровой рейки:

- при простой штукатурке - не более 3 неровностей глубиной или высотой до 5 мм

- поверхности от вертикали при простой штукатурке - 3 мм, но не более 15 мм на этаж;

- лузг, усёнков, оконных и дверных откосов, пилястр, столбов - 10 мм на весь элемент.

Указания по производству работ
СНиП 3.04.01-87 пп. 3.4, 3.7-3.10

Подготовка поверхности фасадов зданий состоит из следующих операций:

- очистки поверхности от старых известковых, силикатных и др. окрасочных покрытий;

- отбивки непрочной штукатурки;

- обработки недостаточно шероховатых поверхностей;

- покрытия металлической сеткой с ячейками размером 10´10 мм или плетением из проволоки с ячейками размером не более 40´40 мм (необходимые архитектурные детали).

При оштукатуривании поверхности фасадов нанесение каждого последующего слоя штукатурного намета допускается только после схватывания.

При ремонте фасадов толщина декоративного слоя для раствора:

- с мелкозернистым наполнителем (при слабом рельефе штукатурки) - 4-6 мм;

- со среднезернистым - 6-8 мм;

- с крупнозернистым - 8-10 мм.

Декоративный слой наносят в два приема. При сильно рельефных штукатурках с накрывочным слоем 15-18 мм раствор наносят в три приема.

Окраска фасадов

Состав операций и средства контроля

Этапы работ

Контролируемые операции

Контроль (метод, объем)

Документация

Подготовительные работы

Проверить:

- наличие документа о качестве на окрасочные составы и шпатлевки;

 

Визуальный

Сертификат, паспорт, общий журнал работ

- акты приемки ранее выполненных работ;

То же

- температуру воздуха;

Измерительный

- подготовленность поверхности (отсутствие повреждений, высолов, сырых, ржавых и смолистых пятен);

Визуальный

- качество выполнения огрунтовки, шпатлевки.

Измерительный

Окраска фасадов

Контролировать:

 

Общий журнал работ

- соответствие погодных условий (температуру воздуха, скорость ветра);

Визуальный, измерительный

- соблюдение технологических режимов и последовательности нанесения слоев красок;

Визуальный

- однотонность фактуры;

То же

- ровность линий закраски в сопряжениях поверхностей, окрашеваемых в разные цвета.

- » -

Приемка выполненных работ

Проверить:

- качество окрашенных поверхностей, в т. ч. отсутствие полос, пятен, потеков, морщин, просвечивание нижележащих слоев краски, ровность линий закраски в сопряжениях поверхностей, окрашиваемых в разные цвета;

 

Визуальный

Акт приемки выполненных работ

- соответствие цвета фасада образцам колеров.

То же

Контрольно-измерительный инструмент: рулетка металлическая, линейка, влагомер, термометр.

Операционный контроль осуществляют: мастер (прораб).

Приемочный контроль осуществляют: работники службы качества, мастер (прораб), представители технадзора заказчика.

Технические требования
СНиП 3.04.01-87 п. 3.12, табл. 9

Допускаемые отклонения:

- поверхности от плоскости при проверке 2-метровой рейкой - 3 мм;

- поверхности и двугранных углов от вертикали:

на 1 м - 2 мм;

на этаж - 5 мм;

- зазоры между поверхностью и оконными или дверными наличниками, а также поясами архитектурных членений - 10 мм;

- влажности поверхности:

бетонных, оштукатуренных или прошпатлеванных - до появления капельно-жидкой влаги на поверхности; деревянных поверхностей - не более 12%;

- толщины слоев малярного покрытия - не менее 25 Мкм;

- искривлений линий в местах сопряжений поверхностей, окрашенных в различные цвета:

для простой окраски - 5 мм;

для улучшенной окраски - 2 мм;

- искривлений линий филенок и закраска поверхностей при применении разных колеров - 1 мм на 1 м длины.

Приемку малярных работ необходимо производить после высыхания водных красок.

Поверхности после высыхания водных составов должны быть однотонными, местные исправления, выделяющиеся на общем фоне (кроме простой окраски), не должны быть заметны на расстоянии 3 м от поверхности.

Не допускается производить окраску фасадов:

- в сухую и жаркую погоду при температуре воздуха в тени +27 °С и выше и при прямом воздействии солнечных лучей;

- во время дождя или по сырому фасаду после дождя;

- при ветре, скорость которого превышает 10 м в секунду;

- без подготовки поверхности.

Требования к качеству применяемых материалов

ГОСТ 18958-73. Краски силикатные.

ГОСТ 28196-89*. Краски водно-дисперсионные. Технические условия.

ГОСТ 19279-73. Краски полимерцементные.

Краски должны поставляться партиями. За партию принимают количество одной марки и цвета краски, полученной за один технологический цикл и сопровождаемой документом о качестве, в котором должны быть указаны:

- наименование предприятия-изготовителя и его товарный знак;

- наименование, марка и цвет материала;

- масса нетто;

- номер партии;

- дата изготовления;

- обозначение нормативно-технической документации;

- результаты проведенных испытаний и подтверждение о соответствии материалов требованиям нормативных документов;

- вид тары и количество единиц упаковок в партии;

- указания об особых свойствах материала (пожаровзрывоопасность, токсичность).

Краски упаковывают в бочки деревянные, фляги, бочки стальные, банки металлические, полиэтиленовые бидоны различной емкости.

Краски хранят и транспортируют при температуре выше 0 °С. Гарантийный срок хранения красок - 6 месяцев со дня изготовления.

Указания по производству работ
СНиП 3.04.01-87 п. 3.12

Перед началом работ по окраске фасадов следует проверить исправность кровли, металлических покрытий, водосточных труб, желобов, воронок и др. Стены должны быть очищены от непрочной и отстающей штукатурки. Поверхности с прочной штукатуркой должны быть очищены от старых известковой, силикатной и непрочной масляной красок. Отремонтированные участки штукатурки должны быть тщательно притерты в стыках со старой штукатуркой без накладывания на нее нового раствора. Фактура новой штукатурки должна соответствовать старой. Все трещины расшивают на ширину и глубину не менее 2 см, промывают водой и затирают штукатурным раствором.

Грунтовка, шпатлевка и окраска фасадов может производиться при температуре не ниже +5 °С.

Окраску следует производить непрерывными полосами по вертикали и горизонтали до какого-либо членения фасада. Край следующей полосы должен перекрывать предыдущую на 30-50 мм. Перерывы в окраске допускаются только по границам архитектурных членений фасада.

Окрашенная поверхность должна быть однотонной и тщательно растушеванной по всей поверхности фасада, без пятен, полос, затеков, морщин, шелушения и подкрасок.

Установка лепных деталей фасадов

Состав операций и средства контроля

Этапы работ

Контролируемые операции

Контроль (метод, объем)

Документация

Подготовительные работы

Проверить:

- лицевые поверхности лепных изделий соответственно проекту;

 

Визуальный

Сертификат, паспорт; общий журнал работ

- защиту деталей (декора от атмосферных воздействий);

То же

- насечку и очистку поверхности;

- » -

- влажность поверхности штукатурки;

- » -

- разметку мест установки;

Измерительный:

- наличие заложенной в конструкцию стен арматуры.

Визуальный

Установка изделий

Контролировать:

 

Общий журнал работ

- наклейку изделий или навешивание их, прикрепление деталей;

Визуальный

- заделку и зачистку швов, стыков, мелких дефектов;

То же

- отсутствие переломов в местах соединения соседних элементов;

- » -

- совпадение плоскостей элементов сомкнутого рельефа;

- » -

- горизонтальность и вертикальность лепных деталей;

Измерительный

- смещение осей отдельно стоящих крупных деталей.

То же

Приемка выполненных работ

Проверить:

- фактическое положение установленных лепных деталей;

 

Визуальный, измерительный

Акт приемки выполненных работ

- внешний вид элементов.

Визуальный

Контрольно-измерительный инструмент: рулетка металлическая, отвес, линейка, уровень.

Операционный контроль осуществляют: мастер (прораб).

Приемочный контроль осуществляют: работники службы качества, мастер (прораб), представители технадзора заказчика.

Технические требования
СНиП 3.04.01-87 табл. 15

Допускаемые отклонения:

- от горизонтали и вертикали на 1 м погонных лепных изделий - 1 мм;

- смещение осей отдельно стоящих крупных деталей от заданного положения - 10 мм.

Не допускается:

- очищать с лепных деталей старые набелы окраски металлическим инструментом;

- устанавливать лепные гипсовые детали в помещениях с эксплуатационной влажностью более 60%;

- крепить лепные детали мастикой, содержащей гипс, к бетонным поверхностям и к плоскостям, оштукатуренным цементным раствором.

Указания по производству работ
СНиП 3.04.01-87 пп. 3.20, 3.67, табл. 15

К работам по ремонту лепных деталей или установке новых разрешается приступать только после окончания общестроительных и специальных работ, производство которых может привести к порче лепных изделий. На фасадах зданий исправление и замена лепных деталей производятся после того, как будут отремонтированы настенные желоба, свесы кровли и покрыты карнизы, пояса и сандрики.

Лепные детали для наружных частей зданий должны изготавливаться из цементных растворов. Применение наружных гипсовых деталей разрешается при условии надежной защиты их от воздействия атмосферных осадков водостойкими покрытиями (олифой, парафином и др.).

На лицевой поверхности заранее изготовленных лепных изделий не должно быть раковин, изломов, трещин и наплывов раствора. Части сомкнутого рельефа должны находиться в одной плоскости. Заделанные стыки изделий не должны быть заметны.

Установка лепных изделий на оштукатуренные поверхности должна производиться только после затвердения и просушки штукатурки.

При установке сборных карнизов не должно быть заметных для глаза переломов в местах соединения соседних элементов. Рисунок и размер восстанавливаемых или изготавливаемых вновь деталей должны полностью совпадать с сохранившимися старыми деталями.

Металлические части крепления должны быть предохранены от коррозии или оцинкованы.

При надстройке фасадов или их перекладке лепные детали устанавливают одновременно с кладкой стен.

Ремонт оставшихся на фасаде старых гипсовых изделий в зимних условиях должен производиться гипсом, затворенным на подогретой воде. Во избежание «омоложения» гипса температура воды не должна превышать 30 °С.

Установка водосточных труб

Состав операций и средства контроля

Этапы работ

Контролируемые операции

Контроль (метод, объем)

Документация

Подготовительные работы

Проверить:

- наличие документов о качестве заготовок;

 

Визуальный

Сертификат, паспорт, общий журнал работ

- проверка комплектности, маркировки и качества заготовок;

То же

- вертикальность разметки;

Визуальный, измерительный

- прочность установки штырей с ухватами, шаг креплений штырей.

То же

Монтаж водосточных труб

Контролировать:

 

Общий журнал работ

- высоту крепления выпускного колена и угол наклона;

Измерительный

- монтаж стыков труб;

Визуальный

- крепление звеньев труб хомутами;

То же

- правильность соединения воронки с лотком и крепление к свесу;

- » -

- грунтовка, равномерность окраски.

- » -

Приемка выполненных работ

Проверить:

- фактическое положение установленных водосточных труб, правильность соединения воронки с лотком;

 

Визуальный, измерительный

Акт приемки выполненных работ

- внешний вид элементов.

Визуальный

Контрольно-измерительный инструмент: рулетка металлическая, линейка, шаблон, отвес.

Операционный контроль осуществляют: мастер (прораб).

Приемочный контроль осуществляют: работники службы качества, мастер (прораб), представители технадзора заказчика.

Технические требования
СНиП 3.04.01-87 п. 2.46, табл. 7

Допускаемые отклонения:

- участков труб от вертикали на 1 м - 10 мм;

- водосточные трубы на фасаде должны навешиваться строго вертикально, отступать от стены на 120 мм и прикрепляться к стене через 1200 мм штырями, забитыми в стену на глубину 110 мм с ухватами;

- входное отверстие отмета должно располагаться не выше 400 мм и не ниже 200 мм над уровнем тротуара (отмостки).

Не допускаются:

- обход выступающих частей фасада при помощи колен;

- крепление водосточных труб проволокой.

Указания по производству работ
СНиП 3.04.01-87 п. 2.46, табл. 7

Стыки в трубах выполняют по стоку воды, вдвигая звенья одно в другое до валика жесткости трубы.

Водосточные трубы из неоцинкованной стали после ремонта или устройства должны быть окрашены масляными красками или нитрокраской по химически стойкой эмалевой краске ДП.

Перед окраской новые звенья должны быть огрунтованы олифой, а старые звенья очищены от ржавчины и проолифлены в местах отслоений старой краски.

Часть 3 МОНТАЖНЫЕ РАБОТЫ

Устройство отверстий и борозд для прокладки трубопроводов

Состав операций и средства контроля

Этапы работ

Контролируемые операции

Контроль (метод, объем)

Документация

Подготовительные работы

Проверить:

 

Проект, общий журнал работ

- правильность разметки отверстий и борозд;

Технический осмотр

- соответствие размеров проекту.

Измерительный

Устройство отверстий и борозд

Контролировать:

 

Общий журнал работ

- соблюдение технологических процессов;

Визуальный

 

- правильность размеров отверстий и борозд, соответствие проекту.

Измерительный

Приемка выполненных работ

Проверить:

 

Акт освидетельствования скрытых работ

- фактические размеры отверстий и борозд.

Технический осмотр

Контрольно-измерительный инструмент: нивелир, рулетка, линейка металлическая, отвес.

Операционный контроль осуществляют: мастер (прораб).

Приемочный контроль осуществляют: работники службы качества, мастер (прораб), представители технадзора заказчика.

Технические требования
СНиП 3.05.01-85 п. 1.5, прилож. 5

Допускаемые отклонения:

Размеры отверстий в фундаментах зданий и сооружений для вводов и выпусков наружных сетей должны быть не менее:

- теплоснабжения - 600´400 мм;

- водопровода и канализации - 400´400 мм. После прокладки трубопроводов отверстия в перекрытиях, стенах и перегородках должны быть заделаны.

Размеры отверстий и борозд для прокладки трубопроводов в перекрытиях, стенах и перегородках зданий и сооружений принимаются в соответствии с рекомендуемыми в таблице, если другие размеры не предусмотрены проектом.

Назначение трубопровода

Размер, мм

отверстия

борозды для скрытой прокладки

ОТОПЛЕНИЕ:

 

 

 

Стояк однотрубной системы

100´100

130

130

Два стояка двухтрубной системы

150´100

200

130

Подводка к приборам и сцепки

100´100

60

60

Главный стояк

200´200

200

200

Магистраль

250´300

-

-

ВОДОПРОВОД И КАНАЛИЗАЦИИ

 

 

 

Водопроводный стояк:

 

 

 

один

100´100

130

130

два

200´100

200

130

Один водопроводный стояк и один канализационный стояк диаметром, мм:

 

 

 

50

250´150

250

130

100; 150

350´200

350

200

Один канализационный стояк диаметром, мм:

 

 

 

50

150´150

200

130

100; 150

200´200

250

250

Два водопроводных стояка и один канализационный стояк диаметром, мм:

 

 

 

50

200´150

250

130

100; 150

320´200

380

250

Три водопроводных стояка и один канализационный стояк диаметром, мм:

 

 

 

50

450´150

350

130

100; 150

500´200

480

250

Подводка водопроводная:

 

 

 

одна

100´100

60

60

две

100´200

-

-

Подводка канализационная, магистраль водопроводная

200´200

-

-

Канализационный коллектор

230´300

-

-

Монтаж чугунных напорных трубопроводов

Состав операций и средства контроля

Этапы работ

Контролируемые операции

Контроль (метод, объем)

Документация

Подготовительные работы

Проверить:

- наличие документа о качестве на материалы;

 

Визуальный

Паспорта (сертификаты), общий журнал работ

- проверка отметок, ширины подготовки основания, наличие приямков под раструбами;

Измерительный, технический осмотр

- выполнение очистки основания от мусора, грязи.

Визуальный

Монтаж трубопроводов

Контролировать:

- качество опирания труб на всем своем протяжении на основании;

 

Технический осмотр

Общий журнал работ

- правильность прокладки трубопровода согласно проекта;

Измерительный

- уклоны укладываемых труб;

То же

- соблюдение технологии монтажа и выполнения уплотнения стыков.

Измерительный, технический осмотр

Приемка трубопроводов

Проверить:

 

Общий журнал работ Акт испытания трубопроводов. Акт освидетельствования скрытых работ

- качество выполненных работ;

Измерительный, технический осмотр

- испытание трубопроводов;

То же

- соответствие засыпки трубопроводов проекту.

 

Контрольно-измерительный инструмент: нивелир, уровень строительный, линейка металлическая, плотномер ГРПТ-2.

Операционный контроль осуществляют: мастер (прораб), геодезист - в процессе выполнения

Приемочный контроль осуществляют: работники службы качества, мастер (прораб), представители технадзора заказчика.

Технические требования
СНиП 3.05.04-85* пп. 3.6, 3.45, 3.46, табл. 1

Величину зазора между упорной поверхностью раструба и торцом соединительной трубы (независимо от материала заделки стыка) следует принимать для труб диаметром:

- до 300 мм - 5 мм;

- свыше 300 мм - 8-10 мм.

Размеры элементов заделки стыкового соединения чугунных напорных труб, должны соответствовать величинам, приведенным в таблице.

Условный диаметр труб, мм

Глубина заделки, мм

при применении пеньковой пряди

при устройстве замка

при применении только герметика

65-200

35

30

50

240-400

45

30-35

60-65

600-1000

50-60

40-50

70-80

Максимальные отклонения от проектного положения осей напорных трубопроводов не должны превышать +100 мм в плане, а отметок верха +30 мм.

Требования к качеству применяемых материалов

ГОСТ 6942-98 Трубы чугунные канализационные и фасонные части к ним. Общие технические условия.

Размеры элементов раструбного соединения:

До - диаметр условного прохода;

Дн - диаметр наружной цилиндрической части;

Др - диаметр внутреннего раструба;

Дт - диаметр внутреннего раструба под резиновое

Р - по длине мерной трубы;

L - по глубине раструба;

С - толщина стенки.

Раструбное соединение по манжету.

Условный проход До

Дн

Др

Дт

Р

L

С

100

118

131

137

9,5

80

28

150

170

183

189

9,5

85

30

200

222

235

241

9,5

85

32

300

326

339

346

10,0

95

36

400

429

442

449

10,0

100

40

Допускаемые отклонения устанавливаются:

а) по длине мерной трубы и соединительной части в соответствии с таблицей.

Вид отливки

Условный проход, мм

Допускаемые отклонения, мм

Трубы раструбные

Все диаметры

±20

Соединительные части с раструбами, с фланцами и раструбом, с фланцем и гладким концом

до 450

свыше 450

±20

+20; -30

Фланцевые трубы и соединительные трубы с фланцами

Все диаметры

±10

б) по толщине стенки трубы (С) - (1 + 0,005 С) мм;

в) по толщине стенки соединительной части (C1) - (2 + 0,05 С1) мм;

г) по внутреннему диаметру раструба (Дв) - ±(1,5 + 0,001 До) мм;

д) по глубине раструба (L):

- при До до 600 мм вкл. - ±5 мм;

- при До свыше 600 мм - ±10 мм.

Указания по производству работ
СНиП 3.05.04-85* пп. 3.7, 3.9, 3.12, 3.44

Прокладка напорных трубопроводов по пологой кривой без применения фасонных частей допускается для раструбных труб со стыковыми соединениями на резиновых уплотнителях с углом поворота на каждом стыке не более чем на 2° для труб с условным диаметром до 600 мм и не более чем на 1° для труб условным диаметром свыше 600 мм.

При прокладке трубопроводов на прямолинейном участке трассы соединяемые концы смежных труб должны быть отцентрированы так, чтобы ширина раструбной щели была одинаковой по всей окружности.

Монтаж труб следует осуществлять с уплотнением раструбных соединений пеньковой смоляной или битуминизированной прядью и устройством асбоцементного замка, или только герметиком, или резиновыми манжетами, поставляемыми в комплекте с трубами без устройства замка.

Для заделки (уплотнения) стыковых соединений трубопроводов следует применять уплотнительные и "замковые" материалы, а так же герметики согласно проекту.

Монтаж напорных трубопроводов из асбестоцементных труб

Состав операций и средства контроля

Этапы работ

Контролируемые операции

Контроль (метод, объем)

Документация

Подготовительные работы

Проверить:

 

Паспорта (сертификаты), общий журнал работ

- наличие документа о качестве на материалы;

Визуальный

- проверка отметок, ширины подготовки основания, наличие приямков под раструбами;

Измерительный, технический осмотр

- выполнение очистки основания от мусора, грязи.

Визуальный

Монтаж трубопроводов

Контролировать:

 

Общий журнал работ

- качество опирания труб на всем своем протяжении на основании;

Технический осмотр

- правильность прокладки трубопровода согласно проекта;

Измерительный

- уклоны укладываемых труб;

То же

- соблюдение технологии монтажа и выполнения уплотнения стыков.

Измерительный, технический осмотр

Приемка трубопроводов

Проверить:

 

Общий журнал работ

Акт испытания трубопроводов.

Акт освидетельствования скрытых работ

- качество выполненных работ;

Измерительный, технический осмотр

- испытание трубопроводов;

То же

- соответствие засыпки трубопроводов проекту.

-»-

Контрольно-измерительный инструмент: нивелир, уровень строительный, линейка металлическая, плотномер ГРПТ-2, влагомер ПHHB-1.

Операционный контроль осуществляют, мастер (прораб), геодезист - в процессе выполнения работ.

Приемочный контроль осуществляют: работники службы качества, мастер (прораб), представители технадзора заказчика.

Технические требования
СНиП 3.05.04-85* пп. 3.6, 3.45, 3.46, табл. 1

Величину зазора торцами соединяемых труб следует принимать для труб диаметром:

- до 300 мм - 5 мм;

- свыше 300 мм - 10 мм;

Максимальные отклонения от проектного положения осей напорных трубопроводов не должны превышать +100 мм в плане, а отметок верха + 30 мм.

Требования к качеству применяемых материалов

ГОСТ 539-80* Трубы и муфты асбестоцементные напорные. Технические условия.

Трубы и муфты не должны иметь трещин, обломов, расслоений.

Концы труб и внутренняя поверхность муфт должны быть обточены. На обточенных поверхностях труб не должно быть сдиров и вмятин.

Трубы должны быт прямыми. Отклонение от прямолинейности труб не должно превышать следующих величин, для труб длиной:

2950 и 3950 мм - 12 мм;

5000 мм - 18 мм;

5950 мм - 24 мм.

Торцы труб должны быть чисто обрезаны, перпендикулярно к оси трубы и обработаны под конус под углом 20-25°. Длина конусной части должна быть для труб с условным проходом:

- 100-150 мм - 6-10 мм;

- 200 мм - 12-18 мм.

В сопряжении внутренней поверхности труб и торцов допускаются закругления или фаски не более 5 мм.

Трубы должны поставляться комплектно с муфтами и резиновыми кольцами по спецификации заказчика.

Допускается наличие в полученной партии не более 3% укороченных труб, При этом длина таких труб условным проходом 100 и 150 мм должна быть не менее 2 м, а длина труб условным проходом 200 мм и более - не менее 3 м.

Трубы и муфты должны храниться в штабелях уложенными на ровную площадку по диаметрам трубы в горизонтальном положении, а муфты - в вертикальном положении.

Указания по производству работ
СНиП 3.05.04-85** пп. 3.11, 3.48, 3.49, 3.50

Резиновые уплотнители для монтажа трубопроводов в условиях низких температур наружного воздуха не допускается применять в промороженном состоянии.

Перед началом монтажа трубопроводов на концах соединяемых труб в зависимости от длины применяемых муфт следует сделать отметки, соответствующие начальному положению муфты до монтажа стыка и конечному - в смонтированном стыке.

Соединение асбестоцементных труб с арматурой или металлическими трубами следует осуществлять с помощью чугунных фасонных частей или стальных сварных патрубков и резиновых уплотнителей.

После окончания монтажа каждого стыкового соединения необходимо проверить правильность расположения муфт и резиновых уплотнителей в них, а также равномерность затяжки фланцевых соединений чугунных муфт.

Монтаж трубопроводов внутреннего холодного и горячего водоснабжения

Состав операций и средства контроля

Этапы работ

Контролируемые операции

Контроль (метод, объем)

Документация

Подготовительные работы

Проверить:

 

Общий журнал работ, сертификаты, паспорта

- наличие документов о качестве;

Визуальный

- соответствие применяемых материалов проекту, стандартам и техническим условиям.

Визуальный, технический осмотр

- подготовку мест для прокладки трубопроводов.

Технический осмотр

Монтаж трубопроводов

Контролировать:

 

Общий журнал работ

- качество соединения трубопроводов;

Технический осмотр

- качество крепления трубопроводов;

Визуальный, измерительный

- вертикальность трубопроводов;

Измерительный

- расстояние от поверхности стены до оси трубопроводов.

То же

Приемка выполненных работ

Проверить:

 

Акт приемки выполненных работ

- соответствие фактического положения смонтированных трубопроводов требованиям проекта;

Технический осмотр, измерительный

- качество соединения трубопроводов и их крепление.

То же

Контрольно-измерительный инструмент: штангенциркуль, отвес, рулетка металлическая, уровень строительный.

Операционный контроль осуществляют: мастер (прораб).

Приемочный контроль осуществляют: работники службы качества, мастер (прораб), представители технадзора заказчика.

Технические требования
СНиП 3.05.01-85 пп. 3.2-3.5, 3.7, табл. 2

Вертикальные трубопроводы не должны отклоняться от вертикали более чем на 2 мм на 1 м длины.

Разъемные соединения трубопроводов, а также арматура, ревизии и прочистки должны располагаться в местах, доступных для обслуживания.

Расстояние от поверхности штукатурки или облицовки до оси неизолированных трубопроводов при открытой прокладке должно составлять при диаметре условного прохода:

- до 32 мм включительно - от 35 до 55 мм;

- при 40-50 мм - от 50 до 60 мм;

- при более чем 50 мм - по проекту.

Расстояние от трубопроводов и отопительных приборов с температурой теплоносителя выше 105 °С до конструкции зданий и сооружений из горючих (сгораемых) материалов должно быть не менее 100 мм.

Средства крепления стояков из стальных труб в жилых и общественных зданиях при высоте этажа до 3 м не устанавливаются; более 3 м - устанавливаются на половине высоты этажа.

Средства крепления стояков в производственных зданиях следует устанавливать через 3 м.

Подводки к отопительным приборам при длине более 1,5 м должны иметь крепление.

Допускаемые расстояния между средствами крепления стальных трубопроводов на горизонтальных участках указаны в таблице.

Диаметр условного прохода, мм

Наибольшее расстояние между средствами крепления трубопроводов, м

неизолированных

изолированных

15

20

25

32

40

50

70, 80

100

125

150

2,5

3

3,5

4

4,5

5

6

6

7

8

1,5

2

2

2,5

3

3

4

4,5

5

6

Не допускается:

- расположение средств крепления в местах соединения трубопроводов;

- заделка креплений с помощью деревянных пробок;

- приварка трубопроводов к средствам крепления;

- примыкание неизолированных трубопроводов систем отопления, теплоснабжения, внутреннего холодного и горячего водоснабжения к поверхности строительных конструкций.

Требования к качеству применяемых материалов

ГОСТ 3262-75*. Трубы стальные водогазопроводные. Технические условия.

Предельные отклонения по размерам труб не должны превышать указанные в таблице.

Размер труб

Предельное отклонение для труб точности изготовления

обычной

повышенной

Наружный диаметр с условным проходом:

 

 

до 40 мм включительно

+0,4 мм, -0,5 мм

±0,4 мм

свыше 40 мм

+0,8 мм, -1,0 мм

±0,8 мм

Толщина стенки

-15%

-10%

Предельные отклонения по массе труб не должны превышать +8%.

Кривизна труб на 1 м длины не должна превышать:

- 2 мм с условным проходом до 20 мм включительно;

- 1,5 мм с условным проходом свыше 20 мм.

Указания по производству работ
СНиП 3.05.01-85 пп. 3.1, 3.9, 3.10

Разъемные соединения на трубопроводах следует выполнять у арматуры и там, где это необходимо по условиям сборки трубопроводов.

Разъемные соединения трубопроводов, а также арматура, ревизии и прочистки должны располагаться в местах, доступных для обслуживания.

Испытания изолируемых трубопроводов следует осуществлять до нанесения изоляции.

Системы отопления, теплоснабжения, внутреннего холодного и горячего водоснабжения, трубопроводы котельных по окончании их монтажа должны быть промыты водой до выхода ее без механических взвесей.

Промывка систем хозяйственно-питьевого водоснабжения считается законченной после выхода воды, удовлетворяющей требованиям ГОСТ 2874-82. Питьевая вода.

Монтаж железобетонных и бетонных безнапорных трубопроводов

Состав операций и средства контроля

Этапы работ

Контролируемые операции

Контроль (метод, объем)

Документация

Подготовительные работы

Проверить:

- наличие документа о качестве на материалы;

 

Визуальный

Паспорта (сертификаты), общий журнал работ

- проверка отметок, ширины подготовки основания, наличие приямков под раструбами;

Измерительный, технический осмотр

- выполнение очистки основания от мусора, грязи.

Визуальный

Монтаж трубопроводов

Контролировать:

 

Общий журнал работ

- качество опирания труб на всем своем протяжении на основании;

Технический осмотр

- правильность прокладки трубопровода согласно проекта;

Измерительный

- уклоны укладываемых труб;

То же

- соблюдение технологии монтажа и выполнения уплотнения стыков.

Измерительный, технический осмотр

Приемка трубопроводов

Проверить:

 

Общий журнал работ. Акт испытания трубопроводов. Акт освидетельствования скрытых работ

- качество выполненных работ;

Измерительный, технический осмотр

- испытание трубопроводов;

То же

- соответствие засыпки трубопроводов проекту.

-»-

Контрольно-измерительный инструмент: нивелир, уровень строительный, линейка металлическая, плотномер ГРПТ-2, влагомер ПННВ-1.

Операционный контроль осуществляют: мастер (прораб), геодезист - в процессе выполнения.

Приемочный контроль осуществляют: работники службы качества, мастер (прораб), представители технадзора заказчика.

Технические требования
СНиП 3.05.04-85* пп. 3.6, 3.51, 3.45, 3.46, табл. 1

Величину зазора торцами соединяемых труб следует принимать для труб диаметром:

- до 700 мм - 8-12 мм;

- свыше 700 мм - 15-18 мм.

Размеры элементов заделки стыкового соединения железобетонных и бетонных безнапорных труб должны соответствовать величинам, приведенным в таблице.

Условный диаметр труб, мм

Глубина заделки, мм

при применении пеньковой или сизальской пряди

при устройстве замка

при применении только герметика

100-150

25 (35)

25

35

200-250

40 (50)

40

40

400-600

50(60)

50

50

800-1600

55 (65)

55

70

2400

70 (80)

70

95

Максимальные отклонения от проектного положения отметок лотков безнапорных труб не должны превышать +5 мм.

Требования к качеству применяемых материалов

ГОСТ 12586.0-83*. Трубы напорные железобетонные виброгидропрессованные.

Отклонения фактических размеров труб типов РТ, РТП, ФТ и ФТП. Технические условия.

Диаметр условного перехода

Предельные отклонения от проектных размеров, мм

наружный диаметр раструба

внутренний диаметр раструба

глубина раструба

400-600

±4

±4

±5

800-1600

±5

±5

±5

То же, для типов РТБ, РТС, РТПБ, РТПС.

Диаметр условного перехода

Предельные отклонения от проектных размеров, мм

наружный диаметр раструба

внутренний диаметр раструба

глубина раструба

400-600

±2

±2

±3

800-1600

±3

±3

±3

Наружная и внутренняя поверхность труб должна удовлетворять требованиям:

- не допускаются трещины на внутренней и наружной поверхности труб;

- раковины, наплывы и сколы бетона на внутренней поверхности глубиной (высотой) не более 3 мм и длиной и шириной не более 20 мм.

Указания по производству работ
СНиП 3.05.04-85* пп. 3.3, 3.4, 3.5, 3.9, 3.12, 3.52, 3.54

Монтаж трубопроводов должен производиться в соответствии с проектом производства работ и технологическими картами после проверки соответствия проекту размеров траншеи, крепления стенок, отметок дна и при надземной прокладке - опорных конструкций. Результаты проверки должны быть отражены в журнале производства работ.

Трубы раструбного типа безнапорных трубопроводов следует, как правило, укладывать вверх по уклону.

Предусмотренную проектом прямолинейность участков безнапорных трубопроводов между смежными колодцами следует контролировать просмотром на свет с помощью зеркала до и после засыпки траншеи. При просмотре трубопровода круглого сечения видимый в зеркале круг должен иметь правильную форму.

Допустимая величина отклонения от формы круга по горизонтали должна составлять не более 1/4 диаметра трубопровода, но не более 50 мм в каждую сторону. Отклонения от правильной формы круга по вертикали не допускаются.

При прокладке трубопроводов на прямолинейном участке трассы соединяемые концы смежных труб должны быть отцентрированы так, чтобы ширина раструбной щели была одинаковой по всей окружности.

Для заделки (уплотнения) стыковых соединений трубопроводов следует применять уплотнительные и «замковые» материалы, а так же герметики согласно проекту.

Стыковые соединения труб, поставляемых без резиновых колец, следует уплотнять пеньковой смоляной или битумизированной прядью с заделкой замка асбестоцементной смесью, а так же полисульфидными (тиоколовыми) герметиками.

Зазоры между упорной поверхностью раструбов и торцами труб в трубопроводах диаметром 1000 мм и более следует изнутри заделывать цементным раствором. Марка цемента определяется проектом.

Соединение железобетонных и бетонных труб с трубопроводной арматурой и металлическими трубами следует осуществлять с помощью стальных вставок или железобетонных фасонных соединительных частей, изготовленных согласно проекту.

Монтаж канализационных трубопроводов из керамических труб

Состав операций и средства контроля

Этапы работ

Контролируемые операции

Контроль (метод, объем)

Документация

Подготовительные работы

Проверить:

- наличие документа о качестве на материалы;

 

Визуальный

Паспорта (сертификаты), общий журнал работ

- проверка отметок, ширины подготовки основания, наличие приямков под раструбами;

Измерительный, технический осмотр

- выполнение очистки основания от мусора, грязи.

Визуальный

Монтаж трубопроводов

Контролировать:

- качество опирания труб на всем своем протяжении на основании;

 

Технический осмотр

Общий журнал работ

- правильность прокладки трубопровода согласно проекта;

Измерительный

- уклоны укладываемых труб;

То же

- соблюдение технологии монтажа и выполнения уплотнения стыков.

Измерительный, технический осмотр

Приемка трубопроводов

Проверить:

 

Общий журнал работ Акт испытания трубопроводов. Акт освидетельствования скрытых работ

- качество выполненных работ;

Измерительный, технический осмотр

- испытание трубопроводов;

То же

- соответствие засыпки трубопроводов проекту.

 

Контрольно-измерительный инструмент: нивелир, уровень строительный, линейка металлическая, плотномер ГРПТ-2.

Операционный контроль осуществляют: мастер (прораб), геодезист- в процессе выполнения работ.

Приемочный контроль осуществляют: работники службы качества, мастер (прораб), представители технадзора заказчика.

Технические требования
СНиП 3.05.04-85* пп. 3.6, 3.55, 3.56, табл. 3

Величину зазора упорной поверхностью раструба и торцом соединительной трубы следует принимать (независимо от материала заделки) для труб диаметром:

- до 300 мм - 5-7 мм;

- свыше 300 мм - 8-10 мм.

Размеры элементов заделки стыкового соединения керамических труб должны соответствовать величинам, приведенным в таблице.

Диаметр условного прохода, мм

Глубина заделки, мм

при применении пеньковой или сизальской пряди

при устройстве замка

при применении только герметика или битумной мастики

150-300

30

30

40

350-600

30

35

45

Максимальные отклонения от проектного положения отметок лотков безнапорных труб не должны превышать - ±5 мм.

Требования к качеству применяемых материалов

ГОСТ 286-82 Трубы керамические канализационные. Технические условия.

Трубы на наружной стороне конца ствола и на внутренней стороне раструба должны иметь нарезку не менее чем из пяти канавок глубиной не менее 2 мм.

Внутренний диаметр и овальность ствола раструба труб не должны превышать значений предельных отклонений от размеров их диаметров:

для труб диаметром:

150-200 мм - ±7 мм;

250 мм - ±9 мм;

300 мм - ±10 мм;

350-550 мм - ±11 мм;

600 мм - ±12 мм.

Предельные отклонения по длине - ±20 мм

Предельные отклонения раструбов труб - ±5 мм.

Отклонение по толщине стенок ствола трубы и раструба допускается - ±4 мм.

Отклонения от прямолинейности труб на 1 м ствола не должно превышать для труб диаметром:

- 150-250 мм - 11 мм;

- 350-600 мм - 9 мм.

Трубы при простукивании молотком массой 200 г должны издавать чистый не дребезжащий звук.

Допускаются участки, не покрытые глазурью:

- на внутренней поверхности 1% от площади; 5% на наружной поверхности.

Отбитости на торцах труб с внутренней и наружной стороны не должны превышать:

- по глубине 1/3 толщины стенки;

- по длине 2/3 для раструба и 1/2 длины нарезки ствола.

Указания по производству работ
СНиП 3.05.04-85* пп. 3.3, 3.4, 3.5, 3.9, 3.12, 3.56, 3.57

Монтаж трубопроводов должен производиться в соответствии с проектом производства работ и технологическими картами после проверки соответствия проекту размеров траншеи, крепления стенок, отметок дна и при надземной прокладке - опорных конструкций. Результаты проверки должны быть отражены в журнале производства работ.

Трубы раструбного типа безнапорных трубопроводов следует, как правило, укладывать вверх по уклону.

Предусмотренную проектом прямолинейность участков безнапорных трубопроводов между смежными колодцами следует контролировать просмотром на «свет» с помощью зеркала до и после засыпки траншеи. При просмотре трубопровода круглого сечения видимый в зеркале круг должен иметь правильную форму.

Допустимая величина отклонения от формы круга по горизонтали должна составлять не более 1/4 диаметра трубопровода, но не более 50 мм в каждую сторону. Отклонения от правильной формы круга по вертикали не допускаются.

При прокладке трубопроводов на прямолинейном участке трассы соединяемые концы смежных труб должны быть отцентрированы так, чтобы ширина раструбной щели была одинаковой по всей окружности.

Для заделки (уплотнения) стыковых соединений трубопроводов следует применять уплотнительные и «замковые» материалы, а так же герметики согласно проекту.

Стыковые соединения керамических труб, поставляемых без резиновых колец, следует уплотнять пеньковой смоляной и битумизированной прядью с последующим устройством замка из цементного раствора, асфальтовой (битумной) мастикой и полисульфидными (тиоколовыми) герметиками, если другие материалы не предусмотрены проектом.

Зазоры между упорной поверхностью раструбов и торцами труб в трубопроводах диаметром 1000 мм и более следует изнутри заделывать цементным раствором. Марка цемента определяется проектом.

Соединение железобетонных и бетонных труб с трубопроводной арматурой и металлическими трубами следует осуществлять с помощью стальных вставок или железобетонных фасонных соединительных частей, изготовленных согласно проекту.

Монтаж системы внутренней канализации и водостока

Состав операций и средства контроля

Этапы работ

Контролируемые операции

Контроль (метод, объем)

Документация

Подготовительные работы

Проверить:

 

Сертификаты(паспорта), общий журнал работ

- наличие документов о качестве материалов, изделии;

Визуальный

- соответствие применяемых материалов, изделий проекту, стандартам и техническим условиям;

То же

- подготовку мест для прокладки внутренней канализации и водостока.

Технический осмотр

Монтаж трубопроводов

Контролировать:

 

Общий журнал работ

- качество заделки стыков;

Технический осмотр каждого стыка

- качество крепления трубопроводов и расстояния между креплениями;

Визуальный, измерительный

- вертикальность трубопроводов;

Измерительный

- направление раструбов и заделку концов трубопроводов во время перерыва в работе.

Визуальный

Приемка выполненных работ

Проверить:

 

Акт приемки выполненных работ

- соответствие фактического положения смонтированных трубопроводов и узлов требованиям проекта;

Технический осмотр, измерительный

- выполнение требований проекта и нормативных документов к качеству выполнения соединения труб.

Технический осмотр

Контрольно-измерительный инструмент: отвес, рулетка металлическая, уровень строительный.

Входной и операционный контроль осуществляют: мастер (прораб).

Приемочный контроль осуществляют: работники службы качества, мастер (прораб), представители заказчика.

Указания к производству работ
СНиП 3.05.01-85 пп. 3.1, 3.12, 3.17

Разъемные соединения трубопроводов, а также арматура, ревизии и прочистки должны располагаться в местах, доступных для обслуживания.

Раструбы труб и фасонных частей (кроме двухраструбных муфт) должны быть направлены против движения воды.

В период монтажа открытые концы трубопроводов и водосточные воронки необходимо временно закрывать инвентарными заглушками.

До испытания систем канализации в сифонах в целях предохранения их от загрязнения должны быть вывернуты нижние пробки, а у бутылочных сифонов - стаканчики.

Технические требования
СНиП 3.05.01-85 пп. 3.4, 3.6

Допускаемые отклонения:

- канализационные стояки не должны отклоняться от вертикали более чем на 2 мм на 1 м длинны;

- высота подъема канализационного стояка выше кровли здания не менее 0,7 м;

- расстояния между средствами крепления:

- при горизонтальной прокладке труб - не более 2 м;

- для стояков - одно крепление на этаж, но не более 3 м.

Средства крепления следует располагать под раструбами. Минимальные уклоны отводов канализации:

- от унитазов - 1,2%;

- от писсуаров, ванн, умывальников, раковин - 2,5%.

Высота установки санитарных приборов от пола, мм.

 

В жилых, общественных и производственных зданиях

В школах, детских садах и яслях

Умывальники (до верха борта)

800

700 (в детских садах 600)

Раковины и мойки(до верха борта)

850

850

Высокорасполагаемые смывные бачки к унитазам (до низа бачка)

1800

1800

Писсуары настенные (до борта)

650

450

Унитазы (до верха борта)

400

400 (в детских садах 300)

Ванны (до борта)

600-650

-

Питьевые фонтанчики (до борта)

900

750 (в детских садах 650)

Полотенцесушители:

 

 

до низа не менее

600

-

до верха не более

1700

 

В детских яслях и садах в помещениях для детей младшего возраста расстояние от пола до борта умывальника принимается 0,5 м

 

 

Не допускается:

- расположение средств крепления в местах соединения труб;

- заделка креплений с помощью деревянных пробок.

Установка водоразборной арматуры

Состав операций и средства контроля

Этапы работ

Контролируемые операции

Контроль (метод, объем)

Документация

Подготовительные работы

Проверить:

 

Сертификаты(паспорта), общий журнал работ

- наличие документа о качестве водоразборной арматуры;

Визуальный

- соответствие применяемых материалов проекту, стандартам и техническим условиям;

То же

- подготовку мест для установки водоразборной арматуры.

Технический осмотр

Установка водоразборной арматуры

Контролировать:

 

Общий журнал работ

- качество заделки стыков при установке арматуры;

Технический осмотр каждого стыка

- качество крепления трубопроводов и расстояния между креплениями;

Визуальный, измерительный

- вертикальность трубопроводов;

Измерительный

- направление раструбов и заделку концов трубопроводов во время перерыва в работе;

Визуальный

- крепление санитарных приборов;

Визуальный, технический осмотр

- высоту установки санитарных приборов от уровня чистого пола.

Измерительный

Приемка выполненных работ

Проверить:

 

Общий журнал работ

- соответствие фактического положения смонтированных трубопроводов и узлов требованиям проекта;

Технический осмотр, измерительный

- выполнение требований проекта и нормативных документов к качеству выполнения соединения труб.

Технический осмотр

Контрольно-измерительный инструмент: линейка металлическая, отвес, рулетка металлическая, уровень строительный.

Входной и операционный контроль осуществляют: мастер (прораб).

Приемочный контроль осуществляют: работники службы качества, мастер (прораб), представители технадзора заказчика.

Технические требования
СНиП 3.05.01-85 пп. 3.4, 3.6

Допустимые отклонения:

- при установке арматуры - ±20 мм.

Высота установки кранов от уровня чистого пола, мм:

- водоразборных кранов в банях, смывных кранов унитазов, смесителей моек в общественных и лечебных учреждениях, смесителей для ванн - 800;

- смесителей для видуаров с косым выпуском - 800;

- то же, с прямым выпуском - 1000;

- смесителей и моек клеенок в лечебных учреждениях, смесителей общих ванн и умывальников - 1100;

- кранов для мытья полов в туалетных комнатах общественных зданий - 600;

- смесителей для душа - 1200.

Высоту установки водоразборной арматуры (расстояние от горизонтальной оси арматуры до санприборов) следует принимать:

- водоразборных кранов и смесителей от бортов раковин - на 250 мм;

- от бортов моек на 200 мм;

- туалетных кранов и смесителей от бортов умывальников - на 200 мм.

Высота установки кранов для раковин со спинками, имеющими отверстия для кранов, а также для моек и умывальников с настольной арматурой определяется конструкцией прибора.

Указания к производству работ
СНиП 3.05.01-85 пп. 3.1, 3.12, 3.17

Разъемные соединения трубопроводов, а также арматура, ревизии и прочистки должны располагаться в местах, доступных для обслуживания.

В период монтажа открытые концы трубопроводов и водосточные воронки необходимо временно закрывать инвентарными заглушками.

До испытания систем канализации в сифонах в целях предохранения их от загрязнения должны быть вывернуты нижние пробки, а у бутылочных сифонов - стаканчики.

Установка ванны и умывальника

Состав операций и средства контроля

Этапы работ

Контролируемые операции

Контроль (метод, объем)

Документация

Подготовительные работы

Проверить:

 

Паспорта (сертификаты), акт приемки выполненных работ, журнал работ

- наличие документов о качестве на сан. приборы;

Визуальный

- качество ванн и умывальников;

Технический

- готовность помещений для выполнения санитарно-технических работ;

То же

- разметку мест установки ванн кронштейнов под умывальники.

Визуальный, измерительный

Установка ванны и умывальника

Контролировать:

 

Журнал работ, акты на скрытые работы

- правильность установки ванны с подключением к канализации;

Визуальный, измерительный

- правильность установки кронштейнов под умывальники;

То же

- установку умывальников с присоединением их к канализации;

- » -

- установку водоразборной арматуры.

Визуальный

Приемка выполненных работ

Проверить:

 

Акт приемки выполненных работ

- качество установки ванн и умывальников;

Визуальный

- качество установки водоразборной арматуры.

Измерительный

Контрольно-измерительный инструмент: металлический метр, строительный уровень.

Операционный контроль осуществляют: мастер (прораб).

Приемочный контроль осуществляют: работники службы качества, мастер (прораб), представители технадзора заказчика.

Технические требования
СНиП 3.05.01-85 пп. 3.11, 3.15, табл.3

Допускаемые отклонения:

Высота установки умывальника (расстояние от уровня чистого пола до верха борта) при установке - 850 мм, допускаемое отклонение - +20 мм.

Высота установки душевых сеток (от низа сетки до уровня чистого пола) - 2100-2250 мм, допускаемое отклонение - ±20 мм.

Ванны, устанавливаемые на ножках, должны иметь:

- горизонтальное положение бортов;

- уклон дна к отверстию для выпуска не менее 0,02%;

- расстояние от нижней кромки отверстия до пола не менее 145 мм.

Требования к качеству применяемых материалов

ГОСТ 1153-76*. Кронштейны для умывальников и моек. Технические условия.

ГОСТ 18297-96. Приборы санитарно-технические. Технические условия.

ГОСТ 23695-94. Приборы санитарно-технические стальные эмалированные. Технические условия.

ГОСТ 30493-96. Изделия санитарные керамические. Основные типы, размеры.

Ванны должны иметь четыре прилива для крепления ножек и по два прилива, расположенных на наружной поверхности днища ванны или под ее бортом в ребрах жесткости, со стороны слива, или по две ножки, залитые в корпус под бортом ванны в процессе ее отливки, стальные, сечением не менее 24 мм2, для присоединения электрических потенциалов между корпусом ванны и металлической водопроводной трубой.

Поверхности выпусков и переливов в ваннах должны быть ровными, без наплывов эмали.

Коробление бортов ванн (отклонение бортов от горизонтальной и вертикальной поверхностей) не должно превышать значений, мм, для ванн длиной:

- 1200 мм - 2,4;

- 1500 мм - 3,0;

- 1700 мм - 3,4;

- 1800 мм - 3,6.

Отклонение габаритных размеров умывальников, а также других размеров более 50 мм не должно превышать +2,5% и -3,0%.

Деформация (коробление) поверхности умывальника в плоскости, прилегающей к стене, не должна превышать 2 мм.

Умывальники должны выдерживать нагрузку не менее 150 кгс.

Санитарные приборы, узлы и детали для них должны транспортироваться в контейнерах или пакетах и иметь сопроводительную документацию. К каждому контейнеру и пакету должна быть прикреплена табличка с маркировкой упакованных узлов.

Указания по производству работ
СНиП 3.05.01-85 пп. 1.4, 3.17

Общестроительные и санитарно-технические работы следует выполнять в санитарных узлах в следующей последовательности:

- подготовка под полы, оштукатуривание стен и потолков, устройство маяков для установки трапов;

- установка средств крепления, прокладка трубопроводов и проведение их гидростатического или монометрического испытания;

- гидроизоляция перекрытий;

- огрунтовка стен, устройство чистых полов;

- установка ванн, кронштейнов под умывальники и деталей крепления;

- первая окраска стен и потолков, облицовка плитками;

- установка умывальников, унитазов, смывных бачков;

- вторая окраска стен и потолков;

- установка водоразборной арматуры.

До испытаний системы канализации в сифонах в целях предохранения их от загрязнения должны быть вывернуты нижние пробки, а у бутылочных сифонов - стаканчики.

Корпус ванны и трубы водопровода для уравнивания электрических потенциалов необходимо соединять специальным металлическим проводником.

Установка санитарных приборов

Состав операций и средства контроля

Этапы работ

Контролируемые операции

Контроль (метод, объем)

Документация

Подготовительные работы

Проверить:

 

Паспорта (сертификаты), акт приемки выполненных работ, журнал работ

- наличие документов о качестве на сан. приборы;

Визуальный

- качество керамических унитазов, писсуаров и моек;

Технический

- готовность помещений для выполнения санитарно-технических работ;

То же

- разметку мест установки писсуаров и унитазов кронштейнов под мойки.

Визуальный, измерительный

Установка унитазов,

писсуаров и моек

Контролировать:

 

Журнал работ, акты на скрытые работы

- правильность установки унитазов и писсуаров с подключением их к канализации;

Визуальный, измерительный

- правильность установки кронштейнов под мойки;

То же

- установку моек с присоединением их к канализации;

- » -

- установку водоразборной арматуры.

Визуальный

Приемка выполненных работ

Проверить:

 

Акт приемки выполненных работ

- качество установки писсуаров, унитазов и моек;

Визуальный

- качество установки водоразборной арматуры.

Измерительный

Контрольно-измерительный инструмент: металлический метр, строительный уровень.

Операционный контроль осуществляют: мастер (прораб).

Приемочный контроль осуществляют: работники службы качества, мастер (прораб), представители технадзора заказчика.

Технические требования
СНиП 3.05.01-85 п. 3.15, табл. 3

Допускаемые отклонения:

- высоты установки санитарных приборов:

- для отдельно стоящих - ±20 мм;

- для группы однотипных - ±5 мм.

Санитарные приборы должны быть установлены по отвесу и уровню. Высота установки санитарных приборов от уровня чистого пола должна соответствовать размерам, указанным в таблице.

№ пп

Санитарные приборы

Высота установки от уровня чистого пола, мм

в жилых, общественных и промышленных зданиях

в школах

1

Умывальники (до верха борта)

800

700

2

Раковины, мойки (до верха борта)

850

850

3

Высокорасполагаемые смывные бачки к унитазам (до низа бачка)

1800

1800

4

Писсуары настенные (до борта)

650

450

5

Смывные трубы к лотковым писсуарам (от дна лотка до оси трубы)

1500

1500

6

Питьевые фонтанчики подвесного типа (до борта)

900

750

Требования к качеству применяемых материалов

ГОСТ 15167-93. Изделия санитарные керамические. Общие технические условия.

ГОСТ 18297-96. Приборы санитарно-технические чугунные эмалированные. Общие технические условия.

ГОСТ 30493-96. Изделия санитарные керамические. Основные типы, размеры.

Писсуары керамические настенные (фаянсовые, полуфарфоровые или фарфоровые) предназначены для установки в туалетах общественных или промышленных зданий.

Писсуары изготавливают трех типов:

1) писсуар с цельноотливным керамическим сифоном;

2) писсуар без цельноотливного керамического сифона;

3) писсуар удлиненный с цельноотливным керамическим сифоном.

Писсуары типов 1 и 3 должны поставляться с установленными в сифонах латунными или пластмассовыми пробками, а писсуары типа 2 должны поставляться в комплекте с чугунными, пластмассовыми или латунными сифонами.

Бачок смывной керамический с верхним пуском, с непосредственным присоединением к унитазу поставляется в комплекте с поплавковым клапаном, спускной арматурой и резиновой прокладкой для установки между бачком и унитазом.

Бачок смывной керамический с боковым пуском, с непосредственным присоединением к унитазу поставляется заводами-изготовителями в комплекте.

Заводы-изготовители комплектуют каждый умывальник выпуском, сифоном (двухоборотным или бутылочным) и кронштейнами.

Умывальники керамические (фаянсовые, полуфарфоровые и фарфоровые) предназначаются для установки в жилых, общественных и производственных зданиях.

Полукруглые, овальные и прямоугольные умывальники изготовляются пяти величин: первой, второй, третьей, четвертой и пятой.

Унитазы керамические (фаянсовые, полуфарфоровые и фарфоровые) предназначены для установки в санитарных узлах зданий различного назначения.

Унитазы изготовляются тарельчатые, козырьковые, с цельноотливными или приставными полочками для присоединения высоко- и низкорасположенных смывных бачков с прямыми или косыми (под углом 60°) выпусками.

Указания по производству работ
СНиП 3.05.01-85 пп. 1.4, 3.13, 3.14, 3.16

Общестроительные и санитарно-технические работы следует выполнять в санитарных узлах в следующей очередности:

- подготовка под полы, оштукатуривание стен и потолков, устройство маяков для установки трапов;

- установка средств крепления, прокладка трубопроводов и проведение их гидростатического или манометрического испытания;

- гидроизоляция перекрытий;

- огрунтовка стен, устройство чистых полов;

- установка ванн, кронштейнов под умывальники и деталей крепления смывных бачков;

- первая окраска стен и потолков, облицовка плитками;

- установка умывальников, унитазов и смывных бачков;

- вторая окраска стен и потолков;

- установка водоразборной арматуры.

К деревянным конструкциям санитарные приборы следует крепить шурупами.

Выпуск унитаза следует соединять непосредственно с раструбом отводной трубы или с отводной трубой с помощью чугунного, полиэтиленового патрубка или резиновой муфты.

Раструб отводной трубы под унитаз с прямым выпуском должен быть установлен заподлицо с полом.

Унитазы следует крепить к полу шурупами или приклеивать клеем. При креплении шурупами под основание унитаза следует устанавливать резиновую прокладку.

Приклеивание должно производиться при температуре воздуха в помещении не ниже 5 °С.

Для достижения необходимой прочности приклеенные унитазы должны выдерживаться без нагрузки в неподвижном положении до набора прочности клеевого соединения не менее 12 ч.

В бытовых помещениях общественных и промышленных зданий установку группы умывальников следует предусматривать на общей подставке.

Монтаж системы внутреннего отопления

Состав операций и средства контроля

Этапы работ

Контролируемые операции

Контроль (метод, объем)

Документация

Подготовительные работы

Проверить:

- наличие документов о качестве изделия;

 

Визуальный

Сертификаты (паспорта), журнал работ

- соответствие применяемых материалов проекту, стандартам и техническим условиям;

Визуальный, технический осмотр

- подготовку мест для прокладки трубопроводов, установки отопительных приборов;

Визуальный

- сборку секций чугунных радиаторов.

То же

Монтаж трубопроводов Монтаж отопительных приборов

Контролировать:

- качество соединений трубопроводов и их крепление;

 

Технический осмотр

Общий журнал работ

- уклоны подводок к отопительным приборам;

Измерительный

- вертикальность трубопроводов;

То же

- расстояние от поверхности стены до оси трубопроводов, от прокладываемого стояка до кромки оконного проема и длины подводок к отопительным приборам;

- » -

- число и способ крепления кронштейнов под отопительные приборы;

Визуальный

- расстояние установки отопительных приборов от пола, стены, подоконных досок и т. д.

Измерительный

Приемка выполненных работ

Проверить:

- соответствие фактического положения смонтированных трубопроводов и отопительных приборов требованиям проекта;

 

Технический осмотр, измерительный

Акт приемки выполненных работ

- выполнение требований проекта и нормативных документов к качеству выполнения соединения труб, крепежу отопительных приборов.

Технический осмотр

Контрольно-измерительный инструмент: штангенциркуль, отвес, рулетка металлическая, уровень строительный.

Входной и операционный контроль осуществляют: мастер (прораб).

Приемочный контроль осуществляют: работники службы качества, мастер (прораб), представители технадзора заказчика.

Технические требования
СНиП 3.05.01-85 пп. 3,18, 3.20, 3.23- 3.25, 3.27

Уклоны подводок к радиаторам - от 5 до 10 мм на длину подводки в сторону движения теплоносителя.

При длине подводки до 500 мм уклон труб не выполняется.

В однотрубной системе отопления с односторонним присоединением отопительных приборов открыто прокладываемый стояк должен быть расположен на расстоянии 150±50 мм от кромки оконного проема, а длина подводок должна быть не более 400 мм.

Радиаторы всех типов устанавливаются на расстояниях не менее:

- от пола - 60 мм;

- от нижней поверхности подоконных досок (при отсутствии доски - от низа оконного проема) - 50 мм;

- от поверхности штукатурки стен - 25 мм.

В помещениях лечебно-профилактических и детских учреждений радиаторы устанавливаются на расстоянии не менее:

- от пола - 100 мм;

- от поверхности стены - 60 мм.

Число кронштейнов - не менее 3 на радиатор (кроме радиаторов в две секции). Кронштейны следует устанавливать под шейки радиаторов. Число подставок под радиаторы:

2 - при числе секций до 10;

3 - при числе секций более 10.

При этом верх радиатора должен быть закреплен.

Указания по производству работ
СНиП 3.05.01-85 пп. 2.2, 2.3, 3.20, 3.27

Соединение стальных труб, а также деталей и узлов в из них следует выполнять на сварке, резьбе, накидных гайках и фланцах (к арматуре и оборудованию).

Оцинкованные стальные трубы, узлы и детали должны соединяться, как правило, на резьбе.

При открытой прокладке трубопроводов расстояние от поверхности ниши до отопительных приборов должно обеспечивать возможность прокладки подводок по прямой линии.

При установке радиатора под окном его край со стороны стояка не должен выходить за пределы оконного проема.

Совмещение вертикальных осей симметрии радиатора и оконного проема не обязательно.

Повороты трубопроводов следует выполнять путем изгиба труб или применения бесшовных приваренных отводов из углеродистой стали по ГОСТ 17375-2001.

Радиус изгиба труб с условным проходом:

- до 40 мм включительно должен быть не менее 2,5 D (нар.);

- 50 мм и более - не менее 3,5 D (нар.).

Кронштейны под отопительные приборы следует крепить к бетонным стенам дюбелями, а к кирпичным стенам - дюбелями или заделкой кронштейнов цементным раствором марки не ниже 100 на глубину не менее 100 мм (без учета толщины слоя штукатурки).

Монтаж металлических воздуховодов

Состав операций и средства контроля

Этапы работ

Контролируемые операции

Контроль (метод, объем)

Документация

Подготовительные работы

Проверить:

- наличие документов о качестве материалов, изделий;

 

Визуальный

Сертификаты (паспорта), общий журнал работ

- соответствие применяемых изделий проекту, стандартам и техническим условиям;

Технический осмотр

- подготовку мест для прокладки воздуховодов;

Визуальный, измерительный

- соединение отдельных секций воздуховодов.

Технический осмотр

Монтаж металлических воздуховодов

Контролировать:

 

Общий журнал

- установку средств крепления воздуховодов;

- соединение воздуховодов между собой;

Технический осмотр То же

- вертикальность и горизонтальность воздуховодов;

Измерительный

- подключение воздуховодов к оборудованию.

Визуальный

Приемка выполненных работ

Проверить:

- соответствие фактического положения смонтированных воздуховодов требованиям проекта;

 

Технический осмотр

Акт приемки выполненных работ

- качество выполнения соединения воздуховодов.

То же

Контрольно-измерительный инструмент: штангенциркуль, отвес, рулетка металлическая, уровень строительный.

Входной и операционный контроль осуществляют: мастер (прораб).

Приемочный контроль осуществляют: работники службы качества, мастер (прораб), представители технадзора заказчика.

Технические требования
СНиП 3.05.01-85 пп. 3.34, 3.35, 3.38-3.40

Участки воздуховодов следует монтировать с уклоном 0,01-0,015 в сторону дренирующих устройств.

Отклонение воздуховодов от вертикали - не более 2 мм на 1 м длины воздуховода.

Расстояние между креплениями (хомуты, подвески, опоры) горизонтальных неизолированных воздуховодов:

- на бесфланцевом соединении:

- при D, А или Б до 400 мм - не более 4 м;

- при D, А или Б ³ 400 мм - не более 3 м;

- на фланцевом соединении при D, А или Б до 2 м - не более 6 м, где D - диаметр воздуховода; А, Б - размеры сторон воздуховода.

Расстояние между креплениями изолированных воздуховодов - по проекту.

Расстояние между креплениями вертикальных воздуховодов - не более 4 м (при высоте этажа до 4 м крепления следует выполнять в междуэтажных перекрытиях, при высоте этажа более 4 м - по проекту).

Не допускается:

- передача веса воздуховодов на вентиляционное оборудование;

- крепление растяжек и подвесок к фланцам воздуховодов.

Требования к материалам воздуховода

СНиП 3.05.01-85. Внутренние санитарно-технические системы.

Воздуховоды и детали вентиляционных систем должны быть изготовлены в соответствии с рабочей документацией.

Толщина стенок воздуховодов круглого сечения должна быть, мм:

- при диаметре 100; 125; 140; 160; 180; 200 - 0,5;

- при диаметре 225; 250; 280; 315; 355; 400; 450 - 0,6;

- при диаметре 500; 560; 630; 710; 800 - 0,7;

- при диаметре 900; 1000; 1120; 1250; 1400; 1600 - 1,0;

- при диаметре 1800; 2000 - 1,4.

Допускаемые отклонения наружных размеров поперечных сечений воздуховодов не должны превышать величины, указанные в таблице 1.

Таблица 1

Диаметр, мм

Размер стороны воздуховода прямолинейного сечения, мм

Отклонение, мм

100-250

100-250

-3,0

280-500

300-500

-4,0

560-1250

600-1200

-6,0

1400-2000

1600-2000

-7,0

Овальность воздуховодов круглого сечения не должна превышать величины, указанные в таблице 2.

Таблица 2

Наружный диаметр, мм

Овальность, мм

100-250

5

280-500

10

560-1250

15

1400-2000

25

Отклонение от плоскости стенок воздуховодов прямоугольного сечения не должно превышать величины, указанные в таблице 3.

Таблица 3

Наружный размер стороны поперечного сечения прямоугольного воздуховода, мм

Отклонение от плоскости, мм

100-250

5

300-500

10

600-1200

15

1600-2000

20

Воздуховоды, предусмотренные для соединения на бандажах, рейках или иных бесфланцевых соединениях, должны иметь на торцевых сечениях устройства, предохраняющие их от деформации при транспортировке и хранении.

Указания по производству работ
СНиП 3.05.01-85 пп. 3.35-3.39

Воздуховоды должны монтироваться в соответствии с проектными привязками и отметками.

Воздуховоды для транспортирования увлажненного воздуха следует монтировать так, чтобы в нижней части не было продольных швов.

Болты во фланцевых соединениях должны быть затянуты, все гайки болтов должны располагаться с одной стороны фланцев.

Прокладки между фланцами воздуховодов не должны выступать внутрь воздуховодов.

Хомуты должны плотно охватывать металлические воздуховоды. Свободно подвешиваемые воздуховоды должны быть расчалены путем установки двойных подвесок через каждые две одинарные подвески при длине подвесок от 0,5 м до 1,5 м.

При длине подвесок более 1,5 м двойные подвески следует устанавливать через каждую одинарную подвеску.

Монтаж внутренних газопроводов и газооборудования

Состав операций и средства контроля

Этапы работ

Контролируемые операции

Контроль (метод, объем)

Документация

Подготовительные работы

Проверить:

 

Паспорт, журнал работ

- наличие документа о качестве;

Визуальный

- подготовку мест для прокладки газопроводов и установку газовых плит;

То же

- соответствие размеров заготовленных деталей проекту;

- » -

- комплектность оборудования.

Технический осмотр

Монтаж внутренних газопроводов и оборудования

Контролировать:

 

Журнал работ

- вертикальность стояков, крепление;

Измерительный, визуальный

- прочность и плотность резьбовых соединений;

Технический осмотр

- соблюдение проектных уклонов газопроводов, расстояний от стен;

Измерительный

- окраска газопроводов.

Визуальный

Приемка выполненных работ

Проверить:

 

Акт приемки выполненных работ

- соответствие фактического положения газопроводов и газооборудования требованиям проекта;

Технический осмотр, измерительный

- качество выполнения соединений газопроводов;

То же

- проведение испытаний.

Измерительный

Контрольно-измерительный инструмент: штангенциркуль, отвес, рулетка металлическая, уровень строительный.

Входной и операционный контроль осуществляют: мастер (прораб) - в процессе работ.

Приемочный контроль осуществляют: работники службы качества, мастер (прораб), представители технадзора заказчика.

Технические требования
ГОСТ 4201-2002.

Допускаемые отклонения:

- стояков и прямолинейных участков газопровода от проектного положения - не более 2 мм на 1 м длины.

Расстояния между трубой и стеной устанавливаются по проекту.

При отсутствии в проекте этих данных расстояние должно быть не менее радиуса трубы (r).

При прокладке газопровода через стену расстояние от сварного шва до футляра должно быть не менее 50 мм.

Требования к установке отключающего крана

- при горизонтальной подводке газопровода к плите - на расстоянии не менее 20 см сбоку от плиты;

- при верхней разводке - на высоте 1,5-1,6 м от пола;

- после крана (считая по ходу газа) должен быть установлен сгон;

- краны должны быть установлены так, чтобы ось пробки крана была параллельна стене.

Не допускается:

- заделка соединений трубопроводов и арматуры в стены или перекрытия;

- размещение стыковых соединений на участке газопровода, проложенного в футляре.

На законченные строительством газовые вводы, внутридомовое газооборудование следует составлять строительные паспорта.

Требования к качеству применяемых материалов

ГОСТ Р 50696-94. Плиты газовые бытовые. Общие технические условия.

ГОСТ 3262-75*. Трубы стальные водогазопроводные. Технические условия.

Предельные отклонения по размерам труб не должны превышать указанные в таблице.

Размер труб

Предельное отклонение для труб точности изготовления

обычной

повышенной

Наружный диаметр с условным проходом:

 

 

до 40 мм включительно

+0,4 мм

-0,5 мм

±0,4 мм

свыше 40 мм

+0,8 мм

-1,0 мм

±0,8 мм

Толщина стенки

-15%

-10%

Предельные отклонения по массе труб не должны превышать +8%.

Кривизна труб на 1 м длины не должна превышать:

- 2 мм - с условным проходом до 20 мм включительно;

- 1,5 мм - с условным проходом свыше 20 мм.

При транспортировании автомобильным транспортом, а также при хранении плиты устанавливают в один ярус.

Для плит, оснащенных электрооборудованием, дополнительно должен быть нанесен манипуляционный знак «Боится сырости».

Плиты перевозятся и хранятся в таре. На маркировке должны быть нанесены знаки: «Верх», «Осторожно, хрупкие».

Указания по производству работ
ГОСТ 4201-2002.

Монтаж внутреннего газооборудования следует производить после выполнения следующих работ:

- оштукатуривания стен в помещениях, в которых предусмотрена установка газового оборудования;

- установки ванн, моек, раковин и других приборов, к которым подводятся трубопроводы от газового оборудования;

- проверки и очистки дымоходов.

При установке газового оборудования, газовых приборов, присоединении их к газовым сетям и отопительным системам следует выполнять требования заводских инструкций по монтажу.

При монтаже газопроводов должны быть приняты меры по предотвращению засорения полости труб, секций, плетей.

При монтаже внутреннего газопровода соединение труб производится сваркой, резьбовыми и фланцевыми соединениями.

Краны на трубопроводах должны устанавливаться так, чтобы ось пробки крана была параллельна стене.

Внутренние газопроводы следует окрашивать водостойкими лакокрасочными материалами.

Запорная арматура до установки ее должна быть ревизована, расконсервирована и испытана на герметичность (ГОСТ 9544-93).

Испытание арматуры для газопроводов низкого давления следует производить на прочность и герметичность давлением воздуха 0,1 МПа.

Результаты испытаний следует оформлять записью в строительном паспорте.

Устройство электроосвещения

Состав операций и средства контроля

Этапы работ

Контролируемые операции

Контроль (метод, объем)

Документация

Подготовительные работы

Проверить:

 

Паспорта (сертификаты), акт приемки, общий журнал работ

 

- наличие документов о качестве на материалы и электрооборудование;

Визуальный

 

 

- комплектность материалов;

То же

 

 

- наличие защиты от коррозии металлических частей;

- » -

 

 

- наличие конструктивных элементов для крепления;

- » -

 

 

- готовность помещений для устройства электроосвещения;

Технический осмотр

 

 

- разметку.

То же

 

Работы по устройству электропроводки и установке электроосветительной арматуры, счетчиков

Контролировать:

 

Общий журнал работ, акты освидетельствования скрытых работ

- высоту установки электросчетчиков, выключателей, розеток;

Визуальный, измерительный

- качество прокладки проводов и их крепления.

То же

Приемка выполненных работ

Проверить:

 

Акт проверки осветительной сети на зажигание.

Акт сдачи электроосвещения в эксплуатацию

- качество прокладки электропроводки и установки электрооборудования;

Технический осмотр

- наличие актов измерения сопротивления изоляции;

Визуальный

- правильность зажигания и горения ламп.

То же

Контрольно-измерительный инструмент: металлический метр, микрометр металлический, амперметр, контрольная лампа, омметр.

Операционный контроль осуществляют: мастер (прораб).

Приемочный контроль осуществляют: работники службы качества, мастер (прораб), технадзор, представители технадзора заказчика.

Технические требования
СНиП 3.05.06-85 пп. 2.4, 2.24, 2.25, 3.32-3.35, 3.39, 3.40

Высота установки выключателей на стене:

- в школах и детских учреждениях, в помещениях для пребывания детей - 1,8 м от пола;

- в других помещениях - 1,5 м от пола.

Установка выключателей со стороны дверной ручки.

Высота установки розеток:

- в школах и детских учреждениях - 1,8 м от пола;

- в предприятиях общественного питания и торговли - не более 1,3 м от пола;

- в других общественных зданиях и жилых помещениях выбирается удобной для присоединения к ним электроприборов.

От заземленных частей (трубопроводы, раковины) розетки должны находится на расстоянии не менее 0,5 м.

Крепление плоских проводов при скрытой прокладке должно обеспечивать плотное прилегание их к строительным конструкциям, при этом расстояние между точками крепления должно составлять:

- при прокладке на горизонтальных и вертикальных участках заштукатуриваемых пучков проводов не более 0,5 м, одиночных проводов - 0,9 м;

- при покрытии проводов сухой штукатуркой - до 1,2 м.

Каналы для протягивания проводов должны иметь на всем протяжении гладкую поверхность. Толщина защитного слоя над каналом (трубой) должна быть не менее 10 мм. Длина канала между протяжными нишами или коробками должна быть не более 8 м.

Счетчики надлежит устанавливать на стенах, в нишах, а также на панелях и щитках, имеющих жесткую конструкцию.

Счетчики, устанавливаемые в этажных электрошкафах, должны располагаться на высоте 0,8-1,7 м от пола до коробки зажимов счетчиков. При открытой установке счетчики должны устанавливаться на высоте 1,4-1,5 м.

Не допускаются:

- установка розеток в ванных, душевых, раздевалках при душевых, в мыльных помещениях бань, стиральных помещениях, прачечных;

- установка выключателей в ванных санузлах, в мыльных помещениях бань, стиральных помещениях, прачечных;

- прокладка электропроводки по нагреваемым поверхностям;

- прокладка и монтаж плоских проводов при температуре ниже минус 15° С;

- сквозные отверстия, предназначенные для электроустановочных изделий, в стеновых панелях смежных квартир без звукоизоляционных прокладок из несгораемого материала.

Указания по производству работ
СНиП 3.05.06-85 пп. 2.2, 2.4, 2.13

До начала производства электромонтажных работ должна быть осуществлена приемка по акту строительной части объекта под монтаж электрических устройств.

В зданиях и сооружениях должны быть введены в действие системы отопления и вентиляции.

Генподрядчик должен предъявить к приемке под монтаж строительную готовность в жилых домах - посекционно, в общественных зданиях - поэтажно (или по помещениям). Проходные сечения каналов и замоноличенных неметаллических труб не должны отличаться более чем на 15% от проектных.

При скрытой прокладке проводов под слоем штукатурки или в тонкостенных (до 80 мм) перегородках провода должны быть проложены параллельно архитектурно-строительным линиям. Расстояние горизонтально проложенных проводов от плит перекрытия не должно превышать 150 мм. В строительных конструкциях толщиной свыше 80 мм провода должны быть проложены по кратчайшим трассам.

Скрытую прокладку плоских проводов следует производить:

- по несгораемым основаниям - в заштукатуриваемой борозде или под слоем мокрой штукатурки;

- по сгораемым основаниям, покрываемым мокрой штукатуркой, - под слоем штукатурки с подкладкой под провод листового асбеста толщиной 3 мм или по намету штукатурки толщиной 5 мм.

При скрытой прокладке защищенных проводов (кабелей) с оболочками из сгораемых материалов и незащищенных проводов в закрытых нишах, в пустотах строительных конструкций, в бороздах и т. п. с наличием сгораемых конструкций необходимо защищать провода и кабели сплошным слоем несгораемого материала со всех сторон.

Концы проводов, присоединяемых к светильникам, автоматам, щиткам и электроустановочным изделиям, должны иметь запас по длине, достаточной для повторного подсоединения в случае обрыва.

Генподрядчиком должны быть выполнены предусмотренные проектом отверстия, борозды, ниши и гнезда в строительных конструкциях для монтажа электрооборудования и установочных изделий, прокладки труб для электропроводок.

Отверстия диаметром менее 30 мм, не поддающиеся учету при разработке чертежей, выполняются электромонтажной организацией.

После выполнения электромонтажных работ подрядчик обязан осуществить заделку отверстий, борозд, ниш и гнезд.

Устройство круглых железобетонных колодцев

Состав операций и средства контроля

Этапы работ

Контролируемые операции

Контроль (метод, объем)

Документация

Подготовительные работы

Проверить:

 

Общий журнал работ

- наличие документов о качестве;

Визуальный

- правильность разбивки осей;

Измерительный

- соответствие отметок котлована;

Технический осмотр

- подготовку основания.

То же

Устройство колодцев

Контролировать:

 

Общий журнал работ

- соответствие положения элементов колодца в плане и по вертикали проекту;

Визуальный, измерительный

- отметку верха лотка и плиты перекрытия колодца;

Измерительный

- качество заделки и герметизации стыков;

Визуальный

- качество изоляции стен колодцев.

То же

Приемка выполненных работ

Проверить:

 

Акт освидетельствования скрытых работ

- качество монтажа, выполнение в плане и по высоте;

Измерительный

- герметизацию стыков.

Визуальный

Контрольно-измерительный инструмент: металлический метр, нивелир.

Операционный контроль осуществляют: мастер (прораб).

Приемочный контроль осуществляют: работники службы качества, мастер (прораб), главный инженер, представители технадзора заказчика.

Технические требования
СНиП 3.05.04-85 п. 3.17, СНиП 3.03.01-87 пп. 3.5, 3.6, табл. 12

Допускаемые отклонения:

- относительно разбивочных осей - 12 мм;

- отметок днища колодцев - -20 мм;

- отметок опорного кольца - 10 мм;

- перекоса верхней плоскости плиты - 10 мм.

Марка раствора должна быть не ниже 50, подвижность должна составлять 5-7 см по глубине стандартного конуса. Толщина раствора в шве - 10 мм

Не допускается:

- применение раствора, процесс схватывания которого уже начался;

- омолаживание раствора водой.

Требования к качеству применяемых материалов

ГОСТ 8020-90*. Конструкции бетонные и железобетонные для колодцев канализационных, водопроводных и газопроводных сетей.

Отклонения фактических размеров колодцев от номинальных не должны превышать:

- по внутреннему диаметру колец от и по наружному диаметру плит перекрытий и днищ, мм:

до 1500 - ±8;

св. 1500 - ±10;

- по внутреннему диаметру опорных колец - ±5;

- по высоте колец:

стеновых - ±8;

опорных - ±5;

- по толщине стеновых и опорных колец, плит перекрытий и днищ - ±5;

- по диаметру лазов и отверстий для трубопроводов - ±5.

Отклонение положения отверстий и вырезов от проектного не должно превышать 5 мм.

Непрямолинейность верхних и нижних поверхностей плит перекрытий и днищ не должна превышать 5 мм.

Закладные детали и монтажные петли должны быть очищены от наплывов бетона.

Скобы должны располагаться по высоте кольца через 300 мм и отступать от поверхности стенки на 120 мм и должны быть покрыты битумным лаком.

Указания по производству работ
СНиП 3.05.04-85 пп. 3.16, 3.17

При наличии грунтовых вод на укрепленное щебнем основание укладывают бетонную подготовку толщиной до 100 мм из бетона класса 5-10. Поверх бетонной подготовки укладывают слой асфальта толщиной 20 мм, и на него монтируется плита днища или стакан колодца.

При отсутствии в проекте производства работ специальных указаний об очередности работ при устройстве коммуникаций их следует выполнять в следующей последовательности:

- укладка днища колодца;

- укладка труб, монтаж фасонных частей и запорной арматуры;

- монтаж колодца.

В мокрых грунтах, при уровне грунтовых вод выше дна колодца, необходимо выполнить гидроизоляцию дна и стен колодца на 0,5 м выше уровня грунтовых вод.

Люки для закрытия лазов колодцев устанавливаются горизонтально на плиту покрытия или горловину. Люки колодцев, размещаемых на застроенных территориях без дорожных покрытий, должны возвышаться над поверхностью земли на 5 см, вокруг люка предусматривается отмостка шириной 1 м с уклоном от крышки люка.

На проезжей части с усовершенствованным покрытием крышка люка должна располагаться не выше 20 мм над поверхностью проезжей части.

Люки колодцев, устанавливаемых на незастроенной территории, должны возвышаться над поверхностью земли на 200 мм.

Для спуска в колодец на внутренней поверхности стен колодцев устанавливаются в шахматном порядке скобы с расстоянием по вертикали и горизонтали (между осями рядов) 300 мм.

Верхняя скоба располагается на расстоянии 500-600 мм от крышки люка, а нижняя - на высоте 300-400 мм от дна колодца.

Пазухи колодцев во всех случаях должны засыпаться местным грунтом с равномерным уплотнением по периметру слоями 200-300 мм трамбовками.

Колодцы испытываются на водонепроницаемость совместно с трубопроводом.

Монтаж камер теплотрасс

Состав операций и средства контроля

Этапы работ

Контролируемые операции

Контроль (метод, объем)

Документация

Подготовительные работы

Проверить:

 

Паспорта (сертификаты), общий журнал работ, акт освидетельствования скрытых работ

- наличие документов о качестве элементов;

Визуальный

- правильность разбивки осей камер и отметок дна котлованов;

Измерительный

- качество наружной гидроизоляции элементов;

Технический осмотр

- отсутствие воды или снега в основании котлованов.

Визуальный

Монтаж элементов камер

Контролировать:

 

Общий журнал работ, акты освидетельствования скрытых работ

- соответствие положения сборных элементов камер и колодцев в плане и по вертикали проекту;

Визуальный, измерительный

- сварку закладных деталей;

Визуальный

- антикоррозийное покрытие закладных деталей;

То же

- качество заделки стыков раствором и герметизации.

- » -

Приемка выполненных работ

Проверить:

 

Акт приемки выполненных работ

- соответствие положения камер проекту;

Визуальный

- качество заделки стыков.

Измерительный

Контрольно-измерительный инструмент: металлический метр, строительный уровень.

Операционный контроль осуществляют: мастер (прораб), геодезист.

Приемочный контроль осуществляют: работники службы качества, мастер (прораб), геодезист, главный инженер РСУ, представители технадзора заказчика.

Технические требования
СНиП 3.05.03-85; СНиП 3.03.01-87

Допускаемые отклонения:

- смещение осей блоков камеры или колодца относительно разбивочных осей - 12 мм;

- отклонение отметок основания под камеры или колодцы - 20 мм;

- отклонение от смещения ориентиров (рисок геометрических осей, граней) с установочными ориентирами (рисками геометрических осей, гранями) нижележащих элементов - 8 мм;

- отклонение боковых плоскостей элементов в верхнем сечении от вертикали - 10 мм.

Марка раствора, применяемого при монтаже конструкций для устройства постели, принимается по проекту. Подвижность раствора должна составлять 5-7 см по глубине погружения стандартного конуса.

Не допускаются:

на поверхности камер и колодцев:

- трещины, за исключением усадочных и других поверхностных технологических, ширина которых не должна превышать 1 мм;

- раковины, наплывы, околы бетона, размер которых превышает указанные в таблице.

Вид поверхности

Категория

Диаметр раковин

Высота наплыва; глубина впадин

Глубина окола бетона на ребре элемента

Суммарная длина околов бетона на 1 м ребра

лицевая

А6

15

5

10

100

невидимая в условиях эксплуатации

А7

20

не регламентируется

20

не регламентируется

Требования к качеству применяемых материалов

ГОСТ 13015-2003. Изделия железобетонные и бетонные для строительства. Общие технические условия. Правила приемки, маркировки, транспортирования и хранения.

Отклонения фактических размеров камер и колодцев от номинальных размеров не должны превышать, мм:

- по длине - ±15;

- по ширине - ±12;

- по высоте - ±10.

Отклонение размеров ребер, вырезов, проемов не должно превышать ±5 мм.

Отклонение положения отверстий в элементе не должно превышать 5 мм.

Отклонения от прямолинейности не должны превышать 20 мм.

Отклонения от номинального положения стальных закладных деталей не должны превышать, мм:

- для закладных деталей длиной до 100 мм - 5;

- для закладных деталей длиной свыше 100 мм - 10;

- из плоскости элемента - 3.

Закладные детали должны иметь антикоррозийное покрытие.

Указания по производству работ
СНиП 3.03.01-87 пп. 3.8, 3.10, СНиП 3.05.03-85 пп. 3.2, 3.4

Монтаж элементов камер в проектное положение следует выполнять в технологической последовательности, увязанной с ППР по монтажу и предварительному испытанию трубопроводов на прочность и герметичность.

Поверхность закладных деталей и монтажные петли должны быть очищены от наплывов бетона и раствора.

Выверку камер и колодцев в плане следует производить, совмещая установочные риски на конструкциях с разбивочными осями.

Выверку в вертикальной плоскости следует производить, выверяя плоскости двух взаимно перпендикулярных граней камеры и колодца.

При строительстве камер и колодцев в сухих грунтах для защиты от проникновения сточных вод проводится окрасочная гидроизоляция наружной поверхности сборных элементов из битумных мастик.

При монтаже камер и колодцев во влажных грунтах рекомендуется асфальтовая гидроизоляция, для защиты стыков элементов следует предусматривать гидроизоляцию стыков путем наклейки с наружной стороны полосы из прочной стеклоткани шириной 30 см, пропитанной битумной мастикой по всей длине стыка на горизонтальной и вертикальной плоскостях элементов.

Наружная гидроизоляция сборных элементов должна выполняться до начала монтажа.

Монтаж непроходных каналов

Состав операций и средства контроля

Этапы работ

Контролируемые операции

Контроль (метод, объем)

Документация

Подготовительные работы

Проверить:

 

Акт приемки, общий журнал работ

- наличие документов о качестве;

Визуальный, измерительный

- правильность разбивки осей трассы и соответствие отметок дна траншей проекту;

То же

- качество наружной гидроизоляции;

Визуальный

- качество основания под лотки (толщину, ровность).

Визуальный, измерительный

Монтаж непроходных каналов

Контролировать:

 

Общий журнал работ, акт освидетельствования скрытых работ

- соответствие положения сборных элементов канала проекту;

Визуальный, измерительный

- качество заделки стыков раствором;

Визуальный

- качество выполненной гидроизоляции.

То же

Приемка выполненных работ

Проверить:

 

Акт освидетельствования скрытых работ

 - толщину подстилающего слоя;

Визуальный, измерительный

- фактическое положение смонтированных конструкций (отклонение от разметки, определяющей проектное положение элементов);

То же

- качество заделки стыков;

Визуальный

- качество гидроизоляции.

То же

Контрольно-измерительный инструмент: металлический метр, теодолит, нивелир, рулетка.

Операционный контроль осуществляют: мастер (прораб).

Приемочный контроль осуществляют: работники службы качества, мастер (прораб), геодезист, главный инженер РСУ, представители технадзора заказчика.

Технические требования
СНиП 3.03.01-87; СНиП 3.05.03-85

Допускаемые отклонения:

Предельные отклонения:

- смещения осей лотков канала относительно разбивочных осей - 12 мм;

- толщина основания под канал и степень уплотнения - по проекту;

- в размерах стыков лотков и плит перекрытий - по проекту, в случае отсутствия указаний - не более 20 мм;

- от симметричности (половина разности свесов концов плит) опирания плит перекрытия - 5 мм.

Не допускается:

- применение раствора, процесс схватывания которого уже начался;

- омолаживание раствора водой;

- трещины, за исключением усадочных и других поверхностных технологических, ширина которых не должна превышать 0,1 мм.

Требования к качеству применяемых материалов

ГОСТ 13015-2003. Изделия железобетонные и бетонные для строительства. Общие технические условия. Правила приемки, маркировки, транспортирования и хранения.

Предельные отклонения от основных размеров элементов каналов (лотков каналов, плит перекрытий, опорных подушек) не должны превышать, мм:

- по длине - ±10;

- по ширине - ±8;

- по высоте - ±8.

Отклонение от прямолинейности в любом сечении не должно превышать, мм:

- при длине изделия до 2500 - 3;

- при длине изделия свыше 2500 - 5.

Отклонение от плоскости не должно превышать 5 мм. Разница длин диагоналей лицевых плоскостей плит не должна превышать, мм:

- при длине плиты до 2500 - 10;

- при длине плиты свыше 2500 - 13.

Отклонение от номинальных размеров ребер, полок, выступов и отверстий не должно превышать ±5 мм.

Отклонение от номинального положения отверстий в изделиях не должно превышать 5 мм.

Предельные размеры дефектов не должны превышать, мм:

- диаметр раковин - 15;

- глубина раковин - 5;

- высота наплывов и глубина впадин - 5;

- глубина околов ребер бетона - 13;

- длина околов на 1 м ребра - 100.

На боковой поверхности плиты, лотка должны быть нанесены маркировочные надписи:

- марка изделия;

- краткое наименование предприятия-изготовителя;

- дата изготовления.

Каждая партия изделий должна сопровождаться документом о качестве. При хранении должны укладываться в рабочем положении в штабель высотой не более 2 м на деревянные прокладки.

Монтажные петли должны быть очищены от наплывов бетона и раствора.

Указания по производству работ
СНиП 3.03.01-87; СНиП 3.05.03-85

Марка раствора принимается по проекту. Подвижность раствора должна составлять 5-7 см по глубине погружения стандартного конуса.

Выверку лотков в плане следует производить, совмещая их внутренние боковые поверхности.

При строительстве каналов для защиты от грунтовых вод должна проводиться окрасочная гидроизоляция наружной поверхности лотков и плит перекрытия (соприкасающихся с грунтом) из нефтяных битумов или мастик.

Гидроизоляция стыков в этом случае выполняется путем наклейки с наружной стороны полосы из прочной стеклоткани шириной 30 см, пропитанной битумной мастикой по всей длине стыка на горизонтальной и вертикальной плоскости элементов канала.

Наружная гидроизоляция лотков должна выполняться до начала монтажных работ, а плит покрытия каналов - после их монтажа и заделки швов раствором.

Изоляция трубопроводов теплотрасс

Состав операций и средства контроля

Этапы работ

Контролируемые операции

Контроль (метод, объем)

Документация

Подготовительные работы

Проверить:

- наличие документа о качестве;

- качество материалов, изделий;

- обработку поверхностей трубопроводов под изоляцию.

 

Визуальный, измерительный, выборочно, не менее 5% изделий

Паспорта (сертификаты), акт приемки, акт испытания, общий журнал работ

Изоляция трубопроводов

Контролировать:

- качество противокоррозионной изоляции;

- качество теплоизоляции;

- крепление основного теплоизоляционного слоя бандажами или сетками;

- качество покровного слоя.

 

Визуальный, измерительный

Журнал работ, акт освидетельствования скрытых работ

Приемка выполненных работ

Проверить:

- качество выполнения изоляции;

- соответствие материалов требованиям проекта, стандартов.

 

Визуальный, измерительный

Акт приемки выполненных работ

Контрольно-измерительный инструмент: линейка металлическая, щуп.

Операционный контроль осуществляют: мастер (прораб).

Приемочный контроль осуществляют: работники службы качества, мастер (прораб), лаборант, представители технадзора заказчика.

Технические требования
СНиП 3.04.01-87 пп. 2.32, 2.34, 2.35, табл. 7

Допускаемые отклонения:

При устройстве теплоизоляции из жестких изделий, укладываемых насухо, необходимо обеспечивать:

- зазор между изделиями и изолируемой поверхностью не более 2 мм;

- ширину швов между изделиями не более 2 мм;

- крепление изделий - по проекту.

При устройстве теплоизоляции с применением мягких и полужестких волокнистых изделий необходимо обеспечивать:

- коэффициент уплотнения:

для полужестких изделий - не более 1,2;

для мягких - не более 1,5;

- плотное прилегание изделий к изолируемой поверхности и между собой;

- перекрытие продольных и поперечных швов при изоляции в несколько слоев;

- установку на горизонтальных трубопроводах креплений от провисания теплоизоляции.

При устройстве покровных оболочек теплоизоляции необходимо обеспечить:

- плотное прилегание оболочек к теплоизоляции;

- надежное крепление при помощи крепежных изделий;

- тщательное уплотнение стыков гибких оболочек.

При устройстве антикоррозионного покрытия металлических труб необходимо проверять сплошность, сцепление с защищенной поверхностью, толщину.

Не допускаются:

- механические повреждения;

- провисание слоев;

- неплотное прилегание к основанию.

Требования к качеству применяемых материалов

ГОСТ 10296-79*. Изол. Технические условия.

ГОСТ 23307-78*. Маты теплоизоляционные из минеральной ваты вертикально слоистые. Технические условия.

ГОСТ 16381-77*. Материалы и изделия строительные теплоизоляционные. Классификация и общие технические требования.

ГОСТ 23208-2003. Цилиндры и полуцилиндры теплоизоляционные из минеральной ваты на синтетическом связующем.

Изол должен быть гибким. При изгибании полоски изола марки И-БД при температуре минус 15 °С, марки И-ПД при температуре минус 20 °С на стержне диаметром 10 мм на полоске изола не должно появляться трещин. Изол должен быть температуроустойчивым. При нагревании в вертикальном положении в течение 2 часов при температуре 150 °С не должно наблюдаться увеличение длины и появление вздутий. Полотно изола должно быть намотано на жесткий сердечник диаметром не менее 60 мм, изготовленный из материала, обеспечивающего сохранность изола при его транспортировании и хранении. Длина сердечника должна быть равна ширине полотна или меньше ее не более чем на 10 мм. Торцы рулона изола, а также края полотен в стыке рулона должны быть ровно обрезаны. Полотно изола не должно иметь дыр, разрывов, складок, надрывов кромок, а также не переработанных частиц резины и посторонних включений. Нижняя поверхность полотна изола (внутренняя в рулоне) должна быть покрыта сплошным слоем пылевидной посыпки. Полотно изола не должно быть слипшимся.

Теплоизоляционные материалы и изделия должны удовлетворять следующим общим техническим требованиям:

- обладать теплопроводностью не более 0,175 Вт/(м·К) (0,15 ккал) (м·ч·°С) при 25 °С;

- иметь плотность (объемную массу) не более 600 кг/м3;

- обладать стабильными физико-механическими и теплотехническими свойствами;

- не выделять токсические вещества и пыль в количествах, превышающих предельно допустимые концентрации.

Для тепловой изоляции оборудования и трубопроводов с температурой изолируемой поверхности свыше 100 °С должны применяться неорганические материалы.

Пенодиатомитовые и диатомитовые теплоизоляционные изделия должны иметь правильную геометрическую форму. Допускаемые отклонения от перпендикулярности граней и ребер не должны превышать 3 мм. В изделиях не допускаются дефекты внешнего вида:

- пустоты и включения шириной и глубиной более 10 мм;

- отбитости и притупленности углов и ребер глубиной более 12 мм и длиной более 25 мм;

- сквозные трещины длиной свыше 30 мм; изделия с трещинами свыше 30 мм считаются половняком.

Указания по производству работ
СНиП 3.04.01-87 пп. 1.3, 2.1, 2.8-2.9, 2.32, 2.33, СНиП 3.05.03-85 пп. 6.1, 6.2

Теплоизоляционные работы могут начинаться только после оформления акта (разрешения), подписанного заказчиком и представителями монтажной организации и организации, выполняющей теплоизоляционные работы.

Изоляционные работы допускается выполнять при положительных температурах (до 60 °С) и отрицательных (до -30 °С).

Поверхности трубопроводов перед изоляцией должны быть очищены от ржавчины, а подлежащие антикоррозионной защите обработаны в соответствии с требованиями проекта. Теплоизоляционные работы на трубопроводах должны начинаться только после их постоянного закрепления. Изоляцию трубопроводов, расположенных в непроходных каналах и лотках, необходимо выполнять до их прокладки.

При температуре теплоносителя до 140 °С для защиты наружной поверхности труб тепловых сетей от коррозии применяется покрытие из изола в два слоя на мастике изол. Общая толщина покрытия 5-6 мм. Для воздушной теплосети с температурой теплоносителя до 140 °С для защиты поверхности труб от коррозии применяются покрытия комбинированные краской БТ-177 по грунтовке ГФ-020. Общая толщина покрытия 0,15- 0,20 мм.

Для проверки качества работ по наклейке противокоррозионной защиты делают надрез до металла на участке размером 200´200´200. Качество считается удовлетворительным, если изоляция отделяется от трубы с некоторым усилием. Такой проверке на отрыв подвергается 5% труб.

Закрепление теплоизоляции на трубопроводах следует производить бандажами. Для защиты основного слоя теплоизоляции от увлажнения, механических повреждений необходимо применять покровные оболочки из жестких или гибких (неметаллических) материалов.

Монтаж теплоизоляционных изделий необходимо начинать от фланцевых соединений и фасонных частей и проводить в направлении, противоположном уклону.

При промежуточной проверке осматривают поверхности, подготовленные под тепловую изоляцию, при многослойной теплоизоляции проверяют каждый слой до нанесения следующего. При окончательной проверке теплоизоляции определяют равномерность толщины изоляции по всей длине прямого и обратного трубопровода.

Толщину изоляции проверяют щупом. Особенно внимательно нужно следить за дозировкой цемента и асбеста при защите изоляции асбестоцементным раствором. Избыток цемента в асбоцементной массе приводит после ее затвердения и нагрева к растрескиванию.

 




ГОСТЫ, СТРОИТЕЛЬНЫЕ и ТЕХНИЧЕСКИЕ НОРМАТИВЫ.
Некоммерческая онлайн система, содержащая все Российские Госты, национальные Стандарты и нормативы.
В Системе содержится более 150000 файлов нормативно-технической документации, действующей на территории РФ.
Система предназначена для широкого круга инженерно-технических специалистов.

Рейтинг@Mail.ru Яндекс цитирования

Copyright © www.gostrf.com, 2008 - 2026